Электроснабжение и электрооборудование участка кузнечно-прессового цеха
ФЕДЕРАЛЬНОЕ
АГЕНСТВО ПО РЫБОЛОВСТВУ ФЕДЕРАЛЬНОЕ ГОСУДАРСТВЕННОЕ ОБРАЗОВАТЕЛЬНОЕ УЧРЕЖДЕНИЕ
ВЫСШЕГО ПРОФЕССИОНАЛЬНОГО ОБРАЗОВАНИЯ «МУРМАНСКИЙ ГОСУДАРСТВЕННЫЙ ТЕХНИЧЕСКИЙ
УНИВЕРСИТЕТ»
Кафедра
энергетики и транспорта
КУРСОВОЙ
ПРОЕКТ
по
дисциплине: «Электроэнергетика».
Тема
проекта: «Электроснабжение и электрооборудование участка кузнечно-прессового
цеха»
МУРМАНСК
ВВЕДЕНИЕ
В данный момент времени происходит повышение
эффективности производства, ускоряется научно-технический прогресс. При решении
вопросов технического совершенствования производства предусматривается
повышение уровня электрификации производства и эффективности использования
электроэнергии, более широкое внедрение электротехнических и
электротехнологических процессов.
Основные задачи, которые на данный момент
являются актуальными для народного хозяйства и промышленности и их решение,
будут отражены в данном проекте. Это экономичность и надёжность рационально
выполненной современной системы электроснабжения, это безопасность и удобство
её эксплуатации. Необходимо учитывать гибкость системы - это обеспечение
возможности расширения при развитии предприятия без существенного усложнения и
удорожания первоначального варианта. При этом должны по возможности применяться
решения, требующие минимальных расходов цветных металлов и электроэнергии.
Основной целью данного проекта является
электроснабжение участка кузнечно-прессового цеха. Для достижения данной цели
следует выполнить следующие задачи:
Выбрать напряжение для силовой и осветительной
сети;
Произвести расчёт освещения цеха;
Определить электрические нагрузки силовых
электроприёмников;
Произвести выбор мощности и числа цеховых
трансформаторных подстанций;
Определить мощность компенсирующих устройств
(если требуется);
Расчёт токов короткого замыкания;
Выбор и проверка коммутационных аппаратов;
Расчёт заземления.
1. ИСХОДНЫЕ ДАННЫЕ
Участок кузнечно-прессового цеха (КПЦ)
предназначен для подготовки металла к обработке. Он имеет станочное отделение,
в котором установлено оборудование: обдирочные станки типа РТ-21001 и РТ-503,
электротермические установки, кузнечно-прессовые машины, мостовые краны,
вентиляторы. Участок предусматривает наличие помещений для цеховой ТГ1,
вентиляторной, инструментальной, складов для бытовых нужд и пр. ЭСН осуществляется
от ГПП. Расстояние от ГПП до цеховой ТП - 1,4 км, а от ЭСН до ГПП - 12 км.
Напряжение на ГПП - 6 и 10 кВ. Количество рабочих смен - 2. Потребители участка
имеют 2 и 3 категорию надёжности ЭСН.
Грунт в районе КПЦ - суглинок с температурой +15
°С. От этой же цеховой ТП намечается ЭСН при расширении станочного парка.
Дополнительная нагрузка КПЦ в перспективе
составит: Рдоп =683 кВт, Qдоп =828 квар, Кп =0,5.
Каркас здания смонтирован из блоков-секций
длиной 8 м каждая. Размеры участка А×В×
Н
= 96×56×10м.
Вспомогательные помещения двухэтажные высотой 4 м.
Перечень оборудования участка КПЦ дан в таблице
1. Мощность электропотребления (Рэп,кВт) указана для одного электроприёмника.
Расположение основного оборудования показано на
плане.
Перечень ЭО участка кузнечно-прессового цеха
Таблица 1
|
№
на плане
|
Наименование
ЭО
|
Вариант
|
примечание
|
|
|
2
|
|
|
|
Рэп,кВт
|
|
|
1
|
Вентилятор
вытяжной
|
40
|
|
|
2
|
Вентилятор
приточный
|
60
|
|
|
3…5
|
Электротермические
установки
|
15
|
|
|
6,17,36
|
Краны
мостовые
|
25
кВ·А
|
ПВ=25%
|
|
7…16
|
Обдирочные
станки типа РТ-503
|
21
|
|
|
18…20
|
Кривошипные
КПМ
|
10
|
|
|
21…23
|
Фрикционные
КПМ
|
4,5
|
|
|
24…35
|
Обдирочные
станки типа РТ-21001
|
17
|
|
2. ХАРАКТЕРИСТИКА ПОТРЕБИТЕЛЕЙ ЦЕХА
Все потребители условно делят на потребители
первой, второй и третьей категории. Потребители третьей категории допускают
перерыв электроснабжения на время доставки складского резерва, для их питания
достаточно одного источника. Потребители второй категории допускают
непродолжительные перерывы электроснабжения на время автоматического включения
резерва или на время включения резервного питания оперативным персоналом, их
рекомендуется обеспечить электроэнергией от двух независимых источников
питания. У потребителей первой категории перерыв в их электроснабжении допустим
на время автоматического включения резерва, их питание обеспечивается от двух
взаимно резервирующих источников питания. Среди потребителей первой категории
выделена особая группа: перерыв в электроснабжении, который недопустим вовсе.
Потребители этой группы должны иметь третий автономный источник питания
(например: больницы, шахты).
Вентилятор - машина для перемещения газа со
степенью сжатия менее 1,15 (или разностью давлений на выходе не более 15кПа).
Кран мостовой - представляет собой ферму (мост),
которая при помощи специального электродвигателя может передвигаться по
подкрановому пути. На мосту расположена тележка, оборудованная подъёмной
лебёдкой и двумя двигателями: один для привода лебёдки, а другой для
передвижения самой тележки по мосту. К мосту подвешена кабина крановщика с
аппаратурой управления электродвигателями. Для привода крановых механизмов
используют краново-металлургические электродвигатели повторно-кратковременного
режима работы.
Понятие "электротермические установки"
(или "электротермическое оборудование") включает электрические печи,
плазменные реакторы, электрические нагревательные приборы коммунального и
бытового назначения. Электрическая печь, плавильная или нагревательная печь, в
которой используется тепловой эффект электрических явлений.
Кривошипный механизм, механизм для
преобразования одного вида движения в другой, имеет вращающееся звено в виде
кривошипа или коленчатого вала, связанное со стойкой и другим звеном
вращательными кинематическими парами (шарнирами), к. м. обычно имеют
вращательные и поступательные кинематические пары. К. м. делятся на плоские (с
движением всех звеньев в параллельных плоскостях) и пространственные,
четырёхзвенные и многозвенные. Наиболее распространённые плоские четырёхзвенные
к. м. делятся на три группы: шарнирные четырёхзвенные, кривошипно-ползунные,
кривошипно-кулисные. Фрикционный механизм, механизм для передачи или
преобразования движения с помощью трения. К ф.м. относятся фрикционные
передачи, фрикционные муфты и тормоза,механизмы фрикционного зажима и разжима.
Освещение. Для промышленных предприятий характерно два вида освещения: рабочее
и аварийное. Рабочее освещение обеспечивает надлежащую освещенность всего
помещения и рабочих поверхностей. Аварийное освещение должно обеспечивать
продолжение работы или безопасную эвакуацию людей из помещения при аварийном
отключении рабочего освещения.
3. ВЫБОР РОДА ТОКА И НАПРЯЖЕНИЯ ДЛЯ
СИЛОВОЙ И ОСВЕТИТЕЛЬНОЙ СЕТИ
В большинстве случаев на промышленных
предприятиях применяется переменный ток. Применение постоянного или
выпрямленного тока должно быть экономически и технически обосновано. Выбор того
или иного напряжения определяет построение всей СЭС промышленного предприятия.
Для внутрицеховых электрических сетей наибольшее распространение имеет
напряжение 380/2205, основным преимуществом которого является возможность
совместного питания силовых и осветительных электрических приемников.
Наибольшая единичная мощность трехфазных электрических приемников питающихся от
системы напряжений 380/220В, не должна превышать 200-250кВт, допускающих
применение коммутирующей аппаратуры на ток 630/1. Для питания предприятий малой
мощности и в распределительных сетях внутри предприятия используется напряжение
6 и 10кВ, причем напряжение 10кВ является более предпочтительным. 6кВ
целесообразно использовать тогда, когда предприятие получает питание от
промышленных ТЭЦ или при наличии большого числа потребителей напряжения 6кВ.
Эти сети выполняются с изолированной нейтралью.
В особоопасных помещениях для питания
осветительных сетей и переносных приемников используют напряжение 12, 36 и 42В.
Выбор источника оперативного тока зависит от
назначения, характера работы и ответственности электроприемников, питаемых от
проектируемой установки.
Для питания электромагнитов включения могут быть
применены источники постоянного и выпрямленного тока.
В настоящее время для питания электромагнитов
включения выключателей от выпрямленного тока наиболее целесообразно применять
устройство комплектного питания (УКП) состоящее из 2 частей, заключенных в
отдельные ящики: УКП-1, содержащего катушку индуктивности, с выпрямительным
устройством БПРУ-66; и УКП-2, содержащего катушку индуктивности, в которой
происходит накопление электромагнитной энергии и системы коммутации, которая
обеспечивает быстрое подключение этой катушки к электромагниту выключателя в
случае выключения его при к.з., сопровождающемся резким снижением напряжения
питающей сети. Это повышает надёжность питания приводов выключателей.
Недостатком источников выпрямленного тока является их зависимость от сети
переменного тока.
4. РАСЧЕТ ЭЛЕКТРИЧЕСКИХ НАГРУЗОК
На примере крана мостового:
ПВ=25%;
Рн=25кВА;
п=3;=0,05;
cosφ=0,5;φ=1,73.
Мощность приведенная к длительному режиму
работы:
, кВт,
где ПВ - продолжительность включения, %;
Рн - номинальная активная мощность одного
электроприемника, кВт
кВт;
Суммарная мощность всех приемников:
, кВт,
где п количество однотипных электроприемников,
шт.
, кВт.
Сменная активная мощность электроприемников:
, кВт,
где ku - коэффициент использования;
кВт
Реактивная сменная мощность:
см=
tgφ, кВАр,см=1,88×1,73=3,24
кВАр ;
Полная сменная мощность:
, кВА
, кВА
Максимальная активная нагрузка:
где
коэффициент максимума активной
нагрузки.
Коэффициент максимума нагрузки:
Максимальная реактивная нагрузка:
где
коэффициент максимума реактивной
нагрузки.
Максимальная полная нагрузка:
Максимальный ток нагрузки:
Средневзвешенный расчетный
коэффициент использования:
Эффективное число электроприемников:
Показатель силовой сборки в группе:
Аналогично рассчитываем остальные
электроприемники, результаты расчета сводим в таблицу 2.
Таблица 2
|
Наименование
РУ и электроприемников
|
Нагрузка
установленная
|
Нагрузка
средняя за смену
|
Нагрузка
максимальная
|
|
               
|
|
|
|
|
|
|
|
|
|
|
|
|
|
|
|
|
|
РП
Кран мостовой ПВ=25% 12,5337,50,050,51,731,883,241,883,2437,55,41
|
|
|
|
|
|
|
|
|
|
|
|
|
|
|
|
|
|
|
ШМА1
|
|
|
|
|
|
|
|
|
|
|
|
|
|
|
|
|
|
|
Вентилятор
вытяжной
|
40
|
1
|
40
|
0,6
|
0,8
|
0,75
|
|
24
|
18
|
|
|
|
|
|
|
|
|
|
Электротермические
установки
|
15
|
2
|
30
|
0,75
|
0,95
|
0,33
|
|
22,5
|
7,43
|
|
|
|
|
|
|
|
|
|
Обдирочные
станки типа РТ-503
|
21
|
5
|
105
|
0,14
|
0,5
|
1,73
|
|
14,7
|
25,43
|
|
|
|
|
|
|
|
|
|
Кривошипные
КПМ
|
10
|
1
|
10
|
0,2
|
0,6
|
1,33
|
|
2
|
2,66
|
|
|
|
|
|
|
|
|
|
Фрикционные
КПМ
|
4,5
|
2
|
9
|
0,2
|
0,6
|
1,33
|
|
1,8
|
2,39
|
|
|
|
|
|
|
|
|
|
Обдирочные
станки типа РТ-21001
|
17
|
6
|
102
|
0,14
|
0,5
|
1,73
|
|
14,28
|
24,70
|
|
|
|
|
|
|
|
|
|
Всего
по ШМА1
|
107,5
|
17
|
296
|
0,27
|
|
|
>3
|
79,28
|
80,61
|
113,07
|
17
|
1,6
|
1
|
126,97
|
80,61
|
150,40
|
217,34
|
|
ШМА2
|
|
|
|
|
|
|
|
|
|
|
|
|
|
|
|
|
|
|
Вентилятор
приточный
|
17
|
1
|
17
|
0,6
|
0,8
|
0,75
|
|
10,2
|
7,65
|
|
|
|
|
|
|
|
|
|
Электротермические
установки
|
15
|
1
|
15
|
0,75
|
0,95
|
0,33
|
|
11,25
|
3,71
|
|
|
|
|
|
|
|
|
|
Обдирочные
станки типа РТ-503
|
21
|
5
|
105
|
0,14
|
0,5
|
1,73
|
|
14,7
|
25,43
|
|
|
|
|
|
|
|
|
|
Кривошипные
КПМ
|
10
|
2
|
20
|
0,2
|
0,6
|
1,33
|
|
4
|
5,32
|
|
|
|
|
|
|
|
|
|
Фрикционные
КПМ
|
4,5
|
1
|
4,5
|
0,2
|
0,6
|
1,33
|
|
0,9
|
1,2
|
|
|
|
|
|
|
|
|
|
Обдирочные
станки типа РТ-21001
|
17
|
6
|
102
|
0,14
|
0,5
|
1,73
|
|
14,28
|
24,70
|
|
|
|
|
|
|
|
|
|
|
|
|
|
|
|
|
|
|
|
|
|
|
|
|
|
|
|
Всего
по ШМА2
|
84,5
|
16
|
263,5
|
0,18
|
|
|
>3
|
47,51
|
64,48
|
80,09
|
16
|
1,8
|
1
|
85,50
|
64,48
|
107,09
|
154,75
|
|
Всего
|
|
36
|
|
|
|
|
|
|
|
|
|
|
|
214,34
|
148,34
|
260,66
|
376,68
|
5. СВЕТОТЕХНИЧЕСКИЙ РАСЧЕТ
Расчет производственных помещений ведем по
методу коэффициента использования светового потока. Пример расчета приведем для
кузнечно-термического отделения. Для системы общего освещения примем
светильники типа РСП с лампами ДРЛ.
Расчет произведем на примере станочного
отделения 1.
Размеры помещения: 
Рис. 1 - Расположение светильников
по высоте помещения
Найдем рабочую высоту:
где
высота помещения;
высота свеса светильника,
высота рабочей поверхности над
полом,
Определим индекс помещения:
Находим коэффициент использования
светового потока
в
зависимости от индекса помещения, типа светильника и отражающих способностей
потолка
, стен
, рабочей
поверхности
.
Находим площадь помещения:
В соответствии с разрядом зрительных
работ принимается минимальная освещенность
Принимаем число рядов 5, и число
светильников в ряду 8.
Найдем мощность одной лампы:
где
коэффициент запаса,
коэффициент, зависящий от типа
источника света, для ДРЛ
количество светильников.

Принимаю лампу ДРЛ1000 с номинальным
световым потоком
Определяем мощность рабочего
освещения:
где
коэффициент спроса;
коэффициент пускорегулирующей
аппаратуры (ПРА);
сумма мощностей ламп рабочего
освещения,
Для аварийного освещения выбираем
светильники РН-200 с лампами НБ-100. Мощность аварийного освещения в процентах
от рабочего:
для продолжения работы - 20%;
для эвакуации - 5%.
Число светильников 22.
Проводка аварийного освещения выполняется
проводом АПВ сечением жилы
на одном тросе с прокладкой
рабочего освещения.
Расчет всех остальных производственных помещений
сведем в таблицу 3.Таблица 3
|
Тип
помещения
|
Длина,
Ширина,
Площадь,
Индекс
помещения  Тип светильника
|
 Кол-во
светильников
|
Тип
лампы
|
Рабочее
освещение
|
|
|
|
|
|
|
|
|
|
|
|
Станочное
отделение 1
|
72
|
40
|
2880
|
3,03
|
50
|
30
|
10
|
РСП
|
0,6
|
200
|
40
|
49680
|
ДРЛ
1000
|
44000
|
|
Станочное
отделение 2
|
96
|
8
|
768
|
0,87
|
50
|
30
|
10
|
РСП
|
0,41
|
200
|
14
|
55392
|
ДРЛ
1000
|
15400
|
|
Вентиляционная
|
16
|
8
|
128
|
0,63
|
30
|
10
|
РСП
|
0,31
|
200
|
3
|
56981
|
ДРЛ
1000
|
3300
|
|
Электротермические
установки
|
24
|
8
|
192
|
0,71
|
50
|
30
|
10
|
РСП
|
0,38
|
200
|
4
|
52295
|
ДРЛ
1000
|
4400
|
Расчет непроизводственных помещений ведется по
методу удельной мощности светового потока. На примере помещения для
администрации.
Размеры помещения:

Площадь -
Принимаем значение удельной мощности
При
и количестве светильников
рассчитаем
мощность одной лампы:
Принимаю лампу ЛБ2*30
.
Расчет всех остальных
непроизводственных помещений сведем в таблицу 4.
Таблица 4
|
Тип
помещения
|
Длина,
Ширина,
Площадь,
   Тип лампы
|
|
|
|
|
|
|
|
Трансформаторная
|
16
|
8
|
128
|
7,5
|
16
|
60
|
ЛБ2*30
|
|
Комната
отдыха
|
16
|
8
|
128
|
7,5
|
16
|
60
|
ЛБ2*30
|
|
Контора
|
16
|
8
|
128
|
7,5
|
16
|
60
|
ЛБ2*30
|
|
Бытовка
|
16
|
8
|
128
|
7,5
|
16
|
60
|
ЛБ2*30
|
|
Инструментальная
|
16
|
8
|
128
|
7,5
|
16
|
60
|
ЛБ2*30
|
|
Склад
|
24
|
24
|
576
|
7,5
|
72
|
60
|
ЛБ2*30
|
6. ЭЛЕКТРИЧЕСКИЙ РАСЧЕТ ОСВЕЩЕНИЯ
Для питания осветительной установки принимаем
радиально-магистральную схему, т.к. она наиболее рациональна для нашего цеха.
Расчетная схема осветительной установки представлена на рисунке 2.
Рис. 2 - Расчетная схема осветительной установки
Выбор трассы осветительной сети и мест установки
магистральных и групповых щитков.
При выборе трассы учитывается:
• удобство эксплуатации (доступность);
• исключение возможности повреждения при
производстве работ;
• эстетические требования;
• уменьшение длины трассы.
Выбор марки проводов и способов их прокладки.
При выполнении сетей освещения учитывают:
• надежность;
• долговечность;
• пожарную безопасность;
• экономичность;
• индустриальность.
Принимаем:
- провод марки АПРВ в металлической трубе;
- провод марки АПРВ на стальном тросу;
- провод марки АПП, прокладываемый под
штукатуркой.
Выбор сечений проводов по механической
прочности.
В соответствии с ПУЭ минимальное сечение
изолированных проводников с алюминиевыми жилами должно быть не менее 2,5 мм2.
Расчет электрических осветительных сетей по
минимуму проводникового материала. Если к линии вдоль ее длины подключить ряд
электроприемников, то токовая нагрузка по мере удаления от источника будет
уменьшаться. Поэтому электрические осветительные сети, исходя из экономической
целесообразности, строятся с убывающей величиной сечения проводов в направлении
от источника питания к электроприемникам.
Для расчетов сечений осветительных сетей при
условии наименьшего расхода проводникового материала пользуемся упрощенной
методикой.
где
сечение провода данного участка,
приведенный момент мощности,
коэффициент, зависящий от схемы
питания, и марки материала проводника;
допустимая потеря напряжения в
осветительной сети от источника питания до наиболее удаленной лампы (2,5%).
где
сумма моментов данного и всех
последующих по направлению передачи энергии участков с тем же числом проводов в
линии, как и на данном участке;
сумма моментов всех ответвлений,
питаемых данным и имеющих иное число проводов в линии, чем на данном участке;
коэффициент приведения моментов,
зависящий от числа проводов на участке и в ответвлении.
Расчетный ток определяется по
формулам:
для однофазной (двухпроводной) сети
освещения:
для трехфазной (четырехпроводной)
сети:
где
расчетная мощность,
.
Значения коэффициента мощности для
различных видов ламп следующие:
для сетей с ЛН;
для сетей с ЛЛ и компенсированными
ПРА;
для сетей с лампами ДРЛ.
Пример расчета приведем для участка
1-2:
Щиток установлен на
над уровнем
пола, от щитка до потолка
. Расстояние
между первой лампой и стеной
Выбираю кабель сечением
Определяю фактическое падение
напряжения:
Для остальных участков расчет сведем
в таблицу 5.
Таблица 5
|
Участок
|
     
|
|
|
|
|
|
|
|
Участок
1-2
|
9611
|
83,57
|
95
|
136,9
|
175
|
70
|
1,34
|
|
Участок
1-3
|
972,1
|
8,45
|
10
|
22,6
|
24
|
6
|
1,55
|
|
Участок
1-4
|
2258,2
|
19,64
|
25
|
18,3
|
19
|
16
|
1,17
|
|
Участок
0-1
|
70,1
|
1,83
|
2,5
|
177,7
|
215
|
95
|
0,05
|
7. ПРЕДВАРИТЕЛЬНЫЙ ВЫБОР ЧИСЛА И
МОЩНОСТИ ТРАНСФОРМАТОРОВ
Определим мощность цеховых трансформаторов:
где
коэффициент загрузки трансформатора,
количество трансформаторов, исходя
из категории потребителей,
.
Выбираю трансформатор ТМ 250/10
Определяю фактический коэффициент
загрузки:
8. КОМПЕНСАЦИЯ РЕАКТИВНОЙ МОЩНОСТИ
Определяю наибольшую реактивную
мощность, которая может быть передана из сети
в сеть с напряжением
, без
увеличения числа используемых трансформаторов и их коэффициента загрузки:
Определяю мощность компенсаторной
установки:
где
реактивная мощность, которую
необходимо скомпенсировать,
Так как
, то
где
реактивная мощность, которую
необходимо скомпенсировать с целью снижения потерь в трансформаторе,
расчётный коэффициент, зависящий от
региона расположения, количества смен, схемы электроснабжения, мощности
трансформаторов и длины ЛЭП.

Так как
, то
Так как
и
равны 0 ,то
компенсация реактивной мощности не требуется.
9. ОКОНЧАТЕЛЬНЫЙ ВЫБОР МОЩНОСТИ
ТРАНСФОРМАТОРА
Так как компенсация реактивной
мощности не потребовалась, проверяем трансформатор на перегрузочную
способность:
Из справочника принимаем суточный
график заданного типа промышленности:
Рис. 3 - Суточный график нагрузок
Определяем мощности ступеней графика
нагрузок:
где
относительная мощность активной и
реактивной нагрузки.
Остальной расчет мощности ступеней
нагрузок сведем в таблицу 7.
Мощности ступеней графика нагрузок.
Таблица 7
|
    
|
|
|
|
|
|
|
1
|
0,345
|
0,56
|
235,8
|
243,4
|
158,8
|
|
2
|
0,345
|
0,56
|
235,8
|
243,4
|
158,8
|
|
3
|
0,345
|
0,56
|
235,8
|
243,4
|
158,8
|
|
4
|
0,345
|
0,56
|
235,8
|
243,4
|
158,8
|
|
5
|
0,345
|
0,56
|
235,8
|
243,4
|
158,8
|
|
6
|
0,345
|
0,56
|
235,8
|
243,4
|
158,8
|
|
7
|
0,8
|
0,84
|
235,8
|
243,4
|
278,2
|
|
8
|
1
|
1
|
235,8
|
243,4
|
338,9
|
|
9
|
1
|
1
|
235,8
|
243,4
|
338,9
|
|
10
|
0,945
|
0,945
|
235,8
|
243,4
|
320,3
|
|
11
|
0,8
|
0,8
|
235,8
|
243,4
|
271,2
|
|
12
|
0,5
|
0,7
|
235,8
|
243,4
|
207,2
|
|
13
|
0,7
|
0,845
|
235,8
|
243,4
|
263,8
|
|
14
|
0,89
|
0,945
|
235,8
|
243,4
|
311,4
|
|
15
|
0,84
|
0,92
|
235,8
|
243,4
|
299,0
|
|
16
|
0,745
|
0,88
|
235,8
|
243,4
|
277,1
|
|
17
|
0,8
|
0,92
|
235,8
|
243,4
|
292,8
|
|
18
|
0,9
|
0,96
|
235,8
|
243,4
|
315,7
|
|
19
|
0,84
|
0,92
|
235,8
|
243,4
|
299,0
|
|
20
|
1
|
1
|
235,8
|
243,4
|
338,9
|
|
21
|
0,945
|
0,945
|
235,8
|
243,4
|
320,3
|
|
22
|
0,655
|
0,8
|
235,8
|
243,4
|
|
23
|
0,53
|
0,72
|
235,8
|
243,4
|
215,3
|
|
24
|
0,53
|
0,72
|
235,8
|
243,4
|
215,3
|
Рис. 4 - График полной нагрузки за наиболее
загруженную смену
По графику определяем продолжительность
перегрузки Н-14часов.
Определим коэффициент начальной загрузки:
переделим коэффициент перегрузки:
Коэффициент использования по
мощности:
Так как 
, то коэффициент перегрузки
трансформатора
.
Проверяем условие:
Окончательно выбираю трансформатор
типа ТМ-250/10/0,4.
10. КОНСТРУКЦИЯ И ИСПОЛНЕНИЕ
ЦЕНТРАЛЬНОЙ ТРАНСФОРМАТОРНОЙ ПОДСТАНЦИИ И ЕЕ ПРИСОЕДИНЕНИЯ
Исходя из мощности и типа
трансформаторов, а также из условий установки (внутри цеха), принимается
комплектная трансформаторная подстанция КТП-250 внутренней установки.
Таблица 7 - Основные технические
данные КТП
|
Параметры
|
КТП-250
|
|
Номинальная
мощность трансформатора, 250
|
|
|
Тип
силового трансформатора
|
ТМ
|
|
Тип
шкафа на стороне КСО-272
|
|
|
Тип
шкафа на стороне :
|
|
|
для
ввода
|
ШВ
|
|
линейный
|
ШЛ
|
|
секционный
|
ШС
|
|
Тип
коммутационного аппарата:
|
|
|
на
стороне ВН-11
|
|
|
на
вводах и секционный АВМ10СВ
|
|
|
на
отходящих линиях А3710Б
|
|
11. РАСЧЕТ И ВЫБОР ЭЛЕКТРИЧЕСКИХ
СЕТЕЙ ДО 1 кВ
Выбираю автомат ввода для ШР1:
где
ток расцепителя автомата,
Выбираю автомат по условию:
где
номинальный ток расцепителя
автомата,
Автомат типа ВА51-35
Проверяю автомат по пиковому току:
где
пиковый ток,
пусковой ток максимального по
мощности приемника,
номинальный ток максимального по
мощности приемника,
коэффициент использования.
где
коэффициент пуска.
Проверяю автомат на действие тока
кз:
где
ток отсечки,
.
Выбираю кабель по условию:
Кабель РВГ (4х95),
Аналогично выбираю автоматы для ШМА,
РП и ЩО. Результаты свожу в таблицу 8 и 9.
Таблица 9 - Выбор автоматов для ШМА
Тип
ШМА
Тип
|
автомата   Тип кабеля
|
|
|
|
|
|
|
|
|
|
ШМА1
|
199,9
|
ВА51-35
|
200
|
1072
|
1200,5
|
2000
|
РВГ(4х95)
|
215
|
|
ШМА2
|
160
|
ВА51-35
|
160
|
751
|
802,0
|
1120
|
РВГ(4х70)
|
175
|
Таблица 10 - Выбор автоматов для РП и ЩО
Тип
|
автомата Тип кабеля
|
|
|
|
|
|
|
|
РП1
|
55,9
|
ВА51Г-31
|
63
|
630
|
РВГ(4х16)
|
70
|
|
ЩО
|
131,1
|
ВА51-35
|
160
|
1600
|
РВГ(4х70)
|
175
|
Выбираю автомат к линии
Таблица11 - Автоматы к линии



Тип
|
автомата Тип кабеля
|
|
|
|
|
|
|
|
|
|
|
ШНН1
|
250
|
0,4
|
360,8
|
425,8
|
ВА52-39
|
500
|
451
|
АВРГ
3х(3х150)
|
235
|
|
ШНН2
|
250
|
0,4
|
360,8
|
425,8
|
ВА52-39
|
500
|
451
|
АВРГ
3х(3х150)
|
235
|
Выбираю автоматы от ШМА до электрооборудования.
Результаты свожу в таблицу 12.
Таблица 12 - Автоматы от ШМА до
электрооборудования
ШМА1
Тип
|
автомата Тип кабеля
|
|
|
|
|
|
|
|
Вентилятор
вытяжной
|
98,3
|
ВА51Г-31
|
100
|
1000
|
РВГ(4х35)
|
100
|
|
Электротермические
установки
|
31,0
|
ВА51Г-31
|
31,5
|
315
|
РВГ(4х6)
|
34
|
|
Обдирочные
станки типа РТ-503
|
82,6
|
ВА51Г-31
|
100
|
1000
|
РВГ(4х35)
|
100
|
|
Кривошипные
КПМ
|
32,8
|
ВА51Г-31
|
40
|
400
|
РВГ(4х8)
|
43
|
|
Фрикционные
КПМ
|
14,7
|
ВА51Г-31
|
31,5
|
315
|
РВГ(4х6)
|
34
|
|
Обдирочные
станки типа РТ-21001
|
66,9
|
ВА51Г-31
|
80
|
800
|
РВГ(4х25)
|
85
|
ШМА2
Тип
|
автомата Тип кабеля
|
|
|
|
|
|
|
|
Вентилятор
приточный
|
41,8
|
ВА51Г-31
|
50
|
500
|
РВГ(4х10)
|
50
|
|
Электротермические
установки
|
31,0
|
ВА51Г-31
|
31,5
|
315
|
РВГ(4х6)
|
34
|
|
Обдирочные
станки типа РТ-503
|
82,6
|
ВА51Г-31
|
100
|
1000
|
РВГ(4х35)
|
100
|
|
Кривошипные
КПМ
|
32,8
|
ВА51Г-31
|
40
|
400
|
РВГ(4х8)
|
43
|
|
Фрикционные
КПМ
|
14,7
|
ВА51Г-31
|
31,5
|
315
|
РВГ(4х6)
|
34
|
|
Обдирочные
станки типа РТ-21001
|
66,9
|
ВА51Г-31
|
80
|
800
|
РВГ(4х25)
|
85
|
Выбираю шину по условию:
Шина А1(50х6) Iд = 630А.
>500
Выбираю шинопровод ШРА-630-74:
12. РАСЧЕТ ПИТАЮЩЕЙ СЕТИ
Для питающей линии берутся 2 кабеля. При
повреждении одного, другой должен обеспечить, по крайней мере, потребителей 2
категории.
Потери в трансформаторе:
Расчетный ток:
Для кабелей с ПВХ изоляцией
Экономически целесообразное сечение:

где
нормированное значение экономической
плотности тока,
Предварительно выбираю кабель типа
АВРБ(3х10) 
Ток короткого замыкания перед
трансформатором:
где
полное сопротивление кабельной
линии,
Ударный ток:
Проверка по длительно допустимому
току в аварийном режиме. Аварийным режимом является отключение одного кабеля:
где
коэффициент допустимой
кратковременной перегрузки, для прокладки в траншее (в земле), 1,2;
коэффициент снижение токовой
нагрузки при групповой однослойной или многослойной прокладке кабеля и при их
прокладке в трубе, 0,9 для двух кабелей с расстоянием между ними в свету 100мм;
коэффициент, учитывающий температуру
среды.
Проверка на термическую стойкость
при кз.
Минимально допустимое сечение
кабеля:
где
температурный коэффициент,
;
тепловой импульс тока кз.
Тепловой импульс:
,
где
периодическая составляющая тока кз
в начальный момент времени;
;

Окончательно выбираю кабель марки
АВРБ(3х70) 
, так как
13. ВЫБОР ВЫСОКОВОЛЬТНОГО
ВЫКЛЮЧАТЕЛЯ
ток трансформатор цех
Таблица 13 - Выбор высоковольтного
выключателя
|
Условия
выбора
|
От
РУ до тр-ра - 0,4 кВ
|
|
каталог
|
расчет
|
|
Uн
³
Uр, кВ
|
10
|
10
|
|
Iн
³
Iр, А
|
630
|
14,4
|
|
Iоткл
³
Iкз, кА
|
20
|
10,1
|
|
iдин
³
iуд, кА
|
80
|
14,3
|
|
Iоткл2
tту ³
Iкз2 tпр,кА
|
31,52*3
|
28,82*0,615
|
Выбираю высоковольтный выключатель
марки
14. РАСЧЕТ ТОКОВ КЗ
Рис. 5 - Схема ЭСН расчетная,
замещения, замещения упрощенная
Вычисляем сопротивления элементов:
Для системы:
Сопротивления приводятся к НН:
Для трансформатора:
Для автоматов:
Для кабельных линий:
Для шинопровода ШРА 630-74:
Для ступеней распределения:
По упрощенной схеме замещения
вычисляем эквивалентные сопротивления на участках между точками кз:
Вычисляем сопротивления для каждой
точки кз, результаты заносим в сводную ведомость:

Определяем коэффициенты
и
Определяю 3-х фазные и 2-ух фазные
токи кз, результаты заносим в сводную ведомость:
Составляю схему замещения для
расчета 1-фазных токов кз:
Для кабельных линий:
Таблица 13 - Сводная ведомость токов
кз
|
Точка
кз
|
          
|
|
|
|
|
|
|
|
|
|
|
|
|
36,827,545,91,3115,07,14,45,4151,9
|
|
|
|
|
|
|
|
|
|
|
|
|
|
59,129,466,02,0113,34,72,93,437,71,6
|
|
|
|
|
|
|
|
|
|
|
|
|
|
63,031,670,52,0113,14,42,72,641,51,5
|
|
|
|
|
|
|
|
|
|
|
|
|
Проверяю шину на действие токов кз:
Принимается шина
Проверяю шину на механическую
стойкость:
Максимальное усилие на шину:
где
длина пролета между соседними
опорами;
расстояние
между осями шин
Сила
создает изгибающий момент:
Напряжение в материале шины:
Момент сопротивления шины
относительно оси:
Используем расположение шины -
плашмя.
По справочнику допустимое
механическое напряжение в материале шины для
Выбираю изолятор типа
Проверка по термической стойкости:
Минимальное сечение, отвечающее
термической стойкости:
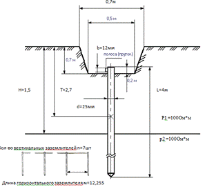
15. РАСЧЕТ ЗАЗЕМЛЯЮЩЕГО УСТРОЙСТВА
Грунт - чернозем
Климатическая зона
;
Вид заземляющего устройства -
контурное;
Вид заземлителя - стальные стержни
и длиной
Рис. 9
Исходные данные
длина вертикального заземлителя L, м
= 4,
диаметр вертикального заземлителя d,
мм = 25,
заглубление вертикального
заземлителя t, м = 0,7,
толщина верхнего слоя грунта Н, м =
1,5,
ширина (диаметр) горизонтального
заземлителя b, мм = 12,
сезонный климатический
коэффициент-вертикальный заземлитель, Cv =1,2,
сезонный климатический
коэффициент-горизонтальный заземлитель, Сg =1,2,
удельное сопротивление верхнего слоя
грунта р1, Ом*м = 100,
удельное сопротивление нижнего слоя
грунта р2, Oм*м = 100,
нормируемое значение заземления,
FIH, ОМ = 4,
коэффициент использования
заземлителей = 0,72,
Расчет:
эквивалентное удельное
сопротивление, Ом*м = 103,4483,
сопротивление вертикального
заземлителя. Ом = 25,3562,
сопротивление контура. Ом = 4,1379,
предварительное количество
вертикальных заземлителей, шт = 6,1278,
длина горизонтального заземлителя, м
= 12,2555,
сопротивление горизонтального
заземлителя. Ом =16,3472,
суммарное сопротивление верт. и гор.
заземлителей. Ом = 5,5403,
расстояние между вертикальными
заземлителями К, м = 2 -4,
расстояние от центра вертикального
заземлителя до поверхности земли Т, м = 2,7,
количество вертикальных
заземлителей, шт = 7.
16. ВЫБОР КОНТРОЛЬНО-ИЗМЕРИТЕЛЬНЫХ
ПРИБОРОВ И ПРИБОРОВ УЧЕТА РАСХОДА ЭЛЕКТРОЭНЕРГИИ, ВЫБОР ТРАНСФОРМАТОРОВ ТОКА
Таблица 14 - Выбор трансформатора тока
|
Условие
выбора
|
От
РУ до тр-ра 10/0,4
|
|
каталог
|
расчет
|
|
1010
|
|
|
|
10014,45
|
|
|
|
25050,35
|
|
|
|
9028
|
|
|
|
0,80,59
|
|
|
Таблица 15 - Расчет нагрузки вторичной обмотки
трансформатора тока
|
Наименование
прибора
|
Тип
прибора
|
Нагрузка,
ВА
|
|
|
Фаза
А
|
Фаза
С
|
|
Амперметр
|
Э762
|
3
|
-
|
|
Ваттметр
|
Д772
|
5
|
5
|
|
Счетчик
|
САЗУ
|
0,525
|
0,525
|
|
Итого
|
|
8,525
|
5,525
|
Сопротивление прибора:
Сопротивление проводов:
Выбираю трансформатор тока типа
ТПЛ-10
для контроля трансформаторов
используется масловакууометр, термосигнализация.
ЗАКЛЮЧЕНИЕ
В ходе курсового проектирования
получен вариант электроснабжения ремонтно-механического цеха, в котором дана
характеристика потребителей цеха, определена компоновка технологического
оборудования с выбором схемы электроснабжения. Произведен выбор силовой и
осветительной сетей, расчет электрических нагрузок, выбор трансформаторов,
выбор питающей и цеховой сетей и расчет токов короткого замыкания, а также
проверка выбранных защитных устройств и токоведущих частей по токам короткого
замыкания. Предусмотрено искусственное заземление.
СПИСОК ИСПОЛЬЗУЕМОЙ ЛИТЕРАТУРЫ
1. Федоров
А.А., Г.В. Справочник по электроснабжению промышленных предприятий. - М.:
Энергия, 1974. - 528 с.
. Шеховцов
В.П., Расчет и проектирование схем электроснабжения. - М.: ФОРУМ-ИНФРА 2005. -
214с.
. Алиев
И.И., Справочник по электротехнике и электрооборудованию. 5-е издание. -
Ростов, Феникс, 2004. - 480с.
. Правила
устройства электроустановок, 6-е издание, Госэнергонадзор Москва 2000.
. Неклепаев
Б.Н., Крючков И.П. Электрическая часть станций и подстанций. - М.:
Энергоатомиздат, 1989. - 608 с.
. Епанешников
М.М. Электрическое освещение. М:. Энергия, 1973. - 352с.
7. Справочник
по проектированию электроэнергетических систем.
ПРИЛОЖЕНИЕ
Рис. П1
Рис. П2
Технические данные и габаритные размеры
трансформатора ТМ-250
|
Нормируемая
мощность, кВА
|
250
|
|
Высокое
напряжение, кВ
|
10
(6)
|
|
Низкое
напряжение, В
|
400
|
|
Напряжение
КЗ, %
|
4.5
|
|
Потери
холостого хода, Вт
|
540
|
|
Частота,
Гц
|
50
|
|
Схема
и группа соединений
|
Y/Yn-0
|
Д/Yn-11
|
|
Потери
КЗ, Вт
|
3600
|
3800
|
|
L,
мм
|
1175
|
|
B,
мм
|
1050
|
|
H,
мм
|
1385
|
|
Установочные
размеры, мм
|
550
х 550
|
|
Масса
масла, кг
|
205
|
|
ПБВ
|
±2,5
х 2
|
|
Полная
масса, кг
|
950
|