Двигатель для грузового автомобиля
Задание на курсовой проект
Спроектировать двигатель для грузового
автомобиля по следующим исходным данным.
Исходные данные
. Тип двигателя и его назначение
дизельный для грузового автомобиля
2. Диаметр цилиндра
, м 0,110
. Ход поршня
, м 0,115
. Число цилиндров
V-8
. Частота вращения
номинальная
, об/мин
2500
. Число клапанов на цилиндр
2
. Тип охлаждения жидкостный
. Давление окружающей
атмосферы
, Мпа 0,1
. Температура окружающей
атмосферы
, К 293
. Средняя скорость заряда в
клапане
, м/с 60
. Коэффициент сопротивления
при впуске
2,4
. Коэффициент избытка воздуха
1,4
. Коэффициент дозарядки
1,02
. Коэффициент очистки
остаточных газов
0,97
. Повышение давления в
компрессоре при наддуве
, 1,0
. Охлаждение воздуха после
компрессора
, К 0
. Отношение радиуса кривошипа
к длине шатуна λ 0,267
. Состав топлива С=0,870;
Н=0,126; О=0,004
. Низшая теплота сгорания
, кДж/кг
42000
. Степень сжатия
16,7
. Давление остаточного газа
, Мпа 0,104
. Температура остаточного
газа
, К 597,5
. Подогрев при впуске
, К 15
. Угол начала открытия
впускного клапана
13
. Угол конца закрытия
впускного клапана
49
. Угол начала открытия
выпускного клапана
66
. Угол конца закрытия
выпускного клапана
10
Введение
Наибольшее
распространение получили двигатели
внутреннего сгорания. Эти
двигатели отличаются компактностью, высокой
экономичностью, долговечностью и применяются во всех отраслях народного хозяйства.
В
настоящее время - особое внимание уделяется уменьшению токсичности выбрасываемых в атмосферу вредных
веществ и снижению уровня шума
работы двигателя.
Специфика
технологии производства двигателей и повышение требований к качеству двигателей при возрастающем объеме
их производства, обусловили необходимость создания специализированных моторных заводов. Успешное применение
двигателей внутреннего сгорания, разработка опытных конструкций и повышение мощностных и
экономических показателей стали возможны в
значительной мере благодаря исследованиям и разработке теории рабочих процессов
в двигателях внутреннего
сгорания.
Выполнение
задач по производству и эксплуатации транспортных двигателей требует от специалистов глубоких знаний рабочего
процесса двигателей,
знания их конструкций и расчета двигателей внутреннего сгорания.
С целью
углубленного изучения конструкции и работы двигателя при различных
режимах эксплуатации в данном проекте рассмотрены принципы разработки и методы
выбора оптимальных вариантов конструкторских решений при расчете бензинового
двигателя, а также правилами оформления технологической документации в
соответствии с государственными стандартами ЕСКД, ЕСТД, отраслевыми стандартами
и другой нормативно-технической документацией.
Для создания
чертежей двигателя (продольный и поперечный разрезы) использовалась система
КОМПАС-ЗD. Система обладает собственным математическим ядром и
параметрической технологией.
В настоящее время
требования к автомобилям и их двигателям становятся все более жесткими. Так при
прочих равных условиях стараются получить незначительную собственную массу
автомобиля, большой полезный объём салона, низкий уровень шума,
вибрации, токсичности отработавших газов и в целом повышенную комфортность
автомобиля. Двигатели должны быть экономичными, надёжными, динамичными для
обеспечения режимов эксплуатации в условиях городской езды.
1. ТЕПЛОВОЙ
РАСЧЕТ ДВИГАТЕЛЯ
На основании исходных данных производим
следующие расчеты.
.1 Параметры рабочего тела
.1.1 Теоретически необходимое количество воздуха
для сгорания 1 кг топлива
кмоль воздуха/кг топлива;
кг воздуха/кг топлива.
.1.2 Рассчитываем количество свежего
заряда (воздуха)
кмоль воздуха /кг топлива.
.1.3 Рассчитываем количество горючей
смеси
кмоль/кг.
.2 Параметры отработавших газов
.2.1 При
количество
отдельных компонентов продуктов сгорания в расчете на 1 кг топлива равно
оксида углерода
;
углекислого газа
кмоль/кг;
водорода
кмоль/кг;
водяного пара
кмоль/кг;
азота
кмоль/кг;
кислорода
кмоль/кг.
.2.2 Общее количество продуктов
сгорания дизельного топлива
.2.3 Коэффициент молекулярного
изменения горючей смеси
.
Коэффициент молекулярного изменения
горючей смеси для дизельных двигателей
.
.3 Расчет первого такта (впуск
)
.3.1 Определяем потери давления во
впускном тракте при впуске
;
МПа.
Давление воздуха:
МПа.
При расчете двигателя без наддува
плотностью воздуха после компрессора равна:
кг/м3.
Температура воздуха после
турбокомпрессора
К;
.
.3.2 Рассчитываем давление в конце
впуска в цилиндре двигателя
МПа.
.3.3 Рассчитываем коэффициент
остаточного газа в двигателе
Предварительно принимается:
= 600...900 К - для дизелей с
наддувом и без наддува.
Принимаем
= 600 К;
.3.4 Определяем температуру в конце
впуска в двигателе
К.
1.3.5 Рассчитываем коэффициент
наполнения двигателя
.4 Расчет второго такта (сжатие-
)
.4.1 Давление в конце сжатия
МПа.
.4.2 Температура в конце сжатия
К;
.
.4.3 Показатель политропы сжатия
определяется
по эмпирической зависимости
;
где
- номинальная частота вращения
коленчатого вала двигателя,
.
Показатель политропы сжатия для
дизелей с наддувом
=
1,35...1,38.
1.5 Расчет участка подвода тепла
В результате расчета этого участка
должны быть определены значения
, и
, после подвода тепла.
.5.1 Определение параметров процесса
сгорания в дизельных двигателях
.5.1.1 Температура газов в конце
процесса сгорания tz определяется из уравнения сгорания
.
.5.1.2 Коэффициент действительного молекулярного
изменения рабочей смеси определяется из уравнения
.
Для дизеля
.5.1.3
- средняя
мольная теплоемкость свежего заряда
кДж/(кмоль град).
.5.1.4
- средняя
мольная теплоемкость продуктов сгорания дизельного топлива при постоянном
давлении
1.5.1.5 Средняя мольная теплоемкость при
постоянном объеме для продуктов сгорания жидкого (дизельного) топлива при
температуре до 3000°С и a =1,6
- степень повышения давления, она зависит
от типа камеры сгорания.
Для дизелей с разделенными камерами
сгорания и дизелей с неразделенными камерами и пленочным смесеобразованием
. В
уравнении сгорания для дизелей x - коэффициент использования тепла
принимается x=0,8
Все величины, входящие в уравнение
сгорания, за исключением
и
известны.
Составим и решим квадратное уравнение:


После определения tz
рассчитываем:
.6 Расчет третьего такта (расширение
)
.6.1 Показатель политропы расширения
может быть
определен по эмпирической зависимости
;
Показатель политропы расширения для
дизелей
=
1,18...1,30.
.6.2 Степень предварительного
расширения
.6.3 Степень последующего расширения
1.6.4 Давление и температура в конце
расширения
транспортный двигатель
сталь
МПа;
К.
.6.5 Для оценки точности теплового
расчета проводится проверка ранее принятой температуры отработавших газов
К;
.
Расхождение допускается в пределах
(5...7)%.
.7 Расчет четвертого такта (очистка
цилиндра-
)
Задано
const,
МПа.
.8 Индикаторные параметры рабочего
цикла
.8.1 Для дизельного двигателя,
работающего по смешанному циклу, теоретическое среднее индикаторное давление
(индикаторная работа, совершаемая в единице рабочего объема), равно
Действительное среднее индикаторное давление:
МПа;
где 0,92 <
< 0,97,
здесь
-
коэффициент, учитывающий «скругление» индикаторной диаграммы, примем
=0,95.
.8.2 Рассчитываем индикаторную
мощность и индикаторный крутящий момент двигателя
л;
КВт;
Для четырехтактных двигателей
коэффициент тактности
=4;
Нм.
.8.3 Определяем индикаторный КПД и
удельный индикаторный расход топлива
;
г/кВтч; (Здесь
в МПа,
в МДж.)
1.9 Эффективные параметры рабочего
цикла
.9.1 Рассчитываем среднее давление
механических потерь (работа, затрачиваемая на трение и привод вспомогательных
агрегатов, приходящая на единицу рабочего объема)
, МПа,
где
и
- коэффициенты, зависящие от числа
цилиндров и от отношения хода поршня к диаметру цилиндра и типа камеры
сгорания;
Средняя скорость поршня, м/с:
м/с.
Значения коэффициентов
и
.
|
Тип
двигателя
|

|
|
|
Четырехтактный
дизель с неразделенными камерами
|
0,089
|
0,0118
|
МПа.
.9.2 Рассчитываем среднее
эффективное давление (эффективную работу, снимаемую с единицы рабочего объема)
МПа.
1.9.3 Рассчитываем механический КПД
.
Его величина для дизельных
двигателей без наддува
=
0,70...0,82.
.9.4 Определяем эффективную мощность
кВт.
.9.5 Определяем эффективный КПД
;
он составляет для дизелей
=
0,35...0,40.
.9.6 Определяем эффективный удельный
расход топлива
г/кВтч;
для дизелей
= 190…240
г/кВтч,
.9.7 Эффективный крутящий момент
Нм.
Здесь
подставляется в об/мин.
.9.8 Расход топлива
кг/час.
.9.9 Литровая мощность
кВт/дм3.
.10 Построение индикаторных диаграмм
в координатах (Р-V)
м
м
м
, МПа
, МПа
, МПа
, МПа
, МПа
- для политропы сжатия;
- для политропы расширения.
1.11 Тепловой баланс
Доля теплоты, затраченная на
полезную работу, определена в тепловом расчете
.
Доля теплоты, потерянная в
бензиновых ДВС при
из-за
недогорания топлива:
Доля теплоты, унесенная с
отработавшими газами:
Для дизельных двигателей:
,кДж/кг
Рассчитываем температуру
отработавших газов:
Определяем энтальпию топливно-воздушной
смеси в конце впуска:
кДж/кмоль.
Для дизелей определяем энтальпию
отработавших газов по таблице 5 в соответствии с
и
линейным интерполированием
кДж/кмоль.
Для дизелей рассчитываем энтальпию
поступившей смеси:
Доля тепла передаваемой охлаждающей
среде:
.
.12 Скоростная характеристика
двигателя
Для дизельного двигателя построение
внешней скоростной характеристики ведется в интервале
, например,
шагом 500 мин-1, где
, об/мин;
, мин-1.
Внешнюю скоростную характеристику
строим по следующим эмпирическим соотношениям:
Мощность двигателя:
, кВт
Крутящий момент:
, Н×м.
Среднее эффективное давление:
, МПа.
Среднее давление механических
потерь:
, МПа
Среднее индикаторное давление:
, МПа
Удельный эффективный расход топлива:
, г/кВт×ч
Часовой расход топлива:
кг/ч
Полученные данные заносим в таблицу
1, по ним строим внешнюю характеристику двигателя.
Таблица 1. Результаты расчета
внешней скоростной характеристики
|
, об/мин , кВт , Н×м , МПа , МПа , МПа , г/кВтч , кг/ч
|
|
|
|
|
|
|
|
|
500
|
30,7
|
586,6
|
0,847
|
0,112
|
0,959
|
305,9
|
9,4
|
|
1000
|
67,5
|
644,9
|
0,931
|
0,134
|
1,056
|
260,5
|
17,6
|
|
1500
|
103,5
|
659,2
|
0,951
|
0,157
|
1,108
|
234,2
|
24,2
|
|
2000
|
131,8
|
629,6
|
0,909
|
0,179
|
1,088
|
227,1
|
29,9
|
|
nном=
nmax 2500
|
145,3
|
552,3
|
0,802
|
0,202
|
1,004
|
239
|
34,7
|
2. ДИНАМИЧЕСКИЙ РАСЧЕТ
Динамический расчет автомобильного двигателя
производиться на режиме максимальной мощности по результатам теплового расчета.
В результате расчета необходимо определить следующие силы и моменты,
действующие на кривошипно-шатунном механизме двигателя (рисунок):
- избыточное давление газов над поршнем
, МПа;
- удельную суммарную силу, действующую на поршень
, МПа;
- удельную суммарную силу, воспринимаемую стенками
цилиндра (нормальное давление)
, МПа;
- удельную силу инерции от возвратно-поступательно
движущихся масс
, МПа;
- удельную силу, действующую вдоль шатуна
, МПа;
- удельную силу, действующую вдоль кривошипа
, МПа;
- удельную силу, направленную по касательной к
окружности радиуса кривошипа
,МПа;
- крутящий момент от одного цилиндра
, Н×м;
- крутящий момент от i цилиндров
, Н×м;
- удельную центробежную силу инерции от
неуравновешенных вращающихся масс, сосредоточенных на радиусе кривошипа
, МПа;
- удельную силу, действующую на шатунную шейку
, МПа.
Расчетные значения всех сил сводятся в таблицу
2, на основании данных которых строятся их графики.
2.1 Расчет сил, действующих в КШМ
2.1.1 Построение развернутой
индикаторной диаграммы в координатах
Перестройку индикаторной диаграммы
из
в
развернутую диаграмму удельных давлений (в координатах
),
действующих на поршень, проще выполнить графическим методом Брикса. Метод
Брикса заключается в том, что на длине хода поршня построенной индикаторной
диаграммы в координатах
описывают
полуокружность с центром в точке О.
Для учета влияния длины шатуна
откладывают от центра полуокружности (точки О) по направлению нижней мертвой
точки бицентровую поправку Брикса в масштабе диаграммы
.
Тогда
м
где R- радиус
кривошипа; для центрального механизма;
- отношение радиуса кривошипа к
длине шатуна.
Из точки
проводят
ряд лучей (рекомендуется не менее 5) под углами
до пересечения с полуокружностью.
Проекции концов этих лучей на линии процесса всасывания, сжатия, расширения и
выпуска указывают, какие точки рабочего процесса соответствуют тем или иным
углам поворота коленчатого вала. При построении развернутой индикаторной
диаграммы после ее скругления определяют максимальные значения сил от давления
газов
и
результирующей силы
.
.1.2 Рассчитываем избыточное
давление газов над поршнем
МПа
МПа
Аналогично ведем расчет для
остальных углов ПКВ занося результаты в таблицу 2.
.1.3 Определяем удельное значение
силы инерции от возвратно-поступательного движения масс поршневой группы
МПа
Здесь
- определяется по статистическим
данным,
рад/с,
м.
По статистическим данным определим
и
методом
линейного интерполирования:
,
.
кг/м2
, МПа.
Аналогично ведем расчет для
остальных углов ПКВ занося результаты в таблицу
.1.4 Рассчитываем удельную суммарную
силу, действующую вдоль оси цилиндра
, МПа.
,МПа
Аналогично ведем расчет для
остальных углов ПКВ, занося результаты в таблицу 2.
.1.5 Определим удельную суммарную
силу, действующую на стенку цилиндра
, МПа.
Здесь
- удельная суммарная сила,
действующая на поршневой палец.
МПа;
МПа
Аналогично ведем расчет для
остальных углов ПКВ, занося результаты в таблицу 2.
.1.6 Рассчитываем удельную суммарную
силу, действующую вдоль шатуна
, МПа;
МПа.
Аналогично ведем расчет для
остальных углов ПКВ, занося результаты в таблицу 2.
.1.7 Определяем удельную силу,
действующую вдоль кривошипа
, МПа;
МПа.
Аналогично ведем расчет для
остальных углов ПКВ, занося результаты в таблицу 2.
.1.8 Рассчитываем удельную суммарную
силу, действующую по касательной к кривошипу
, МПа;
МПа.
Аналогично ведем расчет для
остальных углов ПКВ, занося результаты в таблицу 2.
.1.9 Определяем крутящий момент от
одного цилиндра
Н×м.
Здесь
м2 - площадь поршня.
Н×м.
Аналогично ведем расчет для
остальных углов ПКВ, занося результаты в таблицу 2.
2.1.10 Определяем крутящий момент от i
цилиндров, пользуясь таблицей 3
Таблица 3 - Результаты расчета
суммарного крутящего момента восьмицилиндрового двигателя (порядок работы
цилиндров 1-5-3-2-6-4-7-8)
|
a, град
|
Цилиндры
|
МS, Нм
|
|
1
|
2
|
3
|
4
|
5
|
6
|
7
|
8
|
|
|
aо
|
М,
Нм
|
aо
|
М,
Нм
|
aо
|
М,
Нм
|
aо
|
М,
Нм
|
М,
Нм
|
aо
|
М,
Нм
|
aо
|
М,
Нм
|
aо
|
М,
Нм
|
|
|
0
|
0
|
0
|
270
|
234,34
|
180
|
0
|
450
|
884,38
|
90
|
220,68
|
360
|
0
|
540
|
0
|
630
|
187,36
|
1526,74
|
|
30
|
30
|
-420,6
|
300
|
95,59
|
210
|
-193,95
|
480
|
334,27
|
120
|
328,1
|
390
|
2127,5
|
570
|
-193,95
|
660
|
243,81
|
2320,77
|
|
60
|
60
|
-242,27
|
330
|
-61,478
|
240
|
-342,45
|
510
|
241,49
|
150
|
194,16
|
420
|
1187,88
|
600
|
-327,72
|
690
|
420,94
|
1070,55
|
|
90
|
90
|
220,68
|
360
|
0
|
270
|
234,34
|
540
|
0
|
180
|
0
|
450
|
884,38
|
630
|
187,36
|
720
|
0
|
1526,76
|
Период изменения суммарного крутящего момента
равен:
.
.1.11 После построения графика
суммарного крутящего момента определяется средний индикаторный момент
, Н×м.
Приблизительно величина
, Н×м.
Здесь
,
- площади диаграммы
суммарного
крутящего момента, расположенные над и под осью абсцисс соответственно;
- длина
диаграммы
,
соответствующая периоду изменения суммарного крутящего момента;
- масштаб
крутящего момента по оси ординат, Н×м/мм. Полученное значение
сравниваем
со значением среднего индикаторного момента, определенным в тепловом расчете.
.1.12 Рассчитаем удельную
центробежную силу инерции от вращающихся неуравновешенных масс, сосредоточенных
на радиусе кривошипа
МПа,
где
.1.13 Рассчитываем силу, действующую
на поверхность шатунной шейки
, МПа
МПа
Аналогично ведем расчет для
остальных углов ПКВ, занося результаты в таблицу 2.
2.2 Построение развернутой диаграммы нагрузки на
поверхность шатунной шейки
В таблице 7 рассчитана сила
,
действующая на поверхность шатунной шейки. Строим ее диаграмму в зависимости от
угла поворота кривошипа и определяем среднее значение:
, МПа
Среднее значение силы
можно
определить, подсчитав площадь между графиком
и осью абсцисс, разделив на длину
диаграммы. Полученная величина умножается на масштаб по оси ординат.
Приблизительно величина
,
где F - площадь
между графиком
и осью
абсцисс;
- длина
диаграммы;
- масштаб по оси ординат.
.3 Построение полярной диаграммы
сил, действующих на шатунную шейку
Строим координатную систему
и
с центром в
точке О, в которой отрицательная ось
направлена вверх.
В таблице 2 каждому значению
соответствует
точка с координатами
. Наносим на
плоскость
и
эти точки.
Последовательно соединяя точки, получим полярную диаграмму. Вектор, соединяющий
центр О с любой точкой диаграммы, указывает направление вектора
и его
величину в соответствующем масштабе.
Строим новый центр
, отстоящий
от О по оси
на величину
удельной центробежной силы от вращающейся нижней части шатуна
.
В этом центре условно располагают
шатунную шейку с диаметром
.
Вектор, соединяющий центр
с любой
точкой построенной диаграммы, указывает направление действия силы
на
поверхность шатунной шейки и ее величину в соответствующем масштабе.
Касательные линии из центра
к верхней и
нижней частям полярной диаграммы отсекают наиболее нагруженную от наименее
нагруженной части поверхности шатунной шейки.
Маслоотводящее отверстие располагают
в середине наименее нагруженной части поверхности шатунной шейки, для чего
восстанавливают перпендикуляр к хорде, соединяющей точки пересечения
касательных к верхней и нижней частям полярной диаграммы.
3. РАСЧЕТ ДЕТАЛЕЙ ДВИГАТЕЛЯ НА
ПРОЧНОСТЬ
.1 Расчет поршня
.1.1 Рассчитываем напряжение изгиба
на днище поршня от газовой силы
где
- относительная толщина днища
поршня;
- относительный внутренний диаметр
поршня;
- относительная толщина стенки
головки поршня;
- относительная радиальная толщина
кольца;
- радиальный зазор кольца в канавке
поршня;
- давление в цилиндре после подвода
тепла.
При наличии ребер жесткости
МПа для
алюминиевых поршней.
.1.2 Рассчитываем напряжение сжатия
от газовых сил в сечении X-X,
ослабленном маслоотводящими отверстиями
(30…40МПа)
где
- площадь расчетного сечения с
учетом ослабления его отверстиями для отвода масла;
- относительный диаметр поршня по
дну канавки;
- относительный диаметр масляного
канала;
- число масляных отверстий в
поршне.
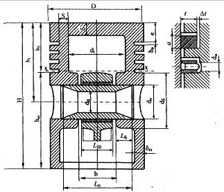
.1.3 Рассчитываем напряжение разрыва
в сечении Х-Х от максимальной инерционной силы (при
)
для маслосъемного кольца
(4…10МПа)
где
- сила инерции от масс поршневой
группы, расположенной выше сечения Х-Х:
Учитывая статистические данные, а
также соотношения:
получим
.1.4 Напряжение в верхней кольцевой
перемычке
напряжение среза
где
- относительная толщина первой
кольцевой перемычки.
напряжение изгиба:
Сложное напряжение по третьей теории
прочности:
Допустимые напряжения для
алюминиевых сплавов
.1.5 Удельное давление поршня,
отнесенное в высоте юбки поршня
(0,33…0,96)
где
- относительная высота юбки поршня;
МПа - удельная суммарная сила,
действующая на стенку цилиндра.
Удельное давление поршня, отнесенное
ко всей высоте поршня:
(0,22…0,42)
где
- относительная высота поршня.
.2 Расчет поршневого кольца
.2.1 Рассчитываем среднее давление
на стенку цилиндра
для компрессионного кольца
для маслосъемного кольца
где
МПа - модуль упругости для
легированного чугуна;
- относительная величина разности
между величинами зазоров замка кольца в свободном и рабочем состоянии.
Среднее радиальное давление для
колец: компрессионных Pcp=(0,11…0,37)
МПа; маслосъемных Pcp=(0,2…0,4)
МПа
.2.2 Рассчитываем эпюру давления
кольца в различных точках окружности
где
- коэффициент для различных углов
по
окружности кольца.
Результаты расчета эпюры удельного
давления кольца
|
0306090120150180
|
|
|
|
|
|
|
|
|
1,061,061,140,900,460,672,85
|
|
|
|
|
|
|
|
|
маслос0,207
|
0,207
|
0,222
|
0,176
|
0,090
|
0,131
|
0,556
|
|
|
компрес0,253
|
0,253
|
0,272
|
0,215
|
0,110
|
0,160
|
0,681
|
|
.2.3 Рассчитываем напряжение изгиба кольца в
рабочем состоянии
для компрессионного кольца
для маслосъемного кольца
.2.4 Рассчитываем напряжение изгиба
при надевании кольца на поршень
для компрессионного кольца
для маслосъемного кольца
где m=1,57 -
экспериментальный коэффициент, зависящий от способа надевания кольца.
Допустимое напряжение
3.3 Расчет поршневого пальца
.3.1 Рассчитываем удельное давление
пальца на втулку верхней головки шатуна
где
- относительная длина втулки
поршневой головки шатуна;
- относительный наружный диаметр
пальца;
;
- коэффициент, учитывающий
уменьшение инерционной силы за счет вычета массы поршневого пальца.
qПП = (20…60) МПа
.3.2 Рассчитываем удельное давление
пальца на бобышку
где
- относительное расстояние между
бобышками;
- относительная длина пальца. qб = (15…50) МПа
3.3.3 Напряжение от изгиба поршневого пальца
где
- отношение внутреннего диаметра
пальца к наружному.
.3.4 Рассчитываем касательное
напряжение от среза пальца в сечениях, расположенной между бобышкой и головкой
шатуна
Для поршневых пальцев, изготовленных
из легированных сталей 15Х, 15ХА, 12ХН3А, 18Х2Н4МА
.
.3.5 Рассчитываем увеличение
горизонтального диаметра пальца в его средней части (овализация пальца)
3.4 Расчет стержня шатуна
.4.1 Рассчитываем напряжение сжатия
в сечении В-В от сжимающей силы
в плоскости качания шатуна
Здесь
=11,797- суммарная сила;
где
- ширина шатуна в среднем сечении;
;
;
;
- длина поршневой головки шатуна;
;
- коэффициент, учитывающий влияние
продольного изгиба шатуна в плоскости качения шатуна.
.4.2 Рассчитываем напряжение сжатия
в сечении В-В от сжимающей силы
в плоскости, перпендикулярной
плоскости качания шатуна
где
- коэффициент, учитывающий влияние
продольного изгиба шатуна в плоскости, перпендикулярной плоскости качения шатуна.
.4.3 Рассчитываем напряжение от
действия растягивающей силы
где
- удельная суммарная сила,
действующая вдоль оси цилиндра.
.4.4 Рассчитываем средние значения
напряжения цикла
в плоскости качания шатуна:
в плоскости перпендикулярной
плоскости качания шатуна:
.
.4.5 Рассчитываем амплитуды
напряжений цикла
в плоскости качания шатуна:
в плоскости перпендикулярной
плоскости качания шатуна:
.
.4.6 Рассчитываем амплитуды цикла с
учетом концентраций напряжений в зависимости от размера и способа обработки
поверхности детали
в плоскости качания шатуна:
в плоскости перпендикулярной
плоскости качания шатуна:
Здесь
- коэффициент концентрации
напряжений;
Марка материала шатуна 18Х2Н4МА
- предел прочности материала
шатуна;
по
- коэффициент, учитывающий
абсолютные размеры детали;
по
- коэффициент, учитывающий
абсолютные размеры детали;
- коэффициент, учитывающий способ
обработки поверхности детали.
.4.7 Определяем запас прочности
шатуна по пределу усталости
в плоскости качания шатуна:
;
в плоскости перпендикулярной
плоскости качания шатуна:
;
где
- коэффициент приведения
ассиметрического цикла к равноопасному симметричному.
- предел
выносливости материала.
4. РАСЧЕТ СИСТЕМ ДВИГАТЕЛЯ
.1 Расчет системы смазки
Рассчитываем количества тепла,
отводимого от двигателя маслом, учитывая, что в современных автомобильных и
тракторных двигателях маслом отводится 1,5…3% от общего количества теплоты,
введенной в двигатель с топливом.
где
- расход топлива;
- низшая теплота сгорания бензина.
Рассчитываем циркулярный расход
масла. Массовый циркуляционный расход масла равен:
,
где
кДж/кг К - удельная теплоемкость
масла;
К - перепад температуры масла на
выходе и входе в систему смазки двигателя (нагрев масла).
Рассчитываем стабилизационный расход
масла:
Определяем расчетную производительность
насоса с учетом утечек масла через радиальные и торцевые зазоры:
где
- КПД насоса.
Рассчитываем мощность, затрачиваемую
на привод масляного насоса:
где
- напор в масляном насосе;
- избыточное давление масла в
системе;
где
и
- соответственно давления масла
перед насосом и за насосом;
- объемный расход масла;
- плотность масла в системе;
- механический КПД насоса.
.2 Расчет системы охлаждения
.2.1 Рассчитываем количество тепла,
отводимого от двигателя охлаждающей жидкостью
где
- доля тепла, передаваемого
охлаждающей жидкости;
- расход топлива;
- низшая теплота сгорания бензина.
.2.2 Рассчитываем циркулярный расход
жидкости в системе охлаждения
- для антифриза,
- для воды,
где
кДж/кг К - удельная теплоемкость
охлаждающей жидкости (антифриз);
кДж/кг К - удельная теплоемкость
охлаждающей жидкости (вода);
К - перепад температуры охлаждающей
жидкости на выходе и входе в двигатель (нагрев масла).
.2.3 Рассчитываем производительность
насоса
- для антифриза,
- для воды,
где
- коэффициент подачи насоса.
4.2.4 Рассчитываем мощность,
потребляемую насосом, задаваясь величиной напора
- для антифриза,
- для воды,
где
МПа - перепад давления на выходе и
входе насоса;
- плотность охлаждающей жидкости
(антифриз).
- плотность охлаждающей жидкости
(вода).
- для антифриза,
- для воды,
где
- механический КПД насоса;
объемный расход охлаждающей жидкости
(антифриз).
объемный расход охлаждающей жидкости
(вода).
Список литературы
1. Автомобильные двигатели. /
Под редакцией М. С. Ховаха. М.: Машиностроение, 1977.
. Двигатели внутреннего
сгорания. /Под ред. В. Н. Луканина. М.: Высшая школа, 1985.
. Двигатели внутреннего
сгорания. Конструирование и расчет на прочность поршневых и комбинированных
двигателей. /Под ред. А. С. Орлина, М. Г. Круглова. М.: Машиностроение, 1984.
. Двигатели внутреннего
сгорания. Устройство и работа поршневых и комбинированных двигателей. /Под ред.
А. С. Орлина, М. Г. Круглова М.: Машиностроение, 1980.