Расчёт систем управления электрическим подвижным составом
Петербургский государственный
университет путей сообщения
Кафедра "Электрическая тяга
"
Контрольная работа
Расчёт систем управления
электрическим подвижным составом
Выполнил: Люлин-Кайдак А.С.
Студент группы: 10-ЭТц-217
Санкт-Петербург - 2014
СОДЕРЖАНИЕ
Введение
Исходные
данные
.
Характеристика двигателя и силовая схема электровоза
. Расчёт
основных параметров преобразовательной установки
. Расчёт
скоростных характеристик
. Расчёт
системы реостатного торможения
. Параметры
основных тяговых электрических аппаратов и оборудования
Заключение
Список
используемых источников
ВВЕДЕНИЕ
Основной целью данной контрольной работы является приобретение
практических навыков по выбору основных параметров электрооборудования, расчету
характеристик и разработке схем электрических цепей ЭПС.
Данная контрольная работа разрабатывается на уровне эскизного проекта,
т.е. это совокупность конструкторских документов, содержащих принципиальные
конструктивные решения, дающие представление об устройстве и принципе работы
изделия, а также данные, определяющее назначение и основные параметры.
ИСХОДНЫЕ ДАННЫЕ
Номинальное напряжение контактной сети, - Uс25 кВ;
Частота напряжения контактной сети, - f50 Гц;
Количество ведущих осей, - Nд8;
Давление на ось колесной пары, Рст - 240 кН;
Номинальная мощность тягового двигателя, - Рн'900 кВт;
Скорость движения в номинальном режиме, - Vн58 км/ч;
Номинальное напряжение на ТЭД, Uдн - 1100 В;
1. Характеристика двигателя и силовая схема электровоза
Номинальным называется режим работы, на который тяговый электродвигатель
рассчитан заводом-изготовителем. Этот режим характеризуется номинальными
значениями мощности РН, скорости VН, напряжения на двигателе UДН, тока IН и коэффициента регулирования
возбуждения bН. Для тяговых двигателей электровозов
номинальным является режим полного возбуждения bН=b0.
. Расчёт и построение исходных характеристик двигателя
.1 Номинальный (часовой) ток тягового двигателя
,
где
РН - номинальная мощность тягового двигателя, Вт;
UДН - номинальное напряжение на ТЭД, В;
hДН - коэффициент полезного действия (КПД) тягового
двигателя на его на его валу в номинальном режиме
hДН - определяем по данным, приведенным в [1], в
зависимости от номинальной мощности ТЭД hДН=0,94
А
Сила
тяги двигателя в номинальном режиме
,
где
hЗН - КПД
движущего механизма с зубчатой передачей в номинальном режиме;
VН - скорость движения в номинальном режиме, м/с
Принимаем
hЗН=0,98
кН
.2
Таблица расчётных точек скоростных и электротяговых характеристик
Таблица 1
|
Ток двигателя, I/Iн, А
|
Скорость движения V/Vн,км/ч
|
Сила тяги Fкд/Fкдн, кН
|
|
Нормальное возбуждение, ß=0,96
|
Ослабленное возбуждение, ß
|
Нормальное возбуждение, ß=0,96
|
Ослабленное возбуждение, ß
|
|
|
0,70
|
0,52
|
0,43
|
|
0,70
|
0,52
|
0,43
|
|
150
|
119,48
|
-
|
-
|
-
|
3,285
|
-
|
-
|
-
|
|
376
|
81,2
|
93,38
|
114,84
|
-
|
20,255
|
16,971
|
13,686
|
10,949
|
|
602
|
63,8
|
71,92
|
81,2
|
95,7
|
41,058
|
36,131
|
31,752
|
27,920
|
|
752
|
58
|
63,8
|
72,5
|
81,2
|
54,745
|
49,818
|
44,891
|
40,511
|
|
977
|
53,36
|
58
|
63,8
|
69,6
|
77,190
|
71,168
|
65,146
|
60,220
|
|
1203
|
49,3
|
53,94
|
58,58
|
62,64
|
99,088
|
91,971
|
85,949
|
79,380
|
|
1429
|
46,4
|
51
|
55,1
|
59,16
|
120,986
|
113,322
|
106,205
|
98,541
|
.
Расчёт ограничений рабочей области характеристик двигателя
.1
Расчётная таблица зависимости максимально допустимого тока по условиям
сцепления от скорости движения Iмах(V)
Таблица 2
|
V,км/ч
|
0
|
10
|
20
|
30
|
40
|
50
|
60
|
70
|
80
|
90
|
100
|
|
Ψ,
|
0,36
|
0,31
|
0,29
|
0,28
|
0,27
|
0,26
|
0,25
|
0,247
|
0,24
|
0,23
|
0,226
|
|
Fк мах, кН
|
86,4
|
74,4
|
69,6
|
67,2
|
64,8
|
62,4
|
60
|
59,28
|
57,6
|
55,2
|
54,24
|
|
Iмах, А
|
1070
|
940
|
900
|
870
|
850
|
820
|
790
|
780
|
770
|
760
|
750
|
где
Ψ - коэффициент сцепления,
Р'сц
- заданная нагрузка на ось, кН
По
рассчитанным значениям FКмах из
характеристик Fкд(I)
для нормального поля определяются соответствующие значения тока Iмах
.2
Максимальная величина тока при трогании Iтр мах=1070 А
.3
Ограничивающая величина тока при трогании на первой позиции Iтр0
где
γ
=0,25 - коэффициент инерции вращающихся
частей;
ω'о =2,00 -
расчётное удельное основное сопротивление движению электровоза;
=0,4 м/с2
- расчётное ускорение одиночного электровоза на первой позиции
Из
графика характеристик (рис.1) Iтр0=260 А,
Vмах=58,5
км/ч
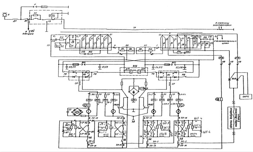
силовой электрический реостатный электровоз
3. Схема силовых цепей электровоза
Рис. 2
.1 Таблица замыкания контакторов ГП и контакторов ослабления возбуждения
Ш
Рис. 3
. Расчёт основных параметров преобразовательной установки
. Схема включения вентилей в одном плече моста и определение общего
количества вентилей на электровозе
.1 Расчёт числа последовательно включённых вентилей в каждом плече моста
где
Uп обр -
повторяющееся напряжение вентиля, которое зависит от класса вентиля.
.2
Расчёт числа параллельно включённых цепей вентилей в каждом плече моста
где
Iнв -
номинальный ток вентиля, равный 200 А для вентиля типа ДЛ-161-200 и 320 А для
вентиля типа ДЛ-171-320;1 =0,85 - коэффициент, учитывающий
неравномерность распределения тока между параллельными ветвями в плече моста;2
=0,9 - коэффициент, учитывающий подогрев воздуха при прохождении его через
выпрямительную установку, в результате чего последние вентили охлаждаются
подогретым воздухом;
ад
- число параллельно включённых двигателей, питающихся от одного выпрямительного
моста;
Iр = Iтр мах = 1070
А.
,
.3
Таблица для выбора типа и класса вентилей
Таблица 4
|
Тип вентиля
|
Класс вентиля
|
ав
|
тв
|
Общее количество вентилей
на электровозе
|
Стоимость комплекта
вентилей на электровозе
|
|
|
По формуле
|
После округления
|
По формуле
|
После округления
|
|
|
|
ДЛ-161-200
|
7
|
6,99
|
7
|
4,19
|
4
|
640
|
5642 р.
|
|
8
|
|
|
3,85
|
4
|
512
|
5101,4
р.
|
|
9
|
|
|
3,56
|
4
|
512
|
5420,7
р.
|
|
10
|
|
|
3,21
|
3
|
384
|
4646,4 р.
|
|
ДЛ-171-320
|
7
|
4,3
|
4
|
4,19
|
4
|
400
|
5240 р.
|
|
8
|
|
|
3,85
|
4
|
320
|
4320 р.
|
|
9
|
|
|
3,56
|
4
|
320
|
4768 р.
|
|
10
|
|
|
3,21
|
3
|
240
|
3912 р.
|
.4 Схема включения вентилей
Рис. 4
.5 Расчёт токов в параллельных ветвях плеча моста
где
Iр -
принимается равным максимальному току трогания Iтр мах=1070 А
Подбор
вентилей необходим для достижения равномерного распределения тока между
параллельными ветвями, поэтому в каждое плечо моста устанавливаются вентили с
близкими значениями прямого падения напряжения. Падение напряжения на вентиле
определяется его вольтамперной характеристикой, которая для расчётов
апроксимируется прямой, не проходящей через начало координат.
.
Расчёт номинального напряжения холостого хода вторичной обмотки трансформатора
.1
Индуктивное сопротивление трансформатора
,
где
Uх=10% -
реактивные потери напряжения в трансформаторе
по
найденному значению U'20н рассчитываем хтн и rтн
.2
Активное сопротивление трансформатора
rср =0,007 Ом - активное сопротивление обмотки
сглаживающего реактора
.3
Номинальное эквивалентное сопротивление преобразовательной установки,
приведённое к одному двигателю
.4
Номинальное напряжение холостого хода вторичной обмотки трансформатора
.
Расчёт числа витков обмоток трансформатора и выпрямленных напряжений холостого
хода по ступеням регулирования
.1
Число витков секции ωср
где
Ео=20 В/виток - принятая средняя величина числа вольт на виток
.2
Разность между числом витков нерегулируемой и регулируемой обмотки ω21р, от
которой зависит напряжение на 1-ой позиции
.3
Полное расчётное число витков вторичной обмотки ω2р
.4
Расчётное значение ЭДС на 1 виток обмотки Еор
.5
Число витков первичной обмотки трансформатора ω1
где
Uс=25000 В
- напряжение контактной сети
.6
Выпрямленное напряжение холостого хода на первой ступени регулирования Uво1
.7
Расчётный прирост (бросок) выпрямленного напряжения холостого хода ∆Uво
.8
Расчётная таблица
Таблица 5
|
Ступени регулирования
(позиции)
|
Uво, В
|
R'э, Ом
|
Iтр, А
|
В В
|
|
|
1
|
54
|
0,215
|
192
|
12,72
|
-195,4
|
|
2
|
94,5
|
0,197
|
359
|
23,78
|
-134,02
|
|
3
|
135
|
0,184
|
540
|
35,64
|
-78,44
|
|
4
|
175,5
|
0,173
|
734
|
48,52
|
-25,18
|
|
5
|
216
|
0,162
|
947
|
62,59
|
28,08
|
|
6
|
256,5
|
0,153
|
1171
|
77,34
|
79,02
|
297
|
0,145
|
|
|
128,8
|
|
8
|
337,5
|
0,139
|
|
|
176,26
|
|
9
|
378
|
0,133
|
|
|
223,72
|
|
10
|
418,5
|
0,128
|
|
|
270,02
|
|
11
|
459
|
0,124
|
|
|
315,16
|
|
12
|
499,5
|
0,122
|
|
|
357,98
|
|
13
|
540
|
0,118
|
|
|
403,12
|
|
14
|
580,5
|
0,117
|
|
|
444,78
|
|
15
|
621
|
0,117
|
|
|
485,28
|
|
16
|
661,5
|
0,117
|
|
|
525,78
|
|
17
|
702
|
0,118
|
|
|
565,12
|
|
18
|
742,5
|
0,119
|
|
|
604,46
|
|
19
|
783
|
0,12
|
|
|
643,8
|
|
20
|
823,5
|
0,123
|
|
|
680,82
|
|
21
|
864
|
0,126
|
|
|
717,84
|
|
22
|
904,5
|
0,13
|
|
|
753,7
|
|
23
|
945
|
0,135
|
|
|
788,4
|
|
24
|
985,5
|
0,14
|
|
|
823,1
|
|
25
|
1026
|
0,144
|
|
|
858,96
|
|
26
|
1066,5
|
0,15
|
|
|
892,5
|
|
27
|
1107
|
0,155
|
|
|
927,2
|
|
28
|
1147,5
|
0,16
|
|
|
961,9
|
|
29
|
1188
|
0,165
|
|
|
996,6
|
|
30
|
1228,5
|
0,17
|
|
|
1031,3
|
|
31
|
1269
|
0,178
|
|
|
1062,52
|
|
32
|
1309,5
|
0,183
|
|
|
1097,22
|
|
33
|
1350
|
0,188
|
|
|
1131,92
|
.
Расчёт внешних характеристик преобразовательной установки
.1
Расчётная таблица
Таблица 6
|
Uво/Uвон
|
0
|
0,1
|
0,2
|
0,3
|
0,4
|
0,5
|
0,6
|
0,7
|
0,8
|
0,9
|
1,0
|
|
Uво, В
|
0
|
135
|
270
|
405
|
540
|
675
|
810
|
945
|
1080
|
1215
|
1350
|
|
R'э/R'эн
|
1,25
|
0,98
|
0,8
|
0,68
|
0,63
|
0,62
|
0,65
|
0,72
|
0,81
|
0,9
|
1,0
|
|
R'э, Ом
|
0,235
|
0,184
|
0,15
|
0,128
|
0,118
|
0,117
|
0,122
|
0,135
|
0,152
|
0,169
|
0,188
|
.3 Из построенного графика зависимости R'э(Uво) рис.5 определяем значения R'э в соответствии со
значениями Uво на этих позициях
.4 Сопротивление обмотки двигателя rд
.5
Токи трогания Iтрi
.6
Выпрямиленные напряжения на двигателе Uдi
при токах трогания
.7
Выпрямленные напряжения на двигателе при токе Iд=1,6Iн
.8
Ток трогания на 1-ой ступени регулирования Iтр1=192 А, и ток Iтр0=290 А.
Система
регулирования напряжения нужна для того, чтобы уменьшить ток в первоначальный
момент трогания электровоза, тем самым система регулирования напряжения
обеспечивает плавный разгон электровоза.
.
Расчёт скоростных характеристик
.
Графический расчёт и построение скоростных характеристик
.1
Графики функций скорости движения в зависимости от напряжения на двигателе V(Uд) при токах трогания построены на рис.6 во втором
квадрате
.2
Внешние характеристики преобразовательной установки построены на рис.6 в
четвёртом квадрате
.3
Графики функций регулирования V(Uво) для
токов I1,I2,I3,I4,I5
построены во втором квадрате рис.6
.4
Скоростные характеристики регулирования при нормальном возбуждении построены в
первом квадрате рис.6
.5
Расчётная таблица скоростных характеристик двигателя при ослабленном возбуждении
Таблица 7
|
I/Iн, А
|
0,40
|
0,50
|
0,70
|
0,85
|
1,00
|
1,25
|
1,60
|
1,90
|
|
I, А
|
290
|
362,5
|
507,5
|
616,25
|
725
|
906,25
|
1160
|
1377,5
|
|
Vоп1/Vн
|
2,12
|
1,75
|
1,37
|
1,21
|
1,10
|
0,98
|
0,85
|
0,74
|
|
Vоп1,
км/ч
|
131,44
|
108,5
|
84,94
|
75,02
|
68,2
|
60,76
|
52,7
|
45,88
|
|
Vоп2/Vн
|
-
|
2,20
|
1,60
|
1,39
|
1,25
|
1,08
|
0,93
|
0,82
|
|
Vоп2,
км/ч
|
-
|
136,4
|
99,2
|
86,18
|
77,5
|
66,96
|
57,66
|
50,84
|
|
Vоп3/Vн
|
-
|
-
|
1,93
|
1,60
|
1,40
|
1,18
|
1,02
|
0,89
|
|
Vоп3,
км/ч
|
-
|
-
|
119,66
|
99,2
|
86,8
|
73,16
|
63,24
|
55,18
|
.6 Скоростные характеристики двигателя при ослабленном возбуждении
построены в первом квадрате рис.6
. Построение пусковой диаграммы
.1 Ограничения по току и по скорости, нанесённые на сетку скоростных
характеристик рис. 6
.2 Пусковая диаграмма, построена на графике семейства скоростных
характеристик в области максимально допустимых токов двигателя рис.6
4. Расчёт системы реостатного торможения
. Расчёт основных параметров выпрямительной установки возбуждения (ВУВ) и
кривой намагничивания тяговой машины
.1 Упрощённая принципиальная схема питания обмоток тяговых машин
Рис. 7
.2 Максимальное и минимальное значения тока в обмотках возбуждения Iв мах, Iв мин
,
где
Uвув0 -
выпрямленное напряжение, равное среднему за полупериод напряжению секции обмотки
трансформатора
В,
В,
В,
.3
Максимальное обратное напряжение на тиристорах ВУВ
Класс
вентиля 10, тогда максимальное обратное напряжение
Uобр =
В
.4
Расчётная таблица кривой намагничивания машины СvФ(Iв)
Таблица 8
|
I, А
|
192
|
359
|
540
|
734
|
947
|
|
Uд = СvФVj
+ Irд
|
668
|
870
|
1090
|
1245
|
1350
|
|
Irд
|
12,67
|
23,69
|
35,64
|
48,44
|
62,50
|
|
Е = Uд - Irд
|
655,33
|
846,31
|
1054,36
|
1196,56
|
1287,5
|
|
10,23913,22416,47418,69620,117
|
|
|
|
|
|
Vj = 64 км/ч
. Выбор величины сопротивления тормозного резистора и расчёт ограничений
рабочей области тормозных характеристик
.1 Сопротивление тормозного резистора Rт
Ом
.2
Координаты расчётных точек для построения линий ограничения тормозной силы по
максимальному и минимальному току возбуждения Iв мах, Iв мин, где
- сопротивление обмоток якоря и дополнительных полюсов
Ом,
км/ч
кН
V = 20 км/ч,
кН,
где
- коэффициент, учитывающий потери силы в машине и
редукторе в процессе преобразования энергии
.3
Расчётная таблица для построения кривой ограничения тормозной силы по мощности
тормозного резистора Ртр мах
кВт
;
кН
Таблица 9
|
V, км/ч
|
50
|
60
|
70
|
80
|
90
|
100
|
110
|
124
|
|
Вк, кН
|
54,88
|
45,73
|
39,2
|
34,3
|
30,49
|
27,44
|
24,95
|
22,13
|
.4 Расчётная таблица ограничений тормозной силы по сцеплению Вк мах(V)
Таблица 10
|
V, км/ч
|
0
|
10
|
20
|
30
|
40
|
50
|
60
|
70
|
80
|
90
|
100
|
110
|
124
|
|
Ψ
|
0,29
|
0,25
|
0,20
|
0,19
|
0,17
|
0,16
|
0,14
|
0,13
|
0,12
|
0,11
|
0,10
|
0,09
|
|
Вк мах, кН
|
66,7
|
57,5
|
52,9
|
46
|
43,7
|
39,1
|
36,8
|
32,2
|
29,9
|
27,6
|
25,3
|
23
|
20,7
|
Vмах = 2Vн =
км/ч
Вк
мах =
кН
11.6
Расчёт и построение на графике тормозной характеристике, соответствующей
постоянному значению угла регулирования
В,
В
,
км/ч
кН
5.
Параметры основных тяговых электрических аппаратов и оборудования
.
Перечень основных тяговых аппаратов и оборудования
Таблица 11
|
Обозначение по схеме
|
Наименование аппаратов и
оборудования
|
Расчётные номинальные
данные
|
Количество
|
Примечание
|
|
|
Напряжение
|
Ток
|
|
|
|
П
|
Токоприёмник
|
25 кВ
|
500 А
|
1
|
|
|
ДП
|
Дроссель помехоподавления
|
25 кВ
|
400 А
|
1
|
|
|
ГВ
|
Выключатель воздушный
|
25 кВ
|
400 А
|
1
|
|
|
ТР
|
Тяговый трансформатор
|
25 кВ
|
1750 А
|
1
|
|
|
ГП
|
Главный контроллер
|
3100 В
|
1300 А
|
1
|
|
|
ПР
|
Переходный реактор
|
1500 В
|
1270 А
|
2
|
|
|
ВУ
|
Выпрямительный мост
|
1350 В
|
3200 А
|
2
|
|
|
СР
|
Сглаживающий реактор
|
1500 В
|
1700 А
|
2
|
|
|
I-IV
|
Тяговый электродвигатель
|
950 В
|
880 А
|
4
|
|
|
ВУВ
|
Блок выпрямительной
установки возбуждения
|
580 В
|
850 А
|
2
|
|
|
ТР
|
Тормозной резистор
|
2000 В
|
830 А
|
4
|
|
|
БРД
|
Блок дифференциальных реле
|
2500 В
|
1500 А
|
1
|
|
|
Р-ВП, Р-НЗ, ТП-М,ТП-Т
|
Переключатель кулачковый
двух позиционный
|
3000 В
|
850 А
|
1
|
|
|
А
|
Амперметр М151
|
75 В
|
1500 А
|
2
|
|
|
V
|
Вольтметр М151
|
1500 В
|
5 А
|
1
|
|
. Параметры и действие основных видов защиты силовых цепей электровоза
Таблица 12
|
Причина срабатывания защиты
|
Аппараты защиты
|
Величина параметра
настройки защиты
|
Конечный результат действия
защиты
|
|
Короткое замыкание в
трансформаторе
|
ГВ
|
250 А
|
Отключение ГВ
|
|
Атмосферные перенапряжения
|
Высоковольтный разрядник
|
58 кВ
|
Срабатывание разрядника
|
|
Коммутационные
перенапряжения на выпрямительной установке
|
Вилитовый разрядник ВР1 и
ВР2
|
2,2-2,7 кВ
|
Срабатывание разрядника
|
|
Короткое замыкание в ТД или
ВУ
|
ГВ
|
|
Отключение ГВ
|
|
Пробой на землю изоляции
силовой цепи ТД
|
Реле заземления
|
230-260 В
|
Отключение ГВ
|
|
Перегрузка тягового
двигателя
|
Реле перегрузки РП 1-РП 4
|
1300 А
|
Отключение ГВ через
промежуточное реле
|
ЗАКЛЮЧЕНИЕ
В данной контрольной работе был произведен расчет основных параметров
электрооборудования, построены внешние и скоростные характеристики, разработана
схема электрических цепей электровоза переменного тока.
При разработке схемы электрических цепей учтена возможность применения
реостатного торможения с независимым возбуждением тяговых двигателей.
Все основные параметры электрооборудования являются средними для
современных электровозов.
СПИСОК ИСПОЛЬЗУЕМЫХ ИСТОЧНИКОВ
1. Расчёт
систем управления электрическим подвижным составом. Учебное пособие. Плакс
А.В., Мазнев А.С. Л., ЛИИЖТ, 1986, 74с.
. Электровоз
ВЛ80т. Руководство по эксплуатации / под ред. Б.Р. Бондаренко. - М.,
Транспорт, 1977 - 568 с.
.
Методические указания к выполнению курсового проекта. Системы управления
электрическим подвижным составом. Москва - 1987.