Технологический процесс производства сульфата аммония
Содержание
Введение
1. Физико-химические
основы процесса абсорбции
. Описание
технологической схемы сульфатного отделения
. Выбор
и конструкция основного аппарата
. Расчет
основного аппарата
4.1 Материальный
и тепловой балансы абсорбера 1-й ступени
.2 Материальный
и тепловой балансы сборника 1-й ступени
.3 Материальный
и тепловой балансы абсорбера 2-й ступени
.4 Материальный
и тепловой балансы сборника 2-й ступени абсорбера
.5 Определение
размеров абсорберов 1-й и 2-й ступени
5. Расчет
испарителя
5.1 Материальный
расчёт
.2 Тепловой
расчёт
.3 Определение
поверхности теплопередачи
6. Расчет
центробежного насоса для подачи циркулирующего раствора на в первую ступень
абсорбера
Выводы
Список
использованных источников
Введение
Роль косохимической промышленности в народном хозяйстве
Украины
ПАО "АКХЗ" является крупнейшим коксохимическим
предприятием в Европе. Основным назначением завода является производство
доменного кокса, что составляет 86% объема всей производственной мощности.
Перечень основных видов продукции, выпускаемой заводом, включает более 30
наименований, а именно: - кокс доменный - орешек коксовый, мелочь коксовый, -
кокс пековый электродный, - сульфат аммония, смола каменноугольная, бензол и
другие
При производстве кокса получается попутная продукция - смола
в газе, бензол в газе и газ коксовый, поступающих в цех улавливание. В цехе
улавливание коксовый газ очищается от аммиака, при этом производится сульфат
аммония.
Производство сульфата аммония на коксохимических заводах
является важнейшим источником минеральных удобрений. По масштабам потребления
сульфат аммония значительно превосходит все остальные азотнотуковые удобрения.
Это отчасти объясняется тем, что по содержанию азота он занимает одно из первых
мест, уступая лишь мочевине и нитрату аммония.
В балансе производства азотных удобрений на долю сульфата
аммония приходится около 27% от общего производства этих удобрений.
Вследствие хорошей растворимости сульфат аммония легко
поглощается содержащейся в почве влагой, благодаря чему растения хорошо
усваивают его азот. При этом аммиачная форма последнего обеспечивает растениям
медленное и постепенное поглощение его.
Освобождающаяся серная кислота при длительном периоде
внесения сульфата аммония в почву (20 - 25 лет) может привести к закислению
грунта и ослаблению удобрительного эффекта. Поэтому сульфат аммония как
физиологически кислое удобрение не следует вносить в кислые почвы. Его не
следует применять на песчаных грунтах, где в течении осени и зимы потери азота
бывают недопустимо высокие. Сульфат аммония особенно эффективен как осеннее
удобрение на тяжелых и хорошо поглощающих почвах.
Внесение сульфата аммония под картофель, озимую рожь, пшеницу
и другие культуры, которые не боятся повышенной кислотности, дает превосходные
результаты. Способность сульфата аммония подкислять почву в ряде случаев
полезно используется. В некоторых районах предпочитают сульфат аммония еще
потому, что при подкислении почвы создаются благоприятные условия для борьбы с
паршой. На подкисленных почвах хорошо развиваются арбузы, цитрусовые и другие
культуры.
Если при всем этом принять во внимание сравнительную простоту
производства сульфата аммония, то можно понять, почему он в течении длительного
времени занимает видное место в ассортименте азотных удобрений.
.
Физико-химические основы процесса абсорбции
Хемосорбция - химическая сорбция, поглощение жидкостью или
твёрдым телом веществ из окружающей среды, сопровождается образованием
химических соединений.
Абсорбцией называется процесс поглощения газа или пара жидким
поглотителем (абсорбентом). Обратный процесс - выделение поглощенного газа из
поглотителя - называется десорбцией.
В промышленности абсорбция с последующей десорбцией широко
применяется для выделения из газовых смесей ценных компонентов (например, для
извлечения из коксового газа аммиака, бензола и др.), для очистки
технологических и горючих примесей (например, при очистке их от сероводорода),
для санитарной очистки газов (например, отходящих газов от сернистого
ангидрида) и т.д.
В некоторых случаях десорбцию не проводят, если извлекаемый
компонент и поглотитель являются дешевыми или отбросными продуктами или если в
результате абсорбции получается готовый продукт.
Растворимость газов в жидкостях зависит от свойств газа и
жидкости, от температуры и парциального давления растворяющегося газа в газовой
смеси.
Зависимость между растворимостью газа и его парциальным
давлением характеризуется законом Генри, согласно которому равновесное
парциальное давление p* пропорционально содержанию растворенного газа в
растворе X (в кг/кг поглотителя)
где ψ - коэффициент
пропорциональности, имеющий размерность давления и зависящий от свойств
растворенного газа и поглотителя и от температуры.
Растворимость многих газов значительно отклоняется от закона
Генри.
Это относится главным образом к хорошо растворимым газам,
образующим растворы высокой концентрации. При низких концентрациях раствора
закон Генри обычно хорошо соблюдается.
Для практических расчетов используются полученными из опыта
значениями равновесного парциального давления газа p* и вычисляют равновесное
содержание абсорбируемого компонента в газовой смеси Y* формуле:
кг/кг инертного газа
где Mк и Mн - молекулярные массы
абсорбируемого компонента и инертного газа;
Р - общее давление газовой смеси
По найденным значениям Y* строят линию равновесия. При
небольших значениях p*, по сравнению с Р, можно приближенно написать, учитывая
уравнение:
В этом случае линия равновесия представляет собой прямую, тангенс
угла наклона которой рамен 
.
Материальный баланс абсорбера характеризуется уравнением:
в котором G - количество инертного газа, кг/сек; L -
количество поглотителя, кг/сек; Y - содержание компонента в газовой фазе, кг/кг
инертного газа; X - содержание компонента в жидкой фазе, кг/кг поглотителя.
Величина 
, определяется по уравнению:
и является удельным расходом поглотителя (кг/кг инертного
газа).
При полном извлечении компонента из газа его содержание в газовой
фазе на выходе из абсорбера было бы 
, а количество поглощенного компонента составило бы GY1.
Отношение количества фактически поглощенного компонента 
к количеству, поглощаемому при полном извлечении, называется
степенью извлечения:
Рабочая линия процесса абсорбции описывается уравнением:
На диаграмме Y - X она расположена выше линии равновесия, так
как при абсорбции содержание компонента в газовой фазе больше равновесного. При
десорбции, наоборот, рабочая линия лежит ниже линии равновесия.
Чтобы построить рабочую линию, надо знать составы фаз на
входе в абсорбер (X2,Y1) и на выходе из него (X1,Y2).
По этим составам строят точки А и В, а расход поглотителя определяют по
уравнению:
Однако обычно заданы только начальные составы газа и жидкости (Y1,X2)
и степени извлечения. Заданным условиям соответствует определенное значение 
, которое можно найти по формуле:
и таким образом построить точку В (рисунок 1)
а б
а - линия равновесия обращена выпуклостью вниз; б - линия
равновесия обращена выпуклостью вверх.
ОС - линия равновесия; АВ - рабочая линия; А´ В - предельное положение рабочей линии, соответствующее
минимальному расходу поглотителя.
Рисунок 1 - Определение минимального расхода поглотителя
В зависимости от удельного расхода поглотителя рабочая линия
будет проворачиваться около точки В, причем точка А будет перемещаться по
горизонтали, соответствующей ординате Y1. Положение А´ В, когда точка А´ лежит на линии равновесия
(рисунок 1, а) или когда рабочая линия касается линии равновесия (рисунок 1,
б), соответствует минимальному расходу поглотителя.
При минимальном расходе поглотителя движущая сила в точке
касания рабочей линии и линии равновесия равна нулю, при этом требуется
абсорбер бесконечно большой высоты. С увеличением удельного расхода поглотителя
уменьшается требуемая высота абсорбера, но возрастают расходы на десорбцию, на
перекачивание поглотителя и т.д. Наивыгоднейший удельный расход
поглотителя можно найти технико-экономическим расчетом [4].
.
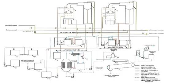
Описание технологической схемы сульфатного отделения
Работа абсорбционной системы
Назначение отделения - извлечение из коксового газа аммиака,
получение сульфата аммония, переработка избыточной аммиачной воды, утилизация
отработанного содового раствора цехов сероочистки № 1,2.
После нагнетателей, коксовый газ, содержащий 6 -10 г/м3
аммиака, поступает в коллектор входа газа в аммиачные абсорберы 1,2.
Коксовый газ поступает в нижнюю часть абсорбера 1,2 на
рисунке 2, где орошается маточным раствором через 3 яруса боковых форсунок, по
4 штуки в каждом, и одну центральную. Очищенный до содержания аммиака не выше
0,03 г/м3 коксовый газ поступает в кислотную ловушку 3,4, где
очищается от унесенных из абсорбера мелких брызг раствора. После этого газ
направляется в КГХ бензольного отделения.
Раствор на орошение абсорбера 1,2 подается из циркуляционного
сборника подачи 5,7, в котором поддерживается заданное содержание свободной
серной кислоты и удельный вес. Из нижних двух ярусов форсунок раствор стекает
на днище абсорбера и через гидрозатвор попадает в сборник возврата 6,8.
Содержание свободной серной кислоты в этом растворе должно быть 0,8 - 1%. Из
верхнего яруса форсунок и из центральной форсунки раствор, пройдя через
абсорбер, попадает на разделительную тарелку, которая препятствует смешению
возвращающихся с 1,2 и с 3 ярусов растворов. С тарелки, через гидрозатвор,
раствор с содержанием свободной H2SO4 равна 1,2-1,4%
возвращается в сборник подачи 5,7.
Сборники подачи и возврата 5-8 соединены по типу «сообщающихся
сосудов» трубопроводом диаметром 500 мм. Требуемое содержание свободной серной
кислоты в сборнике подачи поддерживается добавлением серной кислоты из
напорного бака 17,18. Удельный вес поддерживается добавлением «грязного»
конденсата из напорного бака воды.
Из сборника возврата раствор 6,8 с кислотностью 0,8 - 1%
выводится в питающие сборники 15 для дополнительного отстоя перед подачей в
испарители 10.
Из кислотной ловушки 3,4 раствор через гидрозатвор выводится
в сборник подачи 5,7.
В циркуляционных сборниках 5-8 в верхней части скапливается
кислая смолка, которая улавливается в абсорбере из коксового газа. Периодически
кислая смолка откачивается в специальную автоцистерну и вывозится в цех
Улавливания №2 на установку по переработке отходов коксохимического
производства.
Испарительная система.
Маточный раствор из питающих сборников 6,8 содержащий 40%
сульфата аммония подается в испарители 10 питающими насосами. Испарение и
кристаллизация раствора происходят под вакуумом. Трубчатая система испарителя
подогревается паром, а вакуум поддерживается двухступенчатым паровым эжектором
21, который работает в сочетании с поверхностным конденсатором.
При достижении необходимой концентрации кристаллов в
испарителе, полученная пульпа непрерывно подается насосом в центрифугу 12.
Маточный раствор отделяется в центрифуге от кристаллов и самотеком возвращается
в циркуляционный сборник подачи 5,7, а кристаллы сульфата после центрифуги 12
транспортерами подаются в сушильное отделение.
Конденсат после поверхностных конденсаторов и конденсаторов
эжекторов поступает в сборник грязного конденсата 11, а затем в напорный бак
грязного конденсата 9.
В процессе работы испарителей сульфатного отделения в
межтрубном пространстве каждого образуется от 5 м3/ч до 9 м3/ч
конденсата, который представляет собой конденсат глухого пара низкого давления.
Общее количество образовавшегося конденсата составит от 10 м3/ч
до 25 м3/ч. Конденсат после нагревательного устройства испарителя
самотеком поступает в сборник чистого конденсата 16, откуда насосом подается в
центрифугу 12 для промывки сульфата аммония от свободной серной кислоты, для
пополнения напорных баков 17,18 воды и на увлажнение пара, подаваемого в
испарители. На эти цели используется приблизительно от 3 м3/ч до 6 м3/ч.
Избыточный конденсат может использоваться на технологические нужды предприятия.
Сушка и складирование сульфата аммония.
Сульфат аммония после центрифуги 12 поступает на ленточный
транспортер 19 влажного сульфата аммония, а затем в приемный бункер сушилки 14.
В сушильные агрегаты подается горячий воздух, нагретый в калориферах. Из
сушилки сульфат аммония поступает на склад для погрузки в железнодорожные
полувагоны.
Сушилка оборудована также вытяжным вентилятором, на
всасывающем трубопроводе которого установлен скруббер обеспыливания 13,
препятствующий попаданию пыли сульфата аммония в окружающую среду. Это
достигается путем орошения воздуха, выходящего из сушилки водой (чистым
конденсатом), подаваемой насосом из сборника обеспыливания через форсунку. Из
скруббера 13 вода возвращается в сборник 5,7, т.е. находится в замкнутом цикле.
При насыщении воды кристаллами сульфата аммония производится
выкачка ее в циркуляционные сборники 5-8, а сборник пополняется свежим чистым
конденсатом.
Для предотвращения уноса воды в атмосферу, в скруббере
предусмотрена осушающая насадка. По мере забивания насадки производится ее
промывка через промывочную форсунку.[3]
сульфат аммоний абсорбция
,2 - абсорбер; 3,4 - кислотная ловушка; 5,7 - циркулирующие
сборники подачи;6,8 - циркулирующие сборники возврата; 9 - бак грязного
конденсата; 10 - испаритель; 11 - сборник грязного конденсата;12 -
центрифуга;13 - скруббер обеспыливания;14 - барабанная сушилка; 15 - питающий
сборник;16 - сборник чистого конденсата; 17,18 - напорный бак серной кислоты,19
- транспортёр;20 - бак с серной кислотой; 21 - пароэжектор; 22 - конденсатор
Рисунок 2 - Технологическая схема аммиачно-сульфатного
отделения
3.
Выбор и конструкция основного аппарата
Аммиачный абсорбер
Абсорбер, показанный на рисунке 3, состоит из цилиндрического
вертикального корпуса 2, в средней части которого установлены отбойники 3 и
радиально-целевой распределитель газа 4. Они делят газовое пространство на две
секции.
Первая и вторая секции абсорбера разделены между собой
горизонтальной тарелкой, имеющей ряд колпачков и систему отбойников,
расположенных под тарелкой, для задержки увлеченных капель жидкости из первой
секции во вторую. Эти отбойники устанавливают под углом 45° к потоку газа и
крепят в верхней части нижней секции абсорбера.
Увеличение поверхности контакта между коксовым газом и
раствором серной кислоты достигается за счет распыливания раствора форсунками
5. В первой секции под отбойником установлено восемь форсунок диаметром 36 мм.
Первая секция орошается 1% раствором серной кислоты. Вторая секция (над
распределителем газа) орошается 10-12% раствором, который подается через восемь
форсунок диаметром 36 мм и одну форсунку диаметром 80 мм. Все форсунки за
исключением верхней, обеспечивают разбрызгивание раствора мелкими каплями, а
верхняя дает крупные капли для уменьшения уноса жидкости из абсорбера в
кислотную ловушку.
Коксовый газ поступает в абсорбер через штуцер Д, проходит
снизу вверх и выходит через штуцер В. Раствор к форсункам подается в штуцеры Б.
Штуцеры Ж и Е предназначены для удаления раствора из первой, а штуцер Г - из
второй секции. На корпусе абсорбера имеются монтажные люки А.
Корпус абсорбера изготавливается из стали 10Х17Н13М3Т или Ст3
изнутри абсорбер футеруется кислотоупорным кирпичом. Все детали внутри
абсорбера изготавливаются из кислотостойких сталей. Абсорбер имеет кольцевую
опору 1, которой он устанавливается на кольцевой железобетонный фундамент. [5]
- кольцевая опара; 2 - корпус; 3 - отбойник; 4 -
радиально-целевой распределитель газа; 5 - форсунки. А, Б, В, Г, Д, Ж, Е -
штуцера.
Рисунок 3 - Абсорбер для улавливания аммиака из коксового
газа
.
Расчет основного аппарата
Материальный баланс аммиака
Материальный баланс аммиака (кг/ч) имеет следующий вид:
Таблица 1 - Материальный баланс аммиака
|
Приход
|
кг/ч
|
Расход
|
кг/ч
|
|
Аммиак с
кокосовым газом
|
764
|
С коксовым
газам
|
3
|
|
|
Реагирует с
кислотой
|
761
|
|
Итого
|
764
|
Итого
|
764
|
Расчет произведен на 100000 м3/час коксового газа.
Для поглощения 761 кг/ч аммиака необходимо подать серной кислоты в
моногидрате 761
2193 кг/ч; при этом образуется сухого сульфата аммония 761 + 2193
= 2954 кг/ч, а с влажностью 2%: 
кг/ч.
Расход 94%-ной серной кислоты составит: 
кг/ч, из них моногидрата серной кислоты 2193 кг/ч, воды 140 кг/ч.
Для упрощения расчета пренебрегаем содержанием серной кислоты и
пиридиновых оснований в отфугованном сульфате аммония. [3]
.1 Материальный и тепловой балансы абсорбера 1-й ступени
Приход:
. Коксовый газ. В абсорбер 1-й ступени поступают коксовый газ
из нагнетателя и аммиачно-водяные пары из дефлегматора в количестве (табл. 2),
кг/ч:
2. В абсорбер поступает циркулирующий раствор из сборника 1-й
ступени абсорбера. Обозначим это количество через G1.
Таким образом, общий приход равен 55309 + G1 кг/ч.
Таблица 2 - Приход коксового газа в 1- ю ступень абсорбера
|
Наименование
|
кг/ч
|
|
Сухой коксовый
газ
|
45000
|
|
Бензольные
углеводороды
|
3036
|
|
Аммиак
|
704
|
|
Сероводород
|
1501
|
|
Двуокись
углерода
|
83
|
|
Водяные пары
|
4938
|
|
Итого
|
55309
|
Расход:
. Коксовый газ. Из имевшихся в коксовом газе 704 кг/ч аммиака
поглощается 662 кг/ч и остается в газе 42 кг/ч.
Количество водяных паров, выходящих с газом из 1-й ступени
абсорбции, можно определить исходя из того, что за счет тепла нейтрализации
происходит нагрев газа до 58
, то есть до температуры поступающего раствора, и испарение соответствующего
количества воды. Обозначим это количество через Gв:

где 
- тепло,
вносимое коксовым газом, кДж/ч;

- тепло, внесенное аммиачно-водяными парами, кДж/ч;

- тепло реакции нейтрализации, кДж/ч;

- тепло, уносимое сухим газом, кДж/ч;

-
температура газа на выходе из абсорбера, 
= 58
.
Тепло, вносимое коксовым газом при 50
:

= 16 435
756 кДж/ч.
Тепло, вносимое аммиачно-водяными парами из дефлегматора при 95
равно:

= (254 · 0,508 + 70 · 0,24 + 83 · 0,418) · 95 · 4,19 + 1239 ·
4,19 · (595 + 0,44 · 95) = = 3 378 435 кДж/ч.
Тепло реакции нейтрализации аммиака

= 
кДж/ч,
где 46700 - тепло реакции нейтрализации, ккал/ч серной кислоты.
Тепло, уносимое сухим коксовым газом при температуре 58
:

= (42 · 0,508 + 1501 · 0,298 + 83 · 0,418 + 3036 · 0,246 + 45000
· 0,7) · 58 · 4,19 = = 7 963 464 кДж/ч.
Тогда:
Таким образом, общее количество газов, выходящих из 1-й
ступени абсорбера во 2-ю, равно (табл. 3):
Таблица 3 - Выход газа из 1 -й ступени абсорбера
|
Наименование
|
кг/ч
|
нм3/ч
|
|
Сухой коксовый
газ
|
45000
|
100000
|
|
Бензольные
углеводороды
|
3036
|
823
|
|
Сероводород
|
1501
|
988
|
|
Аммиак
|
42
|
56
|
|
Двуокись
углерода
|
83
|
43
|
|
Водяные пары
|
6024,5
|
7530
|
|
Итого
|
55761,5
|
109468
|
2. Циркулирующий раствор. Количество циркулирующего раствора,
выходящего из 1-й ступени абсорбера, обозначим G₂, кг/ч. Тогда общий
расход равен 55761,5 + G.
Приравнивая приход и расход, получим:
+ G = 55761,5 + G, или G = G + 452,5.
Второе уравнение для определения G и G получим исходя из
значений концентрации серной кислоты на входе и выходе из 1-й ступени абсорбции
и количества расходуемой серной кислоты в 1-й ступени.
Принимая концентрацию поступающего раствора 1,6% и выходящего
1%, получим уравнение:

+ Gк,
где Gк - количество кислоты, расходуемой в 1-й
ступени абсорбера, кг/ч.
Для связывания в 1-й ступени абсорбера 662 кг/ч аммиака
необходимо израсходовать серной кислоты 1908 кг/ч. Однако при разложении
сульфата пиридина, поступившего из 2-й ступени, освобождается серной кислоты
35,5 кг/ч.
Поэтому Gк = 1908 - 35,5 = 1872,5 кг/ч.
Таким образом, 1,6
G = G + 187250.
Решая приведенные два уравнения с неизвестными G и G₂, получим
G = 311329,5 кг/ч и G = 310877 кг/ч.
Объем поступающего раствора при плотности 1,24 кг/л будет
равен

нм3/ч.
Таблица 4 - Материальный баланс 1-й ступени абсорбции, кг/ч
|
Приход
|
Расход
|
|
статья
|
кг/ч
|
статья
|
кг/ч
|
|
Коксовый газ
Аммиачно-водяные пары Циркулирующий раствор
|
53656 1653
311329,5
|
Коксовый газ
Циркулирующий раствор
|
55761,5 310877
|
|
Итого
|
366638,5
|
Итого
|
366638,5
|
Таблица 5 - Тепловой баланс 1-й ступени абсорбции, кДж/ч:
|
Приход
|
Расход
|
|
статья
|
кДж/ч
|
статья
|
кДж/ч
|
|
|
|
|
Тепло коксового газа Тепло аммиачно-водяных паров Тепло
нейтрализации Тепло циркулирующего раствора 16 435 756 3 378 435 3 809
632 311329,5·0,7·58

4,19=52961508Тепло коксового газа
Тепло теряемое наружу
Тепло циркулирующего раствора7 963 464 +(595+ +0,438·58) 
6024

4,19 = 23 622 809
877·0,7·4,19
t =
|
= 911 802 t
|
|
|
|
|
Итого
|
76 585 331
|
Итого
|
23 790
409+911802 t
|
Приравнивая приход и расход тепла, получим температуру раствора
выходящего из 1-й ступени абсорбера, равную 57, 9 
, то есть примерно такую же, как и поступающего.
.2 Материальный и тепловой балансы сборника 1-й ступени
Приход.
В сборник абсорбера 1-й ступени поступают: циркулирующий
раствор из абсорбера, маточный раствор из центрифуги, переток из 2-й ступени
абсорбера, серная кислота, вода для пополнения цикла.
Схема материальных потоков показана на рисунке 4.
Определим количество этих потоков:
1. Количество раствора, поступающего из 1-й ступени
абсорбера, равно 310877-10655 = 300222 кг/ч.
2. Количество маточного раствора, поступающего из
центрифуги, равно 2933 кг/ч.
. Количество раствора, поступающего из 2-й ступени
абсорбера (переток), равно 832 кг/ч.
. Количество поступающей кислоты обозначим х1.
. Количество воды для пополнения цикла обозначим у1.
Общий приход равен 303987 + х1 + у1
Рисунок - 4 Схема материальных потоков абсорбера и сборника
1-й ступени
Расход.
Количество раствора, выводимого из сборника в циркуляцию,
равно 311 329,5 кг/ч.
Приравнивая приход и расход, получим:
х1 + у1 = 7342,5 кг/ч.
Для определения х1 и у1 составляем
баланс моногидрата серной кислоты.
Таблица 6 - Баланс моногидрата серной кислоты
|
Приход
|
Расход
|
|
Статья
|
кг/ч
|
Статья
|
кг/ч
|
|
С кислотой при
концентрации, равной 94% С маточным раствором из центрифуги В перетоке из
2-го абсорбера
|
0,94·x1 107
100
|
В растворе,
идущем в испаритель На реакцию с NH3 в 1-й ступени
|
107 1908
|
|
Итого
|
0,94·x1+242,5
|
Итого
|
2015
|
Приравнивая приход и расход, получим
,94·x1+242,5 = 2015.
Отсюда количество раствора кислоты х1 = 1885 кг/ч,
из них:моногидрата 1885 · 0,94 = 1772 и воды 113 кг/ч.
Количество воды, необходимой для пополнения цикла:
у1 = 7342,5 - 1885 = 5457,5 кг/ч.
Тепловой баланс сборника 1-й ступени.
Приход:
. Тепло, внесенное циркулирующим раствором:
= 300222 · 0,7 · 57,9 · 4,19 = 50 983 912 кДж/ч,
2. Тепло, внесенное маточным раствором при 50 
= 2933 · 0,64 · 50 · 4,19 = 393 257 кДж/ч,
где 0,64 - теплоемкость маточного раствора, ккал/(кг·град).
. Тепло, внесенное перетоком раствора из 2-й ступени
абсорбера:
3 = 832 · 0,79 · 50 · 4,19 = 137 700 кДж/ч,
где 0,79 - теплоемкость этого раствора, ккал/(кг·град).
. Тепло, внесенное кислотой:4 = 1885 · 0,37 ·
20 · 4,19 = 58446 кДж/ч,
где 0,37 - теплоемкость серной кислоты, ккал/(кг·град).
. Тепло, внесенное водой пополнения:5 = 5457,5
· 20 · 4,19 = 457 339 кДж/ч.
. Тепло разбавления серной кислоты от 94 до 1,6 %.
Тепло разбавления, приходящееся на 1 моль H₂SO4:
q = 17860·(
- 
кДж/кмоль H₂SO4;=

· 
= 335; n₂=
· 
= 0,348;= 17860 · (
кДж/кмоль HSO4,,
и на 1772 кг моногидрата:6 = 
кДж/ч.
Общий приход тепла:прих = 53 174 661 кДж/ч
Расход:
. Тепло, теряемое наружу (по практическим данным):7
= 167 600 кДж/ч.
. Тепло, уносимое циркулирующим раствором:
Q8 = 311 329,5· 4,19 · 0,7
t.
Итого, расход тепла: 167600 + 913 131
t.
Приравнивая приход и расход, получим:
174 661 = 167600 + 913 131
t,
отсюда устанавливается температура раствора t=58
.
.3
Материальный и тепловой балансы абсорбера 2-й ступени
Материальный расчет
Приход. 1. В абсорбер 2-й ступени поступает коксовый газ из
абсорбера 1-й ступени в следующем количестве, кг/ч:
Таблица 7 - Приход коксового газа во 2- ю ступень абсорбера
|
Наименование
|
кг/ч
|
|
Сухой коксовый
газ Бензольные углеводороды Сероводород Аммиак Двуокись углерода Водяные
пары
|
45000 3036 1501
42 83 6024,5
|
|
Итого
|
55761,5
|
2. Циркулирующий раствор из сборника 2-й ступени абсорбера.
Обозначим это количество через G3. Тогда общий приход равен:
55761,5 + G3.
Расход. 1. Коксовый газ.
Из имевшихся в коксовом газе 42 кг/ч аммиака поглощается 39
кг/ч и остается в газе 3 кг/ч.
Количество водяных паров, выходящих с газом из 2-й ступени
абсорбции Gв определяем исходя из того, что за счет тепла
нейтрализации и охлаждения газа от температуры 58
до 52
происходит испарение воды.
Величина Gв может быть определена по
уравнению:
Gв =
где Q - тепло, внесенное коксовым газом, кДж/ч;- тепло
реакции нейтрализации, кДж/ч;
Q - тепло, уносимое сухим коксовым газом из абсорбера при t=52
.
Тепло, внесенное коксовым газом Q = 23 622 809 кДж/ч.
Тепло реакции нейтрализации составляет
= 46 700 · 4,19 · 
= 223 625 кДж/ч,
где 46 700 - тепло реакции нейтрализации, ккал/кмоль H₂SO4.
Тепло, уносимое сухим коксовым газом:
= (45000 · 0,7 + 3036 · 0,246 + 1501 · 0,238 + 3· 0,508 + 83 ·
0,418) · 52· 4,19 = 7 111 779 кДж/ч.
Тогда:
в =

кг/ч.
Таким образом, общее количество газов, выходящих из 2-й ступени
абсорбции, равно:
Таблица 8 - Выход газа из 2 -й ступени абсорбера
|
Наименование
|
кг/ч
|
нм3/ч
|
|
Сухой коксовый
газ Бензольные углеводороды Сероводород Аммиак Двуокись углерода Водяные пары
|
45000 3036 1501
3 83 6465
|
100000 823 988
4 43 8081
|
|
Итого
|
56090
|
109939
|
2. Циркулирующий раствор.
Количество циркулирующего раствора, выходящего из 2-й ступени
абсорбера, обозначим G4 кг/ч.
Количество раствора, поступающего во 2-ю ступень абсорбера,
принимаем по объему равным количеству раствора, поступающего в 1-ю ступень
абсорбции, что обеспечивает одинаковую плотность орошения.
Так как объем раствора, поступающего в 1-ю ступень, равен 251
м3/ч, то масса раствора G при плотности 1,2 кг/л будет равна:4 =
301 200 - 328,5 = 300 871,5 кг/ч.
|
Приход
|
Расход
|
|
Статья
|
кг/ч
|
Статья
|
кг/ч
|
|
Коксовый газ
циркулирующий раствор
|
55761,5 301200
|
Коксовый газ
циркулирующий раствор
|
56090 300871,5
|
|
Итого
|
356961,5
|
Итого
|
356961,5
|
Таблица 10 - Тепловой баланс 2-й ступени абсорбера, кДж/ч:
|
Приход
|
Расход
|
|
Статья
|
кДж/ч
|
Статья
|
кДж/ч
|
|
|
|
|
Тепло коксового газа Тепло нейтрализации Тепло циркулирующего
раствора 23 622 809 223 625 301 200 
52 

0,7 
4,19 =
=45 937 81Тепло коксового газа
Тепло, теряемое наружу
Тепло циркулирующего раствора23 846 434
700
871,5
0,7 

4,19 =
|
= 882 456 t
|
|
|
|
|
Итого
|
69 784 253
|
Итого
|
23 972 134 +
882 456 t
|
Приравнивая приход и расход тепла, получим температуру раствора,
выходящего из 2-й ступени абсорбера в циркуляцию t = 51,9
.
4.4
Материальный и тепловой балансы сборника 2-й ступени абсорбера
Материальный расчет
Приход. В сборник абсорбера 2-й ступени поступают:
циркулирующий раствор из абсорбера, раствор из пиридиновой установки, серная
кислота, вода для пополнения цикла.
Схема материальных потоков показана на рисунке 5.
Определим количество материальных потоков:
1. Количество раствора, поступающего из пиридиновой
установки 1268,5 кг/ч.
2. Количество поступающей кислоты х2.
. Количество раствора, поступающего из абсорбера,
равно
300871,5 - 974 - 832 = 299065,5 кг/ч.
. Количество поступающей воды для пополнения цикла у2.
Общий приход 300 334 + х2 + у2.
Расход. Количество раствора, выходящего из сборника в
циркуляцию, равно301200 кг/ч.
Приравнивая приход и расход, получим:
х2 + у2 = 886 кг/ч.
Для определения х2 и у2 составим баланс
моногидрата серной кислоты
Таблица 15 - Баланс моногидрата серной кислоты
|
Приход
|
Расход
|
|
Статья
|
кг/ч
|
Статья
|
кг/ч
|
|
С кислотой при
концентрации, равной 94%
|
0,94·х2
|
Переток
раствора в 1-ю ступень В пиридиновую установку На реакцию с NH3 во
второй ступени
|
100 116 112
|
|
Итого
|
0,94·х2
|
Итого
|
422
|
Приравнивая приход и расход, получим
,94·х2 = 422
Отсюда количество раствора серной кислоты х2 = 448
кг/ч, из них: моногидрата 0,94 
448 = 421 кг/ч и воды 448 - 421 = 27 кг/ч.
Тогда количество воды, необходимое для пополнения цикла,
у2 = 866 - 448 = 418 кг/ч.
Рисунок 5 - Схема материальных потоков абсорбера и сборника
2-й ступени
Баланс кислоты и воды пополнения приведен в таблице 11,
материальный баланс сульфатной установки в таблице 12:
Таблица 11 - Баланс кислоты и воды пополнения
|
Компонент
|
Сборник 1
|
Сборник 2
|
Всего
|
Итого
|
|
H₂SO4
|
H2O
|
H₂SO4
|
H2O
|
H₂SO4
|
H2O
|
|
|
Раствор кислоты
Вода пополнения цикла
|
1772 -
|
113 5457,5
|
421 -
|
27 418
|
2193 -
|
140 5875,5
|
2333 5875,5
|
|
Всего
|
1772
|
5570,5
|
421
|
445
|
2193
|
6015,5
|
8208,5
|
Таблица 12 - Материальный баланс сульфатной установки
|
Приход
|
Расход
|
|
статья
|
кг/ч
|
статья
|
кг/ч
|
|
Коксовый газ
Аммиачно-водяные пары Серная кислота Промывная вода Вода для пополнения
циклов Обеспиридиненый раствор
|
53 656 1 653 2
333 150 5 875,5 1 268,5
|
Коксовый газ
Раствор для пиридиновой установки Сульфат аммония Испаряется в испарителе
|
56 090 974 3
014 4 858
|
|
Итого
|
64936
|
Итого
|
64936
|
.5 Определение размеров абсорберов 1-й и 2-й ступени
Количество газов и паров, поступающих в абсорбер, приведено в
таблице 13.
Объем поступающих газов при фактических условиях составит:

= (107001 
м3/ч,
где 906 - давление перед абсорбером, мм рт. ст.
Принимаем скорость газов в абсорбере 4 м/с. Тогда требуемое
сечение абсорбера:= 
м2
и диаметр абсорбера:= 
м.
Принимаем стандартный диаметр 3,2 м.
Таблица 13 - Количество паров и газов, поступающих в абсорбер
|
Компоненты
|
Из нагнетателя
|
Из дефлегматора
|
|
кг/ч
|
м3/ч
|
кг/ч
|
м3/ч
|
|
Сухой коксовый
газ Бензольные углеводороды Сероводород Двуокись углерода Аммиак Водяные пары
|
45 000 3036
1431 - 450 3699
|
100 000 823 941
- 600 4625
|
- - 70 83 254
1239
|
- - 46 43 339
1549
|
|
Итого
|
53 656
|
107 001
|
1653
|
1979
|
Объем абсорбера определяем из условий абсорбции аммиака по
уравнению:
где 
- объем поступающего газа, 
= 108 435 м3/ч.
К - коэффициент абсорбции аммиака серной кислотой в
распылительных аппаратах, по практическим данным, К = 5000 1/ч.
а1 и а2 - содержание аммиака в
поступающем и выходящем газе, г/м3.
Объем абсорбера 1-й ступени будет равен:

= 
= 59 м3,
тогда требуемая высота рабочей части абсорбера:
Размеры рабочей части абсорбера 2-й ступени абсорбции
остаются такими же, как и 1-й ступени, так как

,
где 
- содержание аммиака в газе, выходящем из 2 -й ступени абсорбции.
Следовательно:
Hраб= 2 
H = 2 
7,8= 15,6 м.
.
Расчет испарителя
5.1 Материальный расчёт
В испаритель поступает раствор из 1-й ступени абсорбера
следующего состава:
|
Компоненты
|
кг/ч
|
%
|
|
Сульфата
аммония
|
4262
|
40
|
|
Серной кислоты
|
107
|
1
|
|
Сульфата
пиридина
|
58
|
0,5
|
|
Воды
|
6228
|
58,5
|
|
Итого
|
10655
|
100
|
В испарителе испаряется вода в количестве 4858 кг/ч. Поэтому
из испарителя выходит пульпа следующего состава:
|
Компонентыкг/ч%
|
|
|
|
Сульфата
аммония
|
4262
|
73,5
|
|
Серной кислоты
|
107
|
1,8
|
|
Сульфата
пиридина
|
58
|
1
|
|
Воды
|
1370
|
23,7
|
|
Итого
|
5797
|
100
|
При отделении кристаллов сульфата аммония в количестве 3014
кг/ч после центрифуги остается маточного раствора 5797 - 3014 = 2783 кг/ч.
|
Компоненты
|
кг/ч
|
%
|
|
Сульфата
аммония
|
4262 - 2954
=1308
|
47
|
|
Серной кислоты
|
107
|
3,8
|
|
Сульфата
пиридина
|
58
|
2
|
|
Воды
|
1370 - 60 =
1310
|
47,2
|
|
Итого
|
2783
|
100
|
.2
Тепловой расчёт
Приход:
1) Тепло, вносимое раствором при температуре 57,9
:

= 10655
0,7
57,9
4,19= 1 809 439 кДж/ч
2) Тепло кристаллизации сульфата аммония

= (2600

) 
4,19 = 243 795 кДж/ч
где 2600- тепло кристаллизации, ккал/моль (
2SO4.
) Тепло греющего пара 
.
Итого приход: 
= 2 053 234 + 
.
Расход:
) Тепло, уносимое пульпой из испарителя:

= (2783 
0,64 + 3014
0,34) 
58 
4,19 = 681 885 кДж/ч.
2) Тепло, уносимое парами воды из испарителя:

= 4858 
615,9
4,19 = 12 536 656 кДж/ч,
где 615,9 - энтальпия пара, кДж/кг, при давлении в аппарате
равном 760 - 685 = 75 мм рт. ст.
) Тепло концентрирования серной кислоты незначительно
(от 1% до 3,8%) и им пренебрегаем.
) Тепло, теряемое наружу:

= 125 700 кДж/ч.
Общий расход тепла 13 344 241 кДж/ч.
Приравнивая приход и расход, получим тепло греющего пара

= 11 291 007 кДж/ч.
Принимая пар давлением 1,75 кГ/см2 с температурой 115
и теплотой конденсации 2221 кДж/кг, получим расход пара

кг/ч.
Подставляем значение 
и получаем следующий тепловой баланс представленный в таблице14:
Таблица 14 - Тепловой баланс испарителя
|
Приход
|
кДж/ч
|
Расход
|
кДж/ч
|
|
Тепло, вносимое
раствором
|
1 809 439
|
Тепло, уносимое
пульпой
|
681 885
|
|
Тепло
кристаллизации
|
243 795
|
Тепло, уносимое
парами воды
|
12 536 656
|
|
Тепло греющего
пара
|
11 291 007
|
Тепло теряемое
наружу
|
125 700
|
|
Итого
|
13 344 241
|
Итого
|
13 344 241
|
.3 Определение поверхности теплопередачи
Поверхность теплопередачи испарителя определяем по формуле
где 
- количество передаваемого тепла,

=11 291 007- 125 700 = 11 165 307 кДж/ч;

- разность температур в теплопередаче между парами и раствором,

= 115 - 58 = 57 
;

- коэффициент теплопередачи определяем по формуле

;

- коэффициент теплоотдачи от пара,
= 41 900 кДж/(м2
ч 
);

- термическое сопротивление стенок трубок; этой величиной
пренебрегаем;

- термическое сопротивление загрязнений, принимаем равным

м2
/кДж;

- коэффициент теплоотдачи от стенки к кипящему раствору определяем
по приближенному уравнению 
,
здесь q - тепловой поток; q = K 

.
Задаемся q = 19 400 ккал/(м2 
или 81286 кДж/(м2 
, тогда

,
Проверяем значение q:= K 

= 1426,07 
57 = 81 286 кДж/(м2 
,
то есть 
и K вычислены правильно.
Необходимая поверхность теплопередачи

.
Принимаем трубки диаметром 57/4 мм и длиной 1,5 м.
Тогда требуемое число трубок
Принимаем 613 трубок, размещаемых на 13 шестиугольниках [7].
Тогда диаметр трубчатки будет равен
= 2 
(x
t + t’),
где x - число шестиугольников x= 13;- шаг размещения трубок, t =
0,08 м [7];’ - расстояние от кожуха, t’ = 0,06 м[7].
Тогда = 2 
(13
0,08 + 0,06) = 2,2 м.
6.
Расчет центробежного насоса для подачи циркулирующего раствора на в первую
ступень абсорбера
Исходные данные:
- расход маточного раствора, Q м3/с
- 0,07 нм3/с;
- длина всасывающего трубопровода, lвс,
- 5 м;
- на всасывающем трубопроводе установлены: 2 отвода по углом 90
и 2 прямоточных вентиля;
- длинна нагнетательного трубопровода, lнагн, - 20 м;
- на нагнетательном трубопроводе установлены: 4 отвода под углом 90
и 2
прямоточных вентиля,
- геометрическая высота подъема, Hг, - 10 м;
- давление в абсорбере - 906 мм рт. ст.
- давление в сборнике - атмосферное.
- плотность маточного раствора 
= 1240 кг/м3.
- вязкость маточного раствора 
= 0,58
10-3 Па 
с.
- абсолютная шероховатость трубопровода 
= 0,2 мм.
Проверить возможность установки насоса на высоте 4 м над
уровнем маточного раствора в жидкости.
Расчёт расхода маточного раствора:
Принимаем по рекомендациям [8] скорость воды в трубопроводе 1
м/с. Тогда диаметр трубопровода рассчитываем по уравнению:
d = 
,
где 
- скорость раствора в трубопроводе, м/с получаем: = 
= 0,299 м.
Полученный
диаметр трубопровода округляется до ближайшего стандартного значения. Принимаем
к установлению трубопровод диаметром 291
4 мм с внутренним диаметром 283 мм[8].
Критерий
Рейнольдса для раствора в трубопроводе находим по формуле:
= 
,
где ρ и μ - соответственно плотность и динамическая
вязкость маточного раствора при температуре 580С [9].
Тогда: = 
>10000 - режим устойчивый турбулентный.
Относительная
шероховатость трубопровода определяется по формуле:
ε = 
= 1415.
где Δ
- абсолютная шероховатость
трубопровода, определяется по дополнительной литературе [9].
Коэффициент
трения λ определяем
по рис 1.5 [9]. Отсюда λ = 0,0185.
Определяем сумму
коэффициентов местных сопротивлений отдельно для всасывающей и нагнетательной
линии [9].
Для всасывающей
лини:
. Вход в
трубу (принимаем с закруглёнными краями): 
.
. Отводы
под ушлом 90
: коэффициент А = 1,0, коэффициент В = 0,09; 
.
. Прямоточные
вентили: при D мм = 283,
.
Сумма коэффициентов местных сопротивлений во всасывающей
линии
Потерянный напор во всасывающей линии находим по формуле
Для нагнетательной линии:
1. Отводы под углом 90
: А = 1,0, В = 0,09; 
.
. Прямоточные вентили: 
.
. Выход из трубы: 
Сумма коэффициентов местных сопротивлений в нагнетательной
линии
Потерянный напор в нагнетательной линии:
Общие потери напора:
Находим напор насоса по формуле:
Полезную мощность насоса определим по формуле:
Принимая 
(для центробежного насоса средней производительности) мощность на
валу двигателя найдём по формуле:
Установленную мощность электродвигателя с учетом пусковых
перегрузок находят по формуле:
где β - коэффициент
запаса мощности [8].
Находим:уст = 1,2 · 17 = 20,4 кВт.
По полученным характеристикам выбираем тип центробежного насоса в
каталоге и его электродвигатель. Принимаем к установлению центробежный насос с
такими характеристиками [8]:
Марка Х280/29 Q=0,08 м3/с; Н=21 м; n=24,15 с-1;

. Электродвигатель типа АО2-11-4 с номинальной мощностью Nн=
40 кВт.
Выводы
Курсовой проект посвященный проектированию сульфатного
отделения цеха улавливания №1 в условиях ПАО “Авдеевский КХЗ”.
В описательной части приведены физико-химические основы
процесса абсорбции, описание технологической схемы, основное оборудование
сульфатного отделения.
В расчетной части представлен расчет аммиачного абсорбера для
улавливания аммиака и коксового газа с дальнейшим получением сульфата аммония,
с характеристиками: Н=7,8м, Нраб = 15,6, D=3,2 м. Так же произведен
расчет испарителя и расчет насоса для подачи циркулирующего раствора на 1-ю
ступень абсорбера. Насос принимаем марки Х280/29.
Список использованных источников
1. Мениович
Б.И., Лейбович Р.Е. Аппаратчик коксохимического производства. - М.:
Металлургия, 1987. - 408 с.
. Гребенюк
А.Ф., Коробчанский В.И., Власов Г.А., Кауфман С.И. Улавливание химических
продуктов коксования. - Донецк.: Восточный издательский дом, 2002.-228 с
. Постоянный
технологический регламент Цеха Улавливания № 1 ТР 080-2002
. Плановский
А.Н., Рамм В. М., Каган С. З. Процессы и аппараты химической технологии. - М.:
Химия, 1968.- 848 с.
. Ткачев
В.С., Остапенко М.А. Оборудование коксохимических заводов. - М.:
Металлургия,1983. - 360 с
. Мухленов
И.П., Кузнецов Д.А. Общая химическая технология. - М.: Высшая школа, 1964.- 630
с.
. Коробчанский
И. Е., Кузнецов М. Д. Расчёты аппаратуры для улавливания химических продуктов
коксования. - М.: Металлургия, 1972.- 296 с
. Основные
процессы и аппараты химической технологии/Под редакцией Дытнерского Ю.И., 2 -е
изд., перераб. и дополн. - М.: Химия, 1991. - 468 с.
. Павлов
К.Ф., Романков П.Г., Носков А.А. Примеры и задачи по курсу процессов и
аппаратов химической промышленности. - Ленинград.: Химия, 1987.