Выбор и расчет основных показателей системы золошлакоудаления
Министерство образования и науки
Российской Федерации
ИРКУТСКИЙ ГОСУДАРСТВЕННЫЙ ТЕХНИЧЕСКИЙ
УНИВЕРСИТЕТ
Кафедра теплоэнергетики
ПОЯСНИТЕЛЬНАЯ ЗАПИСКА
к курсовой работе по дисциплине
«Газоочистка и газозолоудаление»
Выбор и расчет основных показателей
системы золошлакоудаления
Выполнил студент группы ТЭ-10-1
Голубев А.Ю.
Нормоконтроль Т.В. Коваль
Иркутск 2014 г.
Содержание
Введение
. Краткая характеристика котельной
2.
Выбор системы золоулавливания
3. Выбор оптимального варианта системы золошлакоудаления
. Расчет основных показателей системы золошлакоулавливания
. Компановка системы газоочистки
. Расчет газового тракта
. Выбор дымососов
Список использованных источников
Введение
Сжигание твердых топлив сопровождается образованием группы веществ,
способных интенсивно загрязнять водные бассейны, грунтовые воды, почву, а
значит отрицательно влиять и на жизнь человека. Для высокозольных топлив это,
прежде всего зола и шлак, содержащие в своем составе разнообразные ядовитые
примеси, соединения ванадия, мышьяк, ртуть, радиоактивные элементы.
При контакте золы и шлака с водой при мокром золоулавливании в
скрубберах, при транспорте их в виде пульпы в системе гидрозолоудаления (ГЗУ)
вода растворяет различные соединения, приобретая в зависимости от состава золы
кислый или щелочной характер. Сброс такой воды без соответствующей очистки или
нейтрализации опасен как для водоемов, так и для почвы.
В настоящее время на большинстве электростанций зола и шлак удаляются
гидравлическим способом и складируются в золоотвалах. Широкое распространение
гидрозолошлакоудаления объясняется рядом присущих ему достоинств: непрерывным
удалением большого количества золошлаковых материалов на значительные
расстояния, совмещением процессов грануляции и транспорта шлака, обеспечением
полной механизации всего процесса перемещения и укладки в отвал, использованием
сравнительно простого и надежного в работе оборудования.
Этот способ имеет недостатки, заключающиеся в большом расходе воды (10-30
м3 на 1 тонну золошлака) и в загрязнении природных водоемов водами систем ГЗУ,
содержащими токсичные вещества. Поэтому в последнее время активно используют
оборотную систему водоснабжения.
Утилизация золошлаковых материалов представляет важную задачу как в плане
более полного использования промышленных отходов так и с точки зрения охраны
окружающей среды Основными направлениями использования являются производство
цемента, железобетонных конструкций, в дорожном строительстве, сельском
хозяйстве и в других отраслях.
Сжигание твердого топлива на ТЭС, особенно с повышенной зольностью,
приводит к ежегодному выходу более сотен миллионов тонн золы и шлака. Надежное
и экономичное удаление и транспортирование золошлаковых материалов, создание
экологически безвредных золоотвалов и бессточных систем золоудаления,
использование золы и шлака в различных промышленных целях являются важными
аспектами в области теплоэнергетики.
1. Краткая
характеристика котельной
котельная
золошлакоудаление газоочистка
Котельная предназначена для обеспечения бесперебойного и качественного
теплоснабжения одного из районов г. Красноярска.
В котельной установлены 4 котла БКЗ-75-39. В качестве расчетного топлива
принят бурый уголь марки 1Б Боготольского месторождения.
Для технологических нужд используется вода из водохранилища р. Енисей.
Котельные агрегаты оборудованы (каждый) двумя дутьевыми вентиляторами и
двумя дымососами.
Система удаления золы и шлака - пневматическая.
Описание и конструктивные характеристики котла БКЗ-75-39ФБ
Котельный агрегат вертикально-водотрубный однобарабанный с естественной
циркуляцией П-образной компоновки, оборудован шахтно-мельничной топкой [1].
Паропроизводительность - 75 т/ч.
Давление пара на выходе из котла - 3,92 МПа (39 кгс/см2).
Температура перегретого пара - 440 оС.
Температура уходящих газов - 150 ○С
Температура питательной воды - 145 оС.
При сжигании бурых углей и фрезерного торфа топка оборудуется двумя
шахтными мельницами. Пылеугольные горелки и мельницы располагаются на фронтовой
стене.
Топочная камера объемом 454 м3 полностью экранирована трубами d=60×3 мм или d=60×4 мм, изготовленными из стали 20.
Трубы фронтового и заднего экранов в нижней части образуют холодную воронку.
Трубы заднего экрана в верхней части топки разведены в 4-рядный фестон.
Фронтальный экран имеет 68 экранных труб (1-я панель - 26; 2-я - 16 и 3-я
- 31 трубу) с шагом 90 мм. Задний экран имеет 82 экранные трубы (1-я панель -
36, 2-я - 20 и 3-я - 31 трубу) с шагом 75 мм. Каждый боковой экран состоит из
трех панелей. Первая панель имеет 18, вторая - 38 и третья - 21 экранную трубу,
шаг между трубами у этих панелей составляет 90 мм. На каждой стене экраны
секционированы на три независимых циркуляционных контура.
Рисунок 1 - Циркуляционная схема котла БКЗ-75-3,9-440: 1 - барабан; 2 -
выносные циклоны; 3, 4, 5, 6, 7 - коллекторы; 8, 9 - ступени конвективного
пароперегревателя; 10 - поверхностный регулятор перегрева; 11 - промежуточные
камеры; 12 - выходная камера пароперегревателя
Котел имеет барабан изготовленный из стали 16ГС с внутренним диаметром
1500 мм и толщиной стенки 36 мм. Схема испарения котла - трехступенчатая,
рассчитана на питание водой с солесодержанием до 350 мг/л. Фронтовой, задний и
передние панели боковых экранов образуют чистый отсек (1-я ступень испарения),
панели которого замкнуты на центральную часть барабана. Во вторую ступень
испарения выделены средние панели боковых экранов, которые замкнуты на торцы
барабана. Следует отметить, что в барабане котла в качестве сепараторов пара
(как в первой, так и во второй ступени испарения) установлены внутрибарабанные
циклоны.
В третью ступень испарения включены 3 панели боковых экранов, замкнутые
на два выносных циклона d=377×15 мм.
Пароперегреватель конвективный, вертикально-змеевикового типа,
двухступенчатый, с поверхностным регулятором перегрева, включенным в рассечку
между ступенями. Вторая ступень пароперегревателя по ширине котла состоит из
трех пакетов. Схема движения пара по змеевикам представлена на рис. 2.
Рисунок 2 - Схема пароперегревателя: 1 - поверхностный регулятор
перегрева; 2, 4 - промежуточные камеры пароперегревателя; 3 - выходная камера
пароперегревателя
Первая ступень пароперегревателя располагается непосредственно за
фестоном и состоит из 72 змеевиков d=38×3 мм. Пар, нагретый в первой ступени
пароперегревателя, поступает в поверхностный регулятор перегрева.
Далее пар по 10 пароперепускным трубам d=38×5 мм поступает в две промежуточные
камеры второй ступени пароперегревателя, причем пар из левой части регулятора
перегрева поступает в правую камеру, а из правой - в левую. Переброс пара
выполнен с целью снижения возможного температурного перекоса по ширине газохода
котла.
Из промежуточных камер пар по змеевикам d=36×2 мм противотоком поступает в
перемешивающую камеру и из средней ее части по 36 змеевикам (прямотоком)
поступает в выходную камеру перегретого пара.
Поверхность нагрева пароперегревателя первой ступени составляет 220 м2, а
второй ступени в зависимости от вида сжигаемого топлива от 200 до 500 м2.
Пароперегреватель выполнен из стали 20.
В опускной шахте котла в рассечку расположены конвективные поверхности
нагрева - водяной экономайзер и воздухоподогреватель - двухступенчатая
компоновка хвостовых поверхностей нагрева. В зависимости от вида сжигаемого
топлива поверхности нагрева водяного экономайзера и воздухоподогревателя могут
быть различными по величине.
Водяной экономайзер - кипящего типа, гладкотрубный, скомпонован из
двухзаходных змеевиков, расположенных в шахматном порядке; выполнен из труб d=32×3 мм из стали 20.
На котле установлен трубчатый воздухоподогреватель вертикального типа,
выполненный из труб d=40×1,5 мм из стали 3, причем «горячая»
часть ВЗП размещена между ступенями ВЭК. ВЗП одноходовый по дымовым газам и
четырехходовый по воздуху, расположение труб - шахматное.
Котлоагрегат оборудован устройством дробеочистки поверхностей нагрева
водяного экономайзера и воздухоподогревателя, а также защитой от дробевого
наклепа. Очистка экранов топки и пароперегревателя производится стационарными
обдувочными устройствами.
. Выбор
системы золоулавливания
Эффективность работы газоочистных устройств во многом зависит от
физико-химических свойств улавливаемой золы и поступающих в золоуловитель
дымовых газов.
Основные характеристики золы: плотность, дисперсный (фракционный) состав,
абразивность, электрическое сопротивление (для электрофильтров), слипаемость
(для мокрых золоуловителей).
Различают плотности: истинную, присущую материалу, из которого состоит
пыль, насыпную и кажущуюся.
Насыпная плотность, в отличие от истинной, учитывает наличие воздушных
зазоров между частицами свеженасыпанной золы (пыли). Величиной насыпной
плотности пользуются для определения объема, который занимает зола (пыль) в
бункерах. С увеличением однородности по размерам частиц насыпная плотность
уменьшается, так как увеличивается относительный объем воздушных прослоек.
Кажущаяся плотность - это отношение массы частицы к занимаемому ею
объему, включая поры и пустоты.
Для выбора и расчета золоуловителей большое значение имеет распределение
частиц по размерам - дисперсный состав. О частицах судят по размеру наименьшего
отверстия сита, через которое частица диаметром d проходит при просеивании.
Дисперсный (фракционный) состав летучей золы во многом зависит от
дисперсного состава сжигаемой угольной пыли, поступающей после размольного
устройства в топку. Фракционный состав золы боготольского угля из [2] приведен
в приложении А.
Частицы большинства промышленных пылей имеют неправильную форму, часто
форму осколков, неправильных многогранников. Лишь в отдельных случаях частицы
пыли, в особенности получившиеся в результате конденсации паров (возгоны) или
оплавленные при высоких температурах, имеют шарообразную форму.
Образовавшиеся в результате того или иного технологического процесса
частицы (обычно их называют первичными) при своем движении по газоходам
коагулируют, в результате чего образуются более крупные (так называемые
вторичные) частицы. Последние имеют весьма рыхлое строение, так как первичные
частицы упаковываются таким образом, что пустоты между ними имеют во много раз
больший объем, чем сами частицы.
Коагуляция происходит под действием внутренних сил (взаимное притяжение,
броуновское движение частиц) и внешних сил, в поле действия которых попадает
аэрозоль (гравитация, инерция, разность электрических потенциалов).
Для золоулавливания существенное значение имеет так же свойство
слипаемости золы. По слипаемости зола делится на четыре группы: не слипающаяся
(I), слабо слипающаяся (II), среднеслипающаяся (III) и сильнослипающаяся (IV).
Слипаемость золы зависит от ее удельной поверхности, температуры,
влажности, электризации, поэтому одна и та же зола (пыль) может себя вести как
сильно слипающаяся или не слипающаяся в различных условиях.
Интенсивность абразивного износа золоуловителей зависит от твердости,
размера, формы и плотности частиц. Абразивность золы характеризуется
коэффициентом а, который определяет утонение стенки поперечно обтекаемой трубы
из стали 20 в местах ее максимального износа при концентрации частиц 1 г/м3 и
скорости потока 1 м/с, при равномерном распределении поля скоростей и
концентрации, при комнатной температуре в течение 1 ч.
Зола топлив с содержанием оксидов кремния и алюминия (SiO2+Аl2О3) > 63% обладает повышенными абразивными свойствами.
Опыт электрической очистки газов показывает, что высокое удельное
электрическое сопротивление (ρv) слоя частиц золы (пыли)
существенно влияет на эффективность работы электрофильтров.
Критическое значение удельного сопротивления, выше которого
характеристики электрофильтра при неудовлетворительном режиме встряхивания
быстро ухудшаются, приблизительно составляет 2∙1010 Ом·м.
Снижение КПД электрофильтров при этом связано с возникновением обратной
короны на осадительных электродах, нейтрализацией заряда частиц в рабочем
пространстве аппарата и уменьшением величины пробивного напряжения, а также
перераспределением рабочего напряжения между разрядным промежутком и слоем золы
(пыли).
Зависимость удельного электрического сопротивления слоя частиц золы
(пыли), их электропроводности, от температуры и влажности газа, а также
некоторых других факторов, используется в практике электро-газоочистки для
соответствующей подготовки (кондиционирования) газов перед электрофильтрами с
целью улучшения их работы.
При удельном электрическом сопротивлении слоя золы (пыли) ниже 1033 - 10
4 Ом∙м частицы быстро теряют заряд, приобретенный от коронирующих
электродов, и затем приобретают заряд у осадительных электродов.
Если электрические силы, возникающие из-за вновь приобретенного заряда,
оказываются достаточно велики, чтобы преодолеть силы сцепления, то осажденные
частицы снова возвращаются в поток газов, увеличивая вторичный унос уловленной
золы (пыли).
Коэффициент электрофизических свойств золы (Кф) является аналогом
удельного электрического сопротивления, используется для выбора скорости газов
и расчета электрофильтра при отсутствии значения ρv и зависит от влажности топлива. Чем
выше влажность газов, тем ниже коэффициент электрофизических свойств,
следовательно, уменьшается удельное электрическое сопротивление.
Величина Кф по [2] определяется соотношением содержания абразивно действующих
и повышающих ρv компонентов (SiO2 +
Аl2О3) золы к содержанию конденсирующих
(снижающих ρv) компонентов топлива (Wр, Нр, Sр) и топочных газов (Н2О,
SОx).
Коэффициент электрофизических свойств золы для боготольского угля
[(SiO2+Al2O3)А р]/[(W р+9Н р)S р]=
[(37+13)·6,7]/[(44+9·2,4)·0,5]=10,2<100
Поэтому скорость газов может быть увеличена до 1,6-1,8 м/с.
Котельные, сжигающие твердое топливо, должны быть оборудованы
золоулавливающими установками (ЗУУ) в том случае, когда условная характеристика
[2]
=AрB³5000 ,
где Aр - содержание золы в рабочей массе топлива, %; B - максимальный
часовой расчетный расход топлива, кг/ч.
Так как в нашем случае N=6,7∙15768=105645,5
> 5000, то установка золоулавливающих аппаратов необходима.
Выбор ЗУУ осуществляется в зависимости от вида сжигаемого топлива и
мощности котла.
Применение мокрых золоуловителей не рекомендуется [2], когда:
содержание оксидов кальция СаО в золе более 12-15 %, так как зола
обладает вяжущими свойствами;
Апр(СаО)2 > 190 кг/МДж, так как существует опасность образования
отложений карбонатов кальция в системах золоулавливания и гидрозолоудаления;
в топливе величины приведенного содержания серы Sпр > 0,3 %/(МДж/кг) и
жесткости воды >15 мг-экв/л, так как необходима нейтрализация гидрозоловой
пульпы после скрубберов, что сопряжено со значительными затратами;
необходимо обеспечить более эффективное рассеивание дымовых газов в
атмосфере, так как дымовые газы после мокрых золоуловителей имеют более низкую
температуру, что снижает высоту подъема факела;
сжигают в котлах торф, что объясняется повышенным содержанием оксидов
кальция СаO в золе - до 30-35 %.
Мокрые золоуловители при сжигании боготольского угля в котлах
БКЗ-75-39 устанавливать не следует, так как:
содержание оксидов кальция СаО=28 %;
жесткость воды водохранилища р. Енисей - 2,6 мг-экв/л;
приведенная сернистость топлива
пр=Sр/Qрн=0,5/11,81= 0,042 %/(МДж/кг);
Произведение
Апр(СаО)2=(Ар/Qрн)(СаО)2=(6,7/11,81)(28)2=444,78 кг/МДж.
Кроме того, в результате расчетов сухих и мокрых золоуловителей [2]
требуемую степень очистки дымовых газов 99,0% обеспечивает только
электрофильтр.
КПД электрофильтра типа ЭГА1-14-7,5-4-3 в соответствии с его
ориентировочным расчетом составляет 99,75 %. Кроме того, при использовании
сухих золоуловителей, в нашем случае электрофильтра, улучшаются условия
рассеивания топочных газов (см. выше по тексту).
Широкое применение электрофильтров для улавливания твердых и жидких
частиц обусловлено их универсальностью и невысокой стоимостью очистки газов при
сравнительно низких энергозатратах. Установки электрической очистки газов
работают с эффективностью до 99 %, а в ряде случаев и до 99,99 %.
Гидравлическое сопротивление правильно спроектированного электрофильтра
не превышает 100-150 Па, то есть является минимальным по сравнению с другими
газоочистными аппаратами [2]. Затраты электроэнергии составляют обычно 0,36-1,8
МДж (0,01-0,5 кВт∙ч) на 1 тыс. м3 газа.
Рисунок 3 - Установка золоуловителя ЭГА1-14-7,5-6-3: 1 - корпус
электрофильтра; 2 - теплоизоляция электрофильтра; 3 - конфузор; 4 -
теплоизоляция конфузора и диффузора; 5 - диффузор; 6 - направляющие лопатки; 7
- люк заглушка
Преимущественной областью применения электрофильтров является очистка
больших объемов газа, отходящих от современных агрегатов большой мощности,
единичной производительностью по газу свыше 1 млн. м3/ч. В ряде случаев
электрофильтры используются для очистки и меньших объемов газа из-за отсутствия
других технических средств.
К недостаткам электрофильтров относят высокую чувствительность процесса
электрической очистки газов к отклонениям от заданного технологического режима,
а также к незначительным механическим дефектам внутреннего оборудования.
Для очистки газов от золы принимаем к установке в котельной по два
электрофильтра типа ЭГА1-14-7,5-4-3 [2] на котел, один из которых показан на
рис. 3. В табл. 1 приведены технические характеристики выбранного
золоуловителя.
Таблица 1 - Техническая характеристика электрофильтра ЭГА1-14-7,5-4-3
|
Тип электрофильтра
|
ЭГА1-14-7,5-4-3
|
|
Активная высота
электрофильтра, м
|
7,5
|
|
Активная длина поля, м
|
2,56
|
|
Площадь активного сечения,
м2
|
28,7
|
|
Общая площадь осаждения, м2
|
2480
|
|
Число параллельных секций
|
1
|
|
Число газовых проходов
|
14
|
|
Число элементов в
осадительном электроде
|
4
|
|
Число полей по длине
электрофильтра
|
3
|
|
Габаритные размеры, м
|
длина
|
13,44
|
|
ширина (по осям опор)
|
4,4
|
|
высота
|
13,9
|
3. Выбор
оптимального варианта системы золошлакоудаления
Для удаления шлака, образующегося в топках котлов, и золы, уловленной
золоуловителями, и их транспорта до золошлакоотвала могут применяться вода или
воздух.
При использовании в качестве транспортирующего агента воды, система
называется гидравлической системой золошлакоудаления (ГЗУ). Она имеет следующие
преимущества: транспорт больших количеств пульпы на дальние расстояния;
способность обеспечить нормальные санитарно-гигиенические условия труда в
помещении цеха, экономичная (особенно с багерными насосами), может быть
выполнена любой производительности, что обуславливает ее перспективность при
увеличении мощности станции. Этой системе также присущи такие недостатки как
значительный расход воды на смыв золы и шлака и их транспорт; наличие
золоотвалов, опасных для окружающей среды и занимающих большие площади;
контроль над пульпопроводами в зимнее время; опасность коррозии и заноса
оборудования минеральными отложениями при транспорте высокощелочной золы.
Различают основные системы гидрозолоудаления: а) совместный
гидротранспорт шлака и золы багерными насосами или по самотечным каналам; б)
раздельный гидротранспорт, когда шлаковую пульпу транспортируют багерными
насосами, а золовую пульпу - шламовыми, либо и шлак и золу транспортируют по
отдельным самотечным каналам.
Раздельное удаление и складирование золы и шлака применяют: а) при
благоприятных местных условиях, когда более экономична подача шлака на
имеющийся вблизи электростанции отвал, а золы - в отвал на более далеком
расстоянии; б) при наличии соответствующих требований использования шлака и
золы для различных целей, когда смешение их недопустимо.
В системах пневмозолоудаления (ПЗУ) транспортирующим агентом для золы
является воздух. Эта система может быть напорная, вакуумная (всасывающая) или
смешанного типа. Она имеет следующие достоинства: позволяет использовать
золошлаковые материалы и избавиться от золоотвалов; отсутствие загрязненных
сточных вод; нет потребления больших расходов воды. Недостатки: невозможность
дальнего транспорта золы; сложна конструктивно и требует больших
эксплуатационных расходов; стоимость удаления золы выше, чем при гидравлическом
удалении.
Для выбора системы ЗШУ необходимо учитывать величину свободной щелочности
(содержание оксидов кальция) золы топлива из [5]
Щ = 134·CaO = 134·28=3752 мг-экв/кг > 2000
мг-экв/кг.
Так как Щ>2000 мг-экв/кг, то неизбежны отложения малорастворимых солей
(оксида кальция, (би)карбоната и сульфата кальция) в системе оборотного
водоснабжения.
В зависимости от содержания CaO и основных показателей гидравлической активности (модуля основности,
силикатного модуля и коэффициента качества) определяются приоритетные
направления использования золы в различных отраслях народного хозяйства.
Модуль основности
Силикатный
модуль
Коэффициент
качества
Данные
ЗШО можно отнести к первой группе классификации золошлаковых материалов (ЗШМ) -
активные (самотвердеющий материал). Возможные области использования: дамбы
золоотвалов, вяжущие и добавки, изделия автоклавного твердения.
ЗШМ
этой группы являются основными и обладают вяжущими свойствами, материал данной
группы схватывается и затвердевает быстрее и имеет высокую прочность при
затвердевании.
К
классификации по технологическим свойствам рассчитываемые ЗШМ относятся к
первому классу, так как СаО=3,8% и потери массы при проваливании (ППП)
составляют менее 10%.
Использование
ЗШМ в индустрии: автоклавный и неавтоклавный ячеистый бетон, зола-бетон,
жаростойкий бетон, замена песка в тяжелых бетонах, мелкое заполнение в легких
бетонах, строительный растворы, компонент шихты строительной керамики,
производство шлакоблок, производство агломерата и зольного гравия, дорожное
строительство
Для удаления золы от электрофильтров принимаем пневматическую систему
золошлакоудаления.
Для удаления шлака применяем гидравлическую систему, которая также используется
для удаления золы после системы ПЗУ (при этом выбираем раздельный транспорт
золы и шлака в пределах котельного цеха по самотечным каналам и совместный
гидротранспорт золы и шлака до золоотвала). Таким образом котельная имеет
комбинированную систему удаления золы и шлака.
Пневмозолоудаление осуществляем по всасывающей (вакуумной) схеме (рис.
4), при которой вся система находится под разрежением, создаваемым
вакуум-насосами. Она более проста, компактна, герметична (отсутствует пыление)
в отличие от напорной сиситемы пневмозолоудаления.
Зола от золовых бункеров электрофильтров через пневмослоевые затворы
подается по пневмозолопроводам с помощью воздуха струйными аппаратами в
осадительную станцию (циклон-осадитель). В ней происходит разделение золовоздушной
смеси: очищенный воздух подается в газоходы котлов, а осажденная в циклонах
зола через мигалки поступает в золовые бункеры (емкость для сбора золы, силос)
и далее в золосмывной аппарат, смешивается с водой и сбрасывается в золовой
канал. Если зола будет полезно использоваться, то в золовых бункерах она будет
накапливаться и далее вывозиться к потребителям специальными цементовозами или
железнодорожными вагонами. Схема вакуумной системы пневмозолоудаления
представлена на рис. 4 из [6].
Рисунок 4 - Схема вакуумной системы ПЗУ с вакуумным насосом: 1 -
золоуловитель; 2 - аппарат золоудаления; 3 - кран; 4 - циклон-осадитель; 5 -
емкость для сбора золы; 6 - очистка воздуха; 8 - пневмозолопровод; 10 - подача
воздуха; 11 - мокрая очистка золы; 12 - вакуумный насос
В вакуумных системах на транспорт 1 тонны золы расходуется 50-100 кг
воздуха при скорости потока в золопроводах (при диаметре 100-250 мм) около 20
м/с. Разрежение, создаваемое вакуум-насосами, должно быть 30-40 кПа. Транспорт
золы может производиться на расстояние до 200 м при подъеме до 30 м.
4. Расчет
основных показателей системы золошлакоудаления
Расчет основных показателей гидравлической системы золошлакоудаления
ведем согласно [5] при совместном удалении золы и шлака.
Массовый выход шлака от 4-х котлов составит
=0,01∙4·19052,3·
(6,7+
0,05=275,94 кг/ч=0,275 т/ч.
Массовый
выход золы от 4-х котлов определяется по формуле
=0,01∙4·19052,3·(6,7+
0,9975·0,95=5229,82 кг/ч= =5,229 т/ч.
Общее
массовое количество золы и шлака от 4-х котлов
т/ч.
где
В=19052,3 кг/ч - расход топлива; Aр=6,7% - зольность топлива;
=1,5% - потеря тепла от механического недожога;
=11810 кДж/кг - низшая расчетная теплота сгорания
топлива; 32700 кДж/кг - теплота сгорания кокса;
=0,95 -
доля золы топлива в уносе;
=1-
=1-0,95=0,05 - доля золы топлива в шлаке;
=0,9975 - КПД золоуловителя (см. приложение А1).
Расчет механизмов золошлакоудаления
Для удаления шлака современные энергетические котлы оборудованы
механизированными шлакоудаляющими установками непрерывного действия: шнековыми,
роторными или скребковыми транспортерами. Широкое применение получили
шлакоудаляющие устройства со шнековыми транспортерами.
Для удаления шлака из под топок котлов принимаем шнековый транспортер.
Уровень воды в шлаковой ванне под топкой должен быть такой, чтобы
исключить присосы воздуха в топку котла.
Производительность шнекового транспортера
=
47·(0,62-0,32)·0,6·2,5·0,7·0,9∙0,13=1,56 т/ч,
где
D=0,6 м и d=0,3 м - диаметры витка и вала
шнека, м; S=(0,8-1)D - шаг витков, м; n - частота
вращения, мин-1;
=0,7 - коэффициент при угле наклона шнека к горизонту
=15˚;
=0,9 т/м3
- насыпная плотность сухого шлака;
=0,13 -
коэффициент заполнения шнека шлаком.
Принимаем
d=0,3 м; D=2d=2·0,3=0,6 м; S=1∙0,6=0,6
м; n=2,5 мин-1.
Потребляемая
мощность шнековым транспортером
=0,096
кВт,
где
l=6 м - длина шнека;
=3,5 -
коэффициент сопротивления.
Мощность
электродвигателя
кВт,
где
2 - коэффициент запаса; 0,32 - произведение КПД редуктора и передачи.
Число
транспортеров
=1,
где
с - коэффициент запаса (принимается 5-7).
Расход
воды на охлаждение шлака в ванне при твердом шлакоудалении
,
где
- количество теплоты, относимое водой при охлаждении
шлака, кДж/кг;
- теплоемкость шлака, кДж/(кг·К);
=600˚С - начальная температура шлака;
=70˚С - конечная температура шлака (равна
);
=10˚С
- начальная температура воды, подаваемой на охлаждение (принимается в пределах
6-20˚С);
=70˚С - конечная температура воды, сливаемой из
ванны.
=0,932·(600-70)=493,96
кДж/кг;
=0,832+0,000167·600
=0,932 кДж/(кг·К).
Расчет
аэрожелоба
Задаемся шириной и подачей аэрожелоба по таблице 1 из []
b=100
мм, G=11 т/ч.
Насыпная плотность золы для Канско-ачинского угля по таблице 2 из []
=1,3
т/м3.
Высоту
слоя и среднюю плотность аэропульпы определяем по рис. 14 и рис. 15
соответственно из []
hП=80 мм,
=0,8 т/м3.
Гидравлический радиус
0,0308 м,
где
b - ширина аэрожелоба, мм; hП - высота слоя
аэропульпы, м .
Коэффициент
Шези
55,99,
где
п - коэффициент шероховатости (зависит от материала п=0,01); у - показатель
степени (зависит от коэффициента шероховатости и гидравлического радиуса).
.
Скорость движения аэропульпы в аэрожелобе
м/ч,
где
I = i/100 - угол наклона.
Высота
слоя аэропульпы
м,
Подача
аэрожелоба
т/ч,
где
- скорость движения аэропульпы в аэрожелобе, м/ч;
- высота слоя аэропульпы, м;
- ширина аэрожелоба, м;
- средняя плотность аэропульпы, т/м3.
Сопротивление слоя аэропульпы и удельный расход воздуха на 1м2 определяем
по рис. 16 из []
кПа; qуд=69
м3/(ч∙м2).
Расход
воздуха на аэрожелоб
м3/ч,
где
S - площадь воздухораспределительной установки, м2; К1
- коэффициент учитывающий потери воздуха в аэрожелобе.
Количество
воздуха, движущегося над аэропульпой
м3/ч.
Количество
аэропульпы в транспортной камере аэрожжелоба
м3/ч.
Высота
пространства для воздуха над аэропульпой
м.
где
- оптимальная скорость воздуха над аэропульпой 5-6
м/с.
Общая
высота транспортной камеры
м.
Высота
воздухоподводящей камеры
м.
где
- скорость воздуха в воздухоподводящей камере 6-10
м/с.
Определение параметров шлакозоловых каналов
Каналы для безнапорного транспорта золы и шлака (самотечные) расположены
в полу внутри помещения котельного цеха с уклоном 1,5% для шлаковых и 1% для золовых
каналов.
После шлакоудаляющих установок шлак с водой подается в шлаковые каналы,
по которому транспортируется в пульпоприемные бункеры багерных насосных. Зола с
золоулавливающих установок через золосмывные аппараты электрофильтров вместе с
водой сбрасывается в каналы и далее транспортируется смывной водой в
пульпоприемные бункеры багерных насосных. Транспорт золы и шлака по каналам
производится смывной водой, подаваемой через смывные сопла.
Для снижения износа каналы облицовываны базальтом.
Для предотвращения выпадения твердой фракции из потока пульпы в каналах
устанавливаются побудительные сопла с расходом воды 2,5-42 м3/ч, диаметром
сопел 8-20 мм, напором воды в соплах 20-100 м вод.ст.
Расстояние между соплами определяется в зависимости от напора воды и
диаметра сопел (таблица 2).
Таблица 2 - Зависимость расстояний между сопел, в зависимости от напора
воды и диаметра сопел
|
Напор Н, МПа
|
1,0
|
0,8
|
0,7
|
0,6
|
0,5
|
|
Диаметр d,
мм
|
10
|
12
|
14
|
16
|
18
|
|
Расстояние l,
м
|
20
|
15
|
10
|
7
|
5
|
Для самотечного транспорта пульпы поток должен обладать «силой влечения»
H/м2.
где
кг/м3 - удельный вес воды; i=1,5 - уклон
канала; R=0,2 м - гидравлический радиус (принимаем).
Скорость
движения потока по каналу
м/с.
где
n=0,01 - шероховатость базальта.
Трассу
каналов стараются делать с минимальным количеством поворотов, которые должны
иметь радиус не менее 2-х метров.
Каналы
в пределах котельного цеха выполняются раздельно для транспортировки золы и
шлака. В целях безопасности каналы должны иметь перекрытие с полом котельной.
Для предотвращения повреждения багерных насосов или забивания горловины
гидроаппаратов или эрлифтов перед ними устанавливают металоуловители.
Зависимость пропускной способности канала от уклона и радиуса (таблица 3).
Таблица
3 - Зависимость от угла уклона канала
|
Наименование величин
|
Уклон канала
|
|
1,5
|
2
|
|
Условный гидравлический
радиус, мм
|
150
|
200
|
225
|
150
|
200
|
225
|
|
Пропуск пульпы V,
м3/ч пульпы
|
400
|
600
|
1000
|
500
|
1200
|
Гидравлический расчет пульпопроводов
При транспорте шлакозоловой пульпы от багерной насосной до золоотвала
диаметр пульпопровода определяется
,
где
- объемный расход пульпы, м3/ч;
- минимальная скорость шлакозоловой пульпы, м/с.
Объемный расход пульпы
,
где
- расход воды, кг/ч;
=2500
кг/м3 - средняя плотность золы и шлака (принимаем);
кг/м3 - плотность воды.
Расход
воды составляет
=
=15·(0,275+5,229)·1000=82560
кг/ч,
где
15 м3/т золошлаковых отходов (ЗШО) - удельный расход воды на 1 тонну ЗШО
(принимается 15-20 м3/т ЗШО).
Массовая
консистенция пульпы
С=
6,49 %
Приведенная
массовая консистенция пульпы
Спр=
=0,05·6,49=0,325 %,
процентное
содержание шлака в общем весовом расходе шлака и золы.
Скорость
шлакозоловой пульпы определяется по формуле
=
,
где
- минимальная скорость шлакозоловой пульпы для
эталонного шлака, которая зависит от массовой консистенции пульпы, м/с;
- коэффициент, учитывающий влияние физических свойств
шлака, зависит от плотности и массовой пористости шлака n.
При
С=0,325 % -
=1,7 м/с.
Массовую
пористость шлака для расчета при твердом шлакоудалении принимаем n=40%.
При
n=40% и
=2,5 т/м3
-
=1.
Тогда
=1,7·1=1,7 м/с.
0,133
м=133 мм.
Принимаем
ближайший стандартный диаметр пульпопровода
=200 мм.
Полное
гидравлическое сопротивление всей трассы пульпопровода
,
где
ξ
- коэффициент местных сопротивлений
(принимаем 0,08); λ - коэффициент сопротивления трения пульпопровода (при
=1,7 м/с и С=0,325 % -
=0,00365);
- скорость шлакозоловой пульпы, м/с; l -
длина трассы, принимаем 2000 м; D - диаметр пульпопровода, м; ρп - плотность пульпы, т/м3; h - коэффициент
высоты подъема трассы от оси насоса до оси пульпопровода в месте выпуска пульпы
на золошлакоотвал, принебрегаем.
Плотность
пульпы
т/м3.
Полное
гидравлическое сопротивление всей трассы пульпопровода
6,85 м
вод. ст.=68,5 Па.
Выбираем
багерный насос типа НЦС-1 производительностью 120 м3/ч по воде, напором 11,3 м
вод. ст. и мощностью 7,5 кВт [9], который покрывает расчетный расход пульпы
84,76 м3/ч и полное гидравлическое сопротивление всей трассы Н=6,85 м вод. ст.
Для обеспечения бесперебойной работы системы шлакозолоудаления устанавливают
три багерных насоса, из которых один находится в работе, второй - в резерве,
третий - в ремонте.
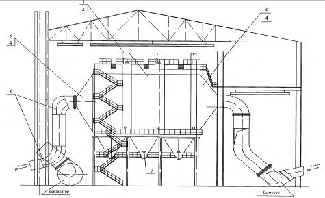
5. Компоновка
системы газоочистки
На рисунке 5 представлена схема коллекторной компоновки газоочистительных
сооружений, имеющая четыре котельных агрегата, четыре электрофильтра и
тягодутьевые машины, и два собирающих коллектора.
Рисунок 5 - Схема коллекторной компоновки газоочистительных сооружений:
КА - котлоагрегат; ЭФ - электрофильтр; ДС - дымосос; СК - собирающий коллектор;
ДТ - дымовая труба
Расстояние от котла до золоуловителя
м.
Расстояние
от золоуловителя до дымовой трубы
м.
Расстояние
от котла до дымососа
м.
Расстояние
от дымососа до дымовой трубы
м.
.
Расчет газового тракта
Для
упрощения расчетов газового тракта все сопротивления рассчитываются для сухого
воздуха при нормальных условиях и приведенной плотности
=0,123 кг/м3.
Расчет
перепада полных давлений по газовому тракту (под разряжением)
,
где
=40 Па - разряжение на выходе из топки;
- суммарное сопротивление газового тракта; Нс -
величина самотяги, определяется для любого участка газового тракта, включая
дымовую трубу.
Суммарное
сопротивление газового тракта
,
где
- приведенная плотность дымовых газов;
- среднее эффективное давление по газовому тракту;
- суммарное расчетное сопротивление всего газового
тракта без поправок.
Приведенная
плотность дымовых газов

0,133
кг/м3,
где
α=1,33 - коэффициент избытка воздуха, принимается равным αух; Vг = 5,139 м3/кг - объем газов при αух=1,33;
=3,31
м3/кг - объем воздуха при α =1.
Среднее
эффективное давление по газовому тракту
,
где
hбар=755 мм рт.ст.=100641,5 Па - среднее
барометрическое давление в зависимости от высоты расположения котельной над
уровнем моря;
- сумма расчетных сопротивлений всасывающего тракта
без поправок.
Величина
состоит из суммы сопротивлений трактов от котла до
электрофильтра
, самого электрофильтра
, от
электрофильтра до дымососа
.
Сопротивления
участков тракта до и после электрофильтра
6,65 мм
вод. ст.=66,5 Па,
где
=10 м/с - скорость газов в газоходах до
электрофильтра, от электрофильтра до дымососа и после дымососа до коллектора,
принимаем по условиям абразивного износа.
Сумма
расчетных сопротивлений всасывающего тракта для четырех ниток
=4·(6,65+10+6,65)=93,2
мм вод. ст.=932 Па.
Среднее
эффективное давление по газовому тракту
751,6 мм
рт. ст.=10018,92 мм вод. ст.=100189,2 Па.
Сопротивление
нагнетательного тракта после дымососа до собирательного коллектора принимаем
=
=66,5 Па.
Сопротивление
одного собирательного коллектора
мм вод.
ст.=5,99 Па,
Сопротивление
нагнетательного тракта от собирательного коллектора до дымовой трубы принимаем
5,99 Па.
Суммарное
сопротивление газового тракта для 4 ниток
мм вод.
ст.=955,7 Па;
=93,2+0,599=93,799
мм вод. ст.=937,99 Па.
Поправка
на запыленность газов
учитывается
при условии
>1,4. В нашем случае
= 0,63
< 1,4, поэтому поправку на запыленность газов не учитываем.
Величина
самотяги определяется для любого участка газового тракта, включая дымовую трубу
=
;
,
где
Н - расстояние по вертикали между серединами конечного и начального участков
тракта; 0,123 - приведенная плотность наружного воздуха при НФУ.
Температура
газов перед дымососом
где
- присосы воздуха в газоход на утечки между
воздухоподогревателем и дымососом.
На
рисунке 7 представлена схема газового тракта
Рисунок
7 - Участки тракта и расстояния в метрах по вертикали между ними
Самотяга
для участка от котла до электрофильтра для одной нитки
=2,55 мм
вод. ст.=25,5 Па.
Для
участка от электрофильтра до дымососа
-1,32 мм
вод. ст.= -13,2 Па.
Для
участка от дымососа до собирательного коллектора
0,66 мм
вод. ст.=6,6 Па.
Для
участка от собирательного коллектора до дымовой трубы
0.
Для
дымовой трубы
=30,47 мм
вод. ст.=304,7 Па.
Суммарная
cамотяга газового тракта для 4 ниток
=4·2,55+4·(-1,32)+4·0,66+0+30,47=38,03
мм вод. ст.=380,3 Па;
мм вод.
ст.= Па.
Сопротивление
трения в дымовой трубе
мм
вод.ст.=37,7 Па,
где
= 0,05 - среднее значение коэффициента сопротивления
трения (для железобетонной трубы); i = 0,02 - значение уклона в
трубы, принимается;
м/с - скорость газов на выходе из дымовой трубы .
Сопротивление
с выходной скоростью
мм вод.
ст.=120,54Па,
где
=1 - коэффициент местных сопротивлений, принимается.
Сопротивление
дымовой трубы
мм вод. ст.=158,24
Па.
Проверим
достаточность развиваемой трубой тяги, при условии, что высота дымовой трубы
задана
,
где
- расчетная величина самотяги трубы;
- расчетное cопротивление трубы; 1,2 -
коэффициент запаса по тяге.
Сравним
теперь левую и правую часть.
,
.
Условие
не выполняется, поэтому необходима установка мощного дымососа.
.
Выбор дымососа
Выбор
дымососа сводится к подбору его для обеспечения необходимой производительности
и давления, определенных при расчете газового тракта и при оптимальном
потреблении им электроэнергии при эксплуатации.
Для
обеспечения надежной работы котельного агрегата при колебаниях барометрического
давления, изменении качества топлива, изменении сопротивления газового тракта -
вводятся коэффициенты запаса:
по
производительности
=0,1;
по
давлению
= 1,2;
по
расчетной мощности электродвигателя
=1,05.
Производительность
дымососа
м3/с,
где
- расход газа при номинальной нагрузке;
=0,1 - коэффициент запаса по производительности.
Расход
газа при номинальной нагрузке
м3/с,
где
- объем дымовых газов;
=0,01 - присосы воздуха на участке от котла до
дымососа;
- объем воздуха;
- температура газов на входе в дымосос.
Производительность
одного дымососа по которому осуществляется выбор типоразмера машины
м3/с.
Расчетный
напор дымососа
мм вод.
ст.=738,5 Па.
Расчетная
мощность двигателя
где

- КПД
дымососа.
Выбираем
дымососы Бийского котельного завода ДН-9 производительностью 14000 м3/ч каждый
и напором 1,78 кПа, КПД 83%.[6] (по одному дымососу на котел). Каждый дымосос
дублируется.
Список
использованных источников
1. Голубев А.Ю. Курсовая работа по дисциплине «Котельные
установки и парогенераторы» на тему: «Поверочный тепловой расчет парового котла
БКЗ-75-39 на угле Боготольского месторождения Канско-Ачинского бассейна», 2013.
. Картавская В.М., Картавский В. В., Коваль Т.В. Основы
промышленной экологии. Расчет золоулавливающих установок: учеб. пособие. -
Иркутск: Изд-во ИрГТУ, 2006. - 132 с.
. Картавская В.М., Коваль Т.В.Основы промышленной экологии.
Оценка ущерба от выбросов загрязняющих веществ в атмосферу: учеб. пособие. -
Иркутск: Изд-во ИрГТУ, 2007. - 196 с.
.СанПиН 2.2.1/2.1.1.1031-01 Санитарно-защитные зоны и
санитарная классификация предприятий, сооружений и иных объектов. - М.:
Федеральный центр госсанэпиднадзора Минздрава России, 2001. - 43 с.