Выбор и проектирование заготовок
Содержание
Введение
Термины и определения
Семестровая работа №1
Проектирование заготовки для заданной детали из заданной марки
стали методом свободной ковки на молоте (ГОСТ 7829)
Пример выполнения работы
Проверка выполнимости концевых и промежуточных уступов, фланца и
выемки
Семестровая работа №2
Проектирование заготовки для заданной детали из заданной марки
стали методом свободной ковки на прессе (ГОСТ 7062)
Пример выполнения работы
Назначение основных и дополнительных припусков и предельных
отклонений
Проверка выполнимости концевых и промежуточных уступов, фланца и
выемки
Список литературы
Введение
Важным этапом разработки технологического процесса
механической обработки является расчет припусков.
Установление правильных размеров припусков на обработку -
ответственная технико-экономическая задача.
Назначение чрезмерно больших припусков приводит к
непроизводительным потерям материала, превращаемого в стружку, увеличению
трудоемкости механической обработки; повышению расхода режущего инструмента и
электрической энергии; возрастанию потребности в оборудовании и рабочей силе.
При этом затрудняется построение операций на настроенных станках, снижается
точность обработки в связи с увеличением отжатий в технологической системе.
Недостаточно большие припуски не обеспечивают удаления
дефектных слоев материала и необходимой точности и шероховатости обрабатываемых
поверхностей, вызывают ужесточение требований к точности исходных заготовок и
приводят к удорожанию последних, затрудняют разметку и выверку положения заготовок
на станках по методу пробных ходов, увеличивают опасность появления брака.
В методических указаниях изложен опытно-статистический метод
установления припусков при различных методах получения заготовок.
При изучении специальных дисциплин, таких как "Технология
машиностроения", "Технологическая оснастка",
"Металлорежущий инструмент", студентам приходится решать вопросы
проектирования технологических процессов обработки деталей, конструирования
технологической оснастки и режущих инструментов. Решение этих задач невозможно
без освоения дисциплины "Выбор и проектирование заготовок".
Методические указания включают две семестровых работы и
данные из стандартов по видам заготовок - поковки.
заготовка припуск отклонение деталь
В методических указаниях определены цель, содержание и
методика выполнения семестровых работ, приводятся примеры выполнения,
необходимые справочные материалы или ссылки на справочную литературу.
Задания выдаются преподавателем. Каждая семестровая работа
выполняется на листах формата А4 с титульным листом, страницы нумеруются,
приводится список литературы.
Термины и
определения
Припуск - предусмотренное превышение размеров поковки
против номинальных размеров детали или предварительно ободранной заготовки,
обеспечивающее после обработки резанием требуемые чертежом размеры детали
(ободранной заготовки) и чистоту ее поверхности.
Напуск - увеличение припуска, упрощающее конфигурацию
поковки ввиду невозможности или нерентабельности изготовления поковки по
контуру детали.
Допуск на кузнечную обработку - разность между
наибольшим и наименьшим предельными размерами поковки.
Верхнее отклонение на размер - разница между
наибольшим предельным и номинальным размерами поковки.
Нижнее отклонение на размер - разница между
номинальным и нижним предельным размерами поковки.
Бурт - неконцевой участок поковки увеличенного
поперечного сечения, у которого длина равна или меньше 0,3D или 0,3B, где D - диаметр бурта, B - большая сторона
прямоугольника.
Уступ - участок поковки с меньшим поперечным сечением,
чем смежный с ним участок. Для поковок типа вал величина уступа выражается
полуразностью диаметров смежных участков.
Выступ - участок поковки с большим поперечным сечением,
чем смежный с ним участок.
Выемка - участок поковки, диаметр или сторона которого
меньше диаметра или сторон двух смежных с ним участков.
Фланец - концевой участок вала, увеличенного диаметра
или стороны прямоугольника, у которого длина l ≤ 0,3D или l ≤ 0,3 H, где D - диаметр фланца, H - большая сторона
прямоугольника.
Поковка стальная штампованная (поковка) - изделие,
изготовленное горячей объемной штамповкой в соответствии с техническими
требованиями ГОСТ 8479.
Масса поковки - весовой параметр поковки, определяемый
исходя из ее формы и плотности стали.
Радиальное биение - разность наибольшего и
наименьшего расстояний от профиля сечения поковки до его оси.
Допуск радиального биения - наибольшее допускаемое
значение радиального биения.
Масса поковки расчетная - установленная
величина, используемая при назначении припусков и допусков.
Исходный индекс - условный показатель, учитывающий в
обобщенном виде сумму конструктивных характеристик (класс точности, группу
стали, степень сложности, конфигурацию поверхности разъема) и массу поковки.
Семестровая
работа №1
Проектирование
заготовки для заданной детали из заданной марки стали методом свободной ковки
на молоте (ГОСТ 7829)
. ЦЕЛЬ РАБОТЫ
Изучить методику назначения припусков и предельных отклонений
на механическую обработку, установленных ГОСТ 7829, для поковок изготовляемых
из углеродистой и легированной сталей ковкой на молотах.
2. СОДЕРЖАНИЕ РАБОТЫ
1. Освоить методику назначения припусков предельных
отклонений на механическую обработку, определения напусков и возможности
выполнения на поковках концевых и промежуточных уступов, выемок, фланцев и буртов.
. Выполнить расчетное задание.
3. ТЕОРЕТИЧЕСКАЯ ЧАСТЬ
.1 Свободная ковка на молотах
Свободная ковка это процесс пластической деформации,
нагретого до определенной температуры металла, происходящий под действием
последовательных ударов бойка молота.
При машинной ковке процесс формообразования поковки
происходит под ударами падающих частей ковочных молотов (бабы, штока, поршня и
бойка).
По виду привода различают молоты паровоздушные,
пневматические, механические и гидравлические. В кузнечном производстве в
основном применяются паровоздушные (приводятся в действие за счет использования
энергии пара или сжатого воздуха) и пневматические (работают за счет энергии
разряжения и сжатия воздуха, находящегося между рабочим и компрессорным
поршнями) ковочные молоты различных конструкций.
В зависимости от конструкции станин паровоздушные молоты
могут иметь массу падающих частей от 1 до 8 т.
Отечественные пневматические молоты выпускаются с массой
падающих частей от 50 до 1000 кг.
Ковка не только изменяет форму и размеры обрабатываемого
металла, но и способствует улучшению его структуры и механических свойств. Она
измельчает и уплотняет зерна, устраняет внутренние раковины и пористости.
Свободная ковка обычно применяется для получения единичных
поковок различной формы и размеров, а также при изготовлении небольших партий
поковок.
Данный метод является универсальным для изготовления поковок
на молотах или прессах. Ковкой получают заготовки для самых разнообразных
деталей массой от 10 граммов до 250 тонн, с точностью размеров по 15…16-му
квалитетам (допуски составляют 3…30 мм), шероховатостью поверхности до Rz
80 мкм.
В местах сложной конфигурации приходится прибегать к напускам
для упрощения формы, что увеличивает объем механической обработки.
Недостатки ковки: низкая производительность; высокая
стоимость оборудования; низкая точность и высокая шероховатость поверхности
(необходима механическая обработка, следовательно - увеличивается расход
металла); высокие затраты энергии, связанные с нагревом заготовки; требуется
высококвалифицированная рабочая сила.
Достоинство ковки: это единственный метод получения особо
крупных изделий, к которым предъявляются особые требования к качеству
внутренней кристаллической структуры, при эксплуатации с высокими механическими
нагрузками.
Термины и определения, применяемые в методических указаниях,
приведены на странице 5.
3.2 Припуски на механическую обработку резанием,
величины предельных отклонений, величины и условия назначения напусков на
поковки, изготовляемые ковкой на молотах
Припуски на механическую обработку резанием, величину
предельных отклонений на номинальные размеры, а также величину и условия
назначения напусков для поковок общего назначения, изготовляемых из
углеродистой и легированной прокатной стали или начерно обработанного слитка
производят по ГОСТ 7829 для ковки на молотах в единичном и мелкосерийном
производстве.
Форма и соотношение размеров основных типов поковок по
табл.1.
Припуски назначают на номинальные размеры детали из расчета
механической обработки поковок с двух сторон.
Предельные отклонения устанавливаются на номинальные размеры
поковок.
Допускается округлять расчетные номинальные размеры поковки
до ближайших целых чисел в большую сторону.
Объем и вес поковок определяется по номинальным размерам с
учетом напусков на скосы между уступами, на скос от руба, на сферу и на
конусность отверстия.
Таблица 1 - Основные типы поковок
|
Тип поковки
|
Эскиз поковки
|
Соотношение
размеров
|
Номер таблиц
припусков и допусков
|
Круглого сечения с уступами
L > 1,5 D
l > 0,3 D
|
2, 3
|
|
|
|
|
|
|
|
Круглого сечения с фланцем
L > 1,5 D
|
l
≤ 0,3 D
|
|
|
|
|
Круглого
сечения с буртом
|
|
|
|
Круглого сечения с выемкой
L > 1,5 D
Припуски и предельные отклонения для поковок круглого и
квадратного сечений с уступами назначаются основные и дополнительные.
Основные припуски z и предельные отклонения ±T/2 на диаметр и размер
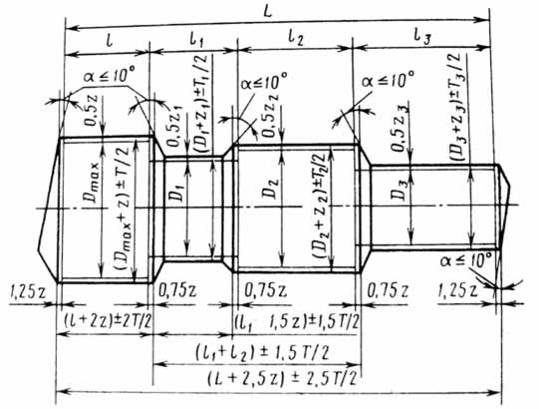
сечения устанавливают в соответствии с рис.1 и табл.2.
Длину уступов и выемок на чертеже поковки указывают от единой
базы. За базу принимают торец выступа наибольшего сечения, не являющийся торцом
поковки.
Таблица 2 - Припуски и предельные отклонения поковок, мм
|
Длина детали, L мм
|
Диаметр детали D или размер сечения B, H, мм
|
|
до 50
|
св.50 до 70
|
св.70 до 90
|
св.90 до120
|
св.120 до 160
|
св.160 до 200
|
св. 200 до 250
|
св.250 до 300
|
св.300 до 390
|
|
Припуски (z; z1;
z2; z3) и предельные отклонения (±T/2; ±T1/2;
±T2/2; ±T3/2)
|
|
До 250
|
5±2
|
6±2
|
7±2
|
8±3
|
9±3
|
-
|
-
|
-
|
-
|
|
Св.250 до 500
|
6±2
|
7±2
|
8±2
|
9±3
|
10±3
|
11±3
|
12±3
|
13±4
|
14±4
|
|
Св.500 до 800
|
7±2
|
8±2
|
9±3
|
10±3
|
11±3
|
12±3
|
13±4
|
14±4
|
15±4
|
|
Св.800 до 1200
|
8±2
|
9±3
|
10±3
|
11±3
|
12±3
|
13±4
|
14±4
|
15±4
|
16±4
|
|
Св.1200 до 1700
|
-
|
10±3
|
11±3
|
21±4
|
13±4
|
14±4
|
15±4
|
16±5
|
17±5
|
|
Св.1700 до 2300
|
-
|
11±3
|
12±3
|
13±4
|
14±4
|
15±4
|
16±5
|
17±5
|
18±5
|
|
Св.2300 до 3000
|
-
|
-
|
13±4
|
14±4
|
15±4
|
16±5
|
17±5
|
18±5
|
19±5
|
|
Св.3000 до 4000
|
-
|
-
|
-
|
15±5
|
16±5
|
17±5
|
18±5
|
19±5
|
20±6
|
|
Св.4000 до 5000
|
-
|
-
|
-
|
16±5
|
17±5
|
18±5
|
19±5
|
20±6
|
21±6
|
|
Св.5000 до 6000
|
-
|
-
|
-
|
-
|
18±5
|
19±5
|
20±6
|
21±6
|
22±6
|
|
|
|
|
|
|
|
|
|
|
|
|
|
Дополнительный припуск S назначают по табл.3 на
диаметры (размеры) всех сечений детали, кроме основного, в зависимости от
разности диаметров (размеров) наибольшего и рассматриваемого сечений детали, с
назначенными на нее основными припусками.
Рисунок 1 - Поковка вала с уступами и выемками
Основное сечение определяют в следующем
порядке:
если поковка имеет ступень с необрабатываемой поверхностью,
то за основное сечение принимают ступень с необрабатываемой поверхностью;
если у поковки нет ступеней с необрабатываемой поверхностью,
то для определения основного сечения рассчитывают площади продольных сечений
ступеней D'1. l'1; D'2. l'2; D'3. l'3; … и сравнивают их с
площадью продольного сечения выступа с наибольшим диаметром D'max. l';
Таблица 3 - Дополнительный припуск S на диаметры (размеры)
всех сечений, кроме основного, мм
|
Разность
диаметров наибольшего и рассматриваемого сечений, мм
|
До 40
|
Св.40 до 80
|
Св.80 до100
|
Св.100 до 120
|
Св.120 до 140
|
Св.140 до 160
|
Св.160 до 180
|
Св. 180
|
|
Дополнительный
припуск на диаметр S1, S2,
S3
|
3
|
4
|
5
|
6
|
7
|
8
|
9
|
10
|
если все полученные значения D'1. l'1; D'2. l'2; D'3. l'3; … меньше, чем D'max. l', то за основное сечение
принимают выступ с наибольшим диаметром;
если есть значения D'1. l'1; D'2. l'2; D'3. l'3; … большие, чем D'max. l', то для тех значений D'1. l'1; D'2. l'2; D'3. l'3; … которые больше D'max. l', рассчитывают величины:
A1 = S1 (D'1. l'1 - D'max. l');2 =
S2 (D'2. l'2 - D'max. l') и т.д.
и за основное сечение принимают сечение, для которого
величина А имеет наибольшее значение;
если за основное сечение принят не выступ наибольшего
диаметра D'max, то дополнительный припуск переносят с основного
сечения на выступ наибольшего диаметра.
Выполнимость на поковках концевых и промежуточных уступов,
выемок, фланцев и буртов (рис.2) проверяют после назначения основных и
дополнительных припусков в соответствии с табл.4.
Таблица 4 - Минимальная выполнимая высота уступа
|
Диаметр (D'1; D'2; D'3), мм
|
До100
|
Св.100 до 180
|
Св.180 до 250
|
Св.250
|
|
Минимальная
выполнимая высота уступа (h'1; h'2; h'3), мм
|
4
|
5
|
6
|
7
|
Концевые и промежуточные уступы (рис.2, а)
выполняют, если их высоты h'1; h'2; h'3; … не менее значений, приведенных в табл.4, и
если их длина l'1; l'2; l'3 по отношению к ширине бойка Вб составляет
величину не менее, указанной в табл.5.
При этом: если высота h'1; h'2; h'3; … уступа менее
значений, указанных в табл.4, то уступ отковывают по диаметру соседнего
выступа;
если длина уступа менее значений, приведенных в табл.5, то
его отковывают в том случае, когда объем напуска при доведении его длины до
выполнимой меньше, чем объем напуска при отковке его по диаметру соседнего
выступа.
Таблица 5 - Минимальная длина выполнимого уступа
|
Ширина бойка Bб, мм
|
До 150
|
Св.150 до 300
|
Св.300
|
|
Минимальная
длина выполнимого уступа (l1'; l2'; l3'), мм
|
0,3 Bб
|
0,4 Bб
|
0,5 Bб
|
Выемку (рис.2, б) выполняют, если длина l2'' между засечками (рис.2, в)
перед ковкой выемки по отношению к ширине бойка Bб составляет величину не
менее указанной в табл.6;
если длина l2'' участка поковки, присекаемого для получения
выемки, менее указанной в табл.6, то на диаметр выемки назначают напуск из
расчета, чтобы длина присечки l2'' была равна соответствующему значению в табл.6.
Таблица 6 - Минимальная длина участка между засечками
|
Ширина бойка Bб, мм
|
До 300
|
Св.300 до 400
|
Св.400
|
|
Минимальная
длина участка между засечками l2'', мм
|
0,5 Bб
|
0,7 Bб
|
Bб
|
Фланец (рис.2, г) выполняют, если его длина l' более высоты выступа h'1, взятой с коэффициентом
1,2, но не менее 0,2D';
если длина l'1 фланца меньше высоты выступа h'1, взятой с коэффициентом
1,2 или меньше 0,2D', то длину фланца доводят до выполнимого размера
за счет напуска со стороны торца или со стороны уступа, исходя из условий
минимального объема напуска;
Бурт (рис.2, г) выполняют, если его длина l' более высоты h'2 меньшего прилегающего
уступа, но не менее 0,2D';
если длина бурта l' менее высоты h'2 меньшего прилегающего уступа
или менее 0,2D', то длину бурта l' доводят до выполняемого
размера за счет напуска со стороны любого из торцов из условия, чтобы объем
напуска был минимальным.
Рисунок 2 - Примеры поковок с уступами, выемками, фланцами и
буртами (соответственно а - г)
Пример
выполнения работы
Тема: Проектирование заготовки для заданной детали из
заданной марки стали методом свободной ковки на молотах (по ГОСТ 7829).
Задание: Назначить основные и дополнительные припуски и
предельные отклонения. Проверить выполнимость концевых и промежуточных уступов,
буртов, фланцев и выемок для поковки круглого сечения с уступами.
Исходные данные:
Изделие "Вал с уступами" (рис. 4.1).
Производство - единичное.
Материал - Сталь 20 ГОСТ 1050-88.
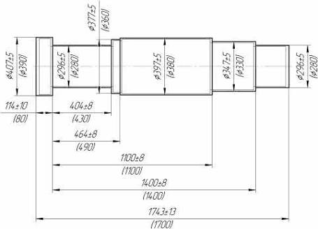
Рисунок 4.1 - Вал с уступами
Решение:
) Материал детали - конструкционная низкоуглеродистая
качественная сталь 20 ГОСТ 1050.
Химический состав, механические, физические и технологические
свойства конструкционной качественной углеродистой стали 20 в табл.4.1, 4.2,
4.3, 4.4 соответственно.
Таблица 4.1 - Химический состав материала сталь 20, (%)
|
C
|
Si
|
Mn
|
Ni
|
S
|
P
|
Cr
|
Cu
|
N
|
|
0,17.0,23
|
0,17… 0,37
|
0,5… 0,8
|
до 0,3
|
до 0,035
|
до 0,035
|
0,15… 0,35
|
до 0,3
|
до 0,008
|
Таблица 4.2 - Механические свойства материала
|
Марка стали
|
Временное
сопротивление разрыву, σв, МПа
|
Предел
текучести, σт, МПа
|
Относительное
удлинение, δ, %
|
|
Сталь 20
|
412
|
245
|
25
|
Таблица 4.3 - Физические свойства материала сталь20
|
Плотность γ, г/см3
|
Теплопроводность
λ, Вт/
(м.°С)
|
Коэффициент
линейного расширения α.106,
1/°С
|
|
7,82
|
770
|
11,1
|
Таблица 4.4 - Технологические свойства материала сталь 20
|
Свариваемость:
|
весьма высокая
|
|
Интервал
температур ковки,°С
|
800-1280
|
|
Пластичность
при холодной обработке
|
высокая
|
|
Обрабатываемость
резанием
|
высокая
|
|
Обработка
давлением
|
высокая
|
2) Выбор припусков и допусков поковки вала
с уступами (рис.4.1).
Назначение основных и дополнительных припусков и предельных
отклонений:
а) Основной припуск z и предельные отклонения ±T/2 на диаметр назначают
по рис.1 и табл.2, в зависимости от общей длины детали L и диаметра D (по табл.1):
на диаметр 390 мм припуск и предельное отклонение (17 ± 5)
мм;
на диаметр 280 мм припуск и предельное отклонение (16 ± 5)
мм;
на диаметр 360 мм припуск и предельное отклонение (17 ± 5)
мм;
на диаметр 380 мм припуск и предельное отклонение (17 ± 5)
мм;
на диаметр 330 мм припуск и предельное отклонение (17 ± 5)
мм;
на диаметр 280 мм припуск и предельное отклонение (16 ± 5)
мм.
б) Припуски и предельные отклонения на длину уступов и общую
длину детали назначают в соответствии с рис.1, при этом длина уступов
указывается от единой базы (за базу принят торец выступа диаметром 390 мм, не
являющийся торцом поковки):
на длину 80 мм припуск и предельное отклонение (34 ± 10) мм;
(припуск 2∙17 = 34 мм; предельное отклонение ±2∙5
= ±10 мм);
на длину 430 мм припуск и предельное отклонение минус (26 ±
8) мм; (припуск 1,5∙17 = 25,5 ≈ 26 мм; предельное отклонение ±1,5∙5
= ±7,5 ≈ ±8 мм);
на длину 490 мм припуск и предельное отклонение минус (26 ±
8) мм; (припуск 1,5∙17 = 25,5 ≈ 26 мм; предельное отклонение ±1,5∙5
= ±7,5 ≈ ±8 мм);
на длину 1100 мм припуск равен нулю и предельное отклонение
±8 мм; (припуск 0 мм; предельное отклонение ±1,5∙5 = ±7,5 ≈ ±8 мм);
на длину 1400 мм припуск равен нулю и предельное отклонение
±8 мм; (припуск 0 мм; предельное отклонение ±1,5∙5 = ±7,5 ≈ ±8 мм);
на длину 1700 мм припуск и предельное отклонение (43 ± 13)
мм; (припуск: 2,5∙17 = 42,5 ≈ 43 мм; предельное отклонение ±2,5∙5
= ±12,5 ≈ ±13 мм);
Поковка с назначенными на нее основными припусками и
предельными отклонениями приведена на рис.4.2.
Рисунок 4.2 - Поковка с назначенными на нее основными
припусками и предельными отклонениями
в) Дополнительный припуск S на несоосность назначается
предварительно на все диаметры поковки (рис.4.2), кроме наибольшего диаметра
407 мм. Величина припуска определяется по табл.3:
на диаметр 296 мм припуск 6 мм;
на диаметр 397 мм припуск 3 мм;
на диаметр 347 мм припуск 4 мм;
на диаметр 296 мм припуск 6 мм.
г) Для определения основного сечения, рассчитывают площади
продольных сечений ступеней (по рис.4.2).
D'max. l ' = 407.114 = 4,64.104
мм2;
D'1. l '1 = 296.404 = 11,96.104
мм2;
D'2. l '2 = 377. (464
- 404) = 2,26.104 мм2;
D'3. l '3 = 397. (1100
- 464) = 25,25.104 мм2;
D'4. l '4 = 347. (1400
- 1100) = 10,41.104 мм2;
D'5. l '5 = 296. (1743
- 1400) = 10,15.104 мм2.
Для ступеней, площадь продольного сечения которых больше
сечения ступени наибольшего диаметра D'max. l'=4,64∙104
мм2 рассчитываются произведения Аi, для диаметров, по
формуле:
Рисунок 4.2 - Поковка с назначенными на нее основными припусками и
предельными отклонениями
для диаметра 296 мм: А1 = 6∙ (296 ∙ 404 -
407 ∙ 114) = 43,9∙104 мм2;
для диаметра 397 мм: А2 = 3∙ (397 ∙ 636 -
407 ∙ 114) = 61,8∙104 мм2;
для диаметра 347 мм: А3 = 4∙ (347 ∙ 300 -
407 ∙ 114) = 23,1∙104 мм2;
для диаметра 296 мм: А4 = 6∙ (296 ∙ 343 -
407 ∙ 114) = 33,1∙104 мм2.
За основное сечение принимается ступень диаметром 397 мм, для
которой произведение Аi
является наибольшим.
В связи с тем что за основное сечение принят выступ не с
наибольшим диаметром, назначаем на диаметр 407 мм дополнительный припуск 3 мм с
диаметра основного сечения.
Поковка с назначенными на нее основными и дополнительными
припусками приведена на рис.4.3.
Рисунок 4.3 - Поковка с назначенными основными и дополнительными
припусками
Проверка
выполнимости концевых и промежуточных уступов, фланца и выемки
Поковка будет изготовляться на молоте, имеющем бойки шириной Вб
= 350 мм, тогда:
промежуточный уступ диаметром 380 мм и длиной 60 мм
невыполним, так как его длина менее величины l = 0,5Вб
= 175 мм, регламентируемой табл.5. Доведение уступа до выполнимых размеров за
счет напуска по длине нецелесообразно, так как при этом прилегающая к нему
выемка будет невыполнимой. Поэтому уступ ликвидируют за счет напуска по
диаметру. Принимают диаметр уступа равным диаметру соседнего выступа 397 мм;
промежуточный уступ диаметром 351 мм и длиной 300 мм
выполним, так как высота уступа h' = 0,5. (397
- 351) = 23 мм больше минимальной высоты 7 мм, регламентируемой табл.4, а его
длина больше минимальной длины l' = 0,5. Вб = 0,5.350
= 175 мм, регламентируемой табл.5;
концевой уступ диаметром 302 мм и длиной 229 мм выполним,
высота его h' = 0.5. (351 - 302) = 24,5 мм
более минимальной высоты 7 мм, регламентируемой табл.4, а длина более
минимальной длины l = 0,5. Вб =
0,5.350 = 175 мм, регламентируемой табл.5;
выемка диаметром 302 мм и длиной 404 мм невыполнима, так как
согласно табл.6 минимальная длина засечки l''2 = 0,7. Вб
= 245 мм, а минимальный диаметр выполнимой выемки длиной l'2 = 404 мм при пресекании
ее от диаметра D3= 397 мм из условия постоянства объема ступени
равен:
выемка доводится до выполнимых размеров за счет напуска по
диаметру и диаметр выемки принимается 309 мм;
фланец диаметром 410 мм и длиной 114 мм при диаметре соседнего
уступа 309 мм, выполним, длина его больше минимальной 0,2∙410 = 82 мм.
Окончательные размеры поковки с назначенными на нее основными и
дополнительными припусками после проверки выполнимости уступов, фланца и выемки
приведены на рис.4.4.
Рисунок 4.4 - Поковка вала
Семестровая
работа №2
Проектирование
заготовки для заданной детали из заданной марки стали методом свободной ковки
на прессе (ГОСТ 7062)
. ЦЕЛЬ РАБОТЫ
Изучение методики назначения припусков, допусков и определения
напусков поковок, изготовляемых ковкой на прессах.
2. СОДЕРЖАНИЕ РАБОТЫ
1. Освоение методики назначения припусков и допусков;
. Определение возможности выполнения на поковках концевых и
промежуточных уступов, выемок, фланцев и буртов.
. Выполнение расчетного задания.
3. ТЕОРЕТИЧЕСКАЯ ЧАСТЬ
.1 Ковка на прессах
Процесс обработки давлением, при котором для получения
изделия заданных форм и размеров по заготовке наносится ряд последовательных
нажимов пресса, называется ковкой на прессах.
Прессы развивают усилия от 5 до 100 МН.
На ковочных гидравлических прессах - машинах статического
действия, где деформирование заготовки может продолжаться десятки секунд, -
перерабатывают крупные заготовки, в основном слитки различной формы массой до
320 т.
Основной параметр машин статического действия - номинальная
сила.
Термины и определения, применяемые в методических указаниях,
приведены на странице 5.
3.2 Методика назначения припусков, допусков и
определения напусков поковок, изготовляемых ковкой на прессах
Припуски и допусков на поковки из углеродистой и легированной
сталей (содержание легирующих элементов до 10%), изготовляемые ковкой на
прессах, регламентируются ГОСТ 7062-90. ГОСТ распространяется на поковки общего
назначения массой до 130 тонн.
Припуски назначают на номинальные размеры, указанные на
чертеже детали.
Таблица 1 - Основные типы поковок
|
Тип поковки
|
Эскиз поковки
|
Соотношение
размеров
|
Номер таблиц
припусков и допусков
|
Круглого сечения с уступами (эскизы 1,2)
l1 ≥
0,3D1
h1,2 ≥
12 мм
, 3, 4
Круглого сечения с выемкой (эскиз 3)
h1,2 ≥
12 мм
Круглого сечения с фланцем (эскиз 4)
l 1 £ 0,3 D1
h ≥ 12 мм
Допускается расчетные номинальные размеры поковок округлять
до чисел, оканчивающихся на 5 или 0. Номинальные размеры округляют в меньшую
сторону, если они оканчиваются на 1, 2, 6 и 7, и в большую сторону, если они
оканчиваются на 3, 4, 8 и 9.
Выбор величины допусков, припусков и напусков проводят в
зависимости от типа поковок и соотношения из размеров согласно табл.1.
Припуски и предельные отклонения для поковок круглого сечения
с уступами и выемками назначаются основные и дополнительные и определяют
следующим образом.
. Основные припуски z и предельные отклонения
±Т/2 на диаметр выбирают по табл.2, исходя из полной длины вала и
диаметра рассматриваемого сечения.
. Припуски и предельные отклонения на общую длину и размеры
от единой базы до выступов и уступов выбирают в соответствии с рис.1.
За базу принимают торец выступа наибольшего сечения, не
являющегося торцом поковки.
. Дополнительный припуск выбирают по табл.3 на диаметры всех
сечений, кроме основного, в зависимости от разности диаметров основного и
рассматриваемого сечения детали;
Таблица 2 - Припуски и предельные отклонения, мм, для гладких
поковок круглого сечения по ГОСТ 7062-90
|
Длина детали, L мм
|
Диаметр детали D, мм
|
|
до 140
|
св.140 до 150
|
св.150 до180
|
св.180 до 200
|
св. 200 до 224
|
св.224 до 250
|
св.250 до 280
|
св.280 до 315
|
св.315 до 355
|
|
Припуски z и предельные отклонения ±T/2
|
|
До 1000
|
20±4
|
20±5
|
20±5
|
20±5
|
20±6
|
20±6
|
20±6
|
20±7
|
20±7
|
|
Св.1000 до 1250
|
20±5
|
20±5
|
20±5
|
20±6
|
20±6
|
20±6
|
20±7
|
20±7
|
20±7
|
|
Св.1250 до 1600
|
20±5
|
20±5
|
20±6
|
20±6
|
20±6
|
20±7
|
20±7
|
20±7
|
21±7
|
|
Св.1600 до 2000
|
20±5
|
20±6
|
20±6
|
20±7
|
20±7
|
20±7
|
20±7
|
21±7
|
22±8
|
|
Св. 2000 до
2500
|
20±6
|
20±6
|
20±6
|
20±7
|
20±7
|
20±7
|
20±7
|
22±8
|
22±8
|
|
Св.2500 до 3150
|
20±6
|
20±6
|
20±7
|
20±7
|
20±7
|
21±7
|
22±8
|
22±8
|
23±8
|
|
Св.3150 до 4000
|
20±6
|
20±7
|
20±7
|
20±7
|
21±7
|
22±8
|
22±8
|
23±8
|
24±9
|
|
Длина детали, L мм
|
Диаметр детали D, мм
|
|
св.355 до400
|
св.400 до 450
|
св.450 до500
|
св.500 до 560
|
св.560 до 630
|
св.630 до 710
|
св.710 до 800
|
св.800 до 900
|
св.900 до1000
|
|
Припуски z и предельные отклонения ±T/2
|
|
До 1000
|
20±7
|
21±7
|
22±8
|
22±8
|
23±8
|
24±9
|
25±9
|
26±10
|
28±10
|
|
Св.1000 до 1250
|
21±7
|
22±8
|
22±8
|
23±8
|
24±9
|
25±9
|
26±10
|
27±10
|
28±10
|
|
Св.1250 до 1600
|
22±8
|
22±8
|
23±8
|
24±9
|
25±9
|
26±10
|
27±10
|
28±10
|
29±11
|
|
Св.1600 до 2000
|
22±8
|
23±8
|
24±9
|
25±9
|
26±10
|
27±10
|
28±10
|
29±11
|
30±11
|
|
Св. 2000 до
2500
|
23±8
|
24±9
|
25±9
|
26±10
|
27±10
|
28±10
|
29±11
|
30±11
|
31±11
|
|
Св.2500 до 3150
|
24±9
|
25±9
|
26±10
|
27±10
|
28±10
|
29±11
|
30±11
|
31±11
|
32±12
|
|
Св.3150 до 4000
|
25±9
|
26±10
|
27±10
|
28±10
|
29±11
|
30±11
|
31±11
|
32±12
|
33±12
|
|
|
|
|
|
|
|
|
|
|
|
|
|
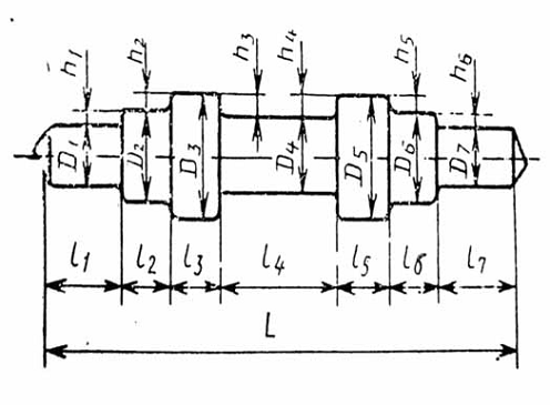
Основное сечение определяется следующим образом:
для валов с одним уступом (табл.1, эскиз 4) основным сечением
считают сечение, произведение DL которого имеет максимальное значение;
для валов с двумя уступами (табл.1, эскизы 1,2) за основное
принимают сечение с максимальным диаметром D1 при условии, что D1l1 > D2 (l2 + l3). В противном случае
основным считают сечение, имеющее средний диаметр D2;
для валов с выемкой (табл.1, эскиз 3) основным считают сечение,
имеющее максимальный диаметр D1 при условии D1 (l1 + l3) > D2l2. В противном случае за
основное принимают сечение с минимальным диаметр D2 - диаметром выемки.
Для валов, имеющих более двух уступов или сочетание уступов и
выемок, основным считают сечение, имеющее максимальный диаметр.
Рисунок 1 - Поковка вала с уступами и выемками круглого
сечения
Таблица 3 - Дополнительный припуск на диаметры всех сечений,
кроме основного
|
Разность
диаметров сечений, мм
|
До 56
|
Св.56 до 80
|
Св.80 до112
|
Св.112 до 140
|
Св.140 до 180
|
Св.180 до 224
|
Св.224 до 250
|
|
Дополнительный
припуск на диаметр, мм
|
2
|
3
|
4
|
5
|
7
|
8 8
|
9
|
|
Разность
диаметров сечений, мм
|
Св.250 до 280
|
Св.280 до 315
|
Св.315 до 355
|
Св.355 до 400
|
Св.400 до 425
|
Св.425 до 450
|
Св.450 До 475
|
|
Дополнительный
припуск на диаметр, мм
|
10
|
12
|
13
|
14
|
15
|
16
|
17
|
|
Разность
диаметров сечений, мм
|
Св.475 до 500
|
Св.500 до 530
|
Св.530 до 560
|
Св.560 до 600
|
Св.600 до 630
|
Св.630 до 670
|
Св.670 до 710
|
|
Дополнительный
припуск на диаметр, мм
|
18
|
19
|
20
|
22
|
23
|
24
|
25
|
|
|
|
|
|
|
|
|
|
|
Минимальные размеры высот и длин уступов и выемок поковок в
соответствии с типовым чертежом поковки (рис.2) приведены в табл.4 и 5
соответственно.
Рисунок 2 - Типовой чертеж поковки
Таблица 4 - Минимальные размеры высот уступов и выемок
поковок
|
Длина поковки,
мм
|
Диаметр (D2, D3, D5, D6), примыкающий к уступу,
мм
|
|
До 200
|
Св. 200 до 235
|
Св. 235 до 270
|
Св. 270 до 300
|
Св. 300 до 335
|
Св. 335 до 370
|
Св. 370 до 400
|
Св. 400 до 435
|
Св. 435 до 470
|
|
Минимальная
выполнимая высота уступа (h1, h2,
h5, h6) или
выемки (h3, h4), мм
|
|
До 1000
|
12
|
12
|
14
|
15
|
16
|
17
|
18
|
19
|
20
|
|
Св.1000 до 2000
|
12
|
13
|
15
|
16
|
17
|
18
|
19
|
20
|
21
|
|
Св. 2000 до
3000
|
13
|
15
|
16
|
17
|
18
|
19
|
20
|
21
|
22
|
|
Св.3000 до 4000
|
15
|
16
|
17
|
18
|
19
|
20
|
21
|
22
|
|
|
|
|
|
|
|
|
|
|
|
Длина поковки,
мм
|
Диаметр (D2, D3, D5, D6), примыкающий к уступу, мм
|
|
Св.470 до 500
|
Св.500 до 535
|
Св. 535 до 570
|
Св. 570 до 600
|
Св. 600 до 635
|
Св. 635 до 670
|
Св. 670 до 700
|
Св. 700 до 750
|
Св. 750 до 800
|
|
Минимальная
выполнимая высота уступа (h1, h2,
h5, h6) или
выемки (h3, h4), мм
|
|
До 1000
|
21
|
22
|
23
|
24
|
25
|
26
|
27
|
28
|
29
|
|
Св.1000 до 2000
|
22
|
23
|
24
|
25
|
26
|
27
|
28
|
29
|
30
|
|
Св. 2000 до
3000
|
23
|
23
|
25
|
26
|
27
|
28
|
29
|
30
|
31
|
|
Св.3000 до 4000
|
24
|
25
|
26
|
27
|
28
|
29
|
30
|
30
|
31
|
Таблица 5 - Минимальные размеры длин уступов и выемок поковок
|
Длина поковки,
мм
|
Диаметр (D2, D3, D5, D6), примыкающий к уступу,
мм
|
|
До 200
|
Св. 200 до 235
|
Св. 235 до 270
|
Св. 270 до 300
|
Св. 300 до 335
|
Св. 335 до 370
|
Св. 370 до 400
|
Св. 400 до 435
|
Св. 435 до 470
|
|
Минимальная
длина выполнимого уступа (l1, l2,
l6, l7) или
выемки (l4), мм
|
|
До 2000
|
150
|
170
|
190
|
210
|
230
|
250
|
270
|
290
|
310
|
|
Св. 2000 до 3000
|
170
|
190
|
210
|
230
|
250
|
270
|
290
|
310
|
330
|
|
Св.3000 до 4000
|
190
|
210
|
230
|
250
|
270
|
290
|
310
|
330
|
350
|
|
Длина поковки,
мм
|
Диаметр (D2, D3, D5, D6), примыкающий к уступу, мм
|
|
Св.470 до 500
|
Св. 500 до 535
|
Св. 535 до 570
|
Св. 570 до 600
|
Св. 600 до 635
|
Св. 635 до 670
|
Св. 670 до 700
|
Св. 700 до 750
|
Св. 750 до 800
|
|
Минимальная
длина выполнимого уступа (l1, l2,
l6, l7) или
выемки (l4), мм
|
|
До 2000
|
330
|
350
|
370
|
390
|
410
|
430
|
450
|
470
|
490
|
|
Св. 2000 до
3000
|
350
|
370
|
390
|
410
|
430
|
450
|
470
|
490
|
510
|
|
Св.3000 до 4000
|
370
|
390
|
410
|
430
|
450
|
470
|
490
|
510
|
530
|
|
|
|
|
|
|
|
|
|
|
|
|
Бурты и фланцы на поковках должны быть выполнены в
соответствии с рис.3 и табл.6.
Рисунок 3 - Бурты и фланцы на поковках
Таблица 6 - Размеры буртов
|
Диаметр,
примыкающий к бурту, мм
|
Диаметр D1 или размер H бурта, мм
|
|
Св. 100 до 200
|
Св. 200 до 300
|
Св. 300 до 400
|
Св. 400 до 500
|
Св. 500 до 600
|
Св. 600 до 700
|
Св. 700 до 800
|
Св. 800 до 900
|
Св. 900 до 1000
|
|
Минимальная
поковочная длина бурта, мм
|
|
До 100
|
30
|
60
|
100
|
130
|
-
|
-
|
-
|
-
|
-
|
|
Св.100 до 200
|
20
|
50
|
80
|
110
|
140
|
180
|
200
|
240
|
-
|
|
Св. 200 до 300
|
-
|
30
|
60
|
100
|
120
|
160
|
190
|
220
|
260
|
|
Св.300 до 400
|
-
|
-
|
40
|
70
|
100
|
140
|
170
|
200
|
240
|
|
Св.400 до 500
|
-
|
-
|
-
|
60
|
90
|
120
|
150
|
180
|
220
|
|
Св.500 до 600
|
-
|
-
|
-
|
-
|
70
|
100
|
130
|
160
|
200
|
|
Св.600 до 700
|
-
|
-
|
-
|
-
|
-
|
80
|
110
|
140
|
180
|
|
Св.700 до 800
|
-
|
-
|
-
|
-
|
-
|
-
|
100
|
130
|
160
|
|
Св.800 до 900
|
-
|
-
|
-
|
-
|
-
|
-
|
-
|
110
|
140
|
|
Св.900 до 1000
|
-
|
-
|
-
|
-
|
-
|
-
|
-
|
-
|
120
|
|
|
|
|
|
|
|
|
|
|
|
Пример
выполнения работы
Тема: Проектирование заготовки для заданной детали из
заданной марки стали методом свободной ковки на прессах (ГОСТ 7062)
Задание:
Назначить основные и дополнительные припуски, предельные
отклонения.
Проверить выполнимость концевых и промежуточных уступов,
буртов, фланцев и выемок для поковки круглого сечения с уступами.
Спроектировать заготовку.
Исходные данные:
Изделие "Вал" (рис.4.1).
Производство - единичное.
Материал - Сталь 40 ГОСТ 1050-88.
Рисунок 4.1 - Вал
Материал детали - сталь 40 ГОСТ 1050
конструкционная углеродистая качественная улучшаемая применяется для деталей,
от которых требуется повышенная прочность.
Назначение стали 40: оси, валы, штоки,
шестерни, шпиндели.
Химический состав материала сталь 40 в табл.4.1, физические,
механические и технологические свойства табл.4.2, 4.3, 4.4 соответственно.
Таблица 4.1 - Химический состав материала сталь 40
|
Марка стали
|
C
|
Si
|
Mn
|
Ni
|
S
|
P
|
Cr
|
Cu
|
As
|
|
40 ГОСТ 1050
|
0,37 - 0,45
|
0,17 - 0,37
|
0,5 - 0,8
|
до 0,25
|
до 0,04
|
до 0,035
|
до 0,25
|
до 0,25
|
до 0,08
|
Таблица 4.2 - Физические свойства материала сталь 40
|
Плотность γ, г/см3
|
Теплопроводность
λ, Вт/ (м.°С)
|
Коэффициент
линейного расширения, α.106,
1/°С
|
|
7,815
|
596
|
12,4
|
Таблица 4.3 - Механические свойства материала сталь 40
|
Режим
термообработки
|
Твердость, НВ
|
Временное
сопротивление разрыву, σв,
МПа
|
Относительное
удлинение, δ, %
|
Ударная
вязкость, αн, Дж/см2
|
Предел
текучести, σт, МПа
|
|
Операция
|
Т, оС
|
Охлаждаемая
среда
|
|
|
|
|
|
|
Закалка
|
830- 870
|
Вода или масло
|
183
|
570
|
19
|
49
|
320
|
|
Отпуск
|
600
|
Охлаждение на
воздухе
|
|
|
|
|
|
Таблица 4.4 - Технологические свойства материала сталь 40
|
Свариваемость:
|
удовлетворительная
|
|
Интервал
температур ковки, оС
|
800-1250
|
|
Пластичность
при холодной обработке
|
удовлетворительная
|
|
Обрабатываемость
резанием
|
высокая
|
|
Обработка
давлением
|
удовлетворительная
|
Назначение
основных и дополнительных припусков и предельных отклонений
Деталь имеет более двух уступов, следовательно, за основное
принимают сечение, имеющее наибольший диаметр (D = 500 мм).
Основные припуски и допуски на диаметр определяют по табл.2,
дополнительные - по табл.3:
на диаметр 500 мм основной припуск и допуск (26 ± 10) мм,
дополнительный припуск не выбирают;
на диаметр 220 мм основной припуск и допуск (20 ± 7) мм,
дополнительный припуск 10 мм;
на диаметр 400 мм основной припуск и допуск (24 ± 9) мм,
дополнительный припуск 4 мм;
на диаметр 250 мм основной припуск и допуск (21 ± 7) мм,
дополнительный припуск 9 мм;
на диаметр 150 мм основной припуск и допуск (20 ± 6) мм,
дополнительный припуск 13 мм.
Припуски и допуски по длине поковки определяют в соответствии
с рис.1 методических указаний.
За базу выбирают торец выступа наибольшего сечения, не
являющегося торцом поковки.
на длину 400 мм - припуск плюс 58,5 мм, округляем до 59 мм,
допуск ±15 мм; (припуск: 1,5∙26 + 0,75∙26 = 58,5 мм,; предельное
отклонение ±1,5∙10 = ±15 мм);
на длину 800 мм - припуск минус 37,5 мм, допуск не
назначается;
(припуск: - 0,75∙26 - 0,75∙24 = - 37,5 мм,
округляем до 38 мм; предельных отклонений нет);
на длину 1200 мм - припуск минус 1,5 мм, округляем до - 2 мм
допуск ±15 мм; (припуск: - 0,75∙26 + 0,75∙24 = - 1,5 мм; предельное
отклонение ±1,5∙10 = ±15 мм);
на длину 1900 мм - припуск минус 3,75 мм, округляем до 4 мм,
допуск ±15 мм; (припуск: - 0,75∙26 + 0,75∙21 = - 3,75 мм;
предельное отклонение ±1,5∙10 = ±15 мм);
на длину 3100 мм - припуск плюс 69 мм, допуск ±24 мм;
(припуск: 1,5∙26 + 1,5∙20 = 69 мм; предельное
отклонение ±1,5∙ (10+6) = ±24 мм).
Поковка с назначенными на нее основными и дополнительными
припусками и допусками приведена на рисунке 4.2 (размеры округляем).
Рисунок 4.2 - Поковка с назначенными на нее основными и
дополнительными припусками и допусками
Проверка
выполнимости концевых и промежуточных уступов, фланца и выемки
Промежуточный уступ диаметром 280 мм и длиной 698 мм
выполним, так как высота уступа hy = 0,5. (428
- 280) = 74 мм больше минимальной высоты 22 мм, регламентируемой табл.4, а его
длина больше минимальной длины ly = 330 мм,
регламентируемой табл.5.
Концевой уступ диаметром 183 мм и длиной 814 мм выполним, так
как высота уступа hy = 0,5. (280 - 183) = 48,5 мм
больше минимальной высоты 18 мм, регламентируемой табл.4, а его длина больше
минимальной длины ly = 250 мм, регламентируемой табл.5.
Выемка диаметром 250 мм и длиной 762 мм выполнима. По табл.5
минимальная длина выемки должна быть 390 мм, следовательно, рассматриваемая
длина соответствует стандарту.
Бурт диаметром 428 мм и длиной 436 мм при диаметре соседнего
уступа 280 мм, выполним, так как высота уступа hy = 0,5. (428
- 280) = 74 мм больше минимальной высоты 22 мм, регламентируемой табл.4 и длина
больше минимальной, равной 100 мм по табл.6.
Окончательные размеры поковки приведены на рисунке 4.3.
Рисунок 4.3 - Окончательные размеры поковки
Список
литературы
1.
ГОСТ 7829-70. Поковки из углеродистой и легированной стали, изготовляемые
ковкой на молотах. Припуски и допуски. М.: Издательство стандартов, 1992.
Переиздание с изменением. - 42 с.
.
ГОСТ 7062 - 90. Поковки из углеродистой и легированной стали, изготовляемые
ковкой на прессах. Припуски и допуски. М.: Издательство стандартов, 1991. - 46
с.
.
ГОСТ 8479 - 70. Поковки из конструкционной углеродистой и легированной стали.
Общие технические условия. М.: Издательство стандартов, 1971. - 18 с.
.
Машиностроение. Энциклопедия / Ред. совет: К.В. Фролов (пред. ) и др. - М.:
Машиностроение. Технология заготовительных производств.Т. III - 2/И.Л. Акаро, Р.А.
Андриевский, А.Ф. Аржанов и др.; Под общ. ред. В.Ф. Мануйлова. 1996. - 736 с.,
ил.
.
Проектирование и производство заготовок: учебник / А.Г. Схиртладзе, В.П.
Борискин, А.В. Макаров. - 3-е изд., перераб. и доп. - Старый Оскол: ТНТ, 2009.
- 448 с.
.
Расчет припусков и межпереходных размеров в машиностроении: Учеб. пособ. для
машиностроит. спец. вузов / Я.М. Радкевич, В.А. Тимирязев, А.Г. Схиртладзе,
М.С. Островский; под ред.В.А. Тимирязева. - М.: Высш. шк., 2004. - 272 с.: ил.
.
Харламов Г.А., Тарапанов А.С. Припуски на механическую обработку: Справочник. -
М.: Машиностроение, 2006. - 256 с.: ил.