Анализ работы с кадрами ГУ 'Службы пожаротушения и аварийно-спасательных работ' Департамента по чрезвычайным ситуациям Северо-Казахстанской области на примере ПЧ-1СО г. Петропавловска

  • Вид работы:
    Дипломная (ВКР)
  • Предмет:
    Безопасность жизнедеятельности
  • Язык:
    Русский
    ,
    Формат файла:
    MS Word
    1,46 Мб
  • Опубликовано:
    2014-11-25
Вы можете узнать стоимость помощи в написании студенческой работы.
Помощь в написании работы, которую точно примут!

Анализ работы с кадрами ГУ 'Службы пожаротушения и аварийно-спасательных работ' Департамента по чрезвычайным ситуациям Северо-Казахстанской области на примере ПЧ-1СО г. Петропавловска

Оглавление

Введение

. Общая характеристика

.1 Характеристика г. Петропавловска

.2 Характеристика территориального гарнизона

.3 Общая характеристика охраняемых объектов

1.4 Структура пожарной охраны «ПЧ - 1СО г. Петропавловска»     

2. Анализ данных, характеризующих служебную деятельность и готовность ПЧ-1СОк выполнению поставленных задач

2.1 Организация и проведение занятий, пожарно-тактическая подготовка, психологическая подготовка и проверка гидрантов

.2 Экономический расчет

.3 Техническая оснащенность подразделений

.4Агитационно-массовая работа, проводимая пожарно-профилактическим составом ПЧ-1СО

. Статистический анализ основных показателей оперативной обстановки ПЧ-1 СО за 2009-2013гг

.1 Количество выездов и их виды

.2 Количество выездов ПЧ-1 СО г. Петропавловск на пожары за период с 2009 по 2013год

. Анализ работы с кадрами

.1 Штатное расписание ПЧ-1 СО г. Петропавловска

.2 Анализ текучести кадров

.3 Количество уволившихся сотрудников и среднесписочная численность этой категории

.4 Расчет коэффициента стабильности среди личного состава ПЧ-1СО за период с 2009 года по 2013 год

.5 Дисциплинарная практика в ПЧ-1СО

.6Распределение среднего возраста личного состава ПЧ-1СО

.7 Распределение личного состава ПЧ-1СО по стажу службы

.8 Распределение личного состава ПЧ-1СО по образованию

.9 Изучение состояния морально-психологического климата коллектива в ПЧ 1 СО г. Петропавловска

План тушения пожара

Заключение

Библиография

Введение

Тема выпускной квалификационной работы - «Анализ работы с кадрами ГУ «Службы пожаротушения и аварийно-спасательных работ» Департамента по Чрезвычайным Ситуациям Северо-Казахстанской области на примере ПЧ-1СО г. Петропавловска.

Работа с кадрами - одна из важнейших составляющих деятельности МЧС Казахстан. Она призвана обеспечить своевременное, эффективное и качественное решение стоящих перед министерством задач. Министерство по чрезвычайным ситуациям Республики Казахстан является центральным исполнительным органом Республики Казахстан, осуществляющим руководство в области предупреждения и ликвидации чрезвычайных ситуаций природного и техногенного характера, гражданской обороны, межотраслевой координации в области пожарной и промышленной безопасности, формирования и развития государственного материального резерва, обеспечения функционирования и дальнейшего развития государственной системы предупреждения и ликвидации чрезвычайных ситуаций, организации предупреждения и тушения пожаров. Она включает в себя Государственное учреждение «Службы Пожаротушения и Аварийно-спасательных работ» Департамента по чрезвычайным ситуациям.

Основная цель кадровой политики подразделения любого уровня министерства - формирование высокопрофессионального, стабильного кадрового корпуса, способного эффективно выполнять поставленные пред подразделениями министерства задачи. Решающее значение в выполнении поставленных задач принадлежит человеку - основному составному звену большой кадровой системы.

В данной выпускной квалификационной работе проанализирована служебная деятельность личного состава ПЧ-1 СО г. Петропавловска. В настоящее время в органах и подразделениях Государственной противопожарной службы Министерства по чрезвычайным ситуациям Республики Казахстана большое внимание уделяется вопросам совершенствования пожарной охраны. Изменение структуры органов управления и подразделений органов государственной противопожарной службы (ОГПС)возможно лишь на основе тщательного анализа деятельности. При этом в качестве одного из основных направлений повышения эффективности деятельности рассматривается непрерывная подготовка их руководителей и специалистов.

Цель исследования выпускной квалификационной работы- «Анализ работы с кадрами ГУ «Службы пожаротушения и аварийно-спасательных работ» Департамента по Чрезвычайным Ситуациям Северо-Казахстанской области на примере ПЧ-1СО г. Петропавловска.

Объект исследования выпускной квалификационной работы - работа с кадрами ГУ «СП и АСР» ДЧС СКО ПЧ -1 СО г. Петропавловска.

Предмет исследования - служебные и трудовые профессиональные отношения в ГУ «СП и АСР» ДЧС СКО ПЧ - 1 СО г. Петропавловска.

В процессе выпускной квалификационной работе решались следующие задачи:

•        Дать общую характеристику г. Петропавловска, охраняемых объектов ПЧ-1 СО и территориального гарнизона пожарной охраны;

•        проанализировать данные характеризующие служебную деятельность и готовность ПЧ-1СО к выполнению поставленных задач;

•        провести статистический анализ основных показателей оперативной обстановки ПЧ-1 СО г. Петропавловска за последние 5 лет и спрогнозировать их количество на 2014 г.;

•        исследовать дисциплинарную практику, текучесть кадров и морально-психологический климат;

•        разработать предложения по совершенствованию деятельности ПЧ-1 СО г. Петропавловска.

Полученные в выпускной квалификационной работе результаты и выводы могут быть использованы в практической работе подразделений ОГПС в процессе их совершенствования.

Список сокращений

АЛ - автолестница;

АНР - автомобиль насосно-рукавный;

АП - автомобиль порошковый;

АПП - автомобиль первой помощи;

АСР - аварийно-спасательные работы;

АЦ - автоцистерна;

ГДЗС - газодымозащитная служба;

ГО - гражданская оборона;

ОГПС - орган государственной противопожарной службы;

ПБ - пожарная безопасность;

ПГ - пожарный гидрант;

ПО - пожарная охрана;

ПСП - пожарно-строевая подготовка;

ПТЗ - пожарно-тактическое занятие;

ПТУ - пожарно-тактическое учение;

ПЧ - пожарная часть;

СИЗОД - средства индивидуальной защиты органов дыхания;

СМИ - средства массовой информации;

ТДК - теплодымокамера;

ТО - техническое обслуживание;

ЧС - чрезвычайная ситуация;

1. Общая характеристика

.1 Характеристика г. Петропавловска

Петропавловск был основан в 1752 году, численность населения205тыс. человек (2013), площадь города занимает площадь451,6 кмІ. Город расположен в основном на высоком правом берегу реки Ишим и разместился как бы в два яруса; над низкой надпойменной и на высокой третьей террасах реки. Потому- то и выделяют в Петропавловске "нагорную" и "подгорную" части, хотя никаких гор здесь нет. Сегодня Петропавловск - крупнейший промышленный и культурный центр Северного Казахстана.

В городе имеются предприятия пищевой, легкой, деревообрабатывающей, металлообрабатывающей, строительной промышленности и других отраслей, а также учебные заведения, дома культуры и отдыха, развлекательные комплексы. В городе два драматических театра, кукольный театр, 2 музея, 3 телевизионных компании, 22 печатных СМИ. Неповторимый облик городу придают старинные купеческие здания, представляющие историческую ценность.

ИНФРАСТРУКТУРА

Город, в далеком прошлом выполняющий функции крупного международного перевалочного центра на великом Шелковом пути, и сегодня не утратил своего исторического значения. Через Северные районы области проходит крупнейшая Транссибирская железнодорожная магистраль, соединяющая дороги Российской Федерации и Казахстана. Сортировочные парки железнодорожной станции Петропавловска обладают пропускной способностью 276 вагонов в сутки. Протяженность сети автомобильных дорог области 7533 км. Автомагистрали соединяют город Петропавловск и Севера - Казахстанскую область с такими крупными городами России как Омск, Екатеринбург, Челябинск, Тюмень. На автодорогах находятся 35 мостов и путепроводов.

ОБРАЗОВАНИЕ

В Петропавловск на сегодня имеются восемь образовательных учреждений такие как:

северо-Казахстанский государственный университет имени Манаша Козыбаева;

военный институт Внутренних войск МВД Республики Казахстан;

северо-Казахстанский институт повышения квалификации и переподготовки педагогических кадров;

Петропавловский гуманитарный колледж имени Магжана Жумабаева;

Петропавловский строительно-экономический колледж;

Петропавловский-Казахстанский медицинский колледж;

северо-казахстанский профессионально- педагогический колледж;

Северо-Казахстанский государственный университет(СКГУ) является ведущим многопрофильным высшим учебным заведением, основан 1937 году г. Петропавловск. В СКГУ обучаются более 13 тысяч студентов, учебную и научную работу ведет 37 кафедр, в составе которых 3 академика, 8 членов- корреспондентов, 40 докторов наук и профессоров, 100 кандидатов наук и доцентов. Для обеспечения многоуровневого и многопрофильного образования университете имеется аспирантура, докторантура, магистратура. В СКГУ сегодня 9 учебных корпусов, корпус военной кафедры, 5 общежитий в общей сложности на 1700 мест, собственный профилакторий, загородная агробиологическая станция и спортивно-оздоровительный лагерь.

Высшее образование имеют 75% жителей области, среднеспециальное образование - 25% .

СПОРТ

Для регулярных занятий профессиональным и любительскими видами спорта в области имеется 519 спортивных залов, 12 стадионов с трибунами, 9 детско-юношеских спортивных школ, из них 2 являются школами олимпийского резерва (по велоспорту и спортивной акробатике), 14 лыжных баз, стрелковые тиры и другие спортсооружения.

В городе Петропавловске на ипподроме регулярно проводятся показательные выступления и спортивные соревнования по беговым и национальным видам конного-спорта. Четыре сборных команды области по игровым видам спорта (футбол, волейбол, баскетбол, хоккей с шайбой) принимают участие в чемпионатах Республики Казахстан среди команд высшей лиги. В течение семи лет проводятся областные Игры Народного спорта, объединяющие спартакиады по зимним, летним, национальным видам спорта.

ЭКОНОМИКА

Основу машиностроительного производства Северо-Казахстанской области составляют конверсионные предприятия, ранее специализировавшиеся на военном производстве. Во времена Советского союза эти предприятия являлись фундаментом военной промышленности, они были оснащены современным оборудованием и производили ракеты класса СС-20 ("Сатана"), системы связи, технически насыщенные наукоемкие изделия для армии. В работе промышленных предприятий сложились традиции дисциплины и высоких требований к качеству и срокам поставок. Привлекательность для инвесторов в этой отрасли обусловлена обилиемнедорогойквалифицированнойрабочейсилы,энергии,сельскохозяйственного сырья. Сегодня рост объема производства обеспечен преимущественно предприятиями обрабатывающей промышленности и предприятиями, осуществляющими производство и распределение электроэнергии, газа и воды. Предприятия области продолжают развивать и углублять сотрудничество с ведущими промышленными комплексами страны: нефтедобывающим, энергетическим, железнодорожным, горнодобывающим и аграрным. Существенную роль в экономике области имеет дальнейшее развитие пищевой и легкой промышленности. Постепенно за счет повышения качества и снижения себестоимости производимых товаров увеличивается экспорт, в том числе и в страны дальнего зарубежья. Все это, в сочетании с удобным географическим положением, на пересечении транспортных, железнодорожных и авиамагистралей, на границе Казахстана и России делает Северо-Казахстанскую область привлекательной для инвесторов.

ПРОМЫШЛЕННОСТЬ

В регионе зарегистрировано более 5 тысяч предприятий всех форм собственности. Основной объем производственной продукции приходится на долю крупных и средних промышленных предприятий, на долю которых приходится 73,0% всей промышленной продукции:

Такие как: ОАО "Султан-элеватор ММК", ТОО "Аксесс-Энерго ПТЭЦ-2", "Аксесс-Энерго СКРЭК", ТОО "Аксесс-ЭнергоТеплотранзит", ОАО "ПЗТМ", ТОО "Массагет", ТОО "Сирио-Каз", ОАО "Султан-кондитерские изделия", ТОО "Петропавловское предприятие электроизоляционных материалов", и завод "Тяжелого машиностроения".

В сфере переработки сельхозпродукции взятый курс на сокращение импорта продуктов питания, за счет освоения их производства в области, расширение ассортимента и улучшения качества выпускаемой продукции, развитие партнерских отношений с ближним и дальним зарубежьем, принес положительные ресурсы.

Если в 2012 году в области производилось 983 наименования продуктов питания, то по итогам 2013 года - 1220.

Начат выпуск импортозамещающей продукции: твердых и плавленых сыров, йодированных молочных продуктов, чешского пива, горчицы, кетчупа, питьевой очищенной воды, кондитерских изделий с различными наполнителями и конфет, национальных макаронных изделий, костной и мясокостной муки и других продуктов. Продолжается освоение рынков не только ближнего, но и дальнего зарубежья.

Мясомолочная продукция успешно реализуется в 21 городе РК, а также в близлежащих областях России, мука - в России, Кыргызстане, Таджикистане, Туркменистане, Узбекистане и Афганистане, макаронные изделия - в России и Кыргызстане.

За 2013 год произведено 51 млн. кв. дм кожевенного полуфабриката, который экспортируется в 8 стран дальнего зарубежья. В перспективе планируется выпуск высококачественного хрома и пошив из него одежды, обуви и галантерейных изделий на предприятиях местной промышленности.

ТРАНСПОРТ

Общего пользования представлено деятельностью железнодорожного, автомобильного и водного (речного) видов транспорта. За 2013 год транспортными предприятиями города перевезено 2056,0 тыс. тонн грузов и 20,8 млн. пассажиров. В областном центре расположен крупный железнодорожный узел, соединяющий дороги Российской Федерации и Казахстана, грузооборот которого составил 26228,0 млн. тенге. Петропавловский троллейбус - система электротранспорта в городе Петропавловск.

Культура

Северо-Казахстанский области имеется краеведческий музей основанный в 1923 году. Музей располагает одиннадцатью просторными экспозиционными и тремя выставочными залами, научной библиотекой, лабораторией археологических исследований, реставрационной мастерской, фотолабораторией, хорошим фонда хранилищем, имеются фонотека и фототека. В фондах музея насчитывается свыше 300 тыс. единиц хранения. Многочисленные экспонаты и материалы, представленные в музее, посвящены истории дореволюционного периода и революционному движению в Петропавловске, событиям гражданской войны, борьбе с Колчаком и кулацко-белогвардейскими мятежниками за установление Советской власти, восстановлению народного хозяйства после ликвидации колчаковщины, первым довоенным пятилеткам. Богатый и разнообразный материал периода Великой Отечественной войны, представленный в музее, рассказывает о героических подвигах воинов северо-казахстанцев на дорогах войны и об оказании помощи фронту петропавловцами. Интересны экспозиции, показывающие первые шаги послевоенных лет. Много места отведено покорителям целины.

В музее ведется большая научно-исследовательская работа, особенно по древней истории края. По материалам музея защищено 3 кандидатских диссертации и пять готовится к защите. В результате десятилетних археологических работ в фондах музея собрано свыше 50 тысяч уникальных экспонатов. Эти богатейшие находки - результат многолетних работ сотрудников музея, педагогического института, областного общества по охране памятников культуры, Карагандинского государственного университета, Северо-Казахстанской археологической экспедиции. В залах музея периодически организуются выставки.

1.2 Характеристика гарнизона г. Петропавловска

Организация гарнизонной службы в ГУ «СПиАСР» ДЧС Северо-Казахстанской области функционирует во исполнение требований Министерства по чрезвычайным ситуациям Республики Казахстан « Об утверждении устава службы органов государственной противопожарной службы» от 14 ноября 2009 года № 266, в целях быстрого и организованного реагирования, своевременного сосредоточения сил и средств, необходимых для успешной ликвидации пожаров и в целях улучшения организации пожаротушения в городе. Отряд создан в целях организации и осуществления профилактики пожаров, спасения людей и имущества при пожарах, оказания первой помощи, организации и осуществлении тушения пожаров и проведения аварийно-спасательных работ.

В состав сил и средств территориального гарнизона входят:

.        ПЧ-1СО г. Петропавловска57 чел.

.        СПЧ-2 г. Петропавловска 54 чел.

.        СПЧ-3 г. Петропавловска 29 чел.

.        ПЧ-4 г. Петропавловска22 чел.

.        ПЧ-5 г. Петропавловска24 чел.

Основными задачами отряда являются:

- организация деятельности подразделений ОГПС, входящих в состав отряда;

осуществление профессиональных и управленческих функций, координация деятельности подразделений ОГПС, входящих в состав отряда;

- оперативное управление силами и средствами подразделений отряда при спасении людей и имущества на пожарах, организация и осуществление тушения пожаров, проведение аварийно-спасательных работ в населенных пунктах и на объектах, в том числе критически важных для национальной безопасности страны, других особо важных пожароопасных объектах, особо ценных объектах культурного наследия Республики Казахстана. Расположенных на территории г. Петропавловска, а также при проведении мероприятий государственного уровня с массовым пребыванием людей;

организация и осуществление профилактики пожаров;

организация и осуществление тушения пожаров и проведения аварийно-спасательных работ;

участие в соответствии с планами привлечения сил и средств, утвержденными в установленном порядке, в тушении пожаров в населенных пунктах Северо-Казахстанской области г. Петропавловска, приграничных областях, краях;

автоматизированный сбор информации по основным направлениям деятельности подразделений отряда;

осуществление постоянного контроля над оперативной обстановкой по пожарам, своевременное реагирование на ее изменение;

организация и осуществление мер по совершенствованию и подготовке оперативных служб отряда;

организация планирования и координация внедрения новых информационных технологий;

обеспечение оперативного руководства и управления подразделениями отряда, организация взаимодействия в установленном порядке;

организационное и информационное обеспечение руководства тушением пожаров и проведения аварийно-спасательных работ, в том числе работ при чрезвычайных ситуациях, на которые привлечены силы и средства подразделений отряда и других противопожарных формирований;

разработка и корректировка документов, регламентирующих организацию гарнизонной и караульной служб, порядок взаимодействия со службами жизнеобеспечения муниципальных образований и объектов;

финансовое и материально-техническое обеспечение подчиненных подразделений отряда;

осуществление организационно-штатной и кадровой работы, организация и осуществление подготовки кадров для подразделений пожарной охраны;

осуществление мероприятий по информированию населения о возникших и прогнозируемых чрезвычайных ситуациях и пожарах и по пропаганде безопасности жизнедеятельности;

принятие оперативных мер по предупреждению возникновения и развития чрезвычайных ситуаций, снижению размеров ущерба и потерь в случае их возникновения, а также повышению устойчивости и безопасности функционирования организаций в чрезвычайных ситуациях.

1.3 Общая характеристика охраняемых объектов

В район выезда ПЧ 1 СО по городу Петропавловск - входят объекты общественные, административные и жилые здания и сооружения, расположенные на территории города.

К основным видам относятся:

сельское хозяйство, охота и лесное хозяйство;

обрабатывающие производства, в том числе:

производство пищевых продуктов, включая напитки и табака;

текстильное и швейное производства;

обработка древесины и производство изделий из дерева;

издательская и полиграфическая деятельность;

производство прочих неметаллических минеральных продуктов;

производство и распределение электроэнергии, газа и воды;

строительство;

оптовая и розничная торговля, ремонт автотранспортных средств, мотоциклов, бытовых изделий и предметов личного пользования;

гостиницы и рестораны;

транспорт и связь.

Район выезда ПЧ-1 СО города Петропавловска ГУ «СП и АСР» ДЧС СКО

Восточная и центральная части города в границах улиц: от границы города, нечетная сторона ул. Г. Мусрепова, четная сторона ул. Ермака, четная сторона ул. Егемен Казахстан, четная сторона ул. Интернациональная до стадиона «Жастар», далее по железнодорожному полотну в сторону города Омск, четная сторона ул. Медведева до территории старого мясокомбината. В район обслуживания ПЧ-1 также входит железнодорожная станция «г. Петропавловск», «Сенная база».

Ведущими предприятиями, определяющими экономическую ситуацию в городе, являются:

ТБ «БАРС-НОРД»(опт-база),

ИП « Вершинина З.С»

КГУ Школа №32

ТОО «Деметра»,

ТОО «Зооветснаб»,

ТОО «Хлебобулочный комбинат №3»,

ТОО «Мебель Петропавловск»,

ТОО «Гофротара»,

ТОО «Акжол»,

ТОО « Масло - Дел Петропавловск»,

ТОО « Фрегат»,

ТОО «Большой строительный рынок»,

ТОО «Агрокоммерц»,

АО Национальная компания «Казахстан инжиниринг».

2. Анализ данных, характеризующих служебную деятельность и готовность ПЧ-1СО г. Петропавловска к выполнению поставленных задач

.1 Организация и проведение занятий, пожарно-тактическаяподготовка, психологическая подготовка и проверка гидрантов

Одним из основных методов обучения является практическая работа начальствующего состава в подразделениях пожарной охраны. Решение пожарно-тактических задач является не только наиболее эффективной, но и сложной формой тактической подготовки, так как на них одновременно формируется тактическое мастерство личного состава и слаженность работы по тушению крупных и сложных пожаров, требующих привлечения большого количества сил и средств. На учениях объединяются в единый комплекс знания и навыки личного состава, полученные в процессе профессиональной подготовки. На учения привлекаются силы и средства, предусмотренные расписанием выезда подразделений.

Ежегодно составляется график проведения пожарно-тактических учений со всем гарнизоном пожарной охраны.

Таблица 2.1.1

График проведения пожарно-тактических учений с личным составом гарнизона г. Петропавловска ГУ « СПиАСР»ДЧС СКО на 2013 г.

№ п/п

Наименование объекта

Кто проводит

Срок проведения

1. Тренировочные пожарно-тактические учения

1

Нефтебаза «Орбита» ул. Индустриальная 2

Зам. РТП ДСПТ, 1-я смена

февраль

2

3-я, городская поликлиника, ул.Юбилейная, 157

Зам. РТП ДСПТ, 2 - я смена

март

3

Учебно-производственный центр профессиональной подготовки «Мастер-центр» ул. Островского 80

Зам. РТП ДСПТ.3-я смена

март

4

НГЧ - 4 «Дерево обрабатывающий цех» ул. Сатпаева13

Ст. ПРТП ДСПТ, 3-я смена

апрель

5

Склады «Барс - строй» ул. Индустриальная 27

Зам. РТП ДСПТ,4-я смена

апрель

6

Историко-краеведческий музей ул. Конституции 48

Ст. ПРТП ДСПТ,4-я смена

июнь

7

Центральный рынок оптовой торговли ул. Интернациональная 84

Начальник СО

май

8

СКГУ им. М. Козыбаева корпус

Ст. ПРТП ДСПТ, 2-я смена

июль

9

Казахско-Турецкий лицей ул. Ш. Уалиханова 18

Начальник ШПП

июль

10

ЛПДС « Петропавловск» Филиала ОАО «Уралтранснефтепродукт» ул. Тимирязева,16

Начальник ГУ «СП и АСР» полковник п.п.с С. Гайсин

июнь

11

КГП «Областной наркологический цент» акимата СКО МЗ РК

Начальник УП и АСР полковник п.п.сЕ.Мажитов

август

12

ТОО РК «Плазма» ул. Интернациональная 66

Ст. ПРТП ДСПТ,1-я смена

август ночное

13

АО « Международный аэропорт» г. Петропавловска

Начальник ЦОУСС

сентябрь

14

КГПК « Городской дом культуры» ул. Сатпаева,37

Начальник ООПАСРиПП

Октябрь

15

Торгово-строительная база «Гедеон» ул. Я Гашека

Заместитель начальника ГУ «СПиАСР» ДЧС СКО полковник п.п.с. О.Каршалов

ноябрь


Анализ:ПЧ-1СО г. Петропавловска занимается тушением пожаров, но не следует забывать и о противопожарной пропаганде, поэтому начальнику части необходимо уделить большее внимание профессиональной подготовке личного состава. Ответственность за качество подготовки личного состава караулов пожарной части несут начальники частей, их заместители и начальники караулов. На каждый год составляется график проведения тренировочных и контрольно-проверочных пожарно-тактических учений с подразделениями отряда и руководящим составом.

Ежегодно личным составом караулов отрабатываются и корректируются планы и карточки пожаротушения.

Вывод: Организация обучения в подразделении ПЧ-1 СО г. Петропавловска заключается в ежегодном проведении занятий в учебном классе, проведение ПТЗ, ПТУ на охраняемых объектах. Занятия проводятся согласно ежегодным, ежемесячным планам проведения занятий. На каждое занятие в обязательном порядке составляется план проведения занятий.

Предложение: По результатам проведенного анализа, считаю целесообразным для повышения уровня качества работы провести обучающие занятия для младшего и старшего начальствующего состава по работе на электрической вычислительной машине в программе «AutoCAD», тем самым упростить работу и уменьшить время, потраченное на составление планов и карточек пожаротушения. Также обучение в программе «AutoCAD»сотрудникам нужны будут знания не только для составления планов или карточек, но и других проектов.

Организация и проведение занятий

В ПЧ 1 СО г. Петропавловск общественно-государственная, служебная и физическая подготовка, и подготовка личного состава дежурных смен организована в соответствии во исполнение приказа Министерства по чрезвычайным ситуациям Республики Казахстан от 12.07.2010 года за № 245 «Правила подготовки личного состава частей и гарнизонов противопожарной службы МЧС РК» в целях тактической подготовки начальствующего состава государственного учреждения «Служба пожаротушения и аварийно-спасательных работ» Департамента по чрезвычайным ситуациям Северо-Казахстанской области (ГУ «СПиАСР» ДЧС СКО), практической отработки вопросов организации и тактики тушения пожаров, обучения отделений и караулов умелым и тактически грамотным действиям при тушении пожаров и спасании людей, достижения высокого уровня и готовности подразделений. В начале учебного года проводятся вводные занятия по основам тушения пожаров и проведением АСР, пожарно-технической подготовке, охране труда, а также с газодымозащитниками с принятием зачетов. Расписания занятий составляются и утверждаются ежемесячно. Личным составом ведутся специальные тетради по предметам обучения.

В плане учебного года составлены планы самостоятельной подготовки для всего личного состава, где предусматривается составление рефератов. В конце учебного года у всего личного состава принимались зачеты по видам подготовки с выставлением оценок по итогам года. В течение года у всего личного состава принимались зачеты по физической и пожарно-строевой подготовке. В подразделении имеется оборудованный учебный класс, учебно-методическая база, а также спортивный зал, который периодически совершенствуется.

В течение года проводилась стажировки в занимаемой должности. Проводилась специальная подготовка по должности по отдельным категориям сотрудников.

Итоги общественно-государственной, служебной, боевой и физической подготовки ежеквартально рассматривались на оперативных совещаниях. По итогам анализа подготовки проводились мероприятия по улучшению видов подготовки личным составом.

Психологическая подготовка.

Психологическая подготовка пожарного неразрывно связанна с идейно политической морально-волевой, физической, пожарно-тактической, пожарно-строевой подготовки. Оперативная готовность сотрудника МЧС, является благоприятным психологическим состоянием пожарного перед выполнением оперативно тактических действий. Кроме того, боевая готовность весьма положительно сказывается на действиях пожарного, позволяя ему максимально реализовать свои двигательные, интеллектуальные, волевые возможности, таким образом, работа спасателя становится намного эффективнее. Сотрудник Органов Государственной противопожарной службы (ОГПС), должен обладать способностями и качествами, необходимыми, во время проведения работ по тушению пожаров. К таким качествам, прежде всего, относят: ответственность, смелость, психологический эмоциональную устойчивость, решительность, твердый характер и силу воли. Для сотрудника немало важную роль играют особенности нейродинамики и некоторые свойства темперамента. Исследователи установили, что люди с сильной нервной системой со стороны возбуждения имеют большую склонность к напряженной деятельности, чем лица со слабой нервной системой, для которых характерна более высокая тревожность и соответственно более низкая самооценка. Состояние стресса, которое так часто встречается у пожарных в экстремальных условиях, резко ухудшает действия лиц со слабой нервной системой и не оказывает влияния на людей с сильной нервной системой. Таким образом, сотрудники ОГПС МЧС, которые имеют слабую нервную систему, достигают более высоких результатов в профилактической деятельности. Пожарные, которые не склонны к риску, в чрезвычайных ситуациях испытывают более высокий уровень психической напряженности. Такие люди, в отличие от лиц, склонных к риску, боевых усилий в экстремальных условиях не прилагают.

Длительные затруднения в период выполнения оперативного задания работы в условиях опасности порождают в них психическое состояние тревоги, неуверенности в своих силах. Такие лица стремятся по возможности избежать воздействия стресс фактора, вплоть до отказа от выполнения задания. Людей склонных к риску, легко распознать на первых тренировочных занятиях. Психологическая подготовка в подразделениях ОГПС проводится в соответствии с «Программой подготовки личного состава подразделений МЧС Казахстана», утвержденным Положением об Управлении медицины катастроф и психологической службы Министерством по чрезвычайным ситуациям Республики Казахстан 13.10.2010 года №353.Утвержденная приказом Министра по чрезвычайным ситуациям Республики Казахстан В.К. Божко.

Таблица 2.1.2

Проведение психологической подготовки личного состава ПЧ-1 СО на 2013г.

Время проведения

Место проведения

Наличие снарядов на психологической полосе

Ответственный за организацию проведения

1    2

12.03.2013г. по 15.03.2013г.  04.06.2013г. по 07.06.2013г

СПЧ- 2 СО г.Петропавловска

2. Мостик над открытой емкостью с горящей жидкостью; 3. Лабиринт; 4. Открытая емкость с горящей жидкостью; 5. Фрагмент 3-х этажного жилого дома; 6. Кабельный коллектор. 7. Технологическая эстакада; 8. Тепло и дымокамера; 9. Высотная эстакада с горящими оконными проемами на различной высоте; 10. Мишень.

Заместитель начальника ПЧ-1СОг.Петропавловска.

3    4

10.09.2013г. по 13.09.2013г. 12.11.2013г. по 15.11.2013г.



Начальник ПЧ-1СО г. Петропавловска


Анализ: Психологическая подготовка осуществляется непосредственно на занятиях при тренировке в теплодымокамере, ПТЗ, ПТУ в гарнизоне и на объекте с максимально приближенными условиями к пожару. Пожарные подразделения ПЧ-1СО привлекаются на пожары и ПТУ в г. Петропавловска и его районах. На пожарах и на учениях личный состав дежурных смен лучше осваивает практические навыки. В ПЧ-1СО проводят разборы произошедших пожаров в районе выезда, с указанием и описанием всех правильных и неправильных действий личного состава, выявляются их причины и методы по устранению.

В подразделениях проводится деловые игры, как с начальниками дежурных смен, так и с личным составом смен. Личным составом дежурных смен 2 раза в месяц проводятся занятия в СИЗОД в ТДК и на свежем воздухе, одно из них на объекте при ПТЗ. В ПЧ-1 СО отсутствует учебная башня, она находится на территории пожарной части № 4, которая не совсем удобно для подготовки личного состава. В подразделении имеется спортивный зал, что позволяет подготовиться к выполнению физических нагрузок непосредственно на пожарах. Для личного состава дежурных смен проводятся спортивные мероприятия и соревнования. В плохую сторону стоит отметить, что в подразделении ПЧ-1 СО нет восстановительного центра и комнаты психологической и эмоциональной разгрузки, что не позволяет личному составу физически, психологически и эмоционально восстановиться после пожара.

Вывод: Психологическая подготовка оценивается на высокую оценку, но есть ряд моментов, которые негативно сказываются на подготовке личного состава, такие как:

отсутствует комната психологической и эмоциональной разгрузки, что не позволяет личному составу психологически разгрузиться после пожара, что негативно отражается на психологической устойчивости личного состава.

Предложение:

.        выделить кабинет в пожарной части для комнаты психологической и эмоциональной разгрузки;

.        начальнику пожарной части № 1 СО г. Петропавловска выйти с вопросом к выше стоящему руководству о выделении денежных средств на строительство учебной башни на территории ПЧ-1 СО.

Проверка пожарных гидрантов.

На территории района выезда «ПЧ 1 СО г. Петропавловска» имеется 146 пожарных гидрантов. Из них:

в областном центре -72

на объектах хозяйствования - 74.

Пожарных водоемов имеется - 37, из них;

на объектах хозяйствования - 37.

В рамках реализации проекта Корпоративная информационно-коммуникационная система Государственной системы предупреждения и ликвидации чрезвычайных ситуаций, ГУ «СПи АСР» ДЧС СКО проведена работа по определению расположения источников наружного противопожарного водоснабжения по городу Петропавловск в районе выезда ПЧ 1 СО, с координатами, определенными с помощью GPS- навигатора. Для быстрого определения мест установки пожарных гидрантов в планшеты водоисточников добавлены фотографии с точным расположением на местности.

В августе месяце 2013 года была проведена проверка пожарных гидрантов по району выезда ПЧ - 1 СОв областном центре, в результате которого из 72 пожарных гидрантов, количество неисправных пожарных гидрантов составляет - 48, это 66,6% от общего количества. Пожарных водоемов в неисправном состоянии 16, или 42,2% от общего количества. На балансе Кызылжар су из 72 пожарных гидрантов находится - 59,13 ПГ на балансе акимата ( центрального самоуправления).

Ревизия показывает, что мероприятия по ремонту и содержанию пожарных гидрантов проводится не на должном уровне и как следствие количество неисправных гидрантов не снижается. Основными причинами неисправности являются: слабая водоотдача в сети, отсутствие стоянка гидранта не проворачивания штока, отключения от водопроводной сети гидрант, сточены грани квадратного конца штока, смещение стояка отсутствие крышки гидранта. При проведении ревизии выявились проблемные вопросы.

Невозможность осуществлять проверку противопожарного водоснабжения создает угрозу приведения пожарных гидрантов в неудовлетворительное состояния. Руководители водохозяйствующих объектов не несут правовую ответственность за состояние гидрантов.

Сотрудники при тушении пожаров не могут использовать в полной мере имеющиеся пожарные гидранты из-за их неисправности. И как следствие это отражается на времени и качестве тушения пожаров. В 2013 году при подготовке к весенне-летнему периоду была произведена проверка пожарных гидрантов, в ходе которой было установлено:

количество пожарных гидрантов проверки 2013 года составило - 72 шт.;

количество проверенных пожарных гидрантов всего - 72 шт., из них:

Количество исправных и пригодных для целей пожаротушения пожарных гидрантов установленных на городской сети составило - 72 шт.; не пригодных для целей пожаротушения -40 шт. с неисправностями,

Выявленные нарушения в ходе проверки

Закат - 3шт

-       Шток не проворачивается - 5шт;

-       заглушенных - 1шт;

-       Гидрант отключен от водопроводной сети - 7 шт.

-       Стояк снят- 7 шт.

-       Грани квадратного конца штока сточены (сорваны)- 8 шт.

-       Шток занижен -1 шт.

-       Спусковое отверстие забито - 3

-       Стояк занижен - 2

-       Стояк смещен - 3

В целях улучшения состояния противопожарного водоснабжения, а

также его использования при тушении пожаров, предлагается:

Предложение:

.        Повысить ответственность начальника пожарной части за организацией работы подчиненных по осуществлению действенного контроля над состоянием противопожарного водоснабжения;

.        Решить вопрос через директоров предприятий и организаций, а также администрации района и заинтересованными ведомствами о составлении конкретных планов ремонта пожарных гидрантов;

.        Установить контроль над своевременной корректировкой документации по противопожарному водоснабжению.

.2 Экономический расчет

Готовность к оперативному реагированию на тушение пожаров и проведения аварийно-спасательных работ подразделения, прежде всего, зависит от подготовки личного состава, важно чтобы он был морально и психологически подготовлен к ведению оперативно-тактических действий по тушению пожаров и проведению аварийно-спасательных работ. В пожарной части №1 СО отсутствует учебная башня, из-за этого психологическая и профессиональная подготовка пожарных не позволяет реализовать в полном объеме, а именно: не оттачивается мастерство работы с пожарными рукавами, подъем на высоту, ухудшаются временные показатели работоспособности непосредственно на пожаре, не тренируется ловкость, слаженность и скорость при ведении оперативно-тактических действий.

Если предусмотреть учебную башню, то можно значительно повысить уровень готовности оперативно-тактических действий по тушению пожаров и проведения аварийно-спасательных работ данного подразделения как минимум на 0,4 минуты.

Определим экономический эффект на год:

Курс валюты, российский рубль (1 рубль) = 5,2 тенге.

По данным ОНД ПЧ 1 СО - за 2013 год ущерб от пожаров составил 3 731 980 рублей;19 406 296 тенге

Ожидаемое количество вызовов на 2014 год составляет Nвыз.=27 вызовов;

Среднее время ведения тушения пожара составляет Tср.=30=0,5 часа;

Определяем средний ущерб за час пожара:

У1п.=∑У/Tтуш.= 3 731 980 /30=124 399,3 рубля;

У1п.=∑У/Tтуш.= 19 406 294/30= 646876,3 тенге

За 1 минуту ущерб составит 124 399,3 /60 ≈ 2 073,3 рубля, а за 0,5 минут 2 073,3 /2 ≈ 1 036,7 рубля;

За минуту ущерб составит 646876,3/60≈ 10781,3 тенге, а за 0,5 минут 10781,3/2 ≈ 5 391,3 тенге

Определяем ожидаемый ущерб на 2014 г. за 0,5 минуты (УГ)

УГ1п ∙N пож. / год =1 036,7 ∙ 27 = 27 991,84 на год.

УГ1п ∙N пож. / год =5 391,3 ∙ 27=145 565,3 на год

где, У1п - среднее значение за 0,5 минут пожара;пож./год - ожидаемое количество выездов на 2014 г.

Сравниваем приведенные затраты П1и П2

П1=K1=0, C1=0, У1=3 731 980;

П1=K1=0, C1=0, У1=19 406 296 тенге

где, К1 - капитальные вложения;

С1 - текущие затраты;

У1 - величина ущерба.

П2 = Eн ∙ К2 + C2+ У2 = 0,2 ∙ 10 400 + 1 000 + 3 641 517,16 =3 644 597,16 рублей;

П2 = Eн ∙ К2 + C2+ У2 = 0,2∙ 54080+5200+18 933750,3=18 949 766,3 тенге;

где, К2- капитальные вложения (стоимость оборудования)

К2 = Цдоски. ∙ Nдосок. + Цобор. ∙ Nобор+ Цмет. констр. ∙ Nмет. констр. = 106 920 ∙ 4 + 5 000 ∙ 2 + 26 000 ∙ 10 = 697 680 рублей;

К2 = Цдоски. ∙ Nдосок. + Цобор. ∙ Nобор+ Цмет. констр.∙ Nмет. констр.=556 024,3 ∙4+ 26 000 ∙2+135 200∙10= 224 097+52 000+1 352 000=1 628 097 тенге;

где, Цдоски.= ∙ Sдосок.,м2=5400 ∙ 19,8=106 920

где, Цдоски.= ∙ Sдосок.,м2=28080∙19,8 = 556 024,3

 - средняя цена на1 м3 досок;

покр= м2досок.

где, Цобор.=торм. устр=5 000

где, Цобор.=торм. устр= 26 000

стоимость оборудование Ко.=10 000 рублей;52 000 тенге

ремонт = 4%(текущий ремонт)= 10 000 ∙ 0,04 = 400 рублей/год;

ремонт = 4%(текущий ремонт) =52000∙0,04=2 080 тенге/год;

К2= Ко + Р = 10 000 + 400 = 10 400 рублей;

К2= Ко + Р =52000 +2080= 54080 тенге;

где, Цмет. констр.= ∙ Nт.=26 000 ∙ 10 =260 000 рублей;тмет.констр = 12 м.

С2 - текущие затраты (закупка хозяйственного инвентаря) = 1 000 рублей/год;5200 тенге/год;

Схоз.инв= Субор.инв.+ Слкп. = 300 + 700 = 1000 рублей/год;

Схоз.инв= Субор.инв.+ Слкп. =1560 + 3640=5200 тенге/год;

У2= ожидаемая величина ущерба.

У21 - УГ = 3 731 980 - 92 262,84 =3 639 717,16 руб.

У21 - УГ = 19 406 296-479 826,3= 18 926 470,3тенге.

Ээ= П1 - П2 = 3 731 980 - 3 644 597,16 = 87 382,84 рубля;

Ээ= П1 - П2 =19 406 296-18 951 905,3 = 454391,3 тенге

Рассмотрим экономическую эффективность на следующие 5 лет:

П2 = Eн ∙ Срем. + C + У2 = 0,2 ∙ 400 + 1000 + 3 639 717,16 =3 641 517,16 рублей/год;

П2= Eн ∙ Срем. + C + У2 =0,2 ∙ 2080+5200+18 926 470,3=18 933 750,3 тенге/год;

Ээ= (П1 - П2) ∙ Nлет =(3 731 980 - 3 641 517,16) ∙ 5 = 90 462 84 ∙ 5 = 452 314,2 рубля.

Ээ= (П1 - П2) ∙ Nлет =(19 406 296 - 18 933 750,3) ∙ 5= 472 544∙5= 2 362 719,2 тенге.

Сделав вывод из данного экономического расчета, мы можем с уверенностью сказать, что целесообразно было бы выделить денежное средство в размере 697 680 рублей(1 628 097 тенге), чтобы предусмотреть учебную башню, ведь она не только экономически выгодна республике, но и определенно положительно влияет на профессиональную подготовку личного состава.

2.3 Техническая оснащенность подразделения

Средства индивидуальной защиты органов дыхания и зрения.

Дыхательные аппараты серии РА 90 Plus предназначены для индивидуальной защиты органов дыхания и зрения человека от вредного воздействия непригодной для дыхания, токсичной и задымленной газовой среды при тушении пожаров в зданиях, сооружениях и на производственных объектах в диапазоне температур окружающей среды от минус 40 до +60 єС.

Аппараты серии PA90 Plusсостоят из:

• Углепластиковой антистатической несущей конструкции (рамы)

•Профессиональной подвесной системы с широкими ремнями из огнепрочного материалаAramid/Nomex с плечевыми и поясными

накладками (модели PSS 90 иPSS 100) или узкими плечевыми ремнями с накладками и узким поясным ремнем (модель PA 94 PlusBasic)

•Регулируемого ремня с замком «Camlock» для крепления баллона с воздухом.

• Редуктора

• Легочного автомата со сбалансированным поршнем.

В зависимости от длины шланга легочного автомата (короткий или длинный) быстросъемный соединительный штуцер может располагаться на спине (для легочного автомата с длинным шлангом) или на груди (для легочного автомата с коротким шлангом).

Соответствующие модели несущей конструкции (рамы) имеют следующие номера и имеют сертификат пожарной безопасности

PSS 90 с коротким шлангом среднего давления от редуктора (3337000)

PSS 90 с длинным шлангом среднего давления от редуктора (3337007)*

PA 94 PlusBasic с коротким шлангом среднего давления от редуктора (3338912

PA 94 PlusBasic с длинным шлангом среднего давления от редуктора (3338913)*

PA 94 PlusBasic с установленным легочным автоматом ЛА P (3338917)

PSS 100 с Bodyguard (3338003)

PSS 100 с длинным шлангом среднего давления от редуктора (3337664)*


Эти аппараты могут комплектоваться широким ассортиментом баллонов со сжатым воздухом и лицевыми масками. Подробную информацию о вариантах снаряжения и сертифицированных принадлежностях можно получить на фирме Drager или уполномоченных представителей в России по запросу.

Дыхательные аппараты комплектуются по выбору следующими масками:

Панорама Нова P (R54660)

Панорама Нова Стандарт P (R54450)*

Маска имеет пластиковые обрамление стекла и переговорную мембрану

По желанию пользователя фирма Drager может комплектовать свои аппараты и другими масками (например, со стеклом Триплекс или специальным антиабразивным поликарбонатом).

Технические характеристики

Номинальная продолжительность работы аппарата зависит от емкости используемого баллона с воздухом и интенсивности дыхания пользователя.

Среднее время защитного действия (без смены баллона емкостью 6,8 л 7,0 л) при расходе воздуха 30 л/мин и температуре окружающей среды 25єC составляет не менее 60 минут. Среднее время защитного действия (без смены баллона емкостью 6,8 л 7,0 л) при расходе воздуха 30 л/мин и температуре окружающей среды 40єCсоставляет не менее 45 минут.

Среднее время защитного действия (без смены баллона емкостью 9,0 л) при расходе воздуха 30 л/мин и температуре окружающей среды 25єC составляет не менее80 минут.

Среднее время защитного действия (без смены баллона емкостью 9,0 л) при расходе воздуха 30 л/мин и температуре окружающей среды K 40єC составляет не менее 60минут.

Редуктор

Редуктор: 300 бар, Стандарт G 5/8"согласно DIN 477: Часть 6

Вторичное давление редуктора: от 6 бар до 9 бар

Расход воздуха: свыше 1000 л/минпри 20 бар, свыше 500 л/мин

Установка свистка: 55 бар +/- 10 бар (от 50 бар до 60 бар)

Свисток может быть настроен и на другое давление при запасе воздуха в баллоне выше 200 л. Предохранительный клапан редуктора срабатывает при давлении выше 13 бар - 20 бар

Фирма Drager в отличии от других аппаратов они наиболее удобны в обращении с ними, они работают за счет свежего воздуха, что позволяет значительно повышать работоспособность пожарного, а также они являются дешевыми в использовании. При работе в Drдger РА 90 Plus выдается прохладный воздух, что стимулирует пожарного, придавая ему новых сил.

Таблица 2.3.1-Сведенияо имеющихся средствах индивидуальной защиты органов дыхания зрения

Наименование подразделения

Количество Drдger РА 90 Plus

ПЧ-1СО

12 шт.


Вывод: Drдger PA 90Plus зарекомендовали себя на протяжении нескольких лет эксплуатации как аппарат безотказный в работе. Но при затяжном пожаре требуется использование кислородно-изолирующих аппаратов, так как длительность их работы в непригодно дыхательной среде (до 4-х часов) в 2-3 раза превышает аппараты на сжатом воздухе. При этом целесообразно будет приобрести на ближайшее время кислородно-изолирующие аппараты, так как в городе Петропавловск имеются объекты с высокой степени риска, имеющие помещения - взрывопожароопасной и пожароопасной категории такие как «Завод тяжелого машиностроения».

И кроме всего прочего, дыхательные аппараты DrдgerPA 90Plus с течением времени устаревают.

Предложение: В ближайшее время необходимо выделить средства на приобретение современных дыхательных аппаратов: Drдger PSS BG 4, "Спироматик QS".

1.      Со сжатым кислородом Drдger PSS BG 4 - изолирующий от окружающей среды автономный рециркуляционный дыхательный аппарат, который хорошо приспособлен для длительных операций в токсичной среде. Натровая известь поглощает двуокись углерода из выдыхаемого воздуха;

2.      Кислород постоянно добавляется и циркулирует по дыхательному контуру, а не выводится наружу, как в дыхательном аппарате со сжатым воздухом.

В зависимости от тяжести выполняемой работы, возможно время работы до четырех часов.

За счет использования холодильника в дыхательном контуре воздух поступает на вдох с комфортной температурой даже при повышенной температуре окружающей среды.

Эргономичная конструкция, малая масса и улучшенная подвесная система обеспечивают высокую подвижность и уменьшают физические нагрузки.дger PSS BG 4 просто и удобно собирается и разбирается без дополнительных инструментов.

Дыхательный аппарат оборудован полностью электронным устройством предупреждения и сигнализации DrдgerManBodyguard.

В течение работы он предоставляет пользователю важную информацию, например, о давлении в баллоне, остаточной длительности работы или температуре. Информация представляется в оптической и акустической форме, аналоговом и цифровом виде. Используя (опциональный) передатчик, данные, зарегистрированные DragerManBodyguard II, можно передать системе мониторинга Drдger PSS Merlin.

. Новейший дыхательный аппарат с уникальными возможностями со сжатым воздухом «SpiromaticQS».

Дыхательный аппарат на сжатом воздухе (ДАСВ) "Спироматик QS" производства компании Interspiro, Швеция, предназначен для индивидуальной защиты органов дыхания и зрения человека от вредного воздействия непригодной для дыхания, токсичной и задымленной газовой среды при тушении пожаров и ликвидации аварий с выбросом опасных для жизни и здоровья химических веществ в диапазоне рабочих температур от -40°С до +60°С. Время защитного действия дыхательного аппарата составляет не менее 60 минут при использовании одного баллона со сжатым воздухом.

В стандартный комплект входят:

       Полнолицевая маска "Спироматик", тип S, в сборе с легочным автоматом, разговорной мембраной и клапаном переключения на дыхание атмосферным воздухом;

         Анатомическая спинка из высокопрочных композитных материалов с подвижным креплением поясного ремня и подмягчающими подушками плечевых ремней;

         Нерегулируемый редуктор высокой производительности (до 1350 л/мин.) со шлангами и дополнительным разъемом для подключения маски спасаемого или системы вентиляции изолирующего костюма газовой и химической защиты;

       Манометр и сигнальное устройство;

         Металлокомпозитный баллон БК-7-300С (6,8 литра/300 бар) с установленным вентилем, оснащенным механизмом блокировки от случайного закрытия.

Таблица 2.3.2

Технические характеристики "Спироматик QS"

Время защитного действия, не менее 60 мин


Количество баллонов, шт.

1

Обозначение баллонов

БК-7-300С

Материал баллона

Композитный (сталь или алюминий)

Вместимость баллона, л

7

Рабочее давление, МПа

29,4

Величина подпора при нулевом расходе, Па

180

Сопротивление на выдохе, Па не более

350

Масса снаряженного аппарата, кг

12

Срок службы, лет

10


Конкурентные преимущества ДАСВ "Спироматик QS"

ДАСВ "Спироматик QS" - один из самых современных дыхательных аппаратов, который предлагается на российском рынке (впервые появился на мировом рынке в 2003 году, в России - 2004 год).

ДАСВ "Спироматик QS" - один из самых легких дыхательных аппаратов. Он имеет максимально облегченную анатомическую спинку, вес которой в сборе с редуктором и шлангами не превышает 4,2 кг. Вес ДАСВ "Спироматик QS" в снаряженном состоянии в комплекте с металлокомпозитным баллоном БК-7-300С не превышает 12 кг.

ДАСВ "Спироматик QS" имеет подвижное (шарнирное) крепление поясного ремня. За счет этого самая тяжелая часть ДАСВ - баллон со сжатым воздухом, не перемещается полностью вместе со спиной пожарного (спасателя) в то время как он нагибается, идет по лестнице или выполняет другие движения. Это снижает нагрузку на спину спасателя, повышая его работоспособность и снижая утомляемость.

Все ДАСВ "Спироматик QS" в стандартной комплектации всегда имеют дополнительный разъем для подключения шланга вентиляции изолирующего костюма или маски спасаемого (возможно одновременное подключение обеих устройств).Полнолицевая маска типа S, входящая в состав стандартной комплектации ДАСВ "Спироматик QS", оснащена клапаном переключения на дыхание воздухом из атмосферы. Это устройство позволяет экономить запас сжатого воздуха в баллоне в то время, как пожарный (спасатель) находится в незагазованной атмосфере. Полнолицевая маска дыхательного аппарата "Спироматик QS" имеет самый низкий боковой профиль за счет поперечного крепления легочного автомата, что снижает риск того, что пожарный зацепится ей за выступающий объект в условиях работы в стесненных загазованных помещениях. Редуктор ДАСВ "Спироматик QS" имеет очень высокую пропускную способность - до 1350 литров воздуха в минуту. Благодаря этому пожарный (спасатель) никогда не будет испытывать недостатка воздуха даже в ситуациях, когда к ДАСВ подключены дополнительные устройства (маска спасаемого и система вентиляции изолирующего костюма).

Металлокомпозитный баллон БК-7-300С, которым комплектуется ДАСВ "Спироматик QS", оснащен вентилем с механизмом блокировки от случайного закрытия; Техническое обслуживание ДАСВ "Спироматик QS" производится самостоятельно организацией-потребителем без привлечения платных услуг сервисных дилеров. Для осуществления этого механики организации-потребителя проходят бесплатное обучение с выдачей именного сертификата направо, их выполнения.

Средства связи

Таблица 2.3.3

Сведения об оснащенности пожарных частей гарнизона средствами связи

Наименование

ПЧ-1СО

кол-во пожаров с 2009- по 2013г.

кол-во отказов

Кенвуд

4 шт. 1991г.

5013

 630

Айком

5 шт. 1995г.


 441

Пальма

4 шт. 1998г.


485

Маяк

3 шт. 1992 г.


345

всего

16

38%

1901


Вывод: Как видно из показателей таблицы 2.3.3 средства связи в подразделении ПЧ-1СО морально устарели и плохо показывают себя в эксплуатации. Часто были отказы в работе, такие как, слабый прием информации из-за малого радиуса связи, батареи выработали свой ресурсы. Проблематичная зарядка батареи и большие габариты служили к снижению оперативности при их использовании. Также по таблице видно, что общее количество пожаров составляет 5013 за 5 лет из них 1901 количество отказов средств связи ПЧ 1 СО г. Петропавловск. Необходимо отметить что, в условиях пожара при выполнении задач звеньями ГДЗС трудно, а порой вообще невозможно вести радиообмен.

Предложение: Начальнику части выйти с предложением к вышестоящему руководству по закупке новых радиостанций в подразделение таких как: VertexStandard VX-231, Yaesu VX-6R.

Новая портативная радиостанция (рация) Vertex Standard VX-231 постепенно заменит в модельном ряду завоевавшую огромную популярность радиостанцию (рацию) VertexStandardVX-160 <#"783154.files/image004.gif"> ,

где: N1 - число сотрудников, уволенных за анализируемый период;- среднесписочная численность сотрудников подразделения за анализируемый период времени.

Так же определяется коэффициент стабильности кадров:

,

где: N2 - число сотрудников со стажем работы 3 и более лет- среднесписочная численность сотрудников подразделения за анализируемый период времени.

4.3 Количество уволившихся сотрудников и среднесписочная численность этой категории

Таблица 4.3.1.

Текучесть кадров на период с 2009 года по 2013 год и причины увольнений.

Год

Всего уволено

По отрицательным мотивам

По выслуге срока службы

По собственному желанию

1

2009

2

1

0

1

2

2010

5

0

3

2

3

2011

7

0

3

4

4

2012

11

0

7

4

5

2013

1

0

1

0


Исходя из результатов проведённого исследования, можно сделать вывод о том, что текучесть кадров была наибольшей на 2012 год, также в 2012 году была, плановая аттестация у сотрудников пожарной охраны и это показало свои результаты, а наименьшая текучесть кадров на 2013 год, потому что 2013 году РК вышло положение о повышении заработной платы. Таким образом, из рисунка17 видно, что в последние 5 лет идет тенденция к укреплению кадров на своих рабочих местах.

4.4 Расчет коэффициента стабильности среди личного состава ПЧ-1СО за период с 2009 года по 2013 год

Таблица 4.4.1.

Результаты расчета коэффициента стабильности среди личного состава ПЧ-1 СО

Года

Стаж работы 3 и более лет

Количество сотрудников N

Кст %

1

2009

42

56

75,3

2

2010

44

57

77,3

3

2011

44

57

77,6

4

2012

45

56

80.8

5

2013

46

57

80,8


Выполненный расчет позволяет сделать вывод о том, что наибольшей устойчивостью личного состава являлся 2012 и 2013годы. Также из графика видно, что в последние годы идет склонность к стабильности. Данный показатель показывает, что в субъектах служба в пожарной охране престижна.

4.5 Дисциплинарная практика в ПЧ-1 СО

Таблица 4.5.1

Показатели дисциплинарной практики на период с 2009 года по 2013 год в ПЧ-1 СО.

Год

Всего

Замечание

Выговор

Строгий выговор

Неполное служебное соответствие

2009

7

1

2

3

1

2010

10

3

4

2

1

2011

8

4

1

3

0

2012

6

1

2

2

1

2013

4

1

1

1

1


Анализ: Наибольшее количество взысканий пришлось на 2010 год. Выявленные нарушения были сделаны личным составом из-за отсутствия опрятного вида, такие как нарушения движения на место пожара, нарушение субординации.

Например: В 2009 году сержант противопожарной службы, испортил пожарный автомобиль, опрокинув его на повороте дороги.

За данное нарушение руководством ГУ «СП иАСР» ДЧС СКО было принято решение что, сержанту внутренней службы объявить дисциплинарное взыскание в виде «строгий выговор».

В 2010 году старшина противопожарной службы старший пожарный прибыл на утренний развод для приемки и сдачи дежурства с побоями на лице и был замечен руководством ОГПС, начальником ОГПС было принято решение наказать в виде дисциплинарного взыскания «замечание».

Вывод: В ПЧ-1 СО состояние дисциплинарной практики носит адекватный и в полной мере справедливый характер, но необходимо отметить, что состояние служебной дисциплины носит неудовлетворительный характер.

Руководством подразделений плохо контролируется занятость личного состава в быту и на службе, не в полном объеме доводится беседы о вреде курения в неустановленных местах, о ношении служебного удостоверения. Журнал проведения бесед личным составом ведется для отвода глаз.

Предложение: Заместителю начальника ПЧ 1 СО г. Петропавловска обратить внимание на служебную дисциплину личного состава. Провести беседу с записью в журнале индивидуально-воспитательной беседы «требования ношения формы одежды», «о правильном поведении в общественных местах». Руководителю данного подразделения обратить особое внимание на служебную дисциплину, проводить на сменах караулов смотр формы, одежды пожарного, наличие служебного удостоверения.

Провести занятия по основным направлениям таких как: государственно-патриотическое профессионально-нравственное. Воинское; экономическое; эстетическое; физическое; экологическое.

Произвести реализацию задач по воспитательной работе:

) информационно-воспитательной работе;

) по укреплению дисциплины и правопорядка;

)социальной работе;

) психологической работе;

5) культурно - досуговойработе.

4.6 Распределение по возрасту личного состава ПЧ-1 СО

Таблица 4.6.1.

Распределение среднего возраста личного состава на 01.01.2014 год ПЧ-1 СО.

Возраст

Число сотрудников

Середина интервала

Сумма

18-23

2

20,5

41

23-28

7

25,5

178,5

28-33

17

30,5

518,5

33-38

19

35,5

674,5

38-43

6

40,5

243

43-48

6

45,5

273

57

-

1933


 

Сделав вывод по анализу результатов предположительно можно сделать следующий вывод относительно изменения возраста личного состава, что большая часть сотрудников в возрасте 33 - 38 года. Именно в этой возрастной категории находятся наиболее опытные и подготовленные сотрудники пожарной охраны, которые могут хорошими наставниками для молодых сотрудников. Также можно сделать вывод, что молодежи с возрастом до 23 лет практически нет.

Заместителю начальника части по кадрам и воспитательной работе - проводить агитацию и подачу объявление в средства массовой информации о необходимости набора молодёжи на службу в пожарную охрану.

4.7 Распределение личного состава ПЧ-1 СО по стажу службы

Выслуга лет при работе в пожарной охране является одним из основных показателей профессионализма сотрудников ОГПС. Используя предыдущий способ, - проанализируем распределение сотрудников по стажу службы.

Ниже приведено распределение личного состава по стажу службы в пожарной охране соответственно на 01.01.2009 год и 01.01.2014 год.

Таблица 4.7.1

Исходные данные для расчета среднего стажа службы личного состава на 01.01.2009 год

Стаж службы

Число сотрудников

Середина интервала

Сумма

0-5

3

2,5

8

5-10

4

7,5

30

10-15

16

12,5

200

15-20

19

17,5

333

20-25

9

22,5

203

25-30

5

27,5

138

56


919

Средний стаж = 919/56=16,41

Таблица 4.7.2

Исходные данные для расчета среднего стажа службы личного состава на 01.01.2014 год

Стаж службы

Число сотрудников

Середина интервала

Сумма

0-5

5

2,5

13

5-10

4

7,5

30

10-15

16

12,5

200

15-20

17

17,5

298

20-25

9

22,5

203

25-30

6

27,5

165

57

Средний стаж =909/57=15,94

Рассчитав полученные данные можно сделать вывод, что средний стаж службы личного состава ПЧ-1СО уменьшился на 0,47года. Это послужило тому, что большинство уволившихся сотрудников были с высоким стажем службы, мотив увольнения послужило причина достижения предельного возраста. Поэтому заместителю начальника по кадрам ПЧ-1СО необходимо обратить внимание на набор молодых кадров, сразу после армии. Потомучто после армии люди более подготовлены физически, морально, а также выносливы и дисциплинированны. Способ набора осуществить при взаимодействии с военкоматом города.

4.8 Распределение личного состава ПЧ-1 СО по образованию

Таблица 4.8.1 Распределение личного состава по образованию на 01.01.2009 год и 01.01.2014 год

Образование

2009год

2014год



Количество сотрудников

%

Количество сотрудников

%

1

Высшее

14

25

20

35

2

Среднее

18

30

21

36

3

Начальное профессиональное

25

45

16

29

4

всего

57

100

57

100


Распределение сотрудников по видам высшего образования на 2014 г.

Высшее образование

2014год



Количество сотрудников

%

1

Экономическое

1

5

2

Педагогическое

2

10

3

Инженер ПБ

6

30

4

Техническое профессиональное

6

30

5

Техническое общее

4

20

6

Юридическое

2

10

7

всего

20

100


Распределение сотрудников по видам среднего образования на 2014 г.

Среднее образование

2014год



Количество сотрудников

%

1

Экономическое

0

0

2

Педагогическое

2

9,6

3

Техники ПБ

6

28,5

4

Техническое профессиональное

7

33,3

5

Техническое общее

5

23,8

6

Юридическое

1

4,8

7

всего

21

100


Анализ: Из представленной выше таблицы 4.8.1 и графика за отчетный период количество сотрудников имеющих высшее профессиональное образование среди личного состава отряда увеличилось не значительно (с 25% до 35%).Сотрудников имеющих средне профессиональное образование увеличилось (с 30% до 36%). Сотрудников имеющих начальное профессиональное (среднее общее) образование уменьшилось (с 45% до 29%).

Вывод: В ПЧ- 1 СО г. Петропавловска большой процент повышения уровня образования состоит из числа младшего и среднего начальствующего состава, который постоянно желает повышать свои знания не только в области пожарной безопасности, но и в областях других наук. Также в системе Министерстве по чрезвычайным ситуациям Республики Казахстан повысились требования к сотрудникам, имеющим высшее профессиональное и средне профессиональное образование: средний начальствующий состав например,(начальник караула) должен иметь высшее профессиональное образование (бакалавр), а руководящие должности (начальники части) высшее профессиональное (специалист) подготовку по государственному и муниципальному направлению, начальник отряда высшее профессиональное (магистр).

4.9 Изучение состояния морально-психологического климата коллектива в ПЧ 1 СО г. Петропавловска

В ходе социологического исследования применялась анкета, разработанная кафедрой. В опросе принимало участие 81% сотрудников ПЧ 1 СО г. Петропавловска. Анкетирование проводилось с целью изучения морально-психологического климата в подразделении и удовлетворенность работой.

По итогам исследования были получены следующие данные

Таблица 4.8.2

Номер вопроса

Вопросы

Доволен

В основном доволен

Не очень доволен

Не доволен

Не знаю


%

%

%

%

%

1

В какой степени Вы удовлетворены взаимоотношениями в коллективе?

70

11

0

0

0

2

Довольны ли вы результатами своей работы?

81

0

0

0

0

3

В какой степени Вы удовлетворены отношением членов коллектива к выполнению своих обязанностей?

40

20

10

0

13

4

Довольны ли Вы организацией работы?

39,5

49

11,5

0

0

5

В какой степени Вы удовлетворены режимом работы?

60

23

0

0

0

6

В какой степени Вы удовлетворены сплоченностью коллектива ?

77

3

3

0

0

7

В какой степени Вы удовлетворены возможностью открыто выступать с критикой?

50

10

10

0

13

8

В какой степени Вы удовлетворены перспективами своего «роста?

70

5

5

0

3

9

В какой степени Вы удовлетворены своим участием в управлении делами коллектива?

79,3

9,7

0

0

0

10

Довольны ли Вы учетом мнений и предложений подчиненных руководителями?

0

50

20

13

0

11

Довольны ли Вы материальной обеспеченностью?

81

0

0

0

0

12

В какой степени Вы удовлетворены решением жилищного вопроса?

0

57,5

14,5

11

0

13

В какой степени Вы удовлетворены работой с молодыми сотрудниками?

0

63,7

16,3

3

0

14

В какой степени Вы удовлетворены профессиональной подготовленностью товарищей по работе?

58

25

0

0

0

15

В какой степени Вы удовлетворены справедливостью решения проблем коллектива?

23

22

11

44

0


Вывод: В ходе анализа анкетирования выявлено, что в целом работники и сотрудники ПЧ - 1 СО г. Петропавловска довольны своей работой, отношениями, сложившимися в коллективе и материальным обеспечением, за исключением обеспечения жильем и решением спорных вопросов с руководством.

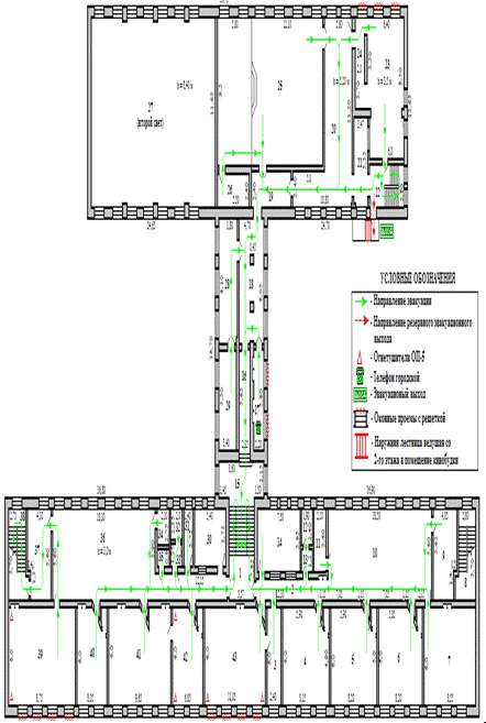
ПЛАН ТУШЕНИЯ ПОЖАРА

ГУ средняя школа № 43 им. Г. Мусрепова,

расположенного по адресу г. Петропавловск, ул. Новая, 116

Расстояние от ближайшей пожарной части:

расстояние от ПЧ-1 СО г. Петропавловска составляет 1,8 км.

Кратчайший маршрут следования:

От ПЧ-1 СО г. Петропавловска по улицам Г. Мусрепова, Ж. Жабаева,

Строительная, Новая.

Расчетное время прибытия первого пожарного подразделения: 3 минут.

Номера телефонов:

Руководство: 42-55-98

Сторож: 42-55-98

Негосударственная противопожарная служба: нет

Диспетчерская служба: нет

СОДЕРЖАНИЕ

1. РАЗДЕЛ. «Оперативно-тактическая характеристика»

.1 Функциональное назначение объекта        

.2 Перечень организаций и учреждений, входящий в состав объекта

.3 Общая площадь территории объекта

.4 Степень огнестойкости зданий и сооружений

.5 Этажность зданий и сооружений (высота этажа)

.6 Вид строительных конструкций зданий

.7 Противопожарное водоснабжение

.8 Данные о пожарной нагрузке в помещениях

.9 Особенности технологического процесса производства        

.10 Система противопожарной защиты объекта

.11 Сведения о характеристиках электроснабжения, отопления и вентиляций

РАЗДЕЛ. «Прогноз развития пожара»

.1 Определение возможных мест возникновения пожара, которые определяются исходя из реальной обстановки на объекте и (или) требуется привлечение наибольшего количества сил и средств для его ликвидации

.2 Пути возможного распространения огня

.3 Степень угрозы жизни и здоровью людям

.4 Места возможных обрушений строительных конструкций и оборудования

.5 Возможные зоны задымления и прогнозируемая концентрация продуктов

.6 Параметры возможной зоны теплового воздействия

.7 Возможные параметры пожара

РАЗДЕЛ. «Организация проведения спасательных работ»      

.1 Численность преподавательского состава и учащихся, о местах нахождения

.2 Сведения обучащихся, не имеющих возможность самостоятельно передвигаться

.3 Сведения об эвакуационных путях и выходах из здания

.4 Сосредоточение людей в помещениях, места эвакуации их в зимнее время

.5 Порядок проведения спасательных работ

.6 Привлекаемая техника для выполнения спасательных работ

.7 Порядок оказания медицинской помощи пострадавшим

.8 Расчет времени эвакуации людей из здания

.9 Сравнительный анализ времени эвакуации и времени прибытия первых подразделений противопожарной службы

РАЗДЕЛ. «Организация тушения пожара подразделениями противопожарной службы»

.1 Рекомендуемые средства и способы тушения пожара

.2 Расчет необходимого количества сил и средств

.3 Организация тушения пожара подразделениями противопожарной службы

.4 Расчетные и справочные данные, необходимые для обеспечения управления подразделений противопожарной службы при пожаре

РАЗДЕЛ. «Организация взаимодействия подразделений противопожарной службы со службами жизнеобеспечения объекта и города, населенного пункта (района)»

.1 Выделяемые участники взаимодействия при получении сообщения о Пожаре

.2 Организация привлечения и связи всех участников взаимодействия

.3 Система взаимного обмена информацией

.4 Порядок взаимодействия всех служб, принимающих участие в тушении пожара

РАЗДЕЛ. «Оперативный раздел»

.1 Краткая оперативно-тактическая характеристика организации

.2 Сводные данные расчета необходимого количества сил и средств противопожарной службы при каждом варианте тушения пожара

.3 Сведения о количестве сил и средств противопожарной службы, времени их прибытия, типах пожарных автомобилей и их укомплектованность личным составом и специальными техническими средствами

.4 Рекомендации руководителю тушения пожара, оперативному штабу пожаротушения и тылу на пожаре о первоочередных действиях при пожаре

РАЗДЕЛ. «Требования охраны труда и техники безопасности»

.1 Требования техники безопасности при тушении пожаров в условиях особой опасности для личного состава

РАЗДЕЛ «Учет использования оперативного плана тушения пожара»

.1 Сведения о применении оперативного плана тушения пожара: на пожарах; при проведении занятий по пожарно-профилактической и тактической подготовке; учениях; отметки о корректировке

РАЗДЕЛ. «Приложения»

9.1 План - схема объекта на местности ( генеральный план)

9.2 Схема расположения водоисточников

.3 Схемы развертывания подразделений противопожарной службы с указанием количества ручных пожарных стволов, которые можно подать от пожарных автомобилей

.4 Ситуационная схема

9.5 Поэтажные планы

1 РАЗДЕЛ. «Оперативно-тактическая характеристика»

1.1    Функциональное назначение объекта

Общеобразовательная деятельность.

.2 Перечень организаций и учреждений, входящий в состав объекта

На территории имеется здание средней школы № 43, других организаций и учреждений на территории школы нет.

1.3    Общая площадь территории объекта

Общая площадь территории составляет 1,4622 Га.

Площадь застройки 0,4202 Га.

1.4 Степень огнестойкости зданий и сооружений

Степень огнестойкости здания школы -III

(СНиП РК 2.02.-05-2002., таблица 2)

1.5 Этажность зданий и сооружений (высота этажа)

Здание средней школы имеет два корпуса, соединенных капитальным проходом. Главный корпус трехэтажный, а вспомогательный корпус двухэтажный, подвал отсутствует. Высота каждого этажа 3м. Общая высота здания, от уровня земли включая кровлю-13,5м.

1.6 Вид строительных конструкций зданий

Фундамент: железобетонные блоки.

Половое покрытие: бетон, досчатые, половая плитка, линолеум.

Несущие стены: кирпичные.

Наружная отделка: штукатурка.

Внутренняя отделка: оштукатурено, побелено, окрашено.

Перегородки: кирпичные.

Перекрытия: железобетонные плиты.

Кровля: шиферная по деревянной обрешетке.

Количество пожарных лестниц: 1.

Двери: пластиковые, металлические, деревянные.

Окна: пластиковые, деревянные двухстворчатые.

1.7 Противопожарное водоснабжение

Первичные средства тушения:

В школе имеются огнетушители:ОП-5 - 10 шт. На каждом этаже по 2 штуки.

- Внутреннее водоснабжение (наличие пож. кранов, их номер и давление):

Внутреннее противопожарное водоснабжение имеется (6 пожарных кранов, расположены на лестничных площадках главного корпуса, Р-1,5атм.)

Наружное водоснабжение (наличие пож. гидрантов их номер и давление, пож. водоемов, естественных водоемов - как на территории, так и за ее пределами): На территории объекта пожарные водоемы и ПГ отсутствуют.

ПГ-214,D-150К, Р-2 атм., расположен за территорией школы с северной стороны, в 20м. от здания. Ближайший ПГ-364,D-150К, Р-2 атм., по адресу ул. Новая 120, в 30м. от здания школы.

1.8 Данные о пожарной нагрузке в помещениях

Пожарная нагрузка в основном находится в пределах 10-40 кг/м2. В основном это мебель, оборудование, находящееся в помещениях, горючие материалы наружной и внутренней строительной отделки помещений. Огонь распространяется со скоростью 0,6-1,0 м/мин. В некоторых помещениях (кладовые, склады, залы и т.д.) пожарная нагрузка, как и скорость распространения огня, может быть значительно больше.

1.9 Особенности технологического процесса производства

В здании и на территории объекта технологические процессы производства не проводятся. Взрывопожароопасные, радиоактивные, химические, вещества и материалы, вступающие в реакцию с водой, отсутствуют.

1.10 Система противопожарной защиты объекта

В здании имеется охранно-пожарная сигнализация, оборудовано пожарной сигнализацией - ВЭРС, система пожаротушения (ПК) - имеется, громкая связь - имеется, системы видеонаблюдения - кнопки тревожной сигнализации (Контроль состояния шлейфа пожарной сигнализации (ШС) с установленными в него пожарными извещателями, выдача с помощью реле извещений ПОЖАР/НЕИСПРАВНОСТЬ/ВНИМАНИЕ) с выводом сигнала в помещение охранника. Автоматическое извещение отсутствует, автоматическая система пожаротушения отсутствует, системы противодымной защиты нет.

1.11 Сведения о характеристиках электроснабжения, отопления и вентиляции

Освещение: Лампы накаливания и люминесцентные лампы, а также лампы дневного света. Напряжение с сети энергоснабжения 220 V, в отношении надежности и бесперебойности электроснабжения здание относится ко второй категории потребителей электроэнергии, за исключением аварийного освещения, приборов пожарно-охранной сигнализации относящимся к первой категории электроснабжения.

Питание щита предусматривается от трансформаторной подстанции ТП. Электроснабжение здания от внешней электросети 380 / 220 В., переменного тока, частотой 50 Гц.

Отключение электроэнергии может осуществляться от электрических щитов, расположенных на лестничных площадках. Отключение производится персоналом (электриком или охранником). В случае задымления помещений и других причин, отключение электроэнергии надо производить от трансформаторной подстанции сотрудниками аварийной службой гор. электросети согласно инструкции о взаимодействии (Соглашение от 22.02.2011 года).

Отопление: Источником тепла для системы отопления является существующие наружные тепловые сети. Теплоноситель - вода. Отопление центральное.

Вентиляция и кондиционирование: В здании школы запроектирована приточно-вытяжная вентиляция с естественным побуждением.

2 РАЗДЕЛ. «Прогноз развития пожара»

.1 Определение возможных мест возникновения пожара, которые определяются исходя из реальной обстановки на объекте и (или) требуется привлечение наибольшего количества сил и средств для его ликвидации

Возникновение пожара возможно:

на кухне, в обеденном зале.

в актовом зале, в спортивном зале и складе.

в кабинетах и комнатах.

вследствие перегрузок, коротких замыканий электропроводки, неосторожное обращение с огнем и других причин.

2.2 Пути возможного распространения огня


2.3 Степень угрозы жизни и здоровью людям

В реальных условиях пожара основными факторами, вызывающими потерю сознания или смерть людей, являются: прямой контакт с пламенем, высокая температура, недостаток кислорода, наличие в дыму окиси углерода и других токсичных веществ, механические воздействия. Наиболее опасны недостаток кислорода и наличие токсичных веществ, т.к. около 50 - 60% смертей при пожарах происходит от отравления и удушья.

Опыт показывает, что в закрытых помещениях снижение концентрации кислорода в отдельных случаях возможно по истечении 1 - 2 мин. с начала возникновения пожара.

Особую опасность для жизни людей на пожарах представляет воздействие на их организм дымовых газов, содержащих токсичные продукты горения и разложения различных веществ и материалов. Так, концентрация окиси углерода в дыме в количестве 0,05% является опасной для жизни людей.

В некоторых случаях дымовые газы содержат сернистый газ, окислы азота, синильную кислоту и другие токсичные вещества, кратковременное воздействие которых на организм человека даже в небольших концентрациях (сернистый газ 0,05; окислы азота 0,025%; синильная кислота 0,2%) приводит к смертельному исходу.

Чрезвычайно высока потенциальная опасность для жизни человека продуктов горения синтетических полимерных материалов.

Опасные концентрации могут образоваться даже при термическом окислении и разрушении небольших количеств синтетических полимерных материалов.

С учетом того, что синтетические полимерные материалы составляют в современных помещениях более 50% всех материалов, нетрудно заметить, какую опасность они представляют для людей в условиях пожара.

Опасно для жизни людей также воздействие на них высокой температуры продуктов горения не только в горящем, но и в смежных с горящим помещениях. Превышение температуры нагретых газов над температурой человеческого тела в таких условиях приводит к тепловому удару. Уже при повышении температуры кожи человека до 42 - 46 °С появляются болевые ощущения (жжение). Температура же окружающей среды 60 - 70 °С является опасной для жизни человека, особенно при значительной влажности и вдыхании горячих газов, а при температуре выше 100°С происходит потеря сознания и через несколько минут наступает смерть.

Не менее опасной, чем высокая температура, является воздействие теплового излучения на открытые поверхности тела человека.

Так тепловое облучение интенсивностью 1,1 - 1,4 кВт/м2 вызывает у человека те же ощущения, что и температура 42 - 46 °С.

Критической же интенсивностью облучения считают интенсивность, равную 4,2 кВт/м2.

Еще большей опасности подвергаются люди при непосредственном воздействии пламени, например, когда огнем отрезаны пути спасения. В некоторых случаях скорость распространения пожара может оказаться настолько высокой, что застигнутого пожаром человека спасти очень трудно или невозможно без специальной защиты (орошение водой, защитная одежда). К серьезным последствия приводит и загорание одежды на человеке. Если своевременно не сбить пламя с одежды, то человек может получить ожоги, которые обычно вызывают смерть.

Наконец, большой опасностью при пожаре является паника, представляющая собой внезапный, безотчетный, неудержимый страх, овладевающий массой людей. Она возникает от неожиданно появившейся опасности. Люди сразу ставятся перед лицом грозной стихии, сознание и воля подавляются впечатлением от пожара, невозможностью сразу же найти выход из создавшегося положения.

2.4 Места возможных обрушений строительных конструкций и оборудования

Обрушения строительных конструкций возможно в случаи длительного воздействия на них прямого источника огня, учитывая минимальный предел огнестойкости строительных конструкций, расположенных в зданиях III степени огнестойкости. Для перекрытий составляет 35 минут, а время подачи стволов, для осуществления охлаждающих и защитных действий составит более 10 минут, в случаи возникновения возгорания на данном объекте тем самым можно избежать обрушения перекрытий устроенных в данном здании.

2.5 Возможные зоны задымления и прогнозируемая концентрация продуктов горения

Из-за возникновения мощных конвективных потоков в зону задымления попадут помещения, смежные с тем, в котором произошел пожар. Вероятна плотная концентрация продуктов горения.

2.6 Параметры возможной зоны теплового воздействия

Зона теплового воздействия будет примыкать к зоне горения, а также проходить на путях движения разогретых газовых потоков продуктов горения.

2.7 Возможные параметры пожара

При возникновении пожара в одном из помещений, к моменту прибытия первых пожарных подразделений они частично или полностью будут охвачены огнем с угрозой распространения на смежные помещения.

3 РАЗДЕЛ. «Организация проведения спасательных работ»

.1 Численность преподавательского состава и учащихся, сведения о возможных местах их нахождения

Количество обслуживающего персонала:

днем: 101 человек (в две смены).

ночью: 1 сторож

Их места расположения различны. Могут находиться в кабинетах, в актовом зале, подсобных помещениях, кухне, спортзале и т.д. Данная категория людей не всегда способна самостоятельно передвигаться в нужном направлении и принимать решения.

Количество детей:

днем: 757 учащихся + 50 детей (мини-центр).

ночью: отсутствуют

Их места расположения различны.

3.2 Сведения о людях, не имеющих возможность самостоятельно передвигаться

Данная категория людей в данном учреждении отсутствует.

.3 Сведения об эвакуационных путях и выходах из здания

Общее количество эвакуационных выходов 6 (один центральный вход-выход, пять служебных входа-выхода).

3.4 Сосредоточение людей в помещениях, места эвакуации их в зимнее время

Как правило, в случае возникновения пожара, часть людей, оставшиеся в задымленной зоне, создают панику и теряют ориентацию, а значит, моментально не могут выбрать путь к выходу.

Другая часть людей следует в сторону эвакуационных выходов или оконных проемов. Обслуживающему персоналу следует указать пути эвакуации.

В зимнее время эвакуацию людей необходимо проводить в отапливаемое помещение, безопасное от воздействия огня и дыма. Если нет данных условий, то эвакуацию необходимо проводить в ближайшее отапливаемое учреждение. В данном случае здание школы № 5, расположенной по адресу ул. Мира, 195 на расстоянии 100м. от средней школы № 43.

3.5 Порядок проведения спасательных работ

Спасание людей на пожаре является важнейшим видом боевых действий и представляет собой совокупность мер по эвакуации людей из зоны воздействия опасных факторов и их вторичных проявлений.

Спасательные работы организуются и проводятся в том случае, если:

людям угрожает огонь, высокая температура, опасность взрыва или обрушения конструкций, либо помещения, где они находятся, заполнены дымом или вредными газами;

люди не могут самостоятельно покинуть опасные места или находятся в состоянии паники;

имеется угроза распространения огня и дыма по путям эвакуации;

предусматривается применение опасных для жизни и здоровья людей огнетушащих веществ и составов.

Спасание людей при пожаре должно проводиться с использованием способов и технических средств, обеспечивающих наибольшую безопасность и, при необходимости, с осуществлением мероприятий по предотвращению паники.

Спасание людей на пожаре, как правило, проводится с одновременным развертыванием сил и средств, для тушения пожара.

Подача стволов для обеспечения условий безопасного спасания людей обязательна, если людям непосредственно угрожает огонь, и пути спасания отрезаны или могут быть отрезаны огнем.

Если сил и средств недостаточно для одновременного проведения работ по спасанию людей и тушению пожара, для спасания людей используется весь личный состав подразделений противопожарной службы, и вызываются дополнительные силы и средства, другие боевые действия не ведутся.

Для спасания людей используются кратчайшие и безопасные пути:

основные входы и выходы.

оконные проемы и балконы

При проведении спасательных работ необходимо:

- принять меры по предотвращению паники, используя систему внутреннего оповещения и другие средства;

привлечь администрацию, обслуживающий персонал, членов противопожарных формирований;

предусмотреть места для временного размещения спасаемых.

Если имеются сведения о местах нахождения людей и спасающие их там не находят, необходимо тщательно осмотреть и проверить все задымленные и соседние с горящим помещения, в которых могут оказаться люди.

Поиск людей прекращается лишь после того, как установлено, что нуждающихся в спасании нет.

3.6 Привлекаемая техника для выполнения спасательных работ

Основные пожарные автомобили, оборудованные ручными пожарными лестницами, аварийно-спасательным оборудованием и устройствами. А так же специальная пожарная техника, для специальных работ на пожаре. Целесообразно применение АГДЗС для замены баллонов на сжатом воздухе, при работе звеньев ГДЗС, АЛ-31 и применение АСА-20 в ночное время использование прожекторов и различного спасательного инструмента для различных работ.

3.7 Порядок оказания медицинской помощи пострадавшим

Оказание первой доврачебной помощи проводить персоналом объекта.

Вызвать скорую медицинскую помощь «103».

До ее прибытия первую помощь пострадавшим оказывать силами личного состава подразделений противопожарной службы и медицинским персоналом, находящимся на месте пожара.

При проведении спасательных работ необходимая медицинская помощь оказывается сотрудниками «Областного центра скорой медицинской помощи», в порядке неотложности.

3.8 Расчет времени эвакуации людей из здания

Для эвакуации людей используются кратчайшие и безопасные пути:

- основные входы и выходы;

оконные проемы и наружные лестницы;

проемы в перегородках, перекрытиях и стенах, проделываемые пожарными.

При этом необходимо использовать следующие средства:

ручные пожарные лестницы;

аварийно-спасательное оборудование и устройства;

спасательные устройства (веревки);

В данном случае основным способом эвакуации людей является:

- вывод в сопровождении пожарных, когда пути спасания задымлены, либо состояние и возраст спасаемых вызывает сомнение в возможности их самостоятельного выхода из угрожаемой зоны;

вынос людей, не имеющих возможности самостоятельно передвигаться (т.е. при полученных травмах или в состоянии испуга);

При проведении спасательных работ необходимо:

- принять меры по предотвращению паники, используя систему внутреннего оповещения и другие средства;

привлечь администрацию, обслуживающий персонал;

вызвать скорую медицинскую помощь. До ее прибытия первую помощь пострадавшим оказывать силами личного состава подразделений противопожарной службы и медицинским персоналом, находящимся на месте пожара;

предусмотреть места для временного размещения спасаемых.

Если имеются сведения о местах нахождения людей и спасающие их там не находят, необходимо тщательно осмотреть и проверить все задымленные и соседние с горящим помещения, в которых могут оказаться люди.

В среднем вывод людей с критических точек здания (т.е. помещений расположенных на 3-м этаже) производится в течении tЭВ = 4 мин. при расстоянии до эвакуационных выходов в среднем 20м.

3.9 Сравнительный анализ времени эвакуации и времени прибытия первых подразделений противопожарной службы

Анализ показывает, что время эвакуации людей в среднем составляетЭВ =3 мин., а время прибытия первого подразделения составляет tСЛ = L*60/VДВИЖ = 1,8 * 60 / 45= 3мин. Это означает, что на момент прибытия боевого расчета эвакуация учащихся и детей завершилась.

4 РАЗДЕЛ. «Организация тушения пожара подразделениями противопожарной службы»

.1 Рекомендуемые средства и способы тушения пожара

гарнизон пожарный состав коллектив

Следуя на пожар, командир первого пожарного подразделения выясняет возможное количество людей находившихся в здании, уточняет возможную обстановку, а по прибытии на пожар немедленно устанавливает связь с обслуживающим персоналом и выясняет, какие приняты меры по эвакуации и тушению пожара, а также предусматривает предотвращение паники.

В разведке пожара РТП определяет: кратчайшие и наиболее безопасные пути эвакуации, оставшихся в задымленных помещениях, и угрозу от огня и дыма; сколько человек из персонала можно использовать для эвакуации.

В процессе разведки пожара РТП определяет состояние путей эвакуации и при необходимости вводит стволы по ручным пожарным лестницам в окна здания. При этом особое внимание уделяют удалению дыма из помещений, коридоров и лестничных клеток путем вскрытия окон.

Эвакуацию детей осуществляют по заранее разработанным планам эвакуации. Из горящих и отрезанных дымом помещений детей пожарные спасают через ближайшие выходы.

При пожарах РТП обязан тщательно проверить, не остались ли дети и персонал в задымленных помещениях. При этом следует проверять, нет ли людей в верхних этажах.

Одновременно с эвакуацией людей и защитой путей эвакуации обеспечивают ввод стволов на основных путях распространения огня и в очаг пожара. Для тушения пожара применяют воду, водные растворы смачивателей и воздушно - механическую пену средней кратности.

Для подачи воды при тушении пожаров, как правило, используют стволы PC-50 и РСК-50, а при развившихся пожарах в клубах, мастерских, спортивных и актовых залах подают стволы PC-70. Особенно сложная обстановка создается тогда, когда пожары возникают в праздничные дни. По прибытии на пожар РТП в этих случаях принимает срочные меры по эвакуации и введению стволов от автоцистерны для защиты путей эвакуации и проникновения в помещения, где остались люди.

Производить тушение пожара и разборку конструкций с наименьшим ущербом для здания, оборудования и материальных ценностей, не допускать излишнего пролива воды.

Для ведения работ в непригодной для дыхания среде в СИЗОД необходимо:

сформировать звенья газодымозащитников каждое из трех - пяти человек.

проинструктировать их о мерах безопасности и режиме работы с учетом особенностей объекта, складывающейся обстановки на пожаре;

определить время работы и отдыха газодымозащитников;

при работе в условиях низких температур определить место включения в СИЗОД и порядок смены звеньев ГДЗС; предусмотреть резерв звеньев ГДЗС.

При отсутствии достоверных данных о пожаре, до прибытия к месту вызова отключить звуковую и световую сигнализацию пожарных и аварийно-спасательных автомобилей, расставить пожарную и аварийно-спасательную технику по возможности вне зоны видимости людей в здании для предотвращения паники.

4.2 Расчет необходимого количества сил и средств

. Определяем возможную обстановку на пожаре к моменту введения сил и средств первым подразделением:

СГ = tДС + tСБ + tСЛ + tБР = 2 + 1 + 3 + 6 = 12 мин.

где tСЛ = L * 60 / VДВИЖ = 1,8 * 60 / 45= 3 мин.

. Определяем путь, пройденный огнем:

(R) = 5 * VЛ + VЛ * t2.= 5 * 1,0 + 1,0 * 2 = 7 м.

гдеt2 = tСГ - 10 = 12 - 10 = 2 мин.

. Определяем площадь тушения и пожара:

П = na(5*VЛ + VЛ*t2) = 2 * 9,5(5 * 1,0 + 1,0 * 2) = 133 м2Т = n*a*hТ = 2*9,5*5 = 95 м2.

. Определяем количество стволов на тушение:

Т СТВ «Б» = QТТР / qСТВ «Б»= SТ * JТР / qСТВ «Б» = 95 * 0,06/ 3,5 = 2 ств «Б».

. Определяем требуемое количество стволов для осуществления защитных действий:

Исходя из тактических соображений     NЗ СТВ «Б»= 3 ствола «Б»:

ств. «Б» на защиту 1-го этажа.

ств. «Б» на защиту смежных помещений.

ств. «Б» на защиту кровли.

. Определяем фактический расход воды на тушение и защиту:

ФОБЩ = QТФ + QЗФ = NТСТВ «Б»* q СТВ «Б»+ NЗСТВ «Б»* q СТВ «Б»

ФОБЩ = 2*3,5 + 3*3,5 = 17,5 л/с.

. Проверяем обеспеченность объекта водой:

За территорией объекта имеется ПГ-214,D-150К, Р-2 атм., расположен в

м от школы.

вод >Qф = > 70 л/с>17,5 л/с. Объект водой обеспечен.

. Определяем требуемое количество пожарных машин:

М = QФОБЩ / QН = 17,5/40 = 1 АЦ,

Среднее расстояние от ПГ до объекта 30 м. Qвод >Qф => 70 л/с>17,5 л/с.

. Определяем требуемое количество личного состава:

Л/С = ( NТСТВ*n+ NЗ СТВ*n)+NМ+NПБ+NСВ+NРАЗ+NКПП

Л/С = (2*3+2*3+1*2)+1+4+1+2+6 = 28 чел.

. Определяем требуемое количество пожарных отделений основного назначения:

ОТД = NЛ/С / 4 = 28 / 4 = 7 отд.

. Предельное расстояние подачи огнетушащих средств:

ПР = [ HН - (HР ± ZМ ± ZСТВ) / SQІ ] * 20ПР= [90 - (50 + 0 + 8)/0,015*10,5І]*20 = 386 м.

4.3 Организация тушения пожара подразделениями противопожарной службы

Время от начала развития пожара

Возможная обстановка пожара

Qтр л/ с

Введено приборов на тушение и защиту

Qф л/ с

Рекомендации РТП










РСК-50

РС-70

ПЛС

ГПС, СВП



1

2

3

4

5

6

7

8

9

Т+2

В актовом зале ГУ СШ № 43 г.Петропавловска сработала сигнализация

-

-

-

-

-

-

1.Охране объекта сообщить о случившемся по тел. «101», доложить администрации объекта, отключить эл. энергию, принять меры по тушению пожара первичными средствами. Обслуживающему персоналу проводить эвакуацию учеников и детей.

Т+6

Прибыло ПЧ-1 в составе двух отделений и ППВ-10.

17,5

-

-

-

-

-

2.РТП-1(НК ПЧ-1) подтвердить вызов №2. Установить связь с руководством объекта, уточнить места нахождения учеников нуждающихся в спасении. Деж. электрику отключить электричество.

Т+12

Горит актовый зал. Sп = 133 м2 Sт = 95 м2

-

2

-

-

-

7

3.КО №1 ПЧ-1 установить АЦ-40 (1 ход) ПЧ-1 с северной стороны здания, проложить магистральную линию,подать1 ств. «Б» звеном ГДЗС через вход правого крыла здания по лестничному на тушение актового зала. Выставить пост безопасности. 4. КО №2 ПЧ-1 установить АЦ-40 (2 ход) ПЧ-1 на ПГ-214 на подпитку АЦ-40 (1 хода) ПЧ-1. звено ГДЗС отправить на 2-й этаж для проведения эвакуации людей и защиты смежных помещений с помощью 1 ств. «Б». Выставить пост безопасности.

Т+13

К месту вызова прибыло 2 отд. СПЧ-2 и ДСПТ.

-

4

-

-

-

14

5. От АЦ-40 1-го хода ПЧ-1подать 1 ств. «Б» звеном ГДЗС через вход правого крыла здания по лестничному маршу на второй этаж на тушение актового зала. Проложить магистральную линию и подать 1 ств. Б на защиту кровли.

Т+20

К месту вызова прибыли силы и средства по вызову № 2 АГДЗС СПЧ-2 и лица офицерского состава.

-

5

-

-

-

17,5

6. От АЦ-40 1-го хода ПЧ-1подать 1 ств. «Б» звеном ГДЗС через окно правого крыла здания на защиту 1-го этажа. Выставить пост безопасности, организовать КПП, создать резервные звенья ГДЗС. 7. НТ АЦ-40 (1 и 2-ход) СПЧ-2, установить в резерв.

Т+28

Локализация.

-

-

-

-

-

-

8.Передать на ЦППС локализацию.

Т+40

Ликвидация.

-

-

-

-

-

-

9.Передать на ЦППС ликвидацию.


4.4 Расчетные и справочные данные, необходимые для обеспечения управления действиями подразделений противопожарной службы при пожаре

Линейная скорость распространения горения при пожаре - 0,6 … 1,0 м/мин.

Интенсивность подачи воды при тушении пожара - 0,06 л/с * м 2

Формулы для определения площади пожара в зависимости от формы, продолжительности и скорости распространения горения указаны в таблице 1:

 

Таблица 1

Время Распространения Горения

Формулы площади пожара при горении по форме


круговой

угловой

прямоугольной

τ1< 10

Sп = π . (0,5.Vл. τ1)2

Sп = 0,5 α.(0,5.Vл. τ1)2

Sп = n . а. 0,5 .Vл. τ1

τ1> 10 τ2 = τсв - 10

Sп = π . (5.Vл + Vлτ2)2

Sп = 0,5α.(5.Vл+Vлτ2)2

Sп = n . а. (5.Vл + Vлτ2)

τn = τ - (10 + τ2)

Sп = π . (5.Vл + Vлτ2 + +0,5 .Vлτп)2

Sп = 0,5α.(5.Vл+Vлτ2 + +0,5 .Vлτп)2

Sп = n . а. (5.Vл + Vлτ2++0,5 .Vлτп)


Где, τ1 иτ2 - продолжительность распространения горения от начала его возникновения (мин.);

τсв - продолжительность распространения горения от начала его возникновения до подачи первых средств тушения (мин.);

τn- продолжительность локализации пожара по площади(мин.);- количество направлений распространения пожара;

α - угол, внутри которого происходит развитие пожара, рад (1 рад = 570);

Если в данный момент обработка всей площади пожара огнетушащими средствами не обеспечивается, то силы и средства сосредотачивать по периметру или фронту локализации для поэтапного тушения.

Расчет их в этом случае осуществляют по площади тушения, считая от внешних границ площади пожара.

Площадь тушения зависит от глубины обработки горящего участка h, поэтому в расчетах глубину обработки горящей площади принимают для ручных стволов 5 м, а для лафетных - 10 м.

 

Таблица 2

Форма Площади пожара

Значение угла, град

Площадь тушения



по фронту

по периметру

Круговая

360

При R > h Sт = π.h. (2 R- h)

При R > h Sт = π.h. (2 R- h)

Угловая

90

При R > h Sт = 0,25 π.h. (2 R- h)

При R > 3h Sт = 3,57 h. (R- h)


180

При R > h Sт = 0,5 π.h. (2 R- h)

При R > 2h Sт = 3,57 h. (1,4R- h)


270

При R > h Sт = 0,75 π.h. (2 R- h)

При R > 2h Sт = 3,57 h. (1,8R- h)

Прямоугольная

-

При b>n.h, Sт = nаh

При а> 2h, Sт = 2h. (а+ b - 2h)


Площадь тушения при наиболее распространенных формах развития пожара в ограждениях и на открытом пространстве определяют по формулам, указанным в таблице 2:

Примечание:

При значении "а", " b", "R", равных и меньших значений, указанных в таблице № 2 площадь тушения будет соответствовать площади пожара Sт = Sп и рассчитывается по формулам таблицы № 3

5 РАЗДЕЛ. «Организация взаимодействия подразделений противопожарной службы со службами жизнеобеспечения объекта и города, населенного пункта (района)»

.1      Выделяемые участники взаимодействия при получении сообщения о пожаре

Должность

Состав

Действия номера пожарного расчета при пожаре

1

2

3

Обнаруживший пожар.


Немедленно сообщает о пожаре по телефону на пульт ЦППС-101, а также оповещает руководителя объекта, либо лицо, его заменяющее (при этом указывает адрес объекта, место возникновения пожара, а также называет свою фамилию).

Директор

1 человек

Дублирует сообщение о пожаре, осуществлять общее руководство тушением пожара. Отдать распоряжение администрации объекта об организации вызова и встречи скорой медицинской помощи и энерго службы, встречи прибывающих подразделений пожарной охраны, организации учета эвакуированных и спасенных детей и место их эвакуации.

Заведующая.

1 человек (1 помощник)

Организует встречу пожарных подразделений, готовит информацию о месте возникновения возгорания, особенностях строительных конструкций, материалов и оборудования, находящихся в помещениях.

Задействованный персонал при пожаре.

20 человек

Принимают меры по эвакуации из здания, тушению пожара с помощью первичных средств пожаротушения.



Принимает совместно с электриком меры по отключению электроэнергии.



Удаляет за пределы рабочей зоны всех работников не участвующих в тушении пожара.



Принимает совместно с медицинским персоналом меры по оказанию первой медицинской помощи пострадавшим.


5.2 Организация привлечения и связи всех участников взаимодействия

1.      По прибытию к месту вызова установить связь с руководителем объекта, выяснить о возможности привлечения работников к решению различных задач, связанных с тушением пожара.

2.      Потребовать у прибывшей оперативно-выездной бригады горэлектросети отключения объекта от электропитания.

.        При наличии большого количества пострадавших отправку в лечебные учреждения осуществлять совместно с сотрудниками ДПД на попутном транспорте.

5.3 Система взаимного обмена информацией




.4 Порядок взаимодействия всех служб, принимающих участие в тушении пожара

№ п/п

Содержание задач

Ответственная служба

Привлекаемые должностные лица различных служб

1

2

3

4

1.

Отключение напряжения с токоведущих сетей, выписывает наряд-допуск к работе подразделений по тушению пожара.

АО «Северо-Казахстанская РЭК»

Старший оперативно-выездной бригады.

2.

Оказание медицинской помощи пострадавшим.

КГКП «Областной центр скорой медицинской помощи

Старший медицинской бригады.

3.

Обеспечение безопасного движения транспорта и пешеходов, при необходимости отводит движение с улиц, прилегающих к месту пожара, аварии.

УДП ДВД СКО

Старший экипажа дорожной полиции.

4.

Оцепление места ЧС, сохранность эвакуируемых материальных ценностей и предотвращение паники среди населения. Организация работы оперативно-следственной, криминалистической групп.

ДВД СКО

Старшие групп.

5.

Подвоз огнетушащих средств к месту ЧС. Проведение работ связанных с ликвидацией ЧС.

Подразделения СО г. Петропавловска ВПК ж/д «ЮУЖД» «Өрт сөндіруші»

Начальник караула.

6.

По запросу РТП, подвоз воды, повышения давления в сети.

АО «Петропавл-Су»

Диспетчер АО «Петропавл-Су



6 РАЗДЕЛ. «Оперативный раздел»

.1 Краткая оперативно-тактическая характеристика организации

 

Таблица 1

Оперативно-тактическая характеристика здания

Размеры геометрические (м)

Конструктивные элементы

Предел огнестойкости, строительной конструкции (час)

Количество входов

Характеристика лестничных клеток

Энергетическое обеспечение

Системы извещения и тушения пожара


Стены

Перекрытие

Перегородки

Кровля

Где и кем отключается

Отопление


1

2

3

4

5

6

7

8

9

10

11

12

64,0 х 9.5 х 8,5

Кирпичные

Ж/б плиты

Кирпичные

шиферная по дерев. обрешетке

0,35 часа

5

Внутренняя, Л 1, с ограждающими стенами

220 V

Эл. щитовые на лестничных площадках.

Центральное, Водяное.

Пожарная сигнализация ВЭРС, автоматические установки пожаротушения отсутствуют


Таблица 2

Наличие и характеристика установок пожаротушения

№ п/п

Наименование помещений, защищаемых установками пожаротушения

Вид и характеристика установки

Наличие и места автоматического и ручного пуска установок пожаротушения

Порядок включения и рекомендации по использованию при тушении пожара

1

2

3

4

5

-

Отсутствует

-

-

-



Таблица 3

Наличие и характеристика системы дымоудаления и подпора воздуха

№ п/п

Наименование помещений, защищаемых установками дымоудаления и подпора воздуха

Вид и характеристика установки

Наличие и места автоматического и ручного пуска установок дымоудаления и подпора воздуха

Порядок включения и рекомендации по использованию при тушении пожара

1

2

3

4

5

-

Отсутствует

-

-

-


Таблица 4

Пожарная опасность веществ и материалов, обращающихся в производстве и меры защиты личного состава

№ п/п

Наименование помещения, технологического оборудования

Наименованиегорючих (взрывчатых) веществ и материалов

Количество (объем) в помещении, (кг, л, м3)

Краткая характеристика пожарной опасности

Средства тушения

Рекомендации по мерам защиты л/с

Дополнительные сведения

1

2

3

4

5

6

7

8

-

Отсутствует

-

-

-

-

-

-


Таблица 5

Наличие АХОВ, радиоактивных веществ в помещениях, технологических установках (аппаратах)

№ п/п

Наименование помещения, технологического оборудования

Наименование вещества, его количество

Краткая характеристика

Огнетушащее средство

Средства защиты л/с

Рекомендации по обеспечению безопасной работы л/с

Дополнительные сведения

1

2

3

4

5

6

7

8

-

Отсутствует

-

-

-

-

-

-



6.2 Сводные данные расчета необходимого количества сил и средств противопожарной службы при каждом варианте тушения пожара

Сводная таблица расчета сил и средств для тушения пожара

Вариант тушения

Прогноз развития пожара (площадь пожара, фронт пожара линейная скорость распространения, площадь тушения, объем тушения и т.п.

Требуемый расход огнетушащих веществ, л. с-1

Количество Приборов подачи огнетушащих веществ, шт.

Необходимый запас огнетушащих веществ, л

Количество пожарных машин, основных/специальных шт.

Предельные расстояния для подачи воды, м

Численность личного состава, количество звеньев ГДЗС чел/шт.

1

2

3

4

5

6

7

8

1.

Пожар возник в актовом зале Sп = 133 м2 VЛ = 1,0 м/мин Sт = 95 м2

Qтр = 17,5л/с

5 ств. «Б»

27300

4/2 основные ПЧ-12-АЦ ППВ-10 СПЧ-22-АЦ специальные АГДЗС, АШ

386 м

28 12/4




.3 Сведения о количестве сил и средств противопожарной службы, времени их прибытия, типах пожарных автомобилей и их укомплектованность личным составом и специальными техническими средствами

Силы и средства, привлекаемые на тушение пожара и время их сосредоточения

Ранг пожара

Подразделения, место дислокации

Количество и тип пожарных автомобилей, шт.

Численность боевого расчета, чел.

Расстояния от пожарных подразделений до объекта, км.

Время следования, зимнее/летнее мин.

Время развертывания сил и средств, мин.

Примечание

1

2

3

4

5

6

7

8

2

ПЧ-1

2-АЦ,

14 чел.

1,8 км.

4 мин./ 3 мин.

6

Находится в районе выезда


ПЧ-1

ППВ-10

1 чел.

1,8 км.

4 мин./ 3 мин.

6



СПЧ-2

2-АЦ АГДЗС

14 чел. 1 чел.

3,7 км.

4 мин./ 3 мин.

6



.4 Рекомендации руководителю тушения пожара, оперативному штабу пожаротушения и тылу на пожаре о первоочередных действиях при пожаре

РЕКОМЕНДАЦИИ РТП

РТП обязан:

в зависимости от обстановки открыть либо подтвердить повышенный номер вызова;

лично возглавить работы по спасению;

вызвать скорую медицинскую помощь;

пунктом сбора спасенных и эвакуированных определить здание СШ №5, расположенной по адресу ул. Мира, 195 на расстоянии 100 м.

назначить ответственных за их учет;

произвести отключение электроэнергии в электрощитовой, расположенной в здании на лестничной площадке;

въезд на территорию объекта пожарной и спасательной техники осуществлять с ул. Новая;

РЕКОМЕНДАЦИИ НАЧАЛЬНИКУ ШТАБА

НШ обязан:

Начальник оперативного штаба пожаротушения обязан руководить работой штаба, обеспечивая выполнение задач:

подготовить и своевременно внести РТП на основе данных разведки, докладов участников тушения пожара, информации ЦППС и других сведений предложения по организации тушения пожаров, потребности в огнетушащих веществах, созданию резерва сил и средств;

организовывать доведение указаний РТП до соответствующих участников тушения пожара, обеспечивать их регистрацию и контроль за их исполнением, ведение регламентных документов оперативного штаба пожаротушения;

организовывать встречу, расстановку сил и средств;

докладывать РТП и сообщать ЦППС оперативную информацию об обстановке на пожаре;

обеспечивать сбор сведений о причине и виновниках возникновения пожара, организовывая в установленном порядке необходимое взаимодействие с испытательной пожарной лабораторией и оперативной следственной группой органа внутренних дел.

НШ имеет право:

отдавать в пределах своей компетенции обязательные для исполнения указания участникам тушения пожара, должностным лицам служб жизнеобеспечения, объекта, а также должностным лицам органов внутренних дел, прибывшим на пожар; отдавать указания по организации тушения пожара от лица РТП с последующим обязательным докладом о них РТП;

требовать от участников тушения пожара и должностных лиц служб жизнеобеспечения объекта, а также должностных лиц органов внутренних дел, прибывших на пожар, исполнения их обязанностей, а также указаний РТП и собственных указаний; отменять или приостанавливать исполнение ранее отданных указаний при возникновении явной угрозы для жизни людей,

в том числе участников тушения пожара (обрушение конструкций и другие изменения обстановки на пожаре, требующие принятия безотлагательных решений).

РЕКОМЕНДАЦИИ НАЧАЛЬНИКУ ТЫЛА

Начальник тыла непосредственно подчиняется начальнику оперативного штаба пожаротушения.

В распоряжение НТ поступают силы и средства участников тушения пожара, в том числе основные, специальные и вспомогательные автомобили, машины и другие мобильные технические средства, а также резерв огнетушащих веществ, пожарно-технического вооружения и аварийно-спасательного оборудования.

Прибывающие подразделения пожарной охраны по повышенному номеру вызова ориентировать на въезд с улицы Новая.

Для обеспечения действий по тушению пожара огнетушащими веществами, задействовать пожарные гидранты, расположенных на кольцевой сети водопровода, диаметром 150 мм. Р-2 атм.

На территории объекта пожарные водоемы и ПГ отсутствуют.

ПГ-214, D-150К, Р-2 атм., расположен перед территорией школы в 20 метрах от здания с восточной стороны.

На расстоянии 30 м. от объекта ПГ-364 D-150К, Р-2 атм. по ул. Новая 120, в северной чсти от здания. Подъездные пути к ПГ имеются. ПГ являются исправными.

Для их задействования целесообразно использовать отделение на автоцистерне.

В случае невозможности использования для нужд пожаротушения какого - либо из указанных водоисточников, как резервные считать пожарные гидранты по адресам:

На расстоянии 100 м. от объекта ПГ-363, D-150К Р-2 атм. по улице Новая, 79.

На расстоянии 250 м. от объекта ПГ-362, D-150К Р-2 атм. по ул. Новая, 73.

Подъездные пути к ПГ имеются. ПГ являются исправными.

пунктом сбора спасенных и эвакуированных определить здание СШ №5, расположенной по адресу ул. Мира, 195 на расстоянии 100 м. от школы.

Для руководства работой на направлениях НТ назначить помощников НТ.

Организовывает работу службы тылового обеспечения основных действий на пожаре, в том числе:

проводит разведку водоисточников, выбор насосно-рукавных систем, встречу и расстановку на водоисточники пожарной техники согласно схеме;

сосредотачивать резерв сил и средств, необходимый для тушения пожара;

обеспечивать бесперебойную подачу огнетушащих веществ, при необходимости организовывать доставку к месту пожара специальных огнетушащих веществ и материалов;

принимать меры к обеспечению личного состава специальной одеждой и СИЗОД;

организовывать своевременное обеспечение пожарной и аварийно-спасательной

техники горюче-смазочными и другими эксплуатационными материалами;

контролирует исполнение работ по защите магистральных рукавных линий;

организовывает, при необходимости, восстановление работоспособности пожарных и аварийно-спасательных машин, а также оборудования, пожарно-технического вооружения и средств спасения;

составляет схему расстановки техники на водоисточники и прокладки магистральных рукавных линий.

РЕКОМЕНДАЦИИ ДОЛЖНОСТНЫМ ЛИЦАМ ОБЪЕКТА

Должностные лица объекта обязаны:

продублировать сообщение о пожаре;

в случае угрозы жизни детей немедленно организовать их спасение;

прекратить все работы, не связанные с тушением пожара;

удалить за пределы рабочей зоны всех людей, не участвующих в тушении пожара;

осуществлять общее руководство тушением пожара;

обеспечить соблюдение требований безопасности работниками, принимающие участие в тушении пожара;

одновременно с тушением пожара организовать защиту и эвакуацию материальных ценностей;

организовать встречу пожарных подразделений, подготовить информацию о месте возникновения возгорания, особенностях строительных конструкций, материалов и оборудования, находящихся в помещениях;

произвести учет сотрудников (работников) и учащихся.

7 РАЗДЕЛ. «Требования охраны труда и техники безопасности»

.1 Требования техники безопасности при тушении пожаров в условиях особой опасности для личного состава

Разведка пожара

Разведка пожара ведется непрерывно с момента выезда подразделений ОГПС на пожар и до его ликвидации. Для проведения разведки пожара формируется звено газодымозащитной службы в составе не менее трех человек, имеющих на вооружении СИЗОД, для сложных сооружений (метрополитен, подземные фойе зданий, здания повышенной сложности, трюмы кораблей, кабельные тоннели, подвалы сложной планировки) - до пяти человек.

При проведении разведки пожара без применения СИЗОД формируется группа в составе не менее двух человек.

В целях обеспечения безопасности при проведении разведки командир звена газодымозащитной службы обязан:

обеспечить соблюдение требований, изложенных в Наставлении по ГДЗС ОГПС.

убедиться в готовности звена ГДЗС к выполнению поставленной боевой задачи;

проверить наличие и исправность требуемого минимума экипировки звена ГДЗС, необходимой для выполнения поставленной боевой задачи;

указать личному составу места расположения контрольно-пропускного пункта и поста безопасности;

провести боевую проверку СИЗОД и проконтролировать ее проведение личным составом звена и правильность включения в СИЗОД;

проверить перед входом в непригодную для дыхания среду давление воздуха в баллонах СИЗОД подчиненных и сообщить постовому на посту безопасности наименьшее значение давления воздуха;

проконтролировать полноту и правильность проведенных соответствующих записей постовым на посту безопасности;

сообщить личному составу звена ГДЗС при подходе к месту пожара контрольное давление воздуха, при котором необходимо возвращаться к посту безопасности;

чередовать напряженную работу газодымозащитников с периодами отдыха, правильно дозировать нагрузку, добиваясь ровного глубокого дыхания;

следить за самочувствием личного состава звена ГДЗС, правильным использованием снаряжения, ПТВ, вести контроль за расходованием воздуха по показаниям манометра;

вывести звено на свежий воздух в полном составе;

определить при выходе из непригодной для дыхания среды место выключения из СИЗОД и дать команду на выключение.

При нахождении звена ГДЗС в задымленной зоне необходимо соблюдать следующие требования:

продвигаться, как правило, вдоль капитальных стен или стен с окнами;

по ходу движения следить за поведением несущих конструкций, возможностью быстрого распространения огня, угрозой взрыва или обрушения;

докладывать о неисправностях или иных неблагоприятных для звена ГДЗС обстоятельствах на пост безопасности и принимать решения по обеспечению безопасности личного состава звена;

входить в помещение, где имеются установки высокого напряжения, аппараты (сосуды) под высоким давлением, взрывчатые, отравляющие, радиоактивные, бактериологические вещества только по согласованию с администрацией объекта и с соблюдением рекомендованных ею правил безопасности.

Необходимый минимум экипировки звена ГДЗС:

средства индивидуальной защиты органов дыхания одного типа;

средства спасания и самоспасания;

необходимый инструмент для вскрытия и разборки конструкций;

приборы освещения и связи;

средства страховки звена - направляющий трос;

средства тушения пожара.

При работе в СИЗОД и при загазованности большой площади посты безопасности и контрольно-пропускные пункты создаются на весь период тушения пожара. В этих случаях на них возлагается проведение инструктажа по мерам безопасности с лицами, направляющимися на тушение пожара, с учетом поставленных задач.

При организации разведки пожара руководителю тушения пожара и другим оперативным должностным лицам на пожаре следует максимально привлекать службы жизнеобеспечения организации для определения характера агрессивных химически опасных веществ, радиоактивных веществ, уровня их концентрации и границы зон загрязнения, а также необходимых мер безопасности.

Спасание людей и имущества

При спасании людей и имущества на пожаре оперативные должностные лица обязаны определить порядок и способы спасания людей в зависимости от обстановки и состояния людей, которым необходимо оказать помощь, предпринять меры по защите спасаемых от опасных факторов пожара.

Работы по спасанию проводятся быстро, но с соблюдением предосторожностей, чтобы не были причинены повреждения и травмы спасаемым людям.

Во всех случаях, когда проводятся спасательные работы, должностные лица одновременно с развертыванием сил и средств организуют вызов скорой медицинской помощи, даже если в данный момент в ней нет необходимости.

До прибытия на пожар медицинского персонала первую доврачебную помощь пострадавшим, в установленном порядке, оказывает личный состав подразделений ОГПС.

В случаях, когда немедленное извлечение пострадавших, находящихся в условиях вынужденной изоляции, не представляется возможным, в первую очередь для обеспечения выживания потерпевших всеми имеющимися средствами организуется подача чистого воздуха, питьевой воды, пищи, медикаментов и средств индивидуальной защиты.

При проникновении личного состава подразделений ОГПС к потерпевшим производятся необходимое сдвигание (смещение), подъем обрушенных строительных конструкций (обломков), перекусывание (резка или рубка обнаженной арматуры диаметром до 20 мм). В этих случаях применяется индивидуальный аварийно-спасательный инструмент (гидравлические ножницы, штурмовые топоры, плунжерные распорки и так далее) и механизированный инструмент общего назначения (ручные электрические ножницы, дисковые и цепные пилы, рубильные и отбойные молотки, бетоноломы).

Требования по безопасному применению ПТВ, штатного инструмента, средств индивидуальной и групповой защиты изложены в соответствующих главах настоящих Правил. При использовании нештатных технических средств, имеющих соответствующие сертификаты, следует руководствоваться рекомендациями, изложенными в инструкциях по их эксплуатации.

При использовании спасательного рукава для массовой эвакуации людей он крепится к полу люльки автоподъемника. Допускается одновременное нахождение в люльке с присоединенным спасательным рукавом не более 2 человек. Соединение двух и более спасательных рукавов не допускается.

Боевое развертывание

В целях обеспечения мер безопасности при боевом развертывании должностными лицами обеспечивается:

выбор наиболее безопасных и кратчайших путей прокладки рукавных линий, переноса инструмента и инвентаря;

установка пожарных автомобилей и оборудования на безопасном расстоянии от места пожара так, чтобы они не препятствовали расстановке прибывающих сил и средств, пожарные автомобили устанавливаются от недостроенных зданий и сооружений, а также от других объектов, которые могут обрушиться на пожаре, на

расстоянии, равном не менее высоты этих объектов;

остановка, при необходимости, всех видов транспорта (остановка железнодорожного транспорта согласуется в установленном порядке);

установка единых сигналов об опасности и оповещении, о них всего личного состава подразделений ОГПС, работающего на пожаре;

вывод личного состава подразделений ОГПС в безопасное место при явной угрозе взрыва.

При проведении боевого развертывания запрещается:

начинать его проведение до полной остановки пожарного автомобиля;

использовать открытый огонь для освещения колодцев пожарных гидрантов, газо- и теплокоммуникаций;

спускаться без СИЗОД и спасательной веревки в колодцы водо-, газо-, техкоммуникаций;

одевать на себя лямку присоединенного к рукавной линии пожарного ствола при подъеме на высоту и при работе на высоте;

находиться под грузом при подъеме или спуске на спасательных веревках инструмента, ПТВ и другое;

переносить механизированный и электрифицированный инструмент в работающем состоянии, обращенный рабочими поверхностями (режущими, колющими и тому подобное) по ходу движения, а поперечные пилы и ножовки - без чехлов;

поднимать на высоту рукавную линию, заполненную водой;

подавать воду в незакрепленные рукавные линии до выхода ствольщиков на исходные позиции или подъема на высоту.

Вертикальные рукавные линии должны крепиться из расчета не менее одной рукавной задержки на каждый рукав.

Подавать воду в рукавные линии следует постепенно, повышая давление, чтобы избежать падения ствольщиков и разрыва рукавов.

При использовании пожарного гидранта его крышку открывать специальным крючком или ломом. При этом следить за тем, чтобы крышка не упала на ноги.

При прокладке рукавной линии с рукавного и насосно-рукавного пожарных автомобилей водитель должен контролировать скорость движения (не более 10 км/ч), а пожарный следить за исправностью световой и звуковой сигнализации, надежно фиксировать двери отсеков пожарных автомобилей.

В случаях угрозы взрыва, при боевом развертывании прокладка рукавных линий личным составом подразделений ОГПС осуществляется перебежками, переползанием, используя имеющиеся укрытия (канавы, стены, обваловки и так далее), а также с использованием средств защиты (стальные каски, сферы, щиты, бронежилеты), под прикрытием броне-щитов, бронетехники и автомобилей.

Ручные пожарные лестницы должны устанавливаться так, чтобы они не могли быть отрезаны огнем или не оказались в зоне горения при развитии пожара.

При перестановке ручных пожарных лестниц необходимо предупреждать об этом поднявшихся по ним для работы на высотах, указать новое место их установки или другие пути спуска.

Запрещается устанавливать пожарные автомобили поперек проезжей части дороги. Остановка на проезжей части улицы, дороги, при создании помех для движения транспортных средств допускается только по приказу оперативных должностных лиц или начальника караула. При этом на пожарном автомобиле должна быть включена аварийная световая сигнализация.

Для безопасности в ночное время стоящий пожарный автомобиль освещается бортовыми, габаритными или стояночными огнями.

8 РАЗДЕЛ. «Учет использования оперативного плана тушения пожара»

.1 Сведения о применении оперативного плана тушения пожара: на пожарах; при проведении занятий по пожарно-профилактической и тактической подготовке; учениях; отметки о корректировке

№ п/п

Дата и время проведения мероприятия

С какими подразделениями (караул, смена) проведены занятия, ПТУ, тушение пожара и т.п.

Наименование мероприятия (ПТУ, ПТЗ, пожар)

Руководитель, оценка подразделению

Примечания

1

2

3

4

5

6











































































9 РАЗДЕЛ. «Приложения»

.1 План - схема объекта на местности (генеральный план)


9.2 Схема расположения водоисточников


9.3 Схемы развертывания подразделений противопожарной службы с указанием количества ручных пожарных стволов, которые можно подать от пожарных автомобилей


ПЛАН 2 - го ЭТАЖА



Заключение

 

Анализ обстановки с пожарами и деятельности подразделений по обеспечению пожарной безопасности позволил сделать следующие выводы:

существующая система обеспечения пожарной безопасности в целом соответствует современным требованиям;

мероприятия по пожарно-тактической и психологической подготовке выполняются на должном уровне в подразделениях ОГПС соответствии с «Программой подготовки личного состава подразделений МЧС Казахстана», утвержденным Положением об Управлении медицины катастроф и психологической службы Министерством по чрезвычайным ситуациям Республики Казахстан 13.10.2010 года №353.Утвержденная приказом Министра по чрезвычайным ситуациям Республики Казахстан В.К. Божко.

по программе подготовки личного состава в ОГПС МЧС Казахстана и другими руководящими документами;

агитационно-массовая работа, проводимая отделом пожарно-профилактической деятельности ПЧ-1 СО находится на должном уровне.

Статистический анализ основных показателей оперативной обстановки позволил сделать следующие выводы:

идет тенденция к снижению количества выездов, в 2014 году ожидается уменьшение на 882 выездов;

количество выездов на пожары снижается и в 2014 году приблизительно составит 27 раз;

При анализе кадрового обеспечения пожарной части сделаны следующие выводы:

наибольшая текучесть кадров была в 2009 и 2012 году (в связи с достижением предельного возраста, а также по собственному желанию);

в отряде имеет место быть нарушения дисциплины, присутствуют как незначительные, так и грубые нарушения. В основном сотрудниками были получены замечания за несение службы .

за рассматриваемый период средний возраст личного состава уменьшился на 0,47 года. Это говорит о том что сохраняется стабильность в работе личного состава, но самый большой процент личного состава в возрасте от 28 до 33 лет и от 33 до 38 лет, в этой возрастной группе находятся опытные и подготовленные сотрудники пожарной охраны, которые могут быть хорошими наставниками для молодых сотрудников.

Предложения для совершенствования ПЧ 1 СО г. Петропавловска

Выделить кабинет в пожарной части для комнаты психологической и эмоциональной разгрузки. Согласно нормативно правового регламента и требовании. В соответствии с «Программой подготовки личного состава подразделений МЧС Казахстана», утвержденным Положением об Управлении медицины катастроф и психологической службы Министерством по чрезвычайным ситуациям Республики Казахстан 13.10.2010 года №353.Утвержденная приказом Министра по чрезвычайным ситуациям Республики Казахстан В.К. Божко. Для быстрейшего восстановления кадрового ресурса после участия в тушении крупных пожаров и проведении аварийно-спасательных работ.

§  В целях приведения соответствия с действующей нормативно-правовой базой в области профессиональной подготовки личного состава дежурных смен необходимо строительство учебной башни. Вследствие чего, руководству ПЧ 1 СО необходимо подготовить техническое задание для решения данной проблемы.

§  Начальнику ПЧ 1 СОвыйти с предложением к руководству отряда о создании Централизованной системы эксплуатации пожарных рукавов на основании того, что в пожарной части № 4 и № 5 не имеется сушильная башня, а также во всех частях нет станка для перекатки рукавов.

§  Начальнику ПЧ 1 СО обратится с предложением о необходимости выделения средств на приобретение дыхательных аппаратов Spiromantik.

В количестве, необходимом, для обеспечения личного состава одной дежурной смены. В целях принятия участия в ПТУ и возможном тушении пожара в прилегающем районе по повышенному номеру выезда.( Завод тяжелого машиностроения производству текстильной продукции).

§  Начальнику ПЧ 1 СО г. Петропавловска выйтис предложением к выше стоящему руководству ГУ «СП и АСР» ДЧС Северо - Казахстанской области по закупке новых радиостанций в подразделение,так как видно из показателей таблицы 2.3.3. Средства связи в подразделении ПЧ-1СО г. Петропавловска уже устарели и необходимо отметить что, в условиях пожара при выполнении задач звеньями ГДЗС трудно, а порой вообще невозможно вести радио переговоры. При этом лучше приобрести новые радиостанций таких как:VertexStandardVX-231, YaesuVX-6R.

§  Заместителю начальника ПЧ 1 СО г. Петропавловск обратить внимание на служебную дисциплину личного состава. Провести занятия в форме семинара с личным составом о воспитании патриотизма, преданности к службе. Провести занятия по основным направлениям таких как: государственно-патриотическое профессионально-нравственное.

Проведенный анализ и предложения в данной дипломной работе, поможет найти пути по дальнейшему совершенствованию и улучшению деятельности не только ПЧ-1СО г. Петропавловска, но и в других пожарных частях Республики Казахстан, а также пожарной охраны в целом.

Библиография

Нормативные акты и законы

Конституция Республики Казахстан от 30.08.1995 г.(с изменениями и дополнениями по состоянию на 02.02.2011 г.)

Трудовой Кодекс Республики Казахстан от 15.05.2007 г. № 252 -III(с изменениями и дополнениями по состоянию на 17.01.2014 г.)

Закон Республики Казахстан от 22.11.1996 №48 -II«о пожарной безопасности»

Закон Республики Казахстан от 22.11.1996 N 48 -II « О пожарной безопасности» Денежное довольствие сотрудников органов противопожарной службы устанавливается на основании единой системы труда работников органов Республики Казахстан.

Постановление Кабинета Министров от 28.12.1992 №1088 «о повышении денежного содержания (заработной платы)личного состава органов внутренних дел Республики Казахстан.

Указ президента Республики Казахстан от 29 сентября 2004 года N1449 « о мерах по дальнейшему совершенствованию системы государственного управления в области пожарной безопасности Республики Казахстан»

Учебно-методическая и справочная литература

АболонцевА.И.«Экономика противопожарной защиты», М.-1985 г.

Брушлинский Н.Н. Курс лекционных и семинарских занятий по теме: «Математический анализ и методы управления ГПС», 2004 г.

Морозов В.И., Поляков М.Н., Фурсов А.И. Организация работы с кадрами Государственной противопожарной службы: Учеб. Пособие. - М.: Академия ГПС МЧС России, 2010. - 106 с.

Теребнев В.В., Грачев В.А., Подгрушный А.В., Теребнев А.В., Пожарно-строевая подготовка: Учебное пособие, М.-2004 г.

Фурсов А.И. Методические рекомендации по изучению дисциплины «Организация работы с кадрами ГПС» - М.2006г.

Шелдрейк Дж. «Теория менеджмента: от тейлоризма до ионизации». Пер. с англ. под ред. В.А.Спивака. - СПб: Питер, 2001, с. 238-257.

Пономарёв И.П. «Мотивация работой в организации». - М.: Изд.: Eдитopиaл УРСС, 2004 г., с. - 224.

Уставы, наставления, приказы

Приказ МЧС Казахстан от 22.12.2010 г. №446 « Об утверждении Наставления по организации газодымозащитной службы органов государственной противопожарной службы Министерства по чрезвычайным ситуациям Республики Казахстан».

Приказ МЧС Казахстан от 26 апреля 2010 года №140 « Об утверждении Методических рекомендаций по составлению, разработке и оформлению оперативных планов и карточек тушения пожаров».

Приказ МЧС Казахстана от 12 сентября 2005 года. №250 «Об утверждении Инструкции по ремонту и эксплуатации пожарных рукавов».

Приказ МЧС Казахстана от 14.11.2009 г. №266 « Об утверждении Устава службы органов государственной противопожарной службы».

Приказ МЧС Казахстана от 14 ноября 2009 года №267 «Об утверждении Боевого Устава органов государственной противопожарной службы Министерства по чрезвычайным ситуациям Республики Казахстан.

Приказ МЧС Казахстана от 15.10.2010 г. № 355 «инструкция по безопасности и охране труда в подразделениях противопожарной службы Министерство по чрезвычайным ситуациям Республики Казахстан.

Приказ МЧС Казахстана от 15.05.2007 г. № 251 « об утверждении инструкции по безопасности и охране труда в подразделениях противопожарной службы Министерства по чрезвычайным ситуациям Республики Казахстан.

Электронные источники

1.      emer.gov.kz <http://emer.gov.kz/>

.        «od_spasr_sko@emer.kz» <http://welcome.advertising.yandex.ru/direct/entry.xml?from=yasearch_button_control_promo&id=add-n&text=od_spasr_sko%40emer.kz>

Похожие работы на - Анализ работы с кадрами ГУ 'Службы пожаротушения и аварийно-спасательных работ' Департамента по чрезвычайным ситуациям Северо-Казахстанской области на примере ПЧ-1СО г. Петропавловска

 

Не нашли материал для своей работы?
Поможем написать уникальную работу
Без плагиата!
Без нейросетей!