Розрахунок системи електричного освітлення механічного цеху

  • Вид работы:
    Курсовая работа (т)
  • Предмет:
    Физика
  • Язык:
    Украинский
    ,
    Формат файла:
    MS Word
    451,39 Кб
  • Опубликовано:
    2014-04-02
Вы можете узнать стоимость помощи в написании студенческой работы.
Помощь в написании работы, которую точно примут!

Розрахунок системи електричного освітлення механічного цеху

Міністерство освіти і науки України

Вінницький національний технічний університет

 












Розрахунково-графічна робота

з дисципліни

Освітлення промислових споруд та житлових будівель

Виконала: ст.гр. ЕСЕ-13сп

Духовнова Н.С.

Прийняв: Терешкевич Л.Б.





Вінниця 2014р.

Вихідні дані

Виконати розрахунок системи електричного освітлення механічного цеху. Приміщення сухе, габаритні розміри (42х24+12х12)х5 метрів. Роботи в механічному цеху відносяться до IV-го розряду робіт. Вміст пилу ˂ 5 мг/м3. Стіни бетонні. Система освітлення - загально-рівномірна.

1. Світлотехнічні розрахунки

.1 Вибір системи освітлення, типу освітлювального пристрою

Для освітлення виробничих приміщень найбільшого поширення набули дві системи освітлення: загальна та комбінована.

Системи місцевого і загального освітлення, що застосовуються разом, утворюють систему комбінованого освітлення. Воно застосовується в приміщеннях, де виконуються точні наглядні роботи.

По функціональному призначенню розрізняють наступні види освітлення: робоче, аварійне і евакуаційне.

Робоче освітлення створює потрібну по нормам освітленість, забезпечуючи тим самим необхідні умови роботи при нормальному режимі експлуатації споруди.

Аварійне освітлення для продовження роботи повинно встановлюватися в приміщеннях, в яких різке відключення робочого освітлення може призвести до тяжких наслідків для людей і технологічного обладнання. При цьому освітленість на робочих поверхнях повинна складати не менше 5% освітленості, встановленої для робочого освітлення цих поверхонь при системі загального освітлення, але не менше 2 лк всередині споруд і не менше 1 лк для території підприємства.

В освітлювальних установках загального освітлення застосовують трубчасті люмінесцентні лампи низького тиску. Люмінесцентна лампа представляє собою скляну трубу, внутрішня поверхня якої покрита люмінофором - речовина, що здатна флуоресціювати. Вони мають ряд суттєвих переваг:

) висока світлова віддача;

) значний термін служби;

) краща характеристика кольоровості випромінювання;

) економічність.

Конструкція багатьох світильників з люмінесцентними лампами забезпечує не тільки індивідуальну установку, але і стикування в суцільну лінію, використання корпусів світильників в якості магістрального короба.

Згідно СниП ІІ-4.79 «Искусственное и естественное освещение. Нормы проектирования» застосовуємо систему загального освітлення.

Враховуючи особливості технологічного процесу, в якості джерел світла використовуємо люмінесцентні лампи. Вони мають відносно високу світлову віддачу, покращений спектральний стан, який дозволяє забезпечити передачу кольорів, достатньо високу середню тривалість горіння (до 10000 годин).

Світильники обираються, виходячи з світлотехнічних, економічних, естетичних вимог, а також з урахуванням умов навколишнього середовища.

1.2 Розрахунок робочого освітлення

Розрахунок освітлення механічного цеху (рисунок 1.1) будемо проводити методом коефіцієнта використання, який враховує відбивну складову освітленості від робочої поверхні, стелі і стін приміщення і застосовують його для розрахунку загального рівномірного внутрішнього освітлення горизонтальних поверхонь при відсутності затіняючого обладнання.

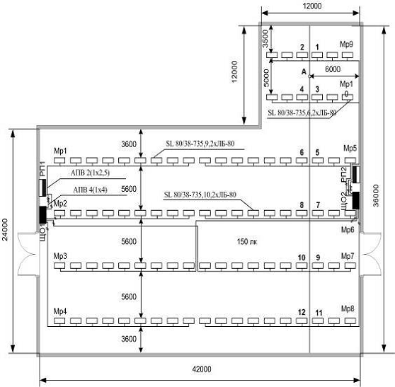
Рисунок 1.1 - Механічний цех

На промислових підприємствах близько 10% використаної електроенергії витрачається на електричне освітлення. Умови штучного освітлення на промислових підприємствах створюють великий вплив на зорову працездатність, фізичний і моральний стан людини, а отже на продуктивність праці, якість продукції і виробничий травматизм.

Проектування освітлювальних установок полягає в розробці світлотехнічного та електричного розділів.

Визначимо необхідну кількість світильників для загального освітлення механічного цеху.

Для освітлення цеху вибираємо світильники: SL 80/38-735 (ЛБ-80 Вт) з люмінесцентними лампами, довжина світильника Lсв = 1,24 м, оскільки даний тип світильника застосовується в цехах, в яких підвищена запиленість повітря, та можлива вологість приміщення [2]. Даний тип світильника задовольняє нашим вимогам і може використовуватися для освітлення механічного цеху.

Отже, джерело світла - люмінесцентні лампи (або ртутні лампи низького тиску). Характеристики:

)         Номінальна потужність - Рн=80 Вт;

)         Номінальний світловий потік - Фн=5200 лм;

)         Світловіддача - æн= Фн/ Рн=5200/80= 65 лм/Вт;

)         Термін служби - Тн=12000 год;

)         Кольоровість випромінювання - білі (нейтральнобілі), мають колірну температуру 3500 К.

Роботи в механічному цеху відносяться до IV-го розряду робіт (середньої точності, контраст об’єкта з фоном малий, фон середній), тому приймаємо норму освітлення Ен = 150 лк. (дивись табл. 4-1 [2]).

Висота цеху - 5 метрів, розміри - 42х24+12х12 м

Визначимо розрахункову висоту, м:


де H - висота даного цеху, м;з - висота звісу світильника, м;рп - висота робочої поверхні від підлоги, м;

За таблицею 5-1 [2] приймаємо коефіцієнти відбивання поверхонь:

ρп = 50 %, ρс = 30 %, ρр = 10 %,

де ρп, ρс, ρр - коефіцієнти відбивання стелі, стін і робочої поверхні відповідно.

За розмірами приміщення визначаємо індекс приміщення:

,

де А - довжина приміщення, м;

В - ширина приміщення, м.

За знайденим індексом приміщення вибираємо коефіцієнт використання: η = 34 %.

Враховуючи тип світильників, задаємось коефіцієнтом запасу: kз = 1,5 і коефіцієнтом нерівномірності освітлення для люмінесцентних ламп z = 1,15.

Визначаємо необхідну кількість світильників при розрахунковому світловому потоці люмінесцентних ламп ЛБ-80 Фл = 4960 лм (табл. 2-12):


де S - площа приміщення, м2;

Фл - розрахунковий світловий потік люмінесцентної лампи ЛБ-80, лм;- кількість ламп.

Розташуємо світильники в 4 ряди вздовж цеху таким способом, щоб в кожному ряді було по 19 світильників, і по 6 світильників в 2 окремих ряда.

Перевіримо правильність наших розрахунків за допомогою точкового метода, який не враховує відбиваючі складові і освітленість від віддалених світильників.

1.       На плані зображуємо розташування світильників (рисунок 1.2)

Рисунок 1.2 - Розташування світильників в механічному цеху

2.   Вибираємо розрахункову точку на відстані від торцевої стіни 6 м і 2,5 м - від лінії світильників.

3.       Умовно подовжуємо світильники до т. А. Таким чином, при довжині світильника 1,24 м подовжимо світильники на 0,26 м.

4.   Виділяємо ділянки освітлювальних ліній, визначаємо рn та Ln. (рn = рn h; Ln = Ln h).

5.       Для зручності результати заносимо до таблиці 1.2.

Таблиця 1.2

Результати розрахунків освітленості від освітлювальних ліній

№ світильн

р |

L

L |

р1

р1 |

L1

L1 |

е

Ʃе


м

в.о.

м

в.о.

м

в.о.

м

в.о.

м

м

1,2,3,4

2,5

0,85

6

1,249

2,5

0,85

0,26

0,057

280

292,6

5,6

9,6

2,29

6

1,249

9,6

2,29

0,26

0,057

10


7,8

15,2

3,62

6

1,249

15,2

3,62

0,26

0,057

2


9,10

20,8

4,95

6

1,249

20,8

4,95

0,26

0,057

0,6



Оскільки світло від ламп 9, 10 мало впливають на освітленість в т. А, то вплив світла від світильників 11, 12 можна не враховувати, оскільки він є несуттєвим.

Знаходимо світловий потік за формулою:


Повний світловий потік ламп в ряду 1:

Кількість світильників з двома лампами ЛБ-2х80 при розрахунковому світловому потоці лампи в ряду:


Сумарна довжина світильників в ряду:


Повний світловий потік ламп в ряду 2:

Кількість світильників з двома лампами ЛБ-2х80 при розрахунковому світловому потоці лампи в ряду:


Сумарна довжина світильників в ряду:

 
.3 Розрахунок аварійного освітлення

В даному випадку розраховувати аварійне освітлення не потрібно в зв’язку зі взаєморезервуванням одного ряду світильників. Оскільки ряд від одного входу до іншого розбитий на 2 частини, і кожна з цих частин отримує живлення від протилежного щитка освітлення. Отже, в разі відключення будь-якої лінії живлення наше освітлення буде працювати, оскільки ряди світильників відносяться до різних ЩО, які живляться від різних ТП.

Заживимо 10 світильників від ЩО-2 і 9 світильників від ЩО-1. Таким чином при виході з ладу будь-якого РП інше РП буде живити ряд аварійних світильників.

Загальна установлена потужність світильників:


Споживана потужність з врахуванням ПРА:


2. Електротехнічні розрахунки

.1 Вибір за допустимим нагрівом

Загальна установлена потужність світильників:


де Рл - потужність лампи, кВт.

Розрахункова потужність з врахуванням ПРА:


де Кс - коефіцієнт попиту;ПРА - коефіцієнт, що враховує втрати в пускорегулюючій апаратурі.

Обираємо чотирипровідну мережу. Розрахунковий струм буде дорівнювати:


Обираємо провід АПВ 4(1х4) для ділянки від РП до ЩО.

Для двопровідної мережі:

¾      Потужність ряду:


¾      Струм


Обираємо провід АПВ 4(1х2,5) від ЩО до світильників.

.2 Вибір щитків освітлення

Щитки освітлювальні групові призначені для прийому і розподілу електричної енергії напругою 380/220 В трифазного перемінного струму частотою 50 Гц із глухозаземленою нейтраллю, а також для нечастих (не більш шести разів на годину) комутацій і захисту однофазних ліній, що відходять, від перевантажень і струмів короткого замикання.

Щитки призначені для установки в промислових і суспільних будинках.

Встановлюються на вертикальну поверхню. Номінальний режим роботи - тривалий.

Розрахункові потужності по щитках освітлення (ЩО) подані в таблиці 2.1.

Таблиця 2.1 - Розрахункові потужності по ЩО

Щиток освітлення

Рр, кВт

ЩО1

5,92

ЩО2

8,16


Вибираємо до встановлення щиток марки ЩА-601 (25) з номінальним струмом 63 А, який має 6 відхідних автоматичних вимикачів (обираємо струм спрацювання відсічки 6 А)

.3 Вибір живлячих провідників та способу прокладки

Визначимо поперечний переріз провідників живлячих ліній М1р, М2р, М3р, М4р, М5р, М6р, М7р, М8р, М9р, М10р; напруга мережі 380/220 В.

Як приклад, розглянемо визначення моменту навантаження для провідників робочого освітлення першого ряду

Рисунок 2.1 - Моменти навантаження для провідників п’ятого ряду Мр5

Визначаємо момент навантаження для провідників робочого освітлення всіх рядів

Визначаємо момент навантаження для провідника, що з’єднує РП та ЩО


Визначаємо коефіцієнт схеми Ксх:

Ксх = 44 для 4-ох провідного алюмінієвого проводу мережі 380/220 В [табл. 12-9];

Ксх = 19,5 для 2-ох провідного алюмінієвого проводу мережі 380/220 В [табл. 12-9];

Розраховуємо переріз проводу головної дільниці РП - ЩО та лінії ЩО1-М1р:

РП1 - ЩО1:  

ЩО1-М1р:  

Приймаємо провід АПВ 4(1х4) для лінії РП - ЩО, та провід АПВ 2(1х2,5) для ЩО1 - М1р, оскільки ці провідники пройшли перевірку за допустимим нагрівом.

робочий аварійний освітлення цех

3. Схема робочого та аварійного освітлення механічного цеху

На рисунку 3.1 зображена схема робочого та аварійного освітлення цеху, траси живлячих провідників та розміщення щитків освітлення механічного цеху.

Рисунок 3.1 - Система електричного освітлення механічного цеху


1. Мешков В.В. Основы светотехники: Учебное пособие для техникумов. -М.: Энергоатомиздат, 1979. -368с.

. Справочная книга для проектирования электрического освещения/Под ред. Г.М. Кнорринга. -Л.: Энергия, 1976.-384с.

. Кладницкий Д.А., Чубатий С.Н. Справочник по осветительной аппаратуре. К.: Техніка, 1986. -152с.

. Кнорринг Г.М. Светотехнические расчеты в установках искусственного освещения. -Л.: Энергия, 1973. -200с.

. Климчук В.А. Методические указания по лекционному курсу "Основы электрического освещения". Винница. -ВПИ, 1984.

. Климчук В.А. Методические указания к расчету электрического освещения. Искусственное освещение производственных помещений Винница. -ВПИ, 1985.

Похожие работы на - Розрахунок системи електричного освітлення механічного цеху

 

Не нашли материал для своей работы?
Поможем написать уникальную работу
Без плагиата!
Без нейросетей!