Організація харчування туристів на водних видах транспорту

  • Вид работы:
    Контрольная работа
  • Предмет:
    Эктеория
  • Язык:
    Украинский
    ,
    Формат файла:
    MS Word
    806,55 Кб
  • Опубликовано:
    2014-03-31
Вы можете узнать стоимость помощи в написании студенческой работы.
Помощь в написании работы, которую точно примут!

Організація харчування туристів на водних видах транспорту

Міністерство освіти і науки України

Київський національний торговельно-економічний університет

Кафедра технології та організації ресторанного господарства









Тема:

Організація харчування туристів на водних видах транспорту












Київ 2014

Вступ

Круїз - це подорож по воді, що припускає заходи в порти різних країн (або однієї країни ) з організацією в них екскурсій.

Зараз у туристичному бізнесі намітилася наступна основна тенденція - на круїзний туризм з'явився стійкий попит. І одним з важливих питань є ресторанне обслуговування круїзних пасажирських перевезень. Таким чином одним з найприємніших моментів морських круїзів можна назвати харчування на борту судна. Адже своєю популярністю морські круїзи зобов'язані саме якості їжі, різноманітному меню, сервіровці, які представлені в кращих традиціях трансатлантичних лайнерів. Круїзні компанії приділяють величезну увагу організації харчування, адже гості на прийняття їжі витрачають чимало часу.

1. Особливості організації харчування на круїзних судах

Організація ресторанного господарства на водному транспорті має багато спільного з організацією його на інших видах транспорту. Вона залежить від тривалості рейсу, типу і призначення судна (пасажирське або туристське).

Невеликі річкові і морські судна обладнані буфетами для продажу холодних закусок і напоїв. Буфет має підсобне приміщення, може мати і торговий зал на 8-12 місць. Якщо торговий зал відсутній, то продукцію відпускають через роздавальне вікно, що виходить на закриту частину палуби. У підсобному приміщенні встановлюють холодильну шафу, виробничий стіл, мийні ванни. Для викладення товарів використовують вітрини (пристінні та прилавки-вітрини).

Великі пасажирські судна мають один або декілька салонів-ресторанів, буфети, бари. Їх обладнують столами, стільцями, сервантами. Столи і серванти для стійкості інколи кріпляться до підлоги.


Для сервірування столів бажано використовувати посуд збільшеної ваги. Споживачів у залі обслуговують офіціанти.


Ресторани реалізовують широкий асортимент страв, кондитерських, кулінарних виробів та напоїв за меню вільного вибору. Для туристів, які подорожують на суднах, харчування, що входить у вартість путівки, організовують за меню денного раціону.

Під час споживання їжі у ресторанах в залі здійснюється розвізна торгівля: споживачам пропонують напої, кондитерські та тютюнові вироби. В усіх випадках приймаються заявки на доставку раціонів харчування до кают.

Бари реалізують коктейлі, вина (шампанське, марочні та ін.) та безалкогольні напої (соки, води), закупні товари (цукерки, шоколад тощо), бутерброди, які готує кухня ресторану, кондитерські вироби. Споживачів обслуговує бармен. На суднах, на яких подорожують іноземні туристи, споживачів обслуговують також офіціанти.

У буфетах реалізують кулінарні та кондитерські вироби, напої.

При ресторанах є складські приміщення, в яких зберігається певний запас товарів, а саме: хліб, сипкі товари, риба, м'ясо, молочно-жирові продукти, фрукти, овочі, напої. Перші два види товарів зберігаються в неохолоджуваних приміщеннях, решта - в охолоджуваних, в тому числі у м'ясній та рибній камерах при температурі від -8 до -18°С, в інших - від 0°С до +4°С.

У місцях завантаження товари за допомогою електрокарів доставляються до ліфта, де їх перевантажують і опускають на рівень баржі. Унизу перекладають на візок і транспортують до борту судна. Після цього вантаж спускається до складських приміщень за допомогою вантажопідйомника.

Вантажопідйомник управляється дистанційно і може здійснювати рухи вертикально (у межах між рівнями нижньої і головної палуби) і горизонтально по монорельсу, прикріпленому до верхньої палуби. Завантаження здійснюється з обох бортів.

Розвантаження підйомника та перенесення вантажів до складських приміщень здійснюється вручну, тому що через вузькі проходи не можна використати візки. У бар і буфет товар відразу піднімають ліфтом.

Приймання товару за кількістю та якістю здійснюють матеріально відповідальні особи: завідувач виробництва (йому підпорядковане складське господарство), бармен і буфетник.

Виробництво продукції харчування на великих пасажирських суднах здійснюється у заготівельних (м'ясному, рибному, овочевому), доготівельних (гарячому і холодному) та кондитерському цехах. Розміщені вони компактно з дотриманням санітарно-гігієнічних і технологічних вимог. Характерною особливістю є вузькість коридорів (0,9 м), дверей (0,7 м), наявність порогів, призначених для захисту цеху від проникнення води у штормову погоду.

У м'ясному цеху площею близько 9 м2 виробляють всі види напівфабрикатів (порційні, дрібнокускові, січені тощо). Тут встановлені столи з нержавіючої сталі з бортами з усіх боків для того, щоб продукція не падала під час шторму. Миття м'яса здійснюється у ванні, яка після її використання накривається кришкою з нержавіючої сталі і в подальшому використовується як стіл. Для розрубування напівтуш або четвертин на частини використовують розрубочний стіл, для виготовлення січених виробів - м'ясорубку. Аналогічно оснащують рибний цех.

Овочевий цех має площу до 8 м2. У ньому встановлена картоплечистка, ванна, механізм для нарізання овочів до універсального приводу, столи з бортами. У цеху обробляють всі види овочів та коренеплодів.

У холодному цеху виготовляють досить широкий асортимент холодних страв і закусок. Його площа складає 6 м2. Тут є виробничий стіл, настінні полиці для зберігання запасу спецій, приправ, холодильне обладнання для швидкопсувної продукції, машина для нарізання гастрономічних продуктів. У цеху страви готують і порціонують.

Гарячий цех займає центральне місце у виробничій групі приміщень. Його площа складає близько 40 м. Він добре з'єднаний з іншими цехами і складськими приміщеннями. Посередині цеху розміщена плита для приготування перших, других та солодких страв. Вона має каркас із металевих планок по периметру на відстані 10-15 см від поверхні. У котлі електричному (150 л) готують бульйони і гарніри, на електросковороді пасерують овочі для супів, у холодильнику зберігають напівфабрикати і продукти, які швидко псуються.

На ділянці приготування других страв крім плити знаходяться сковорода, жарова шафа, фритюрниця, шашличниця. Для промивання овочів, круп, а також проціджування відварних макаронів тощо використовують ванну. Нарізання овочів здійснюють на виробничих столах. У цеху встановлений також кип'ятильник. Кип'яток використовують для приготування гарячих напоїв, промивання гарнірів із круп тощо.

У кондитерському цеху встановлені столи, збивальна машина, на яких готують напівфабрикати. Випікають їх у електрошафі, встановленій у гарячому цеху.

Зручно, відносно основних виробничих цехів, розміщена мийна кухонного посуду. Все обладнання на виробництві кріпиться до підлоги, а високе (кип'ятильники, котли, універсальні приводи тощо) ще й до стіни. Всі столи мають борти і з одного боку отвори для стікання води у спеціальну тару та видалення відходів.

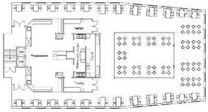
У гарячому цеху є два ліфти, за допомогою яких готові страви подаються на роздавальню, що знаходиться поверхом вище. Інформаційний зв'язок роздавальні з гарячим цехом забезпечується переговорним пристроєм і світловими сигналами. З ліфтів ємності з продукцією переставляють на три марміти: для перших, других страв і гарячих напоїв. Для короткотермінового зберігання холодних закусок встановлені два холодильники.

На стінах роздавальні (по периметру) розміщені підвісні шафи та серванти для зберігання чистого посуду, хліба, спецій, серветок тощо. На одному зі столів встановлена хліборізка. Порціоновані страви офіціанти через тамбури, розміщені з двох сторін, вносять до залу. Поряд з роздавальнею знаходиться мийна столового посуду, оснащена посудомийною машиною, ваннами для миття посуду, настінними шафами для зберігання посуду. Використаний посуд із залу приносять до тамбура, ставлять на стіл, звільняють від відходів (відходи складають у спеціальний бачок), а потім переносять у мийну столового посуду для санітарної обробки.

Рис. Роздавальня і зал ресторану на водному транспорті

Обслуговування пасажирів. На судні на 360 пасажирів, на верхній його палубі передбачено зал ресторану на 180 місць. Обслуговування туристів під час сніданку, обіду, вечері здійснюється у два прийоми.

У залі знаходиться буфет, оснащений прилавком з двома вітринами, пристінними вітринами, холодильним обладнанням, невисокими шафами (сервантами), у яких зберігають продукти, паперові серветки тощо. Поверхню (верхню кришку) шафи використовують як кришку столу.

По периметру зал має широкі вікна, завдяки чому здійснюється органічний зв'язок з навколишнім середовищем.

У залі знаходиться буфет, в якому споживачі можуть додатково придбати алкогольні та безалкогольні напої, кондитерські вироби, морозиво.

Обслуговують споживачів офіціанти, які підпорядковані адміністратору. За його розпорядженням вони надають послуги пасажирам не лише у залі ресторану, бару, а й в каютах, також здійснюють розносну торгівлю. ресторанний харчування круїзний судно

У залі ресторану туристів обслуговують циклічно тричі на день: під час сніданку, обіду та вечері. За 25-30 хв. до появи у залі споживачів на столи подають холодні закуски та напої, за 5-10 хв. - перші страви в супових мисках. Подавання других, солодких страв, гарячих напоїв здійснюється після прибирання використаного посуду.

Використаний посуд заносять до тамбура, ставлять на стіл, звільняють від відходів, які скидають у бачок. Посуд, сортований за видами, заносять у мийну столового посуду, де його миють у посудомийних машинах або мийних ваннах. Чистий посуд офіціанти полірують і сервірують ним столи до наступного обслуговування.

Під час вечері туристам пропонують вибрати один із двох варіантів меню денного раціону, запланованих на наступний день. Для цього меню кладуть на кожний стіл, а турист після ознайомлення з ним ставить навпроти вибраних страв певні позначки. У кінці дня адміністратор підсумовує дані по двох меню і передає інформацію завідувачу виробництва, який планує роботу кухні на наступний день.

Видовжена форма залу, а отже, нерівномірна віддаленість місць від роздавальні, створює різні умови для роботи офіціантів. Через це вони змінюють закріплені за ними у залі місця, рухаючись за годинниковою стрілкою. Всі операції, пов'язані з обслуговуванням пасажирів (починаючи із сервірування столів і закінчуючи прибиранням посуду), офіціанти виконують на закріпленій за ними позиції, працюючи у бригаді з індивідуальною формою обслуговування. Це дозволяє швидко вирішувати конфліктні ситуації та враховувати вимоги окремих споживачів.

Перед закінченням круїзу в ресторані проводиться бенкет або прощальна вечеря. Всі питання, пов'язані з цими заходами, погоджують між собою з одного боку директор ресторану і адміністратор залу та організатор круїзу - з іншого. Цього вечора в буфеті можна купити вино та інші напої, передбачена також певна культурна програма.

Обслуговування споживачів широким асортиментом напоїв і супутніми товарами здійснюється також у барі, який складається із залу та підсобного приміщення. Інтер'єр бару повинен створювати особливу атмосферу невимушеності, зручності, комфортності. У залі по периметру розміщені дерев'яні круглі столи, дивани, крісла, посередині - танцювальний майданчик, естрада і барна стійка з сидячими місцями.

Барна стійка являє собою охолоджувальний прилавок з прямокутною ємністю для 6-8 пляшок та двосекційною ванною. На прилавку встановлюють кавоварку, фризер для м'якого морозива, міксер, блендер. За барною стійкою розміщена красиво оформлена вітрина. Підсобне приміщення бару призначене для виконання деяких операцій та зберігання запасу продуктів. Тут встановлені холодильники, льодогенератор, секційна ванна, виробничий стіл, раковина для миття рук. З виробничими цехами воно з'єднується тими ж ліфтами, що й ресторан, тому що бар розміщений на поверх вище.

У барі застосовується комбінована форма обслуговування: споживачі можуть обмежитися послугами барменів біля стійки або зробити замовлення офіціантам, сидячи за столами у залі. В залі бару лунає музика, що сприяє відпочинку. Танцювальну музику для туристів, як правило, виконують інструментальні ансамблі. Музичне обслуговування доповнюється телевізійними передачами.

Буфет на суднах складається з двох приміщень: підсобного і торгового. У підсобному приміщенні буфету встановлено обладнання для зберігання продукції, миття посуду, виконання деяких виробничих операцій, а саме: холодильник, настінні полиці, виробничий стіл, шафа і двосекційна ванна.

У торговому приміщенні, оформленому у вигляді П-подібного прилавка, по обидва боки від дверей, що ведуть у підсобне приміщення, встановлені вітрини, на полицях яких красиво викладають продукцію, яку реалізовує буфет.

Штат працівників ресторанного господарства на суднах суворо обмежений, тому для нього складається чіткий графік роботи з максимальним ущільненням робочого дня. Так, на суднах, розрахованих на 360 туристів, під час рейсу на виробництві зайнято 13 осіб, в тому числі у заготівельних цехах (м'ясному, рибному, овочевому) - 4 кухарі, у доготівельних (гарячому, холодному) - 6 кухарів, у кондитерському - один кондитер, у підсобних цехах (мийній кухонного та столового посуду) - два працівники. На роздавальні працює три чоловіки з числа кухарів доготівельних цехів.


Споживачів у залах обслуговують 12-20 офіціантів (залежно від складу туристів). Заклади ресторанного господарства очолює директор, бригаду офіціантів - метрдотель (адміністратор залу). У барі працює бармен, в буфеті - буфетник.

2. Особливості управління якістю харчування туристів

Питання якості харчування на круїзному судні є одним з найбільш нагальних, адже круїзні тури коштують дорого і гості розраховують за належну платню отримати якісну продукцію.

Якість продукції залежить від відповідності всіх служб ресторану вимогам певних правил ведення технологічного процесу. У ресторані цьому надається велике значення. Строга відповідність всіх служб ресторану вимогам і дотримання правил ведення технологічного процесів починається з розміщення функціональних груп приміщень. Виробнича група приміщень розміщена в єдиній функціональній зоні, оснащеної устаткуванням і засобами механізації процесів. Потоки сировини, готової продукції та відходів не перетинаються. Сировина овочеве, м'ясне, рибне, птах або напівфабрикати, сировину свіже, заморожене, охолоджене - все передається на короткочасне зберігання по строго певних секцій складу або холодильника, розподіляючись на підтоварниках, стелажах або функціональних ємностях. Особлива увага приділяється термінам умовам зберігання напівфабрикатів і готової продукції.

Висновок

Основною рисою, що відрізняє круїз від інших турів, є єдність місця пересування, проживання, харчування та дозвілля - круїзне судно. Саме тому організація харчування туристів на водному виді транспорту є дуже важливою, а від якості продукції залежить репутація усієї круїзної компанії, що в умовах жорсткої конкуренції змушує усувати недоліки і строго стежити за всіма аспектами виробленої продукції.

Похожие работы на - Організація харчування туристів на водних видах транспорту

 

Не нашли материал для своей работы?
Поможем написать уникальную работу
Без плагиата!
Без нейросетей!