Тепловой расчет котельного агрегата
Введение
Теплогенерирующей установкой называют совокупность устройств и механизмов
для производства тепловой энергии в виде водяного пара, горячей воды или
подогретого воздуха.
Тепловая энергия - один из основных видов энергии, используемой человеком
для обеспечения необходимых условий его жизнедеятельности.
Комплексы устройств, производящих тепловую энергию и доставляющих ее в
виде водяного пара, горячей воды или подогретого воздуха потребителю,
называются системами теплоснабжения.
Источниками энергии, в том числе и тепловой, могут служить вещества,
энергетический потенциал которых достаточен для последующего преобразования их
энергии в другие ее виды с целью последующего целенаправленного использования.
В качестве топлива в котельных используют мазут, природный газ, уголь. В
данной работе выбрана централизованная схема теплоснабжения для отопительной
котельной, где используются котлы типа ДЕ 10-14ГМ, работающие на мазуте.
. Конструкция котельного агрегата ДЕ-10-14ГМ
1.1 Описание конструкции
Газомазутные котлы типа ДЕ, разработанные А.А. Дорожниковым и
сотрудниками НПО ЦКТИ, паропроизводительностью 10 т/ч изготавливаются БиКЗ для
работы давлением 14 и 24 кгс/см2. Они предназначены для выработки
насыщенного и слабоперегретого пара, идущего на технологические нужды
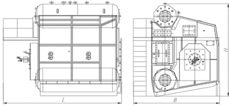
предприятий. Конструкция котельного агрегата представлена на рис.1:
Рис.1 - Конструкция котельного агрегата
Паровой котёл ДЕ-10-14 ГМ газомазутный вертикально-водотрубный паровые с
естественной циркуляцией типа Е (ДЕ) производительностью 4; 6,5; 10; 16 и 25
т/ч предназначены для выработки насыщенного или слабоперегретого пара,
используемого на технологические нужды промышленных предприятий, в системах
отопления, вентиляции и горячего водоснабжения. Топочная камера котлов
размещается сбоку от конвективного пучка, оборудованного вертикальными трубами,
развальцованными в верхнем и нижнем барабанах. Основными составными частями
котлов являются верхний и нижний барабаны, конвективный пучок, фронтовой и
боковой экраны, образующие топочную камеру ДЕ-10-14ГМ. Барабаны котла ДЕ-10-14
ГМ, рабочим давлением 1,4 или 2,4 МПа, изготавливается из стали 16ГС, 09Г2С,
стенка толщиной 13 или 20 мм соответственно. Контроль качества продукции,
обеспечивается за счёт провидения ультразвуковой диагностики сварных швов
барабана. На котёл ДЕ-10-14 выписывается паспорт, присваивается номер котла. В
паспорт вносится вся первичная документация на комплектующие (барабаны, трубная
система, камерой экранов, трубная арматура). Прилагается сертификаты и
разрешения на применение выданное "Федеральной службой по экологическому,
технологическому и атомному надзору ". У котлов паропроизводительностью до
4 т/ч диаметр верхнего и нижнего барабанов 700 мм, у остальных - 1000 мм.
Расстояние между барабанами соответственно 1700 мм и 2750 мм (максимально
возможное по условиям транспортировки блока по железной дороге). Для доступа
внутрь барабанов в переднем и заднем днищах каждого из них имеются лазы с
затворами (крышка лаза). Изготовляются барабаны для котлов с рабочим давлением
1,4 и 2,4 МПа абс из стали 16ГС или 09Г2С и имеют толщину стенки соответственно
13 и 22 мм. Паровой котёл ДЕ 10-14 ГМ производительностью 1; 4; 6,5 и 10 т/ч
выполнены с одноступенчатой схемой испарения. В котлах производительностью 16 и
25 т/ч применено двухступенчатое испарение. Во вторую ступень испарения
вынесена задняя часть экранов топки и часть конвективного пучка, расположенная
в зоне с более высокой температурой газов. Контуры второй ступени испарения
имеют необогреваемую опускную систему. Пароперегреватель котлов
производительностью 6,5 и 10 т/ч выполнен змеевиковым из труб. На котлах
производительностью 16 и 25 т/ч пароперегреватель - вертикальный, дренируемый
из двух рядов труб. Поставляются котлы блоком, включающим верхний и нижний
барабаны с внутрибарабанными устройствами, трубную систему экранов и
конвективного пучка (в случае необходимости - пароперегреватель), опорную раму,
изоляцию и обшивку. В качестве хвостовых поверхностей нагрева котлов
применяются стальные или чугунные экономайзеры. Паровой котёл ДЕ-10-14 ГМ
оборудованы системами очистки поверхностей нагрева. Неподвижными опорами котлов
являются передние опоры нижнего барабана. Средняя и задние опоры нижнего
барабана подвижные и имеют овальные отверстия для болтов, которыми крепятся к
опорной раме на период транспортировки. Каждый котел Е (ДЕ) снабжен двумя
пружинными предохранительными клапанами, один из которых является контрольным.
На котлах без пароперегревателя оба клапана устанавливаются на верхнем барабане
котла и любой из них может быть выбран как контрольный. На котлах с
пароперегревателем контрольным клапаном является клапан выходного коллектора
перегревателя.
Номинальная паропроизводительность и параметры пара, соответствующие ГОСТ
3619-82, обеспечиваются при температуре питательной воды 100°С при сжигании
топлив: природного газа с удельной теплотой сгорания 29300-36000 кДж/кг
(7000-8600 ккал/м3) и мазута марок М40 и М100 по ГОСТ 10588-75. Диапазон
регулирования 20-100% от номинальной паропроизводительности. Допускается
кратковременная работа с нагрузкой 110%. Поддержание температуры перегрева у
котлов с пароперегревателями обеспечивается в диапазоне нагрузок 70-100%.
Котёл ДЕ 10-14 ГМ может работать в диапазоне давлений 0,7-1,4 МПа. Котёл
ДЕ-10-24; котёл ДЕ-16-24ГМ; котёл ДЕ-25 - в диапазоне давлений 1,8-2,4 МПа без
изменения паропроизводительности.
В котельных, предназначенных для производства насыщенного пара без
предъявления жестких требований к его качеству, паропроизводительность котлов
типа Е (ДЕ) при пониженном до 0,7 МПа давлении может быть принята такой же, как
и при давлении 1,4 МПа.
Для котлов типа Е (ДЕ) пропускная способность предохранительных клапанов
соответствует номинальной производительности котла при давлении не ниже 0,8 МПа
абс.
Нормы качества питательной воды и пара должны соответствовать требованиям
регламентируемым правилами "Федеральной службой по экологическому,
технологическому и атомному надзору" России.
Солесодержание котловой воды в первой ступени испарения котлов без
пароперегревателя должно быть не более 3000 мг/кг, для котлов с
пароперегревателем - не более 2000 мг/кг. Солесодержание котловой воды второй
ступени испарения должно быть не более 4500 мг/кг.
Средний срок службы котлов между капитальными ремонтами при числе часов использования
установленной мощности 2500 ч/г - 3 года, средний срок службы до списания не
менее - 20 лет. Паровой котёл ДЕ 10-14 ГМ, может использоваться в качестве
водогрейного (по технической документации завода).
Блок схема котельного агрегата ДЕ-10-14ГМ представлена на рисунке 2:
Рис.2- Блок-схема котельного агрегата
.2 Технические характеристики
|
Наименование
|
Марка котла
|
|
ДЕ 10 -14ГМ
|
|
Номинальная производительность, т/ч
|
10,0
|
|
Давление пара на выходе из котла, МПа (кгс/см2)
|
1,4(14)
|
|
Температура, °С:
|
|
|
насыщенного пара
|
194
|
|
перегретого пара
|
-
|
|
питательной воды
|
100
|
|
Тип горелок (число горелок, шт.)
|
ГМ-7/(1)
|
|
Номинальная тепловая мощность горелки, МВт (Гкал/ч)
|
8,15 (7)
|
|
Объем топочной камеры, м3
|
17,14
|
|
Площадь поверхности, м2:
|
|
|
нагрева радиацией
|
39,02
|
|
нагрева конвекцией
|
110,0
|
|
водяного экономайзера
|
236
|
|
Марка водяного чугунного экономайзера
|
ЭП2-236
|
|
Расход топлива:
|
|
|
мазута, кг/ч
|
673
|
|
на мазуте
|
422 (363,6 × 103)
|
|
Температура газов, °С, на выходе из топки:
|
|
|
на мазуте
|
1069
|
|
Температура газов, °С, за котлом:
|
|
|
на мазуте
|
310
|
|
Температура уходящих газов, °С:
|
|
|
на мазуте
|
174
|
|
Расчетный КПД брутто, %:
|
|
|
на мазуте
|
90,99
|
|
Газовое сопротивление котла, кПа (кгс/м2)
|
|
Диаметр и толщина стенки труб, мм:
|
|
|
Экрана
|
51´2,5
|
|
Барабаны:
|
-
|
|
внутренний диаметр и толщина стенки, мм
|
1000´13
|
|
длина цилиндрической части, мм
|
4500
|
|
расстояние между центрами, мм
|
2750
|
|
Габариты котла, мм:
|
|
|
длина
|
6530
|
|
ширина
|
4300
|
|
высота
|
5050
|
|
Масса котла, поставляемого заводом, т
|
13,620
|
|
Изготовитель
|
Бийский котельный завод
|
.3 Состав топлива
Топливо - Мазут-100. малосернистый.
Рабочая масса тела на 1 кг:
Wp =2,0% - влажность,
Ap=0,15 %- зольность,
Sлр=0,9% - содержание серы,
Cp=84,75% - содержание углерода,
Hp=10,58% - содержание водорода,
Op=0,9% - содержание кислорода,
Qнр низшая теплота сгорания 9450 ккал/кг.[2]
. Тепловой расчет котельного агрегата
2.1 Расчет теоретического расхода воздуха и теоретических объемов
продуктов сгорания
Расчет теоретического расхода воздуха и теоретических объемов продуктов
сгорания проведен для коэффициента воздуха a=1 и сведен в таблицу 2.1.
Таблица 2.1
2.2 Расчет коэффициента избытка воздуха и присосов по газоходам
Расчет коэффициента избытка воздуха и присосов по газоходам сведен в
таблицу 2.2. Расчет составлен на основе приложений Б и В [3] и блок-схемы
котельного агрегата ДЕ 10-14ГМ (рис.2).
Таблица 2.2.
|
Наименование коэффициентов
|
Обозначение
|
Формула или источник
|
Расчет
|
|
1. Коэффициент избытка воздуха в газомазутной топке
|
|
Приложение Б
|
1,1
|
|
2. Присосы в топке (газомазутные с металлической обшивкой)
|
Daт
|
Приложение В
|
0,05
|
|
3. Коэффициент избытка воздуха на выходе из топки
|
|
+ Daт
|
1,1+0,05=1,15
|
|
4. Присосы в фестоне
|
Daф
|
Приложение В
|
0
|
|
5. Коэффициент избытка воздуха за фестоном
|
|
+ Daф
|
1,15+0=1,15
|
|
6. Присосы в первом котельном пучке D 50 т/ч
|
Daк1
|
Приложение В
|
0,05
|
|
7. Коэффициент избытка воздуха за первым котельным пучком
|
|
+ Daк1
|
|
8 Присосы во втором котельном пучке D 50 т/ч
|
Daк2
|
Приложение В
|
0,1
|
|
9 Коэффициент избытка воздуха за вторым котельным пучком
|
|
+ Daк2
|
1.2+0,1=1,3
|
|
10 Присосы в экономайзере(чугунный с обшивкой)
|
Daэ
|
Приложение В
|
0,1
|
|
11 Коэффициент избытка воздуха за экономайзером
|
|
+ Daэ
|
1,3+0,1=1,4
|
|
12 Присосы воздуха в стальных газоходах (l=20 м)
|
Daг
|
Daг=Daн*(L/10)
|
0,01*(20/10)=0,02
|
|
13 Коэффициент избытка воздуха при входе в дымосос
|
|
+ ,
|
1,4+0,02=1,42
|
.3 Расчет действительных объемов воздуха и продуктов сгорания
Расчет действительных объемов воздуха и продуктов сгорания сведен в
таблицу 2.3.
Таблица 2.3.
.4 Энтальпия продуктов сгорания по газоходам котельного агрегата
Расчет энтальпии продуктов сгорания по газоходам котельного агрегата
сведен в таблицу 2.4.
Таблица 2.4.
|
,0C
|
, ккал/кг
|
, ккал/кг
|
, ккал/кг
|
|
|
|
1.15
|
1,2
|
1,3
|
1,4
|
1,42
|
|
|
|
|
|
|
|
|
|
|
|
|
|
|
100
|
379
|
336
|
|
|
|
|
|
|
513
|
|
520
|
|
|
200
|
766
|
676
|
|
|
|
|
969
|
|
1036
|
|
1050
|
|
|
300
|
1163
|
1022
|
|
|
|
|
1470
|
|
1572
|
|
1592
|
|
|
400
|
1573
|
|
|
1848
|
|
1986
|
|
2123
|
|
|
|
|
500
|
1994
|
1736
|
|
|
2341
|
|
2515
|
|
|
|
|
|
|
600
|
2421
|
2106
|
|
|
2842
|
|
3053
|
|
|
|
|
|
|
700
|
2862
|
2486
|
|
|
3359
|
|
3608
|
|
|
|
|
|
|
800
|
3315
|
2869
|
3745
|
|
3889
|
|
|
|
|
|
|
|
|
900
|
3779
|
3252
|
4267
|
|
4429
|
|
|
|
|
|
|
|
|
1000
|
4248
|
3645
|
4795
|
|
4977
|
|
|
|
|
|
|
|
|
1100
|
4719
|
4048
|
5326
|
|
5529
|
|
|
|
|
|
|
|
|
1200
|
5193
|
4452
|
5861
|
|
|
|
|
|
|
|
|
|
|
1300
|
5679
|
4856
|
6407
|
|
|
|
|
|
|
|
|
|
|
1400
|
6174
|
5270
|
6965
|
|
|
|
|
|
|
|
|
|
|
1500
|
6664
|
5684
|
7517
|
|
|
|
|
|
|
|
|
|
|
1600
|
7163
|
6099
|
8078
|
|
|
|
|
|
|
|
|
|
|
1700
|
7665
|
6514
|
8642
|
|
|
|
|
|
|
|
|
|
|
1800
|
8168
|
6928
|
9207
|
|
|
|
|
|
|
|
|
|
|
1900
|
8679
|
7353
|
9782
|
9187
|
7778
|
10354
|
|
|
|
|
|
|
|
|
|
|
2100
|
9701
|
8203
|
10931
|
|
|
|
|
|
|
|
|
|
2.5Тепловой расчет котельного агрегата
Тепловой баланс котельного агрегата
Таблица 2.1.1. Располагаемое тепло на 1кг или 1м3 сжигаемого
топлива
Определение тепловых потерь
Таблица 2.1.2 Определение тепловых потерь
Коэффициент полезного действия агрегата и расход топлива
Таблица Коэффициент полезного действия агрегата и расход топлива
2.6 Расчет теплообмена в топке
Таблица 2.2.1. Определение температуры дымовых газов на выходе из топки
.7 Расчет конвективных поверхностей нагрева
Описание котельных пучков
Конвективный пучок образован коридорно-расположенными вертикальными
трубами диаметром 51 2,5 мм. Шаг труб вдоль барабана 90 мм, поперечный 110 мм
(за исключением среднего, составляющего 120 мм). В конвективном пучке имеются
продольные перегородки, что обеспечивает разворот газов и выход их через заднюю
стенку котла.
Расчет температуры дымовых газов на выходе из котельного пучка
Таблица 2.3.1 Расчет температуры дымовых газов на выходе из первого
котельного пучка
Таблица 2.3.2 Расчет температуры дымовых газов на выходе из второго
котельного пучка
.8 Расчет Экономайзера
Описание конструкции экономайзера
В чугунных экономайзерах поверхность нагрева образована из оребренных
чугунных труб, соединенных в змеевики путем гладкотрубных U-образных калачей для перепуска воды.
Для улучшения теплопередачи в экономайзерах применяют противоток воды и газов
Рис. 7 Чугунный экономайзер
Технические характеристики экономайзера ЭП2-236
|
Наименование
|
Двухколонковые
|
|
ЭП2-236
|
|
Поверхность нагрева, м2
|
236
|
|
Количество труб в ряду, шт.
|
5
|
|
Количество рядов по группам, шт.
|
4 + 4 4 + 4
|
|
Количество групп в колонке(ах), шт.
|
2
|
|
Длина трубы, мм
|
2000
|
|
Номер обдувочного устройства
|
5
|
|
Количество обдувочных устройств, шт.
|
2
|
|
Количество сопл (рабочих) в обдувочном устройстве, шт.
|
48
|
|
Аэродинамическое сопротивление, Па (мм вод. ст.)
|
343 (35)
|
|
Гидравлическое сопротивление, МПа (кгс/см2)
|
0,2 (2,0)
|
|
|
газ, мазут
|
03
|
|
каменные угли
|
06
|
|
бурый уголь (фрезерный торф)
|
-
|
|
Габаритные размеры, мм
|
|
|
длина
|
3950
|
|
ширина
|
1750
|
|
высота
|
1970
|
|
Масса экономайзера без короба, т, не более
|
8,0
|
|
Марка котла
|
ДЕ-10; КЕ-6,5
|
Расчет температуры дымовых газов на выходе из экономайзера
Таблица 2.3.1 Расчет температуры дымовых газов на выходе из экономайзера
2.9 Проверка теплового баланса
Фактическая температура уходящих газов
за экономайзером отличается от той, которая
была задана предварительно, поэтому необходимо произвести корректировку.
Тепловой баланс по блокам котла оформляется по форме таблицы 2.4.1.
Расчет относительной невязки баланса представлен в таблице 2.4.2.
котельный агрегат газоход тепловой
Таблица
2.4.1. Тепловой баланс по блокам котла
|
Блоки
|
I¢, ккал/кг
|
J¢, °С
|
I², ккал/кг
|
J², °С
|
Qполезн.
|
|
|
|
|
|
ккал/кг
|
% от Qт
|
|
Топка
|
9556,2
|
1860,6
|
5161,4
|
1095,3
|
2888,86
|
30,23
|
|
Котельный пучок 1
|
6641,1
|
580
|
2791,8
|
500
|
3810
|
-0,65
|
|
Котельный пучок 2
|
2791,8
|
330
|
1624,8
|
300
|
1171,7
|
0,47
|
|
Экономайзер
|
1036
|
330
|
952,3
|
184
|
692,4
|
1,45
|
Таблица 2.4.2. Относительная невязка баланса
|
Наименование параметра
|
Размерность
|
Действительные значения
|
Заданные значения
|
|
Температура уходящих газов
|
°С
|
Jух.ф = =184
|
|
Энтальпия уходящих газов
|
ккал/кг
|
Iух.ф = =952,3
|
Iух.ф =900
|
|
Потери тепла с уходящими газами
|
%
|
|
q2 =8,198
|
|
Суммарные потери тепла в котельном агрегате
|
%
|
|
Sq=10,39
|
|
Коэффициент полезного действия
|
%
|
hк.а.ф = 100 - 10,152=89,84
|
hк.а =89,81
|
|
Невязка теплового баланса котла
|
ккал/кг
|
|
|
Относительная невязка теплового баланса котла
|
%
|
=
|
Список литературы
1. Суркова,Е.В. Тепловой расчет котельного
агрегата:учеб.-метод.пособие по выполнению расчетной работы по дисциплине
"Теплогенерирующие установки"/ Е.В.Суркова.-Тольятти :ТГУ,2007.-67с.
. Роддатис К.Ф. Котельные Установки. Учеб. Пособие для
студентов неэнергетических специальностей вузов. М., "Энергия", 1977.