Будівництво радіального відстійника
Пояснююча
записка
до
курсової роботи на тему:
«Будівництво
радіального відстійника»
Зміст
Вступ
1.Характеристика споруди і її
конструктивні особливості
2. Склад і об'єм будівельно-монтажних
робіт
.1 Визначення розмірів котлованів і об'єма
земляних робіт
.2 Вибір технічних засобів для виконання
земляних робіт
2.3 Техніко-економічний вибір екскаваторів
2.4 Визначення марки і кількості вантажних
автомобілів для транспортування зайвого гранта
2.5 Вибір монтажних кранів для монтажу
споруд ВіВ
.6 Техніко-економічне порівняння
кранів
3. Складання калькуляції трудових витрат і
таблиці технологічних розрахунків
Висновок
Література
Вступ
Метою виконання курсової роботи є закріплення, поглиблення і
узагальнення знань і практичних умінь для визначення необхідної кількості машин
кожного типу при виконанні земляних робіт у процесі будівництва радіальних
відстійників.
Отже, об’єктом проектування є радіальні відстійники, а саме 4
штуки діаметром 24 м та висотою 3,6 м, тип ґрунтів супісок.
В даній курсовій роботі ми визначаємо об’єм будівельних робіт
при розробці котлованів під радіальні відстійники, обираємо технічні засоби для
виконання земляних робіт, здійснюємо техніко-економічні порівняння
екскаваторів,
В результаті всіх обрахунків ми складаємо калькуляцію
трудових витрат для визначення тривалості роботи радіальних відстійників.
1.Характеристика споруди і її конструктивні особливості
Радіальні відстійники являють собою круглі в плані споруди,
в яких освітлення стічних вод відбувається при їх горизонтальному русі в
радіальному напрямку від центру до периферії (рис. 1.1).
Типові проекти радіальних відстійників діаметром 18-50 м
дозволяють використовувати їх на очисних станціях практично будь-якої
продуктивності, починаючи з 20 тис. м3/добу (табл. 1.1). До складу типового вузла
входять чотири відстійники, насосна станція, розподільна чаша і жирозбірники
(рис. 1.2). Очищувані стічні води по дюкеру надходять у розподільчу чашу, де за
допомогою чотирьох незатоплених водозливів з широким порогом потік поділяється на
чотири рівні частини, кожна з яких по самостійному трубопроводу надходить у
центральний розподільчий пристрій свого відстійника.
Таблиця
1.1
Уніфіковані
розміри первинних радіальних відстійників із збірного залізобетону
|
Параметри
|
Діаметр відстійника, м
|
|
18,0
|
24,0
|
30,0
|
40,0
|
|
Типовий проект
|
ТП 902- 2-362.83
|
ТП 902- 2-363.83
|
ТП 902- 2-378.83
|
ТП 902- 2-383.83
|
|
Діаметр розподільного пристрою, м
|
1,4
|
1,6
|
1,8
|
2,0
|
|
Гідравлічна глибина, м
|
3,4
|
3,4
|
3,4
|
4,0
|
|
Висота зони осаду, м
|
0,3
|
0,3
|
0,3
|
0,35
|
|
Діаметр мулового приямка, м
|
5,0
|
6,0
|
7,0
|
8,0
|
|
Діаметр підвідного трубопроводу, мм
|
700
|
900
|
1200
|
1500
|
|
Діаметр відвідного трубопроводу, мм
|
500
|
600
|
800
|
1200
|
|
Діаметр трубопроводу сирого осаду, мм
|
200
|
200
|
250
|
|
Об'єм зони осаду, м3
|
110
|
210
|
340
|
710
|
Розподільчий пристрій являє собою сталеву трубу, яка
переходить нагорі у вертикальний розтруб, що плавно розширюється і закінчується
під рівнем води. Стічні води, що виходять із розподільчого пристрою, попадають
у зону, обмежену стінками металевого циліндру, який забезпечує заглиблений їх
впуск у зону освітлення. В процесі освітлення стічні води рухаються
горизонтально у радіальному напрямку до кільцевого водозбірного лотка,
розміщеного біля зовнішньої стінки відстійника. При цьому швидкість руху
стічних вод змінюється від свого максимального значення в центрі до
мінімального на периферії споруди, що складає характерну особливість радіальних
відстійників розглядуваної конструкції. Згідно СНиП 2.04.03-85 швидкість руху
стічних вод на середині радіуса не повинна перевищувати 5-10 мм/с.
Відведення з радіального відстійника освітлених стічних вод
здійснюється за допомогою кільцевого водозбірного лотка, одна із стінок якого є
порогом водозливу. Кращі умови відведення стічних вод забезпечуються
влаштуванням водозбірного лотка на відстані 0,5-1 м від стінки відстійника.
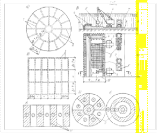
Рис. 1.1 Радіальний первинний відстійник діаметром 18 м: 1 -
подаючий дюкер; 2 - механічні скребки; 3 - струминонаправляючий циліндр; 4
-трубопровід для видалення осаду; 5 - відвідний трубопровід освітленої води; 6
- жирозбірник; 7 - привід мулоскреба; 8 - напівзанурена дошка; 9 - водозбірний
лоток
Завдяки цьому водозливи можуть влаштовуватись з двох сторін
водозбірного лотка, що зменшує його гідравлічне навантаження.
Вітрові хвилі, що утворюються на водній поверхні при сильних
вітрах, можуть викликати 1,5-кратну нерівномірність гідравлічного навантаження
на водозливи водозбірних лотків. Таку нерівномірність вдається значно зменшити
при влаштуванні на гребені збірного лотка зубчастого водозливу у вигляді
трикутників з кутом 90 0 при вершині.
Осад, що випадає на дно, згрібається до мулового приямка, розміщеного в центрі відстійника, за
допомогою спеціальних скребків. Приямок являє собою перевернутий зрізаний конус. Дно відстійника
влаштовується з похилом 0,005-0,05 від периферії до приямка.
Рис. 1.2 Вузол типових радіальних відстійників діаметром 30
м: 1 - розподільна чаша; 2 - відстійники; 3 - насосна станція сирого осаду; 4 -
жирозбірник; трубопроводи: 5 - сирого осаду; 6 - промивної води; 7 -
жиропровід; 8 - повітропровід.
До складу скребкового механізму входять два радіальні крила
із скребками, розміщеними під кутом 35 0 до напрямку руху
мулоскреба, рухома ферма з містком, яка опирається одним кінцем у центрі
відстійника, а іншим на периферійний привід з візком на пневмоходу. До ферми
закріплене також підвісне обладнання, що згрібає спливаючі на поверхню речовини
до жиро-збірника, з якого вони відводяться на перекачку. Частота обертання ферми із скребками складає 2-3 год-1 (периферійна швидкість
0,05-0,1 м/с). Скребки працюють безперервно чи включаються в роботу періодично
після накопичення шару осаду товщиною 15-20 см. Видалення осаду із мулових
приямків здійснюється по трубопроводу діаметром 200-300 мм за допомогою
плунжерних насосів, розміщених у напівзаглибленій насосній станції. Там же
розміщені насоси для перекачування спливаючих домішок і спорожнення
відстійників. Застосування плунжерних насосів дозволяє отримати осад вологістю
до 93,0-93,5 %. Осад із мулових приямків може також видалятися по трубопроводу
під тиском стовпа води висотою 1,5 м. У цьому випадку вологість осаду, що
перекачується далі відцентровими насосами, складає в середньому 95 %.
Робоча глибина відстійної частини радіальних відстійників Нset приймається в межах 1,5-5 м,
висота нейтрального шару Нн = 0,3 м, висота шару осаду і дії
скребка Н0 = 0,3-0,35 м, розрахункове навантаження на 1 м2
дзеркала води -1,5-3,5 м3/год.
Радіальні первинні відстійники забезпечують затримання 50-55
% завислих речовин. Кругла у плані форма радіальних відстійників дозволяє
зменшувати необхідну товщину стінових панелей за рахунок застосування
високоміцної попередньо напруженої арматури, що скорочує їх питому
матеріалоємність. Рухома ферма із скребками забезпечує просте видалення осаду
із споруди.
споруда відстійник будівництво котлован
Рис. 1.3 Радіальний (а) відстійник: 1 - підготовка; 2- залізобетонне
днище; 3 - стінні панелі; 4- стики між панелями; 5 -
лоток.
Знаходимо кількість плит які потрібні
на один відстійник:
Рис.1.4
Схема радіального відстійника в плані
Довжина одного відстійника по колу
становить:
Довжина однієї панелі: L=1,51 м
Тоді кількість панелей на один
відстійник буде становити:
Визначаємо ширину зазору між
стіновими панелями:
Дана споруда будується із збірних залізобетонних панелей
марки ПСЦ 1 - 36 - 2, з розмірами: Н = 3600 мм, δ
= 200 мм, вагою
- 1,7 т, глибина котловану для відстійників - 3,1 м, похил стінок котловану m =
0,85.
Таблиця
1.2
Специфікація
збірних елементів
|
№
|
Назва і марка елементів
|
Ескіз і основні розміри
|
Кількість штук
|
Маса одного елемента
|
|
1
|
ПСЦ І-36-2
|
1961,7
|
|
|
2. Склад і об'єм будівельно-монтажних робіт
.1 Визначення розмірів котлованів і об'єма земляних робіт
При будівництві будівель і споруд виконується комплекс
земляних робіт, в склад яких входить: початкове розпушування ґрунту, планування
майданчика, розробка, переміщення, відсипка, розрівнювання та ущільнення
ґрунту, зачищення основи, доробка ґрунту вручну, планування поверхонь після
ущільнення ґрунту. Структура комплексного процесу залежить від прийнятих
методів виконання земляних робіт і засобів їх механізації.
При визначенні об’ємів земляних робіт спочатку визначають
необхідність застосування тимчасового закріплення відкосів земляної споруди,
спосіб розробки ґрунтів( механізований, гідро механізований чи підривний).
Ширина котловану по дну визначається
за формулою:
bkн = 2 bk + 2 a + с (2.1)
де a - приймаємо рівним 1м;
bk - ширина споруди, яка
будується, м.
bkн = 2 ∙ 24 + 2 ∙ 1 + 8= 58
м
Ширина котловану по верху
визначається за формулою:
Bkв= 2 bkн+2 m h +2 a + с (2.2)
де bkн - ширина котловану по низу, м;
m - коефіцієнт закладання відкосів
котловану;
h - робоча глибина котловану, м.
На території будівництва вид ґрунту - супісок, глибина
траншеї в межах 3 - 5 м, отже, m - відношення висоти відкосу котловану до його закладання, m = 0,85.
Bkв = 24 ∙ 2 + 2·0,85·3,1 + 2·1+ 8
= 63,3 м
Довжина котлована по дну визначається
за формулою:
Lkн= 2 lk+2a + с (2.3)
де lk - довжина споруди, яка будується, м;
a - приймаємо рівним 1м
Lkн = 2·24 + 2∙1 + 8,0 = 58 м
Ширина котловану по верху
визначається за формулою:
Lkв= 2 Lkн+2mh +2a + с (2.4)
де Lkн - довжина котловану по низу, м;
m - коефіцієнт закладання відкосів
котловану;
h - глибина котловану, м
Lkв = 2·24 + 2·0,85·3,1 + 2·1+ 8,0 = 63,3 м
Об’єм котловану прямокутної форми з укосами визначаємо за
формулою:
При підрахунку об’ємів земляних робіт слід враховувати об’єми
в’їзних і виїзних траншей, який визничається за формулою:
(2.6)
де m´
- коефіцієнт
укосу в’їзної траншеї, m´=1:10;
m - коефіцієнт укосу стінок котловану,
m = 0,85;
b - ширина в’їзної траншеї, м: b = 4,5 м для одностороннього руху;
h - глибина котловану, h = 3,0 м.
Тоді об’єм двох траншей становить:
Визначаємо об’єм ґрунту на вивіз і
об’єм ґрунту для засипки споруди:
(2.7)
де Vспор - об’єм споруди, яка будується. В даному випадку об’єм
радіальних відстійників становить: Vспор = 4·3,1·3,14·242/4 = 5606,78 м3;
Kпр- коефіцієнт початкового розрихлення
грунту, приймаємо 1,15;
Vвивіз - об’єм ґрунту на вивіз, м3.
,
(2.8)
де Vзас - об’єм ґрунту для засипки, м3;
Kост - коефіцієнт ущільнення
грунту, приймаємо 1,03.
Таблиця 2.1
Баланс земляних мас
|
№ п/п
|
Назва
|
Об’єм ґрунту, м3
|
|
1
|
Об’єм котловану
|
11410,37
|
|
2
|
Об’єм в’їзних траншей
|
537
|
|
3
|
Об’єм ґрунту на вивіз
|
6447,8
|
|
4
|
Об’єм ґрунту на засипку
|
5339,39
|
2.2 Вибір технічних засобів для виконання земляних робіт
Вибір екскаватора проводимо залежно від розмірів котловану,
об’єму земляних робіт, гідрологічних умов, схеми монтажу конструкцій споруди в
двох варіантах, співставляючи техніко-економічні показники для вибору кращого.
Рис.
2.2 Схема розробки котловану екскаватором
2.3 Техніко-економічний вибір екскаваторів
Технічні характеристики вибраних для
порівняння екскаваторів наведені в таблиці 2.2.
Таблиця
2.2
Характеристики
екскаваторів
|
№ п/п
|
Технічні характеристики екскаваторів
|
Марка екскаваторів
|
|
|
ЭО - 3322
|
ЭО - 5122
|
|
1
|
Ємність ковша, м3
|
0,5
|
1,25
|
|
2
|
Найбільша глибина копання, м
|
4,2
|
6,0
|
|
3
|
Найбільший радіус копання, м
|
7,5
|
9,4
|
|
4
|
Найбільша висота вивантаження, м
|
4,8
|
5,0
|
|
5
|
Потужність
|
59,0
|
125,0
|
|
6
|
14,5
|
35,8
|
Проводимо порівняння варіантів
екскаваторів, виходячи з приведених затрат на розробку 1 м3 ґрунту
кожним з них, які визначаються за формулою:
П=С+Е·К
(2.9)
де Е - нормативний коефіцієнт ефективності капіталовкладень
(приймаємо 0,15);
С - вартість розробки 1м3 ґрунту для даного типу
екскаватора, грн.
,
(2.10)
де 1,08 - коефіцієнт, який враховує
накладні витрати;
Смаш-зм - вартість
машино-зміни екскаватора грн/зм;
Пзм.вир - змінна виробітка екскаватора, яка
враховує розробку ґрунту у відвалі з навантаженням у транспортні засоби, м3/зм;
(2.11)
де Тзм- час роботи
екскаватора, протягом зміни (приймаємо 8 год);
Нн.в. - норми часу на розробку ґрунту в котловані
екскаватором відповідно у відвал і при навантаженні у транспортні засоби;
К - питомі капітальні вкладення на розробку 1 м3
ґрунту для кожного типу екскаватора:
,
(2.12)
де Сір-
інвентарно-розрахункова вартість екскаватора, грн;
tрічні - нормативне число змін роботи екскаватора за рік (приймаємо
для ковша з об’ємом до 0,65 м3 - 350 змін, і для ковшів більше 0,65
м3 - 300 змін).
За найменшими затратами вибираємо
екскаватор для розробки котловану.
Для екскаватора ЭО-3322:
м3/зм
грн
грн/м3
П = 0,63 + 0,15 · 1,71 = 0,89 грн/м3
Для екскаватора ЭО - 5122:
м3/зм
грн
грн/м3
П = 0,41 + 0,15 · 0,91 = 0,55 грн/м3
Вибираємо екскаватор ЭО - 5122, так як його приведені затрати
значно менші, ніж у екскаватора ЭО-3322.
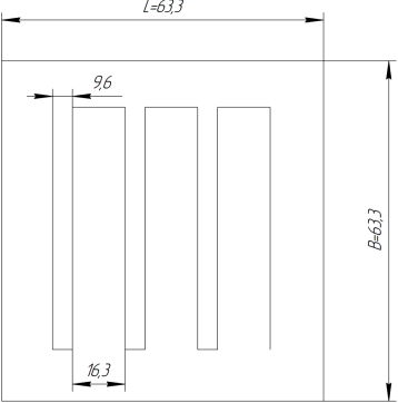
Рис. 2.3 Схема ходу екскаватора
Екскаватор робить 7 проходок, довжина проходки 9,6м. Використовуємо екскаватор зі зворотною
лопатою, радіус проходки 16,3м.
2.4
Визначення марки і кількості вантажних автомобілів для транспортування зайвого
ґрунту
Для вивозу зайвого грунту з котловану використовуємо
автосамоскиди[5]. Віддаль транспортування груза - 1,5 км Вантажопідйомність
автосамоскида - 10 т. Марка автосамоскиду - КРАЗ-222. Ємність кузова - 8 м3.
Найбільша швидкість руху з вантажем 45 км/год.
Визначаємо об’єм грунту у щільному
типі у ковші экскаватора:
(2.13)
де Vков - прийнятий об’єм ковша екскаватора,
м3;
Kзап - коефіцієнт заповнення
ковша екскаватора (приймаємо 1);
Kп.р. - коефіцієнт початкового
розрихлення ґрунту ;
Знаходимо масу ґрунту в ковші
екскаватора за формулою:
Q=Vгр ·
γгр, (2.14)
де Vгр- об’ємна маса ґрунту, т/м3;
Q=1,09·1,650 = 1,8 т
Кількість ковшів ґрунту, навантаженого у кузов самоскида
визначаюються за формулою:
n = y/Q
де y - вантажопідйомність самоскида, т;
n = 10/1,8 = 5,6 = 6 шт
Знаходимо об’єм ґрунту у щільному тілі навантаженого в кузов
самоскида за формулою:
Vгрщ = Vгр · n = 1,09 · 6 = 6,54, м3
Підраховуємо тривалість одного циклу роботи автосамоскида за
формулою:
, (2.15)
де l-віддаль транспортування ґрунту, км, l = 1 км;
Vн - середня швидкість автосамоскида у
навантаженому стані, км/год, приймаємо 20 км/год;
Vп - середня швидкість автосамоскида у
порожньому стані, приймаємо 30 км/год;
tр - тривалість розвантаження
автосамоскида, приймаємо 2 хв;
tм - тривалість маневрування
перед навантаженням і розвантаженням, приймаємо 2 хв;
tн - тривалість навантаження ґрунту знаходимо за формулою :
,
хв (2.16)
де Н- норма машинного часу для навантаження екскаватором 100
м3 ґрунту у транспортні засоби.
Визначаємо необхідну кількість
автосамоскидів:
N = Ту/t = 13,82/4,82 = 2,87 шт (2.17)
Для виконання роботи при безперервній роботі екскаватора
необхідно 3 машини.
2.5
Вибір монтажного крана для монтажу конструкцій споруди
Вибір кранів проводиться по необхідним для виробництва робіт
параметрам, а саме:
- потрібна вантажопідйомність, Q;
- потрібна висота підйому, H;
виліт стріли.
Вантажопідйомність крану повинна бути рівною або перевищувати
монтажну масу найвищого елемента, що монтується.
Рис. 2.4. Схема для визначення монтажних характеристик крана при русі по дну котлована
Монтажна вага елемента характеризує вагу підготовленої до
підняття бад’ї з бетоном, з такелажним
обладнанням:
Qм = Qk + Qо , т (2.18)
де Qм - монтажна вага найважчого елементу,
т;
Qk - вага конструкції, Qk = 1,7т;
Qо - вага оснащення (кондуктори, стропи,
підмостки і т.п.), Qo = 0,1т.
Qм = 1,7 + 0,1 = 1,8т
Монтажна висота підняття елементу характеризується
технологічно необхідною віддаллю від рівня розміщення крану в період монтажу:
Hм=hоп+hз+hел+hстр+hпол , м (2.19)
де Hм - монтажна висота елемента, м;
hоп - підвищення опори, на якому встановлюються елементи над
рівнем стояння крану, (hоп = 0,5м);
hз - зазор безпеки роботи крана при
монтажній конструкції, (hз - 0,5м);
hел - висота елемента, (hел = 3,6м);hстр - висота строп, (hстр - 2м);hпол - висота поліспаста, (hпол - 2м).
Нм
= 0,5+0,5+3,6+2+2=8,1м
Коли кран рухається по берні
котловану, потрібний виліт стріли:

(2.20)
-
відповідно коефіцієнт укосу і глибина котловану. БК-
база крану (4м)
Рис. 2.5 Схема при русі крана по бермі
котлована (М 1:100)
Для монтажу конструкцій споруди використовуємо краном МКГ -
10.
Таблиця
2.3
Характеристика
крана
|
Марка крана
|
Довжина стріли, м
|
Виліт крюка стріли, м
|
Вантажопідйомність стріли, т
|
Висота підйому крюка стріли, м
|
|
|
min
|
Max
|
min
|
max
|
min
|
max
|
|
гусеничний
|
|
МКГ-10
|
10
|
4
|
10
|
2,3
|
10
|
5
|
10
|
2.6 Бетонування днища споруди
Бетонування днищ резервуарів та інших ємкісних споруд
(незалежно від їх форми в плані) виконують після влаштування щебеневої або
бетонної підготовки.
Способи та схеми виконання цих процесів вибирають в
залежності від загальних габаритів споруд в плані, щільності ґрунту в основі і
наявності ґрунтових вод.
Перед бетонуванням днища влаштовують вирівнювальну цементно -
піщану стяжку і гідроізоляцію, після чого вкладають захисну стяжку, влаштовують
опалубку, розміщують арматуру та вкладають бетон в днище.
Рис. 2.6 Схема вкладання бетонної суміші бетононасосами і
влаштування опалубки днища: 1 - автосамоскид; 2 - вібробункер; 3 - бетононасос;
4 - бетонопровід; 5 - місця влаштування бетонопроводів в процесі бетонування; 6
- робочі шви в бетоні; 7 - автобетононасос; 8 - автобетонозмішувач; 9 -
забетоновані смуги; 10 - ригель; 11 - паля.
Захисну стяжку повер гідроізоляції влаштовують із цементно -
піщаного розчину товщиною 2,5...3 см або асфальту товщиною до 5 см. Ущільнюють цементну стяжку
віброрейками по маяковим рейкам, влаштовуваними на відстані 2...3 м одна від
другої, а асфальтну - поверхневими вібраторами або легкими катками.
Опалубка днища зазвичай включає в себе опалубку по
зовнішньому периметру днища, при збірних стінах споруд опалубку пазів - гнізд
(рис.2.6,г) та опалубку приямків. Опалубку влаштовують із попередньо
підготовлених блоків, що має особливе значення при складній формі днища
споруди.
Арматуру днища монтують із арматурних сіток, каркасів або
окремих стержнів. В циліндричних спорудах днища діляться концентричними
окружностями, які потім додатково ділять на сектори трапецевидної форми. По
розмірам цих секторів виготовляють арматурні каркаси, розміри яких відповідають
габаритам транспортних засобів. Для армування днища використовують також
арматурні сітки із стержнів діаметром 5...8 мм ( в залежності від розмірів
днища споруди), котрі згортають у рулони. На об’єкті рулони розгортають, витягують і вкладають в проектне
положення.
Укладання бетону в днище можливе багатьма способами і в той
же час тими ж способами, що і влаштування підготовки. Однак виконання бетонних
робіт при цьому дещо ускладнюється наявністю арматури, коли вкладається суміш в
днище безпосередньо із транспортних засобів неможливе і тому застосовують
дистанційні способи з використанням віброжолубів, бадів, а також бетоно -
насосних установок.
Рис. 2.7 Схема організації робіт при влаштуванні днища
ємкісних споруд: 1 - контури каркасів; 2 - арматурні каркаси; 3 - сітка у
вигляді рулонів; 4 - опалубка; 5 - баді; 6 - кран; 7 - автомобілі, які
доставляють арматурні каркаси і баді з бетоном; 8 - тимчасова підстилка для
проїзду кранів і автотранспорту; 9 - влаштування бетону; 10 - забетоноване
днище; 11 - робочі шви.
При бетонуванні днищ особливо великих розмірів
(горизонтальних відстійників, аеротенків і інших) застосовують схеми робіт з
переміщенням бетоноукладчика по дні котловану і з вкладанням суміші смугами
5...6 м при загальній ширині захвату до 20м.
Для ефективної організації процесу вкладки суміші в днище
його розбивають на смуги бетонування з відповідним влаштуванням опалубки і
вкладання арматури з дотриманням послідовності поточного виконання процесів.
При відносно малих розмірах споруд - 28...30 м (прямокутних або циліндричних у
плані) суміш вкладають смугами або концентричними кільцями шириною 2...4 м
послідовно і неперервно до повного завершення.
При бетонуванні днищ циліндричних споруд спочатку влаштовують
бетонні виступи, необхідні для установки стінних панелей, а потім бетонують
днище. При цьому, вивантаживши суміш в скіп бетоноукладача і перевантаживши її
в бункер, транспортером подають суміш в опалубку виступів. Заповнивши ділянку
опалубки до необхідного рівня, подачу суміші припиняють і приступають до її
ущільнення. По закінченню загладжують відкриті поверхні виступів стальними
гладилками. Днище радіального відстійника бетонують за допомогою
бетоноукладача, транспортером якого суміш подають до місця укладання. Де її
розрівнюють до отримання рівного шару на 3...5 мм вище бетонних маяків.
Ущільнюють бетон днища поверхневим вібратором.
Висновок
Радіальні відстійники являють собою круглі в плані споруди, в
яких освітлення стічних вод відбувається при їх горизонтальному русі в
радіальному напрямку від центру до периферії. Типові проекти радіальних
відстійників діаметром 18-50 м дозволяють використовувати їх на очисних
станціях практично будь-якої продуктивності, починаючи з 20 тис. м3/добу. До
складу типового вузла входять чотири відстійники, насосна станція, розподільна
чаша і жирозбірники. Очищувані стічні води по дюкеру надходять у розподільчу
чашу, де за допомогою чотирьох незатоплених водозливів з широким порогом потік
поділяється на чотири рівні частини, кожна з яких по самостійному трубопроводу
надходить у центральний розподільчий пристрій свого відстійника.
Розподільчий пристрій являє собою сталеву трубу, яка
переходить нагорі у вертикальний розтруб, що плавно розширюється і закінчується
під рівнем води. Стічні води, що виходять із розподільчого пристрою, попадають
у зону, обмежену стінками металевого циліндру, який забезпечує заглиблений їх
впуск у зону освітлення. В процесі освітлення стічні води рухаються
горизонтально у радіальному напрямку до кільцевого водозбірного лотка,
розміщеного біля зовнішньої стінки відстійника. При цьому швидкість руху
стічних вод змінюється від свого максимального значення в центрі до
мінімального на периферії споруди, що складає характерну особливість радіальних
відстійників розглядуваної конструкції.
Література
1. Яковлев С.В. и др. Канализация. Изд. 5е перераб. и доп. : М :
Стройиздат, 1975.
. Абрамов Н.Н. Водоснабжение. Изд. Третье переработка и дополнения : М.: Стройиздат, 1982.
. Козлов В.Щ., Альшиц В.Д., Акерман А.И. и др. Справочник проектировщика
инженерных сооружений. Под ред. Д.А.Коршунова - 2-е изд. Перераб. и доп.
К., Будівельник,
2008.
. Белецкий В.Ф. и др. Конструкции водопроводных канализационных
сору-жений. Справочное пособие. Под общей редакцией Б.Ф. Белецкого. М.:
Стройиздат, 1989.
. Білецький В.Ф. Технология строительних и монтажних робот. М:Высшая школа, 1986.
. Земляні робота. ДБН Д 2.2.1 - 99. 36.1 Держбуд України. Київ. 2000
7.Монтаж
систем внешнего водоснабжения и канализации. Под ред. А.К. Перешивкина. - 4е изд.
Перераб. и доп. М.: Стройиздат, 1988.
. Станевский В.П. Строительные краны. К : Изд. Будівельник.
. Бетонні та залізобетонні конструкції збірні. ДБН Д 2.2 - 7 - 99.
36.7. Держбуд України . Київ . 2010.
. Дикман П.Г. Организация, планирование и управление строительством.
М: Стройиздат, 1990.
. Белецкий Б.Ф. Организация строительных и монтажных работ. М.:
Высшая школа, 1989.
. Білецький А.А. Організація і технологія будівельних робіт (Навчальниій
посібник). Рівне: НУВГП, 2009.