Расчёт вагона 15-1639

  • Вид работы:
    Контрольная работа
  • Предмет:
    Транспорт, грузоперевозки
  • Язык:
    Русский
    ,
    Формат файла:
    MS Word
    455,98 Кб
  • Опубликовано:
    2013-10-07
Вы можете узнать стоимость помощи в написании студенческой работы.
Помощь в написании работы, которую точно примут!

Расчёт вагона 15-1639

РОСЖЕЛДОР

Федеральное государственное бюджетное образовательное учреждение высшего профессионального образования

«Ростовский государственный университет путей сообщения

(ФГБОУ ВПО РГУПС)

кафедра: "Вагоны и вагонное хозяйство"






КУРСОВАЯ РАБОТА

по дисциплине: «Подвижной состав железных дорог»

Тема курсового проекта: «Расчет технико-экономических параметров вагона-цистерны 15-1639»

ПСЖД 04.02.657.22

Выполнил:

ст. гр. МЭС-2-657 А.С. Семерняк

Проверил:

ассистент  М.В. Рожкова



Ростов - на - Дону

г.

Реферат

Данная курсовая работа содержит 27 листов, 10 рисунков, 2 таблицы, 4 использованных источника.

ГРУЗОПОДЪЕМНОСТЬ, МАССА ТАРЫ, КОЭФФИЦИЕНТ ТАРЫ, МАССА БРУТА ВАГОНА, ОБЪЕМ КОТЛА, ДЛИНЫ КОТЛА, ПОГОННАЯ НАГРУЗКА, ПОДШИПНИКИ БУКС ВАГОНОВ.

В курсовой работе произведен расчет технико-экономических параметров цистерны для перевозки воды. Произведено вписывание вагона в габарит 1 - ВМ. Рассмотрены подшипники букс вагонов.

СОДЕРЖАНИЕ

Введение

.        Определение технико-экономических параметров цистерны для перевозки воды

.1 Определение грузоподъёмности и тары цистерны

.2 Определение линейных размеров

.        Вписывание вагона в габарит

.1 Определение размеров строительного очертания вагона

.2. Определение допускаемых вертикальных размеров вагона

.        Подшипники букс вагонов

Заключение

Список используемой литературы

Введение

Основной задачей транспорта является полное и современное удовлетворение потребностей народного хозяства населеня в перевозках, повышение эффективности и качетва работы транспортной системы.

К опасным грузам относятся вещества и предметы, которые при транспортировании, погрузочно-разгрузочных работах хранении могут послужить причиной взрыва, пожара, а также гибели, травмирования, отравления, ожогов, облучения или заболевания людей и животных.

Опасные грузы по железным дорогам транспортируются в универсальном или специальном подвижном составе. Допускаемые типы вагонов для перевозки конкретных видов опасных грузов устанавливаются техническими условиями, стандартами для конкретной продукции, и правилами перевозок грузов.

Жидкие, сниженные и опасные газообразные грузы в случаях, предусмотренных правилами перевозок, транспортируются в вагонах-цистернах.

Вагоны - цистерны проектируются с учетом свойств опасных грузов, для перевозок которых они предназначены, и соответственно оснащаются специальными устройствами для выполнения сливочных операций и обеспечения безопасности перевозок.

В зависимости от вида перевозимых грузов вагоны-цистерны подразделяются на цистерны общего назначения и специальные. К цистернам общего назначения относятся цистерны для перевозки широкой номенклатуры жидких нефтепродуктов, не требующих подогрева при наливе и сливе в диапазоне климатических изменений температуры груза. Цистерны общего назначения составляют основную часть парка вагонов - цистерн.

Для каждого типа цистерны заводом - изготовителем в сосвтаве технической документации разрабатывается инструкция конструктивные особенности конкретной модели.

1.       Расчет технико-экономических параметров цистерны 15-1639

В зависимости от вида перевозимых грузов цистерны могут быть разделены на две группы:

общего назначения - для перевозки нефтипродуктов широкой номенклатуры;

специальные - для перевозки отдельных видов грузов.

Цистерны общего назначения подразделяются на используемые для перевозки светлых (бензин, лигроин и т.п.) и темных (нефть, минеральные масла и т.п.) нефтепродуктов. Внутренняя поверхность цистерн, в которых перевозят кислоты, покрыта защитным слоем (резина, свинец), предохраняющим металл от разрушающего действия кислот. В этих же целях котлы цистерн изготавливают из кислотоупорных металлов - коррозионностойкой стали, алюминия. Цистерны для перевозки молока выполняют из аналогичной стали, покрытой снаружи теплоизолирующим слоем. Воду перевозят в цистернах, оборудованных электрооборудованием для разогрева продукта и теплоизоляцией. Четырехосные цистерны имеют котел вместимость 54,5 м3.

Таблица 1 - Техническая характеристика цистерны 15 - 1639.

Наименование параметров

Значение параметра для вагона модели 15-1639

1

2

Назначение (основной груз)

Вода

Тип вагона

780

Грузоподъемность, т

52

Масса тары вагона, т

29

Нагрузка:


Статическая осевая, кН(тс)

200,8 (20,47)

Погонная , кН/м(тс/м)

66,05 (6,74)

Количество осей

4

Габарит

1 - ВМ

База вагона, мм

7800

Длина, мм


по осям сцепления автосцепок

12020

10800

Высота от уровня верха головок рельсов максимальная, мм

4638

Модель 2 - осной тележки

18 - 100

Диаметр котла внутренний, мм

3600

Длина котла наружная, мм

10630

Количество верхних люков , шт

1

Количество сейкций котла, шт.

1

Количество лестниц, шт.


наружных

1

Год поставки на серийное производство

1992

Год снятия с серийного производства

1997


Четырехосная цистерна 15 - 1639 (Рисунок 1) предназначенная для перевозки воды, строится по габариту 1 - ВМ и имеет рамную конструкцию, объем котла 54,5 грузоподъемность цистерны 52т. Этот вагон удостоин государственного Знака качества.

Рисунок 1 - четырехосная цистерна 15 - 1639.

Цистерна представляет собой специальный металлический сварной резервуар (котел) цилиндрической формы, имеющий в верхней части люки для наливания груза, очистки и ремонта. Разнообразие грузов обусловливает существенные различия в конструкции цистерн.

Цистерна (рис.1) состоит из следующих основных частей: рамы, ходовой части, ударно-тяговых приборов , тормозного оборудования, котла, наружной лестниц, крепления котла на раме, устройств загрузки и выгрузки, предохранительной арматуры. Цистерна оборудована дополнительно устройством разогрева груза и термоизоляцией.

У рамной конструкции котел с устройствами устанавливается на платформу, включающую раму, тормозное и автосцепное оборудование и ходовую часть.

Рисунок 2 - Типовая платформа для 4-х осной цистерны.

Расстояние между осями сцепления автосцепок 12020 мм и базой 7800 мм котел устанавливается на типовую платформу, которая состоит из рамы 3 сварной конструкции, автоматического 2 и стояночного 4 тормозов, автоматических ударно-тяговых приборов 5 и ходовой части. Детали и узлы платформы выполняются из низколегированных и литейных сталей повышенного качества.

Рама платформы служит для восприятия тяговых усилий, ударов в автосцепку, а также инерционных сил котла, возникающих при изменении скорости движения. Она представляет собой сварную конструкцию, состоящую из двух шкворневых и хребтовой балок. Крепится котел к раме посредством лапы 7 и опор 6, располагаемых на шкворневых балках.

1.1    
Определение грузоподъёмности и тары цистерны

Выбор технико - экономического параметров проектируемых цистерн сводится к определению их оптимальных значений. В первую очередь следует выбрать модель вагона - прототипа (серийная или опытная модель цистерны данного типа), что необходимо для использования и сравнения в дальнейшем параметров проектируемой цистерны с существующей.

Задание на техническое проектирование нового вагона устанавливаются допускаемые величины статической нагрузки от колесной пары на рельсы, статической нагрузки на 1 м пути, габарит и др.

Грузоподъёмность цистерны, определяется величиной допускаемой осевой нагрузки;

     (1.1)

где P0 - допускаемая осевая нагрузка, P0 = 23,5 (т)

m0 - число осей цистерны, m0 = 4

Kт - технический коэффициент тары

Технический коэффициент тары проектируемой цистерны следует принимать по паспортным данным серийной выпускаемой модели цистерны аналогично типа с корректировкой на вносимые изменения.

                                (1.2)

где  - коэффициент тары цистерны - прототипа

                                                                (1.3)

где  - масса тары вагона - прототипа = 29 т;

 - грузоподъемность вагона прототипа модели 15-150, = 52 т.

 

 - коэффициент, учитывающий влияние применяемого материала на изменение (уменьшение) тары цистерны.

 - коэффициент, учитывающий изменение линейных размеров элементов цистерны.

 

Тогда грузоподъемность проектируемой цистерны равна:

 

Окончательно принимаем Р = 61,84 (т)

Тара цистерны определяется по формуле:

 ;

 32,16 (т) (1.4)

Принимаем: Т = 32,16 (т)

Масса брутто цистерны равна

бр = Р + Т          (1.5)

бр = 61,84 + 32,16 = 94 (т)

Масса котла с примыкающими частями

mк = T - mпл           (1.6)

где    mпл - масса плптформы, устраиваемой под котел цистерны, для унифицированной платформы, mпл = 15 т.

mк = 32,16 - 15 = 17,6 (т)

Полный объем котла можетт быть определен из зависимости

        (1.7)

где    - удельный оптимальный объем, .

 - коэффициент, учитывающий увеличение объема при расширении груза от повышения температуры. Для вязких нефтепродуктов ;

 

Объем котла равен

     (1.8)

где     - объем цилиндрической части котла

 - объем люка

Для вычисления этих объемов необходимо сначало определить внутренний диаметр котла D1 и внутренний радиус днища R2. Внутренний диаметр котла D1 выбирается из габарита подвижного состава, плотности перевозимого груза и целесообразности типовой рамы

Внутренний диаметр котла 4-осной цистерны может быть определен также из зависимости :

   (1.9)

где    V - полный объем котла.

 

Полученная величина D1 должна быть округленна до ближайшего типового диаметра котла: 2000, 2200, 2400, 2600, 2800, 3000, 3200 мм.

D1 = 2800 мм = 2,8 м.

Объем днища определяется

                                       (1.10)

где     - объем овалоидной части

                (1.11)

где    R2 - внутренний радиус днища

                            (1.12)

 

h0 - внутренняя высота оваллоидной части днища;

h0 = 0,5 …1,1 м

h0 = 0,7 м

 

 - объем цилиндрической части днища

                              (1.13)

где     - высота цилиндрической части днища,  = 0,060 … 0,080

 

Тогда объем днища равен

 

Объем люка равен

                     (1.14)

где    D3 - диаметр люка, D3 = 0,45 (м)

h0 - высота люка, h0 = 0,3 (м)

 

Длина цилиндрической части котла равна

                         (1.15)

 

Объем цилиндрической части котла равен

                                       (1.16)

где     - длина цилиндрической части котла

 

Значит

 

1.2     Определение линейных размеров цистерны

Внутренняя длина котла определяется по формуле

                                        (1.17)

где     - высота днища

Высота днища равна

                                  (1.18)

 

Тогда

 

Наружная длина котла

                                      (1.19)

где     - толщина днища, =0,01 (м)

 

Длина рамы по концевым балкам

                                     (1.20)

где     - расстояние от наружной поверхности котла до лобового листа концевой балки,  - у 4- осных цистерн равен длине рамы или не доходит до лобового листа от 90 до 425 мм.

 

Базы цистерны

                                               (1.21)

 

Длина консольной балки

                                (1.22)

 

Так как рама проекцируемой цистерны получается больше, чем у унифицированной, то принимают следующие размеры рамы цистерны

=1,482 (м),              =10,364 (м),            =7,4 (м).

Длина вагона по осям сцепления автосцепок

                                    (1.23)

где   - вылет автосцепки, =0,61 (м)

 

Полная высота цистерны определяется по формуле

                        (1.24)

Для   4 - осных цистерн  = 1290 (мм), = 1,29 (м)

 - высота люка с крышкой, = 0,3 (м)

 - наружный диаметр котла

                           (1.25)

где  - внутренний диаметр котла,  = 2,8 (м).

 - толщина вернего листа котла, = 0,01 (м).

 - толщина нижнего листа котла, = 0,008 (м).

 (м)

 

Величина погонной нагрузки цистерны определяется по формуле

                                           (1.26)

 

Полученное значение погонной нагрузки не должно превышать допускаемой

2.  Вписывание вагона в габариты 1-ВМ

.1 Определение размеров строительного очертания вагона

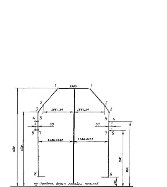
Рисунок 3 - Схема построения габаритов подвижного состава

Наивысшее горизонтальное смещение вагона в одну сторону с середины полей

где    W - наиболее горизонтальное смещение надресольной балки тележки из центрального положения в одну сторону в мм.

q - наиболее горизонтальное смещение буксового узла из центрального положения в одну сторону в мм.

                                   (2.1)

Величина  для цистерны, проектируемой для габарита 02-ВМ

 

Где   S - 1465 - максимальная ширина колеи в кривой расчетного радиуса 250 м.

d - 1410 - максимальное расстояние между наружным гребнями предельно изношенных гребней колес в мм.

В пределах верхнего очертания габарита 1-ВМ ограничения имеют следующие выражения.

                                     (2.2)

             (2.3)

(2.4)

где ,   ,  - ограничения по ширине в шкворневом сечении, во внутреннем сечение между шкворнями тележек и для поперечных сечений, расположенных на консолях вагона.

 - база вагона,

 - расстояние рассматриваемого сечения вагона от ближайшего шкворня тележки, м.

К - величина, на которую допускается выход подвижного состава, проектируемого по габариту 1 - ВМ, за очертания этих габаритов в расчетной кривой, К = 0 мм.

К1 - величина дополнительного поперечного смещения в кривой тележечного вагона, К1 = 2,025 мм.

К2 - коэффициент, зависящий от величины расчетного радиуса кривой, К2 = 2,5 мм.

К3 - половина увеличения расстояния осями путей на перегонах в расчетной кривой, К3 = 180 мм.

Значения коэффициентов определяется по таблице.

 

 

 (мм)

Таким образом, проектная ширина кузова вагона должна быть не более

в шкворневом сечении

                                       (2.5)

где В - полуширина габарита подвижного состава, мм

 (мм)

во внутреннем сечении

                                    (2.6)

 (мм)

в наружном сечении

                                    (2.7)

 (мм)

Принятая ширина платформы цистерны составляет 2870 мм, поэтому можно считать, что проектируемая цистерна вписывается в габарит 1-ВМ.

2.2     Определение допускаемых вертикальных размеров вагона

Наименьшие допускаемые вертикальные размеры вагона понизу для верхнего очертания габарита получают путем увеличения соответствующих вертикальных размеров габарита подвижного состава на величину возможного в эксплуатации статического понижения рамы и укрепительных на ней частей. Для 4 - осных вагонов на 2 - осных тележках ЦНИИ - ХЗ величина статического понижения рамы вагона (обрессоренного кузова) равна.

                        (2.8)

где  - вес обрессорных частей вагонав

 - общая жесткость рессорного подвешивания тележки,

=1,25

Вес обрессорных частей вагона определяется по формуле

                 (2.9)

где     - вес брутто вагона,  = 94 (т).

 - вес тележки,  = 4,85 (т).

 - вес надресольной балки,  = 0,4 (т).

 

Величина статического прогиба равна

 

Вертикальные размеры проектного очертания кузова вагона

поверху

                                (2.10)

понизу


где      - высота габарита соответствующей точке.

 

 

Таким образом, проектируемые вагон вписывается в габарит 1-ВМ.

Рисунок 4 - Вертикальная габаритная рамка проектного очертания кузова четырехосной цистерны в верхней зоне в наружном сечении

Рисунок 5 - Горизонтальная габаритная рамка проектного очертания кузова четырёхосной цистерны на уровне рамы

Таблица 2 - Сравнение технических характеристик вагона-прототипа и спроецированного вагона.

Наименование параметров

Значение параметра для вагона модели 15-1639

Значение параметра для спроецированного вагона

1

2

3

Грузоподъемность, т

52

61,84

Масса тары вагона, т

29

32,16

Нагрузка:



Статическая осевая, т

20,47

23,5

Погонная, (т/с)

6,74

8,1

База вагона, мм

7800

7400

Длина, мм



По осям сцепления автосцепок

12020

11584

По концевым балкам рамы

10800

10364

Высота от уровня верха головок рельсов максимальная, мм

4638

4408

Диаметр котла внутренний, мм

3600

2800

Длина котла наружная, мм

10630

9700



3. Подшипники букс вагонов

В мировой практике вагоностроения применялись буксовые узлы на подшипниках качения и подшипниках скольжения. Буксовые узлы отечественных вагонов, а также современных конструкций зарубежных вагонов, оборудованы исключительно подшипниками качения (роликовыми подшипниками). Это обусловлено тем, что роликовые подшипники обеспечивают реализацию высоких скоростей движения и осевых нагрузок, а также более надежны и экономичны в эксплуатации.

В практике вагоностроения используются три основных типа роликовых подшипников: цилиндрические однорядные - с короткими цилиндрическими роликами, сферические двухрядные - со сферическими роликами, конические одно- и двухрядные - с коническими роликами. Наибольшее распространение в отечественных и зарубежных вагонах получили цилиндрические роликовые подшипники. С 1964 г. отечественные вагоны на сферических подшипниках не выпускаются.

Внутри корпуса буксы обычно размещаются два подшипника качения. Подшипники для букс грузовых и пассажирских вагонов железных дорог СНГ единые. Это роликовые цилиндрические подшипники - радиальные однорядные подшипники с короткими цилиндрическими роликами размером 130x250x80 мм.

вагон цистерна подшипник грузоподъёмность

Типы роликов: а - со скосами; б - с рациональным контактом "бомбиной"

Ролики имеют форму цилиндра, образующая которого представляет прямую линию, параллельную оси вращения подшипника и перпендикулярную радиальной нагрузке. Поэтому радиальная нагрузка распределяется по длине и хорошо воспринимается цилиндрической поверхностью тел качения, а осевая - лишь торцами роликов. Для предупреждения вредного влияния перекоса буксы и прогиба шейки оси на работу цилиндрических подшипников ролики стали изготавливать со скосами "бомбиной".

Роликовый подшипник состоит из наружного и внутреннего колец, между которыми находятся ролики. Последние удерживаются в сепараторе на одинаковом расстоянии друг от друга.

Наружное кольцо одинаковое как для переднего, так и для заднего подшипника.


Оно имеет наружный диаметр 250 мм, плотно (хотя и с небольшим зазором) входит в корпус буксы. Его внутренняя поверхность имеет канавку или желобок, по которой перекатываются ролики. Края канавки не позволяют роликам сместиться ни вправо, ни влево. Кстати, на этой картиночке, которую мы не сами рисовали, а позаимствовали - явный "косяк": с одной стороны бортик нарисован, а с другой нет.

Внутреннее кольцо переднего и заднего подшипников неодинаковы. Задний подшипник выполнен с однобортовым внутренним кольцом, а передний - с безбортовым внутренним кольцом. Почему так - будет объяснено позднее.

Подшипники, имеющие один упорный борт на внутреннем кольце или оборудованные одним приставным кольцом, называются полузакрытыми. Они хорошо воспринимают радиальную нагрузку (направленную перпендикулярно оси вращения подшипников), а осевую - ограниченной величины - только со стороны борта или приставного кольца.

Передний подшипник имеет условное обозначение 232726 ГОСТ 18752, а задний - 42726 ГОСТ 18752. По этим обозначениям можно судить о размерах подшипника и его конструктивных разновидностях. Задний подшипник это тот, который ближе к колесу.

Внутреннее кольцо подшипника устанавливается на шейку оси с натягом, а наружное в корпус буксы - свободно. Вращение шейки оси вместе с внутренним кольцом подшипника вызывает вращение роликов вокруг своих осей и перекатывание по дорожкам качения между наружным и внутренним кольцами. Свободное перемещение роликов обеспечивается наличием радиального и осевого зазоров.

Радиальный зазор измеряется в свободном от нагрузки подшипнике и представляет собой сумму зазоров между дорожками качения колец и роликом. Осевой зазор измеряется между торцами роликов и бортами колец. Для новых подшипников на горячей посадке радиальный зазор 115-170 мкм, а осевой зазор 70-150 мкм. Причем меньшие значения зазоров рекомендуются для грузовых вагонов, а большие - для пассажирских.

Сепаратор представляет собой кольцо, изготовленное из латуни ЛЦ400МцЗЖ с наличием окон для установки роликов. Для удержания роликов от выпадания из сепаратора производится расчеканка его перемычек.


В мировой практике широко применяются пластмассовые сепараторы. Их важнейшие преимущества - незначительная масса, хорошие антифрикционные качества, возможность изготовления методом литья или под давлением с незначительными затратами. При недостаточной смазке пластмассовые сепараторы проявляют свои аварийные ходовые качества. В результате они нашли широкое применение за рубежом в качестве заменителей массивных латунных сепараторов. В настоящее время разработана и принята к серийному производству рамная конструкция отечественного сепаратора из стеклонаполненного полиамида, обеспечивающая существенное повышение надежности работы буксового узла за счет устранения износов сепаратора по центрирующей поверхности и перемычкам. При этом устраняются окисление смазки, задиры торцов роликов и бортовых колец, исключается заклинивание подшипников из-за разрушения сепаратора. Новая конструкция сепаратора позволила повысить живучесть буксового узла в аварийном режиме и снизить необрессоренную массу подшипника.


Полиамидный сепаратор. В латунном сепараторе 14 роликов, а в полиамидном 15

Для изготовления колец и роликов применяется сталь марки ШХ4. Раньше кольца и ролики подшипников изготавливались из стали марки ШХ15СГ электрошлакового переплава. В процессе эксплуатации подшипников, изготовленных из таких сталей, проявлялась склонность к хрупкому излому особенно внутренних колец вследствие больших напряжений, возникающих от посадки колец на шейку оси при воздействии радиальной и осевой нагрузок при движении вагона. Исследования показали, что новая сталь марки ШХ4 регламентируемой прокаливаемости обладает высокой твердостью поверхностного слоя и достаточной вязкостью внутренних волокон, что обеспечивает высокую устойчивость хрупкому разрушению по сравнению со сталью ШХ15СГ.


Цилиндрические подшипники, применяемые в вагонах, выполнены разъемными: наружное кольцо, сепаратор, ролики образуют отдельный блок, который свободно снимается и надевается на внутреннее кольцо. Это хорошо видно на картинке. Такая конструкция упрощает технологию монтажа и демонтажа буксового узла, поэтому она находит широкое применение в вагоностроении.

Размер роликового подшипника для вагонных букс 130 Х 250 Х 80. Это - внутренний (посадочный) диаметр внутреннего кольца Х наружный (посадочный) диаметр наружного кольца Х ширина колец подшипника.

Заключение

В курсовой работе рассмотрена конструкция цистерн для перевозки воды, подшипники букс вагонов, был произведен расчет цистерны для перевозки воды, рассчитаны грузоподъемность, тара и линейные размеры котла и рамы. Выполнено вписывание цистерны в габарит 1-ВМ.

Список использованных источников

1.       http://gendocs.ru/v2470/

.        http://wiki.nashtransport.ru/wiki/buksa

.        http://www.pomogala.ru/konsrukt/konstrukt_8.html

.        Пастухов И.Ф. Конструкция вагонов / И.Ф. Пастухов, Р.О. Кошкалда / М.: Маршрут, 2004.

Похожие работы на - Расчёт вагона 15-1639

 

Не нашли материал для своей работы?
Поможем написать уникальную работу
Без плагиата!
Без нейросетей!