Расчет главной подъемной установки

  • Вид работы:
    Контрольная работа
  • Предмет:
    Другое
  • Язык:
    Русский
    ,
    Формат файла:
    MS Word
    142,32 Кб
  • Опубликовано:
    2013-10-05
Вы можете узнать стоимость помощи в написании студенческой работы.
Помощь в написании работы, которую точно примут!

Расчет главной подъемной установки

Введение

Главной подъёмной установкой является установка, предназначенная для подъема угля. Проектом шахты предусматривается применение двухскиповой подъёмной установки с цилиндрическими барабанами.

Исходные данные для расчёта:

годовая производительность подъёма, А, т/год        - 520000 тонн;

глубина вертикального ствола, Нст, м               - 300;

назначение подъёма                                           - подъём угля;

число подъёмных горизонтов                           - 1;

число рабочих дней в году, N                           - 300;

продолжительность работы машины, t, ч/сут - 15;

коэффициент резерва подъёма, С                     - 1,5

1. Выбор скипа. Ориентировочная максимальная скорость подъёма


Часовую производительность подъёма определяем по формуле:

 т/ч                                  (1.1)

где: с - коэффициент резерва производительности;

в-число рабочих дней в году;

tсут - число часов работы в сутки, ч.

Принимая высоту загрузки скипа у подъёмного бункера hзаг = 20 м и высоту приёмного бункера hпп = 23 м получим высоту подъёма.

Н = Нст + hзаг + hпп = 300+20+23 = 343 м                      (1.2)

Наиболее выгоднейшая масса груза скипа


Qп = 4,04 т.           (1.3)

где: Q =10 с - продолжительность паузы.

Выбирается стандартный скип для одноканатного подъёма:

Тип 2СН5-1; вместимость 5 м3; грузоподъёмность по углю Q = 4; масса скипа с подвесным устройством mск = 5,8 т; высота скипа в положении разгрузки hск = 7,10 м; путь разгрузки hр = 23,17 м; размеры в плане 1,54х1,85; расстояние между центрами скипов dо = 2,1 м.

Продолжительность цикла:

Т¢ = 3600 ×Q/ Ач = 3600 × 4 /173 = 83 с                         (1.4)

Продолжительность подъёма

Т = Т¢- q = 83 - 8 = 75 с                                               (1.5)

где: q - продолжительность паузы, q = 8 с ОНТП5-86.

Принимаем шестипериодный график скорости. Ориентировочное значение максимальной скорости подъёма при этом определяется по формуле:

Vmax(ф) = =

=5,7 м/с (1.6)

. Расчёт каната

скип приводной двигатель подъемный

Принимаем канаты типа ЛК-РО с расчётными пределами прочности проволоки при растяжении s = 1666 МПа, фиктивная плотность, которых составляет gо = 0,097 МПа/м. Так как Н <600 м, канат рассчитываем по постоянному запасу прочности и согласно ПБ принимаем запас прочности Z = 6,5.

Наименьшую необходимую по условиям прочности массу 1 м каната находим по формуле:

mк = 4,26 кг/м            (1.7)

где: mо - масса концевого груза;

mo = mск + Q = 5800 +4000 = 9800 кг                           (1.8)

Но - длина отвеса каната (с учётом высоты переподъёма hпер = 3 м)

Но = Н + hпер = 343 + 3 = 346 м                 (1.9)

По ГОСТ 7668-80 выбираем канат типа ЛК-РО; конструкция 6х36 (1+7+7/7 +14)+10С; масса 1 м смазанного каната mк = 4,55 кг/м; диаметр каната dк = 34,5 мм; при s =1666 МПа, разрывное усилие веса проволок в канате Qразр= 768000 Н.

Фактическое значение коэффициента запаса прочности составит:

 6,89 > 6,5           (1.10)

где: q= 9,81 м/с2 - ускорение свободного падения.

Коэффициент статической неуравновешенности подъёма

D = 0,34                                          (1.11)

где: К - коэффициент шахтных сопротивлений для скиповых подъёмов, К = 1,15.

Уравновешивать систему с помощью хвостового каната я считаю нецелесообразным.

Орган навивки.

Принимаем цилиндрическую однобарабанную подъёмную машину.

Необходимый по ПБ диаметр барабана

D³ 80 dк = 80 ×34,5 = 2760 мм                                      (1.12)

Выбираем подъёмную машину со следующей характеристикой: тип ТЦ-3х2,2; диаметр барабана D = 3 м, ширина барабана В = 2,2 м; максимальное статическое натяжение канатов 140 кН, максимальная разность между статическими натяжениями канатов 140 кН, передаточное число редуктора i = 11,5; 20; 30; допустимая скорость подъёма 8,0 м/с, массовый момент машины без редуктора и двигателя GDбар2 = 1500 кН.м2; масса машины с редуктором без электрооборудования 75 тонн.

Проверка барабана по ширине.

Необходимую ширину навивочной части барабана вычисляем по формуле:

Во = 2132 мм (1.13)

где: h = 35 м - резервная длина каната для испытаний;

nх - постоянное число витков трения каната (для барабанов с металлической футеровкой по ПБ, nх = 5;

l = 2 витка - расстояние между центрами витков навивающейся и свивающейся ветвей;

S - зазор между смежными витками канатов, мм (при расчётах принимается при d = 30 мм, S = 3 мм);

Проверка барабана на статические нагрузки.

Максимальное статическое натяжение в канате согласно формуле:

 (1.14)

где: Ктр - коэффициент шахтных сопротивлений для груженной ветви каната (для скипового подъёма Ктр = 1,09).

Максимальную разность между статическими натяжениями канатов можно ожидать в начале подъёма нормального груза или в момент навески новых канатов.

В первом случае

Тmax =(K×Qn + mк×H) q = (1,15 × 4000+4,55×343) × 9,81 = 60436<140000Нт(2.53)

Во втором случае


где: Кпор - коэффициент шахтных сопротивлений для порожней ветви каната, при расчёте принимается для скипов 1,06.

Расположение подъёмной машины относительно ствола шахты.

Направляющие шкивы на копре располагаем на одном уровне от устья ствола.

С учётом норм ПБ диаметр направляющего шкива должен быть Dшк³2760 мм. Выбираем стандартный шкив со следующими техническими показателями:

тип ШК-3; диаметр шкива 3,0 м; диаметр каната £37,0 мм; статическое натяжение каната £ 928 кН; маховый момент шкива ВD2мк = 96 кН.м2.

Высоту копра рассчитываем по формуле:

к = hпп + hо + hл + 0,75 Rш, м                                        (1.16)

hк = 23 + 7,10 +3 + 0,75 × 1,5 = 34,22 м

Выбираем копер, грузоподъёмность скипа 4 т; высота бункера hпп = 23 м; высота копра hк = 35 м.

Действительное значение высоты переподъёма составит:

пер = hк - (hпп + hо + hл + 0,75 Rш) = 35 - (23+7,10+0,75×1,5) = 3,77>2,5 (1.17)

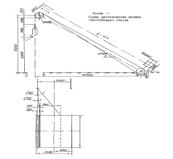
Элементы расположения подъёмной машины относительно ствола шахты показаны на схеме 2.1. В расчете приняты: расстояние между осями подъёмных канатов dо = 2100 мм, расстояние между осями подъёмного каната и барабана Е= 45 м.

Длина струны    

L = 54,96 м     (1.18)

где: Со - превышение оси барабана над нулевой отметкой, м.

Угол наклона нижней струны к горизонту.

j = arctgarctg 37o17¢

Линейные отклонения каната на барабане от плоскости шкива показаны на схеме 2.2.

ан = - 137,5 мм              (1.19)

где: атр - ширина витков трения, мм.

 

атр = nтр (dк + S) = 5 (34,5 + 3) = 187,5 мм                                      (1.20)

ав = 1680 мм                           (1.21)

где: Вз¢ - ширина навивочной поверхности барабана, соответствующая одной ветви каната, при однобарабанных подъёмных машинах, мм.

Вз¢ = 1730 мм  (1.22)

Значение углов отклонения струны канатов соответственно будут:

 

ан = 0о08¢< 1о30¢                                   (1.23)

ав =  1о30¢ = 1о30¢    (1.24)

3.      Приводной двигатель и редуктор

Для удовлетворения ориентировочной максимальной скорости подъёма необходима частота вращения барабана.

nб =  36,3 об/мин                                   (1.25)

Принимаем редуктор с передаточным отношением i = 11,5.

Требуемая частота вращения приходного двигателя

nдв = nб×i = 36,3 × 11,5 = 417,5 об/мин                                    (1.26)

 

Выбираем стандартную частоту вращения синхронного двигателяnс = 300 об/мин, номинальная частота с учётом скольжения составит nн = 290 об/мин.

Действительное значение максимальной скорости подъёма

Vmax =  3,96 м/с » 11,0 м/с                      (1.27)

Ориентировочная мощность приводного двигателя согласно формуле:

Рср =  231 кВт       (1.28)

где: h - КПД редуктора (для редукторов современных подъёмных машин) (h = 0,95¸0,98); e - коэффициент эффективного усиления подъёма, при ориентировочных расчётах принимается 1,15¸1,35.

Выбираем двигатель со следующей технической характеристикой: типа АКН2-17-31-20; мощность Рн = 315 кВт, частота вращения nн = 290 об/мин; ток статора 48 А; ЭДС ротора Ен = 535 В, ток ротора Iн = 335 А, перегрузочная способность 2,3, КПД двигателя 0,91; маховый момент ротора GD2рот = 14,8 кН.м2.

Расчётное значение момента вращения на тихоходном валу редуктора рассчитываем по формуле:

М=182478 Н.м

где: Rб - радиус навивки, м.

Выбираем редуктор: тип ЦДН-150, межцентровое расстояние 1500 мм, передаточное число i= 11,5, момент вращения на ведомом валу 200 кН.м, скорость вращения приводного вала не более 600 об/мин, маховый момент на тихоходном валу GD2ред = 220 кН.м2, масса редуктора 13,24 т.

Приведенная к окружности барабана масса подъёмной установки:


где: Lк - длина одной ветви подъёмного каната, м.

Lк = Н + hпер + L + mтрpD = 343+3,77+54,96+5×3,14×3 = 449 м       (1.30)

приведенная масса барабана:

, кг (1.31)

 кг

приведенная масса ротора двигателя:

, кг      (1.32)

 кг

приведенная масса редуктора:

, кг (1.33)

кг

приведенная масса направляющего шкива составит:

, кг         (1.34)

кг

Выбор величин ускорения и замедления.

Величину ускорения выбираем из условия максимального использования перегрузочной способности двигателя в период пуска.

Усилие на ободе барабана в период пуска.

Fпус = (КQ + mкH) qåm¢а1 = (1,15×4000+1,55×343) 9,81+62963а1              (1.35)

Номинальное усилие двигателя на ободе барабана составит:

Fн =  Н                                                        (1.36)

Принимаем среднее значение коэффициента перегрузки за период пуска.

максимальное усилие на ободе барабана составит:

Fmax = lпуск×Fн = 1,38× 74812 = 103240 Н                                (1.37)

Приравнивая, Fпуск = Fmax определяем:

 

а1 = 0,68 м/с2 (1.38)

Принимаем а1 = 0,7 м/с2.

Допуская скорость выхода скипа из разгрузочных кривых Vо = 1,2 м/с

определяем величину ускорения за этот период:

Qo= 0,33» 0,3 м/с2                                           (1.39)

где: ho - путь разгрузки скипа, м.

Осуществляем тормозное замедление, величину которого принимаем так, чтобы тормозное усилие в конце периода замедления составляло в среднем одну треть веса полезного груза:

Fтор = -  13080 Н                                             (1.40)

Допуская, что скорость дотягивания (Vп = 0,5 м/с) достигается до входа скипа в разгрузочные кривые на расстоянии 1,5 м усилие на ободе барабана определится:

F =

= 32824 - 62963а3                                                         (1.41)

Приравнивая последнее, в Fтор определяем величину основного замедления.

а3 =0,1 м/с2

Принимаем а3 = 0,7 м/с2       

Замедление стопорения машины в конце подъёма берется равным ас= - 1,0 м/с2.

Окончательно устанавливаем следующие расчётные значения ускорений и замедлений.

Ускорение при перемещении скипа в кривых  - 0,3

Нормальное ускорение скипа вне кривых                  - 0,7

Основное замедление                                        - 0,1

Замедление стопорения                           - 1,0

4.      Расчёт графика скорости

Скорость выхода скипа из кривых

Vo = 1,14 м/с                                                 (1.42)

Продолжительность периода ускорения при перемещениях скипа в кривых:

tо = 3,8 с                                                                         (1.43)

Продолжительность периода нормального ускорения

t1 = 4,08 с                                                                  (1.44)

Путь, пройденный в период нормального ускорения

 

Х1 =10,5 м                                               (1.45)

Время стопорения при скорости дотягивания (tс = 0,5 м/с) до полной остановки.

tc = Vn /Qc = 0,5/1,0 = 0,5 с                                                              (1.46)

Путь стопорения

 

Хс = Vntc / 2 = 0,5 ×0,5 / 2 = 0,125 м                                                 (1.47)

Путь, пройденный за период дотягивания

 

Хп = hp + 1,5 - Хс = 2,17+1,5-0,125 = 3,55 м                                    (1.48)

Продолжительность периода дотягивания

tn = Xn / Vn = 3,55/0,5 = 7,1 с                                                           (1.49)

Прямолинейный участок разгрузочных кривых составляет около 1 м. Соответственно разгрузка скипа начнется после прохождения скипом расстояния 1,5+1,0= 2,5 м от начала периода дотягивания, на что уйдет время.

t¢¢п =  5 с                                                                     (1.50)

Продолжительность основного периода замедления

tз = 35с                                                             (1.51)

Путь основного замедления

 

Хз = 78,75 м                                                        (1.52)

Путь движения скипа с максимальной скоростью

 

Х2 = Н - (2ho + 1,5 +Х13) = 283 - (2×2,17+1,5+10,5+78,75) = 187,91 м (1.53)

Продолжительность периода движения с максимальной скоростью

tм =  47 с                                                         (1.54)

Продолжительность подъёма общая

Т = tо + t1 + t2 + t3 + tп + tс = 3,8+4,08+47+35+7,1+0,5 = 97,5 с       (1.55)

Продолжительность цикла

Т = Т + q = 97,5 + 8 = 105,5 с » 106с                                             (1.56)

Годовая производительность подъёма

Аф =  611321 т/год                              (1.57)

Коэффициент резерва подъёма

Сф = Аф / А = 611321 / 520000 = 1,18 < 1,5                                     (1.58)

5.      Расчёт движущих усилий

Уравнение подъёма с учётом численных значений параметров принимает следующий вид:

F=[(K - BcR - mKH - 2X)] q±åma = [(1,15 - Вс) 4000+4,55 (343-2Х)] 9,81±62963а= 60436 -89,3Х±62963а                                                              (1.59)

Определим значения движущих усилий на ободе барабана в разные периоды подъёма в начале подъёма (Х=0; а = 0,3 м/с2)

F1 = 60436+62963 × 0,3 = 79325 Н                                                   (1.60

в конце периода ускорения в разгрузочных кривых (Х=hp= 2,17; а = 0,3 м/с2)

в начале периода нормального ускорения (Х= 2,17; а = 0,7 м/с2)

F3 = 60436 - 89,3× 2,17+62963 × 0,7 =104316 Н                                 (1.62)

в конце периода нормального ускорения (Х= 2,17+10,5=12,67; а = 0,7 м/с2)

F4 = 60436 - 89,3× 12,67+62963 × 0,7 =103379 Н                               (1.63)

в начале периода движения с максимальной скоростью (Х= 12,67; а = 0 м/с2)

F5 = 60436 - 89,3× 12,67 = 59305 Н                                                  (1.64)

в конце периода движения с максимальной скоростью (Х=12,67+187,91=201; а=0)

F6 = 60436 - 89,3× 201 = 42486 Н                                                     (1.65)

lmax =  1,38                                                              (1.66)

где: Fmax - наибольшее усилие на окружность барабана, Н, принимается по графику усилий (рис. 3.1), а также по расчёту;н - номинальное усилие двигателя по окружности барабана, Н.

Для обеспечения достаточного момента вращения двигателя при падении напряжения в питающей сети коэффициент перегрузки должен удовлетворять условию:

lmax£ 0,85×lн= 0,85 ×2,3=1,95

,38 £ 1,95 условие выполняется.

6.      Расход электроэнергии и КПД подъёмной установки

Требуемая энергия за один подъём в идеальных условиях

Wид =  3,74кВт.ч                                   (1.67)

Фактический расход электроэнергии за один подъём

Wф =  4,96кВт.ч                           (1.68)

КПД подъёмной установки

hуст = Uпд /Wф = 3,74 / 4,96 = 0,75                                                   (1.69)

Удельное значение фактического расхода электроэнергии на подъём одной тонны поднимаемого груза

Wф1т = Wф /Q = 4,96 / 4 = 1,24 кВт.ч/т                                           (1.70)

Годовой расход электроэнергии

год = Wф1т× А = 1,24 × 520000 = 644800 кВт.ч                                   (1.71)

В комплект аппаратуры управления шахтной подъёмной установки входят: реверсор РВМ-150 для управления статорной обмоткой подъёмного двигателя; тахогенератор П41, выполняющий роль датчика скорости; три преобразовательных двухмашинных агрегата, один из которых служит источником питания при динамическом торможении, два других для питания цепей управления постоянного тока напряжением 220 В; ящики резисторов, применяемые как реостат в цепи ротора (КФ-22М); потенциометрический резистор в цепи тахогенератора (ЯС-3) и установочный резистор в цепи возбуждения генератора динамического торможения (ЯС-3); пульт управления подъёмной машиной ПШП, панель управления ПГВ 6701 для управления в цепи ротора подъёмного двигателя; панель управления ПГВ 6901-43АЗ для управления динамическим торможением; блок управления БУ514 для управления электродвигателем агрегата динамического торможения; станция ПГХ 5015-53МЗ для управления вспомогательными приводами; сельсиндатчики БД 501НА, работающие как датчики указателя глубины; регулятора ограничения скорости ДОС-5914; регулятора давления для управления тормозным приводом и автоматизации компрессора; магнитные включатели для защиты от износа колодок; магнитные выключатели для защиты от переподъёма; блокировки механизма перестановки (ВК-300оС), для контроля давления воздуха и другое малогабаритное электрооборудование.

Похожие работы на - Расчет главной подъемной установки

 

Не нашли материал для своей работы?
Поможем написать уникальную работу
Без плагиата!
Без нейросетей!