Расчёт и проектирование фундаментов различного заложения
Министерство образования Российской
Федерации
МОСКОВСИЙ ГОСУДАРСТВЕННЫЙ ОТКРЫТЫЙ
УНИВЕРСИТЕТ
Рязанский институт (филиал)
Кафедра ПГС
Курсовая работа
по дисциплине
"Основания и фундаменты"
На тему:
"Расчёт и проектирование
фундаментов различного заложения"
Выполнил: Волченков Д.М.
Курс 4 строительного факультета
Проверил: Шешенев Н.В.
Рязань 2013
Содержание
Введение
1. Анализ инженерно-геологических данных. Определение значения
условного расчётного сопротивления грунта R0
2. Расчёт фундамента мелкого заложения
2.1 Определение глубины заложения фундамента
2.2 Определение размеров подошвы фундамента в плане
2.3 Расчет осадки фундамента методом послойного суммирования
3. Расчет свайного фундамента
3.1 Выбор глубины заложения ростверка, несущего слоя грунта и
конструкции сваи
3.2 Определяем несущую способность и силы расчётного сопротивления
сваи по материалу и грунту
3.3 Определение приближённого веса ростверка и числа свай
3.4 Конструирование ростверка
3.5 Расчет осадки свайного фундамента
Список литературы
Введение
1. Местоположение площадки
Изучаемая площадка расположена на пересечении ул. Пушкина и
ул. Никитина в г. Брянске.
. Климат
В климатическом отношении площадка относится ко II
климатическому району. Средняя t0 января - 14,90 С, средняя
t0 июля +18,80 С, средняя годовая t0 +4,30
С. Число дней со снежным покровом составляет 140 дней. Холодный период
длится с середины сентября до середины мая.
. Геоморфология рельефа
В геоморфологическом отношении площадка расположена в
пределах среднерусской возвышенности (на абсолютной отметке поверхности земли
130,74).
. Геологическое строение
В геологическом строении площадки до изучаемой глубины 15-20
м
принимают участие покровные и мореные отложения четвертичной
системы. Представленные грунты: супесь пластичная, песок мелкий, песок средней
крупности, суглинки тугопластичные.
. Гидрогеологические условия
В процессе производства буровых работ подземные воды вскрыты
скважинами на глубине 4,10 м от поверхности земли на абсолютной отметке 126,52
м. Максимально высокое положение уровня воды следует ожидать в весеннее время.
Подземные воды являются слабоагрессивными.
. Инженерно-геологические условия
Определение физико-механических характеристик грунтов
выполнялось в соответствии с требованиями нормативных документов. С учетом
геологического строения, выделено 5 инженерно-геологических элементов:
. Инженерно-геологических элемент 1:
Насыпной слой из почвы, шлака, бытовых и строительных
отходов, мощностью 3,2 м.
Растительный слой состоит из почвы мощностью 0,3м.
. Инженерно-геологических элемент 2:
Супеси желтовато-бурого цвета. Залегают на глубине 130,32 м,
мощностью 2,8 м.
. Инженерно-геологических элемент 3:
Пески желтовато-бурого цвета. Залегают на глубине 127,52 м,
мощностью 1 м.
. Инженерно-геологических элемент 4:
Пески желтоватые. Залегают на глубине 126,20 м, мощностью 1,2
м.
. Инженерно-геологических элемент 5:
Глины темно-бурого цвета. Залегают на глубине 125,50 м,
мощностью 4,70 м.
фундамент свайный ростверк заложение
Рисунок 1. Геологический разрез.
1. Анализ
инженерно-геологических данных. Определение значения условного расчётного
сопротивления грунта R0
Для заданного варианта грунтовых условий производим оценку
характеристик слоев грунта, с целью использования его в качестве естественного
основания.
1 слой:
1. Число пластичности:
7;
=0, 191-0,147=0,044
Так как число пластичности Ip находится в интервале
0,01 < Ip ≤0,07, то делаем вывод, что 1 слой - супесь.
2. Показатель текучести:
;
=
=0,57
Так как показатель текучести IL находится в интервале
0<IL<1, то делаем вывод, что 1 слой - супесь пластичная.
3. Коэффициент пористости:
е=
(1+W) - 1; е=
4. Расчетное сопротивление:
Таблица 1
|
e
|
R0
|
|
IL=0
|
IL=0,57
|
IL=1
|
|
0,5
|
300
|
|
300
|
|
0,63
|
267,5
|
248,48
|
235
|
|
0,7
|
250
|
|
200
|
Вывод: 1 слой - супесь пластичная с расчетным сопротивлением R0=248,48кПа.
2 слой:
1. Тип песчаных грунтов:
Частиц крупнее: 0,5 мм - 9,7% по весу
,25 мм - 45,6% по весу
,10 мм - 92,68% по весу
,05 мм - 97,28% по весу
,01 мм - 98,96% по весу
,005 мм - 99,84% по весу
Менее 0,005 мм - 100% по весу
Делаем вывод, что 2 слой - песок мелкий.
2. Коэффициент пористости:
е=
∙ (1+W) - 1;
е=
Так как коэффициент пористости е находится в интервале е
< 0,60, то делаем вывод, что песок плотный.
3. Степень влажности:
Sr=
=
Так как степень влажности Sr находится в интервале 0,5<
Sr <0,8, то делаем вывод, что песок маловлажный.
Вывод: 2 слой - песок мелкий, плотный с расчётным сопротивлением R0=400
кПа.
3 слой:
1. Тип песчаных грунтов:
Частиц крупнее: 0,5 мм - 24,5% по весу
,25 мм - 55,9% по весу
,10 мм - 95,88% по весу
,05 мм - 99,7% по весу
,01 мм - 99,94% по весу
,005 мм - 100% по весу
Делаем вывод, что 3 слой - песок средней крупности.
2. Коэффициент пористости:
е=
∙ (1+W) - 1;
е=
Так как коэффициент пористости е находится в интервале0,55
< е < 0,7, то делаем вывод, что песок средней плотности.
3. Степень влажности:
Sr=
=
Так как степень влажности Sr находится в интервале 0,8<
Sr <1, то делаем вывод, что песок насыщенный водой.
Вывод: 3 слой - песок средней крупности, средней плотности с
расчётным сопротивлением R0=400 кПа.
4 слой:
1. Число пластичности:
=0,389-0,229=0,16
Так как число пластичности
находится в интервале 0,07 <
<0,17, то делаем вывод, что 4 слой - суглинок.
2. Показатель текучести:
Так как показатель текучести
находится в интервале 0,25< IL<0,5, то делаем
вывод, что 4 слой - суглинок тугопластичный.
3. Коэффициент пористости:
е=
∙ (1+W) - 1;
е=
4. Расчетное сопротивление:
Таблица 2.
|
e
|
R0
|
|
IL=0
|
IL=0,375
|
IL=1
|
|
0,7
|
250
|
|
180
|
|
0,84
|
226,7
|
195,2
|
142,7
|
|
0,1
|
200
|
|
100
|
Вывод: 4 слой - суглинок тугопластичный с расчетным
сопротивлением R0=195,2 кПа.
2. Расчёт
фундамента мелкого заложения
2.1
Определение глубины заложения фундамента
Определяем нормативную глубину промерзания по формуле:
,
где
- глубина промерзания: для супесей
=0,28м;
- коэффициент, равный сумме абсолютных значений среднемесячных
отрицательных температур воздуха в данном районе.
М
=9,1+8,4+3,2+0,4+5,2=26,3
Определяем расчетную глубину промерзания по формуле:
,
.
Глубина промерзания для зданий без подвала при (2+df)
>dw и 4,1> (1,58+2) для супесей c показателем
текучести IL≥0, то глубина заложения подошвы фундамента не
менее df.
Принимаем d не менее df.
Глубина заложения фундамента d=1,6 м.
Рисунок 2.
2.2
Определение размеров подошвы фундамента в плане
1. Определяем необходимые размеры подошвы
ленточного фундамента, при условии, что к нему приложена вертикальная сила N″=300кН.
В 1ом приближении находим площадь подошвы
фундамента
N″ - расчетная
нагрузка по 2ой группе предельных состояний, приложенная к обрезу
фундамента.
R0
- условное расчетное сопротивление грунта основания
γm″ - осредненное расчетное значение удельного
веса грунта и материала фундамента.
R0=248,48
кПа
γm″=20 кН/м3 - для зданий без
подвала=1,6 м
1,38 м2
2. Ширина
подошвы.
м
. Найдем
расчетное сопротивление грунтов основания:
γc1, γc2 - коэффициенты условия работы, γc1=1,1 - зависит от вида грунта
γc2=
- зависит от вида грунта и от отношения
длины и высоты здания
к -
коэффициент принимаемый равным 1, если характеристики определены опытным путём.
к=1
Мγ, Мq, Мс
- коэффициенты, принимаемые в зависимости от угла внутреннего трения φ =230 Мγ =0,61, Мq =3,44, Мс =6,04.
кz - коэффициент,
принимаемый равным 1, т.к.
< 10 м.
γ - осредненное значение удельного веса
грунтов залегающих ниже подошвы фундамента.
γ' - тоже, но выше подошвы фундамента
γ =
γsb=
кН/м3
γ=1,96*10=19,6 кН/м3
γ=1,89*10=18,9 кН/м3
γ=2,04*10=20,4 кН/м3
γ=1,913*10=19,13 кН/м3
γ =
Кн/м3
cII
- расчетное значение удельного сцепления грунта, залегающего непосредственно
под подошвой фундамента.
d1
- глубина заложения фундамента
dв - глубина пола подвала, принимаемая в зависимости от ширины подвала.
cII=12 кПа, d1=1,1 м, dв=0
м
кПа
4. Определяем площадь подошвы фундаменты при
новом расчетном сопротивлением грунта.
м2
м
Подбираем фундамент. Размеры фундаменты принимаем: b =1200 мм, l=1180 мм, Vf=0,347
м3, h=300 мм, ФЛ 12-12-2. Выполняем расчет сопротивления для
подобранного фундамента:
кПа
5. Проверка фундамента.
pII =
=NII+NfII+NsIIfII
- вес фундаментаfII =Vf ∙ γb, γb=25 кН/м3fII =0,2822∙25=7,055
кНsII - вес грунта над уступами фундаментаsII
=1,2∙1,6-0,2822+0,84=0,7988 кН=300+7,055+1,6378=328,8528 кН
pII =
кПа
,044 кПа < 284,809 кПа
Разница составляет 3,8%, следовательно размеры фундамента
подобраны верно. Окончательно принимаем фундамент ФЛ 12-12-2
2.3 Расчет осадки
фундамента методом послойного суммирования
1. Определяем природное и вспомогательное
напряжение от собственного веса грунта.
- природное
- вспомогательное
Определяем удельный вес грунтов:
) На поверхности земли:
Дополнительное вертикальное напряжение:
) Вертикальное напряжение от собственного веса грунта на подошве
фундамента:
=
кПа
Дополнительное вертикальное напряжение
кПа
) Вертикальное напряжение от собственного веса грунта на уровне
подошвы 1-го слоя:
=
кПа,
кПа
) Вертикальное напряжение от собственного веса грунта на уровне
подошвы 2-го слоя:
=
кПа,
кПа
) Вертикальное напряжение от собственного веса грунта на уровне
грунтовых вод:
=
кПа
кПа
) Вертикальное напряжение от собственного веса грунта на уровне
подошвы 3-го слоя:
=
кПа
кПа
) Вертикальное напряжение от собственного веса грунта на подошве
4-го слоя:
кПа
кПа
. Определяем дополнительное давление на подошву фундамента
кПа
3. Сжимающую толщу грунта ниже подошвы фундамента разбиваем на
элементарные слои высотой zi
Определяем высоту элементарного слоя
:
м
<0,4
,24<0,4
1,2=0,48
4. Определяем напряжение на каждом элементарном слое.
Для этого составляем таблицу.
Таблица 3.
|
№
|
z, м
|
|
 кПаНаименование E
|
|
|
|
|
1
|
0
|
0
|
1
|
242,684
|
Супесь
пластичная IL=0,57
е=0,63
|
16000
|
|
2
|
0,24
|
0,4
|
0,96
|
232,98
|
|
|
|
3
|
0,48
|
0,8
|
0,8
|
194,147
|
|
|
|
4
|
0,72
|
1,2
|
0,606
|
147,067
|
|
|
|
5
|
0,96
|
1,6
|
0,449
|
108,965
|
|
|
|
6
|
1,2
|
2,0
|
0,336
|
81,542
|
|
|
|
7
|
1,44
|
2,4
|
0,257
|
62,37
|
Песок мелкий
плотный маловлажный е=0,53
|
38000
|
|
8
|
1,68
|
2,8
|
0, 201
|
48,78
|
|
|
|
9
|
1,92
|
3,2
|
0,160
|
38,82
|
|
|
|
10
|
2,16
|
3,6
|
0,131
|
31,79
|
|
|
|
11
|
2,4
|
4
|
0,108
|
26,21
|
Песок средней
крупности средней плотности насыщенный водой, е=0,97
|
30000
|
|
12
|
2,64
|
4,4
|
0,091
|
22,08
|
|
|
|
13
|
2,88
|
4,8
|
0,077
|
16,68
|
|
|
|
14
|
3,12
|
5,2
|
0,067
|
16,26
|
|
|
5. Определяем осадку фундамента.
где β=0,8 -
коэффициент бокового расширения,
- модуль деформации,
- среднее напряжение в i-ом слое.
1,36 см <
8 см
Вывод: осадка
удовлетворяет условию, следовательно, допустима.
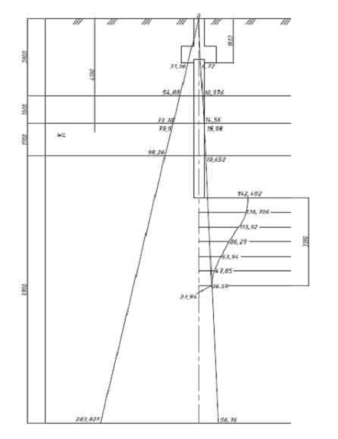
Рисунок 3.
3. Расчет
свайного фундамента
3.1 Выбор
глубины заложения ростверка, несущего слоя грунта и конструкции сваи
Глубину заложения ростверка принимаем конструктивно d=1,6 м.
Высота ростверка принимаем 0,6 м
Принимаем глубину заделки сваи в ростверк ∆Z=0,1 м
Рисунок 4.
Принимаем сечение сваи:
длину сваи принимаем 5 м
3.2
Определяем несущую способность и силы расчётного сопротивления сваи по
материалу и грунту
1. Определение силы расчетного сопротивления сваи по
материалу:
, где
- коэффициент условий работы сваи в грунте;
- коэффициент продольного изгиба (зависит от вида ростверка);
- коэффициент работы бетона (зависит от способа погружения сваи);
- расчетное сопротивление бетона;
- площадь сечения сваи;
- расчётное сопротивление арматуры;
- площадь поперечного сечения арматуры.
=1,
=1,
=1,
=8,5МПа,
=225МПа,
=0,09 м2,
=4,52*10-4 м2
. Определение силы расчетного сопротивления сваи по грунту:
- несущая способность сваи по грунту;
=1 - коэффициент условия работы сваи в
грунте;
,
- коэффициенты условия работы грунта
соответственно под нижним концом сваи и по её боковой поверхности.
=1,
=1 по СНиП. - расчетное сопротивление грунта
под нижним концом сваи;
А - площадь опирания сваи на грунт (площадь сечения сваи); -
наружный периметр поперечного сечения сваи;i - расчетное
сопротивление i-того слоя грунта по боковой поверхности сваи; i -
толщина i-того слоя грунта;
;
м2;
м;
. Определение силы расчетного сопротивления сваи по грунту:
RS
- сила расчетного сопротивления сваи по грунту;
γk - коэффициент надежности, назначаемый в зависимости от метода
определения несущей способности сваи;
γk=1,4
кН.
Рисунок 5.
3.3
Определение приближённого веса ростверка и числа свай
где NII - нагрузка вертикальная по обрезу фундамента по
1 группе предельных состояний,
Определение среднего давления на основание под ростверком:
- диаметр сваи
Определение
площади подошвы ростверка Ag
γf - коэффициент надежности по грунту,
γm - коэффициент среднего значения удельного
веса материала ростверка и грунта на уступах.
γm юез подвала - 20 кН/м3
dg -
глубина заложения ростверка
γf=1,1
γm=20 кН/м3g=1,6 м
Определение
количества свай:
ηm - коэффициент, учитывающий действие момента,
для центрально нагруженных фундаментов равен 1;- вес ростверка и грунта на
уступах
=1,1∙3,56∙20∙1,6=125,312
кН
3.4
Конструирование ростверка
Минимальное расстояние между сваями 3d, d - диаметр
поперечного сечения сваи. Расстояние в свету от края сваи до края ростверка
должно быть не менее 5 см. Проверка усилий, передаваемых на сваю:
кН < 301,3035кН
Где N - нагрузка- количество свай
Определяем перегруз:
% - недогруз
Рисунок 6.
.5 Расчет
осадки свайного фундамента
Определяем средневзвешенное значение угла внутреннего трения
Определяем размеры подошвы условного фундамента
Рисунок 7. Рисунок 8.
Определяем вес условного фундамента:
2,65*2,65*
(2,8*16,6+1*18,9+1,2*20,4+1,6*19,13) =904,98кН
Давление на грунт от условного фундамента:
= (1000+904,98) /10,8=271,27 кПа
Определяем расчетное сопротивление грунта R, расположенного
ниже условного фундамента
c - глубина заложения условного фундамента;
γ11=19,13кН/м3 - осредненное
значение удельного веса грунтов под подошвой фундамента
γ111 =128,868/6,5=19,82 кН/м3 - выше подошвы
фундамента
γc1, γc2 - коэффициенты условия работы
γc1=1,3, γc2=1,3.
к - коэффициент принимаемый равным 1.
к=1
Мγ, Мq, Мс
- коэффициенты, принимаемые в зависимости от угла внутреннего трения φ =170 С. Мγ =0,39, Мq =2,57, Мс =5,15.
кz - коэффициент,
принимаемый равным 1, т.к.
< 10 м.II - расчетное значение удельного сцепления
грунта, залегающего непосредственно под подошвой фундамента.
271,27 кПа<R=723,5059 кПа - требование
выполняется.
Расчет осадки
выполняем методом послойного суммирования.
. Определяем
ординаты эпюры.
1) На поверхности
земли:
Дополнительное
вертикальное напряжение
) Вертикальное
напряжение от собственного веса грунта на уровне подошвы 1-го слоя:
=
кПа
кПа
) Вертикальное
напряжение от собственного веса грунта на уровне подошвы 2-го слоя:
=
кПа
кПа
) Вертикальное
напряжение от собственного веса грунта на уровне грунтовых вод:
=
кПа
кПа
) Вертикальное
напряжение от собственного веса грунта на уровне подошвы 3-го слоя:
=
кПа
кПа
) Вертикальное
напряжение от собственного веса грунта на основании сваи:
кПа
кПа
) Вертикальное
напряжение от собственного веса грунта на подошве 4-го слоя:
кПа
кПа
2. Определяем дополнительное давление на
подошву фундамента.
;
кПа.
3. Определяем элементарную высоту слоя.
;
м.
4. Разбиваем грунтовую толщу от подошвы на
элементарные слои.
5. Определяем напряжения на каждом
элементарном слое. Для этого составим таблицу:
Таблица 4.
|
№
|
Z, м
|
|
|
|
Наименование
|
E
|
|
1
|
0
|
0
|
1
|
142,402
|
Суглинки
тугопластичные e=0,84
|
11000
|
|
2
|
0,53
|
0,4
|
0,96
|
136,706
|
|
|
|
3
|
1,06
|
0,8
|
0,8
|
113,92
|
|
|
|
4
|
1,59
|
1,2
|
0,606
|
86,29
|
|
|
|
5
|
2,12
|
1,6
|
0,449
|
63,94
|
|
|
|
6
|
2,65
|
2,0
|
0,336
|
47,85
|
|
|
|
7
|
3,18
|
2,4
|
0,257
|
36,59
|
|
|
6. Определяем осадку фундамента.
,
где
- корректирующий коэффициент,
- модуль деформации,
- среднее напряжение в i-ом слое.
Вывод: осадка
удовлетворяет условию, следовательно допустима.
Рисунок 9.
Список
литературы
1.
СНиП 2.02.01-83. Основания зданий и сооружений. М.: Стройиздат, 1983 г.
.
Берлинов М.В. Основания и фундаменты. М.: Высшая школа, 1988г. - 319 с.
.
Гусева В.И. Методические указания "Механика грунтов, основания и
фундаменты". М.: Издательство Всесоюзного заочного политехнического
института, 1991 г. - 50с.
.
Ухов С.Б., Семенов В.В., Знаменский В.В. и др. Механика грунтов, основания и
фундаменты. М.: Издательства АСВ, 1994 г. - 527 с.
.
Далматов Б.И. Механика грунтов, основания и фундаменты. М.: Стройиздат, 1981 г.
- 319с.
.
СНиП 2.02.03-85. Свайные фундаменты / Госстрой СССР. - М.: ЦИТП Госстроя СССР,
1983 г.
.
СНиП 2.01.01-82. Строительная климатология и геофизика / Госстрой СССР. - М.:
ЦИТП Госстроя СССР, 1987 г.
.
СНиП 25100-95. Грунты. Классификация. - М.: Из-во стандартов, 1986 г.