Расчёт и конструирование балочной клетки перекрытия и колонны
Министерство
образования РФ
Сибирская
Государственная Автомобильно-дорожная академия
СибАДИ
Инженерно-строительный
институт (ИСИ)
Кафедра
«Строительные конструкции»
Расчётно-графическая
работа
Расчёт и
конструирование балочной клетки перекрытия и колонны
Выполнил:
студент гр.33ПГС
Рассказов
К.О.
Проверил:
преподаватель
Кононова
Р.М.
Омск 2007
СОДЕРЖАНИЕ
1. Исходные
данные
2. Расчёт
второстепенной балки
3. Расчёт
главной балки сварного составного сечения
4. Проверка
общей устойчивлости балки
5. Проверка
прочности балки
6. Расчёт
монтажного стыка на высокопрочных болтах
7. Расчёт
опорных рёбер
8. Расчёт
центрально сжатой колонны
9. Расчёт
базы колонны
Список
литературы
Приложение
Графическая
часть
1. Исходные
данные
|
Наименование
|
Размерность
|
Значение
|
|
Параметры
балочной клетки в плане
|
м
|
6,8*10,5
|
|
Нормативные
нагрузки на межэтажные перекрытия
|
|
от
веса настила и констукции пола
|
кН/м2
|
2,5
|
|
временные
|
кН/м2
|
6,0
|
|
Нагрузка
на чердачное перекрытие (с учётом собственного веса и коэффициента перегрузки)
|
кН/м2
|
4,2
|
|
Постоянные
нормативные нагрузки от веса покрытия и конструкции кровли
|
кН/м2
|
0,5
|
|
Число
этажей
|
|
3
|
|
Высота
этажа от пола до низа главной балки
|
м
|
4,8
|
|
Конструктивная
высота перекрытий
|
м
|
1,8
|
|
Район
строительства
|
г.
Новороссийск
|
2. Расчёт второстепенной
балки перекрытия
Схема балочной клетки
Рис. 2.1 Схема опирания
второстепенной балки
lвт.б.р
Рис. 2.2 Расчётная схема второстепенной балки
Подбор сечения балки
По среднемесячной температуре января района
строительства - г. Новороссийска -принятой по прил. 5 карте 5 [1] и равной +5 0
С подбираем допустимую марку стали - ВСт3сп5-1 ТУ 14-
-3023-80 (фасон) по табл. 50 [2]. Её расчётное
сопротивление для фасонных изделий по текучести согл. табл.51 [2] R
= 235 МПа = 2,35 *105кН/м. Момент сопротивления для опасного сечения
балки как изгибаемого элемента определим по формуле:
Wтр
= Mmax/ R*c*γc,
(1)где
γc
- коэффициент
условий работы, согл. табл. 6* [2] п.8 γc=1,1
с - коэффициент учёта возможности пластических
деформаций, согл. табл. 66 [2] с =1,12
Mmax
определяю
для серединного сечения определяю по формуле
Mmax
= qр*
(lвт.б.p)2/8,
(2)где
lвт.б.p
= l1
+ 0,25/2 - bп/4
= / bп
= 0,4 м согл. [3]/ = 6,8+0,125-0,4/4 =
,8725мр = (qн+п*
γп+
qвр*
γвр)*a,
(3) где
qн+п
- нагрузка от веса настила и пола, по заданию qн+п
= 250 кг/м2 = 2,5 кН
qвр
- временная нагрузка, по заданию qвр
= 600 кг/м2 = 6 кН
γп
= 1,1 согл. табл.1 [1]
γвр
=
1,2 согл. п 3.7. [1]
а - ширина секции а=l2/4
= 10,5/6 = 1,75м, итак, подставив числовые данные имеем:
р
= (qн+п*
γп+
qвр*
γвр)*=
(2,5* 1,1+ 6* 1,2)*1,75=17,42 кН/м
Mmax
= qр*
(lвт.б.p)2/8
= 17,42* (6,8725)2/8 = 102,77 кНм
Wтр
= Mmax/ R*c*γc=102,77/2,35*105*1,12*1,1
= 3,5497*10-4м3 =
,97см3
По сортаменту (ГОСТ 8239-72), т.3
[3] подбираем двутавровое сечение с
= =354,97см3; таковым
является двутавр 30Ш1,с b = 200мм и Wx = 719 см3.
Произведём проверку на допустимость
прогиба балки (жесткость) по формуле:
, (4) где
qн = qн+п+ qвр (см. (3)
lвт.б.p - см. (3)
E = 2.06*104
кН/м2 - модуль упругости стали
I = 10460см4
- момент инерции сечения балки
сечение второстепенной балки принято
правильно.
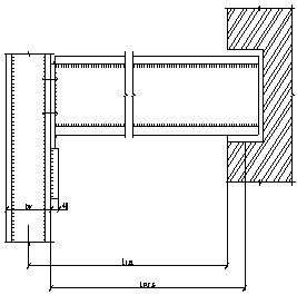
3. Расчёт главной балки сварного составного
двутаврового сечения
Рис. 3.1 Участок опирания на главную
балку
Определение расчётных параметров главной балки
lгл.б.р.=
lгл.б.зад.
+
0,4/2 - bк/2
bк
= 30 - 50 см, задаёмся bк
= 30 см
lгл.б.р.=
10,5 + 0,4/2 - 0,3/2 = 10,55 м = 1055 см
Aгр
= lрвт.б.*a
= /a = 1,75 из п.2/ =
6,8725 * 1,75 = 12,027 м2 - грузовая
площадь
балочный межэтажный монтажный
опорный
Сосредоточенную силу F
в точках опирания второстепенной балки на главную определим по формуле:
, (5)где
qн+п
- нагрузка от веса настила и пола, по заданию qн+п
= 250 кг/м2 = 2,5 кН
qвр
- временная нагрузка, по заданию qвр
= 600 кг/м2 = 6 кН
γп
= 1,1 согл. табл.1 [1]
γвр=1,2
согл. п 3.7. [1]
(из задания) - погонная плотность
второстепенной балки
( задаёмся ) - погонная плотность
главной балки
= 125,35 кН
Построение эпюр M и Q
Rа*10,55 -
F*(
1,6+3,35+5,1+6,85+8,6 ) = 0
а = 302,98 кН
RВ*10,55
- F*( 1,95+3,7+5,45+7,2+8,95 ) = 0
RВ
= 323,77 кН
Проверка
RА +RВ - 5F =
323,77+302,98 - 5*125,35 = 0
Q(x1)
= RА
= 323,77 кН
Рис. 3.3 Эпюры M
и Q
M(x1)
= RА*x1
M(0) = 0
M(1,6) = 323,77*1,6
= 518,032 кНм
Q(x2)
= RА
- F = 323,77 - 125,35
= 198,42 кН
M(x2)
= RА*(x2+1,6)
- F* x2
M(0) = 323,77*1,6 =
518,032 кНм
M(1,75)=
323,77*(1,6+1,75)-125,35*1,75 = 865,28 кНм
Q(x3) = RА - 2*F = 73,07 кН
M(x3) = RА*(x3+3,35)-F*( x3+1.75)-F* x3
M(0) = 865.28 кНм
M(1.75) = 993.15
кНм
Q(x4)
= RА
- 3*F = -52,28 кН
M(x4)
= RВ*(x4+5,1)
- F*(x4+3,5)-F(x4+1.75)-
F* x4
M(0) = 993.15 кНм
M(1,75) =901.67 кНм
Q(x5)
= RА
- 4*F
= -177.63 кН
M(x5)=RВ*(x5+6.85)-F*(x5+5.25)-F*(x5+3,5)-F(x5+1.75)-F*
x5
M(1,75) =590.81 кНм
Q(x6)
= RB
= -302.98 кН
M(x6)
= RB*x6
M(0) = 0
M(1.95) = 590.81 кНм
Рис. 3.4 Схема профиля главной балки
Максимальный момент Mmax=993,15кНм
Максимальная поперечная сила Qmax=
323,77 кН.
Требуемый момент сопротивления из условия
прочности по формуле:
(6)
Зададимся значением высоты главной
балки из диапазона
, пусть
hст=1/10*lргл.б.=1/10*10,5=1,05м=105см
согласно сортаменту т.1.3. [3] hст=105 см.
(8) tcт=
7 + 3hгл. б.
= 7 + 3*1,05 = 10,15 мм
согласно сортаменту т.1.3. [3] tcn =11мм
Конструктивные требования:
Выразим площадь полки из Iтр
по
формулам:
(10)
(11)
Ширину полки bп принимаем в
связи с небольшой площадью сечения полки минимальной из условия опирания на
полку плит, равной 18 см. Толщину полки найдем из площади:
,
но т.к. согласно конструктивным
требованиям:
то принимаем tп=11мм
Принятые параметры сечения сведены в
таблицу ( в см):
|
hст
|
tст
|
bп
|
tп
|
|
105
|
1,1
|
18
|
1,1
|
Произведём проверку прочности нормального
сечения:
фактическую прочность нормального сечения
определим из соотношения:
, (10)
где
(11)
=4058,993 см3
В связи с тем, что 0.6*bп=10,8см<
bпmin=18см, изменять ширину полки по длине нельзя.
. Проверка прочности балки
(приведённых напряжений) под первой силой
Приведённые напряжения определяются
под первой силой т.к. в этой точке совместное действие M и Q больше, чем
в других сечениях. Прочность считается обеспеченной, если соблюдаются два
условия:
(11) (для приведённых напряжений) и
[1]
(12)
(для максимальных касательных
напряжений) [2], где
(13) - нормальные напряжения
(14) - касательные напряжения. В
выражениях (11)-(14):
Q - величина
поперечной силы в рассматриваемом сечении, Q = 323,77 кН
Sпх -
статический момент пояса балки :
(15)
Ix - момент
инерции всего сечения
M1 - момент
под первой силой, M1 =
117515,965 кНм
W - момент
сопротивления сечения, согласно
(11)
Rср= 0,58*R/1,025 =
0.58*23,5/1,025 = 13,3 кН/см2 = 0,133 кН/мм2 (9)
сопротивление срезу
Таким образом:
Рис 4.1 Эпюры нормальных и
касательных напряжений
. Проверка обеспечения общей
устойчивости балки
Проверка производится для участка
балки между связями по формуле из т.8 [2]
, (16)
bп - ширина
сжатого пояса
tп - толщина
сжатого пояса
lef = a+h0 = 387,5 cм -
наибольший грузовой участок балки
h = hп + tп = 105 + 1,1
= 106,1 см
,
Условие устойчивости выполнено.
. Расчёт монтажного стыка на
высокопрочных болтах
Расчет накладок на пояс:
bн1-ширина
внутренней накладки на пояс
kш-катет шва,
принимаем по табл.38 [2]
принимаем катет шва kш =0,5мм
tн=
Принимаем tн=0,7см
Принимаем диаметр высокопрочных болтов 20мм.
Мстыка=Мбалки
→ Мполки =
Jбалоч=217562,004
см4
Мполки=
Nп=
[Qвб]=
[Qвб]-несущая
способность высокопрочных болтов [2,формула 131]
R=135кН/см2
[2,т.61]
=0,58 [2,табл.62]
=1,02 - коэффициент надежности,
принимаемый по [2,табл. 36]
- коэффициент
условий работы соединения, зависящий от количества n болтов, необходимых для
восприятия расчетного усилияи и принимаемый равным: 0,8
при n < 5;
К =1- коэффициент условия работы соединения,
зависящий от количества болтов, необходимых для восприятия расчетного усилия и
принимаемого по [2,пункту 11.13]
А
=2,45см2-площадь сечения
болта нетто, определяемого по [2,табл. 62]
N=
Следовательно: на накладке на пояс 8шт
высокопрочных болтов.
. Расчет монтажного стыка стенки
→
Jстенки= tст*
hст*tст=2*hн*tн,
hн=hст-2kш-2*зазор=105-2*0,5-2*1=102см
tп=hст*tст/2hн=
n-количество
плоскостей среза
Lmax=91
см-максимальный шаг
nбол=16-число
болтов
Q=73,07
кН-срезающая сила в месте стыка
L
=132+392+652+912=14196см2
Принимаю: общее количество болтов 32
на один пояс, по 16 болтов из стали 30Х3МФ на полу-накладку.
Принимаю: накладку шириной bнст = 28см,
высотой hнст=102см,
толщиной tнст=0,6см.
. Расчет опорных ребер и поперечных
ребер жесткости балки
Расчет поперечного ребра жесткости:
Ширина:
Толщина:
Tр =
Принимаю: поперечное ребро шириной bp=7,5см,
толщиной tp=0,6см.
Расчет опорного ребра:
Ширина опорного ребра:
Принимаю 170мм.
Площадь смятия.
Q -
поперечная сила в месте опирания. Q=323,77Кн.
Rсм - расчетное
сопротивление стали смятию. [I, Табл. 1]
Толщина опорного ребра.
topmin=tcт
Принимаю 10 мм.
Фактическая площадь опорного ребра.
Площадь сжатия.
Момент инерции опорного ребра
Радиус инерции
Гибкость
j
- коэффициент продольного изгиба определяется по [2, табл. 72] в зависимости от
марки стали и гибкости
при
Проверка
Условие выполняется
8. Расчёт
центрально-сжатой колонны
Расчетная продольная сила
Агр - грузовая площадь
nб -
количество второстепенных балок на грузовой площади nб=6
nпер - количество
этажей nпер=2
qснег -
нормативная снеговая нагрузка 1 Кн/м2 [II, табл. 4.]
gснег - коэффициент надежности по
снеговой нагрузке [II, п. 5.7] gснег =1,2
åli - длина
колонны.
Требуемая площадь колонны
Ry -
расчетное сопротивление стали ВСТ3сп, ГОСТ 380 - 71* R=23,5
[2,
табл. 50,51].
gc -
коэффициент условий работы gc=1 [1, прим.
4 табл. 6*].
φ - коэффициент продольного
изгиба [2, табл. 72]; гибкость задается: λ = 90
Конструктивные требования:
Аст=20%Атр
Ап=40%Атр
[I, Табл. 27,
Табл. 29]
Принимаю
tск=0,9 см
- высота стенки колонны
tпк=1,8 см -
толщина стенки колонны
bпк=30 см -
толщина полки колонны
hск=30 см -
ширина полки колонны
Расчет колонны на устойчивость:
Площадь принятого сечения
Момент инерции относительно
центральных осей
Радиус инерции
Гибкость колонны
j=0,628,
при
Проверка устойчивости стержня колонны:
- Коэффициент
условий работы
, [I, Табл. 6]
(устойчивость обеспечена)
Расчет на устойчивость стенки и
полки колонны.
Для стенки колонны:
Приведенная гибкость
Для полки колонны:
Приведенная гибкость
9. Расчет базы колонны с траверсами
а1=145.5 мм; а2=32 мм; а3=40
мм; а4= 28.5мм;
в1=300 мм; в2=300мм; в3=310
мм; в4=54.5 мм;
Rбф - расчетное
сопротивление бетона осевому сжатию, зависит от марки бетона М300,
марка бетона зависит от грунтовых
условий. Rб=1,3Кн/см2
- коэффициент увеличения Rбф.
Минимальные размеры плиты в плане.
Принимаю плиту с размерами 40´40 см.
Реактивное давление со стороны
фундамента.
Определение толщины опорной плиты.
если
, тогда
если
, тогда

если
, тогда
если
, тогда

если
, тогда
если
, тогда
Толщина плиты
Принимаю толщину опорной плиты tп=30 мм
Расчет траверс базы колонны:
Толщина траверс tтр=10 мм.
Высота траверсы определяем по прочности швов,
прикрепляющих траверсы к стержню колонны при срезе по металлу шва [3, ф. 6,4]
Кf
- катет шва [2,
Табл. 38*]. Кf=0,7см
bf
- коэффициент, учитывающий вид сварки [2,
Табл. 34*].bf
=0,7
bz
- коэффициент, учитывающий вид сварки [2,
Табл. 34*].bz
=1
gwf
- коэффициент условий работы шва. [2, п.
11.2*]gwf=1.
gс
- коэффициент условий работы конструкции [2,
табл. 6*] gс=1.
Rwf
- расчетное сопротивление сварных соединений [2,
п. 3.4., Табл. 3]
Rwun -
нормативное сопротивление металла шва [2, Табл. 4*] Rwun= 50
Высота траверсы по прочности швов при срезе по
границе сплавления.
Принимаю:
Высоту траверсы: hтр=480мм
= 48см
Толщину траверсы: tтр=10 мм
= 1см
Для равномерной передачи нагрузки от колоны на
опорную плиту базы кроме траверсов устанавливают рёбра жёсткости.
Высота ребра: hр=0,8*
hтр=0,8*48=38,4см=40см
Толщина ребра: tр=
tтр
-2=10-2=8мм=0,8см
Расчёт
поясных швов
Расчетное усилие, приходящееся на
поясной шов длиной lw=1см
- максимальная поперечная сила с
эпюры
Sfrb -
статический момент отсеченной части сечения.
Минимальный катет шва из
условия среза по металлу шва.
bf -
коэффициент, учитывающий вид сварки [I, п.11.2*].bf
=0,7
gwf -
коэффициент условий работы шва. [I, п. 11.2*]gwf=1.
gс -
коэффициент условий работы конструкции [1, табл. 6*] gс=1.
Rwf -
расчетное сопротивление сварных соединений [I, п.
3.4., Табл. 3]
Rwun -
нормативное сопротивление металла шва [I,
Табл. 4*] Rwun=42
Принимаю проволоку по ГОСТ
2246–70* для автоматической сварки под флюсом и (ГОСТ 9087–81*) Св-10ГА.
gwm
- коэффициент надежности по материалу шва.[I,
прим. 3, табл. 3] gwm=1,25
lw
- расчетная длина шва lw=1
см.
Минимальный катет шва из условия среза по
металлу границы сплавления.
bz
- коэффициент, учитывающий вид сварки [I,
п.11.2*].bz
=1.
gwz
- коэффициент условий работы шва. [I,
п. 11.2*]gwz=1.
gс
- коэффициент условий работы конструкции [I,
табл. 6*] gс=1.
Rwz
- расчетное сопротивление сварных соединений [I,
п. 3.4., Табл. 3]

Run=39
Принимаю проволоку по ГОСТ 2246–70* для
автоматической сварки под флюсом (ГОСТ 9087–81*) Св-10ГА.
gwm
- коэффициент надежности по материалу шва.[1, прим. 3, табл. 3] gwm=1,25
lw
- расчетная длина шва lw=1
см.
За расчетный катет шва принимается
большее из двух полученных значений
при выполнении конструктивных
требований, предусматривающих [I, п. 12.8]
катет углового шва не должен быть
больше 1,2t, где t -
наименьшая толщина свариваемых элементов 1,2*1,1=1,32 см.
катет углового шва следует принимать
не менее приведенных в [I, табл. 38*]
Согласно [I, табл. 38*]
принимаю катет шва 5 мм при автоматической сварке.
СПИСОК ЛИТЕРАТУРЫ
1.
СНиП 2.01.07-85 “Нагрузки и воздействия”
.
CниП II-23-81
“Стальные конструкции”
3.
Методические указания к расчётно-графической работе “Расчёт и конструирование
балочной клетки перекрытия и колонны”