Організація роботи овочевого цеху в діючому ресторані
Міністерство освіти і науки України
Вінницький торговельно-економічний
інститут
Київського національного
торговельно-економічного університету
Факультет маркетингу, товарознавства
та туризму
Кафедра туризму та
готельно-ресторанної справи
КУРСОВА РОБОТА
з дисципліни «Організація
ресторанного господарства»
на тему: «Організація роботи
овочевого цеху в діючому ресторані»
Роботу виконано за матеріалами
ресторану «Скорпіон», м.Бердичів
Студентки
Кристапчук М.О.
Науковий
керівник к.е.н.
Левицька І.В.
Вінниця, 2010
ЗМІСТ
ВСТУП
РОЗДІЛ
I. ОРГАНІЗАЦІЯ РОБОТИ ОВОЧЕВОГО ЦЕХУ ЗАКЛАДУ РЕСТОРАННОГО ГОСПОДАРСТВА
1.1
Організація
робочого місця в овочевому цеху
1.2
Вибір
устаткування та обладнання
.3
Санітарні вимоги та охорона праці в цеху
РОЗДІЛ
II. ХАРАКТЕРИСТИКА ВИРОБНИЦТА В ОВОЧЕВОМУ ЦЕХУ НА ОСНОВІ ДІЮЧОГО РЕСТОРАНУ
«СКОРПІОН»
.1
Загальні відомості про організацію виробництва в овочевому цеху ресторану
.2
План-схема підприємства
.3
Аналіз роботи овочевого цеху
РОЗДІЛ
III. МЕТОДИ ВДОСКОНАЛЕННЯ РОБОТИ ОВОЧЕВОГО ЦЕХУ РЕСТОРАНУ «СКОРПІОН»
ВИСНОВКИ
І ПРОПОЗИЦІЇ
СПИСОК
ВИКОРИСТАНИХ ДЖЕРЕЛ
ДОДАТКИ
ВСТУП
Ресторанне господарство є галуззю,
основу якої складають підприємства, що характеризуються єдністю форм
організації виробництва і обслуговування споживачів і розрізняються за типами і
спеціалізацією. [4]
В кожному закладі ресторанного
господарства відповідно до технологічного процесу випуску продукції
організовуються виробничі підрозділи, що формують його інфраструктуру, тобто
склад його виробничих підрозділів (цехів), форми їх побудови, розміщення,
зв’язків. Одним з таких підрозділів закладу ресторанного господарства є
овочевий цех, в якому проводять первинну обробку овочів та всі подальші
операції з ними.
Актуальність теми. На сучасному
етапі розвитку ресторанного господарства значно менше стала приділятися увага
розмежуванню виробничих цехів, особливо у ресторанах. У зв’язку з урбанізацією
міст дуже складно знайти велику ділянку під забудову ресторану, тому на даний
час намагаються якомога більше скоротити площу ресторану завдяки об’єднанню
виробничих приміщень, що значно погіршує роботу закладу та якість
обслуговування споживачів.
Метою роботи є виявлення стану
організації роботи овочевого цеху при діючому ресторані та порівняння
результату з встановленими нормами, а також розробка заходів з підвищення
якості роботи цеху.
При виконанні дослідження досить
важливо виконати такі завдання:
) дослідити організацію
роботи овочевого цеху в закладах ресторанного господарства;
) проаналізувати структуру
досліджуваного ресторану та його виробничих приміщень;
) дослідити шляхом
розрахунків та охарактеризувати виробничу програму овочевого цеху діючого
ресторану;
) охарактеризувати склад
працівників цеху, обладнання цеху та асортимент продукції;
) розробити шляхи підвищення кількості
і якості виготовленої продукції;
) дати рекомендації щодо
удосконалення організації роботи та робочих місць у цеху.
Об’єктом дослідження даної роботи є
організація роботи овочевого цеху, що забезпечує процес обслуговування
споживачів, в закладах ресторанного господарства.
Предметом дослідження є діючий
ресторан «Скорпіон» в м.Бердичеві.
Отримані результати можуть бути
використані в процесі вдосконалення практичної діяльності закладів ресторанного
господарства, зокрема в процесі організації роботи овочевого цеху.
РОЗДІЛ I. ОРГАНІЗАЦІЯ РОБОТИ
ОВОЧЕВОГО ЦЕХУ ЗАКЛАДУ РЕСТО-РАННОГО ГОСПОДАРСТВА
1.1 Організація
робочого місця в овочевому цеху
Як відомо, правильне розміщення
виробничих цехів, раціональна організація робочих місць забезпечують підвищення
продуктивності праці, дозволяють економічно використовувати сировину,
скорочувати відходи при первинній обробці продуктів і покращують якість
виготовлюваних виробів.
На сучасному підприємстві
ресторанного господарства приготування їжі організовується промисловими
«способами» - з використанням високопродуктивного обладнання, функціональних
ємкостей і засобів їх переміщення. В кожному закладі ресторанного господарства
відповідно до технологічного процесу випуску продукції організують виробничі
підрозділи, що формують його інфраструктуру, тобто склад його цехів, форми їх
побудови, розміщення, зв’язків. Одним з таких підрозділів закладу ресторанного
господарства є овочевий цех. [12]
Овочевий цех призначений для
виробництва готових страв і напівфабрикатів з різних видів овочів, а також для
механічної обробки різних видів овочів. Овочевий цех розташовують, як правило,
в тій частині підприємства, де знаходяться овочеві комори, щоб транспортування
сировини здійснювалось найкоротшим шляхом і можна було запобігти перетинанню
технологічних потоків на виробництві. Овочевий цех розміщують поблизу овочевого
складу, щоб не забруднити приміщення, а також цех повинен мати зручне
сполучення з холодним цехом. У цехах, де обробляють невеликий обсяг сировини,
організують
загальні робочі місця для обробки картоплі і коренеплодів. Різні
технологічні
процеси й операції виконують послідовно на тому самому
устаткуванні.
У великому овочевому цеху
встановлюють потокові лінії для очищення картоплі, на яких усі процеси
механізовані, а картопля подається транспортерами. Очищають картоплю в
картоплечистках різної продуктивності. Правильне устаткування робочих місць,
визначена форма і якість ножів багато в чому визначають вироблення цеху і
сприяють скороченню відходів при обробці овочів. Лінію обробки картоплі можна
використовувати для очищення будь-яких коренеплодів. Капусту, помідори, зелень,
огірки обробляють окремо. Всі овочі перебирають, зіпсовані видаляють.
Зберігають очищені коренеплоди і зелень у пересувних ваннах із сітчастим дном.
Очищені овочі направляють у доготівельні цехи цілими або нарізаними в
залежності від їхнього подальшого призначення. Нарізають овочі на овочерізках
чи вручну. Існують різноманітні форми нарізки: скибочки, брусочки, соломка,
часточки, кубики. Для ручної нарізки використовують кухарський ніж середніх
розмірів кухарської трійки й обробну дошку. Дошки роблять із твердих порід
дерева, тильну сторону дощок маркірують, випалюючи відповідні букви: СО сирі
овочі, ВО варені овочі. Очищені овочі зберігають в охолодженому приміщенні при
температурі не вище 4оС на протязі 12год.
В цеху організовують механізовану
лінію для обробки картоплі і коренеплодів, капусти і свіжих овочів, які
споживають у сирому вигляді. Ріпчаста цибуля, часник, хрін обробляють на
спеціальних столах з витяжкою. Крім того, цей цех повинен мати зручний зв'язок
з цехом доробки напівфабрикатів, якщо він є, з холодним і гарячим цехами. [4]
В овочевому цеху рекомендується
організовувати наступні лінії й ділянки: -
лінія очищення картоплі;
лінія очищення коренеплодів;
лінія очищення та миття цибулі;
лінія для обробки капусти, сезонних
овочів та солінь;
відділок для доочищення картоплі
відділок обробки зелені.
Овочеві цехи середньої або малої
потужності організовують на підприємствах, що працюють на сировині. Виробничі
процес в таких цехах менш механізовані, їх обладнують мийними машинами,
картоплечистками, овочерізками, виробничими столами, ваннами.
На робочих місцях використовують
такий інвентар: ножі овочеві (корінчастий, карбувальний, жолобковий, короткі ножі
для видалення вічок, різні виїмки, інструмент для фігурного порізання овочів та
обробні дошки з маркуванням).
Розміщення обладнання в овочевому
цеху що працює на сировині: підтоварник, картоплечистка, ванни мийні, виробничі
столи, овочерізка, стіл з витяжною шафою для обробки цибулі, хріну.
Для нарізання овочів вручну
організовують окреме робоче місце. На виробничому столі розміщують обробну
дошку з маркування «ОС» з ліва тару з обчищеними овочами, з права середній ніж
кухарської трійки, ножі, виїмки, інструмент для фігурного нарізання овочів, і
тару для нарізаних овочів. [12]
Технологічний процес овочів
складається з таких послідовних операцій: сортування і калібрування, миття,
обчищання, промивання, нарізання. Сортування і калібрування сприяють раціональному
використанню овочів для приготування страв зменшують кількість відходів при
механізованій обробці. При сортуванні виділяють пошкоджені овочі, сторонні
домішки.
Калібрують овочі - за розміром,
ступенем достигання, якістю. Ці операції в основному здійснюють вручну. Миють
овочі, щоб видалити з їх поверхні залишки землі та піску, збільшити термін
експлуатації карптолечисток, раціонального використання відходів. Миють овочі в
овочемийних машинах або вручну у ваннах з решітчастим настилом.
Обчищають овочі з метою видалення
тих частин, що мають понижену харчову цінність (шкірочка) обчищають у
картоплечистках, або обпалюють у теплоагрегатах при температурі 1100-1200оС
протягом 6-12 с, або обчищають вручну ножами (корінчастим, жолобковим).
Промивають обчищені овочі у холодній воді у ваннах, щоб видалити залишки
шкірочки, піску.
Нарізують (подрібнюють) овочі для
того, щоб надати їм певної форми, що сприяє рівномірному прогріванні і
одночасному доведенню до готовності різних видів овочів, які підлягають
тепловій обробці разом. Нарізають овочі механічним або ручним методом.
Всі вищенаведені види обробки овочів
передбачають утворення відходів, норма яких залежить від якості овочів, виду,
сезону, способу обробки. [5]
В овочевих цехах відсутня посада
бригадира так, як тут працює від 2 до 5 працівників якими безпосередньо працює
завідуючий виробництвом.
Для підвищення продуктивності праці
в цеху та контролю за дотриманням правил технології приготування страв в
овочевому цеху розміщують таку технологічну документацію: збірник рецептур,
технологічна карта, калькуляційна карта.
1.2 Вибір устаткування
та обладнання
Для полегшення умов праці робітників
в овочевому цеху використовують наступне технологічне обладнання:
. Картоплеочисна машина МОК
250.
Ця машина призначена для обчищання
картоплі і коренеплодів. Основними вузлами машини являються.
Корпус, робоча камера з абразивними
сегментами, з завантажувальними і розвантажувальними дверцятами, обертовий
конусний диск і абразивним покриттям, привідний механізм, пульт управління.
Робоча камера у вигляді литого
циліндричного корпуса, верхня частина якого відкрита і служить для завантаження
овочів. Вона зверху закривається кришкою. На боковій поверхні робочої камери є
люк з розгрузочним лотком і дверцятами для вигрузки овочів після очистки. В
нижній частині робочої камери є зливний патрубок і збірник відходів.
Робочим
органом машини служить закріплений на вертикальному валу конусний диск, який
покритий абразивною масою. Привід машини складається з електродвигуна і
клинопасової передачі. Двигну закріплений на плиті для запобігання попадання
води з робочої камери у привід і електродвигун встановлений спеціальний захист.
Поблизу машини встановлений пульт управління який складається з автоматичного
вимикача і наживного пускача.
В нижній частині корпуса машини є
пристрій для заземлення.
Принцип роботи: овочі при
завантаженні через верхній отвір получають обертальний рух, падаючи на
обертаючий конусний диск з абразивним покриттям і під дією цитр обіжної сили
притискається до стінок машини. За рахунок тертя в абразивній поверхні зняття
шкірочки з овочів. Відходи видаляються через зливний патрубок в каналізацію при
безперервному проступанні води.
Правила експлуатації: Перед початком
роботи виконують зовнішній огляд машини, заземлення, санітарний стан і після
цього машину включають і провіряють її на холостому ходу. Овочі повинні пройти
попередню обробку: калібрування і мийку - це сприяє кращому обчищанню овочів і
продовжують термін придатності машини. Завантажують овочі в робочу камеру тільки
після пуску машини і при подачі води в камеру. Немиті овочі забруднюють машину
і приводять до швидкого зносу абразивних елементів. Маса завантажувальної
картоплі повинна відповідати вимогам інструкції. При перевантаженні машини
погіршується якість обчищання прискорюється зношення електродвигуна, а при
недовантаженні машини збільшується кількість відходів і розхід електроенергії.
Тривалість обчищання залежить від сорту і якості картоплі, від абразивного
покриття обертаючого конуса і стінок робочої камери машини. В середньому
обчищання триває від 2-4 хв. Після закінчення обчищання не виключаючи
електродвигун відкривають дверці і овочі викидаються на підставну тару. Потім
загружають слідуючу партію картоплі. По закінченню роботи машину промивають на
холостому ходу, а корпус витирають чистою тряпкою. Під час роботи категорично
забороняється опускати руки в робочу камеру машини. До роботи на машині
допускаються особи, які закріплені за даною особою із лади екзамен по техніці
безпеки.
. Овочерізальна машина МПО 50-200.
Машини настільного типу
використовують для нарізання сирих овочів кружальцями, часточками, соломкою,
брусочками, а також можна шинкувати капусту. Ця машина складається з корпуса,
привода. Завантажуючої камери, змінних робочих інструментів.
В середині корпуса знаходиться
привід який складається з електродвигуна, клинопасова передача. Робоча камера
виконана у вигляді циліндра над яким кріпиться зйомка завантажуюча місткість
маючи вікна для завантаження овочів. В комплект машини входить дисковий ніж, два
тер очних диски, два комбіновані ножі.
Дисковий ніж використовують для
нарізання овочів, і шинкування капусти. Комбіновані ножі для нарізання
брусочками з поперечним перерізом 3х3 і 10х10 мм. Ці ножі закріплені на диску
нерухому і товщина зріза не регулюється.
. Універсальний привід МС
28-100.
Призначений для фігурної нарізки
свіжих овочів складається з: редуктора, робочої камери, завантажую чого
бункера, комплект ножових решіток.
Робоча камера механізму складається
з вертикального циліндра і відлива як одне ціле з завантжуючого воронка в
середині вертикального циліндрі рухається поршень в нижньому торці якого
находиться пластинка з пальцями для проштовхування частинок продукту в отвір
ножової решітки. Змінні ножові решітки установлюються і закріплюються знизу під
робочою камерою машини.
Правила експлуатації.
Перед початком роботи машини
звершать увагу на санітарний і технічний стан, аж потім включають машину. Овочі
призначені для обробки в машині попередньо підготовляють: сирі промивають,
великі розрізають на кілька частин, овочі завантажить
в робочу камеру тільки після включення двигуна. Заміну ножової решітки можна
виконувати тільки після повною зупинки двигуна. По закінченні роботи виключають
електропривід, розбирають змінний механізм, промивають всі його робочі частини
протирають і просушують.
. Машина для миття овочів
ММКВ 2000.
Складається із каркаса, камери
обробки з завантажувальними і розвантажувальними лотками, привідного механізму,
трубопроводу з душами, збірника брудної води. Завантажувальний лоток розміщено
у верхній частині камери обробки над першим лотком шнека. З боку камери обробки
біля останнього витка шнека розміщено розвантажувальний лоток. Привідний
механізм складається із електродвигуна та гнучкої муфти. Камера обробки
виконана у вигляді двостінного циліндра і кріпиться до каркаса за допомогою
пружин. Завдяки такому кріпленню камера одержує кручені коливання. Під камерою
розміщено збірник брудної води. Для огляду збірника брудної води передбачено
люк з дверцятами. Угорі по всій довжині камера має вікно, закрите прямокутним
коробом, над яким установлено душ. Душ живиться від водопровідної мережі. В
середині камери розміщена гвинтова лопать. В середині шнека в підшипниках
установлено вал з чотирма дисбалансами. Оскільки центр ваги зміщений відносно
осі вала, обертання вала супроводжується вібрацією робочої камери з частотою
рівною частоті обертів вала в секунду. Вал здійснює близько 24 коливань за 1 с
з невеликою амплітудою. Вал приводиться в рух двигуном за допомогою гнучкої
гумової муфти.
Принцип дії: У робочій камері овочі
здійснюють складні рухи, оскільки стикаються одні з одними зі стінками робочої
камери за рахунок вібрації машини. В результаті зіткнення тертя овочів, а також
миття струменем води з них видаляється бруд і змивається в каналізацію.
Правила
експлуатації: перед пуском машини необхідно перевірити її санітарний стан,
заземлення та апаратуру керування, надійність закріплення робочих органів,
потім перевірити роботу машини АН холостому ходу.
У
разі виявлення незвичайного шуму під час роботи машини її необхідно зупинити і
викликати особу, яка відповідає за безпечну експлуатацію даної машини для
вияснення причин неполадок.
Після ввімкнення машини, овочі
завантажують у робочу камеру, а після завантажують у робочу камеру, а після
закінчення роботи машину вимикають, очищають, миють і насухо протирають
зовнішнє облицювання робочої камери.
Картоплеочисна машина МОК 250. Ця
машина призначена для обчищання картоплі і коренеплодів. Основними вузлами
машини являються.
Корпус, робоча камера з абразивними
сегментами, з завантажувальними і розвантажувальними дверцятами, обертовий
конусний диск і абразивним покриттям, привідний механізм, пульт управління.
Робоча камера у вигляді литого
циліндричного корпуса, верхня частина якого відкрита і служить для завантаження
овочів. Вона зверху закривається кришкою. На боковій поверхні робочої камери є
люк з розгрузочним лотком і дверцятами для вигрузки овочів після очистки. В
нижній частині робочої камери є зливний патрубок і збірник відходів.
Робочим органом машини служить
закріплений на вертикальному валу конусний диск, який покритий абразивною
масою. Привід машини складається з електродвигуна і клинопасової передачі.
Двигну закріплений на плиті для запобігання попадання води з робочої камери у
привід і електродвигун встановлений спеціальний захист. Поблизу машини
встановлений пульт управління який складається з автоматичного вимикача і
наживного пускача.
В нижній частині корпуса машини є
пристрій для заземлення.
Принцип роботи: овочі при
завантаженні через верхній отвір получають обертальний рух, падаючи на
обертаючий конусний диск з абразивним покриттям і під дією цитр обіжної сили
притискається до стінок машини. За рахунок тертя в абразивній поверхні зняття
шкірочки з овочів. Відходи видаляються через зливний патрубок в каналізацію при
безперервному поступанні води.
Правила експлуатації: Перед початком
роботи виконують зовнішній огляд машини, заземлення, санітарний стан і після
цього машину включають і провіряють її на холостому ходу. Овочі повинні пройти
попередню обробку: калібрування і мийку - це сприяє кращому обчищанню овочів і
продовжують термін придатності машини. Завантажують овочі в робочу камеру
тільки після пуску машини і при подачі води в камеру. Немиті овочі забруднюють
машину і приводять до швидкого зносу абразивних елементів. Маса
завантажувальної картоплі повинна відповідати вимогам інструкції. При
перевантаженні машини погіршується якість обчищання прискорюється зношення
електродвигуна, а при недовантаженні машини збільшується кількість відходів і
розхід електроенергії. Тривалість обчищання залежить від сорту і якості
картоплі, від абразивного покриття обертаючого конуса і стінок робочої камери
машини. В середньому обчищання триває від 2-4 хв. Після закінчення обчищання не
виключаючи електродвигун відкривають дверці і овочі викидаються на підставну
тару.
Потім загружають слідуючу партію
картоплі. По закінченню роботи машину промивають на холостому ходу, а корпус
витирають чистою тряпкою. Під час роботи категорично забороняється опускати
руки в робочу камеру машини. До роботи на машині допускаються особи, які
закріплені за даною особою із лади екзамен по техніці безпеки.
Підприємства
ресторанного господарства оснащуються промисловим обладнанням для організації
обробки овочів. Продуктивність, економічність і надійність обладнання в
остаточному підсумку підвищує ефективність і рентабельність усього виробництва.
Розглянемо деякі типи обладнання, що
встановлюють в овочевому цеху, який описується в даній курсовій роботі.
. Столи з мийкою СМВ-1, СМВ-2.
Столи
СМВ-1, СМВ-2 (Рис. 1.1.) застосовуються при мийці й обробленні овочів, фруктів
і мийці посуду. Можуть використовуватися на кухнях ресторанів, в овочевих,
м'ясних, кондитерських, мийних відділеннях.
Стільниця з мийкою виготовлені з
нержавіючої сталі. Робоча поверхня столів регулюється по висоті. Маються
висувні шухляди для збереження ножів. Основні параметри і розміри столів
з мийними ваннами наведені в таблиці 1.1.
Таблиця 1.1.
|
Модель
|
СМВ-1
|
СМВ-2
|
|
Кількість мийок
|
1
|
2
|
|
Кількість висувних шухляд
|
2
|
1
|
|
Висота робочої поверхні столу, мм
|
850
|
850
|
|
Габаритні розміри, мм
|
|
Довжина
|
1500
|
1500
|
|
Ширина
|
650
|
650
|
|
Висота
|
880
|
880
|
|
Розміри ванн, мм
|
|
Довжина:
|
450
|
450
|
|
Ширина:
|
450
|
450
|
|
Висота:
|
300
|
300
|
Рис. 1.1. Столи СМВ-1, СМВ-2 з
ванною В 2.00
2. Ванни мийні В-2.00, В-2.00-01.
Ванни мийні В-2.00, В-2.00-01
призначені для миття кухонного інвентарю, посуду, овочів, фруктів. Виготовлені
з нержавіючої сталі. Мається сифон пластмасовий із пробкою. Основні параметри і
розміри наведені в таблиці 1.2.
Таблиця 1.2.
|
Модель
|
В-2.00
|
В-2.00-01
|
|
Габаритні розміри, мм
|
|
Довжина
|
660
|
660
|
|
Ширина
|
660
|
660
|
|
Висота
|
810
|
810
|
|
Глибина ванни, мм
|
400
|
|
3. Ваги
механічні настільні.
Настільні циферблатні РН-3Ц13У,
РН-6Ц13У і РН-10Ц13У (Рис. 1.2) призначені для зважування сировини і готових
страв в умовах помірного клімату при відносній вологості не більш 80%. [9]
Рис. 1.2. Ваги настільні циферблатні
РН-3Ц13У, РН-6Ц13У і
РН-10Ц13У (Тюмень)
1.3 Санітарні
вимоги та охорона праці в цеху
овочевий цех ресторан виробничий
Овочеві цехи в
закладах ресторанного господарства повинні бути забезпечені виробничим і
технологічним обладнанням, при чому матеріал з якого виготовлено обладнання,
інвентар, тара не повинні негативно впливати на продукти харчування та їх
органолептичні якості. Розміщене технічне обладнання повинне забезпечувати вільний
доступ до нього і правильну поточність виробничих процесів та забезпечення умов
дотримання правил техніки безпеки працівників підприємства, усе обладнання
повинне бути пронумерованим. Раз на тиждень робоче обладнання та інвентар, слід
дезінфікувати 0,5% розчином хлорного вапна, після чого промивати гарячою водою.
На бокових частинах обробних дошок і ножів має бути чітке маркування.
Без
маркування ножі та обробні дошки заборонено використовувати. Після роботи весь
дерев’яний інвентар потрібно мити гарячою водою з додаванням мийних засобів,
потім споліскувати гарячою водою, просушують інвентар на градчастих стелажах.
[16]
Керівництво роботою цеху на великих
підприємствах здійснює начальник цеху, а на невеликих і середніх підприємствах
- кухар-бригадир.
Начальник цеху розподіляє роботу між
членами бригади, визначає потрібну кількість сировини, види напівфабрикатів і
термін їхнього випуску.
Необхідна кількість робочої сили для
роботи в цеху розраховують у залежності від домовлених норм виробітку з
урахуванням збільшення продуктивності праці і заміни працівників у вихідні і
святкові дні. По складності і характеру виконуваних в овочевому цеху робіт
використовують працівників III і V розрядів: кухарів, виготовлювачів харчових
напівфабрикатів і кухонних робітників. Матеріальну відповідальність за
своєчасний і якісний випуск напівфабрикатів несе бригадир або начальник цеху.
При розподілі завдань варто
враховувати кваліфікацію і досвід роботи кухарів. До роботи в якості кухаря
допускаються чоловіки і жінки не молодше 18 років, які пройшли навчання по
спеціальності. На робочому місці кухар отримує первинний інструктаж по безпеці
праці і проходить стажування. При експлуатації газовикористовуючого обладнання
кухар до початку самостійної роботи зобов'язаний проти навчання безпечним
методам і прийомам виконання робіт в газовому господарстві і здати екзамен в
установленому порядку.
Підчас роботи кухар
повинен проходити:
огляд відкритих
поверхонь тіла на наявність захворювань - щорічно;
навчання безпеці
праці по діючому обладнанню - кожні 2 роки;
повторну перевірку
знань безпечних методів праці і прийомів виконання робіт в газовому
господарстві - щорічно;
перевірку знань по
електробезпеці - щорічно;
перевірку
санітарно-гігієнічних знань - щорічно;
періодичний
медичний огляд;
повторний
інструктаж по безпеці праці на робочому місці - один раз на 3 місяці.
Кожний кухар
забезпечується санітарним одягом, взуттям, засобами індивідуального захисту.
Кухар зобов'язаний коротко стригти нігті, ретельно мити руки з милом до початку
роботи і при переході від однієї операції до іншої. При приготуванні страв,
кулінарних виробів не носять ювелірні вироби, не покривають нігті лаком.
РОЗДІЛ II. ХАРАКТЕРИСТИКА ВИРОБНИЦТА
В ОВОЧЕВОМУ ЦЕХУ НА ОСНОВІ ДІЮЧОГО РЕСТОРАНУ «СКОРПІОН»
.1 Загальні відомості про
організацію виробництва в овочевому цеху ресторану
Ресторан - це місце інтенсивного
соціального спілкування. Ресторанний бізнес захоплюючий і перспективний:
правильний вибір місця і кухні, атмосфери і гарно організоване обслуговування
створюють можливості для притягнення ринку і дають гарний прибуток на
інвестиції. [12]
Збір і дослідження матеріалу для
даної курсової роботи проводився на основі діючого підприємства ресторану
«Скорпіон», який знаходиться в м. Бердичеві Житомирської області.
Даний ресторан розрахований на 100
місць. Торговельна група приміщень поділяється на дві частини: Перша - це
світла, простора зала з рівномірно розставленими столами, вишуканим інтер`єром;
друга - менша за площею зала з барною стійкою, декількома столиками і танцювальним
майданчиком. В ресторані “Скорпіон” дуже затишно і приємно.
Виробнича група приміщень
складається з заготівельних цехів та підсобних приміщень.
На даному підприємстві висота
виробничого приміщення овочевого цеху становить 3,2 метра, стіни обкладені
плиткою на висоту 1,5 метра у цеху водонепроникна підлога зі склоном для
стікання води, використовується як природне так і штучне освітлення
(люмінесцентні лампи денного освітлення). Підлога в цеху повинна бути рівною,
без виступів, не слизькою. Цех окрім вентиляції обладнаний автоматичною
установкою для кондиціювання повітря, що забезпечує не тільки потрібну
температуру, але і вологість повітря, створює хороший мікроклімат. Для
забезпечення гарного природного освітлення виробничих цехів співвідношення вікон
і підлоги повинне бути не менш чим 1:8. При штучному освітленні доцільніше
використовувати люмінесцентні лампи денного світла, тому що вони дають більш
рівномірний потік світла і менше витрачають електроенергії.
Гаряча і холодна вода підведена до
мийної ванни і раковини для миття рук. Каналізація забезпечує швидке видалення
відходів і стічних вод, всі труби сховані у підлозі і настилах.
Робоче місце - це частина
виробничого цеху, пристосованого для виконання виробничих операцій, обладнана
необхідним устаткуванням та інвентарем. Інструмент і інвентар розміщають від
працівника праворуч, а оброблюваний продукт - ліворуч. Терези, спеції і
приправи при необхідності розташовують у глибині столу на відстані витягнутої
руки, обробну дошку - перед собою. Під час роботи працівник повинний стояти
прямо, не сутулячись. Неправильне положення корпуса викликає швидку
стомлюваність. Деякі операції кухар може виконувати сидячи, тому в кожному цеху
необхідно установити високі табурети. [4]
Площа кожного робочого місця повинна
бути зручною для роботи. Овочевий цех призначений для виробництва готових страв
і напівфабрикатів з різних видів овочів, а також для механічної обробки різних
видів овочів. Цей цех розміщений поблизу м’ясо-рибного і гарячого цехів, проте
віддалено від цеху для готової продукції. Досліджений овочевий цех працює в дві
зміни.
Якість роботи овочевого цеху багато
в чому залежить від правильної організації робочих місць, від обладнання їх
устаткуванням, посудом та інвентарем.
На даному підприємстві в овочевому
цеху розміщене обладнання і устаткування, що повністю забезпечує виконання
виробничої програми та зручно розташоване для кращої роботи працівників.
Перелік обладнання та устаткування наведено в таблиці 2.1.
Таблиця 2.1.
Таблиця
переліку обладнання в овочевому цеху
|
Назва обладнання
|
Кількість, шт.
|
Марка, тип
|
|
1. Виробничі столи
|
2
|
СПСМ-3
|
|
2. Ванна мийна
|
1
|
ВМ-1
|
|
3. Стелаж для інвентарю
|
1
|
|
|
4. Стелаж
|
1
|
|
|
5. Овочерізка
|
1
|
«Слайсер»
|
|
6. Раковина
|
1
|
|
|
7. Ваги настільні (циферблатні)
|
1
|
ВН-у1013
|
|
8. Бак для сміття
|
1
|
|
Важливий також правильний підбір
посуду за обсягом виробництва та призначенням. Посуд зберігається на решіткових
стелажах або на поличках. В овочевому цеху використовуються кухонні ножі для
чищення та нарізання овочів, обробні дошки. Виробничі столи оснащені також
вбудованими ваннами.
Для безпечності роботи в овочевому
цеху робітники кухні повинні вивчати правила експлуатації механічного
устаткування і отримати практичний інструктаж у завідуючого виробництвом.
Підлога в цеху повинна бути рівною,
без виступів, не слизькою. Температура в цеху не повинна перевищувати 26 0С.
На виробництві повинна обов`язково бути аптечка з набором медикаментів.
Кількість поварів визначається
потужністю підприємства. Асортимент страв і закусок вимагає високої
кваліфікації робітників.
Повара виконують певний обсяг робіт,
що забезпечує їх рівномірне навантаження протягом робочого дня.
У цехах ресторану «Скорпіон» штат
робітників складається з 10 чоловік. З них - 4 робітника у гарячому цеху, 2
робітника у м’ясо-рибному і 2 робітника в овочевому цехах. У гарячому цеху
працює 4 повари IV і ІІІ розряду. У м’ясо-рибному і овочевому цехах робітники
IV розряду. На митті посуду працює 2 робітника.
Режим
праці поварів відображається двобригадним графіком. Тобто перший день у цехах
працює 3 повари IV розряду, повар ІІІ розряду і мийник посуду, які працюють
повну зміну. Другого дня вони не виходять на роботу, а працюють чотири інші
повара і мийник посуду. Графік виходу на роботу робітників на тиждень наведено
в таблиці 2.2.
Таблиця 2.2.
Графік
виходу на роботу робітників овочевого цеху на тиждень
|
Посада
|
Розряд
|
Дні тижня
|
|
|
Понеділок
|
Вівторок
|
Середа
|
Четвер
|
П`ятниця
|
Субота
|
Неділя
|
|
Кухар
|
IV
|
В
|
В
|
10.00-24.00
|
В
|
10.00-24.00
|
В
|
10.00-24.00
|
|
Кухар
|
IV
|
В
|
В
|
10.00-24.00
|
В
|
10.00-24.00
|
В
|
10.00-24.00
|
|
Кухар
|
IV
|
В
|
В
|
10.00-24.00
|
В
|
10.00-24.00
|
В
|
10.00-24.00
|
|
Кухар
|
IV
|
В
|
10.00-24.00
|
В
|
10.00-24.00
|
В
|
10.00-24.00
|
В
|
|
Кухар
|
IV
|
В
|
10.00-24.00
|
В
|
10.00-24.00
|
В
|
10.00-24.00
|
В
|
|
Кухар
|
IV
|
В
|
10.00-24.00
|
В
|
10.00-24.00
|
В
|
10.00-24.00
|
В
|
|
Кухар
|
ІІІ
|
В
|
В
|
10.00-24.00
|
В
|
10.00-24.00
|
В
|
10.00-24.00
|
|
Кухар
|
ІІІ
|
В
|
10.00-24.00
|
В
|
10.00-24.00
|
В
|
10.00-24.00
|
В
|
|
Мийн./пос
|
ІІ
|
В
|
В
|
10.00-24.00
|
В
|
10.00-24.00
|
В
|
10.00-24.00
|
|
Мийн./пос
|
ІІ
|
В
|
10.00-24.00
|
В
|
10.00-24.00
|
В
|
10.00-24.00
|
В
|
|
|
|
|
|
|
|
|
|
|
|
Ресторан працює з 10.00 години ранку
до 24.00 години вечора щодня, крім понеділка.
Повари
виконують основну роботу щодо приготування беспосередньо самих страв, а також
очистки харчових продуктів, нарізки, порціонування.
Перерва
на обід у ресторані з 16.00 до 17.00 години.
Перерва на обід робітників складає
30 хвилин.
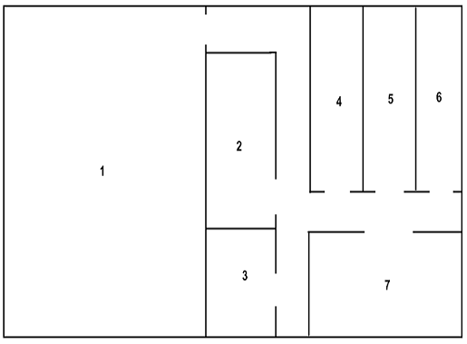
2.2 План-схема підприємства
В досліджуваному ресторані виробничі
приміщення розміщені окремо від торговельних приміщень і утворюють групу цехів.
Виробничі групи приміщень забезпечують найкоротші зв’язки між ними без
перетинання потоків відвідувачів і обслуговуючого персоналу, чистого і
використаного посуду, напівфабрикатів, сировини і відходів. Групи приміщень
розташовані компактно, що передбачають можливість перепланування приміщень у
зв’язку зі зміною технологій виробництва. Компонування всіх груп приміщень відповідають
санітарним і протипожежним правилам. Виробничі приміщення непрохідні, вхід до
них окремий, а торговельні зали мають вхід з вулиці міста.
Схему виробничих приміщень та
торговельного залу ресторану «Скорпіон» наведено на рисунку 2.1.
Рис. 2.1. Схема розміщення приміщень
ресторану
Специфікація приміщень
. Торговельний зал;
. Цех готової продукції;
. Підсобні приміщення;
. Мийна кухонного посуду;
. М’ясо-рибний цех;
. Овочевий цех;
. Гарячий цех.
В даній роботі досліджується
овочевий цех. На даному підприємстві він розміщується біля м’ясо-рибного цеху і
напроти гарячого цеху, що значно сприяє підвищенню продуктивності праці
робітників. Схема овочевого цеху та розміщення в ньому обладнання показано на
рисунку 2.2.
Рис. 2.2. Схема розміщення
обладнання в овочевому цеху
Обладнання овочевого цеху
, 2. Столи виробничі
. Ванна мийна
. Ваги настільні
. Стелаж для інвентарю
. Стелаж
. Раковина для миття рук
. Бак для сміття
. Овочерізка
.3 Аналіз роботи овочевого цеху
Дослідження трудових процесів
проводиться з метою визначення структури затрат робочого часу, раціоналізації
методів і прийомів праці, виявлення причин невиконання норм, нераціональних
затрат і витрат робочого часу.
Залежно від мети дослідження ступені
обсягу і змісту затрат, користуються різними методами. Для даної курсової
роботи ми використовували метод спостереження та фотографії робочого дня, тобто
вивчили використання робочого часу шляхом вимірювання всіх його витрат протягом
робочого дня кухаря (протягом всієї зміни).
Фотографія робочого часу вимагає
декілька етапів: підготовку до спостереження, його проведення, обробку даних.
При індивідуальній фотографії
робочого часу в місті фіксуються всі дії виконавця і перерви в роботі. У графі
«Поточний час» представляється час закінчення елементів робочого часу.
У процесі аналізу фактичної витрати
праці зрівнюються з нормативними. Після цього складається фактичний і
нормативний баланси витрат робочого часу. Фотографію
робочого часу в даній роботі представлено на основі спостережень за роботою
кухаря IV розряду, який працює в овочевому цеху.
Кухар
працює цілу зміну, приходить на роботу о 10.00 годині ранку і працює до 23
години 30 хвилин вечора.
Виділяють наступні витрати робочого
часу: підготовно-заключні, оперативні, витрати часу на обслуговування робочого
місця, регламентовані і нерегламентовані перерви.
Для кожного з видів витрат робочого
часу встановлено умовне позначення - індекс.
Час підготовно-заключної роботи (ТПЗ)
призначений для підготовки виконання завдань, а також виконання дій, пов`язаних
з закінченням роботи. Оперативний час (ТОП) містить в собі основний
і допоміжний. Основний технологічний час (ТО) визначається на дії,
спрямовані на кількісні і якісні зміни стану продуктів, які обробляються, він
повторюється при виготовленні кожної одиниці продукції. Він включає час на
механічну обробку сировини і напівфабрикатів, контроль за ходом технологічного
процесу, виготовлення і порціонування страв та виробів.
Час обслуговування робочого місця (ТОБ)
включає витрати часу на прибирання робочого місця, підтримання устаткування,
інструментів у належному робочому і санітарно-гігієнічному стані.
Час перерв - це час, протягом якого
робітник не приймає участі у виробничому процесі. Він поділяється на час
регламентованих і нерегламентованих перерв.
До складу регламентованих перерв
входить час на відпочинок, особисті потреби (ТОТП), а також час
перерв, які обумовлені технологією і організацією виробництва (ТПТ).
До
складу нерегламентованих перерв входять перерви з організаційно-технічних
причин (ТПОТ), тобто час на пошук посуду, інвентарю, простої через
відсутність води, електроенергії, час на заміну спецодежі, простої через
несчасні випадки та інші. Час простоїв через порушення трудової дисципліни
включає (ТПНД): час на розмови під час роботи, ходіння, не пов`язане
з роботою, простої через порушення правил техніки безпеки та інші.
Розрахуємо
затрати часу на приготування страв, зобразивши усі операції у фотографії
робочого дня кухаря.
Для складання виробничої програми
овочевого цеху необхідні такі дані: асортимент продукції, що випускається;
технічна оснащеність підприємства; асортимент і кількість продукції, необхідної
для цього цеху.
Оперативне планування виробництва
здійснюється у певній послідовності, тому на кожній стадії необхідно створювати
певні організаційні умови, що сприяють правильній організації технологічного
процесу, раціональній організації праці, чіткому виконанню кожним працівником
своїх обов’язків.
Першим етапом оперативного
планування є складання планового меню, наявність якого дає можливість
забезпечити різноманітність страв по днях тижня, уникнути повторень,
забезпечити чітку організацію постачання виробництва сировиною і
напівфабрикатами, вчасно направляючи заявки на оптові фірми, промислові
підприємства, правильно організувати технологічний процес приготування страв і
роботу працівників. У плановому меню вказується асортимент і кількість страв
кожного найменування, які можуть бути приготовлені на даному підприємстві по
днях тижня або декади. При складанні планового меню враховуються кваліфікація
кухарів, споживчий попит, можливості постачання сировини і сезонність, технічне
оснащення підприємства.
Для складання меню необхідно
розрахувати кількість споживачів за один день роботи ресторану. Для цього
складемо таблицю та графік завантаження залу. Враховуюєм режим роботи
підприємства, кількість відвідувачів за кожну годину роботи визначимо за формулою:
Nч = Р · φч
· хч / 100, (2.1)
де Nч - кількість
відвідувачів за годину;
Р - місткість залу;
φч
- обертаємість місця в залі протягом
години;
хч - завантаженість залу
за годину, %
Розрахувавши кількість відвідувачів
за кожну годину роботи закладу, можна оформити таблицю 2.3.
Таблиця 2.3.
Таблиця
завантаження залу
|
Години роботи
|
Кількість посадок за годину
|
Коефіцієнт завантаження залу
|
Кількість споживачів
|
|
10.00-11.00
|
1,5
|
50
|
75
|
|
11.00-12.00
|
1,5
|
60
|
90
|
|
12.00-13.00
|
1,5
|
90
|
135
|
|
13.00-14.00
|
1,5
|
100
|
150
|
|
14.00-15.00
|
1,5
|
90
|
135
|
|
15.00-16.00
|
1,5
|
60
|
90
|
|
16.00-17.00
|
0,4
|
50
|
20
|
|
17.00-18.00
|
0,4
|
50
|
20
|
|
18.00-19.00
|
0,4
|
50
|
20
|
|
19.00-20.00
|
0,4
|
100
|
40
|
|
20.00-21.00
|
0,4
|
100
|
40
|
|
21.00-22.00
|
0,4
|
100
|
40
|
|
22.00-23.00
|
0,4
|
80
|
32
|
|
23.00-24.00
|
0,4
|
80
|
32
|
|
Кількість відвідувачів за день
|
919
|
Рис.2.3. Графік завантаження залу
До основних факторів, які необхідно
враховувати при складанні меню, належать: приблизний асортимент продукції,
рекомендований для підприємств ресторанного господарства залежно від його типу
і виду наданого раціону, наявність сировини і її сезонність.
Приблизний асортимент страв
(асортиментний мінімум) - це певна кількість найменувань холодних, гарячих
страв, напоїв, характерних для ресторану. Знаючи
кількість відвідувачів за день, можна визначити кількість страв, що
реалізуються протягом дня в закладі за формулою:
nд = Nд∙ m, (2.2)
де nд - кількість страв;д -
кількість відвідувачів за день;- коефіцієнт споживання страв.
Визначення кількості холодних,
перших, других, солодких страв здійснюється відповідно до норм споживання, що
діють в даному типі ресторанного господарства. Отримані результати зведемо в
таблиці 2.4.
Таблиця2.4.
Кількість
споживання страв
|
№ з/п назв страв
|
Кількість споживачів
|
Коефіцієнт споживання
|
Кількість страв
|
|
1. Холодні страви
|
919
|
1,1
|
1011
|
|
2. Перші страви
|
919
|
0,7
|
643
|
|
3. Другі страви
|
919
|
1,4
|
1286
|
|
4. Солодкі страви
|
919
|
0,3
|
276
|
|
5. Гарячі напої
|
919
|
0,05
|
46
|
|
6. Холодні напої
|
919
|
0,25
|
230
|
|
РАЗОМ
|
3492
|
Кількість окремих видів страв кожної
групи та видів напоїв встановлюється в меню на основі накопиченого досвіду
роботи підприємства, з урахуванням характеру споживчого попиту (табл.2.5). Для
розрахунку реалізації страв і напоїв ми використовуємо меню ресторану та
таблицю завантаження залу. Меню ресторану «Скорпіон» наведено в Додатку Б.
Таблиця2.5.
Таблиці
реалізації страв і напоїв
|
Назва страви
|
Вихід, (г)
|
Кількість страв
|
|
1. Асорті сирне
|
200
|
78
|
|
2. Асорті овочеве
|
200
|
67
|
|
3. Сьомга слабо солена
|
140
|
68
|
|
4. Оселедець по-домашньому
|
120
|
99
|
|
5. Язик відварений
|
120
|
71
|
|
6. Рулетики з шинки
|
110
|
71
|
|
7. Рулетики з баклажанів
|
110
|
50
|
|
8. Салат "Все що вдома було"
|
200
|
68
|
|
9. Салат "Грецький"
|
200
|
46
|
|
10. Салат "Цезар"
|
170
|
47
|
|
11. Салат із свіжих овочів
|
200
|
70
|
|
12. Салат "Олів’є з куркою"
|
200
|
67
|
|
13. Венігрет овочевий
|
200
|
75
|
|
14. Салат "Казковий ліс"
|
200
|
32
|
|
15. Салат "М’ясний"
|
180
|
102
|
|
Всього
|
|
1011
|
|
1. Суп з локшиною курячий з помідорами
|
250
|
152
|
|
2. Борщ український
|
250
|
135
|
|
3. Солянка м’ясная збірна
|
250
|
120
|
|
4. Суп-пюре грибний
|
250
|
107
|
|
5. Розсольник домашній
|
250
|
129
|
|
Всього
|
|
643
|
|
Млинці з ікрою
|
150
|
26
|
|
Млинці з сметаною
|
150
|
52
|
|
Гарячий сендвіч
|
150
|
61
|
|
Грінки з часником
|
100
|
36
|
|
Пельмені з м’ясом
|
200
|
81
|
|
Вареники з картоплею
|
200
|
26
|
|
Яловичина в шинці
|
150
|
45
|
|
Овочеве рагу з яловичиною
|
200
|
37
|
|
Яловичина по-домашньому
|
220
|
15
|
|
Відбивна із свинини
|
130
|
82
|
|
Свинина на кісточці
|
250
|
28
|
|
Судак в клярі
|
160
|
12
|
|
Риба смажена
|
150
|
32
|
|
Стейк з лосося
|
150
|
20
|
|
Курячі крильця
|
150
|
43
|
|
Птиця смажена в фритюрі
|
150
|
47
|
|
17. Картопля фрі
|
120
|
150
|
|
Картопля по-селянськи
|
120
|
97
|
|
Рис відварний
|
100
|
98
|
|
Овочі гриль
|
120
|
87
|
|
Картопляне пюре
|
150
|
138
|
|
Рагу овочеве
|
250
|
73
|
|
Всього
|
|
1286
|
|
1. Морозиво в асортименті
|
130
|
83
|
|
Свіжі фрукти з морозивом
|
160
|
82
|
|
Салат фруктовий
|
200
|
75
|
|
Млинці з бананом
|
200
|
36
|
|
Всього
|
|
276
|
|
Вода мінеральна «Миргородська»
|
600
|
45
|
|
«Пепсі»
|
330
|
23
|
|
«Фанта»
|
330
|
20
|
|
«Спрайт»
|
330
|
19
|
|
Апельсиновий
|
250
|
28
|
|
Виноградний
|
250
|
25
|
|
Грейпфрутовий
|
250
|
20
|
|
Яблучний
|
250
|
35
|
|
Томатний
|
250
|
15
|
|
Всього
|
|
230
|
|
1. Чай чорний «Ліптон»
|
400
|
6
|
|
2. Чай зелений «Ліптон»
|
400
|
7
|
|
3. Чай чорний «Грінфілд»
|
400
|
4
|
|
4. Чай зелений «Грінфілд»
|
400
|
7
|
|
5. Чай фруктовий «Грінфілд»
|
400
|
3
|
|
6. Кава «Еспрессо»
|
50
|
5
|
|
7. Кава «Амерікано»
|
150
|
6
|
|
8. Кава «Мокко»
|
150
|
2
|
|
9. Кава «Латте»
|
150
|
6
|
|
Всього
|
|
46
|
На основі меню ресторану розрахуємо
необхідну кількість сировини, яку обробляють в овочевому цеху. Дані наведені в
Додатку В.
Розрахунок робочої сили в цеху
здійснюється на основі виробничої програми цеху та норм часу для приготування
страв кожного виду, що зазначені в плані-меню цеху. Розрахунок здійснюється за
формулою:
N1 = n ∙ Нвр / 3600 ∙
Тсм ∙ λ,
(2.3)
де n - кількість страв, що
виготовляється за день (шт., кг, страв);
Нвр - норма часу на виготовлення
одиниці вироби;см - тривалість зміни, год (T = 7-7,2 або 8-8,2 год);
λ -
коефіцієнт, що враховує зростання продуктивності праці (λ
=1,14).
Розрахунок робочої сили зводиться в
таблицю 2.6.
Таблиця 2.6.
Розрахунок
робочої сили для овочевого цеху
|
Назва страв
|
Кількість страв
|
Норма часу
|
Кількість працівників
|
|
Асорті сирне
|
78
|
110
|
0,14
|
|
Асорті овочеве
|
67
|
100
|
0,11
|
|
Оселедець по-домашньому
|
99
|
130
|
0,22
|
|
Рулетики з баклажанів
|
50
|
190
|
|
Салат "Все що вдома було"
|
68
|
200
|
0,23
|
|
Салат "Грецький"
|
46
|
190
|
0,15
|
|
Салат "Цезар"
|
47
|
170
|
0,13
|
|
Салат із свіжих овочів
|
70
|
120
|
0,14
|
|
Салат "Олів’є з куркою"
|
67
|
150
|
0,17
|
|
Венігрет овочевий
|
75
|
110
|
0,14
|
|
Салат "Казковий ліс"
|
32
|
160
|
0,09
|
|
Салат "М’ясний"
|
102
|
190
|
0,33
|
|
Суп з локшиною курячий з помідорами
|
152
|
150
|
0,39
|
|
Борщ український
|
135
|
200
|
0,46
|
|
Солянка м’ясная збірна
|
120
|
180
|
0,37
|
|
Суп-пюре грибний
|
107
|
150
|
0,27
|
|
Розсольник домашній
|
129
|
170
|
0,38
|
|
Овочеве рагу з яловичиною
|
37
|
280
|
0,18
|
|
Картопля фрі
|
150
|
110
|
0,28
|
|
Картопля по-селянськи
|
97
|
110
|
0,19
|
|
Рис відварний
|
98
|
30
|
0,05
|
|
Овочі гриль
|
87
|
100
|
0,15
|
|
Картопляне пюре
|
138
|
120
|
0,28
|
|
Рагу овочеве
|
73
|
250
|
0,31
|
|
РАЗОМ
|
5,32
|
Передбачається, що в овочевому цеху
буде працювати 5 робітників. Проте в досліджуваному ресторані в цеху працює 1
робітник 14 годин, але через день. Отже можна зробити висновок, що для
підвищення продуктивності праці, забезпечення швидкого приготування страв та
кращого обслуговування споживачів потрібно збільшити кількість працівників в
овочевому цеху.
Виходячи з виробничої програми
ресторану, кількості працівників в овочевому цеху та розміщення обладнання
можна розрахувати площу цеху. В овочевому цеху миють і нарізають обчищені
картоплю, коренеплоди, ріпчасту цибулю, капусту, а також здійснюють обробку
сезонних овочів (зеленої цибулі, огірків і томатів). Механічним способом
нарізають: картоплю, моркву, буряки, капусту білоголову, цибулю ріпчасту. У
зв’язку з особливостями технології приготування деяких страв картоплю і капусту
також нарізають вручну. Для нарізування овочів в ресторані використовують
овочерізку «Слайсер». Виробничі столи, мийні ванни та стелажі підбирають
залежно від кількості працівників в овочевому цеху. Спочатку розраховуємо
корисну площу овочевого цеху, яка зайнята обладнанням, складаючи його
специфікацію в вигляді таблиці 2.7.
Таблиця 2.7.
Розрахунок
загальної площі овочевого цеху
|
Обладнання
|
Кількість обладнання
|
Габаритні розміри, в м (довжина)
|
Габаритні розміри, в м (ширина)
|
Площа, яку займає обладнання, в м2
|
|
Виробничі столи
|
2
|
1,26
|
0,84
|
2,12
|
|
Ванна мийна
|
1
|
0,84
|
0,84
|
0,7
|
|
Стелаж для інвентарю
|
1
|
1,6
|
0,84
|
1,06
|
|
Стелаж
|
1
|
1,26
|
0,84
|
1,06
|
|
Овочерізка (настільна)
|
1
|
-
|
-
|
|
|
Раковина
|
1
|
0,5
|
0,4
|
0,2
|
|
7. Ваги настільні
|
1
|
-
|
-
|
|
|
РАЗОМ
|
5,14
|
На основі цих розрахунків тепер
можна розрахувати площу цеху за формулою:
Sзаг= Sкор /k,
(2.4)
де k=0,4-0,6 - коефіцієнт
використання цеху; Sзаг
- загальна площа цеху; Sкор
- корисна площа цеху. Sзаг=
5,14/0,4=12,85 м2
Отже за розрахунками овочевий цех
має бути 12,85м2 , а овочевий цех досліджуваного ресторану 15м2
. Тому в даному цеху є вільне місце для зберігання денного запасу
сировини та розміщення в разі потреби додаткового обладнання.
РОЗДІЛ III. МЕТОДИ ВДОСКОНАЛЕННЯ
РОБОТИ ОВОЧЕВОГО ЦЕХУ РЕСТОРАНУ «СКОРПІОН»
Проаналізувавши усі розрахунки по
роботі овочевого цеху діючого ресторану можна сказати, що незважаючи на якісну
роботу персоналу та гарне обслуговування споживачів, організація роботи
досліджуваного цеху має деякі недоліки. Це свідчить про те, що виробничі
підрозділи підприємства потрібно постійно удосконалювати. Для підвищення
продуктивності роботи цеху та покращення умов праці робітників в даному цеху
потрібно зробити більш механізованим процес обробки овочів. Для цього в
овочевому цеху не вистачає картоплечисної машини, машини для миття овочів та
універсального приводу з овочерізкою. Закупка цього обладнання значно
прискорить процес приготування страв та зменшить навантаження для працівників.
Також недоліком є те, що в овочевому цеху працює лише один кухар за зміну, хоча
за розрахунками їх повинно бути п’ять. Отже в овочевий цех потрібна більша
кількість кухарів для прискорення виконання виробничої програми.
Існує багато шляхів вдосконалення
існуючої організації виробництва в цехах. При розробці виробничого процесу чи
його удосконаленні важливе місце займає вибір технологічного процесу
приготування напоїв, кондитерських і кулінарних виробів, визначення
послідовності і змісту операцій, підбір відповідного технологічного оснащення,
нормування витрат сировини і напівфабрикатів, а також часу приготування
продукції, виявлення можливості механізації та автоматизації процесів,
оформлення необхідної технологічної документації. До технологічної документації
входять технологічні карти приготування страв, кондитерських і кулінарних
виробів, технологічні інструкції виготовлення виробів, умов їх зберігання,
транспортування, контролю якості; карти технологічного несу, в яких описується
послідовність виготовлення продукції, технологічний режим обробки сировини,
вказується використане обладнання, час на приготування продукції, обсяги
використаної сировини. Одним
із шляхів вдосконалення існуючої організації виробництва в цехах є більш
раціональне розміщення виробничих приміщень. Тобто повинен бути зручний зв¢язок
між гарячим і холодним цехом як самих по собі, так і зв¢язок
їх з іншими цехами: м¢ясо-рибним,
овочевим, камерою зберігання зелені і фруктів, з мийною столового посуду і
кухонного інвентарю. Повинен існувати чіткий зв¢язок
з роздатковою і безпосередньо із залом.
Другим напрямком являється
механізація як основних трудомістких робіт, так і як можна в більшій ступені
механізації всіх інших робіт. На сучасному етапі ресторани здійснюють перехід
до більш механізованого виробництва, але багато хто не зробив ще навіть перший
крок. Наприклад доцільно замінити ручну працю по нарізуванню овочів на машинну
нарізку цієї сировини, що дозволить не тільки скоротити час на проведення цих
операцій, але й значно підвищить продуктивність праці. Також механізація праці
дозволить скоротити штат робітників до лише необхідного, що позначиться на
економічних показниках підприємства. Обмеження і недоліки механізації полягають
у тому, що вона потребує значних коштів, може бути використана при значних
обсягах випуску продукції. Крім того, механізми менш гнучкі ніж люди, задіяні у
традиційній виробничій системі. Проте гнучкі системи або обладнання можуть бути
більш дорогими і менш ефективними, ніж менш гнучкі, тому необхідно спершу
оцінити ситуацію і визначити реальну потребу у використанні переваг гнучкості.
[19]
Важливе значення для організації
умов також модернізація обладнання та заміна старого устаткування на нове, яке
значно відрізняється за продуктивністю від старого. Переваги нового
устаткування являються у зручності його в користуванні, зручних розмірах,
більшою продуктивністю. Раціональним являється використання технологічних
ліній, тобто де все необхідне устаткування встановлено в порядку виконання
операцій, їх почерговності при приготуванні тих чи інших страв.
Важливе значення для організації має
нормування праці, тобто її вдосконалення. Це передбачає поширення галузі
нормування, використання технічно обумовлених нормативів часу і чисельності,
розробку норм часу на виробництво виробів на базі впровадження прогресивної
технології і організування виробництва.
Шляхом вдосконалення організації
виробництва являється також покращення умов праці робітників. Сюди входить
механізація робіт, використання підйомно-транспортних механізмів і засобів
малої механізації.
Необхідно використовувати сучасні
системи вентиляції і кондиціонування повітря, проводити профілактичне очищення
вентиляційних систем, плафонів, світильників і віконного скла; зменшувати чи
геть видаляти шум від устаткування за допомогою спеціальних шумовбираючих
пристроїв, проводити у відповідність до санітарних норм освітлення, покращувати
побутові умови.
Важливий вплив на підвищення
працездатності дає використання раціонального режиму праці і відпочинку, що
проявляється у розробці різних видів графіків виходу на роботу. [20]
Для успішного впровадження
пропозицій про зміни необхідно переконати керівництво в їх необхідності і
заручитися підтримкою робітників. Важливо по ходу процесу удосконалення
консультуватися з робітниками, які стають співучасниками реорганізації, що
значно полегшить впровадження запропонованих удосконалень. Якщо запропонований
метод виробництва докорінно відрізняється від попереднього, то необхідно
організувати навчання робітників. Важливе значення має контроль за
впровадженням для того, щоб виявити, чи функціонує метод виробництва так, як
запроектовано. При необхідності провести додаткові консультації робітників.
Також дуже важливим є забезпечення
нормальних умов роботи кухарів, адже саме від них буде залежати якість
виробленої продукції. Тому потрібно більшу увагу приділяти
санітарно-гігієнічним факторам, до яких відносять мікроклімат (температуру,
вологість, швидкість руху повітря), освітленість, шум, зміст шкідливих речовин
у повітряному середовищі.
Доведено, що зменшити несприятливий
вплив підвищеної температури, високої вологості повітря, харчових запахів,
понизити рівень шуму можна за допомогою кольору. Рекомендації щодо цього
вказані в таблиці 3.1.
Таблиця 3.1
|
Фактори виробничого середовища
|
Кольори, які допомагають зменшити вплив цих
факторів
|
|
Висока температура повітря чи рівень шуму
|
Синій, блакитний, зелений
|
|
Висока вологість повітря
|
Жовто - коричневий
|
|
Кислі запахи
|
Синій
|
|
Солодкі запахи
|
Зелений
|
Згідно таких рекомендацій якщо в
цеху постійно підвищена температура, то стіни викрашені в «холодні» кольори. Це
ж стосується і обладнання. Це постійно знижує температуру на 1-20С.
Не рекомендується використовувати жовтогарячий і червоний кольори, котрі хоч і
стимулюють фізичну працю, але створюють відчуття тепла. Психофізіологічні
фактори визначають фізичну і нервово-психологічну напругу, режим праці і
відпочинку, робочу позу, психологічний клімат в колективі та інше.
Отже, з подальшим розвитком
суспільства і науково-технічним прогресом, все потребує вдосконалення. Не
виняток і заклади ресторанного господарства та організація виробництва в його
цехах. Вдосконалюючи організацію виробництва, впроваджуючи нові технології, ми
не тільки крокуємо в ногу з науково-технічним прогресом і часом, але й
розкриваємо широкі можливості для приваблення споживача і задоволення його потреб.
ВИСНОВКИ І ПРОПОЗИЦІЇ
Отже, проаналізувавши усе
вищевикладене, можна зробити наступні висновки та узагальнення.
Специфіка роботи закладів
ресторанного господарства дозволяє визначити деякі загальні вимоги до
виробничих приміщень ресторанів і організації робочих місць на виробництві.
При розміщенні виробничих приміщень
дотримується вимога послідовності здійснення стадій технологічного процесу.
Це дає можливість більш раціонально
організувати працю працівників і ліквідувати зустрічні потоки сировини й
готової продукції.
В овочевому цеху здійснюються
первинна обробка овочів і виготовлення овочевих напівфабрикатів. При
організації роботи овочевого цеху необхідно строге дотримання правил охорони
праці й техніки безпеки.
Ресторан "Скорпіон"
пропонує великий вибір страв. Ресторан розрахований на 100 посадкових місць. В
ресторані більшість технологічних процесів є автоматизованими. Для поліпшення
технологічних процесів у ресторані „Скорпіон” нами було надано ряд
рекомендацій.
На нашу думку, немаловажним фактором,
що визначає характеристику виробничого процесу, є перехід на роботу з
напівфабрикатами.
Комплексне постачання ресторану
напівфабрикатами створить можливості для найбільш раціонального використання
технологічного устаткування, підвищення продуктивності праці, більш вузької
спеціалізації працівників, дозволяє скоротити процес готування їжі, знизити
витрати виробництва.
Оптимальна площа виробничих
приміщень, їхнє раціональне розміщення й забезпечення виробничих цехів
необхідним устаткуванням - основні умови правильної організації технологічного
процесу готування їжі.
Велике значення для правильної
організації праці працівників ресторану має продумане розміщення на робочому
місці інструментів. Більші переваги в ресторані при організації робочих місць кухарів,
що готують страви дасть використання секційного устаткування з лінійним
розміщенням.
Таким чином, запропоновані
рекомендації допоможуть ресторану „Скорпіон” поліпшити технологічний процес
надання послуг харчування, що позитивно відіб’ється на загальній роботі
ресторану.
СПИСОК ВИКОРИСТАНИХ ДЖЕРЕЛ
1. Збірник
рецептур і кулінарних виробів. / А.І.Здобнов, В.А.Циганенко. - К.: Видавництво
«Арій», 2010. - 680с.
. Аграновський
Є.Д. Організація виробництва в громадському харчуванні. - М.:1980р.
. Андрианов
П.И. - «Организация общественного питания», - М, «Экономика», - 1983.
4. Архіпов В.В. Організація
ресторанного господарства. Навчальний посібник. - К.: ЦНЛ, 2007. - 280с.
. Архіпов В.В., Іванникова
А.В. Ресторанна справа: асортимент, технологія і управління якістю продукції в
сучасному ресторані. Навчальний посібник. - К.: ЦНЛ, 2007. - 382с.
. Беляев М.И. и др.
«Индустриализация технологии производства продукции общественного питания», -
М, «Экономика», - 1986.
. Бородіна В.В.
Ресторанно-гостинний бізнес. - М.: 2002р.
. Громадське харчування і
туристична індустрія в ринкових умовах. - К.: 2001р.
. Механічне устаткування в
закладах громадського харчування. - К. 2001р.
. Литвиненко Т.Є. Організація
виробництва у громадському харчуванні: Опорний конспект лекцій. - К.: КНТЕУ,
2002.
. Нечаю Л.І.
Готельно-ресторанний бізнес: менеджмент.- К.: ЦУЛ, 2006.
. Пятницька Н.А. Организація
виробництва і обслуговування в громадському харчуванні. Практикум: Навч. посіб.
для вузів. - К.: Вища школа, 1989.
. П’ятницька Г.Т. Менеджмент
громадського харчування. - К.: 2001р.
. Рестораторь. Періодичне
видання, №7-8, 2005.
. Сало Я.М. Ресторанна
справа.-К.: ЦУЛ, 2005.
. Світлична М.Л. Організація
виробництва і обслуговування в підприємствах громадського харчування. - К.:
2001р.
. Труханович Л.В., Рюмина
А.К. Кадри ресторанов, закусочних, столовых, баров, кафе. Сборник должностных и
производственннх инструкций, квалификационных характеристик. - М.: Финпресс,
2003.
. Шаповалов Н.Н. «Организация
работы предприятий», - М, «Экономика», - 1990.
19. <http://www.restaurator.ru>
. <http://www.pressa.spb.ru>
ДОДАТКИ
Додаток А
Фотографія робочого дня кухаря IV
розряду
|
№
|
Найменування операцій,
|
Поточний час
|
Тривалість хв.
|
Індекс
|
|
елементів
|
год.
|
хв.
|
|
|
|
|
|
|
|
|
|
Початок роботи
|
16
|
00
|
-
|
-
|
|
1
|
Прийом робочого місця
|
16
|
20
|
5
|
Тпз
|
|
2
|
П`є чай
|
16
|
25
|
6
|
Тотл
|
|
3
|
Миє руки
|
16
|
31
|
2
|
Тпз
|
|
4
|
Приносить сировину
|
16
|
33
|
2
|
Тд
|
|
5
|
Очищує овочі
|
16
|
35
|
14
|
То
|
|
6
|
Нарізає варені овочі і огірки
|
16
|
49
|
12
|
То
|
|
7
|
Перекладає їх у миски
|
17
|
01
|
1
|
Тд
|
|
8
|
Звільняє краби від упаковки
|
17
|
02
|
3
|
Тд
|
|
9
|
Нарізає краби
|
17
|
05
|
7
|
То
|
|
10
|
Перекладає у миску
|
17
|
12
|
1
|
Тд
|
|
11
|
Миє руки
|
17
|
13
|
1
|
Тобсл
|
|
12
|
Відкриває майонез
|
17
|
14
|
2
|
Тд
|
|
13
|
Змішує компоненти
|
17
|
16
|
3
|
То
|
|
14
|
Розділяє салат на частини
|
17
|
19
|
1
|
Тд
|
|
15
|
До однієї частини додає майонез
|
17
|
20
|
1
|
То
|
|
16
|
Перемішує салат
|
17
|
21
|
2
|
То
|
|
17
|
Розділяє на порції
|
17
|
23
|
4
|
То
|
|
18
|
Ставить у холодильник незаправлений салат
|
17
|
27
|
2
|
То
|
|
19
|
Прибирає робоче місце
|
17
|
29
|
3
|
Тобсл
|
|
20
|
Миє руки
|
17
|
31
|
2
|
Тобсл
|
|
21
|
Виходить
|
17
|
33
|
4
|
Тотл
|
|
22
|
Приносить варені яйця
|
17
|
37
|
1
|
Тд
|
|
23
|
Очищує варені яйця
|
17
|
38
|
6
|
То
|
|
24
|
Розрізає яйця навпіл
|
17
|
44
|
3
|
То
|
|
25
|
Нарізує овочі
|
17
|
7
|
То
|
|
26
|
Розкладає овочі на порції
|
17
|
54
|
2
|
То
|
|
27
|
Розмовляє
|
17
|
56
|
1
|
Тпнд
|
|
28
|
Зверху на овочі кладе розрізані яйця
|
17
|
57
|
2
|
То
|
|
29
|
Поливає майонезом яйця
|
17
|
59
|
2
|
То
|
|
30
|
Прикрашає зеленню салат
|
18
|
01
|
1
|
То
|
|
31
|
Прибирає робоче місце
|
18
|
02
|
3
|
Тобсл
|
|
32
|
Відпочиває
|
18
|
05
|
4
|
Тпнд
|
|
33
|
Йде на робоче місце
|
18
|
09
|
30 сек.
|
|
|
34
|
Миє помідори і огірки
|
18
|
09
|
4
|
То
|
|
35
|
Нарізає помідори і огірки
|
18
|
13
|
7
|
То
|
|
36
|
Викладає у миску
|
18
|
20
|
1
|
Тд
|
|
37
|
Миє зелену цибулю
|
18
|
21
|
2
|
То
|
|
38
|
Нарізає цибулю
|
18
|
23
|
4
|
То
|
|
39
|
Викладає на порції помідори і огірки
|
18
|
27
|
3
|
То
|
|
40
|
Посипає цибулею
|
18
|
30
|
1
|
То
|
|
41
|
Бере з холодильника заправку для салатів
|
18
|
31
|
1
|
То
|
|
42
|
Поливає салати заправкою
|
18
|
32
|
2
|
То
|
|
43
|
Прибирає робоче місце
|
18
|
34
|
1
|
Тоб
|
|
44
|
Переходить на другий стіл
|
18
|
35
|
30 сек.
|
Тд
|
|
45
|
Бере дошку для нарізування м¢яса
|
18
|
35
|
30 сек.
|
Тд
|
|
46
|
Достає з холодильника ковбасу і шинку
|
18
|
36
|
1
|
Тд
|
|
47
|
Очищує ковбасу
|
18
|
37
|
3
|
То
|
|
48
|
Нарізує ковбасу
|
18
|
40
|
5
|
То
|
|
49
|
Прибирає місце
|
18
|
45
|
1
|
Тобсл
|
|
50
|
Нарізає шинку
|
18
|
46
|
6
|
То
|
|
51
|
Прибирає робоче місце
|
18
|
51
|
2
|
Тобсл
|
|
52
|
Бере дошку для нарізання риби
|
18
|
53
|
30 сек.
|
Тд
|
|
53
|
Дістає рибу з холодильника
|
18
|
53
|
1
|
Тд
|
|
54
|
Нарізує рибу
|
18
|
54
|
9
|
То
|
|
55
|
Викладає на піднос
|
19
|
03
|
2
|
Тд
|
|
56
|
Прибирає робоче місце
|
19
|
05
|
4
|
Тобсл
|
|
57
|
Відпочиває
|
19
|
09
|
8
|
Перерва
|
|
58
|
Миє руки
|
19
|
17
|
1
|
Тобсл
|
|
59
|
Йде на робоче місце
|
19
|
18
|
1
|
Тд
|
|
60
|
Дістає фрукти
|
19
|
19
|
1
|
Тд
|
|
61
|
Миє фрукти
|
19
|
20
|
4
|
То
|
|
62
|
Очищує банани
|
19
|
24
|
6
|
То
|
|
63
|
Нарізає банани
|
19
|
30
|
9
|
То
|
|
64
|
Очищує грищі і яблука
|
19
|
39
|
7
|
То
|
|
65
|
Нарізає груші і яблука
|
19
|
46
|
6
|
То
|
|
66
|
Викладає нарізані фрукти у вазочки
|
19
|
55
|
3
|
Тд
|
|
67
|
Посипає цукром
|
19
|
58
|
1
|
То
|
|
68
|
Прибирає робоче місце
|
19
|
59
|
1
|
Тоб
|
|
69
|
Їсть яблуко
|
20
|
00
|
4
|
Тпнд
|
|
70
|
Дістає з холодильника нарізані овочі
|
20
|
04
|
2
|
Тд
|
|
71
|
Відкриває майонез
|
20
|
06
|
1
|
Тд
|
|
72
|
Додає в салат
|
20
|
07
|
2
|
То
|
|
73
|
Перемішує салат
|
20
|
09
|
2
|
То
|
|
74
|
Розкладає на порції
|
20
|
11
|
3
|
То
|
|
75
|
Прибирає робоче місце
|
20
|
14
|
2
|
Тобсл
|
|
76
|
Виходить
|
20
|
16
|
8
|
Тотл
|
|
77
|
Дістає дошку для нарізування м¢яса
|
20
|
24
|
1
|
Тд
|
|
78
|
Очищує ковбасу
|
20
|
25
|
4
|
То
|
|
79
|
Нарізує ковбасу
|
20
|
29
|
5
|
То
|
|
80
|
Нарізує шинку
|
20
|
34
|
7
|
То
|
|
81
|
Викладає на тарілку
|
20
|
41
|
2
|
Тд
|
|
82
|
Прибирає робоче місце
|
20
|
43
|
2
|
Тобсл
|
|
83
|
Миє руки
|
20
|
45
|
1
|
Тобсл
|
|
84
|
20
|
46
|
8
|
Тпнд
|
|
85
|
Бере варені яйця
|
20
|
54
|
2
|
Тд
|
|
86
|
Очищує їх
|
20
|
56
|
4
|
То
|
|
87
|
Розрізує навпіл
|
21
|
00
|
3
|
То
|
|
88
|
Нарізує овочі
|
21
|
03
|
5
|
То
|
|
89
|
Розкладає овочі на порції
|
21
|
08
|
4
|
Тд
|
|
90
|
Розмовляє
|
21
|
12
|
3
|
Тпнд
|
|
91
|
Кладе яйця на овочі зверху
|
21
|
15
|
4
|
То
|
|
92
|
Відкриває банку з майонезом
|
21
|
19
|
2
|
Тд
|
|
93
|
Поливає зверху яйця
|
21
|
21
|
2
|
То
|
|
94
|
Відставляє тарілки
|
21
|
23
|
2
|
Тд
|
|
95
|
Прибирає робоче місце
|
21
|
25
|
2
|
Тобсл
|
|
96
|
Миє банки з-під майонезу
|
21
|
27
|
7
|
Тобсл
|
|
97
|
Відпочиває
|
21
|
34
|
3
|
Тпнд
|
|
98
|
П¢є чай
|
21
|
37
|
9
|
Тпнд
|
|
99
|
Дістає фрукти
|
21
|
46
|
1
|
Тд
|
|
100
|
Миє фрукти
|
21
|
47
|
6
|
То
|
|
101
|
Їсть яблуко
|
21
|
53
|
4
|
Тотл
|
|
102
|
Очищує банани і яблука
|
21
|
57
|
12
|
То
|
|
103
|
Нарізує їх
|
22
|
09
|
7
|
То
|
|
104
|
Очищує груші
|
22
|
16
|
5
|
То
|
|
105
|
Нарізує груші
|
22
|
21
|
4
|
То
|
|
106
|
Викладає нарізані фрукти у вази
|
22
|
25
|
3
|
Тд
|
|
107
|
Посипає цукром
|
22
|
28
|
2
|
То
|
|
108
|
Прибирає робоче місце
|
22
|
30
|
1
|
Тобсл
|
|
109
|
Йде на робоче місце
|
22
|
31
|
1
|
Тд
|
|
110
|
Бере дошку для нарізування м¢яса
|
22
|
32
|
1
|
Тд
|
|
111
|
Очищує ковбасу
|
22
|
33
|
3
|
То
|
|
112
|
Нарізує ковбасу
|
22
|
36
|
5
|
То
|
|
113
|
Прибирає робоче місце
|
22
|
41
|
1
|
Тоб
|
|
114
|
Кладе на місце дошки
|
22
|
42
|
4
|
Тд
|
|
115
|
Їсть яблуко
|
22
|
46
|
3
|
Тпнд
|
|
116
|
Миє ножі
|
22
|
49
|
3
|
Тобсл
|
|
117
|
Миє робочі столи
|
22
|
52
|
4
|
Тпд
|
|
118
|
П¢є воду
|
22
|
56
|
2
|
Тотл
|
|
119
|
Миє руки
|
22
|
58
|
1
|
Тпз
|
|
120
|
Переодягається
|
22
|
59
|
6
|
Тпз
|
|
121
|
Їсть банан
|
23
|
05
|
3
|
Тпнд
|
|
122
|
Іде з цеху
|
23
|
08
|
1
|
Тпнд
|
|
Кінець роботи
|
23
|
09
|
|
|
Додаток Б
Меню ресторану «Скорпіон»
|
Назва страви
|
Вихід, (г)
|
Ціна(грн)
|
|
Холодні страви
|
|
|
|
1. Асорті сирне (чечіл, виноград, грец.горіхи)
|
200
|
36,00
|
|
2. Асорті овочеве(помідори св., огірки св.,
перець болгарський, зелень)
|
200
|
36,00
|
|
3. Сьомга слабо солена
|
140
|
31,00
|
|
4. Оселедець по-домашньому(оселедець, картопля,
цибуля ріпчаста)
|
120
|
20,00
|
|
5. Язик відварений(язик відварений, гірчиця
або хрін)
|
120
|
26,00
|
|
6. Рулетики з шинки(шинки, сир, майонез)
|
110
|
32,00
|
|
7. Рулетики з баклажанів(баклажани, горіхи,
майонез, часник, зелень)
|
110
|
28,00
|
|
8. Салат "Все що вдома було"(язик
відварний, шинка, курка, гриби, майонез, помідори, паприка)
|
200
|
30,00
|
|
9. Салат "Грецький"(сир, масло
оливкове, паприка, огірки свіжі, помідори черрі)
|
200
|
31,00
|
|
10. Салат "Цезар"(листя романо, сир
пармезан, курячі грудки, помідори черрі, яйце)
|
170
|
35,00
|
|
11. Салат із свіжих овочів(помідори, огірки,
паприка, капуста червона)
|
200
|
30,00
|
|
12. Салат "Олів’є з куркою"(морква,
зелений горошок, майонез, яйця, курка, солоні огірки, картопля)
|
200
|
32,00
|
|
13. Венігрет овочевий
|
200
|
19,00
|
|
14. Салат "Казковий ліс"(куряча
печінка,бекон,св.огірки,цибуля зелена, салат, яблука, помідори черрі)
|
200
|
38,00
|
|
15. Салат "М’ясний"(відварна
яловичина,болг.перець,св.огірки, цибуля)
|
180
|
39,00
|
|
Перші страви
|
|
|
|
1. Суп з локшиною курячий з помідорами
|
250
|
21,00
|
|
2. Борщ український
|
250
|
18,00
|
|
3. Солянка м’ясная збірна
|
250
|
20,00
|
|
4. Суп-пюре грибний
|
250
|
34,00
|
|
5. Розсольник домашній
|
250
|
18,00
|
|
Другі страви
|
|
|
|
Млинці з ікрою
|
150
|
42,00
|
|
Млинці з сметаною
|
150
|
23,00
|
|
Гарячий сендвіч
|
150
|
34,00
|
|
Грінки з часником
|
100
|
11,00
|
|
Пельмені з м’ясом
|
200
|
18,00
|
|
Вареники з картоплею
|
200
|
16,00
|
|
Яловичина в шинці
|
150
|
52,00
|
|
Овочеве рагу з яловичиною(овочі, яловичина,
гриби шампіньйони)
|
200
|
42,00
|
|
Яловичина по-домашньому
|
220
|
74,00
|
|
Відбивна із свинини
|
130
|
36,00
|
|
Свинина на кісточці
|
250
|
56,00
|
|
Судак в клярі
|
160
|
50,00
|
|
Риба смажена
|
150
|
30,00
|
|
Стейк з лосося
|
150
|
59,00
|
|
Курячі крильця
|
150
|
26,00
|
|
Птиця смажена в фритюрі
|
150
|
|
Гарніри
|
|
|
|
Картопля фрі
|
120
|
12,00
|
|
Картопля по-селянськи
|
120
|
13,00
|
|
Рис відварний
|
100
|
10,00
|
|
Овочі гриль
|
120
|
14,00
|
|
Картопляне пюре
|
150
|
10,00
|
|
Рагу овочеве (цукіні,
баклажани,болг., перець, картопля, зелень)
|
250
|
29,00
|
|
Десерти
|
|
|
|
Морозиво в асортименті
|
130
|
20,00
|
|
Свіжі фрукти з морозивом
|
160
|
25,00
|
|
Салат фруктовий
|
200
|
24,00
|
|
Млинці з бананом
|
200
|
25,00
|
|
Холодні напої
|
|
|
|
Вода мінеральна «Миргородська»
|
600
|
6,00
|
|
«Пепсі»
|
330
|
8,00
|
|
«Фанта»
|
330
|
8,00
|
|
«Спрайт»
|
330
|
8,00
|
|
Апельсиновий
|
250
|
10,00
|
|
Виноградний
|
250
|
10,00
|
|
Грейпфрутовий
|
250
|
10,00
|
|
Яблучний
|
250
|
10,00
|
|
Томатний
|
250
|
10,00
|
|
Гарячі напої
|
|
|
|
1. Чай чорний «Ліптон»
|
400
|
6,00
|
|
2. Чай зелений «Ліптон»
|
400
|
6,00
|
|
3. Чай чорний «Грінфілд»
|
400
|
6,00
|
|
4. Чай зелений «Грінфілд»
|
400
|
6,00
|
|
5. Чай фруктовий «Грінфілд»
|
400
|
6,00
|
|
6. Кава «Еспрессо»
|
50
|
10,00
|
|
7. Кава «Амерікано»
|
150
|
11,00
|
|
8. Кава «Мокко»
|
150
|
12,00
|
|
9. Кава «Латте»
|
150
|
15,00
|
|
10.Капучіно
|
150
|
12,00
|
|
11. Вершки
|
50
|
4,00
|
|
12. Молоко
|
50
|
4,00
|
|
13. Лимон
|
50
|
3,00
|
Додаток В
Розрахунок необхідної кількості
сировини для овочевого цеху
|
№
|
Назва продуктів
|
Назва страви (асорті сирне)
|
|
|
Брутто
|
Нетто
|
|
|
1 п.(г)
|
100 п.(г)
|
1 п.(г)
|
100 п.(г)
|
|
1.
|
Виноград
|
55
|
5500
|
50
|
5000
|
|
2.
|
Горіхи
|
26
|
2600
|
20
|
2000
|
|
|
Назва страви (асорті овочеве)
|
|
3.
|
Помідори
|
65
|
6500
|
60
|
6000
|
|
4.
|
Огірки
|
63
|
6300
|
60
|
6000
|
|
5.
|
Перець болгарський
|
66
|
6600
|
60
|
6000
|
|
6.
|
Зелень петрушки
|
23
|
2300
|
20
|
2000
|
|
|
Назва страви (оселедець по-домашньому)
|
|
7.
|
Цибуля ріпчаста
|
23
|
2300
|
20
|
2000
|
|
8.
|
Картопля
|
46
|
4600
|
40
|
4000
|
|
|
Назва страви (рулетики з баклажанів)
|
|
9.
|
Баклажани
|
66
|
6600
|
62
|
6200
|
|
10.
|
Часник
|
8
|
800
|
5
|
500
|
|
11.
|
Зелень петрушки
|
11
|
1100
|
9
|
900
|
|
|
Назва страви (Салат "Все що вдома
було")
|
|
12.
|
Помідори
|
23
|
2300
|
20
|
2000
|
|
13.
|
Паприка
|
13
|
1300
|
11
|
1100
|
|
|
Назва страви (салат"Цезар")
|
|
14.
|
Помідори черрі
|
35
|
3500
|
30
|
3000
|
|
15.
|
Листя романо
|
19
|
1900
|
15
|
1500
|
|
|
Назва страви (салат із свіжих овочів)
|
|
16.
|
Помідори
|
48
|
4800
|
45
|
4500
|
|
17.
|
Капуста червона
|
51
|
5100
|
50
|
5000
|
|
18.
|
Огірки
|
37
|
3700
|
35
|
3500
|
|
19.
|
Паприка
|
18
|
1800
|
15
|
1500
|
|
|
Назва страви (олів’є з куркою)
|
|
20.
|
Морква
|
23
|
2300
|
20
|
2000
|
|
21.
|
Картопля
|
44
|
4400
|
40
|
4000
|
|
|
Назва страви (венігрет овочевий)
|
|
22.
|
Картопля
|
57
|
5700
|
42
|
4200
|
|
23.
|
Буряк
|
38
|
3800
|
30
|
3000
|
|
24.
|
Морква
|
25
|
2500
|
20
|
2000
|
|
25.
|
Цибуля зелена
|
37
|
3700
|
30
|
3000
|
|
|
Назва страви (салат"Казковий ліс")
|
|
26.
|
Огірки
|
27
|
2700
|
25
|
2500
|
|
27.
|
Цибуля ріпчаста
|
12
|
1200
|
10
|
1000
|
|
28.
|
Салат
|
15
|
1500
|
11
|
1100
|
|
29.
|
Помідори черрі
|
25
|
2500
|
23
|
2300
|
|
30.
|
Яблука
|
11
|
1100
|
10
|
1000
|
|
|
Назва страви (салат "М’ясний")
|
|
31.
|
Перець болгарський
|
21
|
2100
|
18
|
1800
|
|
32.
|
Огірки
|
18
|
1800
|
15
|
1500
|
|
33.
|
Цибуля ріпчаста
|
12
|
1200
|
9
|
900
|
|
|
Назва страви (суп з локшиною курячий з
помідорами)
|
|
34.
|
Помідори
|
18
|
1800
|
15
|
1500
|
|
35.
|
Морква
|
12
|
1200
|
10
|
1000
|
|
36.
|
Цибуля ріпчаста
|
12
|
1200
|
10
|
1000
|
|
|
Назва страви (борщ український)
|
|
37.
|
Буряк
|
30
|
3000
|
25
|
2500
|
|
38.
|
Капуста білоголова
|
20
|
2000
|
15
|
|
39.
|
Картопля
|
12
|
1200
|
9
|
900
|
|
40.
|
Морква
|
10
|
1000
|
8
|
800
|
|
41.
|
Часник
|
3
|
300
|
2
|
200
|
|
42.
|
Перець болгарський
|
6
|
600
|
5
|
500
|
|
43.
|
Цибуля ріпчаста
|
8
|
800
|
7
|
700
|
|
|
Назва страви (солянка м’ясна збірна)
|
|
44.
|
Цибуля ріпчаста
|
12
|
1200
|
10
|
1000
|
|
|
Назва страви (суп-пюре грибний)
|
|
45.
|
Морква
|
15
|
1500
|
13
|
1300
|
|
46.
|
Цибуля ріпчаста
|
12
|
1200
|
10
|
1000
|
|
|
Назва страви (розсольник домашній)
|
|
47.
|
Капуста білоголова
|
30
|
3000
|
25
|
2500
|
|
48.
|
Картопля
|
60
|
6000
|
53
|
6000
|
|
49.
|
Цибуля ріпчаста
|
12
|
1200
|
10
|
1000
|
|
50.
|
Морква
|
18
|
1800
|
15
|
1500
|
|
|
Назва страви (овочеве рагу з яловичиною)
|
|
51.
|
Картопля
|
14
|
1400
|
12
|
1200
|
|
52.
|
Морква
|
12
|
1200
|
10
|
1000
|
|
53.
|
Цибуля ріпчаста
|
13
|
1300
|
11
|
1100
|
|
54.
|
Капуста білоголова
|
10
|
1000
|
8
|
800
|
|
55.
|
Часник
|
3
|
300
|
2
|
200
|
|
|
Назва страви (картопля фрі)
|
|
56.
|
Картопля
|
180
|
18000
|
150
|
15000
|
|
|
Назва страви (картопля по-селянськи)
|
|
57.
|
Картопля
|
150
|
15000
|
130
|
13000
|
|
58.
|
Зелень петрушки
|
12
|
1200
|
10
|
1000
|
|
|
Назва страви (картопляне пюре)
|
|
59.
|
Картопля
|
200
|
20000
|
180
|
18000
|
|
|
Назва страви (рагу овочеве)
|
|
60.
|
Перець болгарський
|
21
|
2100
|
18
|
1800
|
|
61.
|
Баклажани
|
27
|
2700
|
25
|
2500
|
|
62.
|
Цибуля ріпчаста
|
12
|
1200
|
9
|
900
|
|
63.
|
Картопля
|
150
|
15000
|
130
|
13000
|
|
64.
|
Зелень петрушки
|
10
|
1000
|
8
|
800
|
|
|
|
|
|
|
|
|