Отопление и вентиляция жилого дома
Министерство
образования РФ
Казанский
государственный архитектурно-строительный университет
Кафедра
теплогазоснабжения и вентиляции
Курсовая
работа
Отопление и
вентиляция жилого дома
Выполнил:
ст. гр. 03-41
Гатауллин
А.М. з.к.11-07-014
Проверил:
Зиганшин А.М.
Казань 2011
Содержание:
Введение
1.
Отопление
.1
Теплотехнический расчет наружных ограждений
.2
Определение теплопотерь через ограждающие конструкции здания
.3
Выбор и расчет отопительных приборов
.
Вентиляция
.1
Определение воздухообменов
.2
Аэродинамический расчет
.
Список используемой литературы
Приложение:
Графическая часть
Введение
В данной расчетно-графической работе выполняется
теплотехнический расчет, расчет систем отопления и вентиляции жилого дома.
Данное здание находится в городе Казань Республики Татарстан. В качестве
исходных данных дана геометрия здания проектируемых систем, а также другие
параметры необходимые для дальнейшего проектирования.
В данной расчетно-графической работе
проектируется естественная вытяжная система вентиляции помещений.
В работе решаются следующие вопросы по
отоплению: расстановка оборудования; расчет теплопотерь и тепловой мощности;
определение расчетных расходов теплоты; расчет отопительных приборов.
Система отопления принята двухтрубная, тупиковая
с верхней разводкой подающей магистрали, с естественной циркуляцией. Трубы
систем отопления приняты стальные водогазопроводные. На каждом стояке
установлен вентиль и пробковый кран.
В качестве отопительных приборов приняты
биметаллические секционные радиаторы «Сантехпром БМ», производимые на ОАО
«САНТЕХПРОМ» г. Москва.
1. Отопление
.1 Теплотехнический расчет наружных
ограждений
Исходные данные. Параметры наружного воздуха
района строительства выбираем согласно СНиП 23-01-99 «Строительная климатология».
. Город - Казань.
. Ориентация фасада здания - восток
. Температура воздуха наиболее холодной
пятидневки с обеспеченностью 0,92 text
= -32оС.
4. Продолжительность периода со средней суточной
температурой воздуха £8оС - Z=215
суток
. Средняя температура воздуха периода со средней
суточной температурой воздуха £8 оС -
tht
=-5,2оС
. Расчетные температуры внутреннего воздуха
помещений в холодный период года tint:
Жилые комнаты - 21 (23)оС;
Уборная индивидуальная - 19оС;
Ванная - 25 оС;
Кухня - 19оС.
Определяем требуемое сопротивление теплопередачи
наружной стены исходя из санитарно-гигиенических условий:
, м2°С ∕ Вт.
n -
коэффициент, учитывающий зависимость положения наружной поверхности стены по
отношению к наружному воздуху (прил. 7 [6]);
- коэффициент теплоотдачи внутренней
поверхности стены Вт∕(м2×°С), (прил. 5 [6]);
- нормативный температурный перепад
между температурой внутреннего воздуха и температурой внутренней поверхности
стены (прил. 4[6]);
tн - средняя
температура наружного воздуха (прил. 15 [6]);
tв -
температура внутреннего воздуха, оС (прил. 1 [6])
Zоп -
продолжительность периода со средней суточной температурой воздуха
tоп - средняя
тем-ра воздуха периода со средней сут. температурой воздуха
Определяем величину градусо-суток
отопительного периода ГСОП
Затем определяем требуемое
сопротивление теплопередачи, исходя из условий энергосбережения, по прил. 2
[6], в зависимости от величины градусо-суток отопительного периода ГСОП(Dd)
a и b -
коэффициенты, значения которых следует принимать по данным таблицы для
соответствующих групп зданий (прил. 2 [6])
Из двух полученных значений
требуемого сопротивления для дальнейших расчетов выбираем большее. По этому
расчету с учетом коэффициента теплотехнической однородности определяем
термическое сопротивление слоя утеплителя.
Общее сопротивление теплопередаче
находится по формуле:
(1)
где Rв и Rн -
соответственно сопротивление теплообмену на внутренней и наружной поверхности.
Выражаем термическое сопротивление
утеплителя:
Ограждающая конструкция стены:
Слой 1 - внутренняя штукатурка.
Цементно-шлаковый раствор. Толщина слоя δ1
= 0,01 м. Теплопроводность λ1=
0,81 Вт / м×оС.
Слой 2 - кирпич силикатный. Толщина слоя δ2
= 0,12 м. Теплопроводность λ2
= 0,87 Вт / м× оС.
Слой 3 - утеплитель пенополистирол «Стиродур».
Толщина δ3,
вычисляемая далее. Теплопроводность λ3
= 0,031 Вт / м× оС.
Слой 4 - кирпич глиняный обыкновенный. Толщина
слоя δ4
= 0,25 м. Теплопроводность λ4
= 0,76 Вт / моС.
Слой 5 - наружная штукатурка. Цементно-песчанный
раствор. Толщина слоя δ5
= 0,01 м. Теплопроводность λ5
= 0,93 Вт / моС.

Принимаем утеплитель “Стиродур”
толщиной
90 мм.
Находим фактическое термическое
сопротивление, аналогично уравнению (1), подставляя найденные значения δ3, λ3:
Определяем коэффициент теплопередачи:
)Определим коэффициент теплопередачи К для окон:
Подсчитаем значение сопротивления теплопередачи R0,
по уже известному ГСОП. Сопротивление теплопередачи двойного окна с рамой из
древесины (прил. 2[6] примечание 1):
Коэффициент теплопередачи равен:
1.2 Определение теплопотерь через
наружные ограждающие конструкции здания
. Потери теплоты через
наружные ограждения равны:
где К - коэффициент теплопередачи ограждающей
конструкции, Вт/м2°С; для наружных стен К = 0,3
Вт/м2°С, для окон К = 1,7 Вт/м2оС.
F - расчетная
площадь ограждающей конструкции, м2, вычисляемая с соблюдением
определенных правил обмера, приведенных на плане рис.3 прил. 3 [6].
- сумма добавочных потерь теплоты в
долях от основных потерь.
β1 - добавка
на ориентацию стен, дверей и световых проемов по сторонам света. Величины
добавок принимаются в соответствии с ориентацией ограждающих конструкций.
β2 - добавка на
поступление холодного воздуха через наружные двери.
n -
коэффициент, учитывающий зависимость положения ограждающей конструкции по
отношению к наружному воздуху.
tв -
температура воздуха внутри помещения
tн -
температура воздуха снаружи.
В этом расчете теплопотери
подсчитываются через наружные стены (НС) и окна двойные (ДО), так как квартира
находится на втором этаже.
Помещение 201. Жилая
комната угловая
1) НС
) НС
) ДО
Помещение 202. Жилая
комната
1) НС
2) НС
3) ДО
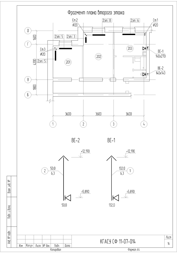
Помещение 203. Кухня
1) НС
2) ДО
. Теплозатраты
на нагрев инфильтрующегося воздуха определяем по формуле:
где
- расход воздуха, удаляемого
естественным вытяжной вентиляцией, принимаемый равным 3 м3/ч на 1 м2
площади жилых помещений и кухни;
ρ - плотность воздуха, кг/м3,
рассчитываемая по формуле:
с - теплоемкость воздуха,
принимаемая равной 1,005 кДж/(кг∙ оС).
Подсчитаем, если tн = -32 оС.
,
Помещение 201. Жилая
комната
Помещение 202. Жилая
комната
дом отопление
воздухообмен вентиляция
Помещение 203. Кухня
3. При
определении тепловой мощности системы отопления учитывают бытовые
тепловыделения, которые определяются по формуле:
где
- норма теплопоступлений 10-17 Вт на
1м2 площади пола.
Fпл - площадь
пола помещения, м2.
Примем
=15 Вт/м2
Помещение 201. Жилая
комната
Помещение 202. Жилая
комната
Помещение 203. Кухня
4. Тепловая мощность
системы отопления каждого помещения Qполн
определяется по потерям теплоты через наружные ограждения, теплозатратам на
нагревание инфильтрующегося воздуха за вычетом бытовых тепловыделений и
рассчитывается по формуле:
Qполн= Qпот + Qинф - Qбыт, Вт
Подсчитаем для каждой комнаты:
Помещение 201: Qполн= 1371,39 Вт
Помещение 203:
Qполн= 896,29 Вт
Сумма всех потерь: 3806,25 Вт.
Результаты расчета заносим в таблицу 1.
1.3 Выбор и расчет отопительных
приборов
. В жилых зданиях
в качестве отопительных приборов рекомендуется применять радиаторы и
конвекторы. Принимаем радиатор ЧМ-500 при схеме движения теплоносителя сверху
вниз
Поверхность нагрева приборов определятся по
формуле:
, м2
где Qпр = Qполн (полным
теплопотерям в комнате)
qпр - расчетная
плотность теплового потока, Вт/м2
,
где qном -
номинальная плотность теплового потока, равная 406,25 Вт/м2;
- нормированный массовый расход
теплоносителя через отопительный прибор, кг/ч.
n, m -
эмпирические показатели коэффициенты степени при относительных температурном
напоре и расходе теплоносителя;
Коэффициенты n, m и
поправочные коэффициенты cпр, β1, β2 принимаются
по приложению 9 [6], в зависимости от того какой вид прибора выбран. Для ЧМ-500
β1=1,02, β2 у стен
1,02, у окон 1,07, n=0,3; с=1, m=0,04
b, p -
безразмерные поправочные коэффициенты. Для ЧМ-500 b=0,993; р=1
Δtср - средний
температурный перепад между средней температурой теплоносителя в приборе и температурой
окружающего воздуха:
,
где tвх, tвых -
температура воды, входящий в прибор и выходящей из прибора, °С
Δtпр - перепад
температур теплоносителя между входом и выходом отопительного прибора, °С;
tв - расчетная
температура помещения, принимаемая в соответствии с приложением 1 [6];
Таблица
1
Таблица расчетов теплопотерь помещений
- расход
воды в приборе, кг/ч,
где tг, tо -
температура воды в системе отопления, горячей и охлажденной, °С;
с - теплоемкость воды, принимаемая
равной 4,187 кДж/(кг×°С)
2. Далее находят число секций
выбранного радиатора:
,
β3 -
поправочный коэффициент, учитывающий число секций в одном приборе (приложение 9
[6]);
fc
- поверхность нагрева одной секции.
Рассчитаем для каждого помещения:
Помещение 201. Жилая
комната
Помещение 202. Жилая
комната
Помещение 203. Кухня
Результаты расчета заносим в таблицу 2.
Таблица
2
Таблица для расчета отопительных приборов
|
№
пом.
|
Qпр, Вт
|
Gпр, кг/ч
|
∆tср, 0С
|
qпр, Вт/м2
|
Fпр, м2
|
β3
|
fс
|
N, шт
|
Число
приборов
|
|
1
|
2
|
3
|
4
|
5
|
6
|
7
|
8
|
9
|
10
|
|
201
|
1371,39
|
47,2
|
59,5
|
301,08
|
4,97
|
0,99
|
0,48
|
10
|
2
|
1538,57
|
52,9
|
59,5
|
302,47
|
5,55
|
0,98
|
0,48
|
11
|
2
|
|
203
|
896,29
|
30,8
|
63,5
|
322,13
|
3,04
|
1,0
|
0,48
|
6
|
1
|
2. Вентиляция
.1 Определение воздухообменов
В жилых зданиях обычно устраивают естественную
вытяжную вентиляцию по специально предусмотренным каналам. Необходимый
воздухообмен для жилых зданий определяется по кратности воздухообмена:
где L - объем
удаляемого воздуха,
Кр - кратность воздухообмена
(приложение 1[6])
V - объем
помещения, м3
Таблица
3
Таблица определения воздухообмена
|
№
помещения
|
Наименование
помещения
|
Размеры
помещения, м
|
Объем
помещения V,м3
|
Нормируемый
воздухообмен, м3/ч
|
Кратность
воздухообмена, ч-1
|
Объем
удаляемого воздуха, L, м3/ч
|
Размеры
сечения каналов, мм
|
Число
каналов
|
|
|
А
|
В
|
h
|
|
|
|
|
|
|
|
1
|
2
|
3
|
4
|
5
|
6
|
7
|
8
|
9
|
10
|
11
|
|
201
|
Жилая
комната
|
3,81
|
3,48
|
3,0
|
39,78
|
-
|
1
|
39,07
|
-
|
-
|
|
202
|
Жилая
комната
|
5,41
|
3,54
|
3,0
|
57,45
|
-
|
1
|
-
|
-
|
|
203
|
Кухня
|
2,78
|
3,81
|
3,0
|
31,71
|
100
|
1
|
132
|
140х270
|
1
|
|
204
|
Уборная
|
0,89
|
1,5
|
3,0
|
4,41
|
25
|
-
|
50
|
140х140
|
1
|
|
205
|
Ванная
|
1,5
|
1,5
|
3,0
|
7,43
|
25
|
-
|
|
|
|
2.2 Аэродинамический расчет каналов
Расчет каналов следует производить исходя из располагаемого
давления, ΔPе,
Па, при расчетной наружной температуре tн
=
+5оС:
,
где ρн - плотность
наружного воздуха при температуре tн = +5 оС
равна 1,27 кг/м3;
ρв - плотность
внутреннего воздуха, кг/м3,
h - высота от оси
жалюзийной решетки до верха вытяжной шахты, равная 5,8 м.
Далее, определяем сечение каналов:
где ν - нормируемая
скорость движения воздуха по каналам, изменяется от 0,5 до 1,0 м/с. В нашем
расчете принимаем скорость равную 0,7 м/с, т.к. 2 этаж.
Определяем эквивалентный диаметр для
прямоугольных каналов:
где a и b стороны
каналы, мм.
По dэ и ν находят
удельную потерю давления на трение R, Па/м, по
номограмме, приведенной на рис. 8 прил.10 [6]
Потери давления в местных
сопротивлениях определяется по формуле:
Где
- сумма коэффициентов местных
сопротивлений на участке, которые принимаются по приложению 14 [5]
- динамическое давление, Па,
принимаемое по номограмме рис. 8 прил.10 [6]
После определения потерь давления на
трение и в местных сопротивлениях, их сравнивают с располагаемым давлением по
формуле:
где l длина
расчетного участка, м;
а - коэффициент запаса 1,1 до 1,15,
β - коэффициент шероховатости,
принимаемый по приложению 14[6]
Участок 1
Для определения площади сечения
канала участка 1 задаемся скоростью движения воздуха в нем 1 м/с
Принимаем для участка 1 кирпичный
канал 1/2х1. Площадь сечения канала с учетом швов составит 0,038м2.
При этой площади сечения скорость движения воздуха составит:
= 2 + 0,1+1,3 = 3,4
Участок 2
Для определения площади сечения
канала участка 2 задаемся скоростью движения воздуха в нем 1м/с
Принимаем для участка 2 кирпичный
канал 1/2х1/2. Площадь сечения канала с учетом швов составит 0,02м2.
При этой площади сечения скорость движения воздуха составит:
= 2 +0,1+ 1,3 = 3,4
Результаты расчетов заносим в
таблицу 4.
Таблица
4
Таблица аэродинамического расчета каналов
|
№
уч
|
L м3/ч
|
l, м
|
a∙b, мм
|
dэ, м
|
F, м2
|
ν, м/с
|
R, Па/м
|
R∙l∙β, Па
|
ρд, Па
|
∑ξ
|
Z, Па
|
R∙l∙β+Z, Па
|
|
1
|
2
|
3
|
4
|
5
|
6
|
7
|
8
|
9
|
10
|
11
|
12
|
13
|
|
1
|
132
|
6,3
|
140*270
|
184,39
|
0,038
|
0,965
|
0,095
|
0,862
|
0,565
|
3,4
|
1,921
|
2,783
|
|
2
|
50
|
6,3
|
140*140
|
140
|
0,02
|
0,694
|
0,075
|
0,647
|
0,30
|
3,4
|
1,02
|
1,667
|
Список используемой литературы
1. СНиП
23-01-99 «Строительная климатология».
2. СНиП
23-02-2003 «Тепловая защита зданий».
. СНиП
2-08-01-89* «Жилые здания».
. Справочник
проектировщика. Внутренние санитарно-технические устройства. Вентиляция и
кондиционирование воздуха. Под ред. И.Г. Староверова.
. Тихомиров
К.В., Сергеенко Э.С. «Теплотехника, теплогазоснабжение и вентиляция». Москва.
Стройиздат, 1981.
. Методические
указания к курсовой и расчетно-графической работам. КГАСУ. Казань. 2008.
Приложение А