Проектирование защищенного объекта информатизации

  • Вид работы:
    Курсовая работа (т)
  • Предмет:
    Информационное обеспечение, программирование
  • Язык:
    Русский
    ,
    Формат файла:
    MS Word
    1,11 Мб
  • Опубликовано:
    2013-06-24
Вы можете узнать стоимость помощи в написании студенческой работы.
Помощь в написании работы, которую точно примут!

Проектирование защищенного объекта информатизации

МИНОБРНАУКИ РОССИИ

Федеральное государственное бюджетное учреждение высшего профессионального образования

ПЕНЗЕНСКИЙ ГОСУДАРСТВЕННЫЙ УНИВЕРСИТЕТ

Кафедра «Информационная безопасность систем и технологий»








ПОЯСНИТЕЛЬНАЯ ЗАПИСКА

по курсовому проекту

на тему: «Проектирование защищенного объекта информатизации»

Выполнил: Желтяков А.А.

Руководитель работы: Кашаев Е.Д





Пенза, 2013

РЕФЕРАТ

Объектом исследования в курсовом проекте является кабинет для приема граждан в Управлении Пенсионного фонда РФ по г.Заречному Пензенской области, в котором циркулирует конфиденциальная информация.

Целью курсового проекта является перепланировка кабинета для приема граждан в Управлении Пенсионного фонда РФ по г.Заречному Пензенской области до защищенного объекта информатизации.

В ходе выполнения курсового проекта приобретены практические навыки по моделированию объекта информатизации, где обрабатывается и хранится конфиденциальная информация, выявлению каналов утечки конфиденциальной информации и выбору методов и средств их перекрытия.

В результате проведённой работы спроектирован защищённый объект информатизации.

СОДЕРЖАНИЕ

Используемые сокращения

Основные термины и определения

Введение

. Построение модели объекта защиты

. Выявление угроз объекту информатизации

. Разработка комплекса организационных мероприятий

. Разработка перечня технических мероприятий

. Оценка и выбор технических средств защиты

. Описание помещения после проведения работ по защите информации

Заключение

Список использованных источников

ИСПОЛЬЗУЕМЫЕ СОКРАЩЕНИЯ

АТС - автоматическая телефонная станция;

ВТ - вычислительная техника;

ВТСС - вспомогательные технические средства и системы;

ЗИ - защита информации;

ЗП - защищаемое помещение;

ОИ - объект информатизации;

ОТСС - основные технические средства и системы;

ПЭМИН - побочные электромагнитные излучения и наводки;

ТА - телефонный аппарат;

ЭВМ - электронно-вычислительная машина.

ОСНОВНЫЕ ТЕРМИНЫ И ОПРЕДЕЛЕНИЯ

В отчете применяются следующие основные термины с соответствующими определениями:

ИНФОРМАЦИЯ - это сведения о лицах, предметах, событиях, явлениях и процессах (независимо от формы их представления) отражённые на материальных носителях.

ЗАЩИТА ИНФОРМАЦИИ - деятельность по предотвращению утечки защищаемой информации, несанкционированных и непреднамеренных воздействий на защищаемую информацию.

ЗАЩИЩАЕМЫЕ ПОМЕЩЕНИЯ (ЗП) - помещения (служебные кабинеты, актовые, конференц-залы и т.д.), специально предназначенные для проведения конфиденциальных мероприятий (совещаний, обсуждений, конференций, переговоров и т.п.).

ИНФОРМАЦИОННАЯ БЕЗОПАСНОСТЬ (ИБ) - это состояние защищенности информации среды общества, обеспечивающее ее формирование, использование и развитие в интересах граждан, организаций, государств. [1]

ОБЪЕКТ ИНФОРМАТИЗАЦИИ - это совокупность персонала (людей), информационных ресурсов, автоматизированных систем различного уровня и назначения, систем связи, отображения и размножения вместе с помещениями, в которых они установлены, а также помещения, предназначенные для ведения конфиденциальных переговоров.

ОСНОВНЫЕ ТЕХНИЧЕСКИЕ СРЕДСТВА И СИСТЕМЫ (ОТСС) - технические средства и системы, а также их коммуникации, используемые для обработки, хранения и передачи конфиденциальной информации.

СРЕДСТВО ЗАЩИТЫ ИНФОРМАЦИИ (СЗИ) - техническое, программное средство, вещество и/или материал, предназначенные или используемые для защиты информации.

ВВЕДЕНИЕ

Одним из важнейших аспектов проблемы обеспечения информационной безопасности на объекте является определение, анализ и классификация возможных угроз безопасности объекту. Перечень значимых угроз, оценки вероятностей их реализации, а также модель нарушителя служат основой для проведения анализа рисков и формулирования требований к системе зашиты.

Считается, что одной из наиболее опасных угроз является утечка хранящейся и обрабатываемой внутри защищаемого помещения конфиденциальной информации.

Целью курсового проекта является проектирование защищенного объекта информатизации. Это проектирование проводится на основе модели объекта защиты.

Для выполнения работы выявлены потенциальные угрозы утечки информации, определены места наиболее вероятной установки средств разведки (с учетом величины контролируемой зоны; объектов, расположенных в непосредственной близости: дорог, зданий, автостоянок и др.; информационных магистралей).

Выбраны средства, позволяющие обеспечить защиту речевой информации от утечки по акустическому каналу.

Кроме того, из-за наличия на объекте защиты технических средств необходимо обеспечить защиту информации от утечки по цепям питания и цепям передачи информации, что также учитывалось при выполнении курсового проекта.

Разработан перечень организационных и технических мероприятий по защите информации.

1. Построение модели объекта защиты

В качестве ОИ для защиты выбран кабинет для приема граждан в Управлении Пенсионного фонда РФ по г.Заречному Пензенской области, на первом этаже одноэтажного здания. На выбранном ОИ необходимо обеспечить защиту, как речевой информации, так и информации, обрабатываемой техническими средствами.

Разработка рекомендаций по защите возможна только после рассмотрения и изучения ОИ. При этом важно расположение ОИ относительно соседних зданий, дорог, мест большого скопления людей, стоянок.

На рисунках 1-3 отображено расположение объекта на карте (на расстоянии 50 м, 500 м, 2000 м соответственно). Здание изображено с географической точностью.

Рисунок 1 - Расположение объекта информатизации (50 м)

Рисунок 2 - Расположение объекта информатизации (200 м)

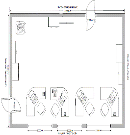
На рисунке 4 изображен план помещения, стен и потолок ОИ на рисунках 5-9, план этажа - на рисунке 10.

Кабинет площадью (12,5х8 м) 100 м.кв., высота 3,30 м. Потолок подвесной гипсолитовый, с зазором 0,3 м. Перекрытия потолка и пола железобетонные, толщиной 0,5 м. На пол постелен линолеум. Внутренние стены выполнены из кирпича толщиной 0,25 м. Наружные стены выполнены из кирпича толщиной 0,75 м и с внешней стороны отделаны штукатуркой. В ОИ на западной стене располагаются три пластиковых окна с тройным стеклопакетом, размеры которого составляют 3x2. Также имеется на восточной стене одна одностворчатая одинарная деревянная без уплотнений дверь размером 2,2x0,9 м., с врезанным замком, и одна такая же дверь на северной стене только без замка.

Рисунок 3 - Расположение объекта информатизации (2000 м)

Смежные помещения, в которых находятся технические средства передачи и обработки данных: север - кабинет заместителя директора, юг - бухгалтерия, запад - внешняя стена, восток - коридор.

Имеется система электропитания и освещения, которая включает в себя 5 розеток 220 В/50 Гц и шесть галогенных потолочных светильника.

Имеется пожарная сигнализация, представленная в виде двух фотооптических детекторов, и охранная сигнализация - шесть акустических детекторов.

Имеется три телефонных аппарата. Через них осуществляется доступ к городской АТС и для внутренних переговоров. В ОИ находятся 4 ЭВМ в полной конфигурации и принтер.

Рисунок 4 - План помещения

Рисунок 5 - Стена А

Рисунок 6 - Стена Б

Рисунок 7 - Стена В

Рисунок 8 - Стена Г

Рисунок 9 - Потолок помещения

Рисунок 10 - План этажа

2. Выявление угроз объекту информатизации

кабинет перепланировка защищенный информатизация

Утечка информации для ОИ может проводиться по различным каналам, представленным на рисунке 11.

Рисунок 11 - Виды каналов утечки информации

Утечка акустической информации из-за применения подслушивающих устройств (электроакустический метод съема информации)

Акустическая энергия, возникающая при разговоре, вызывает соответствующие колебания элементов электронной аппаратуры, что в свою очередь приводит к появлению электромагнитного излучения или электрического тока. Наиболее чувствительными элементами электронной аппаратуры к акустическим воздействиям являются катушки индуктивности, конденсаторы переменной емкости, пьезооптические преобразователи. Там, где имеются такие элементы, возможно появление микрофонного эффекта.

Известно, что микрофонным эффектом обладают отдельные типы телефонных аппаратов, вторичные электрические часы системы часофикации, громкоговорители (динамики) система радиофикации и громкоговорящей связи и другие виды технических и электронных средств обеспечения производственной и трудовой деятельности.

Для перехвата и регистрации акустической информации существует огромный арсенал разнообразных средств разведки: микрофоны, электронные стетоскопы, радиомикрофоны или так называемые "радиозакладки", направленные и лазерные микрофоны, аппаратура магнитной записи. Набор средств акустической разведки, используемых для решения конкретной задачи, сильно зависит от возможности доступа агента в контролируемое помещение или к интересующим лицам. Применение тех или иных средств акустического контроля зависит от условий применения, поставленной задачи, технических и, прежде всего, финансовых возможностей организаторов подслушивания.

Утечка информации за счет скрытного и дистанционного видеонаблюдения

Из средств данного типа наиболее широко применяются скрыто устанавливаемые фото-, кино-, и видеокамеры с выходным отверстием объектива несколько миллиметров.

Используются также миниатюрные видеосистемы состоящие из микровидеокамеры с высокой чувствительностью и микрофоном. Устанавливаются на двери или в стене. Для конспиративного наблюдения используются также микровидеокамеры в настенных часах, в датчиках пожарной сигнализации, небольших радиомагнитолах, а также в галстуке или брючном ремне. Видеоизображение может записываться на малогабаритный видеомагнитофон или передаваться с помощью малогабаритного передатчика по радиоканалу в другое помещение или автомашину на специальный или стандартный телеприемник. Расстояние передачи, в зависимости от мощности передачи достигает от 200 метров до 1 км. При использовании ретрансляторов расстояние передачи может быть значительно увеличено.

Привлекает внимание автомобильная система скрытого видеонаблюдения. Видеокамера, обеспечивающая круговой обзор, закамуфлирована под наружную антенну сотового телефона. Плоский экран устанавливается либо на солнцезащитном козырьке, либо в "бардачке", пульт управления - или в пепельнице, или в кармане на двери. Видеосигнал, в зависимости от комплектации, может записываться прямо на видеомагнитофон либо передаваться по радиолинии на расстояние до 400 м. Видеокамера комплектуется сменными объективами с различными углами зрения.

Лазерный съем речевой информации (оптико-электронный метод съема информации)

Для дистанционного перехвата информации (речи) из помещений иногда используют лазерные устройства. Из пункта наблюдения в направлении источника звука посылается зондирующий луч. Зондирующий луч обычно направляется на стекла окон, зеркала, другие отражатели. Все эти предметы под действием речевых сигналов циркулирующих в помещении колеблются и своими колебаниями модулируют лазерный луч, приняв который в пункте наблюдения, можно путем несложных преобразований восстановить все речевые сигналы, циркулирующие в контролируемом помещении. На сегодняшний день создано целое семейство лазерных средств акустической разведки. Такие устройства состоят из источника излучения (гелий-неоновый лазер), приемника этого излучения с блоком фильтрации шумов, двух пар головных телефонов, аккумулятора питания и штатива. Наводка лазерного излучения на оконное стекло нужного помещения осуществляется с помощью телескопического визира. Съем речевой информации с оконных рам с двойными стеклами с хорошим качеством обеспечивается с расстояния до 250 метров. Такой возможностью, в частности, обладает система SIPE LASER 3-DA SUPER производства США.

Однако на качество принимаемой информации, кроме параметров системы оказывают влияние следующие факторы:

параметры атмосферы (рассеяние, поглощение, турбулентность, уровень фона);

качество обработки зондируемой поверхности (шероховатости и неровности, обусловленные как технологическими причинами, так и воздействием среды - грязь, царапины и пр.);

уровень фоновых акустических шумов;

уровень перехваченного речевого сигнала.

Кроме того, применение подобных средств требует больших затрат не только на саму систему, но и на оборудование по обработке полученной информации. Применение такой сложной системы требует высокой квалификации и серьезной подготовки операторов. Из всего этого можно сделать вывод, что применение лазерного съема речевой информации дорогое удовольствие и довольно сложное, поэтому надо оценить необходимость защиты информации от этого вида разведки.

Пути утечки информации в вычислительных системах

Анализ вероятных путей утечки информации или ее искажений показывает, что при отсутствии специальных мер защиты обеспечивающих выполнение функций, возложенных на вычислительную систему, возможно:

снятие дистанционными техническими средствами секретных сообщений с мониторов ЭВМ, с принтеров (перехват электромагнитных излучений;

получение информации обрабатываемой в ЭВМ по цепям питания;

акустическая или электроакустическая утечка вводимой информации;

перехват сообщений в канале связи;

навязывание ложного сообщения;

считывание (изменение) информации ЭВМ при несанкционированном доступе.

хищение носителей информации и производственных отходов;

чтение остаточной информации в ЗУ системы после выполнения санкционированных запросов;

копирование носителей информации;

маскировка под зарегистрированного пользователя с помощью хищения паролей и других реквизитов разграничения доступа;

маскировка несанкционированных запросов под запросы операционной системы (мистификация);

использование программных ловушек;

получение защищаемых данных с помощью серии разрешенных запросов;

использование недостатков языков программирования и операционных систем;

преднамеренное включение в библиотеки программ специальных блоков типа "троянских коней";

злоумышленный вывод из строя механизмов защиты.

В особую группу следует выделить специальные закладки для съема информации с компьютеров. Миниатюрный радиомаяк, встроенный в упаковку, позволяет проследить весь путь следования закупленной ЭВМ, транслируя сигналы на специальный передатчик. Узнав таким путем, где установлена машина, можно принимать любую обработанную компьютером информацию через специально вмонтированные электронные блоки, не относящиеся к ЭВМ, но участвующие в ее работе. Самая эффективная защита от этой закладки - экранированное помещение для вычислительного центра. Универсальных "компьютерных закладок" сегодня не бывает. Те закладки, которые удавалось обнаружить, можно условно разделить на три типа: те, которые выбирают информацию по ключевым словам или знакам, те, которые передают всю информацию, находящуюся на винчестере ЭВМ и просто уничтожающие ее.

Утечка информации за счет ПЭМИН

Электронные и радиоэлектронные средства, особенно средства электросвязи, обладают основным электромагнитным излучением, специально вырабатываемым для передачи информации, и нежелательными излучениями, образующимися по тем или иным причинам конструкторско-технологического характера.

Нежелательные излучения подразделяются на побочные электромагнитные излучения (ПЭМИ), внеполосные и шумовые. И те, и другие представляют опасность. Особенно опасны ПЭМИ. Они то и являются источниками образования электромагнитных каналов утечки информации.

Каждое электронное устройство является источником электромагнитных полей широкого частотного спектра, характер которых определяется назначением и схемными решениями, мощностью устройства, материалами, из которых оно изготовлено, и его конструкцией.

Известно, что характер электромагнитного поля изменяется в зависимости от дальности его приема. Это расстояние делится на две зоны: ближнюю и дальнюю. Для ближней зоны расстояние значительно меньше длины волны и поле имеет ярко выраженный магнитный характер, а для дальней поле носит явный электромагнитный характер и распространяется в виде плоской волны, энергия которой делится поровну между электрической и магнитной компонентами.

Поэтому, одной из наиболее вероятных угроз перехвата информации в системах обработки данных считается утечка за счет перехвата побочных электромагнитных излучений и наводок (ПЭМИН), создаваемых техническими средствами. ПЭМИН существуют в диапазоне частот от единиц Гц до полутора ГГц и способны переносить (распространять) сообщения, обрабатываемые в автоматизированных системах. Дальность распространения ПЭМИ исчисляется десятками, сотнями, а иногда и тысячами метров. Наиболее опасными источниками ПЭМИН являются дисплеи, проводные линии связи, накопители на магнитных дисках и буквопечатающие аппараты последовательного типа. Например с дисплеев можно снять информацию с помощью специальной аппаратуры на расстоянии до 500-1500 метров, с принтеров до 100-150 метров. Перехват ПЭМИН может осуществляться и с помощью портативной аппаратуры. Такая аппаратура может представлять собой широкополосный автоматизированный супергетеродинный приемник. В качестве устройств регистрации принятых сигналов (сообщений) может использоваться магнитный носитель или дисплей.

Утечка информации при использовании средств связи и различных проводных коммуникаций.

В данном случае, когда речь заходит о возможности перехвата информации при использовании линий связи и проводных коммуникаций, следует иметь в виду, что перехват может осуществляться не только с телефонных линий и не только речевой информации. В этот раздел можно отнести:

прослушивание и запись переговоров по телефонным линиям;

использование телефонных линий для дистанционного съема аудио- информации из контролируемых помещений;

перехват факсимильной информации;

перехват разговоров по радиотелефонам и сотовой связи;

использование сети 220 В и линий охранной сигнализации для передачи акустической информации из помещений;

перехват пейджинговых сообщений.

Прослушивание и запись переговоров по телефонным линиям.

Самыми распространенными из подобных средств прослушивания являются телефонные контроллеры радиоретрансляторы которые чаще называются телефонными передатчиками или телефонными "закладками". Телефонные закладки подключаются параллельно или последовательно в любом месте телефонной линии и имеют значительный срок службы, так как питаются от телефонной сети. Эти изделия чрезвычайно популярны в промышленном шпионаже благодаря простоте и дешевизне.

Большинство телефонных "закладок" автоматически включается при поднятии телефонной трубки и передают разговор по радиоканалу на приемник пункта перехвата, где он может быть прослушан и записан. Такие "закладки" используют микрофон телефонного аппарата и не имеют своего источника питания, поэтому их размеры могут быть очень небольшими. Часто в качестве антенны используется телефонная линия. Для маскировки телефонные "закладки" выпускаются в виде конденсаторов, реле, фильтров и других стандартных элементов и узлов, входящих в состав телефонного аппарата.

Чаще всего телефонные "закладки" стараются устанавливать за пределами офиса или квартиры, что существенно снижает риск. Для упрощения процедуры подключения подслушивающих устройств и уменьшения влияния на телефонную линию используются изделия с индуктивным датчиком съема информации. Особенностью подобных устройств является то, что требуется автономный источник питания и устройство должно иметь схему автоматического включения при снятии телефонной трубки. Качество перехватываемой информации практически всегда хуже. Использование телефонных линий для дистанционного съема аудио - информации из контролируемых помещений.

Отдельное место занимают системы, которые предназначены не для подслушивания телефонных переговоров, а для использования телефонных линий при прослушивании контролируемых помещений, где установлены телефонные аппараты или проложены провода телефонных линий. Примером такого устройства может служить "телефонное ухо". "Телефонное ухо" представляет собой небольшое устройство, которое подключается параллельно к телефонной линии или розетке в любом удобном месте контролируемого помещения. Для прослушивания помещения необходимо набрать номер абонента, в помещении которого стоит "телефонное ухо". Услышав первый гудок АТС необходимо положить трубку и через 10-15 секунд повторить набор номера. Устройство дает ложные гудки занято в течение 40-60 секунд, после чего гудки прекращаются и включается микрофон в устройстве "телефонное ухо" - начинается прослушивание помещения. В случае обычного звонка "телефонное ухо" пропускает все звонки после первого, выполняя роль обычной телефонной розетки и не мешая разговору.

Кроме того, возможно использование телефонной линии для передачи информации с микрофона, скрытно установленного в помещении. При этом используется несущая частота в диапазоне от десятков до сотен килогерц с целью не препятствовать нормальной работе телефонной связи. Практика показывает, что в реальных условиях дальность действия подобных систем с приемлемой разборчивостью речи существенно зависит от качества линии, прокладки телефонных проводов, наличия в данной местности радиотрансляционной сети, наличия вычислительной и оргтехники и т.д.

Из числа, так называемых "беззаходовых" систем съема речевой информации с контролируемых помещений, когда используются телефонные линии, следует отметить возможность съема за счет электроакустического преобразования, возникающего в телефонных аппаратах и за счет высокочастотного (ВЧ) навязывания. Но эти каналы утечки используются все реже. Первый из-за того, что современные телефонные аппараты не имеют механических звонков и крупных металлических деталей, а второй из-за своей сложности и громоздкости аппаратуры. Но тем не менее меры защиты от утечки информации по этим каналам применяются, они общеизвестны и не дорогие.

Использование сети 220 В для передачи акустической информации из помещений.

Для этих целей применяют так называемые сетевые "закладки". К этому типу "закладок" чаще всего относят устройства, которые встраиваются в приборы, питающиеся от сети 220 В или сетевую арматуру (розетки, удлинители и т.д.). Передающее устройство состоит из микрофона, усилителя и собственно передатчика несущей низкой частоты. Частота несущей обычно используется в диапазоне от 10 до 350 кГц. Передача и прием осуществляется по одной фазе или, если фазы разные то их связывают по высокой частоте через разделительный конденсатор. Приемное устройство может быть изготовлено специально, но иногда применяют доработанные блоки бытовых переговорных устройств, которые сейчас продаются во многих специализированных магазинах электронной техники. Сетевые передатчики подобного класса легко камуфлируются под различного рода электроприборы, не требуют дополнительного питания от батарей и трудно обнаруживаются при использовании поисковой аппаратуры, широко применяемой в настоящее время.

Воздушные технические каналы утечки информации.

В воздушных технических каналах утечки информации средой распространения акустических сигналов является воздух, и для их перехвата используются миниатюрные высокочувствительные микрофоны и специальные направленные микрофоны.

Миниатюрные микрофоны объединяются (или соединяются) с портативными звукозаписывающими устройствами (диктофонами) или специальными миниатюрными передатчиками. Автономные устройства, конструкционно объединяющие миниатюрные микрофоны и передатчики, называют закладными устройствами перехвата речевой информации, или просто акустическими закладками. Перехваченная закладными устройствами речевая информация может передаваться по радиоканалу, оптическому каналу (в инфракрасном диапазоне длин волн), по сети переменного тока, соединительным линиям вспомогательных технических средств и систем (ВТСС), посторонним проводникам (трубам водоснабжения и канализации, металлоконструкциям и т. п.).Причем для передачи информации по трубам и металлоконструкциям могут использоваться не только электромагнитные, но и механические ультразвуковые колебания.

Прием информации, передаваемой закладными устройствами осуществляется, как правило, на специальные приемные устройства, работающие в соответствующем диапазоне длин волн. Однако встречаются закладные устройства, прием информации с которых можно осуществлять с обычного телефонного аппарата. Такие устройства устанавливаются или непосредственно в корпусе телефонного аппарата, находящегося в контролируемом помещении и называемом "телефоном-наблюдателем", или подключаются к телефонной линии, чаще всего в телефонной розетке.

Подобное устройство конструкционно объединяет миниатюрный микрофон и специальный блок коммутации часто называется "телефонным ухом". Блок коммутации подключает микрофон к телефонной линии при дозвоне по определенной схеме до "телефона-наблюдателя" или подаче в линию специального кодированного сигнала. Использование портативных диктофонов и акустических закладок требует проникновения на контролируемый объект (в помещение). В том случае, когда это не удается, для перехвата речевой информации используются направленные микрофоны.

Вибрационные технические каналы утечки информации.

В вибрационных (структурных) технических каналах утечки информации средой распространения акустических сигналов являются конструкции зданий, сооружений (стены, потолки, полы), грубы водоснабжения, отопления, канализации и другие твердые тела. Для перехвата акустических колебаний в этом случае используются контактные микрофоны (стетоскопы). Контактные микрофоны, соединенные с электронным усилителем, называют электронными стетоскопами. По вибрационному каналу также возможен перехват информации с использованием закладных устройств. В основном для передачи информации используется радиоканал поэтому такие устройства часто называют радиостетоскопами. Возможно использование закладных устройств с передачей информации по оптическому каналу в ближнем инфракрасном диапазоне длин волн, а также по ультразвуковому каналу (по металлоконструкциям здания).

Параметрические технические каналы утечки информации.

В результате воздействия акустического поля меняется давление на все элементы высокочастотных генераторов ВТСС. При этом изменяется (незначительно) взаимное расположение элементов схем, проводов в катушках индуктивности, дросселей и т. п.,, что может привести к изменениям параметров высокочастотного сигнала, например к модуляции его информационным сигналом. Поэтому этот канал утечки информации называется параметрическим. Это обусловлено тем, что незначительное изменение взаимного расположения, например, проводов в катушках индуктивности (межвиткового расстояния) приводит к изменению их индуктивности, а, следовательно, к изменению частоты излучения генератора, т.е. к частотной модуляции сигнала.

Или воздействие акустического поля на конденсаторы приводит к изменению расстояния между пластинами и, следовательно, к изменению его емкости, что, в свою очередь, также приводит к частотной модуляции высокочастотного сигнала генератора. Наиболее часто наблюдается паразитная модуляция информационным сигналом излучений гетеродинов радиоприемных и телевизионных устройств, находящихся в выделенных помещениях и имеющих конденсаторы переменной емкости с воздушным диэлектриком в колебательных контурах гетеродинов.

Промодулированные информационным сигналом высокочастотные колебания излучаются в окружающее пространство и могут быть перехвачены и детектированы средствами радиоразведки. Параметрический канал утечки информации может быть реализован и путем "высокочастотного облучения" помещения, где установлены полуактивные закладные устройства, имеющие элементы, некоторые параметры которых (например, добротность и резонансная частота объемного резонатора) изменяются по закону изменения акустического(речевого)сигнала.

При облучении мощным высокочастотным сигналом помещения, в котором установлено такое закладное устройство, в последнем при взаимодействии облучающего электромагнитного поля со специальными элементами закладки (например, четвертьволновым вибратором) происходит образование вторичных радиоволн, т.е. переизлучение электромагнитного поля. А специальное устройство закладки (например, объемный резонатор) обеспечивает амплитудную, фазовую или частотную модуляцию переотраженного сигнала по закону изменения речевого сигнала. Подобного вида закладки иногда называют полуактивными. Для перехвата информации по данному каналу кроме закладного устройства необходимы специальный передатчик с направленной антенной и приемник.

Циркулирующая в тех или иных технических средствах конфиденциальная информация может попасть в цепи и сети электрического питания и через них выйти за пределы контролируемой зоны. Например, в линию электропитания высокая частота может передаваться за счет паразитных емкостей трансформаторов блоков питания.

В зависимости от тяжести последствий после реализации угрозы были проранжированы, как показано в таблице 1. В зависимости от вероятности реализации, выделенные угрозы были проранжированы, как показано в таблице 2. Введены следующие обозначения: низкий уровень (Н), средний (С), высокий (В).

Таблица 1 - Распределение угроз по уровням в зависимости от тяжести последствий.

Угроза

Уровень

Утечка акустической информации из-за применения подслушивающих устройств (электроакустический метод съема информации)

В

Утечка информации за счет скрытного и дистанционного видеонаблюдения

С

Лазерный съем речевой информации (оптико-электронный метод съема информации)

Н

Пути утечки информации в вычислительных системах

В

Утечка информации за счет ПЭМИН

С

Использование телефонных линий для дистанционного съема аудио - информации из контролируемых помещений

В

Использование сети 220 В для передачи акустической информации из помещений

С

Воздушные технические каналы утечки информации

С

Вибрационные технические каналы утечки информации

Н

Параметрические технические каналы утечки информации

В

Утечка по цепям питания

С


Необходимо рассмотреть причины выставления определенных уровней.

Угрозе утечки акустической информации из-за применения подслушивающих устройств присвоен высокий уровень из-за того, что получение информации даст представление о выполняемых работах, уязвимостях отдела и предприятия в целом.

Угрозе лазерного съема речевой информации присвоен низкий уровень из-за того, что в помещении преимущественно ведётся конструкторская деятельность, и каждый работник имеет свою задачу и не знает, чем занимаются другие.

Угрозе утечки информации по вибрационным техническим каналам присвоен низкий уровень, т.к. в помещении на оконном проёме стоит тройной стеклопакет, и речевая информация не является критической на данном объекте информатизации.

Угрозе утечки информации по параметрическим техническим каналам объекта информатизации присвоен высокий уровень, т.к. по параметрам работы АС возможно составить логическую схему её узлов и вследствие этого найти её уязвимости.

Таблица 2 - Распределение угроз в зависимости от вероятности реализации.

УгрозаУровень


Утечка акустической информации из-за применения подслушивающих устройств (электроакустический метод съема информации)

С

Утечка информации за счет скрытного и дистанционного видеонаблюдения

Н

Лазерный съем речевой информации (оптико-электронный метод съема информации)

Н

Пути утечки информации в вычислительных системах

С

Утечка информации за счет ПЭМИН

С

Использование телефонных линий для дистанционного съема аудио - информации из контролируемых помещений

С

Использование сети 220 В для передачи акустической информации из помещений

С

Воздушные технические каналы утечки информации

С

Н

Параметрические технические каналы утечки информации

В

Утечка по цепям питания

С


Во второй таблице первой угрозе присвоен средний уровень с точки зрения вероятности реализации, потому что доступ на объект контролируется, следовательно, возможна реализация угрозы сотрудниками предприятия, подкупленными злоумышленниками.

Утечка информации за счет скрытного и дистанционного видеонаблюдения маловероятна и сильно затруднена из-за лесистой местности вокруг здания, в котором расположен объект информатизации. Также рабочие места сотрудников расположены таким образом, чтобы предполагаемый злоумышленник не мог зрительно либо с использованием специальных средств разведки следить за работниками. Поэтому вероятности её реализации присвоен низкий уровень.

Лазерный съем речевой информации (оптико-электронный метод съема информации) также затруднён из-за наличия деревьев, которые являются непосредственным препятствием для ведения разведывательных действий из ближайших зданий, также стоянка возле здания контролируется системой видеонаблюдения и прикреплённым за ней сотрудником охраны.

3. Разработка комплекса организационных мероприятий


Организационные меры являются важным и одним из эффективных средств защиты информации, одновременно являясь фундаментом, на котором строится в дальнейшем вся система защиты.

Организационные мероприятия играют существенную роль в создании надежного механизма защиты информации, так как возможности несанкционированного использования конфиденциальных сведений в значительной мере обусловливаются не техническими аспектами, а злоумышленными действиями, нерадивостью, небрежностью и халатностью пользователей или персонала защиты. Влияния этих аспектов практически невозможно избежать с помощью технических средств. Для этого необходима совокупность организационно-правовых и организационно-технических мероприятий, которые исключали бы возможность возникновения опасности конфиденциальной информации.

На этапе проведения организационных мероприятий необходимо:

определить перечень сведений с ограниченным доступом, подлежащих технической защите;

обосновать необходимость разработки и реализации защитных мероприятий с учетом материального или иного ущерба, который может быть нанесен вследствие возможного нарушения целостности информации с ограниченным доступом либо ее утечки по техническим каналам;

установить перечень выделенных помещений, в которых не допускается реализация угроз и утечка информации с ограниченным доступом;

определить перечень технических средств, которые должны использоваться как основные технические средства;

определить технические средства, применение которых не обосновано служебной и производственной необходимостью и которые подлежат демонтажу;

определить наличие задействованных и незадействованных воздушных, наземных, настенных и заложенных в скрытую канализацию кабелей, цепей и проводов, уходящих за пределы выделенных помещений;

определить системы, подлежащие демонтажу, требующие переоборудования кабельных сетей, цепей питания, заземления или установки в них защитных устройств.

Кроме того, в процессе проведения организационных мероприятий необходимо регламентировать следующее:

методы отбора персонала для работы с защищаемой информацией, методики обучения и инструктирования сотрудников;

направления и методы воспитательной работы с персоналом, контроля соблюдения сотрудниками порядка защиты информации;

порядок защиты информации при проведении совещаний, заседаний, переговоров, приеме посетителей, работе с представителями СМИ;

оборудование и аттестацию помещений и рабочих зон, выделенных для работы с конфиденциальной информацией;

пропускной режим на территорию, в здания, помещения, идентификацию транспорта и персонала компании;

организационные вопросы приобретения, установки и эксплуатации технических средств защиты информации и охраны.

Данные организационные мероприятия должны проводиться силами организации или с привлечением специалистов конкретных областей, имеющих лицензию на проведение аттестационных и иных мероприятий.

4. Разработка перечня технических мероприятий

Целью технических мероприятий по защите информации является рассмотрение возможностей технической разведки и защита информации от утечки техническими методами.

Защите подлежат:

¾      линии электроснабжения, сигнализации;

¾      система отопления;

¾      телефонные линии;

¾      цепи питания компьютеров.

Для защиты перечисленных систем следует:

¾      экранировать линии электроснабжения, пожарной и охранной сигнализации;

¾      с некоторой периодичностью проводить проверку помещения на закладные устройства. Периодичность и виды проверок помещений с целью выявления в них закладных устройств зависят от степени важности помещений и порядка допуска в них посторонних лиц [6];

¾      установить генераторы виброакустического шума на окна и батареи отопления;

¾      включать генераторы шума при ведении переговоров.

Одним из методов ослабления нежелательных электромагнитных полей в технических средствах является экранирование соединительных линий.

Экранирование позволяет решить следующие задачи:

¾      снизить в окружающем пространстве уровни ПЭМИН, возникающие при работе технических средств;

¾      уменьшить уровни опасных напряжений и токов, наводимых в различных токоведущих линиях побочными электромагнитными излучениями технических средств. Основная задача защитного экрана это снижение интенсивности нежелательного электромагнитного поля в разведопасном направлении. В настоящее время разработано большое количество различных фильтров, обеспечивающих ослабление нежелательных сигналов в разных участках частотного диапазона: фильтры нижних частот, полосовые и режекторные фильтры. Для защиты информации необходимо использовать фильтры низких частот с граничной частотой не более 40 кГц. К таким фильтрам относятся, например фильтры типа ФСПК, граничная частота которых составляет 20 кГц.

5. Оценка и выбор технических средств защиты


Защита информации от утечки по акустическому каналу - это комплекс мероприятий, исключающих или уменьшающих возможность выхода конфиденциальной информации за пределы контролируемой зоны за счет акустических полей.

Для защиты от утечки по акустическому каналу выполняется следующее:

вместо напольного покрытия устанавливается сборная звукоизолирующая панельная система ЗИПС-ПОЛ Вектор, которая состоит из комбинации «жесткого» слоя ГВЛ и «мягкого» слоя штапельного стекловолокна, а также имеет восемь виброизолирующих S-опор, выполненных из эластомера Sylomer.

для звукоизоляции стен устанавливаются виброизолирующие стеновые крепления Виброфлекс-EP, а также используется генератор виброизлучатель СВ - 45М, для защиты от прослушки через стены.

дверь заменяется на двойную звукоизолирующую дверь, которая состоит из рамы с расположенной внутри нее массой наполнителя. Для предотвращения прямого прохождения звука фальц двери необходимо уплотнить эластичным уплотнителем. Зазор около пола между нижним краем двери и поверхностью пола необходимо уплотнить с помощью порогового упора, порога в виде бугра или автоматического дверного уплотнителя. Пороговый упор с уплотнителем на пороге или на нижнем канте двери является особенно эффективным уплотнением стыка против прохождения звука. На двери следует поставить контактные датчики сигнализации «М-401».

на окно следует поставить датчик разбития стекла «Стекло-3». Для защиты от снятия информативного сигнала со стекол необходимо применить вибрационный преобразователь TRN-2000.

в вентиляционную шахту устанавливается акустический излучатель MS -2000 для генератора виброакустического шума ANG - 2000.

провода убираются в коробы, а отверстия и щели закрываются специальными звукопоглащающими материалами (пористыми, волокнистыми или различного рода заполнителями).

на трубы отопления устанавливается вибрационный преобразователь TRN-2000.

необходимо установить в помещении подавитель мобильных телефонов GSM 900/1800, 3G, Wi-Fi «БагХантер BP-1050». Подавитель «БагХантер BP-1050», в отличие от обычных блокираторов, глушит не только сотовую связь, но и стандарты Wi-Fi, Bluetooth и 3G, которые часто используют в шпионских целях. 4 антенны глушителя позволяют ему эффективно блокировать каждый из указанных стандартов по-отдельности. Он эффективно работает в радиусе до 12 м.

необходимо установить в помещении стационарное устройство подавления цифровых и кинематических диктофонов «Шторм-2С». Дальность подавления - до 4м (в зависимости от типа диктофона). Возможность охвата большей площади подавления. 2 пульта управления по радиоканалу. Пульт управления по проводному каналу. Антенны выносные направленные.

Для того, чтобы защититься от утечки по электромагнитным каналам необходимо провести экранирование всех токопроводящих конструкций, кабелей и проводов. Осуществить разнос кабелей питания.

Экранирование позволит защитить от нежелательных воздействий акустических и электромагнитных сигналов и излучений собственных электромагнитных полей, а также ослабить (или исключить) паразитное влияние внешних излучений.

Экранирование осуществляют с помощью заземлённого металлического или металлизированного экрана с высокой электрической или магнитной проводимостью, в который заключают либо источник паразитных полей (помех), либо само защищаемое устройство, либо его отдельные элементы.

Кроме экранирования, также используется электромагнитное зашумление с помощью устройства SEL SP-21 «Баррикада», которое предназначено для маскировки и предупреждения перехвата информативных побочных электромагнитных излучений и наводок от средств вычислительной техники путём создания в широкой полосе частот активных маскирующих помех (типа "белый шум").

Защита от перехвата наводок информативного сигнала обрабатываемого техническими средствами, на цепи электропитания и линии связи, выходящие за пределы контролируемой зоны.

Мерой по защите информации от утечки по такому каналу является фильтрация. Заземление и металлизация аппаратуры и ее элементов служат надежным средством отвода наведенных сигналов на землю, ослабления паразитных связей и наводок между отдельными цепями. Эксплуатационные меры ориентированы на выбор мест установки технических средств с учетом особенностей их электромагнитных полей с таким расчетом, чтобы исключить их выход за пределы контролируемой зоны.

Фильтры различного назначения служат для подавления или ослабления сигналов при их возникновении или распространении, а также для защиты систем питания аппаратуры обработки информации.

Сетевой помехоподавляющий фильтр ФСП-1Ф-10А-1,5 предназначен для защиты радиоэлектронной аппаратуры и средств вычислительной техники от утечки информации по цепям заземления и электропитания напряжением 220 В 50 Гц, а также для защиты их от сетевых импульсных и ВЧ-помех и повышения помехоустойчивости в диапазоне частот от 150 кГц до 2000 МГц. Фильтр обеспечивает защиту от всплесков напряжения в сети. Дополнительно обеспечивает фильтрацию высокочастотных наводок в цепи заземления нагрузки.

Так же, для исключения(ослабления) наводок необходимо осуществить разнос цепей электропитания и охранной и пожарной сигнализации на расстояние не менее 10 см.

Защита от внедрения в технические средства и защищаемые помещения специальных электронных устройств перехвата речевой информации.

Для защиты информации от утечки по данному каналу применяются организационные мероприятия, описанные в пятом разделе.

Заземление - это устройство, состоящее из заземлителей проводников, соединяющих заземлители с электронными и электрическими установками, приборами, машинами. Заземлители могут быть любой формы - в виде трубы, стержня, полосы, листа. Заземлители выполняют защитную функцию и предназначаются для соединения с землей приборов защиты. Отношение потенциала заземлителя к стекающему с него току называется сопротивлением заземления. Сопротивление заземления необходимо снизить, для этого трубы очищаются от ржавчины и грязи. Величина заземления зависит от удельного сопротивления грунта и площади соприкосновения заземления с землей.

Магистрали заземления вне здания надо прокладывать на глубине около 1,5 м, а внутри здания - по стенам или специальным каналам таким образом, чтобы их можно было внешне осматривать на целостность и на наличие контактного подключения. Использовать в качестве заземления металлические конструкции зданий и сооружений, имеющих соединения с землей (отопление, водоснабжение и другое), запрещается.

Необходимо использовать генератор зашумления электросети 220 В и цепи заземления ЛГШ-221.

Для защиты телефонных линий от прослушивания необходимо использовать устройство защиты от прослушивания проводных телефонных линий Прокруст-2000. Имеет сертификат ФСТЭК РФ.

Необходимо оборудовать окно жалюзи или плотными светонепроницаемыми шторами. Монитор ПЭВМ должен быть развернут отражающей поверхностью к стене.

6 Предварительная экономическая оценка стоимости мероприятий и технических средств по защите информации

Для реализации перечисленных мер выделен перечень средств и методов с их стоимостью.


Таблица 3 - Перечень средств и мероприятий для ЗИ.

Мероприятие/средство

Стоимость, руб.

Договор со специализированной организацией на полный комплекс работ по защите и аттестации ОИ

50000

Защита от утечки по акустическому каналу:


Звукоизолирующая панельная система ЗИПС-ПОЛ Вектор

61200

Виброизолирующие стеновые крепления Виброфлекс-EP

1600

Генератор виброизлучатель СВ-45М

2900

Двойная звукоизолирующая дверь

11200

Контактные датчики сигнализации «М-401»

300

Датчик разбития стекла «Стекло-3»

570

Вибрационный преобразователь TRN-2000

10800

Акустический излучатель OMS-2000

2600

Подавитель мобильных телефонов «БагХантер BP-1050»

13800

Стационарное устройство подавления диктофонов «Шторм-2С»

67000

Разнос цепей

10000

Экранирование проводов

5000

Генератор шума SEL SP-21 «Баррикада»

11500

Защита от перехвата наводок информативного сигнала обрабатываемого техническими средствами, на цепи электропитания и линии связи, выходящие за пределы контролируемой зоны


Сетевой помехоподавляющий фильтр ФСП-1Ф-10А-1,5

11200

Защита от утечки информации по цепям заземлений


Генератор шума ЛГШ-221

12500

Защита от прослушивания телефонных переговоров


Устройство защиты от прослушки телефонов Прокруст-2000

35000

Защита от утечки по визуально-оптическим каналам


Жалюзи горизонтальные

1400

Итого

308570


При использовании информации грифом «особой важности» следует использовать только отечественные разработки средств защиты информации в помещении для предотвращения присутствия в этих средствах закладных устройств. Необходимо использовать БагХантер BP-1050 со следующими техническими характеристиками:

¾      длительность непрерывной работы от аккумулятора/сети: до 2 ч/не ограничено;

¾      дальность эффективного подавления: до 12 м;

¾      четыре съемные антенны, для различных диапазонов подавления;

¾      избирательное подавление различных стандартов передачи данных;

¾      габариты: 110 х 62 х 30 мм.

БагХантер BP-1050 имеет отдельные антенны для подавления беспроводной связи в различных частотных диапазонах. Благодаря этому обеспечивается отсутствие "провалов" в подавляемом диапазоне частот. Кроме того, это позволяет исключить часть диапазонов из работы прибора, что особенно важно, когда надо избирательно подавлять определенные стандарты связи, не мешая работе приборов в других диапазонах. Например, можно заглушить работу всех сотовых телефонов (звонки, смс, интернет), но при этом оставить в рабочем состоянии CDMA-модем или WiFi-передатчик ноутбука (необходимо просто установить антенну в соответствующие гнезда на верхней панели) [19].

6. Описание помещения после проведения работ по защите информации

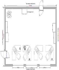
После проведения организационных и организационно-технических мероприятий, направленных на защиту конфиденциальной информации от несанкционированного доступа, в исходное помещение внесены изменения и оно оборудовано по требованиям безопасности информации. Результаты показаны на рисунках 12-17.

Рисунок 12 -План защищённого помещения

Рисунок 13 - Стена А

Рисунок 14 - Стена Б

Рисунок 15 - Стена В

Рисунок 16 - Стена Г

Рисунок 17 - Потолок

ЗАКЛЮЧЕНИЕ

В ходе выполнения курсового проекта приобретены практические навыки по моделированию объекта информатизации, где обрабатывается и хранится конфиденциальная информация, выявлению каналов утечки конфиденциальной информации и выбору методов и средств их перекрытия.

В результате проведённой работы спроектирован защищённый объект информатизации.


СПИСОК ИСПОЛЬЗОВАННЫХ ИСТОЧНИКОВ

1. ГОСТ Р 50922-96 «Защита информации. Основные термины и определения».

2 Специальные требования и рекомендации по технической защите конфиденциальной информации [Электронный ресурс]: Режим доступа: www.specon.ru/files/STRK.doc <http://www.specon.ru/files/STRK.doc>, свободный.

[Электронный ресурс]: Режим доступа: http://www.prorobotu.net.ua /publications_articles-full.php?view=666, свободный.

Методы борьбы [Электронный ресурс]: Режим доступа: <http://www.analitika.info/zaschita.php?page=1&full=block_article48&articlepage=2>, свободный.

Специальные проверки служебных помещений [Электронный ресурс]: Режим доступа: <http://www.analitika.info/poisk.php?page=1&full=block_article37&articlepage=5>, свободный.

Материал от Центра Специальных Технических Средств [Электронный ресурс]: Режим доступа: <http://www.sir35.ru/Safety/Zashcita_informi_01024.htm>, свободный.

Защита информации в системах и средствах информатизации и связи: Учебное пособие.- СПб.: ВИКА, 1996.- 99 с.

Карта городов http://maps.google.com/ , свободный;

Продажа звукоизолационных материалов http://acoustic.ru/ , свободный;

Каталог оборудования http://irsural.ru/ , свободный;

Продажа комплекса радиоконтроля http://info-protect.ru/ , свободный;

Фирма по производству окон http://www.ramokna.ru , свободный;

Фирма «Профдекор» по производству жалюзи http://www.profdekor.ru , свободный;

Продажа вибропреобразователей http://elec.ru/ , свободный;

Центр безопасности информации - одна из ведущих компаний России, специализирующихся в области обеспечения безопасности информационных технологий http://www.cbi-info.ru/ , свободный;

Профинформа защита, комплексные системы безопасности <http://www.profinfo.ru/> , свободный;

Сетевые помехоподавляющие фильтры http://detsys.ru/ , свободный;

Каталог оборудования. Шумогенераторы http://bnti.ru/ , свободный.

Похожие работы на - Проектирование защищенного объекта информатизации

 

Не нашли материал для своей работы?
Поможем написать уникальную работу
Без плагиата!
Без нейросетей!