Определение требуемого радиуса КЗ для защиты конфиденциальной информации от утечки по каналу ПЭМИН

  • Вид работы:
    Курсовая работа (т)
  • Предмет:
    Информационное обеспечение, программирование
  • Язык:
    Русский
    ,
    Формат файла:
    MS Word
    891,84 Кб
  • Опубликовано:
    2013-10-02
Вы можете узнать стоимость помощи в написании студенческой работы.
Помощь в написании работы, которую точно примут!

Определение требуемого радиуса КЗ для защиты конфиденциальной информации от утечки по каналу ПЭМИН

Министерство образования и науки РФ

Пермский национальный исследовательский политехнический университет

Электротехнический факультет

Кафедра автоматики и телемеханики





КУРСОВАЯ РАБОТА

по предмету «Инженерно-техническая защита информации»

на тему: Определение требуемого радиуса КЗ для защиты конфиденциальной информации от утечки по каналу ПЭМИН




Выполнил: Глушенкова Е.С.

Группа:КЗИ-09

Проверил: доцент Костецкий В.П.




г. Пермь 2013 г.

Оглавление

Введение    3

1.      Теоретические сведения        5

1.1 Основные понятия 5

1.2 Угроза ПЭМИН    6

1.3 Способы перехвата информации      7

1.4 Способы противодействия       8

2.      Объект защиты   10

2.1 Описание здания и прилегающей территории    10

2.2 Описание помещения      11

3. Проведение измерений     13

3.1 Принцип работы измерительного комплекса «Навигатор» 13

Заключение         18

Список литературы:    20

Приложение 1    21

Протоколы измерений комплекса «Навигатор»       21

 


Введение


Целью данной курсовой работы является определение требуемого радиуса контролируемой зоны для защиты конфиденциальной информации от утечки по каналу побочных электромагнитных излучений и наводок.

В наше время большинство информации, в том числе, конфиденциальной, обрабатывается на компьютерах. Побочные электромагнитные излучения и наводки от средств вычислительной техники являются одним из возможных каналов утечки информации. Поэтому определение радиуса контролируемой зоны для защиты данных от утечки побочных электромагнитных излучений и наводок является актуальной задачей.

В работе представлены основные теоретические сведения о побочных электромагнитных излучениях, угрозе их перехвата, существующих на данный момент способах перехвата побочных электромагнитных излучений и наводок, а также основных способах защиты.

В ходе курсовой работы разработана модель объекта информатизации -автоматизированное рабочее место в защищаемом помещении предприятия и выполнены измерения ПЭМИН с целью определения возможности утечки информации за пределы моделируемой контролируемой зоны.

Модель объекта информатизации содержит основные сведения о территории, прилегающей к контролируемой зоне, здании, планеохраняемого помещения, основной инвентарь и технические приборы.( Вспомогательные технические средства и системы и основные технические средства и системы)

В работе рассмотрены основные принципы работы измерительного комплекса «Навигатор», основные этапы измерений, порядок проведённых измерений и сами результаты.

На основе измерений сделаны выводы о возможности перехвата побочных электромагнитных излучений и наводок с защищаемого объекта, а также возможностях защиты.

Также в работе сделаны выводы об эффективности автоматизированного метода измерений, проведенных с помощью измерительного комплекса «Навигатор».

1.   Теоретические сведения

 

.1 Основные понятия

защита информация электромагнитное излучение

ПЭМИН - побочные электромагнитные излучения и наводки. Они включают нефункциональные акустоэлектрические преобразования (это преобразователи внешних акустических сигналов в электрические сигналы), побочные низкочастотные и высокочастотные излучения электромагнитного поля, паразитные связи и наводки в цепях радиосредств и электрических приборов.

Под техническим каналом утечки информации понимают совокупность источника информации, линии связи (физической среды), по которой распространяется информационный сигнал, шумов, препятствующих передаче сигнала в линии связи, и технических средств перехвата информации.

Контролируемая зона (КЗ) - Контролируемая зона - это пространство, в котором исключено неконтролируемое пребывание сотрудников и посетителей оператора и посторонних транспортных, технических и иных материальных средств.

Вспомогательные технические средства и системы (ВТСС) - технические средства и системы, не предназначенные для передачи, обработки и хранения персональных данных, устанавливаемые совместно с техническими средствами и системами, предназначенными для обработки персональных данных, или в помещениях, в которых установлены информационные системы персональных данных

Основные технические средства и системы (ОТСС) - технические средства и системы, а также их коммуникации, используемые для обработки, хранения и передачи конфиденциальной информации (АС различного уровня и назначения), средства и системы связи и передачи данных, включая коммуникационное оборудование, используемые для обработки и передачи конфиденциальной информации

 

.2 Угроза ПЭМИН


Угрозу хищения информации путем ее утечки создают сигналы, случайно возникающие в результате побочных электромагнитных излучений и наводок (ПЭМИН). Эти сигналы называют также опасными.

Источниками опасных для безопасности информации сигналов являются радио и электротехнические элементы и устройства в принципе любых радиоэлектронных и электрических устройств и приборов.

Оценочно, по каналу ПЭМИНможет быть перехвачено не более 1-2 процентов данных, хранимых и обрабатываемых на персональных компьютерах и других технических средствах передачи информации (ТСПИ). На первый взгляд может показаться, что этот канал действительно менее опасен, чем, например, акустический, по которому может произойти утечка до 100% речевой информации, циркулирующей в помещении. Однако, нельзя забывать, что в настоящее время практически вся информация, содержащая государственную тайну или коммерческие, технологические секреты, проходит этап обработки на персональных компьютерах.

Специфика канала ПЭМИН такова, что два процента информации, уязвимые для технических средств перехвата - это данные, вводимые с клавиатуры компьютера или отображаемые на дисплее, то есть, весьма значительная часть сведений, подлежащих защите, может оказаться доступна для чужих глаз.

1.3 Способы перехвата информации


Наиболее известен перехват излучения мониторов. Во-первых, для нормальной работы электронно-лучевой трубки необходимы высокие уровни сигналов, вследствие чего монитор является самым «громким» излучающим элементом. Во-вторых, для дешифрования перехваченных сигналов монитора не требуется сложной обработки. Для отображения информации на мониторе перехваченный сигнал пригоден вообще без дополнительной обработки.

Электромагнитные поля, возникающие около проводников, по которым видеосигнал подается на кинескоп монитора - это побочные электромагнитные излучения, которые часто можно перехватить при помощи обычного телевизионного приемника, размещенного на расстоянии нескольких метров от монитора персонального компьютера. Четкость изображения при этом может быть достаточной для чтения текста.

Радиоприемники с полосой пропускания 8-10 МГц и чувствительностью порядка 10 нВ (например, измерительные приемники I класса точности) позволяют осуществить перехват информации, отображаемой на мониторе, с существенно большего расстояния, а использование различных алгоритмов фильтрации сигналов и накопления информации резко повышает четкость изображения.

В профессиональной аппаратуре используется то, что изображение на экране монитора и, следовательно, излучаемые им сигналы многократно повторяются. Сигнал накапливается и, за счет этого, увеличивается дальности разведки, однако такая аппаратура стоит десятки тысяч долларов.

В персональном компьютере действует большое количество генераторов периодических сигналов. И большинство из них можно обнаружить в эфире или сети питания, не прибегая к высокочувствительным радиоприемникам. Существуют программы, непосредственно использующие ПЭМИН для передачи хранимой в компьютере информации. Незаметно от пользователя они находят на дисках файлы, например, содержащие заданные ключевые слова, и буква за буквой передают их в эфир, модулируя какой-либо из генераторов, допустим, контроллер клавиатуры. Для съема информации может быть использован бытовой радиоприемник, а для восстановления исходного текста - персональный компьютер со звуковой картой. Цена такого "разведывательного комплекса" не превышает нескольких тысяч долларов США. А "программа-шпион" может попасть в компьютер "клиента" множеством различных способов - вместе с мультимедиа-презентацией, полученной на компакт-диске на какой-либо выставке, из Интернета, от собственных сотрудников.

 

.4 Способы противодействия


Известно два основных метода защиты: активный и пассивный.

Активный метод предполагает применение специальных широкополосных передатчиков помех. Метод хорош тем, что устраняется не только угроза утечки информации по каналам побочного излучения компьютера, но и многие другие угрозы. Как правило, становится невозможным также и применение закладных подслушивающих устройств.

Такой метод не всегда действенен, т.к. уровень шума может быть неравномерен, поэтому нужна постоянная оценка эффективности данного метода, что достаточно дорого.Также существеннымнедостатком является причинение вреда здоровью человека, который подвергается мощному излучению. Также наличие передатчиков помех привлекает лишнее внимание к объекту.

Пассивный метод заключается в экранировании источника излучения, либо помещения. Сейчас этот метод пользуется большей популярностью

Современные технологии экранирования основаны на нанесении (например, напылении) различных специальных материалов на внутреннюю поверхность существующего корпуса, поэтому внешний вид компьютера практически не изменяется.

Экранирование компьютера даже с применением современных технологий - сложный процесс. В излучении одного элемента преобладает электрическая составляющая, а в излучении другого - магнитная, следовательно, необходимо применять разные материалы.

2. Объект защиты

 

.1 Описание здания и прилегающей территории


Помещение, в котором мы работаем - учебный кабинет. Он располагается на третьем этаже четырехэтажного здания.

Здание имеет два выхода: основной и запасной. В обычное время используется только основной выход, запасной закрыт. Имеются 2 лестницы в обоих крылах строения, первая находится рядом с главным входом, вторая в противоположном крыле. Попасть на вторую лестницу, не пройдя мимо первой (при условии, что закрыт запасной вход) невозможно. В связи с этим на второй лестнице люди появляются достаточно редко в течение дня.

На входе стоит вахтёрская будка, но из-за отсутствия в здании пропускного режима возможен свободный вход постороннего человека на любой из этажей.

Со стороны входа расположена парковка, спортивная площадка. Также там располагается аналогичный корпус. За зданием - лес. Вокруг здания проложена узкая однополосная дорога, на которой также возможно появление посторонних автомобилей.

За периметром ведётся видеонаблюдение.

Слева расположена двух полосная дорога с односторонним движением, которая отделена от здания небольшой лесной прослойкой. Движение на дороге не оживленное.

Линии электропитания выходят за пределы контролируемой территории, трансформаторная станция находится в 300 метрах от главной дороги с противоположной стороны от здания объекта.

Схема здания представлена на рисунке 1.

 

Масштаб 1:500 Рис.1. Схема здания

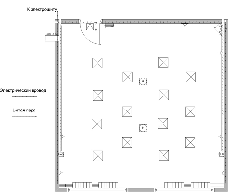
2.2 Описание помещения


Помещение находится на третьем этаже четырехэтажного здания. Общая площадь - 36 м2. Выход и кабинета находится в главном коридоре, два окна выходят на однополосную дорогу и лес.

Схема кабинетапредставлена на рисунке 2.

Масштаб 1:50


Инвентарь кабинета состоит из 10 столов, стульев, шкафа, сейфа, стеллажа, стойки под проектор, раздвижного экрана под проектор. Из радиоэлектронных средств и технических приборов в кабинете находятся компьютер, городской телефон, проектор, лампы освещения и пожарные датчики.

Схема расположения основных технических средств и систем (линий коммуникаций) представлена на рисунке 3:

Масштаб 1:75

Рис.3

3. Проведение измерений

 

.1 Принцип работы измерительного комплекса «Навигатор»


Для поиска сигналов ПЭМИН в программе "Навигатор" реализованы четыре метода:

·    метод разности панорам;

·        аудио-визуальный метод;

·        метод поиска по гармоникам;

·        параметрически-корреляционный метод.

Первые три метода являются универсальными, т.е. предназначены для поиска любых сигналов ПЭМИН. Четвертый метод - параметрически-корреляционный метод предназначен только для поиска ПЭМИН видеосистемы компьютера (видеоадаптер-монитор), исключая цифровые каналы передачи видеоданных (ТРТ матрицы). Поиск ПЭМИН можно проводить как отдельными методами, так и комбинировать их при работе.

Методы поиска отличаются друг от друга по степени участия в них оператора. Полностью автоматическим методом является параметрически-корреляционный метод поиска ПЭМИН мониторов. За ним по степени автоматизации следует метод разности панорам.

Аудио-визуальный метод и метод поиска по гармоникам можно считать автоматизированными методами.

Принимая о внимание тот факт, что работа ведется со слабыми сигналами, идентифицировать которые зачастую может только человек используя свою интуицию и опыт, то по качеству получаемых результатов методы поиска можно расположить в порядке обратном степени автоматизации. Самые лучшие результаты получаются экспертным методом. Хорошие результаты дает аудио-визуальный метод, и замыкает ряд метод разности панорам. Разница в результатах работы проявляется в нахождении слабых сигналов. Сигналы, превышающие шум на 6-10дБ все методы находят устойчиво при условии правильно сформированного задания на поиск сигналов.

Рассмотрим этапы работы измерительного комплекса «Навигатор».

1.   Измерение индустриальных шумов

2.      Автоматическая верификация результатов 1

.        Автоматическая верификация результатов 2

Эти операции в управлении являются пассивными, т.е. никаких органов управления в раскрывающихся окнах нет.

Информация, отображаемая в данных режимах, состоит из графических окон, в которых отображается электромагнитная обстановка в единицах дБмикВ/м и поля текстового представления информации о рабочем диапазоне частот: текущей измеряемой частоте, применяемой антенне, рабочей полосе пропускания, текущем уровне сигнала и т.д.

Воперация «Автоматическая верификация результатов 1» и «Автоматическая верификация результатов 2», применимых при использовании метода панорам, происходит сравнение уровня индустриального шума с еще раз измеренным уровнем в точках сформированного списка ПЭМИН при включенном и выключенном тексте на исследуемой аппаратуре.

4.   Измерение шума САЗ

Режим служит для измерения шума САЗ и ЛСАЗ в интервалах расчета или в заданных оператором интервалах, сохранения в файле результатов измерений и использовании этих данных при расчетах эффективности защиты.

Измерение шума САЗ выполняется в тех интервалах расчета, в которых присутствуют найденные сигналы ПЭМИН из списка найденных сигналов, сформированного любым предыдущим режимом работы или в интервалах расчета, заданных вручную. Шаг измерений по оси частот равен используемой полосе пропускания.

Измерение шума САЗ рекомендуется проводить после окончательной коррекции списка сигналов в «Экспертном режиме»

5. Экспертный режим

Данный режим используется для формирования списка сигналов ПЭМИН при использовании аудио-визуального метода, метода поиска по гармоникам и параметрическо-корреляционного метода поиска сигналов ПЭМИН. Кроме этого, данный режим используется для проверки и ручной коррекции списка найденных частот, а так же для измерения амплитуды сигналов ПЭМИН с учетом вектора поляризации и диаграммы направленности.

.   Подготовка данных для создания отчета

Режим предназначен для обработки раннее собранных данных с целью расчета требуемых показателей защищенности. При выборе данного режима запускается расчетная программа "NavigatC.exe", а собранные данные по обнаруженным частотам ПЭМИН автоматически передаются и отображаются в расчетной программе.

В данной работе использовался метод разности панорам, как один из самых быстрых и простых методов. Он подразумевает следующие этапы:

1. Измерение индустриальных шумов (при отключенном тестовом сигнале на исследуемом оборудовании).

2.      Измерение сигналов ПЭМИН при включенном тестовом сигнале;

.        Верификация 1: тестовый сигнал включен. Если сигнал в какой-то точке сильно (более чем на 50%) изменился, то считается, что он принадлежит другому техническому средству;

.        Верификация 2: тестовый сигнал отключен. Отфильтровываются сигналы, которые включились после измерения индустриального шума и до сих пор работают, а значит заведомо не принадлежат к сигналу ПЭМИН;

.        Автоматический расчёт зон R2

3.2 Проведение измерений

Измерения проводились в диапазоне от 600 до 1000 МГц, в двух контрольных точках на расстоянии 50 сантиметров от системного блока, в горизонтальной и вертикальной поляризации.

Измерения проводились с помощью измерительной рамочной антенны АИР3-2 предназначенной для измерения напряженности синусоидальных, шумовых и импульсных магнитных полей, а также с помощью измерительной дипольной антенны АИ5-0 предназначенной для измерения напряженности синусоидальных, шумовых и импульсных электрических полей.

Результаты измерений помещены в таблицу 1.

Таблица 1

Номер точки

Антенна

Поляризация

R2стац

R2воз

R2нос

1

АИ0-5

Горизонтальная

15

5

3



Вертикальная

6

3

2


АИР3-2

Горизонтальная

0

0

0



Вертикальная

0

0

0

2

АИ0-5

Горизонтальная

6

3



Вертикальная

5

3

2


АИР3-2

Горизонтальная

0

0

0



Вертикальная

0

0

0


Схематичное изображение радиусов представлено на рисунках 4 и 5.

На рисунке видно, что зона R2стац, которая показывает возможность снятия ПЭМИН стационарной аппаратурой выходит за пределы здания ориентировочно на 4 метра.

Другие радиусы не выходят за пределы контролируемой зоны.

В данный момент, вопрос безопасности решен благодаря наличию камер видеонаблюдения по периметру здания. Это исключает установку оборудования для съема информации около здания.

В случае выхода из строя системы видеонаблюдения рекомендуется личный осмотр территории.

Масштаб 1:400

Рис. 4

Масштаб 1:50

Рис.5

Заключение


В результате проведенных измерений установлено:

Анализируемый в разделе 3.2 объект информатизации (модель) не соответствует требованиям по защите информации, так как рассчитанный требуемый радиус контролируемой зоны Rстац больше минимального расстояния от ОТСС до границы контролируемой зоны.

Для обеспечения безопасности рекомендуется использовать камеры видеонаблюдения.

В ходе выполнения курсовой работы были изучены теоретические сведения о каналах утечки информации ПЭМИН, способах съема такой информации, а также возможностям защиты.

Также изучена работа программно-аппаратного комплекса поиска побочных электромагнитных излучений и наводок «Навигатор» и получены навыки по проведению специальных исследований по выявлению техническогоканала утечки информации ПЭМИН методом разности панорам.

Данный метод является вторым по степени автоматизации, среди других методов. Участие оператора требуется только для запуска и отключения тестового режима работы исследуемого монитора.

Из-за того, что работа велась со слабыми сигналами, часть из которых идентифицировать может только человек, то по качеству получаемых результатов используемый метод поиска уступает другим методам, таким как экспертный и аудио-визуальный. Разница в результатах работы может проявиться при нахождении слабых сигналов, т.к. при методе разности панорам хорошо ведется поиск только сильные сигналы ПЭМИН, у которых соотношение сигнал/шум превышает уровень 6-10 дБ.

Время поиска ПЭМИН при методе разности панорам меньше чем при других методах и занимает около 10 минут.

Исходя из этого, можно сделать вывод, что используемый нами метод поиска сигналов ПЭМИН является удобным и быстрым, но не самым точным, в сравнении с другими методами. Его хорошо использовать для нахождения сильных сигналов ПЭМИН.

Список литературы:


1.   Результат побочных электромагнитных излучений [Электронный ресурс]. - Режим доступа: http://infoforum.kz/rezultat-pobochnyx-elektromagnitnyx-izluchenij/

2.      "Базовая модель угроз безопасности персональных данных при их обработке в информационных системах персональных данных" (Выписка) (утв. ФСТЭК РФ 15.02.2008)

.        Термины и определения [Электронный ресурс]. - Режим доступа: http://dehack.ru/intro/term_opred/

.        Зайцев А.П .Технические методы и средства защиты информации // А.П Зайцев - М.: Машиностроение, 2009

.        Защита компьютерной информации от утечки по ПЭМИН [Электронный ресурс]. - Режим доступа:http://www.support17.com/component/content/39.html?task=view

.        ПЭМИН [Электронный ресурс]. - Режим доступа: http://www.bnti.ru/showart.asp?lvl=03.02.01.&aid=538

.        Защита компьютерной информации от утечки по ПЭМИН [Электронный ресурс]. - Режим доступа: http://www.support17.com/component/content/39.html?task=view

.        Программно-аппаратный комплекс поиска побочных электромагнитных излучений и наводок «Навигатор». Описание применения. ЛИБЮ.424400.012 РЭ


Приложение 1

 

Протоколы измерений комплекса «Навигатор»

Точка 1, вертикальная поляризация. ПЭМИ электрического поля

Категория 1

Интервал частот, МГц R2стац R2воз R2нос R1 R1'

.010000-1218.200001 15.0 5.0 3.0

Категория 2

Интервал частот, МГц R2стац R2воз R2нос R1 R1'

.010000-1218.200001 6.0 3.0 2.0

Категория 3

Интервал частот, МГц R2стац R2воз R2нос R1 R1'

.010000-1218.200001 4.0 2.0 2.0

Горизонтальная поляризация

Категория 1

Интервал частот, МГц R2стац R2воз R2нос R1 R1'

.010000-1218.200001 6.0 3.0 2.0

Категория 2

Интервал частот, МГц R2стац R2воз R2нос R1 R1'

.010000-1218.200001 3.0 2.0 2.0

Категория 3

Интервал частот, МГц R2стац R2воз R2нос R1 R1'

.010000-1218.200001 2.0 2.0 1.0

Точка 2, вертикальная поляризация. ПЭМИ электрического поля

Категория 1

Интервал частот, МГц R2стац R2воз R2нос R1 R1'

.010000-1218.200001 6.0 3.0 2.0

Категория 2

Интервал частот, МГц R2стац R2воз R2нос R1 R1'

.010000-1218.200001 3.0 2.0 2.0

Категория 3

Интервал частот, МГц R2стац R2воз R2нос R1 R1'

Горизонтальная поляризация

Категория 1

Интервал частот, МГц R2стац R2воз R2нос R1 R1'

.010000-1214.800001 5.0 3.0 2.0

Категория 2

Интервал частот, МГц R2стац R2воз R2нос R1 R1'

.010000-1214.800001 3.0 2.0 2.0

Категория 3

Интервал частот, МГц R2стац R2воз R2нос R1 R1'

.010000-1214.800001 2.0 2.0 1.0

Похожие работы на - Определение требуемого радиуса КЗ для защиты конфиденциальной информации от утечки по каналу ПЭМИН

 

Не нашли материал для своей работы?
Поможем написать уникальную работу
Без плагиата!
Без нейросетей!