Економічна ефективність розробки і впровадження стандартів. Класифікація еталонів

  • Вид работы:
    Контрольная работа
  • Предмет:
    Другое
  • Язык:
    Украинский
    ,
    Формат файла:
    MS Word
    25,73 Кб
  • Опубликовано:
    2013-10-23
Вы можете узнать стоимость помощи в написании студенческой работы.
Помощь в написании работы, которую точно примут!

Економічна ефективність розробки і впровадження стандартів. Класифікація еталонів

МІНІСТЕРСТВО ОСВІТИ І НАУКИ, МОЛОДІ ТА СПОРТУ УКРАЇНИ

КРАСНОАРМІЙСЬКИЙ ІНДУСТРІАЛЬНИЙ ІНСТИТУТ

ДВНЗ «ДОНЕЦЬКИЙ НАЦІОНАЛЬНИЙ ТЕХНІЧНИЙ УНІВЕРСИТЕТ»


Кафедра Інженерної механіки






КОНТРОЛЬНА РОБОТА

з дисципліни

«МЕТРОЛОГІЯ, СТАНДАРТИЗАЦІЯ, СЕРТИФІКАЦІЯ, АКРЕДИТАЦІЯ ТА УПРАВЛІННЯ ЯКІСТЮ»


Варіант № 25

Виконав Железнов І.М.

студент групи МО-09-8V курсу заочного відділення

Перевірив Вірич С.О.



Красноармійськ - 2012

ЗМІСТ

Вступ

.        Теоретичні питання

.1      Економічна ефективність розробки і впровадження стандартизації

.2      Класифікація еталонів

.        Задача

Висновки

Список використаної літератури

ВСТУП

Перехід України до ринкової економіки визначив нові умови для діяльності вітчизняних виробників будь-якої форми власності не тільки на внутрішньому, але і на зовнішньому ринках. Успіх окремих підприємств і галузей економіки цілком залежить від того, наскільки їхня продукція чи послуга відповідає стандартам якості.

При цьому дуже важливо враховувати прагнення України стати повноправним членом Європейського Союзу, що прийняв директиви, які містять обов`язкові для європейського ринку вимоги до безпеки і якості продукції. Умовою виконання директив є сертифікована система якості підприємства-виготовлювача.

Основна мета дисципліни «Метрологія, стандартизація, сертифікація, акредитація та управління якістю» - дати майбутнім фахівцям теоретичні основи і практичні рекомендації з організації планування якості продукції і послуг на підприємствах і в організаціях, ознайомити з новими методами і принципами стандартизації продукції і послуг, ознайомити з основними метрологічними методами одержання, обробки і нагромадження вимірювальної інформації, основними принципами і схемами сертифікації продукції і послуг; ознайомити студентів з основними вимогами до іспитових лабораторій і порядком їхньої акредитації.

1. Теоретичні питання

.1      Економічна ефективність розробки і впровадження стандартизації

Під економічною ефективністю стандартизації розуміють підвищення продуктивності суспільної праці чи економію витрат живої і відтвореної праці, що пов'язано із задоволенням різноманітних потреб суспільства. Цей критерій у найбільш загальному вигляді відображає економічну корисність здійснюваних заходів зі стандартизації. Разом із цим в кожному окремому випадку цей критерій має свій конкретний зміст і форму вираження.

Оцінка економічної ефективності стандартизації базується на основі порівняльних методів - порівняльній оцінці собівартості, продуктивності нової техніки, - і характеризується величиною експлуатаційних витрат, тобто усіх основних показників продукції, які безпосередньо регламентуються нормативними документами (НД). У процесі вибору методу стандартизації ставиться завдання із двох і більше варіантів виявити найбільш ефективний. Для того щоб цей вибір був науково обґрунтованим, оцінка економічної ефективності стандартизації має бути повною, комплексною і враховувати всі витрати на проведення заходів щодо створення, виробництва і використання товарів та послуг. Комплексний підхід дозволяє враховувати й аналізувати у взаємозв'язку всі технічні, економічні та організаційні фактори, які впливають на ефективність стандартизації на різних етапах розробки, упровадження НД і експлуатації стандартної продукції.

Економічний ефект стандартизації є важливим показником при обґрунтуванні доцільності розробки і використання НД, вибору оптимальних параметрів та параметричних рядів об'єктів, раціонального розподілення ресурсів і оцінки подальшого розвитку стандартизації. Причому визначення економічного ефекту від стандартизації дозволяє привести показники якості продукції до відповідності сучасним досягненням науки і техніки.

Важливу роль в економіці країни відіграє економія ресурсів, яка забезпечується методами стандартизації. Дані щодо економії, які виражаються в натуральних чи грошових одиницях, характеризують вклад стандартизації в розв'язання цієї проблеми. Економія досягається за рахунок поліпшення якості виробленої продукції в сфері її експлуатації, а також росту валютної виручки через підвищення конкурентоспроможності товарів та послуг на світових ринках.

Наочним свідченням впливу стандартизації на економіку країни є постійний зріст її економічної ефективності. Аналіз великого обсягу статистичних даних показує, що економічний ефект від впровадження стандартизації в різних сферах діяльності розподіляється таким чином:

- науково-дослідні, дослідно-конструкторські та проектно-конструкторські роботи - близько 30-35 %;

- сфера виробництва - близько 15-20%;

- сфера експлуатації - близько 50%.

Основні джерела економічного ефекту від впровадження нових НД:

- зниження собівартості та наведених витрат продукції у виробника за рахунок зменшення кількості типорозмірів, зниження витрат на заробітну плату, створення спеціалізованого виробництва, непотрібність розробки креслень, технології, спеціального оснащення;

- збільшення строку служби ресурсів, зменшення амортизаційних відрахувань;

- підвищення надійності продукції;

- зменшення тривалості випробувань та дефектної продукції, поліпшення її якості та підвищення строку зберігання;

- підвищення продуктивності праці.

Стандартизація належить до сфери державного управління, без якої не може існувати промисловість, оборона і країна в цілому. Цей вид діяльності пов'язаний з усіма іншими видами діяльності, що відображається на економічній ефективності роботи підприємств та організацій країни.

Розв'язання проблеми використання загальної методології розрахунків економічної ефективності стандартизації незалежно від виду об'єкта має велике наукове значення. Науково обґрунтована методика визначення економічної ефективності стандартизації базується на єдиних методологічних принципах, основним із яких є отримання народногосподарського ефекту в суспільному виробництві.

В основу методологічного підходу покладено всебічний облік усіх можливих витрат при впровадженні НД. Методологія визначення економічної ефективності стандартизації включає такі основні положення:

Оцінка економічної ефективності стандартизації має бути комплексною і враховувати всю різноманітність економічних, організаційних і технічних наслідків стандартизації.

При визначенні економічного ефекту враховуються масштаби впровадження заходів зі стандартизації.

Величина економічного ефекту визначається за весь період дії НД.

Ступінь ефективності визначається шляхом зіставлення витрат на розробку і впровадження НД з величиною ефекту від його використання.

Визначення величини народногосподарського економічного ефекту має починатися з початкової стадії і супроводжувати весь процес розробки НД на об'єкт стандартизації. Відповідно до встановлених правил стандартизації кожний проект НД повинен мати обґрунтування та розрахунки економічної ефективності. Розроблений НД подають на розгляд і затвердження з техніко-економічним розрахунком ефективності, який потрібний для прийняття рішення про його затвердження та впровадження в промисловість.

Після впровадження НД у виробництво на основі даних фактично отриманих результатів при проектуванні, виробництві та експлуатації об'єктів стандартизації може бути розрахована величина фактичного економічного ефекту. Зіставлення даних очікуваного і фактичного економічного ефекту дає змогу зробити аналіз змін економічних показників унаслідок проведення робіт зі стандартизації, установлення повноти впровадження НД та оцінювати роботу в галузі стандартизації.

Визначення економічної ефективності стандартизації базується на методах порівняння розрахунку економічної ефективності шляхом зіставлення економічних результатів до і після проведення робіт зі стандартизації. Отриманий результат цілком залежить від бази порівняння, тому чітке встановлення правил її вибору може забезпечити достовірність проведених розрахунків. У процесі удосконалення економічних основ теорії стандартизації удосконалювалися і підходи до вибору бази порівняння. Як базу порівняння приймають досягнутий рівень техніко-економічних показників, які відображені в НД, за якими виробляється продукція. Додержуючись цього принципу, розробник НД може показати тільки дійсну та істинну величину економічного ефекту, яка, в першу чергу, характеризує прогресивність нового виробу.

При проведенні розрахунків економічної ефективності впровадження НД економічні наслідки впровадження порівнюють з витратами, які пов'язані з розробкою і впровадженням НД. Розміри останніх бувають дуже значними, особливо витрати на впровадження НД, які здійснюються не одноразово, а поступово. Деякі НД можуть впроваджуватись протягом. кількох років, тому при розрахунках враховують фактор часу.

До основних показників економічної ефективності стандартизації належать:

- річна економія (різниця витрат на розробку, виготовлення та експлуатацію стандартизованого об'єкта);

- річний економічний ефект (це результат зіставлення річної економії та витрат на розробку і впровадження НД, які приведені до одного розрахункового року);

- коефіцієнт економічної ефективності (слугує для порівняння з нормативним коефіцієнтом економічної ефективності, який становить 0,15);

- термін окупності витрат (величина, яка визначає період часу, протягом якого витрати на розробку і впровадження НД мають окупитися).

Економічний ефект від стандартизації відображає результати впровадження у виробництво нової техніки, прогресивної технології, удосконалення виробництва, сприяє переводу на якісно новий рівень усіх елементів виробничого процесу. У циклі "наука - виробництво" стандартизація є завершальним етапом наукових розробок, конструкторських і технологічних опрацювань нових видів продукції (товарів, послуг) та концентрує результати впровадження наукових досягнень у виробництво. Утворювальними елементами економічної ефективності є витрати на проведення наукових досліджень фундаментального і прикладного характеру, на конструкторські опрацювання, виготовлення дослідних зразків та інше. Величина економічного ефекту є основним показником оцінки діяльності підприємств - розробників і виробників продукції, оскільки вона відображає реальний вклад розробника та виробника в підвищення ефективності суспільного виробництва. Економічний ефект неможливо розподіляти пропорційно витратам, і тому вводять коефіцієнт значущості робіт.

Багато заходів зі стандартизації мають соціальний характер і оцінюються специфічними методами та показниками. Наприклад, впровадження НД системи безпеки праці оцінюється за допомогою показників зниження виробничого травматизму і професійних захворювань. НД на системи уніфікованої документації полегшують управлінську працю, скорочують об'єм листування, дозволяють використовувати технічні засоби й обчислювальну техніку. [1]

Викладені основні методологічні принципи є загальними для визначення економічної ефективності робіт зі стандартизації.


.2 Класифікація еталонів

Для забезпечення єдності вимірювань необхідна чітка тотожність одиниць, в яких були б проградуйовані усі засоби технічних вимірювань однієї й тієї самої фізичної величини. Це досягається шляхом точного відтворення та збереження прийнятих на Міжнародній конференції з мір і ваги одиниць фізичних величин і передачі їх розмірів засобам вимірювань.

Відтворення, збереження та передача розмірів одиниць проводиться за допомогою еталонів та зразкових засобів вимірювань. Вищою ланкою у метрологічному колі передачі розмірів одиниць вимірювання фізичних величин є еталони.

Еталон одиниці фізичної величини - це засіб вимірювальної техніки, який забезпечує відтворення та зберігання одиниці фізичної величини та передавання її розміру відповідним засобам, що стоять нижче за повірочною схемою, офіційно затверджений як еталон.

Всі основні одиниці фізичних величин відтворюються з найвищою точністю за допомогою міжнародних еталонів відповідних одиниць і зберігаються у Міжнародному бюро мір та ваги у спеціальних лабораторіях у м. Севра поблизу Парижа. Програмою діяльності Міжнародного бюро мір та ваги передбачені систематичні міжнародні зіставлення національних еталонів великих метрологічних лабораторій різних держав з міжнародними еталонами та між собою.

Еталони метра та кілограма звіряються раз на 25 років, електричні та світлові еталони - раз на 3 роки. Проводяться також епізодичні міжнародні звіряння еталонів джерел іонізаційного випромінювання, платинових термометрів опору, температурних ламп тощо. Основне призначення еталонів - бути матеріальною базою для відтворення та збереження одиниць фізичних величин.

Міжнародні та національні еталони поділяються на первинні та вторинні еталони. Первинним називається еталон, за допомогою якого відтворюється одиниця фізичної величини з найвищою точністю відповідно у світі й державі. За точністю відтворення одиниці він є найточнішим. Первинні еталони одиниць основних фізичних величин відтворюють одиниці відповідно до їхнього визначення, прийнятого Міжнародною конференцією з мір та ваги. Наприклад, первинний еталон метра у довжинах світлових хвиль випромінювання криптону-86.

Для відтворення одиниць в особливих умовах, в яких пряма передача розміру одиниці від еталонів технічно неможлива із заданою точністю, розробляються та затверджуються спеціальні еталони.

Первинні та спеціальні еталони офіційно затверджуються для держави як первинні і називаються державними еталонами. Державні еталони затверджуються Держстандартом, і на кожний з них ухвалюється державний стандарт.

Державні еталони зберігаються у метрологічних інститутах або центрах держави, а для проведення робіт з ними призначаються відповідальні вчені, зберігачі еталонів.

У метрологічній практиці широко використовують вторинні еталони, значення яких встановлюється за найточнішими первинними еталонами.

За своїм метрологічним призначенням вторинні еталони поділяються на еталони-копії, еталони передавання, еталони-свідки та робочі еталони.

Еталон-копія є вторинним еталоном, призначеним для зберігання одиниці та передачі її розміру робочим еталонам. Він не завжди може бути фізичною копією державного еталону.

Еталон-свідок - вторинний еталон, призначений для повірки збереження державного еталона та для заміни його у разі псування або втрати. Еталон-свідок має найвищу серед вторинних еталонів точність та використовується лише тоді, коли державний еталон не можна відтворити.

Робочий еталон - вторинний еталон, призначений для збереження одиниці й передачі її розміру зразковим засобам вимірювальної техніки а в окремих випадках - робочим засобом вимірювальної техніки найвищої точності.

Державні еталони завжди представляють комплекс засобів вимірювань та допоміжних пристроїв, які забезпечують відтворення одиниці фізичної величини, а в необхідних випадках її збереження та передачу розміру одиниці вторинним еталоном.

Вторинні еталони можуть подаватися у вигляді комплексу засобів вимірювань, поодиноких і групових еталонів та еталонних приладів.

Поодинокий еталон складається з одного вимірювального засобу (міри, приладу), який забезпечує відтворення та збереження одиниці самостійно, без участі інших засобів вимірювання того самого типу. Прикладом поодинокого еталона є вторинний еталон одиниці маси - кілограм у вигляді платино-іридієвої та сталевої гирі.

Груповий еталон складається із сукупності однотипних засобів вимірювань, що використовуються як одне ціле для підвищення надійності збереження одиниці. Прикладом групового еталона є еталон-копія вольта у вигляді 20 нормальних елементів.

Вторинні еталони (робочі) використовуються у метрологічних інститутах, метрологічних територіальних органах Держстандарту України, а з дозволу Держстандарту України допускається їх зберігання та використання в органах відомчої метрологічної служби. [2]

2. Задача

стандартизація еталон фізичний

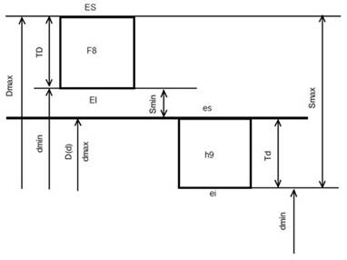
Задане з'єднання гладких поверхонь Ø15 . Для заданого сполучення встановити:

         вид посадки,

         визначити граничні відхилення та граничні розміри сполучених поверхонь.

         визначити параметри посадки.

         побудувати схему розташування полів допусків і нанести необхідні позначення.

Розв’язання:

1.      Визначимо номінальні розміри поверхонь

-        отвору D = 15 мм,

-        валу d = 15 мм.

2.      Для заданих полів допусків відповідно ГОСТ 25347 - 82 визначимо граничні відхилення розмірів:

-    отвору D 15 F8 ):

верхнє граничне відхилення ES = 43 мкм =0,043 мм

нижнє граничне відхилення EI = 16 мкм =0,016 мм

-    валу d 15 h9 ():

верхнє граничне відхилення es = 0 мкм = 0 мм

нижнє граничне відхилення ei = - 43 мкм = 0,043 мм

3.      Визначимо граничні розміри поверхонь

- отвору:

Найбільший діаметрDmax = D + ES = 15 + 0,043 = 15,043 мм

Найменший діаметрDmin = D + EI = 15 + 0,016 = 15,016 мм;

валу:

Найбільший діаметрdmax = d + es = 15 + 0 = 15 мм

Найменший діаметрdmin = d + ei = 15 - 0,043 = 14,957 мм

4.      Побудуємо схему посадки для заданого з'єднання:


. Зі схеми розташування полів допусків виходить, що тип посадки - посадка зазору .

Визначимо параметри посадки:

Допуск розміру отвору:

TD = Dmax - Dmin = ES - EI = 0,043 - 0,016 = 0,027 мм

Допуск розміру валу:

 = dmax - dmin = es - ei = 0 - (-0,043) = 0,043 мм

Найбільший натяг:

Nmax = dmax - Dmin = es - EI = 0 - 0,016 = -0,016 мм

Найбільший зазор:

Smax = Dmax - dmin = ES - ei = 0,043 - (-0,043) = 0,086 мм

Найменший зазор:

Smin = Dmin - dmax = EI - es = 0,016 - 0 = 0,016 мм

Допуск посадки зазору :

Ts = Smax - Smin = TD + Td. =0,086 + (-0,016) = 0,07 мм

ВИСНОВКИ

У цій роботі ми розглянули два питання («економічна ефективність розробки і впровадження стандартизації» та «класифікація еталонів») та розв’язали задачу. Проаналізувавши перше питання, можно сказати, що стандартизація сприяє проведенню раціональної організації та компетентного управління різними галузями економіки. Вона впливає на розвиток господарства як у цілому в країні, так і в окремих галузях виробництва, що обумовлено її багатогранною природою і можливостями. Проведення робіт зі стандартизації, особливо розробка і впровадження НД, має економічні, технічні та соціальні наслідки для всієї економіки. Причому ці наслідки можуть бути в різних сферах дуже суперечливими і мати протилежну спрямованість. Якщо впровадження НД створює економічний ефект у виробництві та експлуатації стандартизованої продукції, то впровадження цього НД завжди доцільно. Однак досить часто впровадження окремих НД та випуск стандартизованої продукції більш високої якості вимагає від виробника значних додаткових витрат, що може бути невигідним для виробника, оскільки це підвищує собівартість її виготовлення. У той же час при експлуатації така продукція вигідна, адже має підвищені споживні властивості. І навпаки, істотну перевагу може отримати виробник, наприклад при проведенні широкої уніфікації виробничих процесів, а споживач цих переваг не відчує. Проаналізувавши друге питання, можна зробити висновок, що прийняття на Міжнародній конференції з мір і ваги одиниць фізичних величин і передачі їх розмірів засобам вимірювань було важливою подією, що знайшла своє відображення у багатьох сферах людської діяльності.

СПИСОК ВИКОРИСТАНОЇ ЛІТЕРАТУРИ

1.      Кириченко, Л. С. Стандартизація і сертифікація товарів та послуг : Підручник. - Х. : «Ранок», 2008. - с. 70.

2.      В.Д. Цюцюра, С.В. Цюцюра. Метрологія та основи вимірювань: Навчальний посібник. - К.: «Знання -Прес», 2003. - с. 95.

Похожие работы на - Економічна ефективність розробки і впровадження стандартів. Класифікація еталонів

 

Не нашли материал для своей работы?
Поможем написать уникальную работу
Без плагиата!
Без нейросетей!