Технологія поверхневого відновлення валу плазмовим напиленням
Вступ
поверхневий плазмовий напилення вал
З підвищенням робочих швидкостей, тиску, температур,
агресивності середовищ, посилюванням умов, характерних для роботи сучасного
виробництва, збільшується й інтенсивність зношування, корозії й інших видів
пошкодження поверхні металу деталей і механізмів, що контактують з
оброблюваними матеріалами і зношуючими середовищами.
Процес руйнування поверхні сталей і сплавів при зношуванні -
явище надзвичайне складне, залежне від багатьох взаємопов'язаних одночасно
діючих чинників, що включають як хімічний, структурний склад, механічні та
фізичні властивості власне металу, з якого виготовлена деталь, так і аналогічні
характеристики матеріалу, що оброблюється чи переробляється, або середовища, а
також зовнішніх умов процесу спрацьовування - робочого тиску, температури,
швидкості взаємного переміщення в зоні контакту деталі та контртіла, ступені
агресивності середовища.Пошуки зносостійких металів і сплавів - досить широка,
специфічна і наукомістка область інженерної діяльності, що вимагає широких
знань про процеси, які відбуваються у робочій поверхні деталі, що зношується, в
умовах експлуатації.
Суть відновлення деталей полягає в тому, що воно дозволяє
зменшити потреби в виготовленні запасних частин. При відновленні досягаються велика
економія сировини. Особливо велике значення відновлення полягає в зменшенні
витрат металу.
Головним призначенням напилення є захист корозії різних
конструкцій, ремонт зношених деталей машин. Напиленням можна наносити покриття
з найбільш різними властивостями.
В даний час для відновлення зношених деталей порошковими
сплавами найбільш ефективні методи: плазмове, газополуменеве і детонаційне
напилення. Висока продуктивність процесу, незначний нагрів деталі, висока
зносостійкість, простота викоритання обладнання - це все суттєві переваги
напилення, як способу нанесення покрить на деталі, що відновлюються.
Серед багатьох можливих способів потрібно вибрати один, з
урахуванням економічної доцільності, який найбільш задовольняв би вимоги
оптимальності, економічності, технологічності. Мета роботи: відновлення
черв’ячного валу плазмовим напилюванням з врахуванням економічної доцільності,
розробити технологічний процес напилення черв’ячного валу «Лебідки черв’ячної з
ручним приводом», обрати для відновлення зношеної поверхні деталі
високопродуктивного обладнання. В процесі розробки курсової роботи необхідно
вирішити наступні задачі:
дослідити де і в яких умовах працює дана деталь;
розробити ремонтне креслення вала;
підібрати порошок, метод, установку для напилення та обробки
деталі;
розробити і прорахувати технологічний процес.
Порівняно з іншими методами відновлення і обробки поверхонь,
напилення має ряд переваг:
. Напиленням можна наносити різні покриття із найбільш
різноманітних матеріалів. Так, наприклад, метали можна наносити на скло, фарфор
і таке інше.
. Рівномірне покриття можна напиляти, як на велику площу, так
і на органічні ділянки великих виробів.
. Напилення і наплавка являються найбільш ефективними
методами у випадках, коли необхідно значно зменшити розміри деталей. Цими
методами можна наносити шари товщиною в декілька міліметрів.
. Для напилення можна використовувати різні метали і сплави,
а також велику кількість з’єднань і їх суміші.
. Основа, на яку виконується напилення, мало деформується,
тоді коли при інших методах відновлення необхідно нагрівати деталі до високих
температур, що призводить до їх деформації.
1. Аналіз конструкції та технологічності деталі
1.1 Призначення деталі
Деталь відноситься до класу вантажнопідйомні пристрої.
Рисунок 1.1. Лебідка черв’ячна з ручним приводом для підйому ляд.
Лебідка ручна з черв'ячним приводом призначена для підйому і
переміщення вантажів при проведенні будівельно-монтажних, ремонтних та інших
робіт. Відрізняється простотою в експлуатації, надійністю конструкції і високим
рівнем безпеки при роботі.
Деталь «Черв’ячний вал» працює у вузлі «Лебідка черв’ячна
ручна, для підйому ляд (Зусилля 300кгс) »
1.2 Матеріал деталі та його властивості
Деталь «Черв’ячний вал» виготовляється зі сталі 40X за ГОСТ 4543-88, використовується як
вал, для передачі крутного моменту, працює на згин і кручення, запускає в рух
шестерню барабан.
Таблиця 1.1- Хімічний склад у % матеріалу Сталь 40Х ГОСТ
4543-88
|
Найменування
|
Значення
|
|
Вміст азоту (N) , %
|
0..0,008
|
|
Вміст кремнію (Si), %
|
0,17..0,37
|
|
Вміст марганцю (Мn), %
|
0,5..0,8
|
|
Вміст міді (Сu), %
|
0..0,3
|
|
Вміст нікелю (Ni), %
|
0..0,3
|
|
Вміст сірки (S), %
|
0..0,035
|
|
Вміст вуглецю (С), %
|
0,36..0,44
|
|
Вміст фосфору (Р), %
|
0..0,035
|
|
Вміст хрому (Cr), %
|
0,8..1,1
|
Таблиця 1.2 Механічні властивості Сталі 40Х ГОСТ 4543-88
|
Найменування
|
Значення
|
|
Контекст
|
|
|
Відносне звуження , %
|
4,5
|
|
гартування 860ºС (масло) + відпуск 500ºС (вода)
|
|
|
Відносне подовження після розриву , %
|
10
|
|
гартування 860ºС (масло) + відпуск 500ºС (вода)
|
|
|
Густина , кг/м3
|
7850
|
|
|
|
|
Межа міцності , МПа
|
980
|
|
гартування (масло) + відпуск 500ºС (вода)
|
|
|
Межа текучості , МПа
|
785
|
|
гартування 860ºС (масло) + відпуск 500ºС (вода)
|
|
|
Зварюваність
|
Важкозварна
|
|
|
|
Твердість по Бріннелю , НВ
|
217
|
відпал
|
|
Температура кування , ºС
|
1250..800
|
|
|
Флокеночутливість
|
чутлива
|
|
|
|
|
|
|
|
Таблиця 1.3 Технологічні якості матеріалу Сталь 40Х
|
Зварюванність
|
Важко зварюється
|
|
Флокеночутливість
|
чутлива
|
|
Схильність до відпускної крихкості
|
схильна
|
Твердість матеріалу Сталь 40Х після відпалу НВ=248
.3 Кількісна характеристика технологічності черв’ячного валу та визначення коефіцієнтів
уніфікації
Таблиця 1.4 - Кількісний аналіз
|
Лінійні розміри
|
Діаметральні розміри
|
Кутові розміри
|
Шорсткість
|
Різь метрична
|
|
2*
|
Æ20*
|
45° (4 пов.)
|
0,63 * (2 пов.)
|
М20×2,5-6g
|
|
2 *
|
Æ28*
|
|
1,25 *(4 пов.)
|
|
|
2*
|
Æ28*
|
|
2,5 * (1 пов.)
|
|
|
3 *
|
Æ30*
|
|
15 * (13 пов.)
|
|
|
4 *
|
Æ30 *
|
|
|
|
|
4 *
|
Æ30*
|
|
|
|
|
4*
|
Æ38*
|
|
|
|
|
24h12(-0.28)
|
Æ38*
|
|
|
|
|
24h12(-0.28)
|
Æ38*
|
|
|
|
|
24h12(-0.28)
|
Æ60*
|
|
|
|
|
24h12(-0.28)
|
|
|
|
|
|
25*
|
|
|
|
|
|
25*
|
|
|
|
|
|
30*
|
|
|
|
|
|
35
|
|
|
|
|
|
35
|
|
|
|
|
|
70
|
|
|
|
|
|
110*
|
|
|
|
|
|
160*
|
|
|
|
|
|
320*
|
|
|
|
|
|
Sзаг. = 20
|
Sзаг. = 10
|
Sзаг. = 4
|
Sзаг. = 22
|
Sзаг. = 1
|
|
Sуніф. = 15
|
Sуніф. = 10
|
Sуніф. = 4
|
Sуніф. = 22
|
Sуніф. = 1
|
Примітка: позначення «*» мають уніфіковані розміри.
(1.1)
Qye - кількість уніфікованих елементів;e -
загальна кількість елементів.
Таблиця 1.5 - Визначення коефіцієнта
точності обробки
|
Квалітет (розміри)
|
Кількість поверхонь
|
Розрахунок
|
|
7 (Æ30h7-0,021 (3 пов); Æ38h7-0.025(3пов)
|
6
|
7×6 = 42
|
|
8 (Æ60h8-0.046)
|
1
|
8×1 = 8
|
|
12( □24h12-0.21)
|
4
|
12×4=48
|
|
14(поверхні з розмірами 320,160, 110, 70, 35(2
пов.), 30,25 (2 пов.), 4,3,2, 2×45°(2 пов), 4×45°(2 пов), правий та лівий
торці.
|
18
|
14×18 = 252
|
|
Сума
|
29
|
350
|
(1.2)
де,
(1.3)
де, Ті - квалітет точності оброблюваних поверхонь даної
деталі;і - кількість поверхонь деталі з точністю відповідно за 0..17
квалітетами.
Таблиця 1.6 - Коефіцієнт шорсткості
поверхні
|
Шорсткість (розміри)
|
Кількість поверхонь
|
Розрахунок
|
|
0,63 ((Æ60h8-0,046-Æ38h7-0,025)*5°42';
|
2
|
0,63×2 = 35,04
|
|
1,25 (Æ30h7-0,021,(3 пов.); Æ38h7-0,025;
|
4
|
1,25×4 = 5
|
|
2,5 (Æ60h8-0,046)
|
1
|
2,5×1 = 2,5
|
|
10 (Æ38h7-0,025(2 пов.) ,3,2,
2×45°(2 пов), 4×45°(2 пов), правий та лівий
торці, поверхня 30мм, □24h12-0.21 (2 пов.)
|
15
|
10×15 = 150
|
|
Сума
|
22
|
192
|
(1.4)
де, Шср - середня шорсткість поверхні, мкм;
(1.5)
де, Ші - шорсткість оброблюваних поверхонь даної деталі,
мкм;і - кількість поверхонь, що мають шорсткість, яка відповідає числовому
значенню параметра Ra, мкм.
Отже, Ку=0,91>0,6; Кт=0,08>0,8; Кш=0,11<0,32.
Отже деталь за кількісними показниками є технологічною.
.4 Якісна
характеристика технологічності
Деталь «черв’ячний вал» - є частиною складової «лебідка черв’ячна для підйому ляд». Виготовляється зі сталі 40X за ГОСТ 4543-88, використовується як вал, для передачі
крутного моменту, працює на згин і кручення, запускає в рух шестерню барабан.
Рисунок 1.2. - Робоче креслення черв’ячного валу
Основні конструкторські бази деталі - це дві зовнішні
циліндричні поверхні з розмірами Æ30h7(-0.021), що слугують
для закріплення валу у вузлі.
Найбільш точними поверхнями є 2 поверхні під підшипники з
діаметрами Ø30h7(-0,021). Аналіз також
показав, що більш точними є поверхня черв’яка діаметром Ø 38h7(-0,025).
Також ці поверхні зношуються в результаті знакозмінни навантажень, втомного
зношування та абразивного зношування. Таким чином, дві зовнішні циліндричні
поверхні з розмірами Æ30h7(-0.021) - основні конструкторські бази
деталі. Різьбова поверхня з розміром М20×2,5-6g та поверхня □24h12 (-0.21)
є допоміжними конструкторськими базами. Торець лівий Æ30, торець правий Æ20, поверхні Æ30h7(-0.021), 2
циліндричні поверхні Æ38h7(-0.025), циліндрична поверхня Æ30h7(-0.021), дві
проточки шириною 2мм та 3мм, 2 фаски 4×45° та 2 фаски 2×45°є вільними поверхнями
конструкторської бази.
Оскільки, Ку>0,6; Кт>0,8; Кш<0,32,
то деталь за кількісними показниками є технологічною.
Деталь має хороші базові поверхні для виконання більшості
операцій. Вказані на кресленні деталі квалітети точності механічної обробки
відповідають параметрам шорсткості. Вона можуть бути забезпеченими на верстатах
з числовим програмним керуванням.
Так як деталь має центрові отвори то вісь обертання може бути
використана при базуванні.. Застосування штучних технологічних баз не є
виправданим, оскільки існують центрові отвори, які забезпечують найвищу
точність встановлення деталі під час механічної обробки.
Заготовка, з якої виготовляється деталь, виготовляється
методом точіння. Це є найоптимальнішим методом.
2. Визначення типу ремонтного виробництва
Тип виробництва - це техніко-економічна характеристика
виробництва, яка обумовлена спеціалізацією виробничих процесів, стабільністю
номенклатури, ритмічністю і величиною обсягу виробництва. Загалом виділяють три
основні типи виробництва: одиничний, серійний (з модифікаціями дрібносерійний
та крупносерійний) та масовий. Для визначення типу виробництва необхідно
розрахувати коефіцієнт спеціалізації Ксп :
Ксп=((Дк-Дв)*m*Тзм*60)/(t*N),
(2.1)
Де Дк - кількість календарних днів у році (365
днів),
Дв - кількість вихідних та святкових днів в даному
році (123 дні),- число змін роботи, приймаємо 2 зміни,
Тзм - тривалість зміни, годин, приймаємо 7 годин,
- коефіцієнт переведення годин в хвилини,- тривалість
виконання технологічної операції на даному робочому місці (або норма часу),
хв,- кількість виробів (деталей, вузлів, тощо), які обробляються на даному
робочому місці за рік, шт.
Керуючись формулою, розраховуємо коефіцієнт спеціалізації:
Ксп = ((365-123)*2*7*60)/(5*2000)=20
Він відповідає середньосерійному типу виробництва.
Для даного типу виробництва обирається організація дільниці з
розташуванням верстатів за типом. У цьому випадку треба обирати універсальні
верстати та пристосування з спеціальними наладками. Дані для оцінки типу
виробництва приведені в таблиці 2.1.
Таблиця 2.1. - Характеристика типу виробництва
|
Маса деталі в кг
|
Кількість деталей, які підлягають обробці у
виробництві, шт
|
|
Одиничне
|
Малосерійне
|
Середньо-серійне
|
Великосерійне
|
Масове
|
|
До 2,5
|
До10
|
10…1000
|
1000-50000
|
500000-100000
|
100000 і більше
|
|
2,5-5,0
|
До10
|
10…500
|
500-35000
|
35000-75000
|
75000 і більше
|
|
5,0-10,0
|
До10
|
10…300
|
300-25000
|
25000-50000
|
50000 і більше
|
|
10-50
|
До10
|
10…200
|
200-10000
|
10000-25000
|
25000 і більше
|
|
50 і >
|
До5
|
5…100
|
100-300
|
300-1000
|
5000 і >
|
Якщо відносно таблиці 2.1.
виробництво малосерійне, то потрібно знаходити такт випуску за формулою:
,
[хв] (2.2)
де Фд л - дійсний фонд часу роботи лише за рік;
- кількість днів за рік;
Двих - суботі та вихідні дні (104);
Дсв - кількість святкових днів за рік (8);
Кр = 0,93 - коефіцієнт, що
враховує утрати часу на ремонт;
Кр п = 0,95 -
коефіцієнт, що враховує регламент перерви;
Пв - piчнa програма
випуску, шт. /кількість деталей, що підлягають обробці;
- кількість змін;
7 - кількість годин на робочій зміні
Якщо виробництво малосерійне, то
потрібно знаходити партію запуску деталей за формулою:
(2.3)
де Пзaп - величина партії запуску деталей, шт.;
Пв - річний об'єм випуску деталей, шт.;
Рд_ кількість робочих днів за рік;
Рд=365-Двих-Дсв=365-105-8 = 253дня-
необхідний запас деталей на складі в днях коливається від 5 до 8 днів.
Для дрібних i середніх деталей g = 6...8. Для великих g = 5...7.
Вихідні дані - кількість деталей, що підлягають обробці
Пв= 2000 шт.
Відносно таблиці 2.1. тип виробництва середньо-серійний.
Так, як виробництво середньо-серійне, знаходимо величину партії запуску
за формулою:
[шт]
(2.4)
Для визначення типу виробництва користуються коефіцієнтом закріплення
операцій, тобто кількістю різних операцій, що виконуються на одному робочому
місці протягом місяця. Згідно з ГОСТ 3.1121-84 коефіцієнт закріплення операцій
для групи робочих місць визначається за формулою:
КЗО = О/Р, (2.5)
де О - кількість різних операцій, які виконуються на робочих місцях
дільниці чи в цеху;
Р - кількість робочих місць на дільниці чи в цеху.
ГОСТ 3.1108-84 рекомендує наступні значення коефіцієнта закріплення
операцій в залежності від типу виробництва: для одиничного виробництва - Кзо
> 40; для малосерійного виробництва - 20 < Кзо < 40; для
середньо-серійного виробництва - 10 < Кзо <20; для
великосерійного виробництва - 1 < К3 о < 10; для масового
виробництва - Кзо = 1. Приймаємо КЗО=20. Це
означає,що обробку деталі модна виконувати на верстатах з ЧПК.
3.Дефектування
.1 Аналіз дефектів, що відновлюються
Дефекти, що розглядаються відносяться до групи механічного
зносу (знос металевих пар, абразивний знос), пошкоджень і є поправними. Дефекти
1, 2, 3 розташовані на зовнішній циліндричній поверхні вала Æ30 мм, Æ60 мм, Æ30 мм відповідно. Тобто їх
можливо і доцільно ремонтувати. Дефекти виникають при зношуванні зовнішньої
поверхні вала під посадку підшипника ( дефекти 1, 2) та зношуванні черв'ячної (
дефект 3 ). Вал знаходиться під значним впливом навантажень. Основні причини
через які виникає знос поверхонь, це те що є механічна взаємодія поверхонь які
контактують між собою. Така взаємодія викликає руйнування оксидних плівок, яких
не віддаляються за межі контакту і діють як абразив. Головна з причин
виникнення дефектів є те, що виникає дія підвищених статичних та динамічних
навантажень, які спричиняють напруження згину та кручення.
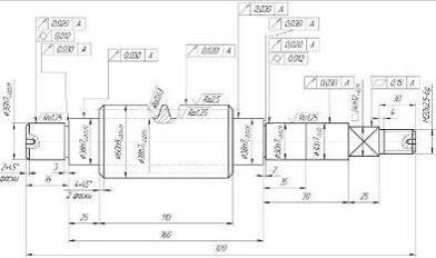
3.2 Побудова ремонтного креслення
Рисунок 3.1. - Ремонтне креслення черв’ячного валу
Таблиця 3.1 Дефекти
|
Дефекти
|
Спосіб вимірювання дефекта
|
Розміри, мм
|
|
|
Номінальний
|
Допустимий
|
Спрацювання поверхні під підшипник Штангенциркуль ШЦ-IІ ГОСТ
<#"652658.files/image012.gif">30,001
|
|
4. Аналіз вибору методу відновлення
.1 Переваги та недоліки основних методів нанесення покриття
напиленням
Плазмове напилення. Суть методу полягає в тому, що порошковий
присаджувальний матеріал подається транспортуючим газом у зону дії плазми, яка
розплавляючи порошок напиляє його на деталь. Плазмове напилення дозволяє
наносити покриття із матеріалів різного хімічного складу; висока
продуктивність; повна автоматизація керуванням процесу; плазмові пальники дозволяють
у широких межах регулювати енергетичні характеристики плазми, що полегшує
отримання покрить з потрібними технологічними властивостями.
Газополуменеве напилення. Перевагами цього методу є: невелике
окислення металу, достатньо велика міцність покриття. До недоліків слід
віднести: порівняно невелику продуктивність процесу ( від 2 до 4 кг напилюємого
металу за годину).
Детонаційне напилення. Недоліками цього методу є: відновлення
деталей з невеликим зносом (отримуються шари 0.2...0.4 мм), низька продуктивність,
складність обладнання, що використовується та неможливість нанесення покрить на
деталі, що обертаються.
.2 Висновки по вибору методу напилення
Порівнявши ряд переваг та недоліків існуючих методів
нанесення покриття, обрахувавши економічну доцільність використання цих методів
та технологічну можливість використання наявного обладнання, обираємо саме
плазмове напилення для відновлення “Черв’яного валу”, оскільки цей спосіб, у
порівнянні із газополуменевим і електродуговим, має ряд переваг: дозволяє
наносити покриття із матеріалів різного хімічного складу; висока
продуктивність; повна автоматизація керуванням процесу.
Найголовнішим в нашому випадку є те, що більша швидкість
польоту частинок порошку та висока температура їх нагріву в момент зустрічі з
підложкою забезпечують більш високі, ніж при інших способах напилення,
механічні властивості покриття і більш міцне його з’єднання з поверхнею деталі.
Також, при даному виді напилення відсутня деформація деталі
після відновлення, можливе відновлення деталей порівняно малих розмірів
(мінімальний діаметр циліндричних деталей складає 10 мм), порівняно із іншими
видами напилення найвищі характеристики продуктивності.
Цей спосіб покриття широко застосовується в тих галузях
машинобудування, де нанесенням стійких сплавів необхідно захистити деталі машин
від зносу, корозії, ерозії, угару, теплових ударів, кавітації, гідро-ударів,
оскільки кулачковий вал працює в мастильному середовищі.
Для того, щоб обрати раціональний метод нанесення покриття
напиленням, необхідно провести порівняльний аналіз характеристик таких видів
напилення як: газополуменевого, детонаційного, електродугового та плазмового.
5. Вибір матеріалу для напилення
Порівнявши ряд переваг та недоліків існуючих методів
нанесення покриття, обрахувавши економічну доцільність використання цих методів
та технологічну можливість використання наявного обладнання, обираємо саме
плазмове напилення для відновлення “Черв’яного валу”, оскільки цей спосіб, у
порівнянні із газополуменевим і електродуговим, має ряд переваг: дозволяє
наносити покриття із матеріалів різного хімічного складу; висока
продуктивність; повна автоматизація керуванням процесу.
Найголовнішим в нашому випадку є те, що більша швидкість
польоту частинок порошку та висока температура їх нагріву в момент зустрічі з
підложкою забезпечують більш високі, ніж при інших способах напилення,
механічні властивості покриття і більш міцне його з’єднання з поверхнею деталі.
Також, при даному виді напилення відсутня деформація деталі
після відновлення, можливе відновлення деталей порівняно малих розмірів
(мінімальний діаметр циліндричних деталей складає 10 мм), порівняно із іншими
видами напилення найвищі характеристики продуктивності.
Цей спосіб покриття широко застосовується в тих галузях
машинобудування, де нанесенням стійких сплавів необхідно захистити деталі машин
від зносу, корозії, ерозії, угару, теплових ударів, кавітації, гідро-ударів,
оскільки кулачковий вал працює в мастильному середовищі.
Для того, щоб обрати раціональний метод нанесення покриття
напиленням, необхідно провести порівняльний аналіз характеристик таких видів
напилення як: газополуменевого, детонаційного, електродугового та плазмового.
У якості підшару візьмемо порошок ПГ-12Н-03, який
використовується як у якості підшару, так і у якості основного шару покриття
поверхні. Даний порошок напилюється товщиною 0,8 мм на оброблену поверхню.
Використовується як зносостійке покриття деталей. Володіє високою стійкістю як
в лужних, так і в окислюючи середовищах. Міцність його з’єднання є досить задовільною
і складає 50МПа. У зв’язку із вмістом у порошку 45%Ті, покриття з даного
порошку має твердість HRC 60.
Таблиця 5.1. - Хімічний склад порошку
ПГ-12Н-03
|
C,%
|
B,%
|
Si,%
|
Ni,%
|
Cr,%
|
Fe,%
|
|
0.5 - 1.5
|
2.5 - 3.5
|
3.5- 5.5
|
Осн.
|
12 - 18
|
3.5 - 5
|
6. Технологічний процес відновлення подвійного черв’ячного валу
.1 Операції технологічного процесу напилення зобразимо
наступною схемою
Таблиця 6.1 “ Технічний процес
відновлення ”
|
№опе-рації
|
Найменування опе-рації та технічний переходів
|
Схема установлення
|
Обладнення
|
|
|
005
|
Мийна Установити; Мити;
|
|
Мийна машина
|
|
|
010
|
Дефектування
|
|
Стіл, інструмент
|
|
|
015
|
Токарна Установ 1. Установити і зняти деталь; Точити
поверхню 1 однократно; Установ 2. Переустановити деталь; Точити поверхню 2 однократно;
|
Установ 1. Установ 2.
|
Токарний верстат 16К20Ф3
|
|
|
020
|
Напилення Установ 1. Установити і зняти деталь;
Напилити поверхню 2;
|
Установ 1.
|
Установка для напилення А16Г2.У4 «Київ-4»:
|
|
|
Установ 2. Переустановити деталь; Напилити поверхню 1;
|
Установ 2.
|
|
|
|
025
|
Шліфувальна Установ 1. Установити і зняти деталь;
Шліфувати поверхню 1 пропередню; Шліфувати поверхню 1 пропередню; Шліфувати
поверхню 1 остаточно; Установ 2. Переустано вити деталь; Шліфувати поверхню 2
пропередню; Шліфувати поверхню 2 пропередню; Шліфувати поверхню 2 остаточно;
|
Установ 1. Установ 2.
|
Шліфува-льний верстат моделі 3К225В
|
|
|
|
|
|
|
|
6.2 Розрахунок припусків на механічну обробку
Припуск - шар матеріалу, що видаляється з поверхні заготівлі
для досягнення заданих властивостей оброблюваної поверхні деталі. Припуск на
обробку поверхонь деталей може бути призначений по довідкових таблицях або на
основі розрахунково-аналітичного методу. Розрахунковою величиною припуску є
мінімальний припуск на обробку, достатній для усунення на виконуваному переході
погрішностей обробки і дефектів поверхневого шару, отриманих на попередньому
переході або операції і компенсації погрішностей, що виникають на виконуваному
переході. Мінімальний припуск при обробці зовнішніх і внутрішніх поверхонь
(двосторонній припуск)
;(6.1)
при обробці поверхонь обертання в центрах
;(6.2)
при послідовній обробці протилежних поверхонь (однобічний
припуск):
;(6.3)
при рівнобіжній обробці протилежних поверхонь (двосторонній припуск):
де Rzi-1 - висота нерівностей профілю на попередньому
переході; i-1 -глибина дефектного поверхневого шару на попередньому
переході (зневуглецьований або вибілений шар); ДУi-1 - сумарні
відхилення розташування поверхні (відхилення від паралельності,
перпендикулярності, співвісності) на попередньому переході; еi -
погрішність установки заготівлі на виконуваному переході.
Відхилення ДУ необхідно враховувати в заготівель
(під перший технологічний перехід); після чорнової і напівчистової обробки
лезвійним інструментом (під наступний технологічний перехід), після термічної
обробки. У зв'язку з закономірним зменшенням величини ДУ; при
обробці поверхні за кілька переходів на стадіях чистової й оздоблювальної
обробки нею зневажають.
На основі розрахунку проміжних припусків визначають граничні
розміри заготівлі по всіх технологічних переходах. Проміжні розрахункові
розміри встановлюють у порядку, зворотному ході технологічного процесу обробки
цієї поверхні, тобто від розміру готової деталі до розміру заготівлі, шляхом
послідовного додатка (для зовнішніх поверхонь) до вихідного розміру готової
деталі проміжних припусків або шляхом послідовного вирахування (для внутрішніх
поверхонь) від вихідного розміру готової деталі проміжних припусків. Найменші
(найбільші) граничні розміри по всіх технологічних переходах визначають шляхом
округлення убік збільшення (зменшення) розрахункових розмірів. Округлення
роблять до того знака десяткового дробу, з яким даний допуск на розмір для
кожного переходу.
Найбільші (найменші) граничні розміри визначають шляхом
додатка (вирахування) допуску до округленого найменшого (найбільшому)
граничному розмірові.
Граничні значення припусків Zmax визначають як
різниця найбільших
(найменших) граничних розмірів і Zmin як різниця
найменших (найбільших)
граничних розмірів попереднього і виконуваного (виконуваного
і попереднього) переходів.
Загальні припуски Z0max і Z0minвизначають
як суму проміжних припусків на обробку:
0 max = УZ i max; (6.5)0 min = УZ i min;
(6.6)
Правильність розрахунків визначають по рівняннях:
i max - Zi min = Ti-1 - Ti; (6.7)
2Zi max - 2Zi min = TDi-1 -
TDi ; (6.8)
Z0 max - Z0 min = Tз - Tд;
(6.9)
Z0 max - 2Z0 min = TDз - TDд;
(6.10)
де Ti-1, TDi-1 - допуски розмірів на
попередньому переході;Ti, TDi -допуски розмірів на
виконуваному переході; Tз, TDз - допуски на заготівлю; Tд,
TDд - допуски на деталь. При необхідності знаходять номінальні
розміри. Для зовнішніх поверхонь номінальний розмір заготівлі дорівнює
найбільшому розмірові, тобто:
а = аmax; (6.11)
на кресленнях вказують:
аmax(-T); (6.12)
для внутрішніх поверхонь номінальний розмір заготівлі
дорівнює найменшому розмірові, тобто:
а = аmin (6.13)
на кресленнях указують
(6.14)
Якщо допуск розташований симетрично відносного номінального
розміру, то
(6.15)
У рівняннях (6.11) - (6.15) а, аmax,аmin -
відповідно номінальні, найбільші, найменше граничні розміри заготовок.
Так як заготовка центрується за допомогою центрових отворів то е = 0.
ДУ =
837,5 мкм,
де 
-
загальне зміщення, при прокаті = 0;

-
загальне жолоблення;
Припуски, а також граничні проміжні і вихідні розміри заготовки зручно
визначати, заповнюючи спеціальну таблицю (табл. 4.1).
Розрахунок припуску на обробку поверхні D=Æ 30h7
:
Відповідно
заданим умовам установлюємо маршрут обробки поверхні Ø
: (табл..
5.1) уся зазначена обробка виконується з установкою заготовки в центрах.
Заносимо
маршрут обробки в графу 1 табл.6.1.
Розрахунок ∆∑ при напиленні та установленні
штампованої заготовки в патрон:
(6.16)
[3].
=
мкм,
ДК - питома кривизна, мкм на 0,8 мм довжини; [2].
L - довжина деталі, 320 мм;
Для дефекту Д1 діаметр становить Ø
і цей дефект будем напилювати плазмовим способом. Для плазмового напилювання
обираємо граничні допуска (200…300).

мкм.
Приймаємо 300.
Визначаємо
кількість ступенів механічної обробки:
S = 
(6.17)
- чорнова S = 5…6
напівчистова S = 3…4
чистова S = 1,5…2
S = 4∙4∙1,75 = 28.57 - шліфувати будем 3
рази:
попереднє ( чорнове) шліфування;
попереднє ( напівчистове) шліфування;
остаточне ( чистове) шліфування.
Розраховуємо ДУ по переходах механічної обробки:
∆к - питома кривизна штамповки термічної обробки
(довідник Горбацевич табл. 4.8), ∆к = 0,8 мм
Шліфування: попереднє( чорнове), попереднє (чистове),
остасточне (чистове) розраховується за формулою (записуємо в 4 колонку).

мкм
(6.18)

Визначаємо
похибка установлення:
Похибка
установлення в центрах дорівнює нулю.
Розрахунок мінімальних припусків:
На діаметральні розміри для кожного переходу визначають:
Попереднє (чорнове) шліфування (мкм)
Попереднє
(напівчистове) шліфування

Остасточне
(чистове) шліфування

Розрахунки заносимо до колонки 6 табл.6.1
Розрахунок найменших розрахункових розмірів по технологічних переходах
робимо, складаючи значення найменших граничних розмірів, що відповідають
попередньому технологічному переходові, з величиною припуску на виконуваний
перехід:
;
(6.19)
Ø

мм
(записуємо в колонку 7 «Чистове шліфування»)

мм;
(7 колонка «Напівчистове шліфування»)


мм;
(7 колонка «Чорнове шліфування»)


мм.
(7 колонка «Заготовка»)
Найменші розрахункові розміри заносимо в колонку 7 табл.6.1. Найменші
граничні розміри (округлені) заносимо в колонку 10 табл.5.1
Визначимо мінімальний діаметр dmin для кінцевого переходу:
dmin =
29,98+0,021=30,001 мм. (6.20)
Розрахунок найбільших розрахункових розмірів по технологічних переходах
робимо, складаючи значення найбільших граничних розмірів, що відповідають
попередньому технологічному переходові, з величиною допуску на виконувані
розміри.
(6.21)
=
30,001+0,021=30,022 мм;
=30,05+0,033=30,083
мм;
=30,62+0,052=30,672
мм;
=31,38+0,2=31,78
мм;
Результати розрахунків вносимо в графу 9 табл. 6.1.
Розрахунок фактичних максимальних і мінімальних припусків по переходах
робимо, віднімаючи відповідно значення найбільших і найменших граничних
розмірів, що відповідають виконуваному і попередньому технологічному переходам:
Максимальні припуски: мм Мінімальні припуски: мм
,58-30,672=0,91 31,38-30,62=0,76
,672-30,083=0,59 30,62-30,05=0,57
,083-30,001=0,08 30,05-29,98=0,07
Результати розрахунків заносимо в колонки 11 і 12 табл. 6.1.
Розрахунок загальних припусків робимо по рівняннях:
найбільшого припуску 2Z 0 max = УZ max =
0,91+0,59+0,08 =1,58 мм;
найменшого припуску 2Z 0 mіn
= УZ max = 0,76+0,57+0,07 = 1,4 мм,
Перевірку правильності розрахунків проводимо по рівнянню (6.9):
Z 0 max - Z 0 min = 1,58-1,4= Tз - Tд = 0,2 - 0,021=0,18 мм.
Визначаємо товщину напиленого шару:
Dпісля токарної обробки=30-2*0,2=29,6 мм
Dпісля напилення=31,58 мм
ДнапилюванняMAX = (31,58-29,6)/2=0,99 мм
ДнапилюванняMIN
= (31,38-29,6)/2=0,89 мм
Таблиця 6.2 - Припуски та граничні розміри. Розрахунковий
мінімальний припуск на обробку:
|
Маршрут обробки поверхні діаметром D2 Ø Елементи припуску, мкмРозрахункові величиниДопуск на викон
розміри, мкм
|
Прийняті (округлені) розміри заготовки по переходах,
мм
|
Граничн припуск, мкм
|
|
|
|
|
Rzмкм
|
hTдефмкм
|
ДУс
|
е
|
припуску Zi, мкм
|
мінім діаметра, мм
|
|
найбільші
|
найменші
|
Zmax
|
Zmin
|
|
1
|
2
|
3
|
4
|
5
|
6
|
7
|
8
|
9
|
10
|
11
|
12
|
|
Заготовка (плазмове напилювання)Шліфування:
однократне
|
Rz=80
|
40
|
256
|
200
|
752
|
31.376
|
200
|
31.58
|
31.38
|
|
|
|
|
|
|
|
|
|
|
|
|
|
|
|
Чорнове (9 квалітет)
|
10
|
20
|
256
|
0
|
752
|
30,624
|
52
|
30,672
|
30,62
|
0,91
|
0,76
|
|
Напівчистове (8 квалітет)
|
8
|
18
|
10,24
|
0
|
572
|
30,052
|
33
|
30,083
|
30,05
|
0,59
|
0,57
|
|
Чистове (6 квалітет)
|
5
|
15
|
0,2048
|
0
|
72,48
|
29,979
|
21
|
30,001
|
29,98
|
0,08
|
0,07
|
|
|
|
|
|
|
|
|
|
|
|
У1,4
|
7. Опис технологічного процесу Операція 015 - токарна
7.1 Розрахунок
режимів різання при точінні
Вибір верстату.
Обираємо верстат 16К20Ф3
Вибір інструменту.
Різець прохідний з пластинкою з твердого сплаву Т5К10
Геометричні параметри інструментів:
ц - головний кут в плані - 450;
г - передній кут - 100;
л - кут нахилу головної ріжучої кромки 00;- радіус
при вершині різця - 1 мм.
Глибина різання t.
Глибина різання: t=0,2÷0,3. Приймаємо 0,2 мм;
Визначаємо подачу s.
Розміри прямокутного перерізу оправки - мм,. Подача: 0,4 -
0,5 мм/об. Приймаємо подачу 0,45 мм/об. За паспортом верстата приймаємо
S=0.41мм/об
Знаходимо швидкість різання.
При зовнішньому повздовжньому і поперечному точінні:
;
(7.1)
де, Сv
- коефіцієнт;, y, m, q -
показники степенів;- глибина різання, мм;- подача мм/об;
Т - період стійкості інструменту;v - загальний поправочний
коефіцієнт на швидкість різання.
Період стійкості (Т) - це період роботи інструмента до затуплення
для різних видів обробки, він відповідає умовам одно-інструментної обробки
Період стійкості Т=30 ÷60 хв, приймаємо 60 хв.= 350,= 0,15,=
0,35,= 0,2,- добуток коефіцієнтів Kмv, Kпv, Kиv,
Коефіцієнт Сv та показники степенів x,
y, m визначаються:
- в залежності від виду обробки металу,
- матеріалу ріжучої частини різця,
характеристики подачі,
від виду оброблюваного матеріалу.
Значення Сv, x, y, m обираємо як для
конструкційної сталі, з межею міцності ув = 700 МПа.
;
r
- коефіцієнт (сталь вуглецева С<0,6%) = 0,95
ув =700 МПа,v - показник степеня для розверстування nv = 1.0,
=0,9643.
Кпv = 0,8 иv = 0,65
;
(7.2)
Kv - поправочний коефіцієнт на швидкість різання.
;
м/хв.
Знаходимо частоту обертання, n.
Діаметр оброблюваної поверхні 
мм,
визначаємо частоту обертання:
(7.3)
Вибираємо із паспорта верстата менше ближче нормоване значення частоти
обертання. В нашому випадку обираємо n=1250.
Знаходимо дійсну швидкість різання:
(7.4)
Знаходимо силу різання Pz.
(7.5)
де , Ср - коефіцієнт;
x, y, - показники степенів;
t -
глибина різання, мм;
S - подача
мм/об;
Vд - дійсна швидкість різання;
Kр - загальний поправочний
коефіцієнт на швидкість різання.
(7.6)
Коефіцієнт Ср та показники степенів x, y
визначаються в залежності від оброблюємого матеріалу, виду операції та
матеріалу ріжучої частини.= 300;=1;= 0,75;= -0,15;
Коофіцієнт Kmp визначається за формулою:

n=0,75
цp
=1 гp = 1лp = 1= 0,93

Визначаємо потужність.
Потужність різання визначають за формулою

(7.7)
Порівнюємо з потужністю верстата верст = 10 (кВт) >N
Обробка на даному верстаті можлива.
Визначаємо основний час:
(7.8)
-
кількість обертів шпинделя для верстатів з обертальним рухом, або число
подвійних ходів за хвилину для верстатів з прямолінійним рухом;
S - подача за один оберт або один подвійний хід головного
руху, мм;
L=lep+l+lпер=0.5+1.5+0=2 (7.9)
lep=t/tgц=0,2/tg45o=0.5 мм
lпер=1…2 мм.,=0
.2 Вибір обладнання для напилення
Операція 020.
Вибір плазмової установки
У комплект обладнання для плазмового напилення входять
наступні вузли:
плазмотрон;
механізм транспортування порошкових чи проволочних
матеріалів;
пульт керування, у якому зосереджені вимірювальні,
регулюючі і блокуючи пристрої;
джерело живлення дуги;
джерело і приймач води для охолодження;
комплекс комунікацій, що з’єднують окремі вузли
установки і забезпечують підведення енергії, води і газів до плазмотрона.
Струм і газ, які підводять до установки, а також охолоджуюча
вода взаємозв’язані. Їх взаємозв’язок полягає в тому, що електрична схема
включення напруги, підведеної до плазмового пальника від джерела струму,
заблокована контактами реле тиску, які встановлені в системі охолодження водою,
а також контактами реле тиску, які встановлені в системі живлення
плазмоутворюючим газом.
У випадку недостатніх витрат та тиску газу чи води спрацьовує
відповідне реле і автоматично відключає джерело струму, запобігаючи від
розплавлення плазмотрон.
Радіус обслуговування визначається довжиною гнучкого кабелю,
який забезпечує підведення струму і охолоджуючої води до плазмотрона.
Для напилення даної деталі обираємо універсальну установку
А1612.У4 «Київ-4».
Технічні характеристики плазмової установки А16Г2.У4 «Київ-4»:
– рекомендована потужність джерела струму 48 кВт;
– напруга холостого ходу 140В;
– максимальний струм 300 А;
– сила струму дуги 300 А;
– робоча напруга дуги 85...95 В;
– робочий газ: суміш метану з повітрям;
– витрати робочого газу - 3...4м3/год;
– витрати води - 0,5м3/год
– вага комплекту 900 кг,
– ККД - 75%,
– коефіцієнт використання матеріалів 70%,
Вибір плазмотрона
Під час напилення використовують плазмову дугу непрямої дії,
яка виникає між анодом (мідне сопло, що охолоджується) і вольфрамовим катодом.
Катод і анод є основними складовими плазмотрона.
Класифікація плазмотронів основана на способах стабілізації
дуги: магнітна, водяна, газова.
В залежності від способу подачі газу (перпендикулярно до
стовпа дуги чи вздовж нього), газова стабілізація буває вихровою чи аксіальною.
Максимальне стискання дуги досягається саме при вихровій
стабілізації. Аксіальна стабілізація забезпечує ламінарний плазмовий потік і
задовольняє формування стовпа плазмової дуги у каналі електропровідного стовпа.
Порошок і
транспортуючий газ попадають у високотемпературну область плазмового струменя.
Плазмотрони, що призначені для роботи із порошковими матеріалами, найпоширеніші
в практичному напиленні через переваги у регулюванні хімічних і фізичних
властивостей напиленого шару.
Для даної обраної установки виберемо плазмотрон ПП - 6 - 01 з
наступними технічними характеристиками: струмом дуги 500 А, продуктивністю 3-5
кг/год, вагою 1,8 кг та потужністю дуги у 30 кВА. Рекомендовані гази для
напилення за допомогою даного плазмотрона - аргон, азот, водень та їх суміші.
Живильник
Живильники, при напиленні поверхонь деталей, використовують з
метою подачі порошкоподібних матеріалів, що напилюються, у плазматрон. Від
стабільності роботи живильників залежить якість покриття, що наноситься на
деталь. Особливо на якість покриття впливає конструкція дозуючого пристрою
живильника, яка повинна забезпечувати неперервність подачі, точність дозування
і плавність регулювання.
Для дозування порошкового матеріалу під час нанесення
покриття обираємо
живильник, дозуючим
пристроєм якого бункер та тарілка.
Живильник відноситься до пристроїв для плазменно-порошкового
наплавлення або напилення порошків. Запропонований порошковий живильник, що
містить корпус-камеру, у верхній частині якої розміщений бункер для порошку,
вихідний отвір якого поєднане з кільцевої завантажувальної канавкою обертового
диска, розміщеного в корпус-камері, а в нижній - привід обертання диска, згідно
винаходу забезпечений розміщеним на корпус-камері в протилежній стороні від
бункера ежектором зі надзвуковим соплом і з збірними патрубком забірної камери,
поєднаним з кільцевої завантажувальної канавкою обертового диска, бункер для
порошку забезпечений ворошителя, розміщеним всередині нього і приводом
ворошителя. Забезпечується підвищення якості нанесеного покриття.
Живильник відноситься до пристроїв для плазменно-порошкового
наплавлення або напилення порошків із зернистістю 5 ... 350 мкм.
Тарілчастий живильник забезпечений розміщеним на
корпус-камері в протилежній стороні від бункера ежектором зі надзвуковим соплом
і з збірними патрубком забірної камери, поєднаним з кільцевої завантажувальної
канавкою обертового диска, бункер для порошку забезпечений ворошителя,
розміщеним всередині нього, і приводом ворошителя.
Таке технічне рішення відповідає критерію
"новизна".
Порошковий живильник містить бункер 2 для порошку з
розміщеним всередині ворошителя 3, привод 1 ворошителя, корпус-камера 4 з
розміщеним всередині обертовим диском 5 з кільцевої завантажувальної канавкою
(К) під порошок, привід обертання диска з енкодери 7, ежектор 8, що містить
надзвукове сопло (С), огорожну камеру (З.К.) з збірними патрубком і змішувальну
камеру (С.К.).
У перерізі 1-1 в сопло (С) надходить газ аргон, забірна
камера (З.К.) через забірний патрубок з канавки (К) забирає порошок, в перерізі
2-2 транспортної системи рухається суміш: газ (Ar) + порошок.
Рисунок 7.1- Схема живильник
Пропонований порошковий живильник працює таким чином.
У бункер 3 засипають порошок, який через випускний отвір
бункера заповнює канавку (К) за розміром вихідного отвору бункера 2, а
утворюють висипних ділянок в кільцевій завантажувальної канавці (К) за межею
вихідного отвору бункера, розташовуються по куту природного зсипання порошку
(30 °) . У сопло (С) подається газ аргон, який, проходячи змішувальну камеру
(С.К.), створює в забірної камері (З.К.) і забірного патрубка забірної камери
розрідження. При включенні привода 1, 6 диск 5 обертається і завантажувальна
кільцева канавка його заповнюється порошком під дією сили тяжіння порошку і
обертового ворошителя, таким чином не утворюється склепіння в зоні вихідного
отвору бункера 2.
У міру обертання диска 5 порошок з кільцевої завантажувальної
канавки (К) безперервно подається в патрубок забірної камери (З.К.) і за
рахунок сил розрідження надходить у змішувальну камеру (С.К.), де перемішується
з газом (Ar) і по транспортній системі до ежектора 8 рухається суміш: газ (Ar)
+ порошок, яка подається в плазмотрон.
Регулювання продуктивності порошкового живильника
здійснюється через електродвигун 7, зміною швидкості обертання диска 5,
використовуючи об'ємний метод контролю витрат.
7.3 Розрахунок режимів плазмового
напилення
Розрахунок об’єму плями напилення
(7.9)
де, d - діаметр (величина) плями напилення, значення якої коливається в
межах 15…25 мм. Вибираємо d=20 мм.- мінімальна товщина шару, напиленого за один
прохід (h=0,02 - 0,1 мм). Вибираємо h=0,1 мм.
Маса плями напилення:
(7.10)
де, r - густина
порошку (для порошків на нікелевій основі r = 8г/см3).
Лінійна швидкість напилення:
мм/с, (7.11)
(7.12)
де Р - продуктивність методу (Р=3÷5 кг/год). Приймаємо Р=4
кг/год.
Обчислюємо горизонтальну швидкість переміщення плазмотрона:
де D - діаметр деталі (D=30 мм);
К - коефіцієнт перекриття (К=0,45).
Швидкість обертання деталі:
(7.13)
Кількість проходів:
(7.14)
де Н - загальна товщина напиленого шару. Для порошку на нікелевій
основі Н=0,5...1 мм.
Беремо Н=0,8 мм.
Час напилення:
(7.15)
де, L - довжина
проходу, що дорівнює 35 мм.
Маса напиленого порошку
Mn=pпорошку*0.7*Vпов=0,008*0,7*2*3,14*15*35=18,46 г (7.16)
8.Розробляємо
карту технологічного процесу
Технологічний процес плазмового напилення включає кілька
послідовних операцій:
- підготовка порошків і поверхні під
напилення;
- напилення поверхні;
- механічна обробка;
- контроль якості.
8.1
Підготовка порошків
Для нанесення покрить методом плазмового напилення
використовують порошки заданої грануляції: 5 - 100 мкм. Обираємо 25 мкм. Перед
напиленням обов’язковим є процес просушування порошку на деках при температурі
150 - 200 оС протягом певного часу (залежить від виду порошку). Для
напилення візьмемо порошок ПГ-12Н-03, створений на нікелевій основі системи Ni
- Cr - B - Si - C - Fe. Його твердість регулюється вмістом C, B, Cr в межах 55
- 62 HRC. Напилені даним порошком поверхні мають допустиму робочу температуру
до 800°С. Цей
порошок використовують для напилення деталей корозійностійких, вуглецевих та
інших сталей. Властивість самофлюсування даного порошку обумовлена наявністю в
його складі бора і кремнію, які віднімають кисень від окислів.
.2 Підготовка деталі під напилення
Деталі, які підлягають напиленню, очищують від бруду, мастила
механічною обробкою. Механічна обробка забезпечує потрібну шорсткість поверхні
(точіння, абразивна обробка). Утворення необхідної шорсткості на поверхні під
обробку і подальшу наплавку є основною підготовчою операцією.
.3 Механічна обробка після напилення
Оскільки твердість покриття поверхні перевищує HRC 40 то в
якості механічної обробки після напилення обираємо абразивну обробку
шліфуванням.
При шліфуванні в результаті високого тертя зростає
температура, що загрожує відшаруванням, та підвищується небезпека виникнення
тріщин. Тому слід шліфувати із залишком охолоджуючої рідини.
Для шліфування обираємо круг 63С40П5СМ1К6. Це означає, що
даний круг виготовлений із зеленого карбіду кремнію, із зернистістю основної
фракції 6, із керамічною зв’язкою абразивних інструментів, середньо-м’який. [5]
Фізичні параметри круга:
Тип круга - ПП, прямого профілю (плоско-паралельний);
Діаметр круга - D(dк) = 600 мм.
Ширина - Н(Вк) = 63 мм.
Тип шліфування - зовнішнє.
Швидкість обертання круга визначається за формулою:
Vк= 
м/с,
обираємо 35 м/с. (8.1)
де nкр - частота обертання круга, яка дорівнює 1112 об/хв;
Швидкість обертання заготовки - Vдет = 15÷35 м/хв, обираємо 35м/хв.
Глибина шліфування - t = 0,005÷0,015 мм, обираємо 0,005 мм.
Розраховуємо повздовжню подачу: = (0,2 ÷ 0,4)Вк (8.2)= (0,2 ÷ 0,4)Вк = 0,3 ∙ 63 = 18,9
Круг встановлюємо шліфувальному верстаті моделі 3К225В.
Визначаємо кутова швидкість круга:
nk
1114,6
об/с; (8.3)
Визначаємо кутову швидкість деталі:
nд
(8.4)
Визначаємо поздовжню подачу на оберт деталі:
де, Sд=0,2…0,4
0,3
Визначаємо швидкість поздовжнього ходу стола
Vст=
(8.6)
Визначаємо потужність різання і сили різання
(8.7)
де, d- діаметр шліфування, 30 мм;
Vд - швидкість обертання деталі;
t -
глибина шліфування;
S - повздовжня подача;- діаметр деталі;
Cn=0,36;
r =
0,5;= 0,5;= 0,55;= 0.
Nріз=0,36
Визначаємо основний
час обробки:
То
(8.8)
де, KN - коофіціент точності який враховує час виходу при
кінцевій обробці дорівнює 1,4.
.4 Контроль якості
напиленого покриття
Існують якісні і
кількісні методи вимірювання міцності зчеплення. Кількісні методи у порівнянні
із якісними мають переваги, так як вимірюють абсолютні величини. Важкість
застосування цих способів полягає у високій собівартості спеціальних зразків.
Якісні методики
основані на відмінності фізико - механічних властивостей покрить (напилених) і
підложки. Метод контролю вибирають в залежності від властивостей покриття та
характеристик самої деталі.
Висновки
В процесі
експлуатації черв’ячних валів головним чином йде процес зношення
посадки під підшипник. Для подальшої безпечної експлуатації валу або необхідна
заміна зношених деталей новими або їх відновлення. Купівля нових деталей
потребує великих коштів. Це часто економічно недоцільно підприємствам. Існує
велика кількість методів відновлення поверхонь.
Відновлення деталей
методом газотермічного напилення дозволить продовжити термін служби деталей на
50-70%. Це, в свою чергу, призведе покращення наступних показників:
скорочення витрат на
нові інструменти за рахунок збільшення терміну служби деталей;
зменшення забруднення
навколишнього середовища.
З економічної точки
зору відновлення вала методом плазмового напилення дозволить завантажити
підприємство, що дасть економічний ефект від впровадження технології.
Для забезпечення
раціонального процесу напилення було розроблено та обране відповідне механічне
та допоміжне обладнання, яке дає змогу забезпечити високу продуктивність
напилення, зменшити трудомісткість та витрати часу.
Для напилення
запропонованої деталі «черв’ячний вал», обрано плазмове порошкове напилення і
проведено необхідні розрахунки.
В якості механічного
та допоміжного обладнання вибрано, розроблено та обраховано наступне:
верстат для
автоматичного обертання деталі під напилення 15ВБ;
тарілчастий
порошковий живильник;
плазмотрон марки
«ПП-06-01»;
інструмент для
механічної обробки (шліфувальний круг) 63С40П5СМ1К6.
Отже, підводячи
підсумки, дійшов висновку, що обраний технологічний процес напилення є
раціональним та економічно вигідним.
Використана література
1. Савуляк В.І., Івацько В.Т., “ Відновлення
деталей машин. Частина перша.” Вінниця: ВНТУ, 2004
2. Горбацевич А.Ф., Шхред В.А., Курсовое проектирование по технологии машиностроения, Минск: Высшая
школа, 1983
3. Нефедов Н.А. “Сборник задач и примеров по резанию
металлов и режущему инструменту”, М., Машиностроение, 1990;
4. Кащук В.А., Верещагін “Справочник шлифовщика”, М.,
Машиностроение, 1988;
. “Справочник технолога-машиностроителя”, В 2-х т. Т1/ Под ред. А.Г. Косиловой и Р.К. Мещерякова, М.,
Машиностроение, 1988;
. Молодик М.В., Лангерт Б.А., Бредун А.К.,
“Відновлення деталей машин”, К., “Урожай”, 1985;
. Баласанян Р.А., “Атлас деталей машин”, Х., Основа,
1996 - 256с.;
8. Лоскутов В.В., “Шлифовальные станки” М.,
Машиностроение, 1970;
9. Гриднев В.Н., Досчатов, “Справочник
технолога-машиностроителя”, М., Машиностроение, 1985.
10. Шиліна О. П., Осадчук А. Ю. “Газотермічні
методи напилювання покриття” , ВНТУ, Вінниця, 2005;
11. Іванов М.І., Дусанюк Ж.П., Дусанюк С.В.,
Іванова О.М., Шаргородський С.А “Технологічні основи сільськогосподарського
машинобудування Частина 1” - ВДАУ, Вінниця, 2007;
. Іванов М.І., Дусанюк Ж.П., Дусанюк С.В.,
Іванова О.М. “Технологічні основи сільськогосподарського машинобудування
Частина 2” - ВДАУ, Вінниця, 2009.
13. Авторське свідотство СРСР №1147657, кл. B 65 G 65/46. 1981. «Живильник для порошкових матеріалів». В.В.
Домбровський, Ф.П. Фєдотов, С.А. Долгих.
14. Библиотека технической литературы. Оборудование для плазменного напыления. Технические характеристики
плазменных установок для напыления.
15. http://www.plasmacentre.ru/technology/17.php
http://www.plackart.com/coatings/plazmennoe-pokrytie-napylenie.html://www.findpatent.ru/patent/226/2263725.html://weldzone.info/technology/gas-sputtering/811-plazmennoe-napylenie