Технологічний процес механічної оброки прошивного ролику
Курсова
робота
Розробити
технологічний процес механічної оброки прошивного ролику
Вміст
Вступ
.ЗАГАЛЬНА ЧАСТИНА
.1Опис призначення та
конструкції інструментом
.2 Матеріал інструмент
.3 Аналіз технологічності
конструкції
.4 Вибір типу виробництва
. РОЗРАХУНКОВА ЧАСТИНА
.1 Вибір та економічне
обґрунтування методу отримання заготовки
.2 Обґрунтування маршрутної
технології.
.3 Розрахунок припусків
.4 Розрахунок режимів різання
.5 Розрахунок технічних норм
часу
.6 Розрахунок вимірювального
інструменту
.7 Розрахунок пристрою
ВИСНОВКИ
ПЕРЕЛІК ПОСИЛАНЬ
Вступ
Розвиток техніки, створення нових
досконалих машин та приладів, відповідаючи вимогам світових стандартів,
супроводжується все більш широким та різноманітним використанням в конструкціях
всіляких видів труб.
Велика кількість труб широкого
сортаменту потребує хімічна, нафтовидобувна та газовидобувна, нафтоперероблююча
промисловість. Зростає попит на труби великого діаметру для газопроводів.
Механізація та меліорація сільського господарства, будівництво промислових та
житлових будівель культурних установ також неможливі без використання труб.
Для трубної промисловості характерні
висока концентрація та інтенсифікація виробничих процесів, більша ступінь
універсальності технології виробництва, швидкі темпи розвитку, широкий і
різноманітний сортамент виготовляємої продукції.
В трубній промисловості передбачено
більш широке використання можливостей, створюємих науково-технічним прогресом,
для прискореного розвитку продуктивних сил, створення принципіально нових
технологічних процесів, всемірного покращення якості продукції, підвищення
технічного рівню наявного обладнання, зниження матеріалоємності готової
продукції.
Найбільш перспективними способами
виробництва сталевих труб є в першу чергу такі, які забезпечують високу
продуктивність, можливість створення безперервних ліній і автоматизації
виробничих процесів, висока якість продукції при мінімальній витраті металу.
Значний технічний прогрес в області
виготовлення труб був досягнений у нашій країні завдяки найбільш сприятливим
схемам розподілу деформації між основними агрегатами установок, застосуванню
раціональних калібровок валків, використанню обчислювальної техніки для
розрахунку технологічних процесів та маршрутів виробництва, впровадження заходів,
забезпечуючих комплексну автоматизацію і механізацію процесів. Сюди потрібно
зарахувати прокатку на безперервному стані труб на утримуваємій водоохлоджуємій
оправці, підготовку передніх кінців гільз перед прокаткою на пілігрімовому
стані та інш..
Для якісного виготовлення труб
необхідний і якісний трубний інструмент, тому тема курсового проекту «Розробити
технологічний процес механічної оброки прошивного ролику» є актуальною.
1.
ЗАГАЛЬНА ЧАСТИНА
1.1
Опис призначення та конструкції інструментом
Першою операцією в загальній схемі
трубного виробництва є операція отримання полою заготівки, яка потім
розкатується в трубу. Якість полої заготівки, називаємою гільзою, в значній
мірі визначає наступну якість труб.
Для отримання гільз в теперішній час
використовують наступні способи:
. Прошивку на станах
поперечно-гвинтової прокатки
2. Прошивку на пресах
. Механічну розточку
Найбільше поширення отримав спосіб
прошивки круглої заготівки на прошивних станах поперечно-гвинтової прокатки.
Поступовий рух заготівки забезпечується
розворотом вісей робочих валків відносно вісі заготовки на кут подачі в різному
напрямі, але при однаковому напрямі обертання валків.
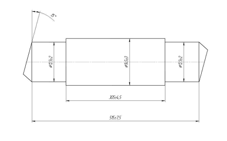
Робочою поверхнею ролику є зовнішня
поверхня конічної(8о) та циліндричної форми. Поверхні діаметром 75h8
і 90h8 використовуються для установки лінію. Закріплення лінію з роликом
здійснюється за допомогою штифтів скрізь два отвори діаметром 8 мм. Два отвори
діаметром 20 мм використовуються для установки ролику підчас механічної
обробки.
1.2
Матеріал інструмент
Робочим малюнком передбачено
виготовлення деталі з конструкційної легованої сталі 40 ХН ГОСТ 4543-71.
Хімічний склад сталі наводимо в таблиці 1.1.
Таблиця 1.1 Хімічний склад сталі
40ХН ГОСТ 4543-71 в %
|
C
|
Si
|
Mn
|
Ni
|
S
|
P
|
Cr
|
Cu
|
|
0,36-0,44
|
0,17-0,37
|
0,5-0,8
|
1-1,4
|
до 0,035
|
до 0,035
|
0,45-0,75
|
до 0,3
|
Технологічні властивості сталі 40ХН:
Зварюємість - важкозварюєма;
Флокеночуткість - чутка;
Схильність до відпальної крихкості -
схильна.
Призначення сталі 40ХН: Осі, вали,
шатуни, зубчасті колеса, вали екскаваторів, муфти, вали-шестерні, шпинделі,
болти, важелі, штоки, циліндри та інші відповідальні навантажені деталі, що
піддаються вібраційним і динамічним навантаженням, до яких пред'являються
вимоги підвищеної міцності і в'язкості. Валки рейкобалкових і великосортних
станів для гарячої прокатки металу.
Враховуючи умови роботи в вузлі
робимо висновок що дана марка сталі підібрана вірно і не потребує заміну на
іншу.
1.3
Аналіз технологічності конструкції
Дана конструкція ролику являє собою
тіло обертання складене з п’яти концентрично розташованих циліндричних
поверхонь. Враховуючи умови праці деталі в вузлах спростити її конструкцію
нераціонально; враховуючи технічні умови по термічній обробці матеріал деталі
обраний раціонально. Для отримання зовнішнього контуру деталі можна
використовувати багаторізцовий чи гідрокопіровальний полуавтомат. В деталі
відсутні важкодоступні для обробки місця. В процесі обробки мається можливість
суміщення установочних, технологічних та вимірювальних баз, а також виконання
різноманітних операцій на одних й тих самих установочних базах. Призначені
граничні відхилення розмірів та параметри шорсткості відповідають один одному
та не є завищені. Відхилення від взаємного положення поверхонь не є завищені та
знаходяться в кордонах геометричних похибок металорізальних верстатів
нормальної точності. Мається можливість безпосереднього виміру заданих на
креслені розмірів, що дозволить використовувати для контролю розмірів граничні
калібри та шаблони. Марка матеріалу та конфігурація деталі дозволяє отримати
заготівку раціональної форми. Рішення про спосіб отримання заготівки приймають
після виконання відповідних техніко-економічних розрахунків. Деталь нежорстка і
потребує використання допоміжних опор - центру.
Виконуємо кількісний аналіз.
Визначаємо коефіцієнт точності деталі
(1.1)
де: Аср - Середній
квалітет відхилення поверхні
(1.2)
де: k - квалітет відхилення
розміру;- кількість розмірів;
Визначаємо коефіцієнт шорсткості
деталі

(1.3)
де: Бср - середній
квалітет шорсткості;
(1.4)
де: c - шорсткість поверхні;-
кількість поверхонь;
Враховуючи вищесказане та проведені
розрахунки робимо висновок, що дана конструкція ролику є технологічною і не
викликає важкість при обробці.
1.4
Вибір типу виробництва
Для визначення типу виробництва
скористаємося таблицю 3.1 [3] «залежність типу виробництва від річного обсягу
виробництва та маси деталі». Так при річному обсязі виробництва N=10000 та масі
деталі mд=40 кг, приймаємо середньосерійний тип виробництва.
Серійний тип виробництва
характеризується постійністю випуску досить великої номенклатури виробів. Він
зумовлює партійний метод організації виробництва, коли запуск у виробництво
деталей або вузлів здійснюється партіями певного розміру при певному стійкому
чергуванні їх у часі. Це дозволяє організувати ритмічний випуск продукції. У
серійному виробництві організація праці відрізняється більш глибокої
спеціалізацією, ніж в одиничному. За кожним робочим місцем тут закріплено
виконання декількох певних деталей-операцій. Це вдосконалить прийоми обробки,
підвищує продуктивність праці. Випуск виробів серіями у відносно великих
кількостях дозволяє провести значну уніфікацію що випускається продукції і
технологічних процесів, виготовляти нормалізовані або стандартів ¬ помітні
деталі, що входять в конструктивні серії больошмі партіями, що зменшує їх
собівартість. Відносно великі розміри випуску, стабільність конструкції,
уніфікація деталей дозволяють використовувати поряд з універсальним спеціальне
високопродуктивне обладнання , Верстати-автомати, спеціальні інструменти і
пристосування. Повторюваність у випуску продукції обумовлює економічну
доцільність більш детальної розробки технологічного процесу, ніж в одиничному
виробництві. У технологічній документації встановлюються режими обробки,
обладнання, спеціальна оснастка і науково обгрунтовані технічні норми часу.
Стає економічно вигідним виключати
додаткову підгонку конструкції за рахунок забезпечення стабільності розмірів
надходять на складання деталей. В результаті зменшується питома вага ручних,
зокрема доводочних, робіт у загальній трудомісткості виготовлення продукції. На
основних виробничих операціях застосовується праця спеціалізованих робітників
середньої кваліфікації.
У цілому для серійного типу
виробництва характерні менші, ніж для одиничного, трудомісткість, матеріаломісткість
і собівартість однотипної продукції, так як тут більш високий рівень
продуктивності праці. Випуск продукції організовується за циклічно повторюється
графіком, під час оперативно-виробничого планування розробляються графіки
запуску і випуску продукції, встановлюється суворий порядок чергування виробів
у цехах, ділянках і робочих місцях.
Головною характеристикою серійного
типу виробництва є виготовлення деталі партіями. Розмір операційної партії
визначаємо за формулою:
(1.5)
де: N - річна програма випуску,
шт.;- кількість днів запасу заготівок на складі(t=4 дня);
Фд - кількість робочих
днів року(Фд=253 дня).
Розмір операційної партії повинен
бути кратним річному обсягу виробництва тому приймаємо n=200 шт..
2.
РОЗРАХУНКОВА ЧАСТИНА
2.1
Вибір та економічне обґрунтування методу отримання заготовки
Для вибору виду заготівки потрібно
розібрати всі види заготівок. Основними видами заготівок є відливка, прокат,
штамповка та поковка. Для заданого інструменту ефективніше вибрати штамповку та
поковку.
Поковки характеризуються меншою, ніж
у відливки шорсткістю поверхні, але більшою хвилястістю; підвищеною твердістю
поверхневого шару (корки), великими величинами припусків на обробку і невисокою
вартістю.
Поковка є пластичною, володіє
хорошою міцністю і високою надійністю, в зв'язку з цим їх часто застосовують в
металургійній, атомній та автомобільної промисловості, в яких немаловажним стає
опір виробів напрузі, ударного навантаження і втоми. Тому подальше застосування
поковок це використання їх у виробництві різних деталей і заготівок (колінвал,
редуктор, шпинделі тощо)
Штампування застосовуються для
виготовлення деталей з пластичних металів більш складною, ніж у виливків,
конфігурації.
При штампуванні можливе отримання
отворів будь-якої форми й конфігурації. Заготівля-штамповка відрізняється малою
шорсткістю поверхні, високою точністю, малими значеннями припусків на обробку
та найвищою вартістю. Заготівлі-штампування застосовують в тих випадках, коли є
поверхні, які неможливо обробити механічно, але потрібно їх високу якість.
Для точного вибору заготівки
потрібно провести техніко-економічні розрахунку для кожного за двох типів
заготівки.
Загальні припуски на
заготівку-поковку приймаємо за ГОСТ 7829-93. Розрахунок розмірів заготівки
приводимо в таблиці 2.1
Таблиця 2.1 Розрахунок розмірів
заготівки-поковки
|
Розмір деталі, мм
|
Шорсткість
|
Припуск Розміри
заготівки, ммДопуск, мм
|
|
|
|
|
|
розрахункові
|
прийняті
|
|
|
 Ra 6.3 145145±36
|
|
|
|
|
|
|
L490
|
Ra 6.3
|
515515±7.515
|
|
|
|
|
|
Ra 2.5
|
123123±36
|
|
|
|
|
l290
|
Ra 6.3
|
305305±510
|
|
|
|
Припуск на довжину визначають за
формулою
(2.1)
(2.2)
Виконуємо ескіз заготівки
Мал. 2.1 - Ескіз заготівки-поковки
Визначаємо об’єм заготівки
(2.3)
Так як заготівка складається з 3
циліндрів два з яких однакових, то:
(2.4)
Визначаємо об’єм менших двох
циліндрів
(2.5)
Визначаємо об’єм більшого циліндру
(2.6)
Визначаємо загальний об’єм заготівки
Визначаємо масу заготівки
(2.7)
Де: γ
- густина матеріалу;
Приймаємо
Визначаємо коефіцієнт використання
металу
(2.8)
Визначаємо вартість заготівки
(2.9)
Де: Вм - вартість матеріалу
(приймаємо Вм=5750 грн./т);
Ввід - вартість відходів
(приймаємо Ввід=111 грн./т);
Загальні припуски на
заготівку-штамповку приймаємо за ГОСТ 7505-89 попередньо визначив індекс
заготівки. Розрахунок розмірів заготівки виконуємо в таблиці 2.2
Таблиця 2.2 Розрахунок розмірів
заготівки
|
Розміри деталі
|
Шорсткість
|
Припуск Розміри
заготівки, ммДопуск, мм
|
|
|
|
|
|
розрахункові
|
Прийняті
|
|
|
|
Ra 6,3
|
  3.6
|
|
|
|
|
490
|
Ra 6,3
|
499.6 5
|
|
|
|
|
|
Ra 2,5
|
  3.6
|
|
|
|
|
290
|
Ra 6,3
|
298.8 4.5
|
|
|
|
Визначаємо модулі заготівки:
. Назначаємо точність штамповки
При штамповці на горизонтальному
штамповочному пресі приймаємо клас точності Т4.
. Визначаємо групу сталі
При масовій долі легуючих елементів
від 2% до 5%(сталь 40ХН) приймаємо групу сталі М3.
. Визначаємо розміри, об’єм та
масу фігури в яку ми умовно вписуємо нашу деталь. Визначаємо діаметр фігури
(2.10)
Де: Dд - найбільший
діаметр деталі;
Визначаємо довжину фігури
(2.11)
Де: Lд - найбільша
довжина деталі;
Визначаємо об’єм фігури за формулою
2.6
Визначаємо масу фігури за формулою
2.7
Визначаємо приведену масу
(2.12)
Де:
К - коефіцієнт приведення (приймаємо
К=1.5);
Визначаємо ступінь важкості
заготівки
(2.13)
Приймаємо групу важкості заготівки
С1
Визначаємо індекс заготівки
Приймаємо індекс заготівки 15.
Виконуємо ескіз заготівки
Мал. 2.2 - Ескіз заготівки-штамповки
Визначаємо об’єм заготівки за
формулою 2.6
Визначаємо масу заготівки за
формулою 2.7
Визначаємо коефіцієнт використання
металу за формулою 2.8
Визначаємо вартість заготівки за
формулою 2.9
Вибір заготівки виконуємо на
підставі таблиці 2.3
Таблиця 2.3 - Вартість заготівки
|
Вид заготівки
|
Коефіцієнт використання металу
|
Вартість, грн.
|
|
Поковка
|
0,67
|
336,9
|
|
Штамповка
|
0,71
|
362,2
|
На підставі даних таблиці в якості
заготівки економічніше вибрати поковку, тому що вона має достатньо великий
коефіцієнт використання металу та меншу ціну.
2.2
Обґрунтування маршрутної технології
Усі методи обробки
залежать від вимог,які висувають до поверхні деталі, точності, шорсткості.
Забезпечити виконання цих вимог можливо різними методами, при цьому слід
враховувати габаритні розміри, точність і якість заготовки, властивості
матеріалу, наявність обладнання, собівартість обробки та інші фактори. Так для
точності заготовки необхідна менша кількість технологічних переходів, за
рахунок скорочення чернової обробки. При складанні маршрута обробки поверхності
(МОП) виходять з того, що кожний наступний метод повинен бути точніше
попереднього, а їх кількість - мінімальна. Для обробки поверхонь ніпеля прес
штемпеля розробляємо МОП і підсумки заносимо до таблиці 2.4.
Таблиця 2.4 МОП
накатного ролику
|
Поверхня
|
Шорсткість
|
Квалітет допуску
|
Маршрут обробки поверхні
|
|
|
Ra 6.3
|
ІТ14
|
Точіння чернове, чистове
|
|
|
Ra 2.5
|
ІТ8
|
Точіння чистове, чернове
|
|
|
Ra 1.25
|
ІТ8
|
Точіння токарне, шліфувальне
|
|
|
Ra 1.25
|
ІТ8
|
Точіння чернове, шліфувальне.
|
|
|
Ra 6.3
|
ІТ14
|
Свердлення чернове, чистове
|
|
|
Ra 6.3
|
ІТ14
|
Свердлення чернове, чистове
|
2.3
Розрахунок припусків
У даному типі виробництва токарну
обробка ніпеля прессштемпеля виконуємо на токарному верстаті модель 16К20.
Для наглядності і простоти
визначення проміжки припусків складаємо таблицю 2.5.
Таблиця 2.5 - Розрахунок припусків
аналітичним методом
|
Номінальний перехід
|
Т мм
|
Елемент припуску
|
Роз-вий припуск мкм
|
Роз-вий р-р мкм
|
Граничні розміри
|
Граничні припуски
|
|
|
|
h
|
|
|
|
|
max
|
min
|
max
|
min
|
|
|
2,8
|
160
|
300
|
124
|
-
|
-
|
137,424
|
140,2
|
137,4
|
-
|
-
|
|
Токарно чернова
|
0,87
|
63
|
60
|
8
|
700
|
224,1
|
135,183
|
136,05
|
135,18
|
4,15
|
2,22
|
|
Токарно чистова
|
0,063
|
30
|
30
|
6
|
42
|
331
|
134,852
|
134,913
|
134,852
|
1,135
|
0,328
|
|
5,285
|
2,548
|
Призначаємо технологічні допуски
Заготівка
=2,8
мм,
Токарна чернова Т=0,87 мм,
Токарна чистова Т=0,063 мм.
Призначаємо елементи припуску
та
h,
Заготівка
=200мкм,
h=300мкм.
Токарна чернова
=63мкм,h=60мкм.
Токарна чистова
=h=30мкм.
Визначити величини сумарних
просторів похибок.
=
де
-
зазор при заготовці,
- питома кривизна
);-
довжина заготовки ( L=124мм);
=1·124=124мкм;
Токарна чернова
=
·
де
-
коефіцієнт на вид обробітку;
;
124
0,06=7,44=8
мкм;
Токарна чистова
·
де
=124·0,05=6,2=6
мкм;
Визначаємо похибку установки:
токарної чорнової:
=0.25·
-допуск заготівки
=2.8мм),
=0.25·2800=700 мкм;
Токарної чистової:
=0.06,
=700·0.06=42мкм;
Визначаємо мінімальний розрахунковий
припуск:
Токарна чернова:
де
-
величина мікронерівностей,
=200мкм,
- глубина
дефектного шару металу,
=300мкм,
- величина сумарностей,
=124мкм,
- пространственна
похибка,
- похибка
установки,
= 700мкм.
=2(200+300+
)=2241мкм;
Токарна чистове:
де
=63мкм,
=60мкм,
=8мкм,
= 42мкм.
=2(63+60+
)=331мкм;
Визначаємо мінімальний розрахунковий
позмір:
=135,183+2,241=137,424мм;
Токарна чистова:
=135 -
0,148=137,852мм;
Токарна чернова:
=134,852+0,331=135,183мм.
Визначаємо мінімальну межу, розмір
шляхом округлення в більшу сторону розрахункових мінімальних розмірів до того
знака після коми з яким дан допуск на розмір.
Визначаємо max межу розміру:
Заготовка:
=137,4+2,8=139,2мм;
Токарна чистова:
=135,18+0,87=136,05мм;
Токарна чернова:
=134,852+0,065=134,917мм.
Визначаємо межу значень припуску:
Токарна чернова:
=140,2 -
136,05=4,15мм;
=137,4-135,18=2,22мм;
Токарна чистове:
=136,05 -
134,917=1,135мм;
=135,18 -
134,852=0,328мм.
Визначаємо сумарні припуски:
=4,15+1,135=5,85мм;
=2,22
+0,328=2,548мм.
Виконуємо перевірку розрахунку:
-
=
-
Де:
-
допуск на заготівку,
=2,8мм;
- допуск на
деталь,
=0,063мм.
,8 - 0,63=5,285 - 2,548;
,737=2,373.
Таким чином розрахунок виконано
вірно.
Виконаємо рисунок схеми припусків:
Рисунок 2.3- Схема розподілу
припусків
Таблиця 2.6 - Табличний метод
припусків
|
Технічний перехід
|
Квалітет допуску
|
Припуски 2·z
|
Розміри в операції
|
Допуск
|
|
Токарно чистова
|
Т8
|
2·0,5
|
|
0,063
|
|
Токарно чернова
|
Т14
|
2·2,1
|
|
0,87
|
|
Заготівка
|
2
|
__
|
|
2,8
|
2.4
Розрахунок режимів різання
1.В
якості різального інструмента приймаємо торцеву фрезу
з
пластинками твердого сплаву Т5К10. Вихідні данні:
Геометричні параметри різця:
15
;
;
Визначаємо кількість зубців фрези
(2.22)
Приймаємо z=10. Визначаємо глибину
різання:
де L- довжина деталі, L=490мм;
;
t - глубина різання/
Приймаємо кількість проходів і=3,
тоді:
Визначаємо подачу на зуб фрези:
Sz=0,2
Визначаємо швидкість різання:
де
=332;,
х, у, q, u, p - показники степені x=0.1; y=0.4; m=0.2; q=0.2; u=0.2; p=0
=
де
- коефіцієнт, що
враховує механічні властивості обробляє мого матеріалу;
-
коефіцієнта, що враховує матеріали різального інструменту,
=0,65;
-
коефіцієнта,що враховує спосіб одержуваної заготовки,
=0,8;
=
;
=0,966·0,65·0,8=0,0.5;
Визначити частоту обертання шпинделя
Корегуємо за паспортними даними
верстату:
.
Визначаємо дійсну швидкість різання
Визначаємо хвилинну подачу
(2.27)
Корегуємо за паспортними даними
верстату
Визначаємо дійсну подачу на зуб
фрези
(2.28)
Визначаємо тангенціальну силу
різання
(2.29)
;
, у, u, q, w -
показники ступені: x=1; у=0,75; n= -0,15, q=1,3, u=1,1, w=0,2
.
Визначаємо потужність різання:
Визначаємо потужність верстата
(2.31)
Визначаємо основний машинний час
=l+y+
(2.33)
де l - переміщення ріжучого
інструменту , l=123мм;величина врізання і визначається по формулі:
Інщі данні заносимо в таблицю 2.7.
Таблиця 2.7 - Розрахунок режимів
різання
|
Перехід
|
t, мм
|
S(Sm), мм/об (мм/хв)
|
Vд, м/хв
|
nn, об/хв
|
i
|
L, мм
|
To, хв
|
|
1.1 Фрезерувати торці
|
5
|
315
|
100,48
|
200
|
3
|
135
|
1,47
|
|
1.2 Зацентрувати
|
3,15
|
0,2
|
15,82
|
800
|
1
|
20
|
0,125
|
|
2.1 Точити бочку
|
5
|
1
|
56,91
|
125
|
1
|
305
|
2,44
|
|
2.2 Точити конус
|
3,75
|
1
|
67,82
|
160
|
3
|
90
|
1,68
|
|
2.3 Точити діаметр
|
4,25
|
1
|
61,29
|
160
|
2
|
105
|
1,31
|
|
2.4 Точити діаметр
|
3,25
|
1
|
63,08
|
160
|
2
|
95
|
1,18
|
|
2.5 Точити фаску
|
2
|
1
|
63,42
|
200
|
1
|
5
|
0,02
|
|
2.6 Точити діаметр
|
5
|
1
|
57,2
|
125
|
4
|
105
|
2,7
|
|
2.7 Точити діаметр
|
3,5
|
1
|
62,1
|
160
|
2
|
95
|
0,95
|
|
2.8 Точити фаску
|
2
|
1
|
63,42
|
200
|
1
|
5
|
0,02
|
|
3.1 Свердлити отвір
|
10
|
0,4
|
12,56
|
200
|
1
|
80
|
1
|
|
3.2 Зенкувати скіс
|
3
|
0,3
|
9,1
|
200
|
1
|
15
|
0,18
|
|
3.3 Свердлити отвір
|
10
|
0,4
|
12,56
|
200
|
1
|
80
|
1
|
|
3.4 Зенкувати скіс
|
3
|
0,3
|
9,1
|
200
|
1
|
15
|
0,18
|
|
4.1 Свердлити отвір
|
4
|
0,2
|
10,04
|
400
|
1
|
95
|
1,18
|
|
4.2 Свердлити отвір
|
4
|
0,2
|
10,04
|
400
|
1
|
75
|
0,93
|
|
5.1 Шліфувати вал
|
0,01
|
18,9
|
30
|
100
|
1
|
90
|
0,47
|
|
5..2 Шліфувати вал
|
0,01
|
18,9
|
30
|
125
|
1
|
90
|
0,38
|
2.5
Розрахунок технічних норм часу
Визначаємо допоміжний час на
установку і зняття деталі в спецустаткуванні:
Визначаємо допоміжний час пов’язаний
з переходом:
Визначаємо час на контрольні виміри:
Час на контрольний вимір вимірюється
мікрометром при точному виміру 0,1
Час на контроль виміру входять тільки у випадках коли вони перевищують основний
час
Таким чином час виміру
перекривається основним часом.
Визначаємо допоміжний час на
операцію:
(2.33)
Визначаємо коефіцієнт на допоміжний
час визначається при орієнтованій тривалості обробки партії деталі
(2.34)
Де: n - розмір оперативної партії,
шт. (n=200шт)
- основний машинний
час,(
=1,6хв).
Визначаємо оперативний час на
операцію:
(2.35)
=1,6+0,33
1,15=1,97хв;
Визначаємо час на обслуговування
робочого місця токарної групи:
(2.36)
%
Визначаємо час на відпочинок і
особистих потреб:
(2.37)
Визначаємо штучний час на операцію:
(2.38)
=1,97+0,1+0,07=2,14хв;
Визначаємо підготовчо-заключний час
на партію деталі:
Сумарний час:
;
Визначаємо штучно калькуляційний
час:
(2.39)
- штучний час
тривалості виконання технології операції не враховуючи час на підготовку к
викананню данній операції.
- підготовчо
заключний час необхідний на ознайомлення виконавчі креслення, отримання
призначення майстра, настройка верстата.
Інші данні заносимо в таблицю 2.8.
Таблиця 2.8 - Розрахунок технічних
норм часу,хв..
|
Назва операції
|
|
|
|
|
|
|
|
|
|
|
|
|
|
|
|
|
|
|
|
|
|
Фрезерно-центрувальна
|
1,6
|
0,21
|
0,1
|
-
|
0,21
|
1,97
|
0,1
|
0,07
|
2,14
|
10
|
2,19
|
|
Токарна
|
10,3
|
0,38
|
4,1
|
2,97
|
1,92
|
15,2
|
0,76
|
0,6
|
16,56
|
34
|
17,84
|
|
Токарна
|
2,6
|
0,45
|
0,44
|
0,20
|
0,5
|
3,69
|
0,18
|
0,14
|
4,01
|
26
|
4,14
|
|
Свердлильна
|
0,7
|
0,2
|
0,56
|
0,32
|
3,82
|
0,2
|
0,15
|
4,17
|
15
|
4,24
|
|
Свердлильна
|
2,11
|
0,55
|
0,2
|
0,48
|
0,15
|
3,34
|
0,16
|
0,13
|
3,63
|
23
|
3,75
|
|
Круглошліфувальна
|
0,85
|
0,5
|
0,50
|
-
|
0,13
|
2
|
0,18
|
0,08
|
2,26
|
17
|
2,34
|
2.6
Розрахунок вимірювального інструменту
Визначаємо граничні розміри валу:
dmax =
(2.40)
min =
;(2.41)
Визначаємо розміри прохідної (ПР) та
непрохідної (НЕ) сторони калібра-скоби:
ПР=dmax=90,000мм;
НЕ=dmin=89,946мм.
Дані, потрібні для розрахунку
калібру, виписуємо з ГОСТ 4853-81:1=0,054 мм, Y1=0 мм, a1=0
мм, H1=0,035 мм, Hp=6 мм.
де: Z1 - відхилення
середини поля допуску на виготовлення прохідного калібру для валу відносно
максимального граничного розміру виробу,1 - допуск на виготовлення
калібрів для валу,1 - допустимий вихід розміру зношеного прохідного
калібру для валу за границю поля допуску виробу,
Нр - допуск на
виготовлення контрольного калібру для скоби.
Визначаємо граничні розміри
прохідної сторони калібра-скоби:
ПРmax =
;(2.42)
ПРmin =
;(2.43)
.
Визначаємо виконавчий розмір
прохідної сторони калибру:
ПРвик.=
;(2.44)
Визначаємо зношений прохідний розмір
калібру:
ПРзн.=
.(2.45)
Визначаємо граничні розміри
непрохідної сторони калибра-скоби:
НЕmin=
;(2.46)
НЕmax=
;(2.47)
Визначаємо виконавчий розмір
непрохідної сторони калібру:
НЕвик.=
;(2.48)
Визначаємо розміри контрольної
калібру-скоби.
Визначаємо граничні розміри
прохідної сторони калибру:
К-ПРmin=
;(2.49)
К-ПРmax=
;(2.50)
Визначаємо виконавчий розмір
прохідної сторони контркалібру:
К-ПРвик.=
;(2.51)
Визначаємо граничні розміри
контркалібру для контролю зносу:
К-Иmax=
;(2.52)
Иmin=
;(2.53)
Визначаємо виконавчий розмір
контркалібру для контролю зносу:
К-Ивик.=
;(2.54)
Визначаємо граничні розміри
непрохідної сторони контркалібру:
К-НЕmax=
;(2.55)
К-НЕmin=
;(2.56)
Визначаємо виконавчий розмір
непрохідної сторони контркалібру:
К-НЕвик.=
;(2.57)
Виконуємо креслення калібра-скоби.
2.7
Розрахунок пристрою
В якості пристрою для
токарно-гвинторізного верстату приймаємо обертовий центр. Обертовий центр
забезпечує передачу великих осьових сил і контроль сили притиску штирів до
торця заготовки. При підтисканні заготовки обертовим центром за допомогою
пневмо- або гідроприводу пінолю задньої бабки центр через підшипники і фланець
стискає пакет тарілчастих пружин. При цьому індикатор показника величини
осьових сил показує значення деформації тарілчастих пружин і осьової сили.
Перед експлуатацією індикатор тарирують, навантажуючи центр заздалегідь відомої
осьовою силою. Задній кінець центру обертається в голчастих підшипниках, який
кріпиться в корпусі заглушкою. Фланець пов'язаний з корпусом за допомогою
гвинта. Переміщення фланця в осьовому напрямку обмежується кільцем. Витіканню
мастила перешкоджає ущільнення, змонтоване в гайці. Визначаємо виконавчі
розміри центру.
Визначаємо середній діаметр:
(2.58)
де: Pz - тангенціальна
сила різання (Pz=4400,76 Н),
Мсум - сумарний крутний
момент (Мсум=3,2 Н
м),
μ=0,096,
sinΘ=0.0251,
ΔΘ=5,
Приймаємо конус Морзе 2 за ГОСТ
25557-82. Виписуємо значення:
Виконуємо ескіз обертового центру.
ВИСНОВКИ
В процесі проектування
технологічного процесу виготовлення ролика були виконанні наступні роботи:
розглянуте службове призначення
ролика, та його конструктивні особливості, проведено аналіз технологічності;
розробленні креслення заготовки і
визначені оптимальні припуски для її обробки;
підібрані і розраховані режими
різання і норми часу на всі операції;
розроблені маршрутні та операційні
карти з ескізами;
прийнята партія деталей відповідає
серійному типу виробництва, тому в технологічному процесі прийняті універсальні
верстати, які оснащенні механізованими пристроями, спеціальній різальний та
вимірювальний інструмент;
розроблені креслення вимірювального
інструменту.
При виконанні курсового проекту
враховувались прогресивні напрямки в технології інструментального виробництва,
діючи ГОСТи та ДСТи, які дозволяють забезпечити високу продуктивність і
необхідну якість при виготовленні ролику.
креслення режим різання робити ролик
ПЕРЕЛІК
ПОСИЛАНЬ
1. Данилевский В. В.,
«Технология машиностроения», М.: «Высшая школа», 1984.
.Шевакин Ю.Ф., « Производство
труб», М.:Металургия, 1968.
. Шишков М.М., « Марочник стали
и сплавов », Донецк, 2002.
. Нефедов Н. А., «Сборник задач
и примеров по резанию металлов и режущему инструменту», М.: «Машиностроение»,
1984.
. «Справочник технолога
машиностроителя» том1 под.редакцией А.Г. Косиловой и Р.К. Мещерякова.:
Машиностроение, 1986.
. « Справочник машиностроителя
« том 2 под. редакцией А.Г. Косиловой и Р.К. Мещерякова.: Машиностроение, 1986.
. «Справочникметаллиста». В
5-ти томах. Том 3. Подредакцией Н.Малова, М.М: Машиностроение, 1977.
.ГОСТ 7062-79, « Поковки
изуглеродичистой и легированной стали, изготовленной ковкой на молотах»,
Москва, 1989.
. ГОСТ 7062-79 « Поковки
изуглеродичистой и легированной стали, изготовленной на прессах», Москва 1986.
. « Общемашиностроительные
нормы времени вспомогательного, на обслуживание рабочего места и
подготовительно - заключительного на работы, выполняемые на металлорежущих
станках», Москва, 1984.