Пожарно-техническая экспертиза электрической части проекта цеха фасовки №2
курсовая работа
по
учебной дисциплине «Безопасность инженерных систем»
Тема
Пожарно-техническая
экспертиза электрической части проекта цеха фасовки №2
Исходные
данные
· Применяемое
вещество фенопласт (горючая пыль)
· Напряжение сети (Uл
/ Uф) 660/380 В
· Категория
электроснабжения объекта 2
Характеристики электрической
сети
Электропроводка Аппарат
защиты
Участок 1КРУ - 3РП ААБ1
(3x150+1x95) 30 м в земле А3144 (Iн=600А)
Участок 3РП - 4ЩС АВРБ
1(3x35+1x16) 10м в газ. трубах ПР-2 (Iн=200А)Участок 3РП - 5ЩС НРБ
1(3x50+1x25) 35м в газ. трубах А3144 (Iн=400А)
Участок 4ЩС - 5ЩО ВВГ
1(3x6+1х4) 40м на скобах НПН-60 (Iн=60А)
Участок 5ЩС- двигат КПГН
1(3x16+1х10) 18м на скобах ПР-2 (Iн=160А)Участок 5ЩО - раб освещ АПРН 2(1x2, 5)
на скобах а=4м l1=16мПР-2 (Iн=15А)Электрооборудование:
• Распределительные устройства
Номер по схеме / Установленная
мощность / Коэффициент спроса
КРУ / 1050 кВт / Кс=0,6
РП / 300 кВт / Кс=0,75
ЩС / 80 кВт / -
ЩО / 8 кВт / -
· Двигатель КО-41-4
Рн=40 кВт соsj=0,86. h=91%. Кп=6
исполнение В3Г
· Магнитный пускатель
и тепловое реле ПАЕ-422 ТРП-60 Io=40
· Ключ управления
КУ-700 исполнение М0Д
· Светильники общего
освещения В4Г-150 , кол-во 10 шт .исполнение 1Ехd
IICТ4, Рн=150 кВт
Расчетные данные заземляющего
устройства:
• Тип схемы заземления: б (по
контуру).
• Тип вертикального заземлителя
труба, Æ50.
длина 2,5м
• Расстояние между
вертикальными электродами: 5 м
• Соединительная полоса: полоса
ст. 50х5 мм глубина заложения 0,8м
• Сопротивление естественных
заземлителей: Rест=280 Ом
• Измеренное удельное
сопротивление грунта rИЗМ
=470 Ом · м
• Осадки перед измерением: выпадали небольшое
кроичество осадков.
• Количество вертикальных электродов заземлителя
6 шт
Данные для проектирования молниезащиты
• Здание: длина L= 30 м.
ширина S =18 м,
высота h=12 м.
• Тип молниеотвода -
многократный стержневой
• Тип трубы: ВВ
(вытяжная вентиляционная), точки установки трубы №21 , высота 2 м
Введение
Курсовая работа является одним
из этапов освоения дисциплины «Безопасность инженерных систем» и имеет цель
научить обучаемых применять полученные теоретические знания по материалу курса
в своей дальнейшей практической деятельности инспектора ГПН по:
нормативному обоснованию класса
пожароопасной и взрывоопасной зоны, категории и группы взрывоопасной смеси;
определению соответствия выбора
электрооборудования, молниезащиты и защитных заземлений (занулений)
электроустановок требованиям пожарной безопасности и правилам устройства
электроустановок;
определению соответствия
сечений проводников и номинальных параметров аппаратов защиты (плавких
предохранителей, автоматических выключателей и тепловых реле) имеющейся в сети
нагрузке.
Перед выполнением курсовой работы, обучаемые
должны изучить вопросы учебной программы по дисциплине «Безопасность инженерных
систем» раздел 2 «Обеспечение пожарной безопасности при проектировании и
эксплуатации электроустановок», рекомендуемую литературу, данные методические
указания.
1.
Определение класса пожароопасной или взрывоопасной зоны, категории и группы
взрывоопасной смеси
Нормативное обоснование класса взрывоопасной
зоны
Для практического решения вопроса по выбору
электрооборудования необходимо правильно решить вопрос, к зоне какого класса
относится проектируемое помещение или наружная установка.
Взрывоопасная зона - помещение или ограниченное
пространство в помещении или наружной установке, в которых могут образовываться
взрывоопасные смеси (п.7.3.22, [1]). При определении взрывоопасных зон
принимается что:
а) взрывоопасная зона занимает весь объем
помещения, если объем взрывоопасной смеси превышает 5% свободного объема
помещения,
б) взрывоопасной считается зона в помещении в
пределах до 5 м по горизонтали и вертикали от технологического аппарата, из
которого возможно выделение горючих газов или паров ЛВЖ, если объем
взрывоопасной смеси равен не менее 5 % свободного объема помещения.
Взрывоопасные зоны подразделяются на шесть классов:
В-I; В-Iа;
В-Iб; В-Iг;
В-II; В-IIа.
Классы зон, граничащих со взрывоопасными зонами, определяется по [1].
В нашем случае обращаемое вещество - фенопласт.
Условие образования и относительный объем взрывоопасной смеси - при нормальной
работе отсутствует. Согласно (п.7.3.46, [1]) помещение относится к зоне класса
В-IIa-
зоны, расположенные в помещениях, в которых выделяются переходящие во
взвешенное состояние горючие пыли или волокна в таком количестве и с такими
свойствами, что они не способны образовать с воздухом взрывоопасные смеси при
нормальной эксплуатации, а возможны только в результате аварий или
неисправностей
Нормативное обоснование категории
взрывоопасной смеси по ПУЭ
Несмотря на различие физико-химических свойств
взрывоопасных смесей, у некоторых из них можно обнаружить общность
взрывоопасных свойств и объединить в группы, объединение в группы позволяет
выделить взрывоопасную смесь для группы, которая обладает наиболее общими
взрывоопасными свойствами.
Определяем категорию и группу взрывоопасной
смеси ГП. Согласно табл.[1], взрывоопасная смесь ГП фенопласта относится:
По ГОСТ- IIСТ1
по ПИВРЭ-4Т1 по ПИВЭ-4А
. Характеристики схемы электроснабжения,
силового и осветительного электрооборудования
Рис. 2.1 Проектная схема
электроснабжения Цеха фасовки №2
Электроэнергию предприятия получают от отдельно
стоящей трансформаторной подстанции ТП6/0,4-0,23, в которой установлены два
трансформатора ТМ2-1000/6 и ТМ3-1000/6 мощностью 800 кВА и 1000 кВА
соответственно. От ТП электроэнергия подаётся к комплексно распределительному
устройству (1КРУ). 1КРУ служит для распределения электроэнергии конкретно по
участкам. Аппарат защиты - автоматический выключатель Э25В 2500/1500..
Соединение 1КРУ и распределительного пункта (3РП) осуществляется при помощи
кабеля ААБ1(3x120+1x70), проложенного в земле длиной 30 м, через аппарат защиты
- автоматический выключатель A3144 (Iн=600
А).
Кабель ААБ1(3x120+1x70)-
кабель с бумажной пропитанной изоляцией с алюминиевой жилой в алюминиевой
оболочке, с бронёй из стальных лент с защитными покровами из кабельной пряжи,
пропитанной битумом. Кабель имеет 3 фазные жилы сечением 120 мм2 и 1
нулевую жилу сечением 70 мм2 .
Распределительное устройство
(3РП) - силовой распределительный пункт предназначен для распределения силовой
и осветительной нагрузки по цехам предприятия.
От 3РП к силовому щиту (4ЩС) в
газ. трубах проложен кабель АВРБ 1(3x35+1x16) длиной 10 м. Линия защищена
предохранителем ПР-2 (Iн=200А) .
Кабель АВРБ
1(3x35+1x16)-многожильный силовой кабель с алюминиевыми жилами, ПВХ оболочка,
резиновой изоляцией, бронированный стальными лентами. Имеет 3 фазные жилы
сечением 35 мм2 и одну нулевую сечением 16 мм2.
От 3РП к силовому щиту (5ЩС) в
газ. трубах проложен кабель НРБ 1(3x50+1x25) длиной 35 м. Линия защищена
автоматическим выключателем А3144 (Iн=400А).
Кабель НРБ 1(3x50+1x25)-
многожильный силовой кабель с медными жилами, найритовой герметичной оболочке,
резиновой изоляцией, бронированный стальными лентами. Имеет 3 фазные жилы
сечением 50 мм2 и одну нулевую сечением 25 мм2.
Кабель ВВГ (3x6+1x4)-
многожильный силовой кабель с медными жилами, полихлорвиниловой герметичной
оболочке, полихлорвиниловой изоляцией, без покрова. Имеет 3 фазные жилы
сечением 6 мм2 и одну нулевую сечением 4 мм2.
Силовое электрооборудование
Электродвигатель
технологического оборудования КО-41-4, номинальной мощностью Рн=40 кВт,
коэффициент мощности cosц=0,86;
коэффициент полезного действия з=91%, коэффициент пуска Кп=6 во
взрывозащищенном исполнении по ПИВЭ В3Г (по ГОСТ 12 2 020-76 - 1ExdIIВT4,
по ПИВРЭ В3Т4-В). Защита силовой сети и двигателя осуществляется
предохранителем ПР-2 (Iн=160А) входящими в состав силового щита, и тепловым
реле ТРП-60 (Io=40А) магнитного пускателя ПАЕ-422. Управление работой
электродвигателя производится с помощью ключа управления КУ-700, установленного
на технологическом оборудовании во взрывозащищенном исполнении по ПИВЭ М0Д (по
ГОСТ 12 2 020-76 - 1Ex0IIT5,
по ПИВРЭ В4Т5-М).
Распределительная силовая сеть
от силового щита 5ЩС до электродвигателя выполнена кабелем КПГН 1(3x16+1х10)
длиной 18 метров, проложенных на скобах.
Кабель КПГН 1(3x16+1х10) -
многожильный силовой кабель с медными жилами, резиновой маслостойкой оболочке
не распространяющей горение, резиновой изоляцией, повышенной гибкости. Имеет 3
фазные жилы сечением 16 мм2 и одну нулевую сечением 10 мм2.
Осветительное
электрооборудование
Проектом предусмотрено общее
рабочее освещение помещений, аварийное и эвакуационное освещение отдельных
цехов, местное освещение некоторых рабочих мест.
Распределение осветительной
нагрузки общего освещения Цеха фасовки №2
осуществляется щитом освещения
5ЩО. Светильники В4Г-150, мощностью по 150 Вт, в количестве 10 штук во
взрывозащищенном исполнении по ГОСТ12 2 020-76 1Ехd
IICТ4 (по
ПИВРЭ-В4Т4-В, по ПИВЭ-В4Г), получают питание от 5ЩО по проводу АПРН 2(1x2, 5)
проложенным на скобах.
Расстояние до первого
светильника 16 м, между светильниками - 4м. Защита осветительной сети и
светильников осуществляется плавким предохранителем ПР-2 (Iн=15А)
Провод АПРН 2(1x2, 5) -силовой
провод с алюминиевыми жилами, с резиновой изоляцией , негорючей резиновой
оболочке.
3. Экспертиза соответствия
конструктивного исполнения силового и осветительного электрооборудования
Таблица 3.1
|
Наименование
помещения
|
Класс
зоны, категория и группа взрывоопасной смеси
|
Маркировка
электрооборудования по взрывозащите или по степени защиты оболочки
|
Вывод
о соответствии нор-мам запроектированного электроорудования
|
|
По
проекту
|
по
нормам
|
вид
электро-оборудования
|
по
проекту
|
по
нормам
|
|
|
1
|
2
|
3
|
4
|
5
|
6
|
7
|
|
Окрасочный
участок
|
В-IIа,
IIС
T1
|
В-IIа,
IIС T1
|
Двигатель
КО-41-4
|
В3Г
1ExdIIВT4
|
1Ex_IIСT1
|
Не
соответствует по подгруппе по взрывозащите (т.7.3.3[1])
|
|
|
|
магнитный
пускатель ПАЕ-422
|
Без
средств взрывозащиты
|
1Ex_IIСT1
|
Не
соответствует по уровню взрывозащиты п. 7.3.68[1], т.7.3.11[1]
|
|
|
|
ключ
управления КУ-700
|
М0Д
1Ex0IIT5
|
1Ex_IIСT1
|
Соответствует.
|
|
|
|
СветильникВ4Г-150
|
1Ехd
IICТ4
|
1Ex_IIСT1
|
Соответствует.
|
Экспертиза конструктивных
элементов схемы электроснабжения компрессорной станции
Таблица 3.2
|
Наименование
линии
|
Класс
зоны
|
Электропроводка
|
Вывод
о соответствии электропроводки требованиям норм
|
|
по
проекту
|
По
нормам
|
вид
|
по
проекту
|
по
проекту
|
|
|
1КРУ-3РП
|
-
|
-
|
кабель
|
ААБ1
в земле
|
ААБ1
в земле
|
Соответствует
|
|
3РП-4ЩС
|
В-IIа
|
В-IIа
|
кабель
|
АВРБ
1 в газ. трубах
|
Соответствует
|
|
3РП-5ЩС
|
|
|
кабель
|
НРБ1
в газ. трубах
|
НРБ1
в газ. трубах
|
Соответствует
|
|
4ЩС-5ЩО
|
|
|
кабель
|
ВВГ
1 на скобах
|
ВВГ
1 на скобах
|
Соответствует
|
|
5ЩО-светильники
|
|
|
провод
|
АПРН2
на скобах
|
АПРН2
на скобах
|
Соответствует
|
|
5ЩС-двигатель
|
|
|
провод
|
КПГН1
на скобах
|
КПГН1
на скобах
|
Соответствует
|
4.Экспертиза соответствия
электрических характеристик проводов(кабелей) и аппаратов защиты
К групповой силовой сети,
выполненной проводом КПГН1 (3x16+1х10) подключен электродвигатель КО-41-4 (Рн
=40 кВт, h = 91%, cosj
= 0,86, Кп=6), расположенный во взрывоопасной зоне класса В-IIа.
Напряжение сети 660/380 В.
Определить необходимое сечение токопроводящих жил кабеля, выбрать автомат и
тепловые реле для защиты сети и двигателя.
Рассчитываем номинальный ток
электродвигателя
(4.1)
Определяем необходимое сечение жил
кабеля в соответствии с условием Iдоп ≥ 1,25
Iн (двигатель
с короткозамкнутым ротором и расположен во взрывоопасной зоне В-IIа (п.7.3.97
[1]). По табл. 1.3.6 [1] (выбираем S=16 мм2,
при котором
Iдоп =75[А] ≥
1,25 ∙ 44,76 ≈ 55,95 [А] (4.2)
Условие выполняется
Проверяем тепловое реле ТРП-60
в соответствии с условием Iн.р
≥
Iн
, Iн.р
=40 [А] > Iн.=44,76
[А].Так как номинальный ток теплового реле ТРП-40 слишком мал, то принимаем
реле ТРП-60(табл. П.6.1 [12]) с номинальным током Iн.р
= 50[А] > Iн.=44,76
[А]. По условию I0
≈
Iн
выбираем нагревательный элемент реле. Этому условию удовлетворяют два нагревательных
элемента с токами нулевой уставки I0=40[А]
и I0=50[А]
.
Для выполнения условия Iyст
»
Iн
тепловые реле необходимо отрегулировать. Рассчитываем количество делений, на
которое необходимо повернуть поводок регулятора реле.
Для реле, у которого I0=40
[А]:
(4.3)
Округляем до 2 деления.
Аналогично для реле, у которого I0=50[А]
Принимаем минус 3 деления.
Таким образом, возможна защита
тепловыми реле ТРП-60 с током нулевой уставки I0 =40[А], при
этом поводок регулятора необходимо установить на делении 2, либо с током
нулевой уставки I0 = 50 [А] при этом поводок регулятора
необходимо установить на делении -3. Первый вариант с I0 =40 [А]
предпочтительней, поскольку нагревательный элемент реле в рабочем режиме будет
иметь меньшую температуру.
Таким образом использование плавкого
предохранителя ПР-2 нецелесообразно (слишком большой номинальный ток Iн.пр.=160А.
В соответствии с условием IН.пр. ≥ Iн, по
табл.П5.1([12] принимаем предохранитель типа ПР-2, у которого:
IН.пр. = 60 [А]
>Iн.= 44,76 [А].
Выбираем расцепитель с номинальным
током:
Iн.вст=45[А]>Iн=44,76 [А].
Проверяем устойчивость работы
плавкого предохранителя при пусках двигателя (на отсутствие ложных отключений).
В соответствии с табл.5.1.П[12] для предохранителя ПР-2 с Iн.вст. = 45 [А]
ток срабатывания плавкой вставки:
Iн.вст.≥ Iпуск / б= 268,76
/3 = 89,6 [А]. (4.4)
Пусковой ток двигателя:
Iпуск = Кп
Iн =6·44,76 » 268,76 [А] (4.5)
Проверяем:
Выбранный плавкий предохранитель
условию не удовлетворяет. Корректируем выбор плавкой вставки и предохранителя:
выбираем Iн.вст=100 и
соответственно Iн.пр. =100А
табл.5.1.П[12]
Очевидно, что, 100 [А] >89,6 [А],
т.е. при пусках двигателя, ложных отключений не будет.
Поскольку для защиты использованы
тепловые реле, то проверять условие защиты сети от перегрузок в соответствии с
п.3.1.10 и п.3.1.11 [1] необходимости нет: оно выполняется автоматически при
выборе сечения жил кабеля и номинальных параметров реле в соответствии с
расчетом по пп.1- 3 решения данной задачи.
Ответ:
S=16мм2,
ПР2 (Iн.пр = 100 [A], Iн.вст = 100 [A] ),ТРН-60 (I0 = 40 [А], N = 2дел.)
В однофазной осветительной сети
установлено 10 светильников В4Г-150 (исполнение по взрывозащите - 1Ехd IICТ4).
Напряжение сети Uф=380 В. Сеть
выполнена двумя одножильными проводами марки АПРН, проложенным на скобах и
защищена плавким предохранителям. Определить необходимое сечение провода и
номинальные ток плавкого предохранителя.
Рассчитываем рабочий ток нагрузки,
учитывая, что мощность каждого светильника 150 Вт, cosj =1 (для
ламп накаливания):
. (4.6)
Для двух проводов сечением S=2,5 мм 2
по табл. 1.3.5 [1] допустимый длительный ток Iдоп = 20 [A] :
Iдоп = 20 [A] > Iр =3,94 [А].
Проверяем правильность плавкого
предохранителя по условию
IН.А ≥Iр.
Условие выполняется (IН.А.
=15 [А] >Iр =3,94 [А]
Выбираем номинальный ток
плавкой вставки в соответствии с условием, I н. вст≥ Iр.
Принимаем ( табл.П1.5.[12]) I н. вст. =6 [A].
Проверяем условие защиты сети
от перегрузки в соответствии с требованиями п.3.1.10 и п.3.1.11 [1]:
Условие
выполняется
(4.7)
Ответ:
АПРН2 (S=2,5мм2),
ПР2 (Iн.пр
= 15 [А], Iн.вст
= 6 [А]).
Определяем правильность
выбранных сечений проводников по допустимой потере напряжения:
Рис.5.1. Расчетная схема
силовой сети
Определяем фактическую
суммарную потерю напряжения на участках силовой сети:
(4.8)
(4.9)
где С=7,7 и С2=12,8 -
соответственно коэффициенты для алюминиевых и медных проводников при напряжении
660/380В определяем по табл. 3.2 [12] .
Сравниваем допустимую и фактическую
потерю напряжения в силовой сети:
Следовательно, сечение проводников
на участках силовой сети выбрано правильно.
Рис.5.2. Расчетная схема
осветительной сети.
Определяем фактическую суммарную
потерю напряжения на участках осветительной сети:
Сравниваем допустимую и фактическую
потерю напряжения в осветительной сети:
Условие выполняется
Вывод: сечения
проводников на участках силовой и осветительной электросетей выбраны правильно.
Проверить предохранитель ПР-2 (Iн.вст=200A) по
надежности отключения токов короткого замыкания в конце и в начале защищаемой
группы силовой сети. Класс взрывоопасной зоны В-IIа.
Проверяем предохранитель ПР-2 (Iн.вст=200A) на
надежность отключения тока короткого замыкания. При этом учитываем, что
минимальное значение тока короткого замыкания будет при однофазном замыкании в
конце защищаемой группы.
Защита обеспечивается надежно, если
выполняется условие формулы:
По формуле:
(4.10)
Значения ZФ-0
определяется по:
(4.11)
(4.12)
- расчетное удельное сопротивление
Ом.мм2/км, равное 19 для меди и 32 для алюминия.
(4.13)
·
0,015- для
распределительных щитов на станциях и подстанциях;
·
0,020 - для первичных
цеховых распределительных пунктов, питаемых радиальными линиями от щитов
подстанций;
·
0,020- для вторичных
цеховых распределительных пунктов, питаемых радиальными линиями от щитов
подстанций;
·
0,025 - для вторичных
цеховых распределительных пунктов, щитов и на зажимах аппаратов, питаемых от
вторичных распределительных пунктов;
·
0,03 - для аппаратуры,
установленной непосредственно у электроприемников (контакторы, пускатели и
т.п.), получающих питание от вторичных распределительных пунктов;
(4.14)
[Ом] (4.15)
[Ом] (4.16)
а - среднее значение индуктивного сопротивления
одного проводника, Ом/км равное:
· 0,07
для кабелей;
· 0,09
- для проводов, проложенных в трубе;
Расчетное сопротивление
трансформатора принимаем по табл. 3.3[12] , равным Zт(1)
=
0,107 ( S=800
кВА)(рассчитано методом линейной интерполяции)
Тогда ток короткого замыкания
получается равным:
Проверяем выполнение условий:
Условие выполняется
Проверяем предохранитель ПР-2 (Iн.вст=200A)по
надежности отключения тока короткого замыкания в начале группы, т.е. по
предельной отключающей способности. Максимальное значение тока короткого
замыкания будет иметь при трехфазном коротком замыкании на выходных зажимах
автомата (независимо от режима нейтрали). Предельная отключающая способность
будет обеспечена, если выполняется условие:
Iпр.пр ≥ Iкз(н)(3)
По табл. П 1.5[12]
Inp A = 11000
[А].
По формуле :
(4.17)
(4.18)
[Ом]
(4.19)
rт
=C/Sт
- активное сопротивление фазы питающего трансформатора, Ом;
Xт=в
∙ rт
- индуктивное сопротивление фазы питающего трансформатора, Ом;
Sт
- мощность трансформатора равная 800 кВ∙А;
С - коэффициент, равный 2,5 (до 1000 кВ∙А)
в - коэффициент, равный 3
(до 1000 кВ∙А)
Тогда

(4.20)
Проверяем следующее условие:
Iпр.пр =11000
[А]> Iкз(н)(3)=4891 [А]
Условие выполняется.
Проверить предохранитель ПР-2 (Iн.вст = 6 [А]) по
надежности отключения токов короткого замыкания в конце и в начале защищаемой
группы осветительной сети. Класс взрывоопасной зоны В-IIа.
Защита обеспечивается надежно, если
выполняется одно из условий:
По формуле:
Значения ZФ-0
определяется по формуле :
LАПРН2=l1+[a(n-1)/2]=34m.
Так как нагрузка между лампочками в
осветительной сети распределена равномерно.
[Ом]
[Ом]
Расчетное сопротивление
трансформатора принимаем по табл. 3.3[12] , равным Zт(1) = 0,107 ( S=800
кВА)(Рассчитано линейной интерполяцией )
Тогда ток короткого замыкания
получается равным:
Условие выполняется.
Проверяем предохранитель ПР-2 (Iн.вст = 6 [А]) по
надежности отключения тока короткого замыкания в начале группы осветительной
сети, т.е. по предельной отключающей способности. Максимальное значение ток
короткого замыкания будет иметь при трехфазном коротком замыкании на выходных
зажимах автомата (независимо от режима нейтрали). Предельный ток отключения
будет обеспечен, если выполняется условие:
Iпр.пр ≥ Iкз(н)(3)
По табл. П 1.5 [12]
Iпр.А =800 [А].
По формуле:
rт
=C/Sт
- активное сопротивление фазы питающего трансформатора, Ом;
Xт=в
∙ rт
- индуктивное сопротивление фазы питающего трансформатора, Ом;
Sт
- мощность трансформатора равная 800 кВ∙А;
С - коэффициент, равный 2,5 (до 1000 кВ∙А)
в - коэффициент, равный 3
(до 1000 кВ∙А)
[Ом]
Тогда

Проверяем следующее условие:
Iпр.А =800 [А]>
Iкз(н)(3)=2007,9 [А]
Условие не выполняется.
Следовательно, необходимо заменить
предохранитель.
Отключение тока короткого замыкания
в начале участка может выполнить предохранитель ПР-2(Iн.пр= 60 [А])
имеющий Iпр=4500
А(табл.П.1.5[12])
5. Экспертиза заземляющего устройства
Для участка сушки (рис 5.1)
проверить соответствие контура повторного заземления требованиям [ТКП-339].
Рис. 5.1 Схема заземляющего
устройства
Электроустановки Цеха фасовки
№2 имеют рабочее напряжение 660/380 В, сеть - с глухозаземленной нейтралью.
Мощность трансформатора 800 кВт. Удельное сопротивление грунта (глины),
полученное в результате измерений, равно 470 Ом·м. Измерения проводились при
небольшом количестве осадков. В качестве вертикальных электродов заземлителя
принята труба, Æ50., длина 2,5м. Количество
электродов - 6, расстояние между ними 5 м. В качестве полосы, соединяющей
вертикальные электроды заземлителя, принята полоса ст. 50х5 мм, уложенная на
глубину 0,8м от поверхности земли. Расчетное сопротивление естественных
заземлителей Rест =280 Ом.
. Проверим конструктивные
элементы заземления на соответствие требованиям ТКП-339 (табл.4.3.4 [ТКП-339]):
Таблица 5.1
|
Заземлитель
|
Фактический
|
Требуемый
|
Вывод
|
|
Электрод
|
Труба
диаметр 50 мм
|
диаметр
≥ 25 мм
|
Соответствует
|
|
Соединительная
полоса
|
полоса
ст. 50х5 мм Sсеч=250 мм2
|
Sсеч ≥ 100мм
толщина ≥ 4 мм
|
Соответствует
Соответствует
|
Следовательно, все
конструктивные элементы заземления соответствуют требованиям ТКП-339
. Определяем допустимое
сопротивление заземляющего устройства (п.4.3.8.2 [ТКП-339]):
Таблица 5.2
|
Uл,
В
|
Uф,
В
|
Rз,
Ом
|
Rп,
Ом
|
|
660
|
380
|
15
|
Следовательно:п £
15 Ом (повторное) (5.1)
з £
2 Ом (первичное) (5.2)
Т.к. используется параллельно
соединенные Rе и Rи, то необходимая величина Rи (сопротивление искусственных
заземлителей):
для первичного заземления:
(5.3)
для повторного заземления:
(5.4)
. Определяем расчетное удельное
сопротивление грунта (формула (3.45)[2012]):
rрасч = rизм·К
= 470·1,5 =705 Ом·м (5.5)
где срасч - расчетное удельное
сопротивление грунта, Ом;
сизм - удельное сопротивление
грунта, полученное непосредственным измерением, Ом;
К - коэффициент сопротивления
грунта, учитывающий возможное повышение сопротивления грунта в течении года по
сравнению с данными, полученными измерением.
. Определяем сопротивление
растеканию тока с одного вертикального трубчатого электрода заземлителя:
(5.6)
. Определяем сопротивление
растеканию тока всех вертикальных трубчатых электродов заземлителя с учетом
коэффициента использования:
ри n=6, а /l = 2, =>
=0,73
(5.7)
де n - количество вертикальных
трубчатых электродов заземлителя;
зв - коэффициент использования
вертикальных заземлителей.
. Определим длину соединяющей
полосы:п = 1,05·а ·n=1,05·5·6=31,5 м (5.8)
Рис.5.3 Схема соединительной полосы
. Определяем сопротивление
растеканию тока полосы, соединяющей вертикальные электроды заземлителя без
учета коэффициента использования:
(5.9)
. Определяем сопротивление
растеканию тока полосы, соединяющей вертикальные электроды заземлителя с учетом
коэффициента использования электродов:
(5.10)
. Определяем общее сопротивление
растеканию тока заземляющего устройства без учета естественных заземлителей:
(5.11)
. Определяем общее сопротивление
растеканию тока заземляющего устройства с учетом естественных заземлителей:
(5.12)
. Проверяем выполнение условия
(5.4):
,1 Ом £ 15,85 Ом условие не выполняется
(для повторного).
. Проверяем выполнение условия
(5.3):
,1 Ом £ 2,01 Ом условие не выполняется (для
первичного).
Согласно п. 4.3.2.13[10] при
удельном сопротивлении земли r > 100 Ом м допускается
увеличивать rЗ в 0,01r раз, но не более десятикратного.
Следовательно 0,01r=470*0,01=4,7
раз, rЗ=4,7*2,01=9,447 Ом
,1£
9,447 Ом
Условие не выполняется.
Следовательно,
запроектированное заземляющее устройство не соответствует требованиям.
Необходимо увеличить количество вертикальных трубчатых заземлителей.
. Определим необходимое число
параллельно соединенных вертикальных трубчатых заземлителей:
(5.13)
Следовательно, для первичного
заземления нам необходимо 176 вертикальных трубчатых заземлителей.
Ответ: Запроектированное заземляющее
устройство не соответствует требованиям. Необходимо увеличить число
вертикальных трубчатых заземлителей до 176 шт.
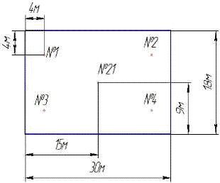
6. Проектирование молниезащиты
здания
Дать рекомендации по
необходимой высоте многостержневого молниеотвода для защиты здания Цеха фасовки
№2. Габаритные размеры здания: длина-30м, ширина-18м, высота-12м, высота трубы
(ВВ)-2м.
№21-точка установки трубы (ВВ)
№1, 2, 3, 4-точки установки
стержней молниеотвода
Решение
Определяем категорию здания по устройству
молниезащиты
В нашем случае обращаемое вещество - фенопласт.
Условие образования и относительный объем взрывоопасной смеси - при нормальной
работе отсутствует. Согласно (п.7.3.46, [1]) помещение относится к зоне класса
В-IIa-
зоны, расположенные в помещениях, в которых выделяются переходящие во
взвешенное состояние горючие пыли или волокна в таком количестве и с такими
свойствами, что они не способны образовать с воздухом взрывоопасные смеси при
нормальной эксплуатации, а возможны только в результате аварий или
неисправностей Следовательно, категория молниезащиты здания - II(табл.
7.2 [7]).
При высоте молниеотвода до 30м
и надежности зоны защиты равной 0,99, параметры зоны защиты характеризуются
следующими формулами (табл. 3.8[12]):
Высоту молниеотвода h принимаем
28м.
Следовательно:
При расстоянии между молниеотводами L£ Lc границы
зоны не имеет провеса(hc=ho). В нашем
случае 22£63
следовательно границы зоны не имеет провеса(hc=ho).
По табл. 3.6[12] определяем величины
ro и ho:
По полученным данным строим
совмещенную схему размещения молниеотводов на объекте и зоны защиты
молниеотвода.
Как видно по схеме необходимая
защита обеспечивается.
Вывод:
запроектированная молниезащита соответствует требованиям ТКП 336-2011. Для
защиты здания от прямых ударов молнии высота молниеотвода, установленного в
точках 1, 2, 3, 4 должна быть не менее 28 м.
7. Заключение по результатам
пожарно-технической экспертизы проекта
В ходе пожарно-технической
экспертизы были предложены следующие мероприятия:
1. Магнитный пускатель серии
ПАЕ-422разместить вне взрывоопасной зоне или установить пускатель
взрывозащищеного исполнения не ниже 1Ex_IIСT1
( 7.3.68[1], т.7.3.11[1]]).
. Предохранитель ПР-2 с (Iн=15А)
заменить на предохранитель ПР-2 с Iн.пр=60А
. Предохранитель ПР-2 с (Iн=160А)
заменить на предохранитель ПР-2 с Iн.пр=100А
5. Здание Цеха фасовки №2
защитить многостержневым молниеотводом с высотой молниеотводов h=28
м.
Литература
электрооборудование
пожарный безопасность
1. Правила
устройства электроустановок. - М. Энергоатомиздат, 19862. Черкасов В.Н.,
Шаровар Ф.И. Пожарная профилактика электроустановок. - М.: ВИПТШ МВД СССР,
1987.
. Черкасов В.Н.
Пожарно-техническая экспертиза электрической части проекта. - М.: Стройиздат,
1987.
. Мыльников М.Т.
Общая электротехника и пожарная профилактика в электроустановках. - М.:
Стройиздат, 1985.
. СНБ 2.04.05-98
Естественное и искусственное освещение.
. ТКП 181-2009
Правила технической эксплуатации электроустановок потребителей. - Минск, 2010.
. ТКП 336-2011.
Молниезащита зданий, сооружений и инженерных коммуникаций. - Минск, 2011г.
. Кустов О.Ф.,
Жариков О.В., Гончаров А.Н., Пожарная безопасность инженерных систем.
Электроустановки. Учебное пособие. 2003.
. ТКП 121-2009
Пожарная безопасность. Электропроводка и аппараты защиты внутри зданий. Правила
устройства и монтажа. - Минск, 2009.
10.ТКП 339-2011 Электроустановки на
напряжение до 750 кВ. Линииэлектропередачи воздушные и токопроводы, устройства
распределительные и трансформаторные подстанции, установки электросиловые и
аккумуляторные, электроустановки жилых и общественных зданий. Правила
устройства и защитные меры электробезопасности. Учет электроэнергии. Нормы
приемо-сдаточных испытаний. - Мн. Минэнерго 2011.
11. ППБ РБ 1.01-94 Общие правила
пожарной безопасности РеспубликиБеларусь для промышленных предприятий
12. Кустов О.Ф,
Грачев С.А. Безопасность инженерных систем. Пособие по выполнению курсовой
работы.-Гомель 2012.