Выбор бурового оборудования и расчет режимных параметров бурения скважины
Содержание
Введение
. Общая часть
.1 Краткая
характеристика санитарно-технических норм расхода воды
.2 Требования
к качеству воды
.3 Правила
выбора места заложения скважины
.4 Зона
санитарной охраны скважины
. Техническая
часть
.1 Краткая
характеристика условий проведения работ на участке
.2
Определение величины понижения уровня воды и динамического уровня при
эксплуатации
.3 Выбор и
обоснование типа фильтра и расчет его параметров
.4 Выбор и
обоснование способа бурения
.5.
Определение проектной глубины скважины
.6 Выбор и
обоснование водоподъемного оборудования для эксплуатации и для проведения
опытных работ
.7 Выбор и
расчет конструкции скважины
.8 Выбор
бурового оборудования
.9 Выбор
типоразмеров породоразрушающего инструмента
.10 Выбор и
расчет режимов бурения
.11
Обоснование компоновок бурового снаряда
.12
Технология вскрытия и освоения водоносного горизонта
.13 Методика
и выбор технических средств для проведения опытно-исследовательских работ в
скважине
.
Организационная часть
.1 Оформление
согласований и получение разрешений на сооружение скважины
.2 Подготовка
к бурению, монтаж и демонтаж бурового оборудования
.3 Подготовка
обсадных труб к спуску, спуск обсадных колонн
.4 Общая
организация работ
.5 Охрана
природы
. Специальная
часть
. Заключение
. Список
использованной литературы
. Приложения
ВВЕДЕНИЕ
Целью курсового проектирования служит как закрепление, так и углубление
теоретических знаний, связанных с сооружением, ремонтом и эксплуатацией
водозаборных скважин, и использование этих знаний и навыков в самостоятельной
работе для решения конкретных поставленных задач.
Приобретение опыта работы с учебной, справочной, научно технической
литературой, другими источниками информации и в дальнейшем, на высоком
инженерном уровне, умение решать вопросы техники и технологии сооружения
скважин в своей практической деятельности.
1. Общая часть
.1 Краткая характеристика санитарно -
технических норм расхода воды
Вода, подаваемая потребителям, должна быть защищена от случайного или
систематического загрязнения путем устройства зон санитарной охраны и
герметичности водопроводных систем.
По бактериологическим показателям вода, подаваемая в водопроводную сеть и
подступающая к потребителям через наружные водозаборы и краны внутренних
водопроводных сетей, должна соответствовать требованиям и нормам, приведенных в
табл.1.
Нормирование воды по бактериологическим показателям Таблица 1
|
Показатели
|
Норма
|
|
Общее количество бактерий в
1 мл неразбавленной воды, не более
|
100
|
|
Количество бактерий группы
кишечной палочки: · определяемой на плотной, элективной среде с
применением концентраций бактерий на мембранных фильтрах в 1 л воды, (коли -
индекс) не более · при использовании жидких сред накопления (коли -
титр) не менее
|
3 300
|
Допустимые концентрации в воде веществ, преимущественно встречающихся в
природных водах или добавляемых к воде в процессе ее обработки, не должны
превышать норм (табл.2) [2]
Нормирование доспустимых концентраций веществ в воде Таблица 2
|
Наименование химических
веществ
|
Норма
|
Наименование химических веществ
|
Норма
|
|
Молибден, мг/л
|
0,5
|
Стронций,мг/л
|
2,0
|
|
Мышьяк,мг/л
|
0,05
|
Уран природный и уран -
238, мг/л
|
0,7
|
|
Нитраты,мг/л
|
10,0
|
Радий - 226 ,Кн/л
|
1,2 *1010
|
|
Полиакриламид,мг/л
|
2,0
|
Стронций ,Кн/л
|
74,0*10-10
|
|
Свинец,мг/л
|
0,1
|
Селен, мг/л
|
0,001
|
1.2 Требования к качеству воды
Качеством воды называется совокупность свойств воды, обусловленная в
основном концентрацией содержащихся в ней компонентов.
В состав воды в виде различных химических соединений входят около 50
элементов, многие из которых содержатся в малых количествах, но также влияющих
на ее свойства.
Безопасность воды в эпидемическом отношении определяется косвенными
показателями: степенью общего бактериального загрязнения и содержанием бактерий
группы кишечной палочки (описаны ранее).
По органолептическим показателям (запаху, привкусу, мутности, цвету и
содержанию химических веществ) вода должна соответствовать данным табл. 3.
Органолептические показатели Таблица
3
|
Показатели
|
Норма
|
|
Запах при 200 С и при
подогревании воды до 600 С, баллы не более
|
2
|
|
Привкус при 200 С, баллы не
более
|
2
|
|
Цветность по платино -
кобальтовой или имитирующей шкале, градус, не более, по ГОСТ 3351 - 74
|
20
|
|
Мутность по стандартной
шкале, мг/л, не более
|
1,5
|
Вода не должна содержать различаемых невооруженным глазом водных организмов
и не иметь на поверхности пленку.
Специфические привкусы, появляющиеся при хлорировании, не должны
превышать 1 балла.
Водородный показатель(pН)
должен быть в пределах 6,5 - 8,5.
Химические вещества, влияющие на органолептические свойства воды,
встречающиеся в природных водах или добавляемые к воде в процессе ее обработки,
не должны превышать норм, данных в табл.4.
Таблица 4
|
Наименование химических
веществ
|
Нормы
|
Наименование химических
веществ
|
нормы
|
|
Сухой остаток,мг/л
|
1000
|
Цинк, мг/л
|
5,0
|
|
Хлориды, мг/л
|
350
|
Остаточный алюминий, мг/л
|
0,5
|
|
Сульфаты , мг/л
|
500
|
|
|
|
Железо, мг/л
|
0,3
|
Гексаметафосфат, мг/л
|
3,5
|
|
Марганец, мг/л
|
0,1
|
Триполифосфат, мг/л
|
3,5
|
|
Медь, мг/л
|
1,0
|
Общая жесткость
|
7,0
|
При использовании подземных вод без установок по обезжелезиванию воды, по
согласованию с органами санитарно - эпидемической службы содержание железа в
воде, поступающий в водопроводную сеть, допускается до 1 мг/л. [2]
1.3 Правила выбора места заложения скважины
Для обоснования проекта скважины проектная организация выполняет комплекс
изысканий (в том числе и геофизические работы) с освещением следующих вопросов:
а). физико-географические условия района (климат, рельеф,
растительность);
б). гидрологический режим открытых водоемов, связанных с подземными
водами;
в). геологическое строение;
г). условия залегания водоносного пласта, его размеры в плане и разрезе;
д). состав, водопроницаемость, водоотдача и пьезопроводность пласта,
характер контактов с окружающими породами и фильтрационные свойства последних,
источники питания пласта, связь его с поверхностными водотоками и водоемами,
глубина залегания и форма пьезометрической поверхности,
е). качество подземных вод (физические свойства, химический состав,
показатели бактериального и химического загрязнения) данного водоносного горизонта
и окружающих его горизонтов, а также поверхностных вод.
Следует рассматривать несколько участков одного водоносного горизонта или
разных горизонтов вследствие возможности различных гидрогеологических
параметров. Например, участок с лучшими параметрами и более водообильный может
оказаться более удаленным от потребителя.
Определяющим фактором может служить наличие источников загрязнения
подземных вод на том или ином участке, т.е. необходимость проведения в связи с
этим специальных мероприятий по защите подземных вод и водозаборов от
загрязнений или мероприятий по очистке вод. [3]
1.4 Зона санитарной охраны скважины
Основные положения из «Инструкции по установлению зон санитарной охраны
хозяйственно - питьевых водопроводов с подземными источниками водоснабжения»,
утвержденной Главной государственной санитарной инспекцией СССР 7 июля 1956г.
Для предохранения участка водозаборного сооружения (скважины на воду) от
возможных загрязнений вокруг него должны быть созданы охранные зоны. Зона
санитарной охраны представляет собой специально выделенную территорию, в
пределах которой создается особый режим, исключающий возможность загрязнения, а
также ухудшения качества воды источника и воды, подаваемой водопроводными
сооружениями.
Зона санитарной охраны подземного источника водоснабжения делится на два
пояса, в каждом из которых устанавливается особый режим.
При разработке санитарных мероприятий в зоне санитарной охраны подземного
источника водоснабжения необходимо учитывать его большую подверженность
возможным загрязнениям, когда он непосредственно перекрыт крупнозернистыми
породами (песками, гравием и пр.) или представлен трещиноватыми породами,
выходящими на дневную поверхность.
Первый пояс - территория, на которой расположены место забора воды и все
головные водопроводные сооружения(скважины и каптажи, а также связанные с ними
насосные станции и сооружения для обработки воды). При определении границ
первого пояса необходимо принимать во внимание рельеф местности и учитывать
направление движения грунтовых вод.
Территория первого пояса должна быть ограждена забором, защищена полосой
зеленых насаждений и обеспечена охраной. Планировку ее необходимо проводить
так, чтобы поверхностный сток отводился за пределы этой территории в
водоотводные канавы. Если скважина расположена на склоне или в низине, то
необходимо устраивать нагорные канавы. Территория вокруг скважины, подземного
резервуара, а также проезды должны быть замощены.
В границах первого пояса запрещается:
· проживание людей, в том числе и лиц, работающих на водопроводе,
· держание скота,
· доступ посторонних,
· сажать и выращивать зеленые насаждения с применением
органических удобрений и ядохимикатов,
· проводить строительные работы…
Второй пояс представляет собой территорию, которая в зависимости от
санитарных и гидрогеологических условий может использоваться в целях
предохранения эксплуатируемого водоносного горизонта от загрязнения.
В границах второго пояса зоны санитарной охраны подземных источников
водоснабжения необходимо:
· выявлять, ликвидировать цементированием или восстанавливать все старые
недействующие, дефектные и неправильно эксплуатируемые скважины и приводить в
порядок действующие
· запретить сохранение скважин, подлежащих ликвидации
· выявлять и ликвидировать имеющиеся поглощающие скважины и
устройства
· запретить разработку недр(карьера) с нарушением водоупорных
слоев над водоносным горизонтом
· запретить загрязнение водоемов и территорий спуском
неочищенных сточных вод, выбрасыванием мусора…
Перечисленные требования являются общими, и соблюдение их обязательно для
участков водозабора на всех объектах. [4]
2. Техническая часть
.1 Краткая характеристика условий проведения
работ на участке
Геологический разрез Таблица 5
|
Наименование пород
|
Интервал, м
|
|
от
|
До
|
|
Суглинки лессовидные
|
0.0
|
25.0
|
|
Глины сланцеватые плотные
|
25.0
|
70.0
|
|
Пески мелкозернистые
глинистые водосодержащие
|
70.0
|
80.0
|
|
Мергель плотный,
слаботрещиноватый, обводненный
|
80.0
|
120.0
|
|
Глины зеленоватые плотные
|
120.0
|
160.0
|
|
Пески среднезернистые с
гравием обводненные
|
160.0
|
180.0
|
|
Глины плотные
|
180.0
|
200.0
|
Краткая характеристика пород Таблица 6
|
Наименование пород
|
Характеристика пород
|
|
Категория по буримости
|
Твердость по Шрейнеру (МПа)
|
Коэффициент крепости по
Протодьяконову
|
Примерная механическая
скорость бурения, м/ч
|
|
Суглинки лессовидные
|
II
|
100 - 250
|
1,0 - 2,0
|
11,0 - 15,0
|
|
Глины (сланцеватые,
зеленоватые) плотные
|
IIІ
|
250-500
|
2,0 - 4,0
|
5,7-10
|
|
Пески мелкозернистые
глинистые водосодержащие
|
II
|
100-250
|
1,0 - 2,0
|
11,0- 15,0
|
|
Мергель плотный,
слаботрещиноватый, обводненный
|
Іv
|
500 - 1000
|
4,0 - 6,0
|
3,5-5,0
|
|
Пески среднезернистые с
гравием обводненные
|
III
|
250 - 500
|
2,0 - 4,0
|
5,7 - 10,0
|
2.2 Определение величины понижения уровня воды и
динамический уровня при эксплуатации
Величину понижения уровня воды в скважине для напорных вод при
проведенной откачке с одним понижением можно определить по формуле Дюпюи:

, =
1*20/6 = 3,3м (1)
где
S1 - понижение уровня, принимается равным 1 м; Q -
проектный дебит, м/ч; q - удельный дебит, м/ч.
Понижение
уровня S не должно превышать максимально допустимого понижения
Smax.
S≤ Smax (2)
Максимально
допустимое понижение определяется по формуле
Smax = 0,3 Нн.с. (3)
где
Нн.с. - высота непониженного столба жидкости в скважине.

=120 -
4=116м (4)
где
Нк - глубина залегания кровли водоносного горизонта, м; Нст - статический
уровень воды в скважине от поверхности земли, м.
,3
м ≤0.3*116
,3
м ≤ 34,8м
(понижение
уровня S не превышает максимально допустимого понижения)
Динамический
уровень определяется по формуле

,=4+3,3=7,3
м
2.3 Выбор и обоснование типа фильтра и расчет его
параметров
В
зависимости от характера пород, слагающих водоносный горизонт (разнозернистые
пески с гравием), выбираем тип фильтра(стержневые и трубчатые с водоприемной
поверхностью из проволочной обмотки или штампового листа из нержавеющей стали.
Фильтры штампованные из стального листа толщиной 4 мм с антикоррозийным
покрытием, спирально-стержневые)(табл. 4.1,[1]стр. 30-31) и рассчитываем его
параметры (длину и диаметр рабочей части, отстойника и надфильтровой трубы).
Параметры рабочей части фильтра определяются проектным дебитом скважины
мощностью водоносного горизонта и его фильтрационными свойствами,
характеризуемыми коэффициентом фильтрации. Площадь фильтра, определяющая его
водопропускную способность при допустимой скорости фильтрации воды, находится в
зависимости от диаметра и длины рабочей части. В связи с этим, при расчете одну
из этих величин (диаметр или длину) принимают, а другую находят по
соответствующей формуле. При мощности водоносного горизонта до 10 м длину
рабочей части принимают равной мощности водоносного горизонта, а диаметр
определяют по формуле. При мощности водоносного горизонта более 10 м принимают
диаметр фильтра и рассчитывают необходимую его длину. Во всех случаях диаметр
каркаса фильтра должен быть не менее 100 мм, что обусловлено условиями его
эксплуатации и ремонта.
Скорость фильтрации определяется по эмпирической формуле:
=87,02
м/сутки (6)
где
Кф - коэффициент фильтрации 2,4 м/сутки.
Принимая
водопропускную способность фильтра равной проектному дебиту, определяем
необходимую площадь фильтра по формуле:
=
20*24/87 = 5,5 м2 (7)
где
Q - проектный дебит, м3/сутки, vф - допустимая
скорость фильтрации, м/сутки, F - рабочая площадь фильтра, м2.
Если
выразить рабочую площадь фильтра через его диаметр и длину, то формула примет
следующий вид:
(8)
откуда
= 
= 0,0878
м=87,8мм (9)
По
ГОСТу ([1],стр 46) принимаем Дф=114 мм
тогда
=20*24/(3.14*0,114*87)=15,4 м (10)
где
Дф - диаметр фильтра, м; lф - длина фильтра, м, которую мы принимаем равной
мощности водоносного пласта.
Согласно
рассчитанному значению диаметра фильтра выбираем табличное значение наружного
диаметра фильтра 114 мм и подбираем тип фильтра ТС-4Ф128([1]пр.1, с.46).
2.4 Выбор и обоснование и способа бурения
В практике бурения скважин на воду наиболее широкое применение получили
следующие способы бурения:
) вращательный с прямой промывкой;
) вращательный с продувкой воздухом;
) вращательный с обратной промывкой;
) ударно-канатный.
Каждый из названных способов бурения имеет вполне определённые
преимущества и недостатки, а следовательно, и рациональную область применения
применительно к решению конкретных задач, а также к гидрогеологическим и другим
условиям проведения работ.
В настоящие время основным способом бурения скважин является вращательное
бурение с прямой промывкой, этот способ рекомендуется для бурения описанной
выше скважины. Способ рекомендуется использовать при бурении в породах
различной твёрдости на различные глубины, при применении испытателей пластов,
опережающего способа опробования и на стадии поисково-разведочных работ, а
также при применении способов закачивания скважин, исключающих кольматацию
пласта.
Преимущества вращательного способа бурения:
) высокие механические и коммерческие скорости бурения;
) возможность бурения в породах различной твёрдости на различные глубины;
) малая металлоёмкость конструкций скважин.
Недостатки вращательного способа бурения:
) при бурении с глинистым раствором трудности качественного опробования
водоносных пластов и их освоения, что приводит к снижению дебитов скважин,
требует проведения длительных и сложных работ по разглинизации;
) необходимость снабжения установок водой и качественной глиной;
) трудности бурения в породах, содержащих валунно-галечниковые включения,
в породах, поглощающих промывочную жидкость;
) трудности организации работ в зимнее время при отрицательных
температурах.
2.5 Определение проектной глубины скважины
Согласно значению мощности водоносного пласта, полная глубина скважины
Lскв.
= 160+15,4 = 175,4м+(1-2м)=176,4м , так как мощность вышележащих пород 160 м.
2.6 Выбор и обоснование водоподъемного
оборудования для эксплуатации и для проведения опытных работ
В общем комплексе по сооружению и эксплуатации
водозаборных скважин оснащение их водоподъемным оборудованием занимает особое
положение. В конечном итоге эффективность работы водозаборной скважины зависит
во многом от правильного выбора водоподъемного оборудования. Выбор того или
иного типа насоса зависит от назначения скважины, требуемой производительности,
величины напора и срока работ по откачке воды из скважины. Опытные работы
проводятся, в основном, с применением эрлифта, поэтому требуется рассчитать его
параметры, согласовав их с конструкцией скважины.
Глубина погружения смесителя зависит от положения
динамического уровня:
H=k*h=2.5*(7,3+1)=20,75 м (11)
h=hd+а
где Н - глубина погружения смесителя, м; h -
динамический уровень воды в скважине, м ; а=1м.- коэффициент погружения зависит
от динамического уровня воды в скважине и для данного h равен 2,5 ([1]
табл.9.2, стр.105).
Удельный расход воздуха зависит от принятой схемы
расположения труб. В данном проекте выбранная схема расположения труб «внутри».
(Рис.1)
Рассчитаем удельный расход воздуха для подъема 1 м3
воды:
V0=Кn*h/(c*lg(h(k-1)+10)/10) (12)=1,2*7,3/(13,7*lg[(7,3(3-1)+10)/10)]=8,76/(13,7*lg[2,46])
=8,76/13,7* 0,3909=1,64 м3воздуха/м3воды
где V0 -
удельный расход воздуха, м3
h - динамический уровень воды в скважине, м;
Kn - поправочный коэффициент принимаемый по таблице в
зависимости от диаметров водоподъемных и воздухопроводных труб
k- принятый коэффициент погружения смесителя=3,
c - опытный коэффициент зависит от коэффициента погружения,
для выбранного k равен
13,7(табл.9.2, стр.105).
Тогда полный расход воздуха равен:
W = Q* V0/60=1,64*20/60 = 0,55 м3/мин (13)
где W - полный расход воздуха, м3/мин; Q - проектный
дебит скважины, м3/ч;- удельный расход воздуха, м3.
Рассчитаем давление воздуха во время работы эрлифта,
когда вода в скважине установилась на динамическом уровне:
РР = 0,01*(h*(k-1)+5) = 0,01*(7,3*(3-1)+5) = 0,5 МПа (14)
где РР - рабочее давление воздуха, Мпа; h -
динамический уровень воды в скважине, м;- выбранный коэффициент погружения.
Nk=10 N0PkWk=10*,055*1,1*0,66=3,993кВт (15)
где Wk-производительность
компрессора,м3/мин; Wk=W*К1;
Pk-рабочее давление компрессора, МПа (Pk=Pp+∑P)=0,55;
N0-удельная мощность на валу компрессора([1]табл.9.4,
стр.107)=1,1кВт
Действительная мощность на валу компрессора
Nд= 1.1*Nk=4,4кВт (16)
По рассчитанным данным выбираем компрессор
ЗИФ-55Э([1]табл.9.5, стр.108)
Характеристики компрессора:
· Подача воздуха, м3/мин - 4,65
· Рабочее давление, МПа - 0,7
· Мощность на валу, кВт - 34
· Тип двигателя - электрический
2.7 Выбор и расчет конструкции скважины
Определив диаметр фильтра, его конструкцию и способ установки,
рассчитываем диаметр долота для бурения интервала скважины под фильтровую
колонну

= 114+
2*10=134 мм, (24)
где
Д′д.ф. - расчетный диаметр долота для бурения скважины под фильтровую
колонну, мм; Дф. - диаметр фильтра,114 мм; δ - величина зазора между стенкой скважины и наружной поверхностью
фильтра,10 мм. На основании расчетного диаметра принят ближайший больший
диаметр долота по ГОСТу ([1], стр 52) - 139,7мм. Диаметр скважины принимается
равным диаметру долота.
Внутренний
диаметр эксплуатационной колонны рассчитывается по формуле
= 139,7 +
2*5 = 149,7мм, (25)
где
Д′э.в. - расчетный внутренний диаметр эксплуатационной колонны, мм; Дд.ф-
диаметр долота для бурения под фильтровую колонну, выбранный по ГОСТу; Δ - зазор между внутренней стенкой колонны и диаметром
долота
По
ГОСТу на обсадные трубы в соответствии с расчетным внутренним диаметром
эксплуатационной колонны принимаем ее наружный диаметр(219,1мм) и диаметр
муфты(245мм) ([1], стр 52]) . Внутренний диаметр эксплуатационной
колонны(205,1) должен быть достаточным для размещения водоподъемного
оборудования.
2ЭЦВ8-25-100(2-модель разработки, Э-электрический, Ц
центробежный, В-водоподъемный, 8-диаметр обсадных труб в дюймах,25 -
производительность в м3/ч, 100-высота напора в м.)
Характеристики насоса:
) число ступеней 7;
) Q = 25 м3/ч;
) H=100 м;
) N =11 кВт;
) габариты: диаметр и длина (1700 мм х 186 мм);
) масса 160 кг.
Диаметр долота для бурения под эксплуатационную колонну рассчитывается по
формуле

= 245
+2*20 = 285, (26)
где Дм.э. - диаметр муфты эксплуатационной колонны, выбранной по
ГОСТу(245), мм. По расчетному диаметру принимаем ближайший большой диаметр
долота по ГОСТу - 295,3мм.
Внутренний диаметр направляющей колонны рассчитала по формуле

= 295,3
+2*5= 305,3 мм (27)
где Дд.эм- диаметр долота для бурения под эксплуатационную колонну,
принятый по ГОСТу, мм; Δ - зазор 5мм. По ГОСТу в соответствии с расчетным
диаметром выбираем направляющую колонну(324мм) и муфты (351 мм)
Диаметр долота для бурения под направляющую колонну рассчитан по формуле

= 351
+2*5= 361 мм (28)
где Дм.н - диаметр муфты направляющей колонны. По расчетному диаметру
приняла ближайший большой диаметр долота по ГОСТу - 393,3 мм.
Рис.2. Конструкция водозаборной скважины
2.8 Выбор бурового оборудования
Выбор бурового оборудования производится в соответствии со способом
бурения и конструкцией скважины по техническим характеристикам. Выбранный
способ бурения: вращательный с прямой промывкой. Учитывая также диаметр долота
для посадки направляющей колонны и глубину скважины, выбираем буровую установку
1БА15В.
Буровая установка 1БА15В предназначена для бурения вращательным способом
с промывкой разведочных и эксплуатационных скважин на воду. Выбор насоса
производится по необходимой максимальной производительности в соответствии с
разработанными режимами бурения. Рекомендуется использовать тот насос, который
входит в комплект буровой установки. В комплект выбранной буровой установки
1БА15В входит насос НБ12-63-40, который не подходит по заданию и разработанному
режиму бурения. Для данного проекта наиболее подходящим является насос НБ-125,
технические характеристики которого представлены в табл. 7
Таблица 7 Технические характеристики буровой установки 1БА15В
|
Параметры:
|
Характеристики:
|
|
Грузоподъемность, т:
номинальная максимальная
|
12,5 20
|
|
Основной способ бурения
|
Вращательный с промывкой
|
|
Рекомендуемая глубина
бурения, м
|
500 Трубами диаметром 73 мм
|
|
Рекомендуемый диаметр
скважин, мм: начальный конечный
|
394 194
|
|
Транспортная база
|
Шасси МАЗ-500А
|
|
Силовой привод
|
ЯМЗ-236/Д-108(2 двигателя)
|
|
Мощность, л. с.
|
105х2
|
|
Удельный расход топлива,
г/л*с*ч
|
167/181
|
|
Ресурс до капитального
ремонта, ч
|
8000
|
|
Мачта
|
|
Высота до оси кронблока, м
|
18
|
|
Подъем мачты
|
Гидродомкратом
|
|
Длина бурильной
трубы/свечи, м
|
6/12
|
|
Механизм вращения
|
Ротор
|
|
Проходное отверстие стола,
мм
|
410
|
|
Частота вращения, об/мин
|
65,130,245
|
|
Число передач основных
(вспомогательных)
|
4/4
|
|
Крутящий момент
(максимальный), кгс*м
|
700(1000)
|
|
Механизм подъема
|
Лебедка
|
|
Натяжение талевого каната
максимальное, тс
|
5,2
|
|
Диаметр каната, мм
|
18
|
|
Емкость барабана, м
|
150
|
|
Оснастка талевой системы
|
2х3
|
|
Скорость подъема крюка, м/с
|
0,2-1,39
|
|
Тип подачи
|
С тормоза гидравлическая
(по заказу)
|
|
Усилие подачи, тс: вниз
вверх ход подачи, м
|
3,5 5 0,6 или на длину
штанги
|
Таблица 8 Технические характеристики насоса НБ-125Иж
|
Обозначение
насоса
|
Мощность, кВт
|
Диаметр сменных
втулок, мм
|
Объемная подача,
л/мин
|
Наибольшее
давление, МПа
|
Число двойных ходов поршня
в мин.
|
|
НБ-125Иж
|
125
|
90
|
552
|
13,0
|
100
|
|
|
100
|
702
|
10,0
|
|
|
|
112
|
954
|
7,5
|
|
|
|
127
|
1200
|
6,0
|
|
2.9 Выбор типоразмеров породоразрушающего
инструмента
Геологический разрез представлен мягкими и рыхлыми породами I - IV категории, поэтому скважину можно бурить трехлопастными или
шарошечными долотами. Шарошечные долота наиболее успешно применяют в породах VI - X категорий по буримости.
Выбраны трехлопастные долота, которые в мягких породах работают в режиме
резания и скалывания породы, в твердых - в режиме истирания и резания. При
проходке интервала 0 - 25 м используется долото 3Л - 393,3М, 25 - 160м - 3Л-
295,3МС, 160 - 180 - 3Л - 139.7М. (диаметр долота выбираются в соответствии с
конструкцией скважины).
2.10 Выбор и расчет режимов бурения
Режимом бурения называют сочетание следующих параметров, влияющих на
показатели бурения:
. Осевая нагрузка на ПРИ.
. Частота вращения снаряда.
. Расход промывочной жидкости.
Осевая нагрузка на долото (кН) определяется по формуле:
C=Cд*Dд , (30)
где С0 - удельная нагрузка на 1 см диаметра долота, кН, Dд - диаметр долота, см. (для
шарошечных долот в зависимости от категории по буримости) С0=1.5 - 2,5; чем
тверже порода, тем больше должна быть осевая нагрузка)
Частота вращения (в об/мин) определяется по формуле:
n =
20*v/Dд (30)
где v - окружная скорость (1,4 -1.2), м/с,
Dд -диаметр долота, м.
Расход промывочной жидкости, которую необходимо подавать в скважину для
эффективной очистки забоя от шлама и охлаждения ПРИ в процессе бурения,
определяют (в л/мин) по формуле:
Q = qд* Dд (32)
где q -удельный расход промывочной жидкости на 1см диаметра долота.
q=30-40
Режимы бурения для долота 3Л - 393,3М:
Dд.н=393,3мм=39,33
см=0,3933 м;
) удельная нагрузка Сд = 1.50-2.50 кН/см.
Полная нагрузка С = Сд ∙ Dд.н. = 1.50 ∙ 39,33 = 58,9 кН.
С = Сд ∙ Dд.н.
= 2.50 ∙ 39,33 =98,32кН
С= 58,9-98 кН принимаем 65кН
) окружная скорость вращения v =1,4-1,2 м/с.
Скорость вращения n=20*1.4/0.3933=71,2
об/мин
n=20*1.2/0.3933=61,02
об/мин
n=71,2-61,02об/мин
принимаем 65 об/мин
) Промывка:
Удельный расход: q =
40-30 л/(см∙мин).
Полный расход Q = q∙Dд.н. = 40 ∙ 39,33 = 1573,2 л/мин
Q = q∙Dд.н. = 30 ∙ 39,33 = 1179,9л/мин
Q =
1573,2-1179л/мин принимаем 1090 л/мин
Беру 2 насоса по 534 ,НБ125
Режимы бурения для долота 3Л- 295,3МС:
Dд.н=295,3мм=29,53
см=0,2953м;
) удельная нагрузка С0 = 1,50-2,50 кН/см.
Полная нагрузка С. = С0 ∙ Dд.н. = 1,5 ∙29,53 = 44,3=44кН
С. = С0 ∙ Dд.н.
= 2,5 ∙29,53 = 73,8=73 кН
С. = 44 -73кН принимаем 65кН
) окружная скорость вращения v =1,4-1,2 м/с.
Скорость вращения n
=20*1.2/0.2953=81 об/мин
n
=20*1.4/0.2953=194,8 об/мин
n =
81-94 об/мин принимаем 130 об/мин
) Промывка:
Удельный расход: q =
40-30 л/(см∙мин).
Полный расход Q = q∙Dд.н. = 30 ∙ 29,53 = 886л/мин
Q = q∙Dд.н. = 40 ∙ 29,53 = 1181,2 л/мин
Q =
809,7-1079,6 л/мин принимаем 1090 л/мин
Беру 2 насоса по 420 НБ125
Режимы бурения для долота 3Л - 139.7М:
Dд.н=139,7
мм=13,97 см=0,1397 м;
) удельная нагрузка С0 =1,5- 2,5 кН/см.
Полная нагрузка С. = С0 ∙ Dд.н. = 2,5 ∙ 13,97 =34,9кН=35 кН.
С. = С0 ∙ Dд.н.
= 1,5 ∙ 13,97 =20,9кН=21 кН.
С. = 35-21 кН принимаем 21кН
) окружная скорость вращения v =1,4-1,2 м/с.
Скорость вращения n
=20*1.2/0.1397=171,79 об/мин
n
=20*1.4/0.1397=200,43 об/мин
n
=171,79-200,43 об/мин принимаем 245 об/мин
) Промывка:
Удельный расход: q =
40-30 л/(см∙мин).
Полный расход Q = q∙Dд.н. = 30 ∙ 13,97 = 419,1 л/мин
Q = q∙Dд.н. = 40 ∙ 13,97 = 558,8 л/мин
Q =
638,1-850,8 л/мин принимаем 726 л/мин
2.11 Обоснование компоновок бурового снаряда
Часть бурового снаряда, состоящая из бурильных труб и их соединений,
называется бурильной колонной.
Бурильные трубы (рис.3) применяются для спуска в буровую скважину и
подъема породоразрушающего инструмента, передачи вращения, создания осевой
нагрузки на инструмент (утяжеленные бурильные трубы), подвода промывочной
жидкости к забою.
Рис.3 Бурильные трубы
Для бурения данной скважины на всем интервале будут использоваться трубы
диаметром 73мм.
На долото 3Л-139,7М плотные глины создают нагрузку 65 кН (6500 кг). Вес 1
м бурильной трубы равен 16,8кг, т.к. толщина стенки 11. Глубина скважины
составляет 176.4 м. Бурильные трубы создают нагрузку 176.4*16,8=2963,52 кг.,что
больше, чем 2096 кг. Получается, что утяжеленные бурильные трубы,
предназначенные для увеличения веса и жесткости нижней части бурильной колонны
и создания необходимой осевой нагрузки на долото, не нужно использовать.
2.12 Технология вскрытия и освоения водоносного
горизонта
Способы вскрытия водоносных пластов можно классифицировать с учетом
современного состояния технологии и техники бурения и коллекторских свойств пласта.
При выборе способа вскрытия водоносного пласта необходимо учитывать:
• гидродинамическую характеристику водоносного пласта: пластовое
давление, устойчивость пород, коллекторские свойства пласта (размер пор и
трещин) и т.д.;
• глубину залегания водоносного пласта и степень устойчивости его
кровли;
• проектные параметры водоприемной части скважины: диаметр, длину
рабочей части фильтра, техническую характеристику фильтра, необходимость
гравийной обсыпки и дебит скважины.
Перечисленные факторы предопределяют выбор способа вскрытия водоносного
пласта, обеспечивающего минимальные затраты на освоение скважины для получения
ее проектного дебита и долговечности как источника водоснабжения.
Способ вскрытия водоносных пластов вращательным бурением с прямой промывкой
водой широко распространен в практике буровых работ на воду. Он применяется как
для устойчивых водоносных пластов, так и для водоносных пластов, сложенных
рыхлыми неустойчивыми породами, в основном для условий, когда пластовое
давление воды не проявляется самоизливом из скважины, а также если в водоносном
пласте не происходит полного или катастрофического поглощения промывочной
жидкости.
При вскрытии неустойчивых водоносных пластов с промывкой водой требуется
тщательная подготовка и хорошая организация технологического процесса,
обеспечивающего минимальные затраты времени на вскрытие пласта, установку
фильтра и начало откачки.
Эксплуатационную колонну цементируют. Если район в гидрогеологическом
отношении слабо изучен, рекомендуется первоначально вскрыть водоносный пласт
разведочной скважиной и по результатам электрометрических измерений уточнить
интервалы установки рабочей части фильтра.
При подготовке к вскрытию водоносного пласта с промывкой водой проводят
работы по очистке отстойников, устройству отвода использованной промывочной
воды от устья скважины; промеряют и подготавливают фильтровую колонну с
установкой центрирующих фонарей и нижнего левого переводника с обратным
клапаном; подготавливают верхнюю крышку-сальник в надфильтровой части колонны; готовят
гравий для обсыпки фильтра. В комплект инструмента должна входить одна-две
укороченные бурильные трубы, если невозможно наращивание бурильной трубы
нормальной длины.
В нашем же случае будем использовать способ вскрытия водоносных пластов
вращательным бурением с прямой промывкой улучшенным глинистым раствором
(Состав: нормальный глинистый р-р+20% жидкого УЩР/(ТЦР) или 2-5% ПУЩР).
К глинистым растворам, применяемых для вскрытия водоносных пластов,
предъявляются следующие требования:
• легкость их извлечения из пор и трещин пласта после вскрытия и
оборудования водоприемной части скважин;
• минимальное проникновение раствора в пласт во время его вскрытия
бурением;
• отсутствие реакции с породами водоносного пласта и насыщающей его
водой, ухудшающей качество добываемой воды из скважины;
• недопустимость образования осадков, закупоривающих поры пласта и
рабочей части фильтра;
• стабильность при высоких температурах и давлении, а также при низкой
температуре в контакте с пластовой водой.
Обычно широко применяют глинистые растворы из бентонитовых глин и
естественные глинистые растворы, образующиеся в процессе проходки скважины по
глинистым породам.[5]
2.13 Методика и выбор технических средств для
проведения опытно - исследовательских работ в скважине
Приборы для измерения веса бурового снаряда и осевой нагрузки на
породоразрушающий инструмент. Вес бурового снаряда в роторных установках
определяются усилием на неподвижном конце канате. Для этого используют
показывающие пружинные и гидравлические индикаторы веса(динамометры).Для
определения веса бурового снаряда необходимо поднять его над забоем на 15-20
см, включить промывку и вращение и затем взять отчет.
Приборы для измерения крутящего момента, мощности и частоты вращения .
Измерение крутящего момента и его своевременное ограничение позволяют избежать
обрыва бурильных труб.
Измерители давления и расхода промывочной жидкости. Давление измеряют
пружинными манометрами. Чувствительными элементами в этих приборах могут быть:
трубчатая серповидная пружина, многовитковая трубчатая пружина (геликс),
плоская мембрана и сильфон. Класс точности рабочих манометров 1,5;2,5;4.
Контроль и проверку манометров осуществляют образцами манометрами с классом
точности 1,0 и 0,5.
Приборы для контроля износа и дефектов бурильных труб. Износ бурильных
труб выше допустимых норм приводит к обрыву и часто является причиной аварий.
Приборы, обеспечивающие безопасность работ. При подъеме мачты буровой
установки вблизи линии электропередач может возникнуть опасное напряжение и в
результате несчастный случай. Для предотвращения затаскивания элеватора или
крюка при его подъеме под верхний блок в ряде организаций разработаны и
применяются специальные сигнализаторы и концевые отключатели. Все буровые
насосы оснащены манометрами для измерения давления в нагнетательной линии и
клапанами аварийного сброса нагнетаемой промывочной жидкости.
3. Организационная часть
.1 Оформление согласований и получение
разрешений на сооружение скважины
Бурение эксплуатационных скважин на воду, переоборудование разведочных
скважин в эксплуатационные, передача разведочно-эксплуатационных скважин для
эксплуатации, строительство и переоборудование других водозаборных сооружений
для использования подземных вод производятся только с разрешения Российских
органов геологии и охраны недр или территориальных геологических управлений.
Устраивать водозаборы следует в соответствии с проектом водоснабжения, в
котором должна быть учтена перспектива роста водопотребления в дальнейшем.
Проект водозабора должен быть предварительно согласован с областными,
городскими или районными органами государственного санитарного надзора в
зависимости от того, на какой территории расположен объект. Необходимо также
предварительно согласовать проект с органами коммунального хозяйства, если
участок проектируемого водозабора находится в черте города или рабочего
поселка.[7]
3.2 Подготовка к бурению, монтаж и демонтаж
бурового оборудования
Подготовительные работы к бурению начинаются с определения места
заложения скважины, по координатам. Место заложения скважины устанавливает
комиссия в составе представителей от заказчика, подрядчика и санитарного
надзора и оформляется соответствующим актом. При этом следует учитывать
требования техники безопасности, противопожарные правила и удобство размещения
буровой установки для её нормальной работы.
После определения места заложения скважины разбивают и планируют площадку
для монтажа буровой установки. По углам площадки на расстоянии 15 - 20 метров
от оси скважины устанавливают четыре якоря, к которым крепят оттяжки мачты или
буровой вышки. Оттяжки должны быть направлены по диагонали квадрата сечения
мачты или вышки. К площадке должны быть подведена дорога, позволяющая свободно
и безопасно проезжать автотранспорту при провозке оборудования и материалов; а
также должны быть подведены электроэнергия и вода.
На расстоянии 20 - 25 метров от бурового агрегата устанавливают будку или
вагончик для отдыха и укрытия от непогоды буровой бригады. На расстоянии 30 -
50 метров от буровой установки располагают склад горючих и смазочных
материалов. В целях безопасности при производстве работ буровая установка
должна быть расположена на расстоянии не менее полутора размера высоты вышки
или мачты от ближайших зданий, сооружений, ЛЭП и проезжих дорог.
Пред монтажом буровой установки в точке заложения скважины для укрепления
ее устья, а также для обеспечения вертикальности, устанавливают шахтовое
направление.
При неустойчивых породах, в которых шурф рыть затруднительно, на глубину
4 - 6 м бурят ротором под направление, с малой промывкой. А после спуска
направляющей трубы кольцевое пространство заливают цементным раствором до
самого устья скважины.
К бурению скважины можно приступать после затвердевания цемента в
затрубном пространстве, но не ранее, чем через 12 часов после заливки.
Буровую установку располагают так, чтобы рама установки и ротор были
абсолютно горизонтальными и центр ротора совпадал с центром устья направляющей
трубы. Положение поднятой мачты относительно центра ротора выверяют подвешенной
квадратной штангой. Отклонение квадратной штанги от центра ротора не должно
превышать 15 мм.
Совместно с установкой направления и бурового агрегата роют приемный
амбар и один или несколько отстойников для глинистого раствора, устанавливают
циркуляционные желоба.
После закрепления буровой установки и мачты делают рабочую площадку (из
досок или металлических щитов) на уровне роторной площадки и приемный мост для
подтаскивания инструмента и труб в буровую.
Монтажные работы по установке бурового агрегата заканчиваются оснасткой
талевой системы, сборкой рабочей штанги и вертлюга, и установкой индикатора
веса.
Индикаторы веса надо устанавливать при бурении скважины глубиной свыше
100 м, при меньшей глубине бурения индикаторы веса в основном требуются при
извлечении прихваченного инструмента или обсадных труб.
Монтаж, демонтаж и ремонт бурового оборудования, в том числе и вышек,
должны выполнятся под руководством бурового мастера.
Перед использованием подъемных механизмов (лебедок, талей и т.д.),
канатов, цепей, а также ручного инструмента необходимо проверять их
исправность.
Поддерживать и направлять перемещаемое при помощи механизмов оборудование
следует только пеньковыми канатами. Запрещается рабочим находиться на
поднимаемых грузах или под ними.
При использовании катков для перемещения обрудования необходимо применять
не менее трех катков одинакового диаметра и длиной не менее ширины
перемещаемого груза; подкладывать катки под оборудование следует только после
прекращения движения.
Вышку следует поднимать плавно, без рывков, имеющимися на установках
специальными приспособлениями.
Опускать вышку необходимо при помощи тех же механизмов, которыми она была
поднята; эту операцию необходимо проводить с минимальной скоростью, чтобы
избежать ударов и повреждений.
Для предотвращения перемещения буровой установки при подъеме вышки под
задние колеса автомашины необходимо подложить брусья или балки.
При передвижении самоходных буровых установок рабочие могут находиться в
кабине водителя и на специальном сиденье платформы установки. На крутых
подъемах и спусках (свыше 15º) рабочим запрещается находиться на
буровой установке.
Запрещается: передвигать самоходную буровую установку с поднятой мачтой
или с мачтой, опущенной на опоры, но неукрепленной хомутами; перевозить на
платформе установки грузы, не входящие в комплект установки; проезжать под
высоковольтными электролиниями, если между проводами и самой верхней точкой
установки расстояние меньше 2 м.
При проезде под линией вся бригада, кроме водителя, должна оставить
установку; скорость движения при этом следует снизить до 5 км/ч.
Перед подъемом мачты необходимо проверить ее состояние, а выявленные
недостатки устранить до подъема.
Мачты самоходных и передвижных буровых установок следует поднимать и
опускать при помощи исправных подъемных механизмов, предусмотренных конструкцией
установки. Подъем и спуск должны производиться плавно и на малых скоростях.
При опускании мачты запрещается: находиться около ротора станка, на
площадке и в кабине автомашины, кроме лица, управляющего подъемом и опусканием
мачта; находиться на поднимаемой мачтой и под ней.
Ремонтировать кронблок и устанавливать талевую оснастку на мачтах, не
имеющих специальной кронблочной площадки, разрешается только при горизонтальном
положении мачты.
При эксплуатации самоходных и передвижных буровых установок мачта в
рабочем положении должна быть закреплена соответствующими запорами, а опоры
мачт приподняты домкратами. При расположении буровой установки вблизи отвесных
склонов (уступов) расстояние от буровой до бровки склона должно быть не менее 3
метров [8].
3.3 Подготовка обсадных труб
к спуску, спуск обсадных колонн
Скважину крепят обсадными трубами, предусмотренными проектом. На скважину
заблаговременно доставляют требуемые обсадные трубы в количестве, несколько
превышающем их потребность из расчета возможностей отбраковки при проверке и
сборке.
До начала крепления необходимо выполнить следующие операции:
1. Очистить трубы и резьбы от грязи и
смазки консервации;
2. Проверить трубы на отсутствие
механических повреждений резьб, трещин, вмятин, отслоений металла;
3. Проверить внутренний диаметр и
прямолинейность каждой трубы, пропуская через них колонковую трубу длиной 1,5 м
или шаблон соответствующего диаметра;
4. Провести точный замер длины каждой
трубы рулеткой, записав его мелом на трубе и в специальной ведомости. Длину
трубы измеряют с учетом соединения за исключением длины наружной резьбы. Общая
длина труб должна соответствовать глубине закрепляемого участка скважины.
5. При колонковом бурении свинтить обсадные трубы, предназначенные к
спуску, в звенья по две-три трубы в зависимости от высоты буровой вышки.
При креплении нефтяных и газовых скважин обсадные трубы до их спуска в
скважину спрессовывают водой при давлении, на 20 % превышающем давление
опрессовки при испытании колонны на герметичность. После подъема давления в
герметически закрытой трубе до установленного значения оно должно выдерживаться
в течение 30 с.
Вместе с трубами на буровую доставляют специально оборудованный низ
обсадной колонны, который состоит из башмачной направляющей пробки, башмака ,
короткого патрубка с боковыми отверстиями, обратного клапана, упорного кольца,
а также центрирующих фонарей.
Башмачная направляющая пробка крепится к башмаку и служит для направления
низа обсадной колонны, предупреждения срезания башмаком со стенок скважины
глинистой корки, образования сальников, закупоривания обсадных труб и скважины.
Пробки бывают деревянные, бетонные, чугунные, а также стальные типа «паук».
Башмак колонны представляет собой толстостенный патрубок длиной 300-500
мм, устанавливаемый на нижней трубе обсадной колонны для предупреждения смятия
ее торца. Наружный диаметр башмака равен диаметру муфты, внутренний -
внутреннему диаметру обсадной трубы.
Обратный клапан ставят для облегчения обсадной колонны при спуске,
уменьшения нагрузок на вышку, недопущения обратного поступления в колонну
закачанного цементного раствора. Тарельчатый обратный клапан состоит из седла,
ввинчиваемого в муфту, тарелки, стержня и пружины. Клапан устанавливают на
расстоянии 10 м от башмака.
Упорное кольцо выполнено в виде чугунной шайбы толщиной 12-15 мм,
устанавливаемой в муфте на расстоянии 6-12 м выше обратного клапана. При
продавливании цементного раствора цементировочная пробка садится на упорное
кольцо. При этом в нижней части труб остается цементный раствор, который после
схватывания разбуривает вместе с упорным кольцом, обратным клапаном и
направляющей пробкой.
Для обеспечения равномерного цементного кольца в затрубном пространстве
обсадную колонну оборудуют центрирующими пружинными фонарями. Фонарь представляет
собой пять - шесть планок из рессорной стали, которые приварены к муфтам,
свободно надетым на обсадную трубу и удерживаемым на ней упорным кольцом.
Перед спуском обсадных труб скважину интенсивно промывают свежей
промывочной жидкостью с целью очистки ее от шлама и уменьшения толщины
глинистой корки, а при необходимости прорабатывают места сужения новым
породоразрушающим инструментом.
При дробовом бурении скважину перед креплением требуется углубить
колонковым снарядом меньшего диаметра на его длину. При подъеме снаряда
производится контрольный замер глубины скважины.
Буровой мастер лично проверяет исправность буровой вышки, грузоподъемного
оборудования, каната, талевой системы, вспомогательного инструмента, КИП и
состояние фундаментов. Обнаруженные неисправности немедленно устраняют.
При колонковом бурении обсадные трубы спускают с помощью пробки-вертлюга
или обычных хомутов и строп, а удерживают их на весу трубодержателем или
хомутами. При подаче труб к устью скважины применяют трубные тележки. Перед
спуском в скважину трубы повторно шаблонируют.
Трубы свинчивают шарнирными ключами или труборазворотом с приставкой
МСОТ-2. Если резьбы труб при свинчивании сильно нагреваются, недовинчиваются на
1,5 витка или завинчиваются от руки, то их заменяют. Во избежание
самопроизвольного развинчивания трубы свинчивают на разогретых смолах, например
эпоксидных, или с точечной сваркой нижних и верхних звеньев. Кроме того, во
избежание развинчивания труб не допускается подвешивать колонну на хомутах или
устанавливать башмак колонны в размывающихся и сыпучих породах. Башмак должен
быть задавлен в вязкие породы или зацементирован.
Поверхность труб смазывают нефтью или другими доступными смазочными
материалами для предупреждения коррозии и облегчения их последующего извлечения.
3.4 Общая организация работ
Работу по бурению выполняет бригада, состоящая из бурильщика, старшего
рабочего и рабочего. При глубоком бурении и бурении скважин большого диаметра
состав бригады дополнительно укомплектовывают еще одним рабочим. На каждые 1-2
станка назначают старшего бурового мастера, который осуществляет техническое и
организационное руководство всеми работами. Монтаж бурового станка и бурение
можно начать, если утвержден геолого-технический наряд на бурение скважины. По
результатам смены заполняют сменный рапорт и буровой журнал.
Максимальное время должно быть отведено производительным видам работ.
Важно своевременно завезти на буровую площадку буровой и вспомогательный
инструмент, необходимое количество обсадных труб и фильтров требуемых
типоразмеров, обеспечить буровую установку водой, энергией и т. п.Если
электроэнергия на участке отсутствует, то устанавливают дизель- электрические
станции. В зимнее время буровой станок укрывают щитами и помещение отапливают.
При низких температурах необходимо организовать подогрев бурового инструмента,
чтобы исключить его поломки в связи с высокой хрупкостью. Если скважину
ликвидируют, то из нее по возможности извлекают все обсадные трубы и ствол
скважины тампонируют.[6]
3.5 Охрана природы
В нашей стране, как и в зарубежной практике, существуют федеральные
законы, направленные на недопущение загрязнения природной среды. Это законы:
«Об охране окружающей природной среды», «О недрах», «О континентальном шельфе
Российской Федерации», «Об отходах производства и потребления».
При производстве буровых работ, загрязнение может приводить к снижению
продуктивности почв и ухудшению качества подземных и поверхностных вод.
Причины, влияющие на окружающую среду, следующие:
). неправильная прокладка дорог и размещение буровых установок;
). планировка буровых площадок;
). нерациональное использование земельных участков под буровые установки;
). несоблюдение правил и требований.
С целью уменьшения повреждений земельных угодий и снижение вредных
воздействий, геологоразведочные организации должны ежегодно разрабатывать
планы-графики перемещения буровых агрегатов с учетом времени посевов и уборки
сельскохозяйственных культур.
Подъездные дороги и буровые площадки по возможности необходимо
располагать на малопродуктивных землях, а размеры их должны быть минимальными.
В процессе бурения выполняют следующие охранные мероприятия:
1) конструкции скважин должны обеспечивать изоляцию подземных вод от
поверхностных и грунтовых;
2) промывочные жидкости и химические реагенты, применяемые для
промывки должны исключать загрязнение подземных вод и подбираться в
соответствии с санитарными нормами;
) слив использованного промывочного раствора и химических
реагентов в открытые водные бассейны и непосредственно на почву запрещается;
) все использованные жидкости и химические реагенты вывозятся в
специальные места для захоронения.
По окончанию буровых работ должна быть проведена рекультивация, то есть
комплекс мероприятий по восстановлению земельных отводов.
Оборудование и железобетонные покрытия демонтируют и вывозят, остатки
дизельного топлива и моторного масла сжигают, нарушенный растительно-почвенный
покров закрывают дерном и почвенным слоем, глинистый раствор вывозят. Проводят
биологическую рекультивацию, т.е. озеленение.
буровой
снаряд скважина колонна
4. Специальная часть
Разработка технологии цементирования эксплуатационной колонны
Существуют следующие способы цементирования: башмачное цементирование
через заливочные трубы, одноступенчатое, двухступенчатое и манжетное
цементирование, цементирование хвостовиков и др.
Цементирование через заливочные трубы является наиболее простым и широко
используется при разведочном бурении, когда требуется изолировать затрубное
пространство от скважины только в призабойной части. Для этого в приподнятую
над забоем на 2-3 м обсадную колонну спускают бурильные трубы и промывают
забой. Затем через бурильные трубы закачивают необходимое количество цементного
раствора, обсадную колонну спускают на забой и оставляют в покое примерно на 1
сут. По окончании цементирования бурильные трубы приподнимают над цементным
раствором, промывают водой и извлекают из скважины.
Одноступенчатое цементирование наиболее широко применяют в тех случаях,
когда требуется герметизация затрубного пространства на большую высоту, вплоть
до устья скважины.
Одноступенчатое цементирование производят следующим образом (рис. 4). На
спущенную в скважину колонну обсадных труб навинчивают цементировочную головку.
Скважину и затрубное пространство через цементировочную головку промывают
свежей промывочной жидкостью до полного удаления шлама. Затем снимают
цементировочную головку, в обсадные трубы спускают нижнюю пробку, снова
устанавливают цементировочную головку с верхней пробкой и закачивают расчетное
количество цементного раствора (рис. 4,а).
Рис.4. Схема цементирования скважины с двумя пробками
После этого вывинчиванием стопорных винтов в цементировочной головке
освобождают верхнюю пробку и через тройник закачивают расчетное количество
продавочной жидкости (воды или глинистого раствора). Цементный раствор,
заключенный между двумя пробками, продавливается вниз (см. рис. 4,б).
Нижняя пробка, дойдя до упорного кольца в трубах, останавливается, а
верхняя под напором продавочной жидкости продолжает опускаться. Вследствие
развиваемого при этом высокого давления резиновая диафрагма нижней пробки
разрушается и цементный раствор вытесняется в затрубное пространство (рис.
4,в).
Окончание нагнетания цементного раствора в затрубное пространство
определяют по резкому повышению давления на манометре насоса в момент схождения
пробок. Часть цементного раствора ниже упорного кольца остается в обсадной
колонне (рис. 4,г). На этом закапчивается процесс цементирования, и скважина
при закрытых кранах па цементировочной головке оставляется в покое на срок,
необходимый для твердения цементного раствора.
Цементирование можно проводить только с одной верхней пробкой. Как
показывает практика, цементный раствор смешивается с промывочной жидкостью в
незначительном интервале, к тому же эта раствора поднимается к устью скважины и
на качество цементирования не влияет.
Двухступенчатое цементирование применяют в глубоких скважинах на нефть и
газ. Его особенность заключается в том, что цементный раствор продавливается в
затрубное пространство как через низ обсадной колонны, так и через отверстия в
специальной заливочной муфте, которую устанавливают в колонне на определенной
высоте от забоя.
При бурении скважин на воду иногда приходится цементировать обсадную
колонну, спущенную вместе с фильтром. В этом случае применяют манжетное
цементирование. При этом виде цементирования между фильтром и обсадной колонной
устанавливают специальное приспособление (рис.5).
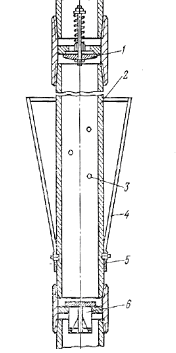
Рисунок 5. Приспособление для манжетного цементирования
Оно представляет собой обсадную трубу 2 с просверленными в шахматном
порядке тремя-четырьмя отверстиями 3 диаметром 15-20 мм. Для предотвращения
попадания цементного раствора в зону фильтра внутри трубы устанавливают прямой
клапан 6, а вокруг отверстий - воронкообразную манжету 4 из кожи или брезента
высотой 60-70 см с верхним диаметром, несколько превышающим диаметр скважины.
Кожу или брезент прикрепляют заклепками к шести-восьми стальным полосам
толщиной 3- 4 мм и шириной 25-30 мм, которые нижними концами приваривают к
кольцу 5. Кольцо после одевания воронки крепят к трубе. Над манжетой может
устанавливаться обратный клапан.
Манжетное цементирование проводят так же, как и цементирование с двумя
пробками. После твердения цемента цементировочные пробки и клапаны разбуривают.
Найдем объем цементного раствора, необходимого для создания в затрубном
пространстве цементного кольца и стакана внутри обсадной колонны:
V =
0,785*K*((Dс2 - Dн2)*H1 + DВ2*H2);
(33)
V =
0,785*1,2*(0,29532-0,2192)* 130 +0,20512*3)=6,33 м3;
где V - объем цементного раствора, м3; К -
коэффициент, учитывающий увеличение объема цементного раствора за счет наличия
трещин, каверн и разработки ствола скважины, К = 1,2; Dс=0,2953м - диаметр скважины (долота); D н =0,219 м - наружный диаметр обсадных
труб, м; H1 - высота цементируемого
интервала-130м; DВ=0,2051м -
внутренний диаметр обсадных труб; H2 - высота столба жидкости (цементного раствора) внутри труб, равна 3 м.
Рассчитаем количество сухого цемента на 1 м3 раствора:
q= ц*
в/ в+m* ц,т (33)
q=3,05*1/1+0,5*3,05=
1,2 т,
где: ц=3,05..3,20 т/м3- удельный вес сухого цемента; принимаем ц=3,05
в=1,0 т/м3- удельный вес воды;
m В/Ц-
водоцементное отношение количества воды к количеству сухого цемента по массе, m=0,4…0,6; принимают обычно m=0,5.
Рассчитаем общее количество сухого цемента для приготовления цементного
раствора:

(34)
где
q=1,2 т - количество сухого цемента на 1 м3 раствора; V -
объем цементного раствора, необходимого для создания в затрубном пространстве
цементного кольца и стакана внутри обсадной колонны;β=1,1…1,15
- коэффициент, учитывающий потери цемента
при приготовлении раствора.
Рассчитаем
объем воды для приготовления цементного раствора:
Vв = 
= 
м3 (35)
где
Vв - объем воды для приготовления цементного раствора,
м3;
m - масса сухого
цемента, кг, обычно принимают 0,5; ᵞв=1,0 т/м3- удельный вес
воды.
Рассчитаем
количество продавочной жидкости:
Vж = 
*(Н+
)*
(36)

м3,
где
Vж - объем продавочной жидкости, м3; DВ-
внутренний диаметр обсадных труб; К2 - коэффициент, учитывающий сжатие
глинистого раствора, К2 = 1,03-1,05 , принимаем К2 = 1,03 ;
Н2-
высота цементного стакана; Н=176.4 м - глубина скважины;
К1-коэффициент,
учитывающий сжатие воздуха, для глинистых растворов К1=1,05.
Необходимая
суммарная производительность насосов при продавливании цементного раствора:

(38)
где
Dс=2,953 дм - диаметр скважины (долота);
D н
=1,397 дм - наружный диаметр обсадных труб, м;

-необходимая
суммарная производительность насосов при продавливании цементного раствора;
Максимальное давление насоса при закачивании цементного раствора в
затрубное пространство:
Рмах=Р1+Р2=17,7+2,7=20,4 кгс/см2 (39)
Р1-суммарные потери напора на преодоление гидравлических сопротивлений в
обсадной колонне, затрубном пространстве и т.д.
Р1=0,01*Н+16=0,01*175,4+16=17,7 кгс/см2 (40)
где Н=175,4 м - глубина скважины.
P2=0,1(H-H1)*(γж-γпр.ж.)+(Н1-Н2)( γц.р.-γпр.ж) (41)
P2=0,1*((175,4-130)(1,8-1,2)=2,724кгс/см2
где γц.р- удельный вес цементного раствора, т/м3
γц.р=q*(1+m)=1,2*(1+0,5)=1,8
т/м3 (42)
Н2- высота цементного стакана; Н- глубина скважины;
H1 -
высота цементируемого интервала, м; γж- удельный вес жидкости;
γпр.ж=1,2, г/см3 -удельный вес
промывочной жидкости.
Выбираем цементировочный агрегат и режим его бурения
Выбираем агрегат ЦА-320М.
Исходя из расчетом Рmax
=20,4 кгс/см2 , лучший режим это IV
скорость и в соответствии с производительностью диаметр втулки d = 127 мм, следовательно Pmax=58 кгс/см2 и qца=14,5 л/с ([1] табл.6.2,стр.78)
Необходимое количество цементировочных агрегатов:
nца= QН/qца=63,6/14,5=4 шт, т.е четыре установки цементировочных
агрегатов.
Заключение
В данном курсовом проекте проводилось проектирование скважины, выбор
бурового оборудования, расчет режимных параметров, которые соответствуют данным
геолого-техническим условиям. Данная работа помогла мне приобрести необходимые
знания и практические навыки, которые в дальнейшем пригодятся на
производственной практике, а также при написании дипломного проекта
Список литературы
1. Башкатов
Д.Н., Сулакшин С.С., Драхлис С.Л., Квашин Г.П. Справочник по бурению скважин на
воду. - М.: Недра, 1979. - 560с.
2. Белицкий
А.С. Краткий справочник по проектированию и бурению скважин на воду(2-е
издание). - М.: Недра, 1983. - 150 с.
. Дубровский
В.В., Керченский М.М., Плохов В.Н. и др. Справочник по бурению и оборудованию
скважин на воду. - М.: Недра, 1972. - 512с.
. Керченский
М.М., Плохов В.И. Бурение скважин на воду. - М.: Недра, 1965. - 290с.
. В.П.
Шестеров, В.А. Шмурыгин, И.Б. Бондарчук. Сооружение, ремонт и эксплуатация
водозаборных скважин. -Томск: ТПУ, 2009.
. Керченский
М.М., Плохов В.И. Бурение скважин на воду. - М.: Гостоптехиздат, 1958. - 245с.
. Пальянов
П.Ф., Штейнберг А.М. Бурение скважин. - М.: Недра,1964. - 354с.
. Храменков
В.Г. Контроль и автоматизация технологических процессов при бурении
геологоразведочных, нефтяных и газовых скважин (3-е издание). - Томск: ТПУ,
2009. - 339с.
Приложение
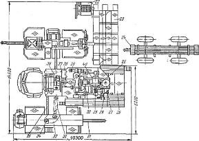
Схема расположения бурового оборудования
Буровой агрегат 1БА15В состоит из: 1- автошасси МАЗ-500А; 2-гидродомкрат
аварийного подъема мачты; 3- ресивер; 4- грузоподъемное устройство; 5- буровой
насос; 6- гидродомкраты подъемамачты; 7- индикатор веса; 8-
компрессорно-силовой блок; 9- мачта; 10- талевый блок; 11- вертлюг; 12- ведущая
штанга; 13- буровой рукав; 14- подвеска рукава; 15- насосно силовой блок; 16-
щит бурильщика; 17- гидрощит; 18- электрощит; 19,21, 25, 32, 34, 38 - карданные
валы; 20- коробка отбора мощности; 22- глиномешалка; 23- блок глиноочистки; 24-
инструментальный блок; 26- откидные мостки; 27- ротор; 28- рычаги управления;
29- лебедка; 30- коробка передач; 31- шасси прицепа; 33- редуктор; 35-
пневморукав; 36- аварийный компрессор: 37- масляный бак; 39- гидрораскрепитель;
40- цепная передача.