Організація роботи технічної дільниці фермерського господарства

  • Вид работы:
    Отчет по практике
  • Предмет:
    Безопасность жизнедеятельности
  • Язык:
    Украинский
    ,
    Формат файла:
    MS Word
    311,49 Кб
  • Опубликовано:
    2013-04-23
Вы можете узнать стоимость помощи в написании студенческой работы.
Помощь в написании работы, которую точно примут!

Організація роботи технічної дільниці фермерського господарства















Організація роботи технічної дільниці фермерського господарства

Вступ

В даний час автомобільний транспорт є наймасовішим і найбільш зручним видом транспорту, що володіє великою маневреністю, хорошою прохідністю і пристосованістю для роботи в різних кліматичних та географічних умовах. Автомобільна промисловість постійно працює над поліпшенням технології виробництва і вдосконалення автомобілів, забезпеченням їх безвідмовності, довговічності і ремонтопридатності. Автомобіль механічним транспортним засобом, призначеним для перевезення людей, вантажів, а також для виконання спеціальних завдань. Поява автомобіля відразу вплинуло на господарську діяльність, на вигляд населених пунктів. Вулиці міст стали покриватись асфальтом, на перехрестя вийшли регулювальники руху. Потрібно було регламентувати поведінку людей на дорогах - з'явилися спеціальні правила руху; встановлювалися дорожні знаки, які попереджали водіїв на крутих поворотах, канавах, горбах, залізничних переїздах, перехрестях.

Для регулярного та своєчасного перевезення вантажу автомобіль має обслуговуватись та ремонтуватись і цю функцію виконує ремонтне виробництво. Воно має величезне народногосподарське значення, з метою підтримки в справному стані автомобільного транспорту і продовження терміну служби автомобілів, а так само є джерелом економічної ефективності, тому використовується залишковий ресурс деталей. Приблизно 70-75% деталей, які пройшли, термін служби до першого капітального ремонту мають залишковий ресурс і можуть бути використані повторно. Основним завданням авторемонтних підприємств є те, щоб з найменшими витратами відновити працездатність автомобілів.

До технологічної частини ремонтної організація відносится проведення ТО і ТР автомобілів. Прийнята на автомобільному транспорті організація технічного обслуговування і ремонту автомобілів передбачає планово-попереджувальний систему ТО і ремонту. Принципові положення цієї системи ТО і ремонту: Виконання в примусовому порядку постійного комплексу робіт з ТО через встановлений період; Виконання ремонту автомобіля (агрегату) за потребою, яка визначається технічним оглядом після міжремонтного пробігу, що встановлюється для кожного виду ремонту і моделі автомобіля або прийнята в процесі ТО, а також в результаті контрольного огляду після повернення з лінії. Таким чином, ТО являє собою обов'язковий обсяг робіт, заздалегідь встановлений для даного типу і моделі автомобіля в певних умовах експлуатації і виконаний періодично після встановленого пробігу. Основою положення є планово-попереджувальна система з примусовим виконанням ТО. Положенням передбачається: Щоденне обслуговування (ЩО) Перше технічне обслуговування (ТО-1) Друге технічне обслуговування (ТО-2) Поточний ремонт (ПР)Поточний ремонт включає в себе поточний ремонт автомобіля, агрегатів, вузлів і механізмів. На АТП прийняті наступні методи організації виробництва ТО і ПР автомобілів: спеціалізованих бригад, агрегатно-дільничний, агрегатно-вузловий, операційно-постової. Організація контролю якості проведення ТО і ТР. Контроль якості проведення ТО і ТР є частиною виробничого процесу. Кінцевою метою контролю є попередження браку і підвищення якості виконуваних робіт. Об'єктивними показниками якості робіт є тривалість безвідмовної роботи автомобіля на лінії після ТО і ремонту. Основні функції контролю якості ТО і ТР рухомого складу покладаються на відділ технічного контролю (ВТК. Після виконання ТО-1 і ТО-2 контролюється не тільки якість роботи, а й виконання прийнятого переліку операцій. Контроль здійснюється візуально, із застосуванням переносних приладів, а також за допомогою наявного обладнання для діагностики. Застосування засобів діагностики дозволяє при мінімальних витратах часу об'єктивно оцінити якість виконуваних робіт і готовність автомобіля до випуску на лінію. Обсяг виробництва та режим роботи проектованої ділянки. Технічна схема ремонту автомобілів починається з очищення машини від бруду зовнішньої мийкою і проведення регламентної діагностики. Організація ТО у виробничому корпусі прийнята наступна: ТО-1, ТО-2, ПР проводяться на постах для технічного обслуговування і ремонту. Несправні вузли, механізми та агрегати демонтуються і ремонтуються на постах.

1. Історія розвитку та характеристика підприємства

Фермерське господарство С.А.М. було зареєстровано 24.12.1999 року в Куп'янській районній Державній адміністрації Харківської області, яке знаходиться за адресою Харківська область, Куп'янський район, с.Берестове.Директор організації Судавцов Анатолий Миколайович.Сфера діяльності:

.1 Вирощування зернових культур (крім рису), бобових культур і насіння олійних культур.

.2 Оптова торгівля зерномнеобробленим тютюном, насіння та корми для тварин.

.3 Вирощування овочів і баштанових культур, коренеплодів і бульбоплодов

.4 Допоміжна діяльність у вирощуванні рослин.

.5 Вантажний автомобільний транспорт.

.6 Оптова торгівля іншими проміжними продуктами.

Для виконання всіх операцій на підприємстві є траспорт (табл.1):

Кількість транспорту

Марка транспорту

Сер.доб.



Проб.

 20

 КАМАЗ - 5511

 250

 5

 УАЗ - 31519

 130

 10

 ВАЗ 21213

170

 19

 ТРАКТОР Т150

 270

 13

Трактор Беларус 892

265

 3

АВТОБУС 53-82

80

 10

КОМБАЙН "Bizon"


Всього 69




На балансі підприємства є приміщення (таб. 2):

Дата ввода в эксплу

Наименование

10,2010

Ангар

 

Вагова

 

 Ваги автомобільні

 

Будівля їдальні

10,2010

Склад

10,2010

Ремонтні зони

 

ТОК АСФАЛЬТИРОВАННЫЙ


. Ангар для стоянки авто в зимовий період на 70 одиниць вантажної техніки.

.Вагова це приміщення де проводиться зважування зернових культур.

. Ваги автомобільні застосовуються для того, щоб зважити вантаж попередньо знаючи вагу порожнього авто.

. Будівля їдальні призначена для працівників організації, в ній проходить обідня перерва.

. Склад-в ньому виконується зберігання деталей для авто та решти транспорту.

. Ремонтні зони.

. ТОК асфальтований призначен для зберігання зернових культур.

З 2005-2008 відбувалась закупівля нової техніки,зокрема, комбайни "Bizon",авто КАМАЗ - 5511.З 2008 по 2010 рік велися перебудови та реконструкція: було відновлено токарний цех,зону поточного ремонту,слюсарний цех,склад,побудований новий Ангар для зберігання техніки.

. Структура керування підприємством

У фермерському господарстві існує структура управління:


ФГ "С.А.М." керує Директор, а йому підпорядковується Бухгалтер якій розраховує робочі години робочого класу та Різноробочі які виконують різні поручення,Інженер проводить Т\Б з усіма робочими ФГ "С.А.М." для запобігання небезпечних випадків. Головному Механіку підпорядковуються Слюсарі які виконують ремонт техніки,та Різноробочі для виконання різних робіт.

. Структура управління технічною службою

За такою схемою виконується управління технічною службою.


4. Характеристики виробничих зон і відділень

Кожна із виробничіх зон знаходяться окремо і є окремим приміщення на тереторії господарства.

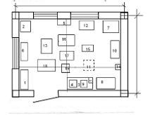
Зона поточного ремонту - призначеній для ремонту автомобілів та тракторів та демонтажу важких агрегатів техніки за допомогою Кран-балки вантажопідйомності в 6т. Також має оглядову канаву. Столи для складання ключів,агрегатів,приборів діагностування. В зоні працює 5 чоловік.


1) Кран-балка 6т.

) Стіл для ключів

) Стіл для агрегатів та діагностичного обладнання

4-5) Оглядові канави

Слюсарне віділення - в цьому відділенні проводять такі роботи підгонка і регулювання;обпилювання профілів;виконання притирання деталей;проведення зачистки, полірування і складання деталей.

.        - шліфувальный станок 3Б634,

2.      - інструментальна шафа,

.        - тумбочка бригадира,

.        - свердлильний верстат 2Н125,

.        - стілець,

.        - кран-балка,

.        - пересувний возик ,

.        - стелаж для зберігання матеріалів і запасних частин,

.        - стіл для розбирання та збирання вузлів.

 

Зварювальне відділення - в ньому виконують з найпоширеніших технологічних процесів обробки металів і служить для нероз'ємного з'єднання металів шляхом нагрівання зварних швів до рідкого або пластичного стану. Сутність зварювання в зближенні частинок металів на відстань, близьке до відстані між молекулами, що забезпечує більшу міцність зварювального з'єднання.

. Шафа для одягу

. Зварювальні пости

. Зварювальний трансформатор

. Шафа для інструменту

. Слюсарний верстат

 

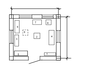
Агрегатне відділення - призначено для ремонту більшості агрегатів автомобілів (двигуна, і його вузлів, зчеплення, коробки передач, карданної передачі, заднього і переднього мостів, рульового управління і т.д.), причому в основному заміною несправних деталей на справні. Такий розподіл дозволяє спеціалізувати робітників на ремонті двигунів як найбільш складному агрегаті.

В цьому відділенні працює два чоловіка.

- стелаж для деталей 2 - верстат для розточування гальмівних барабанів

- слюсарний верстак 4 - настільно-свердлильний верстат

- настінна шафа для приладів та інструментів

- стенд для розбирання і регулювання зчеплень,

- гідравлічний прес зусиллям 40 тс, 8-стелаж для інструментів

- настільно-верстачной прес зусиллям 3 тс

- стенд дли ремонту карданних валів і кермових механізмів

- пересувна мийна ванна,

- заточний верстат

- вертикально-свердлильний верстат

- раковина для миття рук 15 - скриня для відходів

- стенд для ремонту редукторів задніх мостів

- стенд для ремонту коробок передач

- стенд для ремонту передніх і задніх мостів

- підвісна кран-балка 20 - лещата

Токарне відділення - в ньому виконуються такі роботи як: обробка різанням зовнішніх і внутрішніх поверхонь , в тому числі циліндричних і конічних, торцювання, відрізання, зняття фасок, обробка галтелей, прорізання канавок, нарізування внутрішньої і зовнішньої різьби.

В цьому відділені працює одинробочий.

1-шафа для одягу,

-ящик для сміття,

-малий токарний верстак,

-токарно револьверний верстак,

-шафа для заготовок,

-шафа для інстументів,

-фрезерний верстак,

-заточний станок,

-возик,

. Охорона праці і техніка безпеки по підприємству

Основні положення з охорони праці викладені в, Кодексі законів про працю. Особлива увага приділяється охороні праці жінок і підлітків. Діти до 15 років до роботи в промисловості не допускаються. Підлітки до 18 років можуть бути прийняті на роботу лише після медичного огляду. Тривалість робочого дня підлітків від 15 до 16 років - 4 год, від 16 до 18 років - 6 ч. Трудовим законодавством заборонений прийом жінок або осіб, які не досягли 18 років, на важкі та шкідливі роботи.

Основні заходи щодо ОП і ТБ:

Техніка безпеки у зоні поточного ремонту:

Перед проведенням робіт необхідно:

Перевірити спецодяг, простежити, щоб не було звисаючих кінців. Рукава треба застебнути або закатати вище ліктя;

Перевірити слюсарний верстак, який повинен бути міцним і стійким, відповідати зростанню робітника. Слюсарні лещата повинні бути справні, міцно закріплені на верстаку;

Підготувати робоче місце: звільнити потрібну для роботи площу, видаливши всі сторонні предмети; забезпечити достатню освітленість;

Перевірити справність інструменту, правильність його заточування і заправлення;

При перевірці інструмента звернути увагу на те, щоб молотки мали рівну, злегка опуклу поверхню, були добре насаджені на ручки і закріплені клином; зубила не повинні мати щербин на робочій частині та гострих ребер на гранях; напилки міцно насаджені на ручки;

Перевірити справність устаткування, на якому доведеться працювати, і його огорожу;

Перед підніманням тягарів перевірити справність підйомних пристосувань (Блоки, домкрати тощо); всі підйомні механізми повинні мати надійні гальмівні пристрої, а вага вантажу, що піднімається не повинен перевищувати вантажопідйомність механізму. Забороняється стояти і проходити під піднятим вантажем; не перевищувати граничні норми ваги для перенесення вручну, встановлені чинним законодавством про охорону праці, для чоловіків, жінок, юнаків та дівчат.

Міцно затискати в лещатах деталь чи заготовку, а під час установки або зняття її дотримуватися обережності, так як при падінні деталь може нанести травму;

Ошурки з верстака або оброблюваної деталі видаляти лише щіткою;

При рубці металу зубилом, працювати тільки в захисних окулярах. Якщо по умовами роботи не можна застосувати захисні сітки, то рубку виконують так, щоб відрубувати частки відлітали в той бік, де немає людей;

Не користуватися при роботах несправними пристосуваннями;

Не допускати забруднення одягу гасом, бензином, маслом. Забороняється стояти і проходити під піднятим вантажем; не перевищувати граничні норми ваги для перенесення вручну, встановлені чинним законодавством про охорону праці, для чоловіків.

Після закінчення роботи необхідно:

Прибрати робоче місце;

Розкласти інструменти, пристосування і матеріали на відповідні місця.

Техніка безпеки у слюсарному відділенні:

Вимоги безпеки перед початком роботи

.1. Переконатися в справності й надягти спецодяг, волосся прибрати під берет або кепку.

.2. Перевірити справність інструменту і пристроїв: • слюсарний верстак повинен бути без вибоїн, тріщин та інших дефектів, верстачной лещата - з паралельними губками і неспрацьовану на них насічкою, укомплектовані прокладками з м'якого металу для міцного захвату затискається вироби;

• рукоятка ударного інструменту (молотка і т.д.) повинна мати овальну форму в поперечному перерізі і бути прямою;

• поверхню бойка молотка повинна бути опуклою, гладкою, нескошеної, без задирок;

• інструмент ударної дії (зубила, крейцмейселі, борідки і пр.), повинні мати гладку потиличну частину без тріщин, задирок, наклепу та скосів;

• веретено ручного інструменту із загостреним робочим кінцем (напилки, викрутки і т.д.) повинне надійно закріплюватися в рівної, гладко зачищеній рукоятці, яка, для більшої міцності, повинна бути стягнута з обох кінців металевими бандажними кільцями;

• викрутки повинні бути з нескривленими стрижнями, так як можливо зісковзування леза з голівки гвинта або шурупа й травмування рук;

• гайкові ключі повинні відповідати розмірам болтів і гайок, зеви гайкових ключів повинні мати строго паралельні губки, відстань між якими має відповідати стандартному розміру, позначеному на ключі;

• торцеві і накидні ключі не повинні зміщуватися в з'єднаних рухливих частинах.

.2. Інструмент на робочому місці повинен бути розташований так, щоб виключалася можливість його скочування чи падіння.

.3. Класти інструмент на поручні огороджень або край площадки риштувань, помосту, а також поблизу відкритих люків, колодязів забороняється.

.4. Відповідальними особами за справний стан ручного слюсарного інструменту є особи, які видають інструмент (інструментальник), а також робочий його використовує.

.5. При необхідності використання переносного світильника, перевірити: наявність захисної сітки, справність шнура та ізоляційної трубки, справність розетки і вилки. Напруга переносних світильників не повинна бути вище 42 В. Не рекомендується використовувати саморобні переносні світильники.

. Вимоги безпеки під час роботи

.1. При використанні верстата укладати тільки ті деталі і інструмент, які необхідні для виконання даної роботи.

.2. З лівого боку лещат на верстак кладуть інструмент, який беруть лівою рукою, а з правої - інструмент, який беруть правою рукою (молоток, напилок, гайкові ключі і т.д.), на середині верстака - вимірювальний інструмент.

.3. Для зручності та з метою уникнення мікротравм верстачной лещата повинні бути встановлені так, щоб верхня частина губок знаходилася на рівні ліктя слюсаря.

.4. Роботи з слюсарної обробки металів виконувати тільки після надійного закріплення їх у лещатах щоб уникнути падіння і травмування робітників.

.5. Пил і стружку з верстата змітати щіткою. Забороняється здувати пил і стружку стисненим повітрям, ротом або прибирати пил і стружку голими руками щоб уникнути травмування очей та рук.

.6. При обслуговуванні верстатів дотримуватися заходів безпеки, що викладені у відповідних інструкціях з охорони праці.

.7. Не проводити свердлильні роботи і заточку інструменту в рукавицях або з забинтованими пальцями, щоб уникнути їх захоплення свердлом.

.8. Під час роботи верстата не відкривати і не знімати кожухів, огороджень і запобіжних пристроїв.

.9. При рубці, клепки, карбуванні та інших роботах, при яких можливе утворення відлітаючих часток металу, слід користуватися захисними окулярами або маскою з небиткими склом, а місце роботи відгородити переносними щитами, сітками, щоб поруч працюють або проходять люди не отримували травми.

.10. При користуванні кліщами повинні застосовуватися кільця. Розміри кілець повинні відповідати розмірам оброблюваної заготовки. З внутрішнього боку ручок кліщів повинен бути упор, який запобігає здавлювання пальців руки.

.11. Весь слюсарно-ковальський повинен періодично оглядатися ІТП, призначеним розпорядженням по підрозділу не рідше 1-го разу на квартал. Несправний інструмент повинен вилучатися.

.12. Робоча частина пневматичного інструмента має бути правильно заточена і не мати пошкоджень, тріщин, вибоїн і задирок. Бічні грані інструмента не повинні мати гострих ребер, хвостовик повинен бути рівним, без сколів, тріщин і щоб уникнути мимовільного випадання повинен відповідати розмірам втулки, бути щільно пригнаний і правильно центровані.

.13. Для пневматичного інструменту повинні застосовуватися гнучкі шланги.

Техніка безпеки у токарному відділенні

До початку роботи

. Правильно надягти спецодяг (фартух з нарукавниками або халата застебнути вилоги рукавів на гудзики, уникати зав'язувати їх тасьмою) сховати волосся під головний убір: берет або косинку, зав'язану без звисаючих кінців.

. Перевірити наявність і надійність кріплення захисних огороджень та з'єднання захисного заземлення (занулення) з корпусом верстата.

. Розташувати інструменти і заготовки в певному порядку на тумбочці або на особливому пристосуванні.

. Міцно закріпити різець і оброблювану деталь. Вийняти ключ з патрона і покласти на встановлене місце.

. Перевірити роботу верстата на холостому ходу та справність пускової коробки шляхом включення і виключення кнопок і важелів управління.

Під час роботи

.Плавно підводити різець до оброблюваної деталі, не допускати збільшення перерізу стружки.

. Щоб уникнути травм забороняється:

а) нахиляти голову близько до патрона або різального інструмента;

б) передавати й приймати предмети через обертові частини верстата;

в) обпиратися або спиратися на верстат, класти на нього інструменти або заготовки

г) вимірювати оброблювану деталь, змащувати, чистити і прибирати стружку з верстата до повної зупинки;

д) охолоджувати різальний інструмент або оброблювану деталь за допомогою ганчірки або кінців;

е) вихід з-під різця довгої стружки;ж) зупиняти верстат шляхом гальмування рукою патрона;

з) відходити від верстата, не вимкнувши його;

і) підтримувати і ловити рукою відрізану деталь.

. Зачистку деталей на верстаті виробляти напилком або шкуркою, прикріпленими до жорсткої оправі. Рукоятка оправи повинна бути із запобіжним кільцем. При роботі тримати її лівою рукою.

. Перед вимиканням верстата необхідно відвести різець від оброблюваної деталі.

. При роботі на центрах перевірити, чи надійно закріплена задня бабка, і стежити, щоб засвердлення була достатня і кут її відповідав кутку центрів.

. Користуватися ключами, відповідними гайок і головок болтів.

. Оброблюваний пруток не повинен виступати за межі верстата.

. При виключенні струму в мережі під час роботи негайно вимкнути пускову кнопку.

Після закінчення роботи

. Відвести супорт, вимкнути мотор.

. Видалити стружку з верстата за допомогою щітки, а з пазів станини - гачками. Здувати стружку ротом і змітати рукою забороняється.

. Протерти верстат, змастити, привести в порядок інструмент та індивідуальні засоби захисту.

Техніка безпеки у агрегатному відділенні

Перед проведенням робіт необхідно:

Перевірити спецодяг, простежити, щоб не було звисаючих кінців. Рукава треба застебнути або закатати вище ліктя;

Перевірити слюсарний верстак, який повинен бути міцним і стійким, відповідати зростанню робітника. Слюсарні лещата повинні бути справні, міцно закріплені на верстаку;

Підготувати робоче місце: звільнити потрібну для роботи площу, видаливши всі сторонні предмети; забезпечити достатню освітленість;

При перевірці інструмента звернути увагу на те, щоб молотки мали рівну, злегка опуклу поверхню, були добре насаджені на ручки і закріплені клином; зубила не повинні мати щербин на робочій частині та гострих ребер на гранях; напилки міцно насаджені на ручки;

Перевірити справність устаткування, на якому доведеться працювати, і його огорожу;

Перед підніманням тягарів перевірити справність підйомних пристосувань (Блоки, домкрати тощо); всі підйомні механізми повинні мати надійні гальмівні пристрої, а вага вантажу, що піднімається не повинен перевищувати вантажопідйомність механізму. Забороняється стояти і проходити під піднятим вантажем; не перевищувати граничні норми ваги для перенесення вручну, встановлені чинним законодавством про охорону праці, для чоловіків, жінок, юнаків та дівчат.

Під час проведення роботи необхідно:

Міцно затискати в лещатах деталь чи заготовку, а під час установки або зняття її дотримуватися обережності, так як при падінні деталь може нанести травму;

Ошурки з верстака або оброблюваної деталі видаляти лише щіткою;

При рубці металу зубилом, працювати тільки в захисних окулярах. Якщо по умовами роботи не можна застосувати захисні сітки, то рубку виконують так, щоб відрубувати частки відлітали в той бік, де немає людей;

Не користуватися при роботах несправними пристосуваннями;

Не допускати забруднення одягу гасом, бензином, маслом.

Після закінчення роботи необхідно:

Прибрати робоче місце;

Розкласти інструменти, пристосування і матеріали на відповідні місця.

Техніка безпеки для газополум'яної обробки

Газополум'яна обробка пов'язана з використанням горючих вибухонебезпечних газів. Це вимагає суворого дотримання наступних правил техніки безпеки:Забороняється проводити роботи в безпосередній близькості від легкозаймистих, горючих матеріалів, таких як бензин, керосин, стружка та іш. Зварювання всередині резервуарів та в погано вентильованих приміщеннях і ємностях слід вести із застосуванням систем примусової венти ляції і з перервами в роботі. Зовні повинен знаходитись другий чоловік, який здатний надати допомогу в разі необхідності. При різанні металів великої товщини слід застосовувати різаки з подовженими трубками для зменшення впливу високої температури на робітника. Виконання газополум'яних робіт і застосування відкритого вогню допускається на відстані не менше 10м від перепускних рам і пере пересувних ацетиленових генераторів і 5м від окремо розташованих балонів з горючими газами.

При зварюванні можна застосовувати тільки редуктори з справними манометрами. Кисневі редуктори слід захищати від попадання на них мастильних матеріалів. При пуску газу в редуктор не можна стояти перед редуктором. Всі з'єднання редуктора повинні бути герметичні. Забороняється використання перехідників, трійників для одночасного живлення кількох пальників. Під час транспортування балонів з газом на них необхідно навернути захисні ковпачки для запобігання від випадкових пошкоджень і забруднення. Переносити або пересувати їх слід на спеціальних пристроях (візках, ношах), щоб уникнути їх падіння або ударів один об одного. Можна переміщувати балони кантуванням, злегка нахиляючи, але тільки на короткі відстані.

На місці зварювання зберігати кисневі балони можна тільки при безпосередньому проведенні зварювальних робіт. На робочому посту дозволяється зберігати 2 балони: 1-й робочий, 2-ий запасний. Неповні балони слід зберігати тільки у вертикальному положенні і закритими, щоб уникнути можливості їх падіння і механічного пошкодження. Порожні ж балони дозволяється зберігати штабелями, але заввишки не більше 4 рядів. Балони, що зберігаються на будівельних майданчиках, повинні зберігатися в тимчасовому складі з вогнетривкого матеріалу. Вентилі кисневих балонів слід захищати від попадання на них масел, плівки яких можуть самозайматися при контакті зі стисненим киснем. Забороняється працювати з балонами, тиск в яких нижче робочого, встановленого редуктором даного балона. Балони для газів-замінників фарбують у червоний колір і експлуатують відповідно до правил поводження з балонами зі стисненим або скрапленим газом. У процесі зберігання і експлуатації можна піддавати балони з газами нагріванню, так як це призводить до підвищення тиску в них і може призвести до вибуху. Техніка безпеки при дуговому зварюванні Ураження електричним струмом. При дуговому зварюванні використовують джерела струму з напругою холостого ходу від 45 до 80 В, при постійному струмі від 55 до 75 В, при змінному струмі від 180 до 200 В при плазмовому різанні і зварюванні. Тому джерела живлення обладнуються автоматичними системами відключення струму протягом 0,5 ... 0,9 з при обриві дуги. Людське тіло володіє власним опором і тому безпечним напругою вважають напругу не вище 12 В.

При роботі в безпосередньому контакті з металевими поверхнями слід дотримуватися наступних правил техніки безпеки:Надійна ізоляція всіх струмпровідних проводів від джерела струму і зварювальної дуги. Надійне заземлення корпусів джерел живлення зварювальної дуги. Застосування автоматичних систем переривання подачі високої напруги при холостому ході. Надійна ізоляція електродотримача для запобігання випадок його контакту із струмоведучими частинами електродотримача з виробом. При роботі в замкнутих приміщеннях (посудинах) крім спецодягу слід застосовувати гумові килимки (калоші) і джерела додаткового освітлення.

Не допускається контакт робітника з клемами і затисками ланцюга високої напруги. Кожен зварювальний пост повинен бути обгороджений негорючими матеріалів з боків, а вхід - азбестового або інший негорючої тканиною, щоб уникнути випадкових ушкоджень інших робітників. Фарба, що застосовується для фарбування стін і стель постових кабін, повинна бути матовою, щоб зменшити ефект відбиття світлового променя від них.

Вимоги виробничої санітарії і промислової гігієни:

Приміщення, в яких робітники, виконують технічне обслуговування або ремонт автомобіля, повинні знаходитися під ним, необхідно обладнати оглядовими камінами, естакадами з напрямними запобіжними ребордами та підйомниками. Припливно-витяжна вентиляція повинна забезпечувати видалення виділених парів і газів і приплив свіжого повітря. Природне і штучне освітлення робочих місць повинно бути достатнім для безпечного виконання робіт.

На території підприємства необхідна наявність санітарно-побутових приміщень - гардеробних, душових, умивальних (працюючі з етилованим бензином обов'язково повинні бути забезпечені гарячою водою).

. Організація протипожежної безпеки

Пожежна безпека об'єкта забезпечується системами запобігання пожежі, протипожежного захисту і виконанням організаційно-технічних заходів. Основними шляхами запобігання пожежі є точне і своєчасне виконання правил пожежної безпеки на всіх етапах експлуатації гаражів та автомобілів, заміна легкозаймистих та горючих рідин на пожежобезпечні технічні мийні засоби, застосування обладнання, пристроїв, механізмів, які не утворюють джерел запалювання. Система протипожежного захисту включає ряд заходів, що забезпечують успішне гасіння пожежі. До них відносяться: забезпеченість засобами пожежогасіння та можливість їх використання при виникненні пожежі, підвищення ступеня вогнестійкості спалимих конструкцій шляхом просочення їх антипіренами або нанесенням на їх поверхні вогнезахисних фарб (складів), застосування систем протидимного захисту.

Все це повинно виключати вплив на людей небезпечних факторів пожежі, до яких відносяться відкритий вогонь, іскри, підвищена температура навколишнього середовища, предметів, конструкцій, виробів, токсичні продукти горіння, дим, знижена концентрація кисню, падаючі частини будівельних конструкцій, агрегатів і установок, небезпечні фактори вибуху. Пожежа може виникнути і через порушення правил пожежної безпеки при проведенні вогневих робіт, промиванні деталей і вузлів автомобіля з використанням легкозаймистих рідин, при виконанні різних ремонтних робіт, під час виробництва малярних робіт і при користуванні електрифікованим інструментом. Автомобіль також є засобом підвищеної пожежної небезпеки, так як в ньому є розгалужена мережа електропостачання, бензобак з мережею паливопроводів, а в його внутрішній обробці використовуються спалимі матеріали - деревоволокнисті плити, пінополіуретан, штучна шкіра і т.д.

Пожежа може виникнути через несправну електропроводку, виконаної в гаражі, несвоєчасного видалення з гаража відпрацьованих масел, обтиральних матеріалів, через заправки автомобіля пальним в гаражі, зберігання спецодягу, просоченої паливно-мастильними матеріалами. Виходячи з вищевикладеного, можна зробити висновок, що гаражі є об'єктами підвищеної пожежної небезпеки. Зміст гаража в стані, що виключає можливість виникнення пожежі, вимагає від їх власників необхідних знань пожежної небезпеки будівельних конструкцій і матеріалів, які застосовуються для будівництва гаража, фізико-хімічних властивостей легкозаймистих і горючих рідин, умов виникнення і гасіння пожежі, а також постійного виконання правил пожежної безпеки і проведення пожежно-профілактичних заходів, спрямованих на підвищення протипожежної стійкості будівлі гаража.

Щоб кваліфіковано визначити пожежну небезпеку гаража і на основі її аналізу розробити найбільш ефективні пожежно-профілактичні заходи, слід користуватися основними показниками, що характеризують фізико-хімічні, теплотехнічні і інші властивості будівельних конструкцій, матеріалів, виробів, які є складовою частиною розглянутого об'єкта.

Одними з основних показників пожежної небезпеки є горючість, температура спалаху, межа вогнестійкості, концентраційні межі запалення та ін ». Речовини і матеріали поділяються на горючі (згоряє), важкогорючі (вогнестійкими) і негорючі (вогнетривкі). До пальним відносяться речовини та матеріали, здатні самозайматися, а також займатися джерела запалювання і самостійно горіти після його видалення. До них відносяться всі матеріали органічного походження - дерево, фанера, торфопліти, очерет, гума, лінолеум, пінопласт, полівінілхлорид та інші. Важкогорючими є речовини і матеріали, здатні загорятися у повітрі від джерела запалювання, але не здатні самостійно горіти після його видалення.

Це асфальтобетон, гіпсові і бетонні матеріали з 8%-м заповненням органічних добавок, деревина, глибоко просочена антипіренами, цементний фіброліт, повсть, просочений глиняним розчином. До негорючим відносяться речовини та матеріали, не здатні до горіння у повітрі. Вони під впливом вогню або високої температури не запалали, не тліють і не обвуглюються. Це природні кам'яні матеріали неорганічного походження - граніт, мармур, бут, вапняк, черепашник, пісок, гравій і т.д. До штучним негорючих матеріалів відносяться цегла, камені, керамічні пустотілі, стінові блоки, облицювальні керамічні вироби. Але деякі негорючі речовини можуть бути пожежонебезпечними. Це перш за все окислювачі, а також речовини, що виділяють горючі продукти при взаємодії з водою, киснем повітря або один з одним.

Межа вогнестійкості - це теплофізичне поняття, яке визначає час (в годинах або хвилинах), після закінчення якого будівельна конструкція від впливу на неї високих температур втрачає несучу або огороджувальну здатність. Різні будівельні конструкції мають певну межу вогнестійкості, що встановлюється відповідним СНиПом. Пожежна небезпека легкозаймистих і горючих рідин визначається температурою спалаху, яка є найнижчою температурою горючої речовини, при якій над поверхнею його утворюються пари або гази, здатні спалахувати від джерела запалювання. Але надалі вони не можуть горіти через те, що швидкість утворення парів або газів недостатня для підтримання стійкого горіння. Для цих речовин також встановлена температура займання, при якій відбувається виділення горючих парів або газів з такою швидкістю, що після їх запалювання виникає стійке полум'яне горіння.Велику пожежну небезпеку представляють процеси мийки, знежирення і очищення металевих деталей, особливо в тих випадках, коли для цих цілей застосовують такі розчинники, як бензин, ацетон, гас, спирти. Вони небезпечні в пожежному відношенні, що підтверджують, наприклад, дані, що характеризують пожежну небезпеку бензину Б-70. Температура його спалаху дорівнює 34 ° С, нижній і верхній концентраційні межі запалення відповідно становлять 0,79 і 5,16% об'ємних.

Тому використання бензину в якості розчинника навіть в невеликих кількостях створює небезпечні для займання концентрації парів практично в будь-яких умовах його використання.

Небезпека їх застосування полягає і в тому, що майже всі розчинники, володіючи високим електричним опором (1012 - 1016 Ом) при переливанні, транспортуванні або знежирювання деталей, утворюють заряди статичної електрики, потенціали яких коливаються в межах, які забезпечують виникнення спалаху, вибуху, пожежі.

Крім того, використання розчинників не дозволяє забезпечити безпечне виконання робіт, так як спецодяг може просочитися ними і за наявності незначних джерел займання може спалахнути. Тому в даний час приділяється велика увага виявленню і використанню безпечних негорючих і важкогорючих розчинів і препаратів для виконання робіт по знежиренню деталей. Підприємства хімічної промисловості все ширше випускають пожежобезпечні технічні мийні засоби та препарати.

Володіючи досить високими технічними властивостями при використанні їх для промивання і знежирення деталей, вузлів і механізмів машин і агрегатів, вони міцно витісняють з практичного застосування такі пожежонебезпечні горючі матеріали, як бензин, гас, уайт-спірит, ацетон, дизельне паливо, та створюють умови, знижують пожежну небезпеку в процесі проведення робіт, а також забезпечують безпечні умови праці.

. Охорона навколишнього середовища

На всіх стадіях свого розвитку людина була тісно пов'язана з навколишнім світом. Люди не цінують, і беруть те, що у них є, те, що дає життя: повітря, воду, землю. Не думаючи про майбутнє своїх дітей, онуків, правнуків, вони піклуються про те, щоб їм було зручніше і легше жити зараз, не розуміючи, що за цим піде. Джерела забруднення бувають природними та антропогенними. Але, в порівнянні з природними джерелами забруднення, антропогенні набувають глобального характеру.

В останнє десятиліття антропогенні фактори забруднення атмосфери стали особа небезпечними.До основних джерел забруднення належить: транспорт, промислові підприємства, теплоенергетика, с / х. та ін Кількості кисню в атмосфері нашої планети залишається незмінним вже багато мільйонів років. Не представляє істотної загрози і його витрачання в даний час на спалювання значної кількості викопного палива. А ось пов'язане з нашою діяльністю одночасне і, відповідно, настільки ж незначне збільшення концентрації в повітрі вуглекислого газу - проблема серйозніша.

Ще небезпечніше для нас і всього живого, проступания в атмосферу зовсім вже нікчемних, у порівнянні з її загальним обсягом, кількостей токсичних речовин - продуктів нашої діяльності. Величезні обсяги шкідливих речовин в атмосфері викликають цілий ряд несприятливих наслідків. Забруднення атмосфери викидами транспорту Автомобіль - не розкіш, а засіб пересування. Це відомо всім. Але те, що машини з блага цивілізації може перетворюватися в її проблеми, людство стало розуміти порівняно недавно. Велику частку в забрудненні атмосфери становлять викиди шкідливих речовин від автомобілів.

Зараз на Землі експлуатується близько 500 млн. автомобілів, а до 2000 р. очікується збільшення їх числа до 900 млн. У 1997 р. в Москві експлуатувалися 2400 тис. автомобілів при нормативі 800 тис. автомобілів на діючі дороги. В даний час на частку автомобільного транспорту припадає більше половини всіх шкідливих викидів у навколишнє середовище, які є головним джерелом забруднення атмосфери, особливо у великих містах. У середньому при пробігу 15 тис. км за рік кожен автомобіль спалює 2 т палива і близько 26 - 30 т повітря, в тому числі 4,5 т кисню, що в 50 разів більше потреб людини. При цьому автомобіль викидає в атмосферу (кг / рік): чадного газу - 700, діоксиду азоту - 40, незгорілих вуглеводнів - 230 і твердих речовин - 2 - 5. Крім того, викидається багато сполук свинцю через застосування в більшості своїй етилованого бензину. Спостереження показали, що в будинках, розташованих поряд з великою дорогою (до 10 м), жителі хворіють на рак в 3 - 4 рази частіше, ніж у будинках, віддалених від дороги на відстань 50 м. Транспорт отруює також водойми, грунт і рослини.

Токсичними викидами двигунів внутрішнього згоряння (ДВЗ) є відпрацьовані і картерів гази, пари палива з карбюратора і паливного бака.

Основна частка токсичних домішок надходить в атмосферу з відпрацьованими газами ДВЗ. З картерними газами і парами палива в атмосферу надходить приблизно 45% вуглеводнів від їх загального викиду.Кількість шкідливих речовин, що надходять в атмосферу в складі відпрацьованих газів, залежить від загального технічного стану автомобілів і, особливо, від двигуна - джерела найбільшого забруднення. Так, при порушенні регулювання карбюратора викиди оксиду вуглецю збільшуються в 4 ... 5 рази. Застосування етилованого бензину, що має в своєму складі з'єднання свинцю, викликає забруднення атмосферного повітря досить токсичними сполуками свинцю. Близько 70% свинцю, доданого до бензину з етилової рідиною, потрапляє у вигляді сполук в атмосферу з відпрацьованими газами, з них 30% осідає на землі відразу за зрізом випускний труби автомобіля, 40% залишається в атмосфері. Один вантажний автомобіль середньої вантажопідйомності виділяє 2,5 ... 3 кг свинцю в рік. Концентрація свинцю в повітрі залежить від вмісту свинцю в бензині. Виключити надходження високотоксичних сполук свинцю в атмосферу можна заміною етильованого бензину на неетилований. Вихлопні гази ГТДУ містять такі токсичні компоненти, як оксид вуглецю, оксиди азоту, вуглеводні, сажу, альдегіди та ін.

Вміст токсичних складових у продуктах згоряння істотно залежить від режиму роботи двигуна. Високі концентрації оксиду вуглецю та вуглеводнів характерні для газотурбінних рухових установок (ГТДУ) на знижених режимах (при холостому ході, рулюванні, наближенні до аеропорту, заході на посадку), тоді як вміст оксидів азоту істотно зростає при роботі на режимах, близьких до номінального (злеті, наборі висоти, польотному режимі).

Сумарний викид токсичних речовин в атмосферу літаками з ГТДУ безперервно зростає, що обумовлено підвищенням витрат палива до 20 ... 30 т / год і неухильним зростанням кількості експлуатованих літаків. Відзначається вплив ГТДУ на озоновий шар і накопичення вуглекислого газу в атмосфері.

Найбільший вплив на умови проживання викиди ГГДУ надають в аеропортах і зонах, що примикають до випробувальних станцій. Порівняльні дані про викиди шкідливих речовин в аеропортах підкликають, що надходження від ГТДУ в приземний шар атмосфери складають,%: оксид вуглецю - 55, оксиди азоту - 77, вуглеводні - 93 і аерозоль - 97. Інші викиди виділяють наземні транспортні засоби з ДВС.

Забруднення повітряного середовища транспортом з ракетними руховими установками відбувається головним чином при їх роботі перед стартом, при зльоті, при наземних випробуваннях в процесі їх виробництва чи після ремонту, при зберіганні та транспортуванні палива. Склад продуктів згоряння при роботі таких двигунів визначається складом компонентів палива, температурою згоряння, процесами дисоціації і рекомбінації молекул. Кількість продуктів згоряння залежить від потужності (тяги) рухових установок.

При згорянні твердого палива з камери згоряння викидаються пари води, діоксид вуглецю, хлор, пари соляної кислоти, оксид вуглецю, оксид азоту, а також тверді частки Аl2O3 із середнім розміром 0,1 мкм (іноді до 10 мкм).При старті ракетні двигуни несприятливо впливають не тільки на приземний шар атмосфери, але й на космічний простір, руйнуючи озоновий шар Землі. Масштаби руйнування озонового шару визначаються числом запусків ракетних систем і інтенсивністю польотів надзвукових літаків.У зв'язку з розвитком авіації та ракетної техніки, а також інтенсивним використанням авіаційних і ракетних двигунів в інших галузях народного господарства істотно зріс загальний викид шкідливих домішок в атмосферу. Однак на частку цих двигунів доводиться поки не більше 5% токсичних речовин, що надходять в атмосферу від транспортних засобів усіх типів. Забруднення атмосфери може підійти незабаром до критичної межі зникнення всього живого з лиця землі.

Я вважаю, що люди, винаходячи нові більш зручні речі, в останню чергу замислюються про те, скільки це буде коштувати, які будуть наслідки. Явний приклад цьому - автомобіль. Кількість автомобілів щорічно збільшується на 7%. Число імпортних машин перевищує в 6 разів число вітчизняних. Виходячи з нашого досвіду, кількість автомобілів прохідних по автотрасі допустимо за санітарним вимогою.

Збільшення оксиду вуглецю становить 15%. Кількість свинцю дуже велике. Викид свинцю в навколишнє середовище становить до 5кг. В годину і він осідає в районі магістралі. Виникає небезпека забруднення грунту, вона складається не тільки в зміні її фізико-хімічних властивостей. Сторонні речовини, потрапляючи на грунт, руйнують сформовані зв'язки між окремими групами грунтового біоценозу. Руйнуються сформовані трофічні ланцюги. Все це кінець кінцем позначається на родючості грунту і здоров'я людей.

Література

технічна служба управління

1.      Авдонькин Ф.А. Текучий ремонт автомобилей, М.: Транспорт, 1978,

.        Беднарский В.В. Организация капитального ремонта автомобилей./ Феникс,2005

.        Дехтеринский Л.В. Ремонт автомобилей, М.: Транспорт, 1992,

.        Есенберлинг Д.Г. «Капитальный ремонт автомобилей», Справочник, М.,«Транспорт», 1989г., 314с.

.        Канарчук B.C., Дудченко O.A., Чегринець А.Д. «Основи технічного обслуговування і ремонту автомобілів», Київ, Вища школа, 1994р.,

.        Крижановський В.І. „Довідник по нормуванню праці на ремонтних роботах", Київ:Урожай, 1988р.

.        Коробейник A.B. Ремонт автомобилей./ Ростов-на-Дону: Феникс, 2004,

.        Матвеев В.А., Пустовалов И.И., «Техническое нормирование ремонтных работ в сельском хозяйстве», М.: Колос, 1979г.

.        Некрасов С.С. Обработка металлов резанием, М.: ВО «Агропромиздат», 1988,

.        Ординцев И.А. Справочник инструментальщика, Ленинград: Машиностроение, 1988,

.        Румянцев С.И, «Ремонт автомобилей», М.: Транспорт, 1988г.,

.        Шадричев В.А. Ремонт автомобилей, М.: Ленинград, Машиностроение, 1965.

Похожие работы на - Організація роботи технічної дільниці фермерського господарства

 

Не нашли материал для своей работы?
Поможем написать уникальную работу
Без плагиата!
Без нейросетей!