Проект ремонтного предприятия и ремонтного участка
Содержание
Введение
. Общие
сведения о предприятии, его оснащенность
.1 Определение
в планируемом периоде количество ТО и ТР
1.2 Расчет
трудоемкости работ по ТО
.3 Расчет
количества рабочих занятых при проведении ТО
.4 Выбор
оборудования при проведении работ при ТО
.5 Составления
графика ТО
.6 Расчет
расхода материалов, энергоресурсов и вентиляции РММ
.7 Расчет
аккумуляторного участка
.8 Расчет
экономической эффективности работ по сервисному обслуживанию машин и
оборудования
.9 Генплан
предприятия и планировка РММ
2. Разработка
стенда для диагностирования системы зажигания
. Анализ
процесса и технологии ремонта детали
.1
Составление чертежа детали с указанием изнашивающихся поверхностей
.2
Составление карты дефектации
.3 Выбор и
обоснование наиболее рационального способа ремонта
.4 Расчет
режимов и норм времени отдельных операций технологического процесса
восстановления изношенных деталей
.5
Проектирование технологического маршрута обработки деталей
Заключение
Список
использованных источников
Введение
В Республике Беларусь наиболее распространенной
становится так называемая скандинавская технология заготовки леса (разработана
в Швеции и Финляндии). Суть данной технологии состоит в заготовке круглых
лесоматериалов с использованием мощной лесозаготовительной техники.
Общая площадь земель лесного фонда Республики Беларусь на 1 января 2012
г. составляла 9,44 млн. гектаров, в том числе площадь покрытых лесом земель - 8
млн. гектаров. Лесистость территории республики - 38,5%.
По прогнозам к 2030 году в связи с ожидающимся в развивающихся странах
экономическим ростом и увеличением доходов на душу населения потребление
круглого леса возрастет на 40 процентов. В связи с этим в стране наращивается
объем мощной лесозаготовительной техники.
К 2015 году с использованием многооперационной лесозаготовительной
техники планируется заготавливать 70 процентов от всего объема древесины.
Для этого в 2011-2015 годах необходимо закупить 84 харвестера для
проведения рубок главного пользования, 121 харвестер для рубок ухода, 410 форвардеров
и 180 сортиментовозов для трелевки и вывозки древесины. В связи с этим на
данный момент создание и проектирования ремонтных предприятий является
актуальной задачей для Республики Беларусь.
Целью данного курсового проекта является проектирование расчета ТО,
проектировка ремонтного предприятия и ремонтного участка.
Задачи данного курсового проекта заключается в ознакомлении с основами
расчета количества ТО, трудоемкости работ, проектировки РММ. Провести оценку
экономических параметров проектируемого предприятия.
1. Общие сведения о предприятии, его оснащенность
Организационно-производственная структура ремонтного хозяйства
определяется масштабом предприятия и принятой формой организации ремонта. На
крупных заводах существуют общезаводские и цеховые ремонтные службы, на
небольших заводах ремонтное хозяйство централизовано в масштабе завода.
К общезаводским подразделениям относятся отдел (управление) главного
механика, ремонтно-механический цех, склад оборудования и запасных частей. На
небольших заводах в состав ремонтного хозяйства входит и энергохозяйство. К
цеховым подразделениям относятся цеховые и корпусные ремонтные базы в
производственных цехах (ЦРБ, КРБ). Типовая структура управления отделом
главного механика представлена на рисунке 1.
Руководит ремонтным хозяйством главный механик завода через отдел
главного механика, который состоит из ряда бюро: оборудования
(планово-предупредительного ремонта), планово-производственного, технического и
др. Отдел главного механика выполняет конструкторскую, технологическую,
производственную и планово- экономическую работу для всего ремонтного
хозяйства. Ремонтно-механический цех (РМЦ) подчинен главному механику и
проводит капитальный ремонт и модернизацию сложного оборудования, изготавливает
запасные части и нестандартное оборудование, оказывает помощь цеховым ремонтным
службам.
Структура ремонтного цеха имеет комплексный характер и обеспечивает
выполнение всех ремонтных работ и их обслуживание. К числу отделений и участков
РМЦ относятся демонтажное, заготовительное, механическое, слесарно-сборочное,
кузнечное, сварочное, жестяницкое, восстановления деталей, окрасочное и другие
отделения.
В состав цеховой ремонтной базы входят механическая мастерская, слесарный
участок, ремонтные бригады, кладовая. Руководство ремонтными работами в цехах
осуществляют механики цехов через мастеров и бригадиров. На большинстве заводов
механики цехов административно подчинены начальникам производственных цехов.
Виды и объемы выполняемых ремонтных работ в цехе обусловливаются принятой на
заводе формой организации ремонта оборудования.
Техническая база ремонтного хозяйства определяется типовой системой
технического обслуживания и ремонта металло- и деревообрабатывающего
оборудования, а также общемашиностроительными нормативами технологического
проектирования РМЦ и ЦРБ и предусматривает количество и структуру оборудования,
производственные площади, средства механизации ремонтных работ и технологию их
выполнения. Состав и количество основного оборудования в ремонтном хозяйстве
должны обеспечивать выполнение всех видов ремонтных работ, изготовление
запасных частей и нестандартизованного оборудования, а также его модернизацию.
Рисунок 1 - Типовая структура управления отделом главного механика
Основное оборудование ремонтных служб - универсальные станки для
обработки металла резанием (токарно-револьверные - 50%, фрезерные - 12,
шлифовальные - 16% и др.). Вспомогательное и слесарно-сборочное оборудование
определяется в виде комплекта (набора). Общее количество основного оборудования
в PMЦ и ЦРБ рассчитывается исходя из трудоемкости станочных работ по ремонту
установленного на заводе оборудования и эффективного фонда времени работы
одного станка при двухсменной работе, но не должно превышать 2-2,5% оборудования
завода.
Площадь определяется на основе компоновки отделений и помещений цеха, а
также планировки оборудования и рабочих мест с учетом норм технологического
проектирования вспомогательных цехов. Используют и укрупненный метод по
удельной площади на единицу основного оборудования (36-46 м2).
На большинстве машиностроительных заводов (за исключением особо крупных)
техническая оснащенность ремонтных баз не соответствует современным
требованиям. Номенклатура станочного парка ремонтных цехов мало приспособлена
для высокопроизводительного и качественного выполнения работ при ремонте
сложного и точного оборудования.
Запасные детали изготавливаются в основном на универсальном оборудовании
по устаревшей технологии. Слесарные же работы выполняются, как правило, вручную.
Практически не используются механические шаберы, переносные шлифовальные
приспособления, электрозаклепочники и пневматические ключи.
Исходные данные приведены в таблице 1.
Таблица 1.1
Исходные данные
|
Парк машин для заготовки и вывозки древесины
|
Количество, шт
|
Наработка за год,
|
|
ТДТ-55А
|
13
|
1026
|
|
ТТ-4М
|
9
|
1045
|
|
ЛТ-171А
|
5
|
1030
|
|
ТТР-401
|
6
|
980
|
|
ЛП-33А
|
8
|
930
|
|
ЛП-30Б
|
7
|
965
|
|
ЛТ-65Б
|
5
|
1037
|
|
ЛТ-188
|
4
|
1063
|
|
МАЗ-5434+ ГКБ-9362
|
12
|
49250
|
|
КРАЗ-255Л+ ГКБ-9362
|
19
|
51630
|
|
ЗИЛ-131+ ГКБ-9362
|
7
|
55200
|
1.1 Определение в планируемом периоде количества ТО и КР
Среднегодовое количество технических обслуживаний лесозаготовительных
машин определяется по следующим формулам
; (1.1)
; (1.2)
; (1.3)
, (1.4)
где
- количество сезонных обслуживаний (СО);
,
,
-количество технических обслуживаний; n -
число однотипных машин; W - количество часов работы или километров пробега
машин за планируемый годовой период работы;
,
,
-
периодичность технических обслуживаний ТО-1, ТО-2, ТО-3 машин;
- количество капитальных ремонтов в год.
,
,
берутся из [2], W, n
принимаются из исходных данных.
Среднегодовое
количество капитальных ремонтов определяется по следующим формулам:
- для
новых машин; (1.5)
- для
машин после капитального ремонта, (1.6)
где
WК -
фактическая наработка машины до планируемого года (принимаем WК = 0).
Следовательно
по формулам 1.1-1.6 для тракторов ТДТ-55А количество ТО и КР равно:
NСО=2 ∙13=26;
NКР=1026 ∙13/5000 = 2,67;
NТО-3=1026 ∙13/900 - 2,67 = 12,15
NТО-2=1026 ∙13/300 - (2,67 + 12,15)=29,64;
NТО-1=1026 ∙13/100 - (2,67 + 12,15+29,64)=88,92
Для
автомобилей МАЗ, КрАЗ, ЗИЛ и их прицепов количество технических воздействий
ТО-3 не рассчитывается [1].
Аналогичным
образом рассчитываем количество ТО и КР для всего парка машин. Результаты
приведены в таблице 1.1.
Таблица 1.1.1
Количество ТО и КР
|
Парк машин для заготовки и вывозки древесины
|
Количество ТО и КР
|
|
Nкр
|
Nто-3
|
Nто-2
|
Nто-1
|
Nсо
|
|
1
|
2
|
3
|
4
|
5
|
6
|
|
ТДТ-55А
|
2,67
|
12,15
|
29,64
|
88,92
|
26
|
|
ТТ-4М
|
1,57
|
7,83
|
28,22
|
150,48
|
90
|
|
ЛТ-171А
|
1,14
|
4,01
|
5,15
|
30,9
|
10
|
|
ТТР-401
|
3,20
|
14,58
|
35,57
|
106,70
|
31
|
|
ЛП-33А
|
1,43
|
6,01
|
22,32
|
119,04
|
16
|
|
ЛП-30Б
|
1,35
|
6,16
|
15
|
45,04
|
14
|
|
ЛТ-65Б
|
1,15
|
4,04
|
15,55
|
82,96
|
10
|
|
ЛТ-188
|
0,95
|
3,30
|
12,76
|
68,03
|
8
|
|
МАЗ-5434
|
3,69
|
-
|
38,52
|
126,65
|
24
|
|
ГКБ-9362
|
3,28
|
-
|
36,12
|
120,33
|
24
|
|
КРАЗ-255Л
|
7,55
|
-
|
70,93
|
313,9
|
38
|
|
ГКБ-9362
|
7,54
|
-
|
57,85
|
199,72
|
38
|
|
ЗИЛ-131
|
1,93
|
-
|
28,9
|
123,7
|
14
|
|
ГКБ-9362
|
2,97
|
-
|
22,79
|
78,67
|
14
|
1.2 Расчет трудоемкости работ по ТО
Умножая количество обслуживаний по маркам машин на нормативную
трудоемкость, получим годовую трудоемкость обслуживаний для соответствующих
марок машин:
; (2.1)
; (2.2)
; (2.3)
; (2.4)
; (2.5)
NCO, NTO-3,NTO-2,NTO-1 , -
берутся из расчетов приведенных в предыдущем разделе.
tCO, tTO-3, tTO-2, tTO-1 -
принимаются из нормативов приведенных в [ ].
Следовательно
для трактора ТДТ-55А по 2.1-2.5 получим:
TТО-3 =12,15 ∙28=340,2чел.ч;
TТО-2 =29,64 ∙12=355,68чел.ч;
TТО-1 =88,92 ∙5=444,6чел.ч;
TСО =26 ∙2=52 чел.ч;
∑Т=340,2+355,68+444,6+52= 1192,48 чел.ч.
Аналогично рассчитываем трудоемкость для всего парка машин и результаты
сводим в таблицу 2.1
Таблица 1.2.1
Трудоемкость работ по ТО, чел.ч
|
Парк машин
|
Трудоемкость работ по ТО, чел.-ч.
|
|
1
|
2
|
|
ТДТ-55А
|
1192,48
|
|
ТТ-4М
|
2282,38
|
|
ЛТ-171А
|
486,52
|
|
ТТР-401
|
1717,17
|
|
ЛП-33А
|
1790,77
|
|
ЛП-30Б
|
904,72
|
|
ЛТ-65Б
|
995,84
|
|
ЛТ-188
|
827,14
|
|
МАЗ-5434
|
1817,22
|
|
ГКБ-9362
|
530,7
|
|
КРАЗ-255Л
|
4424,23
|
|
ГКБ-9362
|
864,8
|
|
ЗИЛ-131
|
1911,04
|
|
ГКБ-9362
|
478,14
|
Таким образом, сложив трудоемкости по каждой марке машин, получим общую
трудоемкость работ для всего парка машин на планируемый год:
1192,48 +
2282,38 + 486,52 + 1717,17 + 1790,77 + 904,72 +
,84
+ 827,14 + 1817,22 + 530,7 + 4424,23 + 864,8 + 1911,04 + 478,14 =
,15
чел-ч
Полученную
суммарная трудоемкость нужно скорректировать на 30%. Эта дополнительная
трудоемкость предусматривается для ремонта и технического обслуживания
оборудования мастерской:
Т = 1,3∙20223,15=26290чел.-ч.
Полученную трудоемкость нужно скорректировать в связи с повышением
производительности труда на основе механизации и автоматизации производства.
Процент повышения производительности труда принимается равным 5%,тогда:
Т = Т '∙0,95=26290∙0,95=24975 чел.-ч.
1.3 Расчет количества рабочих занятых при проведении ТО
Для определения количества производственных рабочих по специальностям
необходимо предварительно распределить годовую трудоемкость по видам работ и
найти действительный годовой фонд времени рабочего.
Каждому типу машин присуще свое определенное распределение трудоемкости
по видам работ. Удельный вес видов работ в общем, объеме трудоемкость остается
без существенных изменений, несмотря на совершенствование технологии ремонта и
снижение общих трудозатрат на ремонт машин данного типа. При распределении
трудоемкости по видам работ руководствуются процентным распределением,
указанным в таблице 3.1
Ремонтно-механические мастерские, как правило, работают в одну смену, и
только при большой загрузке и в целях лучшего использования дорогостоящего
оборудования механические отделения и некоторые другие участки иногда работают
в две смены.
Расчет фонда рабочего времени выполняем по 6-ти дневной рабочей неделе
(рабочий день - 7 часов) или по 5 -ти дневной (рабочий день - 8.2 часов).
Номинальный годовой фонд времени рабочего при 5 -ти дневной рабочей
неделе определяется по формуле[1]:
Фн=(Дк-Дв-Дп)·tсм-Дпп;
где Дк, Дв, Дп - соответственно число
календарных, выходных и предпраздничных дней в году (365, 100, 8), Дпп -
количество часов, на которые сокращаются предпраздничные дни (6 ч), tсм -продолжительность рабочей смены (8
ч)
Фн = (365-100-8)·8-6 = 2050 ч
Действительный годовой фонд времени рабочего при 5-ти дневной рабочей
неделе определяется по формуле:
Фд = (Дк-Дв-Дп-До)·tсмh-Дпп
где Дв- число выходных дней в году-100; tсм=8ч; До=24; h- коэффициент, учитывающий потери
времени по уважительным причинам равный 0,96.
Фд = (365-100-8-24) ·8·0,96-6=1784ч
Количество производственных рабочих по специальностям, необходимых для
выполнения запланированного объема ремонтных работ, можно определить по формуле
[1]:
где Рп-количество производственных рабочих по специальностям,
Т - трудоемкость вида ремонтных работ,
Фд - действительный годовой фонд времени одного рабочего
Рп=24975/1784≈14 чел.
Все данные по расчету производственных рабочих приводятся в табл. 1.3.1
Распределение трудоемкости работ по производственным участкам РММ и
количества производственных рабочих.
Таблица 1.3.1
Данные по
расчету производственных рабочих
|
Наименование участка
|
Годовая трудоемкость, %
|
Годовая трудоемкост, чел·ч
|
Количество рабочих
|
|
|
|
По расчету
|
Принято
|
|
Зона текущего ремонта машин
|
30
|
7492,5
|
4,2
|
5
|
|
Участок ремонта узлов и агрегатов
|
18
|
4495,5
|
2,5
|
3
|
|
Слесарно-механический участок
|
14
|
3496,5
|
1,95
|
2
|
|
Участок ремонта топливной аппаратуры
|
4
|
999
|
0,55
|
1
|
|
Участок ремонта гидроаппаратуры
|
4
|
999
|
0,55
|
1
|
|
Аккумуляторный участок
|
2
|
499,5
|
0,28
|
1
|
|
Шиномонтажный участок
|
2
|
499,5
|
0,28
|
1
|
|
Сварочный участок
|
8
|
1998
|
1,12
|
2
|
|
Кузнечный участок
|
4
|
999
|
0,55
|
1
|
|
Медницко-жестянский участок
|
3
|
749,25
|
0,42
|
1
|
|
Участок ремонта электрооборудования
|
6
|
1498,5
|
0,84
|
1
|
|
Прочие работы
|
5
|
1248,75
|
0,7
|
1
|
|
Итого:
|
100
|
24975
|
14
|
20
|
Кроме производственных рабочих в штат РММ входят вспомогательные рабочие,
ИТР, служащие и другие. Все данные по расчету вспомогательные рабочих приведены
в табл. 3.2
Таблица 1.3.2
Данные по расчету вспомогательные рабочих
|
Категория работающих
|
Отношение вспом. рабочих к числу произв. рабочих, %
|
Количество рабочих
|
Примечания
|
|
|
По расчету
|
Принято
|
|
|
Вспомогательные рабочие
|
22
|
5,6
|
6
|
В состав включаются транспортные рабочие, кладовщики,
разнорабочие, контролеры
|
|
Инженерно-технические работники
|
12
|
2,2
|
3
|
Начальник РММ, технолог
|
|
Счетно-конторский персонал
|
4
|
1,9
|
2
|
Бухгалтерия
|
|
Младший обслуживающий персонал
|
2
|
0,43
|
1
|
Уборщики участков, служебных помещений
|
|
Итого:
|
|
10
|
12
|
|
1.4 Выбор оборудования про проведении работ по ТО
Оборудование предопределяется назначением РММ,
методами ТО и ремонта, составом производственной зоны, объемом выполняемых
работ.
Для внедрения агрегатного метода необходимо создать
неснижаемый оборотный фонд агрегатов, достаточный для поддержания машин в
работоспособном состоянии, организовать текущий ремонт агрегатов, оснастить РММ
леспромхозов необходимым ремонтно-технологическим и нестандартным
оборудованием, организовать хранение агрегатов (для чего иметь складские
помещения, грузоподъемные средства, механизмы, стеллажи и т. д.), провести ряд других
мероприятий.
В производственном корпусе РММ предусматриваются: пост
наружной мойки машины; зона ТО и ТР автомобилей, тракторов и машин на их базе;
маслохозяйство; производственные участки ремонта агрегатов, текущего ремонта
двигателей внутреннего сгорания со стендом холодной обкатки,
слесарно-механической, тепловой, ТО и ТР топливной аппаратуры, ТО и ТР
гидрооборудования, ТО и ТР автотракторного электрооборудования, обслуживания и
зарядки аккумуляторов; шиномонтажный и шиноремонтный посты, ТО и ТР бензино-моторного
инструмента, ремонта узлов и агрегатов нижнескладского оборудования и цехов
переработки; инструментально-раздаточная кладовая; кладовая материалов,
оборотных агрегатов, узлов и деталей; кладовая участка ТО и ТР
бензино-моторного инструмента; компрессорная.
Пост мойки должен обеспечить в любое время года мойку
всех машин, подлежащих техническому обслуживанию и ремонту. Он может быть
размещен в отдельном здании.
Маслохозяйство размещается в зоне ТО и ТР машин.
В РММ с количеством постов ТО и ТР-12 и более один
пост для автомобилей и один пост для тракторов специализируются на проведении
диагностических работ. Если общее количество постов менее 12, диагностика
автомобилей и тракторов производится на постах ТО и ТР переносными приборами.
Административные и санитарно-бытовые помещения могут располагаться как в
отдельном здании, так и в производственном корпусе РММ.
Число постов или машино-постов для проведения ТО и ТР автомобилей и
тракторов является основным признаком, определяющим количество и типы
оборудования, а следовательно, и размеры РММ. Их размер производится по годовой
трудоемкости ТО и ТР машин.
Находим число постов ТО [стр 17, 1]
,
где
ТТО - годовая трудоемкость работ по ТО, чел·ч;
в - коэффициент, учитывающий объем работ выполняемых на постах ТО (в =
0,8);
Др - число рабочих дней в году;- число рабочих смен в сутки;
tсм- продолжительность рабочей смены;
Рn- число рабочих, находящихся
одновременно на посту;
е - коэффициент, учитывающий занятость рабочих на посту (е=0,97);
η - коэффициент использования времени
поста.
Принимаем
nТО=6.
Число
постов текущего ремонта рассчитываем по формуле[стр 17 ,1]:
,
где
φ - коэффициент, учитывающий неравномерность
поступления машин в текущий ремонт,1,3;
ТТР=0,3
ТТО - годовая трудоемкость работ по ТР,
чел·ч.
;
Принимаем
nТР=2.
Действительным
годовым фондом времени работы оборудования ФДО называется время в
часах, в течении которого используется станок, то есть при этом не учитываются
неизбежные простои оборудования в ремонте[стр 18 ,1]:
ФДО=ФНО
ηис;
где
ηис -
коэффициент использования, учитывающий простои оборудования в ремонте и по
другим причинам (ηис=0,92);
ФДО=257
8
0,92=1891,5 ч.
Годовым
фондом времени рабочего места ФРМ называется время в часах, в
течение которого это рабочее место используется. Его численное значение
практически равно годовому номинальному фонду времени работы оборудования ФНО.
Количество станков, необходимых для выполнения плана
ремонта, определяется отношением годовой трудоемкости станочных робот ТСР
(60% общей трудоемкости) к действительному годовому фонду оборудования Фд [стр
18 ,1]:
Принимаем
К=8.
Оборудование
зон и участков выбирается из табеля оборудования, приспособлений, инструмента и
оргоснастки для центральных мастерских технического обслуживания и ремонта лесозаготовительной
техники в зависимости от числа постов ТО и ТР машин в РММ, а также по каталогам
и справочникам.
Выбранное
оборудование и инвентарь, зон и участков, а также марки, габаритные размеры и
площадь занимаемую оборудованием сводим в таблицу 1.4.1
Таблица
1.4.1
Перечень оборудования
|
Оборудование, инвентарь
|
Марка или модель
|
Количе-ство
|
Габаритные размеры по площади, мм
|
Площадь под одним станком, м2
|
Общая площадь, м2
|
|
Токарно-винторезный станок
|
1К62
|
1
|
3212×1181
|
3,8
|
3,8
|
|
Токарно-винторезный станок
|
1М63
|
1
|
3550×1690
|
6,0
|
6,0
|
|
Токарный станок
|
1А616
|
2
|
2225×1275
|
2,84
|
5,68
|
|
Вертикально-сверлильный станок
|
2А135
|
1
|
1240×840
|
1,05
|
1,05
|
|
Фрезерный станок
|
675П
|
2
|
1000×1080
|
1,08
|
2,16
|
|
Поперечно-строгальный станок
|
7В-36
|
1
|
1456×840
|
1,22
|
1,22
|
|
Точильно-шлифовальный станок
|
3Б633
|
1
|
812×480
|
0,39
|
0,39
|
|
Станок для резки металла
|
872М
|
1
|
1470×690
|
1,01
|
1,01
|
|
Верстак слесарный на два рабочих места
|
ОРГ-146801 070А
|
1
|
2400×800
|
1,92
|
1,92
|
|
Стеллаж для хранения деталей
|
ОРГ-1468-05-230Л
|
1
|
1400×500
|
0,7
|
0,7
|
|
Итого:
|
|
|
|
|
23,93
|
Площадь зоны ТО и ТР машин рассчитывается по формуле
[стр 19 ,1]:
Fз=(Fо+f
П)
С;
где
Fо -
площадь, занимаемая основным оборудованием;- площадь горизонтальной проекции
машины на посту ТО и ТР, f=15,4 м2;
П
- расчетное число постов в зоне, П=7;
С
- коэффициент плотности расстановки постов и оборудования, С=4,25.
Fз=(23,93+15,4
7)
3,25=428,12 м2;
Площадь
поста для наружной мойки равна [стр 19 ,1]:
Fпм =С
Fо=3,25
23,93=77,77 м2;
Площадь
инструментальной кладовой определяется по удельной площади, равной 0,1 м2
на одну машину:
Fикл =0,1
91=9,7 м2
Площадь
кладовой материалов, агрегатов, узлов и деталей рассчитывается по удельной
площади, равной 0,35 м2 на одну машину:
Fкл,м =0,35
91=33,95
м2
Административные
площади составляют - 6%, а санитарно-бытовые - 3% от производственных:
FА=0,06
91= 5,82
м2,
FС=0,03
91=2,91 м2.
Общая
площадь РММ равна [стр 21, 1]:
F=Fз+Fпм+Fи.кл+Fкл.м+FА+FС,
F=428,12+77,77+9,7+33,95+5,82+2,91=558,27
м2
1.5 Составление графика ТО в сентябре месяце 2012 года
В лесозаготовительных предприятиях ежемесячно составляются планы- графики
ТО автомобилей, тракторов и специальных машин, которые утверждает главный
инженер.
В плане-графике ТО указывается марка и номер транспортного средства, а
также день выполнения технического воздействия. Исходными данными для
составления плана-графика является производственная программа работ предприятия
по конкретному виду деятельности с учетом планируемой наработки в моточасах или
километрах пробега, режима работы предприятия, числа смен, их
продолжительности.
План-график согласуется со службами, обеспечивающими нормальное
функционирование и проведение работ. План-график является основным документом,
регламентирующим работу машин на предприятии. Составленный на месяц план-график
может корректироваться с учетом фактического пробега с целью приближения
периодичности ТО. График составлялся согласно методике приведенной в [3] График
ТО приведен ниже, а также на чертеже.
Вывод: В данном разделе был составлен график ТО на август месяц 2012г.
График составлен для всего автопарка машин предприятия согласно этому графику
общее число ТО на предприятии составит 15, общая трудоемкость 115 чел.-ч.,
Количество выходных дней 8.
Утвердил главный инженер Хорьков С.В
Разработал главный механик Макась Е.А.
|
К-во дней в ремонте
|
19
|
18
|
19
|
19
|
19
|
19
|
19
|
19
|
19
|
19
|
19
|
19
|
19
|
19
|
|
Кол-во часов
|
|
5
|
5
|
5
|
5
|
12
|
5
|
5
|
5
|
5
|
5
|
5
|
5
|
5
|
|
Кол-во То
|
0
|
1
|
1
|
1
|
1
|
1
|
1
|
1
|
1
|
1
|
1
|
1
|
1
|
1
|
|
31
|
8
|
8
|
8
|
8
|
8
|
8
|
8
|
8
|
8
|
8
|
8
|
8
|
8
|
8
|
|
30
|
8
|
8
|
8
|
8
|
8
|
8
|
8
|
8
|
8
|
8
|
8
|
8
|
8
|
8
|
|
29
|
8
|
8
|
8
|
8
|
8
|
8
|
8
|
8
|
8
|
8
|
8
|
8
|
8
|
8
|
|
28
|
8
|
8
|
8
|
8
|
8
|
8
|
8
|
8
|
8
|
8
|
8
|
8
|
8
|
8
|
|
27
|
8
|
8
|
8
|
8
|
8
|
8
|
8
|
8
|
8
|
8
|
8
|
8
|
8
|
8
|
|
26
|
в
|
в
|
в
|
в
|
в
|
в
|
в
|
в
|
в
|
в
|
в
|
в
|
в
|
в
|
|
25
|
в
|
в
|
в
|
в
|
в
|
в
|
в
|
в
|
в
|
в
|
в
|
в
|
в
|
в
|
|
24
|
8
|
8
|
8
|
8
|
8
|
8
|
8
|
8
|
8
|
8
|
8
|
8
|
8
|
8
|
|
23
|
8
|
8
|
8
|
8
|
8
|
8
|
8
|
8
|
8
|
8
|
8
|
8
|
8
|
8
|
|
22
|
8
|
8
|
8
|
8
|
8
|
8
|
8
|
ТО1
|
8
|
8
|
8
|
8
|
8
|
|
21
|
8
|
8
|
8
|
8
|
8
|
8
|
8
|
8
|
8
|
8
|
8
|
8
|
8
|
8
|
|
20
|
8
|
8
|
8
|
8
|
8
|
8
|
8
|
8
|
8
|
8
|
8
|
8
|
ТО1
|
8
|
|
19
|
в
|
в
|
в
|
в
|
в
|
в
|
в
|
в
|
в
|
в
|
в
|
в
|
в
|
в
|
|
18
|
в
|
в
|
в
|
в
|
в
|
в
|
в
|
в
|
в
|
в
|
в
|
в
|
в
|
в
|
|
17
|
8
|
8
|
8
|
8
|
8
|
8
|
ТО1
|
8
|
8
|
8
|
ТО1
|
8
|
8
|
8
|
|
16
|
8
|
8
|
8
|
8
|
8
|
ТО2
|
8
|
8
|
8
|
8
|
8
|
8
|
8
|
8
|
|
15
|
8
|
ТО1
|
8
|
8
|
8
|
8
|
8
|
8
|
8
|
8
|
8
|
8
|
8
|
8
|
|
14
|
8
|
8
|
8
|
8
|
8
|
8
|
8
|
8
|
8
|
8
|
8
|
8
|
8
|
8
|
|
13
|
8
|
8
|
8
|
ТО1
|
8
|
8
|
8
|
ТО1
|
8
|
8
|
8
|
8
|
8
|
8
|
|
12
|
в
|
в
|
в
|
в
|
в
|
в
|
в
|
в
|
в
|
в
|
в
|
в
|
в
|
в
|
|
11
|
в
|
в
|
в
|
в
|
в
|
в
|
в
|
в
|
в
|
в
|
в
|
в
|
в
|
в
|
|
10
|
8
|
8
|
ТО1
|
8
|
8
|
8
|
8
|
8
|
8
|
8
|
8
|
8
|
8
|
8
|
|
9
|
8
|
8
|
8
|
8
|
8
|
8
|
8
|
8
|
8
|
8
|
8
|
8
|
8
|
8
|
|
8
|
8
|
8
|
8
|
8
|
8
|
8
|
8
|
8
|
8
|
8
|
8
|
8
|
8
|
8
|
|
7
|
8
|
8
|
8
|
8
|
8
|
8
|
8
|
8
|
8
|
8
|
8
|
8
|
8
|
8
|
|
6
|
8
|
8
|
8
|
8
|
8
|
8
|
8
|
8
|
8
|
8
|
8
|
8
|
8
|
8
|
|
5
|
в
|
в
|
в
|
в
|
в
|
в
|
в
|
в
|
в
|
в
|
в
|
в
|
в
|
в
|
|
4
|
в
|
в
|
в
|
в
|
в
|
в
|
в
|
в
|
в
|
в
|
в
|
в
|
в
|
в
|
|
3
|
8
|
8
|
8
|
8
|
ТО1
|
8
|
8
|
8
|
8
|
8
|
8
|
8
|
8
|
8
|
|
2
|
8
|
8
|
8
|
8
|
8
|
8
|
8
|
8
|
8
|
8
|
8
|
8
|
8
|
8
|
|
1
|
8
|
8
|
8
|
8
|
8
|
8
|
8
|
8
|
8
|
8
|
8
|
8
|
8
|
8
|
|
Наработка на начало Месяца, мото/ч
|
598,5
|
609,6
|
600,8
|
571,6
|
542,5
|
562,9
|
604,9
|
620
|
28729,2
|
28729,2
|
30117,5
|
30117,5
|
32200
|
32200
|
|
Марки машин
|
ТДТ-55А
|
ТТ-4М
|
ЛТ-171А
|
ТТР-401
|
ЛП-33А
|
ЛП-30Б
|
ЛТ-65Б
|
ЛТ-188
|
МАЗ-5432
|
ГКБ - 9362
|
КРАЗ -255Л
|
ГКБ-9362
|
ЗИЛ-131
|
1.6 Расчет расхода материалов, энергоресурсов и вентиляции
РММ
При проектировании ремонтных предприятий должны соблюдаться требования
норм проектирования промышленных предприятий СН 245-71, СН-277-70. В данной
части проекта определяется потребность по отдельным видам энергии и материалов.
Расчёт
отопления
Определим количество условного топлива, необходимого для отопления РММ в
течение года, кг:
Nусл=
где
Nусл -
условное количество топлива;
q - удельный
расход топлива на 1 см2 здания: q = 10-15 ккал/м3;
V - объём РММ;
n - число дней
отопления в году, n=200;
tвн - температура воздуха внутри здания - tвн=18˚С;
tн - наружная температура, tн=0˚С;
К
- коэффициент учитывающий потери тепла от вентиляции К=1,15-1,4.
Nусл =
= 87229
кг.
Действительное
количество топлива, кг :
Nд=
Nд=
=436143 кг.
Расчёт
электроэнергии
Расходы электроэнергии на работу силового оборудования определим по
формуле, кВт/ч:
Эсо=
Nдв
Фо
η1
η2
η3
η4
z
где
- суммарная мощность установленного оборудования;
Фо
- фонд времени загрузки оборудования;
η1 и η2 -
коэффициенты загрузки оборудования, η1= 0,6, η2 =0,5-0,9;
η3 - потери
в сети, η3= 0,05;
η4 - КПД
электродвигателя , η4 =0,9;
Z - число смен. z=1.
Подставив
числовые значения в формулу получим
Эсо
=32
1828
0,6
0,7
0,05
0,9=4560 кВт/ч
Электроэнергию
расходуемую на освещение определим следующим образом:
Эосв=К
F’общ
Фо
Эосв=0,015
558,2
1828=23439кВт/ч.
Общее
потребление электроэнергии составит, кВт:
Эобщ=(Эосв+Эсо)
Ксл
где
Ксл - коэффициент учитывающий расход на случайное потребление.
Эо=(23439+4560)
0,14=3919,8 кВт/ч.
Расчёт
вентиляции
Расчёт вентиляции произведём по следующей формуле, м3/ч:
VB=Vn
Kт
где
VB - объём воздуха;
VП - объём помещения;
К
- коэффициент кратности.
Проведенный
расчет представлен в таблице 1.6.1
Таблица 1.6.1
Расчёт вентиляции
|
Наименование участков
|
Vп, м3
|
Кт
|
VB, м3
|
|
Зона ТО и ТР машин Участок ремонта агрегатов
Слесарно-механический участок Участок ТО иТР топливной аппаратуры Участок ТО
и ТР гидрооборудования Участок обслуживания и зарядки аккумуляторов Участок
ТО и ТР электрооборудования Тепловой участок Шиномонтажный и шиноремонтный
участок Участок ТО и ТР бензиномоторного инструмента и заточки пильных цепей
Кладовая оборотных агрегатов,узлов и деталей Компрессорная Участок
диагностики тормозных систем
|
710,1 399,4 255,45 99,75 115,5 65,22 51,75 519,84 182,72
325,6 175,2 64,8 535,5
|
2 2 2 3 3 5 3 5 5 4 2 3 5
|
1420,2 798,8 510,9 299,25 346,5 326,1 155,25 2599,2 913,6
1302,4 350,4 194,4 2677,5
|
|
Итого
|
3500,83
|
|
11894,5
|
1.7 Расчет аккумуляторного участка
Участок предназначен дня технического обслуживания,
текущего ремонта и зарядки аккумуляторных батарей лесозаготовительных и
лесотранспортных машин. Работы по техническому обслуживанию аккумуляторов
проводят непосредственно на машине в зоне текущего ремонта. Дня работ,
связанных с ремонтом и зарядкой, батареи снимают с машины и направляют на участок.
С течением времени аккумуляторы уменьшают свою емкость и напряжение и
выходят из строя, чаще это является результатом неправильного ухода за ними в
процессе эксплуатации.
К числу неисправностей аккумулятора, указывающих на необходимость
ремонта, относятся разрушение пластин вследствие сульфатации, коробление
пластин, повреждение сепараторов и трещины в банках.
При сульфатации пластин на них отлагается плотный крупнокристаллический
налет сернокислого свинца, который плохо проводит ток, почти не растворяется
при зарядке аккумулятора и затрудняет доступ электролита к активной массе
пластин. Сульфатация пластин может быть следствием длительного хранения
аккумулятора в разряженном состоянии, применения электролита повышенной
плотности и его загрязнения.
Коробление пластин происходит вследствие зарядки аккумулятора большим
током. С этим связано повреждение решеток пластин и выпадение из них активной
массы, а также замыкание пластин между собой и усиление саморазряда батареи.
Перед ремонтом аккумулятор проверяют с целью обнаружения указанных выше
неисправностей, так как может оказаться, что элементы батареи исправны и
нуждаются только в зарядке.
Проверка аккумулятора производится внешним осмотром и с помощью приборов.
Наружным осмотром проверяется состояние банок и крышек, наличие в них трещин и
окисленность контактов, затем проверяют уровень электролита, его плотность.
Однако плотность электролиту не полностью характеризует состояние батареи и
поэтому ее проверку сочетают с проверкой банок нагрузочной вилкой.
Ремонт аккумулятора заключается в разборке, контроле восстановлении
отдельных деталей, сборке и зарядке элементов батареи.
Перед разборкой аккумулятор необходимо разрядить, затем слить электролит
и снять перемычки между элементами удалять мастаку и снять крышки. После снятия
крышек вынимают, блоки пластин. Пластины промывают дистиллированной водой и
просушивают.
Трещины в банках заделывают эбонитовой мастикой (изонитом). Дефектные
пластины выбраковывают и блоки комплектуют новыми. Собранные блоки пластин вставляют
в банки.
После сборки аккумулятора его заливают электролитом, выдерживают 5-6 ч и
ставят на зарядку. Зарядку отремонтированных аккумуляторов производят в
несколько циклов, сначала заряжают токами, равными 1/16 емкости батареи, до
обильного газовыделения и напряжения на каждой банке 2,4 В. После этого
величину зарядного тока уменьшают вдвое и продолжают зарядку до прекращения
повышения плотности электролита, затем производят разряд до 1,7В в банке и
вновь заряжают батарею.
Участок ремонта аккумуляторов размешается в двух помещениях: помещении
для ремонта и зарядки аккумуляторов и кладовой для хранения и приготовления
электролита.
Участок укомплектовывается необходимым оборудованием, инструментом,
приспособлениями и контрольно-измерительными приборами. Перечень
устанавливаемого оборудования, инструмента и приспособлений приведен в плане
аккумуляторного участка (графическая часть лист 3). Работы по текущему ремонту
и зарядке аккумуляторных батарей составляют 2% обшей годовой трудоемкости,
приходящейся на РММ предприятия. Оборудование для участка ремонта топливной
аппаратуры представлено в таблице 1.7.1
Таблица 1.7.1
Оборудование для участка ремонта топливной аппаратуры
|
№
|
Наименование
|
Марка, модель, ГОСТ
|
Габаритные размеры, мм
|
Кол-во, шт.
|
|
1
|
Выпрямитель селеновый
|
ВСА-5А
|
415x310
|
1
|
|
2
|
Подставка под селеновый выпрямитель
|
3258-П
|
1350x500
|
1
|
|
3
|
Установка для ускоренной зарядки аккумуляторных батарей
|
Э-411
|
900x600
|
1
|
|
4
|
Нагреватель ламповый для разогрева мастики
|
ОПР-2915
|
550x400
|
1
|
|
5
|
Электротигель настольный
|
ОГ-0942
|
380x410
|
1
|
|
6
|
Стол для аккумуляторных батарей
|
Э-403
|
1825x750
|
1
|
|
7
|
Тележка для транспортирования
|
П-620
|
1070x450
|
1
|
|
8
|
Стеллаж для аккумуляторов
|
Э-405А
|
2100x600
|
1
|
|
9
|
Шкаф для зарядки аккумуляторов
|
Э-409
|
2020x812
|
1
|
|
10
|
Дистиллятор электрический
|
737
|
200x650
|
1
|
|
11
|
Тележка для транспортирования и разлива серной кислоты
|
П-206
|
1150x756
|
1
|
|
12
|
Ванна для приготовления и слива электролита
|
Э-404
|
585x215
|
1
|
|
13
|
Стеллаж для бутылей
|
|
1500x500
|
1
|
|
Суммарная площадь, fо, мм2
|
|
83255115
|
|
Площадь участка ремонта топливной аппаратуры находится по формуле:
F=fo
k;
где
fо -
суммарная площадь под оборудованием;
k - переходной
коэффициент для отделения, равен 2,5.
Тогда
площадь участка составит:
F=83255115
2,5=208137787 мм2;
Принимаем
размеры участка ремонта топливной аппаратуры 6000´4000
мм, что составит 24000000 мм2 или 24 м2.
При
большом объеме работ зарядка аккумуляторов выносится в отдельное помещение,
оснащенное самостоятельной системой приточно-вытяжной вентиляции. Высота
помещения должна быть не менее 3 м. Полы в таких помещениях выложены
кислотоупорной плиткой либо кирпичным или бетонным покрытием, промежутки между
плитками (5-8 мм) залиты горячей смесью асфальта и каменноугольной смолы, стены
оштукатурены, загрунтованы и окрашены кислотоупорной краской.
ремонтный участок лесозаготовительный
оборудование
1.8 Расчет экономической эффективности
работ по сервисному обслуживанию машин и оборудования
Расчет затрат на запчасти основные и вспомогательные
Затраты на запасные части на ремонт оборудования РММ принимаем в размере
5% от стоимости оборудования. Базовую стоимость оборудования принимаем из [2].
Соб= 500000 тыс. руб
Сз.ч.=Соб·0,05=500000·0,05=25000 тыс.
руб.
Затраты на основные материалы для технического обслуживания принимаем в
размере 20% от затрат на запасные части.
Со.м.=0,2·Сз.ч=5000 тыс. руб.
Затраты на вспомогательные материалы в размере 10% от основных:
Св.м.=0,1·Cо.м=0,1·5000=500 тыс. руб.
Суммарные затраты на основные и вспомогательные материалы составят:
Ссум=Со.м+Св.м=5000+500=5500 тыс. руб.
Расчет затрат на электроэнергию
Для силовой нагрузки определяется по формуле:
Сэ.с=Ру·Фд.о·Кс·Ц
где Ру - установленная мощность потребителей силовой
электроэнергии, кВт;
Фд.о - действительный годовой фонд времени работы
оборудования, ч.;
Кс - коэффициент спроса;
Ц - стоимость одного киловатт-часа, руб.
Установленная мощность потребителей силовой электроэнергии принята Ру=194,45
кВт.
Действительный годовой фонд времени работы оборудования Фд.о=1828
ч.
Коэффициент спроса определяется как отношение максимальной нагрузки к
установленной и равен Кс=0,6.
Стоимость одного киловатт-часа силовой электроэнергии принимаем по
отчетным данным Ц=250 руб/кВт.
Сэ.с.=194,45·1828·0,6·250=28791,8 тыс. руб
Стоимость электроэнергии для освещения находится из выражения:
Сэ.о=Р'у·То·К'с·Ц'
где Р'у - мощность осветительных установок для внутреннего и
наружного освещения, кВт;
То- количество часов в году использования максимума
осветительной нагрузки, ч;
К'с- коэффициент спроса;
Ц'- стоимость одного кВт·ч осветительной нагрузки, руб.
Мощность осветительных установок принимается в размере 15 Вт на 1 м3
площади. При площади РММ 558,2 м2 мощность осветительных установок
составит:
Р'у.п=15
558,2
3=25,1
кВт
Количество
часов в году использования максимума осветительной нагрузки определяется в
зависимости от географической широты расположения предприятия и сменности
работы РММ в сутки. Для географической широты 52º при работе в одну смену То=730 ч..
Коэффициент
спроса для осветительной нагрузки Кс=0,8
Стоимость
одного кВт·ч осветительной нагрузки принимаем Ц'=65 руб/кВт.
Исходя
из приведенных выше данных, стоимость электроэнергии для освещения равна:
Сэ.о.п=25,1·730·0,8·65=535,236
тыс. руб
Расчет
затрат на отопление и на текущий ремонт здания и оборудования
Затраты
на отопление принимаем в размере 1000 руб. на 1 м3 здания:
Зот.п=1000·588,2·3=1764
тыс.руб.
Затраты на текущий ремонт здания и оборудования РММ принимаем в размере
3% от их балансовой стоимости:
Зт.р=0,03(Сз+Соб+Сд.об)
Зт.р.п=0,03(25000+1764+500000)=15802 тыс. руб.
Расчет отчислений в бюджетные и внебюджетные фонды и затрат
на охрану труда
Эти отчисления составят 42% от заработной платы рабочих, ИТР, служащих и
МОП и включает в себя: отчисления на социальное нужды - 35%, фонд занятости -
1%, чернобыльский налог - 4%, в фонд поддержки производителей сельхозпродукции
- 1% и 1% отчислений в фонд содержания ведомственного жилья. Общая сума отчислений
в бюджет и внебюджетные фонды составят:
Sот.п
= 0,42·(16376+1893,4+3588)=9180,1
тыс. руб.
Затраты на охрану труда принимаем в размере 7% от балансовой стоимости
оборудования.
Зох.т=0,07·(Соб+Сд.об)
Зох.т.п=0,07·(84600+31500)=8127 тыс. руб.
Прочие неучтенные расходы принимаются в размере 10% от суммы по всем
предыдущим статьям.
Расчетные эксплутационные (текущие) затраты без учета заработной платы по
содержанию РММ сведены в таблицу 1.8.1.
Таблица 1.8.1
Эксплутационные затраты по содержанию РММ
|
Наименование затрат
|
Сумма тыс. руб.
|
|
Амортизационные отчисления
|
32430
|
|
Запасные части
|
4230
|
|
Основные и вспомогательные материалы
|
1277,1
|
|
Стоимость электроэнергии
|
|
|
для силовой нагрузки
|
32776,7
|
|
для осветительной нагрузки
|
535,236
|
|
Отопление
|
1974
|
|
Текущий ремонт
|
20403
|
|
Отчисления в бюджет и внебюджетные фонды
|
9180,1
|
|
Охрана труда
|
8127
|
|
Прочие расходы
|
9247
|
|
Итого
|
120180,1
|
С учетом заработной платы основных и вспомогательных рабочих, ИТР,
служащих и МОП эксплуатационные затраты составят:
С=120180,1+18529+1893,4+3588=144190,5 тыс. руб.
1.9 Генплан предприятия и планировка РММ
При составлении схемы генерального плана ремонтного предприятия, прежде
всего, необходимо выявить полный перечень зданий и сооружений, предназначенных
для размещения на отдельной площадке.
Здания и сооружения с производствами повышенной пожароопасности следует
располагать с подветренной стороны по отношению к другим зданиям. Здания
бытовых помещений располагают так, чтобы они, по возможности, были приближенны
к основному потоку рабочих от проходных пунктов.
При составлении схемы генерального плана необходимо стремится к тому,
чтобы грузопотоки на территории не пересекались. Более точная метожика
составления генплана ремонтного предприятия приведена в [3]. Общая схема генерального
плана предприятия приведена на рисунке 1.9.1
Разработка генерального плана ремонтно-механической мастерской с
комплексом вспомогательных сооружений осуществляется в соответствии с
требованиями СНиП-1189-80 “Генеральный план промышленных предприятий” и с
учетом требований СНиП 1193-74 “Предприятия по обслуживанию автомобилей”. РММ
размещают на площади, предусмотренной схемой, проектом развития или
реконструкция предприятия. При этом необходимо стремиться к тому, чтобы РММ
находился на одной площадке с другими объектами РОБ, работающими в едином
комплексе (ПЦТО, ТОП).
Коэффициент плотности застройки земельного участка для предприятий
данного типа лежит в пределах 0,3-0,5. Площадь застройки определяется как сумма
площадей, занятых зданиями всех видов включая навесы, открытые площадки для
машин.
Методика расположения оборудования приведена в [3].
Рисунок 1.9.1 - Общая схема генерального плана предприятия
В общем случае ремонтная мастерская должна иметь следующие отделения и
участки:
участок общей мойки деталей
разборочно-моечный участок
контрольно-сортировочный участок
отделение и участок по восстановлению деталей
инструментально раздаточная кладовая
сборочное отделение
участок обкатки полнокомплектных машин
участок окраски и передачи готовых машин на склад.
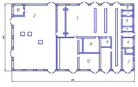
Общий вид участка РММ приведен на рисунке 1.9.2
Рисунок 1.9.2 - Общий вид РММ
Вывод: в данном разделе была рассчитана общая трудоемкость. На весь 2012
год она составила 2789 чел.-ч., также была посчитана общая численность
ремонтных рабочих, она составила 14 человек, была составлена калькуляция затрат
ремонтного предприятия на 2012 год. Разработан общий генплан предприятия и
спроектирован ремонтный участок.
2.
Разработка стенда для диагностирования системы зажигания
Раньше на всех автомобилях применялась контактная (батарейная) система
зажигания, потом ей на смену пришла контактно транзисторная система зажигания.
У нее вторичное напряжение было выше, и она работала стабильнее батарейной.
Далее появилась бесконтактная система, которая была надежнее в эксплуатации,
чем предыдущие системы и проще в обслуживании. Но в настоящее время применяют
более совершенную систему управления двигателем, где все через датчики
управляется бортовым компьютером. Это более точная система на данный момент
времени. Теперь некоторые детали и аппараты системы уже не подлежат ремонту и
восстановлению, а заменяются. Количество аппаратов проходящих техническое
обслуживание (ТО) уменьшилось. С появлением системы управления двигателем
процент неисправностей, приходящийся на систему зажигания, уменьшился в три
раза.
Чтобы провести полное ТО и ремонт в батарейной системе зажигания
потребуется очень много времени, так как в ней все аппараты подлежат
обслуживанию, а на обслуживание каждого аппарата требуется выполнить около двух
десятков операций. В контактно - транзисторной системе уже проводится меньше
операций для проведения ТО, в бесконтактной же вовсе некоторые аппараты не
проходят ТО и за счет этого время на обслуживание системы значительно
уменьшается. В системе управления двигателем не имеется подвижных деталей и
поэтому здесь не проводится обслуживание, а так же не регулируется, так как
здесь зажиганием управляет контроллер.
Для диагностики системы зажигания применяют мотор-стенды. Наиболее удобны
эти стенды при проведении операционного контроля. Общий вид стенда показан на
рисунке 2.
Диагностика проводится для следующих элементов:
Диагностика прерывателя-распределителя
Проверяют работоспособность центробежного регулятора опережения зажигания
как руками (кулачек должен прокручиваться без заеданий) так и стробоскопом, при
необходимости регулируют натяжение пружин регулятора. Проверяют
работоспособность пружины мембраны в вакуумном регуляторе опережения зажигания.
Измеряют сопротивление помехоподавительного резистора, которое должно
составлять 7-14 Ом.
Рисунок 2 - Схема стенда для диагностирования системы зажигания
Диагностика свечей зажигания
Если в свечу встроен помехоподавляющий резистор, то проверяют его
сопротивление, которое должно составлять около 5 кОм.
Диагностика транзисторного коммутатора
Транзисторный коммутатор диагностируется на стенде СП-38М. Высоковольтный
провод от катушки зажигания вводять в центральный ввод крышки распределителя,
установленного на стенде, а высоковольтные провода стенда - в боковые выводы
крышки распределителя. Клемму «М» транзисторного коммутатора и корпус катушки
тщательно соединяют с корпусом стенда. Прерыватель-распределитель,
установленный на стенде, не должен иметь конденсатора. Рукоятку переключателя
устанавливают в положение «Состояние изоляции распределителя». Рукояткой
создают частоту вращения вала электродвигателя, соответствующую максимальной
частоте вращения валика прерывателя. Ручкой устанавливают зазор в разряднике,
равный 10мм.
Диагностика высоковольтных проводов
Проверяют сопротивление высоковольтных проводов, оно должно составлять
13х10-3 Ом/м.
Диагностика катушки зажигания
Проверка катушки зажигания. Зажимы «ВК-Б» и «Р» проверяемой катушки зажигания
подключают проводами к штепсельной розетке . Высоковольтным проводом соединяют
центральный вывод катушки зажигания с центральным выводом крышки
прерывателя-распределителя, установленного на стенде. Вставляют высоковольтные
провода в боковые выводы крышки распределителя. Переключатель устанавливают в
положение «Состояние изоляции распределителя». Включают электродвигатель стенда
и наблюдают за свечением лампы индикатора , включенной последовательно в цепь
первичной обмотки проверяемой катушки зажигания. Отсутствие свечения
свидетельствует об обрыве первичной обмотки катушки зажигания или
дополнительного резистора. Рукояткой устанавливают максимальную частоту
вращения вала электродвигателя. Ручкой устанавливают зазор между остриями
искрового разрядника 4 (7 мм), проверяют зазор по шкале , нажимают на кнопку и
наблюдают за характером искрообразования в разряднике. Катушка зажигания
считается исправной, если искрообразование в разряднике будет бесперебойным.
Вывод: Спроектирован стенд для диагностирования системы зажигания.
3. Анализ
процесса и технологии ремонта детали
В качестве ремонтируемой детали принимаем из задания шестерню второй
передачи вторичного вала коробки передач. Заданная деталь - шестерня из
материала сталь 25ХГМ, служит для передачи крутящего момента коробке передач. С
целью повышения эксплуатационных характеристик, деталь подвергают
термообработке до HRC 60-65.
3.1
Составление чертежа детали с указанием изнашиваемых поверхностей
Эскиз детали с указанием изнашиваемых поверхностей представлен на рисунке
3.1.
Ремонтируемая деталь имеет следующие возможные дефекты:
3.2
Составление карты дефектации
Обнаружение неисправностей деталей (дефектация) состоит из двух этапов:
поузловой дефектации и подетальной. При поузловой дефектации измеряют зазоры
между зубьями шестерен, осевые разбеги, зазоры в подшипниковых узлах и в
сопряжении других деталей, контролируют на стендах работу или регулировку узлов
(форсунок, плунжерных и шестеренчатых насосов и различных регулировочных и
предохранительных клапанов), измеряют сопротивление и определяют прочность
изоляции электрического оборудования. Поузловая дефектация выполняется перед
демонтажем или разборкой объекта ремонта.
В курсовой работе будем составлять карту дефектации для детали, указанной
в задании.
3.3 Выбор
и обоснование наиболее рационального способа ремонта
Выбор способа ремонта зависит от конструктивно-технологических
особенностей и условий работы деталей, величины их износов, эксплуатационных
свойств самих способов, определяющих долговечность восстановленных деталей и
стоимости их ремонта.
Ремонт деталей осуществляется по одному из трех видов технологии:
подефектная технология, когда комплектование партий деталей производится
только по наименованию и последовательно устраняется каждый дефект в
отдельности независимо от способов исправления других дефектов. По этим
причинам запуск в производство больших партий деталей и применение специального
оборудования, приспособлений, инструмента становится нерациональным. Этот, вид
ремонта деталей имеет ряд других недостатков, его рекомендуется применять в
единичном, производстве.
маршрутная технология, предложенная К.Т. Кошкиным, строится на основе
того, что дефекты деталей появляются закономерно в определенной последовательности
и встречаются в повторяющихся сочетаниях. На основе изучения сочетаний дефектов
и взаимосвязи их возникновения устанавливаются технологические маршруты.
Комплектование партий в маршруты осуществляется из деталей, имеющих
одинаковое сочетание дефектов. Детали машин имеют разнообразные дефекты,
восстанавливаемые различными способами, сочетание дефектов в подавляющем
большинстве случаев не может быть охвачено одним маршрутом, с одним
технологическим процессом. Поэтому для каждого сочетания дефектов разрабатывается
свой технологический процесс восстановления, так как наивыгоднейшая очередность
выполнения отдельных операций и способы ремонта зависят от характера сочетания
отдельных дефектов. Число маршрутов для деталей одного наименования должно быть
минимальным, обычно в пределах двух-трех и не более четырех для сложных
базисных деталей. Большое число маршрутов затрудняет планирование и учет
производства, усложняет технологическую документацию, требует увеличения
складских помещений и др. Число деталей в одном маршруте рекомендуется
накапливать не менее 100, и такая партия проходит в нерасчлененном виде до
конца ремонта. Восстановление деталей большими партиями по одному маршруту дает
возможность перехода от единичного к серийному производству их ремонта.
групповая технология разрабатывается для групп деталей, устранение
дефектов которых производится одними и теми же способами с последующей
механической обработкой, проводимой на однотипном, оборудовании. Группы
комплектуются из деталей разных наименований, но имеющих одни и те же дефекты.
В качестве эталона данной группы выбирается наиболее характерная деталь,
структурные характеристики дефекты которой полнее отражены у всех других
деталей этой группы.
Выводы: так как у нас разрабатывается технология ремонта группы деталей
состоящих из 3250 деталей и устранение дефектов производится одними и теми же
способами с последующей механической обработкой и на одинаковом оборудовании,
то выбираем групповую технологию ремонта деталей.
3.4 Расчет
режимов и норм времени отдельных операций технологического процесса
восстановления изношенных поверхностей
К любому способу восстановления предъявляется три основных требования:
) Восстановления изношенных мест деталей с полной взаимозаменяемостью
2) Восстановления правильной геометрической формы детали
) Сохранение и восстановление первоначальных качеств ремонтируемой
детали
Расчет режимов и норм времени технологических операций рассмотрим на
примере расчета слесарной правки.
Операция 010 Слесарная правка
t =
0,5мм
S = 5
м/мин
VP = 5 м/мин
l0 = 150 мм; і = 20; lп = 1 мм
l =
1000+150 + 20 + 1 = 1171 мм
Т =1171·/5·1000 = 0,234 мин
В дальнейшем расчеты проводятся согласно методике изложенной в [4]
3.5
Проектирование технологического маршрута обработки деталей
Определим тип производства для заданного технологического процесса
ремонта шестерни, пользуясь исходными данными: годовая программа, программа
ремонта 3250 деталей, режим одной смены работы при сорокачасовой рабочей
неделе. Технологический процесс состоит из 7-ми операций обработки детали:
- дефектация ремонтируемой детали;
- слесарная правка;
- контроль правки;
- калибровка;
- калибровка;
- калибровка.
Вывод: в данном разделе был разработан технологический процесс ремонта
детали, на примере слесарной правки был показан процесс расчета технологических
режимов и норм времени.
Заключение
Целью данного курсового проекта является проектирование и расчет ТО,
проектировка ремонтного предприятия и ремонтного участка, получение
практических навыков в составлении графиков ТО.
Задачи данного курсового проекта заключается в ознакомлении с основами
расчета количества ТО, трудоемкости работ, проектировки РММ. Провести оценку
экономических параметров проектируемого предприятия.
В данной работе был составлен график ТО на сентябрь месяц 2012 года,
составлена карта тех. процесса и дефектации ремонтируемой детали, составлена
планировка РММ и генплана предприятия
Список
использованных источников
1. Положение
о техническом обслуживании и ремонте лесозаготовительного оборудования. - М.:
Минлесбумпром СССР, 1979.
. Положение
об агрегатном ремонте лесозаготовительных машин и оборудования. - Химки:
ЦНИИМЭ, 1985.
. Балахин
В.В., Гончаров В.С. Ремонт машин и оборудования лесозаготовительных
предприятий. - Л.: ЛТА, 1981.
. Верещак
Ф.П., Абелевич Л.А. Проектирование авторемонтных предприятий. - М.: Транспорт,
1973.
. Конспект
лекций