Процесс стратегического управления организацией

  • Вид работы:
    Курсовая работа (т)
  • Предмет:
    Менеджмент
  • Язык:
    Русский
    ,
    Формат файла:
    MS Word
    538,55 Кб
  • Опубликовано:
    2013-01-16
Вы можете узнать стоимость помощи в написании студенческой работы.
Помощь в написании работы, которую точно примут!

Процесс стратегического управления организацией

Министерство образования Российской Федерации

Государственное образовательное учреждение

высшего профессионального образования

Московский государственный индустриальный университет

(ГОУ МГИУ)

Кафедра «Менеджмент организации»





Курсовая работа

по дисциплине «Стратегический менеджмент»

на тему «Процесс стратегического управления организацией»













МОСКВА 2013

Оглавление

Введение

1. Формирование концепции стратегического управления

2. Стратегическое и традиционное (оперативное) управление

3. Проект системы стратегического управления организацией на примере ООО «Урал-Бэст»

4. Разработка механизмов реализации стратегии

5. Разработка механизмов контроля соответствия принимаемых на фирме решений избранной стратегии

Заключение

Библиографический список

Приложение

Введение

Переход к рыночным отношениям привел к структурной перестройке экономики и коренному изменению условий функционирования российских предприятий. Изменения в структуре и качестве экономического развития на практике выразились в смещении приоритетов развития от отраслей с высокой технологической составляющей к добывающим отраслям.

Макроэкономические преобразования негативно отразились на развитии российских промышленных предприятий. Состояние и деятельность многих из них характеризуется недостаточной инвестиционной привлекательностью, низкой инновационной активностью, высокой степенью физического и морального износа основных средств, низким уровнем эффективности и динамики развития в условиях высокой конкуренции на российском и мировом рынках высокотехнологичной продукции.

В тоже время на предприятии ООО «Урал-Бэст» указанные характеристики предопределяют необходимость радикальных изменений в целях обеспечения конкурентоспособности и стабильного прогресса.

Основной формой интенсивных преобразований является процесс стратегического развития как механизм комплексного развития предприятия. Стратегическое развитие направлено на рост потенциала развития, эффективности и стоимости капитала предприятия.

В качестве основной проблемы стратегического развития предприятия выделяется значительное снижение устойчивости в процессе радикальных преобразований. В связи с этим требуется разработка стратегии развития, обеспечивающей сохранение устойчивости в процессе деятельности предприятия. Актуальность решения этой задачи для российских предприятий, ее недостаточная степень исследования, определила тему работы.

В процессе работы над исследованием были использованы материалы научно-практических конференций, статистические, информационные, аналитические данные, публикуемые в научной литературе, периодических изданиях, размещенные в сети Интернет.

Объект исследования - предприятие ООО «Урал-Бэст».

Предмет исследования - стратегическое управление предприятием ООО «Урал-Бэст».

Целью исследования является процесс стратегического управления организацией.

База исследования: предприятие ООО «Урал-Бэст».

Задачи исследования:

. Представить формирование концепции стратегического управления.

. Описать стратегическое и традиционное (оперативное) управление.

. Представить проект системы стратегического управления организацией.

. Разработать механизмы реализации стратегии.

. Разработать механизмы контроля соответствия принимаемых на фирме решений избранной стратегии.

1. Формирование концепции стратегического управления

Концепция научного управления Тейлора явилась первым значимым шагом в развитии управленческой мысли, произошедшим в начале XX века. Перенесение идей инженерно-технических наук на управление в низовом производственном звене и явилось основой этой концепции. Но теория управления не ограничилась «тейлоризмом» и следующий крупный шаг в развитии западной управленческой мысли, тесно связанный с предыдущим, состоял в распространении «принципов управления», сформулированных А. Файолем, что можно признать первым самостоятельным результатом «науки администрирования» в ее теперь уже классическом варианте, ориентированном, прежде всего, на построение «формальных» организационных структур и систем. Не случайно на западе этого француза называют отцом менеджмента.

Идеи стратегического менеджмента являются ярким проявлением «тихой управленческой революции», которая началась в американской экономике на рубеже 80-х годов. Обнаружив неспособность своих менеджеров справиться с нарастающими трудностями во внешней среде в самый затяжной за весь послевоенный период экономический кризис, американские корпорации столкнулись с кризисом управляемости своих хозяйственных систем. Поиски выхода из него осуществлялись не только на путях повышения квалификации управленческих кадров, но и за счёт перехода к новой концепции управления или к новой «управленческой парадигме», под которой понимается система взглядов, вытекающих из основополагающих идей научных результатов ряда крупных учёных и определяющих стержень мышления основной массы исследователей и менеджеров-практиков.

Суть этой концепции состоит в определённом отходе от управленческого рационализма, от начального убеждения, что успех фирмы определяется, прежде всего, рациональной организацией производства, снижением издержек за счёт выявления внутрипроизводственных резервов, повышением производительности труда и эффективности использования всех видов ресурсов.

Новая концепция управления строится на системном и ситуационном подходах к управлению. Корпорация рассматривается при этом, прежде всего, как открытая система; главные предпосылки успешной деятельности фирмы отыскиваются не только внутри, но и вне ее, т.е. успех связывается с тем, насколько удачно фирма приспосабливается к внешнему окружению - научно-техническому, экономическому, социальному, политическому и т.п. Сумеет ли фирма вовремя распознать угрозы для её существования, не упустит ли возможности, возникающие в её среде, сможет ли она извлечь максимум выгоды из этих возможностей - вот главные критерии эффективности всей системы управления, по отношению к которым внутренняя рациональность организации производства и управления всё же отходит на второй план.

Организационные механизмы приспосабливаются к поиску, выявлению новых проблем, а также выработке новых стратегических решений больше, чем к контролю уже принятых.

Другая важная черта стратегического менеджмента - это концепция фирмы как социальной системы. Не только характер стратегий, тип организационных структур, процедур планирования и контроля, но и стиль руководства, квалификация людей, их поведение, реакция на новшества и изменения должны постоянно анализироваться и совершенствоваться при построении организационных систем управления.

Важное значение придаётся факторам организационной культуры - установившимся в организации ценностям, индивидуальным и групповым нормам поведения, установкам, типам взаимодействий и т.д.

Чтобы реализовать управленческое новшество, такое как стратегический менеджмент, необходимо переориентировать управленческое мышление с внутрипроизводственных проблем на внешние проблемы фирмы, требуется огромная целенаправленная работа по преодолению сопротивления изменениям и формированию новой организационной культуры.

Слово «стратегия» означает «искусство развертывания войск в бою». За последние 20 лет это понятие широко вошло в обиход специалистов, теорию и практику менеджмента как набор правил, которыми руководствуется организация при принятии управленческих решений. Вместе с тем стратегию рассматривают и как общий комплексный план, обеспечивающий осуществление миссии и достижение хозяйственных целей организации. Стратегия определяет цели и основные пути их достижения так, что организация получает единое направление действий. Таким образом, стратегия определяет границы возможных действий организации и принимаемых управленческих решений.

Стратегия организации - это генеральный план действий, определяющий приоритеты стратегических задач, ресурсы и последовательность шагов по достижению стратегических целей. Главная задача стратегии состоит в том, чтобы перевести организацию из ее настоящего состояния в желаемое руководством будущее состояние.

В зависимости от выбранного объекта стратегического управления различают: корпоративную стратегию - стратегию организации в целом; бизнес-стратегию - стратегию отдельного стратегического подразделения организации; функциональную стратегию - стратегию функциональной зоны хозяйствования.

Примером корпоративной стратегии может служить стратегия организации в определенной стратегической зоне хозяйствования (определенный сегмент рынка). Бизнес-стратегию может иллюстрировать стратегия подразделения по производству определённого вида товара многоотраслевой организации. Функциональная стратегия может быть представлена стратегией управления персоналом организации, производством, финансами и стратегиями в других сферах деятельности.

Возникновение и практическое использование методологии стратегического управления вызваны объективными причинами, вытекающими из характера изменений, в первую очередь, во внешней среде организации. Суть стратегического управления заключается в том, что, с одной стороны, существует четко организованное комплексное стратегическое планирование, с другой, - структура управления организацией отвечает «формальному» стратегическому планированию и построена так, чтобы обеспечить выработку долгосрочной стратегии для достижения ее целей и создание управленческих механизмов реализации этой стратегии через систему планов.

В развитии методологии стратегического управления выделяют несколько этапов.

Управление на основе контроля за исполнением, при котором реакция организаций на изменения появляется после совершения событий. Это реактивная адаптация, которая наиболее естественна для организации, но требует много времени на осознание неизбежности изменений, выработку новой стратегии и адаптацию к ней системы. В условиях нарастания темпов изменений это неприемлемо.

Управление на основе экстраполяции, когда темп изменений ускоряется, но будущее еще можно предсказывать путем экстраполяции прошлых тенденций (долгосрочное планирование).

Управление на основе предвидения изменений, когда начали возникать неожиданные явления и темп изменений ускорился, однако не настолько, чтобы нельзя было вовремя предусмотреть будущие тенденции и определить реакцию на них путем выработки соответствующей стратегии (стратегическое планирование).

Управление на основе гибких экстренных решений, которое складывается в настоящее время, в условиях, когда многие важные задачи возникают настолько стремительно, что их невозможно вовремя предусмотреть (стратегическое управление в реальном масштабе времени).

Долгосрочное и стратегическое планирование достаточно широко используются в практике управления многих крупных организаций, хотя последнее внедрялось медленно и с большим трудом в течение 20 лет.

В конце 60-х - начале 70-х годов в нашей стране появился целый ряд интересных публикаций, и многие отрасли приступили к разработке долгосрочных планов развития производства. При этом субъектом планирования являлось министерство, ведомство. Это обстоятельство объясняет причину недостаточной эффективности этой работы в прошлом. Министерство не имело достаточных возможностей, стратегической информации и времени на эту работу из-за чрезмерной перегруженности оперативными вопросами. План формировался как «жесткая конструкция», при которой игнорировался основополагающий принцип стратегического планирования - адаптивность планов. Это важное, но не основное отличие долгосрочного планирования от пришедшего ему на смену планирования стратегического.

Основное различие между долгосрочным и стратегическим планированием заключается в трактовке будущего. В системе долгосрочного планирования делается допущение, что будущее может быть предсказано путем экстраполяции исторически сложившихся тенденций роста. Руководители организации обычно исходят из того, что в перспективе итоги деятельности улучшатся по сравнению с прошлым, и эту посылку закладывают в обоснование плана. Типичный результат такой практики - постановка оптимистических целей развития, с которыми не сходятся реальные результаты. Они могут быть выше, но чаще существенно ниже планируемых.

В стратегическом планировании важное место отводится анализу перспектив организации, задачей которого является выяснение тех тенденций, опасностей, возможностей, а также отдельных чрезвычайных ситуаций, которые способны изменить сложившиеся тенденции. Этот анализ дополняется анализом позиций в конкурентной борьбе.

Стратегическое планирование - это умение предвидеть цели фирмы, результаты ее деятельности и ресурсы, необходимые для достижения определенных целей.

На сегодняшний день множество российских предприятий находится в критическом состоянии. Большинство управляющих неблагополучными предприятиями называют причинами такой неблагополучной ситуации: хроническую нехватку оборотных средств, падение платежеспособного спроса, неразумную налоговую политику властей.

При этом большинство таких предприятий имеют схожие черты. И похожи они не только неблагоприятным финансовым состоянием (это скорее следствие) и не только одинаковыми проблемами. Общее у них - это видение руководящим звеном проблем предприятия. По мнению руководства, все причины находятся вне предприятия. К ним относятся: отсутствие оборотных средств в результате денежных реформ и нестабильности рынка; падение спроса из-за отсутствия денежной массы; бартерные взаиморасчеты, представляющие собой нарушение привычных экономических и производственных связей; налоговое бремя, порожденное некомпетентностью чиновников.

Видно, что позиция руководства предприятий - позиция «внутренней жертвы», ищущей все причины своего неблагополучия вне рамок собственного поведения.

Сопоставив вышеуказанные утверждения с опытом деятельности успешных предприятий, получим следующий результат, отражающий поведение иных компаний. Так, менеджеры крупных российских компаний, имеющих положительный опыт развития, утверждают, что сталкиваются с теми же самыми повседневными проблемами, однако их позиция является более «защищенной» с точки зрения общего развития фирмы. Этим «защитным барьером» для них является четкое понимание конкретного результата, который предприятие собирается достичь в результате своей деятельности, и осознание тех бизнес-процессов, с помощью которых этот результат может быть достигнут в динамически изменяющейся среде.

Инструментом для постановки такого рода «барьера» служит стратегический план развития организации, позволяющий избегать нежелательных и усиливать действие положительных моментов развития. Однако для успешной деятельности организации в стратегическом периоде недостаточно разработать план действий, необходимо построить всю систему стратегического управления.

. Стратегическое и традиционное (оперативное) управление

Стратегическое управлении можно определить как управление организацией, которая опирается на человеческий потенциал, как основу организации, ориентирует производственную деятельность на запросы потребителей, гибче реагирует и осуществляет своевременные изменения в организации, отвечающие вызову со стороны окружения и позволяющие добиваться конкурентных преимуществ, что в совокупности позволяет организации выживать и достигать своих целей в долгосрочной перспективе.

Портфельная стратегия высший уровень стратегии. Понятие «портфеля» применительно к менеджменту означает портфель ценных бумаг, принадлежащих группе компаний - корпорации, концерну, конгломерату. Управление портфельной стратегией - это управление всеми предприятиями и организациями, входящими в корпорацию, с помощью ценных бумаг.

Для портфельной стратегии важное значение имеют пути образования портфелей.

отпочкование от материнской компании дочерних, специализирующихся на определенном функциональном направлении;

взаимодействие поставщика и потребителя. Образование портфеля на этой основе носит название варианта вертикальной интеграции. Например, судовая компания может приобрести компанию, обеспечивающую топливом ее суда. Компании, производящие машины, могут приобрести сеть оптовых предприятий либо завод, выпускающий отдельные запасные части;

развитие смежного бизнеса. Образование портфеля здесь связано с объединением усилий для более эффективного использования ресурсов и упрочения позиций компании в конкурентной борьбе. Объединение усилий двух или нескольких компаний обеспечивает стратегические преимущества, выраженные в повышении эффективности, снижении издержек производства, росте производительности и так далее.

Портфели могут быть двух типов: синергетические (централизованно объединенные) и диверсифицированные, существуют также промежуточные формы.

Пути образования синергетических портфелей:

покупка новых предприятий;

укрепление имеющихся в составе портфеля предприятий и их дальнейшее развитие;

отсечение (ликвидация) старых, нежелательных предприятий в составе портфеля;

продажа компаний, которыми могут лучше управлять другие компании. Например, группа судовых компаний приобрела компанию, владеющую прибрежными ресторанами, но к ресторанному бизнесу еще не готова. Поэтому судовой компании целесообразно ее продать на выгодных для себя условиях;

распределение и управление финансовыми ресурсами. На уровне портфельной стратегии высшее руководство распределяет финансовые ресурсы между отдельными фирмами, входящими в корпорацию или холдинг, а также в случаях создания новых дочерних фирм и контролирует их расходование;

четкая стратегическая ориентация всех компаний, входящих в корпорацию, с целью исключения конкуренции между ними и обеспечение четкого распределения труда;

использование преимуществ синергизма для обеспечения единства корпоративных миссий. Если в корпорацию вошла фирма с резко отличающейся корпоративной миссией, то ее нужно либо поставить в один ряд с остальными, либо исключить.

Пути образования диверсифицированных портфелей:

сама динамика развития бизнеса способствует отпочкованию от материнских компаний фирм, специализирующихся в иной сфере деятельности. Например, авиакомпания может открыть не связанные с материнской линией предприятия с учетом ориентации на рынок - кафе или другие точки питания;

технический прогресс - другая сторона диверсификации, развитие предпринимательских сфер, связанных материнской линией лишь технологически;

большая степень самостоятельности отдельных компаний в рамках корпорации или холдинга. Эти компании, как правило, отличаются высокой прибыльностью, но не могут инвестировать свои капиталы в эту сферу. Отсюда - поиск сфер приложения для новых инвестиций.

Таким образом. Задача диверсифицированных компаний сводится главным образом к поискам таких отраслей, в которых можно было бы сделать инвестиции.

Портфельная стратегия требует значительных финансовых проблем, рынка ценных бумаг, биржевого дела и так далее.

Деловая стратегия, то есть стратегия на уровне отдельных фирм, входящих в корпорацию или холдинг. Главная задача деловой стратегии - обеспечить своей фирме долгосрочное конкретное преимущество, что позволяет ей достичь поставленных целей и высокого уровня рентабельности. Реализация деловой стратегии включает три этапа:

Этап 1. Разработка правильной корпоративной миссии. Корпоративная миссия - это своего рода концепция бизнеса, то есть совокупность убеждений, которыми руководствуется аппарат компании, ценности, стиль управления и подход менеджеров к принятию решений. Корпоративная миссия позволяет отыскать нужные пути удовлетворения конкретного вида потребностей определенного круга потребителей в условиях активной конкурентной борьбы. Корпоративную миссию необходимо постоянно обновлять в соответствии с требованиями рынка, так как устаревшая корпоративная миссия ослабляет позиции фирмы в конкурентной борьбе.

Если прежние приемы корпоративной миссии не дают желаемых результатов, фирма переходит к анализу потребностей на рынке, изучает новый вид поставляемой продукции, ее достоинства и отличительные свойства. Результаты такого анализа влияют на корпоративную миссию в сторону ее обновления, в отдельных случаях это может быть полное изменение плана работы фирмы, в том числе финансового плана, бизнес-плана и так далее.

При разработке корпоративной миссии руководствуются основными принципами. Корпоративная миссия должна:

формулироваться просто и четко в удобной для восприятия своими сотрудникам и потребителями фирмы форме;

быть нацелена прежде всего на удовлетворение потребностей, интересов и запросов потребителей;

содержать четкие сведения о выпускаемых товарах и о преимуществах этих товаров.

Корпоративная миссия играет большую роль в достижении устойчивого конкурентного преимущества, так как:

процесс формирования корпоративной миссии заставляет менеджеров постоянно пересматривать деятельность всех подразделений фирмы и анализировать факторы, влияющие на эту деятельность;

понимание корпоративной миссии позволяет менеджерам лучше изучить бизнес, рассмотреть стоящие перед фирмой проблемы комплексно с учетом позиций рынка, что обеспечивает долгосрочную конкурентоспособность;

имеет большое значение для развития коммуникаций как внутри фирмы, позволяя довести цели фирмы для каждого конкретного исполнителя, та и за ее пределами, благодаря хорошо налаженной сети информации.

Этап 2.Разработка видения и целей корпорации. Для успешной работы фирмы необходимо решить проблему видения и целей.

Видение - это своего рода мечта, это то состояние бизнеса, которое может быть достигнуто в будущем при самых благоприятных условиях. Видение помогает наметить ориентиры в стратегии бизнеса. Понятие «видение»неразрывно связано с предпринимательским подходом к делу и помогает выработке критериев достижения целей. Наиболее важную роль видение играет в мотивации, в том, чтобы придать смысл и значимость труду, и пробудить заинтересованность всего персонала компании.

Цель отражает уровень, на который необходимо вывести фирму по созданию таких видов товаров и услуг, которые обеспечат фирме устойчивое конкурентное преимущество. Кроме того, четко поставленные цели служат хорошим мотивационным фактором для тех, кто работает в фирме, поэтому необходимо постоянно разъяснять сотрудникам суть видения и целей.

В целевом менеджменте начальник и подчиненный совместно обсуждают пути достижения поставленных целей, и начальник, как правило, выступает в роли консультанта, чем руководителя. Важный момент здесь - разработка рабочих идей для отдельных подразделений и даже сотрудников, причем стратегия достижения этих целей определяется ими самостоятельно. И ответственность за достижение цели полностью несет лицо, наиболее тесно связанное с решением этой проблемы. Поэтому целевой менеджмент сегодня широко распространен.

Этап 3. Разработка мер для достижения стратегических преимуществ. Стратегическое, или конкретное, преимущество предполагает высокий и стабильный уровень доходов фирмы и прочих позиций на рынке. В центре внимания таких преимуществ лежит фактор качества, под которым подразумевается:

качество продуктов и услуг, которые компания предлагает на рынке;

качество работы самой компании, то есть качество управления;

маркетинговое понятие качества.

Большое внимание в деловой стратегии уделяется маркетинговому качеству. Маркетинговое качество, определяющее конкурентные преимущества, характеризуется несколькими параметрами:

ядро товара - свойства, определяющие качеств товара (это могут быть потребительские свойства, эргономические, свойства безопасности и другие);

товар в реальном исполнении. Маркетинговое качество огромное значение придает дизайну товара, в том числе упаковке, маркировке и так далее;

подкрепление товара. Сюда включаются те услуги, которые предлагают покупателю при продаже данного товара, например, доставка на дом. Большая роль здесь отводится рекламе;

отличительное качество. Любому покупателю должно быть ясно, в чем преимущества данного товара. Реализация товара во многом зависит и от умения продавца просто, доходчиво и быстро объяснить покупателю, в чем преимущества данного товара с теми, которые пока преобладают на рынке.

В деловой стратегии конкурентное преимущество фирмы определяю также: в соответствии корпоративной миссии фирмы реальной ситуации на рынке (философия компании должна соответствовать потребностям сегодняшнего дня и иметь свои особенности, отличие от конкурентов); качество работы персонала, причем важно выделить мотивацию персонала; коммуникации, которыми управляет фирма; уровень культуры фирмы; ценовая политика фирмы в области сбыта.

Существует понятие «сила конкуренции» - это факторы, определяющие состояние конкуренции в отрасли в определенный период. Чтобы иметь достаточно правильное представление о силе конкуренции, необходимо выявить:

какие конкурирующие компании на этом рынке и какая между ними конкурентная борьба. Есть ли смысл вступить с ними в бой в том случае, когда рынок закрыт и поделен;

на кого ориентированы покупатели;

каково влияние поставщиков;

какова опасность появления новых поставщиков;

существует ли угроза появления новых конкурентов;

конкурентную позицию, то есть позицию, которую занимает ваша компания в отрасли на сегодняшний день, так как конкурентная борьба - мероприятие дорогостоящее, и рынок отличается высокими входными барьерами.

Функциональная стратегия - это стратегия на уровне отдельных подразделений фирмы. Функциональная стратегия должна быть полностью определена деловой стратегией всей фирмы и идти в едином русле с ней.

В функциональной стратегии важны следующие моменты:

определение конкретного содержания данной стратегии;

четкое усвоение целей и задач деловой стратегии всеми сотрудниками данного отдела;

представление каждым работником своего места в отделе и своего отдела в фирме, знание роли данного отдела, чем будет заниматься, какой будет вносить вклад в дело всей фирмы;

четкое разграничение функций всех подразделений фирмы;

координация функций и объединение усилий отделов, то есть использование синергетического эффекта на уровне всех подразделений фирмы.

Уделяя должное внимание функциональной стратегии, можно более точно определить величину затрат каждого подразделения, а также их эффективность и результативность.

Основными принципами стратегического управления являются:

. Ориентация на миссию организации, ее глобальные качественные цели, конкурентоспособность.

. Селективность, основанная на сегментации рынка, предполагающая упорядочение среды и выбор приоритетов, на основе чего вырабатываются самостоятельные стратегии, исходя из стратегического профиля фирмы.

. Комплексность; этот принцип реализуется при разработке основных целей и задач, а так же программы реализации стратегии.

. Обоснованность стратегий.

Оперативное управление включает календарное планирование, разнарядку работ, определение объема партии одновременно выпускаемой продукции, размещение заказов на материалы, контроль за качеством, учет, анализ, регулирование хода производства, на их основе внесение необходимых корректировок в ход технологического процесса, маневрирование запасами и диспетчеризацию. Оно устанавливает также, где и когда должны осуществляться те или операции по изготовлению деталей и узлов изделий.

В узком смысле оперативное управление обеспечивает процесс реализации краткосрочных и оперативных планов и диспетчеризацию, иными словами, сводится все к принятию решений в конкретно складывающихся в данный момент условий

В процессе оперативного управления контролируется фактическое состояние работ, выявляются и анализируются изменения, на основании этого корректируются графики и перераспределяются ресурсы.

В процессе оперативного управления может происходить, в частности, оптимизация сетевого графика с целью приведения его в соответствие с заданными сроками работ и поиск возможности их сокращения. Это ведет к улучшению организации работ за счет перераспределения ресурсов и интенсификации выполнения заданий.

Проверяется целесообразность выполнения запланированных работ: выявляются лишние и необязательные, определяются возможности параллельного их выполнения и целесообразности данной степени детализации.

Диспетчеризация - это система непрерывного контроля и оперативного регулирования хода производства и работы подразделений с целью обеспечения выполнения плана в соответствии с разработанным календарным графиком. Она предполагает:

руководство оперативной подготовкой производства;

постоянное наблюдение и контроль со стороны диспетчерских служб за осуществлением производства, соблюдением графиков, наличием запасов на межцеховых складах, их своевременным поступлением на рабочие места, внутрисменными простоями, соблюдением режимов работы оборудования и параметров технологических процессов;

выявление отклонений и определения их причин;

принятие оперативных мер по устранению и дальнейшему предупреждению отклонений и нарушений технологии;

координация текущей работы различных подразделений для обеспечения четкого ритма их работы в соответствии с графиком.

Итак, оперативное управление коренным образом отличается от стратегического:

Показатель: Стратегическое управление: Оперативное управление:

Тип поведения Предпринимательский Приростный

Тип реакции Инновационный Производственный

Результат Рост потенциала, повышение Рост прибыли, удовлетворение гибкости потребителей

Факторы успеха Успешное предвидение Эффективное производство, активная конкуренция

Тип планирования Программирование, Составление графиков, стратегическое планирование бюджетов, смет

Объект информации Проблемы, возможности Спрос, прибыльность

Структура организации Динамичная Статичная

Власть Сосредоточена в общем Сосредоточена на руководстве производстве, у менеджеров.

. Проект системы стратегического управления организацией на примере ООО «Урал-Бэст»

Основным мероприятием в рамках выбранной стратегии развития Челябинского предприятия ООО «Урал-Бэст» - стратегии расширения границ рынка, станет организация производства в г. Новосибирск.

В г. Новосибирск планируется открыть производство, основой которого станет жаропрочное литье. Жаропрочное литье - это вид производства, при котором изготавливаются жаропрочные и жаростойкие детали и отливки. Отличие от обычного литья заключается в том, что при жаропрочном литье используются специальные марки сталей и чугунов, с добавкой никеля, хрома, молибдена, вольфрама и кобальта. При этом виде литья изготавливаются изделия, которые могут обеспечить работы при температурах от 1000°С или в условиях, при воздействии агрессивных горячих сред.

Существует ряд требований, которые предъявляются к изделиям, выполненных путем этого вида литья: сохранение прочности при высокой температуре, способность выдерживать тысячи термоциклов без каких-либо деформаций, резкий неравномерный нагрев или охлаждение деталей. Жаропрочное литье помогает увеличить срок службы и повысить надежность агрегатов, работающих с высокотемпературными средами. Именно поэтому применение жаропрочного литья является важным сегментом производства промышленных изделий [13].

Таким образом, можно сформулировать миссию предприятия.

Миссия ООО «Урал-Бэст» - удовлетворение неуклонно растущих требований потребителей на основе взаимовыгодного сотрудничества с поставщиками с учетом постоянного снижения негативного воздействия на окружающую среду и сохранения природных ресурсов, укрепление экономического потенциала предприятия и социального статуса персонала.

Кредо ООО «Урал-Бэст» - высокое качество в короткие сроки и абсолютно индивидуальный подход к каждому клиенту вне зависимости от величины его заказа. Слоган: «Урал-Бэст» - сила металла.

Залог успеха ООО «Урал-Бэст» - персональная ответственность за качество производимой продукции каждого сотрудника предприятия.

Цель предприятия - увеличить рыночную долю до 35% к 2014 г. и стать лидером продаж жаропрочной продукции на рынке Сибирского федерального округа.

Структура управления предприятием представлена в приложении.

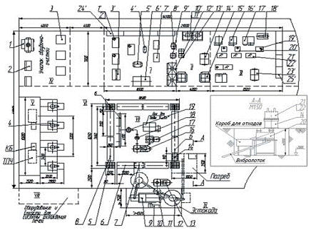
Для начала осуществления деятельности, предприятию необходимо приобрести здание производственного назначения в собственность. В г. Новосибирске имеется подходящее производственное здание. Стоимость здания составляет 4 216 950 руб., здание двух этажное, общая площадь 600 кв. м. План производственного цеха отражен на рис. 1 [6].

Рисунок 1 - Планировка цеха

Условные обозначения:- площадка единичных моделей и сборки модельных блоков; - площадка подготовки полистирола; - площадка изготовления моделей; - отделение обрубки и очистки отливок; - электрощитовое отделение с пультом управления плавильными печами ИСТ, тиристорными преобразователями и конденсаторными батареями; - плавильная площадка;- формовочно-заливочная площадка с ПТМ; VIII - отделение водоподготовки охлаждения печей ИСТ;- отделение пескоподготовки.

Общая площадь цеха, занятая для изготовления моделей и отливок, составляет 510 кв. м., в т. ч.:

) плавильное отделение с шихтовой площадкой 110 кв. м.;

) обрубочно-очистное отделение 40 кв. м.;

) формовочно-заливочное отделение 140 кв. м.;

) пескоподготовительное отделение 50 кв. м.;

) модельное отделение 160 кв. м.

На производстве будет использоваться новая технология - литье по газифицируемым моделям (ЛГМ). Это наиболее недорогой и малозагрязняющий окружающую среду способ получения точных отливок.

Перечень всего необходимого оборудования непосредственно для производства и его стоимость представлены в Приложении 1. При производстве будет использоваться компьютерное моделирование (программный продукт MAGMASOFT - мировой лидер в данной области). Данный продукт используется более чем на восьмистах крупнейших предприятиях по всему миру показывает эффективность его применения на литейном производстве. Применение MAGMASOFT поможет простым и экономичным способом создавать высококачественные литейные формы <#"604230.files/image002.gif">

Рисунок 2 - Жизненный цикл товара (жаропрочная цепь)

Продолжительность жизненного цикла данного товара, как и большинства товаров производственно-технического назначения, достаточно велика по сравнению с потребительскими товарами и составляет несколько десятилетий. Это объясняется необходимостью серьезных капитальных вложений для потребителей, связанных с изменением технологии производства при переходе с одного вида товара на другой. В частности, по рассматриваемым товарам наступление фазы зрелости прогнозируется через 10-15 лет.

Целевым рынком по данному товару является рынок Сибирского федерального округа. Основной сегмент: цементные предприятия.

Чем крупнее покупатель, тем в большей степени он требователен к цене на товар (уровню оптовых скидок) и тем меньше для него удельные издержки на доставку. Оценка емкости целевого рынка по товару проводится на основе опроса крупнейших потребителей, поскольку более точных количественных исследований емкости регионального рынка не проводилось, а проводить их своими силами нецелесообразно. Ориентировочная емкость выбранного целевого сегмента по минимальным оценкам составляет около 1200 тонн/год. Ожидаемая динамика емкости целевого сегмента, также как и всего рынка - положительная.

Конкурентом ООО «Урал-Бэст» на рассматриваемом целевом рынке является российский производитель ООО «Метопласт», предлагающие широкий ассортимент продукции, по объемам производства сопоставимый с нашим производством.

Основными преимуществами конкурента в данное время является качество продукции, однако оно не всегда стабильно и уровень издержек ООО «Метопласт» не позволяет привлекать крупных потребителей (в т.ч. из-за высоких транспортных расходов) за счет значительных скидок.

Основными конкурентными преимуществами и особенностями работы ООО «Урал-Бэст» будут: стабильно высокое качество продукции; приемлемые цены; соответствие стандартам; использование новейших достижений науки и техники; гибкость в отношениях с заказчиками, оперативность в выполнении заказов и в обслуживании потребителей; полный цикл производства (литье и обработка).

Основной товарной целью является увеличение рыночной доли, что должно обеспечиваться рассматриваемыми далее элементами комплекса маркетинга. В отношении непосредственно товара главной задачей является поддержание стабильности качественных характеристик для привлечения и сохранения потребителей.

Для разработки ценовой политики фирмы необходимо четко представлять, к какому типу относится рынок рассматриваемого товара (по характеру конкуренции). Из четырех классических типов рынка рассматриваемый тип наиболее полно соответствует определению олигополистической конкуренции: относительно небольшое число продавцов, чувствительных к маркетингу друг друга, в первую очередь, к политике цен. На данном рынке ценовая стратегия имеет решающее значение для достижения целей маркетинга.

Таким образом, основное направление ценовой стратегии состоит в установлении цен и скидок немного ниже, чем у конкурентов (на 2-10%), но не ниже уровня производственных издержек.

Поскольку покупателем продукции является предприятие, то для выявления целевой аудитории, сцелью дальнейшего обращения к ней, необходимо рассмотреть состав закупочного центра. В составе типового закупочного центра предприятия-потребителя можно выделить следующие основные группы:

пользователи - производственные подразделения предприятий-потребителей, непосредственно использующие продукцию в своей деятельности. Представители данной группы, которые могут быть выбраны в качестве целевой аудитории - начальники цехов промышленных предприятий, главные инженеры и главные технологи предприятий.

покупатели - сотрудники отделов снабжения, осуществляющие закупки и непосредственные контакты с поставщиками.

принимающие решения - руководители, принимающие решение о выборе поставщиков. В зависимости от специфики, размера и организации структуры управления на конкретном предприятии, таким лицом может являться генеральный директор, главный инженер, финансовый директор, начальник отдела снабжения.

оказывающие влияние - сотрудники других служб предприятия, участвующие в анализе предложений поставщиков. В частности, на цементных предприятиях серьезное влияние оказывают конструкторские подразделения, которые определяют набор необходимых характеристик цепей для использования в производстве.

Анализ конкурентных преимуществ указывает на необходимость обращения к группе «покупатели», однако имеющийся опыт работы предприятия показывают, что все же наиболее эффективным с точки зрения формирования желаемой реакции является обращение к непосредственным пользователям по следующим причинам:

данная группа в составе закупочного центра уделяет наибольшее внимание качественным характеристикам товара, которые являются одним из конкурентных преимуществ нашего товара;

при наличии неудовлетворенности товарами конкурентов данные лица хорошо знают об этом и охотно соглашаются попробовать использовать другой товар;

пользователи, как правило, являются инициаторами закупки - подразделения-потребители формируют заявки на закупку товара для отдела снабжения с указанием необходимых характеристик и возможных поставщиков.

Желаемая ответная реакция, на которую направлено обращение - осуществление пробной закупки, поскольку преимущества товара, которые способствуют переходу покупателей в категорию постоянных, как правило, выявляются уже при первом использовании либо при контрольных испытаниях продукции потребителем.

Выбор обращения определяется характеристиками целевой аудитории (ее мотивацией). Мотивация целевой аудитории в основном рациональная. Цепные завесы - главный инструмент экономии энергии в длинных цементных печах. Их качество в значительной мере определяет эффективность рекуперации тепла между газовым потоком от теплоносителя и сырьевой массой, качество и количество цементного клинкера. Наше предложение дает покупателю возможность достичь лучших результатов в своей основной деятельности и уменьшить количество проблем в работе. Следует также учитывать и эмоциональные мотивы, связанные с чувством причастности к передовым технологиям.

Таким образом, суть обращения к целевой аудитории - предложение товара с наилучшими качественными характеристиками, направленными на повышение качества и результативности работы потребителя.

Выбор средства обращения зависит от целеврй аудитории, которая представляет собой достаточно ограниченный круг лиц, что позволяет сделать ставку на личное обращение как наиболее эффективное.

Достаточно обширная география целевого рынка определяет необходимость использования телефонного маркетинга для первоначальных контактов. В дальнейшем, после формирования заинтересованности потенциального потребителя, производится почтовая рассылка рекламно-информационных материалов.

В качестве завершающего этапа, как правило, необходимо (особенно для крупных потребителей) личное посещение клиента одним либо группой сотрудников предприятяи. Для этого возможно привлечение специалистов технических служб предприятия для обсуждения с конструкторами и технологами предприятия-потребителя особенностей использования товара в условиях конкретного производства.

Дополнительно к личным продажам будут использоваться некоторые инструменты стимулирования сбыта, такие как: распространение образцов товара (для многих потребителей возможность провести испытания на опытном образце и попробовать использовать его в своем производстве облегчает принятие решения о покупке); стимулирование торгового персонала (основным инструментом являются проценты от объема продаж).

Система распределения товара - прямое распределение.

С целью расширения круга потребителей возможно осуществление поставки готовых изделий.

Далее представлена оценка эффективности предложенных мероприятий.

4. Разработка механизмов реализации стратегии

Стоимость жаропрочной продукции зависит от используемой при производстве стали. В работе буде произведен расчет стоимости продукции из стали марки 35Х23Н7СЛ. Химический состав стали представлен в табл. 2. [3]

Таблица 2- Химический состав, %

C

Si

Mn

Ni

S

P

Cr

Cu

до 0.35

0.5-1.2

0.5-0.85

6-8

до 0.035

до 0.035

21-25

до 0.3


Стоимость одной тонны данной марки стали составляет 84900 тыс. руб.

Использование в производстве современного технологичного оборудования и программ требует привлечения высококвалифицированных кадров. Все сотрудники предприятия являются специалистами в своей области. Возраст персонала варьируется от 25 до 50 лет.

Штат сотрудников представлен в табл. 3.

Таблица 3 - Штатное расписание работников

Должность

Количество

Заработная плата, руб.

Выплаты

Управляющий производством

1

30000

Ежемесячно

Старший мастер

1

21000

Ежемесячно

Технолог модельного цеха

1

17000

Ежемесячно

Модельщик

5

14000

Ежемесячно

Сталевар

2

14000

Ежемесячно

Заливщик

2

10000

Ежемесячно

Формовщик

3

10000

Ежемесячно

Обрубщик

2

8000

Ежемесячно

Электрик

1

12000

Ежемесячно

Механик

1

15000

Ежемесячно

Токарь

1

12000

Ежемесячно

Уборщик производственных и служебных помещений

1

5000

Ежемесячно

Маркетолог

1

14000

Ежемесячно

Менеджер по продажам

1

13500

Ежемесячно

Бухгалтер

1

15000

Ежемесячно

Итого

24

318500

Ежемесячно


Прочие издержки разделены на три группы - цеховые (производственные), управленческого характера и расходы направленные на увеличение сбыта продукции.

Прочие издержки представлены в табл. 4.

Таблица 4 - Прочие издержки, тыс. руб.

Наименование

Ежемесячно

За год

Общепроизводственные расходы, в т.ч.:

1100

13200

 - коммунальные услуги

800

9600

 - транспорт

300

3600

Управленческие расходы, в т.ч.:

123

1476

 - связь, почта, телефон

5

60

 - канцелярия

2

24

 - командировочные расходы

16

192

 - содержание помещений непроизводственного назначения

100

1200

Коммерческие расходы, в т.ч.:

472

5664

 - прямая почтовая рассылка

20

240

 - телефонный маркетинг

2

24

 - представительские расходы

50

600

 - доставка продукции

400

4800

Итого

1695

20340


План реализации продукции представлен в табл. 5.

Таблица 5 - План производства и реализации продукции

Показатель

(0) 1 полугодие 2012 г.

(0) 2 полугодие 2012 г.

(0) 1 полугодие 2013 г.

(0) 1 полугодие 2014 г.

(0) 2 полугодие 2014 г.

Объем производства, тн.

350

400

450

500

550

650

Цена реализации, руб.

144 000

Объем продаж, тн.

350

400

450

500

550

650

Сумма реализации, руб.

50 400 000

57 600 000

64 800 000

72 000 000

79 200 000

93 600 000


Базовая цена продажи в расчете на 1 тонну изделия составит 140 тыс. руб. (с НДС). Цена устанавливается равной текущему уровню на рынке, но ниже цен основных конкурентов на 7 %.

Затраты на производство и сбыт продукции представлены в табл. 6.

Таблица 6 - Затраты на производство и реализацию продукции

Статья затрат

1 полуг. 2013 г.

2 полуг. 2013 г.

1 полуг. 2014 г.

2 полуг. 2014 г.

1 полуг. 2015 г.

2 полуг. 2015 г.

сырье и материалы

36 750 000

42 000 000

47 250 000

52 500 000

57 750 000

68 250 000

заработная плата

1 911 000

1 911 000

1 911 000

1 911 000

1 911 000

1 911 000

ЕСН (34,2%)

653 562

653 562

653 562

653 562

653 562

653 562

коммунальные услуги

4 800 000

4 800 000

4 800 000

4 800 000

4 800 000

4 800 000

амортизация

1 481 481

1 444 444

1 407 407

1 370 370

1 333 333

1 296 296

проценты за кредит


3 000 000

2 400 000

1 800 000

1 200 000

600 000

транспорт

1 800 000

1 800 000

1 800 000

1 800 000

1 800 000

1 800 000

связь, почта, телефон

738 000

738 000

738 000

738 000

738 000

738 000

канцелярия

30 000

30 000

30 000

30 000

30 000

30 000

командировочные расходы

96 000

96 000

96 000

96 000

96 000

96 000

содержание помещений непроизводственного назначения

600 000

600 000

600 000

600 000

600 000

600 000

прямая почтовая рассылка

120 000

120 000

120 000

120 000

120 000

120 000

телефонный маркетинг

12 000

12 000

12 000

12 000

12 000

12 000

представительские расходы

300 000

300 000

300 000

300 000

300 000

300 000

доставка продукции

2 400 000

2 400 000

2 400 000

2 400 000

2 400 000

2 400 000

Итого себестоимость

44 657 043

51 865 006

55 472 969

59 080 932

62 688 895

70 541 858

Эффективность открытия производства в г. Новосибирске можно охарактеризовать системой показателей, которые отражают соотношение затрат и результатов от инвестиций в его открытие [18, с. 245].

При определении эффективности инвестиций, оценка предстоящих затрат и результатов осуществляется в пределах периода планирования, который измеряется количеством шагов расчёта. Шагом расчёта в пределах планирования могут быть: месяц, квартал, полугодие или год.

Для соизмерения показателей по различным шагам периода планирования при оценке эффективности инвестиционных вложений используется приведение их к ценности в начальном шаге (дисконтирование).

Технически приведение к начальному шагу затрат, результатов и эффектов, которые имеют место на t-ом шаге расчёта, производится путём их умножения на коэффициент дисконтирования (at), который определяется по формуле [8, с. 105].

at = 1 / (1+Е)t,   

где t - номер шага расчёта (t = 0,1, .... Т);

Т - период планирования;

Е - норма дисконтирования, равная приемлемой для инвестора норме доходности на капитал.

Для сравнения вариантов инвестиций, а также для сравнения различных инвестиционных вложений используется ряд общепринятых показателей. К ним относятся: чистый дисконтированный доход (ЧДД), индекс доходности (ИД), срок окупаемости, внутренняя норма доходности.

Чистый дисконтированный доход - это сумма текущих эффектов (разницы результатов и затрат) за весь период планирования, приведённая к начальному шагу. ЧДД рассчитывается по формуле [14, с. 131].

,  

где Rt - результаты, достигаемые на t- ом шаге расчёта;

Зt - затраты, осуществляемые на t - ом шаге расчёта, при условии, что в них входят капиталовложения;

at - коэффициент дисконтирования;

К - сумма дисконтированных капиталовложений.

Сумма дисконтированных капиталовложений вычисляется по формуле [11, с. 106].

,

где Кt - капиталовложения на t-ом шаге;

at - коэффициент дисконтирования;

В случае если ЧДД положителен, инвестиции эффективны, если отрицателен - неэффективны. Чем больше ЧДД, тем эффективнее инвестиции.

При осуществлении инвестиций выделяется три вида деятельности: инвестиционная, операционная и финансовая. В рамках каждого вида деятельности происходит приток и отток денежных средств.

Сальдо денежных потоков - это разность между притоком и оттоком денежных средств от всех трёх видов деятельности. Положительное сальдо денежных потоков на t-ом шаге определяет излишние денежные средства на t-ом шаге. Отрицательное - определяет недостающие денежные средства на t-ом шаге.

Необходимым критерием осуществимости инвестиций является положительность сальдо накопленных денежных потоков в любом временном интервале, в котором осуществляют затраты и получают доходы. Отрицательная величина сальдо накопленных денежных потоков свидетельствует о необходимости привлечения дополнительных собственных или заёмных средств и отражения этих средств в расчётах эффективности [14, с. 155].

Внутренняя норма доходности можно определить по следующей формуле [11, с. 206]

,

где IRR - внутренняя норам доходности;- ставка дисконтирования, при которой NPV < 0;- ставка дисконтирования, при которой NPV > 0;- чистый денежный поток отрицательный;- чистый денежный поток положительный.

В основу расчётов по оценке коммерческой эффективности открытия производства положены следующие предположения:

продолжительность периода планирования принята 3 года (6 полугодий (шагов));

в качестве шага планирования принято полугодие;

норма дисконта принята на уровне 20% в год, 10% в полугодие;

Коэффициент дисконтирования at рассчитаем по формуле (2).

a1 =1 / (1+0,1)0 =1,000

a2 = 1 / (1+0,1)1 = 0,909

a3 = 1 / (1+0,1)2 = 0,826

a4 = 1 / (1+0,1)3 = 0,751

a5 = 1 / (1+0,1)4 = 0,683

a6 = 1 / (1+0,1)5 = 0,621

Потребность в капитальных вложениях согласно проектно-сметной документации представлена в табл. 7.

Таблица 7 - Потребность в капитальных вложениях, тыс. руб.

Наименование показателей

Всего по проектно-сметной документации

Капитальные вложения, в т.ч.:

30 000

здание

4 217

оборудование

23 399

программное обеспечение MAGMASOFT

2 384


Источник средств на начало реализации проекта - кредит банка (коммерческий инновационный банк «Альфа-банк»). Сумма займа по кредиту составит 30 000 тыс. руб., срок займа - 3 года, ставка годовых 20%.

Поток денежных средств от инвестиционной деятельности представлен в табл. 8.

Таблица 8 - Поток денежных средств от инвестиционной деятельности, руб.

Инвестиционная деятельность (ИД)

(0) 1 полуг. 2013 г.

(1) 2 полуг. 2013 г.

(2) 1 полуг. 2014 г.

(3) 2 полуг. 2014 г.

(4) 1 полуг. 2015 г.

(5) 2 полуг. 2015 г.

Затраты для начала осуществления деятельности торгового отдела

30000000

0

0

0

0

0

Поток реальных средств ИД

30000000

0

0

0

0

0

Поток дисконтированных средств ИД

30000000

0

0

0

0

0

Поток дисконтированных средств ИД нарастающим итогом

30000000

30000000

30000000

30000000

30000000

30000000


Поток денежных средств от операционной деятельности в табл. 9.

Таблица 9 - Поток денежных средств от операционной деятельности, руб.

Операционная деятельность (ОД)

(0) 1 полуг. 2013 г.

(1) 2 полуг. 2013 г.

(2) 1 полуг. 2014 г.

(3) 2 полуг. 2014 г.

(4) 1 полуг. 2015 г.

(5) 2 полуг. 2015 г.

Выручка

50 400 000

57 600 000

64 800 000

72 000 000

79 200 000

93 600 000

Себестоимость в том числе:

44 657 043

51 865 006

55 472 969

59 080 932

62 688 895

70 541 858

- амортизация

1 481 481

1 444 444

1 407 407

1 370 370

1 333 333

1 296 296

- проценты за кредит 20%

-

3 000 000

2 400 000

1 800 000

1 200 000

600 000

Балансовая прибыль

5 742 957

5 734 994

9 327 031

12 919 068

16 511 105

23 058 142

Налог на прибыль 20%

1 148 591

1 146 999

1 865 406

2 583 814

3 302 221

4 611 628

Чистая прибыль

4 594 366

4 587 995

7 461 625

10 335 254

13 208 884

18 446 514

Поток реальных средств ОД

6 075 847

6 032 439

8 869 032

11 705 624

14 542 217

19 742 810

ДП для расчета ИП

6 075 847

6 032 439

8 869 032

11 705 624

14 542 217

19 742 810

Поток дисконтированных средств ОД

6 075 847

5 027 033

6 159 050

6 774 088

7 013 029

7 934 193

Поток дисконтированных средств ОД нарастающим итогом

6 075 847

11 102 880

17 261 930

24 036 018

31 049 047

38 983 240


Результаты инвестиционной и операционной деятельности представлены в табл. 10.

Таблица 10 - Результаты инвестиционной и операционной деятельности

Результаты ИД и ОД

(0) 1 полуг. 2013 г.

(1) 2 полуг. 2013 г.

(2) 1 полуг. 2014 г.

(3) 2 полуг. 2014 г.

(4) 1 полуг. 2015 г.

(5) 2 полуг. 2015 г.

Поток реальных средств ИД и ОД

-23 924 153

6 032 439

8 869 032

11 705 624

14 542 217

19 742 810

Поток дисконтированных средств ОД и ИД

-23 924 153

5 027 033

6 159 050

6 774 088

7 013 029

7 934 193

ЧДД

-23 924 153

-18 897 120

-12 738 070

-5 963 982

1 049 047

8 983 240


Поток денежных средств от финансовой деятельности представлен в табл. 11.

Финансовая деятельность

(0) 1 полуг. 2013 г.

(1) 2 полуг. 2013 г.

(2) 1 полуг. 2014 г.

(3) 2 полуг. 2014 г.

(4) 1 полуг. 2015 г.

(5) 2 полуг. 2015 г.

Собственный капитал

-

-

-

-

-

-

Кредит

30 000 000

-

-

-

-

-

Погашение кредита

-

6 000 000

6 000 000

6 000 000

6 000 000

6 000 000

Сальдо суммы кредита

30 000 000

24 000 000

18 000 000

12 000 000

6 000 000

0

Поток реальных средств ФД

30 000 000

-6 000 000

-6 000 000

-6 000 000

-6 000 000

-6 000 000


Баланс финансов представлен в табл. 12.

Таблица 12 - Баланс финансов

Баланс финансов

(0) 1 полуг. 2013 г.

(1) 2 полуг. 2013 г.

(2) 1 полуг. 2014 г.

(3) 2 полуг. 2014 г.

(4) 1 полуг. 2015 г.

(5) 2 полуг. 2015 г.

Сальда ден. потоков 3 видов деятельности

6 075 847

32 439

2 869 032

5 705 624

8 542 217

13 742 810

Накопленное сальдо 3-х видов деятельности

6 075 847

6 108 286

8 977 318

14 682 942

23 225 159

36 967 969

Показатели эффективности инвестиций (потоки реальных денежных средств, чистый дисконтированный доход, а так же накопленное за период сальдо трех видов деятельности) отражены в табл. 13 и на рис. 3.

Таблица 13 - Показатели эффективности инвестиций

Наименование

(0) 1 полуг. 2013 г.

(1) 2 полуг. 2013 г.

(2) 1 полуг. 2014 г.

(3) 2 полуг. 2014 г.

(4) 1 полуг. 2015 г.

(5) 2 полуг. 2015 г.

Поток реальных средств ИД

-30 000 000

-

-

-

-

-

Поток реальных средств ОД

6 075 847

6 032 439

8 869 032

11 705 624

14 542 217

19 742 810

Поток реальных средств ФД

30 000 000

-6 000 000

-6 000 000

-6 000 000

-6 000 000

-6 000 000

ЧДД

-23 924 153

-18 897 120

-12 738 070

-5 963 982

1 049 047

8 983 240

Накопленное сальдо 3-х видов деятельности

6 075 847

6 108 286

8 977 318

14 682 942

23 225 159

36 967 969


Рисунок 3 - Показатели эффективности инвестиций

Таким образом, можно сделать следующие выводы:

Чистый дисконтированный доход составит 8 983 240 руб.

Первоначальные инвестиции составят 30 000 000 руб.

Период окупаемости инвестиций - 4,3 полугод.

Индекс доходности - 1,3.

Внутренняя норма доходности - 57,3%.

Т.е. открытие нового производства в г. Новосибирск принесет ООО «Урал-Бэст» дополнительный доход в размере 8 983 240 за 3 года.

5. Разработка механизмов контроля соответствия принимаемых на фирме решений избранной стратегии

Риск и доход представляют собой две взаимосвязанные и взаимообусловленные финансовые категории. Под риском понимается возможная вероятность потерь, вытекающая из специфики тех или иных явлений природы и видов деятельности человека.

Как экономическая категория риск представляет собой возможность совершения события, которое может повлечь за собой три экономических результат: отрицательный (проигрыш, ущерб, убыток); нулевой; положительный (выигрыш, выгода, прибыль) [1].

Для определения чувствительности предложенных мероприятий к тем или иным изменениям, проведен анализ чувствительности, для чего спрогнозированы пессимистические и оптимистические значения основных переменных состояния среды [2].

Анализ чувствительности представлен в табл. 13.

Таблица 13 - Анализ чувствительности

Показатель

Пессимистический прогноз, среднее значение, оптимистический прогноз

NPV, тыс. руб.


П

С

О

Пессимистический прогноз

Среднее значение

Оптимистический прогноз

Объем продаж изменился на 10%, т

2610

2900

3190

417 782

8 983 240

17 548 697

Ставка дисконта изменилась на 10, %

30

20

10

6 571 974

8 983 240

11 394 506

Цена реализации изменилась на 10%, тыс. руб.

129600

144 000

158400

-11 886 909

8 983 240

29 853 388

Затраты изменились на 20%, тыс. руб.

420 664 335

355 269 663

289 874 991

-24 220 683

8 983 240

42 187 161

Налог на прибыль, %

30

20

15

4 812 778

8 983 240

11 068 469

Анализа чувствительности показал, что наибольшее влияние на деятельность предприятия оказывают затраты на производство и сбыт продукции, цена реализации, ставка дисконтирования и объем реализованной продукции. Основным сегментом целевого рынка являются цементные предприятия, поэтому существуют риски, связанные с экономическим спадом. Риски от пожаров, ураганов, хищений и других подобных обстоятельств, включая землетрясение, будут покрыты обычными стра­ховыми полисами. Возможны, однако, риски, связанные с различными источниками их возникновения.

Коммерческие риски:

риск, связанный с реализацией продукции (спрос на продукцию окажется меньше планируемого);

риск, связанный с перевозкой или транспортный риск (доставка продукции покупателю);

риск, связанный с приемкой продукции покупателем (отказ покупателя принимать товар по каким-либо причинам).

Политические риски:

риск, связанный с забастовками во время перевозки продукции покупателю.

Источники возникновения рисков:

недостаточная информация о спросе на данную продукцию;

недостаточный анализ рынка;

недооценка конкурентов;

падение спроса на данную продукцию.

Действие перечисленных рисков можно ограничить путем строгой проверки финансового положения и репутации будущего оптового клиента. Можно также хотя бы частично перекладывать риски на других партнеров (например, риск потери или повреждения продукции - на страховое общество). Также возможно застрахование оборудования, уплатив 10% от его балансовой стоимости. Таким образом, можно предложить программу развития предприятия (табл. 14).

Таблица 14 - Программа развития ООО «Урал-Бэст»

Этап программы

Период

Детальная проработка стратегии развития предприятия, получение кредита

01.06.2011 - 10.06.2011 гг.

Подготовка документов и приобретение производственного здания в г. Новосибирск

11.06.2011 - 24.06.2011 гг.

Проектирование производственного цеха

25.06.2011 - 20.07.2011 гг.

Приобретение оборудования, его страхование

21.07.2011 - 14.08.2011 гг.

Организация участка 3D-моделирования

15.08.2011 - 05.09.2011 гг.

Приобретение программного обеспечения MAGMASOFT для 3D-моделирования

06.09.2011 - 12.09.2011 гг.

Отбор и найм персонала

13.09.2011 - 13.11.2011 гг.

Монтаж оборудования, обучение персонала работы с оборудованием

14.11.2011 - 24.12.2011 гг.

Обучение персонала и внедрение MAGMASOFT на предприятии

15.11.2011 - 25.12.2011 гг.

Разработка программ повышения квалификации персонала

26.11.2011 - 26.12.2011 гг.

Разработка программ мотивации персонала

27.11.2011 - 31.12.2011 гг.

Осуществление производственной деятельности в г. Новосибирск

01.01.2012 - 01.01.2014 гг.


Резюмируя выше изложенное, необходимо сделать следующие выводы:

) основным мероприятием в рамках выбранной стратегии развития ООО «Урал-Бэст» - стратегии расширения границ рынка, станет организация производства в г. Новосибирск, основой которого станет жаропрочное литье.

) При жаропрочном литье изготавливаются изделия, которые могут обеспечить работы при температурах от 1000°С или в условиях, при воздействии агрессивных горячих сред. При этом к изделиям предъявляются особые требования - сохранение прочности при высокой температуре, способность выдерживать тысячи термоциклов без каких-либо деформаций, резкий неравномерный нагрев или охлаждение деталей. Поэтому в отношении непосредственно товара главной задачей ООО «Урал-Бэст» является поддержание стабильности качественных характеристик для привлечения и сохранения потребителей.

) Миссия ООО «Урал-Бэст» - удовлетворение неуклонно растущих требований потребителей на основе взаимовыгодного сотрудничества с поставщиками с учетом постоянного снижения негативного воздействия на окружающую среду и сохранения природных ресурсов, укрепление экономического потенциала предприятия и социального статуса персонала.

) Цель предприятия - увеличить рыночную долю до 35% к 2014 г. и стать лидером продаж жаропрочной продукции на рынке Сибирского федерального округа.

) Основной товарной целью является увеличение рыночной доли - это означает необходимость установления относительно невысокой цены на длительный период.

) Стратегия маркетинга применительно к показателям цены и качества товара - стратегия глубокого проникновения на рынок (высокое качество при низкой цене).

) Для организации производства потребуются первоначальные инвестиции в размере 30 000 000 руб. Инвестиции будут направлены на приобретение здания производственного назначения, необходимого оборудования и программного обеспечения, позволяющего снизить затраты ресурсов при изготовлении изделий. Источник финансирования - заемные средства в виде кредита банка. Ставка процента годовых - 20%, срок кредита - 3 г.

) Открытие нового производства в г. Новосибирск принесет ООО «Урал-Бэст» дополнительный доход в размере 8 983 240 за 3 года. Период окупаемости инвестиций - 2,3 г. Индекс доходности - 1,3. Внутренняя норма доходности - 57,3%. Таким образом, расширение границ рынка ООО «Урал-Бэст» путем открытия нового производства в г. Новосибирск является эффективным.

) Анализа чувствительности показал, что наибольшее влияние на деятельность предприятия оказывают затраты на производство и сбыт продукции и цена реализации. Поэтому данные параметры требуют особого контроля со стороны управляющего персонала.

) На основании изложенного была сформирована программа развития ООО «Урал-Бэст».

Заключение

В данной работе достигнута цель и решены поставленные задачи.

На основании теоретической части работы можно сформулировать следующие выводы.

Стратегия организации - это генеральная программа развития организации, определяющая приоритеты стратегических задач, методы привлечения и распределения ресурсов и последовательность шагов по достижению стратегических целей и в наибольшей степени соответствующая сложившемуся состоянию внутренней и внешней среды. Главная задача стратегии состоит в том, чтобы перевести организацию из ее настоящего состояния в желаемое руководством будущее состояние. Любая рациональная стратегия в конечном итоге направлена на развитие предприятия. Наиболее распространены четыре группы стратегий: интенсивного, интеграционного, диверсификационного роста и сокращения.

В практической части работы был проведен анализ структуры управления, финансово-экономического и стратегического положения ООО «Урал-Бэст», выявлены проблемы в деятельности предприятия.

В ООО «Урал-Бэст» функциональная структура управления, которую иногда называют традиционной или классической. Лучшим свидетельством того, насколько эффективна деятельность предприятия, является его финансовое положение (за последнее время) и стратегическое. Анализ баланса показал, что валюта баланса в 2011 году сократилась относительно 2010 года на 6,81%, что в абсолютном выражении составило 3469 тыс. руб. В 2011 г. предприятие не обладало абсолютной ликвидностью. Анализ платежеспособности при помощи финансовых коэффициентов показал, что значения коэффициентов меньше рекомендуемых (коэффициент автономии 0,27 и 025, коэффициент абсолютной ликвидности 0,08 и 0,05, срочной ликвидности 0,35 и 0,31, в 2010 и 2011 гг. соответственно), либо находятся на низком уровне (коэффициент текущей ликвидности 1,13 и 1,11, коэффициент задолженности 2,74 и 3,00, коэффициент самофинансирования 0,37 и 0,33, коэффициента маневренности -0,15 и -0,30 в 2010и 2011 гг. соответственно). О неустойчивом финансовом положении свидетельствует и высокое значение коэффициента напряженности (0,73 и 0,75 в 2010 и 2011 гг. соответственно). Показатели рентабельности в 2011 г. так же снизились.

Финансовая устойчивость соответствует третьему типу - «неустойчивое финансовое состояние». Возможность утраты платежеспособности была определена с помощью модели Альтмана. В результате чего было установлено, что ООО «Урал-Бэст» находится в зоне неведения, если не предпримет надлежащие меры, то угроза банкротства может стать более реальной (Z=1,58).

Проведенный PEST-, SWOT- и анализ отрасли по 5-факторной модели Портера показали, что в будущем следует ожидать усиления конкуренции на рынке и изменение структуры спроса в пользу высококачественной продукции. Поэтому необходима активная работа по привлечению новых клиентов и более эффективное использование ресурсов. Таким образом, финансовый анализ свидетельствует о неэффективной текущей деятельности предприятия, результатом которой является снижение объемов заказов и недостаток финансов. Увеличить рентабельность предприятия возможно за счет внедрения новой, прогрессивной технологии производства, улучшение качества подготовки кадрового состава, снижения себестоимости продукции, подготовки и освоения рынка в других регионах.

Результаты оценки стратегической позиции предприятия подтвердили результаты финансового анализа. Так стратегический анализ показал, что у предприятия имеются возможности для дальнейшего развития, за счет выхода на новые рынки сбыта. Таким образом, стратегией ООО «Урал-Бэст» стала стратегия расширения границ рынка. Основным мероприятием в рамках выбранной стратегии стала организация производства в г. Новосибирск, в основе которого лежит жаропрочное литье. При этом к жаропрочным изделиям предъявляются особые требования - сохранение прочности при высокой температуре, способность выдерживать тысячи термоциклов без каких-либо деформаций. Поэтому в отношении непосредственно товара главной задачей ООО «Урал-Бэст» является поддержание стабильности качественных характеристик для привлечения и сохранения потребителей.

Миссию ООО «Урал-Бэст» можно сформулировать как: удовлетворение неуклонно растущих требований потребителей на основе взаимовыгодного сотрудничества с поставщиками с учетом постоянного снижения негативного воздействия на окружающую среду и сохранения природных ресурсов, укрепление экономического потенциала предприятия и социального статуса персонала. Цель предприятия - увеличить рыночную долю до 35% к 2014 г. и стать лидером продаж жаропрочной продукции на рынке Сибирского федерального округа. Для организации производства потребуются первоначальные инвестиции в размере 30 000 000 руб. Инвестиции будут направлены на приобретение здания производственного назначения, необходимого оборудования и программного обеспечения, позволяющего снизить затраты ресурсов при изготовлении изделий. Источник финансирования - заемные средства в виде кредита банка. Ставка процента годовых - 20%, срок кредита - 3 года. Открытие нового производства в г. Новосибирск принесет ООО «Урал-Бэст» дополнительный доход в размере 8 983 240 за 3 года. Период окупаемости инвестиций - 2,3 г. Индекс доходности - 1,3. Внутренняя норма доходности - 57,3%. На основании изложенного была сформирована программа развития ООО «Урал-Бэст». Анализа чувствительности показал, что наибольшее влияние на деятельность предприятия оказывают затраты на производство и сбыт продукции и цена реализации. Поэтому данные параметры требуют особого контроля со стороны управляющего персонала.

Таким образом, расширение границ рынка ООО «Урал-Бэст» путем открытия нового производства в г. Новосибирск является эффективным.

БИБЛИОГРАФИЧЕСКИЙ СПИСОК

Аакер Д. Маркетинговые исследования. - СПб.: Питер, 2010. - 848 с.

Басовский Л.Е. Комплексный экономический анализ хозяйственной деятельности. - М.: Инфра-М, 2008. - 366 с.

Беляев В.И. Маркетинг: основы теории и практики. - М.: КНОРУС, 2010. - 672 с.

Винокуров В.А. Организация стратегического управления на предприятии. - М.: Центр экономики и маркетинга, 2009. - 160 с.

Виханский О.С. Стратегическое управление. - М: Гардарика, 2008. - 287 с.

Грушенко В.И. Стратегическое управление организацией. - Смоленск, СИБП, 2007. - 289 с.

Клифф Б. Стратегия на практике. - СПб.: Питер, 2007. - 256 с.

Стратегический менеджмент / Под ред. Петрова А.Н. - СПб.: Питер, 2011. - 496 с.

Фатхутдинов Р.А. Стратегический менеджмент. - М.: Дело, 2009. - 342 с.

Бородушко И. В., Васильева Э. К. Стратегическое планирование и контроллинг. - М.: Инфра, 2011. - 265 с.

Айвазян С.А. <#"604230.files/image007.gif">








Организационная структура управления предприятием ООО «Урал-Бэст»

Похожие работы на - Процесс стратегического управления организацией

 

Не нашли материал для своей работы?
Поможем написать уникальную работу
Без плагиата!
Без нейросетей!