Строительство резервуаров чистой воды

  • Вид работы:
    Курсовая работа (т)
  • Предмет:
    Строительство
  • Язык:
    Русский
    ,
    Формат файла:
    MS Word
    325,77 Кб
  • Опубликовано:
    2013-01-20
Вы можете узнать стоимость помощи в написании студенческой работы.
Помощь в написании работы, которую точно примут!

Строительство резервуаров чистой воды

Введение

Целью данного курсового проекта является закрепление теоретических знаний по разделам “Проект производства работ” и “Проектирование строительного генерального плана” из курса “Организация, планирование и управление строительством”.

Разработка проекта производства работ при курсовом проектировании имеет следующие учебные цели:

v приобретение умений принимать научно-обоснованные решения в области организации, технологии, управления и экономики строительства;

v  приобретение умений углубленно прорабатывать отдельные вопросы организации, планирования строительством до исследовательского уровня;

v  приобретение навыков разработки основных документов ППР.

При разработке строительного генерального плана необходимо руководствоваться последними решениями правительства, а также использовать прогрессивный опыт строительства в России и за рубежом. Кроме этого, необходимо учитывать климатические особенности района строительства объекта.

1. Анализ исходных данных

Разработан проект производства работ на возведение 4 круглых в плане резервуаров чистой воды, диаметром 18 м каждый, из сборных железобетонных конструкций. Достигнуты следующие цели

закрепление теоретических знаний, полученных при изучении курса «Организация, планирование и управление строительством», а также сопряженных дисциплин учебного плана;

приобретение умений принимать научно-обоснованные решения в области технологии и организации строительства;

приобретений умений углубленно прорабатывать отдельные вопросы технологии и организации до исследовательского уровня;

приобретение навыков разработки основных документов ППР.

Грунтовые условия, в которых будет выполняться строительство резервуаров чистой воды, оценивается и приводятся в форме табл. 1.

Таблица 1. Характеристика грунтовых условий

Наименование грунта

Плотность, кг/м3

Коэффициенты разрыхления

Крутизна откосов, 1:m

Группа грунта по степени сложности разработки



первоначального, Кпр

остаточного, Кор


бульдозером

экскаватором

вручную

Суглинок

1700

1,24

1,06

1:0,75

I

I

I


2. Обоснование решений по производству работ

При возведении резервуара, основными работами являются земляные, бетонные и монтажные работы, со сваркой и замоноличиванием стыков, устройством гидроизоляции и производством обратной засыпки. Для обеспечения высокого качества работ и заданного темпа строительства часть производства работ была организована поточным методом.

3. Номенклатура работ

I. Земляные работы

. предварительная планировка участка;

. разработка грунта котлована в отвал, в транспорт;

. отталкивание грунта бульдозером от бровки котлована;

. доработка грунта вручную до проектной отметки;

. устройство въездов в котлован и выездов из него;

. обратная засыпка сооружения грунтом;

. обвалование грунтом резервуара;

. отделка откосов обвалования;

II. Устройство днища

. устройство бетонной подготовки;

. устройство гидроизоляции по подготовке (оклеичная гидроизоляция);

III. Монтажные работы:

. установка подколонников;

. установка колонн;

. монтаж стеновых панелей;

. монтаж ригелей;

. монтаж панели покрытия;

. монтаж технологического оборудования резервуара.

IV. Прочие работы:

. внутренняя гидроизоляция (торкретирование);

. железнение;

. навивка арматурной стали;

. наружное торкретирование;

. обмазка битумом;

. испытание резервуара на утечки;

. дезинфекция

4. Способы производства работ

Перечень укрупненных видов работ, способы их производства с соблюдением требований СНиП по технике безопасности приводен в табл.2.

Таблица 2

Наименование вида работ

Машины, механизмы

Организация и технология работ

Техника безопасности. Требования к качеству работ

Земляные работы

Бульдозер ДЗ-42 Экскаватор ЭО-3311Г Автосамосвал МАЗ 500А

Разработке котлована предшествует срезка растительного слоя в пределах площади резерваров и складирования его вблизи котлована с целью последующей укладки на поверхность. Размеры котлована по дну назначены в зависимости от способа производства монтажных работ. Минимальное расстояние между откосами котлована и стенками сооружения составляет 1,0 м. Способы разработки котлована и планировки дна исключают нарушение естественной структуры грунта основания. Котлован защищен от попадания в него поверхностных вод с прилегающей территории путем устройства водоотводных канав. На дне котлована предусмотрены водосборные канавы и насос для удаления атмосферных осадков. Обратная засыпка котлована и насыпь выше естественной поверхности земли производится ранее вынутым грунтом, доставленным из отвала бульдозерами. Для засева многолетних трав поверхность насыпи покрывается слоем растительного грунта.

При выполнении земляных и других работ, связанных с размещением рабочих мест в выемках и траншеях, необходимо предусматривать мероприятия по предупреждению воздействия на работников следующих опасных и вредных производственных факторов, связанных с характером работы: обрушающиеся горные породы (грунты); падающие предметы (куски породы); движущиеся машины и их рабочие органы, а также передвигаемые ими предметы; расположение рабочего места вблизи перепада по высоте 1,3 м и более; повышенное напряжение в электрической цепи, замыкание которой может произойти через тело человека; химически опасные и вредные производственные факторы. Производство земляных работ в охранной зоне кабелей высокого напряжения, действующего газопровода, других коммуникаций, а также на участках с возможным патогенным заражением почвы (свалки, скотомогильники, кладбище и т.п.) необходимо осуществлять по наряду-допуску после получения разрешения от организации, эксплуатирующей эти коммуникации или органа санитарного надзора. Производство работ в этих условиях следует осуществлять под непосредственным наблюдением руководителя работ, а в охранной зоне кабелей, находящихся под напряжением, или действующих газопроводов, кроме того, под наблюдением работников организаций, эксплуатирующих эти коммуникации. Разработка грунта в непосредственной близости от действующих подземных коммуникаций допускается только при помощи лопат, без помощи ударных инструментов. Применение землеройных машин в местах пересечения выемок с действующими коммуникациями, не защищенными от механических повреждений, разрешается по согласованию с организациями - владельцами коммуникаций. В случае обнаружения в процессе производства земляных работ не указанных в проекте коммуникаций, подземных сооружений или взрывоопасных материалов земляные работы должны быть приостановлены, до получения разрешения соответствующих органов.

Устройство щебеночной и бетонной подготовки


Бетонная подготовка под днище резервуаров устраивается по предварительно спланированному дну котлована. Способ подачи бетонной смеси при бетонировании подготовки гарантирует сохранение требуемой плотности грунта основания. Для создания благоприятных условий твердения бетона поверхность подготовки поливается водой.


Устройство монолитного днища

Кран, Вибраторы глубинные

Перед началом бетонирования днища установленная опалубка и арматура. Бетонирование днища производится непрерывно параллельными полосами без образования швов. Ширина полос принята с учетом возможного темпа бетонирования и необходимости сопряжения вновь укладываемого бетона с ранее уложенным до начала схватывания последнего. Бетонирование утолщений днища под колоннами производится с помощью переносной опалубки. В период производства бетонных работ на стройплощадке организован постоянный технический контроль за транспортом, укладкой и уплотнением бетонной смеси, а так же по уходу за бетоном.

При приготовлении, подаче, укладке и уходе за бетоном, заготовке и установке арматуры, а также установке и разборке опалубки (далее - выполнении бетонных работ) необходимо предусматривать мероприятия по предупреждению воздействия на работников опасных и вредных производственных факторов, связанных с характером работы: расположение рабочих мест вблизи перепада по высоте 1,3 м и более; движущиеся машины и передвигаемые ими предметы; обрушение элементов конструкций; шум и вибрация; повышенное напряжение в электрической цепи, замыкание которой может произойти через тело человека. При наличии опасных и вредных производственных факторов, указанных в, безопасность бетонных работ должна быть обеспечена на основе выполнения содержащихся в организационно-технологической документации (ПОС, ППР и др.) следующих решений по охране труда: определение средств механизации для приготовления, транспортирования, подачи и укладки бетона; определение несущей способности и разработка проекта опалубки, а также последовательности ее установки и порядка разборки; разработка мероприятий и средств по обеспечению безопасности рабочих мест на высоте; разработка мероприятий и средств по уходу за бетоном в холодное и теплое время года. Цемент необходимо хранить в силосах, бункерах, ларях и других закрытых емкостях, принимая меры против распыления в процессе загрузки и выгрузки. Загрузочные отверстия должны быть закрыты защитными решетками, а люки в защитных решетках закрыты на замок.

Транспортирование, складирование и приемка железобетонных изделий


Доставка изделий на стройплощадку с завода производится автомашинами с полуприцепами. Все элементы укладываются в кузов полуприцепа на деревянные прокладки. Прокладки всех вышележащих рядов расположены строго одна над другой.

Приемка железобетонных изделий, доставленных на стройплощадку, производится с соблюдением следующих требований: все изделия должны иметь маркировку и паспорта, а также клеймо ОТК предприятия изготовителя; на каждую партию однотипных изделий завод изготовитель должен представить акты испытаний контрольных образцов бетона в соответствии с ГОСТ 7473-61; изделия не должны иметь внешних дефектов и повреждений (раковин, трещин, обнажений арматуры, нарушенной толщины защитного слоя); стальные закладные детали должны быть установлены точно по проекту, и иметь качественную антикоррозийную защиту; изделия должны иметь осевые риски, обеспечивающие их правильную установку в проектное положение.

Монтаж сборных конструкций

Кран МПК-50

К монтажу сборных конструкций разрешено приступать по достижении бетоном днища 70% проектной прочности. Для производства подъема подъемно-транспортных операций используется кран МПК-50. Для заезда крана в котлован днище предварительно устилают дорожными железобетонными плитами, уложенными на слое песка толщиной 20-25 см. Перед установкой сборных элементов на место, отметки опорных площадок подлежат проверке геодезическими инструментами. Колонны и стеновые панели, установленные на проектное место по отвесу, закрепляются путем сварки закладных деталей. Сварка всех закладных деталей и приварка арматурных стержней производится электродами Э-500 по ГОСТ 9467-60. По окончании сварочных работ, до устройства антикоррозийного покрытия, сварные швы подлежат приемке представителем заказчика с составлением соответствующего акта. Нанесение антикоррозийного покрытия на сварные швы и места повреждения уже существовавшей антикоррозийной защиты, а также замоноличивание сварных соединений бетоном производится после проверки качества сварных швов.

При монтаже железобетонных и стальных элементов конструкций, трубопроводов и оборудования (далее - выполнении монтажных работ) необходимо предусматривать мероприятия по предупреждению воздействия на работников следующих опасных и вредных производственных факторов, связанных с характером работы: расположение рабочих мест вблизи перепада по высоте 1,3 м и более; передвигающиеся конструкции, грузы; обрушение незакрепленных элементов конструкций зданий и сооружений; падение вышерасположенных материалов, инструмента; опрокидывание машин, падение их частей; повышенное напряжение в электрической цепи, замыкание которой может произойти через тело человека. При наличии опасных и вредных производственных факторов, указанных в безопасность монтажных работ должна быть обеспечена на основе выполнения содержащихся в организационно-технологической документации (ПОС, ППР и др.) следующих решений по охране труда: определение марки крана, места установки и опасных зон при его работе; обеспечение безопасности рабочих мест на высоте; определение последовательности установки конструкций; обеспечение устойчивости конструкций и частей здания в процессе сборки; определение схем и способов укрупнительной сборки элементов конструкций. На участке (захватке), где ведутся монтажные работы, не допускается выполнение других работ и нахождение посторонних лиц. При возведении зданий и сооружений запрещается выполнять работы, связанные с нахождением людей в одной захватке (участке) на этажах (ярусах), над которыми производится перемещение, установка и временное закрепление элементов сборных конструкций и оборудования.

Внутреннее торкретирование и железнение

Цемент-пушка

Производят после замоноличивания стыков и навивки арматуры, торкретированию подлежат только поверхности замоноличенных вертикальных и кольцевых стыков панелей, а также самого днища. Наносить торкрет -раствор следует снизу вверх, во избежание попадания брызг на подлежащую торкретированию поверхность, и слоями не более 15мм.Выполненное торкретное покрытие не должно иметь видимых усадочных трещин и при простукивании не должно издавать глухого звука. Сразу после достижения торкретным покрытием 70% прочности стыки и днище железнят.


Гидравлическое испытание


Испытание резервуаров на прочность и непроницаемость производится путем заполнения его водой до заданной отметки. Первый замер уровня воды производится через двое суток после окончания залива, второй замер - через сутки после первого. Пригодность для эксплуатации определяется величиной потерь воды: за сутки не превышающих 3-х литров на 1 м2 смачиваемой поверхности при условии, что струйные утечки не допускаются. При появлении течи испытание прекращается и возобновляется повторно после ремонта дефектных мест.


Наружное торкретирование и гидроизоляция

Цемент-пушка СБ-13

Торкретное покрытие толщиной 7…10мм на поверхность наносят снизу вверх при перемещении рабочих и механизмов по периметру. Работы по торкретированию наружной поверхности выполняют с передвижных подмостей. Применяемые цемент-пушки размещают за пределами сооружения, так, что бы радиус действия каждой из них не превышал 30..40мм. С наружной стороны сооружения выполняют обмазочную гидроизоляцию на основе битумных материалов. Наилучшее ее качество обеспечивается при механизированном нанесении на хорошо высушенные поверхности.



5 Подсчет объемов работ, трудоемкости и машиноемкости работ. Формирование бригад

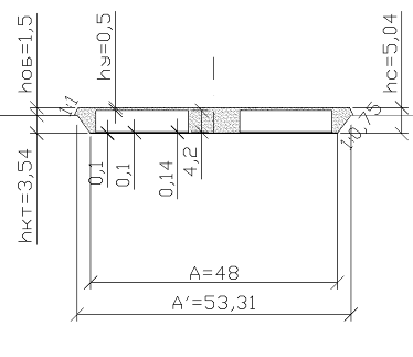
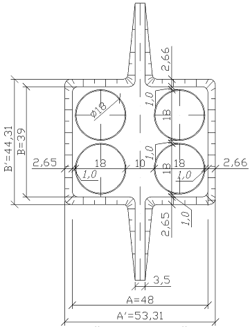
Расчет размеров котлована под резервуары.

Глубина котлована

                                                                               (1)

где hн - высота заложения резервуара, м; hп - высота слоя бетонной подготовки, м; hщ - высота слоя щебеночной подготовки.

 м.

Размер ширины котлована по низу

                                                                                     (2)

где DРЧВ - диаметр резервуара, м.

 м.

Размер длины котлована по низу

                                                                         (3)

где DРЧВ - диаметр резервуара, м.

 м.

Размер ширины котлована по верху

                                                                                     (4)

где m - коэффициент заложения откоса.

 м.

Размер длины котлована по верху

, (5)

 м.

На рис. 1 и 2 представлены продольный разрез и план котлована соответственно.

Рис. 1 План котлована

Рис. 2 Продольный разрез котлована

Расчет объема котлована

Объем котлована

                                                                                     (8)

где Fктд - площадь днища котлована,

                                                                                    (9)

Fктв - площадь котлована по верху,

                                                                                    (10)

 м2,

м2,

 м3.

Расчет геометрического объема резервуаров.

Объем частей резервуаров заглубленных в грунт

                                                                               (11)

м3.

Объем верхних частей резервуаров

                                                                            (12)

где hв - высота верхней части резервуаров, м.

 м3.

Расчет объема обвалования

Объем обвалования

                                                                        (13)

где Fобвн - площадь нижней части обвалования

                                                                    (14)

Fобвв - площадь верхней части обвалования

                                                    (15)

где h- высота обвалования, равная 1,5м.

 м2,

м2,

 м3.

Расчет объема грунта для устройства подъездных дорог

                                                                            (17)

где n - количество дорог; lд - длина дороги, определяемая по формуле

                                                                                            (18)

,12 - уклон дороги, bд - ширина дороги, м.

 м3.

План устройства подъездных дорог представлен на рис. 3.2.

Объем грунта, разрабатываемого экскаватором на вымет

                                                                           (19)

где  - объем грунта для обратной засыпки котлована,

                                                               (20)

 - объем грунта для обвалования

                                                                              (21)

 - объем грунта для обратной засыпки подъездных дорог,

                                                                                          (22)

Кор - коэффициент остаточного разрыхления.

 м3,

 м3,

 м3,

 м3.

Объем грунта, разрабатываемого экскаватором в транспорт

                                                                       (23)

 м3.

Объем грунта, разрабатываемого при доработке дна котлована вручную

                                                                    (24)

 м,

 м,

м3.

Расчет параметров отвалов грунта на вымет.

Ширина отвала по верху

                                                                        (25)

где n - количество отвалов; hот - высота отвала, м; В´- длина отвала.

м.

Ширина отвала по низу

                                                                         (26)

 м.

Определение требуемых параметров землеройных машин.

Атрбквш - требуемая наружная ширина ковша;

hтрбкоп - требуемая глубина копания;

Нтрбвгр - требуемая высота выгрузки.

Атрбквш ≤ Вк =48                                                                        (27)

hтрбкоп ≥ hкт =3,54                                                                      (28)

Нтрбвгр ≥ h0 =2,5                                                                         (29)

Выбор марки экскаватора

По требуемым параметрам из [5] подбираем марку экскаватора обратная лопата ЭО-3311Г.

«Размерные параметры»:

Объем ковша - Vквш=0,4 м3;

Ширина ковша наружная - Аквш=0,94 м;

Длина рукояти - Lр=2,3 м;

Наибольшая глубина копания

траншеи hкоптр=4м,

котлована hкопктл=4м;

Наибольший радиус копания на уровне стоянки - R=7,8 м;

Радиус выгрузки конечный - R2 =6,8м;

Высота выгрузки начальная - H1 =3,05м.

«Технические характеристики»:

Сменное рабочее оборудование - обратная лопата, драглайн, грейфер, кран;

Ходовое устройство - пневматическая колея, К=1,95м, размер шин 12х12дюймов;

Радиус хвостовой части платформы - Rх =2,7м;

Расстояние от оси пяты стрелы до оси вращения - А=0,75 м;

Ширина поворотной платформы - В=2,5м;

Высота

до оси пяты стелы - Н=1,07м;

до верха кабины кузова - Н1=2,7м;

База - Б=2,8м;

Колея - К=2,24м;

Расчет максимальной ширины забоя

                                                                            (30)

где Lпер - расстояние передвижки экскаватора.

                                                                       (31)

Расчет ширины проходки экскаватора

(32)

                  (33)

Проходка зигзагообразная, с расположением отвалов грунта по обе стороны от котлована.

Определение требуемых параметров кранов:

Нтр - требуемая высота подъема крюка;

Втр - требуемый вылет стрелы;

Lтр - требуемая длина стрелы;

Qтр - требуемая грузоподъемность.

Расчет параметров крана для стеновых панелей и колонн.

   (34)

где hз=0,5м - высота забоя; hс=1м - высота строповки; hп=2,5м - высота полиспаста в стянутом положении; hэ=4,2м - высота монтируемого элемента (стеновая панель).

                                                 (35)

      (36)

                  (37)

По требуемым параметрам подобрали пневмоколесный кран МПК-50. Длина стрелы 23м;

Расчет параметров крана для панелей покрытия


Рис. 3. Грузоподъемность крана МПК-50 при стреле длинной 23 м; высота подъема

Таблица 3. Ведомость объемов работ

№ п/п

Наименование работ

Ед. изм.

Объем работ

Максимальная масса грузового элемента




На захватку

На объект


1

Предварительна планировка участка бульдозером ДЗ-42

1000м²

11,76

11,76


2

Разработка грунта экскаватором ЭО-3311Г на вымет

1000м³

6,17

6,17


3

Тоже в транспорт

1000м³

1,69

1,69


4

Разработка грунта вручную до отметки

100м³

3,18

3,18


5

Перемещение грунта бульдозером ДЗ-42 на расстояние 30м

1000м³

3,086

6,173


6

Устройство щебеночного покрытия

100м³

1,88

1,88


7

Устройство бетонной подготовки под днище резервуаров

100м³

1,89

1,89


8

Устройство оклеичной гидроизоляции вручную под днище

100м²

2,54

10,16


9

Бетонирование днища

100м³

0,356

1,42


10

Установка фундаментов под колонны

100м³

0,0378

0,1512


11

Установка колонн

100шт

0,05

0,2


12

Установка ригелей

100м³

0,374

1,5


13

Установка панелей стен

100м³

0,3

1,2


14

Устройство монолитного ж/б участка стен

100м³

0,12

0,48


15

Обмазочная гидроизоляция внутренних стен на высоту 1 м

100м²

0,565

2,26


16

Обмазочная гидроизоляция наружных стен

100м²

2,4

9,6


17

Торкретирование

100м²

4,8

38,4


18

Железнение внутренней поверхности

100м²

2,4

9,6


19

Укладка плит покрытий

100шт

0,08

0,32


20

Устройство монолитного ж/б участка плит покрытия

100м³

0,6


21

Устройство цементной стяжки плит покрытий

100м²

2,54

10,16


22

Устройство оклеечной гидроизоляции по покрытию

100м²

2,54

10,16


23

Навивка арматурной стали

2,02

8,08


24

Установка стальных лестниц

0,5

2,0


25

Монтаж технических трубопроводов

100м

0,05

0,2


26

Испытание емкости на водонепроницаемость

100м³

10,68

42,72


27

Дезинфекция емкости для питьевой воды

100м³

10,68

42,72


28

Механизированная обратная засыпка котлована бульдозером ДЗ-42 с расстоянием перемещения грунта на 30 м

1000м³

6,173

6,173


29

Уплотнение обвалования вибрационной плитой SVP31,5 с толщиной уплотняемого слоя 0,5м

100м³

3,44

13,76


30

Окончательная планировка участка бульдозером ДЗ-42

1000м²

10,74

10,74


31

Укрепление откосов земляных сооружений посевом многолетних трав

100м²

25,0

25,0



Таблица 4. Спецификация сборных элементов

№ п/п

Наименование элементов

Ссылка на каталожный шифр

Объем бетона в одном элементе, м³

Масса элемента, т

Количество, шт.

Наибольшая масса элемента, т

1

Фундамент под колонны ФЕ1-1


0,756

1,4

5


2

Колонны КЕ2-1


0,77

2,1

5


3

Ригели Б3-1А


3,12

4,1

12


4

Плиты покрытия с люком Ø1100, ПП-1


1,95

4,6

1


5

Плиты покрытия с люком Ø300, ПП-2


2,0

4,8

1


6

Плиты покрытия, ПП-3


2,1

5,0

6

5,0

7

Панели стеновые для цилиндрических сооружений ПСЦ3-42-1


1,045

4,1

27



Расчет потребности в материальных ресурсах выполнен на основании определенных объемов работ и сметных норм расхода строительных материалов (ГЭСН), сведен в табл. 5.

Таблица 5. Расчет потребности в материалах по видам работ

№ п/п

Наименование работ

Ед. изм.

Объем работ

Расчет потребности





Шифр ГЭСН

Наименов. материалов

Ед. изм.

Норма расхода на ед.

Расход на объем

1

Устройство щебеночного покрытия

100м³

1,88

11-01-013-03

Щебень из природного камня для строительных работ фракции 5-10 мм

м3

1,84

3,46






Щебень из природного камня для строительных работ фракции 10-20 мм

м3

0,92

1,73






Щебень из природного камня для строительных работ фракции 20-40 мм

м3

2,98

5,6






Битумы нефтяные дорожные жидкие класс МГ и СГ

т

1,24

2,33

2

Устройство бетонной подготовки под днище резервуаров

100м³

1,89

06-01-001-1

Бетон (класс по проекту)

м3

102

192,8






Вода

м3

20

37,8






Рогожа

м2

250

472,5

3

Устройство оклеичной гидроизоляции вручную под днище

100м²

10,16

12-02-001-02

Гидроизоляционные рулонные материалы

м2

117

1188,7






Мастика битумная кровельная горячая

т

0,244

2,48

4

Бетонирование днища

100м³

1,42

06-01-064-6

Лесоматериалы круглые хвойных пород для строительства длиной 3-6.5 м, диаметром 14-24 см

м3

2,56

3,64






Пиломатериалы хвойных пород. Доски обрезные длиной 4-6.5 м, шириной 75-150 мм, толщиной 25 мм III сорта

м3

4,6

6,53






Пиломатериалы хвойных пород. Доски обрезные длиной 4-6.5 м, шириной 75-150 мм, толщиной 44 мм и более III сорта

м3

1,3

1,85






Арматура

т

12,3

17,47






Бетон песчаный, класс В 15 (М200)

м3

101,5

144,13






Гвозди строительные

т

0,22

0,31






Известь строительная негашеная комовая, сорт 1

т

0,103

0,15






Вода

м3

0,31

0,44

5

Установка фундаментов под колонны

100м³

0,1512

06-01-001-5

Бетон (класс по проекту)

м3

101,5

15,3






Вода

м3

0,441

0,07






Рогожа

м2

153

23,1






Пиломатериалы хвойных пород. Доски обрезные длиной 4-6.5 м, шириной 75-150 мм, толщиной 44 мм и более III сорта

м3

0,74

0,11






Щиты из досок толщиной 25 мм

м2

64,1

9,7






Арматура

т

4,5

0,68

6

Установка колонн

100 шт.

0,2

07-05-004-1

Конструкции сборные железобетонные

шт.

100

20






Бетон (класс по проекту)

м3

6,42

1,3

7

Установка ригелей

100м³

1,5

07-04-003-1

Конструкции сборные железобетонные

м3

100

150






Бетон (класс по проекту)

м3

5,72

8,58






Кислород технический газообразный

м3

13,5

20,25

8

Установка панелей стен

100м³

1,2

07-02-001-2

Конструкции сборные железобетонные

м3

100

120






Бетон (класс по проекту)

м3

23,9

28,68






Раствор готовый кладочный цементный, марка 300

м3

3

3,6






Песок для строительных работ природный

м3

12

14,4

9

Устройство монолитного ж/б участка стен

100м³

0,48

06-01-024-6

Арматура

т

12,9

6,2






Бетон (класс по проекту)

м3

101,5

48,72






Щиты из досок толщиной 25 мм

м²

103

49,44

10

Обмазочная гидроизоляция внутренних и наружных стен

100м²

11,86

12-02-002-02

Мастика битумная кровельная

т

0,244

2,9

11

Торкретирование

100м²

38,4

06-01-067-2

Песок для строительных работ природный обогащенный

м3

5,85

224,6






Ветошь

кг

5

192






Портландцемент общестроительного назначения бездобавочный марки 400

т

1,1

42,24






Вода

м3

2

76,8

12

Железнение внутренней поверхности

100м²

9,6

06-01-067-4

Ветошь

кг

5

48






Вода

м3

0,5

4,8

13

Укладка плит покрытия

100 шт.

0,32

07-02-003-8

Конструкции сборные железобетонные

шт.

100

32

14

100м³

0,6

06-01-024-6

Арматура

т

12,9

7,74






Бетон (класс по проекту)

м3

101,5

60,9






Щиты из досок толщиной 25 мм

м²

103

61,8

15

Устройство цементной стяжки плит покрытия

100м²

10,16

11-01-011-01

Раствор готовый кладочный цементный

м3

2,04

20,73






Вода

м3

3,5

35,56

16

Устройство оклеечной гидроизоляции по покрытию

100м²

10,16

12-02-001-02

Гидроизоляционные рулонные материалы

м²

117

1188,7






Мастика битумная кровельная горячая

т

0,244

2,48

17

Навивка арматурной стали

8,08

06-01-069-1

Арматура

т

1

8,08










18

Установка стальных лестниц

2,0

07-01-044-4

Конструктивные элементы вспомогательного назначения, с преобладанием профильного проката собираемые из двух и более деталей, с отверстиями и без отверстий, соединяемые на сварке

т

1

2,0

19

Монтаж технических трубопроводов

100м

0,2

12-01-165-03

Вода

м3

21,9

4,4

20

Испытание емкости на водоне Проницаемость + дезинфекция

100м³

42,72

06-01-071-1

Вода

м3

457

19523

21

Укрепление откосов земляных сооружений посевом многолетних трав

100м²

25,0

01-02-040-1

Земля растительная

м3

13,6

340






Семена трав

кг

1,2

30











Таблица 6. Общая потребность в материалах на объект

№ п/п

Наименование материалов

Единица измерения

Количество

1

2

3

4

1

Щебень из природного камня для строительных работ фракции 5-10 мм

м³

3,46

2

Щебень из природного камня для строительных работ фракции 10-20 мм

м³

1,73

3

Щебень из природного камня для строительных работ фракции 20-40 мм

м³

5,6

4

Битумы нефтяные дорожные жидкие класс МГ и СГ

т

2,33

5

Бетон

м³

500,41

6

Вода

м³

19682,87

7

Рогожа

т

495,6

8

Гидроизоляционные рулонные материалы

м²

2377,4

9

Мастика битумная кровельная горячая

т

7,86

10

Лесоматериалы круглые хвойных пород

м³

3,64

11

Пиломатериалы хвойных пород

м³

129,43

12

Арматура

т

40,17

13

Гвозди строительные

т

0,31

14

Известь строительная негашеная комовая, сорт 1

т

0,15

15

Кислород технический газообразный

м²

20,25

16

Раствор готовый кладочный цементный, марка 300

м³

24,33

17

Песок для строительных работ природный

м³

239

18

Ветошь

кг

240

19

Портландцемент марки 400

т

42,24

20

Элементы профильного проката

т

2

21

Земля растительная

м³

340

22

Семена трав

кг

30

23

Колонны

шт.

20

24

Ригели

шт.

48

25

Панели стен

шт.

108

26

Плиты покрытия

шт.

32






6. Календарное планирование

.1 Обоснование календарного плана возведения объекта

Для определения параметров специализированных потоков составляем табл. 7 «Структура и расчет продолжительности работ объектного потока», а затем на основании этой таблицы составляем матрицу, с учетом технологических перерывов. При его составлении были учтены технологические перерывы. Первый технологический перерыв на твердение и просушку бетонной подготовки под днище и выравнивающей цементной стяжки, длительность перерыва 1 сутки. Второй технологический перерыв, продолжительностью 2 суток, назначаем после бетонирования днища. Третий технологический перерыв нужен после нанесения торкрет-покрытия. Прочность этих элементов достигается за 1 сутки. Календарный план представлен на листе 2.

Таблица 7

Структура и расчет продолжительности работ объектного потока

№ п/п

Специализированные потоки

Нормативные

Бригада

Машины

Планируемые, чел.-дн, Трп

Сменность, Ксм

Продолжительность работ, дн, t

%



труд, чел.-дн, Трн

машинного времени, маш.-см

Профессия

Количество рабочих, N

Наименование

Количество





1

Предварительна планировка участка бульдозером ДЗ-42

.- 0,56

0,56

Машинист

1

Бульдозер ДЗ-42

1

1

1

1

56

2

Разработка грунта эксковатором ЭО-3311Г на вымет и в транспорт

10,56 22,95

22,95

Машинист

2

Эксков. ЭО-3311Г

2

32

1

16

105













3

Разработка грунта вручную до отметки

88,64 .-

.-

Землекоп

5



80

1

16

111

4

Перемещение грунта бульдозером ДЗ-42 на расстояние 30 м

23,81 23,81

23,81

Машинист

2

Бульдозер ДЗ-42

2

32

1

16

148

5

Устройство щебеночного покрытия и устройство бетонной подготовки под днище резервуаров

49,2 5,03

17,59

Монтажник

4



48

1

12

113













6

Устройство оклеечной гидроизоляции вручную под днище

49,4 2,13

4,67

Гидроизолировщик

4



48

1

12

107

7

Бетонирование днища

335,5 26,84

44,17

Бетонщи, арматурщик,плотник

8

Бетононасос

1

256

2

16

141

8

Установка фундаментов под колонны и установка колонн

27,23 3,0

4,86

Монтажникмашинист

4

Пневмокран МПК-50

1

32

1

8

95













9

Установка ригелей

142,9 6,13

70,35

Монтажник, машинист

6

Пневмокран МПК-50

1

144

2

12

104

10

Установка панелей стен

128,5 27,1

63,12

Монтажник, машинист

4

Пневмокран МПК-50

1

128

2

16

122

11

Устройство монолитно ж/б участка панелей стен

65,08 2,75

12,68

Бетонщик

2



64

2

16

106

12

Обмазочная гидроизоляция внутренних стен на высоту 1 м и обмазочная гидроизоляция наружных стен

44,33 2,08

Гидроизолировщик

2



40

1

20

116













13

Торкретирование

558,1 118,6

346,90

Штукатур, машинист

12



480

2

20

140

14

Железнение внутренней поверхности

34,68 0,04

0,04

Бетонщик

2



32

1

16

109

15

Укладка плит покрытия и устройство монолитно ж/б участка плит покрытия

89,89 4,59

17,02

Монтажник, машинист, бетонщик

4

Пневмокран МПК-50

1

80

1

20

118













16

Устройство цементной стяжки плит покрытия и устройство окрасочной изоляции по покрытию

99,58 3,74

17,80

Монтажник, гидроизолировщик

6



96

1

16

107













17

Навивка арматурной стали и установка стальных лестниц и монтаж технологического оборудования

26,63 0,77

13,62

Арматурщик, машинист, рабочий

3

Навивочная машина АНМ-5 - 1

1

24

1

8

114

























18

Испытание емкости на водонепроницаемость

42,03 0,48

0,48

Рабочий

2



48

1

24

88

19

Дезинфекция емкости для питьевой воды

88,11 0,16

0,16

Рабочий

4



96

2

12

92

20

Механизированная обратная засыпка котлована бульдозером ДЗ-42 с расстоянием перемещения грунта на 30 м

.- 22,3

22,30

Машинист

2

Бульдозер ДЗ-42

2

16

1

8

139

21

Уплотнение обвалования вибрационной плитой SVP31,5 с толщиной уплотняемого слоя 0,5м

21,55 5,23

26,18

Машинист

4

Виброплита SVP31,5

2

24

1

6

112

22

Окончательная планировка участка бульдозером ДЗ-42

.- 0,56

0,56

Машинист

1

Бульдозер ДЗ-42

1

1

1

1

56

23

Укрепление откосов земляных сооружений посевом многолетних трав

103,7 .-

11,41

Машинист

8



96

2

6

108


.2 Обоснование плана производства работ по объекту

Данный план выполнен в виде линейного графика и приведен на листе 2. Табличная форма плана производства работ приведена в табл. 9. Объемы работ определяют по рабочей документации и сметам

Численность смен при использовании основных машин число смен работы принимают не менее 2. Работы без применения машин, как правило, должны вестись в одну смену. Для профессий, не обеспеченных полной загрузкой из-за незначительного объема работ, проведено совмещение профессий - монтажника и плотника, плотника и бетонщика. Продолжительность рассчитывалась по формуле

t = Трн / ( N * Ксм)

.3 Обоснование графика движения основных строительных материалов

График поступления на объект строительных конструкций, изделий, материалов и оборудования представлен на листе 2.

Таблица 8. Потребность в строительных конструкциях, изделиях, материалах и оборудовании

Наименование ресурсов

Единица измерения

Общая потребность

Суточная потребность

Арматура

т

40,2

0,65

Гидроизоляционные рулонные материалы

м2

2377

84,9

Колонны

шт

20

2,5

Мастика битумная

т

8

0,17

Панели стен

шт

108

6,75

Пиломатериалы

м³

129

2,08

Плиты покрытия

шт

32

1,6

Портландцемент

т

42

2,1

Ригели

шт

48

4

Щебень

м³

6

0,5


Таблица 9. Календарный плана производства работ по объекту


6.4 Обоснование графика движения рабочих кадров по объекту

График движения рабочих кадров по объекту представлен на листе 2.

Таблица 10. Профессия и численность рабочих

Наименование профессий рабочих

Численность рабочих

Машинист

11

Землекоп

5

Монтажник

24

Гидроизолировщик

7

Бетонщик

6

Арматурщик

7

Плотник

4

Штукатур

12

Разнорабочие

9


.5 Обоснование графика движения основных строительных машин по объекту

График движения основных строительных машин по объекту представлен на листе 2.

Таблица 11. Движение основных строительных машин по объекту

Наименование, марка

Колво

Основные технические характеристики

Мощность двигателей, кВт

Даты пребывания на объекте

Бульдозер ДЗ-42

1

Неповоротный отвал, гидравлическое управление, масса оборудования 1,07 т

54 (75)

1-17; 131-138; 140

Экскаватор ЭО-3311Г

2

Механическое управление, V ковша 0,4, наибольшая глубина копания 6,2м, масса 12,5 т

37

2-17

Автосамосвал МАЗ-500А

1

Объем кузова 5,0

132

2-17

Бетононасос

1

-

-

32-47

Кран МПК-50

3

Пневмоколесный, длина стрелы 23м, максимальная грузоподъемность 18т


44-64; 84-103

Навивочная машина

1



102-109

Виброплита SVP31,5

2

Толщина уплотняемого слоя 0,35 м

-

135-139


7 Проектирование строительного генерального плана

.1 Определение стоянок кранов, схем их проходок с указанием зон их действия и опасных зон

Монтаж железобетонных конструкций ведется стреловым краном марки МПК-50 на пневмоколесном ходу, как со дна, так и с бровки котлована.

Опасные зоны крана рассчитываем по следующим формулам.

Для монтажа панелей стен

Радиус зоны обслуживания крана (рабочая зона)

                                                                                           (38)

где Rmax - максимальный рабочий вылет стрелы крана, м.

.

Зона перемещения груза

                                                                              (39)

где lmax - длина (ширина, высота) перемещаемого груза, м.

Опасная зона работы крана

                                                                      (40)

где lбез - дополнительное расстояние для безопасной работы.

.

Опасные зоны на строительной площадке обозначены флажками и выделены штриховкой.

.2 Проектирование временных подъездных дорог и проездов

На данной строительной площадке дороги в основном используются автомобильным транспортом, для внутрипостроечных перевозок конструкций, материалов и различного оборудования. Для удобства транспортирования запроектирована кольцевая дорога, которая охватывает весь строящийся объект по периметру, а так же зону бытового городка и складские зоны. Кольцевая дорога является временной двустороннего движения, с шириной полосы по 3 м, и примыкает к основной. По конструктивному решению - дорога грунтовая профилированная, т. к. на стройплощадке небольшая интенсивность движения автомашин.

.3 Расчет временных зданий и сооружений, проектирование бытовых городков

Расчет временных зданий и сооружений выполняем на основании графика движения рабочих по объекту, изображенного на листе 3, на максимальное количество рабочих в смену. Результаты расчета заносим в табл. 12.

Таблица 12. Определение площадей временных зданий

Наименование зданий

Число рабочих

Нормативный показатель на 1 чел.

Требуемая площадь, Fтр, м²

Рекомендуемый тип

Требуемое кол-во зданий

Применяемая площадь

Санитарно-бытовые помещения

Гардеробная с сушилкой и умывальником

44,7

2,15

96,1

Здание контейнерного типа размером 3х6, на базе системы "Днепр", Д-11-К(О1)

6

108

Душевая

23,5

0,43

10,1

Здание контейнерного типа размером 3х6, на базе системы "Днепр", Д-12-К(О1)

1

18

Помещение для обогрева, отдыха и приема пищи

23,5

1

23,5

Здание контейнерного типа размером 3х6, на базе системы "Днепр", Д-13-К(О1)

2

36

Туалет

23,5

0,07

1,6

Биотуалет, 1х1

2

4

Служебные помещения

Контора мастера на два рабочих места

2

9

18,0

Здание контейнерного типа размером 3х6, на базе системы "Днепр", Д-03-К(О1)

1

18

Прорабская

2

9

18,0


1

18


Потребность строительства в административных и санитарно-бытовых зданиях определена из расчетной численности персонала. Для расчетов принимают: рабочих - 85%, ИТР и служащих - 12 %, младший обслуживающий персонал (МОП) и пожарно-сторожевая охрана - 3%.

Количество рабочих принимается максимальное по графику движения рабочих по объекту в многочисленную первую смену.

Расчетная численность персонала с учетом ИТР, МОП - Nр:

Nр = Nmax * 1,177

где Nmax - максимальное количество рабочих в первую многочисленную смену; 1,177 - коэффициент, учитывающий ИТР и МОП.

.4 Проектирование энергоснабжения строительной площадки

Расчет электрических нагрузок производен по установленной мощности электроприемников и коэффициентам спроса с дифференциацией по видам потребителей по формуле

Рр = a (∑К1сРс / соs j + ∑К3с Р ов + ∑Рон)                                (41)

где α - коэффициент, учитывающий потери в сети в зависимости от протяженности, сечения (a = 1,05 - 1,1); К1с, К3с - коэффициенты спроса, зависящие от числа потребителей; Рс - мощность силовых потребителей, кВт; Рт - мощность для технологических нужд, кВт; Ров- мощность устройств внутреннего освещения, кВт; Рон - мощность устройств наружного освещения, кВт.

Освещение строительных площадок

Рабочее освещение - освещение рабочих мест принимается при работе во вторю смену. Рассчитывается площадь захватки, на которой выполняются работы.

Охранное освещение - освещение всей строительной площадки в течение второй и третьей смены.

Аварийное освещение осуществляется по независимой линии в местах основных проходов. Источник питания аварийного освещения - дизель-генератор.

Мощность источника для наружного освещения рассчитывается по формуле

Рон= Fр х Руд.р. + Fгп х Руд.гп. + Fд х Руд.ав. + Fсп х Руд.охр.=

= (1872*1+144*3+2750*5+100*0,7+15552*0,4)/1000=25кВА,

где Fр - площадь захватки, на которой выполняются работы во вторую смену, м2; Руд.р. - удельная мощность на 1 м2, для конкретного вида работ, выполняемых на захватке во вторую смену, Вт/м2; Fгп - площадь главных проходов и проездов, м2; Руд.гп. - удельная мощность на 1м2 площади главных проходов и проездов, Вт/м2; Fд - площадь основных проходов, используемых для эвакуации работающих в аварийной ситуации; Руд.ав. - удельная мощность на 1 м2 проходов, используемых для эвакуации, Вт/м2; Fсп - площадь строительной площадки, м2; Руд.охр. - удельная мощность на 1 м2 площади строительного участка для охранного освещения, Вт/м2.

Мощность силовых потребителей рассчитана в табл. 13.

Таблица 13 Расчет электрической мощности для силовых потребителей

Наименование силовых потребителей электроэнергии

Мощность, кВт

Кс

соs j

Гр.2 х гр.3/гр.4, (кВ А)

Мелкие строительные механизмы

32

0,15

0,5

9,6

Компрессоры, насосы

110

0,7

0,8

96

Сварочные машины для стыковой сварки

0,35

0,7

100





∑206


Потребная мощность для внутреннего освещения

Ро.в = Fвр.зд х Руд.вр.зд=200*15/1000=3кВт,

где Fвр.зд - площадь временных зданий, м2; Руд.вр.зд - удельная мощность на 1м2 временного здания (принимаем нормы для конторских и общественных помещений), Вт/м2.

Полная электрическая нагрузка

Рр = a (∑К1сРс / соs j + ∑К3с Р ов + ∑Рон)=

=1,1(206+0,8*3+25)=257кВА

Рассчитываем количество прожекторов для охранного и аварийного освящения, требуемое для освещения стройплощадки по формуле

                                                                                      (41)

где р - удельная мощность прожектора ПЗС-35, Вт/(м2·лк); Е - освещенность стройплощадки, лк; S - площадь освещаемой территории, м2; Рл - мощность лампы-прожектора, Вт.

 шт;

 шт.

Для временного электроснабжения стройплощадки применяем инвентарную комплектную передвижную трансформаторную подстанцию. Исходя из потребной мощности 257кВ·А, принимаем одну передвижную подстанцию КТП-250 мощностью 250 кВ·А.

.5 Проектирование временного водоснабжения и водоотведения

Потребность в воде определяется суммарным расчетным расходом воды

Qобщ=Qпр+Qхоз+Qпож                                                               (42)

где Qпр, Qхоз, Qпож -соответственно расходы воды на производственные, хозяйственно-бытовые и противопожарные цели.

Qобщ=0,6+0,04+20=20,64 л/с.

Диаметр водопровода напорной сети определяем по формуле

(43)

где v- скорость движения воды по трубам, принимаемая равной для больших диаметров 1,5-2 м/с и для малых 0,7-1,2 м/с.

.

Округляем до ближайшего стандартного 150 мм.

резервуар строительный водоснабжение водоотведение

8. Обоснование решений по безопасному производству работ на строительной площадке

Этот раздел выполняется в соответствии со СНиП III-4-80 “Техника безопасности в строительстве”.

Для создания условий безопасного производства работ на стройгенплане четко очерчены следующие зоны

·      зона действия монтажных кранов;

·        опасная зона при работе кранов и подъемников;

·        опасная зона по периметру возводимого объекта.

Специальные мероприятия для обеспечения безопасного и безвредного производства работ включают в себя: ограждение территории строительства; опасных зон действия машин и проходов через транспортные пути; освещение строительной площадки и рабочих мест; мероприятия, исключающие опасность поражения электротоком; организации санитарно-бытового обслуживания рабочих на строительстве; расстановка знаков безопасности и указателей; обеспечение спецодеждой.

9. Технико-экономические показатели строительно-генерального плана

Таблица 14

Наименование

Ед. изм.

Величина

Площадь территории строительной площадки

м2

15552

Площадь, занимаемая постоянными сооружениями

м2

0

То же, временными зданиями

м2

202

Склады (открытые и закрытые)

м2

175

Протяженность временных автодорог

пог м

335

Протяженность временной электросети

пог м

571

Протяженность временной водопроводной сети

пог м

110

Протяженность ограждения

пог м

504



Список литературы

1. ЕНиР сборник Е2. Земляные работы, выпуск 1, механизированные земляные ручные работы/М.: Стройиздат, 1975.;

. СНиП 3.02.01-87 Земляные сооружения, основания и фундаменты/Госстрой СССР-М.: Стройиздат, 1985.;

. ЕНиР сборник Е9, выпуск 2 Сооружения систем теплоснабжения, водоснабжения, газоснабжения и канализации/М.: Стройиздат, 1975.;

. Справочник земляные работы/под ред. Рейша;

. Технологическая карта - Обратная засыпка, разравнивание и уплотнение грунта в траншее с трубопроводом на одном уровне;

. Типовая технологическая карта - Испытание и промывка напорного трубопровода;

. Машины для монтажных работ/Справочник монтажника. М.: Стройиздат, 1981.;

. Технология строительного производства Методические указания к курсовому проекту;

. СНиП 12-03-2001. Безопасность труда в строительстве. Ч.1. Общие требования. -М: ГУП ЦПП, 2001.

. СНиП 12-04-2002. Безопасность труда в строительстве. Ч.2. Строительное производство. - М.: Книга - сервис, 2003.

. Технология строительства водопроводно-канализационных сооружений. Проектирование/ Гурковский Г.М. - Киев: Издательство «Вища школа», 1980.

. Технология строительного производства: Учебник/ Белецкий Б.Ф. -М.: АСВ, 2001.

. Организация строительного производства: Учебник/ Дикман Л.Г. - М.: АСВ, 2003.

. ГЭСН 2001.Государственные элементные сметные нормы на строительные работы: Сб. № 1 «Земляные работы». - М.: Госстрой России, 2001.

. ГЭСН 2001.Государственные элементные сметные нормы на строительные работы: Сб. №6 «Бетонные и железобетонные конструкции монолитные». - М.: Госстрой России, 2001.

. ГЭСН 2001.Государственные элементные сметные нормы на строительные работы: Сб. №7 «Бетонные и железобетонные конструкции сборные». - М.: Госстрой России, 2001.

. ГЭСН 2001.Государственные элементные сметные нормы на строительные работы: Сб. №11 «Полы». - М.: Госстрой России, 2001.

. ГЭСН 2001.Государственные элементные сметные нормы на строительные работы: Сб. №23 «Канализация - наружные сети». - М.: Госстрой России, 2001.

Похожие работы на - Строительство резервуаров чистой воды

 

Не нашли материал для своей работы?
Поможем написать уникальную работу
Без плагиата!
Без нейросетей!