|
Масса тележки
|
4800 кг
|
|
База
|
1,85 м
|
|
Допускаемая скорость
|
120 км/ч
|
|
Гибкость рессорного
подвешивания
|
0,125 м/Мн
|
|
Прогиб рессорных комплектов
под статической нагрузкой
|
0,055 м
|
|
Расстояние от уровня
головок рельсов до опорной поверхности подпятника
|
0,801 м
|
Тип рессорного подвешивания - одноступенчатый центральный.
Проектируемый вагон оборудован автосцепкой СА-3М. Эта автосцепка
относится к нежёстким. Корпус автосцепки СА-3М предназначен для передачи
ударно-тяговых усилий упряжному устройству и для размещения механизма. Корпус
представляет собой стальную полую отливку, которая состоит из головной части и
хвостовика. Головная часть имеет большой и малый зубья, которые, соединяясь,
образуют зев. Механизм автосцепки состоит из замка, замкодержателя,
предохранителя, подъёмника, валика подъёмника и болта с гайкой и двумя
стопорными шайбами.
Корпус автосцепки отливают из низколегированной стали 20ГФЛ ГОСТ
22703-77. На четырёхосных грузовых вагонах применяются поглощающие аппараты
марки Ш-6-ТО-4. Энергоёмкость этого аппарата 100-110 кДж при ходе аппарата 160
мм.
Литой корпус аппарата в соответствии с требованиями ГОСТ 977-75
изготавливают из термообработанной стали марки 30ГСЛ. Клинья штампуют из стали
марки 38ХС (ГОСТ 4543-71) с последующей закалкой. Пружины используют
заневоленные из стали марки 55С2 (ГОСТ 1452-69).
Под тележку проектируемого вагона подкатывается колёсная пара типа
РУ1-950, имеющая два буксовых узла, которые имеют по два подшипника,
изготавливающиеся в соответствии с ГОСТ 18572-73.
.3 Требования к материалам
Детали и узлы вагона должны быть такими, чтобы обеспечивалась их
безотказная работа в эксплуатации. Наряду с механическими воздействиями
элементы вагона подвергаются также влиянию коррозии (атмосферной, при
перевозках влажных грузов, отпотевание в связи со сменой температур, при
перевозке химически активных грузов), абразивному износу, температурным
воздействиям в различных областях расположения железных дорог. Узлы и детали
вагона, учитывая различные районы эксплуатации, должны изготавливаться в
исполнении ХЛ (холодный климат), что требует в технических условиях учета
влияния на материал изготовления максимальных до +50 и минимальных - до -600С
температур.
Прочностные свойства и надежность вагона в эксплуатационных условиях при
различных видах воздействий обеспечиваются применением соответствующих
материалов с использованием технологических процессов изготовления, упрочнения
и ремонта. Использование наиболее рациональных конструктивных форм и профилей
деталей и узлов вагона позволяет достичь необходимой прочности при наименьшей
собственной массе вагона.
Основными строительными материалами являются низколегированные стали в
виде стального проката (фасонного, сортового, листового) и стальных отливок.
Применяемые стали должны иметь достаточно высокие механические характеристики,
антикоррозионные свойства при эксплуатации вагонов в различных температурных
режимах, а также удовлетворять требованиям необходимой пластичности материала и
его свариваемости, что необходимо для получения штамповании электродуговой
сварки.
С точки зрения режимов работы все несущие элементы делятся на три группы.
К I группе относятся несущие
толстостенные элементы, такие как балки рамы и детали каркаса стен, предельное
состояние которых оценивается прочностью. Поэтому металл для них должен
обладать повышенными механическими характеристиками. Вместе с тем в связи с
толстостенностью этих элементов предъявляются менее жёсткие требования по
коррозионной стойкости металла. Ко II группе относятся тонкостенные элементы-
дуги крыши, некоторые стойки, поперечные балки и другие несущие тонкостенные
элементы кузова, предельным состоянием которых также является прочность. К
металлу этих элементов предъявляются повышенные прочностные и антикоррозионные
требования. К III группе относятся тонкостенные элементы, включая обшивку
кузова и некоторые, подкрепляющие и другие части, предельное состояние которых
- потеря устойчивости. В связи с малой толщиной этих элементов на их несущую
способность существенное влияние оказывают коррозионные повреждения. Поэтому к
металлу III группы предъявляются повышенные требования по антикоррозионным
свойствам и менее жёсткие по прочностным.
В основных несущих элементах вагона необходимо применять
низколегированную прокатную сталь марок 09Г2Д, 09Г2СД и 10ХНДП. Стали 09Г2Д и
09Г2СД используются для изготовления рам и подкрепляющих элементов, а сталь
10ХНДП - для обшивки кузова. Объясняется это тем, что стали 09Г2Д и 09Г2СД
значительно дешевле стали 10ХНДП, поэтому она используется в более
материалоёмких элементах кузова.
В связи с тем, что сталь 10ХНДП обладает примерно в два раза большей
коррозионной стойкостью, она значительно эффективнее используется в обшивке
кузовов. Однако в связи с возросшими требованиями к надёжности вагонов для
элементов I группы, нормами рекомендована новая сталь марки 10Г2БД,
легированная ниобием.
Для ограждения кузовов используют нержавеющие стали, двухслойные стали,
стеклопластики и др.
Для различных элементов и деталей вагонов, в том числе и специальных
конструкций, используют легированные конструкционные стали по ГОСТ 4543-71,
листовые коррозионно-стойкие и жаропрочные стали по ГОСТ 7340-77, стали
листовые горячепрокатные двухслойные коррозионно-стойкие по ГОСТ 10855-86.
Характеристика механических показателей выбранной стали:
Марка стали: 10Г2БД
Предел прочности: 520МПа
Предел текучести: 380МПа
Относительное удлинение: 21%
Ударная вязкость при 400С: 0.4МДж/м2
Относительная атмосферная коррозионная стойкость: 1.25
.4 Требования к климатическому исполнению
Детали и узлы вагона проектируются так, чтобы обеспечивалась их
безотказная работа в течение всего срока службы в разнообразных
эксплуатационных условиях. В эксплуатации, наряду с многочисленными
механическими воздействиями, элементы вагона подвергаются температурным
воздействиям. Это особенно существенно в связи с движением железнодорожного
транспорта в различных климатических условиях. Грузовые вагоны изготавливаются
в исполнении для умеренного климата с температурами от +40 до - 500 C
Колёсные пары
Для проектируемого вагона применяем колесную пару РУ1-950, используемую с
подшипниками, имеющим и наружный диаметр 250мм, которые устанавливаются в
буксовых узлах.
Буксы
Букса роликовая из двух цилиндрических подшипников, заднего 30-42726лн и
переднего 30-232726л1м, с размером 130х250х80 мм, изготавливаемых в
соответствии с ГОСТ 18572-73.
К ходовым частям вагона относятся тележки, состоящие из колесных пар,
букс, рессорного подвешивания, боковых рам и надрессорных балок. Ходовые части
направляют движение вагона по рельсовому пути и обеспечивают безопасность
движения с необходимой плавностью хода вагона.
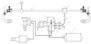
Тормозное оборудование
Пневматическая часть тормозного
оборудования (Рисунок 1.2.) включает в себя тормозную магистраль
(воздухопровод) 6 диаметром 32 мм с концевыми кранами 4 клапанного
или шаровидного типа и соединительными междувагонными рукавами 3; двухкамерный
резервуар 7, соединенный с тормозной магистралью 6 отводной трубой
диаметром 19 мм через разобщительный кран 9 и пылеловку - тройник 8 (кран
9 с 1974 г. устанавливается в тройнике 8); запасный
резервуар 11; тормозной цилиндр 1; воздухораспределитель № 483 м
с магистральной 12 и главной 13 частями (блоками); авторежим №
265 А-000; стоп-кран 5 со снятой ручкой.
Рисунок 1.2.- Схема тормозного
оборудования грузового вагона
Авторежим служит для автоматического
изменения давления воздуха в тормозном цилиндре в зависимости от степени
загрузки вагона - чем она выше, тем больше давление в тормозном цилиндре. При
наличии на вагоне авторежима рукоятка переключателя грузовых режимов воздухораспределителя
снимается после того, как режимный переключатель воздухораспределителя будет
поставлен на груженый режим при чугунных тормозных колодках и средний режим при
композиционных тормозных колодках. У рефрижераторных вагонов авторежима нет.
Запасный резервуар имеет объем 78 л у четырехосных вагонов с тормозным
цилиндром диаметром 356 мм и 135 л у восьмиосного вагона с тормозным цилиндром
диаметром 400 мм.
Зарядка резервуара 7, золотниковой и
рабочей камер воздухораспределителя запасного резервуара 11 производится
из тормозной магистрали 6 при открытом разобщительном кране 9. При этом
тормозной цилиндр через главную часть воздухораспределителя и авторежим 2 сообщен
с атмосферой. При торможении давление в тормозной магистрали понижается через
кран машиниста и частично через воздухораспределитель, который при срабатывании
отключает тормозной цилиндр 1 от атмосферы и сообщает его с запасным
резервуаром 11 до выравнивания давления в них при полном служебном
торможении.
Тормозная рычажная передача грузовых вагонов
выполнена с односторонним нажатием тормозных колодок (кроме шестиосных вагонов,
у которых средняя колесная пара в тележке имеет двустороннее нажатие) и одним
тормозным цилиндром, укрепленным на хребтовой балке рамы вагона болтами. В
настоящее время в опытном порядке некоторые восьмиосные цистерны без хребтовой
балки оборудуются двумя тормозными цилиндрами, от каждого из которых усилие
передается лишь на одну четырехосную тележку цистерны. Это сделано для
упрощения конструкции, облегчения тормозной рычажной передачи, уменьшения
силовых потерь в ней и повышения эффективности работы тормозной системы.
Тормозная рычажная передача всех грузовых
вагонов приспособлена к использованию чугунных или композиционных тормозных
колодок. В настоящее время все грузовые вагоны имеют композиционные колодки.
При необходимости перехода с одного типа колодки на другой необходимо изменить
лишь передаточное число тормозной рычажной передачи путем перестановки валиков
затяжки и горизонтальных рычагов (в более близко расположенное к тормозному
цилиндру отверстие при композиционных колодках и, наоборот, при чугунных
колодках). Изменение передаточного числа связано с тем, что коэффициент трения
у композиционной колодки примерно в 1,5-1,6 раза больше, чем у чугунных
стандартных колодок.
В тормозной рычажной передаче
четырехосного грузового вагона (рисунок 1.3) горизонтальные рычаги 4 и 10
шарнирно соединены со штоком 6 и кронштейном 7 на задней крышке
тормозного цилиндра, а также с тягой 2 и авторегулятором 3 и с
тягой 11. Между собой они соединены затяжкой 5, отверстия 8 которой
предназначены для установки валиков при композиционных колодках, а отверстия 9-
при чугунных тормозных колодках.
Рисунок 1.3.- Схема (а) и
конструкция {б) рычажной передачи четырехосного грузового вагона
Тяги 2 и 11 соединены с вертикальными рычагами 1
и 12, а рычаги 14 соединены с серьгами 13 мертвых
точек на шкворневых балках тележек. Между собой вертикальные рычаги соединены
распорками 15, а их промежуточные отверстия шарнирно соединены с
распорками 77триангелей с тормозными башмаками и колодками, которые подвесками 16
соединены с кронштейнами боковых рам тележки.
Предохранение от падения на путь деталей тормозной рычажной
передачи обеспечивается специальными наконечниками 19 триангелей,
расположенными над полками боковых рам тележки. Передаточное число тормозной
рычажной передачи, например, четырехосного полувагона при плечах горизонтальных рычагов 195 и 305 мм и
вертикальных рычагов 400 и 160 мм равно 8,95
2. Выбор основных параметров крытого вагона
Основными параметрами являются: грузоподъёмность Р, тара Т,
осность
, площадь пола
. линейные размеры, статическая и погонные нагрузки.
Для сравнения параметров между собой пользуются параметрами, представляющими
отношения этих величин: удельная площадь пола fy, коэффициент тары kТ, осевая и погонная нагрузки.
Правильный выбор параметров обеспечивает наименьшие затраты на перевозки грузов
и пассажиров. Так как вагоны имеют длительный срок службы, то вновь
проектируемые конструкции должны удовлетворять не только современным, но и
перспективным условиям эксплуатации. Определение параметров грузовых вагонов
следует вести в следующем порядке:
. установить оптимальный удельный объем пола;
2. установить коэффициент тары;
3. определить грузоподъёмность вагона;
. установить геометрический объём кузова;
. определить линейные размеры вагона.
Выбор оптимального удельного объёма
В связи с тем, что в универсальных вагонах при перевозке различных грузов
не всегда удаётся полностью использовать геометрический объём кузова или
грузоподъёмность, для них устанавливают оптимальные значения удельных объёмов.
При установлении оптимальных удельных объёмов основным критерием является
минимальная себестоимость перевозок.
График зависимостей технического коэффициента тары
, погрузочного коэффициента тары
и себестоимости перевозки грузов от
величины удельной площади
приведены на рис. 1. Принимая минимальные значения
себестоимости перевозок
, можно определить оптимальное значение коэффициентов.
Рисунок 2 - График зависимости параметров
-осных крытых вагонов.
- технический
коэффициент тары вагона:
Принимаем погрузочный коэффициент тары
.
Одним из основных факторов, влияющих на величину грузоподъёмности вагона,
является допускаемая осевая нагрузка p0. Возможные осевые нагрузки вагонов
определяются на основе прочности пути, которая, в свою очередь зависит от
грузонапряжённости железных дорог.
Исходные данные:
m0 = 4 - осность вагона
Р = 22 т. = 215.82 кН - грузоподъемность
Т = 24.3 т = 238.38кН - тара
g = 9.81 м/с2 - ускорение свободного падения
1- Т габарит
Нmax = 4.5 м - максимальная высота
п = 20-22 - количество голов КРС
На основании исходной величины грузоподъемности и осности вагона, осевая
нагрузка определяется по формуле, кН
=
(2.1)
Осевая нагрузка не должна превышать 245 кН, 113.55<245, что
удовлетворяет условию.
Определяем вес брутто кузова:
(2.2)
где
=4,880 - масса тележки, т.
Определим массу брутто:
(2.3)
Определяем вес кузова
(2.4)
где
=1,2 - масса автосцепного устройства, т;
=0,50 - масса тормозного оборудования, т.
Определение линейных размеров
Определяем внутреннюю длину вагона:
(2.5)
где FК - площадь поперечного сечения кузова, заполненного
грузом, м2.
Внутреннюю ширину крытого вагона примем исходя из габарита,
=2770 мм.
Внутренняя высота крытого вагона по осевому сечению рассчитывается по
формуле:
(2.6)
где Нв1 - высота внутри кузова по боковой стене;
Нв2 - внутренняя высота крыши по осевому сечению.
Для ориентировочных расчетов величину Нв2 примем равной
аналогичной величине у вагона-аналога модели 11-260, т. е. равной 0,323 м.
Варьируем только величиной Нв1, исходя из размеров габаритной рамки.
При этом расстояние от оси автосцепки до уровня пола примем равным Н1
= 200 мм, а высоту от уровня головок рельсов до оси автосцепки равной Н2
= 1250 мм.
Исходя из размеров габаритной рамки, высоту от уровня головок рельсов по
боковой стене примем равной:
Тогда
(2.7)
Вычислим внутреннюю высоту крытого вагона по осевому сечению по формуле:
Площадь поперечного сечения кузова для крытого вагона:
(2.8)
где Fст - площадь поперечного сечения
прямоугольной части кузова;
Fкр
- площадь
поперечного сечения крыши.
Величину площади поперечного сечения крыши примем равной величине
аналогичной площади у вагона-аналога модели 11-260, Fкр = 0,61 м2.
(2.9)
Вычислим площадь поперечного сечения кузова, заполненного грузом.
Вычислим внутреннюю длину вагона по формуле:
Так как вагон для перевозки живности, необходимо проверить условие ее
размещения в вагоне:
,
где
- площадь, которую занимает оборудование, предназначенное для
кормления живности.
- габариты КРС.
.
, условие выполняется
Определим наружные размеры кузова:
Определим длину кузова по формуле:
, (2.10)
где
толщина торцевой стены, аТ = 0,08 м.
Определим наружную ширину кузова по формуле:
(2.11)
где
толщина боковой стены, аТ = 0,135 м.
Определим общую длину вагона (по осям сцепления автосцепок):
(2.12)
где
вылет автосцепки, аа = 0,43 м.
Определяем базу вагона по формуле:
(2.13)
где
коэффициент, определяемый соотношение между длиной рамы и
базой вагона из условия равенства выносов концевой и внутренней частей вагона в
кривых участках пути при вписывании двухосного вагона в габарит подвижного
состава.
Определяем длину консольной части рамы вагона:
(2.14)
Из условия размещения автосцепного оборудования на раме вагона длина
консоли не должна быть менее 1500 мм. Для четырех - и шестиосных вагонов:
(2.15)
где
база двух, трехосной тележки, мм;
диаметр колеса, мм;
высота гребня колеса, мм.
мм. Данное условие выполнено.
Определим статическую и погонную нагрузки.
Статическую нагрузку на вагон найдем по формуле:
(2.16)
где
- коэффициент использования грузоподъемности.
Погонную нагрузку определим по формулам:
Нетто -
(2.17)
Брутто -
(2.18)
Таким образом, все технико-экономические параметры определены.
3. Вписывание вагона в габарит 1-Т
Вписывание верхней части вагона в габарит 1-Т
Определим горизонтальные поперечные размеры строительного очертания
вагона.
Максимально допускаемая ширина вагона определяется по формуле:
, (3.1)
где
- полуширина габаритной рамки габарита 1-T,
- конструктивно-технологические отклонения, допускаемые при
постройке вагона в горизонтальной плоскости.
Определим ограничение полуширины для основного сечения:
, (3.2)
где
- максимальная ширина колеи в кривой расчетного радиуса,
- минимальное расстояние между наружными гранями предельно
изношенных гребней колес,
- наибольшее возможное поперечное перемещение из
центрального положения в одну сторону рамы тележки относительно колёсной пары,
- наибольшее возможное поперечное перемещение из центрального
положения в одну сторону кузова относительно рамы тележки,
- величина, на которую допускается выход подвижного состава,
проектируемого по габаритам 0-ВМ, 02-ВМ, 03-ВМ и 1-ВМ (нижняя часть), за
очертание этих габаритов в кривой
,.
- величина дополнительного поперечного смещения в кривой
расчетного радиуса.
- половина принятой на железной дороге России величины
увеличения горизонтального расстояния между осями путей на перегонах в
расчетной кривой.
, (3.3)
где
- расчетный радиус кривой для габарита 1-Т.
- полу-база тележки,
, (3.4)
- полу-база расчетного вагона (за расчетный вагон принимают
пассажирский вагон с базой 17 м)
Так как величина в квадратных скобках
оказалась
отрицательной, то ее не учитывают,
т.е. принимаем равной 0. Отрицательная сумма свидетельствует о
недоиспользовании имеющегося в кривой уширения габарита приближения строений. В
этом случае расчет ограничений полуширины производится из условия вписывания в
габарит на прямом участке пути.
, (3.5)
где
- максимальная ширина колеи на прямом участке пути.
Определим ограничение полуширины для внутреннего сечения, расположенного
по середине базы вагона.
, (3.6)
где
- расстояние между шкворневыми (основными) сечениями вагона
(база вагона)
- расстояние от рассматриваемого внутреннего сечения до
основного.
- дополнительные ограничения внутреннего и наружных сечений
вагона, имеющие место только у очень длинных вагонов, проектируемых по
габаритам 1-ВМ, 02-ВМ, 03-ВМ, и определяемые из условия вписывания в кривую
радиуса
,
.
- коэффициент, зависящий от расчетного радиуса кривой:
, (3.7)
Так как значение величины в квадратных скобках отрицательны
,
,
то расчет ограничений производим из условия вписывания в габарит на
прямом участке пути.
, (3.8)
Определим ограничение полуширины для крайнего наружного сечения.
где
расстояние от рассматриваемого наружного сечения до
основного. Так как значение величины в квадратных скобках
, не удовлетворяет условию, то расчет ограничений производим
из условия вписывания в габарит на прямом участке пути.
, (3.9)
Максимально допускаемая ширина строительного очертания вагона на
рассматриваемой высоте над уровнем верха головки рельса:
Максимально допускаемая ширина проектного очертания вагона в
рассматриваемом сечении горизонтального очертания вагона:
, (3.10)
где
- полуширина на высоте рассматриваемого сечения
-конструктивно-технологические отклонения, допускаемые при
постройке вагона в горизонтальной плоскости для верхней части вагона.
для нижней части вагона
Так как минимальная ширина проектного очертания вагона
, и наружная ширина вагона
, то можно сделать вывод, что вагон
вписывается в габарит 1-Т.


3.04 м
3.364 м
Определение вертикальных поперечных размеров строительного очертания
вагона
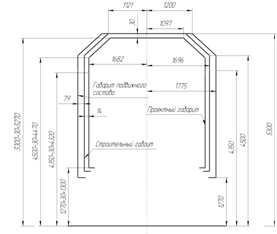
Рисунок 3.1.-Горизонтальные поперечные очертания вагона
Вертикальные размеры габарита подвижного состава в верхней части являются
одновременно и максимальными размерами строительного очертания проектируемого
вагона по высоте.
Горизонтальные размеры габарита подвижного состава в верхней части
Строительное очертание вагона.
(3.11)
где
- полуширина габарита на разных
высотах,
,
,
,
;
- ограничение полуширины, принимается равным наибольшему из
расчетных, в нашем случае
,
,
Проектное очертание вагона.
Ширина проектного очертания вагона на некоторой высоте Н над уровнем
верха головки рельсов:
, (3.12)
Определим вертикальные размеры проектного очертания вагона.
, (3.13)
где
- конструктивно-технологические отклонения, допускаемые при
постройке вагона в вертикальной плоскости для верхней части вагона;
Рисунок 3.2.-Вертикальное поперечное очертание вагона
Определим вертикальные размеры строительного очертания.
(3.14)
где
- высота i-ой точки габарита подвижного состава
,
,
,
- суммарное статическое параллельное понижение для кузова
вагона, мм
- общая гибкость рессорного подвешивания тележки, равная
гибкости центрального рессорного подвешивания,
;
- Грузоподъемность вагона:
(3.15)
Определение вертикальных размеров проектного очертания вагона.
, (3.16)
где
- конструктивно-технологические отклонения, допускаемые при
постройке вагона в вертикальной плоскости для нижней части вагона;
Горизонтальные размеры проектного очертания вагона находятся уменьшением
строительного на величину конструктивно-технологических отклонений
;
, (3.18)
Рисунок 3.3.-Вертикальное поперечное очертание нижней части вагона.
4. Расчет оси колесной пары вероятностным методом
В данном пункте курсового проекта исследуем зависимость напряженного
состояния и значений коэффициента запасов усталостной прочности оси от осевой
нагрузки (массы вагона брутто).
Расчёт новой оси колёсной пары при ее проектировании или оценке прочности
стандартной (типовой) оси при намечаемом изменении условий нагружения в
эксплуатации производим вероятностным методом на сопротивление усталости с
учётом вероятностного рассеивания прочностных характеристик оси и действующих
на неё нагрузок. В качестве критерия оценки прочности оси по этому методу
расчёта принимается величина коэффициента запаса сопротивления усталости
Рисунок 4.1.- Схема сил, загружающих колесную пару
- средний коэффициент использования грузоподъемности
ускорение свободного падения
масса вагона брутто, т
масса колесных пар без букс, (кг)
масса консольной части оси до круга катания колеса, (кг)
Определим вертикальную статическую нагрузку, приложенную к шейке, Н
, (4.1)
Изгибающий момент от действия вертикальной статической нагрузки в сечении
1-1,2-2,3-3,4-4,5-5 (
,
), кНм
-расстояние от линии приложения вертикальной силы к шейки оси
до сечений1-1,2-2,3-3,м
,
,
, (4.2)
Определим коэффициент вертикальной динамики
-для грузовых
-статический прогиб рессорного комплекта
,
-Величины, зависящие соответственно от гибкости рессорного
подвешивания и типа вагона
-высота центра тяжести полностью загруженного вагона за
вычетом веса колесных пар от уровня осей колесных пар, м
- расчетная скорость вагона, м/с
, (4.3)
Вертикальная динамическая сила от колебаний кузова на рессорах, кН
, (4.4)
Вертикальная динамическая сила от центробежной силы в кривых, кН
- допустимое непогашенное центробежное ускорение.
, (4.5)
Расчетная суммарная вертикальная сила на левую шейку оси, кН
, (4.6)
Расчетная суммарная вертикальная сила на правую шейку оси, кН
, (4.7)
Ускорение левого буксового узла
Масса необрессоренных частей, приходящихся от колеса на рельс
, кг.
-масса половины боковой рамы и комплекта рессорного
подвешивания тележки грузового вагона, кг
- масса буксы, кг
,
, (4.8)
, (4.9)
Ускорение правого буксового узла
-расстояние между кругами катания колес, м
, (4.10)
Ускорение левого колеса, ускорение правого колеса равно 0(
)
, (4.11)
Масса необрессоренных частей, опирающихся на шейку оси (
), кг
, (4.12)
Вертикальная инерционная нагрузка на левую шейку оси, на правую шейку (
), Н
Вертикальная инерционная нагрузка от левого колеса на рельс (
), Н
масса
колеса, кг
, (4.13)
Вертикальная инерционная нагрузка на среднюю часть оси (
), Н
масса средней части оси между кругами катания колес, кг
, (4.14)
Коэффициент горизонтальной динамики (
)
величины, зависящие соответственно от осности тележки и
гибкости рессорного подвешивания
, (4.15)
Рамная сила (H), Н
, (4.16)
Вертикальная реакция рельса на левое колесо от суммарной расчетной
нагрузки, на правое колесо (
), Н
l5 =0.009,
расстояние от линии приложения
вертикальной инерционной силы Pн1, Pн2 до середины, м
радиус колеса, м
радиус шейки, м
Вертикальная реакция на левой опоре оси от суммарной расчетной нагрузки,
на правой опоре (
), H
коэффициент передачи инерционных нагрузок на внутренние
сечение оси
Поперечная составляющая силы трения правого колеса о рельс (
), Н
расчетный коэффициент трения колеса о рельс
, (4.21)
Боковая сила (
), Н
, (4.22)
Изгибающий момент в сечении оси на левой опоре, на правой опоре
, (4.23)
, (4.24)
Изгибающий момент сечений l-l, 2-2, 3-3, 4-4, 5-5 от действия суммарной
расчетной силы(
),
расстояние от расчетного сечения V-V
расстояние между линиями приложения вертикальной силы
к шейкам оси
от расчетного сечения Vl-Vl
(4.25)
1-1 сечение по внутренней кромке кольца заднего подшипника
-2 сечение по шейке на расстоянии, а от торца предподступичной части
-3 сечение по подступичной части в плоскости круга катания колеса
-4 сечение по середине оси
-5 сечение по средней части на расстоянии 2/3 длины участка от конца
подступичной части до линии сопряжения галтели со средней частью
Рисунок 4.2.- Схема сил, загружающих ось
Момент сопротивления оси в расчетном сечении (
.i),
, (4.26)
где
- диаметр оси в расчетных сечениях,
,
,
,
,
.
Напряжение в расчетном сечении от максимальной суммарной нагрузки,
, (4.27)
Напряжения в расчетных сечениях от вертикальной статической нагрузки брутто,
, (4.28)
Среднее значение предела выносливости.
базовое число циклов
суммарное число циклов за срок службы оси для среднесетевых
условий эксплуатации
показатель кривой Веллера для осей, упрочненных накаткой
Среднее значение предела выносливости.
, (4.29)
Так как в расчетных сечениях 1-1, 4-4,5-5
<
, следовательно, значение n
принимается n >2.5, дальнейшие вычисления производим для сечений 2-2, 3-3.
Определение коэффициентов перегрузки оси (минимальное, максимальное).
, (4.30)
, (4.31)
Определение среднеквадратичных отклонений логарифмов амплитуд напряжений.
число, определяющее границы доверительного интервала
нормального распределения
, (4.32)
, (4.33)
, (4.34)
Определение интеграла вероятности
,
, - нормированные интегральные функции нормального
распределения (Функции Лапласа).
, (4.35)
, (4.36)
Расчетная формула для определения запаса прочности оси
, (4.37)
5. Поверочный расчет подшипников качения буксового узла
Рисунок 1 - Расчетная схема нагружения роликового подшипника буксы
вагона.
Расчет долговечности подшипника
Долговечность подшипников c типовым распределением нагрузки между
роликами в млн. км пробега рассчитывается по формуле:
(5.1)
где
- динамическая радиальная грузоподъемность подшипников
определяется по ГОСТ 18855-82 либо по каталогу;
- показатель степени для роликовых подшипников;
м - диаметр круга катания среднеизношенного колеса.
Динамическая радиальная грузоподъемность:
(5.2)
где
Н/мм - коэффициент, зависящий от геометрии деталей
подшипника, точности их изготовления и материала согласно ГОСТ 18855-82;
- число рядов тел качения в одном ряду для
цилиндрических роликов подшипников;
- угол между линией действия результирующей нагрузки
на тело качения и плоскостью, перпендикулярной оси подшипника (угол образующей
ролика) для цилиндрических подшипников;
- число роликов в подшипнике;
мм - диаметр тела качения (средний диаметр для
конического ролика и наибольший - для бочкообразного);
мм - фактическая длина контакта ролика с кольцом,
(длина ролика без фасок и канавок для выхода шлифовального круга).
(5.3)
Н
Эквивалентная сила определяется по формуле:
, (5.4)
где
- вертикальная статическая сила, действующая на один
подшипник;
- коэффициент, учитывающий динамичность приложения нагрузки
для грузовых вагонов.
(5.5)
где
Н - сила тяжести вагона брутто;
Н - сила тяжести колесной пары;
- количество колесных пар под вагоном;
- количество подшипников в буксе, воспринимающих
радиальные нагрузки.
(5.6)
Н
(5.7)
Н
(5.8)
млн. км.
Долговечность подшипников должна быть не менее 1.5 млн. км для грузовых
вагонов
Расчет показал, что при осевой нагрузке вагона равной 113.55 кН
долговечность подшипников больше минимально допускаемого значения 1,5 млн. км
пробега для грузовых вагонов.
Расчет подшипника на контактные напряжения
Контактные напряжения ролика и колец цилиндрического подшипника
определяются из выражения:
(5.9)
(5.10)
где
- наибольшая нагрузка на ролик;
м - фактическая длина ролика;
м - фактический диаметр ролика;
,
- радиусы дорожек качения
соответственно внутреннего и наружного колец.
Расчетная радиальная нагрузка на наиболее нагруженный ролик для
цилиндрических подшипников (при типовом распределении нагрузки между роликами)
определяется по формуле:
(5.11)
Н
радиусы дорожек качения: внутреннего кольца:
(5.12)
где
м - диаметр окружности центров роликов.
м
наружного кольца
(5.13)
м
Тогда напряжения будут равны:
МПа
МПа.
На соседние ролики с центральным приходится по 24.6 % радиальной
нагрузки, на крайние из пяти роликов передается по 12.3 % .
Оценка прочности производится по допускаемым напряжениям, которые для
стали марки ШХ4 принимаются (
) = 3500 МПа
Сравнивая полученные значения напряжений для подшипника с допускаемым,
можно сказать, что подшипники грузового вагона при данной нагрузке обладают
достаточной прочностью, так как их напряжения не превышают допускаемого.
6. Расчет рессорного подвешивания и определение его вертикальной
жесткости
Определение статической нагрузки, действующей на одну двухрядную пружину
рессорного подвешивания, Н
Рисунок 6.1.-Схема двухрядной пружины.
(6.1)
где
- масса вагона брутто, Н
- масса рамы тележки, кг
- число тележек в вагоне
- масса колёсной пары, кг
- масса буксы вагона, кг
- число пружин в центральном рессорном подвешивание
Определение максимальной нагрузки, действующей на эквивалентную пружину,
Н
(6.2)
где
- коэффициент запаса прогиба
Определение диаметра прутка, м
(6.3)
где
- индекс пружины
- коэффициент Чернышева, учитывающий кривизну витков
- напряжение в рабочей пружине
Определение числа рабочих витков пружины
(6.4)
где
- максимальный статический прогиб, м
- общий статический прогиб грузовой тележки, м
- диаметр пружины, м
кПа
Высота пружины в сжатом состоянии, м
(6.5)
Высота пружины в свободном состоянии, м
(6.6)
Соотношение между размерами и нагрузками эквивалентных однорядной и
двухрядной пружины:
(6.7)
где
- радиальный зазор между внутренними и наружным витками
двухрядной пружины, м
(6.8)
(6.9)
(6.10)
Определение расчётной нагрузки на наружную пружину, Н
(6.11)
Определение расчётной нагрузки на внутреннюю пружину, Н
(6.12)
Диаметр прутка наружной пружины, м
(6.13)
Диаметр прутка внутренней пружины, м
(6.14)
Диаметр наружной пружины, м
(6.15)
Диаметр внутренней пружины, м
(6.16)
Проверка условия сборки
(6.17)
Число рабочих витков внутренней пружины
(6.18)
Число рабочих витков наружной пружины
(6.19)
Определим жесткости наружной и внутренней пружины, Н/м
(6.20)
(6.21)
Определим допускаемые касательные напряжения, Па
(6.22)
(6.23)
Определим вертикальную жесткость одной двухрядной пружины, Н/м
(6.24)
Вертикальная жесткость рессорного комплекта тележки, Н/м
(6.25)
Касательные напряжения в пружинах под расчетной нагрузкой
Па,
Па, не превышают допускаемого 750
МПа, поэтому рассчитанное рессорное подвешивание удовлетворяет условию
прочности.
7. Проверка кинематических параметров автосцепного оборудования
Вновь проектируемое автосцепное устройство должно иметь контур зацепления
соответствующий ГОСТ 21447-75 и должно обеспечивать:
взаимодействие с вагонами оборудованными автосцепками типов СА-3 , СА-3М,
ОСЖД-МСЖД;
автоматическое сцепление на кривых и прямых участках пути при разности
высот автосцепок до 140 мм при скоростях сближения V=0.2-4 м/с;
сохранять сцепленное состояние подвижного состава при движении в
предусмотренных проектом движении, в том числе по расчетным круговым S-образным
кривым, сортировочным горкам и аппарелям паромов;
расцепление единиц подвижного состава регламентированным воздействием
извне;
автоматическое восстановление готовности к сцеплению после разведения
расцепленных автосцепок;
восстановление сцепления воздействием извне ошибочно расцепленных
автосцепок без их разведения;
установку механизма автосцепки регламентированным воздействием извне в
положении "на буфер", не допускающее сцепление при совмещении
контуров зацепления смежных автосцепок.
Проверка автосцепляемости вагонов на участке сопряжения кривой и прямой.
Определение эффективной ширины захвата автосцепки
(7.1)
где
- расчётный радиус кривой,
м;
-полная ширина захвата автосцепки СА-3,
м
-расстояние от шкворня до оси сцепления автосцепок, м:
(7.2)
где
- вылет автосцепки,
м;
- длина консоли,
м.
Определение условия автоматической сцепляемости вагона на участке
сопряжения кривой и прямой
(7.3)
где
- полубаза двухосной тележки проектного вагона,
м
- дополнительное поперечное смещение центров автосцепок,
м.
(7.4)
Прохождение сцепленных вагонов по криволинейным участкам пути
Проверка прохождения проектируемого вагона в сцепе с
"эталонным" вагоном по S-образной кривой
За "эталонный" вагон принят 4х-осный полувагон с базой вагона
м, с базой тележки
м, и длиной от шкворня до оси
зацепления
м.
За расчетные критерии принимаются углы поперечного отклонения продольной
оси автосцепки от оси вагона (Рисунок 7.1), которые определяются для каждого
вагона сцепа по формулам:
(7.5)
(7.6)
где
- углы между осью кузова и горизонтальной осью, рад:
Рисунок 7.1.- Схема не благоприятного положения оси вагона, оси тележки,
оси автосцепки в кривой.
(7.7)
(7.8)
где
- расстояние от центра шарнира хвостовика автосцепки до оси
зацепления,
м,
;
-расчётные радиусы S-образной кривой,
м;
;
- расстояние от шкворня до центра шарнира хвостовика автосцепки:
(7.9)
м
(7.10)
м
рад
рад
Определение угла между осью автосцепки и горизонтальной осью
(7.11)
где
- поперечное отклонение шарниров автосцепки вследствие
устранения зазоров, при проходе сцепа вагона в кривых участках пути,
м;
- расстояние от центров шарнира хвостовика автосцепки до
горизонтальной оси, м:
(7.12)
м
(7.13)
м
рад
град
град
Рисунок 7.2.- Положение точки A(a',a) в ограничительном контуре.
Точка с координатами (a',a) находится внутри основного контура,
следовательно, условие прохождения S-образной кривой в сцепе с
"эталонным" вагоном выполняется.
Проверка прохождения S-образных кривых двумя проектируемыми вагонами
Определение углов между осью кузова и горизонтальной осью
(7.14)
рад
Определение угла между осью автосцепки и горизонтальной осью
(7.15)
где
- поперечное отклонение шарниров автосцепки вследствие
устранения зазоров, при проходе сцепа вагона в кривых участках пути,
м.
рад
град
град
Рисунок 7.3.- Положение точки A(a',a) в ограничительном контуре.
Точка пересечения линий находится внутри основного контура,
следовательно, условие прохождения S-образной кривой в сцепе с проектируемым
вагоном выполняется.
Проверка прохождения проектируемого вагона в сцепе с эталонным участка
сопряжения прямой и кривой.
На прямом участке пути располагаем эталонный вагон. Расчет производится
по тем же формулам, что и для s-образной, но для "эталонного" вагона,
расположенного на прямой, расчётный радиус кривой принимается
, расчётный радиус кривой
проектируемого вагона
м, поперечное отклонение шарниров автосцепки вследствие
устранения зазоров, при проходе сцепа вагона в кривых участках пути,
м
Определение углов между осью кузова и горизонтальной осью
(7.16)
рад
(7.17)
рад
Определение расстояния от центров шарнира хвостовика автосцепки до
горизонтальной оси
(7.18)
м
(7.19)
м
Определение угла между осью автосцепки и горизонтальной осью
(7.20)
рад
Определение угла между продольной осью вагона и осью автосцепки
град
град
Рисунок 7.4.- Положение точки A(a',a) в ограничительном контуре.
Точка пересечения линий и находится внутри основного контура,
следовательно, условие прохождения сопряжения прямой с кривой в сцепе с
"эталонным" вагоном выполняется. Саморасцепа не произойдет.
Проверка прохождения вагонов без саморасцепа горбов сортировочных горок
Определение обеспечения прохода без саморасцепа по сортировочной горке и
аппараллельному съезду парома
(7.21)
где
- величина относительного вертикального смещения автосцепок
при проходе перелома горки:
(7.22)
где
- коэффициенты, зависящие от линейного параметра
, в нашем случае
,
,
,
,
,
;
мм
- допускаемая по условиям сцепления разность уровней
автосцепок: для автосцепки типа СА-3 М,
мм;
- допускаемая по ПТЭ начальная разность уровней осей
автосцепок
мм
мм
Т.к. выполняется условие (7.21), то саморасцепа, при прохождении вагона
горбов сортировочных горок, не произойдет.
8. Устойчивость вагона
Оценка устойчивости колесной пары от вползания на головку рельса.
Устойчивость колеса против схода с рельса оценивают в зависимости от
скорости движения и от угла наклона рабочей грани гребня
Рисунок 8.1.1.-Расчетная схема нагрузок, действующих на колесную пару
Рисунок 8.1.2.-Положение колесной пары при набегании колеса на рельс с
учетом действующих сил
-радиус колеса в плоскости круга катания, м
-расстояние между серединами шеек колесных пар, м
-расстояние между точками контакта колес с рельсами, м
-расстояние от точек контакта до середин шеек, м

Рисунок 8.1.3.-Схема сил, действующих в точке контакта рабочих граней
колеса и рельса
-количество осей вагона
-вес груза, помещенного в вагон, Н
-вес тары вагона, Н
-вес тары двухосной тележки, Н
-масса тары надрессорной балки, Н
-вертикальная жесткость рессорного подвешивания одного
комплекта, Н/м
-вес колесной пары, Н
Статический прогиб рессорного подвешивания, м
(8.1)
Статическая нагрузка на шейку оси колесной пары, Н
(8.2)
Реальная осевая нагрузка, Н
(8.3)
Количество осей тележки (под одним концом вагона)
Для вычисления коэффициента вертикальной динамики необходимо задаться
значением коэффициента
для необрессоренных частей тележки.
для элементов кузова - 0.05;= для обрессоренных частей тележки - 0.1;
для необрессоренных частей тележки - 0.15,
Коэффициент b, зависящий от осности тележки
(8.4)
Скорость движения вагона, м/с
м/с (8.5)
м/с (8.6)
(8.7)
Распределение коэффициента вертикальной динамики между вертикальными
колебаниями и боковой качкой
(8.8)
Коэффициент динамики боковой качки
(8.9)
Для вычисления коэффициента горизонтальной динамики необходимо задаться
значением коэффициента
для грузовых вагонов на безлюлечных тележках.
для грузовых вагонов на
безлюлечных тележках - 0.003;= для изотермических вагонов на тележках с люлькой
- 0.0025;
для пассажирских вагонов на
тележках с люлькой - 0.002,
Коэффициент горизонтальной
динамики
(8.10)
Рамная сила, Н
(8.11)
Коэффициент устойчивости
колеса против схода с рельса
(8.12)
Угол наклона рабочей грани
гребня колеса к горизонту ГОСТ 9036-88
Коэффициент трения между
колесом и рельсом
Коэффициент
пропорциональности
(8.13)
Вертикальная составляющая
силы реакции между набегающим колесом и рельсом, Н
(8.14)
Вертикальная составляющая
силы реакции между ненабегающим колесом и рельсом, Н
(8.15)
Горизонтальная составляющая
силы реакции между набегающим колесом и рельсом, Н
(8.16)
(8.17)
Допускаемый коэффициент
устойчивости по условию вкатывания для грузовых вагонов -1.4.
Радиус точки контакта гребня
с рельсом, м
(8.18)
Угол набегания колеса на
рельс
- угол набегания в градусах
Скорость вертикального
перемещения колеса, м/с
(8.19)
(8.20)
Длина прямолинейной
образующей рабочей грани гребня, м
Время схода, с
(8.21)
Длина пути схода, м
(8.22)
Вывод: Коэффициент
устойчивости колесной пары при движении со скоростью до 27 м /с получается
больше минимально допустимого значения, устойчивость колесной пары обеспечена.
Оценка устойчивости вагона от
опрокидывания.
Расчет коэффициента
устойчивости вагона от опрокидывания при движении в кривых
Постановка задачи: Оценить устойчивость вагона от опрокидывания при
порожнем и при груженом состоянии в зависимости от возвышения наружного рельса
Расчет коэффициента
устойчивости вагона от опрокидывания при движении в кривых
Рисунок 8.2.1.-Схема
нагружения вагона при опрокидывании
вагон консольный
рессорный автосцепной
-вес надрессорной балки, Н
-вертикальная жесткость рессорного подвешивания
тележки Н/м
Статический прогиб рессорного
подвешивания, м
(8.2.1)
Возвышение наружного рельса в кривой, м
h = 0.15
Половина расстояния между кругами катания, м
Половина расстояния между серединами шеек оси колесной пары, м
-радиус колеса колесной пары, м
-расчетный радиус кривой, м
Вес кузова с грузом, Н
(8.2.2)
Вес тары кузова, Н
(8.2.3)
- максимальная скорость движения, м/c
Центробежная сила, приложенная к кузову вагона, Н
(8.2.4)
- площадь боковой проекции кузова,
-удельное ветровое давление, Па
Ветровая нагрузка, приложенная к кузову, Н
Высота центра масс над уровнем оси колесной пары, м
для порожнего вагона ....................................... 1.07 м
для загруженного до полной грузоподъемности, но на половину высоты кузова
........................1.32 м
для загруженного до полной грузоподъемности, на всю высоту кузова
.............. 1.70 м
Высота точки приложения равнодействующей ветровой и центробежной нагрузок
над уровнем головки рельса, м
(8.2.5)
Отношение веса тележек к весу кузова
(8.2.6)
Отношение боковых сил к весу кузова
(8.2.7)
-не симметрия центра масс вагона, м
Поперечное смещение центра масс вагона по действием боковых сил, м
(8.2.8)
-коэффициент устойчивости вагона от опрокидывания при
движении в кривых
(8.2.9)
Допускаемое значение коэффициента устойчивости 1.5
Рисунок 8.2..-Устойчивость от опрокидывания груженого вагона
Вывод: полученные значения коэффициента
получились больше минимально
допускаемого, значит устойчивость вагона против опрокидывания наружу кривой в
порожнем состоянии обеспечена.
Опрокидывание внутрь кривой в порожнем состоянии
Центробежная сила, приложенная к кузову вагона, Н
(8.2.10)
Высота точки приложения равнодействующей ветровой и центробежной нагрузок
над уровнем головки рельса, м
(8.2.13)
Угол поворота автосцепки в вертикальной плоскости, рад
(8.2.14)
Угол поворота автосцепки в горизонтальной плоскости, рад
(8.2.15)
-поперечное смещение центра масс кузова вагона под действием
боковых сил с учетом конструктивных зазоров, параметров рессорного подвешивания
и возвышения рельса, м
Коэффициент устойчивости вагона
(8.2.16)
Допускаемое значение коэффициента устойчивости вагонов при проверке
опрокидывания внутрь кривой- 1.2 .
Рисунок 8.2.4.-Устойчивость груженого вагона при опрокидывании внутрь
кривой
Вывод: полученные значения коэффициента
получились больше минимально
допускаемого значит устойчивость вагона против опрокидывания внутрь кривой в
груженом состоянии обеспечена.
Оценка от выжимания в составе поезда
Выжимание вагона в составе поезда продольными силами, возникают при
торможении в зависимости от величины продольного сжимающего усилия при порожнем
и груженом режимах.
Рисунок 8.3.1-Формы потери устойчивости сжатым составом в горизонтальной
плоскости
Рисунок 8.3.2-Форма потери устойчивости сжатым составом в вертикальной
плоскости
Расчет коэффициента устойчивости вагона от выжимания продольными силами
-количество вагонов
-вес груза, помещенного в вагон, Н
-вес тары вагона, Н
-вес тары двухосной тележки, Н
-вес надрессорной балки, Н
-вертикальная жесткость рессорного подвешивания тележки Н/м
Выжимание груженого грузового вагона из состава поезда
Горизонтальная жесткость рессорного подвешивания одной двухосной тележки
для груженого грузового вагона
Н/м
Статический прогиб рессорного подвешивания, м
(8.3.1)
половина длины вагона по осям сцепления, м
половина расстояния между упорными плитами автосцепок вагона, м
-половина расстояния между кругами катания, м
-высота опорной поверхности пятника над уровнем головки
рельса, м
-высота продольной оси автосцепки над уровнем головки
рельса, м
-статическая нагрузка на рельсы, Н
-расчетный радиус кривой, м
-половина полного поперечного разбега рамы вагона
относительно оси пути в сечении по пятнику для колесных пар грузовых вагонов на
подшипниках качения со среднеизношенными гребнями колес в кривой расчетного
радиуса, м
-длина корпуса автосцепки от оси сцепления до конца
хвостовика
-разность высот продольных осей смежных автосцепок, м
-угол наклона рабочей грани гребня колеса к горизонту
-коэффициент трения между колесом и рельсом
-расчетная продольная сила для груженых четырехосных вагонов
(соответствует усилиям в поезде весом 10000 тс) -1000000Н
Критическая сила для случая потери устойчивости по схеме а, Н
(8.3.2)
Критическая сила для случая потери устойчивости, приводящая к перекосу
вагонов и осей автосцепок в плане по схеме б, Н
(8.3.3)
Вспомогательные величины
(8.3.4)
Вертикальная нагрузка от тележки на путь с учетом обезгруживания под
действием продольной силы, вызванной разностью высот осей автосцепок
исследуемого вагона и соседнего, Н
(8.3.5)
-коэффициент устойчивости колеса против схода с рельса
Коэффициент пропорциональности
(8.3.6)
Коэффициент устойчивости вагона от выжимания продольными силами для
первой по ходу движения тележки
(8.3.7)
Коэффициент устойчивости вагона от выжимания продольными силами для
второй по ходу движения тележки
(8.3.8)
Рисунок 8.3.3-Коэффициент устойчивости вагона от выжимания продольными
силами
Вывод: Коэффициент устойчивости вагона от выжимания продольными силами
для первой по ходу движения тележки
min>
Коэффициент устойчивости вагона от выжимания продольными силами для
второй по ходу движения тележки
min>
Значит можно говорить, что вагон устойчив от выжимания из состава поезда.
9. Расчет энергоемкости пружинно-фрикционного поглощающего аппарата
Рисунок 9.1-Расчетная схема поглощающего аппарата
Рисунок 9.2.-Схема действия сил на элементы пружинно-фрикционного
аппарата
Тип аппарата Ш-6-ТО-4
-ход поглощающего аппарата, м
-величина начальной затяжки, м
-угол наклона граней клина, рад
- угол наклона граней клина, рад
- угол наклона граней клина, рад
-соответствующие углам трения коэффициенты трения
- соответствующие углам трения коэффициенты трения
- соответствующие углам трения коэффициенты трения
-углы трения на поверхностях клина, рад
- углы трения на поверхностях клина, рад
- углы трения на поверхностях клина, рад
-диаметр прутка наружной пружины, м
- диаметр прутка внутренней пружины, м
- диаметр наружной пружины, м
- диаметр внутренней пружины, м
- количество рабочих витков наружной пружины
- количество рабочих витков внутренней пружины
-модуль упругости, Па
-ускорение свободного падения,
-осевая нагрузка, кН
-осность
-скорость соударения, км/ч
Коэффициент передачи аппарата при сжатии
(9.3)
Коэффициент передачи аппарата при отдаче
(9.4)
Коэффициент, учитывающий разницу между величинами сжатия аппарата пружин,
вызванную сближением клиньев в процессе сжатия аппарата
Жесткость наружной пружины, кН/м
(9.6)
Жесткость внутренней пружины, кН/м
(9.7)
Жесткость комплекта пружин, кН/м
(9.8)
Сила начального сопротивления в процессе сжатия, кН/м
(9.9)
Наибольшая сила сопротивления в процессе сжатия, кН/м
(9.10)
Силы характеризующие обратный ход (отдачу) аппарата, кН
(9.11)
(9.12)
Энергоемкость аппарата, кДж
(9.13)
Коэффициент необратимо-поглощенной энергии
(9.14)
График силовой характеристики поглощающего аппарата
Рассчитаем потребную энергоемкость поглощающего аппарата, кДж
Вывод: выбранный нами поглощающий аппарат удовлетворяет условию E>Eп
следовательно на проектируемый вагон устанавливаем данный поглащающий аппарат
10. Расчет боковой рамы тележки грузового вагона на вертикальные нагрузки
число тележек в вагоне
число боковых рам в одной тележке
кг - масса буксового узла
кг - масса колесной пары
- ускорение свободного падения
кН осевая нагрузка
осность вагона
вес вагона брутто
кH
Определение вертикальной статической силы
(10.1)
кH
Определение вертикальной динамической силы
(10.2)
где
- коэффициент вертикальной динамики
- среднее вероятное значение коэффициента вертикальной
динамики
Определим среднее значение
при
(10.3)
где
- коэффициент, для необрессоренных частей тележки
- коэффициент, учитывающий влияние числа осей в тележке
- скорость движения вагона в соответствии с расчетным режимом
(для третьего режима грузовых вагонов)
- статический прогиб рессорного подвешивания
- число осей в тележке
- параметр функции распределения, для грузовых вагонов
(10.4)
(10.5)
кH
Определение боковой центробежной силы, H
(10.6)
где
коэффициент, равный 0,075 для грузовых вагонов
кН
Определение продольной силы инерции массы кузова
(10.7)
где
- продольная сила удара приложенная к автосцепке;
кН - общая масса вагона (брутто);
(10.8)
кН
(10.9)
кН
кН
Определение вертикальной добавки на тележку от продольной силы инерции
кузова
(10.10)
где
м - расстояние от центра тяжести кузова до боковой рамы.
м - база вагона
кН
Определение вертикальной составляющей от действия боковых сил
(10.11)
где
- число одноименных параллельно нагруженных деталей,
расположенных с одной стороны вагона
- расстояние между точками приложения сил
дополнительного нагружения и
разгружения боковин, H
м - расстояние от центра тяжести до точки приложения силы
кН
Определение суммарной нагрузки по 1 расчетному режиму
Примем суммарную нагрузку сосредоточенной в центрах элементов рессорного
подвешивания.
кН
кН
кН
кН
Рисунок 10.1.- Суммарные нагрузки по 1 расчетному режиму
Максимальное напряжение в боковой раме составляет примерно:
σmax := 111,7 МПа
Вывод по I-му расчетному режиму:
Максимальное напряжение на эпюре возникает в наклонном нижнем поясе и
имеет величину меньшую, чем допускаемое напряжение по I-му расчетному режиму.
Это свидетельствует об обеспечении прочности этого элемента боковой рамы
тележки под действием соответствующих нагрузок.
Определение суммарной нагрузки по 3 расчетному режиму
Нагрузка принимается сосредоточенной в центрах элементов рессорного
подвешивания.
кН
кН
кН
кН
Рисунок 10.2.- Суммарные нагрузки по 3 расчетному режиму
Максимальное напряжение в боковой раме составляет примерно:
σmax := 73,73 МПа
Вывод по III-му расчетному режиму:
Максимальное напряжение на эпюре возникает в наклонном нижнем поясе и
имеет величину меньшую, чем допускаемое напряжение по III-му расчетному режиму. Это свидетельствует об обеспечении
прочности этого элемента боковой рамы тележки под действием соответствующих
нагрузок.
Вывод по проведенным расчетам.
Анализ напряженно-деформированного состояния боковой рамы тележки 18-100
под действием нагрузок, возникающих при эксплуатации ее под платформой с осевой
нагрузкой 113.55 кН/ось, показывает обеспечение достаточной прочности
конструкции от соответствующего нагружения. Следовательно, данная тележка может
использоваться под заданным вагоном
Заключение
В курсовом проекте рассчитан крытый вагон для перевозки живности на
дальние расстояния.
Выше приведены расчеты по размещению ходовых частей под консольной частью
вагона, и вписыванию вагона в габарит 1-Т. Полученная консольная часть
проектируемого вагона без ограничений вписывает под себя ходовые части, а
полученные вертикальные и горизонтальные очертания вагона понизу и поверху
полностью подходят под существующие требования. Получена удовлетворяющая нас
долговечность подшипников качения, подходящая жесткость рессорного
подвешивания. Наиболее опасные сечения оси колесной пары обеспечивают
необходимую прочность. Проведена проверка боковой рамы тележки 18-100 методом конечных
элементов. Проверенные конструкции выдерживают все приложенные к ним нагрузки и
гарантируют надежную их эксплуатацию на весь срок службы вагона. Работа
фрикционного гасителя колебаний удовлетворительна. При проверке кинематических
параметров автосцепного оборудования подтверждена проходимость S-образной кривой как проектируемого
вагона в сцепе с эталонным, так и двух проектируемых вагонов; прохождение
проектируемого вагона в сцепе с эталонным на участке сопряжения прямой и
кривой; автоматическое сцепления в кривой расчетного радиуса; прохождение
сортировочных горок. Оценка устойчивости колесной пары от вползания на головку
рельса, устойчивости вагона от опрокидывания (как наружу кривой, так и внутрь)
и выжимания в составе поезда дала положительный результат. Подобран поглощающий
аппарат с необходимой энергоемкостью. Исходя из выше изложенного, крытый вагон
с нагрузкой 113.55 кН отвечает требованиям норм и может обращаться по всем
дорогам России, Балтии и МНР.
Список литературы
1.
Вагоны
(конструкция, теория, расчет) /Под ред. Л.А. Шадура.-М.: Транспорт, 1980.-440
с.
2.
Вагоны/ И.Ф.
Пастухов, В.В. Лукин, Н.И. Жуков.- М.: Транспорт, 1988.- 278 с.
3.
Габариты
приближения строений и подвижного состава железных дорог колеи 1520 (1524) мм.
ГОСТ 9238-83.- М.: Изд.- во стандартов, 1983.- 27 с.
4.
Конструирование и
расчет вагонов / Под ред. В.В. Лукина.- М.: Изд.-во УМК МПС России, 2000.- 71
с.
5.
Глазкова И.В.
Методические указания к лабораторным работам по дисциплине "Вагоны".-
Иркутск: ИрИИТ, 2002.- 33 с.
6.
Нормы расчета и
проектирования вагонов железных дорог МПС колеи 1520 мм (несамоходных)/ ГосНИИВ
- ВНИИЖТ. М., 1996.- 319 с.
7.
Расчет вагонов на
прочность / Под ред. Л.А. Шадура.-М.: Машиностроение, 1971.- 431 с.