Организация производства и рабочих мест в холодном цехе ресторана на 100 мест
Организация производства и рабочих
мест в холодном цехе ресторана 1 класса на 100 мест
Содержание
Введение
1. Характеристика предприятия
2. Характеристика цеха
. Определение количества
посетителей
. Производственная программа
холодного цеха
.1 Составление графика
реализации блюд и напитков
.2 Расчет количества
работников цеха
4.3 График
выхода на работу
5. Потребность в оборудовании
холодного цеха
.1 Расчет потребности в
овощерезательной машине
.2 Расчет холодильного
оборудования
5.2.1 Полезный
объем холодильного шкафа для овощей и фруктов
.2.2 Полезный
объем холодильного шкафа для мясных и рыбных
продуктов
5.3 Расчет вспомогательного
оборудования
.4 Организация рабочих мест
.5 Реализация (отпуск)
кулинарной продукции
.6 Санитарные требования
5.6.1
Обработка инвентаря и оборудования
.6.2 Личная
гигиена производственного персонала
6. Технологические схемы
приготовления блюд
Список использованной
литературы
Приложение А
Приложение Б
Введение
Создание необходимых условий для удовлетворения потребностей людей в
полноценном питании по месту работы, учебы, жительства и отдыха, повышение
качества обслуживания и предоставление дополнительных услуг предприятиями
общественного питания - важнейшие социально-экономические задачи государства.
Новые тенденции развития данного направления в значительной мере зависят
от материально-технической базы, внедрения в новые проекты и внесение
прогрессивных изменений в устаревшие проекты научно-технических достижений
современного уровня.
Политика в области развития общественного питания направляет идеи на
новые методы обработки сырья, создание новых кулинарных рецептов на основе
научного подхода к технологии приготовления блюд. Все шире применяется сырье,
обработанное современными способами быстрой заморозки, сохраняющей витамины и
консервированное сырье, обработанное на современных аппаратах в процессе
сложных механических, тепловых и холодильных операциях.
Перед общественным питанием стоит задача расширения сферы услуг,
повышения качества, расширение ассортимента приготовляемых блюд, увеличение
выработки полуфабрикатов высокой степени готовности. Для выполнения
поставленных задач необходимо применение новейших достижений науки и техники,
повышение эффективности работы, формирование рациональной системы обслуживания
посетителей, развитие специализации предприятий, улучшение условий труда
работников, повышение культуры обслуживания населения.
Такие задачи в равной мере стоят перед всеми ресторанами, кафе,
столовыми, буфетами и другими предприятиями общественного питания.
1.
Характеристика предприятия
Ресторан 1 класса на 100 мест расположен в бурно развивающемся районе
города. Цель работы предприятия - организация питания работающих в этом районе
горожан и гостей города. Режим работы ресторана с 11.00 до 23.00 ч.
Ресторан имеет красивую вывеску, оформленные витрины, помещения и мебель
выдержаны в едином стиле. Посуда используется из фарфора, стекла, керамики,
нержавеющей стали, мельхиора.
Выпускается и реализуется большой ассортимент блюд из мяса, рыбы, грибов,
мяса птицы, а также различных холодных и горячих закусок.
Снабжение продуктами производится из различных источников, основными
являются местные предприятия-изготовители, но есть и поставщики продукции из-за
рубежа, завоз осуществляется в соответствии с заключенными договорами поставок.
Остальные продукты закупаются товароведом на оптовых базах и рынках
города по договорным ценам за наличный расчет.
Так как ресторан находится в уже обжитом районе, следовательно,
предприятие подключено к централизованным сетям водоснабжения, электросети,
теплоснабжения, канализации.
Управление рестораном осуществляет директор, в подчинении которого
находятся заведующий производством (технолог), отвечающий за качество и
ассортимент блюд; администратор, который осуществляет организационный надзор и
обслуживающий персонал. Совмещение должностей не вредит качеству работы.
Рекламной деятельностью предприятия занимаются директор и бухгалтер
предприятия. Рекламная работ предприятия направлена на расширение новых форм
подачи рекламного материала. Разработка новых блюд, их оформление, подача,
внедрение новых продуктов, обогащенных витаминами и микроэлементами создает
имидж предприятия и позволяет обеспечить потребителей качественным питанием.
Рисунок 1 -Управление рестораном
2.
Характеристика цеха
Холодный цех ресторана служит для приготовления холодных блюд, закусок,
бутербродов, сладких блюд, холодных супов. Блюда и изделия не подвергают
тепловой обработке, поэтому необходимо строго соблюдать санитарные правила при
организации технологического процесса.
Холодный цех располагают такиь образом, чтобы горячий цех, где проводят
тепловую обработку продуктов для последующего приготовления холодных блюд, был
близко. Удобная связь должна быть и с раздачей и моечной столовой посуды.
Закуски, салаты и другие холодны блюда приготовляют непосредственно перед
отпуском потребителям. Блюда должны быть аккуратно нарезаны и красиво оформлены
расположением компонентов на блюде. Поэтому холодный цех должен быть оснащен наборами
разнообразных инструментов.
Модулированные секции-столы с охлаждаемым шкафом и горкой предназначены
для хранения компонентов холодных блюд таких как консервированные фрукты,
зелень, лимоны и т.п. Должна быть секция-стол для хранения специй, кухонной
посуды, инвентаря, а также для установки и подключения к электрической сети
средств малой механизации. Кухонный используются вспомогательная полка и
специальные отсеки для хранения разделочных досок.
Кроме того, цех обязательно оснащен производственными столами и моечными
ваннами.
Раздаточная секционная модулированная стойка служит для отпуска готовых
блюд и закусок официантам в цехе.
Для изготовления сладких блюд - желе, муссы, компоты, фрукты
консервированные и свежие, мороженое с фруктами и вареньем, взбитые сливки, а
также молочные коктейли и др. имеется специальный инструмент и приспособления:
соковыжималки, лотки, формы, лопатки-ножи, приборы для раскладывания блюд,
щипцы. На рабочем месте повара, готовящего сладкие блюда имеется ванна,
производственный стол с охлаждаемым шкафом, весы, различная посуда,
специализированный универсальный привод со сменными механизмами для протирания
фруктов, ягод, взбивания муссов, кремов, самбуков.
Лимонный, клюквенный и другие напитки, компоты готовят в горячем цехе в
стационарных или наплитных котлах, а затем транспортируют в холодный цех. Здесь
их порционируют в стаканы, креманки.
Хранят мороженое то, что поступило из хладокомбинатов, в
низкотемпературной секции, отпускают в металлических креманках в натуральном
виде или с наполнителями (вареньем, сиропами и др.). Отпускают мороженое в
креманках, порционируя его круглыми (подогретыми в воде) выемками.
Из сладких блюд делаются заранее заготовки, что предотвращает спешку при
обслуживании потребителей в часы «пик»: разливают сок в стаканы, натирают
шоколад, открывают банки с консервированными фруктами и соками.
В холодильном отделении стола-секции или холодильном шкафу имеется запас
продуктов. Желе хранят в холодильном шкафу в формочках. Перед отпуском его
вынимают из форм, погружая в горячую воду. Взбитые сливки с шоколадом, вареньем
готовят перед отпуском и выпускают из кондитерских мешков в креманки. Для
нанесения рисунка используют специальные шаблоны.
В холодном цехе особое внимание уделяется санитарному порядку на рабочем
месте и личной гигиене, сроков реализации сладких блюд, так как они могут
служить питательной средой для развития микроорганизмов.
В цехе четко разграничивают производство блюд из сырых и отварных овощей,
а также из готового мяса или рыбы. Это относится, прежде всего, к таким
процессам, как нарезка сырых и отварных овощей, соединение компонентов салатов,
винегретов; взбивание мусса, самбука, сметаны, порционирование холодных блюд и
закусок, холодных супов, сладких блюд и холодных напитков.
Для нарезки хлеба, масла и гастрономических продуктов на порции
используют электрическую хлеборезку и машину для нарезки сыра, колбасы,
ветчины, масло делитель и т. п. Эти машины устанавливают на секционный
модульный стол. Нарезанные продукты хранят в холодильных шкафах.
Для окрошки, борща, щей зеленых, ботвиньи, свекольника, фруктовых супов,
то есть холодных супов используют овощи, которые варят в горячем цехе, а
охлаждают и нарезают мелкими кубиками или соломкой в холодном. Затем супы
заправляют в котлах и отпускают в охлажденном виде (10-14 °С) с добавлением
пищевого льда (для ботвиньи и окрошки), вырабатываемого установленным в цехе
льдогенератором.
Повара более высоких разрядов готовят наиболее трудоемкие заказные и
банкетные блюда, порционируют и оформляют их. Повара низших разрядов
подготавливают продукты: варят картофель и овощи, жарят мясные и рыбные
полуфабрикаты для холодных блюд, нарезают овощи на машинах, обрабатывают
сельдь.
3.
Определение количества посетителей
Число
потребителей ресторана определяется по графику загрузки зала или
оборачиваемости мест в течение дня. Режим работы устанавливается
непосредственно самим предприятием с учетом контингента обслуживаемых
посетителей.
Определяем
количество посетителей Nп за каждый час работы по формуле
,
где
Р - количество посадочных мест;
- средний
процент загрузки зала, %;
хч
- оборачиваемость одного места в течение часа.
Так,
например, необходимо обслужить за один час работы с 11 до 12 часов
человек
Данные
расчета количества посетителей сведены в таблицу 1.
Таблица 1
Расчет количества посетителей
|
Часы работы предприятия
|
Оборачиваемость одного места
|
Средний процент загрузки
|
Количество посетителей, Nч
|
|
11-12
|
1,5
|
20
|
30
|
|
12-13
|
1,5
|
30
|
45
|
|
13-14
|
1,5
|
90
|
135
|
|
14-15
|
1,5
|
70
|
105
|
|
15-16
|
1,5
|
60
|
90
|
|
16-17
|
1,5
|
30
|
45
|
|
17-18
|
Перерыв
|
|
|
|
18-19
|
0,6
|
50
|
30
|
|
19-20
|
0,6
|
100
|
60
|
|
20-21
|
0,6
|
90
|
54
|
|
21-22
|
0,6
|
80
|
40
|
|
22-23
|
0,6
|
40
|
48
|
|
Итого количество посетителей кафе за день, Nд, чел.
|
682
|
4.
Производственная программа холодного цеха
Исходя из конкретных условий сформирована
производственная программа холодного цеха.
Общее количество приготовленных и реализованных в
течение дня блюд составит
где
- число потребителей в течение дня;
-
коэффициент потребления блюд.
2387 блюд
По
рекомендации холодные блюда и закуски составляют до 45 % от общего количества
блюд. Следовательно, всего холодных блюд и закусок должно быть приготовлено
=
блюда
Таблица 2
Распределение холодных блюд
|
№ пп
|
Наименование группы блюд
|
Процентное соотношение в группе
|
Количество
|
|
1
|
Рыбные
|
30
|
322
|
|
2
|
Мясные
|
35
|
376
|
|
3
|
Салаты
|
25
|
269
|
|
4
|
Кисломолочные продукты
|
10
|
107
|
|
Всего
|
-
|
1074
|
Напитки рассчитываем с учетом норм потребления на
одного человека.
Горячие напитки - 0,05 л * 682 = 34 л
Холодных напитков, в том числе минеральная вода, соки
- 0,25л * 682 = 171 л.
Вино-водочных изделий в ресторане потребляют - 0,1л *
682 = 68 л.
Пиво - 0,025 л * 682 = 17 л.
Таблица 3
Примерный план-меню ресторана
|
№ пп
|
Наименование блюд и номер рецептуры
|
Кол-во блюд
|
Выход/отпуск в г.
|
|
Холодные блюда и закуски
|
|
|
|
1
|
Бутерброды с икрой зернистой (№ 8)
|
81
|
52
|
|
2
|
Бутерброды с заливной рыбой (11)
|
81
|
105
|
|
3
|
Консервы овощные закусочные (41)
|
30
|
100
|
|
4
|
Мясное ассорти (№153)
|
125
|
120
|
|
5
|
Рыбное ассорти (№144)
|
80
|
120
|
|
6
|
Салат из сырых овощей (53)
|
39
|
1000/150
|
|
7
|
Салат мясной (73)
|
125
|
1000/150
|
|
8
|
Салат «Сезонный» (№ 83)
|
40
|
150
|
|
9
|
Салат Петровский грибной (87)
|
40
|
1000/150
|
|
10
|
Салат по домашнему с черносливом (98)
|
40
|
150
|
|
11
|
Салат-коктейль овощной (89)
|
40
|
100
|
|
12
|
Помидоры, фаршированные грибами (113)
|
40
|
200
|
|
13
|
Жареная рыба под маринадом (121)
|
80
|
160
|
|
14
|
Поросенок заливной (129)
|
126
|
270
|
|
15
|
Кисломолочные продукты
|
107
|
100
|
|
Напитки
|
|
|
|
1
|
Горячие напитки, л
|
34 л
|
200
|
|
2
|
Холодные напитки, в т.ч. фруктовая и минеральная вода,
соки, л
|
171 л
|
200
|
|
3
|
Вино-водочные изделия, л
|
68 л
|
100
|
|
4
|
Пиво
|
17 л
|
500
|
4.1
Составление графика реализации блюд и напитков
На основании таблицы загрузки зала и плана-меню количество блюд того или
иного наименования за каждый час работы предприятия определится по формуле
Пч = Пд * Кч,
Где Пч - количество блюд, изготавливаемых за час работы
предприятия;
Пд - количество блюд, реализуемых за день;
Кч - коэффициент пересчета блюд за час (см. табл. 1), как
отношение количества посетителей за час к количеству посетителей за день,
Кч
=
.
Если
реализация отдельных блюд начинается несколько позднее и кончается раньше
реализации других блюд, то коэффициенты пересчета для них следует определить
отдельно.
Таблица 4
Количество блюд за каждый час работы
|
Наименование блюда
|
Время работы ресторана
|
Количество блюд за день
|
|
11-12
|
12-13
|
13-14
|
14-15
|
15-16
|
16-17
|
17-18
|
18-19
|
19-20
|
20-21
|
21-22
|
22-23
|
|
|
Коэффициент пересчета блюд (Кч)
|
|
|
0,044
|
0,066
|
0,198
|
0,154
|
0,132
|
0,066
|
-
|
0,044
|
0,088
|
0,079
|
0,058
|
0,07
|
|
|
Бутерброды с икрой зернистой (№ 8)
|
6
|
16
|
12
|
10
|
5
|
|
5
|
7
|
6
|
5
|
5
|
6
|
81
|
|
Бутерброды с заливной рыбой (11)
|
6
|
16
|
12
|
10
|
5
|
|
5
|
7
|
6
|
5
|
5
|
6
|
81
|
|
Консервы овощные закусочные (41)
|
2
|
7
|
5
|
5
|
3
|
|
1
|
2
|
2
|
1
|
1
|
2
|
30
|
|
Мясное ассорти (№127)
|
8
|
23
|
19
|
16
|
8
|
|
6
|
11
|
10
|
8
|
9
|
8
|
125
|
|
Рыбное ассорти (№122)
|
5
|
16
|
12
|
10
|
5
|
|
5
|
7
|
6
|
5
|
5
|
5
|
80
|
|
Салат из сырых овощей (53)
|
5
|
6
|
5
|
4
|
4
|
|
2
|
3
|
3
|
2
|
5
|
39
|
|
Салат мясной (73)
|
8
|
23
|
19
|
16
|
8
|
|
6
|
11
|
10
|
8
|
9
|
8
|
125
|
|
Салат «Сезонный» (№ 83)
|
2
|
9
|
7
|
5
|
3
|
|
2
|
3
|
3
|
2
|
2
|
2
|
40
|
|
Салат Петровский грибной (87)
|
2
|
9
|
7
|
5
|
3
|
|
2
|
3
|
3
|
2
|
2
|
2
|
40
|
|
Салат по домашнему с черносливом (98)
|
2
|
9
|
7
|
5
|
3
|
|
2
|
3
|
3
|
2
|
2
|
2
|
40
|
|
Салат-коктейль овощной (89)
|
2
|
9
|
7
|
5
|
3
|
|
2
|
3
|
3
|
2
|
2
|
2
|
40
|
|
Помидоры, фаршированные грибами (113)
|
2
|
9
|
7
|
5
|
3
|
|
2
|
3
|
3
|
2
|
2
|
2
|
40
|
|
Жареная рыба под маринадом (121)
|
3
|
17
|
11
|
10
|
3
|
|
5
|
8
|
7
|
5
|
6
|
3
|
80
|
|
Поросенок заливной (129)
|
8
|
23
|
19
|
15
|
8
|
|
7
|
12
|
10
|
8
|
9
|
8
|
126
|
|
Кисломолочные продукты
|
8
|
20
|
16
|
14
|
8
|
|
5
|
9
|
8
|
6
|
7
|
8
|
107
|
|
Напитки
|
|
|
|
|
|
|
|
|
|
|
|
|
|
|
Горячие напитки, л
|
2,6
|
6,5
|
5,1
|
4,4
|
2,2
|
|
1,4
|
2,9
|
2,7
|
2,2
|
2,2
|
2,6
|
34 л
|
|
Холодные напитки, л
|
11,5
|
34,3
|
26,8
|
22,7
|
11,5
|
|
8
|
15,1
|
14,3
|
11,5
|
13,5
|
11,5
|
171 л
|
|
Вино-водочные изделия, л
|
4,5
|
13,4
|
10,8
|
8,9
|
4,5
|
|
3,2
|
5,9
|
5,4
|
4,2
|
4,2
|
4,5
|
68 л
|
|
Пиво
|
1,1
|
3,1
|
2,4
|
2,2
|
1,3
|
|
0,7
|
1,5
|
1,5
|
1,1
|
1,3
|
1,1
|
17 л
|
Таблица 5
Расчет количества основных продуктов, входящих в состав блюда и требующих
машинной нарезки
|
№ пп
|
Наименование блюда
|
Выход/ Отпуск
|
Кол-во блюд, ед.
|
Морковь, г
|
Репа, г
|
Сельдерей, (корень), г
|
Помидоры Св., г
|
Огурцы св., г.
|
Капуста белокоч., г
|
|
|
г.
|
г.
|
Нет-то (рец)
|
Общ кол-во
|
Нет-то (рец)
|
Общ кол-во
|
Нет-то (рец)
|
Общ кол-во
|
Нет-то (рец)
|
Общ кол-во
|
Нет-то (рец)
|
Общ кол-во
|
Нет-то (рец)
|
Общ кол-во
|
|
1
|
Салат из сырых овощей (№53)
|
1000/ 150
|
39
|
135
|
790
|
125
|
731
|
50
|
293
|
175
|
1024
|
175
|
1024
|
100
|
585
|
|
|
Выход/ Отпуск
|
Кол-во блюд, ед.
|
Говядина отварная, г.
|
Картофель отварной,
г
|
Огурцы свеж.,г
|
Яйца, г
|
Редька
|
Капуста белокоч св.
|
|
3
|
Салат сезонный (№83)
|
г.
|
г.
|
Нетто (рец)
|
Общ кол-во
|
Нетто (рец)
|
Общ кол-во
|
Нетто (рец)
|
Общ кол-во
|
Нетто (рец)
|
Общ кол-во
|
Нетто (рец)
|
Общ кол-во
|
Нетто (рец)
|
Общ кол-во
|
|
|
150
|
125
|
48
|
6000
|
40
|
5000
|
100
|
600
|
300
|
1800
|
30
|
3750
|
15
|
1875
|
|
3
|
Салат мясной(№73)
|
|
Кол-во блюд, ед.
|
Морковь
|
Картофель отварной
|
Лук-порей зеленый, г
|
Грибы соленые, г
|
Лук репчатый, г
|
Помидоры свеж., г.
|
|
|
г.
|
г.
|
Нетто (рец)
|
Общ кол-во
|
Нетто (рец)
|
Нетто (рец)
|
Общ кол-во
|
Нетто (рец)
|
Общ кол-во
|
Нетто (рец)
|
Общ кол-во
|
Общ кол-во
|
Нетто (рец)
|
Общ кол-во
|
|
|
1000/150
|
40
|
80
|
240
|
110
|
40
|
1600
|
125
|
5000
|
25
|
1000
|
660
|
50
|
300
|
|
|
Выход/ Отпуск
|
Кол-во блюд, ед.
|
Огурцы соленые, г
|
Горошек зеленый консерв., г
|
Чернослив, г.
|
Яйца, г.
|
Яблоки маринов., г.
|
Капуста квашеная, г
|
|
4
|
Салат по домашнему с черносливом (№98)
|
|
Ед.
|
Нетто (рец)
|
Общ кол-во
|
Нетто (рец)
|
Общ кол-во
|
Нетто (рец)
|
Нетто (рец)
|
Общ кол-во
|
Общ кол-во
|
Нетто (рец)
|
Общ кол-во
|
Нетто (рец)
|
Общ кол-во
|
|
|
150
|
40
|
25
|
1000
|
20
|
800
|
20
|
200
|
1200
|
800
|
15
|
600
|
10
|
400
|
|
|
Выход/ Отпуск
|
Кол-во блюд, ед.
|
Грибы соленые, г.
|
Огурцы соленые, г
|
Лук репчатый, г
|
Петрушка (зелень), г
|
Огурцы свеж., г
|
Помидоры свеж., г.
|
|
6
|
Салат «Петровский» грибной (№87)
|
г
|
Ед.
|
Нетто (рец)
|
Общ кол-во
|
Нетто (рец)
|
Нетто (рец)
|
Общ кол-во
|
Нетто (рец)
|
Общ кол-во
|
Нетто (рец)
|
Общ кол-во
|
Нетто (рец)
|
Общ кол-во
|
|
|
1000/150
|
40
|
270
|
1620
|
270
|
2
|
80
|
20
|
800
|
20
|
800
|
1620
|
170
|
1020
|
|
7
|
Салат-коктейль овощной (№89)
|
Выход/ Отпуск
|
Кол-во блюд, ед.
|
Горошек зеленый консервир., г.
|
Капуста цветная, г,
|
Перец сладкий консервир., г.
|
Говядина отварная, г
|
Курица, г
|
Язык говяжий, г
|
|
8
|
Ассорти мясное (№ 127)
|
г.
|
Ед.
|
Нетто (рец)
|
Общ кол-во
|
Нетто (рец)
|
Нетто (рец)
|
Общ кол-во
|
Нетто (рец)
|
Общ кол-во
|
Нетто (рец)
|
Общ кол-во
|
Общ кол-во
|
Нетто (рец)
|
Общ кол-во
|
|
|
100
|
40
|
20
|
800
|
15
|
40
|
5000
|
37
|
4625
|
42
|
5250
|
600
|
5
|
200
|
|
9
|
Ассорти рыбное (№ 122)
|
Икра зернистая, г
|
Огурцы соленые, г
|
Помидоры свежие, г
|
Морковь, г
|
Зеленый горошек конс., г
|
Семга соленая, г
|
Севрюга, г
|
Шпроты, г
|
|
|
Нетто (рец)
|
Общ к-во
|
Нетто (рец)
|
Общ к-во
|
Нетто (рец)
|
Общ кол-во
|
Нетто (рец)
|
Общ кол-во
|
Нетто (рец)
|
Общ кол-во
|
Нетто (рец)
|
Общ кол-во
|
Нетто (рец)
|
Общ кол-во
|
Нетто (рец)
|
Общ кол-во
|
|
|
15
|
1200
|
15
|
1200
|
15
|
1200
|
15
|
1200
|
15
|
1200
|
30
|
2400
|
41
|
3280
|
30
|
2400
|
|
|
|
|
|
|
|
|
|
|
|
|
|
|
|
|
|
|
|
|
|
|
|
|
|
|
|
|
|
|
|
|
|
|
|
|
|
|
|
|
|
|
|
|
|
|
|
|
|
|
Таблица 6
Сводная таблица количества (г) основных продуктов, входящих в состав
блюда и требующих машинной нарезки (таблица 5):
|
Салат из сырых овощей (№53)
|
Салат мясной (№73)
|
Салат сезонный (№83)
|
Помидоры, фарширо-ванные грибами (№113)
|
Салат по до-машнему с черносливом (№98)
|
Салат «Петровский» грибной (№87)
|
Салат-коктейль овощной (№89)
|
Ассорти мясное (№ 127)
|
Ассорти рыбное (№ 122)
|
Всего, кг
|
|
Картофель отварной
|
|
5000
|
660
|
|
|
|
|
|
|
5,660
|
|
Сельдерей (корень)
|
293
|
|
|
|
|
|
|
|
|
0,293
|
|
Морковь
|
790
|
|
240
|
|
|
|
|
|
1200
|
2,230
|
|
Репа
|
731
|
|
|
|
|
|
|
|
|
0,731
|
|
Редька
|
|
|
600
|
|
|
|
|
|
|
0,600
|
|
Чернослив
|
|
|
|
|
800
|
|
|
|
|
0,800
|
|
Горошек зел. конс.
|
|
|
|
|
800
|
|
800
|
|
1200
|
2,800
|
|
Огурцы соленые
|
|
|
|
|
1000
|
1620
|
|
|
1200
|
3,820
|
|
Капуста квашеная
|
|
|
|
|
|
1200
|
|
|
|
1,200
|
|
Лук порей
|
|
|
300
|
|
|
|
|
|
|
0,300
|
|
Лук репчатый
|
|
|
|
1000
|
|
1020
|
|
|
|
2,020
|
|
Яблоки св.
|
|
|
1320
|
|
|
|
|
|
|
1,320
|
|
Яблоки маринов.
|
|
|
|
|
400
|
|
|
|
|
0,400
|
|
Капуста белокоч. св.
|
585
|
|
1800
|
|
|
|
|
|
|
2,385
|
|
Капуста цветная
|
|
|
|
|
|
|
600
|
|
|
0,6
|
|
Петрушка (зелень)
|
|
|
120
|
|
|
|
80
|
|
|
0,200
|
|
Помидоры св.
|
1024
|
|
|
5000
|
|
|
800
|
|
1200
|
8,024
|
|
Огурцы св, г
|
1024
|
3750
|
|
|
|
|
800
|
|
|
5,574
|
|
Говядина отварная
|
|
6000
|
|
|
|
|
|
|
|
6,000
|
|
Курица отварная
|
|
|
|
|
|
|
|
4625
|
|
4,625
|
|
Язык отварной
|
|
|
|
|
|
|
|
5250
|
|
5,250
|
|
Икра зернистая
|
|
|
|
|
|
|
|
|
1200
|
1,200
|
|
Севрюга
|
|
|
|
|
|
|
|
|
3280
|
3,280
|
|
Семга соленая
|
|
|
|
|
|
|
|
|
2400
|
2,400
|
|
Шпроты
|
|
|
|
|
|
|
|
|
2400
|
2,400
|
|
Яйца, г
|
|
1875
|
|
|
600
|
|
|
5000
|
|
7,475
|
|
Перец сладкий конс.
|
|
|
|
|
|
|
200
|
|
|
0,2
|
|
Грибы соленые
|
|
|
|
1600
|
|
1620
|
|
|
|
3,22
|
|
Всего к нарезке, кг
|
|
|
|
|
|
|
|
|
|
75,007 кг
|
4.2
Расчет количества работников цеха
Производится на основании производственной программы цеха и норм времени
для приготовления блюд каждого вида, изготавливаемых в цехе и включенных в
план-меню.
,
где
t - средняя норма времени для приготовления (доработки)
блюда;
t = к*100,
где
к - коэффициент трудоемкости;
-
норма времени (с), необходимого для изготовления (доработки) изделия,
коэффициент трудоемкости которого равен 1.
Пд
- количество блюд, реализуемых за день;
Тсм
- продолжительность смены;
-
коэффициент, учитывающий рост производительности труда.
Например,
для салата мясного:
t = 2*20 = 40
мин; Пд = 125, Тсм = 12 ч,
= 1,14.
Тогда,
= 0,1
чел.
Все
полученные данные оформляем в виде таблицы, усредняя для некоторых продуктов
норму времени.
ресторан холодный производственный технологический
Таблица 7
Расчет количества работников
|
Наименование блюд
|
Количество блюд
|
К-т трудоемкости
|
Норма времени на одно блюдо, мин
|
Количество работников, чел
|
|
1
|
Бутерброды с икрой зернистой (№8)
|
81
|
0,3
|
10
|
0,005
|
|
2
|
Бутерброды с заливной рыбой (11)
|
81
|
0,6
|
30
|
0,03
|
|
3
|
Консервы овощные закусочные (41)
|
30
|
0,4
|
5
|
0,001
|
|
4
|
Мясное ассорти (№127)
|
125
|
1,2
|
20
|
0,061
|
|
5
|
Рыбное ассорти (№122)
|
80
|
1,2
|
25
|
0,049
|
|
6
|
Салат из сырых овощей (53)
|
39
|
1,2
|
20
|
0,019
|
|
7
|
Салат мясной (73)
|
125
|
2
|
30
|
0,152
|
|
8
|
Салат «Сезонный» (№83)
|
40
|
1,5
|
15
|
0,018
|
|
9
|
Салат Петровский грибной (87)
|
40
|
1,5
|
15
|
0,018
|
|
10
|
Салат по домашнему с черносливом (98)
|
40
|
2,2
|
30
|
0,054
|
|
11
|
Салат-коктейль овощной (89)
|
40
|
1,5
|
20
|
0,024
|
|
12
|
Помидоры, фаршированные грибами (113)
|
40
|
2,7
|
120
|
0,263
|
|
13
|
Жареная рыба под маринадом (121)
|
80
|
1,4
|
120
|
0,273
|
|
14
|
Поросенок заливной (129)
|
126
|
1,5
|
150
|
0,576
|
|
15
|
Кисломолочные продукты
|
107
|
0,3
|
25
|
0,016
|
|
Всего поваров холодного цеха
|
|
|
|
1,6
|
Общая численность поваров цеха с учетом выходных и праздничных дней,
отпусков, дней болезни:
Nобщ = Nрасч* Квых;
Где Nобщ - общее число работников в цехе;
Nрасч - расчетное количество работников;
Квых - коэффициент, учитывающий выходные (52 дня) и
праздничные дни (13 дней), невыходы на работу по разным причинам - 28 дней, К=
365/272 = 1,342.
Nобщ = 1,6 * 1,342 = 2,15 человека.
В холодном цехе обеспечивать производственную программу по холодным
блюдам и закускам смогут 3 человека.
.3 График выхода на работу
Для обеспечения установления четкого распорядка работы на каждом
предприятии общественного питания составляются графики выхода на работу.
Режим труда и отдыха, организованные по специально разработанным
методикам специалистов, обеспечивают повышение производительности труда
работников, значительно снижают травматизм и заболеваемость, повышают культуру
производства. Как правило, на предприятии, на котором четко соблюдается
распорядок трудовых будней, меньше текучесть кадров, выше качество продукции.
Таблица 8
График выхода на работу в месяце
|
№ пп
|
Ф.И.О.
|
Дни месяца
|
|
|
1
|
2
|
3
|
4
|
5
|
6
|
7
|
9
|
10
|
11
|
12
|
13
|
14
|
15
|
16
|
17
|
18
|
19
|
20
|
21
|
22
|
23
|
24
|
25
|
|
1
|
Инкина Т.В.
|
х
|
х
|
|
х
|
х
|
|
х
|
х
|
|
х
|
х
|
|
х
|
х
|
|
х
|
х
|
|
х
|
х
|
|
х
|
х
|
|
х
|
|
2
|
Доминова Л.Н.
|
|
х
|
х
|
|
х
|
х
|
|
х
|
х
|
|
х
|
х
|
|
х
|
х
|
|
х
|
х
|
|
х
|
х
|
|
х
|
х
|
|
|
3
|
Козлова Е.А.
|
х
|
|
х
|
х
|
|
х
|
х
|
|
х
|
х
|
|
х
|
х
|
|
х
|
х
|
|
х
|
х
|
|
х
|
х
|
|
х
|
х
|
5.
Потребность в оборудовании холодного цеха
.1 Расчет
потребности в овощерезательной машине.
Требуемая производительность овощерезательной машины
- масса
сырья, кг/ч,
Отварного
картофеля требуется нарезать
= 5,660
кг.
- условное
время работы механизма, ч.
= Т·ηу;
Т
- продолжительность работы смены, Т = 12 ч.
ηу -
условный коэффициент использования машины, ηу = 0,5.
Тогда,
= 12 · 0,5 = 6 ч.
Выбираем
овощерезательную машину МРО-200.
Таблица 9
Техническая характеристика МРО-200
|
Производительность, кг/ч
|
До 200
|
|
Толщина нарезанных ломтиков, мм
|
2-3
|
|
Мощность электродвигателя, кВт
|
0,4
|
|
Напряжение, В
|
220/380
|
|
Габариты, мм
|
530х335х460
|
|
Масса, кг
|
Не более 35
|
Уменьшение производительности за счет вязкости продукта может снизиться
до 20%, то есть на 40 кг и составит:
- (200*20)/100 = 160 кг.
Фактическая продолжительность работы машины
= 0,0353
ч
Сельдерей
- 0, 293 кг
= 0,0018
ч
Морковь
- 2,230
= 0,014
ч
Репа
- 0,731
= 0,0046
ч
Редька
- 0,600
0,0038 ч
Огурцы соленые - 3,820
0,024 ч.
Лук
репчатый - 2,020
0,013 ч.
Яблоки
свежие - 1,320
= 0,0083
ч.
Капуста
белокочанная - 2,385
= 0,015
ч.
Помидоры
свежие - 8,024
= 0,05
ч.
Огурцы
свежие - 5,574
= 0,035
ч.
Говядина отварная - 6,00
= 0,038
ч.
Курица
отварная - 4,625
= 0,029
ч.
Язык
отварной - 5,250
= 0,033
ч.
Севрюга
- 3,280
= 0,021
ч.
Семга
соленая - 2,400
= 0,015
ч.
Яйца
- 7,475
= 0,047ч.
Общая
продолжительность работы машины определится как сумма продолжительности нарезки
всех вышеперечисленных продуктов и составит 0,43 ч.
Коэффициент
использования
= 0,036
Так
как фактический коэффициент использования машины (0,036) меньше, чем условного
(0,5), достаточно одной овощерезательной машины.
Таблица 10
Расчет числа овощерезательных машин
|
Операция
|
Масса, кг
|
Овоще-резательная машина
|
Производительность, кг/ч
|
Продолжительность работы, ч
|
К-т исполь-зования
|
Число машин
|
|
|
|
|
оборудования
|
цеха
|
|
|
|
Измельчение
|
75,007
|
МРО-200
|
200
|
0,43
|
12
|
0,036
|
1
|
5.2
Расчет холодильного оборудования
Для расчета необходимого объема холодильных камер в холодном цеху
ресторана представим массы каждой группы продукта в таблицы.
Таблица 11
Масса овощей и фруктов
|
Наименование овощей и фруктов
|
Количество, кг
|
|
Картофель отварной
|
5,660
|
|
Сельдерей (корень)
|
0,293
|
|
Морковь
|
2,230
|
|
Репа
|
0,731
|
|
Редька
|
0,600
|
|
Чернослив
|
0,800
|
|
Горошек зел. Конс.
|
2,800
|
|
Огурцы соленые
|
3,820
|
|
Капуста квашеная
|
1,200
|
|
Лук порей
|
0,300
|
|
Лук репчатый
|
2,020
|
|
Яблоки св.
|
1,320
|
|
Яблоки маринов.
|
0,400
|
|
Капуста белокоч. св.
|
2,385
|
|
Капуста цветная
|
0,6
|
|
Петрушка (зелень)
|
0,200
|
|
Помидоры св.
|
8,024
|
|
Огурцы св, г
|
5,574
|
|
Перец сладкий конс.
|
0,2
|
|
Грибы соленые
|
3,22
|
|
Всего овощей и фруктов
|
42,377
|
Таблица 12
Масса мясных продуктов
|
Наименование мясных продуктов
|
Количество, кг
|
|
Говядина отварная
|
6,000
|
|
Курица отварная
|
4,625
|
|
Язык отварной
|
5,250
|
|
Всего мясных продуктов
|
15,875
|
Таблица 13
Масса рыбных продуктов
|
Наименование рыбных продуктовКоличество, кг
|
|
|
Икра зернистая
|
1,200
|
|
Севрюга
|
3,280
|
|
Семга соленая
|
2,400
|
|
Шпроты
|
2,400
|
|
Всего рыбных продуктов
|
9,28
|
Таблица 14
Масса яиц
|
Наименование продуктов
|
Количество, кг
|
|
Яйца, г
|
7,475
|
Полезный объем холодильного шкафа для сырья и полуфабрикатов
;
G - масса
продукта, кг;
-
объемная плотность продукта, кг/м3, (в среднем для большинства
продуктов) - 550 кг/м3
-
коэффициент, учитывающий массу тары, примем
= 0,8.
5.2.1
Полезный объем холодильного шкафа для овощей и фруктов
Таблица 15
Расчет объема холодильных шкафов
|
Наименование продукта
|
Расчет объема, м3
|
Количество продукта
|
|
Картофель отварной
|
5,660
|
|
|
Сельдерей (корень)
|
0,293
|
|
|
Морковь
|
2,230
|
|
|
Репа
|
0,731
|
|
|
Редька
|
0,600
|
|
|
Чернослив
|
0,800
|
|
|
Горошек зел. Конс.
|
2,800
|
|
|
Огурцы соленые
|
3,820
|
|
|
Капуста квашеная
|
1,200
|
|
|
Лук порей
|
0,300
|
|
|
Лук репчатый
|
2,020
|
|
|
Яблоки св.
|
1,320
|
|
|
Яблоки маринов.
|
0,400
|
|
|
Капуста белокоч. св.
|
2,385
|
|
|
Капуста цветная
|
0,6
|
|
|
Петрушка (зелень)
|
0,200
|
|
|
Помидоры св.
|
8,024
|
|
|
Огурцы св, г
|
5,574
|
|
|
Перец сладкий конс.
|
0,2
|
|
|
Грибы соленые
|
3,22
|
|
|
ИТОГО
|
= 0,682 м3
|
|
В холодном цехе для овощей и фруктов достаточно установить 2 холодильных
шкафа ШХ-0,4М с полезным объемом по 0,40 м3, так как одного шкафа
объемом 0,6 м3 будет недостаточно.
5.2.2 Полезный объем холодильного шкафа для мясных и рыбных
продуктов
Для мясных продуктов
м3
Для
рыбных продуктов
м3
Так
как производственных холодильников с малым объемом нет, примем к установке 2
бытовых холодильника для мясных и рыбных продуктов.
.3 Расчет
вспомогательного оборудования
К вспомогательному оборудованию относятся
производственные столы, ванны, стеллажи и подтоварники.
Число производственных столов определяют по числу
одновременно работающего персонала и длине рабочего места на одного
работающего:
,
-
число одновременно работающих в цехе;
I - длина
рабочего места на одного работающего, м (в среднем 1 = 1,25 м);
Lст - длина стандартного производственного стола, м.
стола.
Устанавливаем 3 стола.
Таблица 16
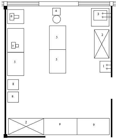
Потребность в оборудовании и средствах механизации для холодного цеха
|
№ позиций
|
Наименование
|
Кол-во
|
|
1
|
Раковина
|
1
|
|
2
|
Холодильный шкаф ШХ-04М
|
2
|
|
3
|
Моечная ванна
|
1
|
|
4
|
Универсальный привод УКМ-01
|
1
|
|
5
|
Производственные столы СН-1800 и СНБ-1500
|
3
|
|
6
|
Овощерезательная машина МРО-200
|
1
|
|
7
|
Стол для установки средств малой механизации
|
1
|
|
8
|
Бытовой холодильник
|
2
|
|
9
|
Раздаточные стойки
|
2
|
Рисунок 2 - План расстановки оборудования в холодном
цехе
5.4
Организация рабочих мест в холодном цехе
На средних и малых предприятиях применяются универсальные рабочие места,
где работник выполняет несколько операций в течение дня.
Однако, в зависимости от типа предприятия общественного питания рабочие
места имеют свои особенности. Это зависит от типа предприятия, его мощности,
характера выполняемых операций, ассортимента. Площадь рабочего места должна
удовлетворять рациональному размещению оборудования, инструментов. Рабочие
места располагаются по ходу технологического процесса.
При организации рабочего места учитываются данные строения человека. При
организации рабочего места оптимальным условием является расстояние от пола до
верхней полки стола, на котором размещается инвентарь и посуда. Столы
устанавливаются с охлажденным шкафом, около шкафов устанавливают подносные
стеллажи. В среднем угол обзора должен составлять 120°.
5.5
Реализация и отпуск кулинарной продукции
В холодном цехе кулинарная продукция готовится
партиями, которые реализуются в строго определенные санитарными правилами
сроки.
При реализации холодные супы и напитки должны иметь
температуру не выше 14°С.
Блюда, находящиеся на мармите или горячей плите,
должны быть реализованы не позднее чем через 3 ч после их изготовления.
Салаты, винегреты, гастрономические продукты, другие
холодные закуски и напитки в порционированном виде пополняются продукцией по
мере ее реализации.
Не допускаются к реализации блюда, кулинарные изделия, оставшиеся от
предыдущего дня:
салаты, винегреты, студни, заливные блюда и другие, особо скоропортящиеся
холодные блюда;
супы молочные, холодные, сладкие, супы-пюре;
мясо отварное порционированное для супов, блинчики с мясом и творогом,
рубленые изделия из мяса, птицы, рыбы;
соусы;
омлеты;
картофельное пюре, макаронные изделия;
компоты и напитки собственного производства.
Перед реализацией охлажденная пища вновь подвергается тепловой обработке
(кипячение, жарка на плите или жарочном шкафу) с повторной дегустацией. Срок
реализации пищи после вторичной тепловой обработки не превышает одного часа.
Свежеприготовленная пища не должна смешиваться с остатками от предыдущего дня.
.6
Санитарные требования
Исключительно все поступающее сырье и пищевые продукты должны иметь
сопроводительную документацию, удостоверяющую их качество и безопасность,
продукты должны приобретаться свежие, качественные. Без клейма и ветеринарного
свидетельства мясо и субпродукты, рыба, раки и сельскохозяйственная птица на
предприятия общественного питания поступать не должна.
Запрещено совместное хранение сырых продуктов или полуфабрикатов и
готовых изделий; продуктов, пригодных для питания людей без каких-либо
ограничений или условно пригодных и, безусловно, непригодных для питания; остро
пахнущих продуктов (сельдь, сыры, специи и др.) и легко воспринимающими запах
(сахар, мука, крупа, чай, масло сливочное и топленое, яйца и др.); пищевых
продуктов и хозяйственных материалов и непищевых товаров и т.д.
Для хранения скоропортящихся продуктов в организации предназначены
холодильные установки. При отсутствии источника холода работа предприятия
общественного питания запрещается. Холодильные камеры следует оборудовать легко
моющимися стеллажами, при необходимости подвесными балками с крючьями.
Готовые мясопродукты (колбасы, окорока и т.п.) хранят в таре поставщика
или производственной таре.
При проведении санитарно-гигиенического контроля за хранением пищевых
продуктов на предприятиях общественного питания необходимо обращать внимание на
сроки реализации особо скоропортящихся продуктов и температурные условия их
содержания, согласно санитарным правилам «Условия, сроки хранения особо
скоропортящихся продуктов».
За соблюдением правил проверки качества принимаемых на предприятие
продуктов, правильное их хранение и соблюдение сроков реализации несет
ответственность администрации предприятия (заведующий складом, базой или
кладовщик). При компьютерном учете поступающих продуктов необходимо вводить в
базу данных сведения о качестве продуктов, дате их изготовления и сроках
реализации.
.6.1 Обработка инвентаря и оборудования
Санитарная обработка технологического оборудования проводится по мере его
загрязнения и по окончании работы. По окончании смены все технологическое
оборудование зачищают и освобождают от остатков сырья и полуфабрикатов, затем
моют горячей водой с добавлением 0,5% питьевой соды.
Производственные столы в конце работы тщательно моются с применением
моющих и дезинфицирующих средств, промываются горячей водой при температуре
40-50°С и насухо вытираются сухой чистой тканью.
В целях предупреждения инфекционных заболеваний разделочный инвентарь
закрепляется за каждым цехом и имеет специальную маркировку. Для холодного цеха
разделочные доски и ножи маркируются в соответствии с обрабатываемым на них
продуктом:
«ВР» - вареная рыба; «ВМ» - вареное мясо; «ВО» - вареные овощи; «МГ» -
мясная гастрономия; «Зелень»; «КО» - квашеные овощи; «Х» - хлеб; «РГ» - рыбная
гастрономия.
Внутрицеховой инвентарь лучше обрабатывать в специальных моечных ваннах с
подводом горячей и холодной воды. После каждой технологической операции
разделочный инвентарь (ножи, доски и др.) подвергают санитарной обработке:
механической очистке, мытью горячей водой с моющими средствами, ополаскиванию
горячей проточной водой.
Хранят инвентарь в специально отведенном месте, сухом месте.
Для приготовления и хранения готовой пищи рекомендуется использовать
посуду из нержавеющей стали.
Механическая мойка посуды на специализированных моечных машинах
производится в соответствии с прилагающимися инструкциями по их эксплуатации.
Мытье кухонной посуды производят в двухсекционных ваннах в следующем
порядке:
механическая очистка от остатков пищи;
мытье щетками в воде с температурой не ниже 40°С с добавлением моющих
средств;
ополаскивание проточной водой с температурой не ниже 65’С;
просушивание в опрокинутом виде на решетчатых полках, стеллажах.
Чистые кухонную посуду и инвентарь также хранят на сухих стеллажах на
высоте не менее 0,5 м от пола.
Щетки для мытья посуды после окончания работы очищают, замачивают в
горячей воде при температуре не ниже 45°С с добавлением моющих средств,
дезинфицируют (или кипятят), промывают проточной водой, затем просушивают и
хранят в специально выделенном месте.
.6.2 Личная гигиена производственного персонала
В соответствии с требованиями СанПиН лица, поступающие наработу проходят
медицинские осмотры и на каждого работника заводится личная медицинская книжка
установленного образца.
Перед началом работы каждый рабочий должен оставить верхнюю одежду и
личные вещи в гардеробной, принять душ и надеть чистую санитарную одежду. Руки
после посещения туалета необходимо вымыть мылом и ополоснуть водным раствором
хлорамина. При появлении признаков простудного заболевания или гнойничковых
инфекций сообщать администрации. При изготовлении блюд снимать ювелирные
украшения, часы. Необходимо коротко стричь ногти и не покрывать их лаком.
Для усиления культуры производства, обеспечения охраны труда и техники
безопасности с производственными работниками необходимо регулярно перед началом
смены проводить инструктаж.
6.
Технологические схемы приготовления блюд
При приготовлении блюд и кулинарных изделий необходимо строго соблюдать
поточность технологических процессов.
В процессе кулинарной обработки продуктов должны быть созданы такие
условия, которые не только предохраняют их от микробного обсеменения, но и
способствуют максимальному сохранению пищевой и биологической ценности
продуктов, приводят к значительному повышению вкусовых качеств приготовляемых
блюд.
В холодном цехе организуют участки приготовления холодных и сладких блюд
и оборудуют их холодильными шкафами, льдогенераторами, секциями-столами с
охлаждающим шкафом и горкой, производственными столами, моечными ваннами.
Устанавливают средства малой механизации: яйцерезки, миксеры, овощерезки и т.п.
Основное требование к планировке рабочего места и создания поточности
технологического процесса - такое его расположение, которое сводило бы к
минимуму переходы повара от одного оборудования к другому. Чем короче путь, тем
меньше будет расходоваться времени и энергии человека в производственном
процессе, тем эффективнее будет использоваться оборудование цеха.
Создание поточности технологического процесса позволит организовать
производство по наиболее прогрессивному методу, тем самым, увеличить выпуск
винегретов и овощных салатов, тушеных и пассерованных овощей, наборов для
борща, щей и других холодных блюд и кулинарных изделий.
Список
использованной литературы
1. Богушева
Технология приготовления пищи: Учебно-методическое пособие. - М.: ИКЦ «МарТ»;
Ростов н/Д: Издательский центр «МарТ», 2005. - 320 с.
2. Ботов
М.И. Тепловое и механическое оборудование предприятий торговли и общественного
питания: учебник для нач. проф. Образования /М.И. Ботов, В.Д. Елхина, О.М.
Голованов.- 2-е изд., испр.- М..: Издательский центр «Академия», 2006.- 464 с.
. Ведомственные
нормы технологического проектирования заготовочных предприятий общественного
питания по производству полуфабрикатов, кулинарных и кондитерских изделий,
ВНТП-04-86 (приказ Министерства торговли СССР от 28.02.86 г. № 44М).
. Гайворонский
К.Я., Щеглов Н.Г. Технологическое оборудование предприятий общественного
питания и торговли: учебник - М.: ИД «ФОРУМ»: ИНФРА-М, 2008.- 480 с.
. Золин
В.П. Технологическое оборудование предприятий общественного питания: учеб. для
нач. проф./В.П. Золин.- 6-е изд. Стер.- М.: Издательский центр «Академия»,
2007.-248 с.
6. Кретов
И.Т., Остриков А.Н., Кравченко В.М. Технологическое оборудование предприятий
пищеконцентратной промышленности: Учебник.- Воронеж: Издательство Воронежского
университета, 1996.- 448 с.
7. Методические указания по дисциплине «Технология, организация и
проектирование предприятий питания в гостинице».- М.: РГТЭУ, 2004.- 67 с.
8. Никуленкова
Т.Т., Лавриненко Ю.И., Ястина Г.М. Проектирование предприятий общественного
питания. - М.: Колос, 2000. - 216 с.
. Оборудование
предприятий общественного питания. В 3-х т. Т.1: Механическое оборудование:
Учеб. для студентов вузов, обуч. По спец. 1011 «Технол. и орг. обществ.
питания» /В.Д. Елхина, А.А. Журин, Л.П. Проничкина, М.К. Богачев.- 2-е изд.,
перераб.- М.: Экономика, 1987.-447 с.
. Поздняковский
В.М. Гигиенические основы питания, безопасность и экспертиза продовольственнных
товаров.- Новосибирски.: Изд-во Новосибирск. Ун-та, 1999.- 447 с.
. Санитарно-эпидемиологические
требования к организациям общественного питания, изготовлению и
оборотоспособности в них продовольственного сырья и пищевых продуктов: СанПин
2.3.6.959-00. - М.: «Интерсэн», 2000.-64 с.
12. Сборник
рецептур и кулинарных изделий для предприятий общественного питания.
/Составитель Л.Е. Голунова. СПб.: ПРОФИ-ИНФОРМ, 2004.- С.688.
. Усов
В.В. Организация производства и обслуживания на предприятиях общественного
питания: Учеб. для нач. проф. образования: Учеб. пособие для сред. Проф.
образования/ В.В. усов.- 2-е изд. Стер.- М.: Издательский центр «Академия»,
2004.- 416 с.
. Харченко
Н.Э. Технология приготовления пищи: Учеб. пособие для нач. проф. Образования /
Н.Э. Харченко, Л.Г. Чеснокова.- М.: Издательский центр «Академия», 2004.- С. 15
- 18.
. Химический
состав пищевых продуктов //Под ред. Д.м.н. Нестерина М.Ф. и д.т.н. Скурихина
И.М. - М.: Пищевая пром-ть, 1979, 247с
Приложение
А (обязательное)
. Технология приготовления блюда «Салат мясной» (№73)
Таблица 17
Продукты, входящие в блюдо
|
Наименование компонента
|
Масса, г
|
|
брутто
|
нетто
|
|
Говядина
|
65
|
48
|
|
Масса отварных мясных продуктов
|
-
|
30
|
|
Картофель
|
55
|
40*
|
|
Огурцы свежие (или соленые)
|
38
|
30
|
|
Яйца
|
3/8
|
15
|
|
Крабы**
|
6
|
5
|
|
Майонез
|
30
|
30
|
|
Соус «Южный»
|
8
|
8
|
|
Выход
|
-
|
150
|
*Масса вареного очищенного картофеля
** Консервы
Подготовка сырья
Мясо
Мясо зачищают, моют и варят в небольшом количестве воды со специями.
Отварное мясо режут тонкими ломтиками поперек волокон.
Овощи
Картофель моют, варят и очищают. Охлажденный картофель нарезают тонкими
ломтиками.
Свежие огурцы моют и нарезают тонкими ломтиками. Соленые огурцы очищают
от кожицы и нарезают ломтиками.
Приготовление
Подготовленные и нарезанные овощи соединяют, заправляют частью майонеза с
добавлением соуса «Южный».
Заправленный салат выкладывают горкой в салатную тарелку, оформляют
яйцом, кусочками вареного мяса и крабами и оставшимся майонезом.
Отпуск, выход
Отпускают в небольших квадратных салатных тарелках, украсив красивой
выкладкой и зеленью.
Требования к качеству
Качество блюда определяется временем приготовления овощей и
технологической инструкцией по приготовлению блюда. На показатели качества и
безопасности указывают органолептические показатели блюда (вкус, запах, цвет,
консистенция), физико-химические и микробиологические показатели, влияющие на
безопасность блюда.
Сроки хранения
Блюдо готовится по мере требования. Хранению не подлежит. Как правило,
салаты и винегреты в незаправленном виде хранят при температуре 4-20С
не более 6 ч. Заправлять салаты и винегреты следует непосредственно перед
отпуском.
Приложение
Б (обязательное)
. Технология приготовления блюда «Помидоры, фаршированные
грибами» (№113)
Таблица 18
Продукты, входящие в блюдо:
|
Наименование компонента
|
Масса, г
|
|
брутто
|
нетто
|
|
Помидоры свежие
|
147
|
125
|
|
Грибы соленые (или маринованные)
|
49
|
40
|
|
Лук репчатый
|
30
|
25
|
|
Заправка для салата № 603
|
15
|
15
|
|
Выход
|
-
|
200
|
Подготовка сырья
Помидоры свежие перебирают, калибруют с близкими размерами, отделяют
чашелистики, моют.
Верхнюю часть помидора частично подрезают так, чтобы она образовала
крышечку. В нижней части помидора делают углубление для фарша, вынимая часть
мякоти.
Грибы соленые (или маринованные) отделяют от рассола и мелко режут.
Лук репчатый - перебирают, очищают, споласкивают и нарезают.
Приготовление заправки (№603)
Заправку для салатов приготавливают из смеси растительного масла и уксуса
с добавлением соли, сахара и перца черного молотого. Заправку используют для
салатов и винегретов.
Таблица 19
Компоненты для приготовления заправки
|
Наименование компонента
|
Масса, г
|
|
брутто
|
нетто
|
|
Масло растительное
|
500
|
500
|
|
Уксус 3%-ный
|
500
|
500
|
|
Сахар
|
40
|
40
|
|
Соль
|
20
|
20
|
|
Перец черный молотый
|
2
|
2
|
|
Выход
|
-
|
1000
|
Приготовление блюда
Для фарша мелко нарезанные грибы соединяют с измельченной мякотью
помидоров и нашинкованным луком.
Помидоры с открытой крышечкой посыпают солью и перцем и заполняют фаршем.
Прикрывают помидорной крышечкой.
Отпуск, выход
Перед отпуском фаршированные грибами помидоры аккуратно ставят на
салатную тарелку. Отпускают, полив заправкой. Можно украсить зеленью.
Требования к качеству
Блюдо имеет красивый вид, соответствующий цвету свежего помидора.
На показатели качества и безопасности указывают органолептические
показатели блюда (вкус, запах, цвет, консистенция), физико-химические и
микробиологические показатели, влияющие на безопасность блюда.
Сроки хранения
Блюдо готовится по мере требования. Хранению не подлежит. Салаты и
винегреты в незаправленном виде хранят при температуре 4-20С не
более 6 ч. Заправлять салаты, винегреты и фаршированные овощами помидоры
следует непосредственно перед отпуском.