|
№
|
Наименование
разделов и частей работы
|
Срок
выдачи
|
Срок
окончания
|
Оценка
|
|
|
|
Плановый
|
Фактический
|
|
|
РПЗ:
1
|
Введение(приложение1,2,3)
Вычисление параметров движения автомобиля.(1.1- 1.6).Освоение программы
INTAB-12.
|
|
04.09.07
|
02.10.07
|
|
|
РПЗ:
2
|
Вычисление
потенциальной энергии деформируемого ограждения и автомобиля(2.1- 2.7).
|
|
02.10.07
|
30.10.07
|
|
|
РПЗ:
3
|
Вычисление
сил взаимодействия с утонениями(3.1- 3.1).
|
|
|
|
|
|
РПЗ:
4
|
Расчёт
ограждения(4.1- 4.2). Заключение.
|
|
|
|
|
|
РПЗ:
5
|
Защита
работы.
|
|
|
|
|
Обеспечение безопасности дорожного движения
представляет важную социально-экономическую задачу. Дорожно-транспортные
происшествия (ДТП) причиняют значительный ущерб, вызывают серьёзные затруднения
в работе автотранспорта и, особенно важно, представляют угрозу для жизни и
здоровья людей. В статье [1] отмечается, что ежегодно в России происходит 190
тысяч ДТП, в которых погибает примерно 40 тысяч человек и 200 тысяч получают
ранения, нередко связанные с последующей инвалидностью. 22-25% ДТП связанные с
непреднамеренными съездами с дороги. При этом погибает каждый пятый!
Общая проблема безопасности дорожного движения
связаны с изучением комплекса "водитель-автомобиль-дорога-окружающая
среда". При этом различают вопросы активной безопасности автомобильной
дороги и автомобиля - связанными со свойствами предотвращать или снижать
вероятность ДТП и вопросы пассивной безопасности.
Пассивная безопасность автомобиля и дороги
появляется в случаях, когда водитель не имеет ни времени, ни возможности
предотвратить ДТП из-за потери устойчивости движения автомобиля (занос,
опрокидывание, занос прицепа, перемещение плохо закреплённого груза в кузове),
утомление или неопытности, приступов болезни и др. В этих случаях водитель
становится пассивным участником ДТП, а его последствия в основном зависят от
конструктивных особенностей автомобиля, параметров дороги. Результаты
исследований в этой области изложены в монографиях[2-5]. Заметим, что их авторы
д.т.н. Васильев А.П., Столяров В.В.- выпускники нашего факультета.
Наиболее эффективным конструктивным средством
повышения пассивной безопасности АД служит установка боковых направляющих
деформируемых ограждений барьерного типа [6,7]. Места установки подобных
ограждений регламентируются пунктом 9.3. СНиП "Автомобильные дороги"
[8].
Несмотря на сравнительную простоту несущих
конструкций дорожных ограждений, их расчёт затруднён неопределённостью сил взаимодействия
транспортных средств и ограждений. Неизвестными являются не только величины
этих сил но и их направления, зависящие как от параметров автомобиля (масса,
габариты, скорость), дороги (ширина проезжей части, тип и состояние покрытия,
уклоны и др.), так и от деформативных свойств ограждения. Для составления
разрешающих энергетических уравнений наряду с законами строительной и
теоретической механике, привлекаются соотношения курса проектирования дорог и
результаты специальных исследований ДТП.
Для инженера ОДД необходимо глубоко понимать
процесс взаимодействия автомобиля с ограждением, владеть приёмами его
управления с целью снижения риска ДТП и его последствий. В данной работе
методами строительной механики выполнены основные расчёты типовых ограждений и
заключения об их работоспособности.
1. Вычисление параметров движения автомобиля при
непреднамеренном съезде с дороги
.1 Схема невыгодного положения автомобиля и
выбор критической траектории его движения
На основе анализа ДТП установлено, что не
зависимо от причин непреднамеренного съезда можно считать:
Скорость движения центра массы автотранспортного
средства, от момента начала НС до момента предшествующего удару о препятствие,
постоянной.
Это объясняется внезапностью, скоротечностью
процесса НС и сравнительно большим временем реакции водителя, не успевшего
нажать сцепление и включить тормоза.
Траектория движения центра масс АТС практически
совпадает с дугой окружности радиуса R.
Практически все НС проходят при свободном
движении одиночных автотранспортных средств ( до 98%).
Непредвиденные съезды возможно как в правую, так
и в левую сторону.
Эти гипотезы позволяют схематизировать процесс
наезда автотранспортного средства.
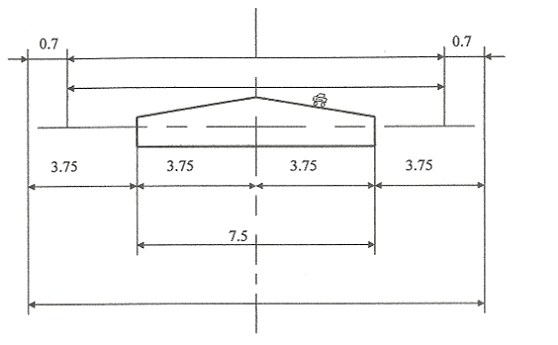
(рис.2) - поперечный профиль дороги 2категории и
её основные параметры по СниП 2.05.02-85 "Автомобильные дороги"
- расстояние от центра массы АТС до
ограждения приближенно:
а - ширина кузова; В - ширина
земляного полотна.
(Рис.1)
Из геометрических соображений
(рис.1) находим угол наезда:
(1)
Очевидно, что
, если
соответствует
минимуму,
, а →
R min. (лобовой наезд)
.2 Вычисление Rmin по различным методикам
Минимальный радиус Rmin, так
называемой критической траектории, зависит от многих фактор тяговых и
аэродинамических характеристик автомобиля, начальной скорости движения, типа и
состояния дорожной одежды , климатических и метеорологических условий.
Упрощённая методика Е.Е. Гибшмана
а) Учтём условие устойчивости на
опрокидывание, т.е. вращение относительно точки О. (рис. 3)
Установлено, а1 примерно равно
,
, тогда
получим
,
где предполагается, что
.
(рис.3)
Для нашего случая
б) Учтём условие устойчивости на
скольжение
где
- коэффициент скольжения шин по
покрытию
В.П. Залуга предложил упрощённую
методику вычисления радиуса
,
где к - коэффициент, зависящий от
скорости движения АТС,
где
В нашем случае II категории дороги
,
,
.
Для вычисления угла
возьмём
(минимальное
из R(1), R(2), R(3).
.3 Вычисление угла наезда на
ограждение
Вычислим ориентировано значение угла
наезда по формуле
(1)
Для нашего случая:
0
0
В дальнейших расчётах будем брать
0
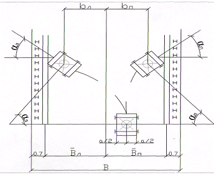
Учтём истинную точку касания АТС и
истинное перемещение центра масс автомобиля. Пересчитаем:
- расстояние от переднего бампера
до центра масс АТС.
Уточняем угол наезда, для чего
подставляем В л и В п в (1).
0
0
В расчёт принимаем
0
.4 Уточнённая методика вычисления
Rmin
С учётом типа и состояния дорожного
покрытия природно-климатических условий, рельефа критические условия
устойчивости автомобиля в отношении поперечного сдвига или заноса примем в
виде:
(2)
где i - предельный допускаемый уклон
дороги в поперечном направлении
где
- коэффициент учитывающий силы
сцепления шин с поверхностью дороги определяется по формуле Бобкова:
где
- часть общего коэффициента
сцепления в продольном направлении определяется по формуле А.П. Васильева:
где
- параметр определяющий долю
продольного коэффициента сцепления при тяговом режиме по сухому и чистому
покрытию (зависит от V0 и типа покрытия).
В нашем случае
=60 км/ч и
вид покрытия холодный асфальтобетон, следовательно
φ20 =0,40-0,50 - коэффициент,
учитывающий состояние каждого вида покрытия при V = 20 км/ч;
β φ =0,004 -
коэффициент, учитывающий снижение сил сцепления с ростом скорости; (зависит от
V и от типа покрытия).
μх - коэффициент тяговой силы
автотранспортного средства определяется по формуле Васильева А.П.:
где fv - расчётное значение
коэффициента сопротивления качению, зависит от состояния и типа дорожного
покрытия и скорости движения:
где f20= 0,025-0,035 - коэффициент
сопротивления качению, при V = 20 км/ч
kf = 0,00025 - коэффициент
нарастания сопротивления колёс;
к сц. =0,523 - коэффициент
сцепления; F= 2,02 (м2) - лобовая площадь автомобиля; mag = 1520 (кг/c) - вес
автомобиля;
К = 0,30 (кг/м2) - коэффициент
обтекаемости лобовой части АТСв = 0 - скорость ветра
Теперь определим μх:
Далее найдём φп -
поперечную составляющую общего коэффициента сцепления, учитывая что φ1 <μx,
следовательно, μx принимаем
равным нулю и получаем:
которая принимает мнимые значения,
т.к коэффициент тяговой силы значительно больше коэффициента сцепления. Это
означает, что состояние дорожного покрытия не позволяет перемещаться АТС с
расчетной скоростью 60 км/час.
Теперь определим Rmin формуле (2):
(м)
При использовании всех ранее
приведённых формул расчётном скорость движения на заданном участке определяется
для 5 категории дороги V0 = 60 км/ч, однако ухудшение состава дорожного покрытия
сопровождается снижением предельно допускаемого сцепления и влечёт за собой
снижение расчётной скорости. Так в работе (5) даны значения обеспеченных
скоростей легковых автомобилей в зависимости от состояния дороги.
Для более обоснованного назначения
расчётных скоростей будем исходить из следующего: движение автомобиля возможно,
пока сила тяги превышает силу сопротивления движения, т.е.
Для предельного случая получим
значения критической скорости, которую примем за предельно-расчётную.
0
.5 Скорость и кинетическая энергия
автомобиля перед контактом с ограждением
автомобиль дорога
ограждение
Как отмечалось ранее, траектория
движения автомобиля при НС близка к дуге окружности Rmin = 38,1 (м), при этом
путь автомобиля до момента наезда αmax = 20,7° составляет:
Зная начальную скорость 60 км/час =
16,67 (м/с) с учетом состояния дороги легко вычислить время до столкновения с
ограждением:
(с)
Время реакции водителя при скорости
движения V0 = 60 км/ч составляет tр = 1,7 (с) , т.е водитель не успеет отжать
сцепление и затормозить, отсюда начальная скорость сохраняется при наезде
автомобиля на ограждение. Таким образом, перед контактом с ограждением
автомобиль имеет скорость V0 = 52 км/ч , которую можно разложить на две
составляющие:
(км/ч)
(км/ч)
Зная вес автомобиля, вычислим
кинетическую энергию автомобиля:
(кДж)
Энергия бокового соударения
составляет:
(кДж)
.6 Кинетическая энергия автомобиля в
конце активной фазы первого удара. Изменение кинетической энергии ∆ К
В момент удара автомобиля об
ограждение на площадке контакта возникает ударный импульс S , с составляющей Sу
в направлении перпендикулярном к плоскости ограждения с плечом действия
относительно центра масс.
(м)
Предельная составляющая импульса Sх
в плоскости ограждения не может превышать сил трения:
где ƒ -
коэффициент трения поверхности кузова или бампера об ограждение.
Поэтому площадка контакта непрерывно
перемещается по ходу движения.
Плечо S х легко вычисляется:
(м)
Ударный импульс создается
относительно вертикальной оси z, проходящий через центр масс, в момент
При этом АТС получает вращение с
угловой скоростью ω. В
результате действия S х,, S у, М z АТС меняет траекторию движения, он с трением
скользит, перемещаясь вдоль ограждения по ходу движения и поворачивается в
направлении момента ударного импульса М z . Все это продолжается до второго
удара боковой или задней частью кузова, при этом происходит повторное изменение
траектории движения с опасным выбросом АТС на встречную полосу движения.
В конце активной фазы первого
основного удара кинетическая энергия АТС уменьшается до значения:
где скорости движения центра масс Vх
и Vу и ускорения ω вычисляются
по формулам, полученным на основании теории об изменении количества движений.
Введём обозначения:
где f = 0,65 - коэффициент
скольжения.
(км/ч)
(км/ч)
Теперь найдём кинетическую энергию
АТС в конце удара:
(кДж)
Таким образом полное изменение
кинетической энергии АТС в конце удара составляет:
(кДж)
Изменение скоростей:
(км/ч)
(км/ч)
(рис. 4) - положение автомобиля в
момент удара об ограждение
Основные результаты расчётов по
первому разделу.
(кДж)
Конструкция ограждения дорожного
металлического барьерного типа ГОСТ26.804-86. "11ДД-1" (дорожные с
шагом S=3м на рабочих участках).
Гнутый профиль 312 83 4 по ТУ
14-2-341-78=19,96 см=1957,8 см=185,83 см=125,5 см=50,63 см
Стойка дорожная СД-1
[ №12 ГОСТ82.40-83=13,30 см2=304
см=31,20 см=50,6 см3=8,52 см3
Соединение балки со стойкой
Консоль жёсткая “КЖ”
Связь диагональная
Световозвращающий элемент
|
№
|
|
Размерность
|
Категория
2
|
|
1
|
Расчётная
приведённая интенсивность
|
тыс.
авт./сутки
|
6-14
|
|
2
|
Расчётная
скорость, основная
|
км/ч
|
120
|
|
3
|
Число
полос движения
|
шт
|
2
|
|
4
|
Ширина
полосы движения
|
м
|
3,55
|
|
5
|
Ширина
проезжей части
|
м
|
7,5
|
|
6
|
Ширина
обочины
|
м
|
3,75
|
|
7
|
Ширина
земляного полотна
|
м
|
15
|
|
8
|
Поперечный
уклон проезжей части для 2 дор. кл. зоны( Сарат.области)
|
‰
|
0,02
|
|
9
|
Продольный
уклон менее предельно допускаемый
|
‰
|
0,03
|
|
10
|
При
основной расчётной скорости
|
‰
|
0,04
|
Некоторые расчётные параметры легкового
автомобиля Жигули-2106
|
№
|
Параметры
и их обозначение
|
Размерность
|
Жигули-2106
|
|
1
|
Вес,
G=mag
|
кг*с
|
1450
|
|
2
|
Габариты(длина,ширина,высота)
|
м
|
4,116;1,627;1,44
|
|
3
|
Высота
центра масс: -без нагрузки -с полной нагрузкой
|
м
м
|
0,56
0,581
|
|
4
|
Расстояние
по горизонтали от Переднего бампера до центра масс, lц.м
|
м
|
1,74
|
|
5
|
Лобовая
площадь, F
|
М2
|
1,85
|
|
6
|
Коэффициент
обтекаемости, K
|
кг/м3
|
0,28
|
|
7
|
Коэффициент
сцепления, Kсц
|
-
|
0,54
|
|
8
|
Момент
инерции автомобиля при кручении, Ia
|
кг*м2
|
4700
|
2. Вычисление потенциальной энергии деформации
ограждения и автомобиля U
.1 Обоснование расчётной схемы при деформации в
собственной плоскости
Сила взаимодействия АТС с дорожно-боковым
ограждением в начале активной фазы удара может быть представлена векторной
суммой:
с поперечной составляющей
и продольной составляющей
, где
- угол наезда.
Предварительно рассмотрим деформацию
ограждения в собственной плоскости от действия единичной силы
, затем из
собственной плоскости от
(рис 5)
.2 Вычисление Ux
В качестве 1-ой расчётной схемы
принимаем плоскую семипралётную раму, выделяя панель, воспринимающую удар и 3-х
сметных расположенных левее и правее. Влияние других панелей условно не
учитывается по малости усилий в них. Все пролёты приняты равными шагу
размещения стоек S. Высота стоек 0,6 м., в расчётной схеме она увеличена на
1/3, т.е. 0,8 м, чтобы учесть изгиб стоек в грунте. Изгибная жесткость стоек
принята
, ригеля
, к -
физически учитывает соотношение изгибных плоскостей элементов, влияющих на
усилие (приложение 1).
,
значит
Сначала вычисляем потенциальную
энергию деформации через действующие внутренние усилия:
Для расчёта рамы можно привлечь
метод сил, метод перемещений, метод конечных элементов. Воспользуемся
последним, реализованным по программе INTAB 12 на ПК. Результаты действия силы
(100)
приводятся на рис.8.
|
Узел
|
X
|
Y
|
U
|
V
|
Fi
|
|
5
|
9,625
|
0
|
-0,79424
|
-0,00001
|
-0,10459
|
Потенциальная энергия дифференциального изгиба
стоек равна:
Аналогично учтём потенциальную
энергию деформации ригеля при изгибе:
Дополнительно учтём продольные
деформации ригеля от нормальных сил:
Полная потенциальная энергия
деформации в собственной плоскости.
кДж
2.3 Обоснование расчётной схемы при
деформации из собственной плоскости
Расчётная схема дорожного ограждения
в плане представляет собой балку на упруга оседающих опорах, работающих на
изгиб из плоскости ограждения и на кручение. Для геометрической неизменности
системы к ригелям добавим горизонтальную связь (рис.6).
(рис.6) - горизонтальная связь.
Жёсткостью стоек на закручивание по
их малости можно пренебрегать, поэтому удалим спиральные пружины из схемы.
Податливость стоек при изгибе учтём фиктивными стрежнями длиной
со
специально подобранной жёсткостью при сжатии - расширении
соответствующей
жёсткости стоек при изгибе (рис.7).
рис.7 - стойка при изгибе.
рис.8 - результаты действия силы
(100).
Из условия
,
значит изгибая жесткость балки
.4 Вычисление Uy
Потенциальная энергия от действия
Py=1 вычисляется аналогично п.2.2 по расчёту с помощью программы INTAB 12.
Результаты расчёта показаны на рис.9. Потенциальная энергия в стойках
вычисляется по эпюре Му.ст.:
|
Узел
|
X
|
Y
|
U
|
V
|
Fi
|
|
5
|
9,625
|
0
|
0
|
%-139,25
|
0
|
Потенциальная энергия деформируемого
ригеля при изгибе определяется:
Полная потенциальная энергия:
Таким образом получаем вторую
расчётную схему деформации ограждения из собственной плоскости (рис.9)
рис.9 - схема деформации ограждения
из собственной плоскости.
рис.10 - деформационная схема.
.5 Вычисление U. Приближённое
определение U автомобиля
Полная потенциальная энергия упругих
деформаций ограждения складывается из увеличенной Py2 раз Uy и раз Px2 раз Ux.
Однако продольная составляющая Px не может превышать силу трения на площадке
контакта авто с ДО. Приняв контакт трения скольжения метал кузова по ограждению
, получим:
При вычислении полной потенциальной
энергии системы «ограждение - авто», следует учесть деформации авто. Однако,
определение действительных усилий в элементах кузова авто и его агрегатах
представляет сложную задачу. Попытки её решения сделаны ЗИЛом совместно с НИИ
БДМВД. Они использовали разновидность метода конечного элемента назвав его
методом «супер панелей»: пространственная тонкостенная конструкция кузова
расчленялась на панели, соединённые только в узлах, в которых сосредотачивались
массы mi и не известные инерциальные силы Ii.(рис.10)
рис. 11 - «супер панели».
Расчёт представляется очень сложным,
поэтому в нашем учебном расчёте введём интегральную приведённую передней части
авто, которая определяется:
где
- экстремально определенная
деформация авто, при лобовом наезде
, 12700 - переводной коэффициент.
Из-за большой неточности
определяется
достоверность
вычисляется
мала.
Проектируя силы взаимодействия авто
и ДО на нормальной поверхности бампера приведём удар к лобовому удару (рис.
11).
рис. 12 - взаимодействие авто и ДО
(при f=0,24),
,
(кН)
(кН)
(м),
(кДж)
Т. об. полная потенциальная энергия
деформации ограждения и авто:
(кДж)
Если при дальнейшем расчёте будет
установлено, что при наезде авто на ДО возникает необратимые пластические
деформации, дополнительно нужно ввести энергопоглощающие вставки амортизаторы и
значение U будет корректироваться.
3. Вычисление сил взаимодействия
авто и ДО
.1 Уравнение баланса энергии
На основании закона сохранения
энергии запишем в следующем соотношении баланса энергии:
где
=61,38 (кДж) - изменение
кинетической энергии авто в процессе столкновения с ограждением;
(кДж) -
потенциальная энергия деформированного ограждения барьерного типа и кузова.
Подставим эти значения в уравнение
баланса энергии определим неизвестную силу P взаимодействие авто и ограждения.
(кН)
Определим составляющие силы P:
(кН)
(кН)
.2 Анализ НДС и перегрузок
. для анализа НДС нужно по эпюрам
и
определить
действующее напряжение в наиболее напряжённых зонах по формуле:
,
значение максимального момента
возникающего в каждой стойке, которое берётся из эпюры
.
значение максимального момента
возникающего в каждой стойке, которое берётся из эпюры
. В
дальнейших расчётах
из-за
малости не учитывается. Поэтому получим:

,
где
(приложение 1)
Одновременно определим места
возможных образований пластических шарниров в опорных сечениях стоек по
условию:
(кН/м2)
(кН/м2)
(кН/м2)
(кН/м2)
(кН/м2)
=
,
=
,
=
,
=
В тех узлах, где
возникнут
пластические шарниры. Исходя из данных вычислений видно, что пластические
деформации возникают в двух шарнирах симметрично относительно контакта АТС и ДО
(рис.13).
рис.13 - Схема образования
пластических шарниров.
. Проведём анализ перегрузок:
3.3 Уточнение сил Р
Значение силы Р взаимодействия
автомобиля и ограждения можно уменьшить 2-мя способами: 1) Путём учёта
необратимых пластических деформаций (при этом уменьшается
). 2) Путём
введения энергопоглощающих вставок (при этом увеличивается значение
потенциальной энергии).
Учтём образование пластических
шарниров в стойках. Подсчитаем величину рассеиваемой энергии пластического
шарнира в стойке, как величину возможной работы пластического момента Мпластич,
на угол наклонной стойки
(кДж)
Если число стоек с пластическими
шарнирами N, то полная величина поглощенной энергии будет
(кДж)
Вносим эту величину в левую часть
уравнения баланса энергии и уточняем заново силу баланса энергии.
(кН)
Определим составляющие силы
:
(кН)
(кН)
(кН/м2)
=
Для устранения пластических шарниров
в стойках 13 и 14 необходима вставка амортизаторов.
4. Расчёт ограждения на прочность и
жёсткость
.1 Построения расчётных эпюр
Для построения расчётных эпюр Мхрас
и Мурас нужно умножить значение моментов взятых с эпюр Мх и Му на значения
уточнённых сил Рх и Ру.
,
По оси х для ригеля.
,
,
,
,
По оси х для стоек.
,
,
,
,
По оси у для ригеля.
По оси у для стоек.
рис. 14 - эпюры для значений
уточнённых сил Рх и Ру.
.2 Вычисление наибольших напряжений
и перемещений
) Расчёт на прочность.
По эпюрам Мхрас и Мурас выбираем
наибольшее опасное сечение в стойке и ригеле ограждения, т.е. там, где
возникает наибольший изгибающий момент.
(
)
(
)
Откуда следует, что:


Проверка на прочность выполнена.
) Расчёт на жёсткость.
Воспользуемся значениями перемещений
5 узла, которые получены нами с помощью программы INTAB 12.
- 1 расчёт.
- 2 расчёт.
Искомые перемещения находится по
формулам.
Установленное перемещение является
вполне реальными и допустимыми, следовательно можно сказать, что условие
жёсткости выполняется
.3 Рекомендации к курсовой работе и
предложения по улучшению конструкции дорожного ограждения
Взаимодействие дорожного ограждения
и автомобиля можно уменьшить:
) Путём учёта необратимых
пластических деформаций, при этом уменьшится кинетическая энергия.
) Путём введения энергопоглощающих
вставок.
В роли энергопоглощающих вставок
используют - амортизаторы. Это обрезки тонкостенных труб, сварных
трапециевидных конструкции, скобы. При этом жесткость ограждения уменьшается,
зато потенциальная энергия деформации увеличивается, соответственно и сила
удара АТС об ограждение уменьшается.
) Уменьшив шаг между стойками.
При этом будет уменьшаться
потенциальная энергия деформации ограждения и кузова в период удара.
Заключение
В соответствии с постановлением
службы дорнадзора проведена расчетно-теоретическая экспертиза работоспособности
бокового направления дорожного ограждения барьерного типа марки 2 ДО-S 2,75
установленного в связи с наличием железнодорожных линий на прямолинейном
участке дороги V технической категории в Саратовской области. В результате
расчетов установлено:
Обеспеченная скорость движения
расчетного легкового автомобиля марки ГАЗ - 24 «Волга» по дорожному покрытию
типа холодный асфальтобетон (мокрое чистое) составляет V0=52 км/ч. Это может
привести к непреднамеренному съезду автомашины по траектории близкой к дуге
окружности с Rmin = 38,1 м. При этом максимальный угол наезда автомобиля на
боковое ограждение составляет αmax = 20,7°.
Взаимодействие автомобиля с
ограждением проявляется в двух последующих боковых ударах. В течении первого
основного автомобиль скользит по балке ограждения и одновременно поворачивается
в направлении ограждения. При втором более слабом ударе возникает вращение
машины. В конце активной фазы первого удара скорость автомобиля уменьшается с
V0x=48,86 км/ч до Vx=39,9 км/ч. В поперечном направлении с V0y=18,38 км/ч до
Vy=9,42 км/ч. Что приводит к общей потере кинетической энергии автомобиля ΔK=61,38кДж
на 61% с K0=161,53 кДж до K=100,25кДж.
учитывая лишь упругие деформации
ограждения Uогр=1,5*10-6 кДж
Из уравнения баланса энергии находим
силы взаимодействия в зоне контакта Рх=24,3 кН, Ру=24,3кН и соответствующие им
эпюры внутренних усилий. При этом в опасных сечениях балки и стоек возникают
нормальные напряжения значения которых больше допускаемых [
]=160 мПа и
пределы текучести
.
В результате действия этих сил в
опасных сечениях балки и стоек возникли напряжения σmax ст=1,2
МПа, σmax
балок=0,1 МПа. Что меньше допускаемого [
]=160 МПа и предела текучести [
]=235 МПа.
Перегрузки в центре масс автомобиля
в конце активной массы удара составляют апрод=0,44g, апопер=1,82g, аобщ=1,87g,
что меньше установленных биомеханическими исследованиями пороговых перегрузок:
10g, 5g, 12g. Соответственно.
Вывод: Изложенное позволяет считать
работоспособность обсужденного ограждения частично обеспеченной.