Строительство поисковой скважины на Камовской площади
Реферат
БУРОВАЯ УСТАНОВКА, ПОРОДОРАЗРУШАЮЩИЙ ИНСТРУМЕНТ,
РЕЖИМ БУРЕНИЯ, БУРОВОЙ РАСТВОР, ЦЕМЕНТИРОВАНИЕ, НЕФТЬ. КОНСТРУКЦИЯ СКВАЖИН,
ИСПЫТАНИЕ, ОСВОЕНИЕ.
Объектом работы являются Камовское
месторождение.
Цель работы - строительство вертикальной
скважины глубиной 2500 метров на Камовском месторождении.
Работа выполнена по геологическим материалам
Камовского месторождения.
В результате работы спроектирована конструкция и
технология проводки скважины глубиной 2500 метров.
Достигнутые результаты: технология бурения с
отбором изолированного керна, исключающая негативное влияние растворов на
водной основе (РВО), минимизирующая его фильтрацию в керн и обеспечивающая
соответствие водонасыщенности керна; высокая информативность керна.
Дипломный проект выполняется с учетом
современных достижений в области техники и технологии строительства нефтяных
скважин, а также использовался текстовый редактор Microsoft Word, таблицы и
графики выполнялись в Microsoft Exсel; рисунки - графические программы
CorelDRAW и Microsoft Paint.
Содержание
Введение
Глава 1. Геологическая часть
.1 Общие сведения о районе работ
.2 Стратиграфия
.3 Тектоника
.4 Нефтегазоводоносность
.5 Обоснование заложения скважины
.6 Условия проводки скважины
.7 Возможные осложнения при бурении
скважины
Глава 2. Проектирование конструкции
профиля скважины
.1 Обоснование конструкции
эксплуатационного забоя
.2 Обоснование конструкции скважины
.3 Обоснование глубины спуска
кондуктора
.4 Выбор диаметра обсадных колонн и
долот
.5 Обоснование профиля скважины
.6 Типоразмеры долот
Глава 3. Проектирование
технологического процесса углубления скважины
.1 Обоснование способа бурения под
колонны
.2 Проектирование режима бурения по
интервалам скважины
.3 Мероприятия по рациональной
отработке долот
.4 Выбор бурильной колонны и ее
технологической оснастки
.5 Выбор и обоснование типа
промывочной жидкости
.6 Характеристика химических
реагентов для регулирования свойств промывочных жидкостей
.7 Приготовление бурового раствора
.8 Очистка бурового раствора
Глава 4. Проектирование
технологического процесса крепления скважины
.1 Требования к крепи скважин
.2 Расчет обсадных колонн на
прочность
.2.1 Построение эпюры наружных
давлений
.2.2 Строим эпюру избыточных
наружных давлений
.2.3 Определяем избыточное наружное
давление при освоении скважины
.2.4 Построение эпюр избыточных
внутренних давлений при испытании на герметичность
.3 Расчёт эксплуатационной колонны
на прочность
.4 Подготовительные работы к спуску
обсадной колонны
.5 Спуск обсадных колонн
.6 Способ цементирования
.6.1 Обоснование способа
цементирования
.6.2 Расчет возможности
одноступенчатого цементирования для эксплуатационной колонны
.7 Выбор типа и компонентного
состава тампонажного раствора, буферной и продавочной жидкости
.7.1 Расчет расхода материалов для
проведения процесса цементирования эксплуатационной колонны
.7.2 Объем буферной жидкости
.8 Выбор цементировочного
оборудования и его оснастки
.8.1 Определение необходимого
количества цементировочных агрегатов
.8.2 Выбор смесительных машин
.9 Оценка качества цементирования
.10 Обвязка обсадных колонн
Глава 5. Мероприятия по
предупреждению осложнений и аварий
.1 Разработка комплекса
противоприхватных мероприятий
.2 Выбор комплекса
противовыбросового оборудования
.3 Разработка комплекса мероприятий
по предупреждению аварий
Глава 6. Выбор буровой установки
.1 Обоснование типа и класса буровой
установки
.2 Основные блоки буровой установки
Глава 7.
Организационно-экономическая часть
.1 Расчёт заработной платы
.2 Планирование и организация работ
.3 Календарный и поэтапный план
Глава 8. Охрана труда
.1 Промышленная безопасность при
бурении скважин
.2 Противопожарные мероприятия
.3 Мероприятия по охране окружающей
среды
.3.1 Источники загрязнения
окружающей среды при бурении скважины
.3.2 Мероприятия по уменьшению
загрязнения окружающей среды
.3.3 Расчет объема отходов бурения
.3.4 Мероприятия по утилизации
отходов бурения
Глава 9. Специальная часть
.1 Отбор и качество керна
.2 Технология отбора керна
ЗАКЛЮЧЕНИЕ
СПИСОК ИСПОЛЬЗУЕМЫХ ИСТОЧНИКОВ
Приложение
Введение
В данное время Россия занимает одно из
лидирующих мест в добыче мировых запасов нефти и газа, что несет большие
прибыли нефтегазодобывающим компаниям в период стабильно высоких цен на
углеводородсодержащее сырье.
Перед добывающими компаниями нашей страны
открываются большие возможности: пользуясь сложившейся ситуацией на мировом
рынке возможны крупные капиталовложения в развитие предприятий комплекса,
применение новых более дорогостоящих технологий, научные исследования в сфере
недропользования. Последние годы особо остро показывают на необходимость
движения в этом направлении, на фоне снижения дебитов эксплуатируемых скважин и
увеличения затрат на извлечение углеводородного сырья. Применение новых
технологий в добыче нефти предъявляет более жесткие условия к бурящимся скважинам.
Необходимость решения большого комплекса задач, связанных с процессом
строительства скважин требует изменения технологии бурения скважин.
Тенденции развития технологии в последнее время
направлены на минимизацию вредного воздействия на продуктивный пласт во время
бурения, бурения с отбором изолированного керна, качественное крепление и
цементирование, использование новых технологий для идеализации профиля ствола
скважин, уменьшение вредного воздействия на окружающую среду во время бурения.
В данной работе проводится: выбор буровой установки, выбор режимов бурения,
бурового раствора, отбор качественного керна.
В результате работы спроектирована конструкция и
технология проводки скважины глубиной 2500м. Данная работа выполнена с учетом
современных достижений в области техники и технологии строительства разведочных
скважин.
Глава 1. Геологическая часть
.1 Общие сведения о районе работ
Площадь работ расположена в юго-западной части
Средне-Сибирского плоскогорья, левобережной части бассейна р. Подкаменная-Тунгусска.
Камовская площадь административно входит в
состав Байкитского района, Эвенкийского АО Красноярского края (рис. 1.1).
Растительность типична для сибирской тайги и
представлена хвойными и лиственными породами деревьев: елью, лиственницей, пихтой,
сосной, кедром, березой и осиной. В тайге широко распространен моховой покров,
в поймах рек и ручьев - травянистая и кустарниковая растительность. Животный
мир характерен для зоны тайги. Здесь распространены: лось, медведь, соболь,
белка, рябчик, тетерев.
Населенных пунктов в районе работ нет.
Расстояние до районного центра п. Байкит 300 км (по зимнику). Основное занятие
населения рыбная ловля, промысловая охота и сельское хозяйство (овощеводство и
животноводство). Имеются оленеводческие и звероводческие хозяйства.
Среднегодовая температура -7°С, наибольшая летняя +35°С, наименьшая зимняя
-62°С.
Рисунок 1.1. Обзорная карта Камовского
местрождения.
.2 Стратиграфия
К протерозою относятся породы кристаллического фундамента,
рифея и отложения венда. Породы кристаллического фундамента вскрыты многими
глубокими скважинами в пределах Юрубчено-Тохомской зоны нефтегазонакопления,
непосредственно на площади Оморинского лицензионного участка отложения
кристаллического фундамента не вскрыты.
Р и ф е й с к а я с и с т е м а - R
В литологии рифея преобладают карбонатные
породы: доломиты и очень редко - известняки. Терригенные породы имеют
второстепенное значение и представлены, в основном, аргиллитами темно-серыми,
зеленовато- и коричневато-серыми, реже - кварц-полевошпатовыми песчаниками,
алевролитами и седиментационными брекчиями.
Рифей представлен чистыми мелкозернистыми
доломитами с тонкими прослойками аргиллитов и глинистых доломитов. Цвет пород
светло - и розовато-серый. Доломиты плотные неравномерно трещиноватые с редкими
кавернами, полностью или частично заполненными вторичным крупнокристаллическим
доломитом, часто окрашенным гидроокислами железа. Встречаются строматолитовые
слоистые доломиты.
В районе на размытую поверхность рифея выходят
толщи, сложенные карбонатными породами, они, будучи в свое время подвергнуты
интенсивному выветриванию и раскарстованию, имеют удовлетворительные пористость
и проницаемость, способны содержать в себе УВ, и представляют интерес при проведении
нефтегазопоисковых работ.
Вскрываемая толщина отложений 180 м.
.3 Тектоника
В структурно-тектоническом отношении площадь
работ расположена в пределах Байкитской антеклизы, надпорядковой структуры,
осложняющей юго-западную часть Сибирской платформы. на южном, юго-западном
склоне Камовского свода, который осложняет в свою очередь, центральную часть
Байкитской антеклизы. В геологическом строении региона выделяется два
структурно-тектонических этажа: кристаллический фундамент и платформенный
чехол.
Формирование платформенного чехла
рассматриваемой территории происходило в несколько этапов. Каждому этапу
соответствует определенный структурно-формационный комплекс. В строении
платформенного чехла выделяется четыре структурно-фациальных комплекса: рифейский,
венд-среднепалеозойский, верхнепалеозойско-триасовый, юрско-меловой. В
проектируемом регионе в строении чехла принимают участие два нижних
структурно-формационных комплекса.
Рифейский структурно-формационный комплекс имеет
сложное геологическое строение. Кроме того, что его породы довольно интенсивно
смяты в складки, этот формационный комплекс претерпел и дизъюнктивную
тектонику: многочисленными разломами он разбит на блоки с различными
амплитудами смещения, а на ряде участков на размытую поверхность довендских
отложений выходят в виде блоков гранитоидные породы фундамента.
Внутреннее морфологическое строение рифейского
структурного этажа изучено слабо, т.к. долгое время сейсморазведка не могла
получать отражение от внутририфейских пластов, но отражающие площадки все же
были зафиксированы и хотя бы фрагментарно стали прослеживаться по площади.
Эрозионная поверхность этого этажа
сейсморазведкой прослеживается четко и отражает морфологию Байкитской
антеклизы, подтверждая этим каледонское время ее формирования. На территории
проектируемых работ она равномерно погружается на северо-восток.
Образования рифейского структурного яруса
представляют собой накопившиеся в областях прогибания карбонатные и
терригенно-карбонатные отложения. В целом рифейский этап характеризовался
высокой тектонической активностью, о чем свидетельствует достаточно широкое
развитие не только на окраинах, но и во внутренних районах платформы зон
интенсивной дислокации рифейских отложений, перекрытых субгоризонтально
залегающими вендскими образованиями.
Образование рифейского и
венд-среднепалеозойского структурно-формационного комплексов платформенного
чехла разделено длительным перерывом в осадконакоплении, который сопровождался
существенной перестройкой структурного плана рифейских отложений и их глубокой
эрозией.
1.4 Нефтегазоводоносность
На Камовском своде выделена Юрубчено-Тохомская
зона нефтегазонакопления (ЮТЗ), где открыто ряд месторождений, в том числе
Юрубчено-Тохомское месторождение, основные перспективы, которых связаны с рифейскими
отложениями.
Юрубчено-Тохомское месторождение располагается в
пределах Камовского нефтегазоносного района (НГР) Байкитской нефтегазоносной
области (НГО) Лено-Тунгусской нефтегазоносной провинции (НГП) Сибирской
платформы.
Водонефтяной контакт для этой залежи по
результатам испытания и данным ГИС установлен на абсолютной глубине -1845 м.
В пределы Оморинского лицензионного участка
попадает, как отмечалось выше, крайняя юго-восточная часть данной залежи.
Общая площадь этой залежи составляет 7400 км2.
Высота залежи в своде достигает 155 м, в том числе нефтенасыщенной части 49 м,
газонасыщенной 103м.
.5 Обоснование заложения скважины
Бурение проектируемой скважины осуществляться на
стадии поиска и оценки месторождений с целью выявления залежей газа и нефти в
отложениях венда и рифея, а также получения данных для предварительной оценки
запасов углеводородного сырья по промышленным категориям и выбору
первоочередных объектов для дальнейших поисково-разведочных работ.
Задачи, стоящие перед скважиной на данной стадии
проведения геологоразведочных работ:
выявление в разрезе нефтегазоносных и
перспективных горизонтов коллекторов и покрышек и определение их
геолого-геофизических параметров;
выделение, опробование и испытание
нефтегазоперспективных пластов и горизонтов, получение промышленных притоков
нефти и газа и установление свойств флюидов и фильтрационно-емкостных
характеристик пластов в отложениях венда и рифея;
определение физико-химических свойств флюидов,
отобранных в процессе проведения работ в пластовых и поверхностных условиях;
изучение физических свойств коллекторов по
данным лабораторного исследования керна и по материалам ГИС;
открытие месторождения и постановка на
государственный баланс;
выбор объектов для проведения детализационных
геофизических и оценочных буровых работ.
Поставленные перед поисковой скважиной задачи
решаются последовательно в процессе бурения до глубины 2500 м, и после
окончания бурения следующими методами:
отбор керна из перспективных горизонтов кембрия,
венда и рифея, суммарная проходка с отбором керна составит 240 м (9,6% от
глубины скважины);
проведение утвержденного для данного региона
комплекса геофизических исследований скважин, с целью изучения геологического
разреза, выделения перспективных горизонтов и контроля над техническим
состоянием ствола скважин;
опробование выделенных перспективных объектов на
приток в процессе бурения; испытание скважины в эксплуатационной колонне на
различных режимах; исследование продуктивных горизонтов;
проведение работ по интенсификации притоков газа
или нефти;
отбор и лабораторные исследования образцов пород
и проб пластовых флюидов с целью изучения их физико-химических свойств;
изучение сейсмогеологических характеристик
вскрываемого разреза.
В результате бурения поисковой скважины № 1 на Камовской
площади изучен вскрытый разрез, дано заключение о наличие залежи нефти
горизонта Р-I Юрубчено-Тохомского месторождения в пределах проектной площади и
газа в пробуренной скважине, дана предварительная оценка их промышленной
значимости, дано обоснование проведения дальнейших оценочных работ на данной
площади.
.6 Условия проводки скважины
Данные по проводке скважины приведены в табл.
1.1.
Таблица 1.1 -
Геолого-технические условия проводки скважины
|
№
п/п
|
Интервалы
разреза с различными геолого-техническими условиями
|
Стратиграфическая
приуроченность
|
Категории
пород
|
|
от
|
до
|
Толщина
|
|
по
твердости
|
по
абразивности
|
|
1
|
0
|
315
|
315
|
Q+Эвенкийская
св Є2-3
|
3,5-4
|
4
|
|
2
|
315
600
|
865
690
|
550
90
|
Ангарская
+ оленчиминская св. - Є1-2 an
|
7,0
3 9
|
4,0
2 8
|
|
3
|
865
|
955
|
90
|
Булайская
св.- Є1bul
|
6,5
|
5,5
|
|
4
|
955
|
1530
|
575
|
Бельская
св.- Є1 bls
|
5,5-7,0
3
|
5,0-5,5
2
|
|
5
|
1530
1990
|
2070
2030
|
540
40
|
Усольская
св. -Î1us
|
3
6,0 9
|
2
5,-5,5 8
|
|
6
|
2070
|
2120
|
50
|
Тэтэрская
V-Î1tt
|
5,5-7,5
|
6,0
|
|
7
|
2120
|
2175
|
55
|
Собинская
Vsb
|
5,5-7,0
|
6,0
|
|
8
|
2175
2215
|
2255
2230
|
80
15
|
Катангская
Vktq
|
3,5-7,5
9
|
4,5-8,0
8
|
|
9
|
2255
|
2300
|
45
|
Оскобинская
V osk
|
6,0-7,5
|
6-8
|
|
10
|
2300
|
2320
|
20
|
Ванаварская
V vn
|
3,5-7,0
|
4,5-7,0
|
|
11
|
2320
|
2500
|
180
|
Рифейские
отл. -R
|
5-7,5
|
6,0
|
1.7 Возможные осложнения при бурении скважины
Данные по осложнениям приведены в табл. 1.2.
Таблица 1.2 -
Возможные осложнения
|
Индекс
стратиграфического подразделения
|
Интервал,
м
|
Вид
(название) осложнения
|
Характеристика
(параметры) осложнения и условия возникновения
|
|
от
|
до
|
|
|
|
1
|
2
|
3
|
4
|
5
|
|
Q
Є2-3ev
|
0
60
|
60
315
|
Обвалы
стенок скважин Прихват инструмента
|
Осыпание
слабосцементированных пород При поглощениях
|
|
Є
1-2an+ol
|
315
|
865
|
Каверно-образования
|
При
прохождении соленосных отложений за счет вымывания кам. соли
|
|
Є
1 bls2
|
955
|
1280
|
Каверно-образования
|
При
прохождении соленосных отложений за счет вымывания кам. соли
|
|
Є
1us
|
1530
|
2070
|
Каверно-образования
|
При
прохождении соленосных отложений за счет вымывания кам. соли
|
|
1920
|
2030
|
Прихват
инструмента
|
При
поглощениях за счет осаждения шлама
|
|
Є
1us (осинский гор.)
|
1920
|
1990
|
Агрессивное
воздействие пластовых флюидов на буровой раствор
|
Изменение
структуры бурового раствора (сворачивание, выпадение в осадок)
|
|
V
vn
|
2300
|
2320
|
Обвалы
стекнок скважины, прихват инструмента
|
При
бурении аргиллитов склонных к выкрашиванию, набуханию
|
Глава 2. Проектирование конструкции профиля
скважины
.1 Обоснование конструкции эксплуатационного
забоя
Под конструкцией эксплуатационного забоя
понимается конструкция скважины в пределах продуктивного пласта.
Рис. 2.1. Конструкция эксплуатационного забоя.
- кондуктор; 2 - эксплуатационная колонна; 3 -
флюид; 4 - продуктивный пласт; 5 - кровля продуктивного пласта; 6 - подошва
продуктивного пласта; 7 - зона перфорации. В зависимости от устойчивости
коллектора существует 2 конструкции эксплуатационного забоя - открытая и
закрытая. Исходя из характеристики разреза скважины [табл. 1.1] коллектор
представлен песчано-алевролитовыми породами, относится к группе терригенных
неустойчивых пород, поэтому принимаем закрытую конструкцию эксплуатационного
забоя. При этом эксплуатационная колонна опускается до подошвы продуктивного
пласта, т.е. до глубины 2500 метров.
.2 Обоснование конструкции скважины
Для построения этого графика исходными данными
является усредненный геологический разрез по скважине с разделением его по
нормативным пачкам. Величины градиентов давлений пластового (гидроразрыва) по
этим нормативным пачкам в МПа/м и градиенты давлений промывочной жидкости,
согласно правилам безопасности в нефтяной и газовой промышленности [1],
давление промывочной жидкости до глубины 1200 м. не должно превышать пластовое
на 10% и на 5% от 1200 до любой проектной глубины.
Для определения числа колонн строим график
совмещенных давлений.
Рис. 2.1 График совмещенных
давлений.
Исходя из рис. 2.1., зоны несовместимые с
условиями бурения отсутствуют, в связи с этим принимаем многоколонную
конструкцию скважины, которая включает в себя: направление; кондуктор;
промежуточную колонну; эксплуатационную колонну.
Конструкция поисковой скважины № 1 приводится на
основании анализа данных бурения на соседней, в пределах лицензионного участка
Оморинской площади, с учетом опыта бурения скважин в пределах
Юрубчено-Тохомской зоны. Исходя из проектной глубины скважины и способа ее
проводки, учитывая характер и перспективность разреза, пластовые давления,
наличие предполагаемых осложнений при бурении на площади, а также уровень
применяемой техники и технологии бурения предлагается следующая конструкция
скважины:
Направление диаметром 426 мм спускается на
глубину 20 метров с целью перекрытия слабоустойчивых, рыхлых пород
четвертичного возраста, и верхней части отложений эвенкийской свиты. Цементируется
до устья.
Кондуктор 324 мм спускается на глубину 310
метров в подошву эвенкийской свиты. Целью спуска кондуктора является перекрытие
зон возможных осложнений при бурении отложений эвенкийской свиты, а также для
установки противовыбросового оборудования. Высота цемента до устья скважины.
Промежуточная колонна диаметром 245 мм
спускается на глубину 2080 метров в плотную кровельную часть отложений
тэтэрской свиты с целью перекрытия всех соленосных отложений и зон поглощения
промывочной жидкости в отложениях нижнего кембрия. Предусматривается установка
противовыбросового оборудования. Цемент за колонной поднимается до устья.
Эксплуатационная колонна диаметром 168 мм
спускается на глубину 2500 м с целью изоляции и качественного испытания
возможно продуктивных отложений венда и рифея. Колонна цементируется до глубины
1580 м.
Сводные данные по конструкции скважины
приводятся в таблице 2.1.
Таблица 2.1 -
Сводные данные по конструкции скважины
|
№
п/п
|
Наименование
колонны
|
Диаметр
колонны, мм
|
Марка
стали
|
Глубина
спуска, м
|
Высота
подъема цемента за колонной
|
|
1
|
Направление
|
426
|
Д
|
20
|
до
устья
|
|
2
|
Кондуктор
|
324
|
Д
|
310
|
до
устья
|
|
3
|
Промежуточная
колонна
|
245
|
Е
|
2080
|
до
устья
|
|
4
|
Эксплуатационная
колонна
|
168
|
Е
|
2500
|
До
1580
|
.3 Обоснование глубины спуска кондуктора
Глубина спуска кондуктора определяется исходя из
условия предупреждения гидроразрыва пород в случае неуправляемого
фонтанирования. Определяется по формуле [2, ф. 7.1].
(2.1)
Где:
- пластовое давление, МПа;-
проектная глубина скважины, м;
- плотность флюида, кг/м³;
- градиент гидроразрыва пород,
МПа/м.
Исходные данные: L=2500 м; Рпл=21,6
МПа; ρфл=703
кг/м3; ∆Pгр=0,02 МПа/м.
Исходя из опыта работ на этом
месторождении, принимаем глубину спуска кондуктора 310 м.
2.4 Выбор диаметра обсадных колонн и долот
Диаметры обсадных колонн рассчитываются снизу
вверх, начиная с эксплуатационной колонны, на основании учебного пособия по
строительству скважин [2], диаметр эксплуатационной колонны определяется
проектным дебетом скважины. Проектный дебет составляет 180 м³/сут.,
тогда согласно учебного пособия [2] принимаем диаметр эксплуатационной колонны
168 мм. Диаметр муфты таких труб составляет 187,7 мм, тогда согласно правилам
безопасности в нефтяной и газовой промышленности [1] необходимая разность
диаметров скважины и муфт обсадных колонн должна обеспечивать беспрепятственный
спуск колонны до проектной глубины, а также качественное их цементирование.
Тогда минимальная допустимая разность муфты обсадной трубы диаметром 168 мм
составит 25 мм. Исходя из этого, условия диаметра долота определится из
выражения:
(2.2)
Где:
- диаметр долота под обсадную
колонну, мм;
- диаметр
муфты обсадной колонны, мм;
- допустимая разность муфты и
скважины, мм. Согласно учебного пособия [2, табл.7.2]:
- для диаметра 168 мм = 25мм.
мм.
Согласно учебного пособия [2]
ближайший стандартный диаметр долота под эксплуатационную колонну составит
215,9 мм.
Для определения долота под
промежуточную колонну определяем внутренний диаметр труб согласно учебного
пособия [2, ф. 7.4]
(2.3)
Где:
- внутренний диаметр промежуточной
колонны, мм;

- диаметр долота под
эксплуатационную колонну, мм;

- допустимый зазор между долотом и
стенками скважины (составляет 5-10 мм)
Тогда:
мм.
Ближайший стандартный наружный
диаметр промежуточной колонны, учитывая что толщина стенки 2-8 мм составляет
245 мм.
Диаметр долота под промежуточную
колонну составит 245+2∙25=295 мм. Согласно учебного пособия [2, табл.
2.2] ближайший стандартный диаметр равен 295,3 мм.
Диаметр долота под кондуктор
составит 324+39=363 мм. Согласно учебного пособия [2] ближайший стандартный
диаметр равен 393,7 мм.
Полученные результаты сносим в табл.
2.2.
Таблица 2.2 -
Конструкция скважины
|
Наименование
колонны
|
Глубина
спуска, м
|
Диаметр
колонны, мм
|
Диаметр
долота, мм
|
|
Направление
|
426
|
490
|
|
Кондуктор
|
310
|
324
|
393,7
|
|
Промежуточная
колонна
|
2080
|
245
|
295,3
|
|
Эксплуатационная
колонна
|
2500
|
168
|
215,9
|
.5 Обоснование профиля скважины
Под профилем скважины понимают ее проекцию на
вертикальную плоскость. План скважины - это проекция на горизонтальную
плоскость. Профиль скважины зависит от назначения скважины и площади кустовой
площадки. Как правило для разведочных скважин он вертикальный, эксплуатационных
- наклонно-направленный и горизонтальный. Из наклонно-направленных в Западной
Сибири широко используется 2 вида профиля: J-образный и S-образный. Согласно
назначения скважины, её можно отнести к группе поисковых. В связи с этим
принимается профиль скважины - вертикальный.
Рис. 2.3. Схема профиля проектной скважины.
.6 Типоразмеры долот
Для выбора типа и размера долот необходимо
проанализировать физико-механические свойства пород по разрезу скважины с целью
разделения его на нормативные пачки, имеющие в своем составе породы,
различающиеся между собой по твердости и абразивности не более чем на одну, две
единицы.
Это необходимо для определения средней
абразивности А и средней твердости Т по пачкам с целью выбора
породо-разрушающего инструмента (ПРИ) по классификационной таблице в НИИБТ.
Данные по нормативным пачкам приведены в табл.
2.3.
Таблица 2.3 - Нормативные пачки
|
№
пачки
|
Интервал,
м
|
|
I
|
0
- 315
|
|
II
|
315
- 865
|
|
III
|
865
- 1280
|
|
IV
|
1280
- 1530
|
|
V
|
1530
- 2070
|
|
VI
|
2070
- 2175
|
|
VII
|
2175
- 2500
|
Средняя твердость определяется по следующей
формуле:
T=(h1t1+h2t2+h3t3+h4t4)/H (2.4);
Средняя абразивность определяется по следующей
формуле:
А=(h1A1+h2A2+h3A3+h4A4)/H
(2.5)
Где:
t1t2…. - твердость отдельного слоя породы в
каждой нормативной пачке.
h1h2…. - мощность каждого отдельного слоя каждой
нормативной пачки.
А1А2…. - абразивность отдельного слоя породы
каждой нормативной пачки.
Н - мощность каждой нормативной пачки.. пачка:
=(305∙4,0)/315=3,8=(305∙4,0)/315=3,8. пачка:= (285∙7,5+100∙3,5+165∙9,0)/550=6,9=
(285∙4+100∙2+165∙8)/550=4,8. пачка: =(90∙6,5)/90=6,5
A= (90∙5,5)/90=5,5. пачка:
= (325∙3,5+250∙6)/575=4,5= (325∙2+250∙5,5)/575=3,5. пачка:=
(540∙6,0)/540=6,0= (540∙5,0)/540 =5,0. пачка:
= (50∙7,5+55∙7,5)105=7,5= (50∙6,0+55∙6,0)/105=6,0. пачка:=
(80∙3,5+45∙9,0+20∙6,0+180∙7,5)/325=6,6
A= (80∙4,5+45∙4,5+20∙6,0+180∙6,5)/325=5,7
Приводим усреднённый геологический разрез в
табл. 2.4.
Таблица 2.4 -
Усредненный геологический разрез для выбора бурильных долот
|
Пачки
|
Интервал
|
 Наименование преобладающих пород
|
|
|
|
от
|
до
|
|
|
|
|
I
|
0
|
315
|
3,8
|
3,8
|
Алевролиты,
доломиты
|
|
II
|
315
|
865
|
4,8
|
6,9
|
Доломиты,
каменная соль, долериты
|
|
III
|
865
|
955
|
5,5
|
6,5
|
Доломиты
|
|
IV
|
955
|
1530
|
3,5
|
4,5
|
Доломиты,
каменная соль
|
|
V
|
1530
|
2070
|
5,0
|
6,0
|
Доломиты,
долериты, ангидритизация
|
|
VI
|
2070
|
2175
|
6,0
|
7,5
|
Доломиты,
глинизация, кавернозность
|
|
VII
|
2175
|
2500
|
5,7
|
6,6
|
Доломиты,
песчаники, кавернозность, долериты
|
С целью выбора ПРИ строим классификационную
таблицу НИИБТ.
Таблица 2.5 - Классификационная таблица НИИБТ
Данные о типоразмерах приведены в табл. 2.6.
Таблица 2.6 -
Сводные данные о типах размерах долот
|
№
нормативной пачки
|
Интервал
бурения, м
|
Типоразмер
долот
|
|
I
|
0
- 20
|
Ш
490 С-ЦВ
|
|
20
- 310
|
393,7
С-ЦВ; СЗ-ГВУ
|
|
II
|
310
- 865
|
Ш
295,3 Т-ЦВ; 11 5/8F47HYPS
|
|
III
|
865
- 955
|
Ш
295,3 Т-ЦВ; 11 5/8F47HYPS
|
|
IV
|
955
- 1530
|
Ш
295,3 Т-ЦВ; 11 5/8F47HYPS
|
|
V
|
1530
- 2080
|
Ш
295,3 Т-ЦВ; 11 5/8F47HYPS
|
|
VI
|
2080
- 2175
|
Ш
215,9 Т-ЦВ; ТЗ-ГАУ
|
|
VII
|
2175
- 2500
|
Ш
215,9 Т-ЦВ; К212,7/100 ТКЗ
|
Глава 3. Проектирование технологического
процесса углубления скважины
.1 Обоснование способа бурения под колонны
Исходя из практики буровых работ на Камовском
месторождении, проектом предусматривается бурение всех интервалов скважины
роторным способом.
.2 Проектирование режима бурения по интервалам
скважины
Под режимом бурения понимают совокупность
технологических параметров, обеспеченных углубление скважины, включающих осевую
нагрузку (Gд, кН), частоту вращения долота (n, об/мин, min-1), расход
промывочной жидкости (Q, л/с) и параметров промывочной жидкости: плотность (ρ,
км/м3), условная вязкость УВ, показатель фильтрации (Ф, см3/30 мин), СНС (Па,
дПа), содержание песка и шлама (%).
Задача проектирования заключается в выборе
такого оптимального их сочетания, которое обеспечивало бы эффективное
углубление скважины и рациональную отработку долот. Осевая нагрузка на долото с
целью их рациональной отработки определяется заводом изготовителем.
Данные по режимам бурения приведены в табл. 3.1.
Таблица 3.1 - Режим
бурения по интервалам
|
Интервал,
м
|
Тип
долота
|
Режим
бурения
|
|
|
G,
кН
|
n,
об/ мин.
|
Q,
м3/с
|
|
0-20
|
Ш
490 С-ЦВ
|
250
|
80
|
0,069
|
|
20-310
|
III
393,7 - С-ЦВ
|
250
|
80
|
0,058
|
|
310-2080
|
III
295,3 - Т-ЦВ
|
250
|
80
|
0,032
|
|
2080-2500
|
III
215,9 - Т-ЦВ; К212,7/100 ТКЗ
|
200
|
80
|
0,015
|
Согласно учебного пособия [2, табл. 7.6, 7.7,]
выбираем осевую нагрузку на долото и частоту вращения, расход промывочной
жидкости определяется с учетом заданной скорости восходящего потока
обеспечивающего эффективный вынос шлама, сохранение устойчивости стенок
скважины, и предупреждение прихватов по формуле:
(3.3)
Где:
-коэффициент, учитывающий твердость
пород; для мягких - 1,3; средних - 1,25; твёрдых - 1,05;
-диаметр долота, м.
-наружный диметр бурильных труб, м.
-скорость восходящего потока; для
мягких - 1,5; средних - 1,2; твёрдых - 1,0.
Для средних пород:=0,785∙1,25∙(0,4902
-0,4262)∙1,2=0,069 м3/с=0,785∙1,25∙(0,39372 -0,3242)∙1,2=0,058
м3/с=0,785∙1,25∙(0,29532 -0,2452)∙1,2=0,032 м3/с
Для твёрдых пород:=0,785∙1,05(0,21592
-0,1682)∙1,0=0,015 м3/с
.3 Мероприятия по рациональной
отработке долот
Долота, поступающие из завода
изготовителя, подлежат внешнему осмотру включающий: соответствие маркировки
долота его паспорту; наличие заглушек на гидромониторных насадках; отсутствие
сколов зубьев и твердосплавных вставок; свободное вращение шарошек долота и
отсутствие люфта; отсутствие задиров, качество присоединительной резьбы.
Отработка долот должна производиться в соответствии с инструкцией по отработке
долот, подробно изложенной в учебнике для нач. проф. образования по бурению
нефтяных и газовых скважин [3].
Согласно этой работе рациональная
отработка долот включает следующие мероприятия:
систематический учет показателей
работы долот дифференцированно по нефтяным и газовым месторождениям, площадям,
стратиграфическим подразделениям, интервалам глубин, способам и режимам
бурения;
оценка и учет результатов
промысловых испытаний опытных и опытно-промышленных партий долот новых
конструкций;
изучение и учет характера износа
элементов долота;
систематическое изучение и анализ
геологического разреза по данным геофизических исследований, исследований
кернового и шламового материала;
проведение хронометража работы
долот.
буровой скважина эпюра
проектирование
3.4 Выбор бурильной колонны и ее
технологической оснастки
Диаметр бурильной колонны
определяется соотношением ПРИ, согласно учебного пособия [2, табл. 7.4]. При
бурении под направление диаметр УБТ составит 254 мм. При бурении под кондуктор
принимаем диаметр УБТ равным 229 мм. При бурении под промежуточную колонну
принимаем диаметр УБТ равным 203 мм. При бурении под эксплуатационную колонну
принимаем диаметр УБТ равным 159 мм.
Диаметр бурильных труб при бурении
составит 127 мм.
Рассчитаем длину УБТ для создания
расчетной осевой нагрузки на долото [2, ф. 7.9]

, м [3.4]
Где:
- плотность промывочной жидкости,
г/см³;
- плотность стали из которой
изготовлена УБТ, г/см³;
g - ускорение свободного падения,
м/с²;
- расчетная осевая нагрузка, кН.
Считаем длину УБТ под кондуктор:
Считаем длину УБТ под промежуточную
колонну:
Считаем длину УБТ под
эксплуатационную колонну:
Для обеспечения без аварийной
проходки скважины, бурильная колонна оснащается технологической оснасткой, в
состав которой входят:
калибратор;
центратор.
.5 Выбор и обоснование типа
промывочной жидкости
Основная функция промывочной
жидкости является охлаждение ПРИ и эффективный вынос шлама. Другими функциями
являются:
Передача гидравлической энергии
забойным двигателям в случае их применения.
Сохранение и укрепления стенок
скважины (за счет введения различных кальматантов).
Уменьшение трения между бурильной
колонной и стенками скважины.
Удерживать шлам во взвешенном
состоянии после остановки насоса, т.е. имеет структуру.
Сохранять естественную проницаемость
продуктивного пласта.
Промывочная жидкость, применяемая
при бурении поисковой скважины № 1 должна обеспечить безаварийные условия
бурения скважины с высокими технико-экономическими показателями, а также
качественное вскрытие продуктивных горизонтов.
Основными критериями выбора типа
промывочных жидкостей являлись:
поддержание высокой механической
скорости бурения;
сохранение номинального диаметра
ствола скважины;
предупреждение осложнений, связанных
с поглощениями промывочной жидкости, кавернообразованием и обвалообразованием
ствола скважины;
сохранение коллекторских свойств
продуктивных горизонтов.
Бурение скважины № 1 проектируется
проводить под направление, кондуктор и эксплуатационную колонну на пресном
глинистом растворе, при бурении под промежуточную колонну промывку скважины
планируется проводить на минерализованном растворе хлористого натрия.
Проектные данные по промывочной
жидкости приводятся в табл. 3.2.
Таблица 3.2 -
Параметры бурового раствора
|
Интервал,
м
|
Тип
промывочной жидкости
|
Параметры
промывочной жидкости
|
Наименование
химических реагентов
|
|
|
Плотность,
гс/м3
|
Вязкость,
с
|
Водоотдача,
см3 за 30мин
|
рН
|
|
|
0-310
|
Полимер
глинистый раствор
|
1,05-1,07
|
30-35
|
до
8
|
7-8
|
Глинопорошок,
сода кальциниров., КМЦ, вода технич.
|
|
310-
2080
|
Высокоминерализованный
полимерный раствор
|
1,22-1,24
|
24-26
|
8-10
|
7-8
|
Повареная
соль, КМЦ, сода кальцинированная, СМАД-1, вода технич.
|
|
2080-
2500
|
Полимер-глинистый
раствор
|
1,05-1,07
|
30-35
|
4-6
|
7-8
|
Глино-порошок,
сода кальции-нирован., КМЦ, СМАД-1, вода технич.
|
.6 Характеристика химических реагентов, для
регулирования свойств промывочных жидкостей
Согласно учебного пособия [2] для регулирования
функциональных свойств промывочной жидкости используют свыше 1700 химических
реагентов. Стоимость химреагентов в доли стоимости скважины довольно высока, и
составляет 2-3,5% при глубине скважин до 3 км, и 10% при глубине более 5 км.
Наиболее широко используются около 300 реагентов. В связи с этим рассмотрим
только характерные представители функциональных групп.
Понизители фильтрации.
Понизители фильтрации стабилизируют дисперсную
систему, снижают проницаемость фильтрационной корки. Углещелочной реагент (УЩР)
- порошок темно-бурого цвета, УЩР обладает многофункциональными свойствами:
является интенсивным пептизатором твердой фазы, особенно глинистой, эффективным
понизителем фильтрации и вязкости, эмульгатором и регулятором рН.
Торфощелочной реагент (ТЩР) - представляет собой
порошок темно-коричневого цвета, соотношение торфа и щелочи обычно равно 10:2
или 15:2. Особенностью ТЩР является наличие большого количества волокнистых
остатков, сильно повышающих вязкость раствора.
Конденсированная сульфит - спиртовая барда
(КССБ) - жидкость темно-коричневого цвета, плотностью 1,11-1,15 г/см3. Получают
КССБ путем конденсации лигносульфонатов формальдегидом и фенолом.
Крахмал - естественный полисахарид. Представляет
собой порошок белого или желтоватого цвета, растворим в слабых растворах
щелочей, в бурении применяется около 40 лет.
Модифицированный крахмал (МК) - порошок белого
цвета, хорошо растворим в воде. Обладает ферментативной устойчивостью и высокой
термостойкостью (до 140-1500С) и пониженными значениями рН-8-9.
Декстрин - порошок белого цвета, хорошо
растворим в воде, получают при гидролизе крахмала.
Карбоксилметилцеллюлоза (КМЦ) - продукт
взаимодействия щелочной целлюлозы с натриевой солью монохлоруксусной кислоты.
Полианионная цнллюлоза (ПАЦ) - высокозамещенная
по карбоксиметильным группам КМЦ.
Карбоксиметилированный крахмал (КМК) -
«крахмальный» аналог КМЦ. Синтез КМК осуществляется путем карбоксиметилирования
крахмала.
Понизители вязкости.
Сульфит - спиртовая барда (ССБ) - густая
темно-бурая жидкость с характерным кисловатым запахом.
Феррохромлигносульфонат (фХЛС) - не
слеживающийся сыпучий порошок коричневого цвета, полностью растворимый в воде и
щелочных средах.
Окзил - жидкий продукт 25-27% концентрации
плотностью 1,12-1,15 г/см3, который получают путем обработки ССБ хромпиком.
Реагенты - пеногасители.
Суспензия полиэтилена (ПЭС) - представляет собой
не гранулированную тонко-дисперсную полиэтиленовую крошку в дизельном топливе
при соотношении 1:10.
Соапсток - пастообразное масляное вещество -
отход рафинирования растительных масел.
Реагенты, связывающие ионы кальция и магния.
Кальцинированная сода - порошок белого цвета
плотностью 2,5 г/см. Получают соду из СаСО3. Триполифосфат натрия (ТПФН) -
реагент представляет собой смесь солей полифосфатов в виде стекловидных кусков,
пластинок или порошка.
Кольматирующие добавки.
Предназначены для обработки буровых растворов с
целью предупреждения их поглощения при вскрытии высокопроницаемых и
трещиноватых пород.
Сломель - порошок из бумажно-слоистого пластика
с размерами частиц: 20-40 мкм - 50%, менее 5 мкм - 0,5%, более 300 мкм - 0,2%.
Стеклопластиковая пыль (СПП) - представляет
собой порошок из микроволокнистого стеклопластика размером 3-700 мкм - 70% и
30% пыли эпоксидной смолы размером 3-100 мкм.
Утяжеляющие агенты.
Используются для увеличения плотности
промывочной жидкости при вскрытии пластов с АВПД, бурении неустойчивых пород,
для регулирования плотности полимерных растворов.
Наиболее широко используется барит (BaSO4) получаемый
путем гравитационного обогащения баритовых руд.
Сидерит (карбонат железа) FeCO благодаря
практически полному (до 90%) растворению в соляной кислоте целесообразно
использовать при вскрытии продуктивных пластов.
ПАВ-добавки.
Поверхностно-активные вещества (ПАВ) -
химические реагенты, способные накапливаться на поверхности раздела фаз,
понижая ее свободную энергию (поверхностное натяжение).
ПАВ - водорастворимые органические соединения,
молекулы которых состоят из двух частей: полярной (гидрофильной) и не полярной
(гидрофобной).
Смазочные добавки.
Используются для снижения трения между
бурильными трубами и стенками скважины при роторном бурении. При турбинном
бурении используется для уменьшения вероятности прихватов бурильной колонны.
Известно более 120 марок смазочных добавок.
СПРИНТ-33 - порошкообразная гранулированная
смазочная добавка на основе натурального сырья, в состав которого входят
анионогенные ПАВ и полезные добавки.
Трибос - пастообразная смазочная добавка на
основе рыбьего жира и отходов его переработки, в состав которых входят
ионогенные ПАВ и полезные добавки. Добавляются к буровым растворам в количестве
3-10% по объему.
СНПК-ПКД-515 - прозрачная светло-коричневая
воспламеняющаяся жидкость плотностью 0,9 г/см3.
ФК-2000 Плюс - непрозрачная светло-коричневая
вязкая жидкость плотностью 1,03 г/см3, представляющая собой раствор смеси
анионных и неионогенных ПАВ на основе растительных масел.
ИКФРИ - прозрачная светло-коричневая
легкоподвижная жидкость плотностью 0,87 г/см3. Представляет собой нерастворимую
в воде смесь химреагентов, включающих ПАВ, растворителей разной полярности и
других полезных добавок.
ИКД - прозрачная бесцветная легкоподвижная
жидкость плотностью 1,03
г/см3, представляющая собой водорастворимую
смесь неионогенных ПАВ.
ДСБ-4ТТП - прозрачная темно-коричневая
легкоподвижная жидкость плотностью 1,0 г/см3 на основе модифицированных кислот
и талового масла.
Флокулянты.
Флокулянты - вещества, способствующие
объединению твердых коллоидных частиц буровых растворов в крупные агрегаты до
размеров (30 мкм), доступных для удаления существующими очистными устройствами.
Наилучшими флоккулирующими свойствами обладает
полиакриламид (ПАА).
3.7 Приготовление бурового раствора
Проектом предусмотрено приготовление бурового
раствора на месте производства буровых работ. Согласно учебного пособия [2] для
приготовления буровых растворов используют механизированный комплекс БПР-5
включающий:
Блок приготовления бурового раствора (БПР) (рис
3.1.) включает загрузочный бункер (6), разгрузочное устройство
пневмоэжекторного типа (15), смеситель гидроэжекторного типа (17).
Рис. 3.1. Блок приготовления бурового раствора
(БПР).
Блок приготовления бурового раствора (БПР):
- приемная воронка; 2 - растворопровод; 3 - блок
очистки; 4 - гидравлические перемешивающие устройства; 5 - промежуточная
емкость; 6 - бункер блока приготовления; 7 - емкость с поперечным желобом; 8 -
буровые насосы; 9 - приемная емкость; 10,13 - задвижки низкого и высокого
давления соответственно; 11 - гидравлический диспергатор; 12 - фильтр; 14 -
аэрирующее шиберное устройство; 15 - разгрузочное пневматическое устройство; 16
- площадка; 17 - гидросмеситель; 18 - воронка; 19 - механические перемешивающие
устройства.
.8 Очистка бурового раствора
В процессе бурения промывочная жидкость
обогащается шламом горных пород, пластовыми водами, газом, что значительно
изменяет ее свойства. Согласно учебного пособия [2] для восстановления ее
свойств используется механическая очистка и дополнительная химическая подготовка.
Тонкая очистка осуществляется в 2 ступени,
сначала промывочная жидкость поступает на группу гидроциклонов
пескоотделителей, далее на группу гидроциклонов илоотделителей.
При содержании газа в промывочной жидкости более
2%, промывочная жидкость подается на газовый сепаратор.
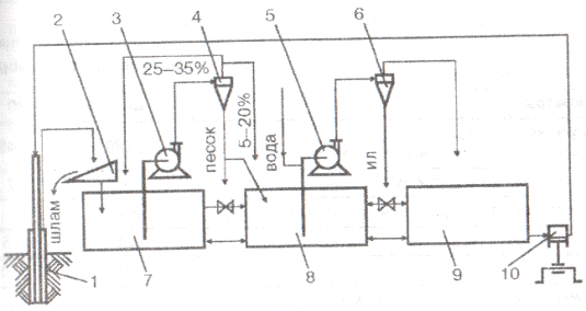
Для отчистки БР от шлама используем 3-х
ступенчатую систему отчистки (рис. 3.2.)
Рис. 3.2. Схема регенерации промывочной
жидкости.
Схема регенерации промывочной жидкости:
- скважина; 2 - вибрационное сито; 3,5 -
центробежные насосы; 4 - пескоотделитель ГЦК-360; 6 - илоотделитель ИГ-45М;
7,8,9 - резервуары циркуляционной системы; 10 - буровой насос.
Входящая из скважины промывочная жидкость по
наклонным желобам самотеком поступает в очистную систему, где проходит грубую и
тонкую очистку от механических примесей (шлама), дегазацию и возвращается в
приемные емкости насосов, при необходимости в раствор вводят химические
реагенты для регулирования ее свойств.
Полная очистка промывочных жидкостей возможна за
счет коагуляции шламов при обработке их гидрофобными кремнийорганическими
жидкостями (ГКЖ-10, ГКЖ-11). Грубая очистка промывочных жидкостей
осуществляется на вбросите.
Вибросито состоит из массивного основания, на
котором с помощью амортизаторов наклонно закреплена подвижная рама с решетом,
поверх которого устанавливается кассета с металлической сеткой из нержавеющей
проволоки с отверстиями размером 0,16 - 0,5 мм.
Промывочная жидкость поступает к виброситу по
наклонному желобу через распределитель потока. Рама совершает
возвратно-поступательные движения с частотой от 25 до 35 колебаний в минуту.
Пескоотделитель состоит из группы гидроциклонов,
шламового насоса, емкости, соединительной трубы, установленных на сварной раме
(рис. 3.3.).
Рис. 3.3. Гидроциклонный пескоотделитель.
Гидроциклонный пескоотделитель: 1 - гидроциклон,
2 - рама, 3 -соединительная труба, 4 - емкость, 5 - шламовый насос.
Гидроциклон пескоотделителя представляет собой
корпус, состоящий из верхней короткой цилиндрической части и нижней удлиненной
конусной части. Из внутренней очищенный полости сосуда через верхнюю крышку
выводится выходной патрубок, конус заканчивается внизу выпускным каналом с
песковой насадкой. Промывочная жидкость шламовым насосом под давлением 0,2-0,3
МПа подается через тангенциальный патрубок в цилиндр. Под действием
центробежной силы жидкость, совершая вращательное движение, освобождается от
шлама, который сползает по поверхности конуса и удаляется затем через насадку.
Очищенная жидкость через выходной патрубок направляется в отстойник.
Регулирующее устройство позволяет изменить диаметр насадки с учетом наибольшего
диаметра частиц, подлежащих удалению.
Глава 4. Проектирование технологического
процесса крепления скважины
.1 Требование к крепи скважины
Под крепью скважины понимают обсадную колонну с
сформировавшемся вокруг нее цементным камнем.
Крепь служит: 1) для сохранения форм и размеров
поперечного профиля скважины; 2) исключения межпластовых перетоков; 3)
исключения неуправляемого фонтанирования.
Согласно учебного пособия [2] под крепью скважин
понимают обсадную колонну с сформировавшимися вокруг нее тампонажным камнем.
Крепление скважин предназначено для:
сохранения формы и размеров проектного
поперечного сечения на весь период их эксплуатации;
разобщения пластов с целью исключения
межпластовых перетоков и флюидопроявлений как в процессе строительства, так и в
период их эксплуатации;
надежной охраны недр.
Крепление скважин - комплекс взаимосвязанных
последовательно выполняемых процессов, включающих спуск в скважину обсадной
колонны и заполнение затрубного пространства тампонажным раствором, после
затвердевания, которого создается твердая, практически непроницаемая перемычка
(тампонажный камень).
Кроме этого, тампонажный камень выполняет
следующие функции:
удерживает колонну от осевых перемещений,
возникающих за счет ее собственного веса, термобарических деформаций и ударных
нагрузок;
защищает обсадную колонну от коррозионного
воздействия пластовых вод и газов;
увеличивает сопротивляемость колонны избыточным
внутренним и наружным давлениям.
Качество крепления определяют:
толщина и группа прочности стали труб обсадной
колонны;
состав, количество и расположение
технологической оснастки на обсадных колоннах;
качество проработки ствола скважины и условия
спуска обсадных колонн;
тип и качество буферной жидкости и тампонажного
раствора;
способ и технико-технологические условия
цементирования.
Наружное давление на стенки обсадной колонны
осуществляет основной столб жидкости, состоящий из: чистого цементного
раствора, облегченного, буферной жидкости, бурового раствора.
.2 Расчет обсадных колонн на прочность
К прочностным характеристикам обсадных труб
относятся:
) толщина стенок;
) группа прочности стали.
На промежуточную колонну в скважине действует 4
группы сил:
)осевая растягивающая нагрузка при спуске;
)осевая нагрузка сжатия;
)наружное избыточное давление, возникающее при
цементировании, при освоении и при окончании процесса эксплуатации скважины;
)внутреннее избыточное давление возникает при
опрессовке труб на герметичность.
На эксплуатационную колонну в скважине действует
3 группы сил: 1)осевая растягивающая нагрузка при спуске;
)наружное избыточное давление, возникающее при
цементировании, при освоении и при окончании процесса эксплуатации скважины;
)внутреннее избыточное давление возникает при
опрессовке труб на герметичность.
Рис. 4.1. Разрез скважины.
Исходные данные приводим в табл. 4.1.
Таблица 4.1 -
Исходные данные для расчета эксплуатационной колонны на прочность
|
Наименование
|
Условное
обозначение
|
Размерность
|
Величина
|
|
|
Расстояние
от устья скважины:
|
|
|
|
|
|
-до
башмака промежуточной колонны.
|
м2080
|
|
|
|
|
-до
башмака эксплуатационной колонны.
|
м2500
|
|
|
|
|
-до
башмака кондуктора.
|
м310
|
|
|
|
|
-до
уровня тампонажного раствора в затрубном пространстве.
|
h
|
м
|
1450
|
|
|
-до
уровня ПЖ в колонне (при испытании на герметичность)
|
м1000
|
|
|
|
|
-до
уровня ПЖ в колонне (при освоении скважины)
|
м1500
|
|
|
|
|
-до
середины продуктивного пласта
|
S
|
м
|
2410
|
|
|
Удельный
вес: -тампонажного раствора
|
Н/м³1,85*104
|
|
|
|
-нефти
(в период ввода скважины в эксплуатацию)
|
Н/м³0,85*104
|
|
|
|
-воды
|
Н/м³1,0*104
|
|
|
|
-скважинной
жидкости (на момент окончания процесса эксплуатации скважины).
|
Н/м³0,95*104
|
|
|
|
-состав
столба жидкости (тампонажного и бурового раствора) по всей длине скважины.
|
Н/м³1,4*104
|
|
|
|
Давление:
Пластовое давление на уровне кровли продуктивного пласта.
|
МПа21,6
|
|
|
|
Пластовое
давление на глубине S.
|
МПа22,4
|
|
|
|
Пластовое
давление на уровне подошвы продуктивного пласта.
|
МПа23,2
|
|
|
.2.1 Построение эпюры наружных давлений
. Определим наружные давления для
незацементированной зоны.
PZн= 10-6
γр* Z, при 0
Z
h (4.1.)
при Z= 0 м.
P0н= 10-6
1,4
104
0 = 0 МПа.
при Z= h = 1450 м.
P1450н= 10-6
1,4
104
1450 =
20,3МПа.
. Определим наружные давления в
зацементированной зоне в интервале закрепленной предыдущей колонны (1450-2080
м).
РZн = 10-6
γр
h+10-6
γц
(Z-h), при
h
Z
LК (4.2.)
при Z= h = 1450 м.
Р1450н=
10-6*1,4*104*1450+10-6*1,85*104*(1450-1450) = 20,3 МПа.
при Z= LК = 2080 м.
Р2080н=
10-6*1,4*104*1450+10-6*1,85*104*(2500-1450) = 31,955 МПа.
. Определим наружные давления по
всей длине скважины на момент окончания цементирования.
н= 10-6
[γр
h+ γц
(Z-h)] ,при
h
Z
L (4.3.)
при Z=L=2500
Р2500н=
10-6*[1,4*104*1450+1,85*104*(2500-1450)] = 39,725 МПа.
Строим эпюру наружных давлений (рис.
4.2.).
Рис. 4.2. Эпюра наружных давлений.
4.2.2 Строим эпюру избыточных наружных давлений
. Определяем избыточное наружное давление на
момент окончания цементирования.
PZн.и= 10-6
(
-
)
Z, при 0
Z
h (4.4.)
при Z= 0 м.н.и= 10-6
(1,4
104 -1,4
104)
0= 0 МПа.
при Z= h = 1450 м.н.и= 10-6
(1,4
104 -1,4
104)
1450= 0 МПа.
=
т.к. между кондуктором и
эксплуатационной колонной буровой раствор.
н.и= 10-6
[(
-
)
Z - (
-
)
h], при h
Z
L (4.5.)
при Z =L = 2500 м. н.и= 10-6
[(1,85
104-1,4
104)
2500 - (1,4
104-1,4
104)
1450]= 11,25
МПа.
=
т.к. между кондуктором и
эксплуатационной колонной буровой раствор.
Строим эпюру избыточных наружных
давлений на момент окончания цементирования (рис. 4.3.).
Рис. 4.3. Эпюра избыточных наружных давлений на
момент окончания цементирования.
. Определяем избыточное наружное давление при
испытании на герметичность снижением уровня.
а) В незацементированной зоне.
PZн.и= 10-6 
Z, при 0
Z
H1 (4.6.)
при Z= 0 м.н.и=10-6
1,4
104
0= 0 МПа.
при Z= H1 = 1000 м.н.и= 10-6
1,4
104
1000= 14
МПа.
б) В незацементированной зоне
при h
Z
H1
при Z= H1 = 1000 м.н.и= 10-6
1,4
104
1000= 14
МПа.
н.и= 10-6
[
h -
(Z- H1)], (4.7.)
при Z= h = 1450 м.
P1450н.и= 10-6
[1,4
104
1450 -1,0
104
(1450-1000)]=
15,8 МПа.
в) В зацементированной зоне
н.и= PZн -10-6 
(Z-H1), при H1
Z
Lк (4.8.)
при Z= LК = 2080 м.н = 31,9 МПан.и=
31,9 -10-6
1,0
104
(2080-1000)=
21,1 МПа.
при Z= L = 2500 м.н= 39,7 МПа.н.и=
39,7 -10-6
1,0
104
(2500-1000)=
24,7 МПа.
Строим эпюру избыточного наружного
давления при испытании на герметичность (рис. 4.4.).
Рис. 4.4. Эпюра избыточного
наружного давления при испытании на герметичность.
4.2.3 Определяем избыточное наружное давление
при освоении скважины
а) в незацементированной зоне
При освоении давление гидроразрыва меньше 2МПа,
чем давление в пласте.
(4.9.)
при Z= 0 м.
.
при Z= H2 = 1500 м.
.




(4.10.)
при Z= h = 1450 м.
.
б) в зацементированной зоне




(4.11.)
при Z= Lк = 2080 м.
при Z= L = 2500 м.
Строим эпюру избыточного наружного
давления при освоении скважины (рис. 4.5.).
Рис. 4.5. Эпюра избыточного
наружного давления при освоении скважины.
.2.4 Построение эпюр избыточных
внутренних давлений при испытании на герметичность
а) В незацементированной зоне
в.и= 1,1
Pву -10-6
(
-
)
Z, при 0
Z
h (4.12.)
Pву=1.1*Русть=1.1*19,6=21,6 МПа
при Z= 0 м.
P0в.и= 1,1
21,6 -10-6
(1,4
104-0,95
104)
0= 23,76
МПа.
При Z=h = 1450 м.в.и = 1,1
21,6 -10-6
(1,4
104-0,95
104)
1450= 17,26
МПа.
б) В зацементированной зоне
в.и= 1,1
Pву+10-6 

Z-PZн, при Lк
Z
S и при S
Z
L (4.13.)
при Z= Lк = 2080 м.в.и= 1,1
21,6 +10-6
0,95
104
2080- 31,9 =
11,62 МПа.
при Z= L = 2500 м.в.и= 1,1
21,6+10-6
0,95
104
2500-39,7 =
7,81 МПа.
Строим эпюру избыточных внутренних
давлений при испытании на герметичность(рис. 4.6.).
Рис. 4.6. Эпюра избыточных
внутренних давлений при испытании на герметичность.
4.3 Расчёт эксплуатационной колонны на прочность
Длина I секции (L1) принимается равной мощности
нефтяного пласта + 50 метров. По условию мощность нефтяного пласта составляет
180 метра, тогда длину первой секции принимаем равной L1= 200 метров.
Для выбора толщины стенок и группы прочности
стали для каждой секции эксплуатационной колонны, используются расчетные данные
избыточных наружных давлений. Согласно эпюре А - E избыточных наружных давлений
в интервале скважины 2320- 2500 Рн.и= 30,2 МПа.
Коэффициент запаса прочности (n1), в зоне
продуктивного пласта принимаем равным n1= 1,2, тогда определим максимальное
избыточное наружное давление с учётом коэффициента запаса прочности n1 по
формуле 4.14:
Pmaxн.и= Pн.и
n1 (4.14.)
н.и= 30,2*1,2= 36,24МПа.
Согласно методичке по практическим
расчётам при бурении нефтяных и газовых скважин [4] находим, что этому давлению
соответствуют трубы с группой прочности стали Е, с толщиной стенки ∆=8,9
мм для которых: Pкр1= 36,2 МПа.
Рассчитаем вес I секции труб Q1 по
формуле 4.15:
= L1
q1 (4.15.)
Согласно методичке по практическим
расчётам при бурении нефтяных и газовых скважин [4] для труб диаметром 168,3 мм
с толщиной стенки ∆=8,9 мм вес одного погонного метра трубы q1=0,290 кН.
Тогда общий вес I секции составит:
По эпюре наружных избыточных давлений
определим расчётное наружное давление (Pн.и) на уровне верхнего конца I секции
колонны на глубине 2320 м Pн.и= 37 МПа. Согласно методичке по практическим
расчётам при бурении нефтяных и газовых скважин [4] данному давлению, при
коэффициенте запаса прочности n2= 1,0 для труб находящихся в не зоны
продуктивного пласта, соответствуют трубы с группой прочности стали Е, с
толщиной стенки ∆= 9,5 мм для которых: Pкр2=37,1 МПа.
Определим значение критического
давления для труб II секции с учётом растягивающих нагрузок от веса I секции по
формуле 4.16:
′кр2= Pкр2
(1-0,3
), МПа. (4.16)
где: Q1 - вес I секции труб, кН.
Qт - предел текучести металла труб,
кН. Для выбранных труб Qт= 1548 кН.′кр2= 37,1*(1-0,3*
)= 36,7 МПа.
Согласно эпюре избыточных наружных
давлений данному значению P′кр2 соответствует глубина спуска II секции
колонны Lсп2 = 2300 м.
Тогда уточнённая длинна I секции составит
:Lу1= 2500-2320 = 180 м.
Рассчитаем уточнённый вес I секции
(Qу1):у1= 180*0,290 = 52,2 кН =5,22 т.
Для III секции выбираем трубы, с
группой прочности стали Д, и толщиной стенки ∆= 8,9 мм, для которых Pкр3=
26,7 МПа. Согласно эпюре избыточных наружных давлений данному значению Pкр3
соответствует глубина спуска III секции Lсп3=1530 м. Следовательно, длина II
секции составит:
L2= Lсп2 - Lсп3 = 2320 -1530 = 790 м.
Согласно методичке по практическим расчётам при
бурении нефтяных и газовых скважин [4] для труб диаметром 168 мм с толщиной
стенки 8,9 мм вес одного погонного метра трубы принимаем равным q2= 0,265 кН.
Тогда вес второй секции труб (Q2) составит:=
790*0,265 = 209,4 кН = 20,94 т.
Определим значение критического давления для
труб III секции для условий двухосного нагружения с учётом значений
растягивающих нагрузок от веса I и II секции по формуле 4.17:
P′кр3= Pкр3
(1-0,3
Q1+2/Qт)
(4.17.)+2= Qу1 + Q2 = 52,2+209,4 =261,6 кН.
т= 1274 кН.′кр3=
26,7*(1-0,3*261,6/1274) = 25,05 МПа.
Для полученного значения P′кр3,
согласно эпюре избыточных наружных давлений, находим уточнённую глубину спуска
III секции Lусп3= 1400 м.
Найдём уточнённую длину II
секции:у2= 2320 -1400 = 920 м.
Рассчитаем уточнённый вес II
секции:у2= 920*0,265 = 243,8 кН = 24,38 т.секцию составляем из труб с группой
прочности стали Д, и толщиной стенок ∆=8,9 мм, для которых Pкр4= 22,4
МПа.
Согласно эпюре избыточных наружных
давлений данному значению Pкр4 соответствует глубина спуска IV секции колонны
Lсп4 = 955 м.
Следовательно, длина III секции
составит:
L3= Lусп3 - Lсп4 = 1400 - 955 = 445 м.
Согласно методичке по практическим расчётам при
бурении нефтяных и газовых скважин [4] для труб диаметром 168 мм с толщиной стенки
8,9 мм вес одного погонного метра трубы принимаем равным q3= 0,243 кН.
Тогда вес III секции труб (Q3) составит:=
445*0,243 = 108,1 кН = 10,81 т.
Для условия двухосного нагружения определим
значение критического давления для труб IV секции с учётом растягивающих
нагрузок от веса I, II и III секции по формуле 4.18:
P′кр4= Pкр4
(1-0,3
Q1+2+3/Qт)
(4.18.)+2+3= Qу1 + Qу2 + Q3= 52,2+243,8+108,1 = 404,1 кН.
т= 1156 кН.′кр4=
22,4*(1-0,3*404,1/1156) = 20,05 МПа.
Для полученного значения P′кр4,
согласно эпюре избыточных наружных давлений, находим уточнённую глубину спуска
IV секции Lусп4= 865 м.
Найдём уточнённую длину III третьей
секции:
у3= Lусп3 - Lусп4 = 1400 -865 = 535
м.
Рассчитаем уточнённый вес III
секции:у3= 535*0,243 = 130,0 кН = 13,0 т.
Тогда общий вес III секций составит:
+2+3= Qу1 + Qу2 + Qу3 =
52,2+243,8+130,0 = 426 кН = 42,6 т.
Длину IV секции определяем из расчета ее
нагрузки на растяжение по формуле 4.19:
м (4.19)
где: Рст - допустимая нагрузка на
страгивание резьбы, кН;- запас прочности трубы на страгивание резьбы, кН;
Согласно методичке по практическим
расчётам при бурении нефтяных и газовых скважин [4] для обсадной трубы с
группой прочности стали Д, диаметром 168 мм и толщиной стенки ∆=8,9 мм
Рст= 706 кН, а коэффициент запаса прочности n3= 1,15 кН. Вес одного погонного
метра труб данной стали и толщины стенки равен:= 0,243 кН.
773 м
Рассчитаем уточнённый вес IV
секции:у4= 773*0,243 = 187,8 кН = 18,78 т.
Тогда общий вес IV секций
составит:+2+3+4= 426+187,8 = 613,8 кН = 61,38 т.
По эпюре избыточных внутренних
давлений определим избыточное внутреннее давление для IV секции. Давление на
уровне верхней трубы, расположенной на глубине L4= 2500-180-920-535-773 = 92 м,
составляет P491в.и.= 33,2 МПа. Согласно методичке по практическим расчётам при
бурении нефтяных и газовых скважин [4] для труб с группой прочности стали Д, и
толщиной стенки ∆=7,0, предел текучести составит Рт= 31,8 МПа, запас
прочности (n2) составит, формула 4.20:
(4.20.)
= 31,8/33,2 =0,96 <[n2];
,96<1,15.секцию составляем из
труб с группой прочности стали Д, и толщиной стенки ∆=8,9, для которых
Рст= 931 кН и q5= 0,292 кН.
Тогда Lу5 составит:
м
Для VI секции достаточна длина 92 м.
Рассчитаем уточнённый вес V
секции:у5= 92*0,292 = 26,86 кН = 2,686 т.
Тогда общий вес V секций
составит:+2+3+4+5= 613,8+26,86 = 640,66 кН.
апас прочности на внутреннее
давление для IV и V секций достаточен.
Общий вес эксплуатационной колонны
составит:
кН
Полученные расчеты данные сводим в
таблицу 4.2.
Таблица 4.2 -
Расчетные данные, полученные при расчете эксплуатационной колонны на прочность
|
№
секции
|
Группа
прочности стали
|
Толщина
стенки, мм.
|
Длина
секции, м.
|
Вес
секции, кН.
|
|
I
|
Е
|
8,9
|
180
|
52,2
|
|
II
|
Е
|
8,9
|
920
|
243,8
|
|
III
|
Е
|
8,9
|
535
|
130,0
|
|
IV
|
Е
|
8,9
|
773
|
187,8
|
|
V
|
Е
|
8,9
|
92
|
26,86
|
|
ВСЕГО:
|
|
|
2500
|
640,66
|
Примечание: Счет секций ведется снизу вверх.
.4 Подготовительные работы к спуску обсадной
колонны
Спуск обсадной колонны - весьма ответственная
операция. До начала спуска должны быть завершены все исследовательские и
измерительные работы в скважине, тщательно проверено состояние бурового
оборудования и инструмента, соответствие грузоподъёмности вышки и талевой
системы весу подлежащей спуску колонны, подготовлен ствол скважины.
За несколько дней до спуска колонны на буровую
завозят обсадные трубы, элементы технологической оснастки и необходимый
дополнительно инструмент, тщательно проверенные и испытанные на базе. А также
специальную смазку для обеспечения герметичности резьбовых соединений при
наиболее высоких температурах, возможных в скважине. В качестве такой смазки можно
использовать смазку Р - 402.
На буровой обсадные трубы вновь осматривают,
проверяют овальность жёсткими двойными шаблонами соответствующих диаметров;
трубы, повреждённые при транспортировке и с повышенной овальностью,
отбраковывают, а годные сортируют по группам прочности, толщине стенки, видам
резьбовых соединений и укладывают на стеллажи в порядке, противоположном
очерёдности их спуска в скважину. При укладке каждую трубу нумеруют, измеряют
её длину; номер трубы, её длину и нарастающую длину колонны записывают в
специальный журнал.
По данным каверно - и профилеграмм выявляют
участки сужений ствола скважины, а по инклинограммам - участки резкого
искривления. Эти участки тщательно прорабатывают новыми долотами со скоростью
не более 35 - 40 м/ч и расширяют до нормального диаметра. При проработке
целесообразно применять ту же компоновку низа бурильной колонны, которую
использовали для бурения последнего интервала скважины, особенно если условия
бурения сложные, калибруют: спускают бурильную колонну, низ которой имеет
примерно такую же жёсткость, как и подлежащая спуску обсадная колонна и следят
за успешностью прохождения такой компоновки до забоя. Если наблюдаются посадки
ли затяжки, ствол повторно прорабатывают с несколько меньшей скоростью. По
окончании калибровки скважину тщательно промывают в течение одного - двух
циклов циркуляции.
При проработке применяют буровой раствор с
минимальным показателем фильтрации, низкими значениями статического и
динамического напряжения сдвига и пластической вязкости, а также с хорошими
смазочными характеристиками.
При подъёме бурильной колонны после проработки
или калибровки измеряют её длину и уточняют длину скважины, при этом надо
учитывать, что действительная длина скважины больше суммарной измеренной длины
поднятых из неё бурильных труб на величину удлинения колонны. К спуску
приступают сразу же, как только закончен подъём бурильных труб после промывки
скважины.
.5 Спуск обсадных колонн
Согласно учебника [3], обсадную колонну спускают
с помощью механизированных клиньев и одного элеватора.
Рекомендуемая средняя скорость спуска труб
(эксплуатационной, промежуточной колонны) - не более 1м/с, а кондуктора - не
более 0,5 м/с.
При спуске обсадной колонны нужно контролировать
полноту её заполнения буровым раствором через обратный клапан, следя за объёмом
жидкости, 500 - 800 м труб необходимо делать промежуточные промывки, чтобы
освежить жидкость в скважине, удалить скопившийся шлам и уменьшить опасность
газирования.
После окончания спуска колонны её оставляют
подвешенной на буровом крюке, а скважину тщательно промывают; при этом колонна
не должна упираться в забой.
.6 Способ цементирования
.6.1 Обоснование способа цементирования
) Цементирование скважины предназначено для
разобщения пластов с целью исключения межпластовых перетоков.
) Создание или обеспечение равномерной нагрузки
на обсадную колонну.
) Повышение срока службы обсадной колонны.
Как правило продуктивный пласт и интервал выше
его на 50 м цементируется чистым раствором портландцементом. Выше этого
интервала цементирования осуществляется гельцементным раствором с целью
предотвращения гидроразрыва пластов при цементировании. В качестве облегчающей
добавки служит глинопорошок.
В настоящее время существуют 6 способов
цементирования скважин: одноступенчатый, двухступенчатый, манжетный,
манжетно-селективный, обратный, встречными потоками.
Наиболее широко применимы и технологически
отработаны одно- и двухступенчатый способы цементирования.
Одноступенчатый способ цементирования
применяется в неосложненных геологических условиях при максимальной глубине
скважины до 3000 метров.
Двухступенчатый способ цементирования
применяется в осложненных геологических условиях, например при различном
градиенте гидроразрыва верхних и нижних частей скважины или сильно
различающихся температурных градиентах в выше названных интервалах скважины.
Для его реализации на заданной глубине устанавливают муфту двухступенчатого
цементирования (МСЦ-1), позволяющую цементировать раздельно верхний и нижний
интервал скважины.
Манжетный способ цементирования используется при
вскрытии скважин с низкопроницаемым коллектором или пластов с АНПД. Для его
реализации над кровлей продуктивного пласта в обсадную колонну устанавливают
пакер (например, ПДМ - пакер для двойного и манжетного цементирования).
Манжетно-селективный способ цементирования
применяется в аналогичных условиях, но при близко расположенных подошвенных
водах. Для его осуществления в обсадной колонне на уровне подошвы продуктивного
пласта устанавливают пакер типа ПЗМ - пакер заколонный модульный, а в кровли
продуктивного пласта ставят пакер типа ПДМ, цементирование осуществляется в 2
приема. Сначала объемный способ цементирования скважины ниже подошвы
продуктивного пласта. После окончания цементирования подошвы, открываются
клапана ПЗМ, и модули заполняются продавочной жидкостью. Модули (рукава из
брезента) расширяются и надежно перекрывают затрубное пространство, создавая,
таким образом, искусственную перемычку между нефтью и водой. Над пластом
цементирования осуществляется вышеописанный способ, т.е. через ПДМ.
Обратный способ цементирования применяется
редко, в связи с отсутствием надежных технических средств контроля входа
цементного раствора в обсадную колонну на заданную высоту.
Способ цементирования скважины встречными
потоками в основном применяется при цементировании кондукторов, при недоподъеме
цементного раствора из-за его поступления в поглощающий горизонт.
Анализ геологического разреза Камовского
месторождения показывает, что в нем отсутствуют интервалы с разными градиентами
температур и градиентами гидроразрыва пород. Таким образом, экономически
целесообразно применить одноступенчатый способ цементирования, как наиболее
дешевый и технологически простой.
Возможность использования одноступенчатого
способа цементирования проверяется расчетом приведенным ниже.
.6.2 Расчет возможности одноступенчатого
цементирования для эксплуатационной колонны
Для производства расчета исходные данные сведем
в таблицу 4.3.
Таблица 4.3 -
Исходные данные для расчета возможности одноступенчатого цементирования
|
Параметры
|
Обозначение
|
Единицы
измерения
|
Величина
|
|
Глубина
скважины
|
L
|
м
|
2500
|
|
Давление
гидроразрыва пород в призабойной зоне
|
Ргр
|
МПа
|
44,9
|
|
Диаметр
обсадной колонны
|
Dк
|
м
|
0,168
|
|
Диаметр
скважины
|
Dс
|
м
|
0,2159
|
|
Расстояние
от устья до уровня цементного камня
|
hбр
|
м
|
1580
|
|
Мощность
эксплуатационного объекта
|
hцр
|
м
|
180
|
|
Удельный
вес чистого цементного раствора
|
γцр
|
Н/м3
|
1,85*104
|
|
Удельный
вес бурового раствора
|
γбр
|
Н/м3
|
1,05*104
|
|
Скорость
восходящего потока тампонажного раствора
|
Vзп
|
м/с
|
1,5
|
|
Коэффициент
гидравлического сопротивления затрубного пространства
|
λзп
|
-
|
0,035
|
. Определим средневзвешенное значение удельного
веса составного столба бурового и тампонажного раствора при котором не
произойдет гидроразрыв пород по формуле 4.21:
[Н/м3] (4.21)
Таким образом, при выполнении
вышеприведенного условия технологически возможно проведение цементирования
скважины в одну ступень.
.7 Выбор типа и компонентного
состава тампонажного раствора, буферной и продавочной жидкости
.7.1 Расчет расхода материалов для
проведения процесса цементирования эксплуатационной колонны
Для приготовления чистого цементного
раствора необходимы цемент и вода, при определенном водоцементном отношении.
В настоящее время оптимальным
значением водоцементного отношения является отношение: W= В/ц = 0,5.
Для того, чтобы подсчитать
количество воды и цемента необходимо знать общий объем цементного раствора,
который определяется объемом затрубного пространства.
Объем затрубного пространства
определяется по формуле 4.22:
[м3] (4.22)
где:
- коэффициент кавернозности
скважины, определяемый по формуле 4.23:
(4.23)
Расчет по данной скважине показал,
= 1,23.
Тогда:
м3
Определим потребное количество
цемента для приготовления (чистого) цементного раствора по формуле 4.24:
[т] (4.24)
Согласно правилам безопасности в
нефтяной и газовой промышленности [1] чистым цементным раствором должен быть
зацементирован продуктивный пласт и интервал выше его на 150 м., тогда
потребный объем чистого цементированного раствора составит:цр=16,3 м3
т
Потребное количество воды для
приготовления (чистого) цементного раствора определим по формуле 4.25:
[т] (4.25)
в=0,5×20,1=10,05
т.
Количество цемента на весь объем
цементируемого интервала колонны составит:=20,1 т.
.7.2 Объем буферной жидкости
Буферная жидкость предназначена для
выполнения следующих функций:
. Отделение вытесняемого бурового
раствора закачиваемым тампонажным раствором;
. Для очищения стенок скважины от
рыхлой глистой корки;
. Вытеснение глинистого раствора из
застоявшихся зон каверн.
В качестве основной буферной
жидкости используется 5-10% NaCl или 3% водный раствор КМЦ.
С целью предупреждения
неуправляемого фонтанирования максимальный объем буферной жидкости определяется
исходя из высоты нахождения его за колонной не менее 200 м.
Тогда объем буферной жидкости
определим по формуле 4.27:
(4.27)
где:зп - площадь сечения затрубного
пространства;
- минимальный объём буферной
жидкости. бф= 0,02*200= 4 м3
.8 Выбор цементировочного
оборудования и его оснастки
Для осуществления процесса
цементирования используется комплект тампонажной техники включающий: цементировочные
агрегаты, цементно-смесительные машины, осреднительные емкости, самоходный блок
манифольда и станция контроля и управления процессом цементирования (СКУЦ;
КСКЦ-01). Главным механизмом в этом составе является цементировочный агрегат,
который должен создавать давление, превышающее максимальное гидравлическое
сопротивление скважины, т.е. должно соблюдаться условие: Рац>Рцг.
Рцг = ∆Ргс + Ргд + Рст, МПа. (4.28)
где:
∆Ргс - разность гидростатических давлений
внутри обсадной колонны и в затрубном пространстве.
Ргд - гидродинамическое давление, необходимое
для преодоления сопротивлений при движении тампонажной жидкости внутри колонны
и затрубном пространстве.
Рст - дополнительное давление, возникающее при
посадке продавочной пробки на кольцо "СТОП".
(4.29)
(4.30)
(4.31)
Гидродинамическое давление
определяется суммой гидродинамических давлений внутри и снаружи обсадной
колонны по формуле Дарси - Вейсбаха
Внутри обсадной колонны
(4.32)
λтр- коэффициент
гидравлического сопротивления в трубах.
υтр- скорость
движения жидкости в трубах.вн- внутренний диаметр трубы в метрах.
λтр=0,02 γбр=1,05*104
Н/м3
υтр=4,87
м/свн= 150 мм.
Для затрубного давления
Λзт=1,5 м/с
λзт=0,035
Для определение затрубного давления
нам необходимо найти γцрср.
(4.33)
(4.34)
Ргд=4,2+3,62=7,82 МПа
Находим давление гидравлического
сопротивления скважины
Ргсс =17,6+7,82+3=28,42 МПа
Исходя из технической характеристики
ЦА выбираем ЦА марки превышающее Ргсс. Подходит АНЦ-320 развивающий
максимальное давление 40 МПа.
4.8.1 Определение необходимого количества
цементировочных агрегатов
Количество цементировочных агрегатов выбирается
исходя из двух условий:
) Из условия создания требуемой скорости
восходящего потока в затрубном пространстве.
) Условие заданного времени цементирования,
которое должно составлять 75% от времени начала схватывания тампонажного
раствора.
Суммарная производительность цементировочных
агрегатов обеспечивающих заданную скорость восходящего потока определяется по
формуле 7.17:
(4.35)
где: зп - площадь затрубного
пространства, м3.зп - скорость восходящего потока в затрубном пространстве,
м/с.
Тогда требуемое количество цементных
агрегатов составит:
(4.36)
Где: - производительность одного
цементного агрегата на четвертой скорости при диаметре втулок 110 мм
обеспечивающей необходимое давление 40 МПа.
Принимаем q4=0,0105 м3/с, тогда:
Sзп= (Дс2 - Дн2)/4 ; м2 (4.37)
зп= (0,21592-0,1682)/4 = 0,05 м3
∑Q = 0,005*1,5=0,0075 м3/с
ед.
Исходя из, вышеприведенного расчета,
принимаем 2 единиц цементировочных агрегатов.
.8.2 Выбор смесительных машин
Смесительные машины предназначены
для приготовления тампонажных смесей. Основными элементами смесительных машин
является транспортная база автомобилей Маз, КрАЗ, Урал на платформе которой
размещены: бункер емкостью 14,5 м3 , с загрузочными и подающими шнеками и
гидросмесительные устройства. Подача воды к гидросмесительному устройству
осуществляется водоподающим насосом цементировочного агрегата. Параметры
готовой смеси регулируются количеством цемента и воды подаваемой в смесительное
устройство. По производительности готовой смеси все смесительные машины могут
обеспечить работу двух цементировочных агрегатов, тогда:
ед.
Принимаем 1-у цементно-смесительную
машину.
Исходя из приведенных расчетов, в
состав тампонажной техники для цементирования скважины войдут АНЦ-320 - 2 ед.,
смесительные машины марки УС6-30 - 1 ед., самоходный блок манифольда 1БМ-700 -
1 ед., станция контроля цементирования КСКЦ-01 - 1 ед., цементировочная головка
ГЦУ 168.
Схема расстановки тампонажной
техники приведена на рис. 4.7.
Рис 4.7. Схема расстановки
тампонажной техники.
Схема обвязки тампонажной техники
при цементировании с осреднительной установкой:
- цементировочная головка; 2 -
приемный мост; 3 - резервная нагнетательная линия; 4 - рабочая нагнетательная
линия; 5 - смесительная машина для приготовления раствора; 6, 7 - цистерна с
солевым раствором; 8, 9- цементировочный агрегат АЦ-32У; 10 - блок манифольда
БМ-700; 11,12 - агрегат АЦ-32У для продавки солевого раствора; 13 - резервный
агрегат АЦ-32У.
.9 Оценка качества цементирования
После проведения оценки качества
цементирования с помощью акустического цементомера, к примеру, АКЦ-5 с помощью
которого определяют верхнюю границу цементирования, степень сцепления
цементного камня с обсадной колонной и породой. Приступают к испытанию ее на
герметичность.
Согласно правилам безопасности в
нефтяной и газовой промышленности [1] оценка герметичности эксплуатационной
колонны производится двумя методами:
.Создание в скважине избыточного
давления превышающее ожидаемое на устье на 10%.
.Снижением уровня жидкости в скважине
до 800 м, согласно учебного пособия [2].
Колонна считается герметичной, если
в течение 30 минут давление опресовки снизилось не более чем на 0,5 МПа, а при
испытании снижением уровня повышение уровня жидкости в скважине не превысит 1,4
м. за 8 часов.
.10 Обвязка обсадных колонн
Обвязка обсадных колонн
предназначена:
Герметизации и разобщение
межколонных пространств.
Создание растягивающих напряжений
(натяжение) в обсадной колонне.
Установки ПВО
Управление при возникновении,
ликвидации заколонных переходов.
В настоящее время в основном
используется колонная обвязка с клиновой подвеской типа ОКК.
Т.к. район работ относиться к
холодному климатическому выбираем головку исполнения ХЛ. В добываемой среде не
содержится Н2S и СО2, следовательно выбираем обвязку по коррозионной стойкости
К1.
Согласно учебного пособия [2]
выбираем колонную обвязку марки ОКК-1-35-168*245ХЛК1.
Глава 5. Мероприятия по предупреждению
осложнений и аварий
.1 Разработка комплекса противоприхватных
мероприятий
Анализ усредненного разреза проектируемой
скважины показывает, что согласно [табл. 1.2.] возможны обвалы стенок скважины
в интервале 0-315 м, кавернообразование 310-2070 м, прихваты инструмента
1920-2030 м. Основными причинами прихвата являются обвалы стенок скважины,
сальникообразование и желобообразование в местах перегиба ствола.
При проходки названных интервалов в промывочную
жидкость нужно вводить ингибирующие добавки и добавки снижающие показатель
фильтрации.
Для предупреждения обвалов необходимо: 1)
использовать ингибирующие промывочные жидкости; 2) поддержать относительную
плотность промывочной жидкости, превышающей коэффициент устойчивости пород; 3)
использовать охлажденные промывочные жидкости при бурении многолетне мерзлых
пород.
.2 Выбор комплекса ПВО
Для предотвращения неуправляемого фонтанирования
на устье скважины перед вскрытием продуктивного пласта устанавливается ПВО,
основным элементом которого является превентор. В зависимости от давления и
содержания сероводорода количество превенторов в составе ПВО колеблется от 2 до
4, ПВО устанавливается по 6 схемам установленным Ростехнадзором.
Основными параметрами ПВО являются рабочее
давление и диаметр проходного отверстия. Кроме превенторов в состав ПВО
включают крестовину, к которой подсоединяют линии глушения и дросселирования.
Согласно правил безопасности длина линии глушения и дросселирования для
проектной скважины составляет более 200 м, для газовых и разведочных скважин не
менее 100 м. При этом расстояние от концов выкида этих линий до всех
коммуникаций и соединений не менее 100 м. Фланцевая катушка, устьевая воронка,
желоб. Марка ПВО определяется ожидаемым давлением на устье скважины в случае
флюидопроявления.
Для нефтяных скважин:
Руст=Рпл - ρср∙Zпл,
(5.1)
Где:
Рпл- пластовое давление, МПа;
ρ-средняя плотность
нефти, кг/м3;
Ζпл-расстояние до
кровли продуктивного пласта.
Руст=21,6 - 6,95∙10-4∙2320=20 МПа
При вскрытии газовых, нефтяных пластов с
ожидаемым давлением на устье до 30 МПа в состав противовыбросового оборудования
входит 3 превентора, один из которых универсальный.
Ожидаемое давление на устье проектной скважины
не превышает 35 МПа, тогда согласно учебного пособия [2 табл. 8.2.] на устье
скважины для кондуктора предусматривается установка комплекта ПВО марки
ОП4-350*35. В комплект этого оборудования входят 2 плашечных превентора. Для
промежуточной колонны - ОП5-230*35, для эксплуатационной колонны -
ОП-230/80*35. В комплект этого оборудования входят 2 плашечных превентора, 1
универсальный превентор и крестовина.
Схема ПВО на устье скважины приведена на рис.
5.1.
Рис. 5.1.Схема установки противовыбросового
оборудования на устье скважины.
Схема установки противовыбросового оборудования
на устье скважины: 1 - кондуктор; 2 - колонная головка; 3 - плашечный превентор
с глухими плашками; 4 - крестовина; 5,10 - аварийный трубопровод; 6 - рабочий
трубопровод; 7 - регулируемый дроссель; 8,9 - задвижки; 11 - плашечный
превентор с трубными плашками; 12 - универсальный гидравлический превентор; 13
- фланцевая катушка; 14 - устьевая воронка; 15 - желоб; 16 - манифольд
дросселирования; 17 - манифольд глушения.
.3 Разработка комплекса мероприятий по
предупреждению аварий
Под аварией понимают нарушение технологического
процесса углубления скважины, связанного с: падением на забой скважины
посторонних предметов, в том числе геофизических приборов; обрывом бурильной
колонны; неподвижностью бурильной колонны, связанной с прихватом,
сальнико-образование и другими осложнениями.
. Мероприятия по предупреждению падения
посторонних предметов на устье скважины:
устье скважины при отсутствии бурильной колонны
должно перекрываться;
соблюдать технологию спуска и подъема
геофизических приборов.
2. Предупреждение обрыва бурильных труб:
проверка комплекта бурильных труб на буровой
после поступления с трубной базы, включающая наружный осмотр на отсутствие
повреждения резьбы, вмятин, изгибов, замер длины трубы;
смазка резьбовых частей при свинчивании
бурильной колонны.
наружный замер диаметров замков и тела трубы с
целью недопущения чрезмерного износа;
периодическая замена элементов свечей между
собой, своевременная выбраковка свечей, имеющих размытые или изношенные
резьбовые соединения.
. Соблюдение технологического режима при
ликвидации прихвата путем натяга или вращения колонны.
. Мероприятия по предупреждению прихвата:
соблюдение параметров бурового раствора,
согласно карте поинтервальной обработки;
применение ингибированных растворов при вскрытии
пластичных глин; использование в КНБК УБТ квадратного сечения или со
спиральными канавками;
введение в состав промывочной жидкости
смазывающих добавок;
периодическое проворачивание бурильной колонны
при бурении забойным двигателем и скорости восходящего потока.
Глава 6. Выбор буровой установки
.1 Обоснование типа и класса буровой установки
Выбор буровой установки зависит от расчетной
глубины бурения скважины и допустимой нагрузки на крюке, определяемой весом
наиболее тяжелой колонны.
Допустимая нагрузка на крюке для бурильной
колонны определяется из следующего выражения:
(2.46)
Qк - общий вес колонны (бурильной,
обсадной), кН.
K3 - коэффициент запаса прочности
талевой системы. Для бурильной колонны К3=0,6, а для обсадной К3=0,9.
Определяем допустимую нагрузку на крюке от веса бурильной колонны:
. (2.47)
.
Определяем допустимую нагрузку на
крюке от веса обсадной колонны по формуле 2.48:
(2.48)
Исходя из, вышеприведенного расчета
определим, что вес бурильной колонны меньше веса обсадных труб.
Буровые установки по типу делятся на
3 группы: стационарные, передвижные (для кустового бурения) и мобильные. Выбор
типа буровой установки зависит от задачи бурения и транспортной системы
местности.
В зависимости от грузоподъемности
буровые установки делятся на 12 классов. Проектируемая скважина находится в
электрифицированной площади, задача бурения - эксплуатационная скважина.
Местность не имеет развитую транспортную базу. На основании изложенного и
заданной глубины скважины выбираем БУ-3000, относящейся к 5 классу. Выбор
буровой установки зависит от расчетной глубины бурения скважины и допустимой
нагрузки на крюке, определяемой весом наиболее тяжелой колонны.
Согласно учебного пособия [2]
допустимая нагрузка соответствует БУ 5 класса, а согласно проектной глубине
бурения БУ 5 класса.
Исходя из практики буровых работ, на
Камовском месторождении принимаем буровую установку типа БУ-3000БД.
Технические характеристики буровой
установки типа БУ-3000БД приведены ниже в таблице 6.1:
Таблица 6.1 -
Технические характеристики буровой установки типа БУ-3000БД
|
Параметры
|
БУ-3000БД
|
|
Допустимая
нагрузка на крюке, кН
|
1700
|
|
Условная
глубина бурения, м
|
3000
|
|
Скорость
подъема крюка при расхаживании колонны, м/с
|
0,2±0,05
|
|
Скорость
подъема элеватора (без нагрузки), м/с, не менее
|
1,5
|
|
Расчетная
мощность на входном валу подъемного агрегата, кВт
|
670
|
|
Диаметр
отверстия в столе ротора, мм
|
700
|
|
Расчетная
мощность привода ротора, кВт, не более
|
370
|
|
Мощность
бурового насоса, кВт
|
750
|
|
Вид
привода
|
ДВС
|
|
Высота
основания (отметка пола буровой), м
|
5
- 5,5
|
|
Просвет
для установки стволовой части превентора, м
|
3,0
|
|
Число
насосов
|
2
|
Окончательный выбор класса буровой установки
будет утвержден после расчета веса обсадных труб.
.2 Основные блоки буровой установки
Комплектность буровой установки БУ 3000БД и
набор бурового оборудования приведены в таблице 6.2.
Таблица 6.2 -
Комплектность буровой установки БУ 3000БД и набор бурового оборудования
|
Механизмы
и агрегаты
|
БУ-3000БД
|
|
Лебедка
буровая
|
ЛБУ22-720
|
|
Насос
буровой
|
У8-6МА2
|
|
Ротор
|
Р-700
|
|
Комплекс
механизмов АСП
|
АСП-3М1
|
|
Кронблок
|
УКБ-6-250
|
|
Талевый
блок
|
-
|
|
Крюкоблок
|
УТБК-5-225
|
|
Вертлюг
|
У8-250
|
|
Вышка
|
ВА
41-170М
|
|
Привод
основных механизмов
|
Лебедки
и ротора: Дизельный В2-450 АВС-3 Буровых насосов: Дизельный В2-450 АВС-3
|
|
Циркуляционная
система
|
3ЦС-125
БД
|
Глава 7. Организационно-экономическая часть
.1 Расчёт заработной платы
Расчёт основной заработной платы производится по
формуле 7.1:
(7.1.)
где:
ч - численность рабочих
соответствующая разряду
Т - затраты времени
Сч - часов, тарифная ставка
Ведомость на заданное количество
основных рабочих приведена в табл. 7.1.
Таблица 7.1 - Ведомость
на заданное количество основных рабочих
|
№
п/п
|
Профессия
|
Кол-во
|
Разряд
|
Тариф
|
Затраты
времени, ч
|
|
1.
|
Первый
помощник бурильщика
|
2
|
V
|
45
|
12
|
|
2.
|
Второй
помощник бурильщика
|
2
|
V
|
42
|
12
|
|
3.
|
Третий
помощник бурильщика
|
2
|
V
|
37
|
12
|
|
4.
|
Бурильщик
|
2
|
VI
|
49
|
12
|
|
5.
|
Буровой
мастер
|
1
|
VII
|
55
|
12
|
Расчёт заработной платы рабочих сводим в табл.
7.2.
Таблица 7.2 -
Заработная плата рабочих
|
Профессия
|
Кол-во
рабочих
|
Разряд
|
Часовая
тарифная ставка, руб.
|
Затраты
времени
|
Зар.
плата, руб.
|
|
1.
Первый помощник бурильщика
|
2
|
V
|
45
|
12
|
1080
|
|
2.
Второй помощник бурильщика
|
2
|
V
|
42
|
12
|
1008
|
|
3.
Третий помощник бурильщика
|
2
|
V
|
37
|
12
|
888
|
|
4.
Бурильщик
|
2
|
VI
|
49
|
12
|
1176
|
|
5.
Буровой мастер
|
1
|
VII
|
55
|
12
|
660
|
|
ИТОГО:
|
|
|
|
|
4812
|
) Рассчитываем сумму доплат, учитывающую размер
премии работников по формуле 7.2:
(7.2.)
где: Зтар - заработная плата по
тарифу, Нпр - размер премии в % от прямой заработной платы.
) Затем определяем заработную плату
с учётом доплат по формуле7.3:
(7.3.)
) Определяем заработную плату с
доплатой по районному коэффициенту(50%) к зарплате по формуле7.4:
(7.4.)
где: Кр - районный коэффициент к
заработной плате.
) Рассчитываем доплату за работу в
районах Крайнего Севера (70%) и приравненных к ним местностям по формуле7.5:
(7.5.)
где: g - размер доплаты в % от расчётной
заработной платы за работу в районах Крайнего Севера и приравненных к ним
местностях.
) Расчёт общей основной заработной платы
производится по формуле7.6:
(7.6.)
) Расчёт дополнительной заработной
платы производится по формуле7.7:
(7.7.)
где: Зобщ.осн. - основная заработная
плата, руб.
Д - размер дополнительной заработной
платы в % от суммы основной заработной плате (11%).
) Расчёт общей зарплаты производится
по формуле7.8:
(7.8.)
Расчёт отчислений на социальные
нужды:
Отчисления на социальные нужды от
суммы основной и дополнительной заработной платы по формуле 7.9:
(7.9.)
где: О - размер отчислений на социальные нужды
от суммы основной и дополнительной заработной платы, % (О = 35,8%).
Расчёт общей заработной платы каждого рабочего
сводим в табл. 7.3.
Таблица 7.3 -
Расчёт общей заработной платы каждого рабочего
|
Профессия
|
Кол-во
|
Часовая
тарифная ставка, руб.
|
Затраты
времени 5 Ч
|
Основная
зар. плата, руб.
|
Общая
зар. плата
|
Отчисления
на соц. нужды
|
|
1.
Первый помощник бурильщика
|
V
|
45
|
12
|
540
|
1846
|
661
|
|
2.
Второй помощник бурильщика
|
V
|
42
|
12
|
504
|
1723
|
617
|
|
3.
Третий помощник бурильщика
|
V
|
37
|
12
|
444
|
1517
|
543
|
|
4.
Бурильщик
|
VI
|
49
|
12
|
588
|
2010
|
719
|
|
5.
Буровой мастер
|
VII
|
55
|
12
|
660
|
2176
|
779
|
|
ИТОГО:
|
|
|
|
|
|
3319
|
.2 Планирование и организация работ
Общий расчёт сметной стоимости проектируемой
скважины
Расчёт основных расходов приведён в табл. 7.4.
Таблица 7.4 -
Расчёт основных расходов
|
№п/п
|
Наименование
работ
|
Един.
измер.
|
Табл.
СНОР-94
|
Зар.
плата
|
Материалы
|
Амортизация
|
Итого,
руб. (с учетом К)
|
|
1
2 3 4
|
Бурение
Монтаж, демонтаж Перемещение СБУ-дороги Сопутствующие работы
|
ст.см.
м/д км ст.см.
|
14-3
24-26 24-33
|
3319
13658 484 3512
|
8370
14222 2088 4185
|
2017
11633 280 2017
|
17527
50705 3529 9668
|
Финансовый план приведён в табл. 7.5.
|
№
|
Доходы
и расходы
|
Кварталы
|
Итого
за год
|
|
|
I
|
II
|
III
|
VI
|
|
|
1
2 3 4
|
Доходы
Расходы Налоги Балансовая прибыль В том числе: Чистая прибыль
|
15199941
11434833 2956779 16564523 3114545
|
15199941
11434833 2956779 16564523 3114545
|
15149991
11434833 2956779 16564523 3114545
|
15199941
11434833 2956779 16564523 3114545
|
60799764
45739332 11827116 66258092 12458180
|
Сметно-финансовый расчёт на проектно сметные
работы приведены в табл. 7.6.
Таблица 7.6 -
Сметно-финансовый расчёт
|
Профессия
|
Отработанных
дней
|
Итого,
руб.
|
|
Главный
инженер
|
28
|
90000
|
|
Главный
геолог
|
28
|
60000
|
|
Инженер
2-й категории
|
28
|
50000
|
|
Технолог
|
28
|
39500
|
|
Сметчик
|
28
|
39500
|
|
Итого:
|
|
339000
|
|
дзп
|
|
34500
|
|
ФЗП
|
|
385700
|
|
ЕСН
|
|
101147,3
|
|
Материалы
|
|
8370
|
|
Амортизация
|
|
2017
|
|
Командировки
|
|
55000
|
|
Резерв
|
|
1500
|
Общий расчет сметной стоимости проектируемой
скважины приведён в табл. 7.7.
Таблица 7.7 - Общий
расчет сметной стоимости проектируемой скважины
|
№
п/п
|
Наименование
работ и затрат
|
Объем
|
Сумма
основных расходов на единицу объема
|
Итого
руб.
|
|
|
Ед.
изм.
|
Кол-во
|
|
|
|
1
|
ОСНОВНЫЕ
РАСХОДЫ А. Собственно- геологоразведочные работы: -проектно-сметные -буровые
работы
|
мес.
м
|
1
3000
|
|
473943
37000000
|
|
Итого
полевых работ: 37473943
|
|
|
|
|
-организация
полевых работ -ликвидация полевых работ -камеральные и т.д. % % % 1,4 1,3
30 от
от
|
от
513456,21
486471,19 10054191
|
|
|
|
Итого
основных расходов:
|
|
|
|
48528061
|
Б.
Сопутствующие работы и затраты -строительство временных зданий и сооружений
-транспортировка грузов и персонала % % 20 30 от
от
|
8080930
|
|
|
|
Итого
себестоимость проекта: от 15404414
|
|
|
|
|
|
2
|
НАКЛАДНЫЕ
РАСХОДЫ
|
%
|
25
|
|
11132478
|
|
3
|
ПЛАНОВЫЕ
НАКОПЛЕНИЯ
|
%
|
13
|
+2п5%50378234
|
|
4 КОМПЕНСИРУЕМЫЕ
ЗАТРАТЫ -производственные командировки -полевое довольствие -доплаты -охрана
природы % % % % 0,5 3 8 1,5 от
от
от
от
190339
|
700990
|
|
|
|
5
|
ПОДРЯДНЫЕ
РАБОТЫ
|
%
|
10
|
от 4996789
|
|
|
6
|
РЕЗЕРВ
|
%
|
3
|
от 696771
|
|
|
ИТОГО
сметная стоимость
|
67555345
|
|
Договорная
цена с учётом НДС (+18%)
|
110151445
|
7.3 Календарный и поэтапный план
Календарный план приведён в табл. 7.8.
Таблица 7.8 - Календарный план
|
Наименование
работ
|
Объем
|
Месяцы
|
|
ед.
изм.
|
Кол
- во
|
1
|
2
|
3
|
4
|
5
|
6
|
7
|
8
|
9
|
10
|
11
|
12
|
|
1.
Проектно сметные работы
|
мес.
|
1
|
|
|
|
|
|
|
|
|
|
|
|
|
|
2.
Организация полевых работ
|
Дни
|
15
|
|
|
|
|
|
|
|
|
|
|
|
|
|
|
3.
Транспортировка грузов и персонала
|
дни
|
5
|
|
|
|
|
|
|
|
|
|
|
|
|
|
|
|
4.
Строительство зданий и сооружений
|
дни
|
21
|
|
|
|
|
|
|
|
|
|
|
|
|
|
|
5.
Буровые работы
|
дни
|
270
|
|
|
|
|
|
|
|
|
|
|
6.
Загрузка вспомогательного оборудования
|
дни
|
5
|
|
|
|
|
|
|
|
|
|
|
|
|
|
|
|
7.
Ликвидация полевых работ
|
дни
|
5
|
|
|
|
|
|
|
|
|
|
|
|
|
|
|
8.
Составление отчёта
|
мес.
|
1,5
|
|
|
|
|
|
|
|
|
|
|
|
|
|
|
|
|
|
|
|
|
|
|
|
|
|
|
|
|
|
|
|
|
|
Поэтапный план приведён в табл. 7.9.
Таблица 7.9 -
Поэтапный план
|
№
|
Сроки
работ
|
Виды
работ
|
|
1
2 3 4 5 6 7 8
|
1
месяц 15 дней 5 дня 21 дней 270 дней 5 дней 5 дней 1,5 месяца
|
Проектно
сметные работы Организация полевых работ Транспортировка грузов и персонала
Строительство зданий и сооружений Буровые работы Загрузка вспомогательного
оборудования Ликвидация полевых работ Составление отчёта
|
Глава 8. Охрана труда
.1 Промышленная безопасность при бурении скважин
. Процесс бурения осуществляется в соответствем
с рабочим проектом на строительство скважины.
. При проведении буровых работ необходимо
обеспечивать функционирование необходимых приборов и систем контроля за
производственным процессом в соответствии с требованиями рабочего проекта.
. В процессе проходки ствола скважины следует
постоянно контролировать следующие параметры:
вес на крюке с регистрацией на диаграмме;
плотность, структурно-механические и
реологические свойства бурового раствора с регистрацией в журнале;
расход бурового раствора на входе и выходе из
скважины;
давление в манифольде буровых насосов с
регистрацией на диаграмме или в журнале;
уровень раствора в приемных емкостях в процессе
углубления, при промывках скважины и проведении спуско-подъемных операций;
крутящий момент на роторе при роторном способе
бурения.
. Скорости спуско-подъемных операций с учетом
допустимого колебания гидродинамического давления и продолжительность
промежуточных промывок регламентируются проектом. При отклонении реологических
свойств бурового раствора и компоновок бурильной колонны от проектных необходимо
внести коррективы по скорости спуско-подъемных операций с учетом допустимых
колебаний гидродинамического давления.
. Запрещается проводить спуско-подьемные
операции при:
отсутствии или неисправности ограничителя
подъема талевого блока, ограничителя допускаемой нагрузки на крюке;
неисправности спуско-подъемного оборудования,
инструмента и специальных приспособлений;
неполном составе вахты для ведения работ;
скорости ветра более 20 м/с;
потери видимости более 20 м при тумане и
снегопаде.
. Тип и свойства бурового раствора должны
соответствовать рабочему проекту и обеспечивать безаварийные условия бурения с
минимальным ущербом окружающей среде.
. Не допускается отклонение плотности бурового
раствора (освобожденного от газа), находящегося в циркуляции, более чем на 0,02
г/см от установленной проектом величины (кроме случаев ликвидации
газонефтеводопроявлений).
. При применении буровых растворов на
углеводородной основе должны быть приняты меры по контролю и предупреждению
загазованности воздушной среды рабочих мест.
При концентрации паров углеводородов свыше
300мг/м работы должны быть приостановлены, люди выведены из опасной зоны.
. Температура самовоспламеняющихся паров
раствора на углеводородной основе должна на 500С превышать максимально
ожидаемую температуру раствора на устье скважины.
. При креплении ствола скважины тампонажные
материалы и растворы на их основе выбираются с учетом следующих условий:
тампонажный материал и сформированный из него
камень должны соответствовать диапазону статических температур в скважине по
всему интервалу цементирования;
рецептура тампонажного раствора подбирается по
динамической температуре и давлению, ожидаемым в цементируемом интервале
скважины;
плотность тампонажного раствора должна быть, как
правило, не ниже плотности бурового раствора. Ограничением верхнего предела
плотности тампонажного раствора при прочих равных условиях является недопущение
разрыва пород под действием гидродинамического давления в процессе
цементирования;
цементный камень при наличии в цементируемом
интервале агрессивных сред должен быть коррозионностойким к воздействию этих
сред
. Цементировочная головка и нагнетательные
трубопроводы для цементирования до начала процесса должны быть опрессованы
давлением, в 1,5 раза превышающим максимальное расчетное рабочее давление при
цементировании скважины.
. После проведения операций по креплению ствола
скважины проводятся испытания конструкции скважины на герметичность методом
гидравлической и (или) пневматической опрессовки давлением.
. Способ, параметры и технология опрессовки
определяются рабочим проектом. Порядок и условия проведения испытаний
устанавливаются подрядчиком, осуществляющим строительство скважины, с учетом
фактического состояния скважины.
Результаты испытаний подрядчик оформляет актом.
. Периодичность и способы проверки состояния
обсадных колонн по мере их естественного износа или аварийного разрушения
(смятие, разрыв и т.п.) и необходимые мероприятия по обеспечению безопасной
проводки и эксплуатации скважины устанавливаются рабочим проектом.
.2 Противопожарные мероприятия
Буровая установка Уралмаш 3000 БД и привышечные
сооружения, возводимые с целью строительства скважин, являются временными
объектами и после окончания испытаний скважины, подлежит демонтажу и разборке.
На проектируемом объекте основными взрыво- и
пожароопасными веществами, используемыми в технологическом процессе, являются
ГСМ (дизтопливо и масло) для ДВС и теплогенератора, нефть для котельной. При
испытании скважины выделяются газ, нефть и попутный нефтяной газ. В процессе
испытания газового объекта производится сжигание газа.
Буровая установка и привышечные сооружения
размещаются на безопасном от других объектов и населенных пунктов расстоянии и
при аварии, взрыве или пожаре не могут представлять для них серьезной
опасности. В целях предотвращения разлива ГСМ, нефти, сточных вод резервуары,
амбар для сбора пластовых флюидов и производственная зона имеет обвалование.
Шламовый амбар и ГФУ имеют ограждение.
Буровая установка и привышечные сооружения
оснащаются противопожарным оборудованием в соответствии с "Нормами
обеспечения объектов противопожарным оборудованием".
Проектом предусмотрены мероприятия по техники
безопасности, обеспечивающие нормальную работу оборудования и обслуживающего
персонала.
Буровая установка и привышечные сооружения имеют
характеристику среды по взрывной, взрывопожарной опасности и по группам
производственных процессов.
Для монтажа буровой установки и привышечных
сооружений выбирается площадка, свободная от наземных и подземных трубопроводов
и кабелей, которая расчищается от леса, кустарника, травы и выравнивается в
радиусе не менее 50 м (0,79 га).
В помещении, предназначенном для ДВС,
запрещается хранить топливо и обтирочный материал. Топливные резервуары для ДВС
расположены на расстоянии более 55 м от наружных стен зданий и сооружений
буровой.
Топливопровод имеет два запорных устройства,
одно из которых расположено у топливных резервуаров, а другое - у машинного
зала на расстоянии не менее 5 м от его укрытия с внешней стороны. Топливные
емкости имеют обвалование, достаточное для предотвращения разлива топлива и
масла на территории буровой и под агрегатные помещения во время их перекачки.
.3 Мероприятия по охране окружающей среды
.3.1 Источники загрязнения окружающей среды при
бурении скважины
Окружающая среда включает почву, воздух и воду.
Основные источники загрязнения воздушной среды:
а) двигатели транспортной и специальной техники
(для доставки бурового оборудования и т.д.);
б) сжигание факелов при испытании и освоении
скважины.
почвы:
а) разливы нефти и нефтепродуктов;
б) буровые сточные воды;
в) бытовые отходы;
г) отходы бурения.
водоемов:
а) разливы нефтепродуктов;
б) буровые сточные воды и переливы через амбар.
.3.2 Мероприятия по уменьшению загрязнения
окружающей среды
Основание должно обеспечивать размещение, монтаж
и эксплуатацию необходимого комплекса сооружений и оборудования для
строительства скважин и предотвращать прямое контактирование технических
средств и технологических процессов и с естественной территорией.
Основные земляные, транспортные и
строительно-монтажные работы проводить в период устойчивых отрицательных
температур воздуха.
Защита территории основания и территории,
окружающей основание обеспечивается:
конструктивным исполнением технологического
оборудования, предотвращающим переливы, утечки и проливы технологических
жидкостей;
исключением попадания отходов бурения на
поверхность за счет введения элементов сбора и отвода (поддоны, трубопроводы,
желоба, подроторная воронка), проливов жидкостей, образующейся при ремонте
оборудования и подъеме инструмента, при сбросе с вибросита, гидроциклонов,
шламоотделителей и отработанных промывочных жидкостей из блока емкостей;
создание организованного стока с поверхности
основания, находящегося под вышечно-лебедочным и насосно-емкостными блоками, талых,
дождевых, и сточных от обмыва оборудования вод в накопитель - отстойник;
обваловкой периметра производительной зоны
основания и созданием уклонов поверхности зоны от обваловки к отстойникам -
накопителям с целью предупреждения слива дождевых, талых и сточных вод за
территорию площадки;
обваловкой места установки блока ГСМ, емкости
сбора отработанных ГСМ;
сооружением накопителей для сбора, хранения и
последующей утилизации и захоронения шлама, отработанного бурового раствора и
буровых сточных вод;
В процессе освоения скважин продукт (нефть)
собирается в емкости с последующим использованием в котельной и закачкой
излишек в нефтяной сборный коллектор.
.3.3 Расчет объема отходов бурения
Значительное влияние на загрязнение
почвенно-растительного слоя, поверхностных вод оказывают отходы бурения. Объемы
отходов при бурении скважин значительны. При объеме эксплуатационного бурения
9,18 млн. метров суммарный объем отходов составил 5,7 млн. тонн. Из суммарного
объема отходов 39% приходится на буровые сточные воды, 32% - на отработанные
промывочные жидкости, и 29% - на буровой шлам.
Объем отходов бурения рассчитывается
по формуле 8.1, где
=1,3;
=1,5:
(8.1)
(8.2)
.3.4 Мероприятия по утилизации
отходов бурения
После окончания буровых работ
проводят утилизацию отходов бурения согласно учебного пособия [2]. Газы,
выделяющиеся из пластовых флюидов и промывочной жидкости, необходимо
утилизировать в промысловой газосборной сети, а при ее отсутствии сжигать на
факелах. Если в попутном газе содержится сероводород, необходима его
предварительная нейтрализация водорастворимыми гидроокислами двухвалентных
металлов.
Нейтрализация сероводорода
промывочной жидкости осуществляется путем введения в нее водного раствора
медного или железного купороса.
Сточные воды пред сбросом в ОС
должны обезвреживаться физико-химическим методом, при котором используются
коагуляция и флотация. Отходы бурения собираются в шламовые амбары. После
бурения снижение твердой фазы отходов шламовых амбаров осуществляют в 2 этапа.
На первом этапе - за счет естественного отстаивания, на втором - методом
реагентной коагуляции.
Одним из реальных способов
уменьшения физического объема отходов бурения является переход на малые
диаметры эксплуатационных скважин. Исследования показали, что переход с 168 мм
диаметра эксплуатационной колонны на 112 мм позволяет уменьшить отходы бурения
в 2 раза, при снижении дебита скважин всего на 8%.
Утилизация отходов безамбарного
бурения нефтяных скважин проводится в два этапа:
1.Обезвреживание отходов бурения в
процессе производства грунтошламовой смеси.
2. Использование грунтошламовой
смеси при рекультивации нарушенных земель.
Комплекс работ по обезвреживанию
буровых шламов может быть проведен на специализированных полигонах или
площадках, обустроенных вблизи мест бурения скважин, рекультивации земель.
При переработке бурового шлама в
строительный материал - смесь грунтошламовую, производится перемешивание в
определенных пропорциях отходов бурения, торфа и песка. При необходимости по
результатам анализов в смесь вводятся биодеструкторы углеводородов, сорбенты, адаптогены,
минеральные удобрения.
Грунтошламовая смесь является, по
сути, грунтом, водно-физические и агрохимические свойства которого можно
регулировать, изменяя соотношение компонентов композиции и вводя необходимые
добавки. Смеси с минимальным содержанием торфа могут быть использованы в
качестве грунта для засыпки выемок. При увеличении доли торфа в композиции и
введении в нее расчетного количества элементов питания, мелиорантов
грунтошламовая смесь применяется для создания плодородного рекультивационного
слоя.
Рекультивация земель с
использованием грунтошламовых смесей не вносит принципиальных изменений в
принятые технологии, но имеет ряд специфических особенностей. На склоновых
песчаных грунтах (откосы дорог, карьеров), при закреплении песков грунтошламовая
смесь готовится из шлама и торфа с максимально высокой допустимой долей отходов
бурения скважин, наносится слоем 10-15 см и перемешивается с грунтом
фрезерованием на глубину 25-30 см. Для раскисления и оструктуривания торфяных
почв готовится смесь из отходов бурения и песка.
Биологический этап рекультивации
нарушенных земель включает создание рекультивационного слоя с использованием
грунтошламовых смесей, повышение его плодородия в соответствии с потребностями
растений, посев многолетних трав или посадку саженцев древесно-кустарниковой
растительности, уход за посевами и посадками. Компоненты грунтошламовой смеси
(торф и отходы безамбарного бурения скважин) обладают достаточно высоким
потенциальным плодородием, что позволяет снизить расход минеральных удобрений и
мелиорантов, но не исключает их применения. Нормы внесения агрохимикатов
рассчитываются по результатам химического анализа смесей.
Соответствие характеристик
грунтошламовой смеси технологическим, экологическим и санитарным нормам
подтверждается в ходе сертификации продукции.
Глава 9. Специальная часть
.1 Отбор и качество керна
Общеизвестно, что КЕРН является основным
источником и носителем информации о свойствах горных пород, так как дает
возможность их визуального и непосредственного изучения. Благодаря этому,
результаты исследований керна при его качественном отборе и оперативной
обработке непосредственно на скважине могут обеспечить до 70-80 % от общего
объема необходимого информационного содержания геологоразведочных работ на
нефть и газ, создавая основу опорной геолого-промысловой информации о недрах.
Но такая высокая информативность керна до
настоящего времени была возможна лишь при его отборе на растворах с
углеводородной основой (РУО), бурение на которых дороже, технологически сложнее,
пожаро- и экологически опаснее по сравнению с бурением на растворах с водной
основой (РВО).
Поиск альтернативных решений технологий отбора
керна на РВО привел специалистов НПП «СибБурМаш» к созданию специальных
технологий бурения с отбором изолированного керна, исключающих негативное
влияние РВО, минимизирующих его фильтрацию в керн и обеспечивающих соответствие
водонасыщенности керна пластовой Кво, что позволяет говорить о сопоставимости
изолированного керна, отбираемого на РВО, керну, полученному из оценочных
скважин на РУО.
Эта концепция воплощена в гамме керноотборных
снарядов серии КИ различного назначения и типоразмеров, обеспечивающих отбор
керна повышенной информативности, т.е. керна с сохраненной структурой и
текстурой, с максимально возможным сохранением Кво и выносом на уровне 90% и
более. Повышение информативности керна достигается также комплексом наукоемких
технологий его экспресс-анализа и обработки после отбора непосредственно на
скважине и соответствующими методиками его лабораторных исследований,
разработанных содружеством научно-производственных предприятий «СибБурМаш»,
«СибКор» и «Тюменьгеофизика», расположенных в г. Тюмени (далее совместно
именуемые Исполнитель).
В общем случае, комплекс работ по отбору керна
на скважине включает следующие этапы:
отбор изолированного керна;
обработку РВО индикаторами, контроль их фоновой
концентрации;
экспресс-анализ проникновения фильтрата РВО в
поровое пространство керна;
макроописание керна, его препарирование, отбор и
консервация образцов для петрофизических исследований;
По извлечению керна проводятся дополнительные
исследования в лабораторных условиях:
стандартный комплекс лабораторных
петрофизических исследований;
комплекс дополнительных и специальных
петрофизических исследований;
обоснование петрофизического обеспечения
геологической интерпретации ГИС применительно к объекту исследований;
обоснование методик определения под счетных
параметров по данным ГИС;
построение объемно-компонентной модели пород в
исследуемом разрезе скважины.
.2 Технология отбора керна
Керноотборник изоляционный содержит:
Корпус 6, включающий переводник 12 и центратор
9;
Керноприемник 7, к которому в нижней части
присоединяется рычажковый кернорватель 4, а в верхней части к подвесной опоре.
Полость кожуха и керноприемника перед спуском КИ
на забой заполняется изолирующим агентом (маслом), плотность которого меньше
плотности бурового раствора.
Мембрана 1 не позволяет маслу изливаться в
скважину при заполнении.
При бурении керн, входящий в кернроприемник,
разрушает мембрану и вытесняет масло противотоком выбуриваемому керну.
Масло способствует уменьшению вибраций,
действующих на керн, снижает трение о стенки керноприемника, исключает заклинку
керна, предотвращая образование глинистой корки на его поверхности, а также
обеспечивает свободный выход керна из керноприемника при извлечении.
Неподвижность керноприемника относительно керна
при бурении обеспечивается подвесной опорой. Посадка наконечника на кольцо,
установленное в корпус бурильной коронки, обеспечивает поступление бурового
раствора на забой только через промывочные отверстия буровой коронки. Тем самым
исключается размыв керна при бурении и сокращается время контакта керна с
буровым раствором, что предохраняет керн от проникновения в него фильтрата
бурового раствора на водной основе.
Контроль захода керна осуществляется
регистраторами 5, размещенными в керноприемнике по высоте с интервалом 1 м,
которые деформируются от воздействия керна по мере его поступления в
керноприемник. Регистраторами могут быть деревянные палочки диаметром 2 мм,
например, спички. Отрыв и удержание выбуренного керна в керноприемнике
происходит при помощи цангового 3 и рычажкового 4 кернорвателей (рис. 9.1.).
Рис. 9.1. Керноотборник изолирующий.
Основные параметры керноотборных снарядов
приведены в табл. 9.1.
Таблица 9.1 -
Технические характеристики
|
Характеристики
|
Обозначение
снаряда
|
|
KIS-114/67
|
KIS-127/80
|
KIS-172/100
|
KIS-2-172/100
|
KIS-195/100
|
KIS-2-195/100
|
KIS-168/100
|
KIS-3-168/100
|
|
Диаметр
скважины, мм
|
|
|
|
|
|
|
|
|
|
Диаметр
бурголовки минимальный, мм
|
120.0
|
139.7
|
187.3
|
187.3
|
212.7
|
212.7
|
212.7
|
212.7
|
|
|
|
212.7
|
212.7
|
|
|
|
|
|
Диаметр
керна, мм
|
67
|
80
|
100
|
100
|
100
|
100
|
114
|
114
|
|
Диаметр
корпуса, мм
|
114
|
127
|
172
|
172
|
195
|
195
|
168
|
168
|
|
Диаметр
центраторов корпуса, мм
|
n/a
|
138.1
|
185.7
|
185.7
|
211.1
|
211.1
|
185.7
|
185.7
|
|
|
|
211.1
|
211.1
|
|
|
211.1
|
211.1
|
|
Число
секций снаряда
|
1
|
1
|
1
|
2
|
1
|
2
|
1
|
3
|
|
Длина
снаряда, м
|
8
|
8
|
8
|
15
|
8
|
15
|
10
|
26
|
|
Длина
колонки керна (max) за рейс, м
|
6.5
|
6.5
|
13
|
6.5
|
13
|
8
|
24
|
|
Возможность
отбора с ориентированием керна
|
|
+
|
+
|
+
|
+
|
+
|
+
|
+
|
|
Возможность
отбора в стеклопластиковый керноприемник
|
|
+
|
+
|
+
|
+
|
+
|
+
|
+
|
|
Возможность
отбора керна в горизонтальных участках скважин
|
|
+
|
|
|
+
|
+
|
+
|
+
|
|
Тип
подвески
|
Маслонаполненная,
герметичная, на подшипниках качения
|
|
Способ
бурения
|
Роторный
и с применением винтового двигателя
|
|
Масса,
кг
|
250
|
300
|
800
|
1500
|
1000
|
1800
|
750
|
2300
|
Исходя из целей и задач поискового бурения,
согласно методических указаний по ведению работ на стадиях поисков и разведки
месторождений нефти и газа, в поисковой скважине № 1 на Камовской площади
предусматривается отбор керна и шлама.
В поисковых скважинах керновый материал и шлам
служит для получения информации в первую очередь о литологии и стратиграфии
разреза, для уточнения структурных построений и предварительной информации о
свойствах пород коллекторов.
В проектной скважине планируется произвести
отбор керна в объеме 250 метров. Запланированный объем керна приходится на
перспективную часть проектного разреза. Проходка с отбором керна составляет
9,6% от общего объема бурения.
Отбор керна планируется проводить в отложениях
нижнего кембрия и венда керноотборным снарядом марки «KIS - 2 - 195/100».
ЗАКЛЮЧЕНИЕ
В ходе выполнения данной работы на тему
«Строительство поисковой скважины №1 на Камовском месторождении» произведены расчеты
и обоснования.
Приведены развернутые географо-экономические
характеристики района работ, характеристики нефтегазоносности района работ,
геологические условия разреза.
Разработаны режимы бурения для всех интервалов:
приведено обоснование класса и типоразмера долот, расчет осевой нагрузки на
долото, расчет частоты вращения долота, обоснован выбор очистного агента и
расчет его необходимого расхода, приведена рецептура бурового раствора.
Приведено обоснование критериев рациональной отработки долот. Разработаны
мероприятия по предупреждению осложнений и аварий при сооружении скважины,
спроектированы и обоснованы компоновки бурильных колонн, приведен их расчет.
Спроектирована конструкция обсадных колонн из условия равнопрочности по длине,
приведен расчет параметров цементирования, обоснована технология крепления и
цементирования, выбор и обоснование буровой установки.
В организационно-экономической части произведён
расчёт заработной платы, описаны организационные работы, произведён общий
расчёт сметной стоимости проектируемой скважины, приведены календарный и
поэтапный план.
В четвертой части описана промышленная
безопасность при строительстве скважины, противопожарные мероприятия,
мероприятия по охране окружающей среды.
В части описывающей спецвопрос, рассмотрен
вопрос применения керноотборника изолирующего серии КИ. Целесообразность и
эффективность очевидна, так как, отбор керна таким керноотборным снарядом
обеспечивает высокую информативность, т.е. керна с сохраненной структурой и
текстурой, с максимально возможным сохранением коэффициента водонасыщенности и
выносом на уровне 90% и более.
Отсюда делаем вывод, что наряду с развитием
бурения новых скважин необходимо развивать перспективные во всех направлениях
методы бурения скважин.
Список используемой литературы
1. Правила
безопасности в нефтяной и газовой промышленности. - М.: НПО ОБТ, 2003. - 160с.
. Щукин
А.А. Строительство скважин: Учебное пособие. -Томск: Изд.SТТ, 2005-588с.
. Вадецкий
Ю.В. Бурение нефтяных и газовых скважин: Учебник для нач. проф. образования.
М.: Издательский центр «Академия», 2003-352с.
. Калинин
А.Г. и др. Практические расчеты при бурении нефтяных и газовых скважин. М.:
Издательский центр «Недра», 2003-158 с.
. Информационно-аналитический
научно-популярный журнал «Томские НЕДРА».
. Общественная
редакция «ССК - Обозрение».
. Алексеева
М.М. Планирование деятельности фирмы. - М.: 1999. - 236с.
. Борисович
В.Т. И др. Организация, планирование и управление геологоразведочных работ. -
М.: НЕДРА, 1990. - 356с.
. Инструкция
по составлению проектов и смет. - М.: НЕДРА. 1993. - 159с.
. Положение
о составе затрат. - М. 1998. - 68с.
Приложение