Разработка участка по ремонту топливной аппаратуры с целью эффективности работы и улучшения качества ремонта на предприятии
Введение
Перспективы развития республики Беларусь во многом зависят от
использования выгодного геополитического положения «на перекрестке Европы».
Дороги в республике становятся основной частью европейских маршрутов. Это
существенно поднимает планку требований к обеспечению качества автомобильных
дорог. Для решения этой проблемы необходимо внедрение новых технологий, которые
апробированы в странах Западной Европы.
Строительные, дорожные и подъемные машины и оборудование составляют
основу комплексной механизации, автоматизации и роботизации строительного
производства. Затраты на поддержание, сохранение и восстановление
работоспособности строительных дорожных машин составляют до 25% себестоимости
машино-часа эксплуатации, а за срок службы они в 6 раз превосходят стоимость
новой.
Основной задачей технической эксплуатации является поддержание
работоспособности машин при наименьших затратах на их восстановление и
минимальном воздействии на окружающую среду.
При строительстве дорог используются механизированные машины и
оборудование, полностью заменяющие ручной труд. И поэтому, отказ одной машины
(особенно ведущей) приводит к снижению эффективности строительного
производства.
Современные дорожные, строительные машины и мощные тракторы стоят дорого,
поэтому ведущие фирмы- изготовители и некоторые специализированные фирмы
развивают систему лизинга.
Огромное значение имеет качество машины. Чтобы выбрать лучшее средство
механизации для заданных условий эксплуатации, необходимо знать важнейшие
показатели качества, соответствующие этим условиям, и уметь определять их
значение.
С учетом сказанного эксплуатацию машин следует рассматривать как систему
управления показателями качества, обеспечивающих эффективное использование
техники, поддержание ее в работоспособном состоянии с наименьшими затратами, а
также рациональное использование материальных ресурсов и создание комфортных
условий для работы персонала.
В данном дипломном проекте разрабатывается отделение по ремонту топливной
аппаратуры. Большая роль отводится отраслям промышленности, создающим
современную топливную аппаратуру. Применение современной топливной аппаратуры
позволяет создать прогрессивные конструкции двигателей дорожных машин и
автомобилей, расширение возможности долгосрочной и бесперебойной работы
двигателей.
Постоянное возрастание объемов строительно-монтажных работ приводит, к
росту выпуска строительных и дорожных машин и в связи с этим к ним
предъявляются повышенные требования к их качеству. Этим требованиям отвечает
топливная аппаратура к ней предъявляются более жёсткие требования по проведению
ремонта.
Спецификой ремонта топливной аппаратуры является необходимость
обеспечения высокой точности выполнения работ, поэтому, как правило, ремонт
топливной аппаратуры должен производиться на специализированном участке,
использующем заводскую технологию и производящий ремонт по поточному
обезличенному методу. Топливную аппаратуру ремонтируют в процессе текущего и
капитального ремонта дорожных машин и автомобилей, при любом методе ремонт
топливной аппаратуры должен производиться на специализированных участках с
соблюдением соответствующих требований нормативно-технической документации. И в
связи с этим в данном проекте производится проектирование, ранее не
существующего участка по ремонту топливной аппаратуры в МСУ-4 г.Гомеля. Целью
является эффективное использование площади помещения ремонтной мастерской, тем
самым уменьшение стоимости, а также уменьшение времени проведения и повышение
качества ремонта топливной аппаратуры.
1.
Общая часть
1.1 Характеристика предприятия
Мостостроительный район №4 (МСР-4) был создан в 1971 году в составе ДСТ-2
при Главном управлении шоссейных дорог при Совете Министров БССР.
С 1973 года МСР-4 перешёл в подчинение вновь созданного треста
«Мостострой».
В 1980 году Мостостроительный район №4 переименован в Мостостроительное
управление №4 (МСУ-4).
С 22.10.2002 года МСУ-4 является филиалом «Мостостроительное управление
№4».
В настоящее время филиал МСУ-4 является структурным подразделением РУП
«Мостострой» Департамента «Белавтодор» Министерства транспорта и коммуникаций
Республики Беларусь. Более чем за 33 года работы филиалом построено и
отремонтировано 120 мостов и путепроводов общей протяжённостью 11091 п.м.
Филиал имеет опыт работы по сооружению опор буронабивных сваях, устройству
сталежелезобетонных и коробчатых железобетонных пролётных строений.
Среди наиболее значимых проектов реализованных управлением такие, как:
мостовой переход через реку Припять на а/д Житковичи-Туров, длиной 894,6
м, на буронабивных сваях, коробчатыми пролётными строениями. Начало
строительства - ноябрь 1981 года. Введён в эксплуатацию в 1985 году.
мостовой переход через реку Днепр на а/д Брянск-Кобрин, длинной 418,8 м,
на буронабивных сваях, со сталежелезобетонными пролётными строениями. Начало
строительства - февраль 1988 года. Введён в эксплуатацию в 1985 году.
мостовой переход через реку Березина на а/д Рогачёв-Жлобин-Светлогорск,
длиной 396,4 м со сталежелезобетонными пролётными строениями. Начало
строительства - июнь 1993 года. Введён в эксплуатацию в 1997 году.
Тип организационной структуры предприятия линейно-функциональный.
Руководителем предприятия является директор, которому подчиняется весь штат
предприятия. Основная задача директора - это организация работы предприятия.
Директору подчиняются: заместитель директора по механизации, в ведении которого
находится отдел главного механика, и энергетика, в состав которого входят:
инженер-энергетик, механики, диспетчер; инженер по охране труда; отдел кадров;
начальник ппо в ведении которого находится ппо; главный бухгалтер, который
руководит бухгалтерией, главный инженер, в подчинении которого находятся:
прорабы и мастера, а также отдел качества.
Управление сохранило высококвалифицированные кадры мостостроителей,
оснащено парком специальных машин и механизмов и способно реализовать
практически любые проекты в области мостостроения.
1.2 Списочный состав и наработка дорожностроительных машин и
подвижного состава
Таблица 1 Списочный состав и наработка машин
|
№
|
Название
|
Гос. номер
|
Год выпуска
|
Пробег
|
М/ч
|
|
1
|
2
|
3
|
4
|
5
|
6
|
|
1
|
Автомобильный кран КС-35715
|
-
|
-
|
|
2915
|
|
2
|
Автомобильный кран КС-4561А
|
-
|
-
|
|
28655
|
|
3
|
Автомобильный кран КС-4562
|
-
|
-
|
|
40975
|
|
4
|
П/к кран КС-4361
|
-
|
-
|
|
8745
|
|
1
|
2
|
3
|
4
|
5
|
6
|
|
5
|
Кран гусеничный РДК-250-2
|
-
|
-
|
|
12174
|
|
6
|
Кран гусеничный РДК-250-3
|
-
|
-
|
|
6778
|
|
7
|
Бульдозер ДЗ-42
|
-
|
-
|
|
20550
|
|
8
|
Бульдозер ДЗ-130
|
-
|
-
|
|
21870
|
|
9
|
Электрическая станция
ДСМ-100
|
-
|
-
|
|
9005
|
|
10
|
Компрессорная установка
СП-49
|
-
|
-
|
|
24345
|
|
11
|
Сварочный агрегат АДД-305
|
-
|
-
|
|
14423
|
|
12
|
Компрессор ПР-6/8
|
-
|
-
|
|
15515
|
|
13
|
Компрессор ПКС-5/25Э
|
-
|
-
|
|
3225
|
|
14
|
Дизель-молот УР2-1800
|
-
|
-
|
|
2005
|
|
15
|
Дизель-молот УР2-2500
|
-
|
-
|
|
1010
|
|
16
|
Экскаватор ЕК-12
|
-
|
-
|
|
3998
|
|
17
|
Экскаватор ЭО-2621
|
-
|
-
|
|
10005
|
|
18
|
Погрузчик ТО-49
|
-
|
-
|
|
5845
|
|
1
|
2
|
3
|
4
|
5
|
6
|
|
19
|
Погрузчик УН-053
|
-
|
-
|
|
3948
|
|
20
|
ГАЗ-31105
|
-
|
-
|
112742
|
|
|
21
|
ГАЗ-3110
|
-
|
-
|
281531
|
|
|
22
|
ВАЗ-21043
|
-
|
-
|
265956
|
|
|
23
|
УАЗ-3962
|
-
|
-
|
163872
|
|
|
24
|
ИЖ-27172
|
-
|
-
|
81849
|
|
|
25
|
КАВЗ-685
|
-
|
-
|
659778
|
|
|
26
|
ГАЗ-33023
|
-
|
-
|
415018
|
|
|
27
|
ГАЗ-33023
|
-
|
-
|
445251
|
|
|
28
|
ГАЗ-33021
|
-
|
-
|
325578
|
|
|
29
|
МАЗ-5551
|
-
|
-
|
201073
|
|
|
30
|
МАЗ-5551
|
-
|
-
|
98537
|
|
|
31
|
ММЗ-4502
|
-
|
-
|
505811
|
|
|
32
|
ЗИЛ-130
|
-
|
-
|
4655
|
|
|
33
|
КаМАЗ-5410
|
-
|
-
|
650068
|
|
|
34
|
КаМАЗ-5410
|
-
|
-
|
414226
|
|
|
35
|
КРаЗ-255
|
-
|
-
|
90689
|
|
|
36
|
МАЗ-5432
|
-
|
-
|
198834
|
|
|
37
|
МАЗ-5443
|
-
|
-
|
148307
|
|
|
38
|
КаМАЗ-53212
|
-
|
-
|
368549
|
|
|
39
|
КаМАЗ-5511
|
-
|
-
|
530812
|
|
|
40
|
ГАЗ-52
|
-
|
-
|
392379
|
|
|
41
|
ГАЗ-66
|
-
|
-
|
433985
|
|
|
42
|
ГАЗ-3307
|
-
|
-
|
170762
|
|
|
43
|
КРаЗ-250
|
-
|
-
|
41961
|
|
|
44
|
КРаЗ-250
|
-
|
-
|
294021
|
|
|
1
|
2
|
3
|
4
|
5
|
6
|
|
45
|
МАЗ-5337
|
-
|
-
|
71209
|
|
|
46
|
ОДАЗ-937
|
-
|
-
|
-
|
|
|
47
|
ОДАЗ-937
|
-
|
-
|
-
|
|
|
48
|
МАЗ-9380040
|
-
|
-
|
-
|
|
|
49
|
МАЗ-9380
|
-
|
-
|
-
|
|
|
50
|
МАЗ-5247
|
-
|
-
|
-
|
|
|
51
|
ТЦ-13
|
-
|
-
|
-
|
|
|
52
|
ГКБ-9383
|
-
|
-
|
-
|
|
1.3 Организация технического обслуживания и ремонта
В МСУ-4 принята планово-предупредительная система органтзации
технического обслуживания и ремонта машин. Она основана на обязательном
планировании, подготовке и проведении соответствующих видов технического
обслуживания и ремонта для каждой из машин, находящейся в эксплуатации с
заданной последовательностью.
Система планово-предупредительного ремонта при более широком внедрении
методов и средств диагностирования позволяет выполнять работы по техническому
обслуживанию и ремонту не в строго установленное время, а тогда, когда это
требует техническое состояние машины. В этом случае в плановом порядке
осуществляется только контроль за техническим состоянием машины, а сами работы
выполняются только по необходимости. Но ввиду недостаточного внедрения таких
средств и методов техническое обслуживание и ремонт производятся строго в
соответствии с планом, который разрабатывает отдел главного механика на основе
данных о наработке, показателей периодичности и трудоёмкости проведения этих
работ.
Таким образом, достижение высоких показателей технического обслуживания и
ремонта обеспечивается, прежде всего, правильностью выбора метода организации
этих работ.
В МСУ-4 работы по техническому обслуживанию и ремонту организованы
тупиковым методом, так как парк машин в организации относительно небольшой и
достаточно разнообразен. Поступившие на ремонт автомобили, трактора, прицепы проверяются и
принимаются участковым механиком, с обязательным контролем комплектности. При
выявлении не комплектности или поломок происшедших по вине водителя
составляется акт с описанием некомплектных узлов или дефектов. Акт
представляется главному инженеру для принятия мер виновным. Приемка автомобиля
или трактора в ремонт считается законченной посте оформления акта с указанием
комплектности. Механик исходя из объемов работ, характера неисправностей,
определяет место постановки транспорта в зонах ремонта и выдает нормированное
задание бригадам слесарей и водительскому составу, привлекаемому к ремонтным
работам на производство ремонтных работ. На основании поступивших заявок
качеству ремонта. В том случае если имеются обоснованные претензии по качеству
ремонта, автомобили подлежат возврату в ремзону для устранения неисправности.
Обеспечение технологического процесса ремонта и ТО подвижного состава
необходимыми запасными частями и ремонтно-вспомогательными материалами
осуществляется через неснижаемый запас сосредоточенный на центральном,
промежуточном и оборотном складах. Снятые в процессе ремонта запасные части,
узлы, агрегаты и детали дефектуются: годные для дальнейшего использования и
подлежащие восстановлению сдаются на промежуточный и оборотный склад для
восстановления и дальнейшего использования, негодные подлежат утилизации. При
списании на основные агрегаты составляются дефектные акты.
на ремонт инженер по нормированию устанавливает нормативное время простоя
автомобилей в ремонте и доводит его до руководства путем заполнения
соответствующих граф заявки на ремонт.
В случае необходимости ремонта тракторной техники на линии при
невозможности доставки ее в ремонтную мастерскую, работы проводится на объекте
силами машиниста, с привлечением слесарей. Контроль за проведением ремонта, и
его оформление проводится в установленном порядке механиком.
Для ремонта техники без участия водителя распоряжением создаются звенья
слесарей. Звенья формируются с расчетом обеспечения необходимых технических
воздействий и соблюдением безопасности работ.
После окончания ремонта автомобилей механик проверяет качество и объемы
выполненных работ, оформляет листки учета ремонта и ТО, проверив исправность
выпускаемых из ремонта автомобилей и качество выполняемых работ по заявке,
расписывается в листке учета ремонта и ТО при отсутствии претензий к
.4 Недостатки существующей организации ТО и ремонта в МСУ-4
В связи с большой производственной программой и разнообразным парком
машин увеличивается трудоёмкость работ, что приводит к заграждению деталями зон
ТО и ремонта. Это в свою очередь понижает производительность и нарушает технику
безопасности и охрану окружающей среды.
Для устранения этих недостатков предлагается разработать участок по
ремонту топливной аппаратуры (карбюраторов, топливных насосов бензиновых
двигателей, топливных насосов высокого давления, форсунок, прецизионных пар).
2.
Технологическая часть
2.1 Расчет годовой производственной программы
2.1.1 Общие положения
Объем работ
по техническому обслуживанию и ремонту дорожных машин и автомобилей необходим
для определения потребности в рабочих, передвижных мастерских, заправочных
средствах и оборудовании для стационарных мастерских. Он определяется в
номенклатурном и трудовом (чел-ч) выражении.
Расчет производственной программы ведется по каждой группе машин одной
марки или близких по своему характеру.
Списочное количество машин по типам и маркам принимается из имеющихся на
балансе организации
Режим работы машин:
·
количество
рабочих дней машины в году - 254;
·
количество
рабочих смен в сутки - одна;
·
продолжительность
смены - 8 часов;
·
коэффициент
использования сменного времени Кв=0,90;
·
категория условий
эксплуатации-II; район-с умеренным климатам;
2.1.2 Расчет годовой производственной программы по ТО и ремонту
дорожных машин
Расчет фактического времени работы машин в сутки:
Тф = Тсм · n · Кв , (2.1)
где Тф - фактическое время работы машины в сутки, маш-ч;
Тсм - продолжительность смены, час;
n -
количество смен в сутки.
Тф = 8 · 0,90 · 1 = 7,2 маш-ч
Выбор периодичности и трудоемкости ТО и ремонта машин
Выбор осуществляется на основании норм, которые даны в источниках [1] и
[2] и данные заносятся в таблицу 2.
Таблица 2 - Периодичность и трудоемкость ТО и ремонтов машин
|
Наименование машин
|
Периодичность выполнения ТО
и ремонта, час
|
Трудоемкость одного ТО и
ремонта, чел-ч
|
|
1
|
2
|
3
|
4
|
|
Автомобильный кран КС-35715
|
ТО-1 ТО-2 СО ТР КР
|
50 250 2 раза в год 1000
5000
|
8 32 16 820 1540
|
|
Автомобильный кран КС-4561А
|
ТО-1 ТО-2 СО ТР КР
|
50 250 2 раза в год 1000
5000
|
8 32 16 820 1540
|
|
Автомобильный кран КС-4562
|
ТО-1 ТО-2 СО ТР КР
|
50 250 2 раза в год 1000
5000
|
8 32 16 820 1540
|
|
П/к кран КС-4361
|
ТО-1 ТО-2 СО Т, в том числе
ТО-3 КР
|
60 240 2 раза в год 960 -
5760
|
7 30 30 960 40 2060
|
|
Кран гусеничный РДК-250-2
|
ТО-1 ТО-2 СО Т, в том числе
ТО-3 КР
|
60 240 2 раза в год 960 -
5760
|
8 32 32 1040 42 2520
|
|
Кран гусеничный РДК-250-3
|
ТО-1 ТО-2 СО Т, в том числе
ТО-3 КР
|
60 240 2 раза в год 960 -
5760
|
8 32 32 1040 42 2520
|
|
Бульдозер ДЗ-42
|
ТО-1 ТО-2 СО Т, в том числе
ТО-3 КР
|
60 240 2 раза в год 960 -
5760
|
4 10 35 380 22 730
|
|
Бульдозер ДЗ-130
|
ТО-1 ТО-2 СО Т, в том числе
ТО-3 КР
|
60 240 2 раза в год 960 -
5760
|
5 16 45 440 32 800
|
|
Электрическая станция
ДСМ-100
|
ТО-1 ТО-2 СО Т, в том числе
ТО-3 КР
|
60 240 2 раза в год 960 -
3840
|
2 6 2 40 12 150
|
|
Компрессорная установка
СП-49
|
ТО-1 ТО-2 СО ТР КР
|
100 200 2 раза в год 1000 7000
|
3 5 1 100 230
|
|
Сварочный агрегат АДД-305
|
ТО-1 ТО-2 СО Тр
|
50 250 2 раза в год 1250
|
3 7 1 75
|
|
Компрессор ПР-6/8
|
ТО-1 ТО-2 СО Т, в том числе
ТО-3 КР
|
60 240 2 раза в год 960 -
5760
|
3 10 3 185 15 550
|
|
Компрессор ПКС-5/25Э
|
ТО-1 ТО-2 СО ТР КР
|
100 200 2 раза в год 1000
7000
|
3 5 1 100 230
|
|
Дизель-молот УР2-1800
|
ТО ТР КР
|
60 360 720
|
8 20 180
|
|
Дизель-молот УР2-2500
|
ТО ТР КР
|
60 360 720
|
10 30 210
|
|
Экскаватор ЕК-12
|
ТО-1 ТО-2 СО Т, в том числе
|
60 240 2 раза в год 960
|
6 28 50 800
|
|
ТО-3 КР
|
- 7680
|
50 1650
|
|
Экскаватор ЭО-2621
|
ТО-1 ТО-2 СО Т, в том числе
ТО-3 КР
|
60 240 2 раза в год 960 -
7680
|
3 4 25 450 23 650
|
|
Погрузчик ТО-49
|
ТО-1 ТО-2 СО Т, в том числе
ТО-3 КР
|
60 240 2 раза в год 960 -
5760
|
4 14 35 420 28 680
|
|
Погрузчик УН-053
|
ТО-1 ТО-2 СО Т, в том числе
ТО-3 КР
|
60 240 2 раза в год 960 -
5760
|
4 14 35 420 28 680
|
Корректирование периодичности, трудоемкости и продолжительности ТО и
ремонта дорожных машин - в дипломном проекте не выполняется, так как
проектируемая организация находится на территории Республики Беларусь и число
дорожных машин в парке составляет 24.
Расчет наработки на техническое обслуживание и ремонт по каждой машине
производится по формуле
Нтор = Нэ / Птор , (2.2)
где Нтор - наработка на очередной ремонт и ТО, маш-ч;
Нэ - наработка с начала эксплуатации, маш-ч;
Птор - периодичность проведения ТО и ремонтов, час;
В качестве примера производится расчет по автомобильному крану КС-4561А.
Фактическая наработка на КР:
Нто-1
=
= 19, принимается Нто-1 =0 маш-ч
Нто-2
=
= 3
,
принимается Нто-2 = 200 маш-ч
Нтр
=
, принимается Нтр = 950 маш-ч
Нкр
=
, принимается Нкр = 950 маш-ч.
Аналогично производится расчет по остальным машинам и данные сводят в
таблицу 3.
Таблица 3 - Наработка по машинам на ТО и ремонт
|
Наименование машин
|
Марка
|
Фактическая наработка,
маш-ч
|
|
|
КР
|
ТР
|
ТО-2
|
ТО-1
|
|
1
|
2
|
3
|
4
|
5
|
6
|
|
1. Автомобильный кран
|
КС-35715
|
1000
|
0
|
0
|
0
|
|
2. Автомобильный кран
|
КС-4561А
|
950
|
950
|
200
|
0
|
|
3. Автомобильный кран
|
КС-4562
|
890
|
890
|
140
|
40
|
|
4. П/к кран
|
КС-4361
|
500
|
500
|
20
|
20
|
|
5. Кран гусеничный
|
РДК-250-2
|
650
|
650
|
170
|
50
|
|
6. Кран гусеничный
|
РДК-250-3
|
450
|
450
|
210
|
30
|
|
7. Бульдозер
|
ДЗ-42
|
600
|
600
|
120
|
10
|
|
8. Бульдозер
|
ДЗ-130
|
300
|
300
|
60
|
0
|
|
9. Компрессорная установка
|
СП-49
|
400
|
400
|
0
|
0
|
|
10. Электрическая станция
|
ДСМ-100
|
850
|
850
|
130
|
10
|
|
11. Сварочный агрегат
|
АДД-305
|
-
|
700
|
200
|
0
|
|
12.Компрессор
|
ПР-6/8
|
950
|
950
|
230
|
50
|
|
13.Компрессор
|
ПКС-5/25Э
|
400
|
400
|
0
|
0
|
|
14. Дизель-молот
|
УР2-1800
|
200
|
200
|
20
|
0
|
|
15. Дизель-молот
|
УР2-2500
|
100
|
100
|
40
|
0
|
|
16. Экскаватор
|
ЕК-12
|
1050
|
90
|
90
|
30
|
|
17. Экскаватор
|
ЭО-2621
|
1050
|
90
|
90
|
30
|
|
18. Погрузчик
|
ТО-49
|
1000
|
40
|
40
|
40
|
|
19. Погрузчик
|
УН-053
|
400
|
400
|
160
|
40
|
Определение количества ТО и ремонтов по машинам за год
а) Расчет количества ТО и ремонтов аналитическим методом по формуле
Nтор =
, (2.3)
где
Nтор - количество КР, ТР, ТО-2 и ТО-1 по машине в
планируемом году;
Нтор
- наработка на очередной ремонт и ТО, маш-ч;
Нпл
- плановая наработка на год;
Птор
- периодичность ТО и ремонтов;
Nn - количество
ТО и ремонтов более высокого воздействия, чем определяемое.
При
расчете количество КР Nn = 0.
В
качестве примера производится расчет по автомобильному крану КС-35715.
Nкр =
, принимается Nкр = 0
Nтр =
, принимается Nтр = Nто-3
= 1
Nто-2 =
, принимается Nто-2 = 3
Nто-1 =
, принимается Nто-1 = 16
Аналогично
производится расчет по остальным машинам и данные сводят в таблицу 4.
Таблица
4 - Производственная программа в номенклатурном выражении
|
Наименование машин
|
Марка
|
Количество ТО и ремонтов
|
|
|
ТР
|
СО
|
ТО-3
|
ТО-2
|
ТО-1
|
|
1
|
2
|
3
|
4
|
5
|
6
|
7
|
|
1. Автомобильный кран
|
КС-35715
|
1
|
2
|
-
|
3
|
16
|
|
2. Автомобильный кран
|
КС-4561А
|
1
|
2
|
-
|
3
|
15
|
|
3. Автомобильный кран
|
КС-4562
|
1
|
2
|
-
|
3
|
14
|
|
4. П/к кран
|
КС-4361
|
1
|
2
|
1
|
2
|
7
|
|
5. Кран гусеничный
|
РДК-250-2
|
1
|
2
|
1
|
3
|
9
|
|
6. Кран гусеничный
|
РДК-250-3
|
1
|
2
|
1
|
2
|
6
|
|
7. Бульдозер
|
ДЗ-42
|
1
|
2
|
2
|
3
|
8
|
|
1
|
2
|
3
|
4
|
5
|
6
|
7
|
|
8. Бульдозер
|
ДЗ-130
|
1
|
2
|
1
|
2
|
3
|
|
9. Компрессорная установка
|
СП-49
|
1
|
2
|
-
|
2
|
1
|
|
10. Электрическая станция
|
ДСМ-100
|
1
|
2
|
1
|
3
|
14
|
|
11. Сварочный агрегат
|
АДД-305
|
1
|
2
|
-
|
2
|
11
|
|
12.Компрессор
|
ПР-6/8
|
1
|
2
|
1
|
3
|
15
|
|
13.Компрессор
|
ПКС-5/25Э
|
1
|
-
|
2
|
15
|
|
14. Дизель-молот
|
УР2-1800
|
1
|
-
|
-
|
1
|
2
|
|
15. Дизель-молот
|
УР2-2500
|
1
|
-
|
-
|
0
|
1
|
|
16. Экскаватор
|
ЕК-12
|
1
|
2
|
1
|
4
|
16
|
|
17. Экскаватор
|
ЭО-2621
|
1
|
2
|
1
|
1
|
9
|
|
18. Погрузчик
|
ТО-49
|
1
|
2
|
1
|
1
|
18
|
|
19. Погрузчик
|
УН-053
|
1
|
2
|
1
|
1
|
2
|
Расчет годовой производственной программы в трудовом выражении, чел-ч -
определяется по формуле:
Птор
= Nтор
∙
tтор, (2.4)
где
Птор - производственная программа по соответствующему виду ТО и ремонтов,
чел-ч;
Nтор -
количество ТР, СО, ТО-2, ТО-1, ТО-3;
Tтор -
трудоемкость одного ТО, ТР, СО.
В
качестве примера ведется расчет по автомобильному крану КС-35715:
Птр
= 1 ∙ 820 = 820 чел-ч;
Псо
= 2 ∙ 16 = 32 чел-ч;
Пто-2
= 3 · 32 = 96 чел-ч;
Пто-1
= 16 · 8 = 128 чел-ч.
Аналогично
производится расчет по другим машинам и данные сводятся в таблицу 5.
Таблица
5 Годовая производственная программа по дорожным машинам, чел-ч.
|
Наименование машин
|
Марка
|
Производственная программа
|
|
|
Птр
|
Псо
|
Пто-3
|
Пто-2 Пто-1
|
|
|
1
|
2
|
3
|
4
|
5
|
6
|
7
|
|
1. Автомобильный кран
|
КС-35715
|
820
|
32
|
-
|
96
|
128
|
|
2. Автомобильный кран
|
КС-4561А
|
820
|
32
|
-
|
96
|
120
|
|
3. Автомобильный кран
|
КС-4562
|
820
|
32
|
-
|
96
|
112
|
|
4. П/к кран
|
КС-4361
|
960
|
60
|
40
|
60
|
49
|
|
5. Кран гусеничный
|
РДК-250-2
|
1040
|
64
|
42
|
96
|
72
|
|
6. Кран гусеничный
|
РДК-250-3
|
1040
|
64
|
42
|
64
|
48
|
|
7. Бульдозер
|
ДЗ-42
|
380
|
70
|
22
|
30
|
32
|
|
8. Бульдозер
|
ДЗ-130
|
440
|
90
|
32
|
32
|
15
|
|
9. Компрессорная установка
|
СП-49
|
100
|
2
|
-
|
10
|
3
|
|
10. Электрическая станция
|
ДСМ-100
|
40
|
4
|
12
|
18
|
28
|
|
11. Сварочный агрегат
|
АДД-305
|
75
|
2
|
-
|
14
|
33
|
|
12.Компрессор
|
ПР-6/8
|
185
|
6
|
15
|
30
|
45
|
|
13.Компрессор
|
ПКС-5/25Э
|
100
|
2
|
-
|
10
|
45
|
|
14. Дизель-молот
|
УР2-1800
|
20
|
-
|
-
|
12
|
12
|
|
15. Дизель-молот
|
УР2-2500
|
30
|
-
|
-
|
10
|
10
|
|
16. Экскаватор
|
ЕК-12
|
800
|
100
|
50
|
112
|
96
|
|
17. Экскаватор
|
ЭО-2621
|
450
|
50
|
23
|
4
|
27
|
|
18. Погрузчик
|
ТО-49
|
420
|
70
|
28
|
14
|
72
|
|
19. Погрузчик
|
УН-053
|
420
|
70
|
28
|
14
|
8
|
Расчет годовой производственной программы по ТО и ремонту автомобилей
выполняется по «Методике ускоренного расчета программы», основанной на
первоочередном расчете коэффициентов αт , αи и годового пробега ∑L всего парка (группы однородных
автомобилей).
Расчет исходных данных
С целью упрощения расчетов в каждой группе автомобилей выбирается
основная модель, а остальные приводятся к ней с помощью коэффициента
приведения, рассчитанному по трудоемкости текущего ремонта (как наиболее
сложного в условиях эксплуатационного предприятия).
Результаты расчетов оформляют в виде таблицы 6.
Таблица 6 - Состав приведенного парка автомобилей.
|
№гр.
|
Модели автомобилей
|
Кол-во шт.
|
Удельная трудоем-кость ТР,
чел-ч/1000
|
Коэф-фициент приве-дения
|
Кол-во приве-денных а/м
|
Lсс, км
|
|
Основная
|
Приведен-ная
|
|
|
|
|
|
|
1
|
2
|
3
|
4
|
5
|
6
|
7
|
8
|
|
1
|
МАЗ-5551
|
- ГАЗ-31105 ГАЗ-3110
ВАЗ-21043 УАЗ-31512 УАЗ-3962 ИЖ-27172 КАВЗ-685 ГАЗ-33023 ММЗ-4502 ЗИЛ-130
КАМАЗ-5410 КРАЗ-255 МАЗ-5432 МАЗ-5433 КАМАЗ-53212
|
2 1 1 1 1 1 1 1 3 1 1 2 1 1
1 1
|
5.2 3,0 3,0 3,4 3,6 3.6 2,8
5,5 3,6 4,1 4 6,7 6,2 5,0 5,2 6,7
|
1,0 0,58 0,58 0,65 0,69
0,69 0,54 1,06 0,69 0,79 0,78 1,29 1,19 0,96 1,0 1,29
|
2,0 0,58 0,58 0,65 0,69
0,69 0,54 1,06 2,07 0,79 0,78 2,58 1,19 0,96 1,0 1,29
|
118
|
|
|
КАМАЗ-5511 ГАЗ-52 ГАЗ-66
ГАЗ-3307 КРАЗ-250 МАЗ-5337
|
1 1 1 1 2 1
|
6,7 3,8 3,6 3,2 6,2 5,2
|
1,29 0,73 0,69 0,62 1,19
1,0
|
1,29 0,73 0,69 0,62 2,38
1,0
|
|
|
Итого:
|
24,16
|
|
|
|
|
|
|
|
|
|
|
Примечание: 1 - удельная трудоемкость ТР принята из источника [4] таблица
2,1; 2 - коэффициент приведения - это отношение удельной трудоемкости
приведенного автомобиля к удельной трудоемкости основного.
Расчет коэффициента технической готовности aт определяется согласно [2] стр.51 по формуле
αт =
(2.5)
где
Lсс - среднесуточный пробег, км;
d - простой
автомобиля в ТР, дн/1000км;
Дкр
- простой в КР, дн;
Lкр - принятый
пробег до КР, км.
По
автомобилям группы (МАЗ-5511) нормативные дни простоя составят:
dн = 0,5 - из
[2] таблица 4;
Днкр
= 22 дн - из [2] таблица 4;
Однако
с учетом изношенности автомобилей
=
dн × К4 (2.6)
Дкр
= Днкр · К4
(2.7)
где
К4 - коэффициент, учитывающий степень изношенности парка автомобилей -
принимается из [2] таблица 6, при условии учета примечания под таблицей.
К4
=
= 1,26
Тогда
d = 0,5 · 1,26 = 0,63 дн,
Дкр
= 22 · 1,26 = 27,72 ≈ 28 дн.
Пробег
до КР определяется по формулам
кр
= Lнкр ∙ К, К= К1 ∙ К2 ∙ К3 ∙ КК, (2.8)
где
Lнкр = 600000 км - нормативный пробег до КР, из [2]
таблица 2.2. - для автомобиля МАЗ-5551.
К1
- коэффициент, учитывающий условия эксплуатации, согласно [2] таблица 2.7. - К1
= 0,90;
К2
- коэффициент, учитывающий модификацию подвижного состава, согласно [2] таблица
2.8. - К2 = 0,80;
К3
- коэффициент, учитывающий природно-климатические условия, согласно [2] таблице
2.9. - К3 = 1,0.
КК
- коэффициент, учитывающий степень изношенности парка автомобилей, согласно [2]
таблица 6 имеем:
КК
=
= 0,86
Тогда
К = 0,9∙0,8∙1,0∙0,86 = 0,61
Lкр = 600000 ∙
0,61 = 366000 км.
aт =
= 0,92
Общегрупповой
пробег (по автомобилям МАЗ-5551) за год определяется по формуле
ΣL = Аи · Lсс ·Дг · aт , км (2.9)
где
Аи - приведенное число автомобилей в группе (из таблицы 6).
Дг
- число рабочих дней в году (Дг = 254 дн. принимается из календаря на
проектируемый год).
ΣL = 24,16 · 118 · 254 ·0,92 ≈ 666193 км.
Результаты расчета сводят в таблицу 7.
Таблица 7. Годовой пробег автомобилей
|
№ гр
|
Модель авто
|
Lсс, км
|
Аи
|
aт
|
ΣL,
км
|
|
1
|
МАЗ-5551
|
118
|
24,16
|
0,92
|
666193
|
Корректирование периодичности ТО и КР выполняется по формулам
11 = Lн1 ∙ К1 × К3, км. L12 = Lн2 ∙
К1 ∙ К3 , км, (2.10)
где Lн1, Lн2 - нормативная периодичность ТО-1 и ТО-2;
К1 - коэффициент, учитывающий условия эксплуатации;
К3 - коэффициент, учитывающий природно-климатические условия;
Для автомобилей группы МАЗ-5551 это составит Lн1 = 8000км; и
Lн2 =
24000км - из [2] таблицы 2.1.
К1 = 0,90 - из [2] таблицы 2.7.;
К3= 1,0- из [2] таблицы 2.9;
Тогда L11 = 8000 ∙ 0,9 ∙ 1,0 =
7200 км;
L12=
24000 ∙ 0,9 ∙ 1,0 =21600 км;
Lкр =
366000 км - см. пункт 1.1.3.2.
Для ТО результирующий коэффициент составит
К = К1 ∙ К3 = 0,90;
А для капитального ремонта - К = 0,61 - см. пункт 2.1.3.2.
Кроме того, необходимо произвести корректировку периодичности ТО и КР с
учетом кратности среднесуточному пробегу - это составит
n1 =
=
= 61,15;
принимаем n1=61,
тогда
L1 = 118 · 61 = 7198 км,
n2 =
=
= 3,01;
принимаем n2 = 3,
тогда
L2 = 7198 ∙ 3 = 21594 км;
nкр =
=
= 17,24;
принимаем nкр = 17,
тогда
Lкр= 21594 · 17 =367098 км.
Результаты расчета сводят в таблицу 8.
Таблица 8 - Откорректированные периодичности ТО и КР автомобилей
|
№ гр.
|
Модель автомобиля
|
Вид ТО и КР
|
Коррект. коэфф., К
|
Периодичность ТО и КР, км
|
|
|
|
|
Нормативная Lн
|
Для заданных условия, L1
|
С учетом Lсс,
L
|
|
1
|
МАЗ-5551
|
ТО-1 ТО-2 КР
|
0,90 0,90 0,61
|
8000 24000 600000
|
7200 21600 366000
|
7198 21594 367098
|
Корректирование трудоемкости ТО и ремонтов.
Нормативная трудоемкость ТО и ремонтов подлежит корректированию с учетом
условий эксплуатации автомобилей по формулам
ЕО = tНЕО · К2 · К5, чел-ч; (2.11)
t1 = tН1 · К2 · К5, чел-ч; (2.12)
t2 = tН2 · К2 · К5, чел-ч; (2.13)
tтр = tНтр · К1 · К2 · К3 · К4 · К5 ,
чел-ч/1000км, (2.14)
где tЕО, t1, t2, tтр - трудоемкость соответствующего
вида ТО и ремонтов, чел-ч;
tНЕО, tН1, tН2, tНтр -
исходные нормативные величины трудоемкости, чел-ч ( принимается из [2] табл.
2.1);
К1 - коэффициент, учитывающий условия эксплуатации, (принимается из [2]
табл. 2.7);
К2 - коэффициент, учитывающий модификацию подвижного состава,
(принимается из [2] табл. 2.8);
К3 - коэффициент, учитывающий природно-климатические условия,
(принимается из [2] табл. 2.9);
К4 - коэффициент, учитывающий пробег автомобиля с начала эксплуатации, (
принимается из [2] табл. 2.10);
К5 - коэффициент корректирования нормативов ТО и ТР в зависимости от
количества автомобилей в парке и числа технологически совместимых групп,
(принимается из [2] табл. 2.11).
Следовательно по автомобилям группы МАЗ-5551 имеем:
tНЕО =
0,4 чел-ч; tН1 = 4,6 чел-ч; tН2 = 11,0 чел-ч; tНтр = 5,2 чел-ч;
К1 = 1,0; К2 = 1,2; К3 = 1.0; К4 = 1,4; К5 = 1,05; (т.к. число
автомобилей 34шт, а число совместимых групп - 1).
Тогда
tЕО =
0,4 ∙ 1,2 · 1,05 = 0,50 чел-ч;
t1 =
4,6 ∙ 1,2 · 1,05 = 5,79 чел-ч;
t2 =
11 ∙ 1,2 · 1,05 = 13,86 чел-ч;
tтр =
5,2 ∙ 1,0 ∙ 1,2 · 1,0 · 1,4 ∙ 1,05 = 9,17 чел-ч;
Результаты расчета сводят в таблицу 9.
Таблица 9 - Трудоемкость одного ТО и ТР, чел-ч
Модель автомобиля
|
нормативная
|
откорректированная
|
|
|
tНЕО
|
tН1
|
tН2
|
tНтр
|
tЕО
|
t1
|
t2
|
tтр
|
|
1
|
МАЗ-5551
|
0,4
|
4,6
|
11
|
5,2
|
0,50
|
5,79
|
13,86
|
9,17
|
Число обслуживаний и ремонтов рассчитывается по всему парку (группе
автомобилей).
Nкр =
; N2 =
- Nкр; N1 =
- Nкр- N2; NЕО =
,(2.15)(2.16)(2.17)(2.18)
Следовательно,
по автомобилям группы МАЗ-5551 имеем:
Nкр =
= 1,98; принимается Nкр = 1;
N2 =
- 1 = 29,8; принимается N2 = 29;
N1 =
- 1 -29 = 62,5; принимается N1 = 62;
NЕО =
=5553,7; принимается NЕО =5593.
Результаты расчета сводят в таблицу 10.
Общепарковая годовая трудоемкость (производственная программа) работ по
видам ТО и ТР находится по формулам:
ПЕО = NЕО · tЕО, чел-ч; (2.19)
П2 = N2 · t2, чел-ч; (2.20)
П1 = N1 · t1, чел-ч; (2.21)
Птр = ΣL · tтр/1000, чел-ч. (2.22)
По группе автомобилей МАЗ-5551 это составит:
ПЕО = 5553 · 0,50 = 2776,5 чел-ч, принимается ПЕО = 2777 чел-ч;
П1 = 62 · 5,79 = 358,98 чел-ч, принимается П1 = 359 чел-ч;
П2 = 29· 13,86 =401,94 чел-ч, принимается П2 =402чел-ч;
Птр = 666193 · 9,17/1000 = 6108 чел-ч, принимается Птр =6108 чел-ч;
Результаты расчета сводят в таблицу 10.
Таблица 10 - Годовая производственная программа по автомобилям
|
№ гр
|
Модель автомобиля
|
Количество
|
Трудоемкость, чел-ч
|
|
|
NЕО
|
N1
|
N2
|
ПЕО
|
П1
|
П2
|
Птр
|
|
1
|
МАЗ-5551
|
5593
|
62
|
29
|
2777
|
359
|
402
|
6108
|
.1.4 Расчет производственной программы участка
Принимаем, что проектируемая строительная организация ведет строительство
объектов, расположенных в радиусе 30 км.
На основании рекомендаций, изложенных в пункте 2.1.4 источника [2]
выбираются места выполнения ТО и ТР и оформляются в виде таблицы 11.
Таблица 11 - Распределение трудоемкости работ по местам выполнения.
|
Марка машин
|
Место выполнения и
трудоемкость, чел-ч
|
|
ТР
|
ТО-3
|
СО
|
ТО-2
|
ТО-1
|
|
1
|
2
|
3
|
4
|
5
|
6
|
|
Автомобильный кран КС-35715
|
СМ (820)
|
-
|
СМ (32)
|
СМ (96)
|
СМ (128)
|
|
Автомобильный кран КС-4561А
|
СМ (820)
|
-
|
СМ (32)
|
СМ (96)
|
СМ (120)
|
|
Автомобильный кран КС-4562
|
СМ (820)
|
-
|
СМ (32)
|
СМ (96)
|
СМ (112)
|
|
П/к кран КС-4361
|
СМ (960)
|
СМ (40)
|
СМ (60)
|
СМ (60)
|
СМ (49)
|
|
Кран гусеничный РДК-250-2
|
СМ (1040)
|
СМ (42)
|
СМ (64)
|
СМ (64)
|
СМ (48)
|
|
Кран гусеничный РДК-250-3
|
СМ (1040)
|
СМ (42)
|
СМ (64)
|
СМ (96)
|
СМ (72)
|
|
Бульдозер ДЗ-42
|
СМ (380)
|
СМ (22)
|
СМ (70)
|
СМ (30)
|
СМ (32)
|
|
Бульдозер ДЗ-130
|
СМ (440)
|
СМ (32)
|
СМ (90)
|
СМ (32)
|
СМ (13)
|
|
Электрическая станция
ДСМ-100
|
СМ (40)
|
СМ (12)
|
СМ (4)
|
СМ (18)
|
СМ (28)
|
|
Компрессорная установка
СП-49
|
СМ (100)
|
-
|
СМ (2)
|
СМ (10)
|
СМ (3)
|
|
Дизель-молот УР2-1800
|
СМ (20)
|
-
|
-
|
СМ (24)
|
СМ (24)
|
|
Сварочный агрегат АДД-305
|
СМ (75)
|
-
|
СМ (2)
|
СМ (14)
|
СМ (33)
|
|
Компрессор ПР-6/8
|
СМ (185)
|
СМ (15)
|
СМ (6)
|
СМ (30)
|
СМ (45)
|
|
Компрессор ПКС-5/25Э
|
СМ (100)
|
-
|
СМ (2)
|
СМ (10)
|
СМ (45)
|
|
Дизель-молот УР2-2500
|
СМ (30)
|
-
|
-
|
СМ (10)
|
СМ (10)
|
|
Экскаватор ЕК-12
|
СМ (800)
|
СМ (50)
|
СМ (100)
|
СМ (112)
|
СМ (96)
|
|
Экскаватор ЭО-2621
|
СМ (450)
|
СМ (23)
|
СМ (50)
|
СМ (4)
|
СМ (27)
|
|
Погрузчик ТО-49
|
СМ (420)
|
СМ (28)
|
СМ (70)
|
СМ (14)
|
СМ (72)
|
|
Погрузчик УН-053
|
СМ (420)
|
СМ (28)
|
СМ (70)
|
СМ (14)
|
СМ (8)
|
|
МАЗ-5551
|
СМ (6108)
|
-
|
-
|
СМ (402)
|
СМ (358)
|
Примечание: СМ - стационарная мастерская.
Производственная программа участка на основании таблицы 11 определяется
из соотношения:
П1отд = SПто-2 ∙
К, чел.-ч.; (2.23)
Потд=693,128 чел.-ч.
Производственную программу участка увеличивают на 20%. Это необходимо,
потому что мастерская будет выполнять внеплановые заявки и производить ТО и
ремонт станочного оборудования, стендов и другого оборудования мастерской.
Следовательно, общая производственная программа отделения составит:
Поотд = 1,2 ∙ Потд, чел-ч; (2.24)
Поотд = 1,2 ∙ 693,128 = 831,7536чел-ч, принимается Поотд = 832
чел-ч.
2.2 Расчет количества постов
МТОР
=
; (2.25)
где
МТОР - число постов участка;
Поотд-
производственная программа участке, чел.-ч.;
Фрм
- фонд времени рабочего места, Фрм = 2024 ч (в соответствии с производственным
календарем на 2009 год);
Рср
- среднее число рабочих, приходящихся на один пост, Рср = 1 чел;
= 0,75 -
коэффициент использования рабочего поста;
n - число
рабочих смен в сутки, n = 1.
МТОР
=
= 1;
оборудование топливный дорожный машина
2.3 Организация и режим работы участка по ремонту топливной аппаратуры
На участке по ремонту топливной аппаратуры будут выполняться такие виды
работ как ремонт и испытание агрегатов и приборов топливной аппаратуры
дорожно-строительных машин ,автомобилей и тракторов
Карбюраторов, топливных насосов бензиновых двигателей, топливных насосов
высокого давления, форсунок, прецизионных пар.
В состав работ входят профилактические и восстановительные мероприятия.
При ремонте оборудования производят оценку состояния деталей с целью выявления
возможных дефектов и отклонений размеров от номинальных значений;
восстановление или замену изношенных деталей и сопряжений, сборку, регулировку,
стендовые испытания отремонтированных деталей.
В отделении будет организована односменная 8-ми часовая работа на 1-ом
посту. Все работы будут производиться 1 рабочим.
2.4 Подбор оборудования на участке по ремонту топливной аппаратуры
В соответствии со спецификой работы на участке по ремонту топливной
аппаратуры подбирается необходимое технологическое оборудование, без которого
не возможно качественное выполнение технологических операций или обеспечения
требуемого уровня производительности труда в соответствии с требованиями охраны
труда. Подобранное оборудование и оснастку сводим в таблицу 12.
Таблица 12 - Технологическое оборудование на участке по ремонту топливной
аппаратуры.
|
Наименование оборудования
|
Кол-во, шт
|
Модель оборудования
|
Размер, мм
|
Занимаемая площадь, м2
|
Мощность, кВт/ч
|
|
1
|
2
|
3
|
4
|
5
|
6
|
|
Стенд для проверки форсунок
|
1
|
НИИАТ-625
|
600 х 700
|
0,42
|
|
|
Верстак для ремонта
форсунок
|
1
|
ОРГ-1468-05-800
|
3000 х 1000
|
3
|
|
|
Стенд для разборки и сборки
форсунок
|
1
|
НИИАТ-420
|
1500 х 1000
|
1,5
|
|
|
Слесарный верстак
|
1
|
70-7826
|
1390 х780
|
3
|
|
|
Стол для контроля и мойки
прецизионных пар
|
1
|
2207
|
1500 х 500
|
0,5
|
|
|
Инструментальный шкаф
|
1
|
70-7826
|
1000 х 700
|
0,7
|
|
|
Верстак для ремонта
топливной аппаратуры
|
1
|
ОРГ-1468-01-060А
|
1390 х 780
|
3
|
|
|
Стенд для обкатки насосов
высокого давления
|
1
|
-
|
600 х 800
|
0,48
|
|
|
Ручной пресс
|
2
|
ОРГ-1788-01А
|
800 х400
|
0,32
|
|
|
Стенд для испытания
топливной аппаратуры
|
1
|
6705-26-ПКБ
|
1200 х 660
|
0,72
|
|
|
Стелаж для деталей и узлов
|
3
|
-
|
700 х 400
|
2,1
|
|
|
Концелярский стол
|
1
|
-
|
1200 х 400
|
0,48
|
|
|
Тиски слесарные с ручным
приводом
|
1
|
Тип1 ГОСТ 4045-75
|
480 х 340
|
Площадь не учитывается
|
|
|
Пожарный инвентарь
|
1
|
-
|
-
|
-//-
|
|
|
Ларь для обтиричного
материала
|
1
|
5133ГОСНИТИ
|
1000 х500
|
0,5
|
|
|
Ящик для песка
|
1
|
-
|
500х500
|
0,25
|
|
|
Моечная машина
|
1
|
ОМ-947
|
1360х1000
|
2,176
|
|
|
Стол с приборами для
проверки топливной аппаратуры карбюраторных двигателей
|
1
|
-
|
1000х2000
|
2
|
|
|
Вертикально-сверлильный
станок
|
1
|
2Б125
|
800 х 500
|
0,4
|
|
|
Комплект деталей карбю
раторщика
|
1
|
2445
|
Площадь не учитывается
|
|
|
|
Итого:
|
18,721
|
|
.5 Расчет площади отделения
отд = Sfоб × Ко , м2 (2.26)
где Sfоб - суммарная площадь, занимаемая
оборудованием, м2;
Ко - коэффициент, учитывающий рабочие зоны, проходы, проезды;
Fуч =
18,721 × 3 = 56 м
2.6Расчет освещения
В производственных помещениях предусматривается естественное и
искусственное освещение.
2.6.1 Расчет естественного освещения
SFок =
, м2, (2.27)
где
Fп - площадь пола отделения, м2;
α - удельная площадь окон, приходящаяся на 1 м2 пола, α = 0,3;
t - коэффициент,
учитывающий потери света от загрязнения остекления,
t = 0,8;
SFок =
= 21м2
ок
=
, (2.28)
где
Fок - площадь одного окна, м2;
Fок = В × hок, м2 (2.29)
где
В - ширина окна, м;
Hок - высота
окна, м;
Fок = 4 × 3 = 12 м2
nок =
= 1,2
Принимается
nок = 1.
2.6.2 Расчет искусственного освещения
Выбор значения освещенности Е = 200.
Определение удельной мощности осветительной установки
Ру = 10,6 Вт/м2.
Определение суммарной мощности ламп
SNл =
Ру × Fп = 10,6 ×56 = 593,6 Вт (2.30)
Выбор мощности одной лампы - принимаются люминесцентные лампы мощностью Nл = 100 Вт.
Расчет числа светильников
Nл =
, (2.31)
л
=
= 5,9;
Принимаем
nл=6 светильников, расположенных в один ряд.
Следовательно,
принятая мощность осветительной установки составит:
SNл = 100 × 6 =600 Вт.
Расход
электроэнергии на освещение
осв
= Тосв × SNл , кВт/час, (2.32)
где Тосв - годовое время работы освещения (ч), Тосв = 800 ч.
Wосв =
800 × 600 = 480 кВт/ч.
2.7 Расчет вентиляции
В отделении предусматривается смешанный вид вентиляции. Механическая
вентиляция рассчитывается в следующей последовательности.
2.7.1 Выбор часовой кратности воздухообмена
к = 3 (из таблицы 18 источника [3])
.7.2
Расчет воздухообмена
= Vn × к, м3/ч (2.33)
где Vn - объем помещения, м3;
= Fn × H = 56 × 12 = 672 м3 (2.34)
= 672× 4 = 2688
м3/ч
.7.3 Выбор типа, номера и КПД вентилятора (источника [3])
Принимаем вентилятор Ц4-90 №3,2;
КПД hв = 0,9;
.7.4 Расчет мощности электродвигателя для привода вентилятора
Nэ = Кп ×
, кВт, (2.35)
где
Нв - напор воздушного потока, кг/м2 (из источника [3]);
hв - КПД вентилятора;
hn = 1 - КПД передачи;
Кп
= 1,5 -коэффициент, учитывающий неучтенные потери воздушного потока.
Nэ = 1,5
= 0,14 кВт;
Окончательно
мощность двигателя должна составлять
1э
= Nэ × Ко , (2.36)
где
Ко - коэффициент, учитывающий затраты мощности на первоначальный пуск
вентилятора, Ко = 1,5.
N1э = 1,5 ×0,14 = 0,21 кВт.
Следовательно принятый электродвигатель обеспечит нормальную работу
вентилятора.
.8 Расчет численности работающих
.8.1 Явочный состав производственных рабочих определяют по формуле
Ряв
=
, чел, (2.37)
где
Поуч - годовая производственная программа отделения, чел-ч;
Фрм
- фонд времени рабочего места, час;
Фрм
= 2024 ч (из производственного календаря на 2009 год);
Кп
- коэффициент выполнения норм выработки;
Кп
= 1,05 - 1,3.
Ряв
=
= 0,85 чел., принимается Ряв = 1 чел.
2.8.2 Списочный состав производственных рабочих
Рсс
=
, чел; (2.38)
Фр
= Фрм - (Дот + Дув) ∙ Тсм , час (2.39)
где
Дот - число дней отпуска рабочего (≈ 26 дней);
Дув
- число дней невыхода по уважительной причине (≈ 3 дня);
Тсм
- продолжительность смены ( 8 часов);
Фр
= 2024 - (26 + 3) · 8 = 1781,12, час;
Рсс
=
= 0,85 чел, принимается Рсс = 1 чел.
.8.3
Количество вспомогательных рабочих принимают в размере 18-20% от числа
производственных рабочих
Рвр
= 0,18 ∙ Рсс, чел; (2.40)
Рвр
= 0,18 ∙ 1 = 0,18; принимается Рвр = 0 чел.
2.8.4 Численность руководителей и специалистов принимается в размере
10-15% от числа основных и вспомогательных рабочих
Рсп = 0,10 · (Рсс + Рвр); (2.41)
Рсп = 0,10 · (1 + 0) = 0,1; принимается Рсп = 0 чел;
2.8.5 Численность МОП составляет 2-4% от численности основных и
вспомогательных рабочих
РМОП = 0,02 · (Рсс + Рвр); (2.42)
РМОП = 0,02 · (1 + 0) = 0,02, принимается РМОП = 0 чел.
Обязанности по уборке возлагаются на уборщика участка ТР.
3. Техника безопасности и противопожарные мероприятия, охрана окружающей
среды при проведении работ
. Введение
.1. Настоящая инструкция регламентирует основные требования безопасности
при выполнении ремонтных и регулировочных работ с топливной аппаратурой
двигателей автомобилей.
.2. Слесарь по ремонту топливной аппаратуры (далее по тексту - слесарь)
должен соблюдать требования инструкции, разработанной на основе данной, и
инструкций, разработанных с учетом требований, изложенных в типовых инструкциях
по охране труда:
для слесаря по ремонту и техническому обслуживанию автомобилей
(инструкция № 2);
при передвижении по территории и производственным помещениям
автотранспортного предприятия (инструкция № 20);
по предупреждению пожаров и предотвращению ожогов (инструкция № 23).
Заметив нарушение требований безопасности другим работником, слесарь
должен предупредить его о необходимости их соблюдения.
Слесарь должен также выполнять указания представителя совместного
комитета (комиссии) по охране труда или уполномоченного (доверенного) лица по
охране труда профсоюзного комитета.
Слесарь должен знать и уметь оказывать доврачебную помощь пострадавшему в
соответствии с типовой инструкцией № 22 по оказанию доврачебной помощи при
несчастных случаях.
Слесарь не должен приступать к выполнению разовых работ, не связанных с
прямыми его обязанностями по специальности, до получения целевого инструктажа.
. Общие требования безопасности
.1. К самостоятельной работе по ремонту топливной аппаратуры допускаются
лица, имеющие соответствующую квалификацию, получившие вводный инструктаж и первичный
инструктаж на рабочем месте по охране труда. Для ремонта газобаллонной
аппаратуры дополнительно необходимо иметь соответствующее удостоверение.
.2. Слесарь, не прошедший своевременно повторный инструктаж по охране
труда (не реже одного раза в 3 месяца) и ежегодную проверку знаний по
безопасности труда, не должен приступать к работе.
.3. При поступлении на работу слесарь должен проходить предварительный
медосмотр, а в дальнейшем - периодические медосмотры в сроки, установленные
Минздравом Белоруссии.
.4. Слесарь обязан соблюдать правила внутреннего трудового распорядка,
принятого на предприятии.
.5. Продолжительность рабочего времени слесаря не должна превышать 40 ч в
неделю.
Продолжительность ежедневной работы (смены) определяется правилами
внутреннего трудового распорядка или графиками сменности, утверждаемыми
работодателем по согласованию с профсоюзным комитетом.
.6. Слесарь должен знать, что наиболее опасными и вредными
производственными факторами, действующими на него в процессе выполнения работ,
являются:
легковоспламеняющиеся жидкости, их пары, газы;
этилированный бензин;
оборудование, инструмент, приспособления.
.6.1. Легковоспламеняющиеся жидкости, пары и газы - при нарушении правил
пожарной безопасности в обращении с ними могут стать причиной пожара и взрыва.
Кроме того, пары и газы, попадая в органы дыхания, вызывают отравление
организма.
.6.2. Этилированный бензин действует отравляюще на организм при вдыхании
его паров, загрязнении им тела, одежды, попадании его в организм с пищей и
питьевой водой.
.6.3. Оборудование, инструмент, приспособления - при неисправности и
неправильном их применении могут привести к травмам.
.7. Слесарь должен работать в специальной одежде и в случае необходимости
использовать другие средства индивидуальной защиты.
.8. В соответствии с Типовыми отраслевыми нормами бесплатной выдачи
рабочим и служащим специальной одежды, специальной обуви и других средств
индивидуальной защиты слесарю выдаются:
костюм хлопчатобумажный;
фартук хлорвиниловый;
сапоги резиновые;
нарукавники хлорвиниловые;
рукавицы комбинированные.
При работе с этилированным бензином дополнительно:
фартук резиновый;
перчатки резиновые.
.9. Слесарь во время работы должен быть внимательным, не отвлекаться на
посторонние дела и разговоры.
Запрещается пользоваться инструментом, приспособлениями, оборудованием,
обращению с которыми слесарь не обучен и не проинструктирован.
.10. Слесарь должен соблюдать правила пожарной безопасности, уметь
пользоваться средствами пожаротушения. Курить разрешается только в специально
отведенных местах.
.11. О замеченных нарушениях требований безопасности на своем рабочем
месте, а также о неисправностях оборудования, приспособлений, инструмента и
средств индивидуальной защиты слесарь должен сообщить своему непосредственному
руководителю и не приступать к работе до устранения замеченных нарушений и
неисправностей.
.12. Слесарь должен соблюдать правила личной гигиены. После окончания
работ и перед приемом пищи или курением необходимо мыть руки с мылом, а после
работы с узлами и деталями автомобиля, работающего на этилированном бензине,
необходимо предварительно мыть руки керосином.
Для питья пользоваться водой из специально предназначенных для этой цели
устройств (сатураторы, питьевые баки, фонтанчики и т.п.).
.13. За невыполнение требований инструкции, разработанной на основе
данной и указанных в п.1.2, слесарь несет ответственность согласно действующему
законодательству.
. Требования безопасности перед началом работы
.1. Перед началом работы слесарь должен:
.1.1. Подготовить и одеть необходимые для работы средства индивидуальной
защиты. Застегнуть манжеты рукавов специальной одежды.
.1.2. Осмотреть и подготовить свое рабочее место, убрать все лишние
предметы, не загромождая при этом проходов.
.1.3. Проверить состояние пола на рабочем месте. Если пол скользкий или
влажный, потребовать, чтобы его вытерли или посыпали опилками, или сделать это
самому.
.1.4. Проверить наличие и исправность инструмента, приспособлений и
оборудования.
.1.5. Проверить наличие пожарного инвентаря в цехе (на участке) и в
случае отсутствия такового сообщить об этом своему непосредственному
руководителю.
.1.6. Включить общую приточно-вытяжную, а при наличии и в случае
необходимости - местную вентиляцию.
. Требования безопасности во время работы
.1. Во время работы слесарь должен:
.1.1. При техническом обслуживании и ремонте топливной аппаратуры
автомобиля принять меры, исключающие проливание топлива из топливного бака,
топливопроводов и приборов системы питания.
.1.2. При ремонте топливной аппаратуры на автомобиле снять клеммы с
аккумулятора или отключить его выключателем массы.
.1.3. При ремонте газовой аппаратуры на автомобиле дополнительно закрыть
расходный и магистральный вентили.
.1.4. Перед разборкой обезвредить поверхность карбюраторов и
бензонасосов, работающих на этилированном бензине, а также их детали керосином.
.1.5. Производить мойку топливной аппаратуры только в местах, отведенных
для этой цели.
.1.6. Моечные ванны с керосином по окончании мойки закрывать крышками.
.1.7. Производить разборку и ремонт топливной аппаратуры на специальных
верстаках или стендах.
.1.8. Пользоваться при разборке и сборке топливной аппаратуры
специальными приспособлениями.
.1.9. Продувку клапанов, трубок и жиклеров топливной аппаратуры
производить воздухом от магистрали через шланг или насосом.
.1.10. При продувке деталей струей воздуха не направлять ее на рядом
работающих людей или на себя.
.1.11. Проверку надежности пуска двигателя и регулировку минимальных
оборотов холостого хода производить на специальных постах, оборудованных местным
отсосом отработавших газов (если посты расположены в помещении ТО).
.1.12. Перед пуском двигателя проверить, заторможен ли автомобиль
стояночным тормозом и есть ли специальные противооткатные упоры (башмаки) под
колесами, установлен ли рычаг переключателя передач (контроллера) в нейтральное
положение.
.1.13. Для безопасного перехода через осмотровые канавы, а также для
работы спереди и сзади автомобиля пользоваться переходными мостиками, а для
спуска в осмотровую канаву - специально установленными для этой цели
лестницами.
.1.14. При попадании этилированного бензина на кожу немедленно обмыть
облитый участок кожи керосином, а затем вымыть теплой водой с мылом. Если
этилированный бензин (капли или пары) попал в глаза, промыть их теплой водой и
немедленно обратиться в здравпункт или к врачу.
Если специальная одежда облита бензином, обратиться к своему
непосредственному руководителю для ее замены.
.1.15. Пролитый на пол бензин удалить с помощью опилок, ветоши и т.п., а
этилированный бензин - предварительно обезвредить раствором хлорной извести и
удалить тем же способом.
.2. Запрещается:
приступать к обслуживанию и ремонту топливной аппаратуры в случае
обнаружения утечки газа при перекрытых кранах на газобаллоном автомобиле;
пользоваться открытым огнем в помещении, где проводятся ремонт и
регулировка топливной аппаратуры;
засасывать бензин ртом через шланг;
для мытья деталей пользоваться бензином;
продувать жиклеры, трубки и т.п. ртом;
во время проверки работы форсунок на стенде подставлять руку к распылителю;
применять для обезвреживания мест, облитых этилированным бензином, сухую
хлорную известь.
. Требования безопасности в аварийных ситуациях
.1. О каждом несчастном случае, очевидцем которого он был, слесарь должен
немедленно сообщить работодателю, а пострадавшему оказать первую доврачебную
помощь, вызвать врача или помочь доставить пострадавшего в здравпункт или
ближайшее медицинское учреждение.
Если несчастный случай произошел с самим слесарем, он должен по
возможности обратиться в здравпункт, сообщить о случившемся работодателю или
попросить сделать это кого-либо из окружающих.
. Требования безопасности по окончании работы
.1. По окончании работы слесарь обязан:
.1.1. Выключить вентиляцию и оборудование.
.1.2. Привести в порядок рабочее место. Инструмент и приспособления
тщательно очистить от остатков этилированного бензина ветошью, обильно
смоченной керосином, а затем протереть сухой ветошью, после чего убрать их в
отведенное для них место.
Сливать остатки керосина и других легковоспламеняющихся жидкостей в
канализацию запрещается.
.1.3. Снять средства индивидуальной защиты и убрать их в предназначенное
для них место. Своевременно сдавать специальную одежду и другие средства
индивидуальной защиты в химчистку (стирку) и ремонт.
.1.4. Вымыть руки с мылом, а после работы с узлами и деталями автомобиля,
работающего на этилированном бензине, необходимо предварительно вымыть руки
керосином.
.1.5. Обо всех недостатках, обнаруженных во время работы, известить
своего непосредственного руководителя.
4. Конструкторская часть
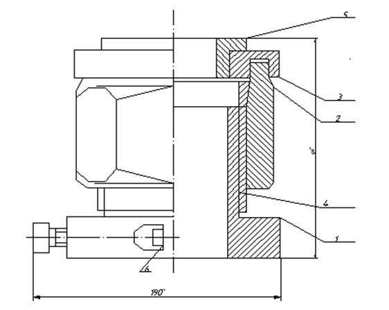
.1 Назначение, устройство и работа приспособления
Изобретение относиться к ручному инструменту и может быть использовано
при напрессовке и снятии деталей с вала. Целью изобретения является расширение
технологических возможностей и повышение универсальности за счет возможности
установки силовой гайки 2 устройства на вал между двумя снимаемыми деталями
Корпус 1, силовая гайка 2 упорная шайба 3 и сменные втулки 5 выполнены
разъемными, с направляющими- типа «ласточкин хвост» и позволяют монтировать устройство
на вал как в продольном направлении с торца вала, так и в боковом направлении,
в его поперечных сечениях.
Изобретение относится к ручному инструменту и может быть использовано при
сборке и разборке оборудования и; машин, например для напресеовкя и снятия
детали с вала,
Целью изобретения является расширение технологических возможностей и
повышение универсальности за счет выполнения устройства разъемным в продольной
плоскости с возможностью его монтажа на вал в поперечной плоскости, применения
сменных и регулируемых элементов для базирования и закрепления устройства на
валу и создания рабочих усилий с помощью силовой гайки.
Устройство содержит корпус 1 , выполненный в виде втулки с наружной
резьбой и фланцем, силовую гайку 2, имеющую торцовый буртик с центрирующимися
внутренним и наружным поясками для базирования упорной шайбы 3. Корпус 1 и
силовая гайка 2 сопрягаются по резьбе 4, имеющей упорный профиль. Внутренние
диаметры корпуса 1 и упорной шайбы 3 выполнены с возможностью установки в них
сменных втулок 5, которые могут быть изготовлены различной конфигурации для
центрирования устройства по валуи передачи рабочего усилия на монтируемую или
снимаемую деталь. Корпус 1, силовая гайка 2, упорная шайба 3, а также сменные
втулки 5 выполнены разъемными в продольной. плоскости устройства. При этом
части разъемного корпуса имеют винты 6 для их фиксации и стягивания у одного из
торцов с фланцем. Плоскости разъемов корпуса 1, ситовой гайки 2 и упорной шайбы
3выполнены с направляющими 7 типа «ласточкин хвост» с возможностью их
поперечного монтажа на вал и создания замыкания разъемов деталей, устройства по
всей их длине. Во фланце корпуса 1 имеются резьбовые отверстия под стопорные
винты8длязакрепления устройства на валу, буртик силовой гайки 2 сопрягается своими
центрирующими поясками с упорной шайбой 3 по кольцевой канавке 9.
Устройство работает следующим образом.
Для снятия одной из деталей, напрессованных на вал с двух сторон,
охватывают, вал с частями корпуса 1 со смещением относительно друг друга, и при
совпадении их направляющих 7 продольным движением' соединяют обе части между
собой до совпадения их торцов. Таким же образом соединяют части силовой гайки
2, и собранную гайку навинчивают по резьбе 4 на корпус 1. То же проделывают с
упорной шайбой 3, надевая ее на центрирующий буртик силовой гайки, и в
последнюю очередь вставляют с двух сторон втулки 5, центрируя тем самым
устройство относительно вала»
Собранный корпус 1 дополнительно стягивают винтами 6, и устройство в
сборе подвигают до упора в торец подлежащей демонтажу детали.
В этом положении закрепляют корпус 1 на валу стопорными винтами 8 и,
удерживая вал от поворота, вращением силовой гайки 2 снимают напрессованную
деталь. Для снятия второй детали устройство не требует разборки, и его
переустанавливают на вал для работы в противоположном направлении, заменяя лишь
при необходимости сменные втулки 5. Если вмятины от стопорных винтов 8
приведенной формы на валу недопустимы, стопорные устройства производят винтами
с плоскими наконечниками из мягких материалов с развитием больших усилий
зажима.
Устройство для напрессовки и снятия детали с вала, содержащее корпус для
базирования и крепления с валом, выполненный с наружной резьбой, и силовую
гайку, отличающееся тем, что, с целью расширения технологических возможностей и
повышение универсальности, устройство снабжено сменными втулками для
базирования и передачи усилия на деталь, элементы крепления выполнены в виде
стопорных винтов, силовая гайка имеет торцовый буртик и упорную шайбу а корпус
гайка, сменные втулки и упорная шайба выполнены разъемными с направляющими типа
«ласточкин хвост», части разъемного корпуса имеют винты для фиксации и
крепления последних.
.2 Расчет на прочность
Средний диаметр винта определяется по формуле
d2 =
, см. (4.1)
где
P - действующее на винт усилие, кг.;
ψ - относительная длинна гайки;
[р]
- удельное давление, 100 кг/см2
d2 =
=2,3 см.
По
ГОСТ 10177- 89 наиболее близкой к требуемой (d2=23 мм., S=3, z=1)
является резьба с наружным диаметром 24 мм.
Ее
основные параметры: средний диаметр резьбы d2=22мм.;
внутренний диаметр резьбы винта d1= 20 мм; наружный диаметр резьбы в гайке d1 =
25 мм; высота нитка h= 4 мм; площадь сечения стержня F =
4,5 см2.
Растягивающее
напряжение в винте
σ =
, кг/см2
(4.2)
σ =
кг/см2
Крутящий
момент, передаваемый винтом
Мк
=
, кг ∙ см (4.3)
где
β
- угол подъема винтовой нитки;
q - приведенный
угол трения в резьбе
β =
,
(4.4)
β =
= 2º4`
Мк
=
=153 кг ∙ см
Напряжения
сдвига
τ =
, кг/см2
(4.5)
τ =
=96
кг/см2
Приведенное
напряжение в материале винта
σпр =
, кг/см2 (4.6)
σпр =
= 275 кг/см2
Предел
текучести стали 45: σт = 5500 кг/см2
При
этом запас прочности
n =
(4.7)
=
Критическая
величина сжимающей силы
Рэ
=
, кг (4.8)
где
Е - модуль продольной упругости;
Jmun -
наименьший момент инерции поперечного сечения винта;
vl - приведенная
длина винта
=
, см4 (4.9)
Jmun =
=1,9 см4
Рэ
=
=2257 кг
Запас
устойчивости ([nу] =>2,5÷4)
nу =
(4.10)
где
Рсж - сила сжатия, 800 кг.
nу =
=2,8
Условие
устойчивости выполняется.
5.
Экономическая часть
.1
Расчет прямых затрат по участку
.1.1
Расчет основной заработной платы основных производственных рабочих
В
состав статьи (основная заработная плата) производственных рабочих
включает:плата работ по сдельным нормам и расценкам, а также по тарифным
ставкам рабочих-повременщиков, занятых непосредственных выполняемых ремонтных
рабочих т.е производственного процесса;
доплаты
и выплаты предусмотрены законодательством о труде, за неблагоприятные условия
труда,
за
работу в ночное время, за расширение зон обслуживания и увеличение объемов
работ;
надбавки
за профессиональное мастерство, за высокое достижение в труде за стаж работы в
отрасли и другие;
премии
рабочим за высокие производственные результаты.
Расчет
среднего тарифного разряда
(5.1)
где:
Npi - число рабочих i-ого разряда,
чел;
Pi - разряд
рабочего.
Таблица
14- Распределяем основных производственных рабочих по разрядам
|
Разряды
|
1
|
2
|
3
|
4
|
5
|
6
|
|
Количество рабочих, чел
|
-
|
-
|
-
|
|
1
|
-
|
|
Удельный вес,%
|
-
|
-
|
-
|
|
100
|
-
|
Расчет среднего тарифного коэффициента
Ктср=Ктб-(Ктб-Ктм)∙(Рб-Рср) (5.2)
где: Ктб - тарифный коэффициент соответствующий большему разряд 2-х
смежных, Ктб=1.73;
Ктм- тарифный коэффициент соответствующий меньшему разряду 2-х смежных,
Ктм=1.57;
Рб- тарифный разряд рабочего соответствующий большему разряду 2-х
смежных, Рб=5.
Ктср =1,73-(1,73-1,57)(5-5)=1,73 руб./час
Расчет средней часовой тарифной ставки
,
руб.\час (5.3)
где
часовая тарифная ставка рабочего 1-го разряда,
руб./час
,
руб.\час. (5.4)
где
См - месячная тарифная ставка ремонтного рабочего (246000 руб.) ,руб/ч
Фм
- месячный фонд рабочего времени (168,7) часов из производственного календаря;
К
- отраслевой коэффициент повышение ставок рабочего (Постановление Министерства
труда и соц. защиты от 09.01.98г.- К=1,2).
руб.\час.
руб.\час
Расчет
тарифной заработной платы производственных рабочих
, руб.
(5.5)
где
ПОТ - производственная программа отделения, ПОТ =2213 чел.-ч.
Расчет
доплат за профессиональное мастерство (Постановление Министерство труда и
социальной защиты от 16.01.1999 №7 с 3 разряда по 6 разряд 12-24%)
.Nр(3-6),
руб. (5.6)
где
Nр(3-6) - количество рабочих с 3 по 6 разряды
руб.
Расчет
премии ремонтных рабочих (Декрет президента РБ от 18.07.2002г № 17 до 30%)
,руб.
(5.7)
руб.
Надбавки
за непрерывный стаж работы.(Статья 63 п.44 ТКРБ до 20% от заработной платы)
, руб.
(5.8)
руб.
Итого основная заработная плата производственных рабочих
, руб.
(5.9)
руб.
.1.2
Расчет дополнительной заработной платы основных производственных рабочих
В
статью затрат “Дополнительная заработная плата” основных производственных
рабочих включает выплаты за непроработанные на производство неявочное время
предусмотренное законодательством о труде:
оплата
очередных и дополнительных отпусков;
оплата
льготных часов подростков;
оплата
перерывов в работе кормящих матерей;
оплата
времени, связанного с прохождением медицинских осмотров, с выполнением
государственных обязанностей;
оплата
учебных отпусков.
, руб.
(5.10)
где:
Кдз - коэффициент дополнительной заработной платы (Кдз=0,12).
руб.
5.1.3
Расчет затрат на материалы и запасные детали для выполнения ремонтных
работ(рекомендации по составлению планаво-расчетной цены маш.-ч. Минск: НПО
«Дорожно-строительная техника» 1991)
руб.
(5.11)
где
Нм/зч -норма затрат на материалы и запасные части(150-200% от основной
заработной платы основных производственных рабочих), руб (Нм/зч =160%)
Зм/зч
- затраты на материалы и запасные части.
Зм/зч=10430767б85·160/100=16689228,28
руб.
5.1.4 Расчет начислений на заработную плату (35%-фонд соц. защиты; 0,7 %
- страховой тариф (Указ Президента РБ от 25.08.06г. №-532; код отросли-14941)
, руб.
(5.12)
руб.
.1.5
Итого прямых затрат
, руб.
(5.13)
руб.
5.2
Расчет накладных расходов
.2.1
Расчет затрат на содержание и эксплуатацию оборудования
Расчет
затрат на электроэнергию для производственных нужд
, руб.
(5.14)
где
Nу-установленная мощность всех потребителей (норма 0,16кВт на 100чел.-ч.);
у=0,16∙Ттр/100,
кВт (5.15)
Кс-коэффициент
спроса учитывающий одновременно с работающим оборудованием (0.6-0.7);
Кз-
коэффициент загрузки оборудования (0,7-0,8);
Кд-
коэффициент полезного действия электродвигателя (0,85-0,9);
Кп-
коэффициент потерь в сети (0,96);
Цэ-
цена одного кВт\час, руб. (227,2руб.) ;
Фоб-
действующий фонд рабочего оборудования, час.
, час.
(5.16)
где
tсм- продолжительность смены, час. tсм=8часов;
Псм-
количество смен (исходные данные);
Ки-
коэффициент использования оборудования по времени (0,95-0,97)
Nу=0,16∙693,128/100=1,1
кВт
час.
руб
Расчет
амортизационных отчислений по оборудованию
, руб.
(5.17)
где:
На - годовая норма амортизационных отчислений (10%)
Соб
- стоимость оборудования, (руб.)
Примечание:
Расчет стоимости основных производственных фондов.
а)
Стоимость помещения
, руб.
(5.18)
где
V- объем ремонтной мастерской;
Цп-
цена одного кубического метра в рублях, (95000 руб.)
руб.
б)
Стоимость оборудования (принимаем 55 % от стоимости здания).
, руб.
(5.19)
руб.
в)
Стоимость инструмента и приспособлений (принимаем 8% от стоимости здания)
, руб.
(5.20)
руб.
г)
Стоимость инвентаря (принимаем 4% от стоимости здания)
, руб.
(5.21)
руб.
д)
Итого стоимость основных производственных фондов
, руб.
(5.22)
руб.
руб.
Расчет
затрат на ремонт оборудования (2,5%)
, руб. (5.23)
руб.
В
том числе 50% - затрат на зарплату, 50% - на материалы.
, руб.
(5.24)
руб.
Итого
затрат на эксплуатацию и содержание оборудования
, руб.
(5.25)
руб.
.2.2
Расчет общепроизводственных и общехозяйственных расходов
В
статью общепроизводственных и общехозяйственных расходов включается;
затраты
по оплате труда руководителей, специалистов и МОП ремонтной мастерской;
затраты
по оплате труда вспомогательным рабочим;
амортизационные
отчисления;
затраты
на охрану труда и мероприятия по энергосбережению;
расходы
по содержанию здания, инвентаря, инструментов и приспособлений;
расходы
на хозяйственные нужды (отопление, освещение и т.д.);
прочие
затраты.
Затраты
на освещение
, руб.
(5.26)
где:
F - площадь помещения;
Нос
- годовой фонд работы освещения установок, (962 ч.);- норма расхода
электроэнергии на 1 м2, (14 кВтч/м2 );
Псм-
число смен работы ,(1);
Цэ
- цена 1 кВт. ,(227,2руб.)
руб.
Затраты
на холодную и горячую воду
, руб.
(5.27)
где:
g- норма расхода воды на 1-го рабочего (холодная 25л; горячая 40л.);
Цв
- цена одного 1 м2 воды (горячей 4538 руб.; холодная 2275 руб)
руб.
Затраты
на отопление
, руб.
(5.28)
где:
V - объем помещения;
Нt
- норма расхода условного топлива, Нт = 8 кг/м3;
Цт
- цена 1т условного топлива, Цт = 605000 руб.;
М
- длительность относительного сезона, М = 4 месяца.
руб.
Затраты
на содержание помещения (2% от стоимости помещения)
, руб.
(5.29)
,руб.
В
том числе 50% -на материалы, 50%- на зарплату.
Расчет
амортизационных отчислений
а)
По помещению
, руб.
(5.30)
где
Нзд - норма амортизационных отчислений по помещению (3,3%)
руб.
б)
По инвентарю
, руб.
(5.31)
где
Ни - норма амортизационных отчислений по инвентарю (9 %)
руб.
в)
По инструментам и приспособлениям
, руб.
(5.32)
где
Нип - норма амортизационных отчислений по инвентарю и приспособлениям(16,67%).
руб.
Затраты
охрану труда и мероприятия по энергосбережению
, руб.
(5.33)
где
Нохр.эн. - норма затрат на охрану труда и мероприятия по энергосбережению (8%
от прямых затрат)
руб
Расчет
начислений на зарплату
, руб.
(5.34)
руб.
Прочие
общепроизводственные и общехозяйственные расходы, включая налоги относимые на
себестоимость работ, экологический налог, налог на землю,( 3%)
, руб.
(5.35)
Итого
общепроизводственных расходов
, руб.
(5.36)
Итого
накладных расходов
НР=Зэс+Зобщ,
руб. (5.37)
НР=3425735,61+19499708,75=
22925444,36 руб.
Таблица
15 - Смета затрат на производство ремонтных работ
|
Статьи затрат
|
Сумма, тыс. руб.
|
|
1.Материальные затраты
|
27370922,35
|
|
2.Расходы на оплату труда
|
13641471
|
|
3.Отчисление на социальное
страхование
|
5614463,41
|
|
4.Амортизация
|
8762492
|
|
5.Прочие затраты
|
567952
|
|
Итого:
|
55957300,76
|
Заключение
При выполнении дипломного проекта можно сделать вывод, что в настоящее
время не одно управление не может обходиться без участка по ремонту топливной
аппаратуры , так как к ремонту топливной аппаратуры предъявляются очень жесткие
требования.
В результате расчетов годовой производственной программы определили
количество технических обслуживании и ремонтов дорожных машин и подвижного
состава. Определили трудоемкость работ технических обслуживаний и ремонтов по
участку.
Рассчитали площадь отделения и она составила 56 м2. На данной площади
будет работать один слесарь, он проводит работы на участке, а также проверять
работоспособность аппаратуры на машине (т.е не снятые).
После проектирования участка были установлены: стенд для обкатки
топливных насосов высокого давления стенд для испытания топливной аппаратуры
стенд для разборки-сборки топливной аппаратуры, стенд для проверки форсунок а
также организационная оснастка. Предложены требования к предлагаемому участку
мероприятия техники безопасности, пожарной безопасности и охраны труда.
Выполнена технологическая карта на проверку и регулировку приводов
дроссельной заслонки карбюратора К-88А спецмашины ПМ-52 .
Предложена конструкторская часть в виде устройства для напрессовки и
снятия детали с вала.
В экономической части дипломного проекта была рассчитана заработная плата
основных рабочих в отделении, которая составила 948000. Также были рассчитаны
затраты на материалы и запчасти предприятия и другие экономические показатели
В процессе выполнения дипломного проекта была изучена и проанализирована
работа ремонтно-механической мастерской на предприятии МСУ-4 РУП «Мостострой».
В результате разработано участок по ремонту топливной аппаратуры, с целью
эффективности работы и улучшения качества ремонта на предприятии.
Литература
1. ‹‹Указания
по организации и проведению технического обслуживания и ремонта дорожных
машин›› ВСН 6-79, М. ‹‹Транспорт ››, 1980, 136 с.
.
Рекомендации по организации технического обслуживания и ремонта строительных
машин. ЦНИИМТП.- М.: 1993.-92 с.
3. Справочник
проектировщика «Внутренние санитарно-технические устройства» под редакцией И.Г.
Староверова, часть II «Вентиляция и
кондиционирование воздуха», М, «Стройиздат», 1977, 502с.
4. В.П.
Карташов ‹‹ Технологическое проектирование автотранспортных предприятий ››, М.,
‹‹Транспорт ››, 1988, 171 с.
. Н.Е.
Дроздов ‹‹ Строительные машины и оборудование, курсовые и дипломные
проектирования ››, М., ‹‹ Стройиздат ››, 1988, 191 с.
. Авторское
свидетельство. 846262 RU,
МПК7 В25 В27/02 Устройство для напрессовки и снятия детали/Ф.Г.Ганин,
А.Г.Творогов, А.А.Митюков, Р.А.Акчурин, В.Г.Пугин (RU).-№2003119085/03 заявл. 24.06.2003; опубл. 10.03.2005,
Бюл.№7.-7с:ил.
. Г.И.
Зеленков ‹‹ Проектирование предприятий по ремонту дорожностроительных машин››,
М., ‹‹Высшая школа ››, 1971, 240 с.
. «Справочник
молодого машиниста экскаватора», М., «Высшая школа», 1988, 320с.
. К.М. Холин,
О.Ф.Никитин «Основы гидравлики и объёмные гидроприводы», М., «Машиностроение»,
1989, 264с.
. Л.И.
Новичихин «Справочник по техническому черчению», Мн., «Книжный дом», 2004,
320с.
11. Б.В.
Стрюков «Экономика, организация планирования эксплуатации и ремонта Д.М», М.,
1984, 246с.
12. В.Я.
Хрипачь «Экономика предприятия», Мн., «Финансы, аудит и учет», 1997, 310с.