Проектирование вентиляции и освещения зоны ремонта двигателей

  • Вид работы:
    Контрольная работа
  • Предмет:
    Строительство
  • Язык:
    Русский
    ,
    Формат файла:
    MS Word
    108,86 Кб
  • Опубликовано:
    2012-11-09
Вы можете узнать стоимость помощи в написании студенческой работы.
Помощь в написании работы, которую точно примут!

Проектирование вентиляции и освещения зоны ремонта двигателей

Расчет освещения производственных помещений. Естественное освещение

освещение вентиляция производственный

В соответствии с заданием выбираем систему освещения. При ширине

помещения В< 6 м можно принять боковое одностороннее освещение, при В =6... 12 м - боковое двустороннее, при В >12 м- верхнее.

При ширине до 18 м можно ограничиться однопролетным фонарем, при большей ширине принимаем два и более пролета.

Расчет сводится к определению площади остекления окон или фонарей.


гдеF0- площадь окон, м2;площадь пола помещения, м2;мин норма освещения,%

η0 - световая характеристика окна;

 - коэффициент светопропускания оконного проема;

 - коэффициент, учитывающий свет, отраженный от стен и потолка.

Площадь помещения определяется в соответствии с заданием:S= L ∙Вn

гдеL- длина помещения, м., Вn - ширина помещения, м.

Норма освещения при естественном освещении оценивается коэффициентом естественной освещенности, при боковом освещении минимальным, при верхнем - средним.


гдеЕbn - освещенность внутри помещения;

ЕH - наружная.

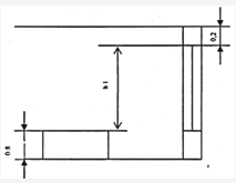
Норму освещения находим по табл. 1.5 приложения. Световая характеристика окна находится по табл. 1.6 приложения, в зависимости от двух отношений:  и, гдеL- длина помещения, В -глубина освещения, равная при одностороннем освещении ширины помещения Вn, при двухстороннем В = 0,5 Вn- расстояние от верхней кромки окна до рабочей поверхности. Высота рабочей поверхности условно принимается равной 0,8 м, минимальное расстояние от верхней кромки окна до потолка - 0,2 м. Отсюдаh1max= Н - 0,8 - 0,2 =H- 1 м, где Н - высота помещения.

Рис.

Световая характеристика окна принимается по табл. 1.7 приложения. Коэффициент принимаем по табл. 2.1 в зависимости от коэффициента отражениярср, который находится как взвешенное среднее по всем отражающим поверхностям


Величины pi для разных поверхностейвежепобеленных стен      -0,7

панели светло-голубые, желтые     -0,4

// - синие, коричневые  -0,3

оштукатуренные поверхности        -0,15

свежевыпавший снег    -0,98

окраска белилами -0,75...0,80

Определив общую площадь остекления окон, находим количество

окон:


где  - площадь одного окна, м2, равная h0•b0; высота окна h0определяется величинойh1,которой мы задались ранее. Ширину окнаb0задаем произвольно. Затем оцениваем реальность полученных результатов.

Необходимо, чтобы окна вместились в длину стены h при одностороннем освещении или 2hпри двустороннем. Находим суммарную ширину остекления bост =b0-n. Должно быть выполнено условие: bост<Lилиbост< 2L.

Для обеспечения равномерности освещения величина простенков между окнами не должна превышать 3 м, то есть

Если эти условия не выполняются, то изменяем величину h1 и повторяем расчет.

Площадь остекления фонарей находится по формуле аналогичной (1):

(3)

Определив общую площадь остекления, находим высоту остекления фонаряhocm.

, гдеn - число пролетов.

Задача 1

Рассчитать естественное освещение в помещении ремонта двигателей размерами:

= 10 м; В = 10 м;H= 8 м.

Выбираем боковое двустороннее освещение. Находим общую площадь остекления оконF0по формуле (1):

= 10• 10 = 100 м2;

Норму освещенностиeмин принимаем по табл. 1.5 по сборке двигателейeмин = 2.

Величинуh0выбираем по табл. 1.6 из условий

η0=15.

Коэффициентk находим по табл. 5 из условийLn= 10 м;hk= 7;k = 1,3. Коэффициентτ0выбираем по табл. 1,7. Для вертикальных окон с двойным остеклением и деревянными переплетамиτ0= 0,25.

По табл. 1.8 находим коэффициент из условий:

1=1,9

Площадь окон =8,21

ƒ0=33=9 м2

число окон =1 окно.

Величина простенков не превышает 3 м, условие равномерности освещения выполняется.

Рассчитать искусственное освещение для помещения ремонта двигателей размерами:

= 10 м, B=10м,Н=8 м.

Количество ламп определяем по формуле (6)

=10 ∙ 10= 100 м2.

Е - 300 лк по табл. 1.5.

К = 2 для ламп накаливания или ДРЛ

Расстояние между светильниками выбираем в зависимости от распределения силы света, высоты подвеса светильника и строительных особенностей помещения. Применяем размещение светильников по вершинам прямоугольников (прямоугольное). Найвыгоднейшее расположение светильников определяем для равномерного светораспределения светильника λ=2. Расстояние от стен принимаем l=1м

Высоту подвеса принимаем максимальной, Нn = 8 - 0,8 - 1,2 = 6 м.

ηсвыбираем по табл. 1.10для индекса помещения

ηс=0,45.:hn- 1; отсюдаz= 1,053.

ламп

Рассчитываем световой поток Фл (лм), который должна излучать каждая электрическая лампа:


Расстояние между светильниками l = 2 м, l< 1,4 Нn. Условие равномерности освещения выполняется.

По расчетному световому потоку подбираем из таблицы ближайшую стандартную лампу - ДРЛ 250.


По энергоисточнику системы вентиляции делятся на естественную, механическую и смешанную. По способу организации - на общеобменную и местную; по назначению - на приточную, вытяжную и комбинированную. В рамках РГЗ № 2 мы будем рассматривать общеобменную естественную вытяжную и механическую приточную вентиляции. В отдельных помещениях - сварочном, кузнечном, наплавочном участках - будет применяться местная вытяжная механическая вентиляция. Во всех помещениях при любых условиях предусматриваются форточки. Общая площадь форточек принимается до 2% от площади помещения, но обычно не превышает 1%, так чтоFфор= 0,1 S , количество форточек .

Стандартный размер одной форточки ƒ=0,4∙0,6=0,24 м2.

Естественная вытяжная вентиляция

Естественная вытяжная вентиляция может быть беструбной или трубной. В помещениях, имеющих фонари, в качестве вытяжных проемов используются фрамуги, в остальных - вытяжные трубы. Расчет сводится к определению приемной площади фрамуг или сечения труб. Исходной величиной является воздухообмен или производительность вентиляции, Lм7ч.

Расчет воздухообмена может производиться по количеству вредных факторов - паров, пыли, влаги, тепла по общей формуле

м3

где К - количество ВПФ, мг/ч;

К1 - ПДК, мг/м3;

К2 - содержание ВПФ в приточном воздухе, мг/м3.

В тех случаях, когда имеется несколько факторов и неизвестно точно их количество, используют коэффициент кратности воздухообмена


гдеV- объем помещения, м3.

Таблица 2.1

Участок

K1

Станочный

1,5

Зона техническогоского обслуживания

2

Зона ремонта двигателей

2

Разборочно-моечный участок

2,5

Цех текущего ремонта тракторов

3

Участок ремонта топливной аппаратуры

3

Участок ремонта ходовой части

3

Зона мойки

4

Кузнечно-сварочный участок

5

Сварочно-наплавочный участок

6

Участок окраски

6...7

Участок зарядки аккумуляторов

10


Определив воздухообмен, находим площадь сечения вытяжных отверстий фрамуг или труб.

=

где v- скорость движения воздуха в приемном отверстии фрамуги или трубы, м .

Скорость движения воздуха рассчитывается либо по тепловому, либо по ветровому напору. В первом случае


где - коэффициент, учитывающий сопротивление воздуха в выходном сечении (для труб  = 0,5. для фрамуг = 0,22);-ускорение свободного падения(g= 9,8 м/с2);расстояние между входными и выходными отверстиями по вертикали или длина трубы, м;

- плотность входящего и выходящего воздуха, определяется его

температурой t°C


Естественную вентиляцию рассчитывают по переходному периоду времени года, когда температура наружного воздухаtH колеблется от 0 до + 10°С.

Когда тепловой напор недостаточен или требуется повышенная надежность вентиляции, используют дефлекторы-насадки на вытяжные трубы, создающие дополнительную тягу за счет обдувания корпуса дефлектора ветром. В этом случае


гдеКэ - коэффициент эффективности дефлектора (Кэ = 0,42);средняя скорость ветра (принимается не менее 4 м/с).

Определив общую площадь сечения вытяжных каналов, находят их количество


Площадь фрамуг должна быть ƒфр ≥0,5 м2 .

Площадь труб определяют, задавшись их диаметром

Механическая вентиляция

Механическая вентиляция осуществляется с помощью вентиляторов, которые делятся на осевые и центробежные. В осевых вентиляторах направление движения воздуха совпадает с направлением оси вращения рабочего колеса. Эти вентиляторы могут иметь значительную производительность, но не создают большого давления (напора). Наиболее распространены осевые вентиляторы серии МЦ.

Центробежные вентиляторы могут создавать значительный напор, поэтому применяются при наличии протяженных и разветвленных сетей- воздуховодов. Наиболее распространены серии ЭВР и Ц4-70.

Вентиляторы характеризуются: частотой вращенияn,1/мин; к.п.д.., η;производительностьюQ,м3/ч; напоромН кг/м2 (мм.в. ст.) или Па (1 мм. в. ст. = 10 Па); номером, который означает диаметр рабочего колеса в дм.

Производительность приточной вентиляции Lnpсоставляет до 90% от вытяжной


В объем вытяжной вентиляции входит также производительность местной вентиляции. Определяется она либо по формуле (1), либо по сечению вытяжного устройства

= 3600Fvм3/ч.

Так, стандартный боковой отсос от сварочного стола имеет размеры 0,65x0,75 м, от кузнечного цеха, примыкающего к стене 2x1,5 м, расположенного в углу - 1,5x1,5 м, открытого с 4-х сторон - 2x2 м. При наплавке применяют щель высотой 0,3 м., длина зависит от длины наплавляемой детали. Скорость движения воздуха в приемном отверстии зонта v≤0,2 м/с, отсосов при сварке и наплавке - v= 0,9... 1,25 м/с.

По вычисленной производительности подбирают вентилятор по графику (см. приложение).

При наибольшей протяженности воздуховодов достаточно напора до 50 мм.в. ст., при значительной - 50...150 мм. в. ст. Больший напор в помещениях Агропрома, как правило, не применяется. Далее рассчитываем мощность двигателя


где L- воздухообмен, м3/ч;

ηB - к.п.д. вентилятора (по графику);

- к.п.д. передачи (если частота вращения и двигателя совпадают, то

где α - коэффициент запаса.

При N < 0,5 кВт а = 1,5

0,5...11,4

1...21,3

2...51,2

> 5 1,1

Затем по таблице приложения подбирается двигатель.

Задача 1.

Рассчитать естественную вытяжную вентиляцию для зоны ремонта двигателей размерами: L- 10 м; В = 10 м; Н= 8 м.

Выбираем трубную систему вентиляции. Площадь сечения труб по формуле (2).


Воздухообмен считаем по кратности

= 2∙10∙10∙8 = 1600 м3/ч.

Скорость движения воздуха рассчитываем по формуле (5). Выбираем дефлектор конструкции ЦАГИ,Кэ = 0,40.

Скорость ветра принимаемve= 4 м/с.

Тогда v= 0,40∙4 = 1,6 м/с.

м2

Выбираем трубы диаметром 0,35 м.

м2

Число труб = 2трубы.

Похожие работы на - Проектирование вентиляции и освещения зоны ремонта двигателей

 

Не нашли материал для своей работы?
Поможем написать уникальную работу
Без плагиата!
Без нейросетей!