Проект лесопильного цеха на базе двухэтажных лесопильных РАМ 2Р75
Содержание
Введение
. Обоснование проекта
. Технологические расчеты
.1 Выбор режимов сушки
.2 Расчет продолжительности сушки и
оборота камеры
.3Перевод объема подлежащих сушке
пиломатериалов в объем условного пиломатериала
.4 Расчет годовой производительности
на условном материале
.5 Расчет потребного количества
сушильных камер
. Тепловой расчет камеры
.1 Выбор расчетного материала
.2 Определение параметров агента
сушки на входе в штабель
.3 Расчет количества испаряемой
влаги
.4 Определение объёма циркулирующего
агента сушки и его параметров на выходе из штабеля
.5 Расчёт приточно-вытяжных каналов
.6 Расчёт расхода тепла на сушку
.7 Выбор и расчёт калориферов
. Аэродинамический расчет
.1 Составление схемы циркуляции
агента сушки с выявлением участков сопротивления
.2 Расчёт площадей участков
сопротивлений и скоростей агента сушки на этих участках
.3 Расчет сопротивлений участков
.4 Выбор типа и номера вентилятора,
расчет мощности вентилятора
.5 Подбор электродвигателе
. Описание технологического процесса
сушке
.1 Транспортировка сырых
пиломатериалов в сушильный цех
.2 Формирование сушильных штабелей
.3 Транспортировка сушильных
штабелей внутри цеха. Применяемое
оборудование
.4 Описание конструкции камеры
.5 Этапы процесса сушки
пиломатериалов
.6 Контроль и регулирование
параметров агента сушки
.7 Показатели качества сушки и
методы их контроля
Заключение
Курсовой проект
Воронина А.С. Проект сушильного цеха на базе
сушильных камер СПМ-1к с годовым объемом сушки 10500 м3: КЛПК. 042
000. 220 ПЗ: Курсовой проект / КЛПК, рук. Кибешев - Киров, 2012.- Гр.ч. 1л.
фА1; ПЗ, рис2, табл. 10, прил. 1, источников 7.
ГИДРОТЕРМИЧЕСКАЯ ОБРАБОТКА ДРЕВЕСИНЫ. СУШИЛЬНЫЕ
КАМЕРЫ И СУШИЛЬНЫЙ ЦЕХ.
Объект исследования и разработки - сушильные
камеры и сушильные цеха.
Цель работы - разработка проекта сушильного цеха
с камерами СПМ-1к и годовым объемом сушки 10500 м3.
В сушильном цехе высушиваются пиломатериалы
следующих пород: сосна, лиственница, осина, клен. Сушка пиломатериалов
производится режимами: нормальный Н (все). Категории качества сушки:0,II,III,I
. Из высушенных пиломатериалов изготавливаются следующие изделия: мебель
массив, карандаши, тара, двери массив.
Годовая производительность сушильной камеры на
условном материале составляет 2717,5 усл. м3/ год. Потребность
сушильных камер для сушки годового объема пиломатериала составляет 6 камер.
Введение
Сушкой называется процесс удаления влаги из
различных материалов путём испарения.
Сушка пиломатериалов широко распространена в
отраслях народного хозяйства, в том числе и деревообрабатывающей
промышленности. Она является энергоёмким процессом, связанным со значительным
расходом топлива, пара, а также электроэнергии.
Основным способом удаления влаги из древесины
является сушка.
В основном древесины сушат в виде пиломатериала
(досок, брусьев, заготовок), шпона (тонколистового материала),щепы, стружки и
волокна. Некоторое распространение имеет сушка круглых лесоматериалов (детали
опор линий электропередачи, связи, строительные детали).
В результате сушки древесина из природного сырья
превращается в промышленный материал, отвечающий самым разнообразным
требованиям, которые предъявляются к нему в различных производственных и
бытовых условиях. При снижении влажности древесины улучшаются её
физико-механические и эксплуатационные свойства. Древесина ,содержащая большое
количество влаги ,легко поражается грибами , в результате чего она загнивает.
Сухая же древесина отличается большой стойкостью. Понижение влажности древесины
приводит к снижению её массы и одновременному повышению прочности. Сухая
древесина в отличии от сырой хорошо склеивается ,хорошо подвергается отделке.
Таким образом ,древесины высушивают с целью:
предупреждения размеро- и формоизменяемости деталей; предохранения от порчи и
загнивания; увеличения удельной прочности; повышение качества отделки и
склеивания.
Сушка древесины - неотъемлемая операция в
подавляющем большинстве технологических процессов деревообработки . Её значение
для народного хозяйства трудно переоценить. Некачественная сушка приводит к
резкому сокращению срока службы деревянных конструкций и изделий ,значительным
потерям материала при транспортировании, а в конечном итоге- к громадному
перерасходу древесины.
В программных документах и постановлениях ЦК
КПСС пред деревообрабатывающей промышленностью страны поставлена задача
значительно увеличить производство продукции лесной, деревообрабатывающей и
целлюлозно-бумажной промышленности без существенного расширения объёма
лесозаготовок. Ля этого необходимо рационально использовать лесосырьевые
ресурсы, повысит качество изготовляемой из неё продукции.
Частным решением поставленной задачи является
обязательная сушка всех вырабатываемых пиломатериалов. Для этого
предусматривается постоянно увеличивать сушильные мощности путём строительства
новых и модернизации действующих сушилок ,разработки и внедрения оптимальных
режимов сушки, автоматизации сушильных процессов.
Технологические процессы сушки и применяемое
оборудование специфичны и достаточно сложны. Правильная организация и
проведение сушки древесины невозможны без специальных знаний и высокой
квалификации операторов сушильных установок.
. Обоснование проекта
В курсовом проекте разработан сушильный цех с
камерами СПМ-1к и годовым объемом сушки 10500 м3. Сушильные камеры
обеспечивают годовой объем сушки по производительности и высокое качество сушки
за счет использования в камерах пластинчатых калориферов и
высокопроизводительных осевых вентиляторов, обеспечивающих хорошую циркуляцию
сушильного агента.
Контроль, управление и регулирование процессом
сушки в сушильных камерах должен быть автоматизированным. Управляющие
воздействия должны вырабатываться ЭВМ. Размер сушильного цеха определяется
исходя из размеров сушильной камеры и заданного качества сушки. В сушильном
цехе должны быть предусмотрены все необходимые бытовые помещения, которые
обеспечивают хорошую работу сушильного цеха.
. Технологические расчеты
.1 Выбор режимов суши
Режима сушки выбираются в зависимости от
категории качества и назначения пиломатериалов. Сушка производится в камерах
периодического действия, следовательно, режимы сушки выбираются по ГОСТ
19773-84 (1).
Номер и индекс режима сушки должны
соответствовать категориям качества, размерами пиломатериалов, начальной и
конечной влажности.
Существуют 4 режима сушки: мягкий М, нормальный
Н, форсированный Ф, высокотемпературный ВТ.
Мягким режимом сушки сушатся пиломатериалы для
ответственных изделий, не допускающие изменения цвета и снижения прочности.
Нормальными режимами сушатся материалы, допускающие незначительное изменение
цвета, при сохранении прочности. Форсированными режимами сушатся пиломатериалы,
допускающие незначительное снижение прочностных характеристик и изменение
цвета.
На основании вышесказанного, произведем выбор
режимов сушки для заданных пиломатериалов.
Выбранные режимы сушки и их параметры сводятся в
таблице 1.
Таблица 1 - Режимы сушки пиломатериалов
|
Порода
|
Толщина,
мм
|
Номер
и индекс режима
|
Номер
степени
|
Изменение
влажности на каждой степени, %
|
Параметры
сушки
|
|
|
|
|
|
t, °C
|
Dt,
°C
|
j
|
|
1
|
2
|
3
|
4
|
5
|
6
|
7
|
8
|
|
Сосна
|
50
|
I
|
1
2 3
|
>35 35-25 <25
|
55
58 75
|
4
7 24
|
0,81 0,69
0,30
|
|
Лиственница
|
16
|
I
|
1
2 3
|
>35 35-25 <25
|
70
75 80
|
9
15 26
|
0,64
0,49
0,28
|
|
|
Осина
|
70
|
I
|
1
2 3
|
>35 35-25 <25
|
56
59 77
|
3
6 22
|
0,84 0,73 0,34
|
|
|
Клен
|
19
|
I
|
1
2 3
|
>35 35-25 25-20 20-15 <15
|
57
61 83 77 77
|
4
6 24 22 22
|
0,81
0,74 0,34 0,34 0,34
|
|
|
|
|
|
|
|
|
|
|
|
|
|
|
|
.2 Расчет продолжительности сушки и оборота
камеры
Так как камера УЛ-2 является периодического
действия, а выбранные ранее режимы сушки низкотемпературные, то
продолжительность сушки определяется по формуле
τсуш =
τисх*АР Ац
Ав А кАд , (1)
где τисх
-
исходная продолжительность сушки пиломатериалов заданной породы и размеров,
нормальным режимом сушки, от начальной влажности 60% до конечной 12% в камерах
с реверсивной циркуляцией, средней интенсивности;
АР - поправочный коэффициент на режим
Ар=1,7-М, Ар=1,0-Н, Ар=0,8-Ф;
Ац - поправочный коэффициент на
циркуляцию;
Ав - поправочный коэффициент на
влажность;
Ак - поправочный коэффициент на
качество сушки Ак=1,2-I,
Ак=1,15-II,
Ак=1,05-III,
Ак=1,0-О;
Ад - поправочный коэффициент на длину
штабеля, для пиломатериалов Ад=1.
Продолжительность оборота камеры τоб,
сут, определяется по формуле
, (2)
где
- продолжительность разгрузки и
загрузки камеры,
=0,1 сут.
Результаты расчетов
продолжительности сушки и оборота камеры для фактического и условного материала
приведены в таблице 2.
.3 Перевод объема подлежащих сушке
пиломатериалов в объем условного пиломатериала
Учет и планирование работы сушильных
камер принято вести в м3 условного материала. Под условным
материалом принимают сосновые обрезные доски толщиной 40мм шириной 150 длиной
не более 1м II категория
качества высушиваемого от Wн=60% до Wк=12%.
Объем пиломатериала подлежащего сушке
Фi, м3
переводится в объем условного пиломатериала Уi, м3
по формуле
Уi=Фi·Кτ·КЕ
, (3)
где Кτ -
коэффициент продолжительности оборота камеры;
КЕ - коэффициент
вместимости камеры.
Таблица 2 - Расчет продолжительности
сушки и оборота камеры
|
Характеристика
пиломатериалов
|
Категория
качества
|
Номер
режима
|
τисх,ч
|
Коэффициенты
|
τсуш
|
τоб
|
|
Порода
|
Толщина,
мм
|
Ширина,
мм
|
Влажность
|
|
|
|
|
|
|
|
|
|
Wн
|
Wк
|
|
|
|
Ар
|
Ац
|
Ак
|
Ав
|
Ад
|
ч
|
сут
|
сут
|
|
1
|
2
|
3
|
4
|
5
|
6
|
7
|
8
|
9
|
10
|
11
|
12
|
13
|
14
|
15
|
16
|
|
Сосна
|
50
|
100
|
65
|
12
|
III
|
Н
|
101
|
1
|
0,79
|
1,05
|
1,05
|
1
|
88
|
3,6
|
3,8
|
|
Лиственница
|
16
|
150
|
60
|
14
|
II
|
Н
|
70
|
1
|
0,72
|
1,15
|
0,91
|
1
|
53
|
2.2
|
2,3
|
|
Осина
|
70
|
100
|
70
|
8
|
II
|
Н
|
253
|
1
|
0,72
|
1,05
|
1,35
|
1
|
348
|
14,5
|
14,6
|
|
Клен
|
19
|
130
|
35
|
6
|
I
|
Н
|
73
|
1
|
0,97
|
1,2
|
1,38
|
1
|
87
|
3,6
|
3,7
|
|
Усл.материал
|
40
|
150
|
60
|
12
|
II
|
Н
|
88
|
1
|
0,76
|
1,15
|
1
|
1
|
76,9
|
3,2
|
3,3
|
Коэффициент продолжительности оборота камеры
определяется по формуле
. (4)
Коэффициент вместимости камеры КЕ
вычисляется по следующей формуле
, (5)
где Еусл - вместимость
камеры на условном материал, м3;
Еф - вместимость камеры
на материале заданной характеристики, м3;
βусл - объемный
коэффициент заполнения штабеля условным материалом;
βф - объемный
коэффициент заполнения штабеля фактическим материалом.
Объемный коэффициент заполнения
штабеля β,
определяется
по формуле
(6)
где βд, βш, βв - линейные
коэффициенты заполнения штабеля по его длине, ширине и высоте.
Коэффициент βд
определяется по формуле
(7)
и для пиломатериалов длиной 6,5
метров принимается равный 1.0, а для условного материала равный 0.85.
Коэффициент заполнения по ширине βш в случае
укладки обрезных пиломатериалов без шпаций принимается равный 0.9 для
фактического и условного пиломатериала.
Коэффициент заполнения по высоте βв
определяется по формуле
, (8)
где S - толщина
фактического или условного пиломатериала, мм;
Sпр - толщина
прокладки, Sпр=25мм.
Перевод объема фактического
пиломатериала в объем условного пиломатериала приведен в таблице 3.
Таблица 3 - Перевод фактического
пиломатериала в условный
|
Характеристика
материала
|
Продолжительность
оборота камеры, сут
|
Коэффициенты
|
Объем
пиломатериала, м3
|
|
Порода
|
Толщина
|
Ширина
|
τоб.ф
|
τоб.усл
|
Кτ
|
βф
|
βусл
|
КЕ
|
Фi
|
Yi
|
|
1
|
2
|
3
|
4
|
5
|
6
|
7
|
8
|
9
|
10
|
11
|
|
Сосна
|
50
|
100
|
3,8
|
3,3
|
0,35
|
0,56
|
0,44
|
0,27
|
4500
|
425,3
|
|
Лиственница
|
16
|
150
|
2,3
|
3,3
|
0,21
|
0,33
|
0,44
|
1,15
|
1750
|
422,6
|
|
Осина
|
70
|
100
|
14,6
|
3,3
|
1,33
|
0,62
|
0,44
|
0,85
|
2250
|
2543,6
|
|
Клен
|
19
|
130
|
3,7
|
3,3
|
0,34
|
0,43
|
0,44
|
0,86
|
2000
|
584,8
|
Итого:∑3976,3м3
.4 Расчет годовой производительности камер на
условном материале
Нормативная годовая производительность камеры
УЛ-4 на условном материале Пусл, м3 усл/год, вычисляется
по формуле
, (9)
где 335 - плановая продолжительность
работы камеры в течении календарного года с учетом необходимости их
периодического ремонта, сут;
Г - габаритный объем всех штабелей в
камере.
, (10)
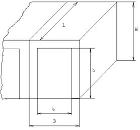
где L,B,H -
габаритные размеры штабеля, м, L=6,5; B=1,8; H=2,6;
Таким образом
,
В соответствии с расчетами камера
СПМ-1к в течение года способна высушить 2717,5 м3 условного
пиломатериала в год.
.5 Расчет потребного количества
сушильных камер
Потребное количество камер n , шт,
рассчитывается по формуле
(11)
В дальнейшем расчете принимаем 6
сушильных камер СПМ-1к
С процентом загрузки 92%.
. Тепловой расчет камеры
Цель теплового расчета состоит в
определении затрат тепла и расхода
пара на сушку древесины, выборе и
расчете теплового оборудования камер.
.1 Выбор расчетного материала
За расчетный материал принимаем
самый быстросохнущий материал по заданной спецификации (Таблица 2), то есть тот
у которого продолжительность оборота камеры имеет наименьшее значение. В данном
курсовом проекте за расчетный материал принимается сосновый пиломатериал.
.2 Определение параметров агента
сушки на входе в штабель
Для камеры СПМ-1к в соответствии с
выбранными режимами сушки (Таблица 1) в качестве сушильного агента принимается
влажный воздух.
В соответствии с выбранными, для
расчетного материала, режимом сушки принимаются параметры агента сушки на входе
в штабель: температура t1,оС
и степень насыщенности φ1. Данные
параметры для камер периодического действия берутся по второй ступени выбранного
режима.
Основные параметры характеризующие
состояние агента на входе в штабель определяется по id диаграмме.
На оси температур находим начальную
температуру t=58oC и движемся
по линии изотермы то пересечения с кривой степени насыщенности φ=0,69 и ставим
точку А. В данной точке будем определять все остальные необходимые параметры.
Двигаясь из точки А по вертикальной прямой вверх до пересечения с осью давлений
мы определяем парциальное давление Р=52Па.Движемся вновь из точки А вниз до оси
влагосодержания и определяем влагосодержание d=90г/кг.
Движемся из точки А по линии энтальпии до степени насыщенности воздуха φ=1 и
определяем теплосодержание I=286кДж/кг. Аналогично по этой же
диаграмме определяем плотность ρ=0,995 и удельный объем V=0,99 м3/кг.
Значения всех параметров агента
сушки на входе в штабель приведены в таблице 4.
Таблица 4 - Значение параметров
агента сушки на входе в штабель
|
Наименование
|
Обозначение
|
Единица
измерения
|
Значение
|
|
Температура
|
t1
|
оС
|
75
|
|
Степень
насыщенности
|
φ1
|
-
|
0,49
|
|
Влагосодержание
|
d1
|
г/кг
|
150
|
|
Теплосодержание
|
I
|
кДж/кг
|
478
|
|
Парциальное
давление пара
|
P1
|
кПа
|
20
|
|
Плотность
|
ρ1
|
Кг/м3
|
0,92
|
|
Удельный
объем
|
V1
|
м3/кг
|
1,95
|
.3 Расчет количества испаряемой влаги
Масса влаги испаряемой с кубометра древесины М1м3,
кг/м3 определяется по формуле
(12)
где ρб - базисная
плотность древесины, для ели ρб=400 кг/м3
Wн,Wк - начальная
и конечные влажности, %.
Масса влаги испаряемой за время
одного оборота камеры Моб, кг/об определяется по формуле
(13)
где β - объемный
коэффициент заполнения штабеля расчетным материалом (таблица 3)
Масса влаги испаряемая из материала
в секунду Мс, кг/с определяется по формул
(14)
где τ - продолжительность
сушки расчетного пиломатериала без учета продолжительности начального прогрева
и влаготеплообработки, ч.
Продолжительность сушки расчетного
материала без прогрева и ваготеплообработки определяется по формуле
, (15)
Таким образом масса влаги испаряемой
из материала в секунду равны
Расчет количества испаряемой влаги Мр,
кг\с определяется по формуле
(16)
где λ - коэффициент
неравномерности скорости сушки для камер периодического го действия равно 1,2
Мр=0,027· 1,3=0,0351
кг/с.
.4 Определение объема циркулирующего
агента сушки и его параметров на выходе из штабеля
Объем циркулирующего по материалу агента сушки Vшт,
м3\с,
определяется по формуле
(17)
где n -
количество штабелей в плоскости перпендикулярной направления воздуха в камере
СПМ-1к, n=1;
nмат - скорость циркулирующего по
материалу, принимая в технологическом расчете, n=2,5 м\с;
Sж.с.шт - площадь
живого сечения штабеля.
Для лесосушильных камер большинство
систем можно определить по выражению
(18)
Таким образом площадь живого сечения
штабеля равняется
,
Масса циркулирующего по материалу агента сушки в
секунду Gшт,
кг/c
определяется
по формуле
, (19)
Удельный расход циркулирующего агента сушки на 1
кг испаряемой влаги qшт,
кг/кг.вл, определяется по формуле
(20)
Тогда влагосодержание агента сушки на выходе из
штабеля d2,
г/кг, составит
(21)
Остальные параметры определяются по id
диаграмме на рисунке 2 и занесены в таблицу 5.
Таблица 5 - Параметры агента сушки на выходе из
штабеля
|
№
п/п
|
Наименования
|
Обозначения
|
Единица
измерения
|
На
входе На выходе
|
|
1
|
Температура
|
t2
|
°С
|
71
|
|
2
|
Степень
насыщенности
|
j2
|
−
|
0,61
|
|
3
|
Влагосодержание
|
d2
|
г/кг
|
152
|
|
4
|
Теплосодержание
|
I2
|
кДж/кг
|
476
|
|
5
|
Парциальное
давление
|
P2
|
кПа
|
20,25
|
|
6
|
Плотность
|
r2
|
кг/м3
|
0,93
|
|
7
|
Удельный
объем
|
u2
|
м3/кг
|
1,24
|
.5 Расчет приточно-вытяжных каналов
Удельная масса свежего и отработавшего воздуха q0,
г/кг определяется из выражения
(22)
где d0
− влагосодержание свежего воздуха, для случая установки камер
в цехе d0
= 10 … 12 г/кг
Объем свежего воздуха V0,
м3/кг и объем отработавшего воздуха V2,
м3/кг определяется по формулам
, (23)
, (24)
где v0
-
удельный объем свежего воздуха, при t0
= 20 0C
v0
= 0,85 . . . 0,87 м3/кг.
Площадь сечения вытяжного или приточного канала Sкан,
м2 определяется по формуле

, (25)
где w−
скорость движения воздуха по каналу w
= 3. . . 9 м/с,
(26)
Приточно-вытяжные каналы принимаются круглого
сечения, размер стороны определяется по формуле
(27)
3.6 Расчет расхода тепла на сушку
Расчет тепла на сушку складывается из затрат
тепла на прогрев материала, испарения из него влаги и на тепло потери через
ограждение камер.
Расход тепла на прогрев одного кубометра древесины
qпр. 1м3,
кДж/м3 определяется по формуле
(28)
где
−
затраты тепла на прогрев 1кг влажной древесины, кДж/м3;
− плотность
древесины клена при заданной начальной влажности
= 670 кг/м3.
Значение затрат тепла на прогрев 1кг влажной
древесины определяется по диаграмме / 3 / как сумма абсолютных теплосодержаний
древесины заданной начальной влажности при прогреве от температуры tнач.зим
= -310С для условий Кировской области до температуры материала,
определяемой температурой прогрева материала+1000С.
= 129 + 149 = 278
кДж/кг,
= 278·840=233520кДж/м3
Удельный расход тепла на начальный прогрев
древесины qпр.зим,
кДж/кг вл. определяется по формуле
, (29)
Расход тепла на прогрев древесины в камере в
секунду для зимних условий Qпр.зим,
кВт определяется по формуле
(30)
где τпр
- продолжительность начального прогрева древесины
= 4,4ч,
Удельный расход тепла на использование 1 кг
влаги qисп,
кДж/кг вл, при низкотемпературных процессов, определяется
по формуле
(31)
где I2, d2 −
тепло и влагосодержание отработавшего воздуха выбрасываемого из камеры
I0, d0 - тепло и
влагосодержание свежего воздуха поступающего в камеру, d0= 10…12г/кг,
I0=46кДж/кг;
Св - удельная
теплоемкость воды 4,19кДж/кг;
tкам -
температура агента сушки в камере, определяется как среднее значение температур
на входе и на выходе в штабеля, 0С.
Таким образом
(32)
Расход тепла в камере на испарение
влаги,Qисп,,кВт
определяется по формуле
(33)
Расчет потерь тепла через ограждение камеры
(крайней в блоке) в секунду Qогр.зим,
кВт выполняется для каждого ограждения отдельно по формуле
, (34)
где S - площадь
поверхности ограждения , м2;
К - коэффициент теплопередачи
данного ограждения, Вт/м2 ∙ 0С;
tкам-
температура агента сушки в камере, tкам = t1+t2/2;
tрасч - это
расчетная температура в не камеры для зимних условий, при расположении камеры
внутри цеха tрасч = 15…20 0С;
С- коэффициент увеличения
теплопотерь , С=2.
Для расчета теплопотерь составляем
схему приведенную на рисунке 3, а расчет потерь тепла сведен в таблицу 6.
Рисунок 3 - Схема расчета
теплопотерь в камере
Таблица 6 - Расчет потерь через
ограждения
|
Наименование
ограждения
|
Площадь
|
К1
Вт/м2* 0С
|
tкам oC
|
tрасч oC
|
tкам-
tрасч
oC
|
Qогр.зим кВт
|
|
Расчетная
формула
|
Значение
м2
|
|
|
|
|
|
|
1.Наружняя
боковая стенка
|
L*H
|
77,520
|
0,6
|
73
|
53
|
2
|
4,9
|
|
2.Торцовая
задняя стенка
|
B*H
|
25,398
|
0,6
|
73
|
53
|
2
|
1,6
|
|
3.Дверь
|
b*h
|
7,6
|
0,6
|
73
|
53
|
2
|
0,5
|
|
4.Торцовая
передняя стенка
|
B*H-b*h
|
17,798
|
0,6
|
73
|
53
|
2
|
1,13
|
|
5.Потолок
|
L*B
|
75,696
|
0,6
|
73
|
53
|
2
|
4,8
|
|
6.Пол
|
L*B
|
75,696
|
0,3
|
73
|
53
|
2
|
2,4
|
Итого: 15,3 кВт
Удельный расход тепла на потери через ограждения
qогр.зим,
кДж/кг вл., определяется по формуле
(35)
где Мр - массовый расход
влаги.
Таким образом суммарный удельный
расход тепла на сушку для зимних условий qзим, кДж/кг вл
равен
(36)
где С1 - коэффициент
учитывающий дополнительный расход тепла на подогрев оборудования периодически
охлаждаемых элементов ограждений С1=1,1….1,3
qзим=(976,25+2789+433,4)·1,3=5458
кДж/кг вл
.7 Выбор и расчет калориферов
Согласно технической характеристике
камеры СПМ-1к в ней установлено калориферы марки КФБ - 10П. Задачей данного
пункта является определение необходимого для исходных условий числа калориферов
и сравнения с установленным количеством.
Тепловая мощность калорифера, то
есть количество передаваемой им в единицу времени тепловой энергии Qк, кВт
определяется расходом тепла на сушку в единицу времени для зимних условий и
может быть записана выражением для камер периодического действия
(37)
где С2 - коэффициент
неучтенного расхода тепла на сушку, С2=1,1….1,3
Тогда потребная площадь поверхности нагрева
калорифера Sк.расч,
м2 определяется по формуле
(38)
где С3 - коэффициент запаса,
учитывающий загрязнение поверхности калорифера, для би металлических труб , С3
= 1,2; К - коэффициент теплопередачи калорифера, В/м2.град;
tт.н-
температура теплоносителя, при давлении в системе 0,4 МПа tт
=
144 0С;
tкам
- температура в камере.
Для определения коэффициента К в камерах с
принудительной циркуляцией необходимо знать скорость агента сушки проходящего
через калорифер
, м/с которую можно
подсчитать если известно площадь живого сечения калорифера Sжс.к,
м2 которую для пластинчатых калориферов можно определить по формуле
(39)
где Sжс.1к - живое
сечение одного пластинчатого калорифера, Sжс.1к = 0,558 ;
nк -
количество установленных калориферов в одном ряду перпендикулярном потоку
агента сушки пк=2
Тогда скорость циркуляции агента сушки через
калорифер
, м/с можно
определить по формуле
(40)
где
-
объем циркулирующего тепла сушки, который определяется по формуле
(41)
где
- коэффициент использования потока
сушильного агента характеризующий отношение количества агента сушки проходящего
сквозь штабель пиломатериалов к общему количеству циркулирующего в камере
агента сушки,
= 0,5 . . .
0,9
Для определения коэффициента теплопередачи
стандартного калорифера обогреваемого водой необходимо определить весовую
скорость в живом сечении равную произведению плотности агента сушки на входе в
штабель и скорость агента сушки проходящего через калорифер.
Далее по зависимости
K=14(ρ1·υкал)0,366,
(43)
То есть
К= 44,51Вт/м2·0С
Таким образом
После подсчета потребной площади
поверхности нагрева калориферов определяется требуемое количество компактных
калориферов nк, шт, по
формуле
(44)
где Sк -
поверхность нагрева одного компактного калорифера Sк=61,2 м2
Полученное значение округляем до
большего целого числа кратного двум а окончательное количество устанавливается
с учетом равномерного размещения в циркуляционных каналах в зависимости от
конструкции камеры. Тип и номер компактного калорифера подбираются так, чтобы
их количество было не меньше чем количество вентиляторов. Для данного случая
принимаем 6 калорифера марки КФБ -10П, что не соответствует установленным в
камере СМП-1к.
сушка пиломатериал
штабель
3.8 Определение расхода пара
Так как в камерах используются
низкотемпературные режимы сушки, то в качестве теплоносителя используется вода,
а это значит что пар тратится только на влаготеплообработку и прогрев
материала.
Максимальный часовой расход пара в
период прогрева Дпр.зим, кг/ч можно определить по формуле
(45)
где С4 - коэффициент
учитывающий потери тепла паропроводами и конденсатопроводами, С4=1,25
i - теплота
парообразования пара, i= 2202 кДж/кг
Часовой расход пара сушильным цехом
для среднегодовых условий Дцеха.зим, определяется по формуле
(46)
. Аэродинамический расчет камеры
Целью аэродинамического расчета
камеры является выбор номера и типа вентилятора, определение мощности
потребляемой вентилятором и установленной мощности электродвигателя и подбор
его марки.
.1 Составление схемы циркуляции
агента сушки с выявлением участков сопротивления
Схема циркуляции агента сушки с
выявленными участками сопротивлений его движения приведена на рисунке 4
Рисунок 4 - Схема циркуляции агента
с выявленными участками сопротивлений
Установленные участки сопротивлений
приведены в таблице 7
Таблица 7 - Участки сопротивлений
агента сушки
|
Номер
участка
|
Площадь
участка, Si,м
|
Скорость
на участке, Vi ,м/с
|
|
1
|
3,14
|
9,11
|
|
2,16
|
1,116
|
25,63
|
|
3,14
|
10,64
|
2,69
|
|
4
|
10,64
|
2,69
|
|
5,13
|
6,08
|
4,7
|
|
6,11
|
6,08
|
4,7
|
|
7
|
6,08
|
4,4
|
|
8,10
|
33,8
|
0,5
|
|
9
|
------
|
-----
|
|
12
|
4,7
|
|
15
|
10,64
|
2,69
|
|
17
|
3,14
|
9,11
|
.2 Расчет площадей участков сопротивлений и
скоростей агента сушки на этих участках
Площади участков сопротивлений определяются в
плоскости перпендикулярной направлению движения агента сушки
Площадь сечения вентилятора Sв,
м2 определяется по формуле
(47)
где D - диаметр
ротора вентилятора, предварительно принимаемый 1 м
nв - число
вентиляторов в камере, для камеры СПМ-1к nв=4шт
За площади участков: повороты,
сужения, расширения принимается наименьшая площадь. Площадь участков с
калориферами принимается равной площади их живых сечений.
За площадь участков прохождения
воздуха через штабеля принимается площадь габаритного сечения штабеля Sгаб, м2,
которая определяется по формуле
(48)
где n -
количество штабелей в плоскости перпендикулярной направлению агента сушки, шт.
Расчет скоростей агента сушки на
каждом участке сопротивлений кроме штабелей следует проводить по формуле
, (49)
На участках при прохождении воздуха
через штабеля скорость определяется в габаритном сечении каждого штабеля по
формуле
, (50)
Результат расчета по определению
площадей участков и скоростей сопротивлений на них приведены в таблице 8.
Таблица 8 - Площади и скорости
циркуляции агента сушки на участках
|
Номер
участка
|
Площадь
участка, Si,м
|
Скорость
на участке, Vi ,м/с
|
|
1
|
3,14
|
9,11
|
|
2,16
|
1,116
|
25,63
|
|
3,14
|
10,64
|
2,69
|
|
4
|
10,64
|
2,69
|
|
5,13
|
6,08
|
4,7
|
|
6,11
|
6,08
|
4,7
|
|
7
|
6,08
|
4,7
|
|
8,10
|
33,8
|
0,5
|
|
9
|
------
|
-----
|
|
12
|
6,08
|
4,07
|
|
15
|
10,64
|
2,69
|
|
17
|
3,14
|
9,11
|
.3 Расчет сопротивления участков
При работе вентилятора в замкнутой системе
циркуляции агента сушки, его давление тратится на преодоление всех участков
сопротивлений.
Местное сопротивление всех участков за
исключением калориферов ∆hуч,
Па определяем по формуле
(51)
где ρ - плотность
циркулирующего агента сушки определяемая как среднее значение плотности на
входе и на выходе из штабеля. Определяется по формуле
(52)
m- количество
одинаковых(последовательных) участков;
υ - скорость агента сушки на
участке, м/с;
- коэффициент местного сопротивления
,определяемый в зависимости от характера участка. Для прямых участков
определяется по формуле
(53)
Расчеты сопротивлений всех участков
сведены в таблицу 9
Таблица 9- Расчеты сопротивлений
всех участков
|
Номер
уча стка
|
Наименование
участка
|
Отношения
площадей при изменении сечения участка
|
Скорость
агента сушки на участке, м/c
|
Коэф.месного
сопротивления,Кс
|
Количество
участков
|
Сопротивление
участка Δh, Па
|
|
|
1
|
2
|
3
|
4
|
5
|
6
|
7
|
|
|
1
|
Расширение
потока на выходе из вентилятора
|
0,2
|
9,11
|
0,64
|
1
|
24,5
|
|
|
2,16
|
Пластинчатые
калориферы
|
-----
|
25,63
|
-----
|
2
|
391,58
|
|
|
3,14
|
Повороты
по радиусу на 90°
|
------
|
2,69
|
0,25
|
2
|
75,95
|
|
|
4
|
Сужение
потока
|
0,5
|
2,69
|
0,18
|
1
|
0,837
|
|
|
5,13
|
Прямые
каналы
|
-----
|
4,7
|
0,27
|
2
|
5,516
|
|
|
6,11
|
Повороты
без закруглений на 900
|
-----
|
4,7
|
1,1
|
2
|
22,478
|
|
|
7
|
Расширение
потока перед штабелем
|
0,12
|
4,7
|
0,81
|
1
|
2,45
|
|
|
8,10
|
Штабеля
|
-----
|
0,5
|
20
|
20
|
46,25
|
|
|
9
|
Калориферы
из ребристых труб
|
-----
|
------
|
-----
|
-----
|
----
|
|
|
12
|
Сужение
после штабеля
|
0,12
|
4,07
|
0,29
|
1
|
2,22
|
|
|
15
|
Расширение
потока
|
0,5
|
2,69
|
0,25
|
1
|
0,837
|
|
17
|
Сужение
на входе в вентилятор
|
0,2
|
9,11
|
0,27
|
1
|
20,73
|
|
|
|
|
|
|
|
|
|
|
|
|
Итог Δh
=593,35Па
Тогда вентилятор для преодоления полученных
потерь давлений должен создавать давление воздушного потока Рв, Па
равное
(54)
4.4 Выбор типа и номера вентилятора, расчет
мощности вентилятора
В данной камере установлено 4 вентилятора марки
ОВ №10. Задачей данного пункта сравнить данный вентилятор, с вентилятором
такого же типа, но разными номерами, с целью увеличения аэродинамического КПД и
снижения затрат.
Для выбора номера вентилятора используется
аэродинамические характеристики вентилятора построенные для воздушного потока
стандартных условий, то есть t
= 200C,
=
1,2 г/м3, следовательно, для рассматриваемых условий необходимо
произвести поправку
, (55)
Выбор номера вентилятора
производится по давлению Рхар и производительности вентилятора
,
,которая
определяется по формуле
(56)
где nв - число
установленных вентиляторов
В соответствии с аэродинамическими
характеристиками к выбору можно порекомендовать вентилятор ОВ№8, коэффициент
полноценного действия которого ηmax
= 0,4, а требуемая частота вращения 700мин-
Мощность потребляемая таким вентилятором Nв,
кВт можно определить по формуле
(57)
Где
- КПД вентилятора ,
= 0,75…0,78.
Частота вращения ротора вентилятора может быть
определена по формуле
Где А- безразмерная характеристика
вентилятора, характеризует производительность вентилятора,
/час.
А=13400, N=10
.5 Потбор электродвигателя
Для привода вентилятора используется
трехфазные, асинхронные двигатели с короткозамкнутым ротором, замкнутые,
обдуваемые, серии 4А.
Требуемая мощность двигателя для
привода вентилятора Nдв, кВт
определяется по формуле
(58)
где kз
- коэффициент запаса мощности двигателя в момент пуска, kз
= 1,05 ;
kт
- коэффициент учитывающий влияние температуры среды в которой работает
двигатель, kт =
1;
ηпр
- коэффициент полезного действия передачи, для рассматриваемого случая
применяется муфта или клиноременная передача, ηпр
= 0, 9.
Таким образом выбираем двигатель 4А
с мощностью Nдв = 5,1 кВт и
числом оборотов выходного вала двигателя n=1340 мин-1.
Для вентилятора сушильной установки
рекомендуются трёхфазные осихронные короткозамкнутые закрытые обдуваемые
электродвигатели серии 4А.
Выбираем электродвигатель модели 4А
112М4У3 ГОСТ 19523-81.
5. Описание технологического
процесса сушки
доставка сырых пиломатериалов из
лесопильного цеха в сушильный цех;
- транспортировка сырых пиломатериалов в формировочное
отделение;
формирование сушильных штабелей;
транспортировка сушильных штабелей, загрузка в
сушильные;
сушка пиломатериалов в сушильных камерах;
разгрузка сушильных камер и транспортировка
сушильных штабелей в остывочное помещение;
транспортировка сушильных штабелей в
расформировочное отделение;
расформировка сушильных штабелей;
транспортировка сухих пиломатериалов из
сушильного цеха.
Доставка сырых пиломатериалов в сушильный цех
производится автолесовозом Т - 140М2 в плотных пакетах размером 6,5х3,3х3,3 м.
Автолесовоз работает в одну смену.
Транспортировка сырых пиломатериалов в
формировочное отделение траверсной тележкой ЭТ2 - 6,5. Траверсная тележка
работает в три смены.
Формирование сушильных штабелей осуществляется в
формировочном отделении на лифте Л - 6,5 - 15. Формирование производится
следующим образом каждый ряд пиломатериала в сушильном штабеле укладывается на
прокладки размером 1,8х0,04х0,025 м. Количество прокладок в каждом ряду от 6 до
12 штук. По мере формирования штабеля по высоте платформа лифта опускается
вниз. После окончания формирования платформа поднимает вверх, и штабель
скатывают с лифта на траверсную тележку.
Доставка сырых пиломатериалов из лесопильного
цеха в сушильный осуществляется автолесовозом Т-140М2 в плотном пакете размером
6.5*2.6*1.3.Сырые пиломатериалы в сушильном цехе укладываются на складе сырых
пиломатериалов. Транспортировка высушенных пиломатериалов осуществляется этим
же транспортом.
Автолесовоз работает в одну смену, с
производительностью Пгод, м3/год, определяемой по формуле
(59)
где Тгод - эффективный
фонд времени работы автолесовоза в году, Тгод=2680ч;
q - объем
транспортного пакета, q=10,9м3;
Ки - коэффициент
использования рабочего времени, Ки=0.9;
Тц - продолжительность
одного транспортного цикла, Тц=0,3ч
Тогда потребное количество
автолесовозов марки Т-140М2 определяется по формуле
(60)
Принимаем 1 авто лесовоз с процентом
загрузки .
Для камеры СПМ-1к наиболее
рационально подходит система целого штабеля которые формируются по размерам
камеры 6500*2600*1800м.
Укладка штабеля для камер с
поперечной циркуляцией воздуха к которым относится камера СПМ-1к осуществляется
без шпаций. При формировании штабелей к ним предъявляются следующие требования:
· в один штабель укладываются доски
только одной породы;
· в один штабель укладываются доски
только одной толщины;
· прокладки в каждом ряду должны быть
строго друг под другом;
· торцы штабеля должны быть выровнены;
· необрезной пиломатериал укладывается
чередуя комель и вершину с одной стороны штабеля;
· боковые стороны штабеля должны быть
строго вертикальны.
Прокладки так же имеют огромное значение для
сушки пиломатериалов. От их количества зависит качество высушенных
пиломатериалов.
Количество прокладок на годовую программу с
учетом десятиразового использования, можно, определить по формуле
(61)
где ni -
количество прокладок в одном ряду, определяемое для каждого вида высушиваемого
пиломатериала;
Н - высота штабеля;
Si - толщина
высушиваемых пиломатериалов;
Βфi - объемный
коэффициент заполнения штабеля для каждого вида пиломатериала;
Z -
оборачиваемость прокладок, Z = 10.
Расход прокладок на годовую
программу определяется по формуле
(62)
где V1пр - объем
одной прокладки, V1пр =0,0018м3
Для перемещения штабелей и их
формирования используются подштабельные основания, состоящие из трех пар
треков, связанных между собой подштабельными брусьями. Число подштабельных
оснований определяется числом штабелей находящихся в камерах, на складах сырых
и сухих пиломатериалов, на участках формирования и расформирования и остывочном
участке, плюс 10-15% запас подштабельных оснований 92 штук.
Формирование и разборка штабелей
наиболее трудоемкие операции в лесосушильных цехах. Эти технические операции по
возможности необходимо механизировать. Для небольших деревообрабатывающих и
мебельных предприятий для ручной укладки и разборки штабелей пиломатериалов
рекомендуется использовать лифт марки Л-6,5-1,5. Лифт предназначен для
облегчения ручного труда при формировании и расформировании штабелей
пиломатериалов на подштабельной тележке.
Лифт рассчитан на формирование
сушильных штабелей длиной до 6,5 м, Шириной до 1,8 м, и высотой до 2,6 м.
Так как в рассматриваемом случае
предлагается формирование и разформирование осуществлять в различных частях
цеха, то принимаем 2 лифта марки Л-6,5-1,5.
.3 Транспортировка сушильных
штабелей внутри цеха
Для внутренних перевозок
сформированных сушильных штабелей используется рельсовая колея 1000мм и
электрифицированная траверсная тележка ЭТ2-6,5. Количество траверсных тележек
может быть определено исходя из их производительности Пэт2-6,5, м3/год
определяется по формуле
(63)
где Тгод - эффективный
фонд времени работы цеха в году Тгод=2680ч;
qм - объем
сушильного штабеля, qм= 30,42м3;
Ки - коэффициент
использования рабочего времени Ки=0,85;
Тц - продолжительность
одного транспортного цикла, Тц=0,85.
Тогда потребное количество тележек
ЭТ2-6,5 определяется по формуле
(64)
Принимаем 1электрофицированную
тележку марки ЭТ2-6,5 с процентом загрузки Р,% определяемым по формуле
(65)
.4 Описание конструкции сушильной
камеры
Сушильная камера СПМ-1к по конструкции в
строительных ограждениях
Эта камера низкотемпературная, периодического
действия, четырех штабельная с поперечной реверсивной циркуляцией агента сушки,
скорость циркуляции Vц=2,5
м/с, с продольной загрузкой штабелей.
Нагрев агента сушки производится
биметаллическими калориферами, теплоноситель - перегретый пар. Циркуляция
агента сушки в камере осуществляется осевыми вентиляторами. В камере находятся
узкоколейные пути шириной 1000мм. С наружи камера закрывается откатной
металлической дверью с уплотнениями.
Работа сушильных камер, их производительность и
технические возможности характеризуются техническими характеристиками.
Технические характеристики и основные параметры сушильных камер периодического
и непрерывного действия приведены в таблице 10.
Таблица 10 - Техническая характеристика камеры
|
№
п/п
|
Наименование
показателей
|
Единицы
измерения
|
Показатели
|
Примечание
|
|
1
|
Годовая
производительность камеры
|
усл.м3/год
|
5100
|
|
|
2
|
Вместимость
камеры
|
усл.м3
|
30,7
|
|
|
3
|
Число
штабелей
|
шт.
|
2
|
покупные
|
|
4
|
Число
вентиляторов
|
шт.
|
4
|
покупные
|
|
5
|
Скорость
циркуляции агента сушки
|
м/с
|
1,5-3,5
|
|
|
6
|
Число
калориферов
|
шт.
|
8
|
|
|
7
|
Габаритные
размеры сушильного штабеля: Длина Ширина высота
|
Мм
|
6500
1800 2600
|
|
|
8
|
Общая
установленная мощность
|
кВт
|
36
|
|
|
9
|
Габаритные
размеры камеры: длина ширина высота
|
Мм
|
15200
4980 5100
|
|
|
10
|
Масса
|
Т
|
20,1
|
|
.5 Этапы процесса сушки
После загрузки камеры начинается начальная
влаготеплообработка. В камеру подают пар через увлажнительные трубы при
включенных калориферах, работающих вентиляторах и закрытых приточно-вытяжных
каналах.
Температура среды для мягких хвойных
пород(сосна) поддерживают в зависимости от толщины и категории режима сушки.
При прогреве лиственницы и ильма на 3-5 градС выше температуры начальной
ступени режима, а для древесины осины выше на 5-8 градС, но не более 100градС.
После достижения заданной температуры психрометрическую разность поддерживают
на уровне ∆t
=0,5-1,5градС.
Древесину прогревают до тех пор пока разность
между температурой среды и в центре доски не достигнет 3 градС. Далее
осуществляется постепенный переход на режим сушки по одному из режимов
представленных в таблице 1.
В случае когда в древесине могут появляться
внутренние трещины, проводится промежуточная влаготеплообработка. В
рассматриваемом случае промежуточную влаготеплообработку будут проходить
пиломатериалы лиственницы, сосны и ильма.
Промежуточная влаготеплообработка производится
при переходе со второй ступени на третью. При низкотемпературных режимах сушки
температуру поддерживают на 5-8 градС выше температуры предшествующей ступени
сушки, но не более 100 градС, а психрометрическая разность устанавливается
равной 1,5-2 градС.
Продолжительность промежуточной
влаготеплообработки должна быть такой чтобы зубцы силовой секции выпиленные из
контрольных образцов имели после выравнивания влажности относительную
деформацию не более 2%. Допускается уменьшить продолжительность промежуточной
влаготеплообработки на столько, чтобы относительная деформация зубцов силовой
секции составляла не более 3-4% или вообще не проводить ее.
Конечную влаготеплообработку проводят после
достижения древесиной заданной влажности.
Во время обработки температуру среды
поддерживают на 5-9градС выше температуры на последней ступени режима сушки но
не более 100 градС. Психрометрическую разность устанавливают 0,5-1,0 градС.
Если тепловая мощность камер недостаточна, то допускается влаготеплообработка
при температуре соответствующей последней ступени сушки.
Продолжительность влаготеплообработки должна
быть такой чтобы зубцы силовой секции выпиленные из контрольных образцов после
выдержки их в сушильном шкафу имели после выравнивания влажности относительную деформацию
изгиба не более 2%.
Затем прекращают подачу пара в калориферы и
охлаждают древесину до 30-40 градС при открытых приточно-вытяжных каналах. Для
выравнивания влажности древесины по объему штабеля и толщине пиломатериала
применяется кондиционирование. Для этого в камере с помощью калориферов и
увлажнительных устройств, поддерживают такое состояние среды при котором
недосушенные сортименты подсыхают, а пересушенные увлажняются.
При сушке низкотемпературными режимами
температура среды, во время конденсирующей обработки, поддерживается на уровне
соответствующему последней ступени режима сушки (но не выше 1000С),
а степень насыщенности должна соответствовать по диаграмме равновесной
влажности средней заданной конечной влажности увеличенной на 1%.
Для пиломатериала I
категории качества конденсионирующая обработка обязательна. Ее
продолжительность орентировачно в два раза меньше продолжительности конечной
влаготеплообработки.
Далее пиломатериалы поступают в остывочное
отделение, после чего штабеля расформировываются, а пакеты пмломатериалов
поступают на склад.
.6 Контроль и регулирование параметров агента
сушки
В сушильных камерах бывает три вида контроля,
регулирования и управления процессом сушки: ручной, дистанционный
(автоматический), компьютерный.
Принимаем дистанционный вид контроля,
регулирования и управления.
Ежечасно контролируются параметры агента сушки с
записью в журнал контроля, температура агента сушки, психрометрическая разность
(температура сухого и мокрого термометра) и относительная влажность
(насыщенность). Контроль ведут лаборантки или операторы без выходных и
праздничных дней.
Регулирование процесса сушки заключается в
поддержании на заданном уровне количество теплоносителя, поступающего в
калориферы, регулирование влажности агента сушки за счет открытия или закрытия
приточно - вытяжных каналов. Контроль и регулирование процессом сушки
осуществляют контрольно - измерительными приборами и датчиками. Датчики
устанавливаются внутри камеры на задней торцевой стенке, а контрольно -
измерительные приборы на задней стенке со стороны коридора управления на высоте
1,5 метра.
Контроль влажности высушиваемых пиломатериалов
производится на каждой ступени сушки дистанционным влагомером ДВС - 2М. Кроме
того контроль влажности пиломатериала и внутренних напряжений контролируют по
контрольным образцам, заложенным в сушильный штабель.
Контроль высушенных пиломатериалов. Контроль
высушенных пиломатериалов заключается в соответствии средней влажности
сушильного штабеля к конечной влажности, соответствие перепада влажности по
толщине пиломатериала конечной влажности, наличие остаточных внутренних
напряжений. Этот контроль производится в остывочном помещении перед
расформировкой сушильных штабелей.
.7 Показатели качества сушки и методы их
контроля
Недосушка древесины происходит при досрочной
выгрузке пиломатериалов из камеры, при неудовлетворительном контроле процесса
сушки или преднамеренном нарушении технологии. Необходим систематический
контроль за соблюдением технологии сушки.
Неравномерное просыхание по:
толщине материала;
длинне штабеля;
ширине штабеля;
объёму штабеля.
Заключение
В курсовом проекте разработан сушильный цех с
камерами периодического действия СПМ-1к, в которых низкотемпературными режимами
высушивается 10500 м3 пиломатериала в год. Пиломатериалы следующих
пород: сосна, лиственница, ольха, ясень. Пиломатериалы, предназначенные для
изготовления дорогих изделий, высушиваются мягким и нормальным режимом,
пиломатериалы для изготовления средних и дешевых изделий высушиваются нормальным
и форсированным режимом.
В сушильном цехе расположены: склад сырых
пиломатериалов, формировочное отделение, сушильные камеры, остывочное
помещение, расформировочное отделение, склад сухих пиломатериалов и бытовые
помещения.
Сушильный цех оснащен современным
высокопроизводительным подъемно - транспортным оборудованием и сушильными
камерами. Для обеспечения годового объема качественной сушки пиломатериала
требуется 6 сушильных камер.
Сухие пиломатериалы используются в
деревообрабатывающих производствах, для выпуска мебели, тары, паркета, изделий
художественных промыслов и также реализуются потребителям.
Библиографический список
1
Белов В.А. Гидротермическая обработка и консервирование древесины: Методические
указания к выполнению курсового проекта.- Киров: КЛПК, 2004.- 77с.
Расев
А.И. Сушка древесины.- М., Высш. школа,1980-181с.
Богданов
Е.С. Справочник по сушке древесины.- М., ЛП., 1990.- 304 с.
Серкин
В.В. Требования к оформлению пояснительных записок курсовых и дипломных
проектов.- Киров, КЛПК., 2002.- 45с.