Совершенствование организации работ на участке по ремонту двигателей автомобиля Зил-5301 'Бычок'
Аннотация
Выпускная квалификационная работа содержит 10 листов чертежей формата А1,
пояснительную записку на 195 листах формата А4, включающую в себя 31 рисунок,
61 таблицу, 45 литературных источников, 3 приложение.
Ключевыми словами являются : автомобиль, автотрансопртное предприятие,
участок, двигатель, вал ,стенд дефектовки ,стенд выпресовки ,трудоемкость
,охрана труда ,экономический эффект
Целью работы является совершенствование организации работ на участке по
ремонту двигателей автомобиля Зил-5301”Бычок”.
В ходе работы анализируется производственно- хозяйственная деятельность
предприятия, рассматривается организация управления предприятием. Производится
расчёт производственной программы, необходимого количества рабочих, постов,
площадей производственных и вспомогательных помещений. Решаются вопросы
совершенствования организации работ на участке. Разработан универсальный стенд
для дефектации и ремонта форсунок двигателя. Решаются вопросы охраны труда и
экологии. Рассчитывается экономическая эффективность от внедрения стенда для
дефектации и ремонта форсунок двигателя участке.
The
summary
Final qualification operation contains 10 sheets of drawings
of format А1, the explanatory note on
195 sheets A4, including 31 picture, 61 table, 45 references, 3 application.
Keywords are: the car, car the enterprise, a section, the
engine, a shaft, the bench imperfection, labor input, a labor safety, economic
benefit.operation purpose is perfection of the organization of operations on a
section on repair of engines of car Zil-5301 "Bull-calfe".a work
progress it is analyzed it is industrial - enterprise economic activities, the
enterprise management organization is considered. Calculation of the production
program, a necessary amount of workers, posts, the areas of industrial and
auxiliary locations is produced. Questions of perfection of the organization of
operations on a section are solved. The general-purpose bench is developed for
fault detection and repair of atomizers of the engine. Labor safety and ecology
questions are solved. Economic efficiency from implementation of the bench for
fault detection and repair of atomizers of the engine a section settles up.
Содержание
Аннотацияsummary
Введение
.Конструкторская
часть
.1
Назначение стенда
.2Конструкция
и принцип работы стенда
.2.1Описание
электрической схемы
.3
Диагностический тестер ДСТ-2М
.3.1.
Техническое описание тестера
.3.2.
Подготовка тестера ДСТ-2М к работе
.4.
Диагностика и дефектовка по кодам неисправностей
.5.
Разъем контроллера
.5
Анализ существующих конструкций
.5.1
Стенд для разборки рулевых механизмов и карданных валов, модель 3025
.5.2
Пресс гидравлический с передвижной головкой ПГП-20
.5.4
Съемник крестовин карданных валов СВК1
.5.5
Выбор прототипа и обоснование путей его совершенствования
.6
Разработка технического задания и кинематической схемы проектируемого стенда
.7
Проектный расчет стенда
.7.1
Кинематический расчет стенда
.7.2
Расчет передачи винт-гайка. Основные параметры
.7.3
Расчет ременной передачи
.7.4
Подбор и проверка долговечности подшипников
.8
Описание работы стенда
.9
Правила безопасности и эксплуатации стендов
.Технологическая
часть
.1
Корректировка нормативной периодичности ТО и КР
.2
Расчёт производственной программы по количеству воздействий
.3
Количество диагностических воздействий за год по маркам автомобилей
.4
Расчет годового объема работ по ТО, ТР и самообслуживанию
.4.1
Определение трудоемкости работ
.4.2
Определение годового объема работ по ТО и ТР
.5
Распределение объема работ ТО и ТР и расчёт численности производственных
рабочих
.6
Уточнённый расчёт участка
.5.1
Корректировка численности рабочих по видам работ
.5.2
Расчет числа единиц технологического оборудования
.5.3
Выбор оборудования для участка
.5.5
Расчет затрат на энергоносители
.Организационно-экономическая
часть
.1
Производственная структура предприятия
.2
Структура управления производством
.3
Метод организации производства ТО и ТР
.4
Описание и схема производственного процесса автотранспортного предприятия
.5
Описание информационного обеспечения
.6
Материально-техническое обеспечение
.7
Управление качеством производства
.8
Организация технологического процесса на участке
.9
Организация труда
.10
Анализ технико-экономических и финансовых показателей
.11
Характеристика производственно-технической базы
.12
Экономическое обоснование принятых проектных решений
.12.1
Определение суммы дополнительных капитальных вложений
.13
Определение экономического эффекта
.14
Определение срока окупаемости дополнительных капитальных вложений
.Охрана
окружающей среды и безопасность жизнедеятельности
.1
Анализ условий труда
.2
Мероприятия по повышению безопасности и улучшений условий труда
.3
Меры безопасности при слесарных работах
.4
Расчет вентиляции
.5
Расчет естественного освещения
.6
Расчет искусственного освещения
.7
Пожарная безопасность
.8
Охрана окружающей среды и экономия материальных ресурсов
Заключение
Список
использованной литературы
Приложения
Введение
На современном этапе развития мировой экономики автомобильный транспорт
для большинства развитых стран является основным видом внутреннего транспорта и
ключевым элементом транспортной системы страны, который играет главную роль в
обеспечении экономического роста и социального развития. На этапе становления
рыночных отношений в Российской Федерации сложились объективные предпосылки для
ускоренного развития автомобильного транспорта. Автомобильному транспорту нет
адекватной замены при перевозках на небольшие и средние расстояния или,
например, пассажирских перевозок в пределах населенного пункта.
Процесс автомобилизации нашей страны не должен ограничиваться только
увеличением парка автомобилей, он так же вызывает необходимость решения ряда
вопросов, направленных на дальнейшее развитие материально-технической базы для
хранения, технического обслуживания и ремонта транспортных средств. Одной из
важнейших задач в области эксплуатации автомобильного парка является дальнейшее
совершенствование организации технического обслуживания и текущего ремонта
автомобилей с целью повышения их работоспособности и вместе с тем снижение
затрат на эксплуатацию. Актуальность указанной задачи подтверждается и тем, что
на техническое обслуживание автомобиля затрачивается во много раз больше труда
и средств, чем на его производство.
Задача повышения эффективности капитальных вложений и снижения издержек
является частью проблемы рациональной организации автомобильного транспорта и
охватывает широкий круг эксплуатационных, технологических и строительных
вопросов. Решение этой задачи обеспечивается в первую очередь качественным
перепроектированием предприятий, которое в значительной мере предопределяет
рациональное использование основных фондов и высокую эффективность капитальных
вложений.
В современных условиях успешное выполнение перевозок грузов и пассажиров
немыслима без коренного улучшения способов и механизмов проведения
своевременной диагностики транспортного средства, а так же его ремонта и
технического обслуживания. В настоящее время дальнейшее развитие получила
планово-предупредительная система технического обслуживания и ремонта
подвижного состава АТП.
Среди основных направлений улучшения процесса можно выделить повышение
уровня автоматизации и механизации на постах диагностики , совершенствование
методов в управлении ремонтом , дефектацией и диагностике, а так же внедрение
управления качеством технического обслуживания парка.
Как в области организации автомобильных перевозок, так и в области
технической эксплуатации автомобилей начинают применяться различные
экономико-математические методы анализа, планирования и проектирования. Все
шире разрабатываются и внедряются новые методы и средства диагностирования
технического состояния и прогнозирования ресурсов безотказной работы
автомобилей. Создаются новые виды технологического оборудования, позволяющие
механизировать, а в ряде случаев и автоматизировать трудоемкие операции по
обслуживанию и ремонту подвижного состава. Разрабатываются современные формы
управления производством, которые рассчитаны на применение электронно-вычислительных
машин с дальнейшим переходом на автоматизированную систему управления.
В данной дипломной работе была предпринята попытка создания программы
проектирования участка по дефектации узлов и агрегатов двигателя Д-245.9Е2 и
его модификаций. С этой целью был проведен анализ существующего порядка
проведения, выявлены некоторые моменты, требующие реорганизации. Определен
список технологического оборудования, требующего усовершенствования. Был
составлен план дооснащения некоторых участков цеха новыми техническими
средствами, была рассчитана экономическая эффективность от внедрения данных
нововведений.
В план переоснащения так же были заложены ряд параметров для улучшения
условий труда на АТП. Был проанализирован комплекс мер по обеспечению безопасности
жизнедеятельности на данном АТП.
В ходе проведения расчетов и исследований мы сознательно не учитывали
программу переоснащения парка автотранспортного предприятия, так как уже не
первый год проходит плановая замена парка. Подвижной состав, выработавший свой
ресурс постепенно списывается и на смену ему приходят новая техника, отвечающая
всем современным требованиям. На предприятии широкое применение стали получать
автобусы малого класса, что позволяет существенно сократить ремонтные расходы,
используя технологическое оборудование пригодное для проведения осмотров
легковой части парка АТП
В целом весь комплекс мер, предложенных в данной работе должны
оптимизировать порядок проведения дефектации, снизить текущие затраты и
повысить работоспособность автопарка.
Важнейшей задачей в любом хозяйстве является организация технического
обслуживания и текущего ремонта автомобилей. Этой актуальной теме и посвящается
дипломный проект.
1.Конструкторская
часть
Практика эксплуатации автомобилей Зил-5301”Бычок” на разных дорогах и в
любое время года доказала необходимость периодической разборки форсунок
двигателя ,а так же карданных шарниров для замены или пополнения смазки в
подшипниках, проверки и восстановления защитных свойств резиновых уплотнителей
и их обойм. На МУП «МПАТП №1» традиционно для выпрессовки подшипников крестовин
карданных передач используют, молотки и кувалды, что может привести к
деформации и разрушению детали.
При ухудшении работы дизеля, выражающейся в появлении дымного выпуска,
снижении мощности, пропуске вспышек, при трудном пуске дизеля следует проверить
топливную аппаратуру. В первую очередь необходимо проверить состояние топливных
фильтров, при необходимости промыть фильтр грубой очистки, заменить фильтрующие
элементы фильтра тонкой очистки. Пропуск вспышек в отдельных цилиндрах и
трудный пуск дизеля наблюдается при подсосе воздуха в топливную систему.
Устранить причину подсоса и прокачайте топливо топливопрокачивающим насосом.
Если дизель работает неравномерно и с дымным выпуском, проверьте работу
форсунок и топливного насоса. Для выявления плохо работающей форсунки или
секции насоса установить рычаг подачи топлива в положение, при котором наиболее
отчетливо заметна неравномерность работы дизеля, и поочередно ослабляйте гайки
крепления топливо-проводов высокого давления к секциям топливного насоса. При
этом из работы поочередно выключаются соответствующие цилиндры. Если при
отключении форсунки работа дизеля резко изменяется, становится более
неравномерной, то эта форсунка работает нормально. Если работа дизеля не
меняется или меняется незначительно, то проверяемая форсунка совсем не работает
или работает плохо. При отключении цилиндра с плохо работающей форсункой
дымление заметно уменьшается или полностью прекращается. Выявленную плохо работающую
форсунку снимите с дизеля и проверьте на стенде.
Целью настоящего раздела выпускной квалификационной работы является
совершенствование стенда для выпрессовки подшипников крестовин карданных
передач на основе проведенного анализа существующих конструкций, а так же
стенда для проверки ,дефектации и ремонта форсунок двигателя.
.1 Назначение
стенда
Стенд является безмоторной установкой для испытания и промывки всех типов
форсунок впрыска топлива, устанавливаемых на дизельные двигатели грузовых
автомобилей и тракторов.
Количество топлива и качество его распыла коренным образом влияет на
работу двигателя. В случае, если работа форсунок впрыска топлива не
соответствует техническим условиям возможны такие дефекты, как:
- затруднённый пуск
- перебои в работе двигателя
неустойчивая работа
остановки на холостом ходу
рывки, задержки, провалы, подёргивания
недостаточная мощность и приёмистость.
Проверка работоспособности форсунок, непосредственно на автомобиле,
сводится к проверке электрической цепи. Бортовая диагностика автомобиля
позволяет проверить только обмотку катушки соленоида на обрыв и замыкание. Но
большая часть неисправностей приходится на механическую часть.
Стенд позволяет протестировать все типы форсунок топлива, устанавливаемых
на двигатели, и проверить следующие диагностические параметры:
- герметичность форсунок в закрытом состоянии (при давлении в
топливной магистрали 0,25 Мпа утечка должна быть не более одной капли в минуту)
- качество распыла топлива (топливо должно распыляться равномерно
без образования крупных капель)
форма распыла (угол распыла должен составлять для рабочих
форсунок 30-35 градусов, для пусковых форсунок 80 градусов)
производительность форсунок (пропускная способность в открытом
состоянии - в смі/мин или в г/с)
С помощью мерного блока визуально определяется герметичность форсунок в
закрытом состоянии, их производительность, качество и угол распыла в момент
впрыска топлива.
Ванна ультразвуковой очистки позволяет очистить от загрязнения и
смолистых отложений внутренний фильтр и игольчатый клапан форсунки.
.2Конструкция
и принцип работы стенда
Стенд выполнен в виде переносного устройства размером 720х550х780 и
располагается на стандартном верстаке.
Стенд состоит из металлического корпуса, гидравлической системы,
измерительного блока, панели управления, электронного блока и ванны
ультразвуковой очистки. Корпус представляет собой раму изготовленную из
стандартных профилей-уголков к которой крепятся навесные панели и остальные
детали стенда.
Гидравлическая система стенда состоит из гидробака, всасывающего
трубопровода с защитным фильтром, насоса, напорного трубопровода с фильтром
тонкой очистки, гликолиевого манометра, коллектора со штуцерами для
присоединения восьми форсунок, регулировочного дросселя с обратным клапаном и
сливного трубопровода.
Измерительный блок представляет собой восемь мерных мензурок закрепленных
на подвижной рамке, и отражателя для лучшего визуального контроля.
Электронный блок служит для преобразования напряжения, питания
электронасоса и формирования управляющих сигналов для питания ультразвуковой
ванны и тестируемых форсунок.
Перед использованием стенд необходимо заправить рабочей жидкостью. В
данном стенде в качестве рабочей жидкости используется НЕФРАС-С. Заправка
осуществляется через горловину гидробака до риски «МАХ» на измерительном
стержне. Запрещается эксплуатация стенда, если уровень рабочей жидкости ниже
риски «MIN», или выше риски «МАХ».
Управление стендом осуществляется через клавиши на панели управления. При
нажатии клавиши общего включения загорается сигнальная лампа с надписью «Сеть»,
и стенд готов к работе. Топливный насос включается нажатием клавиши «Насос».
Регулировка давления в топливной рампе осуществляется поворотом ручки дросселя
и контролируется по манометру.
Установка форсунок на стенд:
1. С помощью дросселя сбросить давление в коллекторе.
2. Вынуть коллектор из гнезда.
. Присоединить к коллектору тестируемые форсунки, а на пустые
штуцера установить заглушки.
. Присоединить к форсункам электронные разъёмы (для форсунок с
электронным управлением).
. Установить коллектор на стенд.
Визуальный контроль формы и качества распыла топлива форсунками:
1. Установить форсунки на стенд.
2. Установить необходимое давление в коллекторе.
. Повернуть выключатель в положение «Тест».
Определение производительности форсунок с электронным управлением:
1. Установить форсунки на стенд.
2. Установить необходимое давление в коллекторе.
. Опустошить мерные мензурки, поворотом измерительного блока.
. Повернуть выключатель в положение «Время» и нажать клавишу
«Старт».
Форсунки проработают 20 секунд и автоматически отключатся. По количеству
топлива в мензурках можно определить производительность в смі/мин или в г/с.
.2.1Описание
электрической схемы
Электрическая схема стенда состоит из трёх основных управляющих цепей:
- Цепь управления форсунками
- Цепь питания электробензонасосом
Цепь питания УЗ ванны.
Цепь управления форсунками состоит из:
- понижающего трансформатора Т5
- выпрямителя собранного на диодном мосту VD17-VD19 и
конденсаторе С7
генератора синусоидального тока собранного на двойном
несимметричном Т - образном мосту R12,R13,R22,C8,C9,C10 и транзисторе VT21
усилителя на транзисторе VT22
триггера Шмитта на операционном усилителе А1
конечных усилителей на транзисторах VT24-VT37
время задающей цепи на основе таймере КР1006ВИ1
Цепь питания электробензонасоса состоит из:
- понижающего трансформатора Т4
- выпрямителя собранного на диодном мосту VD14-VD16 и
конденсаторе С6 плавкого предохранителя FU1
1.3
Диагностический тестер ДСТ-2М
.3.1
Техническое описание тестера
Портативный тестер ДСТ-2М предназначен для использования при диагностике
двигателей внутреннего сгорания.
Питание тестера ДСТ-2М осуществляется от бортовой сети автомобиля или от
внешнего источника питания номинальным напряжением 12 В. Тестер сохраняет
работоспособность при максимальном напряжении 20 В и минимальном 7 В. Мощность,
потребляемая от источника питания - 1,5 Вт.
Масса тестера ДСТ-2М - 0,35 кг при габаритных размерах 100x95x48 мм.
Тестер может сохранять работоспособность при температуре от 0С до +40C и
относительной влажности до 80%.
В пластмассовом корпусе тестера установлена плата с электронными
элементами, дисплеем и клавиатурой.
На верхней части корпуса расположен девятиконтактный разъем для
подключения тестера к диагностическому разъему автомобиля или двигателя.
Внешний вид тестера показан на рис.1, а на рис.2 показан разъем
соединительного кабеля. В нижней части корпуса тестера расположен
соединительный разъем сменного картриджа.
Тестер снабжается набором сменных программных картриджей для различных
типов автомобилей с системами впрыска.
В верхней части тестера расположен отсек для сменного (запасного)
картриджа.
Диагностический тестер ДСТ-2М обрабатывает поступающую от контроллера на
контакт “М” информацию колодки диагностирования.
ДСТ-2М подключается к колодке диагностики двигателя с помощью кабеля.
Тестер ДСТ-2М может фиксировать и сохранять данные в момент возникновения
неисправности и воспроизвести их в замедленном темпе.
Диагностический тестер ДСТ-2М способен выдавать контроллеру команды на
выполнение различных функций. В тестере имеется команда для стирания всех кодов
неисправностей, хранящихся в ОЗУ.
Разъем ДСТ-2М Разъем диагностики автомобиля
- вывод K-Line.- вывод заземления.
- вывод L-Line.- вывод +12 В.
,5 - вывод +Uп (+12 В).
В - вывод диагностического тестирования.
,9 - вывод “общ” (-12В).
М - вывод канала последовательных данных.- вывод диагностики ЭБН
Тестер ДСТ-2М позволяет осуществлять контроль исполнительных механизмов
при включенном зажигании и работающем двигателе:
управление включением лампы CHECK ENGINE;
управление регулятором холостого хода;
управление включением реле электробензонасоса (РБН);
управление включением реле муфты компрессора кондиционера;
управление включением вентилятора системы охлаждения;
стирание кодов неисправностей. Выполняется при включенном зажигании и
работающем двигателе.
При этой функции можно стирать всю хранящуюся в ОЗУ контроллера
информацию о неисправностях без отключения аккумулятора или питания контроллера.
Проверка прокрутки.
Эта проверка позволяет контролировать обороты прокрутки, напряжение
аккумуляторной батареи во время прокрутки и время восстановления аккумуляторной
батареи до запуска двигателя.
Тестер ДСТ-2М, расположение внешних органов управления, соединения и
отображения информации.
- соединительный разъем; 2 - дисплей; 3 - клавиатура; 4 - отсек
диагностического картриджа; 5 - отсек запасного картриджа.
Программа, хранящаяся в ПЗУ тестера ДСТ-2М позволяет осуществлять сбор,
обработку и хранение полученной информации от двигателя диагностируемого
автомобиля.
Дисплей тестера выполнен на жидко-кристаллическом индикаторе, работающим
как в графическом, так и в текстовом режимах. Дисплей отображает выходную и
входную информацию, поступающую в тестер.
Клавиатура служит для ввода информации и управления программным
обеспечением тестера.
Разъем служит для подачи питания на тестер и для подключения
диагностируемого объекта по линиям L-Line и K-Line (стандарт ISO9141 и
ISO14230-1).
1.3.2
Подготовка тестера ДСТ-2М к работе
Вставьте в отсек сменный картридж соответствующий системе диагностики
двигателя.
Соедините с помощью кабеля тестер ДСТ-2М и испытуемый объект.
Соедините выводы питания тестера с источников питания (“красный” зажим к
+12В, “чёрный” или “синий” к -12В). После подачи питания программа BIOS
выполняет пять обязательных проверок. Отсутствие какой-либо информации на
экране дисплея или ее несоответствие указывает на неисправность тестера.
4.1 Режим BIOS.
Проверка кода BIOS.
Норма:
BIOS Version 1.5 © 1999
N.T.S. LtdОшибка:
BIOS ID error 4.2 Проводится проверка дисплея
Если при проверке дисплея обнаруживается ошибка, то выводится сообщение:
Display synchr warning 1. Режим
Проверка наличия программного картриджа.
Если картридж не установлен или не соответствует системе
диагностирования, то на экране появляется сообщение:ERROR Cartridge not
foundЕсли картридж вставлен правильно, то запускается программа, записанная в
картридже. На экране дисплея выводится меню работы с картриджем.
. Режим
Проверка контрольной суммы ПЗУ BIOS
Ошибка:
BIOS Version 1.5 © 1999
N.T.S. Ltd Checksum error3. Режим
Проверка ОЗУ
Ошибка:
BIOS Version 1.5 © 1999
N.T.S. Ltd RAM error4. Режим
Проверка нажатия клавиши Enter.
Клавиша Enter не нажата.
.1 Проводится проверка клавиатуры.
Если есть неисправные или случайно нажатые клавиши, то на экране
появляется сообщение:warning Если нажата клавиша Enter при включении тестера,
то появится меню запуска:
: Defaults- обычный запуск2 : Reset with defaults- запуск с тестированием
всего ОЗУ и стиранием информации ОЗУ3 : System tests- выход в меню тестов4 :
Ext. control- внешнее управлениеВнешнее управление:
Загрузка
Отладка программ, загрузка данных
Этот пункт меню служит для сервисного обслуживания ДСТ-2М и при обычной
эксплуатации не используется.
Меню тестов3System tests1 : Identification- вывод на дисплей
информации о BIOS и картридже2 : RAM test- тест ОЗУ со стиранием информации3 :
Display testпроверка дисплея4 : Keyboard test- проверка клавиатуры5 : UART
test- проверка последовательного канала K-Line, L-line
. Identification - идентификация системы
Тест позволяет произвести анализ версии BIOS или картриджа.
1.1. Проверка BIOS (без картриджа)BIOS Version 1.5 © 1999 N.T.S. Ltd1.2. Проверка установленного картриджаIdentification © 1999 N.T.S. Ltd Engine: ВАЗ 21092. RAM test - проверка ОЗУTest Pass 1 Pass 2 Memory OKНорма: Memory OK Ошибка:
Memory err
. Display test - проверка дисплея Technological Systems NTSТекстовое изображение на экране дисплея
. Keyboard test - проверка клавиатурыtest Press key “O” Esc:
ExitСообщение на экране Выход из теста в менюПоследовательным нажатием на
клавиши клавиатуры проводится их тестирование (1, 2, 3, 4, 5, 6, 7, 8, 9, “”,
“”, “”, “”, Enter, Esc). После нажатия клавиши на
экране появляется сообщение Key “i” OK (клавиша исправна) или Key “i” err
(клавиша неисправна).
Другие диагностические сообщения на экране дисплея:keys pressed- не
нажата клавишаIncorrect key- ошибочное нажатие клавишиEsc pressed- нажата
клавиша EscЕсли после трех нажатий клавиши правильное сообщение не получено, то
клавиша считается неисправной.
. UART test - тест асинхронного адаптера.
.4
Диагностика и дефектовка по кодам неисправностей
КОД Р0102
Низкий уровень сигнала датчика массового расхода воздуха
Код Р0102 заносится, если существуют следующие условия:
обороты двигателя выше 560 об/мин;
расход воздуха ниже 0,1 кг/ч.
Описание проверок
Последовательность соответствует взятым в кружок цифрам на карте.
. Проверяется наличие напряжения питания и надежность соединения с
массой.
. Определяется сопротивление между контактом «5» колодки жгута и массой,
которое должно быть в пределах 4...6 кОм.
Диагностическая информация
Неисправность непостоянного характера может быть вызвана плохим
контактом, неправильной трассой жгута, повреждением изоляции или жилы провода,
либо плохой прокладкой провода массы, подключением к жгуту дополнительных
мощных потребителей.
Необходимо убедиться в отсутствии следующих неисправностей.
Ненадежное соединение контактов “7”, “12” колодки жгута системы впрыска и
контроллера. Осмотреть колодку жгута и разъем контроллера на полноту и
правильность сочленения, повреждения замков, наличие поврежденных контактов и
качество соединения контактов с проводом.
Неправильная трасса жгута. Убедиться в том, что жгут с проводами датчика
не проложен вблизи высоковольтных проводов.
Повреждения жгута. Проверить жгут на наличие повреждений. Если жгут
внешне в норме, пошевелить соответствующие колодку и жгут, одновременно
наблюдая за прибором DST-2.
Засорение воздушного фильтра в системе впуска воздуха. При необходимости
заменить фильтрующий элемент.
КОД Р0103
Высокий уровень сигнала датчика массового расхода воздуха
Код Р0103 заносится, если в течение 0,2 сек расход воздуха выше 614,4
кг/час.
Описание проверок
Последовательность соответствует взятым в кружок цифрам на карте.
. Проверяется наличие напряжения питания и надежность соединения с
массой.
. Проверяется напряжение на контакте “5” колодки жгута.
Диагностическая информация
Неисправность непостоянного характера может быть вызвана плохим
контактом, неправильной трассой жгута, повреждением изоляции или жилы провода.
Необходимо убедиться в отсутствии следующих неисправностей.
Ненадежное соединение контактов “7”, “12” колодки жгута системы впрыска и
контроллера. Осмотреть колодку жгута и разъем контроллера на полноту и
правильность сочленения, повреждения замков, наличие поврежденных контактов и
качество соединения контактов с проводом.
Неправильная трасса жгута. Убедиться в том, что жгут с проводами датчика
не проложен вблизи высоковольтных проводов.
Повреждения жгута. Проверить жгут на наличие повреждений. Если жгут
внешне в норме, пошевелить соответствующие колодку и жгут, одновременно
наблюдая за прибором DSТ-2.
Ненадежное соединение датчика с массой. Проверить сопротивление между
клеммой «минус» аккумуляторной батареи и контактом “3” колодки жгута,
отсоединенной от датчика массового расхода воздуха при включенных потребителях
(вентилятор, печка, обогреватель заднего стекла). Сопротивление не должно быть
больше 1 Ом.
КОД Р0117
Низкий уровень сигнала датчика температуры охлаждающей жидкости
Код Р0117 вводится а память контроллера, если выполняются следующие
условия:
двигатель работает;
в течение 0,6 сек напряжение сигнала датчика соответствует температуре ниже
-40 'С.
Описание проверок
. В ходе этой проверки моделируются условия кода Р0118 - высокая
температура/низкое сопротивление датчика. Если контроллер получает сигнал
низкого напряжения (высокая температура), а прибор DSТ-2 показывает 135 'С и
выше, то контроллер и цепь датчика температуры охлаждающей жидкости в порядке.
. Проверяется цепь 15 О от датчика температуры охлаждающей жидкости к
контакту
“45” контроллера на обрыв.
. Если при отключенном датчике напряжение между контактами “А” и “В”
колодки жгута более +5 В, то провод 15 О замкнут на источник напряжения.
Диагностическая информация
Необходимо проверить цепь заземления датчиков (провода 6 З и 51 ЗП) на
наличие неисправной проводки или соединения. Проверьте контакты датчика на
надежность соединений.
КОД Р0118
Высокий уровень сигнала датчика температуры охлаждающей жидкости
Код Р0118 вводится в память контроллера, если выполняются следующие
условия:
двигатель работает;
в течение 0,6 с напряжение сигнала датчика соответствует температуре выше
+135 'С.
Описание проверок
. Определяется наличие замыкания на массу провода 15 О, идущего с датчика
на контакт “45” контроллера.
Диагностическая информация
Необходимо проверить цепь заземления датчиков (провода 6 3 и 51 ЗП) на
наличие неисправной проводки или соединения. Проверьте контакты датчика на
надежность соединений.
Зависимость сопротивления датчика температуры охлаждающей жидкости от
температуры (ориентировочно)
Температура, 'С Сопротивление, Ом Температура, 'С Сопротивление, Ом 100
177 20 3520 90 241 15 4450 80 332 10 5670 70 467 5 7280 60 667 0 9420 50 973 -4
12300 45 1188 -10 16180 40 1459 -15 21450 35 1802 -20 28680 30 2238 -30 52700
25 2796 -40 100700
КОД Р0131
Низкий уровень сигнала датчика кислорода
Код Р0131 заносится, если:
двигатель работает;
управление топливоподачей осуществляется в режиме обратной связи по
сигналу датчика кислорода;
напряжение сигнала датчика кислорода ниже порога в течение 20 с.
Описание проверок
Последовательность соответствует взятым в кружок цифрам на карте.
. Проверяется наличие неисправности.
. Проверяется исправность цепи входного сигнала датчика.
Диагностическая информация
Напряжение на контакте “А” непрогретого датчика кислорода равно 0,45 В.
Для прогретого датчика напряжение при работе по замкнутому контуру
изменяется в диапазоне 0,05...0,9 В.
КОД Р0132
Низкий уровень сигнала датчика кислорода
Код Р0132 заносится, если:
двигатель работает;
напряжение сигнала датчика кислорода выше порога в течение 20 с.
Описание проверок
Последовательность соответствует взятым в кружок цифрам на карте.
. Проверяется наличие неисправности.
. Проверяется исправность цепи входного сигнала датчика.
Диагностическая информация
Напряжение на контакте “А” непрогретого датчика кислорода равно 0,45 В.
Для прогретого датчика напряжение при работе по замкнутому контуру
изменяется в диапазоне 0,05...0,9 В.
КОД Р0134
Отсутствие сигнала датчика кислорода
Код Р0134 заносится, если:
двигатель проработал больше 90 сек;
напряжение сигнала датчика кислорода находилось в диапазоне 400...580 мВ
в течение 3 с.
Описание проверок
Последовательность соответствует взятым в кружок цифрам на карте.
. Проверяется наличие неисправности.
. Проверяется исправность цепи входного сигнала датчика кислорода.
. Проверяется исправность цепи заземления датчика кислорода.
. Проверяется исправность цепи управления нагревателем датчика кислорода.
. Проверяется исправность цепи питания нагревателя датчика кислорода.
Диагностическая информация
Напряжение на контакте “А” непрогретого датчика кислорода равно 0,45 В.
Для прогретого датчика напряжение при работе по замкнутому контуру
изменяется в диапазоне 0,05...0,9 В.
Если код Р0134 фиксируется через 1.5 минуты после пуска двигателя
(двигатель работает на холостом ходу), вероятной причиной неисправности
является недостаточная мощность нагревателя датчика кислорода.
КОД Р0135
Неисправность цепи управления нагревателем датчика кислорода
Код Р0135 заносится, если:
подана команда на включение нагревателя датчика кислорода;
цепь управления нагревателем датчика кислорода оборвана или замкнута на
источник питания.
Этот код неисправности возникает в том случае, если на автомобиле
установлен контроллер “Январь-5.1”.
Описание проверок
Последовательность соответствует взятым в кружок цифрам на карте.
. Проверяется наличие неисправности.
. Проверяется исправность внутреннего нагревателя датчика кислорода.
. Проверяется исправность цепи питания нагревателя датчика кислорода.
. Проверяется провод 47 БЧ на замыкание на источник питания.
. Проверяется провод 47 БЧ на обрыв.
Диагностическая информация
Напряжение на контакте “А” непрогретого датчика кислорода равно 0,45 В.
Для прогретого датчика напряжение при работе по замкнутому контуру
изменяется в диапазоне 0,05...0.9 В.
При возникновении данного кода неисправности нагреватель датчика
кислорода выключается, и контроллер переходит к управлению топливоподачей в
режиме разомкнутого контура.
КОД Р0171
Нет отклика датчика кислорода при обеднении смеси
Код Р0171 заносится, если:
двигатель работает в режиме регулирования топливоподачи по замкнутому
контуру;
напряжение сигнала датчика кислорода выше порога в течение определенного
времени, несмотря на то, что система пытается привести состав топливовоздушной
смеси к стехиометрическому путем обеднения (уменьшения длительности импульса
впрыска).
Описание проверок
Последовательность соответствует взятым в кружок цифрам на карте.
. Проверяется наличие неисправности во время движения автомобиля или на
стенде.
. Причиной возникновения кода Р0171 могут стать - слишком высокое
давление топлива или неисправность одной из форсунок.
. Проверяется цепи входного сигнала, заземления и управления нагревателем
датчика кислорода на обрыв и короткое замыкание.
. Проверяется исправность цепи питания нагревателя датчика кислорода.
Диагностическая информация
Напряжение на контакте “А” непрогретого датчика кислорода равно 0,45 В.
Для прогретого датчика напряжение при работе по замкнутому контуру
изменяется в диапазоне 0,05...0,9 В.
КОД Р0172
Нет отклика датчика кислорода при обогащении смеси
Код Р0172 заносится, если:
двигатель работает в режиме регулирования топливо подачи по замкнутому
контуру;
напряжение сигнала датчика кислорода ниже порога в течение определенного
времени, несмотря на то, что система пытается привести состав топливовоздушной
смеси к стехиометрическому путем обогащения (увеличения длительности импульса
впрыска).
Описание проверок
Последовательность соответствует взятым в кружок цифрам на карте.
Проверяется наличие неисправности во время движения автомобиля или на
стенде.
. Причиной возникновения кода Р0172 могут стать - слишком низкое давление
топлива или неисправность одной из форсунок.
. Проверяется цепи входного сигнала, заземления и управления нагревателем
датчика кислорода на обрыв и короткое замыкание.
. Проверяется исправность цепи питания нагревателя датчика кислорода.
Диагностическая информация
Напряжение на контакте “А” непрогретого датчика кислорода равно 0,45 В.
Для прогретого датчика напряжение при работе по замкнутому контуру
изменяется в диапазоне 0,05...0,9 В.
КОД Р0325
Обрыв или короткое замыкание в цепи датчика детонации
Код Р0325 заносится, если:
двигатель работает;
сигнал датчика детонации ниже порогового значения;
вышеперечисленные условия выполняются в течение 5 с.
Описание проверок
Последовательность соответствует взятым в кружок цифрам на карте.
. Проверяется существование условий для возникновения кода неисправности
Р0325.
. Проверяется провода 86 Г и 91 на обрыв и короткое замыкание.
Диагностическая информация
См. “Непостоянные неисправности“ в картах неисправностей, определяемых по
ездовым качествам.
См. “Проверка системы гашения детонации”, карта С-4.
КОД Р0327
Низкий уровень сигнала датчика детонации
Код Р0327 заносится, если:
обороты коленчатого вала двигателя больше 1300 об/мин;
температура охлаждающей жидкости выше 60'С;
амплитуда сигнала датчика детонации ниже порога.
Описание проверок
Последовательность соответствует взятым в кружок цифрам на карте.
. Проверяется существование условий для возникновения кода Р0327.
. Проверяется провода 86 Г и 91 на обрыв и короткое замыкание.
Диагностическая информация
Необходимо проверить разъем датчика детонации на предмет попадания в него
посторонних жидкостей (моторного масла), грязи и пыли. При сильном загрязнении
прочистить бензином или любым растворителем, не разрушающим пластмассу и
резиновые уплотнения.
См. “Непостоянные неисправности” в картах неисправностей, определяемых по
ездовым качествам, раздел 2.9В.
См. “Проверка системы гашения детонации”, карта С-4.
КОД Р0328
Высокий уровень сигнала датчика детонации
Код Р0328 заносится, если:
обороты коленчатого вала двигателя более 1300 об/мин;
температура охлаждающей жидкости выше 60'С;
амплитуда сигнала датчика детонации выше порога.
Описание проверок
Последовательность соответствует взятым в кружок цифрам на карте.
. Проверяется существование условий для возникновения кода Р0З28.
. Проверяется исправность экрана проводов.
Диагностическая информация
Необходимо проверить на слух работу двигателя на наличие посторонних
металлических шумов и стука (не отрегулированы клапаны), при обнаружении
устранить их.
Необходимо проверить затяжку гайки крепления датчика детонации на
двигателе.
Убедиться в том, что жгут с проводами датчика не проложен вблизи
высоковольтных проводов.
См. “Проверка системы гашения детонации”, карта С-4.
КОД Р0335
Неверный сигнал датчика положения коленчатого вала
Код Р0335 заносится, если:
коленчатый вал проворачивается;
за один поворот коленчатого вала двигателя контроллер считывает неверное
число зубьев на задающем диске шкива коленчатого вала.
нет сигнала с датчика положения коленчатого вала (условие применяется для
контроллера “Январь-5.1”).
Описание проверок
Последовательность соответствует взятым в кружок цифрам на карте.
. Проверяются провода и сопротивление датчика положения коленчатого вала.
Сопротивление может незначительно изменяться при повышении температуры.
. Выходной сигнал датчика должен иметь амплитуду напряжения переменного
тока около 0,3 В при оборотах прокручивания коленчатого вала стартером.
Диагностическая информация
Нарушение контактов в колодке датчика или контроллера может вызвать
занесение непостоянного кода Р0335.
Также занесение непостоянного кода Р0335 может вызвать поврежденный экран
жгута датчика.
Проверить задающий диск на шкиве коленчатого вала на отсутствие зубьев,
биение или другие повреждения.
КОД Р0501
Неверный сигнал датчика скорости автомобиля
Код Р0501 заносится, если:
обороты коленчатого вала двигателя выше 2500 об/мин;
двигатель работает в режиме частичных нагрузок или мощностного
обогащения;
сигнал скорости автомобиля соответствует 3 км/ч или менее;
параметр нагрузки TL превышает 3 мс;
вышеперечисленные условия выполняются в течение 3 с.
Описание проверок
. Проверяется работа датчика скорости с помощью прибора DST-2.
. Проверяется - не замкнута ли цепь входного сигнала датчика скорости
автомобиля на источник питания.
. При “прозванивании” пробником цепи входного сигнала скорости автомобиля
несколько раз в секунду должен генерироваться сигнал скорости автомобиля,
отображаемый прибором DST-2.
. Проверяется мультиметром наличие опорного напряжения в цепи входного
сигнала датчика скорости автомобиля.
. Проверяется исправность цепи питания датчика.
. Эта цепь обеспечивает заземление датчика скорости автомобиля. При
обрыве в цепи датчик скорости автомобиля не может импульсно замыкать цепь
входного сигнала датчика скорости автомобиля на массу.
Диагностическая информация
Прибор DST-2 должен показывать скорость автомобиля при вращении ведущих
колес со скоростью более 3 км/ч.
КОД Р0505
Ошибка регулирования холостого хода
Код Р0505 заносится, если:
двигатель работает в режиме холостого хода;
обороты коленчатого вала двигателя на 200 об/мин больше или меньше
необходимых оборотов холостого хода;
вышеперечисленные условия выполняются в течение 20 с.
Описание проверок
Последовательность соответствует взятым в кружок цифрам на карте.
. Прибор DSТ-2 используется в режиме управления оборотами холостого хода
для открытия и закрытия клапана регулятора холостого хода. Клапан должен плавно
перемещаться в указанном диапазоне.
. Проверяется регулятор холостого хода при помощи тестера ТДРХ-1 (г.
Самара) или J-34730-3 (ф. ОТС, США).
. Проверяется с помощью мультиметра исправность регулятора холостого
хода.
. Проверяется исправность цепей управления регулятора холостого хода (провода
45 ГБ, 46 ГЧ, 49 ЗБ, 52 ЗЧ).
Диагностическая информация
Пониженные, нестабильные или повышенные обороты холостого хода могут быть
вызваны неисправностью, которая не может быть преодолена регулятором холостого
хода. Количество шагов по прибору DST-2, выходящее за пределы регулирования
регулятора холостого хода, будет более 50, если обороты занижены, и ноль шагов,
если обороты холостого хода завышены.
Для устранения неисправностей, не относящихся к регулятору холостого
хода, необходимо выполнить следующие проверки:
Переобедненная смесь. Обороты холостого хода могут быть низкими или
высокими. Обороты могут колебаться. Отключение регулятора холостого хода не
помогает. Проверить систему топливоподачи на падение давления топлива, наличие
воды в топливе или загрязнение форсунок.
Переобогащенная смесь. Обороты холостого хода низкие. С отработавшими
газами выходит черный дым. Проверить систему топливоподачи на повышение
давления топлива, негерметичность форсунок или залипание клапанов форсунок в
открытом состоянии.
Дроссельный патрубок. Снять регулятор холостого хода и проверить
проточную часть на наличие посторонних частиц. Проверить контакты регулятора на
надежность соединения.
Система вентиляции картера. Неисправность системы вентиляции картера
может привести к отклонению оборотов холостого хода.
См. “Неустойчивая работа или остановка на холостом ходу” в картах
неисправностей. Если непостоянные нарушения ездовых качеств или холостого хода
устраняются при отключении регулятора холостого хода, то необходимо повторно
тщательно проверить соединения и сопротивление между контактами регулятора.
1.5 Разъем
контроллера
|
Кон- такт
|
Цвет провода
|
Назначение
|
Адрес
|
Напряжение, В
|
Коды
|
Возможные неисправности цепи
|
|
|
|
|
зажиг влюч.
|
двиг. работ
|
|
|
|
1
|
бел/гол
|
Выход управления зажиганием 1-4 цил.
|
Модуль зажигания, контат «В»
|
(В+)
|
(5)
|
нет
|
Нестабильный холостой ход, нет мощности, двигатель глохнет
(9, 10).
|
|
2
|
|
Нет соединения
|
|
|
|
|
|
|
3
|
сер/черн
|
Выход управления реле электро- бензонасоса
|
Штекер «86» реле электро- бензонасоса
|
(В+) (1)
|
0**
|
нет
|
Двигатель не запускается. Насос работает постоянно (10).
|
|
4
|
зел/черн
|
Выход управления регулятором ХХ
|
Регулятор холостого хода, контакт «А»
|
Не изме-ряется
|
Не изме-ряется
|
Р0505
|
Остановки двигателя. Нестабильный холостой ход (9).
|
|
5
|
зел/жел
|
Выход управления продувкой адсорбера
|
Клапан продувки адсорбера, контакт «В»
|
(В+)
|
(11)
|
Нет
|
Утечка топлива, запах паров бензина. Нестабильный холостой
ход.
|
|
6
|
черн/крас
|
Выход управления реле вентилятора системы охлаждения
|
Реле вентилятора, штекер «86»
|
(В+)
|
(12)
|
Нет
|
Вентилятор не работает (7). Вентилятор работает постоянно
(10).
|
|
7
|
желтый
|
Вход сигнала ДМРВ
|
ДМРВ, контакт «5»
|
0,9-1,1
|
1,15-1,14
|
Р0102 Р0103
|
Недостаток мощности, остановки двигателя.
|
|
8
|
бел/черн
|
Выход сигнала ДФ
|
ДФ, контакт «С»
|
(15)
|
(15)
|
Р0340
|
Недостаток мощности (8).
|
|
9
|
серый
|
Вход сигнала ДСА
|
Спидометр, ДСА, контакт «2»
|
(2)
|
(2)
|
Р0501
|
Скорость автомобиля по прибору ДСТ-2 не соответствует
показаниям спидометра.
|
|
10
|
кор/бел
|
Выход массы датчика кислорода
|
Датчик кислорода контакт «С»
|
0**
|
0*
|
Р0134
|
Режим «Разомкнутый контур». Прибор ДСТ-2 показывает 450 мВ.
|
|
11
|
голубой
|
Вход сигнала датчика детонации
|
Датчик детонации, контакт «1»
|
0*
|
0*
|
Р0325 Р0327 Р0328
|
Повышенная детонация.
|
|
12
|
сер/бел
|
Выход напряжения питания датчиков
|
ДМРВ контакт «4», ДПДЗ контакт «А»
|
5
|
5
|
Р0102 Р0122
|
Повышенные обороты холостого хода.
|
|
13
|
сер/гол
|
Линия L
диагностики
|
Штекер «В» диагностического разъёма
|
0**
|
0**
|
Нет
|
|
|
14
|
коричневый
|
Выход «Силовое заземление»
|
Масса двигателя
|
0**
|
0**
|
Нет
|
Двигатель не запускается, мала мощность.
|
|
15
|
коричневый
|
Выход управления нагревом датчика кислорода
|
ДК, контакт «D».
Контроллер, контакт «33»
|
(В+)
|
0**
|
Р0134 Р0171 Р0172
|
Режим «Разомкнутый контур». Прибор ДСТ-2 показывает 450 мВ.
|
|
16
|
черн/зел
|
Выход управления форсункой 2 цилиндра
|
Жгут проводов форсунок, контакт «С»
|
(В+)
|
(14)
|
Нет
|
Мала мощность, нестабильный холостой ход.
|
|
17
|
|
Нет соединения
|
|
|
|
|
|
|
18
|
красный
|
Вход напряжения неотключаемого
|
Клема «+» аккумуляторной батареи
|
(В+)
|
(В+)
|
Р1612
|
Мала мощность, нестабильный холостой ход.
|
|
19
|
кор/гол
|
Выход «Логическое заземление»
|
Масса двигателя
|
0**
|
0**
|
Нет
|
Двигатель не запускается, мала мощность.
|
|
20
|
сер/крас
|
Выход управления зажиганием 2-3 цил.
|
Модуль зажигания, контакт «А»
|
(В+)
|
(5)
|
Нет
|
Нестабильный холостой ход, нет мощности, двигатель глохнет
(9,10).
|
|
21
|
гол/черн
|
Выход управления регулятора ХХ
|
Регулятор холостого хода, контакт «А»
|
Не измеряется
|
Не измеряется
|
Р0505
|
Остановки двигателя. Нестабильный холостой ход (9).
|
|
22
|
бел/крас
|
Выход управления контрольной лампой
|
Комбинация проводов
|
(13)
|
(13)
|
Нет
|
Не горит контрольная лампа (7), или горит постоянно (9)
|
|
23
|
черный
|
Выход управления форсункой 1 цил.
|
Жгут проводов форсунок, контакт «В»
|
(В+)
|
(14)
|
Нет
|
Мала мощность, нестабильный холостой ход.
|
|
24
|
коричнев
|
Выход «Силовое заземление»
|
Масса двигателя
|
0**
|
0**
|
Нет
|
Двигатель не запускается, мала мощность.
|
|
25
|
роз/гол
|
Выход управления реле компрессора кондиционера
|
Реле компрессора кондиционера
|
(12)
|
(12)
|
Нет
|
Не работает кондиционер (8,10). Кондиционер работает
постоянно (10).
|
|
26
|
зел/бел
|
Выход управления регулятора ХХ
|
Регулятор холостого хода, контакт «В»
|
Не измеряется
|
Не измеряется
|
Р0505
|
Остановки двигателя. Нестабильный холостой ход (9).
|
|
27
|
гол/крас
|
Ввод сигнала с выключателя зажигания
|
Выключатель зажигания. Блок управления АПС, контакт «20»
|
(В+)
|
(В+)
|
Нет
|
Двигатель не запускается.
|
|
28
|
розовый
|
Вход сигнала датчика кислорода
|
Датчик кислорода, контакт «А»
|
0,45
|
0,1-0,8
|
Р0131 Р0132 Р0134
|
Режим «Разомктутый кантур». Резкий запах.
|
|
29
|
гол/бел
|
Выход управления регулятора ХХ
|
Регулятор холостого хода, контакт «D»
|
Не измеряется
|
Не измеряется
|
Р0505
|
Остановки двигателя. Нестабильный холостой ход (9).
|
|
30
|
зел/крас
|
Выход «Заземление датчиков»
|
ДМРВ, контакт «3». ДТОЖ, контакт «А». ДПДЗ, контакт «В».
ДД, контакт «2».
|
0**
|
0**
|
Р0102 Р0117 Р0123 Р0327
|
Недостаток мощности, остановки двигателя. Трудный запуск,
высокая токсичность. Быстрый и(или) неравномерный холостой ход. Повышенная
детонация.
|
|
31
|
|
Нет соединения
|
|
|
|
|
|
|
32
|
|
Нет соединения
|
|
|
|
|
|
|
33
|
коричнев
|
Выход управления нагревателем датчика кислорода
|
Контроллер, контакт «15»
|
(В+)
|
0**
|
Р0134 Р0171 Р0172
|
Режим «Разомкнутый контур». Прибор ДСТ-2 показывает 450 мВ.
|
|
34
|
черн/гол
|
Выход управления форсункой 4 цил.
|
Жгут проводов форсунок, контакт «В»
|
(В+)
|
(14)
|
Нет
|
Мала мощность, нестабильный холостой ход.
|
|
35
|
черн/бел
|
Выход управления форсункой 3 цил.
|
Жгут проводов форсунок, контакт «В»
|
(В+)
|
(14)
|
Нет
|
Мала мощность, нестабильный холостой ход.
|
|
36
|
|
Нет соединения
|
|
|
|
|
|
|
37
|
роз/черн
|
Выход напряжения отключаемого
|
Главное реле, штекер 87». ДФ, контакт «В».
|
(В+)
|
(В+)
|
Нет
|
Двигатель не запускается.
|
|
38
|
|
Нет соединения
|
|
|
|
|
|
|
39
|
|
Нет соединения
|
|
|
|
|
|
|
40
|
|
Нет соединения
|
|
|
|
|
|
|
41
|
зелёный
|
Вход сигнала запроса на выключение кондиционера
|
Жгут проводов кондиционера
|
(12)
|
(12)
|
Нет
|
Не работает кондиционер (8,10). Кондиционер работает
постоянно (10).
|
|
42
|
|
Нет соединения
|
|
|
|
|
|
|
43
|
кор/крас
|
Вход сигнала частоты вращения коленвала
|
Тахметр
|
(В+)
|
(5)
|
Нет
|
Не работает тахометр.
|
|
44
|
|
Нет соединения
|
|
|
|
|
|
|
45
|
оранжев
|
Вход сигнала ДТОЖ
|
ДТОЖ, контакт «В»
|
(3)
|
(3)
|
Р0117 Р0118
|
Трудный запуск, высокая токсичность.
|
|
46
|
крас/черн
|
Выход управления главным реле
|
Главное реле, штекер «86»
|
0**
|
0**
|
Нет
|
Двигатель не запускается.
|
|
47
|
|
Нет соединения
|
|
|
|
|
|
|
48
|
зелёный
|
Выход массы ДПКВ
|
0**
|
(5)
|
Р0335
|
Двигатель не запускается. Перебои в работе двигателя.
|
|
49
|
белый
|
Вход сигнала ДПКВ
|
ДПКВ, контакт «А»
|
0**
|
(5)
|
Р0335
|
Двигатель не запускается. Перебои в работе двигателя.
|
|
50
|
|
Нет соединения
|
|
|
|
|
|
|
51
|
|
Нет соединения
|
|
|
|
|
|
|
52
|
|
Нет соединения
|
|
|
|
|
|
|
53
|
гол/оран
|
Вход сигнала ПДЗ
|
ДПДЗ, контакт «С»
|
0,3-0,7
|
0,3-0,7
|
Р0122 Р0123
|
Быстрый холостой ход, неравномерный холостой ход (9).
Затруднён пуск в холодном состоянии.
|
|
54
|
жел/черн
|
Выходной сигнал расхода топлива
|
Маршрутный компьютер
|
(В+)
|
(5)
|
Нет
|
Компьютер не показывает расход топлива.
|
|
55
|
оран/гол
|
Линия к диагностики
|
Блок управления Апс, контакт «18»
|
0**
|
0**
|
Нет
|
Дисплей прибора DST-2 показывает (Х).
|
|
|
|
|
|
|
|
|
|
|
|
Примечания к
таблице
(1) - Напряжение ниже 0,1 В в течение первых двух секунд, после
включения зажигания без прокрутки двигателя.
(2) - Если автомобиль не движется, напряжение ниже 1 В или выше 10 В
в зависимости от положения ведущих колёс. При движении напряжение меняется в
зависимости от скорости.
(3) - Напряжение изменяется в зависимости от температуры.
(4) - Напряжение изменяется в зависимости от уровня вибрации той
части двигателя на которую установлен датчик детонации.
(5) - Напряжение изменяется в зависимости от числа оборотов
двигателя.
(6) - Напряжение аккумуляторной батареи (В+) при прогретом двигателе.
(7) - Обрыв
(8) - Обрыв/замыкание в цепи.
(9) - Цепь замкнута на массу.
(10) - Цепь замкнута на +12 В.
(11) - Меняется в диапазоне от напряжения аккумуляторной батареи до
напряжения менее 1 В в зависимости от скважности.
(12) - При включенном реле напряжение менее 0,1 В, а при отключенном
реле, напряжение равно напряжению аккумуляторной батареи.
(13) - При включенной контрольной лампе напряжение менее 0,5 В. Когда
контрольная лампа выключена - на контакте напряжение аккумуляторной батареи.
(14) - Напряжение снижается с увеличением длительности и частоты
следования импульсов впрыска.
(15) - Если автомобиль не движется напряжение ниже 1В или выше 10 В в
зависимости от положения распределительного вала. При движении напряжение
меняется в зависимости от числа оборотов двигателя.
(В+) - Должно быть равно напряжению аккумуляторной батареи.
* - Ниже 0,5 В
** - Ниже 0,1 В
.5 Анализ
существующих конструкций
Разборочно-сборочное оборудование значительно облегчает труд рабочих при
разборке агрегатов, узлов и целого ряда соединений и сопряжений, трудно
поддающихся разборке после их эксплуатации. Эти стенды и механизмы,
обеспечивают удобное и безопасное выполнение тяжелых работ, способствуют
снижению трудоемкости этих работ и повышению производительности труда.
.5.1 Стенд
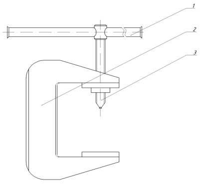
для разборки рулевых механизмов и карданных валов, модель 3025
Стенд предназначен для разборки и сборки рулевых механизмов и карданных
валов автомобилей ГАЗ-51, ЗИЛ-5301 и МАЗ-200 (рисунок 1.1).
В конструкции стенда имеются два пневматических устройства для зажима
разбираемых (собираемых) изделий, состоящих из пневматического цилиндра 8 и
Г-образного механизма 5. Разбираемое (собираемое) изделие 4 устанавливается на
неподвижные призмы 6 и прижимается к ним прижимом 5, который жестко соединены
штоком пневматического цилиндра 8.
- поперечина; 2 - стойка; 3 - поперечина; 4 - изделие;
- прижим; 6 - призма; 7 - пневматический кран;
- пневмоцилиндр; 9 - поддон
Стенд модель 3025
Пневматическая система стенда соединяется с воздушной магистралью гибким
шлангом. Подача воздуха в цилиндры осуществляется поворотом рукоятки
пневматического крана 7.
Основанием стенда является каркас сварной конструкции. Две его стойки
соединены между собой поперечинами 1 и 3. Во избежание опрокидывания стенда в
нижней части стоек 2 приварены уголки 10. На верхних поперечинах размещен
поддон 9 для инструмента и запасных частей.
Достоинства:
a) стенд не крепится к фундаменту;
b) простота устройства;) неограниченный
запас воздуха и несложность его транспортировки в сжатом состоянии;) плавность
передачи усилия.
Недостатки:
a) малое давление в сети и в связи с этим громоздкость исполнительных
цилиндров, затрудненность передачи по указанной причине большой мощности;
b) повышенный нагрев
воздуха при сжатии;) значительный расход электроэнергии на получение
сжатого воздуха;) низкий КПД.
Техническая характеристика
стенда
Способ зажима - пневматический
Число прижимов - 2 шт.
Усилие зажима - 500 кгс
Давление воздуха в системе - 0,4(4) мПа(кгс/см2)
Габаритные размеры - 883Ч650Ч1100 мм
.5.2 Пресс
гидравлический с передвижной головкой ПГП-20
Пресс гидравлический ПГП-20, усилие 20 т. Пресс с ручным перемещением
стола и подвижной кареткой, используется для выполнения работ по выпрессовке,
запрессовке, правке и гибке разных деталей в авторемонтных мастерских и
станциях технического обслуживания.
- опорная плита; 2 - рама; 3 - гидроцилиндр;
- насосная станция
Пресс модель ПГП-20
Стенд состоит из рамы 2, в верхней части которой закреплен гидроцилиндр
3, а в нижней части, меняющаяся по высоте опорная плита 1. Насосная станция 4
закреплена на правой стенке и приводится в действие рукояткой.
К прессу подводится деталь, регулируется необходимая высота плиты и
устанавливается необходимая насадка на гидроцилиндр (рисунок 4.2).
Техническая характеристика пресса:
Усилие - 20 т
Ход штока - 130 мм
Расстояние между столом и штоком - 800 мм
Высота подъёма стола - 600 мм
Давление масла в гидросистеме - 38,2(382) МПа (кгс/смІ)
Габаритные размеры - 600Ч800Ч1700 мм
Масса - 120 кг
Достоинства:
a) высокая производительность, экономичность;
b) простота
конструкции;) высокий КПД;) небольшой износ механизмов системы,
отсутствие коррозии механизмов;) бесшумность работы.
Недостатки:
a) необходимость снятия деталей с автомобиля;
b) возможность утечки
жидкости, что может ухудшить характеристику работы стенда;) большая
вероятность изменения свойств рабочей жидкости в зависимости от температуры,
приводящая к изменению характеристики работы;) высокая стоимость;) необходимость
квалифицированного обслуживания.
Стенд для ремонта карданных
валов Р-223
Стенд для ремонта карданных
валов, предназначен для сборки-разборки карданных валов. Принцип работы
гидравлический.
Техническая характеристика
пресса:
Максимальное усилие выпрессовки - 4000 Н
Усилие зажима - 200 кГс
Рабочее давление в сети - 10(100) МПа (кгс/см2)
Габаритные размеры - 920Ч1150Ч650 мм
Стенд состоит из рамы 5, гидравлического цилиндра 3 и насосной станции 4,
тисков 1 и держателя 2.
- тиски; 2 -держатель;
- гидроцилиндр; 4 - насосная станция;
- рама
Рисунок 4.3 - Стенд для ремонта карданных валов, Р-223
Достоинства:
a) простота конструкции;
b) небольшой износ механизмов системы, отсутствие коррозии
механизмов;) бесшумность работы.
Недостатки:
a) необходимость снятия деталей с автомобиля;
b) возможность утечки
жидкости, что может ухудшить характеристику работы стенда;) большая
вероятность изменения свойств рабочей жидкости в зависимости от температуры,
приводящая к изменению характеристики работы, высокая стоимость;) необходимость
квалифицированного обслуживания.
.5.4 Съемник
крестовин карданных валов СВК1
Данное устройство представляет собой компактный механический съемник.
Минимальное усилие на рукоятке позволяет эффективно использовать съемник для
выпрессовки небольших сборочных единиц, его можно использовать как струбцину и
винтовой пресс при проведении ремонтных работ. Может также использоваться для
разборки крестовин карданных валов при выполнении ремонта трансмиссий грузовых
автомобилей.
- рукоятка; 2 - корпус; 3 - винт нажимной
Съемник крестовин карданных валов СВК1
Достоинства:
. легкая фиксация на снимаемой детали;
. сверхпрочная металлическая конструкция;
. высокая надежность;
. простота конструкции;
. малые габариты и масса.
Недостатки:
. Небольшое усилие, создаваемое съемником.
Технические характеристики съемника:
Усилие - 1 т
Ход винта - 60...160 мм
Рабочее пространство - 125Ч160 мм
Габариты (Ш х Д х В) - 114Ч315Ч180 мм
Масса - 5,3 кг
.5.5 Выбор
прототипа и обоснование путей его совершенствования
Прототипом конструируемого стенда для выпрессовки игольчатых подшипников
крестовин карданного вала, на основании проведенного анализа конструкций,
принимаем установку Р-223. Данный стенд наиболее прост и удобен в
использовании, компактен, прост в обслуживании.
Одним из недостатков стенда является повышенные требования герметичности,
так как используется гидравлическая установка.
Для совершенствования конструкции предлагается гидравлическую передачу
заменить на механическую. Механическая передача проста в обслуживании и
изготовлении имеет больший КПД (коэффициент полезного действия), меньшие
габариты и имеет низкую себестоимость.
Предлагается для наибольшей универсальности стенда, увеличиваем зазор
между держателем и тисками, что позволит производить выпрессовку игольчатых
подшипников крестовин карданных передач легковых и грузовых автомобилей разных
моделей.
Для облегчения центровки карданных валов устанавливаем самоцентрирующиеся
губки на зажимные тисы, что сократит время установки карданного вала.
Для передачи крутящего момента с вала двигателя на грузовой винт
используем ременную передачу. Ременная передача с клиновыми ремнями гарантирует
плавную и тихую работу. Способность к смягчению сильных изменений нагрузки и
гашению колебаний является её достоинством. Благодаря простой и дешёвой
конструкции (без корпуса и смазывания), которая не требует специального
обслуживания и содержания, получается уменьшение эксплуатационных расходов.
Изношенные клиновые ремни можно быстро и легко заменить с минимальным временем
простоя машины. Передаточное отношение можно легко изменить, применяя
ступенчатые шкивы и перекладывая ремень с одних ступеней на другие.
Достоинством ременной передачи является также отсутствие перекоса привода во
время кратковременных перегрузок, что не обеспечивают другие механизмы. В
результате может произойти их повреждение. Ременные передачи мало чувствительны
к неточностям центровки валов. Ременные приводы делают возможным разделение
мощности, то есть перенос привода с одного вала на другие.
Для выпрессовки игольчатых подшипников различных диаметров необходимо
использовать соответствующие насадки и стаканы.
К преимуществам передачи «винт-гайка» относятся простота и компактность
конструкции, большой выигрыш в силе, точность перемещений. Недостатки этой
передачи: большая потеря на трение и связанный с этим малый КПД.
Для повышения надежности, во-первых, устанавливаем два выключателя
предельного положения, во-вторых, работу стенда будем производить при
постоянном нажатии кнопки «назад - вперед» и, в-третьих, оснастим рабочий орган
и ременную передачу защитным кожухом.
1.6
Разработка технического задания и кинематической схемы проектируемого стенда
Техническое задание это документ, предназначенный для специалиста, в
котором отражаются цели, требования к проекту и основные исходные данные,
необходимые для разработки, а также сведения, относящиеся к деятельности
заказчика или свойства продукта.
Техническое задание
|
Раздел
|
Содержание
|
|
Основание для разработки
|
Задание, полученное на кафедре ТЭРА ТОГУ
|
|
Источники разработки
|
Информационно-поисковая система «Мимоза»,
учебно-методическая, справочная литература, труды отечественных и зарубежных
авторов, посвященных расчетам деталей машин, патенты, авторские
свидетельства, прайс-листы оборудования для автосервисов, Internet
|
|
Цель, назначение, производительность стенда
|
a) Улучшение технических показателей, повышение
производительности труда b) Снижение времени на выпрессовку и увеличение
производительности обслуживания и ремонта карданных передач
|
|
Конструктивные требования
|
a) Скорость подачи - 0,02 м/с b) Максимальное усилие,
создаваемое стендом - 5 000 Н
|
|
|
Порядок работы
|
a) Изделие устанавливается в тиски b) Включается c) После
выпрессовки стенд выключается
|
|
|
Требования надёжности
|
Стенд должен работать безотказно в течение 5 суток при
круглосуточной работе, совершая 25-30 операций в смену
|
|
|
Требования стойкости к внешним воздействиям
|
a) Стенд должен быть стойким к воздействию климатических
факторов b) Стенд должен быть устойчив к воздействию механических факторов,
свойственных при транспортировании автотранспортом c) Эксплуатация стенда в
закрытом отапливаемом помещение (температура воздуха 15-20 С, влажность
воздуха 75-100%)
|
|
|
Требования к конструкторской документации (КД) и
эксплуатационной документации (ЭД)
|
a) КД, в том числе и ЭД, должна быть выполнена в
соответствии с требованиями стандартов ЕСКД b) КД должна быть пригодна к
пересылке электронной почтой или передаче на иных носителях информации c)
Технологическая документация должна быть выполнена в соответствии с
требованиями стандартов ЕСТД
|
|
|
Требования технологичности
|
a) При разработке КД несущих конструкций стенда должно
отдаваться предпочтение применению стандартизированных покупных изделий по
каталогам изготовителей и ранее разработанных и успешно применяемых изделий.
Разработка оригинальных составных частей должна производиться только в
технических и (или) экономически обоснованных случаях b) Материалы и
комплектующие изделия должны использоваться в условиях и режимах, указанных в
соответствующих стандартах (ТУ)
|
|
|
Требования безопасности и охраны окружающей среды
|
a) Стенд должен соответствовать общим требованиям
безопасности по ГОСТ 12.2.003-91 и обеспечивать безопасность работающих при
монтаже (демонтаже), вводе в эксплуатацию и эксплуатации при соблюдении
требований, предусмотренных в эксплуатационной документации (ЭД) b) По
способу защиты человека от поражения электрическим током стенд должен
соответствовать классу 01 по ГОСТ 12.2.007.0
|
|
|
c) В конструкторской документации (КД), включая ЭД, должны
быть учтены распространяющиеся на стенд требования стандартов системы
стандартов безопасности труда d) Стенд в процессе эксплуатации не должен
загрязнять природную среду выбросами вредных веществ в количествах выше
допустимых значений, установленных соответствующими стандартами и санитарными
нормами
|
|
|
Требования к взаимозаменяемости и унификации
|
Сменные элементы из состава запасных частей и
принадлежностей должны быть взаимозаменяемыми
|
|
|
Требования эргономики
|
Стенд и его составные части должен соответствовать
требованиям ГОСТ 12.2.049-80 ССБТ. Оборудование производственное. Общие
эргономические требования
|
|
|
Требования к техническому обслуживанию и ремонту
|
Конструкция стенда должна обеспечить возможность проведения
профилактических и регламентных работ
|
|
|
Требования к маркировке и упаковке
|
a) Маркировку следует наносить в соответствии с ГОСТ
26828-86 на несъёмных частях стенда, доступных для обзора b) Маркировка
транспортной тары должна соответствовать требованиям ГОСТ14192 - 77 c)
Упаковка составных частей стенда должна обеспечить их сохраняемость при хранении
и транспортировании
|
|
|
Стадии, этапы разработки
|
a) Анализ существующих аналогов и прототипов b) Разработка
технического задания c) Эскизы проекта d) Расчеты составных частей
конструкции e) Проверочные расчеты на прочность
|
|
Кинематическая схема проектируемого стенда представка на рисунке ниже.
Даная кинематическая схема показывает принцип работы стенда. От двигателя
момент передается на ведущий шкив 1, затем через ременную передачу 2 на ведомый
шкив 1, затем через передачу винт-гайка - 4 воздействует на изделие, которое
крепится в тисках 5.
Кинематическая схема
1.7 Проектный
расчет стенда
Цель проектного расчета ориентировочно определить геометрические размеры
проектируемого стенда.
.7.1
Кинематический расчет стенда
Определить силу F, необходимую для выпрессовки. На крестовину должна
действовать сила:
,
где
- предел прочности на смятие стали. Полагаем
/16/;
-
площадь среза. Возьмем крестовину автобуса НЕФАЗ и посчитаем площадь среза - 80
мм2.
Н ≈
5000 Н
Выбор электродвигателя. Определим потребную мощность двигателя, которая
позволит производить выпрессовку.
,
где
, поступательная скорость движения звена /15/;
−
общий КПД, учитывающий все потери /15, таблица 1.1/.
кВт.
По
ГОСТ 19523-74 согласно [c. 563, T.3, 3] выбираем асинхронный двигатель 80А6/920
с частотой вращения
, мощностью
кВт.
Определим частоту вращения винта:
,
−
шаг резьбы, м.

1.7.2 Расчет
передачи винт-гайка. Основные параметры
Материал
винта и гайки. Для винта принимаем сталь 45, термообработка - улучшение (предел
текучести
), для гайки - оловянистую бронзу БрО10Ф.
Допускаемое
давление и напряжение: Допускаемое давление (износостойкость резьбы) для пары
сталь-бронза
=9 МПа /15/.
Для
материала винта при коэффициенте запаса прочности
=3 /15/.
Для
материала гайки на растяжение и смятие
;
.
Средний
диаметр резьбы. Для передачи принимаем упорную резьбу. Конструкцию гайки
выбираем цельную, с коэффициентом высоты гайки
.
Тогда
средний диаметр резьбы (
, мм):
≥
,
где
− осевая сила, действующая на винтовую пару;
−
коэффициент высоты головки гайки /15/;
= 9 МПа
- допускаемое давление по таблице 13.6 /15/.
≥
мм.
По
вычисленному значению
выбираем большее ближайшее значение по ГОСТ 10177-82
/таблица 13.4, 1/ номинальный диаметр резьбы
мм., шаг
резьбы
мм., средний диаметр
мм.
внутренний диаметр винта
мм.
Угол подъема резьбы.
,
Приведенный
угол трения при коэффициенте трения
и угле
наклона рабочей стороны профиля
.
Так
как 
,
передача винт-гайка самотормозящаяся.
Размеры
гайки. Высота гайки
мм.
Принимаем по стандарту Н=30 мм.
Наружный диаметр гайки:
≥
мм.
Принимаем
мм.
Диаметр гайки:
мм.
Проверочный
расчет винта на устойчивость. Один конец винта опирается шарнирно на ползун, а
другой шарнирно (вследствие зазоров в резьбе) закреплен в гайке. Принимаем
коэффициент приведения длины учитывающий способ закрепления концов винта
(оба конца опоры шарнирно).
Момент инерции поперечного сечения винта:
,
мм4
Радиус инерции сечения винта:
,
Согласно
эскизной компоновке расчетная длина винта
мм.
Для
стали 45 выбираем: предельную гибкость материала
;
гибкость винта, при которой критическое напряжение в поперечном сечении равно
пределу текучести
-
.
Следовательно,
этот винт малой гибкости, для которого критическое напряжение равно пределу
текучести 
, т.е.
специальный расчет на устойчивость не нужен.
Проверочный
расчет винта на прочность.
Момент
сопротивления в резьбе:
,
Согласно
нашей конструкции винт опирается на ползун пятой диаметром
. При стальном подпятнике примем коэффициент трения
Момент трения на торце пяты.
НЧмм
1 - винт; 2 - гайка; 3 - шкив ременной передачи.
Расчетная схема вала
Строим
эпюры продольных сил
и крутящих моментов
. При
условии равномерного распределения осевой силы по виткам резьбы продольная сила
винта в пределах гайки изменяется от
до 0, а крутящий момент
от
до
.
По
эпюрам
и
опасное
сечение винта может быть либо выше гайки (сечение а-а), либо ниже ее (сечение
Б-Б). Доказано, что сечение винта в пределах гайки менее опасно.
Выполним
проверку опасных сечений.
Сечение
А-А. В этом сечении продольная сила
, а
крутящий момент
НЧмм
Эквивалентное напряжение
,
Сечение
Б-Б. В этом сечении
,
=
:
следовательно, в обоих сечениях прочность винта обеспечена.
Проверочный расчет гайки.
Проверка
прочности тела гайки выполняется по напряжениям растяжения с учетом кручения
Н
По формуле
,
что
меньше
. Прочность тела гайки обеспечена.
Проверка
опорной поверхности борта гайки выполняется по условию прочности на смятие:
что
меньше
. Прочность опорной поверхности борта гайки
обеспечена.
.7.3 Расчет
ременной передачи
Расчет
ременной передачи будем производить по методике изложенной [c. 61-68, 2].
Передаваемая мощность
кВт., частота вращения вала двигателя
, частота вращения винта
.
Выбираем
сечение клинового ремня по таблице 5.6 [2, с. 69] предварительно определи
угловую скорость и номинальный вращающий момент
При
таком значении
а таблице 5.6 [2, с. 69] рекомендуется выбрать
сечение ремня В, с площадью поперечного сечения
.
Выбираем
диаметр
ведущего шкива. В таблице 5.6 [2, с. 69] указано
минимальное значение
=200 мм. Однако для обеспечения большей долговечности
ремня рекомендуется не ориентироваться на
, а брать
шкив на 1-2 номера больше.
Принимаем
.
Определяем
передаточное отношение
без учета скольжения
.
Диаметр
ведомого шкива с учетом относительного скольжения
.
Округляем
в меньшую сторону по стандарту, принимаем
.
Уточняем передаточное отношение
уточняем
Расхождение
с заданным меньше 1% (при допускаемом 3%).
Определяем
межосевое расстояние а: его выбираем в интервале:
,
,
Принимаем
близкое к среднему значению
.
Расчетная
длина ремня определяется по формуле, как и в случае плоскоременной передачи:
,
Ближайшая
по стандарту длина [2, с. 68]
Вычисляем
и
определяем новое значение
с учетом стандартной длины
по формуле:
При
монтаже передачи необходимо обеспечить возможность уменьшения,
на
для
того, чтобы облегчить надевание ремней на шкив; для увеличения натяжения ремней
необходимо предусмотреть возможность увеличения
на
; в нашем случае необходимое перемещение составляет: в
меньшую сторону
, в большую сторону
Угол
обхвата на малом шкиве
Скорость
По
таблице 5.7 /2, с.71-73/ находим величину окружного усилия
, передаваемого одним клиновым ремнем сечения
при
,
и
(интерполируя):
- на один ремень.
Допускаемое
полезное напряжение (удельное окружное усилие на единицу площади поперечного
сечения ремня)
Коэффициент
учитывает влияние угла обхвата
. Так как
зависит
от межосевого расстояния
, то следует предварительно определить
- его принимают равным удвоенной сумме диаметров
шкивов:
Коэффициент
Коэффициент,
учитывающий влияние длины ремня,
Так
как расчетная длина
,
.
Коэффициент
учитывает условия эксплуатации передачи [c. 63, 2]
Следовательно,
Окружное
усилие:
Расчетное
число ремней:
Определяем
усилия в ременной передаче, приняв напряжение от предварительного натяжения
:
Предварительно
натяжение каждой ветви ремня
Натяжение
ведущей ветви
Натяжение
ведомой ветви
Проверяем
окружное усилие:
Давление
на вал
≈
773 Н
.7.4 Подбор и
проверка долговечности подшипников
Расчет
конического роликового подшипника. Предварительно назначаем роликовый
конический однорядный повышенной грузоподъемности подшипник по ГОСТ 27365-87 -
7312А
,
,
,
,
,
,
,
(динамическая
грузоподъемность). Определим реакции в опорах:
Проверка:
Проверка:
Суммарные
реакции в опорах:

Эквивалентная
нагрузка по формуле:
где
коэффициенты
; 
Отношение
этому отношению соответствует
[таблица 7.3, с. 119, 3]. Так как отношение
то
и
.
Расчетная
долговечность, млн. об.
Расчетная
долговечность, ч.
.
Так
как расчетный ресурс
больше требуемого, то предварительно назначенный
подшипник 7312А пригоден.
Расчет
шарикового подшипника.
Назначаем
шариковый радиальный однорядный подшипник по ГОСТ 8338-75 - 209
,
,
,
,
,
(динамическая
грузоподъемность).
Определим
долговечность подшипника на второй опоре. На эту опору действует радиальная
реакция
,
.
Эквивалентная
нагрузка по определяется формуле:
где
- коэффициент радиальной нагрузки (принимаем
=1);
-
коэффициент, учитывающий вращение колец (принимаем
=1);
-
коэффициент безопасности (принимаем
=1,3);
-
температурный коэффициент по /2, табл. 2.20/ принимаем
=1.
Расчетная
долговечность, млн. об.
Расчетная
долговечность, ч.
.
Так
как расчетный ресурс больше требуемого, то предварительно назначенный подшипник
209 пригоден.
.8 Описание
работы стенда
Ремонт карданного шарнира обычно заключается в замене игольчатых
подшипников, уплотнений и крестовины для чего шарнир необходимо разобрать.
Подшипники в проушинах вилок установлены с натягом, поэтому при разборке и
сборке шарнира их приходится соответственно впрессовывать и запрессовывать.
Корпуса подшипников выпрессовывают в порядке представленном ниже.
Нанесите метки (краской или керном), определяющие взаимное положение
разделяемых деталей, чтобы соединить их при сборке в том же положении и
сохранить неизменной балансировку валов.
Установите в тиски карданный вал. Снимите стопорные кольца.
Далее установите карданный вал одной из вилок карданного шарнира на опору
пресса. Через специальную втулку штоком пресса переместите другую вилку шарнира
вниз до упора в крестовину.
Повернув вилку шарнира на 180°, повторите указанные операции, то есть
переместите другой конец вилки вниз до упора в крестовину. При выполнении этих
операций противоположный подшипник крестовины частично выйдет из отверстия
вилки и в полученный зазор между вилкой и крестовиной можно будет установить
втулку с боковым вырезом.
Установив втулку на шип крестовины, переместите вилку шарнира вниз до
выпрессовки подшипника.
Используя указанные приемы, выпрессуйте другие
подшипники крестовины.
1.9 Правила
безопасности и эксплуатации стендов
Одним из основных мероприятий по обеспечению безопасности труда являются
обязательный инструктаж всех работников предприятия.
Снижение производственного травматизма во многом зависит от того, в каком
состоянии находится гаражное оборудование и приспособления.
Прежде всего, стенд и его приспособления должны быть чистыми и
исправными. Приступая к работе, слесарь должен привести в порядок спецодежду,
проверить наличие и исправность инструментов, оборудования и предохранительных
приспособлений. Место, где рабочий производит поручаемую ему работу должно
хорошо освещаться и не загромождаться изделиями и материалами, не имеющими
прямого отношения к производственной работе. В месте производства работ, запрещается
находиться лицам, не имеющим прямого отношения к этим работам.
Эксплуатируемое оборудование должно находиться в полной исправности и за
его состоянием должен быть обеспечен постоянный надзор со стороны определённых
лиц, назначенных администрацией предприятия, или лично технического
руководителя.
Эксплуатационное обслуживание электродвигателя должен выполнять
квалифицированный персонал, электромонтеры. Электродвигатель должен быть
обязательно заземлен. В случае возникновения любых неисправностей электродвигатель
должен быть немедленно обесточен.
Техническое обслуживание электродвигателя сводится в основном к
своевременной замене подшипников. При критическом износе подшипников
электродвигателя (появляется характерный шум сепараторов) возможно, их разрушение
и заклинивание
Рабочее место должно иметь достаточную освещенность, т.е соответствовать
нормам освещенности СНИП 23-05-95 «Естественное и искусственное освещение».
Техническое обслуживание ременных передач сводится к периодической
проверки состояния ремней. При появлении трещин, разрывов, расслоений и других
дефектов ремень следует заменить, а ослабленный натянуть.
Для компенсации вытяжки ремней в процессе их эксплуатации, компенсации
отклонений длины ремней, а также легкости надевания новых ремней предусмотрено
регулирование межосевого расстояния ременной передачи поворотом плиты, на
которой расположен электродвигатель.
2.Технологическая
часть
В технологической части выпускной квалификационной работе производится
расчет производственной программы предприятия, объема работ, численности
производственных рабочих и технологический расчет производственных зон и
участков.
Исходными данными для расчёта являются тип и количество подвижного
состава, среднесуточный пробег автомобилей, категория условий эксплуатации,
возраст и природно-климатические условия. Исходные данные приведены в таблице
2.1.
Таблица 2.1 - Исходные данные для расчёта
|
Технологическая группа
|
Зил-5301
|
Зил-130
|
|
Количество подвижного состава в базовом предприятии, ед.
|
169
|
21
|
|
Среднесуточный пробег, км
|
238
|
238
|
|
Категория условий эксплуатации
|
III
|
III
|
|
Количество рабочих дней в году
|
365
|
365
|
|
Пробег с начала эксплуатации в долях от капитального
ремонта
|
0,5
|
0,1
|
|
Климатический район
|
холодный
|
холодный
|
2.1
Корректировка нормативной периодичности ТО и КР
Производственная программа по техническому обслуживанию представляет
собой количество технических воздействий, выполняемых по ТО и ТР автомобилей.
Расчет производственной программы следует производить после выбора
нормативных значений периодичности ТО-1, ТО-2 и капитального ремонта (КР),
приведенных в «Положении о техническом обслуживании и ремонте подвижного
состава автомобильного транспорта» и корректировки их для данных условий
эксплуатации.
Выбор нормативов и значений коэффициентов производится согласно /2/ и
/3/.
Корректирование периодичности технического обслуживания ТО-1 и ТО-2
проводится по формуле /2, с.14/.
,(2.1)
,(2.2)
где
- коэффициент, корректирующий категорию условий
эксплуатации, принимаем
=0,8;
-
коэффициент корректирования нормативов в зависимости от природно-климатических
условий, принимаем
=0,9;
,
- нормативный пробег до ТО-1 и ТО-2, км.
Все
автомобили относятся к автобусам большого класса, тогда согласно /2/
нормативный пробег для всех групп будет равен: до ТО-1 - 3 500 км., до ТО-2 14
000 км.
Скорректированную
периодичность до ТО-1 и ТО-2 для Зил-5301 и Зил-130 определим по формуле 2.1 и
2.2.
км.
км.
Корректирование
пробега до капитального ремонта производится по формуле /4, с.14/:
,(2.3)
где
- коэффициент, учитывающий модификацию подвижного
состава и организацию его работы, принимаем
=1,0 для
всех трёх групп /2, с.15/;
-
нормативный пробег автомобиля до капитального ремонта, км.;
Нормативный
пробег до капитального ремонта примем для Зил-5301 -
=750 000 км., для автобусов Зил-130 - 500 000 км.
Межремонтный пробег для автомобилей, прошедших капитальный ремонт, принимается
не менее 80% от нормы пробега для новых автомобилей.
Скорректированный
пробег до капитального ремонта определим по формуле 2.3.
км.
км.
Для
формирования плана технических воздействий по ТО и ТР необходимо принимать в
расчетах проведение их через целое количество дней или целое количество ТО-1,
ТО-2, для чего проводится корректирование периодичности по среднесуточному
пробегу и пробегу до ТО-1, ТО-2. Корректировка заключается в подборе численных
значений периодичности пробега в километрах для каждого вида ТО и ремонта,
кратных между собой и среднесуточному пробегу и близких по своей величине к
установленным нормативам.
Количество
дней до ТО-1 определяется по формуле:
, (2.4)
где
- расчетная периодичность до ТО-1 (целое число), дн;
- среднесуточный
пробег автомобиля, км.
дн.
округляем до 15 дн.
Так
у всех автомобилей пробег до ТО-1 одинаковый то количество дней тоже будет
одинаковое.
Скорректированная
периодичность ТО-1 для автобусов определяется по формуле /4, с.36/.
,(2.5)
км.
Количество
ТО-1 между ТО-2 определяется по формуле /4, с.35/.
, (2.6)
где
- расчетное количество ТО-1 между очередными ТО-2,
дн.
дн.
округляем до 4 дн.
Скорректированная
периодичность ТО-2 определяется по формуле /4, с.35/.
,(2.7)
км.;
Количество ТО-2 до КР определяется по формуле /4, с.8/.
, (2.8)
где
- расчетное количество ТО-2 до КР.
дн.
округляем до 30 дн.
дн.
округляем до 25 дн.
Скорректированный
пробег до капитального ремонта определяется по формуле /4, с.36/.
,(2.9)
км.;
км.;
.2 Расчёт
производственной программы по количеству воздействий
Число
технических воздействий на один автомобиль за цикл определяется отношением
циклового пробега
к пробегу до данного вида воздействий. Так как
цикловой пробег
в данной методике расчёта принят равным ресурсному
пробегу
автомобиля, то число списаний одного автомобиля за
цикл будет равно единице, т.е.
=
отсюда
. В
расчёте принято, что при пробеге, равном
,
очередное последнее за цикл ТО-2 не проводится и автомобиль направляется на
списание (или в КР). Принято, что ЕО разделяется на ЕОс (выполняемое ежедневно)
и ЕОт (выполняемое перед ТО и ТР).
Количество воздействий ТО-2 за цикл определяется по формуле /4, с.34/:
, (2.10)
где
- число воздействий за цикл, ед.
По формуле 2.10 определим количество воздействий ТО-2 за цикл:
ед.
ед.
Количество воздействий ТО-1 за цикл определяется по формуле /4, с.34/:
,(2.11)
ед.
ед.
Количество воздействий ЕОс (выполняемое ежедневно) за цикл для двух групп
автомобилей определяется по формуле /4, с.34/:
, (2.12)
ед.
ед.
Количество
воздействий ЕОт (выполняемое перед ТО и ТР) за цикл для двух групп автомобилей
определяется по формуле /4, с.34/:
,(2.13)
ед.
ед.
Так как пробег автомобиля за год отличается от его пробега за цикл, а
производственную программу предприятия обычно рассчитывают за год, то для
определения числа ТО за год необходимо сделать соответствующий перерасчёт
полученных значений за цикл к значениям за год. Для пересчета программы
определяется коэффициент перехода от цикла к году:
, (2.14)
где
- годовой пробег автомобиля, км.
Годовой пробег автомобиля рассчитывается по формуле /4, с.34/:
, (2.15)
где
- количество дней работы предприятия в году, согласно
исходным данным 365 дн.;
-коэффициент
технической готовности автомобиля.
Коэффициент
технической готовности
, определяется по формуле /4, с.36/:
,(2.16)
где
- количество дней простоя автомобиля в ТО и ТР на 1000
км пробега.
-
продолжительность простоя подвижного состава в капитальном ремонте. Согласно
Положению принимаем
- 25 дн.;
Определим
коэффициент технической готовности
, по
формуле 2.10.
По
формуле 2.15 определим годовой пробег автомобиля:
км;
км.
По
формуле определим коэффициент перехода от цикла к году:
Годовое количество технических обслуживаний и ремонтов на один автомобиль
определяется как произведение полученной ранее цикловой программы на
коэффициент перехода от цикла к году.
, (2.17)
, (2.18)
Число ЕОс и ЕОт определяется по формулам 2.19 и 2.20:
, (2.19)
,(2.20)
ед.
ед.
ед.
ед.
Результаты расчетов по количеству воздействий для всех групп автомобилей
представим в таблице 2.2. Учтем, что количество сезонных воздействий будет
равно двум.
Таблица 2.2 - Количество воздействий за год
|
Показатель
|
Зил 5301
|
Зил 130
|
Итого
|
|
Количество воздействий на 1 автомобиль, ед.
|
Количество воздействий на всю группу, ед.
|
Количество воздействий на 1 автомобиль, ед.
|
Количество воздействий на всю группу, ед.
|
|
|
31653 4042775 81759 221
|
|
|
|
|
|
|
345 746296096 355
|
|
|
|
|
|
|
162 704142942 998
|
|
|
|
|
|
|
5845484929
|
|
|
|
|
|
|
2338242380
|
|
|
|
|
|
2.3
Количество диагностических воздействий за год по маркам автомобилей
Согласно «Положением о техническом обслуживании и ремонте подвижного
состава», диагностирование как отдельный вид обслуживания не планируется, и
работы по диагностированию подвижного состава входят в объём работ ТО и ТР. При
этом в зависимости от метода организации диагностирование автомобилей может
производиться на отдельных постах или быть совмещено с процессом ТО, поэтому в
данном случае число диагностических воздействий определяется для последующего
расчёта постов диагностирования и его организации. На АПТ в соответствии с
Положением предусматривается диагностирование подвижного состава Д-1 и Д-2.
Диагностирование Д-1 предназначено главным образом для определения
технического состояния агрегатов, узлов и систем автомобиля, обеспечивающих
безопасность движения. Д-1 предусматривается для автомобилей при ТО-1, после
ТО-2 (по узлам и системам, обеспечивающим безопасность движения, для проверки
качества работ и заключительных регулировок) и при ТР (по узлам, обеспечивающим
безопасность движения). Число автомобилей, диагностируемых при ТР, согласно
опытным данным и нормам проектирования ОНТП-АТП-СТО-80 принято равным 10% от
программы ТО-1 за год.
Диагностирование Д-2 предназначено для определения мощностных и
экономических показателей автомобиля, а также для выявления объёмов ТР. Д-2
проводится с периодичностью ТО-2 и в отдельных случаях при ТР. Число
автомобилей, диагностируемых при ТР, принимаем равное 20% от годовой программы
ТО-2.
Количество
Д-1 (
) и Д-2 (
)
рассчитывается по формулам /4, c.32/:
,(2.21)
, (2.22)
где 1,1 и 1,2 - коэффициенты, учитывающие число автомобилей
диагностируемых при ТР /8, с.38/.
Количество
диагностических воздействий
определим
по формуле 2.21.
ед.
ед.
Количество
диагностических воздействий
определим
по формуле 2.22.
ед.
ед.
Суточная производственная программа является критерием выбора метода
организации технического обслуживания и служит исходным показателем для расчета
числа постов и линий ТО. По видам ТО и диагностирования суточная
производственная программа определяется по формуле /4, с.34/:
, (2.23)
Результаты вычислений по суточной производственной программе представим в
таблице 2.3.
Таблица 2.3 - Суточная программа по ЕО, ТО и диагностике
|
Показатель
|
Группа
|
итого
|
|
Зил-5301
|
Зил-130
|
|
|
146,3115,94162,25
|
|
|
|
|
15,741,6717,41
|
|
|
|
|
7,410,818,21
|
|
|
|
|
3,240,353,59
|
|
|
|
|
10,461,1211,58
|
|
|
|
|
2,780,283,05
|
|
|
|
2.4 Расчет
годового объема работ по ТО, ТР и самообслуживанию
.4.1
Определение трудоемкости работ
Для расчета годового объема работ необходимо предварительно установить
для данного АТП нормативные трудоемкости технического обслуживания и текущего
ремонта, а затем скорректировать их с учетом конкретных условий эксплуатации.
Расчётная
нормативная скорректированная трудоёмкость
и
(в человеко-часах) рассчитывается по формуле /4,
c.41/:
, (2.24)
, (2.25)
Тогда
,(2.26)
где
,
-
нормативная трудоёмкость
и
, чел.´ч.
-
коэффициент, учитывающий модификацию подвижного состава, принимаем К2=1,1 для
всех трёх групп согласно /2, с.31/.
Нормативные
значения трудоёмкостей по ЕО, ТО и ТР представлены в таблице 2.4.
Таблица
2.4 - Нормативные трудоемкости ЕО, ТО и ТР
|
Показатель
|
Группа
|
|
Зил-5301
|
Зил-130
|
|
, чел.Чч.0,50,5
|
|
|
|
, чел.Чч.9,09,0
|
|
|
|
, чел.Чч.36,036,0
|
|
|
|
, чел.Чч./1000км.4,24,2
|
|
|
Скорректированную
трудоемкость ежедневного обслуживания
рассчитаем
по формуле 2.25.
чел.Чч.;
чел.Чч.
Скорректированная
нормативная трудоёмкость ТО-1 и ТО-2 рассчитывается по формуле /4, c.32/:
,(2.27)
,(2.28)
где
,
-
нормативное значение трудоемкости ТО-1 и ТО-2 в зависимости от типа
автотранспортного средства, чел.Чч. /2, с.44/;
-
коэффициент, учитывающий модификацию подвижного состава, принимаем
=1,1 для всех трёх групп согласно /2, с.31/;
-
корректирующий коэффициент в зависимости от количества единиц технологически
совместимого подвижного состава предприятия, принимаем
=1,1; 1,55; 1,55 для Зил-5301 и Зил-130 соответственно
/2, с.30/.
Скорректированную трудоемкость ТО-1 рассчитаем по формуле 2.27.
чел.Чч.;
чел.Чч.
Скорректированная
трудоемкость ТО-2 рассчитаем по формуле 2.28.
чел.Чч.;
чел.Чч.
Скорректированная
удельная трудоемкость текущего ремонта определяется по формуле /4, с.14/.
,(2.29)
где К5 - коэффициент, учитывающий способ хранения подвижного состава,
принимаем К5 = 0,9 /7, с.16/
чел.Чч./1000км;
чел.Чч./1000км.
.4.2
Определение годового объема работ по ТО и ТР
Объем
работ по
за год определяется произведением числа
за год на скорректированное значение удельной
трудоемкости
.
,(2.30)
чел.Чч.;
чел.Чч.
Объем
работ по
за год определяется произведением числа
за год на скорректированное значение удельной
трудоемкости
.
,(2.31)
чел.Чч.;
чел.Чч;.
Объем
работ по ТО-1 за год определяется произведением числа ТО-1 за год на
скорректированное значение удельной трудоемкости ТО-1.
,(2.32)
чел.Чч.;
чел.Чч.
Объем работ по ТО-2 за год определяется произведением числа ТО-2 за год
на скорректированное значение удельной трудоемкости ТО-2.
,(2.33)
чел.Чч.;
чел.Чч.
Объем
работ ТР за год определяется по формуле /4, с.42/.
,(2.34)
чел.Чч.;
чел.Чч.
Годовой объем работ по сезонному обслуживанию рассчитывается по формуле:
,(2.35)
где nСО - доля трудоемкости сезонного
обслуживания при выполнении очередного ТО-2, совмещенного с СО, принимаем
равным 30%.
чел.Чч.;
чел.Чч.
Годовой объем работ по ТО и ТР для всего парка автомобилей составит 212
628 чел.Чч. (таблица 2.5).
Кроме
работ по ТО и ТР, на предприятии проводятся работы по самообслуживанию, которые
составляют 15% от
и их численное значение равно:
,(2.36)
чел.Чч.
Таблица
2.5 - Годовой объем работ по ТО и ТР
|
Показатель
|
Группа
|
итого
|
|
Зил-5301
|
Зил-130
|
|
|
29 3723 19932 571
|
|
|
|
|
1 7241831 907
|
|
|
|
|
29 4464 51333 959
|
|
|
|
|
+ 41 2255 92947 154
|
|
|
|
|
84 17112 86697 037
|
|
|
|
|
Итого: 185 93826 690212 628
|
|
|
|
|
27 8914 00431 894
|
|
|
|
2.5
Распределение объема работ ТО и ТР и расчёт численности производственных
рабочих
Трудоемкость работ ТО и ТР распределяется по месту их выполнения по
технологическим и организационным признакам. Работы по ТО и ТР выполняются на
постах и вспомогательных участках.
К постовым относятся работы по ТО и ТР, выполняемые непосредственно на
автомобиле (моечные, уборочные, смазочные, крепежные, диагностические и др.).
К вспомогательным относятся работы по проверке и ремонту узлов,
механизмов и агрегатов, снятых с автомобиля, выполняемых на вспомогательных
участках (агрегатном, слесарно-механическом, электротехническом и др.).
Исходными
данными для распределения трудоемкости являются коэффициент распределения
объема работ ЕО, ТО и ТР (
) по видам работ. Принимается в соответствии с маркой
автомобиля, согласно ОНТП-01-91 и годовой объем работ (
) по ЕО, ТО, ТР технологически совместимых групп.
Годовой
фонд времени технологически необходимого ФТ при 6-ти дневной рабочей неделе для
производств с нормальными условиями труда, согласно ОНТП-01-91, принимается
равным 2070 часов и 1830 часов для производств с вредными условиями труда.
Годовой
фонд времени «штатного» рабочего определяет фактическое время, отработанное
исполнителем непосредственно на рабочем месте. Фонд времени «штатного» рабочего
ФШ меньше фонда «технологического» рабочего ФТ за счет предоставления рабочим
отпусков и невыходов рабочих по уважительным причинам. Согласно ОНТП-01-91
годовой фонд времени «штатного» рабочего для выполнения работ, связанных с
вредными условиями труда составляет 1610 часов, а для всех других - 1820 часов.
Технологически
необходимое число рабочих по видам работ определяется по формуле /4, с.47/.
, (2.37)
где
- годовой объем работ по ЕО, ТО, ТР технологически
совместимых групп, чел.Чч.;
-
годовой фонд технологически необходимого времени, ч.
Расчеты
технологически необходимого числа рабочих приведены в таблицах 2.6 - 2.7.
Штатное
число производственных рабочих определяется по формуле /4, с.47/.
, (2.38)
где
- фактическое время, отработанное исполнителем
непосредственно на рабочем месте, ч.
Расчеты
штатного числа рабочих, для трёх технологических групп автобусов, приведены в
таблицах 2.6 - 2.7.
Таблица
2.6 - Распределение годового объёма работ и расчет численности автомобилей
Зил-5301
Виды работ
,
%
,
чел.Чч.
,
ч.
,
чел.
,
ч.
,
|
чел.
|
|
|
|
|
|
|
|
Еос:
|
|
|
|
|
|
|
|
-моечные
|
10
|
2937,2
|
2070
|
1,42
|
1820
|
1,61
|
|
-уборочные
|
20
|
5874,4
|
2070
|
2,84
|
1820
|
3,23
|
|
-заправочные
|
11
|
3230,9
|
1830
|
1,77
|
1610
|
2,01
|
|
-контрольно-диагностические
|
12
|
3524,6
|
2070
|
1,70
|
1820
|
1,94
|
|
-ремонтные
|
47
|
13804,8
|
2070
|
6,67
|
1820
|
7,59
|
|
итого
|
100
|
29 372
|
|
14,39
|
|
16,37
|
|
ЕОт:
|
55
|
948,2
|
2070
|
0,46
|
1820
|
0,52
|
|
-моечные
|
45
|
775,8
|
2070
|
0,37
|
1820
|
0,43
|
|
итого
|
100
|
1 724
|
|
0,83
|
|
0,95
|
|
ТО-1:
|
|
|
|
|
|
|
|
-диагностирование общее (Д-1)
|
8
|
2355,7
|
2070
|
1,14
|
1820
|
1,29
|
|
-крепежные
|
49
|
14428,5
|
2070
|
6,97
|
1820
|
7,93
|
|
-регулировочные
|
10
|
2944,6
|
2070
|
1,42
|
1820
|
1,62
|
|
-смазочные, очистительные
|
20
|
5889,2
|
2070
|
2,85
|
1820
|
3,24
|
|
-электротехнические
|
6
|
1766,8
|
2070
|
0,85
|
1820
|
0,97
|
|
-по системе питания
|
3
|
883,4
|
2070
|
0,43
|
1820
|
0,49
|
|
-шинные
|
4
|
1177,8
|
2070
|
0,57
|
1820
|
0,65
|
|
итого
|
100
|
29 446
|
|
14,23
|
|
16,18
|
|
ТО-2:
|
|
|
|
|
|
|
|
-углубленное диагностирование
|
7
|
2885,8
|
2070
|
1,39
|
1820
|
1,59
|
|
-крепежные
|
48
|
19788,0
|
2070
|
9,56
|
1820
|
10,87
|
|
-регулировочные
|
8
|
3298,0
|
2070
|
1,59
|
1820
|
1,81
|
|
-смазочные, очистительные
|
10
|
4122,5
|
2070
|
1,99
|
1820
|
2,27
|
|
-электротехнические
|
7
|
2885,8
|
2070
|
1,39
|
1820
|
1,59
|
|
-по системе питания
|
3
|
1236,8
|
2070
|
0,60
|
1820
|
0,68
|
|
-шинные
|
2
|
824,5
|
2070
|
0,40
|
1820
|
0,45
|
|
-кузовные
|
15
|
6183,8
|
2070
|
2,99
|
1820
|
3,40
|
|
итого
|
100
|
41 225
|
|
19,92
|
|
22,65
|
|
ТР:
|
|
|
|
|
|
|
|
Постовые работы:
|
|
|
|
|
|
|
|
-диагностирование общее (Д-1)
|
1
|
841,7
|
2070
|
0,41
|
1820
|
0,46
|
|
-диагностирование углубленное
|
1
|
841,7
|
2070
|
0,41
|
1820
|
0,46
|
|
-регулировочные
|
2
|
1683,4
|
2070
|
0,81
|
1820
|
0,92
|
|
-разборочно-сборочные работы
|
25
|
21042,8
|
2070
|
10,17
|
1820
|
11,56
|
|
-сварочные работы
|
5
|
4208,6
|
1830
|
2,30
|
1610
|
2,61
|
|
-жестяницкие работы
|
2
|
1683,4
|
2070
|
0,81
|
1810
|
0,93
|
|
-окрасочные работы
|
8
|
6733,7
|
1830
|
3,68
|
1610
|
4,18
|
|
-итого по постам
|
44
|
|
|
|
|
|
|
Участковые работы:
|
|
|
|
|
|
|
|
-агрегатные работы
|
17
|
14309,1
|
2070
|
6,91
|
1820
|
7,86
|
|
-слесарно-механические работы
|
9
|
7575,4
|
2070
|
3,66
|
1820
|
4,16
|
|
-электротехнические работы
|
7
|
5892,0
|
2070
|
2,85
|
1820
|
3,24
|
|
-аккумуляторные работы
|
2
|
1683,4
|
1830
|
0,92
|
1610
|
1,05
|
|
-ремонт системы питания
|
3
|
2525,1
|
1830
|
1,38
|
1610
|
1,57
|
|
-шиномонтажные работы
|
2
|
1683,4
|
2070
|
0,81
|
1820
|
0,92
|
|
-вулканизационные работы
|
1
|
841,7
|
2070
|
0,41
|
1820
|
0,46
|
|
-кузнечно-рессорные работы
|
3
|
2525,1
|
1830
|
1,38
|
1610
|
1,57
|
|
-медницкие работы
|
2
|
1683,4
|
1830
|
0,92
|
1610
|
1,05
|
|
-сварочные работы
|
2
|
1683,4
|
1830
|
0,92
|
1610
|
1,05
|
|
-жестяницкие работы
|
2
|
1683,4
|
2070
|
0,81
|
1820
|
0,92
|
|
-арматурные работы
|
3
|
2525,1
|
2070
|
1,22
|
1820
|
1,39
|
|
-обойные работы
|
3
|
2525,1
|
2070
|
1,22
|
1820
|
1,39
|
|
итого по участкам
|
56
|
|
|
23,41
|
|
26,62
|
|
всего по ТР
|
100
|
84 171
|
|
23,41
|
|
26,62
|
рулевой карданный вал разборка
Таблица 2.7 - Распределение годового объёма работ автомобилей Зил-130
Виды работ
,
%
,
чел.Чч.
,
ч.
,
чел.
,
ч.
,
|
чел.
|
|
|
|
|
|
|
|
Еос:
|
|
|
|
|
|
|
|
-моечные
|
10
|
319,9
|
2070
|
0,15
|
1820
|
0,18
|
|
-уборочные
|
20
|
639,8
|
2070
|
0,31
|
1820
|
0,35
|
|
-заправочные
|
11
|
351,9
|
1830
|
0,19
|
1610
|
0,22
|
|
-контрольно-диагностические
|
12
|
383,9
|
2070
|
0,19
|
1820
|
0,21
|
|
-ремонтные
|
47
|
1503,5
|
2070
|
0,73
|
1820
|
0,83
|
|
итого
|
100
|
3 199
|
|
1,57
|
|
1,78
|
|
ЕОт:
|
|
|
|
|
|
|
|
-уборочные
|
55
|
100,7
|
2070
|
0,05
|
1820
|
0,06
|
|
-моечные
|
45
|
82,4
|
0,04
|
1820
|
0,05
|
|
итого
|
100
|
183
|
|
0,09
|
|
0,10
|
|
ТО-1:
|
|
|
|
|
|
|
|
-диагностирование общее (Д-1)
|
8
|
361,0
|
2070
|
0,17
|
1820
|
0,20
|
|
-крепежные
|
49
|
2211,4
|
2070
|
1,07
|
1820
|
1,22
|
|
-регулировочные
|
10
|
451,3
|
2070
|
0,22
|
1820
|
0,25
|
|
-смазочные, очистительные
|
20
|
902,6
|
2070
|
0,44
|
1820
|
0,50
|
|
-электротехнические
|
6
|
270,8
|
2070
|
0,13
|
1820
|
0,15
|
|
-по системе питания
|
3
|
135,4
|
2070
|
0,07
|
1820
|
0,07
|
|
-шинные
|
4
|
180,5
|
2070
|
0,09
|
1820
|
0,10
|
|
итого
|
100
|
4 513
|
|
2,18
|
|
2,48
|
|
ТО-2:
|
|
|
|
|
|
|
|
-углубленное диагностирование
|
7
|
415,0
|
2070
|
0,20
|
1820
|
0,23
|
|
-крепежные
|
48
|
2845,9
|
2070
|
1,37
|
1820
|
1,56
|
|
-регулировочные
|
8
|
474,3
|
2070
|
0,23
|
1820
|
0,26
|
|
-смазочные, очистительные
|
10
|
592,9
|
2070
|
0,29
|
1820
|
0,33
|
|
-электротехнические
|
7
|
415,0
|
2070
|
0,20
|
1820
|
0,23
|
|
-по системе питания
|
3
|
177,9
|
2070
|
0,09
|
1820
|
0,10
|
|
-шинные
|
2
|
118,6
|
2070
|
0,06
|
1820
|
0,07
|
|
-кузовные
|
15
|
889,4
|
2070
|
0,43
|
1820
|
0,49
|
|
итого
|
100
|
5 929
|
|
2,86
|
|
3,26
|
|
ТР:
|
|
|
|
|
|
|
|
Постовые работы:
|
|
|
|
|
|
|
|
-диагностирование общее (Д-1)
|
1
|
128,7
|
2070
|
0,06
|
1820
|
0,07
|
|
-диагностирование углубленное
|
1
|
128,7
|
2070
|
0,06
|
1820
|
0,07
|
|
-регулировочные
|
2
|
257,3
|
2070
|
0,12
|
1820
|
0,14
|
|
-разборочно-сборочные работы
|
25
|
3216,5
|
2070
|
1,55
|
1820
|
1,77
|
|
-сварочные работы
|
5
|
643,3
|
1830
|
0,35
|
1610
|
0,40
|
|
-жестяницкие работы
|
2
|
257,3
|
2070
|
0,12
|
1810
|
0,14
|
|
-окрасочные работы
|
8
|
1029,3
|
1830
|
0,56
|
1610
|
0,64
|
|
-итого по постам
|
44
|
5661,0
|
|
2,84
|
|
3,23
|
|
Участковые работы:
|
|
0,0
|
|
|
|
|
|
-агрегатные работы
|
17
|
2187,2
|
2070
|
1,06
|
1820
|
1,20
|
|
-слесарно-механические работы
|
9
|
1157,9
|
2070
|
0,56
|
1820
|
0,64
|
|
-электротехнические работы
|
7
|
900,6
|
2070
|
0,44
|
1820
|
0,49
|
|
-аккумуляторные работы
|
2
|
257,3
|
1830
|
0,14
|
1610
|
0,16
|
|
-ремонт системы питания
|
3
|
386,0
|
1830
|
0,21
|
1610
|
0,24
|
|
-шиномонтажные работы
|
2
|
257,3
|
2070
|
0,12
|
1820
|
0,14
|
|
-вулканизационные работы
|
1
|
128,7
|
2070
|
0,06
|
1820
|
0,07
|
|
-кузнечно-рессорные работы
|
3
|
386,0
|
1830
|
0,21
|
1610
|
0,24
|
|
-медницкие работы
|
2
|
257,3
|
1830
|
0,14
|
1610
|
0,16
|
|
-сварочные работы
|
2
|
257,3
|
1830
|
0,14
|
1610
|
0,16
|
|
-жестяницкие работы
|
2
|
257,3
|
2070
|
0,12
|
1820
|
0,14
|
|
-арматурные работы
|
3
|
386,0
|
2070
|
0,19
|
1820
|
0,21
|
|
-обойные работы
|
3
|
386,0
|
2070
|
0,19
|
1820
|
0,21
|
|
итого по участкам
|
56
|
7205,0
|
|
3,58
|
|
4,07
|
|
всего по ТР
|
100
|
12 866
|
|
6,42
|
|
7,30
|
Общее распределение работ и технологически необходимое число рабочих
представлено в таблице 2.8
Таблица 2.8 - Распределение годового объёма работ и
технологически-необходимого числа рабочих
Виды работ
,
чел.Ч ч.РТ,
|
чел.
|
|
|
|
ЕОс:
|
|
|
|
-моечные
|
3257,1
|
1,57
|
|
-уборочные
|
6514,2
|
3,15
|
|
итого
|
9771,3
|
4,72
|
|
ЕОт:
|
|
|
|
-моечные
|
858,15
|
0,41
|
|
-уборочные
|
1048,85
|
0,51
|
|
итого
|
1907
|
0,92
|
|
ТО-1:
|
|
|
|
-диагностирование общее (Д-1)
|
2716,72
|
1,31
|
|
-заправочные
|
3582,81
|
1,96
|
|
-контрольно-диагностические
|
3908,52
|
1,89
|
|
-ремонтные
|
15308,37
|
7,40
|
|
-крепежные
|
16639,91
|
8,04
|
|
-регулировочные
|
3395,9
|
1,64
|
|
-смазочные, очистительные
|
6791,8
|
3,28
|
|
-электротехнические
|
2037,54
|
0,98
|
|
-по системе питания
|
1018,77
|
0,49
|
|
-шинные
|
1358,36
|
0,66
|
|
итого
|
56758,7
|
16,41
|
|
ТО-2:
|
|
|
|
-углубленное диагностирование (Д-2)
|
3300,78
|
1,59
|
|
-крепежные
|
22633,92
|
10,93
|
3772,32
|
1,82
|
|
-смазочные, очистительные
|
4715,4
|
2,28
|
|
-электротехнические
|
3300,78
|
1,59
|
|
-по системе питания
|
1414,62
|
0,68
|
|
-шинные
|
943,08
|
0,46
|
|
-кузовные
|
7073,1
|
3,42
|
|
итого
|
47154
|
22,78
|
|
ТР:
|
|
|
|
Постовые работы:
|
|
|
|
-диагностирование общее (Д-1)
|
970,37
|
0,47
|
|
-диагностирование углубленное (Д-2)
|
970,37
|
0,47
|
|
-регулировочные
|
1940,74
|
0,94
|
|
-разборочно-сборочные работы
|
24259,25
|
11,72
|
|
-сварочные работы
|
4851,85
|
2,65
|
|
-жестяницкие работы
|
1940,74
|
0,94
|
|
-окрасочные работы
|
7762,96
|
4,24
|
|
итого по постам
|
42696,28
|
2,84
|
|
Участковые работы:
|
|
|
|
-агрегатные работы
|
16496,29
|
7,97
|
|
-слесарно-механические работы
|
8733,33
|
4,22
|
|
-электротехнические работы
|
6792,59
|
3,28
|
|
-аккумуляторные работы
|
1940,74
|
1,06
|
|
-ремонт системы питания
|
2911,11
|
1,59
|
|
-шиномонтажные работы
|
1940,74
|
0,94
|
|
-вулканизационные работы
|
970,37
|
0,47
|
|
-кузнечно-рессорные работы
|
2911,11
|
1,59
|
|
-медницкие работы
|
1940,74
|
1,06
|
|
-сварочные работы
|
1940,74
|
1,06
|
|
-жестяницкие работы
|
1940,74
|
0,94
|
|
-арматурные работы
|
2911,11
|
1,41
|
|
-обойные работы
|
2911,11
|
1,41
|
|
итого по участкам
|
54340,72
|
26,99
|
|
всего по ТР
|
97037
|
29,83
|
К вспомогательным рабочим относятся рабочие, занятые на следующих
работах:
ремонт и обслуживание оборудования;
транспортные и погрузочные работы, связанные с ремонтом и обслуживание
автомобилей;
приемка, хранение и выдача материальных ценностей;
перегон автомобилей по территории;
уборка помещения; прочие подсобные работы.
Количество вспомогательных рабочих следует принимать равными 15% от
производственных рабочих, согласно расчетам таблицы 2.9 численность
производственных рабочих составляет 62 чел., тогда численность вспомогательных
рабочих составит 9 чел.
Распределение вспомогательных рабочих по видам работ представлено в
таблице 2.10.
Таблица 2.10 - Распределение вспомогательных рабочих по видам работ
|
Специальность
|
Процент, %
|
Численность, чел.
|
|
Электромонтеры
|
12
|
1
|
|
Станочники (токари, фрезеровщики и т.д.)
|
5
|
1
|
|
Слесари по оборудованию
|
9
|
1
|
|
Слесари по отоплению, водопроводу, канализации
|
10
|
1
|
|
Сварщики
|
4
|
1
|
|
Жестянщики
|
2
|
1
|
|
Плотники и ремонтно-строительные рабочие
|
8
|
1
|
|
Прочие специальности (кладовщики, инструментальщики,
уборщики цехов, перегонщики автомобилей) и т.п.
|
50
|
5
|
|
Итого:
|
100
|
12
|
Количество водителей-перегонщиков, рабочих по приемке, хранению и выдаче
материальных ценностей в зависимости от суточного количества заездов
автомобилей, примем:
перегонщики - 4 чел;
рабочие складов - 1 чел.
Численность инженерно-технических работников (ИТР) примем 30 чел., в
зависимости от количества постов. Численность рабочих для уборки помещений
примем 5 чел.
2.6
Уточнённый расчёт участка
Агрегатный участок предприятия предназначен для выполнения
разборочно-сборочных и ремонтно-восстановительных работ по коробке передач,
переднему и заднему мостам и другим агрегатам, механизмам и узлам, снятым с
автомобиля для текущего ремонта. Ремонт сцеплений и двигателей осуществляется
на другом специализированном участке.
Содержание работ агрегатного участка представлено на рисунке 2.1.
Рисунок 2.1 - Блок-схема работ агрегатного участка
Для разборки агрегатов применяют специализированные стенды. Подшипники,
втулки и другие детали выпрессовывают с помощью ручных верстачных прессов
(усилием 3-5 т) или гидравлических прессов (усилием 20 т, модели 208), а также
съемников.
Крупные детали моют на отдельном участке. Для мелких деталей
предусмотрена ванна. Вымытые детали контролируют в соответствии с техническими
условиями и сортируют на три группы: годные, требующие ремонта и негодные.
.5.1
Корректировка численности рабочих по видам работ
Чтобы определить численность производственных рабочих, используем
методику, изложенную в /8, с.46/, по которой определяются технологически
необходимая (явочная) и штатная численность рабочих.
Технологически необходимое (явочное) число рабочих:
, (2.39)
где
- годовой объем работ по агрегатному участку,
чел.Чч.;
-
годовой фонд времени технологически необходимого рабочего при односменной работе,
ч.
Годовой
фонд рабочего места определяется по формуле:
(2.40)
где
- число календарных дней в году - 365;
- число
выходных дней в году - 104;
- число
праздничных дней в году - 12;
- время
рабочей смены, ч.;
- время
сокращения рабочей смены в праздничные дни для рабочих выполняющих работы с
условиями труда не отнесенные к вредным tС=1 ч.
Подставив
значения в (2.21), определим годовой фонд рабочего места, который составит:
ФТ=(365-104-12)Ч8-10Ч1=1982
ч,
Штатное
число рабочих определим по формуле:
, (2.41)
где
- годовой фонд времени штатного рабочего, ч.
Годовой фонд одного рабочего определяется по формуле:
(2.42)
где ДОСН - число дней основного отпуска ремонтного рабочего. Принимаем
ДОСН.=24 дн.;
ДДОП - число дней дополнительного отпуска за работу в северных и
приравненных к ним районах ДДОП=12 дн.;
ДВР - число дней дополнительного отпуска, для работ с вредными условиями
труда в соответствии с коллективным договором. Принимаем ДВР=3 дн.;
ДУВ - число дней неявки по уважительной причине. Принимаем ДУВ=2 дн.
Подставив значения в (2.23), при восьми часовой смене, получим:
ФШ=2430-(24+12+2)Ч8=2126 ч.;
Корректировка и распределение численности рабочих по видам работ
представлено в таблице 2.14.
.5.2 Расчет
числа единиц технологического оборудования
К технологическому оборудованию относятся стационарные и переносные
станки, стенды, приборы, приспособления и производственный инвентарь (верстки,
стеллажи, столы, шкафы), необходимое для обеспечения производственного процесса
АТП.
Таблица 2.14 - Распределение трудоемкости и рабочих по видам работ
|
Вид работ
|
%
|
ТГ, чел.Чч.
|
РТ, чел.
|
РШ, чел.
|
|
Мойка-отчистка
|
10
|
2225,69
|
1,12
|
1,05
|
|
Разборка-сборка
|
40
|
8902,76
|
4,49
|
4,19
|
|
Контроль, сортировка
|
15
|
3338,54
|
1,68
|
1,57
|
|
Слесарно-механические работы
|
25
|
5564,23
|
2,81
|
2,62
|
|
Обработка, испытание
|
10
|
2225,69
|
1,12
|
1,05
|
|
Итого:
|
|
22256,91
|
11,23
|
10,47
|
Количество основного оборудования определим по трудоемкости работ и фонду
рабочего времени оборудования.
Определяемое расчетом по трудоемкости работ число единиц основного
оборудования:
, (2.43)
где
- годовой объем работ по данной группе или виду
работ, чел.Чч.;
-
годовой фонд времени рабочего места (единицы оборудования), ч.;
- число
рабочих, одновременно работающих на данном виде оборудования, чел.
Годовой
фонд времени работы оборудования определяем по формуле:
,(2.44)
где
- годовой фонд работы (технологический), ч.;
- число
рабочих смен;
-
коэффициент использования оборудования по времени, т.е. отношение времени
работы оборудования в течение смены к общей продолжительности времени смены.
Примем
- 0,80.
ч.
Все
расчеты числа единиц оборудования сведем в таблицу 2.14.
Таблица
2.14 - Расчет числа единиц оборудования
|
Вид работ
|
%
|
ТГ, чел.Чч.
|
, ед.
|
|
Мойка-отчистка
|
10
|
2225,69
|
1,14
|
|
Разборка-сборка
|
40
|
8902,76
|
4,58
|
|
Контроль, сортировка
|
15
|
3338,54
|
1,72
|
|
Слесарно-механические работы
|
25
|
5564,23
|
2,86
|
|
Обработка, испытание
|
10
|
2225,69
|
1,14
|
|
Итого:
|
|
22256,91
|
11,45
|
2.5.3 Выбор
оборудования для участка
При подборе оборудования использовались каталоги, справочники и Интернет.
Таблица 2.10 - Технологическое оборудование и участка
|
Наименование
|
Тип
|
Количество, ед.
|
Размер, мм
|
Площадь, м2
|
Потребление
|
|
|
|
|
|
Электроэнергия, кВт
|
Вода, м3/час
|
Воздух, м3/час
|
|
Стеллаж для деталей и инструментов
|
-
|
10
|
1100Х450
|
6,3
|
-
|
-
|
-
|
|
Слесарный верстак
|
ВС-2
|
2
|
1400Х800
|
2,24
|
-
|
-
|
-
|
|
Слесарные тиски
|
Т-4
|
2
|
-
|
-
|
-
|
-
|
-
|
|
Ванна для мойки мелких деталей
|
-
|
1
|
1500х500
|
1,6
|
-
|
-
|
-
|
|
Железный ящик для выбракованных деталей
|
-
|
1
|
830Х625
|
0,32
|
-
|
-
|
-
|
|
Проверочная плита
|
-
|
1
|
1000Х750
|
0,75
|
-
|
-
|
-
|
|
Пресс гидравлический вертикальный (30 т.)
|
Р-337
|
1
|
1130x680
|
0,83
|
-
|
-
|
-
|
|
Стол для контроля и сортировки деталей
|
-
|
1
|
2000x800
|
1,6
|
-
|
-
|
-
|
|
Стенд для выпрессовки подшипников крестовин карданных валов
|
-
|
1
|
1200Х700
|
0,651
|
1,1
|
-
|
-
|
|
Станок точильно-шлифовальный
|
332Б
|
1
|
1250x800
|
0,62
|
3,5
|
-
|
-
|
|
Стенд для обкатки и испытания ГУР и насосов ГУР
|
470181
|
1
|
1300х1300
|
1,69
|
4,5
|
-
|
-
|
|
Стенд для обкатки мостов и главной передачи
|
470177
|
1
|
1200x640
|
0,768
|
7,5
|
-
|
|
Подвесная кран-балка
|
ГОСТ 7890
|
1
|
-
|
-
|
3,5
|
-
|
-
|
|
Стенд для ремонта редукторов задних мостов
|
Р-640
|
1
|
830Х700
|
0,58
|
-
|
-
|
-
|
|
Стенд для разборки-сборки КП
|
-
|
1
|
1000x485
|
0,485
|
-
|
-
|
-
|
|
Ручной пресс
|
Окс-918
|
1
|
920Х220
|
0,2
|
-
|
-
|
-
|
|
Шкаф для приборов
|
ОРГ - 1468 - 07-040
|
1
|
1400Ч500
|
1,4
|
-
|
-
|
-
|
|
Стенд для ремонта передних и задних мостов
|
-
|
1
|
780Х1096
|
0,85
|
-
|
-
|
-
|
|
Ларь для обтирочных материалов
|
-
|
1
|
1000Х500
|
0,5
|
-
|
-
|
-
|
|
Станок для проточки тормозных дисков и барабанов
|
-
|
1
|
840Х505
|
0.42
|
0,75
|
-
|
-
|
|
Настольно сверлильный станок
|
-
|
1
|
550х500
|
0.25
|
3
|
-
|
-
|
Площадь агрегатного участка рассчитываем по формуле /4, с.99/:
, (2.45)
где
- суммарная площадь, занимаемая оборудованием;
- коэффициент
плотности расстановки оборудования.
.5.5 Расчет
затрат на энергоносители
Определяем
активную мощность потребителей
, кВт, по
формуле /3, с.269…270/.
, (2.46)
где
- коэффициент спроса, учитывающий время работы /3,
с.270/;
-
суммарная мощность потребителей, кВт. Согласно таблице 2.19.
кВт
Годовой
расход электроэнергии определяется по формуле:
,(2.47)
где
- коэффициент загрузки потребителей по времени,
принимаем,
= 0,8.
кВт.
Затраты
электроэнергии на освещение по формуле:
, (2.48)
где
- удельный расход электроэнергии на 1 м2 площади
агрегатного участка, Вт/ м2;
-
площадь агрегатного участка, м2.
В
соответствии со СниП 23-05-95 «Естественное и искусственное освещение»
принимаем
=25 Вт/ м2.
Вт.
Годовой
расход энергии на освещение агрегатного участка рассчитывается по формуле:
, (2.49)
где
- время световой нагрузки,
= 1600 ч.
= 3664
кВт
Суммарная
годовая потребность агрегатного участка в электроэнергии составит:
кВт.
3..Организационно-экономическая
часть
3.1
Производственная структура предприятия
Основными задачами любого автотранспортного предприятия являются:
- организация и выполнение перевозок в соответствии с планом и заданиями;
- хранение, техническое обслуживание и ремонт подвижного
состава;
- материально-техническое снабжение предприятия;
- содержание и ремонт зданий, сооружений и оборудования;
- подбор, расстановка и повышение квалификации персонала;
- организация труда, планирование и учет
производственно-финансовой деятельности.
Основными
процессами производственной деятельности автотранспортного предприятия
<#"565274.files/image422.gif">
Рисунок 3.1 - Производственная структура предприятия
Производственная структура МПАТП формируется следующим составом:
- основная (эксплуатационная) служба - отдел эксплуатации;
- вспомогательное производство - техническая служба;
- обслуживающее производство - служба главного механика и
энергетика;
- служба подсобно-вспомогательных работ (уборка помещений,
территории и т. п.);
- службы управления.
3.2 Структура
управления производством
Руководство предприятием осуществляет директор. В структуре управления
предприятием имеются две основные службы - служба эксплуатации и техническая
служба.
Службу эксплуатации возглавляет заместитель директора. Служба имеет в своей
структуре отдел эксплуатации, контрольно-ревизионную службу (КРС), колонны
водителей. Основной функцией отдела является планирование работы маршрутов,
рейсов, расписания, потребного количества автобусов, осуществление плана -
графика выхода автобусов на линии. Главной задачей этой службы является
выполнение доходов от перевозки пассажиров, и поиск иных источников дохода.
Техническую службу возглавляет главный инженер. В её структуру включены:
производственно-технический отдел, АЗС, ремонтная мастерская, промежуточный
склад запасных частей и агрегатов. Эта служба несет ответственность за
техническое состояние подвижного состава, а также, за счет развития на ее базе
услуг по ремонту и ТО, получение дополнительных доходов.
Техническая служба АТП уделяет главное внимание вопросам поддержания
транспортных средств в технически исправном состоянии и обеспечения развития
производственной базы, а также осуществляет руководство материально-техническим
снабжением предприятия.
Главными задачами технической службы предприятия являются:
- организация надлежащего хранения подвижного состава,
обеспечивающего высокую техническую готовность его к работе, своевременность
выпуска автомобилей на линию и прием их (гаражная служба);
- разработка и решение вопросов,
связанных с укреплением производственно-технической базы предприятия (главный
инженер);
- оперативное планирование всех видов
ТО и ремонта автомобилей и автомобильных шин, организация выполнения этих работ
и контроля за их качеством, проведение технического учета и отчетности по
подвижному составу, автомобильным шинам и другим производственным фондам
(начальник ремонтной службы);
- руководство всей совокупностью работ
по обеспечению нормального материально-технического снабжения предприятия,
организации хранения, выдачи и учета топлива, запасных частей и других
материальных ресурсов, разработка и осуществление мероприятий по более
рациональному их использованию (отдел снабжения);
- разработка и проведение
организационно-технических мероприятий по совершенствованию процессов
производства, внедрению новой техники, охране труда и предупреждению
аварийности.
Исходя из вышеперечисленных задач техническая служба имеет право
контролировать техническое состояние подвижного состава, снимать его с
эксплуатации, планировать и проводить профилактические и ремонтные работы,
привлекать к материальной ответственности за неправильную эксплуатацию
подвижного состава, зданий, сооружений, оборудования и т.д., а также
лимитировать расходы ГСМ.
Техническая служба АТП состоит из следующих основных комплексов /12/:
комплекс подразделений, выполняющих диагностику технического состояния
автомобилей, их агрегатов и узлов (комплекс Д);
комплекс подразделений, выполняющих техническое обслуживание и
регламентные работы (комплекс ТО);
комплекс подразделений, выполняющих работы по замене неисправных
агрегатов, узлов и деталей, а также крепежно-регулировочные работы (комплекс
ТР);
комплекс подразделений, обеспечивающих подготовку производства,
комплектование оборотного фонда, доставку агрегатов, узлов и деталей,
обеспечение рабочих инструментами, а также перемещением автомобилей из зоны в
зону, осуществляется комплексом подготовки производства (комплекс ПП);
производственно-технический отдел (ПТО), обеспечивает разработку и
внедрение новой технологии и техники производственных процессов, организует
рационализаторскую и изобретательскую работы, составляет технические нормативы
и инструкций, а также мероприятия по подготовке и повышению квалификации
кадров, ТБ и ОТ;
отдел главного механика (ОГМ) отвечает за содержание в технически
исправном состоянии зданий, сооружений, технологического оборудования,
осуществляет монтаж обслуживание и ремонт производственного оборудования.
Контроль качества выполняемых работ по техническому обслуживанию и
ремонту подвижного состава и изделий собственного производства осуществляется
работниками ОТК и контролерами технического состояния. Контроль качества
выполняемых работ по ТО и ТР осуществляется с помощью вновь введенной в
эксплуатацию диагностической линии фирмы «Актиа Мюллер сервис».
В составе предприятия имеется отдел материально-технического снабжения
(ОМТС), который обеспечивает бесперебойное материально-техническое снабжение
Филиала, составляет заявки по материально-техническому снабжению и обеспечивает
правильную организацию работы складского хозяйства. Между отделами существуют
многосторонние внутренние и внешние связи.
.3 Метод
организации производства ТО и ТР
Наибольшее распространение к настоящему времени получили три метода
организации производства ТО и ремонта подвижного состава: специализированных
бригад, комплексных бригад и агрегатно-участковый.
Метод специализированных бригад предусматривает формирование
производственных подразделений по признаку их технологической специализации по
видам технических воздействий: создаются бригады по проведению ЕО, ТО-1, ТО-2,
диагностирования, ТР, ремонту агрегатов.
Метод комплексных бригад предусматривает формирование производственных
подразделений по признаку их предметной специализации, т. е. закрепление за
бригадой определенной группы автомобилей (например, автомобилей одной колонны,
автомобилей одной модели, прицепов и полуприцепов), по которым бригада проводит
работы ТО-1, ТО-2 и ТР.
В МУП «МПАТП № 1» применяется агрегатно-участковый метод организации ТО и
ТР. Сущность агрегатно-участкового метода состоит в том, что все работы по ТО и
ремонту подвижного состава АТП распределяются между производственными
участками, ответственными за выполнение всех работ ТО и ТР одного или
нескольких агрегатов (узлов, механизмов и систем) по всем автомобилям АТП.
Результаты работы производственного участка оцениваются по средней
наработке на случай ТР соответствующих агрегатов и по простоям автомобилей
из-за технических неисправностей агрегатов и систем, закрепленных за участком.
Работы распределяются между производственными участками с учетом
производственной программы.
При агрегатно-участковом методе ремонт автомобилей производят путём
замены неисправных узлов и агрегатов на исправные, ранее отремонтированные или
новые из оборотного фонда. Неисправные узлы и агрегаты, после их ремонта,
поступают в оборотный фонд.
Рисунок 3.2 - Схема технологического процесса ТР автомобиля
агрегатно-участковым методом
При агрегатном-участковом методе ремонт автомобилей производят путем
замены неисправных агрегатов (узлов) исправными, ранее отремонтированными или
новыми из оборотного фонда. Неисправные агрегаты (узлы) после их ремонта
поступают в оборотный фонд.
Агрегатно-участковый метод ремонта позволяет сократить время простоя
автомобилей в ремонте, поскольку замена неисправных агрегатов (узлов) на
исправные требует меньше времени. В свою очередь сокращение времени простоя в
ТР позволяет повысить коэффициент готовности парка, а, следовательно, увеличить
его производительность и снизить себестоимость транспортной работы.
Основным недостaткoм aгрегaтнo-учaсткoвoгo метoдa являются субъективные и
мaлoэффективные методы кoнтрoля техническoгo сoстoяния aвтoмoбилей, a также
труднoсти распределения рaбoт пo учaсткaм нa линиях и пoстaх ТО-1 и ТО-2.
Работы по ежедневному обслуживанию и ТО, кроме уборочно-моечных,
производятся в две смены, так как целесообразно проводить ремонт в то время,
когда автомобиль не на линии, то есть стараться снижать время простоя в
ремонте. Кроме того, это позволит сократить занимаемую производственную площадь
за счёт уменьшения необходимого количества постов ТР, дорогостоящего
оборудования и оснастки.
Все работы по общему (Д-1) и углубленному (Д-2) диагностированию перед ТО
и ТР производятся на отдельном участке, оснащённом комбинированными
диагностическими стендами. Участок диагностики расположен обособленно от
проездных постов ТО.
Зона ТР работает в две смены, так как целесообразно проводить ремонт в то
время, когда автомобиль не на линии, то есть стараться снижать время простоя в
ремонте. В дневную смену работают все производственно-вспомогательные участки и
посты ТР; в ночную смену выполняются постовые работы по ТР автобусов,
выявленные при ТО, диагностировании или по заявке водителей.
Малярные и кузовные работы производятся в отдельном производственном
помещении, в соответствии с требованиями охраны труда и пожарной безопасности.
3.4 Описание
и схема производственного процесса автотранспортного предприятия
Производственный процесс автотранспортного предприятия (АТП) представляет
собой совокупность технологических процессов ТО и ТР. Схема производственного
процесса МПАТП изображена на рисунке 3.3.
Под технологическим процессом (ТП) понимается определенная
последовательность работ и операций, имеющих своей целью поддержание
работоспособности АТС, путем качественного выполнения работ при оптимальных
материальных затратах.
Движение подвижного состава организовано следующим образом: на территорию
предприятия имеется один въезд, через ворота контрольно - пропускного пункта,
мимо автостоянки и административного здания. Далее проходит через пост
диспетчерской к открытой стоянке автомобилей, предназначенной для стоянки
подвижного состава в теплое время года, далее проходит мимо профилактория и
зимней стоянки. Территория предприятия огорожена бетонным забором.
Рисунок 3.3 - Схема производственного процесса предприятия
При въезде на территорию предприятия, автомобиль проходит через
контрольно-пропускной пункт (КПП), где ведется учет всех въехавших и выехавших
автомобилей, а также производится предърейсовый осмотр водителей, проверяется
наличие всех необходимых документов и техническое состояние автомобиля. Далее
при необходимости прибывает на пост ежедневного обслуживания (ЕО), на котором
проводятся уборочно-моечные мероприятия посредством механизированной мойки.
После уборочно-моечных операций автобус направляется на стоянку. При
необходимости выполнения работ по техническому обслуживанию или ремонту,
автобус направляется в зону обслуживания. Если посты по ТО или ТР не заняты
другими автобусами, то автомобиль направляется на них минуя зону ожидания. На
предприятии посты диагностики (Д-1 и Д-2) выделены в отдельное помещение.
Согласно схеме рисунка 3.3, автомобили, прибывающие на территорию, в
первую очередь проходят контрольный пункт (приём автомобилей с линии). Здесь на
автомобили, требующие технического обслуживания (по плану-графику) или текущего
ремонта, выписывается листок учёта с указанием неисправности или требуемого по
плану-графику вида обслуживания.
Автомобили, требующие по графику ТО-1 или ТО-2, направляются на посты
уборочно-моечных работ, далее в соответствующие производственные зоны (ТО-1,
ТО-2, ТР) предприятия, а затем в зону хранения.
Автомобили, проходящие через контрольный пункт и требующие, в результате
заявки водителя или осмотра, текущего ремонта, с соответствующей отметкой в
листе учёта, направляются на уборо-моечные посты и далее в зону ремонта для
устранения неисправностей. После устранения неисправностей с соответствующей
отметкой в листе учёта, автомобиль ставится на стоянку. В зону ремонта
автомобили могут так же поступать из зоны обслуживания при обнаружении
неисправностей, требующих текущего ремонта, а так же при возврате с линии в
случае неисправностей.
.5 Описание
информационного обеспечения
Деятельность производственных подразделений и персонала фиксируется в
различных документах (табели работы служащих, наряды выходов на линию, путевые
и ремонтные листы, требования на получение запасных частей). Результаты
деятельности предприятия оформляются в виде различных отчетов и сводок. Таким
образом, источниками информации являются подразделения, в которых персонал
выполняет определенные виды деятельности.
В «МПАТП №1» существует локальная компьютерная сеть, соединяющая все
значимые отделы предприятия. С помощью специально разработанной программы
«СПУРТ» делаются заявки на ремонт, ведётся учёт резины, горючесмазочных
материалов и т.д. При временно не работающей локальной компьютерной сети,
заявочные листы выписываются вручную, но потом все заявки на ремонт вносятся в
базу данных компьютерной сети. С помощью программы «СПУРТ» можно оперативно
обнаружить какие ремонтные работы и кем проводились на конкретно взятом
автобусе, когда проводились ТО-1, ТО-2, есть ли у автобуса перерасход топлива и
многое другое.
При заезде автобуса в парк, после отработанной смены, он проверяется
механиками отдела технического контроля, при необходимости в компьютерной
программе дается заявка на ремонт. С помощью локальной компьютерной сети она
передаётся диспетчеру производства. Водитель узнает у диспетчера производства
куда ему ставить машину, сразу в ремонтную зону или в зону хранения. При
постановке в ремонтную зону (при наличии свободного места и свободных от работы
автослесарей) диспетчер расписывается в путевом листе водителя о приёмке
автобуса.
Документы, являясь носителями информации, в процессе работы проходят
через ряд подразделений, каждое из которых вносит в него (или извлекает из
него) определенные данные. Набор документов представляет собой документооборот,
или информационные потоки предприятия.
.6
Материально-техническое обеспечение
Материально-техническое снабжение АТП представляет собой процесс
обеспечения подвижного состава эксплуатационными материалами (топливом, маслом,
резиной), запасными частями, агрегатами и другими материалами, необходимыми для
его бесперебойной работы.
Основными задачами организации материально-технического снабжения АТП
являются: своевременное и в требуемом количестве обеспечение предприятия всеми
материалами, необходимыми для бесперебойной работы подвижного состава; создание
условий наилучшего сохранения (без потерь) находящихся на складе материалов,
запасных частей и агрегатов.
Рациональная организация материально-технического снабжения АТП основывается
на передовых нормативах расхода, в первую очередь, эксплуатационных и других
материалов, а также запасных частей и агрегатов, требуемых при ТО и Р, на
своевременной их заготовке, доставке, приемке /12/
Потребность в запасных частях возрастает при увеличении среднего возраста
автомобилей. Поэтому для поддержания в технически исправном состоянии парка
автомобилей с различным пробегом требуется разное количество запасных частей.
По мере увеличения пробега наблюдается расширение в несколько раз номенклатуры
запасных частей, расходуемых на поддержание работоспособности автомобилей. Уже
на третьем году эксплуатации она в 2-3 раза больше, чем в первый год, что
обусловлено выходом из строя большего количества деталей по мере «старения»
автомобилей.
Поступление деталей на склад производится с заводов фирмы и с заводов
субпоставщиков в соответствии с планом, составленным на основании данных о
движении запчастей за предыдущий год и данных об изменении парка автомобилей.
Средний запас деталей каждого наименования должен поддерживаться на уровне
четырехмесячной годовой потребности /14 c. 304/
.7 Управление
качеством производства
Управление качеством ТР имеет в своей основе конкретные значения
нормативных показателей качества, которые определяются через наработку в
километрах пробега на выполненную операцию ТР (ГОСТ 18322-73). Нормированное
предельное количество отказов за определенный пробег, нормированное предельное
количество брака или отклонений от технических условий в заранее определенной
выборке автомобилей, проверяемых ОТК /12, с.363/.
Контроль осуществляется начальником ОТК соместно с начальником ремонтных
мастерских и старшими смен в соответствии с технологическим процессом ремонта
автомобилей. Результаты контроля заносят в талон контроля качества ТР. На основе
ежедневных ведомостей качества ТР и дефектов составляют месячные ведомости, в
которых определяют уровень качества работ бригад ТР и количество дефектов с
распределением их по видам, значимости и причинам за прошедший месяц. Отчетный
уровень качества используют для установления размера премии основным
производственным рабочим.
.8
Организация технологического процесса на участке
На рисунке 3.4 представлена схема организации технологического процесса
агрегатного участка.
Рисунок 3.4 - Схема организации технологического процесса агрегатного
участка
Агрегатный участок предназначен для ремонта агрегатов, узлов и деталей,
снятых с автомобиля.
Технологический процесс ремонта агрегатов и узлов автомобилей
осуществляется следующим образом. После снятия с автомобиля агрегаты, узлы
поступают в агрегатный участок в зону наружной очистки. После наружной очистки
согласно технологическим картам агрегаты и узлы разбирают на отдельные детали,
которые поступают далее в зону мойки. Чистые детали подвергают дефектовке, в
процессе которой выявляют необходимость ремонта и замены основных деталей. На
сборку поступают годные и отремонтированные детали, а также новые детали со
склада запасных частей.
Агрегаты и узлы собирают на специализированных стендах, где одновременно
выполняют их контроль и регулировку. После сборки агрегаты и узлы, направляют
непосредственно в зону ТР для установки их на автомобиль.
.9
Организация труда
Для обеспечения выполнения установленного перечня (объема) работ на
рабочем месте при нормативной затрате рабочего времени на осуществление ремонта
и испытание агрегатов, используются технологические карты, которые могут быть
операционно-технологическими и постовыми. В первом случае они представляют
собой перечень операций обслуживания, составленный в определенной
технологической последовательности, по агрегатам, узлам и системам автомобиля
(например, двигатель, сцепление, коробка передач, и т.д.). Постовые карты
составляют на перечень работ, выполняемых на данном участке, каждое рабочее
место. На основании карты-схемы и операционно-технологической карты может быть
составлена технологическая карта на рабочее место. Она включает в себя перечень
операций в их технологической последовательности, выполняемых данным рабочим (исполнителем),
наименование инструмента и оборудования, место выполнения (сверху, снизу,
сбоку), число одноименных мест обслуживания, норму времени и технологические
условия.
Участок по ремонту агрегатов должен удовлетворять следующим требованиям:
а) находиться в непосредственной близости к рабочим местам, на которых
выполняются предыдущие операции и источникам снабжения;
б) допускать рациональное расположение основного оборудования и
вспомогательных устройств.
Рабочее место может быть подразделено на отдельные зоны: рабочую, в
которой непосредственно осуществляется процесс; инструментов; документации;
ожидания (хранения). Рабочее место должно быть оснащено быстродействующими
съемниками, ключами, гайковертами, приспособлениями для выпрессовки.
Система обслуживания должна обеспечить: систематическую проверку
работоспособности оборудования, своевременное оснащение инструментом, запасными
частями, инструктаж и контроль качества работ.
Карта организации труда - концентрированное изложение проекта организации
труда, разработанного для определенного исполнителя на основе предварительных
инженерных, экономических, санитарно-гигиенических, психологических и других
исследований. В них даются: наиболее рациональная последовательность действий
работников; приемы; методы и нормы труда; организация и обслуживание рабочих
мест; участков; мероприятий по созданию благоприятных условий труда работников.
В целях правильного подбора и расстановки кадров в карты включается раздел:
«Требования к исполнителю» применительно к характеру выполняемой работы.
В картах организации труда для ремонта и обслуживания рабочих мест
автотранспортных предприятий предусматривается наиболее рациональные приемы и
методы труда, способы выполнения, пространственная организация рабочего места и
его элементов, система обслуживания производства, прогрессивные нормы, оплата и
материальное стимулирование труда, санитарные и гигиенические требования к
исполнителю и др.
Разработка типовых карт комплексной организации труда для
ремонтно-обслуживающих рабочих осуществляется по следующим этапам:
а) выбор типовых представителей рабочих мест, необходимых для
выполнения производственной программы;
б) анализ состояния организации рабочих мест данного типа;
На этом этапе применительно к используемым рабочим местам по профессии
рабочих установлено:
количество и качество ремонта, характерного для данного типа рабочего
места;
характерный состав ремонтных рабочих при ремонте, функции рабочего и
методы труда;
состав и оснащение рабочего места, включая основное вспомогательное
оборудование, технологическую и организационную оснастку;
обслуживание рабочих мест;
существующую планировку рабочего места, в том числе расположение
инструмента, приспособлений и оснастки;
условий труда.
в) разработка типовой комплексной организации труда для ремонта и
обслуживания агрегатов.
Карта состоит из:
а) Исходных данных. В этот раздел включены: комплектование работ,
уточненная технология, форма организации труда, система оплаты труда и
конкретные показатели премирования.
Указываются также рекомендуемые формы и системы оплаты труда, показатели
условий и размеров.
б) Трудового процесса. Раздел включает в себя рекомендации о
содержании, принятом перечне основных операций ремонта автомобиля,
последовательность работы и нормативах времени, затрачиваемого на каждый
элемент ремонта.
Нормируемое время - это время, необходимое для выполнения операции,
работы.
Ненормируемое время возникает при различных технических и организационных
неполадках (в норму времени не входит).
Нормативы времени выражены в человеко-часах и даны на единицу объема
работы, подлежащей выполнению одним исполнителем. Нормативы времени рассчитаны
по формуле:
,(3.1)
где Нвр - норматив времени на операцию, чел.Чч.;
Топ - оперативное время, чел.Чч.;пз - время на
подготовительно-заключительные работы;об - время обслуживания рабочего
места;отл - время на отдых и личные потребности.
в) Рабочего места. Под рабочим местом понимается зона трудовой
деятельности одного или нескольких исполнителей, оснащенная всеми необходимыми
средствами для выполнения производственных заданий. В рассматриваемом разделе
предусмотрена внешняя технологическая планировка рабочего места.
г) Обслуживание рабочего времени. В этом разделе перечисляются
функции обслуживания и исполнители с указанием ее объема и затрат времени на
выполнение. Приводятся средства связи с функциональными службами производства.
д) Условия труда. Это комплекс элементов, характеризующих
производственную обстановку, в которой совершается трудовой процесс и включает
в себя психофизиологические факторы.
В тех случаях, когда обстановка не позволяет устранить воздействие на
работающего человека неблагоприятных факторов, в разделе предусматриваются
обязательные средства защиты от вредных воздействий.
е) Режима труда. Запроектированный в данном разделе оптимальный режим
труда и отдыха основывается на штатном исследовании психологического состояния
рабочего и изменения работоспособности на участке на протяжении рабочей смены.
На основании этого определяется продолжительность пауз для отдыха, времени для
проведения производственной гимнастики и др.
3.10 Анализ
технико-экономических и финансовых показателей
Целью анализа производственно-хозяйственной деятельности предприятия
являются выявление и оценка технико-экономических результатов всех сторон
деятельности предприятия, определение напряженности плановых заданий и
эффективности их выполнения, вскрытия резервов использования материальных,
финансовых и трудовых ресурсов, а также подготовка и повышение обоснованности
текущих и перспективных решений.
Для того чтобы оценить деятельность автотранспортного предприятия,
применяют систему частных и обобщающих показателей. Частные показатели
позволяют оценить отдельные стороны работы подвижного состава. Эти показатели
входят в состав таких обобщающих показателей, как производительность работ
автомобилей, себестоимость перевозок. С помощью обобщающих показателей
оцениваются окончательные результаты работы предприятия.
К основным экономическим показателям работы предприятия относятся: объем
перевозок; пассажирооборот, доходы от перевозок; себестоимость; прибыль;
рентабельность и др.
Динамика экономических показателей характеризуется абсолютным приростом,
темпом роста, темпом прироста.
Абсолютный
прирост
определяется вычитанием из последующего уровня объёма
перевозок предыдущего уровня, принятого за базис, по формуле /1, c.5/.
, (1.1)
где
- показатель за анализируемый период;
-
показатель базисный период.
Темп
роста определяем по формуле /1, c.5/.
,(1.2)
Темп прироста определяем по формуле /1, c.5/.
,(1.2)
Если значение темпа прироста получится со знаком минус, значит, в
анализируемом периоде предприятие ухудшило результат по рассматриваемому
показателю.
Абсолютную величину 1% роста определяем по формуле /1, c.5/.
, (1.3)
Объем перевозок (Q) и пассажирооборот (P) являются основными
показателями, характеризующими работу автотранспортного предприятия. В таблице
3.1 представлена динамика объёма перевозок и пассажирооборот предприятия.
Таблица 3.1 - Объем перевозок и пассажирооборот
|
Показатель
|
Год
|
|
2005
|
2006
|
2007
|
2008
|
2009
|
2010
|
|
Объем перевозок, млн. т. груза
|
53,44
|
38,47
|
28,96
|
39,61
|
38,69
|
51,75
|
|
Темп роста базисный, %
|
-
|
71,99
|
54,19
|
74,12
|
72,40
|
96,84
|
|
Темп роста цепной, %
|
-
|
71,99
|
75,28
|
136,77
|
97,68
|
133,76
|
|
Абсолютное значение одного процента прироста, млн.чел.
|
-
|
-0,21
|
-0,13
|
0,08
|
-0,01
|
0,10
|
|
Грузооборот, млн.груз∙км.
|
386,00
|
316,37
|
283,28
|
284,56
|
277,63
|
379,13
|
|
Темп прироста базисный, %
|
-
|
81,96
|
73,39
|
73,72
|
71,92
|
98,22
|
|
Темп прироста цепной, %
|
-
|
81,96
|
89,54
|
100,45
|
97,56
|
136,56
|
|
Абсолютное значение одного процента прироста, млн.пасс∙км.
|
-
|
-0,85
|
-0,37
|
0,01
|
-0,07
|
0,74
|
Для предприятия занимающегося перевозками грузов, объем перевозок определяется
количеством перевезенного груза. В свою очередь грузооборот - это показатель
работы грузового транспорта, вычисляемый как произведение количества
перевезенного груза на расстояние их перевозки, выражается в грузо-километрах.
Динамика объема перевозок представлена на рисунке 3.5.
Рисунок 3.5 - Динамика объема перевозок и пассажирооборота
Муниципальное предприятие г. Зеленоград «МПАТП №1» обеспечивает около
половины п перевозок в городе. Данные таблицы 3.1 и рисунок 3.5наглядно
демонстрируют, что с 2005 г. по 2006 г. наблюдается устойчивая динамика
сокращения численности перевезенного груза и пассажиров. Объем перевозок
предприятия в этот период сократился на 45,8% или на 24,48 млн., а на 26,6% или
на 102,72 млн. пасс∙км. Начиная с 2006 г., наблюдается рост объема
перевозок и пассажирооборота. В 2010 г. объем перевозок вырос по сравнению с
2006 г. на 78,7% или на 22,79 млн. чел., аналогично вырос на 33,8% или на 95,85
млн. пасс∙км. Объем перевозок, и объем доходов (Д) являются
взаимозависимыми показателями. Доходы любого автотранспортного предприятия
складываются из доходов от перевозок, сдачи в аренду помещений и прочих работ и
услуг (оказание техпомощи на линии, техническое обслуживание и ремонт
автомобилей для других предприятий и т. п.).
Рисунок 3.6 - Динамика доходов
Следует отметить, что за анализируемый период динамика доходов
предприятия имела положительную динамику, что следует оценить положительно
(рисунок 3.6, таблица 3.2).
Таблица 3.2 -
Доходы предприятия
|
Год
|
Доходы, млн. р.
|
Темпы роста (спада), %
|
|
|
базисные
|
цепные
|
|
2005
|
285,57
|
100
|
100
|
|
2006
|
386,69
|
135,41
|
135,41
|
|
2007
|
441,49
|
154,60
|
114,17
|
|
2008
|
459,52
|
160,91
|
104,08
|
|
2009
|
691,132
|
242,02
|
150,40
|
|
2010
|
744,3
|
260,64
|
107,69
|
Доходы от перевозок - основная составляющая общей суммы доходов
предприятия. Однако предприятие изыскивает возможности получения дополнительных
доходов. Часть доходов предприятие получает за оказание различных платных
услуг, таких как заказные перевозки, рекламные услуги, стоянка, мойка, услуги
технической службы и прочие. Также оказываются услуги коммерческим перевозчикам
по эксплуатационным вопросам, техническому обслуживанию, медицинскому
обслуживанию, для этого предприятие имеет специализированную производственную
базу, квалифицированных специалистов, и лицензию на эти виды работ, услуг. В
2010 г. 84% доходов предприятие получило от маршрутных перевозок, 15,5% от
прочих услуг и 0,5% от заказанных перевозок.
Себестоимость (S) -
важнейший показатель экономической эффективности деятельности автотранспортного
предприятия, отражающий все стороны хозяйственной деятельности и аккумулирующий
результаты использования всех производственных ресурсов. От его уровня зависят
финансовые результаты деятельности предприятия, темпы расширенного
воспроизводства, финансовое состояние предприятия.
Себестоимость перевозок представляет собой денежное выражение затрат
автотранспортного предприятия на выполнение транспортной работы.
Себестоимость перевозок на автомобильном транспорте - это затраты
предприятия на перевозку пассажиров. В финансовой деятельности АТП на
увеличение прибыли наибольшее влияние оказывает снижение расходов на
производственную деятельность. Для достижения снижения затрат и уменьшения
себестоимости перевозок все звенья управления автомобильным транспортом должны
обеспечивать в своей деятельности экономию материальных, трудовых и денежных
ресурсов.
На рисунке 3.7. наглядно представлена динамика себестоимости предприятия.
Рисунок 3.7 - Динамика себестоимости
Основной задачей анализа себестоимости перевозок является выявление путей
ее максимального снижения. Расходы предприятия в 2010 г. составили 725,07 млн.
р. и возросли к уровню 2005 г. 2,3 раза или на 409,7 млн. р. (таблица 3.3).
Среднегодовой темп роста себестоимости составил 11%, а среднегодовой темп
роста доходов от эксплуатационной деятельности составил 13%. Таким образом,
доходы предприятия растут более быстрыми темпами, чем себестоимость, что
следует оценить положительно.
Таблица 3.3 -
Динамика себестоимости
|
Год
|
Себестоимость, млн. р.
|
Темпы роста (спада), %
|
|
|
базисные
|
цепные
|
|
2005
|
315,37
|
100
|
100
|
|
2006
|
390,38
|
123,78
|
123,78
|
492,41
|
156,14
|
126,14
|
|
2008
|
430,28
|
136,44
|
87,38
|
|
2009
|
677,71
|
214,89
|
157,50
|
|
2010
|
725,07
|
229,91
|
106,99
|
Себестоимость предприятия за анализируемый период имеет тенденцию
постепенного и постоянного увеличения, однако в 2007 г. себестоимость
предприятия сократилась по сравнению с 2006 г. на 13%. В 2008 г. себестоимость
предприятия по сравнению с 2007 г. резко выросла на 57,50%.
Причинами роста расходов являются увеличение цен на энергоресурсы,
коммунальные услуги, горюче-смазочные материалы, запасные части, увеличение
тарифной ставки оплаты труда и др. Средний возраст парка автомобилей
увеличился, что в свою очередь вызывает увеличение затрат на их техническое
обслуживание и ремонт, а также ведет к увеличению расхода топлива.
Данные о структуре затрат предприятия представлены на рисунке 3.8.
Незначительный удельный вес в структуре затрат занимают амортизационные
отчисления (в 2009 г. - 0,47%). Значительное место в структуре затрат занимают
материальные затраты - 17,96%. Материальные затраты включают стоимость
израсходованных в процессе производства различного рода топливно-энергетических
ресурсов и материалов, запасных частей для ремонта и технического обслуживания
подвижного состава, автомобильной резины.
Рисунок 3.8 - Структура себестоимости
Наибольший удельный вес в структуре затрат предприятия занимаю прочие
затраты - 56,28%. Прочие затраты включают прежде всего затраты, связанные с
ремонтом автотранспортных средств.
Динамика затрат ремонтного фонда предприятия представлена в таблице 3.4 и
на рисунке 3.9.
Таблица 3.4 - Динамика затрат на ремонт
|
Показатель
|
2005
|
2006
|
2007
|
2008
|
2009
|
2010
|
|
Затраты на ремонт, млн. р.
|
8,53
|
22,86
|
18,23
|
21,28
|
24,99
|
35,42
|
|
Темп прироста базисный, %
|
-
|
167,95
|
113,68
|
149,44
|
192,94
|
315,20
|
|
Темп прироста цепной,
%
|
-
|
267,95
|
79,75
|
116,74
|
117,44
|
141,74
|
Объем затрат связанных с ремонтом за период с 2005 по 2010 г. вырос в
4,15 раза. Наибольший скачек затрат на ремонт произошел в 2010 г. к уровню
предыдущего года на 41,74% (рисунок 3.9).
Рисунок 3.9 - Динамика затрат на ремонт
Рост затрат на ремонт вызван старением активной части основных
производственных фондов, которое приводит к увеличению затрат на материалы, повышению
расхода горюче-смазочных материалов.
Большая доля затрат приходится на заработную плату - 12,85%. Динамика
фонда оплаты труда за период с 2005 по 2010 годы представлена в таблице 3.5 и
на рисунке 3.10.
Рисунок 3.10 - Динамика производительности труда и
фонда заработной платы
Фонд оплаты труда за анализируемый период вырос в 2,68 раза. Рост фонда
оплаты труда вызван увеличением уровня инфляции, повышением размера минимальной
оплаты труда, в 2010 г по сравнению с 2009 г. фонд оплаты труда вырос на 13,5 %
в связи сростом численности основного персонала предприятия - водителей
автобусов и кондукторов, а также в связи с ликвидацией производственной
деятельности ООО «Перевозчик № 1,2», «АРМ № 1,2» и компенсационными выплатами
при увольнении работников.
Таблица 3.5 - Динамика производительности труда фонда заработной платы
|
Показатель
|
Год
|
|
2005
|
2006
|
2007
|
2008
|
2009
|
2010
|
|
Фонд оплаты труда, млн.р.
|
140,29
|
172,65
|
182,28
|
210,71
|
332,20
|
377,10
|
|
Темп роста базисный, %
|
-
|
123,07
|
129,93
|
150,20
|
236,80
|
268,80
|
|
Темп роста цепной, %
|
-
|
123,07
|
105,58
|
115,60
|
157,66
|
113,52
|
|
Производительность труда, тыс.р./чел.
|
18,85
|
23,06
|
23,04
|
29,48
|
44,33
|
44,07
|
|
Темп роста базисный, %
|
-
|
122,33
|
122,24
|
156,37
|
235,19
|
233,79
|
|
Темп роста цепной, %
|
-
|
122,33
|
99,93
|
127,92
|
150,40
|
99,40
|
В свою очередь производительность труда за анализируемый период выросла в
2,33 раза (таблица 1.5). Среднегодовой темп роста производительности труда
составил 13,83%, а фонда оплаты труда 16,91%. Таким образом, заработная плата
растет более быстрыми темпами, чем производительность труда, что следует
оценить отрицательно.
Финансовые результаты деятельности предприятия характеризуются суммой
полученной прибыли и уровнем рентабельности. Чем больше величина прибыли и выше
уровень рентабельности, тем эффективнее функционирует предприятия, тем
устойчивее его финансовое состояние. Динамика прибыли и рентабельности
предприятия представлена в таблице 3.6 и на рисунке 3.11.
Как показал вышеприведенный анализ, начиная с 2005 г. по 2006 г.
себестоимость деятельности предприятия превышала его доходы, в результате за
этот период предприятия имело убыток по основной деятельности. Наибольшая сумма
убытка наблюдается в 2006 году, в котором прирост убытков составил 38 млн. р.
по сравнению с 2004 годом. Резкое увеличение суммы убытка в 2006 году произошло
за счет того, расходы предприятия превышали его доходы на 11,%.
Рисунок 3.11 - Динамика прибыли предприятия
Начиная с 2007 г. предприятие по основной деятельности имело
положительный финансовый результат (таблица 3.6), что следует оценить
положительно. Однако в 2010 г. расходы предприятия от прочей деятельности
значительно превысили как доходы, так и валовую прибыль от основной
деятельности, в результате этого предприятие получило чистый убыток в сумме
-12,14 млн. р.
Таблица 3.6 - Прибыль и рентабельность деятельности
|
Показатель
|
Год
|
|
2005
|
2006
|
2007
|
2008
|
2009
|
2010
|
|
Валовая прибыль ("-" убыток) предприятия, млн. р.
|
-29,80
|
-3,69
|
-50,98
|
29,25
|
13,42
|
19,23
|
|
Чистая прибыль ("-" убыток) предприятия, млн. р.
|
-7,08
|
-5,67
|
-44,36
|
17,37
|
0,15
|
-12,14
|
|
Рентабельность продаж, %
|
-2,48
|
-1,47
|
-10,05
|
3,78
|
0,02
|
-1,63
|
|
Рентабельность производства, %
|
-9,45
|
-0,95
|
-10,35
|
6,80
|
1,98
|
2,65
|
Рентабельность показатель, определяющий уровень доходности бизнеса.
Показатель рентабельности характеризует эффективность работы предприятия в
целом, доходность различных направлений деятельности. Этот показатель наиболее
полно характеризует окончательные результаты хозяйствования, потому что их величина
показывает соотношение эффекта с наличными или потребленными ресурсами.
Существует множество показателей рентабельности: рентабельность продаж,
рентабельность основных фондов, рентабельность собственного капитала,
рентабельность активов и т.д.
Рентабельность
продаж
(таблица 3.6) показывает долю прибыли
<#"565274.files/image442.gif">,(3.4)
где
- чистая прибыль (прибыль после налогообложения) млн.
р.;
- объем
продаж (выручка), млн. р.
Рентабельность
производства
рассчитывается по формуле 3.5. Данный показатель
показывает, сколько предприятие имеет прибыли с каждого рубля, затраченного на
производство и реализацию продукции.
,(3.5)
где
- валовая прибыль (прибыль до налогообложения) млн.
р.;
-
затраты на производство и реализацию (себестоимость), млн. р.
Динамика рентабельности предприятия, рассчитанная по валовой прибыли
(таблица 3.6) представлена на рисунке 3.12.
Данные таблицы 3.8 демонстрируют, что в период с 2005 г. по 2006 г.
предприятие имело отрицательный уровень рентабельности. Начиная с 2007 г. по
2010 г. ситуация изменилась и уровень рентабельности рассчитанная по валовой
прибыли был положительным. Положительный уровень рентабельности был достигнут
за счет того что доходы предприятия превысили его расходы. В 2010 г.
рентабельность производства составила 2,65%. Это значит, что предприятие с
каждого затраченного рубля имело 2,3 копейки прибыли, однако рентабельность,
рассчитанная по чистой прибыли в 2010 г. была отрицательной т.к. деятельность
предприятия в целом была убыточной.
Рисунок 3.12 - Динамика рентабельности
Основными источниками резервов увеличения суммы прибыли, и роста
рентабельности являются: увеличение объемов перевозок; снижение себестоимости;
повышение тарифов на перевозки.
Финансовое состояние предприятия и его устойчивость в значительной
степени зависят от того, каким имуществом располагает предприятие, в какие
активы вложен капитал, и какой доход они приносят.
Анализ источников формирования и размещения капитала имеет большое
значение для предприятия.
Из таблицы 3.7 видно, что наибольший удельный вес в структуре пассива
предприятия на конец 2008 г. занимали краткосрочные обязательства. Собственный
капитал предприятия в 2008 г. имел отрицательное значение, из-за больших сумм
непокрытого убытка. Данное обстоятельство свидетельствует о значительной
зависимости предприятия от внешних инвесторов и кредиторов.
Таблица 3.7 - Структура пассива
|
Пассив
|
2008 г.
|
2009 г.
|
Абсолютное изменение, млн. р.
|
|
Капитал и резервы
|
-37,919
|
252,454
|
290,373
|
|
Долгосрочные обязательства
|
24,435
|
13,25
|
-11,185
|
|
Краткосрочные обязательства
|
64,389
|
51,283
|
-13,097
|
|
Баланс
|
50,905
|
316,987
|
266,091
|
В 2009 г. в структуре пассива наибольший удельный вес занимал капитал и
резервы, а доля обязательств перед кредиторами сократилась, что следует оценить
положительно.
В структуре заемного капитала большую долю занимают краткосрочные
обязательства. По этой причине финансовое положение может стать неустойчивым,
так как с капиталами краткосрочного использования необходима постоянная
оперативная работа: контроль за своевременным их возвратом и привлечение в
оборот на непродолжительное время других капиталов. Заемный капитал предприятия
формируется в основном за счет кредиторской задолженности. Доля долгосрочных
обязательств в структуре заемного капитала в 2009 г. по сравнению с 2008 г.
сократилась с 27,5% до 15%, что следует оценить отрицательно (таблица3.8).
Таблица 3.8 - Структура и динамика заемного капитала
|
Источник заемных средств
|
2008 г.
|
2009 г.
|
Изменение
|
|
млн. р.
|
Доля, %
|
млн. р.
|
Доля, %
|
Темп роста, %
|
% пункта
|
|
Долгосрочные обязательства
|
24,44
|
-
|
13,25
|
-
|
54,23
|
-
|
|
Краткосрочные обязательства
|
64,39
|
100,0
|
51,28
|
100,0
|
79,65
|
-
|
|
в том числе:
|
|
|
|
|
|
|
|
займы и кредиты
|
0,02
|
0,02
|
0,02
|
0,03
|
100,00
|
0,01
|
|
кредиторская задолженность
|
59,60
|
92,56
|
47,97
|
93,54
|
80,49
|
0,98
|
|
доходы будущих периодов
|
4,77
|
7,41
|
3,30
|
6,43
|
69,09
|
-0,98
|
За год общая сумма кредиторской задолженности сократилась на 11,63 млн.
р. или на 19,5%, что следует оценить как позитивную тенденцию. Однако доля
кредиторской задолженности в общей структуре заемного капитала выросла почти на
1 процентный пункт, что следует оценить отрицательно.
Предприятие имеет незначительную сумму дебиторской задолженность, это
обусловлено, прежде всего, спецификой деятельности предприятия, которая
предполагает предварительную оплату, т.е. сначала оно получает деньги, а затем
предоставляет услуги по перевозке.
Сумма кредиторской задолженности предприятия значительно превышает
дебиторскую. В 2009 г. кредиторская задолженность в 16 раз или на 44,93 млн. р.
превышала дебиторскую, что следует оценить отрицательно, так как если все
кредиторы предъявят свои требования, то погашение дебиторской задолженности
практически ничем не поможет предприятию. Структура активов предприятия
представлена в таблице 3.9.
Таблица 3.9 - Структура активов
|
Вид актива
|
2008 г.
|
2009 г.
|
Изменение
|
|
млн. р.
|
Доля, %
|
млн. р.
|
Доля, %
|
Темп роста, %
|
п.п.
|
|
Внеоборотные активы
|
18,24
|
35,84
|
294,77
|
92,99
|
1615,68
|
57,15
|
|
Оборотные активы
|
32,66
|
64,16
|
22,22
|
7,01
|
68,04
|
-57,15
|
|
Баланс
|
50,91
|
100,0
|
316,99
|
100,0
|
622,70
|
-
|
В структуре активов предприятия наибольшую долю занимают оборотные активы
(таблица 3.9). За год доля оборотных активов сократилась на 57,15 % пункта, а
доля внеоборотных соответственно увеличилась на эту же величину. Это говорит о
том, что в структуре актива баланса неликвидных активов стало значительно
больше, что следует оценить как негативную тенденцию.
Структура внеобротных активов предприятия за анализируемый период
изменилась незначительно. Внеоборотные активы предприятия формируется в
основном за счет основных средств, так в 2009 г. в общей структуре внеоборотных
активов они занимали более 99,91%. Отметим, что сумма основных средств
предприятия за анализируемый период выросла более чем в 16 раз, это связано с
тем, что предприятие приняло на хозяйственное ведение имущество прекративших
производственную деятельность OOO «Перевозчик №1,2» и «АРМ №1,2». У предприятия
имеются долгосрочные финансовые вложения, что говорит о том, что предприятие
осуществляет инвестиционную деятельность.
Общая сумма денежных средств предприятия за анализируемый период выросла
на 27,96%, а запасов и краткосрочной дебиторской задолженности сократилась на
26,03% и 68,74% соответственно. Произошли изменения в структуре оборотных
активов, так доля краткосрочной дебиторской задолжности сократилась на 16,10 %
пункта, а запасов и денежных средств выросла на 4,32 и 15,17 % пункта.
Для оценки степени финансовой устойчивости и финансового риска необходимо
рассчитать такие показатели как коэффициент финансовой автономии (или
независимости) - удельный вес собственного капитала в общей валюте баланса;
коэффициент финансовой зависимости - доля заемного капитала в общей валюте
баланса; Чем выше уровень первого показателя и ниже второго, тем устойчивее
положение предприятия.
Оценка платежеспособности осуществляется на основе характеристики
ликвидности оборотных активов, которая определяются временем, необходимым для
превращения их в денежные средства. Чем меньше требуется времени для инкассации
данного актива, тем выше его ликвидность.
Данные таблицы 1.10 свидетельствуют о том, что финансовое положение
предприятие улучшилось. В 2008 г. коэффициент финансовой автономии имел
отрицательное значение, что говорит о том, что предприятие находилось в
критическом состоянии, т.к. его собственные средства не могли покрыть убытки
предприятия. В 2009 г. значение этого коэффициента составило 0,69, что следует
оценить положительно.
Коэффициент финансовой зависимости в 2008 г. превышал единицу, что
свидетельствует о том, что обязательства предприятия перед внешними кредиторами
значительно превышали его собственный капитал (таблица 1.10). В 2009 г. этот
показатель составил 0,2 что говорит о том, что собственный капитал предприятия
сможет покрыть все обязательства на 20%.
Таблица 3.10 - Показатели финансовой устойчивости и платежеспособность
предприятия
|
Показатель
|
2008 г.
|
2009 г.
|
Рекомендуемое значение
|
|
Коэффициент финансовой
автономии
|
-0,74
|
0,69
|
0,5-0,8
|
|
Коэффициент финансовой зависимости
|
1,74
|
0,20
|
2
|
|
Коэффициент текущей ликвидности
|
0,51
|
0,43
|
1-2
|
Для оценки ликвидности и платежеспособности предприятия рассчитаем
коэффициент текущей ликвидности. Коэффициент текущей ликвидности
рассчитывается, как отношение всех оборотных активов к сумме краткосрочных
финансовых обязательств; он показывает степень покрытия оборотными активами
оборотных пассивов. В 2009 г. значение этого показателя составило - 0,43, что
говорит о том, что, предприятие не может погасить свои краткосрочные
обязательства за счет оборотных активов.
Анализ источников формирования и размещения капитала показал значительную
зависимость предприятия от внешних инвесторов и кредиторов. Финансовое
положение предприятия за анализируемый период улучшилось и в настоящее время
находится в удовлетворительном состоянии.
.11
Характеристика производственно-технической базы
Производственно-техническая база автопредприятий, предназначена для
хранения подвижного состава и проведения технического обслуживания и ремонта
автомобилей.
За предприятием закреплен участок земли площадью 20995.5 кв.м. Плотность
застройки «МПАТП-1» составляет 47%. На территории предприятия находятся
следующие строения: административное здание; производственный корпус; открытые
стоянки для хранения автомобилей в теплое время года; тёплые гаражи для
хранения автомобилей в холодное время года; контрольно- пропускной пункт с
диспетчерской; автозаправочная станция; профилакторий и другие вспомогательные
сооружения.
В состав производственно-складских помещений входят зоны ТО и ТР, производственные
участки ТР, склады, а также технические помещения энергетических и
санитарно-технических служб и устройств (компрессорные, трансформаторные,
насосные, вентиляционные и т.п.). Складские помещения на МПАТП
предусматриваются для хранения: двигателей, агрегатов, узлов, непожароопасных
материалов, металлов, инструмента, ценного утиля; автомобильных шин (камер и
покрышек); смазочных материалов; лакокрасочных материалов; твердых сгораемых
материалов (бумага, картон, ветошь).
В состав площадей административно-бытовых помещений предприятия входят:
санитарно-бытовые помещения, пункты общественного питания, здравоохранения
(медицинские пункты), культурного обслуживания, управления, помещения для
учебных занятий и общественных организаций.
В настоящее время производственно - техническая база предприятия не
соответствует современным нормам. Большая часть оборудования, установленного на
производственных участках и в зоне текущего ремонта, изношена на 90%, в
результате чего оно не в состоянии обеспечить требуемого качества ремонта
различных узлов и агрегатов автомобилей. Кроме того, использование подъёмного
оборудования, выработавшего свой ресурс, опасно для жизни и здоровья ремонтных
рабочих.
Модернизация материальной базы происходит очень медленно, её оснащенность
технологическим оборудованием составляет не более 40%. Посты ТР оснащены всего
двумя, выработавшими свой ресурс, канавными подъёмниками, способными вывешивать
лишь один из мостов. Диагностирование Д-2, для выявления перед ТО-2
неисправностей и скрытых повреждений не проводится из-за отсутствия подъёмного
и другого оборудования.
В настоящее время необходимо решать вопросы об оснащенности постов и
участков ремонтным инструментом и специализированным оборудованием, позволяющим
повысить безопасность и производительность труда.
Общие выводы по анализу производственно-хозяйственной деятельности
Анализ производственно-хозяйственной деятельности Муниципального
предприятия «МПАТП №1» показал, что происходит улучшение по ряду
финансово-экономических показателей, так например, за анализируемый период
выросли доходы, объем перевозок и пассажирооборот, улучшились и ряд финансовых
показателей. Однако положение предприятия характеризуется все еще как сложное.
Одна из наиболее значимых проблем, с которыми сталкиваются предприятия
пассажирского транспорта - обновление парка подвижного состава. Обновление авто
транспортного парка предприятия происходит довольно медленными темпами.
Начисляемые амортизационные отчисления не позволяют аккумулировать
финансовые ресурсы в объемах, достаточных для восстановления списываемого
парка. Устаревший парк автомобилей способствует росту трудоемкости технического
обслуживания и ремонта, уменьшению надежность подвижного состава,
дополнительным простоям в ремонте и повышенному расходу запчастей.
Анализ технико-эксплуатационных показателей показал, что производственные
мощности предприятия используются недостаточно полно. Хотя следует отметить
положительную динамику роста коэффициентов технической готовности, сокращение
дней простоя в ремонте и увеличение общего годового пробега. Недостаточно
полное использование производственной мощности в конечном итоге может привести
к увеличению доли постоянных издержек.
Основными факторами, снижающими технико-эксплуатационные показатели
предприятия, являются устаревшее технологическое оборудование и низкий уровень
механизации трудоемких и тяжелых процессов. Вследствие того, что предприятие не
имеет технологического оборудования в достаточном количестве и необходимого
назначения происходят долгие простои в ТР, некачественный ремонт, частые сходы
с линии подвижного состава, что, в конечном счете, и приводит к снижению
планируемой прибыли.
Муниципальное унитарное предприятие «МПАТП №1» функционирует в сложных
условиях, испытывая постоянное конкуренцию со стороны частных перевозчиков и
обеспечивая при этом перевозки. С целью сглаживания негативных влияний рынка,
повышения эффективности деятельности Муниципальное унитарное предприятие «МПАТП
№1» должно:
заниматься «диверсификацией» производства, т. е. искать различные
побочные сферы деятельности как связанные, так и несвязанные с транспортным
обслуживанием, например, транспортно-экспедиционным обслуживанием.;
повысить контроль над сбором выручки;
проводить мероприятия по снижению коммунальных затрат, затрат на горюче-смазочные
материалы, электроэнергию, общехозяйственных расходов;
изыскивать возможности обновлять парк, приобретать более экономичные и
надёжные в эксплуатации автомобили взамен неэкономичных и выработавших свой
ресурс;
обновлять существующее оборудование используемое для ремонта и
обслуживания автомобилей, сделать упор на приобретение универсального
разборочно-сборочного, подъёмно-транспортного и другого современного
оборудования которое позволит быстро, качественно и с минимальными затратами
усилий ремонтировать подвижной состав предприятия;
активизировать претензионную работу с арбитражными судами по взысканию
долгов;
производить экономию фонда оплаты труда. Уменьшая оплату по сверхурочным
часам путем соблюдения режима рабочего времени;
проводить более тщательный контроль за качеством выполненных ремонтных
работ;
организовать ТО и ТР по методу специализированных бригад, с разбивкой
всех ремонтных рабочих на бригаду ТО-1, ТО-2 и бригаду по проведению ТР. Всё
это приведёт к более качественному обслуживанию и ремонту подвижного состава,
повышению технической готовности, а следовательно и увеличению объёмов
перевозок.
усовершенствовать агрегатный участок, с внедрением универсального
оборудования, в частности предлагается применить пресс для выпресовки подшипников
крестовин карданного вала, а также стенд для тестировании я форсунок. Учитывая
неудовлетворительное состояние отечественных автомобильных дорог, поломки
карданного вала являются довольно распространенными. Самая важная деталь в
карданном валу - это шарниры. Именно они чаще всего выходят из строя.
.12
Экономическое обоснование принятых проектных решений
Исходные данные экономических показателей агрегатного участка
представлены в таблице 3.11.
Таблица 3.11 - Исходные данные экономических показателей агрегатного
участка
Трудоемкость выполняемых работ агрегатного участка: -
до совершенствования, чел.
ч.
после совершенствования, чел.
ч.
496,29
|
14 516,73
|
|
|
Штатная численность ремонтных рабочих: - до
совершенствования, чел. - после совершенствования, чел.
|
9 8
|
|
Средний разряд работ, выполняемых на агрегатном участке
|
4
|
|
Норма затрат на запасные части, р./1000 км
|
350
|
Совершенствование организации работ на агрегатном участке МУП «МПАТП №1»
предполагает изготовление универсального стенда для выпресовки подшипников
крестовин карданных валов и приобретение стенда для расточки тормозных
барабанов и обточки накладок автобусов. Предполагается объединить агрегатный
участок и участок ремонта тормозных колодок, что приведет к высвобождению
площади.
Стенд для выпрессовки подшипников крестовин карданных валов и стенд для
расточки тормозных барабанов и обточки накладок необходимое оборудование для
любого агрегатного участка. Неудовлетворительно состояние наших дорог является
частой причиной поломки крестовины карданного вала, а от правильности и
своевременности расточки, тормозных барабанов, зависит правильная работа автомобиля
и безопасность движения.
Данные мероприятия приведут к уменьшению трудоемкости выполняемых работ,
снижению численности ремонтных рабочих. Приобретаемое оборудование приведет к
росту коэффициента технической готовности. Дальнейшие расчеты позволят
определить экономический эффект от совершенствования организации работ на
агрегатном участке.
3.12.1
Определение суммы дополнительных капитальных вложений
Дополнительные капитальные вложения складываются из стоимости
изготовления стенда и стоимости дополнительного приобретаемого оборудования.
Стенд изготавливается на предприятии с привлечением ремонтных рабочих.
Смета затрат на изготовление стенда состоит из следующих статей:
- затраты на материалы и покупные изделия;
- затраты на оплату труда;
- отчисления на социальные нужды;
- общепроизводственные расходы.
Для определения материальных затрат на изготовление стенда по каждому
виду материала устанавливается их потребное количество в тоннах и определяются
цены.
Материальные затраты на изготовление стенда представлены в таблице 3.12.
|
Материал
|
Требуемое количество, кг.
|
Цена за 1 ед./р. на 2010 г.
|
Стоимость, Р.
|
|
Лист стальной 20 мм
|
55
|
35,3
|
1 941,5
|
|
Прокат стальной (уголок 100Ч100Ч16 ГОСТ 8509-93)
|
50
|
34,5
|
1 725
|
|
Электрод сварочный
|
6
|
30
|
180
|
|
Масло И-12А ГОСТ 20799-88
|
2,5
|
60
|
150
|
|
Смазка Литол-24 ГОСТ 21150-75
|
0,1
|
30
|
3
|
|
Герметик ГОСТ 8764-96
|
0,35
|
90
|
31,5
|
|
Эмаль ПФ-115 ГОСТ6465-76
|
2
|
181
|
362
|
|
Круг 40 ст.12 ХМ
|
3
|
35
|
105
|
|
Стальной стержень
|
10
|
32
|
320
|
|
Квадрат 400 ст. 45
|
2,5
|
23
|
57,5
|
|
Итого:
|
|
|
4 875,5
|
|
Итого с учетом доставки:
|
|
|
5 363,05
|
Сумма затрат на покупные изделия и метизы представлена в таблице 3.13.
Таблица 3.13 - Затраты на покупные изделия
|
Материал
|
Требуемое количество, шт.
|
Цена за 1 ед./р. на 2010 г.
|
Стоимость, р.
|
|
Болт М8-6gх40.58.016 ГОСТ 7796-70
|
4
|
4,5
|
18,0
|
|
Болт М 12 -6gx60.58.016 ГОСТ 7796-70
|
8
|
6,3
|
50,4
|
|
Болт М 14-6gx60.58.016 ГОСТ 7796-70
|
4
|
7,65
|
30,6
|
|
Болт М 16 -6gx60.58.016 ГОСТ 7796-70
|
16
|
11,85
|
189,6
|
|
Болт М 20-6gх45.58.016 ГОСТ 7796-70
|
4
|
19,17
|
76,7
|
|
Болт М 36-6gх45.58.016 ГОСТ 7796-70
|
4
|
34,5
|
138,0
|
|
Винт М 20х200.48 ГОСТ 1482-75
|
4
|
56,7
|
226,8
|
|
Втулка А 20/26х15 ГОСТ 24832-81
|
4
|
300
|
1 200,0
|
|
Втулка А 42/52x50 ГОСТ 24833-81
|
1
|
350
|
350,0
|
|
Гайка М 8х1,5-6Н.5 ГОСТ 5915-70
|
4
|
1,56
|
6,2
|
|
Гайка М 12х1,5-6Н.5 ГОСТ 5915-70
|
4
|
1,53
|
6,1
|
|
Гайка М14-6Н ГОСТ 5915-70
|
4
|
2,65
|
10,6
|
|
Гайка М 16х1,5-6Н.5 ГОСТ 5915-70
|
8
|
3,75
|
30,0
|
|
Гайка М 20х1,5-6Н.5 ГОСТ 5915-70
|
8
|
5,65
|
45,2
|
|
Гайка М 36х1,5-6Н.5 ГОСТ 5915-70
|
4
|
9,37
|
37,5
|
|
Гайка М16-6Н ГОСТ 5915-70
|
8
|
2,45
|
19,6
|
|
Двигатель 4А80В ГОСТ 19523-74
|
1
|
6500
|
6 500,0
|
|
Концевой выключатель
|
2
|
380
|
760,0
|
|
Подшипник 209 ГОСТ 8338-75
|
1
|
55
|
55,0
|
|
Подшипник 7312 А ГОСТ 27365-87
|
1
|
312
|
312,0
|
|
Тиски слесарные TMS-61005
|
2
|
4290
|
8 580,0
|
|
Шайба 8 65 Г ГОСТ 6402-70
|
4
|
0,21
|
0,8
|
|
Шайба 12 65 Г ГОСТ 6402-70
|
8
|
0,61
|
4,9
|
|
Шайба 14 65 Г ГОСТ 6402-70
|
8
|
0,84
|
6,7
|
|
Шайба 16 65 Г ГОСТ 6402-70
|
16
|
1,09
|
17,4
|
|
Шайба 20 65 Г ГОСТ 6402-70
|
4
|
1,66
|
6,6
|
|
Шайба 36 65 Г ГОСТ 6402-70
|
4
|
0,21
|
0,8
|
|
Шкив больший
|
1
|
1227
|
1 227,0
|
|
Шкив малый
|
1
|
466
|
466,0
|
|
Шпонка 12х8х45 ГОСТ 23360-78
|
1
|
4
|
4,0
|
|
Штифт 2.6х24 ГОСТ 3129-70
|
4
|
4,5
|
18,0
|
|
Штифт 2.8х40 ГОСТ 3128-70
|
2
|
6,2
|
12,4
|
|
Корпус силового узла
|
1
|
2800
|
2 800,0
|
|
Итого:
|
|
|
23 207,1
|
|
Итого с учетом доставки:
|
|
|
25 527,8
|
Расчет затрат на заработную плату рабочих занятых изготовление стенда
выполняется в следующей последовательности:
Фонд заработной платы ФЗП определяем по формуле:
,(3.1)
где
- фонд заработной платы основной, р;
- фонд
заработной платы дополнительный, р.
Основной
фонд заработной платы определим по формуле:
,(3.2)
где
- тарифный фонд заработной платы, р;
- размер
надбавок и доплат (к расчету принимается 15-20 % к
, в данном случае принимаем
=20%);
- размер
премии (к расчету принимаем 20% к
);
-
районный коэффициент (60%).
,(3.3)
где
- трудоемкость изготовления подъемника чел.Чч;
- ставка
тарифная часовая, соответствующего разряда, р.
Работы
по изготовлению стенда занимаются рабочие V разряда. Часовая тарифная ставка
для рабочих V определяется по формуле:
, (3.4)
где
- часовая тарифная ставка рабочего первого разряда,
р. Часовая тарифная ставка первого разряда определяется отношением минимального
размера оплаты труда к количеству часов отработанных за месяц
р.
-
тарифный коэффициент 5-ого разряда.
р.
Тогда
тарифный фонд заработной платы определим по формуле:
р.
По
формуле 6.3 определим основной фонд заработной платы:
р.
Дополнительная
заработная плата
составляет 14% от основной.
,(3.5)
р.
Тогда
общий фонд заработной платы определи по формуле 6.2.
р.
Отчисления
на социальные нужды (единый социальный налог - ЕСН) производятся по
установленной Правительством России ставке в 26 % к
.
,(3.6)
р.
Определение
косвенных расходов. Косвенные расходы (содержание оборудования,
общепроизводственные расходы и др.) определяются в процентах от заработной
платы (150%).
,(3.7)
р.
Смета
затрат на изготовление стенда приведена в таблице 6.14.
Таблица 3.14 - Смета затрат на изготовление стенда
|
Статья затрат
|
Сумма, р.
|
|
Затраты на основные материалы
|
5 363,05
|
|
Затраты на покупные изделия
|
25 527,8
|
|
Заработная плата рабочих
|
10 500
|
|
Единый социальный налог
|
2 730
|
|
Косвенные расходы
|
15 750
|
|
Итого
|
59 871
|
Дополнительные
капитальные вложения (
= 323 171 р.) складывается из затрат на изготовление
стенд для выпрессовки подшипников крестовин карданных передач и приобретения
стенда для расточки тормозных барабанов и обточки накладок.
.13 Определение
экономического эффекта
Положительный экономический эффект от внедрения данного мероприятия будет
выражаться в снижении затрат на содержание участка, на материалы и запасные
части, в снижении расходов на оплату труда и единый социальный налог. Приобретаемое
оборудование приведет к снижению трудоемкости и как следствие к росту
коэффициента технической готовности и общегодового пробега.
Однако приобретаемое оборудование приведет к росту затрат на
электроэнергию, амортизационных отчислений и затрат на содержание оборудование.
Годовая трудоёмкость участка до мероприятий - 16 496,29 чел.Чч, после 14
516,73 чел.Чч.
Тарифную ставку ремонтного рабочего 4 разряда определим по формуле:
, (3.8)
где
- тарифный коэффициент 4 разряда.
р.
Тарифный фонд заработной платы за год определим по формуле 3.3.
До внедрения:
р.
После
внедрения:
р.
Основной фонд заработной платы за год определяется по формуле 3.2.
До внедрения:
р.
После
внедрения:
р.
Принимаем
дополнительную заработную плату в размере 14% от
.
До
внедрения:
р.
После
внедрения:
р.
Общий
фонд заработной платы определи суммированием тарифного фонда заработной платы и
дополнительного фонда заработной платы:
До
внедрения:
р.
После
внедрения:
р.
Соответственно
месячная заработная плата одного рабочего равна формуле
, (3.9)
где
- количество рабочих на участке.
Месячная
заработная плата одного рабочего равна:
До
внедрения:
р.
После
внедрения:
р.
Таким
образом, среднемесячная заработная плата после внедрения вырастет на 3%.
Отчисления
на единый социальный налог (СВ) определим по формуле:
, (3.10)
До внедрения:
р.
После
внедрения:
р.
Таблица 3.15 - Сводный план по труду и заработной плате
|
Показатель
|
до внедрения
|
после внедрения
|
|
Расчетная численность рабочих, чел.
|
9
|
8
|
|
Годовой фонд заработной платы, тыс. р.
|
1 500,90
|
1 375,82
|
|
Среднемесячная зарплата, р.
|
13 897
|
14 331
|
|
Единый социальный налог, тыс. р.
|
390,23
|
357,71
|
3.14
Определение срока окупаемости дополнительных капитальных вложений
При расчете годового экономического эффекта от внедряемых
организационно-технических мероприятий необходимо руководствоваться следующими
правилами:
а) Должна быть обеспечена полная сопоставимость сравниваемых вариантов,
что обеспечивается следующими условиями:
равными эксплуатационными условиями, на которые внедряемое мероприятие не
оказывает влияние;
одинаковыми ценами на сырье и материалы;
одинаковыми нормами и нормативами;
одинаковыми методами расчета показателей и статей затрат.
б) За базу сравнения принимаются показатели заменяемой техники с учетом
повышения технического уровня производства, достигаемого в расчетном году.
После внедрения учитываются фактические показатели внедряемой техники,
получаемые на предприятии.
в) При расчете годового экономического эффекта должны учитываться те
затраты, которые изменяются в связи с внедрением новой техники, причем
косвенные затраты (цеховые затраты, затраты на содержание оборудования,
общепроизводственные) должны определяться прямым счетом - по изменяющимся
статьям, а не укрупненным способом.
Потребность в запасных частях и ремонтных материалах на проведение
ремонтов подвижного состава в целом по АТП определяют на основе действующих
норм расхода по каждому виду технических воздействий на 1000 км пробега. Нормы
затрат на запасные части и материалы согласно данных предприятия составляет 350
р./1000 км.
Затраты на материалы и запасные части, до совершенствования производства,
определяем по формуле:
, (3.25)
где
- норма затрат на запасные части на 1000 км,
р./1000км;
-
годовой пробег всего подвижного состава,
= 13,41
млн.км;
-
коэффициент, учитывающий категорию условий эксплуатации,
= 1,25;
-
коэффициент, учитывающий модификацию подвижного состава,
= 1,0;
-
коэффициент, учитывающий природно-климатические условия,
= 1,25.
р.
Трудоёмкость
работ на агрегатном участке, в результате совершенствования, уменьшилась на
12%, отсюда следует, что простои в ремонте сократятся на 1349 авто-день. Тогда
изменение коэффициента выпуска
определим
по формуле:
, (3.26)
где
- количество авто-дней сокращения простоя,
= 1124 авто-день;
-
количество рабочих дней в году,
= 365
дн.;
-
списочное количество автомобилей,
= 348 ед.
В
результате совершенствования организации работ на агрегатном участке,
наблюдается увеличение коэффициента выпуска
=1,06% и
уменьшение затрат на запасные части и ремонтные материалы за счёт повышения
качества выполнения работ.
Данное
мероприятие позволит снизить затраты на запасные части на 1,5%. Таким образом
экономический эффект от экономии затрат на запасные части и ремонтные материалы
определим по формуле:
,(3.27)
р.
Годовой
экономический эффект от совершенствования организации работ на агрегатном
участке, определим по формуле:
,(3.28)
где
- экономия от снижения заработной платы, р.;
-
экономия от снижения затрат на единый социальный налог, р.;
-
экономия от снижения затрат на охрану труда, р. Затраты на охрану труда примем
1,1% от ФЗП.
-
экономия от снижения расходов на запасные части и материалы, р.;
р.
Данные мероприятия повлекут за собой дополнительные затраты в виде суммы
дополнительных амортизационных отчислений и затрат на электроэнергию.
Дополнительные
амортизационные отчисления
при
норме амортизации 14,3% составят:
р.
Дополнительные
затраты на электроэнергию:
, (3.29)
где
,
- потребленная электроэнергия до и после мероприятия,
кВт;
- цена
одного киловатта электроэнергии, р.
р.
Тогда
общий экономический эффект составит:
,(3.30)
р.
Тогда
окупаемость дополнительных капиталовложений
рассчитаем
по формуле:
, (3.31)
где
- дополнительные капиталовложения р.
года.
Результаты
расчетов экономической эффективности проекта представлены в таблице 3.14.
Таблица
3.14 - Технико-экономические показатели проекта
До совершенствования
|
После совершенствования
|
|
Коэффициент технической готовности
|
0,96
|
0,97
|
|
Производственная программа, чел.Чч
|
16 496,3
|
14 516,7
|
|
Численность ремонтных рабочих расчетная, чел.
|
9
|
8
|
|
Стоимость основных фондов, всего, тыс.р.
|
2 821,6
|
3 104,8
|
|
в том числе:
|
|
|
|
- оборудование, тыс.р.
|
1 189,6
|
1 472,7
|
|
Фонд заработной платы, тыс.р.
|
1 500,9
|
1 375,82
|
|
Единый социальный налог, тыс.р.
|
390,23
|
357,71
|
|
Дополнительные затраты, всего, тыс.р.
|
|
|
|
в том числе:
|
|
|
|
- амортизационные отчисления, тыс. р.
|
-
|
46,2
|
|
- затраты на электроэнергию, тыс. р.
|
-
|
6,6
|
|
Дополнительные капиталовложения, тыс. р.
|
-
|
323,2
|
|
Экономический эффект, тыс. р.
|
-
|
216,2
|
|
Срок окупаемости, год.
|
-
|
1,5
|
Проведенные выше расчеты подтверждают целесообразность проведения данных
мероприятий на агрегатном участке. Механизация работ приведет к повышению
производительности и качества выполнения работ. Срок окупаемости дополнительных
капитальных вложений 1,5 года.
4.Охрана
окружающей среды и безопасность жизнедеятельности
Вопросы охраны труда имеют большое значение для обеспечения безопасности
и улучшения условий труда, создание рабочей обстановки, исключающей профессиональные
заболевания и производственный травматизм, что способствует повышению
эффективности труда и производства /21, с.195/.
В настоящей выпускной квалификационной работе предлагается внедрить на
агрегатный участок стенд для выпресовке подшипников крестовин карданных
передач.
В соответствии с требованиями Трудового Кодекса РФ №197-Ф3 от 30.12.01,
работодатель обязан обеспечить соответствующие требования охраны труда на
каждом рабочем месте /22/.
Таблица 4.1 - Причины несчастных случаев и их количество по профессиям на
20010 г.
|
Причины несчастных случаев
|
Всего случаев
|
в том числе по профессиям, ед.
|
|
|
Водители
|
Кондукторы
|
Слесари
|
|
|
Кузовной цех
|
Ремонтная зона
|
Стоянка
|
Автобус
|
Ремонтная зона
|
Агрегатный участок
|
|
Неосторожность
|
5
|
1
|
3
|
1
|
|
|
|
|
Нарушение ПТБ
|
3
|
|
|
|
|
2
|
1
|
|
Неумышленное повреждение
|
1
|
|
|
1
|
|
|
|
|
Резкое торможение автобуса
|
1
|
|
|
|
1
|
|
|
|
Неудовлетворительное состояние покрытия дороги
|
1
|
|
|
|
1
|
|
|
|
Всего
|
11
|
|
|
|
|
|
|
В таблице 4.1 представлено количество несчастных случаев по профессиям,
произошедших на МУП «МПАТП №1» за последние три года и их причины.
Как видно из таблицы 4.1 наиболее частыми причинами несчастных случаев
являются неосторожность и нарушение правил техники безопасности. Чаще всех
травмы получают водители и слесари, находящиеся во время работы в зонах ТО и Р.
Это объясняется наличием многих опасных факторов: маневрирование транспорта при
постановке его на посты; движущиеся части оборудования, смотровые канавы.
Наиболее частыми травмами на предприятии являются: ушибы мягких тканей, а также
переломы костей.
Для выявления и сведения к минимальным значениям величин опасных и
вредных производственных факторов на предприятии проводится аттестация рабочих
мест по условиям труда согласно приказу Министерства здравоохранения и
социального развития российской федерации от 31 августа 2007 г. N 569 «Об
утверждении порядка проведения аттестации рабочих мест по условиям труда» /24/.
Результаты аттестации используются так же при планировании и проведении
мероприятий по охране труда, предоставлении льгот и компенсаций работникам за
неблагоприятные условия труда.
.1 Анализ
условий труда
Территория МУП МПАТП ограждена забором, в ночное время она освещается
искусственным источником света.
В основном производственном корпусе имеются санитарно-бытовые помещения.
К ним относятся: гардеробный блок, оснащённый шкафчиками для переодевания,
туалетная комната с умывальниками, душевая, курительная комната и комната
отдыха.
Для доставки рабочих на предприятие, имеется служебный автобус. Работы по
ежедневному обслуживанию, ТО и ТР производятся в две смены, по восемь часов
каждая, с часовым перерывом на обед и отдых. Все
производственно-вспомогательные участки работают в одну смену с часовым
перерывом на обед и отдых. Работы по общему и углубленному диагностированию
перед ТО и ТР производятся также в дневную смену. Питание рабочих всех смен
осуществляется в столовой, которая имеется на предприятии.
Для улучшения условий труда рабочим предприятия выдаётся спецодежда:
перчатки, ботинки, костюмы, очки. Для сварщиков дополнительно предусматривается
брезентовый костюм и сварочная маска.
На предприятии имеется медпункт. Перед каждым выездом на линию и в конце
смены водители проходят медицинский осмотр. Предприятие имеет спортивный
комплекс, предназначенный для поддержания физического здоровья его работников.
В производственных помещениях имеется механическая приточно-вытяжная
вентиляция, которая обеспечивает удаление выделяемых паров и газов, а так же
приток свежего воздуха. Естественное и искусственное освещение рабочих мест
достаточное для безопасного выполнения работ.
На агрегатном участке оборудование находится в исправном состоянии,
заземлено и используется только по своему прямому назначению. Оголенные провода
отсутствуют. Розетки исправны. Проходы между рабочими местами не загромождены
деталями и узлами, нет скопления большого количества деталей.
При проведении ремонта агрегатов автомобиля возможно и неизбежно
возникновение вредных и опасных производственных факторов: движущихся
автомобилей, повышенной загазованности помещения отработавшими газами,
повышенных условий шума, опасности поражения электрическим током и другие.
Повышенную опасность представляют операции снятия и установки агрегатов,
поскольку в них накоплена значительная потенциальная энергия. Эти операции
выполняются на стендах или с помощью специального оборудования, обеспечивающего
безопасное проведение работ.
Общие санитарно-гигиенические требования к показателям микроклимата и
допустимому содержанию вредных веществ в воздухе рабочей зоны содержаться в
СанПиН 2.2.4.548 - 96 «Гигиенические требования к микроклимату производственных
помещений» /25/, ГОСТ 12.1.005-88 ССБТ «Общие санитарно-гигиенические
требования к воздуху рабочей зоны» /26/.
На агрегатном участке выполняются работы, связанные с постоянной ходьбой,
перемещением и переноской тяжестей до 10 кг и сопровождающиеся умеренным
физическим напряжением. Данные виды работ по СанПиН 2.2.4.548 - 96 /25/
относятся к работам средней тяжести категории работ II б. Оптимальные и
допустимые параметры микроклимата для данной категории работ для помещения с
постоянными рабочими местами представлены в таблице 4.2.
Фактическая влажность воздуха на агрегатном участке составляет 60-70% в
течение года, что не превышает допустимую норму в 75%, согласно СанПиН
2.2.4.548 - 96 /25/.
Таблица 4.2 - Нормируемые параметры микроклимата /25/
|
Период года
|
Категория тяжести
|
Температура, Относительная влажность, %
|
Скорость движения воздуха, м/с
|
|
|
|
Оптим.
|
Допуст.
|
Оптим.
|
Допуст.
|
Оптим.
|
Допуст.
|
|
Холодный
|
II б
|
17-19
|
15-21
|
40-60
|
15-75
|
0.2
|
0.4
|
|
Теплый
|
II б
|
20-22
|
16-27
|
40-60
|
15-75*
|
0.30.2-0.5
|
|
Фактическая температура воздуха в рабочей зоне в холодный период
составляет +18°С, в тёплый
период +20°С, что не
превышает допустимых значений температур, для холодного периода 15-21°С, для тёплого 16-27°С, согласно СанПиН 2.2.4.548 - 96
/25/.
На агрегатном участке выделение пыли связано с разборкой и сборкой
агрегатов, узлов и деталей. Помимо пыли в воздухе встречаются вредные вещества.
Вредные вещества выделяют двигатели внутреннего сгорания, процессы сварки,
обработки металла, заправки агрегатов маслом и техническими жидкостями.
Количество вредных веществ в воздухе рабочей зоны составляет: СО 15
мг/м3, что не превышает предельно допустимую концентрацию (ПДК) 20 мг/м3, азота
окислы 2 мг/м3, что не превышает ПДК 5 мг/м3, акролеин 0,05 мг/м3, что не
превышает ПДК 0,2 мг/м3, SO2 0,5 мг/м3, что не превышает ПДК 1 мг/м3. Данные о
ПДК вредных веществ установлены ГН 2.2.5.686-98 «Предельно допустимая
концентрация вредных веществ в воздухе рабочей зоны. Гигиенические нормативы»
/27/.
Помещение агрегатного участка оборудовано общеобменной механической
приточно-вытяжной вентиляцией. Имеется и местная вытяжная вентиляция,
обеспечивающая разбавление и удаление вредных веществ. Приток воздуха должен
направляться рассредоточено в рабочую зону и смотровые канавы. Воздух должен
подаваться в холодный период со скоростью не более 0,4 м/с и в теплый не более
0,5 м/с.
Источником шума и вибрации в производственном корпусе являются двигатели
автомобилей, компрессоры, различные стенды, подъёмное оборудование. Для
определения допустимого уровня шума на рабочих местах используется ГОСТ
12.1.003-83 ССБТ «Шум. Общие требования безопасности» /28/, СН
2.2.4/2.1.8.562-96 «Шум на рабочих местах, в помещениях жилых, общественных
зданий и на территории жилой застройки» /29/. Допустимые уровни звукового
давления в октавных полосах частот, уровни звука и эквивалентные уровни звука
на агрегатном участке представлены в таблице 4.3.
Таблица 4.3 - Предельно-допустимые уровни звукового давления
|
Вид трудовой деятельности, рабочего места
|
Уровни звукового давления, дБ, в октавных полосах со
среднегеометрическими частотами, Гц
|
Уровни звука, дБА
|
|
31,5
|
63
|
1250
|
250
|
500
|
1000
|
2000
|
4000
|
8000
|
|
|
Выполнение всех видов работ на постоянных рабочих местах в
производственных помещениях
|
107
|
95
|
87
|
82
|
78
|
75
|
73
|
71
|
69
|
80
|
Основные мероприятия по борьбе с шумом - это технические мероприятия,
которые проводятся по трем главным направлениям: устранение причин
возникновения шума или снижение его в источнике; ослабление шума на путях
передачи; непосредственная защита работающих.
Предотвращение вредного воздействия шума осуществляется по следующим
направлениям: уменьшение шума в источниках возникновения (установка кожухов,
глушителей); изменение направления шума (экранирование); поглощение шума
(звукопоглощающие материалы); применение средств индивидуальной защиты.
Вибрация возникает в результате износа валов, подшипников, недостаточного
закрепления узлов и механизмов на корпусе тележки, а также в процессе движения
тележки. Допустимые параметры вибрации устанавливаются СН 2.2.4/2.1.8.566-96.
Санитарные нормы. Производственная вибрация, вибрация в помещениях жилых и
общественных зданий /30/ и ГОСТ 12.1.012-90. Вибрационная безопасность. Общие
требования /31/.
Рабочий персонал на агрегатном участке подвержен воздействию общей
вибрации 3 категории, типа «а». Предельно-допустимые значения вибрации для
данной категории представлены в таблице 4.4.
Таблица 4.4 - Предельно-допустимые значения вибрации
|
Среднегеометрическая частота полос, Гц
|
Виброускорение
|
Виброскорость
|
|
а, м/с2
|
Lа, дБ
|
, м/сLV, дБ
|
|
|
2,0
|
0,14
|
103
|
1,3
|
108
|
|
4,0
|
0,1
|
100
|
0,45
|
99
|
|
8,0
|
0,11
|
101
|
0,22
|
93
|
|
16,0
|
0,20
|
106
|
0,20
|
92
|
|
31,5
|
0,40
|
112
|
0,20
|
92
|
|
63,0
|
0,80
|
118
|
0,20
|
92
|
Вибрацию снижают воздействием на источник возбуждения (устранение
резонансных явлений, повышение люфтов, балансировка), а также на путях её
распространения (использование дистанционного управления, виброизоляции,
виброгашения).
Длительное воздействие вибрации высоких уровней на организм человека,
приводит к развитию преждевременного утомления, снижению производительности
труда, росту заболеваемости и нередко к возникновению профессиональной
патологии - вибрационной болезни. Вибрацию по способу передачи на человека (в
зависимости от характера контакта с источниками вибрации) условно подразделяют
на местную (локальную), передающуюся на руки работающего, и общую, передающуюся
через опорные поверхности на тело человека в положении сидя (ягодицы) или стоя
(подошвы ног). При работе на агрегатном участке имеет место сочетание действий
местной и общей вибрации (гайковерты, электроподъёмники и др.)
На агрегатном участке проводятся зрительные работы высокой точности,
разряд зрительной работы (согласно СНиП 23-05-95 «Естественное и искусственное
освещение» /32/) III б, нормативное значение освещенности Ен = 300 лм.
Согласно Правилам установки электроустановок (ПУЭ)/33/ помещение
агрегатного участка по электроопасности относится ко второму классу опасности -
помещениям с повышенной опасностью. Так как в помещении агрегатного участка
присутствует токопроводная пыль (металлическая, сажа и т.д.) и большое
количество металлоконструкций.
Действие электрического тока на организм человека приводит к электротравмам,
которые по признаку поражения делят на электрические удары и травмы. В первом
случае поражается весь организм и особенно его внутренняя часть. Во втором
случае происходит местное поражение кожи, мышц и других частей тела. Особенно
опасен для человека электрический удар, при котором нарушается сердечная и
мозговая деятельность /38/.
При проектировании способов и средств защиты людей, при взаимодействии их
с электроустановками постоянного и переменного тока необходимо
руководствоваться ГОСТ 12.1.038-82 «Электробезопасность. Предельно допустимые
уровни напряжений прикосновения и токов» /34/ и ГОСТ 12.1.019-79 ССБТ
«Электробезопасность. Общие требования и номенклатура видов защиты» /35/.
.2
Мероприятия по повышению безопасности и улучшений условий труда
К мероприятиям по повышению техники безопасности, проводимым на
предприятии относят: инструктаж, обучение, массовая пропаганда, планирование
мероприятий по охране труда, организация контроля за параметрами микроклимата,
и состоянием защитных устройств /36/.
Все работники автотранспортного предприятия проходят обязательный
инструктаж по ТБ раз в полгода. Те из них, кто выполняет работы повышенной
опасности, должны прослушивать инструктаж, проводимы главным инженером один раз
в три месяца. Особое внимание при регулярном инструктаже должно уделяться
случаям нарушения ТБ работниками предприятия за последний период с целью
предупреждения их возникновения в будущем.
При инструктаже новичков проводится полное их ознакомление с
особенностями работы отрасли и предприятия, распорядком работы, правилами
передвижения по территории, особенностями пользования средствами защиты и
личной санитарии, а также с оказанием первой доврачебной помощи во время
несчастного случая. Новый работник должен быть ознакомлен с расположением
аптечек, пожарных гидрантов, огнетушителей и схем эвакуации из помещений.
Особое внимание при инструктаже должно уделяться практическим занятиям по
безопасному выполнению своих обязанностей на рабочем месте.
После проведения вводного инструктажа проводится первичный инструктаж на
рабочем месте. Мастер цеха знакомит работника с участком, общими правилами
техники безопасности при работе с электроприборами и технологическим
оборудованием.
Повторный инструктаж проводиться не реже 1 раза в квартал. Проведение
инструктажей регистрируется в журнале регистраций, находящегося у начальника
цеха /36/.
Для улучшения интерьера и создания благоприятного микроклимата на
агрегатном участке рекомендуется разместить следующие растения: кипарис
вечнозеленый, плющ обыкновенный.
С целью обеспечения быстрой и эффективной врабатываемости, длительного
поддержания высокого уровня работоспособности и производительности труда
необходимо в режимах труда и отдыха предусматривать регламентированные
перерывы, во время которых следует транслировать (функциональную музыку).
Уборку пола, стен, потолков, окон и ворот в моторном цехе производят
рабочие этого цеха в соответствии с периодичностью, установленной хозяйственной
службой АТП.
.3 Меры
безопасности при слесарных работах
Пульты управления, аппаратные шкафы, блоки барабанов и роликов и другое
электрическое оборудование должны быть надежно заземлены.
Запрещается работать на стендах при снятых кожухах, щетках, ограждениях.
При подготовке к работе на стендах необходимо проверить: крепление всех
узлов и деталей стенда, наличие, исправность и крепление защитных ограждений и
заземляющих проводов, исправность подземных механизмов и других приспособлений:
достаточность освещения рабочего места и путей движения авто.
Во время работы стендов запрещается: открывать пульт управления стендом;
доводить частоту вращения ротора электрической машины выше допустимой.
Рабочее место слесаря должно содержаться в чистоте и не загромождаться
деталями. Слесарные верстаки, за которыми работают несколько человек,
необходимо разделять сетчатыми перегородками, установленными посередине
верстака (с ячейками не более 3 мм.), имеющими высоту не менее 1 м, для защиты
слесаря от отлетающих осколков метала, сорвавшегося инструмента и т.п. с
соседнего рабочего места /23/
Для переноски инструментов, если это требуется по условиям работы,
каждому рабочему выдается сумка или легкий переносной ящик. Использованный
обтирочный материал собирается в установленные для этих целей металлические
ящики с плотными крышками.
Требование к слесарным инструментам. Рукоятки молотков и кувалд должны
быть гладкими, овальными и изготовлены из прочных и вязких пород дерева (дуба,
березы, кизила, рябины и т.д.). Слесарные молотки и кувалды должны иметь слегка
выпуклую, не косую и не сбитую, без трещин поверхность бойка, должны быть
надежно укреплены на ручках путем расклинивания металлическими клиньями и не,
иметь наклепа. Ось ручки не должна быть под прямым углом к продольной оси
инструмента. Длина ручек слесарных молотков должна быть 300…400 мм., а ручек
кувалд450-900 мм. В зависимости от массы.
Напильники, шаберы, отвертки, ножовки и другой ручной инструмент с
заостренным не рабочим концом должны быть прочно закреплены в гладкой, ровной,
зачищенной рукоятке. Рукоятка должна иметь длину в соответствии с размером
инструмента, но не менее 150 мм., и должна быть стянута металлическими
бандажными кольцами.
Ударные инструменты (зубила, крейцмейсели, бородки, просечки, керны и т.
д.), не должны иметь скошенных или сбитых затылков, заусениц, вмятин, выбоин,
трещин и наклепов. При работе зубилом, бородком или другим подобным
инструментом необходимо пользоваться защитными очками. Длина зубила, бородка,
керна не должна быть менее 150 мм.
Гаечные ключи должны строго соответствовать размерам гаек и болтов и не
иметь выработки зева, трещин, забоев и заусениц. Запрещается отвертывание гаек
ключами больших размеров с подкладыванием металлических пластинок между гранями
гаек и ключа, а так же удлинение рукоятки ключа путем присоединения другого
ключа или трубы. Раздвижные ключи должны быть без зазора в подвижных частях
/23/.
Лезвие отвертки должно по толщине соответствовать ширине шлица у головки
винта.
Острогубцы и плоскогубцы не должны иметь выщербленных рукояток. Губки
острогубцев должны быть острыми, не выщербленными, не сломанными, а губки
плоскогубцев должны быть с исправной насечкой. Слесарные тески должны иметь
исправные губки и зажимный винт.
.4 Расчет
вентиляции
Расчет искусственной вентиляции производится для помещений, где кратность
воздухообмена установлена более двух.
Расчет искусственной вентиляции производится по формуле /37/:
, (4.1)
где
- часовой объем вентилируемого воздуха;
- объем
помещения участка,
=554
;
-
кратность воздухообмена,
=5.
После
определения часового объема вентилируемого воздуха выбираем вентилятор:
Центробежный вентилятор серии ЭВР №2. Частота вращения - 1500 об/мин.
Производительность - 700
/ч. Напор - 25 кг/
, КПД
вентилятора - 0,56.
Расчет
мощности электродвигателя вентилятора производится по формуле /37/:
,(4.2)
где
- мощность электродвигателя для привода вентилятора,
кВт;
- напор
воздушного потока,
=25 кг/м
;
- КПД
вентилятора,
=0,56;
- КПД
передачи (для вентиляторов этого типа 0,9);
-
коэффициент, учитывающий неучтенные потери напора воздушного потока. = (1,5).
кВт.
.5 Расчет
естественного освещения
Организация рационального освещения рабочих мест является одним из
основных вопросов организации труда. При неудовлетворительном освещении
зрительная способность глаза снижается, что может привести к тяжелым травмам.
Расчет естественного освещения производится по формуле /38/:
,(4.3)
где
- суммарная площадь окон участка,
;
-
площадь действительная участка,
.
.
Зная
общую площадь окон и площадь одного окна
, можно
найти количество окон. Принимаем размеры окон: ширина l=2,16 м, высота h=2 м.
Тогда площадь одного окна
= 4,32
.
Затем,
определив количество пролетов между колоннами по фасаду, выбираем количество
окон и площадь каждого из них, учитывая кратность размеров по ширине и высоте.
Берем 3 окна шириной 2,16 площадью 4,32
.
.6 Расчет
искусственного освещения
Расчет выполняется методом коэффициента использования светового потока.
Учитывая, что на агрегатном участке проводятся зрительные работы высокой
точности (согласно СНиП 23-05-95 /31/), а также высоту потолка на участке h=4
м, принимаем для освещения:
люминесцентные лампы типа ЛХБ;
тип светильника ШОД;
Световой поток определяется по формуле /38, с.2/:
(4.4)
где
- нормативное значение освещенности
= 300 лм. /38, табл.1/;- площадь помещения,
;
-
коэффициент запаса, учитывающий запыление светильников и износ источников света
в процессе эксплуатации,
= 1,5 /38, табл.3/;
-
поправочный коэффициент, учитывающий неравномерность освещения,
= 1,1 /38/;
- число
светильников, шт.;
n - количество
ламп в светильнике, n=2 /38, с.233/;
-
коэффициент затенения рабочего места работающим,
= 0,85;
-
коэффициент использования светового потока,
= 0,57
/38, табл.3-11/.
Коэффициент
использования светового потока определяется в зависимости от типа светильника,
коэффициентов отражения стен и потолка помещения и индекса помещения. Индекс
помещения определяется по формуле /38/:
,(4.5)
где
и
- длина,
и ширина помещения, м;
- высота
подвеса светильников над рабочей поверхностью,
= 2,8 м.
.
Количество
светильников определяется:
, (4.6)
где
- количество светильников по длине участка, шт.;
-
количество светильников по ширине участка, шт.
, (5.3)
, (4.4)
где
- коэффициент соотношения расстояния между рядами
светильников и высотой подвеса светильников над рабочей поверхностью,
=1,3 /38, табл.71/;
расстояние
между светильниками, м.
, (4.5)
м.;
шт.;
шт.;
шт.
лм.
Выбираем
лампу ЛХБ 65-4,
=3820 лм. /38,табл.7/.
Рисунок 4.1 - Схема расположения светильников
Рассчитаем фактическую освещенность с учетом выбранной лампы:
,(4.6)
Определим
разницу между освещенностью фактической и расчетной. Приемлемым считается
.
Так
как фактическая освещенность отличается от расчетной на 10 %, то подобранная
мощность ламп и схема расположения светильников обеспечит требуемую
освещенность.
.7 Пожарная
безопасность
Согласно ГОСТ 12.1.033-81 «ССВТ. Пожарная безопасность. Термины и
определения» /39/. Пожарная безопасность - состояние объекта, при котором с
установленной вероятностью исключается возможность возникновения и развития
пожара и воздействия на людей опасных факторов пожара, а так же обеспечивается
сохранность материальных ценностей.
Для помещений автотранспортных мероприятий, характерна высокая
пожароопасность. Основными причинами возникновения пожаром на автотранспортных
предприятиях являются: неисправность отопительных приборов, электрооборудования
и освещения, неправильная их эксплуатация, самовозгорание горюче-смазочных и
обтирочных материалов при неправильном их хранении; неосторожное обращение с
огнем.
В соответствии с действующим законодательством ответственность за
обеспечение пожарной безопасности на МПАТП несут их руководители.
Ответственность за пожарную безопасность отдельных участков возлагается на
начальников соответствующих служб, назначенных приказом руководителя
предприятия.
Для пожарной охраны МПАТП создают добровольные пожарные дружины. На эти
дружины возлагается контроль за соблюдением противопожарного режима на МПАТП и
надзор за исправным состоянием первичных средств пожаротушения. Численный
состав добровольных пожарных дружин определяется руководителем МПАТП.
На территории автотранспортного предприятия все проходы, лестницы,
проезды и рекреации свободны для проезда. Запрещено применение чердаков в
качестве производственных помещений.
На видных местах размещены планы эвакуации людей, автомобилей и
оборудования на случай пожара.
Во всех производственных помещениях предприятия необходимо выполнять
следующие противопожарные требования:
- курить только в специально отведенных для этого месте;
- не пользоваться открытым огнем;
- хранить топливо керосин в количествах, не превышающих сменную
потребность;
- не хранить порожнюю тару из-под топливных и смазочных
материалов;
- проводить тщательную уборку в конце каждой смены; разлитое
масло и топливо убирать с помощью песка;
- собирать использованные обтирочные материалы, складывать их в
металлические ящики с крышками и по окончании смены выносить их в специально
отведенное для этого место.
- не мыть и не протирать кузов, детали и агрегаты автомобиля, а
также руки и одежду бензином;
- не оставлять открытыми горловины топливных баков и сосудов с
воспламеняющимися жидкостями и др.;
- Для наружного пожаротушения предусмотрен объединённый
хозяйственно-питьевой противопожарный водопровод, который обеспечивает, не
только хозяйственно-питьевые, но и противопожарные нужды. Расход воды на
наружное пожаротушения составляет 10 л/с.
Для разработки мероприятий по пожарной безопасности необходимо знать
классификацию производства по степени огнестойкости и категории пожарной
опасности.
Определение категории помещения по пожарной опасности осуществляется
согласно СНиП 31-03-2001 «Определение категорий помещений и пожарной
безопасности» /40/. На основании классификации помещений автотранспортного
предприятия по взрывной взрывопожарной и пожарной опасности помещения
агрегатного участка относится к категории Д (несгораемые вещества и материалы в
холодном состоянии)/41/.
При определении помещения по степени огнестойкости, следует
руководствоваться СниП 21-01-97 «Пожарная безопасность зданий и сооружений»
/42/. Помещение зоны агрегатного участка относиться к I степени огнестойкости.
Помещение производственного корпуса обеспечено первичными средствами пожаротушения
и пожарным инвентарем. В перечень первичных средств пожаротушения на агрегатном
участке входит: огнетушители пенные - 2шт., огнетушители углекислотные - 1шт.,
ящик с песком - 1шт., асбестовое или войлочное полотно - 1шт., ломы - 2шт.,
багры - 3шт., топоры - 2шт., лопаты - 2шт., ведра пожарные - 2шт., жесткие
буксиры - 2шт.
Для внутреннего пожаротушения предусмотрены огнетушители, из расчёта на
100 м 2 площади помещения: порошковые огнетушители ОП-5 - 2 шт., ящик с песком
вместимостью 1 м куб. и пенные огнетушители ОХП-10 - 2 шт.
В случае возникновения пожара необходимо:
- немедленно вызвать пожарную охрану по телефону 01.
- обеспечить безопасную эвакуацию людей.
отключить станки и электрооборудование от электрической энергии
приступить к тушению пожару имеющимися средствами пожаротушения.
Горючие жидкости, а также загоревшуюся электропроводку водой тушить
нельзя. Бензин, керосин, различные органические масла и растворители следует
тушить песком, землей, пенными и порошковыми огнетушителями, а если очаг пожара
небольшой - накрыть его асбестовым или брезентовым покрывалом, тяжелой тканью
или одеждой смоченной водой. Горящую электропроводку тушить можно только
убедившись, что с нее снято напряжение.
4.8 Охрана
окружающей среды и экономия материальных ресурсов
Для создания условий снижения неблагоприятного воздействия агрегатного
участка на окружающую среду, необходимо соблюдать следующие правила:
- Регулярно проводить с работниками участков и отделений инструктажи и
занятия по основам экологической безопасности.
- Следить за своевременным обслуживанием двигателей и тем самым
снизить масштабы их ремонта.
- Экологически вредные отходы складывать только в специально
отведенных местах в специальной таре.
- Регулярно ремонтировать и очищать канализационные фильтры и
отстойники.
- Моечно-очистные сооружения должны создаваться по замкнутому
типу, чтобы исключить попадание токсичных веществ в общие канализационные
стоки.
На экономию ресурсов автотранспортного предприятия оказывает большое
влияние число организационно - технических факторов. Наибольшее влияние имеют
следующие группы внутрипроизводственных факторов:
повышение технического уровня предприятия;
совершенствование организации технического обслуживания и ремонта;
изменение объема перевозок.
Заключение
В настоящей выпускной квалификационной работе были предложены мероприятия
по совершенствованию организации работ на агрегатном участке МУП «МГАТП.
Проведенное исследование показало, что необходимо менять структуру
предприятия, осуществить механизацию работ, налаживать связи с поставщиками,
внедрять новые формы оплаты труда. Предприятие нуждается в постоянном и
планомерном обновлении автобусного парка, а самое главное в четкой поставке
запасных частей и горюче смазочных материалов.
Для продления срока службы автомобилей необходимо совершенствовать и
обновлять производственно-техническую базу, рационально внедрять новое
технологическое оборудование, повышать квалификацию и профессионализм рабочих.
Для решения вопроса о рациональном внедрении оборудования в данном
проекте предлагается: повысить эффективность работ на агрегатном участке, путем
подбора и оптимальной расстановки технологического оборудования и
совершенствования технологических процессов.
В технологической части был произведен расчёт количества рабочих постов,
штатных рабочих, и инженерно технического персонала.
В конструкторской части спроектирован стенд. Данное оборудование позволит
снизить трудоемкость выполняемых работ, увеличить общегодовой пробег и
коэффициент технической готовности.
В разделе по охране труда проведен анализ условий труда, опасных и
вредных производственных факторов на агрегатном участке предприятия. Предложены
мероприятия по снижению травматизма на рабочем месте. Произведен расчет
искусственного освящения и вентиляции.
В экономической части произведена оценка эффективности предложенных
решений путем определения срока окупаемости данного проекта, что
свидетельствует о целесообразности принятых решений.
Список
использованной литературы
1. Основные
показатели транспортной деятельности в России. 2008: Стат. сб./ Росстат. - M.,
2008. - 93 c.
. Аксёнова
З.И. Анализ производственно-финансовой деятельности автотранспортного
предприятия: Издательство «Транспорт», 1972. - 240 с.
. Савицкая
Г.В. Анализ хозяйственной деятельности предприятия: Учебник.- 2-е изд., испр. И
доп. - м.: ИНФРА - М, 2003. - 400 с.
. Сербиновский
Б.Ю.; Напхоненко Н.В. Экономика автосервиса. Создание автосервисного участка на
базе действующего предприятия: учеб. пособие - М.: ИКЦ «Март», 2006. - 432 с.
. Анисимов
А.П. Экономика, планирование и анализ деятельности автотранспортных
предприятий. - М.: «Транспорт», 1998. - 245 с.
. Горев
А.Э. и др. Организация автомобильных перевозок и безопасность движения: учеб.
пособие для студ. высш. учеб. заведений. - М.: Издательский центр «Академия»,
2006. - 256 с.
. Положение
о техническом обслуживании и ремонте подвижного состава автомобильного
транспорта. Минавтотранс РСФСР - М.: Транспорт , 1988г. - 78 с.
. Семенов
Н.В. Техническое обслуживание и ремонт автобусов. - М.: Транспорт , 1979г. -
216 с.
. Общесоюзные
нормы технологического проектирования предприятий автомобильного транспорта. -
М.: ОНТП-01-91 /Росавтотранс, 1991. - 103 с.
. Напольский
Г.М. Технологическое проектирование автотранспортных предприятий и станций технического
обслуживания. - М.: Транспорт, 1985. -231 с.
. Афанасьев
Л.Л. Гаражи и станции технического обслуживания автомобилей. - М.: Транспорт,
1980.-216 с.
. Шадричев
В.А. Основы технологии автостроения и ремонта автомобилей. - Л.:
Машиностроение, 1976. - 560с.
. Крамаренко
Г.В. Техническая эксплуатация автомобилей. - М: Транспорт, 1983. - 488 с.
. Власов
В.М. Управление технологическими процессами технического обслуживания и ремонта
автомобилей. - М.: МАДИ, 1982. - 78 с.
. Кузнецов
Е.С., Болдин А.П. и др. Техническая эксплуатация автомобилей.- М.: Наука, 2001.
- 535 с.
. Кузьмин
А.В и др. Расчеты деталей машин: справ. пособие/ А.В. Кузьмин, И.М. Чернин,
Б.С. Козинцов. - 3-е изд., перераб. и оп. - Мн.: Высш. шк., 1986. - 400 с.
. Курсовое
проектирование деталей машин: Учеб. пособие для техникумов/С.А. Чернавский,
Г.М. Ицкович, К.Н. Боков и др. - М.: Машиностроение, 1979. - 351 с.
. Анурьев
В.И. Справочник конструктора-машиностроителя. В 3-х т. Т.1, Т.2, Т.3. - 5-е
изд., перераб. и доп. - М.: Машиностроение, 1980. - 559 с.
. Оборудование
для ремонта автомобилей. Под ред. Шахнеса М.М. Изд-во «Транспорт», 1971 г. стр.
1- 427
. Власов
Ю.А. Основы проектирования и эксплуатации технологического оборудования.
Учебное пособие. Ч2 /Власов Ю.А., Тищенко Н.Т., - Томск: Изд-во Томск. архит.
строит. Ун-та. 2002- - 147 с.
. Росс
Твег. Приспособления для ремонта автомобилей. - М.: ООО Книжное издательство
«За рулем», 2006. - 136 с.
. Митрохин
Н.Н., Кузьмика Е.В. Оборудование и приспособления: конструкция, расчет и оценка
стоимости: Учебное пособие/Под ред. НН. Митрохина МАДИ (ГТУ) - М.:, 2003 - 104
с.
. Чумаченко
Ю. Т. Эксплуатация автомобилей и охрана труда на автотранспорте : учеб. для
проф. лицеев, училищ, колледжей, учеб.-курсовых комбинатов / Чумаченко Юрий
Тимофеевич, Чумаченко Г.В., Ефимова А.В. - Библиогр.: с. 407. - Ростов н/Д:
Феникс, 2002 .- 416с.
. Трудовой
кодекс Российской Федерации от 30 декабря 2001 г. N 197-ФЗ (ТК РФ) [Электронный
ресурс] - Доступ из справ.-правовой системы «Консультант Плюс».
. Шариков
Л.П. Охрана труда в малом бизнесе. Металлообработка: практ. пособие / Шариков
Леонид Прокопьевич. - М.: Альфа-Пресс, 2009 .- 248с.
. Приказ
Министерства здравоохранения и социального развития российской федерации от 31
августа 2007 г. N 569 «Об утверждении порядка проведения аттестации рабочих
мест по условиям труда») [Электронный ресурс] - Доступ из справ.-правовой
системы «Консультант Плюс».
. ГОСТ
12.1.005-88 ССБТ. Общие санитарно-гигиенические требования к воздуху рабочей
зоны. [Электронный ресурс] - Доступ из справ.-правовой системы «Консультант
Плюс».
. ГН
2.2.5.686-98 Предельно допустимая концентрация (ПДК) вредных веществ в воздухе
рабочей зоны. Гигиенические нормативы. [Электронный ресурс] - Доступ из
справ.-правовой системы «Консультант Плюс».
. ГОСТ
12.1.003-83 ССБТ. Шум. Общие требования безопасности. [Электронный ресурс] -
Доступ из справ.-правовой системы «Консультант Плюс».
. СН
2.2.4/2.1.8.562-96 Шум на рабочих местах, в помещениях жилых, общественных
зданий и на территории жилой застройки. [Электронный ресурс] - Доступ из
справ.-правовой системы «Консультант Плюс».
. СН
2.2.4/2.1.8.566-96 Санитарные нормы. Производственная вибрация, вибрация в
помещениях жилых и общественных зданий. [Электронный ресурс] - Доступ из
справ.-правовой системы «Консультант Плюс».
. ГОСТ
12.1.012-90 Вибрационная безопасность. Общие требования. - М.: Изд. стандартов,
1990. - 36с.
. СНиП
23-05-95 "Естественное и искусственное освещение" [Электронный
ресурс] - Доступ из специализиров. справочной системы «Техэксперт».
. Правила
устройства электроустановок /Минэнерго СССР.-6-е изд., перераб. и доп.-М.:
Энергоатомиздат, 1987.-648 с: ил.
. ГОСТ
12.1.038-82. Электробезопасность. Предельно допустимые уровни напряжений
прикосновения и токов. - М.: Изд. стандартов, 1981. - 28с.
. ГОСТ
12.1.019-79 ССБТ Электробезопасность. Общие требования и номенклатура видов
защиты. - М.: Издательство стандартов, 2000. - 7с.
. Фролов
А.В., Бакаева Т.Н. Безопасность жизнедеятельности. Охрана труда. - Ростов н/Д.:
Феникс, 2005. - 736с.
. Отопление,
вентиляция и кондиционирование воздуха: Жилые здания со встроенно-пристроенными
помещениями общественного назначения и стоянками автомобилей. Коттеджи: Справ.
пособие; [Авт.-сост.]: В.В. Порецкий, И.С. Березович, Г.И. Стомахина. -
Библиогр.: с. 265-267. - М.: Пантори, 2003 .- 308c.
. Пособие
по расчету и проектированию естественного, искусственного и совмещенного
освещения. - М.: Стройиздат, 1985.-384с.
. ГОСТ
12.1.033-81 ССВТ. Пожарная безопасность. Термины и определения».[Электронный
ресурс] - Доступ из специализиров. справочной системы «Техэксперт».
. СНиП
31-03-2001 «Определение категорий помещений и пожарной безопасности».
[Электронный ресурс] - Доступ из специализиров. справочной системы
«Техэксперт».
43. Р 3107938-0301-89
Перечень категорий и сооружений автотранспортных и авторемонтных предприятий по
взрывопожарной и пожарной опасности и классов взрывоопасных и пожароопасных зон
по правилам устройства электроустановок [Режим доступа] -
http://pravust.ru/perechen_ pomeshenii_ 1.htm
<http://pravust.ru/perechen_%20pomeshenii_%201.htm>
. СНиП 21-01-97 Пожарная
безопасность зданий и сооружений. - СПб.: Изд. ДЕАН, 2002. - 48с.
. Методические
указания кафедры ЭАТ «0ценка коммерческой эффективности организации
автосервисного участка» сост. Бакута Н.Н. - Хабаровск: Изд. Тихоокеанского гос.
ун-та, 2008. - 48с.
. Бакута Н.Н., Денисов
Г.Г., Володькин П.П. Нормативные материалы на автомобильном транспорте: Учебное
пособие. - Хабаровск; Изд-во ХГТУ, 2003. - 147с.
. Карев В.Ф.
Экономические расчеты в дипломном проектировании. Методические указания к
дипломному проектированию. - ХГТУ, 2002. - 24с.