Строительство мостов

  • Вид работы:
    Курсовая работа (т)
  • Предмет:
    Строительство
  • Язык:
    Русский
    ,
    Формат файла:
    MS Word
    152,78 Кб
  • Опубликовано:
    2012-04-10
Вы можете узнать стоимость помощи в написании студенческой работы.
Помощь в написании работы, которую точно примут!

Строительство мостов

Министерство образования и науки РФ

Государственное образовательное учреждение высшего профессионального образования

«ТИХООКЕАНСКИЙ ГОСУДАРСТВЕННЫЙ УНИВЕРСИТЕТ»

Кафедра: «Мосты, основания и фундаменты»







Курсовая работа

Строительство мостов

Выполнил

студент группы МТ-71

Щегловский В.С

Проверил

преподаватель Белуцкий И.Ю.




Хабаровск - 2011г.

Реферат

Курсовой проект представлен в виде сброшюрованной пояснительной записки состоящей из: 29 листов формата А4, 1 таблиц, 3 рисунков, списка использованной литературы из 6 наименований, и 2 чертежей формата А1.

ГЕОДЕЗИЧЕСКОЕ ОБОСНОВАНИЕ, ОПОРЫ МОСТА, РОСТВЕРК, ОПАЛУБКА, ШПРЕНГЕЛЬ, КОНСОЛЬ, РАБОЧИЙ ОСТРОВОК, КРАН, ТЯГОВЫЕ УСИЛИЯ, УСТОЙЧИВОСТЬ ПРОЛЁТНОГО СТРОЕНИЯ, МОНТАЖНЫЕ НАГРУЗКИ.

Основной целью курсового проекта является изучение методов возведения сооружений и методов расчёта сооружений и вспомогательного оборудования.

Введение

Необходимость экономии металла и снижения трудоемкости при изготовлении и монтаже пролетных строений тесно связана с созданием совершенных конструкций, отвечающих всем требованиям эксплуатации, а также современной технологии массового изготовления на заводах мостовых конструкций.

Искусственные сооружения на дрогах строят, как правило, индустриальными методами, монтируя сборные конструкции из заранее изготовленных элементов.

Мосты возводят по типовым проектам с минимальным количеством типоразмеров конструкций заводского изготовления. При благоприятных условиях перевозки применяют цельноперевозимые блоки массой до 60 т, длиной до 33 м, а в трудных условиях транспортировки и при монтаже более крупными блоками - составные элементы с укрупнением их на строительной площадке.

Индустриализация мостостроения предусматривает комплексную механизацию строительства. Под комплексной механизацией подразумевают выполнение всех основных и вспомогательных операций технологического процесса комплектами машин, увязанных между собой по производительности. Основное условие подбора машин - максимальное использование их на строительстве.

. Характеристика объекта строительства с описанием конструктивных решений пролётных строений, опор и фундаментов моста

Железнодорожный мост со сталежелезобетонными пролетными строениями со схемой 6х45м, c береговыми опорами стоечного типа, и промежуточными массивными опорами, c фундаментной плитой высотой 2м, с диаметром буронабивных свай 1.6м. Общая длина моста 291.84 м. Рабочий уровень вод равен 8.3м.

Район строительства - г. Хабаровск.

. Выбор схемы геодезического обоснования

Качество возводимых искусственных сооружений на всех этапах строительства зависят от хорошей организации и выполнения полного комплекса геодезических, разбивочных и контрольно-измерительных работ.

При возведении малых и средних мостов геодезические и разбивочные работы обычно выполняет производитель работ или инженер ПТО.

До начала геодезических работ на стройплощадке получают и изучают необходимые исходные проектно-технические материалы. Проектная организация до начала работ передает строителям материалы закрепления оси трассы моста и подходов к нему, продольный профиль перехода, данные об осях регуляционных сооружений, а так же сведения о положении и типах центров, закрепляющих продольную ось моста, о грунтовых реперах и стенных марках.

Генеральный разбивочный план с приложенной к нему пояснительной запиской должен содержать: исходные данные, метод и точность измерения базисов и углов, фактические допустимые невязки и метод положенный в основу предварительных разбивочных работ при изысканиях и закреплении мостового перехода.

Положение закрепительных центров продольной оси моста дается в пикетаже трассы, а высотные отметки - в системе отметок, принятых в проекте строящейся дороги.

Таблица 1 - Требования передаваемых материалов по геодезическим знакам (центрам и реперам) и масштабам плана

Длинна моста, м

Масштаб плана

Расстояние между горизонталями по высоте, м

Минимальное количество высотных реперов

Минимальное количество закрепительных знаков осей сооружения

1

2

3

4

5

50 - 100

1:1000

0,5

По одному на каждом конце сооружения

По два на каждом конце сооружения

100-300

1:2000

0,5




Геодезические и разбивочные работы, обеспечивающие проектное положение и размеры как всего сооружения, так и отдельных его частей, ведутся в течении всего периода строительства моста. При этом:

восстанавливают на местности и вымеряют геодезическую плановую и высотную основы;

переносят на местность ось моста, оси опор, подходов, струенаправляющих дамб и т. д.;

систематически контролируют возведение отдельных частей сооружения, обеспечивая проектное их положение;

проверяют размеры и форму прибывающих с завода монтажных элементов;

на строительной площадке ведут разбивочные работы по вспомогательным производственным сооружениям и бытовым зданиям, подъездным дорогам, причалам и т. п.

По мере завершения постройки отдельных частей моста проводят геодезические работы по определению геометрических размеров возведенных сооружений и объемов выполненных работ (исполнительные съемки и обмеры).

Триангуляционный способ. На берегах создают опорную геодезическую сеть, представляющую собой в плане систему треугольников или четырехугольников, измеренных с высокой точностью по своим линейным и угловым размерам. В сеть включают не менее двух исходных точек, закрепляющих ось моста и расположенных на каждом берегу. Основой сети служат базисы, которые рекомендуется разбивать на ровном месте, свободном от застроек и допускающем точное измерение и беспрепятственное визирование. Разбивку центров опор выполняют угловыми засечками не менее чем из двух точек базиса с пересечением засечек в створе оси моста. Для повышения точности разбивки углы в треугольниках между направлением засечек и осью моста должны быть не менее 300 и не более 1500.

Расстояние между конечными точками моста и между центрами опор, определенные с помощью триангуляции, рекомендуется при возможности проверять непосредственными промерами. Пункты сети закрепляют постоянными знаками.

При возведении опор, установив положение оси моста и центров опор, закрепляют продольные и поперечные их оси. На суше оси опор закрепляют кольями, сваями или столбами с четырех сторон опоры. Расположение различных вспомогательных и основных конструкций, применяемых при сооружении опор (шпунтовые ограждения, каркасы для направления свай и оболочек и т. п.), на реках определяют с помощью теодолитов, установленных на берегах в точках триангуляционных базисов и на оси моста.

Более точное положение свай (оболочек) достигается при забивке через направляющие каркасы. Каркас устанавливают с помощью засечек угломерным инструментом в проектное положение и закрепляют анкерными сваями (оболочками). После этого забивают остальные сваи (оболочки) через клетки каркаса.

После возведения фундамента на его обрезе вторично разбивают оси опоры и намечают контур надфундаментной части ее геометрические формы проверяют переносом осей и граней по отвесу на обрезе фундамента или визированием теодолитом из точек, закрепляющих оси опоры. На обрезе фундамента, подферменной площадке и в других характерных уровнях наносят несмываемой краской временные строительные репера.

Для проверки монтажа пролетного строения, в первую очередь, на подферменных площадках опор наносят оси опорных частей и их высотные отметки. Далее в процессе монтажа пролетного строения систематически проверяют положение в плане его оси и осей элементов, отклонения их от вертикальных плоскостей, отметки элементов и т. д. Отклонения в положении смонтированных конструкций сборных мостов и труб не должны превышать допусков, указанных в проекте сооружения.

. Разработка технологий по сооружению фундаментов и опор моста

.1 Составление схем производства работ в соответствии с технологической последовательностью

Шпунтовок ограждение применяют в тех случаях, когда уровень поверхностных вод находится выше дна котлована. Такое крепление состоит из

основных вертикальных элементов - шпунтин, системы обвязок, распорок или анкеров, придающему всему креплению надлежащую прочность и устойчивость.

Шпунтовое ограждение препятствует попаданию воды в котлован, придавая поперечному сечению шпунтин специальную форму, обеспечивающее их плотное соединение. При этом шпунтовое ограждение заглубляют ниже дна котлована, что необходимо по условиям гидравлической работы и для обеспечения устойчивости шпунта.

Процесс возведения фундаментов на буронабивных столбах состоит в след основных операций:

1)   Подготовки площадки для производства работ, что при наличии воды требует устройства островка или специальных подмостей;

2)      Устройства скважины в грунте с применением соответствующего оборудования;

)        Устройство фундаментной плиты.

Для бурения скважины с уширением был использован буровой станок ВНИИ транспортного строительства. Механизм для бурения ствола скважины и создания уширения имеет буровую колонну, наголовник и ножи. Колонну собирают из отдельных стандартных секций длинной по 3 м, соединяемые между собой в процессе бурения. Размеры уширения могут быть различными в зависимости от размера раскрытия ножей. Раскрывают и закрывают ножи с помощью гидравлического механизма, установленного в пределах рабочей части агрегата. Грунт из ствола на поверхность во время бурения выбрасывается гидроэлеватором.

Скважина ограждается обсадным патрубком, погружаемом процессе извлечения грунта.

Установка и наращивание арматурного каркаса ведется краном. Стыковка секций арматурного каркаса производится перепуском рабочих стержней верхней секции относительно рабочих стержней нижней секции на 20 диаметров стержней с прихваткой электросваркой вприхватку.

Установке бетонолитной трубы предшествует укрупнительная ее сборка из звеньев с помощью разъемных хомутов в секции длиной 10м. Бетонолитная труба должна быть установлена по оси скважины.

Укладка бетонной смеси методом ВПТ. Укладка производится до проектной отметки.

.2 Конструирование и расчёт вспомогательного оборудования

.2.1 Расчет опалубки

При расчете опалубочной формы учитывают нагрузки от их собственного веса, веса арматуры и бетона изделия, боковое давление бетонной смеси, динамически воздействия от вибрации и падения бетонной смеси, силы сцепления между бетоном и опалубкой.

Деревянная опалубка - это система, состоящая из дощатой обшивки и поддерживающих ее ребер, соединенных тяжами или болтами.

Доски и ребра считают неразрезными балками на жестких опорах, а места стыков этих элементов - шарнирами.

Рисунок 1 - Расчётная схема опалубки.

 - объемный вес бетона;

 - радиус вибрирования при вибрировании глубинными вибраторами;

 - коэффициент условия работы;р=1 м - длина доски;

qд- динамическое воздействие при подачи бетонной смеси.


где b=0,2 м - ширина доски

db=13.7 МПа

Принимаем t=0.035 м

Ed=1*106 тс/м2


 - условие не выполняется, сократим расстояние между вертикальным брусом lp=0.6 м и увеличим толщину доски t=0.05 м.


 - условие выполняется.

Расчет тяжей.


Подбор сечения тяжа.


Принимаем гладкую арматуру d=14 мм класса AII.

Расчет вертикального бруса.


бр=0.141 м

Принимаем bбр=13 см


Принимаем брус b=13см,h=20 см.

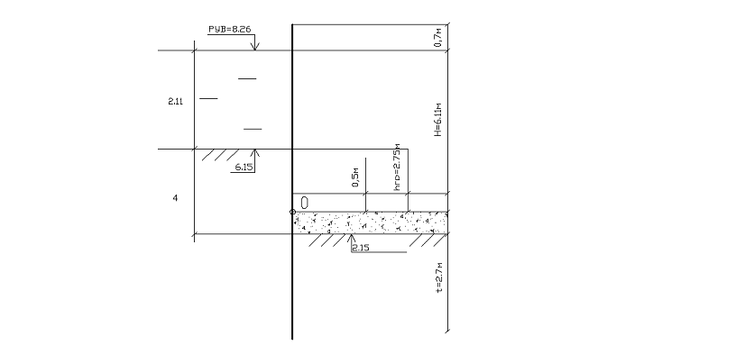
3.2.2 Расчёт шпунтового ограждения

Рисунок 2 - Расчётная схема шпунтового ограждения.

Минимальная глубина забивки шпунта, обеспечивающая устойчивость положения стенки, находится из уравнения моментов относительно точки 0:


Активные нагрузки выше подводной томпонажной подушки приводятся к силам q0, Q0 и М0, определяемым формулам. Тогда уравнение для определения t в однородных грунтах ниже дна котлована будет:


Нагрузки выше дна котлована рекомендуется привести к расчетным усилиям - моменту М0, поперечной силе Q0 и вертикальной распределенной нагрузке q0, приложенным на уровне дна котлована, как показано на рисунке. В частности, при однородных грунтах выше дна котлована формулы для определения q0, Q0 и М0 имеют вид:

Равномерно распределенная:

;

Поперечная сила во второй стадии (а=0 м):


Момент во второй стадии (а=0):


где а - глубина воды в котловане.

Объемную массу взвешенного грунта определяют по формуле:


где - γ0 - плотность скелета грунта. Принимается равной 2,7 - 2,8т/м3; ε коэффициент пористости грунта, определяемый по таблице V.8 (справочник по строительству мостов), откуда находим φ=360.

Коэффициент b находим из формулы:


Коэффициенты активного давления определяем по формуле:


Коэффициенты пассивного давления определяем по формуле:


Коэффициенты перегрузки n1 и n2 находим из таблицы V.14.

Во второй стадии


Достаточность заглубления шпунта в несвязные грунты должна проверяться на устойчивость грунта от выпора его в котлован при водоотливе по формуле:


где - m1 - коэффициент условий работы, 0.7; Нк - высота котлована; γвзв объемная масса взвешенного грунта;

Вывод: из всех вариантов определения длины заглубления шпунта принимаем t = 2.7 м.

фундамент опора мост сборка монтаж

4. Разработка технологий монтажа пролётных строений

.1 Составление основных этапов сборки и монтажа пролётных строений

Монтаж пролетных строений осуществляется с помощью ГЭПК-130 (Габаритный электрифицированный поворотный консольный кран), грузоподъемностью 130 т. Разработан институтом Ленгипротрансмост в 1960г.

Главная балка крана сварная коробчатого сечения состоит из центральной базовой части и двух консолей, которые в рабочем положении присоединяется к базовой части на болтах. Главная балка опирается на две специальные восьмиосные платформы. На каждой из них установлены пятистоечные рамы для подъема главной балки из транспортного в рабочее положение. Стойки рам входят внутрь направляющих коробок главной балки. Эти коробки образованы вваренными в балку поперечными и продольными диафрагмами. Главная балка поднимается электролебедками. Максимальная стрела подъема по сравнению с транспортным положением 1,6 м. Пятистоечные рамы установлены на опорные части, а центрально и неподвижно закрепленные - на опорных платформах. По обеим сторонам опорных частей рам расположены боковые упругие опоры, обеспечивающие поперечное равновесие крана.

Опорная восьмиосная платформа имеет основную верхнюю раму, лежащую на двух балансирных рамах, каждая из которых установлена на две нормальные тележки. Продольные коробчатые хребтовые балки расставлены на расстоянии 2800мм. Масса крана передается на хребтовые балки через поперечную балку коробчатого сечения. С хребтовых балок передается на балансирные рамы.

У модифицированного консольного крана ГЭПК-130 выпуска после 1963г. Длина консолей увеличена с 29 до 34.75м. На конце консоли на расстоянии 7.7м от крайнего основного полиспаста установлен дополнительный полиспаст грузоподъемность 2х24т. Необходимость в устройстве противовеса отпадает, зато сечение консоли крана между полиспастами приходится усилять путём постановки накладок.

Пролетное строение собирают на сборочных, шпальных или брусчатых клетках, выкладываемых попарно под узлами нижнего пояса у монтажных стыков. В верхнем ярусе клеток располагают клинья для регулирования высоты клеток в соответствии со строительным подъемом собираемого пролетного строения. Перед началом сборки на сборочной площадке размечают оси ферм и места расположения сборочных клеток.

По мере сборки величины строительного подъема и положение ферм в плане по вертикали контролируют геодезическим инструментом.

Стальные пролетные строения монтируют тремя основными методами- на сплошных подмостях, полунавесной и навесной сборках. Для опирания в опорных узлах используют капитальные опоры, в остальных узлах- вспомогательные сооружения.

Для устройства подмостей используют инвентарные конструкции УИКМ, МИК-С, МИК-П.

Конструкция подмостей существенно упрощается при сборке пролетного строения на берегу, т.к. в этом случае прогоны не нужны, а вместо вспомогательных опор применяют лежневые фундаменты, передающие давление клеток и домкратов на грунт.

Пролетные строения опирают на подмости через парные клетки из деревянных брусьев. Высоту клеток и расстояние между ними назначают с учетом возможности доступа к узлам и стыкам снизу при постановке высокопрочных болтов или устройстве сварных соединений. Для выверки положения элементов в профиле и обеспечении строительного подъема под узлами устанавливают гидравлические домкраты.

Стыки выполнены на ВП болтах. ВП болты могут быть натянуты на проектные усилия двумя способами, отличающимися методом регулирования усилий натяжения и технологией работ.

Для натяжения по первому способу применяют ручные динамометрические ключи, снабженными устройствами регистрации моментов закручивания. Болты затягивают в две стадии. На первой стадии применяют механизированный инструмент (пневматические гайковерты), усилия при этом составляют 50-90% от проектных. На второй стадии болты затягивают до проектных усилий динамометрическим ключом.

Второй способ регулирования усилий натяжения основан на зависимости между усилиями натяжения N и углами поворота гайки α. Натягивают болт пневматическим гайковертом. Технологический процесс, включает операции тарирования гайковертом и собственно натяжение болтов на монтаже. Первую операцию выполняют на тарировочном пакете из двух листов, плотно стянутых ВП болтами. Затем, применяя пневматический гайковерт достаточной мощности поворачивают гайки тарировочных болтов так, чтобы углы поворота гаек при прекращении их вращения составляли 1800±300 . Протарированным гайковертом натягивают болты на монтаже, поворачивая гайки до прекращения их вращения.

Контролируют усилия в болтах в первом случае динамометрическими ключами, устанавливая соответствие между расчетными значениями момента закручивания и их фактическими в момент трогания гайки с места, во втором - протарированными пневматическими гайковертами; признак достаточного натяжения - отсутствие вращения гаек.

.2 Выбор и обоснование транспортного, кранового оборудования, силовых устройств для принятого варианта монтажа

Монтаж пролетных строений осуществляется с помощью ГЭПК-130 (Габаритный электрифицированный поворотный консольный кран), грузоподъемностью 130 т. Разработан институтом Ленгипротрансмост в 1960г, выпуск после 1963г.

Установка железобетонных блоков плиты балластного корыта ведется краном КС-5363 грузоподъемностью 25 т. Кран предназначен для строительно-монтажных работ и погрузочно-разгрузочных работ. Кран имеет дизель-электрический многомоторный привод всех механизмов. Питание электродвигателя может быть осуществлено также от внешней сети переменного тока напряжением 380 В.

.3 Расчёты по проверке прочности, устойчивости пролётного строения на монтажные нагрузки


где - m = 1;

;

 - принимается по приложению 15 СНиП 2.05.03-84

Условие прочности


Условие устойчивости


Условия выполняются.

Монтаж плиты проезжей части осуществляется полноповоротном наступающим краном КС 5363 грузоподъёмностью 25 т (вес 33т). Подача железобетонных плит ведётся с автомобиля «Урал» (вес 10 т). Расчётная схема представлена на рисунке 4.4.

Рисунок 4.3 - Линия влияния М

Вес деревянного настила

qнаст.=(bнаст.+δ)hнаст.γqγf=(1.2*0.3)0.15*0.8*1.2=0.216 тс/м

qс.в.=0.836 тс/м

qпл=1.569 тс/м

Изгибающий момент:

Проверка на прочность


Вывод: условие выполняется.

Проверка на устойчивость


 - принимается по приложению 15 СНиП 2.05.03-84

Вывод: условие выполняется.

5. Определение параметров, требующих геодезического контроля и установление этапов проведения контрольных замеров

При разбивке опор центры опор переносят на местность непосредственным измерением расстояний между знаками, закрепляющими ось сооружения, и центрами опор, привязанными в проекте к пикетажу дороги. Разбивки выполняют, привязываясь к пунктам геодезической сети, имеющей координаты в абсолютной или условной системе.

Точность измерения расстояний между исходными пунктами, закрепляющими ось моста, и положение осей надфундаментной части опоры зависит от возможного смещения на опорах пролетных строений.

При возведении опор закрепляют продольные и поперечные их оси. На суше оси опор закрепляют кольями, сваями или столбами с четырех сторон.

Установка с каждой стороны двух кольев, свай или столбов позволяет восстанавливать оси опор в процессе производства работ с любой стороны, когда визирование через опору становится невозможным.

Прибывающие с завода или изготовленные на строительной площадке элементы сборных бетонных, железобетонных и металлических конструкций до их монтажа подвергают контрольным геодезическим измерениям со сверкой размеров с рабочими чертежами. Для проверки монтажа пролетного строения, в первую очередь, на подферменных площадках опор наносят оси опорных частей и их высотные отметки. Отклонение в положении смонтированных конструкций сборных мостов и труб не должны превышать допусков, указанных в проекте сооружения. Отклонения, превышающие допуски, нужно устранять до окончательного закрепления и полного омоноличивания сборной конструкции. Для обеспечения точности геодезических работ на мостах длинной более 100 м точность измерения расстояния между исходными пунктами, закрепляющими ось моста, и положение осей надфундаментной части опоры зависит от возможного смещения на опорах пролетных строений.

. Мероприятия по обеспечению безопасности жизнидеятельности


Организация и выполнение работ в строительном производстве, промышленности строительных материалов и строительной индустрии должны осуществляться при соблюдении законодательства Российской Федерации об охране труда, а также иных нормативных правовых актов, установленных Перечнем видов нормативных правовых актов, утвержденных постановлением Правительства Российской Федерации от 23 мая 2000 года N 399 "О нормативных правовых актах, содержащих государственные нормативные требования охраны труда".

Обеспечение технически исправного состояния строительных машин, инструмента, технологической оснастки, средств коллективной защиты работающих осуществляется организациями, на балансе которых они находятся.

Организации, осуществляющие производство работ с применением машин, должны обеспечить выполнение требований безопасности этих работ.

Перед началом работ в условиях производственного риска необходимо выделить опасные для людей зоны, в которых постоянно действуют или могут действовать опасные факторы, связанные или не связанные с характером выполняемых работ.

К зонам постоянно действующих опасных производственных факторов относятся:

места вблизи от неизолированных токоведущих частей электроустановок;

места вблизи от не огражденных перепадов по высоте 1,3 м и более;

места, где возможно превышение предельно допустимых концентраций вредных веществ в воздухе рабочей зоны.

К зонам потенциально опасных производственных факторов следует относить:

участки территории вблизи строящегося здания (сооружения);

этажи (ярусы) зданий и сооружений в одной захватке, над которыми происходит монтаж (демонтаж) конструкций или оборудования;

зоны перемещения машин, оборудования или их частей, рабочих органов;

места, над которыми происходит перемещение грузов кранами.

Места временного или постоянного нахождения работников должны располагаться за пределами опасных зон. На границах зон постоянно действующих опасных производственных факторов должны быть установлены защитные ограждения, а зон потенциально опасных производственных факторов - сигнальные ограждения и знаки безопасности.

К выполнению работ, к которым предъявляются дополнительные требования по безопасности труда, согласно законодательству допускаются лица, не имеющие противопоказаний по возрасту и полу, прошедшие медицинский осмотр и признанные годными к выполнению данных работ, прошедшие обучение безопасным методам и приемам работ, инструктаж по охране труда, стажировку на рабочем месте, проверку знаний требований охраны труда.

Работники, занятые работами в условиях действия опасных и (или) вредных производственных факторов, должны проходить обязательные предварительные при поступлении на работу и периодические медицинские осмотры в соответствии с законодательством в порядке, установленном приказом Минздрава России от 10 декабря 1996 года N 405.

.2 Организация работы по обеспечению охраны труда

В соответствии с действующим законодательством обязанности по обеспечению безопасных условий охраны труда в организации возлагаются на работодателя. В организации, как правило, назначаются лица, ответственные за обеспечение охраны труда в пределах порученных им участков работ.

В организации должно быть организовано проведение проверок, контроля и оценки состояния охраны и условий безопасности труда, включающих следующие уровни и формы проведения контроля:

постоянный контроль работниками исправности оборудования, приспособлений, инструмента, проверка наличия и целостности ограждений, защитного заземления и других средств защиты до начала работ и в процессе работы на рабочих местах согласно инструкциям по охране труда;

периодический оперативный контроль, проводимый руководителями работ и подразделений предприятия согласно их должностным обязанностям;

выборочный контроль состояния условий и охраны труда в подразделениях предприятия, проводимый службой охраны труда согласно утвержденным планам.

При обнаружении нарушений норм и правил охраны труда работники должны принять меры к их устранению собственными силами, а в случае невозможности этого прекратить работы и информировать должностное лицо.

В случае возникновения угрозы безопасности и здоровью работников ответственные лица обязаны прекратить работы и принять меры по устранению опасности, а при необходимости обеспечить эвакуацию людей в безопасное место.

.3 Организация производственных территорий, участков работ и рабочих мест

Производственные территории, участки работ и рабочие места должны быть обеспечены необходимыми средствами коллективной или индивидуальной защиты работающих, первичными средствами пожаротушения, а также средствами связи, сигнализации и другими техническими средствами обеспечения безопасных условий труда в соответствии с требованиями действующих нормативных документов и условиями соглашений.

Проезды, проходы на производственных территориях, а также проходы к рабочим местам и на рабочих местах должны содержаться в чистоте и порядке, очищаться от мусора и снега, не загромождаться складируемыми материалами и конструкциями.

Допуск на производственную территорию посторонних лиц, а также работников в нетрезвом состоянии или не занятых на работах на данной территории запрещается.

.4 Обеспечение пожаробезопасности

В местах, содержащих горючие или легковоспламеняющиеся материалы, курение должно быть запрещено, а пользование открытым огнем допускается только в радиусе более 50 м.

Противопожарное оборудование должно содержаться в исправном, работоспособном состоянии. Проходы к противопожарному оборудованию должны быть всегда свободны и обозначены соответствующими знаками.

На рабочих местах, где применяются или приготовляются клеи, мастики, краски и другие материалы, выделяющие взрывоопасные или вредные вещества, не допускаются действия с использованием огня или вызывающие искрообразование. Эти рабочие места должны проветриваться. Электроустановки в таких помещениях (зонах) должны быть во взрывобезопасном исполнении. Кроме того, должны быть приняты меры, предотвращающие возникновение и накопление зарядов статического электричества.

Рабочие места, опасные во взрывном или пожарном отношении, должны быть укомплектованы первичными средствами пожаротушения и средствами контроля и оперативного оповещения об угрожающей ситуации.

.5 Транспортные и погрузо-разгрузочные работы

Транспортные средства и оборудование, применяемое для погрузочно-разгрузочных работ, должно соответствовать характеру перерабатываемого груза. Площадки для погрузочных и разгрузочных работ должны быть спланированы и иметь уклон не более 5°, а их размеры и покрытие - соответствовать проекту производства работ. В соответствующих местах необходимо установить надписи: "Въезд", "Выезд", "Разворот" и др. Спуски и подъемы в зимнее время должны очищаться от льда и снега и посыпаться песком или шлаком.

В местах производства погрузочно-разгрузочных работ и в зоне работы грузоподъемных машин запрещается нахождение лиц, не имеющих непосредственного отношения к этим работам. Присутствие людей и передвижение транспортных средств в зонах возможного обрушения и падения грузов запрещаются.

Погрузка опасного груза на автомобиль и его выгрузка из автомобиля должны производиться только при выключенном двигателе, за исключением случаев налива и слива, производимого с помощью насоса с приводом, установленного на автомобиле и приводимого в действие двигателем автомобиля. Водитель в этом случае должен находиться у места управления насосом.

Для обеспечения безопасности при производстве погрузочно-разгрузочных работ с применением грузоподъемного крана его владелец и организация, производящая работы, обязаны выполнять следующие требования:

на месте производства работ не допускается нахождение лиц, не имеющих отношения к выполнению работ;

не разрешается опускать груз на автомашину, а также поднимать груз при нахождении людей в кузове или в кабине автомашины.

Список использованной литературы

1. Колоколов Н.М., Вейнблат Б.М. Строительство мостов. - 1984 г.

. Строительство мостов и труб. Справочник инженера. - 1975 г.

. Вейнблат Н.М., Елисон И.И., Каменцев В.П. Краны для строительства мостов. - 1978 г.

. Костерин Э.В. Основания и фундаменты. - 1978 г.

. Кручинкин А.В., Белый В.К. Монтаж стальных пролетных строений мостов. - М.: Транспорт, 1978. - 296с.

. СНиП 1.04.03-85*. Нормы продолжительности строительства и задела в строительстве предприятий, зданий и сооружений. - М.: Госстрой СССР, Госплан СССР, 1986.


Не нашли материал для своей работы?
Поможем написать уникальную работу
Без плагиата!
Без нейросетей!