Проект монтажа каркаса двухэтажного производственного здания
Пояснительная записка а курсовому
проекту
на тему:
Проект монтажа каркаса двухэтажного
производственного здания
г. Смоленск 2011 г.
Содержание
Введение
1. Техническое
задание на курсовое проектирование
2. Назначение
и область применения технологической карты
. Спецификация
сборного железобетона
. Земляные
работы
. Ведомость
подсчета объемов работ
. Калькуляция
трудозатрат и машинного времени
. Расчет
экскаватора
. Расчет
крана
. Расчет
состава бригады
. Технология
и организация строительного процесса
. Требования
к качеству и приемке работ
. Схема
операционного контроля качества
. Технологический
нормокомплект
. Указания
по охране труда и технике безопасности
. Технико-экономические
показатели
Список используемой
литературы
Введение
Данный курсовой проект посвящен разработке проекта монтажа каркаса
двухэтажного производственного здания. Курсовой проект состоит из 2-х частей:
пояснительная записка и графическая часть. В пояснительной записке приведены
расчеты выбора колонн, ригелей и плит перекрытия, произведена калькуляция
трудозатрат и стоимости работ, выбор такелажной оснастки, монтажного крана и
транспортных средств. Также рассчитаны технико-экономические показатели
проекта. Кроме этого разработана и представлена технология монтажных работ.
Графическая часть представлена технологической картой земельных работ и
монтажа несущего каркаса здания, выполненные на листах формата А1, А2. На карте
представлена технология и общая организация работ.
Проект представляет собой оптимальный и наиболее целесообразный, с точки
зрения условий строительства, вариант монтажных работ, с учетом соблюдения
техники безопасности при строительстве и проведении работ, обеспечивающий при
этом высокое качество монтажных работ и строящегося объекта в целом. Выбор
оптимального варианта производится на основе технико-экономических параметров и
показателей.
1. Техническое задание на курсовое проектирование
Исходные данные:
Город строительства: г. Витебск.
Глубина растительного слоя,м: 0,2
Глубина промерзания грунта: 1,3 м
Тип грунта: Супесь.
Группа грунтов, разрабатываемых в котловане экскаватором: II ( по ЕНиР Сборник Е2 выпуск 1)
Группа грунтов, разрабатываемых бульдозером: : II
Средняя плотность в естественном залегании: 1700 кг/м3
Глубина котлована: 1,5 м
Тип здания: Общественное
Тип фундамента: стаканного типа
Описание местных условий района строительства
Климат - умеренный континентальный. Лето сравнительно короткое, тёплое.
Зима непродолжительная, умеренно холодная. Осадков около 600мм в год.
Температура воздуха наиболее холодной пятидневки -21°С. Глубина
промерзания земли 1,300м. Преобладающее направление ветра в январе-феврале
южный. Здание размещается на участке со спокойным рельефом размером 96 х 136 м.
Здание размещается на участке со спокойным рельефом.
Согласно СНиП 2.07.01-89*(2000) «Градостроительство. Планировка и
застройка городских и сельских поселений» здание школы находится на Селитебной
территории, предназначенной: для размещения жилищного фонда,
общественных зданий и сооружений.
Планировочную структуру селитебной территории городских и сельских
поселений следует формировать с учетом взаимоувязанного размещения зон
общественных центров, жилой застройки, улично-дорожной сети, озелененных
территорий общего пользования, а также в увязке с планировочной структурой
поселения в целом в зависимости от его величины и природных особенностей
территории.
Согласно ГОСТ 21.204-93 "Система проектной документации для
строительства. Условные графические обозначения и изображения элементов
генеральных планов и сооружений транспорта" приняты условия существующей
застройки. Ширина дорог 6 м, проездов 4 м, тротуаров 3 м.
Выполнена координатная привязка здания к осям строительной геодезической
сетки. Абсолютная отметка, соответствующая условной нулевой 48,35м.
Таблица 1
Повторяемость ветров для г. Витебск
|
С
|
СВ
|
В
|
ЮВ
|
Ю
|
ЮЗ
|
З
|
СЗ
|
|
Январь
|
6
|
8
|
4
|
15
|
20
|
22
|
13
|
12
|
|
Июль
|
10
|
11
|
8
|
9
|
13
|
14
|
18
|
17
|
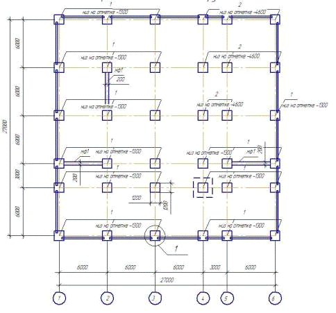
1.1 План этажа на отметке 0.000
Рис. 1
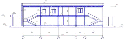
1.2 Разрез 1-1
Рис.2
1.3 Схема расположения
элементов фундамента
Рис.3
1.4 Схема расположения
ригелей
Рис. 4
.5 Схема расположения элементов фундамента
Рис. 5
Таблица 2
Спецификация Ж/Б
|
Поз.
|
Обозначение
|
Наименование
|
Кол
|
Масса, т
|
Примеч
|
|
фундамент
|
|
|
|
|
1
|
Серия 1.020.1/83
|
1ф.12.8-1
|
36
|
1,3
|
0,8
|
|
Фундаментные балки
|
|
1фб
|
ГОСТ 28737-90
|
3фб30
|
4
|
0,85
|
0,35
|
|
2фб
|
ГОСТ 28737-90
|
3фб60
|
16
|
1,72
|
0,7
|
|
Цокольные панели
|
|
1цп
|
Серия 1.030.1-1 В1-1
|
ПСЦ 60.21-3,5л
|
16
|
10,6
|
4,41
|
|
2цп
|
Серия 1.030.1-1 В1-1
|
ПСЦ 30.21-3,5л
|
4
|
5,3
|
2,2
|
|
3цп
|
Серия 1.030.1-1 В1-1
|
3ПС46.210-3,5л
|
4
|
0,7
|
0,3
|
|
колонны
|
|
к1
|
Серия 1.020.1/83
|
2кд3.33-1.1
|
24
|
1,74
|
0,7
|
|
к2
|
|
2ко3.33-2.1
|
12
|
1,71
|
0,6
|
|
ригели
|
|
р1
|
Серия 1.020.1/83
|
РДП 4.56-40 ATV
|
36
|
2,55
|
1,02
|
|
р2
|
|
Роп 4.26-40
|
18
|
1,05
|
0,42
|
|
р3
|
|
Рдп 4.26-40
|
12
|
1,11
|
0,45
|
|
Р4
|
|
Роп 4.56-30
|
24
|
2,35
|
0,96
|
|
Диафрагмы жесткости
|
|
Д1
|
Серия 1.020.1/83
|
1д.30-20
|
4
|
2,53
|
1,01
|
|
Д2
|
Серия 1.020.1/83
|
2д.30-20
|
16
|
2,55
|
1,02
|
|
Плиты перекрытий и покрытий
|
|
1
|
Серия 1.041.1-2
|
Пк56.15-4Ату(АУ)
|
126
|
1,04
|
2,6
|
|
2
|
|
Пк27.15-16ап т
|
18
|
0,6
|
0,32
|
|
3
|
|
Прс.15-4т
|
3
|
1,5
|
0,59
|
|
Панели наружных стен
|
|
1
|
Серия 1.030.1-1
|
ПС 30,15.3.5-6.д
|
16
|
2,39
|
0,07
|
|
2
|
|
ПС 60,15,3,5-6д
|
64
|
4,66
|
2,8
|
|
3
|
|
2ПС6.15.3.5-д
|
24
|
0,45
|
0,4
|
|
4
|
|
3ПС56.15с.35-д
|
24
|
0,61
|
0,3
|
|
лестницы
|
|
1
|
Серия 1.050.1-2
|
Лмп.11.17-5
|
6
|
2,6
|
1
|
|
Вентиляционные блоки
|
|
В1
|
Серия 1.034.1-1
|
Вд30.20
|
4
|
2,5
|
1,07
|
|
В2
|
|
2вд.30.33
|
2
|
2,9
|
1,16
|
|
|
|
|
|
|
|
|
2. Назначение и область применения технологической карты
Данная технологическая карта разработана на монтаж каркаса двухэтажного
жилого здания. Здание с размерами в осях 27000*27000мм, высотой 8100мм.
Картой предусмотрено выполнение:
земляных работ
монтажа фундаментов
монтажа колонн
монтажа ригелей
монтажа цокольных балок
монтажа цокольных панелей
монтажа диафрагм жесткости
монтажа лестниц
монтажа плит перекрытия
опалубочные работы
электросварочные работы
антикоррозийные работы
гидроизоляционные работы
Продолжительность ведения работ 48 дней в одну смену.
Состав бригады 13 человека.
Ведущий механизм для выполнения земляных работ - экскаватор марки CASE CX75SR, с ёмкостью
ковша 0,4 м3; для монтажа конструкций нулевого цикла - кран марки
СКГ-30, грузоподъёмностью 35 т.
3.
Спецификация сборного железобетона
Таблица 3
|
Поз.
|
Обозначение
|
Наименование
|
Кол
|
Масса ,т
|
Примеч.
|
|
|
|
|
Ед
|
Общ
|
Ед
|
Общ
|
|
фундамент
|
|
1
|
Серия 1.020.1/83
|
1ф.12.8-1
|
36
|
1,3
|
46,8
|
0,8
|
28,8
|
|
Фундаментные балки
|
|
1фб
|
ГОСТ 28737-90
|
3фб30
|
4
|
0,85
|
3,4
|
0,35
|
1,4
|
|
2фб
|
ГОСТ 28737-90
|
3фб60
|
16
|
1,72
|
27,52
|
0,7
|
11,2
|
|
Цокольные панели
|
|
1цп
|
Серия 1.030.1-1 В1-1
|
ПСЦ 60.21-3,5л
|
16
|
10,6
|
163,2
|
4,41
|
70,56
|
|
2цп
|
Серия 1.030.1-1 В1-1
|
ПСЦ 30.21-3,5л
|
4
|
5,3
|
21,2
|
2,2
|
8,8
|
|
3цп
|
Серия 1.030.1-1 В1-1
|
3ПС46.210-3,5л
|
4
|
0,7
|
2,8
|
0,3
|
1,2
|
|
колонны
|
|
к1
|
Серия 1.020.1/83
|
2кд3.33-1.1
|
24
|
1,74
|
41,76
|
0,7
|
16,8
|
|
к2
|
|
2ко3.33-2.1
|
12
|
1,71
|
20,52
|
0,6
|
7,2
|
|
ригели
|
|
р1
|
Серия 1.020.1/83
|
РДП 4.56-40 ATV
|
16
|
2,55
|
40,8
|
1,02
|
16,32
|
|
р2
|
|
Роп 4.26-40
|
1,05
|
2,1
|
0,42
|
0,84
|
|
р3
|
|
Рдп 4.26-40
|
4
|
1,11
|
4,44
|
0,45
|
1,8
|
|
Р4
|
|
Роп 4.56-30
|
8
|
2,35
|
18,8
|
0,96
|
7,68
|
|
Диафрагмы жесткости
|
|
Д1
|
Серия 1.020.1/83
|
1д.30-20
|
2
|
2,53
|
3,06
|
1,01
|
2,02
|
|
Д2
|
Серия 1.020.1/83
|
2д.30-20
|
8
|
2,55
|
20,4
|
1,02
|
8,16
|
|
Плиты перекрытий и покрытий
|
|
1
|
Серия 1.041.1-2
|
Пк56.15-4Ату(АУ)
|
42
|
1,04
|
43,68
|
2,6
|
109,2
|
|
2
|
|
Пк27.15-16ап т
|
6
|
0,6
|
3,6
|
0,32
|
1,92
|
|
3
|
|
Прс.15-4т
|
1
|
1,5
|
1,5
|
0,59
|
0,59
|
|
лестницы
|
|
1
|
Серия 1.050.1-2
|
Лмп.11.17-5
|
2
|
2,6
|
5,2
|
1
|
2
|
|
|
|
|
|
|
|
|
|
∑=470,78 ∑=296,49
. Земляные работы
. До начала разработки грунта в котловане должны быть выполнены следующие
работы:
очистка территории;
снятие растительного слоя грунта;
планировка площадки в зоне расположения котлована;
отвод поверхностных вод;
геодезическая разбивка;
устройство временных дорог.
. Разработка котлована ведется одноковшовым экскаватором Case CX75SR с
навесным оборудованием "обратная лопата" емкостью 0,4 м
.
. Подчистка дна котлована ведется вручную.
. Грунт для обратной засыпки размещается вдоль длинных сторон котлована
на расстояние 10м. Перемещается грунт с помощью бульдозера ДЗ-28
. Лишний грунт вывозится за пределы строительной площадки
автосамосвалами.
. Котлован разрабатывается в 4 торцевые проходки.
. Все работы по отрывке котлована производятся в соответствии со СНиП
3.02.01-01 "Земляные сооружения, основания и фундаменты".
Таблица 4
5. Ведомость подсчета объемов работ
Таблица 5
|
№ п/п
|
Наименование
|
Ед изм.
|
Эскиз
|
Формула подсчета
|
Кол-во
|
|
1
|
2
|
3
|
4
|
5
|
6
|
|
Срезка растительного слоя земли
|
м2
|
|
Sоп=(А+20)*(В+20)=(27+20)*(27+20)=1080
|
1080
|
|
Перемещение растительного слоя
|
м3
|
|
Vпер.раст=Sср*hср=1080*0,1=108
|
108
|
|
Вывоз растительного грунта
|
м3
|
|
Vвывоз=Vпер.раст=108
|
108
|
|
Разработка грунта экскаватором 1)с погрузкой в ТС 2)с
отсыпкой в отвал
|
м3
|
|
Vт.с=Vк-Vо.з=834,5-123,5=711 Vотв=Vо.з.=123,5
|
711 123,5
|
|
Доработка грунта вручную
|
м3
|
|
Vдор.вр=(Ак*Вк)*hдор=(29,4*29,4)*0,1=86,44
|
86,44
|
|
Перемещение грунта бульдозером на расстоянии 10м вручную
|
м3
|
|
Vпер.буль=Vо.з./100*90=123,5/100*90=111,15 Vпер.вруч=(Vо.з./100)*10=(123,5/100)*10=12,35
|
111,15 12,35
|
|
Перемещение грунта бульдозером для обратной засыпки
|
м3
|
|
Vпер=Vо.з.=123,5
|
123,5
|
|
Устройство песчаной подсыпки на 0,1м под фундаменты
|
м3
|
|
Sк*0,1=467*0,1=46,66
|
46,66
|
|
Разгрузка ж/б элементов массой до 1т
|
т
|
|
См. спецификацию сборного ж/б
|
9,8
|
|
до 1,5 т
|
|
|
|
102,72
|
|
до 2 т
|
|
|
|
89,8
|
|
до 3 т
|
|
|
|
80
|
|
до 6 т
|
|
|
|
21,2
|
|
до 13 т
|
|
|
|
169,6
|
|
Приём бетонной и растворной смеси из автосамосвала в
ёмкость
|
м3
|
|
Бетонная смесь Стыки колонн с фундаментами (ГЭСН
07-05-004-2) 0.36х6.42=2,31 Стыки цокольных панелей (ГЭСН 07-01-006-11)
0,24*30,3=7,3 Стыки фундаментных балок (ГЭСН 07-01-001-15) 0,2*3,05=0,61
(ГЭСН 07-01-047-03) 0,02*0,52=0,01 Растворная смесь Стыки ригелей (до 2т) с
колоннами (ГЭСН 07-05-007-6) 0.1х0.24=0.024 До 3т (ГЭСН 07-05-007-7)
0.12х0.79=0,095 Стыки между плитами перекрытий (ГЭСН 07-05-011-6)
0,49х6.53=5,16 Стык диафрагмы жесткости с колоннами (ГЭСН 07-05-023-5)
0.1х14.7=1.47
|
16,98
|
|
Подача бетонной и растворной смеси
|
м3
|
|
Бетонная смесь Стыки колонн с фундаментами (ГЭСН
07-05-004-2) 0.36х6.42=2,31 Стыки цокольных панелей (ГЭСН 07-01-006-11)
0,24*30,3=7,3 Стыки фундаментных балок (ГЭСН 07-01-001-15) 0,2*3,05=0,61
(ГЭСН 07-01-047-03) 0,02*0,52=0,01 Растворная смесь Стыки ригелей (до 2т) с
колоннами (ГЭСН 07-05-007-6) 0.1х0.24=0.024 До 3т (ГЭСН 07-05-007-7)
0.12х0.79=0,095 Стыки между плитами перекрытий (ГЭСН 07-05-011-6)
0,49х6.53=5,16 Стык диафрагмы жесткости с колоннами (ГЭСН 07-05-023-5)
0.1х14.7=1.47
|
16,98
|
|
Монтаж фундаментов стаканного типа
|
шт
|
|
См. спецификацию сборного ж/б (А/С часть)
|
36
|
|
Установка опалубки под монолитные фундаменты
|
м2
|
|
(4,8*1,3*2)*3=37,44
|
37,44
|
|
Укладка арматуры
|
т
|
|
ГЭСН 06-01-001-22 0,0374*6,6=0,27
|
0,27
|
|
Укладка и уплотнение бетонной смеси
|
м3
|
|
3,74/100*101,5=3,79
|
3,79
|
|
Уход за бетоном
|
м2
|
|
4,8*0,2*3=2,88
|
2,88
|
|
Снятие опалубки
|
м2
|
|
(4,8*1,3*2)*3=37,44
|
37,44
|
|
Монтаж колонн массой до 2т
|
шт
|
|
См. спецификацию сборного ж/б (А/С часть)
|
36
|
|
Заделка стыков колонн в фундаменте
|
стык
|
|
См. спецификацию сборного ж/б (А/С часть)
|
36
|
|
Монтаж фундаментных балок
|
шт
|
|
См. спецификацию сборного ж/б (А/С часть)
|
20
|
|
Монтаж ригелей массой до 2 т
|
шт
|
|
См. спецификацию сборного ж/б (А/С часть)
|
10
|
|
до 3 т
|
|
|
|
20
|
|
Монтаж диафрагм жесткости S до 10 м2
|
шт
|
|
См. спецификацию сборного ж/б (А/С часть)
|
10
|
|
Монтаж плит перекрытия над подвалом S до 10 м2
|
шт
|
|
См. спецификацию сборного ж/б (А/С часть)
|
49
|
|
Монтаж Z-образных лестниц
|
шт
|
|
См. спецификацию сборного ж/б (А/С часть)
|
2
|
|
Электросварка монтажных стыков Стык ригеля с колонной Стык
|
м.ш.
|
|
nриг*1,2=30*1,2=36
|
36
|
|
диафрагмы жесткости с кол.
|
|
|
nд.ж*1,5=10*1,5=15
|
15
|
|
Стык плит перекрытия с ригелем
|
|
|
nплит*0,8=49*0,8=39,2
|
39,2
|
|
Лестничные марши с ригелями
|
|
|
Nмарш*0,5=2*0,5=1
|
1
|
|
Цокольные панели с колоннами
|
|
|
Nц.п*1,5=24*0,5=12
|
12
|
|
Монтаж цокольных панелей
|
шт
|
|
См. спецификацию сборного ж/б (А/С часть)
|
24
|
|
Устройство подстилающего песчаного слоя под полы подвала
|
м2
|
|
27*27=729
|
729
|
|
Устройство горизонтальной гидроизоляции под полы подвала (2
слоя)
|
м2
|
|
27*27*2=1458
|
1458
|
|
Антикоррозийная защита монтажных стыков -Плит перекрытия с
ригелями
|
стык
|
|
nплит*3=49*3=147
|
147
|
|
-Ригеля с колонной
|
|
|
nриг*2=30*2=60
|
60
|
|
-Стык диафрагмы жесткости с колонной
|
|
|
nдж*4=10*4=40
|
40
|
|
-Лестничных маршей с ригелями
|
|
|
nлест*2=2*2=4
|
4
|
|
-Цокольных панелей с колоннами
|
|
|
nц.п*2=24*2=48
|
48
|
|
Заливка швов между плитами перекрытия
|
м.ш
|
|
18*5,9*4+2,9*10=453,8
|
453,8
|
|
Заполнение вертикальных швов стеновых панелей упругими
прокладками
|
м.ш
|
|
См. схема раскладки стеновых панелей (А/С часть)
|
50,4
|
|
Теплоизоляция стыков
|
м.ш
|
|
См. схема раскладки стеновых панелей (А/С часть)
|
158,4
|
|
Герметизация горизонтальных швов стеновых панелей мастикой
|
м.ш
|
|
См. схема раскладки стеновых панелей (А/С часть)
|
108
|
|
Герметизация вертикальных швов стеновых панелей мастикой
|
м.ш
|
|
См. схема раскладки стеновых панелей (А/С часть)
|
50,4
|
|
Устройство бетонной подготовки под полы подвала
|
м2
|
|
27*27=729
|
729
|
|
Вертикальная гидроизоляция подвала
|
м2
|
|
27*4*2,1=226,8
|
226,8
|
|
Обратная засыпка пазух 1)бульдозером 2)вручную
|
м3
|
|
Vзас.бульд.= Vотв ´0,9=123,5*0,9=111,15 Vзас.вручн..= Vотв ´0,1=123,5*0,1=12,35
|
111,15 12,35
|
|
Уплотнение грунта обратной засыпки
|
м3
|
|
Fупл=Vобр.зас=123,5
|
123,5
|
. Калькуляция
трудозатрат и машинного времени
Таблица 6
|
№ п/п
|
Наименование
|
Объем работ
|
Обоснование по ЕНиР
|
Состав звена
|
Трудозатраты
|
Машинное время
|
|
|
Ед. изм
|
К-во
|
|
|
Ед. (чел*ч.)
|
Общ. (чел*ч)
|
Ед. (м.ч.)
|
Общ. (м.ч.)
|
|
1
|
2
|
3
|
4
|
5
|
6
|
7
|
8
|
9
|
10
|
|
Срезка растительного слоя земли бульдозером ДЗ-28
|
1000 м2
|
1,08
|
Е 2-1-5 №3б
|
Машинист 6р.-1
|
|
|
1,4
|
1,512
|
|
Перемещение растительного слоя
|
100 м3
|
1,08
|
Е2-1-22№5б
|
Машинист 6р.-1
|
|
|
0,41
|
0,44
|
|
Разработка грунта экскаватором с погрузкой в ТС
|
100 м3
|
7,11
|
Е2-1-11№4б
|
Машинист 6р.-1
|
|
|
3,5
|
24,9
|
|
Разработка грунта экскаватором с отсыпкой в отвал
|
100 м3
|
1,235
|
Е2-1-11№43
|
Машинист 6р.-1
|
|
|
2,8
|
3,46
|
|
Доработка грунта вручную
|
1 м3
|
86,44
|
Е2-1-47
|
Землекоп 2р.-1
|
1,3
|
112,37
|
|
|
|
Перемещение грунта бульдозером на расстоянии 10м
|
100 м3
|
1,1115
|
Машинист 6р.-1
|
|
|
0,41
|
0,45
|
|
Планировка площадей, откосов и верха полотна насыпей и
выемок
|
100 м2
|
|
Е2-1-60
|
Землекоп 2р.-1
|
8,4
|
|
|
|
|
Перемещение грунта бульдозером для обратной засыпки
|
100 м3
|
1,235
|
Е2-1-22№5б
|
Машинист 6р.-1
|
|
|
0,41
|
0,5
|
|
Устройство песчаной подсыпки на 0,1м под фундаменты
|
1 м3
|
46,66
|
Е2-1-58
|
Землекоп 2р.-1
|
0,97
|
45,2
|
|
|
|
Разгрузка ж/б элементов массой до 1т до 1,5 т до 2 т до 3 т
до 6 т до 13 т
|
100 т
|
0,098 1,0272 0,898 0,8 0,212 1,696
|
Е 1-5 №5б
|
Такелажники: 2р.-2 Машинист крана: 6р.-1
|
12 8,8 7,2 5,4 3,8 3
|
1,176 9,04 6,46 4,32 0,8 5,08
|
6,1 4,4 3,6 2,7 1,9 1,5
|
0,6 4,52 3,23 2,16 0,4 2,54
|
|
Приём бетонной и растворной смеси из автосамосвала в
ёмкость
|
100м3
|
0,1698
|
Е4-1-54 №.19
|
Бетонщик 2р.-1
|
8,2
|
1,39
|
|
|
|
Подача бетонной смеси и раствора к рабочим местам
|
1 м3
|
16,98
|
Е1-6-т2 №.9 а,б
|
Машинист крана: 6р.-1 Такелажники 2р.-2
|
0,42
|
7,13
|
0,84
|
14,26
|
|
Монтаж фундаментов стаканного типа
|
шт
|
36
|
Е4-1-1 таб.2 №5а
|
Монтажник конструкций: 4р.-1;3р.-1;2р.-1; Машинист крана:
6р.-1
|
0,96
|
34,56
|
0,32
|
11,52
|
|
Установка опалубки под монолитные фундаменты
|
1 м2
|
37,44
|
Е4-1-34 таб.2 №2а
|
Плотник 4р.-1 Плотник 2р.-1
|
0,51
|
19,1
|
|
|
|
Укладка арматуры
|
1 т
|
0,27
|
Е4-1-44 №1
|
Арматурщик 3р.-1 Арматурщик 2р.-1
|
6,4
|
1,73
|
|
|
|
Укладка и уплотнение бетонной смеси
|
1 м3
|
3,79
|
Е4-1-49 №1
|
Бетонщик 4р.-1 Бетонщик 2р.-1
|
0,3
|
1,14
|
|
|
|
Уход за бетоном
|
100 м2
|
0,0288
|
Е4-1-54 №9
|
Бетонщик 2р.-1
|
0,14
|
0,004
|
|
|
|
Снятие опалубки
|
1 м2
|
37,44
|
Е4-1-34 таб.2 №2б
|
Плотник 3р.-1 Плотник 2р.-1
|
0,13
|
4,87
|
|
|
|
Монтаж колонн массой до 2т
|
шт
|
36
|
Е4-1-4 табл.3, №.2 в,г
|
Монтажник конструкций: 5р.-1;4р.-1;3р.-2;2р.-1; Машинист
крана: 6р.-1
|
3,9
|
140,4
|
0,78
|
28,08
|
|
Заделка стыков колонн в фундаменте
|
стык
|
36
|
Е4-1-25 табл.1, №.1
|
Монтажник конструкций: 4р.-1;3р.-1
|
0,81
|
29,16
|
|
|
|
Монтаж фундаментных балок
|
шт
|
20
|
Е4-1-6 таб.3 №1а
|
Монтажник конструкций: 5р.-1;4р.-1;3р.-2;2р.-1; Машинист
крана: 6р.-1
|
1,1
|
22
|
0,22
|
4,4
|
|
Монтаж ригелей массой до 2 т до 3 т
|
шт
|
10 20
|
Е4-1-6 табл.2, № 2 а,б №.3 а,б
|
Монтажник конструкций: 5р.-1;4р.-1;3р.-2;2р.-1; Машинист
крана: 6р.-1
|
1,4 1,9
|
14 38
|
0,28 0,38
|
2,8 7,6
|
|
Монтаж диафрагм жесткости S до 10 м2
|
шт
|
10
|
Е4-1-8 т2 №6аб
|
Монтажник конструкций: 5р.-1;4р.-1;3р.-1;2р.-1; Машинист
крана: 6р.-1
|
1,6
|
16
|
0,4
|
4
|
|
Монтаж плит перекрытия над подвалом S до 10 м2
|
шт
|
49
|
Е4-1-7 №3 а,б
|
Монтажник конструкций: 4р.-1;3р.-2;2р.-1; Машинист крана:
6р.-1
|
0,72
|
35,28
|
0,18
|
8,82
|
|
Монтаж Z-образных лестниц
|
шт
|
2
|
Е4-1-10 а2, б2
|
Монтажник 4р.-2 Монтажник 3р.-1 Монтажник 2р.-1 Машинист
6р.-1
|
2,2
|
4,4
|
0,55
|
1,1
|
|
Электросварка монтажных стыков Стык ригеля с колонной Стык
диафрагмы жесткости с кол. Стык плит перекрытия с ригелем Лестничные марши
Цокольные панели
|
10 м.ш.
|
36 15 39,2 1 12 24
|
Е22-1-1 №11б
|
Сварщик 4р.-1
|
7,7
|
277,2 115,5 301,84 7,7 92,4 184,8
|
|
|
|
Монтаж цокольных панелей
|
шт
|
24
|
Е4-1-8 таб.2 №9 а,б
|
Монтажник конструкций: 5р.-1;4р.-1;3р.-1;2р.-1; Машинист
крана: 6р.-1
|
1,4
|
33,6
|
0,35
|
8,4
|
|
Устройство подстилающего песчаного слоя под полы подвала
|
100 м2
|
7,29
|
Е19-36
|
Бетонщик 3р.-1
|
10,5
|
76,54
|
|
|
|
Устройство горизонтальной гидроизоляции под полы подвала (2
слоя)
|
100м2
|
14,58
|
Е11-40 т1а
|
Гидроизолировщик 4р.-1; 3р.-1: 2р.-1
|
6,7
|
97,69
|
|
|
|
Антикоррозийная защита монтажных стыков
|
10 стыков
|
29,9
|
Е4-1-22 №.1
|
Монтажник конструкций: 4р.-1; 2р.-1
|
0,64
|
19,14
|
|
|
|
Заливка швов между плитами перекрытия и покрытия
|
100м шва
|
4,538
|
Е4-1-26 №.3 б
|
Монтажник конструкций: 4р.-1;3р.-1
|
6,4
|
29,04
|
|
|
|
Заполнение вертикальных швов стеновых панелей упругими
прокладками
|
10 м шва
|
5,04
|
Е4-1-27 №9
|
Монтажник конструкций: 4р.-1;3р.-1
|
0,56
|
2,82
|
|
|
|
Теплоизоляция стыков
|
10 м шва
|
15,84
|
Е4-1-27 №2
|
Монтажник конструкций: 4р.-1;3р.-1
|
0,31
|
4,91
|
|
|
|
Герметизация горизонтальных швов стеновых панелей мастикой
|
10 м шва
|
15,84
|
Е4-1-27 №5
|
Монтажник конструкций: 4р.-1;3р.-1
|
1,3
|
20,6
|
|
|
|
Устройство бетонной подготовки под полы подвала
|
100 м2
|
7,29
|
Е19-38 №1а
|
Бетонщик 3р.-1 Бетонщик 2р.-1
|
7,5
|
54,67
|
|
|
|
Вертикальная гидроизоляция подвала
|
100 м2
|
2,268
|
Е11-39 таб.2 №7
|
Гидроизолировщик 4р.-1; 2р.-1
|
39
|
88,45
|
|
|
|
Обратная засыпка пазух бульдозером
|
100 м3
|
1,1115
|
Е2-1-34 №4б
|
Машинист 6р.-1
|
|
|
0,28
|
0,31
|
|
Обратная засыпка пазух вручную
|
1 м3
|
12,35
|
Е2-1-58 таб.2 №4б
|
Землекоп 2р.-1
|
0,57
|
7,04
|
|
|
∑=1922,35 ∑=136
. Расчет
экскаватора
В зависимости от объема разрабатываемого в котловане грунта, определяем
емкость ковша экскаватора.
Объем грунта в котловане , м3 - 834,5 м3
Емкость ковша экскаватора, м3 - 0,4 м3.
В зависимости от типа и вида грунтов, выбираем ковш стандартный с зубьями
- применяется в грунтах плотностью до 1750 кг/м3 (песок,супесь, суглинок,
растительный грунт, щебень).
Выбираем три типа экскаваторов (по ЕНиР 2-1):
) ЭО-3311г одноковшовый дизельный на гусеничном ходу, с оборудованием
обратная лопата;
2) Э-504 одноковшовый дизельный на гусеничном ходу, с оборудованием
обратная лопата;
Выбираем экскаватор имеющий наибольшую экономическую эффективность:
Смаш-смен
- стоимость машино-смены экскаватора(по прил табл.3)
Псм.выр.
- сменная выработка экскаватора, учитывающая разработку грунта навымет и с
погрузкой в транспортные средства, м3/смен:
Vk -объем грунта
котлована ( Vk= 834,5 м3)
-
суммарное число машино-смен экскаватора при работе навымет и с погрузкой в
транспортное средства.
;
Пэ
- эксплуатационная производительность экскаватора;
Проведем
расчет для 2 экскаваторов.
)
ЭО-3311г
)
Э-504
Определяем
удельные капиталовложения на разработку 1 м3 грунта для каждого из
экскаваторов:
Где
Соп- инвентарно-расчетная стоимость экскаватора (по таблице 3), руб;
Tгод
-нормативное число смен работы экскаватора в году. Ориентировочно для машины с
объемом ковша до 0,65 м3 принимаем равным 350 смен.
1) ЭО-3311г
2) Э-504
Определяем
приведенные затраты на разработку 1 м3 грунта:
П=С+ЕК
Где Е-нормативный коэффициент эффективности капитальных вложений, равный
0,15.
) ЭО-3311г
П = 63 + 0,08*0,15 = 63,1
руб;
) Э-504
П = 98 + 0,09*0,15 = 98,1 руб;
По наименьшим затратам выбираем экскаватор Case CX75SR (примерно
соответсвующий по ЕНиР 2-1 экскаватору ЭО-3311г )
Рис. 6
Характеристики Case CX75SR
Эксплуатационная массаRU7660 -8060 кг
ДвигательIsuzu CC-4JG1
Объем ковша 0,4мі
Максимальная глубина копания3750 -4550 мм
Максимальный радиус копания6100 -6900 мм
Максимальная высота выгрузки4850 -5550 мм
Минимальный радиус копания 2000 мм
Эксплуатационная мощность39.1 кВт
Рабочая скорость4.9 км/ч
Давление на грунт34 -36 кПа
Скорость поворота стрелы10 мин-1
Длина5920 -5970 мм
Ширина2320 мм
Высота2700 -2950 мм
8. Расчет крана
Рис. 7
Расстояние от уровня стоянки крана до верха стрелы:
Нк. = hо + hэ + hз + hст = 8+1+0,3+5=14,3(м)
hо
- превышение опоры
монтируемого элемента над уровнем стоянки крана, м.
hз
- запас по
высоте(не менее 0,5 м.)
hэ
- высота элемента
в монтируемом положении, м
hс - высота строповки, м.
По высоте стрелы:
- высота
подъема крюка;
- длина
полиспаста в стянутом положении.
Принимаем
длину полиспаста в стянутом положение приближенно 3м.
По
вылету стрелы:
e - половина
толщины стрелы (принимаем - 0,5 м);
с
-минимальный зазор между стрелой и монтируемым элементом или ранее
смонтированной конструкции (принимаем 1 м согласно СНиП по Т.Б.);
d - расстояние
от центра тяжести до приближенного к стреле крана края элемента, м (половина
длинны монтируемой плиты равная 3 м);
hп - высота полиспаста (приближенно принимаем = 3 м);
hc - высота
строповки (принимаем 5 м)
-
расстояние от стоянки крана до основания стрелы (принимаем 1,5 м);
a - расстояние
от оси поворота крана до основания крепления стрелы крана (принимаем 1,5).
По
длине стрелы:
Максимальная грузоподъёмность крана:
Qк
= qэ + qстроп
+ qполисп. = 10,6+0,044+0,15=10,79(т)
qэ - масса наиболее тяжелого
монтируемого элемента, т.
qстроп
- масса строп, т
qполисп.
- масса полиспаста,
т.
Таблица 7
Технико-экономическое
сравнение кранов
|
СКГ-30
|
КС-6471
|
|
1. Нормативная сменная производительность
|
|
Псм=Р/Пмаш.см Псм=470,78/136=3,46
|
Псм=Р/Пмаш.см Псм=470,78/136=3,46
|
|
2. Средняя зарплата рабочих в смену
|
|
ЗПср=ЗП/Тф
|
ЗПср=ЗП/Тф
|
|
3. Удельные капитальные вложения
|
|
Куд=Спр Ч tсм/ПсмЧТгод Куд=38600*8/3,46*3075=3,6
|
Куд=СпрЧtсм/ПсмЧТгод Куд=42300*8/3,46*2526=3,9
|
|
Се=(1,08ЧСмаш×см+1,5ЧСРЗП)/Псм Се=12,7
|
Се=(1,08ЧСмаш×см+1,5ЧСРЗП)/Псм Се=15,5
|
|
5. Удельные приведенные затраты на 1 т монтажа
|
|
Спр.уд.=Се+ЕпЧКуд Спр.уд=12,7+0,15*3,6=13,24
|
Спр.уд.=Се+ЕпЧКуд Спр.уд=15,5+0,15*3,9=16,1
|
Вывод: на основании технико-экономического сравнения принимаем наиболее
экономичный кран марки СКГ-30
монтаж здание конструкция трудозатрата
Рис. 8
9.
Расчет состава бригады
Таблица 8
Распределение трудоемкости по разрядам:
|
Работы
|
Общая трудоемкость
|
Разряды
|
|
|
2-й
|
3-й
|
4-й
|
5-й
|
6-й
|
|
Доработка грунта вручную
|
112,37
|
112,37
|
|
|
|
|
|
Планировка площадей и откосов
|
11,26
|
11,26
|
|
|
|
|
|
Разгрузка ж/б элементов
|
26,9
|
26,9
|
|
|
|
|
|
Прием бетонной и растворной смеси
|
1,39
|
1,39
|
|
|
|
|
|
Подача бетонной и растворной смеси
|
7,13
|
7,13
|
|
|
|
|
|
Монтаж фундаментов стаканного типа
|
34,56
|
11,52
|
11,52
|
11,52
|
|
|
|
Установка опалубки под монолитные фундаменты
|
19,1
|
9,55
|
|
9,55
|
|
|
|
Укладка арматуры
|
1,73
|
0,865
|
0,865
|
|
|
|
|
Укладка и уплотнение бетонной смеси
|
1,14
|
0,57
|
|
0,57
|
|
|
|
Уход за бетоном
|
0,004
|
0,004
|
|
|
|
|
|
Снятие опалубки
|
4,87
|
2,435
|
2,435
|
|
|
|
|
Монтаж колонн
|
140,4
|
28,08
|
56,16
|
28,08
|
28,08
|
|
|
Заделка стыков колонн в фундаменте
|
29,16
|
|
14,58
|
14,58
|
|
|
|
Монтаж фундаментных балок
|
22
|
4,4
|
8,8
|
4,4
|
4,4
|
|
|
Монтаж ригелей
|
52
|
10,4
|
20,8
|
10,4
|
10,4
|
|
|
Монтаж диафрагм жесткости
|
16
|
3,2
|
6,4
|
3,2
|
3,2
|
|
|
Монтаж плит перекрытия
|
35,28
|
8,82
|
17,64
|
8,82
|
|
|
|
Монтаж лестниц
|
4,4
|
1,1
|
1,1
|
2,2
|
|
|
|
Электросварка монтажных стыков
|
979,44
|
|
|
979,44
|
|
|
|
Монтаж цокольных панелей
|
33,6
|
8,4
|
8,4
|
8,4
|
8,4
|
|
|
Устройство подстилающего песчаного слоя
|
76,54
|
|
76,54
|
|
|
|
|
Устройство горизонтальной гидроизоляции
|
97,69
|
32,56
|
32,56
|
32,56
|
|
|
|
Антикоррозийная защита монтажных стыков
|
19,14
|
9,57
|
|
9,57
|
|
|
|
Заливка швов между плитами перекрытия
|
29,04
|
|
14,52
|
14,52
|
|
|
|
Заполнение вертикальных швов стеновых панелей упругими
прокладками
|
2,82
|
|
1,41
|
1,41
|
|
|
|
Теплоизоляция стыков
|
4,91
|
|
2,45
|
2,45
|
|
|
|
Герметизация горизонтальных швов стеновых панелей мастикой
|
20,6
|
|
10,3
|
10,3
|
|
|
|
Устройство бетонной подготовки под полы подвала
|
54,67
|
27,335
|
27,335
|
|
|
|
|
Вертикальная гидроизоляция подвала
|
88,45
|
44,225
|
|
44,225
|
|
|
|
Обратная засыпка пазух вручную
|
7,04
|
7,04
|
|
|
|
|
|
Итого:
|
1933,6
|
370
|
313,8
|
1197
|
54,48
|
-
|
|
Работа строительных машин- машинист
|
136
|
|
|
|
|
136
|
Таблица 9
Выбор состава бригады для земляных работ
|
Виды работ
|
Состав звена
|
|
Доработка грунта вручную
|
Землекоп 2р-1
|
|
Планировка площ. откосов и верха полотна насыпей и выемок
|
Землекоп 2р-1
|
|
Устройство песчаной подсыпки под фундаменты
|
Землекоп 2р-1
|
|
Обратная засыпка пазух вручную
|
Землекоп 2р-1
|
Итого: 4 человека
,9/8=21,9 ч-дн.
,9/4=5,5 дн
Таблица 10
Расчет состава бригады для монтажных работ
|
Профессия
|
Разряд
|
Затраты труда
|
Затр. Труда с выполнением нормы на 103%
|
Кол-во человек
|
|
|
чел.час
|
чел.дн
|
|
расчетное
|
принятое
|
|
Монтажник
|
5р
|
54,48
|
6,81
|
6,61
|
0,73
|
1
|
|
4р
|
126,7
|
15,8
|
15,37
|
1,7
|
2
|
|
3р
|
174,08
|
21,76
|
21,12
|
2,35
|
2
|
|
2р
|
85,49
|
10,7
|
10,37
|
1,15
|
1
|
|
Арматурщик
|
3р
|
0,865
|
0,1
|
0,099
|
0,011
|
-
|
|
2р
|
0,865
|
0,1
|
0,099
|
0,011
|
-
|
|
Плотник
|
4р
|
9,55
|
1,2
|
1,15
|
0,13
|
-
|
|
3р
|
2,435
|
0,3
|
0,295
|
0,03
|
-
|
|
2р
|
12
|
1,5
|
1,45
|
0,16
|
-
|
|
Гидроизолировщик
|
4р
|
76,79
|
9,6
|
9,3
|
1,03
|
1
|
|
3р
|
32,56
|
4,07
|
3,95
|
0,44
|
-
|
|
2р
|
76,79
|
9,6
|
9,3
|
1,03
|
1
|
|
Электросварщик
|
4р
|
979,44
|
122,43
|
118,8
|
13,2
|
2
|
|
Бетонщик
|
2р
|
29,3
|
3,7
|
3,55
|
0,4
|
-
|
|
3р
|
104
|
13
|
12,6
|
1,4
|
1
|
|
4р
|
0,57
|
0,07
|
0,069
|
0,007
|
-
|
|
Такелажник
|
2р
|
34,03
|
4,25
|
4,13
|
0,46
|
1
|
|
Итого
|
|
1930,6
|
241,3
|
234,1
|
25,9
|
22
|
|
Машинисты строительных машин
|
6р
|
136
|
17
|
16,5
|
1,83
|
2
|
Таблица 11
Средний разряд работы
|
Разряд
|
Расчетное количество рабочих
|
Произведение разряда на число рабочих
|
|
5
|
0,73
|
3,65
|
|
4
|
16,07
|
64,28
|
|
3
|
4,23
|
12,69
|
|
2
|
3,21
|
6,42
|
|
Итого
|
24,87
|
87,04
|
Таблица 12
Средний разряд рабочих
|
РазрядПринятое количество рабочихПроизведение разряда на
число рабочих
|
|
|
|
5
|
1
|
5
|
|
4
|
5
|
20
|
|
3
|
3
|
9
|
|
2
|
3
|
6
|
|
Итого
|
12
|
40
|
Средний разряд работы = 87,04/24,87 = 3.50
Средний разряд рабочих = 40/12 = 3.33
На заданные виды работ принимаем состав бригады 12 человек.
. Технология
и организация строительных работ
Установка колонн в стаканы фундаментов
Условия и подготовка выполнения процесса
До начала работ необходимо: закончить устройство фундаментов под каркас
здания; инструментально проверить положение фундаментов в плане; вынести на
фундаменты основные разбивочные оси и отметки; принять меры к предотвращению
засорения стаканов фундаментов грунтом и строительным мусором; засыпать пазухи
фундаментов; складировать колонны на приобъектном складе (или доставлять их в
соответствии с почасовым графиком монтажа); подготовить места приемки раствора
для выравнивания дна стаканов фундаментов и замоноличивания стыков; доставить в
зону монтажа приспособления, инвентарь и разложить их на рабочем месте;
установить рамно-шарнирные индикаторы на верхних обрезах фундаментов и выверить
их по базовым осям.
Инструменты, приспособления и инвентарь
Строп двухветвевой, Ящик стальной для раствора, Лом монтажный, Щетка
стальная, Приспособление для проверки вертикальности колонн, Шаблон для
разметки колонн,
Технология процесса и организация труда
Операции по установке колонны выполняют в следующем порядке: подготовляют
колонну и фундаменты; стропят и перемещают колонну к месту установки;
устанавливают в рабочее положение поворотно-выдвижную люльку РШИ; устанавливают
колонну в стакан фундамента; временно закрепляют и выверяют ее положение при
помощи РШИ; расстроповывают колонну.
После установки колонн каждой ячейки и последующей инструментальной
проверки их положения звено бетонщиков замоноличивает колонны в фундаментах.
Подготовка колонны к установке
,5 мин; шаблон для разметки колонн, метр, щетка, кувалда
Монтажник осматривает колонну, проверяет наличие и правильность
расположения закладных деталей, а также основные размеры колонны. С помощью
кувалды и стальной щетки он очищает закладные детали и оголовок колонны от
наплывов бетона, грязи, наледи.
Затем последовательно прикладывает шаблон на одном уровне к углам
колонны, прижимает его створки к граням колонны и графитовым стержнем по
рабочей грани створки шаблона наносит на колонну риску. Прикладывая шаблон к
другой грани колонны, монтажник наносит вторую риску. На другом конце колонны
он выполняет аналогичные операции, после чего проводит между рисками сплошную
линию, являющуюся фактической осью колонны
Подъем и перемещение колонны к месту установки
,5 мин; строп
По команде монтажника машинист крана переводит колонну в вертикальное
положение и приподнимает ее на 20 - 30 см от земли. Убедившись в надежности
строповки, монтажник подает команду машинисту крана переместить колонну в зону
монтажа. Монтажник центрирует колонну над хомутом РШИ.
Подготовка фундамента к установке колонны
,5 мин.; ящик с раствором, ковш, кельма, лопата
Монтажники снимают с фундамента деревянный щит (крышку) и при
необходимости лопатой и кельмой очищают дно стакана от грунта и мусора.
Монтажник восстанавливает риски и отметку дна стакана фундамента. Монтажник
лопатой укладывает раствор на дно стакана, а монтажник с кельмой разравнивает и
заглаживает его
Установка колонны в стакан фундамента
мин; строп
Монтажник, стоя на верхней площадке РШИ, принимает и наводит колонну на
хомут. Машинист крана плавно опускает колонну, а монтажник, находящийся в
поворотно-выдвижной люльке, удерживает ее от раскачивания. Монтажник, стоя на
фундаменте, принимает колонну, ориентирует над стаканом фундамента и подает
команду машинисту крана опустить ее
Временное закрепление колонны хомутом
мин; строп, лом, приспособление для проверки вертикальности колонны
Монтажники заводят колонну в угловой упор корпуса хомута, охватывают ее
прижимным тросом, конец которого закрепляют на корпусе хомута. Затем вращением
штурвала натяжного механизма прижимают колонну к двум граням хомута.
Равномерное притяжение колонны обеспечивается установленной на хомуте скобой,
отклоняющей трос.
Монтажник прикладывает приспособление для проверки вертикальности к грани
колонны так, чтобы оно опиралось своими внутренними упорами на две плоскости, и
по уровням следит одновременно за положением двух плоскостей колонны. Монтажник
по команде монтажника ломом рихтует низ колонны до тех пор, пока она не займет
строго вертикальное положение
Расстроповка колонны; 1,5 мин; строп
После установки и закрепления колонны машинист крана ослабляет натяжение
ветвей стропа, а монтажник, стоя на верхней площадке РШИ, расстроповывает
колонну и подает команду машинисту крана поднять строп
Монтаж ригелей
Схема организации рабочего места и порядок выполнения работ
До начала работ необходимо закончить монтаж конструкций, расположенных
ниже уровня ригеля. Ригели стропуют двухветвевым стропом. При установке и
выверке ригеля монтажники располагаются на площадке группового кондуктора,
применяемого при установке колонн. В состав подготовительных работ входит
нанесение осевых рисок на верхнюю поверхность ригеля у обоих торцов и на внешней
плоскости колонн. Устанавливая ригель на консоль, монтажники ориентируются на
эти риски. Для временного закрепления ригеля и его выверки служат кондукторы,
устанавливаемые на колонны.
Для демонтажа ригеля монтажники его стропуют, снимают кондукторы, поднимают
и перемещают ригель в зону складирования, где рабочий, выполняющий такелажные
работы, принимает его и укладывает на подкладки.
Допускаемое смещение осей ригелей относительно осей опорных конструкций 5
мм.
. Рабочий, выполняющий такелажные работы подходит к ригелю, лежащему в
зоне складирования, проверяет соответствие его маркировки проектной, наличие
закладных деталей, чистоту поверхности.
. При необходимости, используя скарпель и молоток, срубает наплывы
бетона, а с помощью металлической щетки очищает от грязи, снега и наледи.
. Ломом проверяет прочность монтажных петель.
. Используя стальной метр 3, делит верхнюю плоскость ригеля 1 у его
торцов пополам, а карандашом 2 наносит осевые риски.
. Дает машинисту крана сигнал подать стропы к ригелю.
. Заводит крюки стропа в петли конструкции и сигнализирует машинисту
крана о необходимости натянуть стропы.
. Проверив надежность зацепки, отходит в безопасную зону и дает команду
машинисту крана поднять сборный элемент на высоту 200...300 мм.
. Подходит к поднятому ригелю, проверяет надежность строповки и разрешает
машинисту крана подать его в зону монтажа.
Подготовка места установки ригеля:
. Рабочий, выполняющий монтажные работы, старший в звене поднимается на
площадку группового кондуктора 5, а рабочий, выполняющий монтажные работы,
остается внизу и подает первому инструмент, приспособления и инвентарь.
Рабочий, выполняющий монтажные работы, старший в звене раскладывает оснащение в
соответствии со схемой организации рабочего места.
. Рабочий, выполняющий монтажные работы, поднимается на площадку
группового кондуктора 5.
. Рабочий, выполняющий монтажные работы, скарпелем и молотком очищает
опорную часть колонны от наплывов бетона, а металлической щеткой - очищает от
грязи, наледи и снега.
. Рабочий, выполняющий монтажные работы, старший в звене, пользуясь
металлическим метром 2 и карандашом, делит боковые грани колонн со стороны
установки ригелей пополам и наносит осевые риски.
Выверка ригеля:
. Рабочий, выполняющий монтажные работы, старший в звене дает сигнал машинисту
крана подать ригель в зону установки.
. Рабочий, выполняющий монтажные работы, старший в звене и рабочий,
выполняющий монтажные работы, принимают ригель 3 на расстоянии 300 мм от
опорных консолей колонн 4 и ориентируют его на место укладки (рис. 5).
. Рабочий, выполняющий монтажные работы, старший в звене дает сигнал
машинисту крана плавно опустить ригель на консоли колонн. В момент опускания
рабочий, выполняющий монтажные работы, старший в звене и рабочий, выполняющий
монтажные работы, находясь у торцов ригеля, направляют его так, чтобы риски на
торцах ригеля и на колоннах совместились.
. Рабочий, выполняющий монтажные работы, старший в звене и рабочий,
выполняющий монтажные работы, устанавливают на обе колонны по кондуктору 4 для
временного крепления ригеля (рис.6).
. Рабочий, выполняющий монтажные работы, старший в звене и рабочий,
выполняющий монтажные работы, одновременно крепят ригель к колоннам стяжными
винтами кондуктора.
. Рабочий, выполняющий монтажные работы, старший в звене проверяет надежность
крепления ригеля и дает сигнал машинисту крана ослабить стропы.
. Рабочий, выполняющий монтажные работы, старший в звене и рабочий,
выполняющий монтажные работы, проводят расстроповку установленной конструкции,
а когда по команде рабочего, выполняющего монтажные работы, старшего в звене
поднимают стропы, рабочий, выполняющий монтажные работы, удерживает их от
раскачивания и зацепления за выступы и монтажные петли.
. Рабочий, выполняющий монтажные работы, старший в звене и рабочий,
выполняющий монтажные работы, вращением упорных винтов приводят ригель в
проектное положение, когда риски на колонне и ригеле полностью совпадают.
Особенность монтажа ригеля состоит в том, что только один прием
монтажники выполняют совместно - это ориентирование и установка ригеля на
консоль колонны. Усложняются условия работы тем, что оба монтажника находятся
на площадке кондуктора.
Монтаж плит покрытия
Указания по производству работ
Монтаж плит перекрытий разрешается производить только после проектного
закрепления колонн, ригелей и диафрагм жесткости и достижения бетоном
замоноличенных стыков прочности, указанной в ППР, а также после приемки опорных
элементов, включающей геодезическую проверку соответствия их планового и
высотного положения проектному, с составлением исполнительной схемы.
Перед подъемом каждой плиты необходимо проверить соответствие ее
проектной марке, очистить опорные поверхности плиты, колонн, ригелей и диафрагм
жесткости от мусора, грязи, снега и наледи.
В первую очередь должны устанавливаться и закрепляться с помощью сварки
межколонные (связевые) плиты, после чего пристеночные, а затем рядовые плиты.
Укладку плит в направлении перекрываемого пролета надлежит выполнять с
соблюдением установленных проектом размеров глубины опирания их на опорные
конструкции или зазоров между сопрягаемыми элементами. Установку плит в
поперечном направлении перекрываемого пролета следует выполнять по разметке,
определяющей их проектное положение.
Плиты перекрытий необходимо укладывать на слой раствора толщиной не более
20 мм, совмещая поверхности смежных плит вдоль шва со стороны потолка.
Замоноличивание стыков следует выполнять после проверки правильности
установки плит, приемки сварных соединений элементов в узлах сопряжений и
выполнения антикоррозионного покрытия сварных соединений и поврежденных
участков покрытия закладных изделий. Бетонные смеси, применяемые для
замоноличивания стыков, должны отвечать требованиям проекта. Наибольший размер
зерен крупного заполнителя в бетонной смеси не должен превышать 1/3 наименьшего
размера сечения стыка.
Монтаж первой плиты покрытия (связевой) выполняется в
следующей технологической последовательности:
1. Установить монтажные вышки около колонн.
. Разметить и подготовить место установки плиты.
. Указать крановщику место установки плиты и отойти на безопасное
расстояние.
. Подать сигнал опустить плиту над местом установки, разворачивая и
удерживая ее от раскачивания баграми.
. Подняться на вышку, навести элемент на место установки и подать сигнал
опустить его.
. Проверить положение площадки опирания и произвести расстроповку.
. Отойти на безопасное расстояние и подать сигнал крановщику поднять
строп.
Подготовка панели к монтажу, исполнитель рабочий, выполняющий
такелажные работы
1. Рабочий, выполняющий такелажные работы подходит к панели, проверяет
исправность монтажных петель, чистоту поверхности.
. При необходимости скарпелем и молотком очищает элемент от наплывов
бетона, а металлической щеткой - от грязи и наледи.
. Дает сигнал машинисту крана подать строп.
. Поочередно зацепляет крюки стропа за монтажные петли и дает машинисту
крана команду натянуть ветви стропа.
. Проверяет надежность зацепки, отходит в безопасное место и дает команду
машинисту крана приподнять панель на высоту 200 ... 300 мм.
. Подходит к панели, проверяет надежность строповки и дает команду
переместить конструкцию в зону монтажа.
Подготовка места установки панели
- растворная постель,
- кельма,
- рабочий, выполняющий монтажные работы, старший в звене,
- смонтированная панель,
- ригель.
. Рабочий, выполняющий монтажные работы очищает скарпелем и молотком
место укладки плиты от наплывов бетона и льда, а металлической щеткой от грязи.
. Рабочий, выполняющий монтажные работы, старший в звене набирает лопатой
из ящика-контейнера раствор и раскладывает на полках ригеля, а затем кельмой 2
разравнивает ровным слоем 1.
Укладка и выверка панели, исполнители: рабочий, выполняющий монтажные
работы (старший в звене) и рабочий, выполняющий монтажные работы.
Подготовка места установки панели
Подготовка места установки панели, исполнители рабочий, выполняющий
монтажные работы, старший в звене и рабочий, выполняющий монтажные работы
. Рабочий, выполняющий монтажные работы, старший в звене сигнализирует
машинисту крана о возможности подачи панели.
. Рабочий, выполняющий монтажные работы, старший в звене и рабочий,
выполняющий монтажные работы, находясь на ранее уложенной панели, принимают
поданную панель 3 на высоте 200 ... 300 мм от перекрытия и ориентируют на место
укладки.
. Рабочий, выполняющий монтажные работы, старший в звене дает команду
машинисту крана плавно опустить панель.
. Рабочий, выполняющий монтажные работы, старший в звене и рабочий,
выполняющий монтажные работы удерживают панель по время опускания.
. Рабочий, выполняющий монтажные работы, старший в звене проверяет
уровнем правильность укладки панели по высоте, устраняя совместно с рабочим,
выполняющим монтажные работы, замеченные отклонения путем изменения толщины
растворной постели.
. Рабочий, выполняющий монтажные работы, старший в звене проверяет
правильность установки панели 2 в плане и при необходимости совместно с
рабочим, выполняющим монтажные работы, монтажными ломами 3 смещают ее.
. Рабочий, выполняющий монтажные работы, старший в звене подаст машинисту
крана сигнал ослабить ветви стропа 4.
. Рабочий, выполняющий монтажные работы, старший в звене и рабочий,
выполняющий монтажные работы выводят крюки стропа из монтажных петель панели, а
затем, когда по команде рабочего, выполняющего монтажные работы, старшего в
звене начнет поднимать стропы, удерживает их.
Не допускается:
применение не предусмотренных проектом подкладок для выравнивания
укладываемых элементов по отметкам без согласования с проектной организацией;
применение раствора, процесс схватывания которого уже начался а также
восстановление его пластичности путем добавления воды.
Монтаж наружных стеновых панелей
Указания по производству работ
Панели стен монтируют участками между колоннами на всю высоту здания
по-панельно. Монтаж выполняет звено из четырех монтажников. Два монтажника
находятся на земле и выполняют все подготовительные работы, другие два
монтажника устанавливают и закрепляют панели. При возможности проезда внутри
здания в качестве рабочих мест монтажников используются автогидроподъемники. В
случае невозможности проезда внутри здания в качестве рабочих мест могут быть
использованы самоподъемные люльки или выдвижная монтажная площадка,
установленная на башне крана (смотри Рис.3а).
Установку панелей наружных стен следует производить, опирая их на
выверенные относительно монтажного горизонта маяки - деревянные дощечки,
толщина которых может меняться в зависимости от результатов нивелирной съемки
монтажного горизонта, но в среднем должна составлять 12 мм.
Под каждую панель укладывают два маяка на расстоянии 15…20 см от боковых
граней ближе к наружной плоскости стены здания. Уплотняющие прокладки в
вертикальных и горизонтальных стыках панелей следует укладывать до установки
панелей. Все накладки горизонтальных и вертикальных стыков, а также угловые
элементы панелей должны быть поставлены на герметик для исключения попадания
влаги внутрь стыка. На верхнюю грань нижележащей панели на тонкий слой мастики
“изол” укладывают пористый гернитовый шнур. Непосредственно перед установкой
панели поверхность шнура покрывают слоем мастики, расстилают цементный раствор
по всей опорной плоскости панели слоем на 3…5 см выше уровня маяков. Постель
раствора не должна доходить до обреза стены на 2…3 см для того, чтобы раствор
не выдавливался наружу и не загрязнял фасад здания. По окончанию монтажа
панелей с наружной стороны всех стыков наносится слой герметик-пасты. Для
защиты пасты от внешних атмосферных воздействий после ее высыхания по верху
наносится защитный слой из кремнийорганической эмали.
Строповку пакетов панелей допускается производить только за обвязки
вертикально расположенными стропами. Строповку панелей на монтаже следует
проводить только с помощью гибких тканевых фалов либо другими способами, в том
числе с помощью специальных траверс, исключающими обмятие металлических кромок
панелей и повреждение лакокрасочного слоя. По окончанию строповки звеньевой
подает команду машинисту крана поднять панель на 20…30 см. После проверки
надежности строповки панель перемещают к месту монтажа. Положение панели в
пространстве при ее подъеме монтажники регулируют с помощью оттяжек. На высоте
15…20 см от монтажной отметки монтажники принимают панель и направляют ее на
место установки (смотри Рис. б).
Панели устанавливают, начиная с “маячных” угловых, по которым выверяют
промежуточные панели ряда. Установив панель на место, при натянутых стропах
подправляют ее положение монтажными ломиками. Осуществив выверку панели, ее
раскрепляют двумя подкосами со стяжными муфтами, которые монтажники закрепляют
за петли плит перекрытий и доводят панель до вертикального положения с помощью
стяжных муфт. Длинный подкос соединяет монтажную петлю, плиты перекрытия с
верхом панели, а короткий - с монтажной петлей в панели (смотри Рис.4). Далее
освобождают петли стропов, уплотняют и выравнивают горизонтальный шов панели.
После того как панель будет установлена в проектное положение, сварщик
закрепляет ее, сваривая закладные детали панели и конструкции каркаса.
При установке панели на растворную постель необходимо обеспечить
некоторый первоначальный наклон ее вовнутрь за счет укладки маячных прокладок
ближе к наружной грани стены. При переводе панели в вертикальное положение
путем изменения длины подкосов раствор под ее наружной гранью будет
уплотняться. Если при установке панели она будет наклонена наружу, что
недопустимо, то при переводе ее в вертикальное положение между панелью и
постелью образуется щель, которую очень сложно заметить и зачеканить снаружи.
Устанавливают панели по риске, фиксирующей положение вертикального шва,
наружную грань панели - по линии обреза стены и по линии, определяющей
внутреннюю плоскость стены. Точность установки панели по вертикали монтажники
проверяют рейкой-отвесом по двум граням: боковой и открытой торцевой, а по
горизонтали - уровнем. При выверке положения панели применяют специальные
шаблоны (смотри Рис.5).
По высоте упорную грань шаблона 4 совмещают с рисками высотных отметок,
нанесенных на колонну. Точность установки панели в поперечном направлении
выявляют, совмещая их внутреннюю грань с упорной гранью шаблона 8, а в
продольном - по установочным рискам.
11. ТРЕБОВАНИЯ К КАЧЕСТВУ И ПРИЕМКЕ РАБОТ
Контроль и оценку качества работ при монтаже панелей выполняют в
соответствии с требованиями нормативных документов:
СНиП 3.01.01-85*. Организация строительного производства.
СНиП 3.03.01-87. Несущие и ограждающие конструкции.
ГОСТ 26433.2-94. Правила выполнения измерений параметров зданий и
сооружений.
С целью обеспечения необходимого качества монтажа панелей
монтажно-сборочные работы должны подвергаться контролю на всех стадиях их
выполнения. Производственный контроль подразделяется на входной, операционный
(технологический), инспекционный и приемочный. Контроль качества выполняемых
работ должен осуществляться специалистами или специальными службами,
оснащенными техническими средствами, обеспечивающими необходимую достоверность
и полноту контроля, и возлагается на руководителя производственного
подразделения (прораба, мастера), выполняющего монтажные работы.
Панели, поступающие на объект, должны отвечать требованиям
соответствующих стандартов, технических условий на их изготовление и рабочих
чертежей.
До проведения монтажных работ панели, соединительные детали, арматура и
средства крепления, поступившие на объект, должны быть подвергнуты входному
контролю. Количество изделий и материалов, подлежащих входному контролю, должно
соответствовать нормам, приведенным в технических условиях и стандартах.
Входной контроль проводится с целью выявления отклонений от этих
требований. Входной контроль поступающих панелей осуществляется внешним
осмотром и путем проверки их основных геометрических размеров, наличия
закладных деталей, отсутствия повреждений лицевой поверхности панелей.
Необходимо также удостовериться, что небетонируемые стальные закладные детали
имеют защитное антикоррозийное покрытие. Закладные детали, монтажные петли и
строповочные отверстия должны быть очищены от бетона. Каждое изделие должно
иметь маркировку, выполненную несмываемой краской.
Панели, соединительные детали, а также средства крепления, поступившие на
объект, должны иметь сопроводительный документ (паспорт), в котором указываются
наименование конструкции, ее марка, масса, дата изготовления. Паспорт является
документом, подтверждающим соответствие конструкций рабочим чертежам,
действующим ГОСТам или ТУ.
Результаты входного контроля оформляются Актом и заносятся в Журнал учета
входного контроля материалов и конструкций.
В процессе монтажа необходимо проводить операционный контроль качества
работ. Это позволит своевременно выявить дефекты и принять меры по их
устранению и предупреждению. Контроль проводится под руководством мастера,
прораба в соответствии со Схемой операционного контроля качества. Не
допускается применение не предусмотренных проектом подкладок для выравнивания
монтируемых элементов по отметкам без согласования с проектной организацией.
При операционном (технологическом) контроле надлежит проверять
соответствие выполнения основных производственных операций по монтажу
требованиям, установленным строительными нормами и правилами, рабочим проектом
и нормативными документами.
Укрупнительную сборку стен из легких панелей в карты необходимо выполнять
на стендах в зоне действия основного монтажного крана. Предельные отклонения
размеров “карт” при укрупнительной сборке указывают в ППР. При отсутствии
специальных указаний предельные отклонения размеров “карт” не должны превышать
по длине и ширине ±6 мм, разность размеров диагоналей - 15 мм.
Результаты операционного контроля должны быть зарегистрированы в Журнале
работ по монтажу строительных конструкций.
По окончанию монтажа панелей производится приемочный контроль выполненных
работ, при котором проверяющим представляется следующая документация:
журнал работ по монтажу строительных конструкций;
акты освидетельствования скрытых работ;
акты промежуточной приемки смонтированных панелей;
исполнительные схемы инструментальной проверки смонтированных панелей;
документы о контроле качества сварных соединений;
паспорта на панели.
При инспекционном контроле надлежит проверять качество монтажных работ
выборочно по усмотрению заказчика или генерального подрядчика с целью проверки
эффективности ранее проведенного производственного контроля. Этот вид контроля
может быть проведен на любой стадии монтажных работ.
Результаты контроля качества, осуществляемого техническим надзором
заказчика, авторским надзором, инспекционным контролем и замечания лиц,
контролирующих производство и качество работ, должны быть занесены в Журнал
работ по монтажу строительных конструкций (Рекомендуемая форма приведена в
Приложении 1*, СНиП 3.03.01-87) и фиксируются также в Общем журнале работ. Вся
приемо-сдаточная документация должна соответствовать требованиям СНиП
3.01.01-85*.
Качество производства работ обеспечивается выполнением требований к
соблюдению необходимой технологической последовательности при выполнении
взаимосвязанных работ и техническим контролем за ходом работ, изложенным в
Проекте организации строительства и Проекте производства работ, а также в Схеме
операционного контроля качества работ.
Контроль качества монтажа ведут с момента поступления конструкций на
строительную площадку и заканчивают при сдаче объекта в эксплуатацию.
. СХЕМА ОПЕРАЦИОННОГО КОНТРОЛЯ КАЧЕСТВА
Монтаж сборных железобетонных колонн многоэтажных зданий
Таблица 13
Состав операций и средства контроля
|
Этапы работ
|
Контролируемые операции
|
Контроль (метод, объем)
|
Документация
|
|
Подготовительные работы
|
Проверить: - наличие документа о качестве; - качество
поверхностей, точность геометрических параметров, внешний вид колонн; -
очистку опорных поверхностей колонн и фундамента от мусора, грязи, снега и
наледи; - наличие акта приемки выполненных работ; - наличие разметки,
определяющей проектное положение колонн.
|
Визуальный Визуальный, измерительный, каждый элемент
Визуальный То же Технический осмотр, измерительный, каждый элемент
|
Паспорта, (сертификаты),общий журнал работ, акт приемки
ранее выполненных работ
|
|
Монтаж колонн
|
Контролировать: - установку колонн в проектное положение
(отклонение от совмещения рисок геометрических осей в нижнем и верхнем
сечениях установленных колонн с рисками разбивочных осей, разность отметок
верха колонн); - надежность временного крепления; - качество замоноличивания
стыков колонн.
|
Измерительный, каждый элемент Технический осмотр
Визуальный, лабораторный
|
Общий журнал работ
|
|
Приемка выполненных работ
|
Проверить: - фактическое положение смонтированных колонн; -
соответствие закрепления колонн проектному.
|
Измерительный, каждый элемент Технический осмотр
|
Акт освидетельствования скрытых работ, геодезическая
исполнительная схема
|
|
Контрольно-измерительный инструмент: отвес, рулетка
металлическая, линейка металлическая, уровень, правило, нивелир, теодолит.
|
|
Операционный контроль осуществляют: мастер(прораб),
геодезист - в процессе работ. Приемочный контроль осуществляют: работники
службы качества, мастер (прораб), представители технадзора заказчика
|
Схема операционного контроля качества монтажа железобетонных
ригелей
Таблица 14
Состав операций и средства контроля
|
Этапы работ
|
Контролируемые операции
|
Контроль (метод, объем)
|
Документация
|
|
Подготови-тельные работы
|
Проверить: - наличие документа о качестве; - качество
поверхностей, точность геометрических параметров, внешний вид конструкций; -
очистку опорных поверхностей конструкций от мусора, грязи, снега и наледи; -
наличие акта освидетельствования ранее выполненных работ; - наличие разметки,
определяющей проектное положение конструкций на опорах.
|
Визуальный Визуальный, измерительный, каждый элемент
Визуальный То же Измерительный, каждый элемент
|
Паспорта, (сертификаты), общий журнал работ, акт
освидетельствова-ния скрытых работ
|
|
Монтаж конструкий
|
Контролировать: - установку конструкций в проектное
положение (предельные отклонения в размерах площадок опирания конструкций,
отклонения от совмещения рисок продольных осей); - надежность временного
крепления; - качество стыков.
|
Измерительный, каждый элемент Технический осмотр, лабораторный
То же
|
Общий журнал работ
|
|
Приемка выполнен- ных работ
|
Проверить: - фактическое положение смонтированных
конструкций; - соответствие закрепления конструкций проектным
|
Измерительный, каждый элемент Технический осмотр,
измерительный
|
Исполнительная геодезическая схема, акт приемки выполненных
работ
|
|
Контрольно-измерительный инструмент: рулетка, линейка
металлическая, нивелир.
|
|
Операционный контроль осуществляют: мастер (прораб),
геодезист - в процессе работ. Приемочный контроль осуществляют: работники
службы качества, мастер (прораб), представители технадзора заказчика.
|
Схема операционного контроля качества монтажа железобетонных
диафрагм жесткости
Таблица 15
Состав операций и средства контроля
|
Контролируемые операции
|
Состав и средства контроля
|
Документация
|
|
Подготовительные работы
|
Проверить: - наличие ППР, технологических карт и схем
операционного контроля качества (СОКК); - завершение и надлежащее оформление
предшествующих работ по монтажу колонн (наличие актов освидетельствования
ранее выполненных работ, геодезических исполнительных схем и другой
приемо-сдаточной документации); - наличие паспортов и полноту содержащихся в
них данных на поступившие на строительную площадку диафрагмы, соответствие их
требованиям проекта, маркировку диафрагм и наличие штампа ОТК; Документы о
качестве - внешним осмотром отсутствие недопустимых дефектов бетонных и
опорных поверхностей диафрагм; очистку опорных поверхностей диафрагм и колонн
от мусора, грязи, снега и наледи, разметку опорных поверхностей, определяющую
проектное положение ригелей на опорах. Монтаж железобетонных диафрагм
жесткости
|
ППР, технологические карты и СОКК Акт приемки, акты
освидетельствования скрытых работ, исполнительные схемы Документы о качестве
Общий журнал работ
|
|
Монтаж железобетонных диафрагм жесткости
|
Контролировать: - соблюдение заданной ППР технологии
монтажа диафрагм; - точность установки диафрагм в проектное положение; -
качество заделки стыков, качество сварочных и антикоррозионных работ.
|
Общий журнал работ Исполнительные схемы
|
|
Приемка
|
Проверить: - соответствие фактического положения
смонтированных диафрагм требованиям проекта и нормативных документов; -
соответствие качества сварочных и антикоррозионных работ, а также работ по
замоноличиванию стыков требованиям проекта и нормативных документов; -
составление и надлежащее оформление исполнительной документации. ВХОДНОЙ И
ОПЕРАЦИОННЫЙ КОНТРОЛЬ осуществляют: мастер (прораб), лаборант (инженер),
геодезист - в процессе производства работ ПРИЕМОЧНЫЙ КОНТРОЛЬ ОСУЩЕСТВЛЯЮТ:
прораб (мастер), геодезист, представители технадзора заказчика КИП - линейка
и рулетка металлические, нивелир, теодолит и другие геодезические и
лабораторные приборы и инструмент
|
Общий журнал работ Акт приемки, акты освидетельствования
скрытых работ, исполнительные схемы
|
Схема операционного контроля качества монтажа сборных лестниц
из крупноразмерных железобетонных элементов
Таблица 16
Состав операций и средства контроля
|
Этапы работ
|
Контролируемые операции
|
Контроль (метод, объем)
|
Документация
|
|
Подготовительные работы
|
Проверить: - наличие документа о качестве; - качество
поверхности, точность геометрических параметров, внешний вид маршей и
площадок; - очистку опорных поверхностей ранее смонтированных конструкций и
поднимаемых элементов лестниц от мусора, грязи, снега и наледи; - наличие
акта освидетельствования ранее выполненных скрытых работ; - наличие разметки,
определяющей проектное положение лестниц и площадок на опорах.
|
Визуальный Визуальный, измерительный, каждый элемент
Визуальный То же Технический осмотр
|
Паспорта (сертификаты), общий журнал работ, акт
освидетельствования скрытых работ, исполнительная геодезическая схема
|
|
Монтаж лестничных маршей и площадок
|
Контролировать: - установку элементов в проектное положение
(отклонения в размерах площадок опирания, от горизонтали и отметок и т.д.); -
качество выполнения сварочных работ.
|
Измерительный, каждый элемент Визуальный, измерительный
|
Общий журнал работ, журнал сварочных работ
|
|
Приемка выполненных работ
|
Проверить: - фактическое положение смонтированных маршей и
площадок (отклонение от разметки, определяющей проектное положение маршей и
площадок на опорах); - выполнение требований проекта и нормативных документов
к качеству сварочных соединений и антикоррозионных покрытий
|
Измерительный, каждый элемент Измерительный, визуальный
|
Исполнительная геодезическая схема акт освидетельствования
скрытых работ.
|
|
Контрольно-измерительный инструмент: рулетка, линейка
металлическая, нивелир, уровень, катетометр
|
|
Операционный контроль осуществляют: мастер (прораб),
геодезист - в процессе выполнения работ. Приемочный контроль осуществляют:
работники службы качества, мастер (прораб), представители технадзора
заказчика
|
Схема операционного контроля качества монтажа многопустотных
железобетонных плит перекрытий
Таблица 17
Состав операций и средства контроля
|
Контролируемые операции
|
Состав и средства контроля
|
Документация
|
|
Подготовительные работы
|
Проверить: - наличие ППР, технологических карт и схем
операционного контроля качества (СОКК); ППР, технологические карты и СОКК -
завершение и надлежащее оформление предшествующих работ по монтажу опорных
конструкций (наличие актов освидетельствования ранее выполненных работ,
геодезических исполнительных схем и другой приемо-сдаточной документации); -
наличие паспортов и полноту содержащихся в них данных на поступившие на
строительную площадку плиты, соответствие их требованиям проекта, маркировку
плит и наличие на них штампа ОТК; - внешним осмотром отсутствие недопустимых
дефектов бетонных поверхностей плит; очистку опорных поверхностей плит и ранее
смонтированных конструкций (колонн, ригелей, диафрагм жесткости от мусора,
грязи, снега и наледи), разметку опорных поверхностей, определяющую проектное
положение плит на опорах.
|
ППР, технологические карты и СОКК Акт приемки, акты
освидетельствования скрытых работ, исполнительные схемы Документы о качестве
Общий журнал работ
|
|
Монтаж многопустотных плит перекрытий
|
Контролировать: - соблюдение заданной ППР технологии
монтажа плит перекрытий; - точность установки плит в проектное положение; -
качество заделки стыков, качество сварочных и антикоррозионных работ.
|
Общий журнал работ Исполнительные схемы
|
|
Приемка
|
Проверить: - соответствие фактического положения
смонтированных плит требованиям проекта и нормативных документов; -
соответствие качества сварочных и антикоррозионных работ, а также работ по
замоноличиванию стыков требованиям проекта и нормативных документов; -
составление и надлежащее оформление исполнительной документации. ВХОДНОЙ И
ОПЕРАЦИОННЫЙ КОНТРОЛЬ осуществляют: мастер (прораб), лаборант (инженер),
геодезист - в процессе производства работ ПРИЕМОЧНЫЙ КОНТРОЛЬ ОСУЩЕСТВЛЯЮТ:
прораб (мастер), геодезист, представители технадзора заказчика КИП - линейка
и рулетка металлические, нивелир, теодолит и другие геодезические и
лабораторные приборы и инструмент
|
Общий журнал работ Акт приемки, акты освидетельствования
скрытых работ, исполнительные схемы
|
Схема операционного контроля качества монтажа наружных
стеновых панелей каркасных зданий
Таблица 18
Состав операций и средства контроля
|
Этапы работ
|
Контролируемые операции
|
Контроль (метод, объем)
|
Документация
|
|
Подготови-тельные работы
|
Проверить: - наличие документа о качестве; - качество
поверхности, точность геометрических параметров, внешний вид панелей; -
наличие ППР; - наличие акта освидетельствования (приемки) ранее выполненных
скрытых работ; - наличие разметки, определяющей проектное положение панелей
на опорах; - наличие в местах установки панелей маяков.
|
Визуальный Визуальный, измерительный, каждый элемент
Визуальный То же Технический осмотр То же
|
Паспорта (сертификаты), ППР, акт освидетель- ствования
скрытых работ (акт приемки), общий журнал работ
|
|
Монтаж стеновых панелей
|
Контролировать: - установку панелей в проектное положение;
- качество выполнения сварочных работ.
|
Измерительный, каждый элемент Визуальный, измерительный
|
Общий журнал работ, журнал сварочных работ
|
|
Приемка выполнен- ных работ
|
Проверить: - фактическое положение смонтированных панелей;
- качество выполнения сварочных соединений.
|
Измерительный, каждый элемент Визуальный измерительный,
|
Исполнительная геодезическая схема, акт освидетель-
ствования (приемки) работ
|
|
Контрольно-измерительный инструмент: отвес строительный,
рулетка, линейка металлическая, нивелир, катетомер.
|
|
Операционный контроль осуществляют: мастер (прораб),
геодезист - в процессе выполнения работ. Приемочный контроль осуществляют:
работники службы качества, мастер (прораб), представители технадзора
заказчика.
|
. Технологический
нормокомплект
Машины
механизмы для ведения работ:
1. Экскаватор одноковшовый CASE CX75SR - 1 шт;
2. Бульдозер ДЗ-8 на базе трактора Т-100 - 1 шт;
. Гусеничный кран СКГ-30 - 1 шт;
. Строп четырехветвевой ЧСК 1-4,0 - 1 шт;
. Строп двухветвевой 2728-1шт;
. Электрическая трамбовка - 2 шт;
. Сварочный аппарат - 2шт;
. Лестница приставная - 5 шт;
. Тележка ручная - 2шт;
. Бадья - 3шт.
Инструменты:
рабочий, контрольно-измерительный:
1. Лопата копальная остроконечная - 3 шт;
2. Лопата подборочная - 3 шт;
. Топор строительный - 1 шт;
. Рулетка металлическая в закрытом корпусе РЗ-50 - 1 шт;
. Отвес стальной строительный ОТ-600 - 2 шт;
. Нивелир Н-3 - 1 шт;
. Лом обыкновенный ЛО-28 - 1 шт;
. Пила поперечная двуручная по дереву 1-1250 - 1 шт;
. Ножовка по дереву широкая НШ - 1 шт;
. Визирка - 1 шт;
. Ящик-контейнер емкостью 0,23 м
для приема и хранения раствора -
2шт;
. Лопата растворная - 2 шт;
. Скребок для очистки нижних плоскостей блоков - 1 шт;
. Лом монтажный ЛМ-24 - 2 шт;
. Кельма для бетонных и каменных работ - 2 шт;
. Кувалда кузнечная тупоносая массой 6 кг. - 1 шт;
. Молоток слесарный, массой 1 кг - 2 шт;
. Уровень строительный УЗС-500 - 2 шт;
. Угольник металлический 500х240 - 2 шт;
. Шнур разметочный в корпусе - 2 шт;
. Шнур для разбивки осей 100м - 1 шт;
. Ножницы для резки арматуры - 1 шт;
. Штангенциркуль ШЦТ-1-125 - 1шт;
. Струбцина для осевого совмещения свариваемых стержней -2 шт;
. Гребок для бетонных работ - 2 шт;
. Гладилка ленточная ГЛК - 2 шт;
. Скребок металлический - 1шт;
. Рейка контрольная - 1шт;
. Нож линолеумный для резки рулонных материалов - 2 шт;
. Метр складной - 2 шт;
. Укороченные подмости Кма-406 -2 шт;
. Ящик для инструмента- 1 шт;
Таблица 19
Спецодежда
|
№
|
Наименование профессии
|
Наименование спецодежды
|
Нормативные документы
|
Кол-во
|
|
1
|
Монтажник
|
Костюм мужской для защиты от общих производственных загрязнений
и механических воздействий Рукавицы комбинированные Полусапоги юфтевые на
противоскользящей подошве
|
ГОСТ 12.4.109-82, модель С-368-82 ГОСТ 12.4.010-75 ГОСТ
12.4.060-78
|
6 6 6
|
|
2
|
Электросварщик
|
Костюм мужской для сварщиков Обувь специальная кожаная для
защиты от повышенных температур Щиток защитный для электросварщика со
светофильтрами Рукавицы брезентовые
|
ТУ 17-08-122-80 ГОСТ 12.4.032-77 ГОСТ 12.4.035-78 ГОСТ
12.4.010-75
|
1 1 1 1
|
|
3
|
Машинист крана
|
Комбинезон мужской для защиты от нетоксичных веществ, механических
повреждений и общих производственных загрязнений Галоши диэлектрические
Перчатки резиновые диэлектрические бесшовные
|
ГОСТ 12.4.100-80 с изм.., тип Б ГОСТ 13385-78 ТУ 38
106359-79
|
1 1 1
|
Таблица 20
Транспорт для доставки строительных изделий на строительную площадку
|
Марка
|
Назначение
|
Грузоподъемность, т
|
Колея, мм
|
Максимальные размеры перевозимых изделий, мм
|
Тягач (двигатель)
|
Полуприцеп-панелевоз
Рис.9
|
УПП-2008
|
Перевозка стеновых панелей и диафрагм жесткости
|
18,5
|
1860
|
8,6х2,9
|
МАЗ-5433
|
Полуприцеп общего назначения
Рис.10
|
ОдАЗ-9370
|
Перевозка элементов длиной до 12 м (лестничные марши)
|
14,2
|
1850
|
9х2,1
|
КамАЗ-5410
|
Полуприцеп-плитовоз
Рис.11
|
УПЛ-1412
|
Перевозка плит, ригелей, колонн
|
14
|
1850
|
12,2х3
|
КамАЗ-5410
|
Автобетоносмеситель
Рис.12
|
Марка
|
Объем замеса, м3
|
Скорость выгрузки, м2/мин
|
Габариты, м
|
|
|
|
|
Длина
|
Ширина
|
Высота
|
|
АБС-5
|
КамАЗ-55111
|
5
|
1
|
7,5
|
2,5
|
3,5
|
14. Указания по охране труда и технике безопасности
Общие требования безопасности
1) Работники не моложе 18 лет, прошедшие соответствующую подготовку,
имеющие профессиональные навыки для работы монтажниками и не имеющие
противопоказаний по полу по выполняемой работе, перед допуском к
самостоятельной работе должны пройти:
обязательные предварительные (при поступлении на работу) и периодические
(в течение трудовой деятельности) медицинские осмотры (обследования) для
признания годными к выполнению работ в порядке, установленном Минздравом
России;
обучение безопасным методам и приемам выполнения работ, инструктаж по
охране труда, стажировку на рабочем месте и проверку знаний требований охраны
труда.
) Монтажники обязаны соблюдать требования безопасности труда для
обеспечения защиты от воздействия опасных и вредных производственных факторов,
связанных с характером работы:
расположение рабочих мест на значительной высоте;
передвигающиеся конструкции;
обрушение незакрепленных элементов конструкций зданий и сооружений;
падение вышерасположенных материалов, инструмента.
) Для защиты от механических воздействий монтажники обязаны использовать
предоставляемые работодателями бесплатно костюмы хлопчатобумажные, рукавицы с
наладонниками из винилискожи-Т прерывистой, полусапоги кожаные на нескользящей
подошве, а также костюмы на утепляющей прокладке и валенки для зимнего периода
года.
При нахождении на территории стройплощадки монтажники должны носить
защитные каски. Кроме того, при работе на высоте монтажники должны использовать
предохранительные пояса, а при разбивке бетонных конструкций отбойными
молотками - защитные очки.
) Находясь на территории строительной (производственной) площадки, в
производственных и бытовых помещениях, участках работ и рабочих местах,
монтажники обязаны выполнять правила внутреннего трудового распорядка, принятые
в данной организации.
Допуск посторонних лиц, а также работников в нетрезвом состоянии на
указанные места запрещается.
) В процессе повседневной деятельности монтажники должны:
применять в процессе работы средства малой механизации по назначению, в
соответствии с инструкциями заводов-изготовителей;
поддерживать порядок на рабочих местах, очищать их от мусора, снега,
наледи, не допускать нарушений правил складирования материалов и конструкций;
быть внимательными во время работы и не допускать нарушений требований
безопасности труда.
) Монтажники обязаны немедленно извещать своего непосредственного или
вышестоящего руководителя о любой ситуации, угрожающей жизни и здоровью людей,
о каждом несчастном случае, происшедшем на производстве, или об ухудшении
своего здоровья, в том числе о появлении острого профессионального заболевания
(отравления).
Требования безопасности перед началом работы
7) Перед началом работы монтажники обязаны:
а) предъявить руководителю удостоверение о проверке знаний безопасных
методов работ и пройти инструктаж на рабочем месте с учетом специфики
выполняемых работ;
б) надеть каску, спецодежду, спецобувь установленного образца;
в) получить задание на выполнение работы у бригадира или руководителя.
) После получения задания монтажники обязаны:
а) подготовить необходимые средства индивидуальной защиты, в том числе:
пояс предохранительный и канат страховочный - при выполнении верхолазных работ;
защитные очки - при пробивке отверстий в железобетонных конструкциях;
б) проверить рабочее место и подходы к нему на соответствие требованиям
безопасности;
в) подобрать технологическую оснастку и инструмент, необходимые при
выполнении работы, проверить их на соответствие требованиям безопасности;
г) осмотреть элементы строительных конструкций, предназначенные для
монтажа, и убедиться в отсутствии у них дефектов.
) Монтажники не должны приступать к выполнению работы при:
а) неисправностях технологической оснастки, средств защиты работающих,
указанных в инструкциях заводов-изготовителей, при которых не допускается их
применение;
б) несвоевременном проведении очередных испытаний технологической
оснастки, инструментов и приспособлений;
в) несвоевременном проведении очередных испытаний или истечении срока
эксплуатации средств защиты работающих, установленного заводом-изготовителем;
г) недостаточной освещенности рабочих мест и подходов к ним.
Обнаруженные неисправности должны быть устранены собственными силами, а
при невозможности сделать это монтажники обязаны сообщить о них бригадиру или
руководителю работ.
Требования безопасности во время работы
10) В процессе монтажа конструкций монтажники должны находиться на ранее
установленных и надежно закрепленных конструкциях или средствах подмащивания
) Для прохода на рабочее место монтажники должны использовать
оборудованные системы доступа (лестницы, трапы, мостики).
Нахождение монтажников на элементах строительных конструкций,
удерживаемых краном, не допускается.
) Навесные монтажные площадки, лестницы и другие приспособления,
необходимые для работы монтажников на высоте, следует устанавливать и
закреплять на монтируемых конструкциях до их подъема.
) Рабочие места и проходы к ним, расположенные на перекрытиях, покрытиях
на высоте более 1,3 м и на расстоянии менее 2 м от границы перепада по высоте,
должны быть ограждены защитными или страховочными ограждениями, а при
расстоянии более 2 м - сигнальными ограждениями, соответствующими требованиям
государственных стандартов.
) При отсутствии ограждения рабочих мест на высоте монтажники обязаны
применять предохранительные пояса в комплекте со страховочным устройством.
) Очистку подлежащих монтажу элементов строительных конструкций от грязи
и наледи следует осуществлять до их подъема.
) При монтаже конструкций сигналы машинисту крана должны подаваться
только одним лицом: при строповке изделий стропальщиком, при их установке в
проектное положение бригадиром или звеньевым, кроме сигнала «Стоп», который
может быть подан любым работником, заметившим явную опасность.
) В процессе перемещения конструкций на место установки с помощью крана
монтажники обязаны соблюдать следующие габариты приближения их к ранее
установленным конструкциям и существующим зданиям и сооружениям:
а) допустимое приближение стрелы крана - не более 1 м;
б) минимальный зазор при переносе конструкций над ранее установленными -
0,5 м;
в) допустимое приближение поворотной части грузоподъемного крана - не
менее 1 м.
) Предварительное наведение конструкции на место установки необходимо
осуществлять с помощью оттяжек пенькового или капронового каната. В процессе
подъема-подачи и наведения конструкции на место установки монтажникам
запрещается наматывать на руку конец каната.
) Перед установкой конструкции в проектное положение монтажники обязаны:
а) осмотреть место установки конструкции и проверить наличие разбивочных
и геометрических осей на опорной поверхности;
б) приготовить необходимую оснастку для ее проектного или временного
закрепления;
в) проверить отсутствие людей внизу непосредственно под местом монтажа
конструкции. Запрещается нахождение людей под монтируемыми элементами до
установки их в проектное положение и окончательного закрепления.
) При установке элементов строительных конструкций в проектное положение
монтажники обязаны:
а) производить наводку конструкции на место установки, не применяя
значительных физических усилий;
б) осуществлять окончательное совмещение разбивочных и геометрических
осей с помощью монтажного ломика или специального инструмента (конусных
оправок, сборочных пробок и др.). Проверять совпадение отверстий пальцами рук
не допускается.
) После установки конструкции в проектное положение необходимо произвести
ее закрепление (постоянное или временное) согласно требованиям проекта. При
этом должна быть обеспечена устойчивость и неподвижность смонтированной
конструкции при воздействии монтажных и ветровых нагрузок. Крепление следует
производить за ранее закрепленные конструкции, обеспечивая геометрическую
неизменяемость монтируемого здания (сооружения).
) Расстроповку элементов конструкций, установленных в проектное
положение, следует производить после их постоянного или временного закрепления
согласно проекту при соблюдении следующих требований безопасности:
а) расстроповку элементов конструкций, соединяемых заклепками или болтами
повышенной прочности, при отсутствии специальных указаний в проекте следует
производить после установки в соединительном узле не менее 30% проектных
заклепок или болтов, если их более пяти, в других случаях - не менее двух;
б) расстроповку элементов конструкций, закрепляемых электросваркой и
воспринимающих монтажную нагрузку, следует производить после сварки проектными
швами или прихватками согласно проекту. Конструкции, не воспринимающие
монтажные нагрузки, допускается расстрапливать после прихватки электросваркой
длиной не менее 60 мм.
) Временное крепление монтируемых конструкций разрешается снимать только
после их постоянного закрепления в соответствии с требованиями проекта.
) При возведении зданий методом подъема этажей (перекрытий) монтажники
обязаны:
а) устранить перед началом подъема перекрытий все выступающие части на
колоннах, препятствующие подъему конструкций, а также извлечь клинья между
плитой перекрытия и ядром жесткости;
б) не допускать перекосов поднимаемых перекрытий из-за несинхронной
работы подъемного оборудования;
в) обеспечить по окончании смены опирание поднимаемого перекрытия на
каркас здания или неподвижные опоры тяги;
г) обеспечить в случае неисправности подъемного оборудования опирание
поднимаемого перекрытия на колонны каркаса здания, на которые закреплены
вышедшие из строя подъемники.
) При подъеме конструкций двумя кранами монтажники обязаны строповку,
подъем-подачу и установку конструкции в проектное положение осуществлять под
непосредственным руководством лица, ответственного за безопасное производство
работ по перемещению грузов краном.
) При монтаже конструкций вертолетами монтажники обязаны:
а) применять принудительное наведение монтируемых конструкций на место
установки с помощью специальных ловителей или дистанционного управления
процессом наведения;
б) не допускать закрепления гибких оттяжек за ранее установленные
конструкции.
Требования безопасности в аварийных ситуациях
27) В случаях обнаружения неисправности грузоподъемного крана, рельсового
пути, грузоподъемных устройств или технологической оснастки монтажники обязаны
дать машинисту крана команду «Стоп» и поставить об этом в известность
руководителя работ.
) При обнаружении неустойчивого положения монтируемых конструкций,
технологической оснастки или средств защиты монтажники должны поставить об этом
в известность руководителя работ или бригадира.
) При изменении погодных условий (увеличении скорости ветра до 15 м/с и
более, при снегопаде, грозе или тумане), ухудшающих видимость, работы
необходимо приостановить и доложить руководителю.
Требования безопасности по окончании работы
30) По окончании работы монтажники обязаны:
а) сложить в отведенное для хранения место технологическую оснастку и
средства защиты работающих;
б) очистить от отходов строительных материалов и монтируемых конструкций
рабочее место и привести его в порядок;
15. Технико-экономические показатели
Таблица 21
|
№ п/п
|
Наименование
|
Ед.Изм.
|
Кол-во
|
|
Продолжительность нормативная
|
дни
|
76
|
|
Продолжительность фактическая
|
Дни
|
48
|
|
Трудозатраты нормативные
|
ч дн
|
20,5
|
|
Трудозатраты фактические
|
ч дн
|
19,5
|
|
Производительность труда
|
%
|
105
|
|
Выработка на одного рабочего в смену
|
шт/дни
|
10,6
|
. Продолжительность нормативная:
Пнорм.= ΣПн/8 = 608/8 =76 дней.
ΣПн - см. график
производства работ
- кол-во часов работы в день или 16 часов в день, если работы ведутся в
две смены ( см. принятое количество смен в графике производства работ)
2. Продолжительность работ фактическая:
Пфак.= 48 дней.
.Трудозатраты нормативные:
Тнорм. = ΣТобщ./8 = 164/8 = 20,5 чел.дни
ΣТобщ. - см. по калькуляции
трудозатрат (графа 7).
4. Трудозатраты фактические:
Тфак. = Тнор. х100% /ξ = 20,5 х100/105= 19,5 чел дни.
ξ% - заданный процент перевыполнения норм
(от 102%-105%)
5. Производительность труда:
П = Тнорм/Тфактх100% = 20,5/19,5х100% = 105 %
. Выработка на одного рабочего в смену:
В = S/ΣТфакт. =206/19,5=10,6 шт/дни.
S -
количество монтируемых элементов
Литература
1. Типовые
технологические карты
2. Сборники
ЕНИР
3. Сборники
ГЭСН
4. СНиП
12.03.-2001 «Безопасность труда в строительстве. Часть 1»
. СНиП
12.04-2002 «Безопасность труда в строительстве. Часть 2»
6. О.М.
Терентьев "Технология возведения зданий и сооружений", 2006
. Технология
строительного производства. В.И. Павленко. Издательство: ЮРГТУ Год издания:
2004.
8. Организация
строительного производства Л.Г. Дикман, Издательство: Издательство Ассоциации
строительных вузов. Год издания: 2006
9. Гаевой
А.Ф., Усик С.А. - «Курсовое и дипломное проектирование. Промышленные и
гражданские здания.» Издательство: Стройиздат, 1987.
10. Соколов
Г.К. - «Выбор кранов и технических средств для монтажа строительных конструкций».
Москва 2002.
. СНиП
12-04-2002 .Безопасность труба в строительстве. Часть 2. Строительное
производство.
. ППБ
01 -3 Правила пожарной безопасности Российской Федерации.
13. Строительные машины www.exkavator.ru/
. СНиП 3.03.01-87#S. Несущие и ограждающие конструкции;
15. Технология
и организация строительного производства М.П. Зимин
16. Технология
и организация строительного производства Н.Н. Данилов
17. «Строительные
краны» К.А. Станевский
18. Оборудование и приспособления для монтажа строительныхконструкций.
Каталог грузозахватных элементов.
19. Конспект
лекций.