Основы проектирования туристского объекта

  • Вид работы:
    Контрольная работа
  • Предмет:
    Строительство
  • Язык:
    Русский
    ,
    Формат файла:
    MS Word
    1,4 Мб
  • Опубликовано:
    2012-04-22
Вы можете узнать стоимость помощи в написании студенческой работы.
Помощь в написании работы, которую точно примут!

Основы проектирования туристского объекта















Основы проектирования туристского объекта

Содержание

здание фасад перекрытие план

Введение

План гостиничного номера здания туристского назначения

Пояснительная записка к плану гостиничного номера

Генеральный план

Фасад здания в осях 1-5

План первого этажа

План перекрытий над первым этажом

Расчеты материалов здания

Список литературы

Введение

Новосибирск (до 1926 года - Новониколааевск) - третий по численности населения и тринадцатый по площади городов России, имеет статус городского округа, административный центр Новосибирской области и Сибирского федерального округа, научный, культурный, промышленный, транспортный, торговый и деловой центр Сибири. Город расположен на Приобском плато, примыкающем к долине реки Обь, рядом с водохранилищем, образованным плотиной Новосибирской ГЭС.

Численность населения Новосибирска (по данным Росстата на 1 января 2011 г.) 1 485 267 чел. в границах города (3-е место в РФ - после Москвы и Санкт-Петербурга) и ок. 1,9 млн. (на 2011) в агломерации (7-е место). Город занимает площадь 506,67 км² (50 667 га).

Новосибирск находится в континентальной климатической зоне; среднегодовая температура воздуха +0,2 °C. Для города характерны большие колебания среднемесячных (38 °C) и абсолютных (88 °C) температур воздуха. Средняя температура воздуха в январе −19 °C, в июле +19 °C. Самая низкая температура зафиксирована 9 января 1915 года(−51,1 °C), самая высокая - 7 июля 2005 года (+37 °C). Город расположен на границе лесостепной и леснойприродных зон. Среднее годовое количество часов солнечного сияния - 2077.

Новосибирск является крупным промышленным центром. Основу промышленного комплекса составляют 214 крупных и средних промышленных предприятий. На их долю приходится более 2/3 объёма всей промышленной продукции Новосибирской области. Среднегодовая численность работников организаций составляет 421,2 тысяч человек. Ведущими отраслями промышленности являются энергетика, газоснабжение, водоснабжение, металлургия, металлообработка, машиностроение, на их долю приходится 94 % всего промышленного производства города. По данным новосибстата по состоянию на 1 января 2011 года в Новосибирске количество предприятий составило 132071 штук, а индивидуальных предпринимателей зарегистрировано 43402 человек. Оборот розничной торговли за 2009 год составил 217795,1 млн. рублей. Оборот предприятий и организаций по всем основным видам деятельности за 2009 год составил 722092,6 млн. рублей.

Объём отгруженных товаров предприятиями обрабатывающего производства за 2009 год составил 89,65 млрд. рублей. В городе расположены головные офисы ряда крупных российских компаний, среди них:

§   ОАО НЗХК (Новосибирский завод химконцентратов) - одно из крупнейших предприятий российского ядерного топливного цикла по выпуску ядерного топлива для энергетических и исследовательскихреакторов, производству лития и его соединений, основанное 25 сентября 1948 года. Входит в состав холдинга ТВЭЛ.

§   ОАО Новосибирскэнерго - крупная энергетическая компания.

Климат Новосибирска

Показатель

Янв

Фев

Мар

Апр

Май

Июн

Июл

Авг

Сен

Окт

Ноя

Дек

Год

Абсолютный максимум, °C

4,1

5,5

14,4

26,8

36,1

35,0

37,2

35,2

36,0

27,2

11,5

5,0

37,2

Средний максимум, °C

−12,2

−10,3

−2,6

8,1

17,5

24,0

25,7

22,2

16,6

6,8

−2,9

−8,9

7,0

Средняя температура, °C

−16,1

−14,3

−7

2,3

11,7

16,8

16,5

10,1

2,9

−7,1

−13,7

1,8

Средний минимум, °C

−20,1

−19,1

−11,8

−1,7

5,6

12,3

14,7

11,7

6,4

0,0

−9,1

−16,4

−2,3

Абсолютный минимум, °C

−43,9

−45

−32,8

−27,2

−11,1

−2,2

2,2

−2

−6,3

−25

−41,3

−45

−45

Норма осадков, мм

20

13

13

24

36

39

64

67

35

37

29

20

442


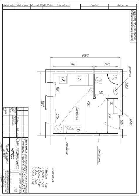
План гостиничного номера здания туристского назначения

Пояснительная записка к плану гостиничного номера


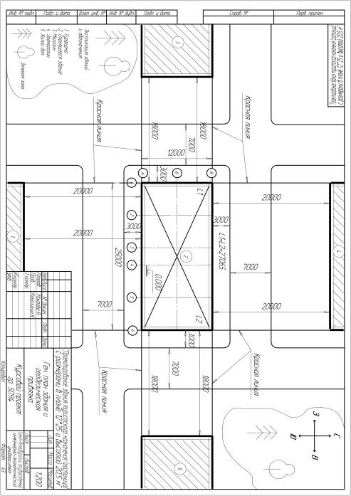
Генеральный план

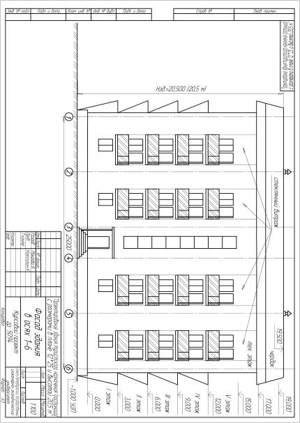
Фасад здания в осях 1-5

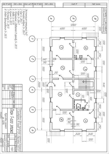
План первого этажа


План перекрытий над первым этажом


Расчеты материалов здания

Наименование

Ед. измер.

Количество

Цена за шт. (руб)

Общ. Цена (руб)

Оконный блок 1.2м*1.5м

Шт.

44

4000

Оконный блок 1.2м*0.6м

Шт.

11

3500

38500

Дверной блок 0.8м*2.1м

Шт.

32

1400

44800

Дверной блок 0.7м*2.1м

Шт.

32

1200

38400

Плита перекрытия ПК-8-60-10

Шт.

10

3000

30000

Плита перекрытия ПК-8-60-12

Шт.

5

4000

20000

Плита перекрытия ПК-8-60-16

Шт.

110

5000

550000

Плита перекрытия ПК-8-60-18

Шт.

5

5500

27500

Лестничный марш 2.4м*1.2м

Шт.

10

18000

180000

Лестничный марш 2.4м*2м

Шт.

10

20000

200000

Металлочерепица

м2

277.2

200

55440

Кирпич

Шт.

10137600

10

101376000

Песок

м2

340.4

350

119140

Цементно-песочная стяжка

м2

262.89

1500

394335

Щебень

м2

79.8

600

47880

М3

15.204

12000

182448

Труба асбестоцементная

м

77.2

30

2316

Дренажные колодца

шт

6

2000

12000

Фундаментно-стеновой блок наружный (ФБС-6)

Шт.

104

3000

312000

Фундаментно-стеновой блок внутренний (ФБС-4)

Шт.

80

2000

160000

Сводная цена

1016192359


Список литературы

1. ЕСКД. Общие правила выполнения чертежей: сборник. - М.: Изд-во стандартов, 1987.

. СНиП П-23-81. Стальные конструкции. - М., 1999.

. СНиП 2.03.01-84. Бетонные и железобетонные конструкции. - М., 1999.

ГОСТ 21.503-80. Конструкции бетонные и железобетонные. Рабочие чертежи. - М., 1981.


Не нашли материал для своей работы?
Поможем написать уникальную работу
Без плагиата!
Без нейросетей!