Обоснование коммерческой состоятельности создания малого предприятия по выпечке хлебобулочных изделий

  • Вид работы:
    Курсовая работа (т)
  • Предмет:
    Эктеория
  • Язык:
    Русский
    ,
    Формат файла:
    MS Word
    166,91 Кб
  • Опубликовано:
    2012-07-07
Вы можете узнать стоимость помощи в написании студенческой работы.
Помощь в написании работы, которую точно примут!

Обоснование коммерческой состоятельности создания малого предприятия по выпечке хлебобулочных изделий













Тема: Обоснование коммерческой состоятельности создания малого предприятия по выпечке хлебобулочных изделий

Содержание

.        Вводная часть

.        Миссия фирмы, авторы и пользователи бизнес-плана

.        Обобщенное резюме

.        Исходные условия

.        Характеристики выпускаемой продукции.      Маркетинговая часть

. Анализ конъюнктуры рынка

2. Сведения о конкурентах.  Программная часть

. Описание технологии и организации производства

2. Расчет потребности в основных фондах и материальных ресурсах

3. Планирование трудовых ресурсов.    Расчетная часть

. Финансовый план предприятия

2. Расчет показателей эффективности бизнеса

3. Анализ рисков

4. Общие выводы

I.       Вводная часть

.        Миссия фирмы, авторы и пользователи бизнес-плана

В бизнес-плане рассматривается создание малого предприятия по выпечке хлебобулочных изделий в Красноярске ООО "Колосок", которое будет расположено по адресу: г. Красноярск, ул. Маерчака, 65, ст. 4. Для его реализации необходимо арендовать помещение соответствующей площадью. Необходимое оборудование для выпечки хлебобулочных изделий приобретается за счет заемных средств - кредита Сбербанка РФ.

Миссия фирмы - удовлетворение запросов и предпочтений большего числа потребителей хлебобулочных изделий города Красноярска. Бизнес-план был разработан по заказу кафедры экономики и финансов Института Градостроительства, Управления и Региональной Экономики Сибирского Федерального Университета (ЭФ ИГУРЭ СФУ) студенткой 5 курса Мамадалиевой В.В. Положительные результаты бизнес-плана будут предъявляться банку, страховой компании, контрагентам (поставщикам и сотрудникам).

.        Обобщенное резюме

В данном бизнес - плане был предложен проект по открытию производства тротуарной плитки с суточной мощностью производства 100 м.кв.. Для ее производства внедряем более совершенную технологию, что дает возможность нам экономить временные ресурсы и за счет этого увеличить объемы производства, без увеличения количества оборудования. Этот факт, позволяет нам уменьшить себестоимость продукции, по сравнению с конкурентами, цена за 1 м.кв. тротуарной плитки нашего производства от 300 до 520 руб.

Организационно - правовая форма предприятия закрытое акционерное общество. Реализацию проекта намечена на 1 октября 2009, а уже с 1 ноября открывается производство. Уставный капитал предприятия составляет 400 тыс. руб. Для открытия производства нам необходимо еще 750 тыс. руб. кредита.

Срок окупаемости проекта 3 месяца; индекс прибыльности - 10,96; чистый дисконтированный доход за 2 года - 10 610,6 тыс. руб.; внутренняя норма рентабельности - 34,7 %

.        Исходные условия

Фирма "Колосок" имеет организационно-правовую форму - закрытое акционерное общество (ЗАО "Колосок").

Учредителями фирмы являются ее акционеры: Ковалев С.Г. - 40 акций; Фрунзин В.А. - 35 акций; Ануфриев К.О. - 25 акций. Номинальная стоимость 1 акции - 7000 руб. Уставной капитал ЗАО "Колосок" составляет 700 000 руб. Необходимо приобрести следующее:

Таблица 1 Потребность в основных фондах

Наименование оборудования

Стоимость единицы, руб.

Количество, ед.

Суммарная стоимость, руб.

Здание под хлебопекарню

3365000

1

3365000

Электропечь

25 000

2

50000

Набор запасных частей

5 000

1

5000

Спиральная месильная машина

7 000

2

14000

Тестоделитель

8 000

1

8000

Раскатывающая машина

17 500

1

17500

Машина для надрезки

7 000

1

7000

Транспортер

5 600

1

5600

Машина для просеивания муки

7 400

1

7400

Эмульгатор

3 000

1

3000

Набор инструмента

2 000

1

2000

Грузовой автомобиль (подержанный)

200000

1

200000

Шкаф холодильный

57000

1

57000

Стол производственный

27600

1

27600

Холодильная витрина

33000

2

66000

Кондиционер

31700

1

31700

Вытяжка

17000

1

17000

Оргтехника:

 

 

 

кассовый аппарат

23000

1

23000

компьютер

19000

2

38000

телефон

4560

3

13680

Мебель:

 

 

 

Зеркала

1300

5

6500

Офисные столы

32750

2

65500

Электрочайник

3000

2

6000

Моечная раковина

9000

4

36000

Кухонные приборы

33000

 

33000

Столовые приборы

25000

 

25000

Унитазы

65000

3

195000

Итого

4 034 410

 

4 325 480


На покупку одноэтажного нежилого здания общей площадью 157 м2 затраты составят 3365000 руб., а на отделку помещения - 1680000 руб. Все указанные затраты будут осуществляться за счет заемных средств. В здании будут находиться: производственный цех, магазин, склад готовой продукции, помещение для выдержки теста и офис компании.

Закупаем необходимое оборудование и сырье в г. Красноярске. Строительно-монтажные работы будут производиться с 15 апреля в течение 4 месяцев, и производство можно будет начать с 15 августа 2010 г.

.        Характеристики предоставляемых услуг

Пищевая промышленность является наиболее важной и емкой отраслью народного хозяйства. Это доказывают различные анализы и прогнозы производства и потребления товаров во всем мире. Значительную долю в общем объеме продуктов питания занимает хлеб и хлебобулочные изделия. Хлеб один из немногих товаров, которые практически неэластичны, то есть хлеб будут покупать в любое время, что принесет производителю определенный доход. К тому же спрос со временем становится все требовательнее, и удовлетворить его полностью могут лишь немногочисленные малые предприятия по производству хлебобулочных изделий. Именно поэтому организация частной хлебопекарни предполагает определенную выгоду.

Для обеспечения удовлетворения запросов и предпочтений большего числа потребителей планируется выпускать несколько наименований хлебобулочных изделий:

) Хлеб: французский батон, смешанный, ржаной, караваи.

) Печенье: пшеничное, ржаное, овсяное, с орехом.

) Сдоба: булочки, круассаны, "Копенгагенские круассаны".

) Кондитерские изделия: воздушное пирожное, бисквитное пирожное, сливочное пирожное, торты.

II.      Маркетинговая часть

1. Анализ конъюнктуры рынка

Так как товар хорошо известный и в рекламе и продвижении практически не нуждается, необходимо основное внимание направить на продвижение самого предприятия. Предполагается размещение рекламных объявлений в местных печатных изданиях (200 руб. * 4 недели = 800 руб. в месяц) и на местном телеканале (25000 руб. в месяц). Также будет проведена рекламная акция в местах продажи хлебобулочных изделий (5 руб. * 2000 цветных листовок = 10000 руб. в месяц). Общие расходы на рекламную компанию в месяц составят 38200 руб.

Сбыт продукции будет осуществляться через сеть продовольственных государственных и частных магазинов. В дальнейшей перспективе намечается открыть свою сеть по продаже хлебобулочных изделий.

Цена выпускаемой продукции в среднем такая же, как и у основного конкурента "Красноярский хлеб".

Цены на продукцию за 1 шт.:

) Хлеб: французский батон - 16 руб., смешанный - 23 руб., ржаной - 15 руб., караваи - 12 руб.

Цены на продукцию за 1 кг.:

) Печенье: пшеничное - 41 руб., ржаное - 49 руб., овсяное - 57 руб., с орехом - 65 руб..

Цены на продукцию за 1 шт.:

) Сдоба: булочки - 7 руб., круассаны - 12 руб., "Копенгагенские круассаны" - 20 руб.

) Кондитерские изделия: воздушное пирожное - 25 руб., бисквитное пирожное - 27 руб., сливочное пирожное - 29 руб., торты - 265 руб.

2. Сведения о конкурентах

) Один из самых главных конкурентов на этом рынке - это фирма ОАО "Красноярский хлеб", расположенная по адресам: г. Красноярск, Заводская, 18; проспект Газеты Красноярский рабочий, 30; Свердловская, 17; - уже несколько лет производит хлебобулочную продукцию в г. Красноярске и Красноярском крае. Но на фирме ЗАО "Колосок" будет установлена приемлемая для потребителя цена, которая чуть ниже цены данного конкурента.

) ООО "Белар" г. Дивногорск, ул. Заводская, 4;

) ООО "Березовский хлебокомбинат" пос. Березовка, ул. Дзержинского, 22;

4) ОАО "Каравай" г. Красноярск, Северное шоссе, 25;

) ООО "Сибирский хлеб" г. Красноярск, проспект Газеты Красноярский рабочий, 30 а;

III.     Программная часть

1. Описание технологии и организации производства

Основным сырьем для производства хлебопродуктов является мука, вода, соль и дрожжи. Это те компоненты, без которых ничего не получится. Но можно добавлять еще также жир, сахар, сухое молоко, изюм, пряности и многое другое для получения разнообразия вкуса.

После доставки мука хранится на складе. Перед поступлением в пекарню она просеивается на специальной машине. Затем мука попадает в тестомесильные машины, где смешивается с водой и дрожжами, а так же с разными добавками. После тесто перемещается на выдерживание в специальную емкость (межу). Затем тесто поступает на тестоделительную машину, где разделяется на равные куски, после идет на формовку где куски превращаются в шарики. Дальше тесто попадает в тестозакатывающую машину, где из него получаются заготовки батонов, булочек, рогаликов и т.п. Там кусок теста сначала раскатывается валками машины в продолговатый блин, а затем свертывается в рулон. Этот рулон попадает в щель между захватывающим барабаном и формирующим кожухом барабан вращается и катит тесто по кожуху. После этого тесто некоторое время выдерживается в тепле чтобы оно подошло и стало рыхлым, пористым и мягким. И потом попадает в печь. Перед выпечкой специальный механизм наносит на тесто надрезы. Без которых хлеб, продолжая подниматься в печи, полопается и получится некрасивым, "рваным". А надрезанное тесто просто слегка расходится по надрезам, и на их месте получаются потом хрустящие гребешки. Выпеченный хлеб раскладывается на лотки и поступает в торговый зал.

Схема технологического маршрута изготовления хлебобулочных изделий.

(1) → (2) → (3) → (4) → (5) → (6) → (7) → (8) → (9) → (10)

1) Просеивание муки

) Замешивание теста

) Выдержка теста

) Разделка теста на равные куски

) Подготовка теста к тестозакатывающей машине

) Формирование формы изделия

) Выдержка заготовки

) Нанесение надрезов

) Выпечка

) Раскладывание на лотки

Ковалев С.Г. на общем собрании акционеров ЗАО "Колосок" был выбран генеральным директором. Также в состав административного персонала входят: бухгалтер-кассир, экономист-снабженец, технолог.

2. Расчет потребности в основных фондах и материальных ресурсах

Потребность в основных фондах была приведена в части 1 параграфа 3 (табл.1). Срок службы оборудования 8 лет. Метод начисления амортизации линейный.

В результате проведения маркетинговых исследований было установлено, что объем потенциального неудовлетворенного спроса на хлебобулочные изделия в Красноярске составляет примерно 2 млн. штук в год, поэтому при выборе производственной мощности проектируемого предприятия необходимо обеспечить такой уровень производственной мощности, который будет покрывать потребность рынка в данной продукции.

Производственная мощность пекарни определяется исходя из производительности оборудования по паспорту и эффективного фонда времени работы оборудования.

Эффективный фонд времени работы оборудования рассчитывается исходя из режимного (номинального) фонда времени и времени нахождения оборудования в плановом ремонте. Номинальный фонд времени рассчитывается исходя из количества недель в году, продолжительности смены и количества смен. При расчете номинального фонда времени вычитаются часы сокращения предпраздничных смен.

Таблица 2 Рабочая нагрузка печи

Продукт

Мощность печи, ед.

Время выпечки, мин.

Циклы выпечки, ед.

Дневной выход продукции, ед.

Время использования печи, мин.

Закладка-выемка, мин.

французский батон

100

60

1

100

60

30

каравай

180

60

2

360

120

30

печенье

560

20

6

3 360

120

30

булочки

480

20

3

1 440

60

30

торты, пирожные

64

20

3

192

60

30

Всего:

 

 

 

5 452

420

150


Число недель в году - 52. Продолжительность смены 10 часов (будни и суббота), 5 часов (воскресенье). Количество смен - 1. Время нахождения оборудования в плановом ремонте принимается равным 3% от номинального фонда времени. Исходя из приведенных данных номинальный фонд времени составляет 3380 часов. Эффективный фонд времени работы оборудования составляет, таким образом: 3380 - 0.03*3380 = 3278 часов

Годовая производственная мощность пекарни, исходя из производительности оборудования (50 кг/час) и эффективного фонда времени работы оборудования (3278 часов), составит:

М = q*Фэ = 50 кг/ч * 3278 ч = 163900кг в год.

рынок конкурент бизнес риск
Из них : - 36 000 шт. - французский батон

- 540000 шт. - каравай

шт.- хлеб

1 209 600 шт. - печенье

518 400 шт. - сдоба

69 120 шт. - кондитерские изделия

Всего: - 1 962 720 шт.

Таблица 3 Прогнозный объем реализации хлебобулочных изделий

Продукт

Продукция в смену, ед.

Продукция в неделю, ед.

Продукция в месяц, ед.

Розничная цена за единицу, руб.

Месячная выручка, руб.

Французский батон

100

700

3 000

16

48 000

Хлеб смешанный

90

540

2 700

23

62 100

Хлеб ржаной

120

720

3 600

15

54 000

Каравай

150

900

4 500

12

54 000

Печенье пшеничное

1000

6000

30 000

41

1 230 000

Печенье ржаное

930

5580

27 900

49

1 367 100

Печенье овсяное

750

4500

22 500

57

1 282 500

Печенье с орехами

680

4080

20 400

65

1 326 000

Булочки

540

3240

16 200

7

113 400

Круасаны

430

2580

12 900

12

154 800

Копенгагенские круасаны

250

1500

7 500

20

150 000

Воздушное пирожное

62

372

1 860

25

46 500

Бисквитное пирожное

62

372

1 860

27

50 220

Сливочное пирожное

53

318

1 590

29

Торты

15

90

450

265

119 250

Всего:

5232

31492

156960


6 103 980


Таблица 4 Стоимость материалов, необходимых для суточного производства 1 кг хлебобулочных изделий

Наименование

Кол-во ед. в смену, кг

Цена 1 кг., руб.

Сумма затрат в смену, руб.

Мука, кг.

3

3,1

9,3

Дрожжи, кг.

60

0,5

30

Вода, л.

42

0,8

33,6

Соль, кг.

0,02

63

1,26

Сахар, кг.

0,05

90

4,5

Орехи, кг.

0,05

10

0,5

Начинка, кг.




Сухое молоко, кг.




Жир, кг.




Пряности, кг.





Итого месячный расход материала: 7 916, 00 руб. В цену входит стоимость доставки.

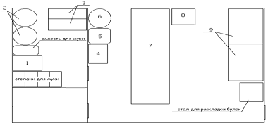
Рисунок 1. Схема расположения производственных помещений

Рисунок 2. Схема расположения технологического оборудования для выпечки хлебобулочных изделий

Условные обозначения:

- машина для просеивания муки

- тестомесильные машины

- емкость для выдержки теста

- тестоделительная машина

- тестоформовочная машина

- тестозакатывающая машина

- стол для выдержки изделий

- нарезательная машина

- печь

Таблица 5 Площадь для размещения производственного оборудования

Вид оборудования

Площадь, м2

Электропечь

8

Машина для просеивания муки

3

Тестомесильные машины

2

Емкость для выдержки теста

2,4

Тестоделительная машина

0,7

Тестоформовочная машина

2,1

Тестозакатывающая машина

2,6

Стол для выдержки изделий

2

Нарезательная машина

1

Транспортер

2,4

Всего:

26,2


Суммарная площадь, занимаемая оборудованием, составляет 26,2 м2.

С учетом планировки оборудования и обеспечения удобства его обслуживания линейные размеры производственного цеха составят:

длина 12 м;

ширина 8 м;

высота 3.2 м.

Общая площадь цеха составит 63 м2.

Склады

1 Склад муки. Для устойчивого производства хлебобулочных изделий необходимо обеспечить запас сырья из расчета недельной производственной программы. Для хранения такого запаса требуется помещение площадью 20 м2 и высотой 3.2 м.

2 Склад готовой продукции. Требуемая площадь для хранения готовой продукции рассчитывается из дневной выработки. И составляет 16 м2

3) Склад для прочих составляющих продукции (дрожжи, орехи, и др.). Площадь склада сырья рассчитана исходя из необходимости хранения недельного запаса сырья. Требуемая площадь 12 м2

Таблица 6 Общая площадь помещений, м2

1. Склад муки

20

2. Склад готовой продукции

16

3. Склад сырья

12

4. Пекарня

63

5. Офис

46

Итого: общая площадь помещений

157


3. Планирование трудовых ресурсов

Для запуска производства хлебобулочных изделий на ЗАО "Колосок" необходимо осуществить грамотный подбор квалифицированных кадров, который необходимо осуществить в течение 4-х месяцев (до окончания всех строительно-монтажных работ). За помощью в поиске работников ЗАО "Колосок" надо обратиться в центр занятости населения г. Красноярска. Изначально, деятельность фирмы начнется с работы генерального директора, бухгалтера-кассира, экономиста снабженца и технолога с 15 апреля 2010 г, а остальные работники с 15 августа 2010г.

Рассчитаем месячную заработную плату:

IV.    Расчетная часть

. Финансовый план предприятия

Рассчитаем финансовый план ЗАО "Тротуарная плитка", данные представим в виде таблицы (тыс. руб.):

Берем кредит 750 000 руб. под 10% годовых на 2 года, начинаем выплачивать % и сам кредит со 2 квартала.

Финансовый план ЗАО "Тротуарная плитка"

Статьи доходов и расходов

Расчетный месяц

1-й мес.

2-й мес.

3-й мес.

2-й кв

3-й кв.

4-й кв.

1-й год

2-й год

Поступление реальных денег (выручка)

Плитка Кирпич 45 мм

66,00

0,00

66,00

66,00

198,00

198,00

198,00

726,00

792,00

Плитка Волна 45 мм

70,40

0,00

70,40

70,40

211,20

211,20

211,20

774,40

844,80

Плитка Розетта

81,40

0,00

81,40

81,40

244,20

244,20

244,20

895,40

976,80

Плитка Трапеция 60 мм

68,20

0,00

68,20

68,20

204,60

204,60

204,60

750,20

818,40

Плитка Кленовый Лист 45 мм

92,40

0,00

92,40

92,40

277,20

277,20

277,20

1016,40

1108,80

Плитка Лабиринт 45 мм

79,20

0,00

79,20

79,20

237,60

237,60

237,60

871,20

950,40

Плитка Мозаика 250х250х45 мм

88,00

0,00

88,00

88,00

264,00

264,00

264,00

968,00

1056,00

Плитка Брук-Монолит 250х250х45 мм

77,00

0,00

77,00

77,00

231,00

231,00

231,00

847,00

924,00

Плитка Ажур 300х300х30 мм

105,60

0,00

105,60

105,60

316,80

316,80

316,80

1161,60

1267,20

Плитка Калифорния 300х300х30 мм

114,40

0,00

114,40

114,40

343,20

343,20

343,20

1258,40

1372,80

Итого:

842,60

0,00

842,60

842,60

2527,80

2527,80

2527,80

9268,60

10111,20

Амортизационный фонд

 

11,00

11,00

11,00

33,00

33,00

33,00

132,00

132,00

Текущие расходы

Коммунальные платежи

20,00

20,00

20,00

20,00

60,00

60,00

60,00

240,00

240,00

Электроэнергия на технологические цели

0,44

0,00

0,44

0,44

1,32

1,32

1,32

4,84

5,28

Расходные материалы

7,91

0,00

7,91

7,91

23,73

23,73

23,73

87,01

94,92

Фонд заработной платы

80,00

33,00

80,00

80,00

240,00

240,00

240,00

913,00

960,00

Прочие затраты (+ спецодежда, реклама, канцтовары и тд.)

10,00

11,00

11,40

11,40

34,20

34,20

34,20

136,40

147,80

Арендные платежи

51,00

51,00

51,00

51,00

153,00

153,00

153,00

612,00

612,00

Амортизационные отчисления

0,00

11,00

11,00

11,00

33,00

33,00

33,00

132,00

132,00

Итого:

 

126,00

181,75

181,75

545,25

545,25

545,25

2125,25

2192,00

Формирование прибыли

Балансовая прибыль (-убытки)

 

-126,00

660,85

660,85

1982,55

1982,55

1982,55

7143,35

7919,20

Налог по УСН 15% от прибыли

 

-18,90

99,13

99,13

297,38

297,38

297,38

1071,50

1187,88

Выплата % по кредиту (10 % годовых)

 

0,00

0,00

27,00

22,50

19,00

68,50

37,00

Гашение кредита

 

0,00

0,00

0,00

108,00

108,00

108,00

324,00

426,00

Чистая прибыль (- убытки)

 

-144,90

561,72

561,72

1550,17

1554,67

1558,17

5679,35

6268,32

Единовременные поступления

Банковский кредит

 

750,00

0,00

0,00

0,00

0,00

0,00

750,00

0,00

Инвестиции учредителей

 

400,00

0,00

0,00

0,00

0,00

0,00

400,00

0,00

Итого:

 

1150,00

0,00

0,00

0,00

0,00

0,00

1150,00

0,00

Единовременные затраты

Покупка оборудования

 

458,49

0,00

0,00

0,00

0,00

0,00

458,49

80,00

Покупка инвентаря

 

3,85

0,00

0,00

0,00

0,00

0,00

3,85

3,85

Покупка мебели и техники

 

40,00

0,00

0,00

0,00

0,00

0,00

40,00

0,00

Реклама

 

80,00

0,00

0,00

0,00

0,00

0,00

80,00

0,00

Ремонтный фонд

 

0,00

0,00

0,00

0,00

0,00

0,00

0,00

70,00

Итого:

 

582,34

0,00

0,00

0,00

0,00

0,00

582,34

153,85

Итоговые результаты

Всего поступлений

 

1161,00

853,60

853,60

2560,80

2560,80

2560,80

10550,60

10243,20

Всего затрат

 

1108,34

181,75

181,75

545,25

545,25

545,25

3107,59

2345,85

Финансовый результат

 

52,66

671,85

671,85

2015,55

2015,55

2015,55

7443,01

7897,35

Кредиторская задолженность

 

0,00

0,00

0,00

135,00

130,50

127,00

392,50

463,00

Итого финансовый результат

 

52,66

671,85

671,85

1880,55

1885,05

1888,55

7050,51

7434,35

Эффект текущий = Чистая прибыль + Амортизация

 

-133,90

572,72

572,72

1583,17

1587,67

1591,17

5811,35

6400,32


2. Расчет показателей эффективности бизнеса

Норму дисконта принимаем 12 % годовых.

Наше предприятие эффективно для бюджета города - это связано с налоговыми отчислениями, которые оно будет производить в бюджет, а также с организацией новых рабочих мест и трудоустройством населения.

К показателям коммерческой эффективности относят:

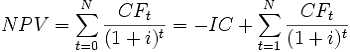
)        Чистый дисконтированный доход (ЧДД)

,

где CFt - платёж через t лет (t = 1,...,N); где i - ставка дисконтирования.

= ЧДД = (7 443/(1+0,12)1) + (7 897/(1+0,12)2) = 12 610,6 тыс. руб. > 0.

)        Индекс рентабельности инвестиций (PI)

PI = ∑ Ct (1+i)-t / I0

где I0 - инвестиции предприятия в момент времени 0; Сt - денежный поток предприятия в момент времени t; i - ставка дисконтирования.

= 12 610,6 / 1150 = 10,96 >1

3)      Период окупаемости (PBP)

PBP = n, при котором , где n - число периодов; CFt - приток денежных средств в период t; Io - величина исходных инвестиций в нулевой период.

PBP = 3 мес.

)        Внутренняя норма рентабельности (IRR)


IRR = 34,7% > r

Все показатели нас удовлетворяют, а следовательно проект можно приводить в действие.

3. Анализ рисков

Ни для кого не секрет, что предпринимательская деятельность является рисковой, то есть действия участников предпринимательства в условиях сложившихся рыночных отношений, конкуренции, функционирования всей системы экономических законов не могут быть с полной определенностью рассчитаны и осуществлены.

Производственный риск связан с производством продукции, товаров и услуг; с осуществлением любых видов производственной деятельности, в процессе которой предприниматели сталкиваются с проблемами неадекватного использования сырья, роста себестоимости, увеличения потерь рабочего времени, использования новых методов производства. Преодоление заключается в полном следовании технологии, что уменьшит процент брака в производстве.

Коммерческий риск - это риск, возникающий в процессе реализации товаров и услуг, произведенных или купленных предпринимателем, то есть всегда существует возможность невостребованности произведенной нами продукции. Мы будем тщательно продумывать план сбыта и рекламу, а также более гибко сотрудничать с нашими постоянными клиентами.

Финансовый - риск, прямые последствия которого заключаются в денежных потерях. Для преодоления этого риска нам необходимо тщательно выбирать поставщиков и систему взаимодействия с ними, а также отслеживать рынок тротуарной плитки в Красноярске.

А вообще существует множество разновидностей предпринимательского риска.

4. Общие выводы

В данном бизнес - плане был предложен проект по открытию производства тротуарной плитки с суточной мощностью производства 100 м.кв.. Для ее производства внедряем более совершенную технологию, что дает возможность нам экономить временные ресурсы и за счет этого увеличить объемы производства, без увеличения количества оборудования. Этот факт, позволяет нам уменьшить себестоимость продукции, по сравнению с конкурентами, и установить на товар более низкую цену, чтобы привлечь потребителя.

Также был проанализирован рынок тротуарной плитки, который показывает нам, что еще есть свободная ниша, и мы можем с нашей продукцией без особых опасений зайти на этот рынок.

В работе показана технология производства, рассчитана потребность в основных средствах, сырье и трудовых ресурсах. А также способ финансирования данного проекта: 400 000 рублей уставный капитал и 750 000 рублей кредит. Были проанализированы риски, с которыми может столкнуться наша фирма.

Также представлен финансовый план предприятия и рассчитаны показатели эффективности инвестиций. Срок окупаемости проекта - 3 месяца; чистый дисконтированный доход - 12 610,6 тыс. руб.; индекс рентабельности инвестиций - 10,96; внутренняя норма рентабельности - 34,7%.

Похожие работы на - Обоснование коммерческой состоятельности создания малого предприятия по выпечке хлебобулочных изделий

 

Не нашли материал для своей работы?
Поможем написать уникальную работу
Без плагиата!
Без нейросетей!