Основы машиностроения
Задача № 1. Допуски и посадки гладких цилиндрических соединений
Задача 1.1 Определение по заданной посадке основных параметров гладкого
цилиндрического соединения. Построение схем полей допусков заданных посадок. Даны по заданию соединения:
Решение:
. Соединение осуществляется в системе посадка, посадка с зазором.
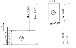
ОТВЕРСТИЕ
Верхнее предельное отклонение: ES = + 87 мкм;
Нижнее предельное отклонение: EI = 0 мкм;
Обозначение отверстия: Ø
мм.
ВАЛ
Верхнее предельное отклонение: es = -72 мкм.
Нижнее предельное отклонение:ei = - 126 мкм;
Обозначение вала: Ø
мм.
. Определяем предельные размеры отверстия и вала:
ОТВЕРСТИЕ
Наибольший предельный размер:
D max = Dном + ES,
D max = 90 + 0,087= 90,087мм.
Наименьший предельный размер:
D min = Dном + EI,min = 90 + 0 = 90 мм.
ВАЛ
Наибольший предельный размер:
d max = d ном + es,
d max =
90 + (-0,072) = 89,028 мм.min = dном + ei, min =
90 + (- 0,0126)= 89,0874 мм.
3. Определяем допуски
размеров деталей:
ОТВЕРСТИЕ
TD = D max - D min,
TD = 90,087 - 90 = 0,087 мм = 87 мкм.
Или: TD = ES - EI,
TD = 90,087 - 90 =
0,087 мкм.
ВАЛ Td = d max - d min,= 89,028 -
89,087 = 0,059 = 59 мкм.
Или: Td = es - ei,= -72 - (- 126) = 54 мкм.
4. Определяем предельные
значения зазоров и допуски посадок:
S max =
D max - d min,max = 90,087 - 89,0874 = 0,9996 мм =
999 мкм.min = D min - d max,min
= 90 - 89,028 = 0,972 мм = 97 мкм.= S max - S min,
TS = 0,9996 - 0,972 = 0,276 = 27 мкм.
5. Определяем допуски формы:
ВАЛА: Тф = 0,3Тр = 0,3 × 25 = 7,5 мкм
ОТВЕРСТИЯ: Тф = 0,3Тр = 0,3 × 40 = 12 мкм
6. Шероховатость поверхности:
ВАЛА: Rzd = 0,05Тd = 0,05 × 25 = 1,25 мкм
ОТВЕРСТИЯ: RzD = 0,05ТD = 0,05 × 40 = 2 мкм
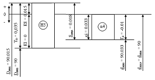
7. Вычерчиваем схему расположения полей допусков на рисунке 1.А.1.
Таблица 1.1- Основные параметры элементов цилиндрических соединений.
|
Наименование параметра
|
Обозначение
|
Размерность
|
Шифры задач
|
|
|
|
А
|
Б
|
В
|
|
Обозначение посадки
|
-
|
-
|
|
|
|
|
Система
|
-
|
-
|
вала
|
вала
|
отверстия
|
|
Вид посадки
|
-
|
-
|
с зазором
|
переходная
|
с натягом
|
|
Предельные отклонения отверстия
|
ES
|
мкм
|
+ 87
|
+ 15
|
-58
|
|
EI
|
мкм
|
0
|
0
|
-93
|
|
Предельные отклонения вала
|
es
|
мкм
|
-72
|
+23
|
0
|
|
ei
|
мкм
|
- 126
|
+33
|
-22
|
|
Обозначение отверстия
|
-
|
мм
|
|
|
|
|
Обозначение вала
|
-
|
мм
|
|
|
|
|
Пред. Размеры отверстия
|
D max
|
мм
|
90,087
|
90,015
|
89,042
|
|
D min
|
мм
|
90
|
90
|
89,007
|
|
Пред. Размеры вала
|
d max
|
мм
|
89,028
|
90,0,23
|
90
|
|
d min
|
мм
|
89,0874
|
90,033
|
89,078
|
|
Допуски размеров отверстия
|
T D
|
мкм
|
87
|
15
|
35
|
|
Допуски размеров вала
|
T d
|
мкм
|
59
|
10
|
22
|
|
Предельные зазоры
|
S max
|
мкм
|
999
|
18
|
-36
|
|
S min
|
мкм
|
972
|
-223
|
-93
|
|
Предельные натяги
|
N max
|
мкм
|
-
|
-
|
-
|
|
N min
|
мкм
|
-
|
-
|
-
|
|
Допускипосадки
|
Т пос
|
мкм
|
-
|
-
|
-
|
|
Допуски формы отверстия
|
Т фD
|
мкм
|
-
|
-
|
-
|
|
Допуски формы вала
|
Т фd
|
мкм
|
-
|
-
|
-
|
|
Шероховатость поверхности отверстия
|
RzD
|
мкм
|
2
|
12,5
|
2
|
|
вала
|
Rzd
|
мкм
|
1,25
|
0,9
|
2
|
Рис. 1.А.1. Схема расположения полей допусков
Рис. 1.А.2. Чертежи соединения и его детали
Рис. 1.Б.1. Схема расположения полей допусков.
Рис. 1.В.1. Схема расположения полей допусков
Задача № 2. Расчет
и назначение посадок
Расчет и выбор посадки с зазором.
Исходные данные для расчета:
номинальный диаметр соединения d = 32 мм;
длина соединения L = 30
мм;
частота вращения вала n =
700 об/мин;
абсолютная вязкость масла
= 0,02 H
c/м;
удельное давление на опору p =
0,46 МПа;
шероховатость поверхностей:
втулки RZD = 2,5 мкм; вала Rzd = 2,5 мкм;
Решение.
1. Определяем значение наивыгоднейшего зазора по формуле
мкм.
2. Определяем величину расчетного наивыгоднейшего зазора с учетом
величины износа поверхности отверстия и вала в период приработки(принимаем 0,7
от R
отверстия и вала):
мкм.
3. Принимаем по таблице ближайшую посадку, удовлетворяющую условию
. Такой посадкой будет Ø 32 H7/f7, у которой
=62 мкм;
=20 мкм и средний зазор будет:
мкм.
4. Определяем наименьшую толщину масляного слоя при максимальном
зазоре выбранной посадки:
мкм.
5. Проверить достаточность слоя смазки: 9.96 ˃ 5
Т. К. минимальный слой смазки больше суммы параметров Rzd шероховатости поверхности отверстия
и вала - посадка выбрана правильно.
6. Схема расположения полей допусков соединения изображена на рис.
3.1 совместно со схемой расположения полей допусков калибров.
Задача № 3. Расчет
и выбор посадок колец подшипников качения
Решение:
1. По заданному шифру подшипника определяем его серию и
присоединительные размеры (таблица [2] или приложение Д).
внутренний диаметр внутреннего кольца d = 32 мм;
наружный диаметр наружного кольца D = 150 мм;
ширина подшипника В = 35 мм;
радиус закругления ( фаска ) r = 3,5 мм;
серия подшипника тяжелая;
2. По таблицам 4.82 и 4.83 или приложению Г, определяем предельные отклонения соответствующих диаметров внутреннего и наружного кольца подшипника качения
Для внутреннего кольца: Для наружного кольца:
d = 60
мм D = 150 мм
ES =
15 мкм es = 0
EJ = 15 мкм ei
= - 18 мкм
3. Определяем значение минимального натяга внутреннего кольца:
где:
- минимальный монтажный натяг, R -
наибольшая радиальная нагрузка, к - коэффициент,
зависящий от геометрических параметров кольца подшипника. Принимаем: для тяжелой серии к = 2,0, В - ширина кольца, мм; r - радиус галтели
( фаска ) кольца, мм
мкм
По таблицам ГОСТ 24347 - 80 ( СТ ЭВ 144 - 75 ) принимаем для шейки вала
поле допусков m6, при котором минимальный натяг
= 20 мкм, а максимальный
= 39 мкм (в соединении с кольцом
подшипника).
4. Пользуясь таблицей 4.82 [4] назначаем поля допуска для корпуса подшипника (наружное кольцо имеет местное погружение) Н7.
Определяем предельные отклонения: ES = + 40 мкм; EJ = 0;
По таблицам ГОСТ 24347 - 82 определяем предельные отклонения размеров шейки вала, es = +
24 мкм; ei = 10 мкм
5. Назначаем допуски цилиндричности для поверхностей шейки вала и
корпуса по зависимости Тф = 0,25Тd и по таблице 2.18 (3)
принимаем ближайшее значение стандартного допуска цилиндричности поверхностей:
ТфD = 10 мкм; Тфd = 4 мкм
6. Назначаем допуски опорных торцов вала и корпуса по таблице 2.28
(3), принимаем степень точности.
ТвD = 40 мкм; Твd = 16 мкм
7. По таблице 4.95 (4) назначаем параметр поверхности Ra
для поверхности шейки вала и гнезда корпуса:
RaD = 1,25 мкм; Rad = 1,25 мкм
8. Проверяем прочность внутреннего кольца при максимальном натяге выбранной посадки:
где: σд - допускаемое напряжение при растяжении для подшипниковой стали: σд = 42 кг * с \см 2
d -
диаметр внутреннего кольца подшипника
Так как максимальный натяг в соединении внутреннего кольца при выбранной
посадке
= 39 мкм, то посадка кольца выбрана
правильно.

Таблица 2. Параметры соединения колец подшипника
качения
|
Наименование параметра
|
Обозна- чение
|
Размер- ность
|
Детали
|
|
|
|
Внутреннее кольцо
подшипника
|
Вал
|
Наружное кольцо подшипника
|
Корпус
|
|
Поле допуска
|
-
|
-
|
LO
|
n6
|
lo
|
H7
|
|
Предельные отклонения:
верхнее
|
ES
|
мкм
|
-15
|
-
|
-
|
0
|
|
es
|
мкм
|
-
|
-19
|
-18
|
-
|
|
Обозначение детали
|
-
|
мм
|
|
|
|
|
|
Предельные натяги
|
Nmax
|
мкм
|
39
|
-
|
|
Nmin
|
мкм
|
10
|
-
|
|
Предельные зазоры
|
Smax
|
мкм
|
-
|
58
|
|
Smin
|
мкм
|
-
|
0
|
|
Допуск цилиндричности
|
Тц
|
мкм
|
-
|
4
|
-
|
10
|
|
Допуск биения торцов
|
Тб
|
мкм
|
-
|
16
|
-
|
40
|
|
Шероховатость
|
Rа
|
мкм
|
-
|
10
|
-
|
40
|
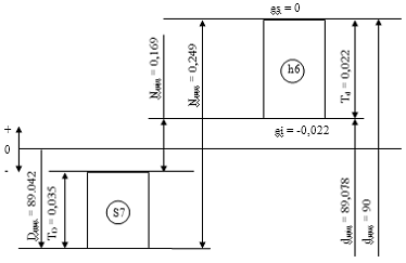
Рис. 3.1. Схемы расположения полей допусков подшипника качения
Рис. 3.2. Чертежи подшипникового соединения и его деталей
Задача №
4. Выбор предельных
отклонений и допусков гладких калибров, расчет их исполнительных размеров
Дано соединение Ø 32 H7/f8.
. По таблице ГОСТ 25347-82 (СТ СЭВ 144-75) находим предельные
отклонения соединяемых деталей:
= +25 мкм; EI = 0 мкм;
Es =
-25 мкм; ei = -59 мкм.
Имеем отверстие Ø
и отверстие
.
Предельные размеры деталей:
Отверстия D max = 32,025мм, D min = 32 мм;
Вала d max = 31,975 мм, d min = 31,950 мм;
. По (8, таблица 1) находим соответствующие отклонения и допуски
калибров для (пробки) и для вала (скобы):
Калибр-пробкаZ = 3мкм, H = 4 мкм, Y = 3;
Калибр-скоба
=3 мкм,
=4 мкм,
=3 мкм.
. Определяем предельные размеры калибров и размеры проходных
калибров после износа:
Калибр-пробка
Размеры проходной части калибра:
Размеры не проходной части калибра;
Калибр-скоба
Размеры не проходной части калибра;
. Определяем исполнительные размеры калибров:
Калибр-пробка
Проходная часть
Непроходная часть
Калибр-скоба
Проходная часть
Непроходная часть
Вычерчиваем схему расположений полей допусков калибров и соединения.
Задача 5. Взаимозаменяемость соединений сложной
формы
Задача 5.1. Расчет шпоночного соединения
Дано: шпонка призматическая, диаметр вала d = 85 мм; характер соединения шпонки: нормальная в пазу вала и нормальная в пазу втулки; назначение: для массового производства.
Решение:
1. По таблице 4.64 [4] ( ГОСТ 23360 - 78 ) определяем размеры
шпонки, шпоночных пазов вала и втулки: размеры шпонки b
h
l ( ширина
высота
диаметр ) 25
14
85 мм;
глубина паза вала t 1 = 9,0 мм;
глубина паза втулки t 2 = 5,4 мм;
2. Исходя из характера соединения шпонки в пазу вала и в пазу
втулки, по Таблице 4.65 [4] ( ГОСТ 23360 - 73 )
- назначаем поля допусков и предельные отклонения для сопрягаемых размеров
шпонки, паза вала и паза втулки по ГОСТ 25347 - 82, результаты заносим в
таблицу 3
3. Определяем предельные значения сопрягаемых размеров шпонки, паза
вала и паза втулки и предельные значения
зазоров или натягов в соединениях шпонки с пазом вала и с пазом втулки.
Результаты заносим в таблицу 3.
. Определяем поля допусков размеров несопрягаемых элементов
соединения пользуясь таблицей 4.66 [ 4 ] и
находим их предельные отклонения по ГОСТ 25347 - 82. Результаты заносим в
таблицу 3.
5. Назначаем допуски симметричности шпоночного паза относительно
оси вала
и параллельности поверхностей шпоночного паза, пользуясь зависимостями:
Тсим = 2 Т ш.п.,; Тпар = 0,5 ш.п.,
где: Тсим - допуск симметричности;
Тпар - допуск ширины шпоночного паза.
Принимаем по таблицам 2.40 и 2.28 ближайшие стандартные значения допусков расположения [4]. Полученные данные заносим в
таблицу 3.
. Пользуясь таблицей 4.64 [4] - назначаем параметры шероховатости
Поверхностей элементов шпоночного соединения.
.Строим схемы расположения полей допусков для посадок шпонки в пазу вала и в пазу втулки; вычерчиваем соединение и его детали с
простановкой соответствующих размеров, полей
допусков, предельных отклонений, допусков
формы и расположения поверхностей и параметров их шероховатости (рис. 4).
Таблица 3. Основные параметры элементов
шпоночного соединения
|
Наименование параметра
|
Обозначение
|
Размерность
|
Деталь и ее элемент
|
|
|
|
Шпонка
|
Паз вала
|
Паз втулки
|
|
Сопрягаемые Размеры ширина
|
в
|
мм
|
|
|
|
|
Зазор в соединении со шпонкой максимальный
|
Smax
|
мкм
|
80
|
80
|
163
|
|
минимальный
|
Smin
|
мкм
|
60
|
60
|
50
|
|
Натяги в соединении со шпонкой максимальный
|
Nmax
|
мкм
|
-
|
-
|
-
|
|
Минимальный
|
Nmin
|
мкм
|
-
|
-
|
-
|
|
Несопрягаемые Размеры Высота шпонки
|
h
|
мм
|
|
-
|
-
|
|
Глубина паза
|
t1
|
мм
|
-
|
9,5(+0,2) (d -
t ) = 4,45-0,4
|
-
|
|
t2
|
мм
|
-
|
-
|
5,4(+0,2) (D + t2 ) = 48,3
|
|
Длина (диаметр)
|
d
|
мм
|
|
|
-
|
|
Допуск симметричности
|
Тсим
|
мкм
|
-
|
60
|
100
|
|
Допуск параллельности
|
Тпар
|
мкм
|
-
|
16
|
25
|
Рис. 4.1. Схема расположения полей допусков шпоночного соединения
Рис. 3.2. Чертежи шпоночного соединения и
его деталей
Задача 5.2. Расчет шлицевого соединения.
Дано: шлицевое соединение с прямоточным профилем зубьев и с указанием посадок по заданным параметрам соединения:
- 10
32 H7/t8
40 H12/a11 × 5 F8/e8
Решение:
1. По таблицам ГОСТ 25347 - 80 определяем предельные отклонения сопрягаемых элементов соединения, находим их предельные
размеры и результаты заносим в таблицу 4.
2. Пользуясь теми же таблицами 4.71 и 4.75 [4] - определяем
предельные отклонения или допускаемые размеры
нецентрирующих элементов соединения, результаты заносим в таблицу 4.
. Назначаем параметры шероховатости на рабочие и нерабочие
поверхности деталей соединения.
. Строим схемы расположения полей допусков центрирующих элементов соединения, вычерчиваем шлицевое соединение в сборе и его
детали, с простановкой соответствующих размеров, полей допусков, предельных
отклонений и параметров шероховатости ( рис. 5 ).
Таблица 4. Параметры элементов шлицевого
соединения
|
Наименование элемента
|
Обозначение
|
Номинальный размер, мм;
поле допуска
|
Предельные размеры, мм
|
|
|
|
Максимальный
|
Минимальный
|
|
Центрирующие элементы:
Диаметр втулки
|
dвт
|
|
32,025
|
32,000
|
|
Диаметр вала
|
dв
|
|
31,975
|
31,936
|
|
Ширина впадины
|
bвп
|
|
5,02
|
5,01
|
|
Толщина зуба
|
bв
|
|
4,080
|
4,962
|
|
Нецентрирующие элементы:
Диаметр втулки
|
Dвт
|
|
40,250
|
40
|
|
Диаметр вала
|
Dв
|
|
40,690
|
39,53
|
Рис. 5.1. Схемы расположения полей допусков шлицевого соединения
Рис. 5.2. Чертежи шлицевого соединения и его деталей.
Задача 5.3. Резьбовое соединение
Дано: резьбовое соединение М12
1,5 резьба метрическая по ГОСТ 8724
- 81.
Решение:
1. Пользуясь данными таблицы 4.24 - рассчитываем значение
номинальных размеров среднего и внутреннего
диаметров соединения:
2 ( D2 ) = 12 -
2 + 0,376 = 10,376мм
номинальный внутренний
диаметр резьбы
d1 ( D1 ) = 12 - 1 + 0,026 = 11,026 мм;
2. Пользуясь таблицей 4.29 [4] - находим предельные отклонения
элементов деталей резьбового соединения и
заносим их в таблицу 5.
3. Рассчитываем предельные значения размеров элементов деталей
резьбового соединения, результаты заносим в
таблицу 5.
. Строим схему расположения полей допусков элементов деталей
резьбового соединения и вычерчиваем соединение в
сборе и подетально, с указанием требуемых размеров, полей допусков и параметров
шероховатости.
Таблица 5. Параметры элементов деталей
резьбового соединения
|
Наименование элементов
|
Обозначение
|
Номинальный размер, мм
|
Отклонение, мкм
|
Предельные размеры,мм
|
|
|
|
Верхнее ES,
es
|
Нижнее EI,
ei
|
max
|
min
|
|
Гайка Наружный диаметр
|
D
|
12,000
|
-
|
-
|
Не реглам.
|
Не реглам.
|
|
Внутренний диаметр
|
D1
|
12,9175
|
+236
|
0
|
13,510
|
12,917
|
|
Средний диаметр
|
D2
|
13,350
|
+160
|
0
|
13,510
|
13,350
|
|
Болт Наружный диаметр
|
d
|
14,000
|
-26
|
-206
|
13,974
|
13,794
|
|
Внутренний диаметр
|
d1
|
12,9175
|
-26
|
-
|
12,981
|
Не реглам.
|
|
Средний диаметр
|
d2
|
13,350
|
-26
|
144
|
13,224
|
13,206
|
|
Гайка Наружный
диаметр
|
D
|
30,000
|
-
|
-
|
-
|
Не реглам.
|
|
Внутренний диаметр
|
D1
|
28,9175
|
+236
|
0
|
29,1535
|
28,9175
|
|
Средний диаметр
|
D2
|
29,3505
|
+170
|
0
|
29,5205
|
29,3505
|
|
Болт Наружный диаметр
|
d
|
30,000
|
-26
|
-208
|
29,3246
|
29,794
|
|
Внутренний диаметр
|
d1
|
28,9175
|
-26
|
-
|
28,8915
|
Не реглам.
|
|
Средний диаметр
|
d2
|
29,3505
|
-26
|
-186
|
29,3245
|
29,1645
|
Рис. 6.1. Схема расположения полей допусков резьбового соединения
Рис. 6.2. Чертежи резьбового соединения и его деталей.
Задача № 6. Выбор универсального мерительного инструмента
Дано: гладкое цилиндрическое соединение Ø
Решение:
Для отверстия:
1. По таблице определяем, что для данного отверстия допускаемая погрешность измерений δ = 10 мкм
2. Пользуясь таблицей определяем погрешность методов измерения -
находим что для измерений этого размера
подходит индикаторный нутромер ГОСТ 868 - 72 с ценой деления отсчетного
устройства 0,01 мм с используемым перемещением измерительного отверстия с
установкой на ноль по концевым мерам второго класса точности с боковинами.
Здесь ∆lim = 5 мкм
Для вала:
1. Так же как и для отверстия определяем, что для данного вала
допустимая погрешность измерений составляет δ
= 10 мкм.
2. По таблице придельных погрешностей методов измерения (измерение наружных размеров) находим, что для измерений этого размера
подходит микрометр гладкий ГОСТ 6507 - 78 и головка пружинная 10 ИПГ 6953 - 81,
у которых ∆lim = 5 мкм.
Т. к. гладкий микрометр более эргономичен и с ним легче работать,
принимаем его универсальным мерительным инструментом со специальным покрытием
для защиты рук (ГОСТ 6507 - 78).
Задача №7.
Выбор посадок для
различных соединений заданной сборочной единицы
Дано: сборочный чертеж.
Требуется подобрать посадки для всех видов соединений, входящих в сборочную единицу, пользуясь методом аналогии или на основе рекомендации литературы.
Можно условно считать, что детали и соединения заданной сборочной единицы в процессе эксплуатации испытывают средние нагрузки и посадки следует принимать при средней точности обработки
сопрягаемых поверхностей.
При выборе посадок так же необходимо правильно выбирать систему посадок и характер соединения.
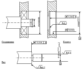
Посадка крышки на фланец с зазором Ø 70 F7/h6
Посадка подшипника на вал Ø 50 H7/n6
Посадка звездочки на вал Ø 30 K9/h9
Посадка на фланец на шпильках Ø 10 D9/l8
Принятые посадки заносим в таблицу 6.
Таблица 6. Посадки соединений сборочной единицы
|
№ соединяемых деталей
|
Применяемая посадка
|
|
4 - 5
|
Ø 75 F7/h6
|
|
9 - 1
|
Ø 130 H7/n6
|
Задача №8. Расчет
уровня стандартизации сборочной единицы
Дано: чертеж сборочной единицы и его спецификация.
Определить: уровень стандартизации заданной сборочной единицы.
Решение:
Уровень стандартизации для данного объекта определяем по формуле:
где: N - общее число деталей в сборочной единице,
n -
число стандартных деталей
Сборочная единица состоит из N = 40 деталей, причем в ней имеется
n = 32
деталей стандартных.
Подставив данные в формулу, получаем:
Задача №9.
Расчет размерных цепей
Дано:
Чертеж сборочной единицы с размерами, входящими в размерные цепи
механизма.
Решение:
1. Выявляем размеры, входящие в размерные цепи, и строим схемы размерных цепей ( рис. 7 ).
Вычерчиваем схемы размерных цепей, одновременно отмечаем увеличивающие и
уменьшающие звенья и размеры.
2. Определяем номинальные размеры замыкающих звеньев цепей:
Цепь № 1:
А∆ = А1 - А2 - А3 - А4=
60-2-6-12 = 40 мм;
Цепь № 2:
ВШ = L + П + Ш= 55 + 25 + 10 = 90 мм
Цепь № 3:
L =
Цепь № 4:
Цепь № 5:
Цепь № 6:
3. Определяем номинальные размеры замыкающих звеньев цепей:
TAΔ = ESAΔ - EiA = 500 - (-500) = 1000 мкм;
4. Определяем точность размерной цепи (методом среднего допуска)
Тср =
где: Тср - средний допуск составляющих звеньев
Т∆ - допуск замыкающих звеньев
m -
количество составляющих звеньев
ТАср =
Наиболее точной является размерная цепь №5, с которой и начинаем решение
задачи, затем решаем цепь №3.
5. Решаем прямую задачу методом среднего допуска и квалитета при
условии полной взаимозаменяемости. Решаем
цепь №5.
а =
где: аср - средняя единица допуска
i -
количество единиц допуска
τ - зависит от диаметра
Пользуясь таблицей 1.8 (3), находим, что полученное значение а = 109
соответствует примерно 11-му квалитету, для которого а = 100.
По той же таблице назначаем стандартные допуски на каждое составляющее
звено, принимая линейные размеры цепи как диаметры:
Сумма допусков составляющих звеньев оказалась меньше заданного допуска
замыкающего звена на 75 мкм, т. е. условие полной взаимозаменяемости не
выполнено.
Для обеспечения полной взаимозаменяемости следует принять для какого-либо
звена нестандартный допуск. Для этой цели наиболее подходящим является звено Б5,
т. е. длина средней части вала, обработка и измерение которой не представляет
затруднений. Т. о. Для звена Б5 имеем:
ТБ5 = 250 + 75 = 114 мкм
Теперь условие полной взаимозаменяемости обеспечено, т. к.
.
Окончательное значение заносим в таблицу.
6. Назначаем предельные отклонения.
Находим координаты середины поля допуска звена Б5, решив
уравнение:
, т. е. 0 = (-60) - (ЕСБ5);
ЕСА5 = -60 мкм.
Тогда предельные отклонения звена Б5 будут:
мкм;
мкм
Полученные значения предельных отклонений звеньев заносим в таблицу 7.
Решаем цепь №3.
7. Расчитав размерную цепь определяем средний допуск размерной цепи
и назначаем полученное значение допуска на каждое звено цепи, корректируя его
величину с учетом номинальных размеров звеньев, сложности их обработки и
измерений, условий работы и других факторов. Правильн решений проверяем по
формуле:
8. Т. о. Сумма допусков всех составляющих звеньев должна быть равна
допуску замыкающего звена 562. Для этой цели наиболее подходящим является звено
А5.
ТА5 = 3 + 562 = 565 мкм
Теперь условие полной взаимозаменяемости обеспечено.
9. Находим координаты середины поля допуска звена А5, решив
уравнение:
, т. е. 0 = ЕСА5 - 60 - 60;
ЕСА5 = 120 мкм.
Предельные отклонения звена А5:
мкм;
мкм
10. Полученные значения предельных отклонений звеньев заносим в
таблицу 7.
Таблица 7. Параметры звеньев размерных цепей
|
Цепей и обозначение звеньев
|
Параметры звеньев
|
|
Номинальный размер,мм
|
Верхнее отклонение Es, мкм
|
Нижнее отклонение Ei,
мкм
|
Середина поля допуска
Ес, мкм
|
Допуск Т мкм
|
Обозначение размера, мм
|
|
Цепь №3
|
|
А∆
|
2
|
+500
|
-500
|
0
|
1000
|
2 0,500
|
|
А1
|
2
|
0
|
-120
|
-60
|
120
|
2 - 0,120
|
|
А2
|
27
|
0
|
-120
|
-60
|
120
|
|
|
А3
|
8
|
+29
|
-29
|
0
|
58
|
|
|
А4
|
36
|
+50
|
-50
|
0
|
100
|
|
|
А5
|
3
|
+339
|
-99
|
120
|
438
|
|
|
Цепь №5
|
|
Цепь Б∆
|
8
|
+600
|
-600
|
0
|
1200
|
8 0,600
|
|
Б∆
|
27
|
0
|
-120
|
-60
|
120
|
|
|
Б1
|
82
|
+95
|
-95
|
0
|
190
|
|
|
Б2
|
9
|
+37,5
|
-37,5
|
0
|
75
|
|
|
Б3
|
+56
|
+95
|
-95
|
0
|
190
|
|
|
Б4
|
+160
|
+102,5
|
-222,5
|
-60
|
325
|
|
|
Б5
|
6
|
+150
|
-150
|
0
|
300
|
6 0,15
|
Задача №10.
Оценка качества
сборочной единицы экспертным методом
подшипник вал калибр стандартизация
Решение:
Получены следующие оценки качества конструкции, данные 10 экспертами, разбитыми на 3 группы по весомости:
|
Группы
|
Оценки
|
|
1
|
4 - 5 - 4 - 4
|
|
2
|
4 - 5 - 5
|
|
3
|
4 - 3 - 4
|
1. Определяем среднюю оценку конструкции:
где: Оср - среднее значение оценки качества конструкции;
Оi - единичная оценка качества
экспертом i - ой группы;
Кгр - групповой эффект весомости оценки качества ( для 1 - ой
группы - 1; для 2 - ой - 0,9; для 3 - ей - 0,7
);
N -
количество экспертов
2. Определяем среднеквадратичное отклонение оценки качества:
где: σ0
- средне квадратичное отклонение оценки;
- среднее значение оценки качества i - ой группы экспертов;
Оср - среднее значение оценки качества;
3. Определяем стандарт среднеквадратического отклонения:
4. Определяем границы рассеивания среднего значения оценки
качества:
где: tа - коэффициент пограничности, tа = 1,38 при вероятности α = 0,8
5. Определяем относительную ошибку расчета оценки качества
конструкции:
где: ∆а - относительная ошибка точности расчета оценки качества,
которая не должна превышать 20 %, как
установлено ГОСТ;
- верхняя оценка качества конструкции;
ВЫВОД: средняя ошибка оценки сборочной единицы -3,73, определенная по
результатам опроса 10-ти экспертов. При увеличении числа экспертов оценка может
быть повышена до -3,86 или снизится до 3,59.