Организация инженерно-технической защиты объекта
Содержание
Введение
Исходные данные
1. Моделирование объектов защиты информации
1.1 Структурирование защищаемой информации
1.2 Моделирование объектов защиты
2. Моделирование угроз безопасности
2.1 Моделирование способов физического проникновения
2.2 Моделирование технических каналов утечки информации
2.3 Моделирование угроз, обусловленных стихийными источниками
3. Разработка мер инженерно-технической защиты информации
4. Реализация инженерно-технических мероприятий
5. Технические характеристики оборудования
6. Заключение
7. Список литературы
Введение
В современном деловом мире происходит процесс миграции
материальных активов в сторону информационных. По мере развития организации
усложняется ее информационная система, основной задачей которой является обеспечение
максимальной эффективности ведения бизнеса в постоянно меняющихся условиях
конкуренции на рынке.
Рассматривая информацию как товар, можно сказать, что
обеспечение информационной безопасности в целом может привести к значительной
экономии средств, в то время как ущерб, нанесенный ей, приводит к материальным
затратам.
Согласно ГОСТ Р 50922-2006, обеспечение информационной
безопасности - это деятельность, направленная на предотвращение утечки
информации, несанкционированных и непреднамеренных воздействий на защищаемую
информацию. Информационная безопасность актуальна как для предприятий, так и
для госучреждений. С целью всесторонней защиты информационных ресурсов и
осуществляются работы по построению и разработке систем информационной
безопасности.
Для эффективной защиты информационных ресурсов на объекте
необходим комплексный подход - применение организационных, правовых,
технических, морально-этических, физических мер.
В данной работе рассматривается инженерно-техническая защита
информации. Целью инженерно-технической защиты объекта является создание вокруг
объекта преград, препятствующих реализации угроз информационной безопасности
при непосредственном контакте злоумышленника с источником информации или при ее
утечке.
Исходные
данные
В данном курсовом проекте в качестве объекта защиты была
выбрана фирма-провайдер Интернет услуг "BestLink". Эта компания
занимается предоставлением Интернет услуг, подключением к сети фирм и частных
пользователей, обеспечением тех поддержки в пределах своих обязанностей. В
настоящее время эта фирма, наряду с другими компаниями, арендует второй этаж
пятиэтажного здания нестандартной конструкции. На первом этаже в здании
находится контрольно-пропускной пункт: у каждого сотрудника обязательно должен
быть пропуск. Вход в здание осуществляется через парадную дверь на
фотоэлементах (раздвижная).
В информационных сетях компании происходит обработка
информации, подлежащей защите. Это такая информация как:
· бухгалтерская
· персональные данные сотрудников,
· базы данных клиентов,
· информация о партнерах, поставщиках
оборудования,
На всех рабочих компьютерах установлены антивирусные
программы, обработка информации осуществляется автоматизированными средствами,
большинство информационных ресурсов хранится в базах данных.
Сведения, связанные с коммерческой деятельностью, доступ к
которым ограничен в соответствии с ГК РФ и федеральными законами, называется
коммерческой тайной. Несанкционированный доступ к данным, составляющим
коммерческую тайну, может привести к значительным материальным потерям, к
потере клиентов, партнеров и имиджа компании в целом.
защита информация моделирование безопасность
1.
Моделирование объектов защиты информации
Моделирование объектов защиты включает:
. Структурирование защищаемой информации
. Разработку моделей объектов защиты.
1.1
Структурирование защищаемой информации
Структурирование информации проводится
путем ее классификации в соответствии со структурой, функциями и задачами
организации с привязкой элементов информации к ее источникам. Детализацию информации
целесообразно проводить до уровня, на котором элементу информации соответствует
один источник.
Схема классификации разрабатывается в виде
графа-структуры, нулевой (верхний) уровень иерархии который соответствует
понятию "защищаемая информация", а n-ый (нижний) - элементам
информации одного источника из перечня источников организации. Основные
требования к схеме классификации: общий признак и полнота классификации,
отсутствие пересечений между элементами классификации одного уровня (одна и та
же информация не должна указываться в разных элементах классификации).
На рисунке 1 представлена граф-структура
фирмы, рассматриваемой в данном курсовом проекте.
Рис. 1. "Граф-структура"
Таблица № 1 разрабатывается на основе схемы классификации
информации. В первом столбце указывается номер элемента информации в схеме
классификации.
Порядковый номер элемента информации соответствует номеру
тематического вопроса в структуре информации. Значность номера равна количеству
уровней структуры, а каждая цифра - порядковому номеру тематического вопроса на
рассматриваемом уровне среди вопросов, относящихся к одному тематическому
вопросу на предыдущем уровне.
Таблица № 1
Данные о защищаемой
информации
|
№ Эл. инф.
|
Элементы
информации
|
Гриф КИ
|
Цена инф, руб.
|
Носитель
информации
|
Местоположение
источника информации
|
|
0111
|
План и работа
сис-мы безопасности
|
КТ
|
25000
|
Отчеты,
договоры со службой безопасности
|
Служба
безопасности
|
|
0121
|
бухгалтерия
|
КТ
|
5000
|
HDD
ПК, договоры, отчёты
|
Бухгалтерия/
серверная
|
|
0122
|
Зарплаты
сотрудникам
|
КТ
|
10000
|
HDD ПК, договоры
|
Бухгалтерия/
серверная
|
|
0123
|
Цены и тарифы
|
КИ
|
5000
|
HDD ПК, положения
|
Бухгалтерия/
серверная
|
|
0211
|
Рабочий план
|
КТ
|
10000
|
HDD
ПК, положения
|
Кабинет
начальника/ серверная
|
|
0212
|
Реклама
|
КИ
|
5000
|
HDD ПК
|
Серверная
|
|
0221
|
БД сотрудников
|
КТ
|
25000
|
HDD ПК, личные дела
|
Архив /
серверная
|
|
0311
|
БД партнёров
|
КТ
|
25000
|
HDD ПК,
|
Серверная
|
|
0312
|
Договоры с
партнёрами
|
КТ
|
20000
|
HDD ПК, договоры
|
Архив /
серверная
|
|
0321
|
БД клиентов
|
КТ
|
25000
|
HDD ПК
|
Серверная
|
|
0322
|
Договоры с клиентами
|
КТ
|
20000
|
HDD ПК, договоры
|
Архив /
серверная
|
Из таблицы видно, что информация содержится как в цифровом
виде, так и в материальном. Таким образом, носителями информации
конфиденциального характера являются магнитные, оптические, бумажные носители:
договора, отчеты и иная документация. Носителями информации так же являются и
сами сотрудники фирмы. Основные места обработки и хранения информации -
бухгалтерия, архивы и в особенности серверная. Её и следует защитить в первую
очередь.
1.2
Моделирование объектов защиты
Для того чтобы приступить к моделированию объектов защиты,
необходимо:
· определить источники защищаемой
информации;
· описать пространственное расположение
основных мест размещения источников защищаемой информации;
· выявить пути распространения носителей с
защищаемой информацией за пределы контролируемых зон;
· описать с указанием характеристик
существующих преград на путях распространения носителей с информацией за
пределы контролируемых зон.
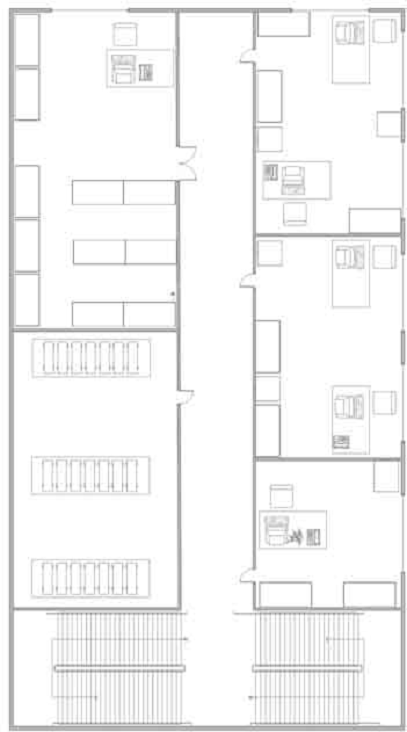
Моделирование проводится на основе пространственных моделей
контролируемых зон с указанием мест расположения источников защищаемой
информации: общей территории (рис2), этажей зданий, плана помещения и
расположения объектов (рис3). На плане помещения организации указываются места
расположения ограждений, экранов, воздухопроводов, батарей и труб отопления,
элементов интерьера и других конструктивных элементов, которые могут
способствовать либо затруднять распространение сигналов с защищаемой
информацией, а также зоны действия технических средств охраны.
Эти параметры объединены в таблице №2.
Рис. 2. "Общий план территории"
Рис.3. "План этажа"
Таблица 2
|
Элемент
характеристики объекта ЗИ
|
Свойства
элемента характеристики объекта ЗИ
|
|
Название
помещения
|
Серверная
|
Архив
|
Бухгалтерия
|
|
Этаж
|
40 м2
|
50 м2
|
20 м2
|
|
Окна,
сигнализация, наличие штор на окнах
|
Окон нет
|
1 окно выходит
на улицу, бронирующая пленка, тонировка.
|
1 окно выходит
на улицу, бронирующая пленка, тонировка
|
|
Двери
|
одностворчатая
дверь, выходящая в коридор
|
одностворчатая
дверь, выходящая в коридор
|
одностворчатая
дверь, выходящая в коридор
|
|
Соседние
помещения, толщина стен
|
Помещения той
же фирмы 15 см
|
Помещения той
же фирмы 15 см
|
Помещения той
же фирмы 15 см
|
|
Помещение над
потолком, толщина перекрытий
|
офисные
помещения, которые арендуют другие предприятия,20 см
|
офисные
помещения, которые арендуют другие предприятия,20 см
|
офисные
помещения, которые арендуют другие предприятия,20 см
|
|
Помещение под
полом, толщина перекрытий
|
офисные
помещения, которые арендуют другие предприятия,20 см
|
офисные
помещения, которые арендуют другие предприятия,20 см
|
офисные
помещения, которые арендуют другие предприятия,20 см
|
|
Вентиляционные
отверстия
|
Есть
|
Есть
|
Есть
|
|
Батареи
отопления
|
Городская сеть
отопления, трубы выходят в соседние помещения (над и под офисом)
|
Городская сеть
отопления, трубы выходят в соседние помещения (над и под офисом)
|
Городская сеть
отопления, трубы выходят в соседние помещения (над и под офисом)
|
|
Цепи
электропитания.
|
220 В, 5
розеток
|
220 В, 2
розетки
|
220 В, 2
розетки
|
|
Телефон
|
Нет
|
Городской
телефон на столе.
|
Городской
телефон на столе бухгалтера.
|
|
Радиотрансляция
|
Нет
|
Нет
|
Нет
|
|
теле \
радиоаппаратура
|
Нет
|
Нет
|
Радиоприёмник
|
|
Бытовые
электроприборы Места размещения
|
лампы дневного
освещения на потолке
|
лампы дневного
освещения на потолке, одна настольная лампа около ПК
|
лампы дневного
освещения на потолке, настольные лампы на каждом столе
|
|
ПЭВМI
|
ПК - сервер
|
1 ПК - в столе
|
2 ПК - в столах
|
|
Телевизионные
средства наблюдения.
|
Нет
|
Нет
|
Нет
|
|
Пожарная
сигнализация. Типы извещателей
|
Нет
|
Нет
|
Нет
|
|
Другие средства
|
Нет
|
Нет
|
Нет
|
2.
Моделирование угроз безопасности
Для моделирования угроз безопасности защищаемого объекта
необходимо проанализировать способы ее хищения, изменения и уничтожения и
оценки наносимого этими способами ущерба.
2.1
Моделирование способов физического проникновения
Действия злоумышленника по добыванию информации либо других
материальных ценностей, определяется поставленными целями и задачами, мотивами,
квалификацией, технической оснащенностью.
При отсутствии информации о злоумышленнике лучше переоценить
угрозу, чем недооценить ее (но при этом возможно увеличение затрат на защиту
информации). Модель злоумышленника можно представить следующим образом:
· злоумышленник представляет серьезного
противника, перед нападением тщательно изучает обстановку вокруг территории
организации, наблюдаемые механические преграды, средства охраны, телевизионного
наблюдения и дежурного освещения;
· имеет в распоряжении современные
технические средства проникновения и преодоления механических преград;
· добывает и анализирует информацию о
расположении зданий и помещений организации, о рубежах охраны, о местах
хранения источников информации, видах и типах средств охраны, телевизионного
наблюдения, освещения и местах их установки;
· проводит анализ возможных путей
проникновения к источникам информации и ухода после выполнения задачи.
В зависимости от квалификации, способов подготовки и
физического проникновения в организацию злоумышленников разделяют на следующие
типы:
ü неподготовленный, который ограничивается
внешним осмотром объекта, проникает в организацию через двери и окна;
ü подготовленный, изучающие систему охрану
объекта и готовящий несколько вариантов проникновения, в основном, путем взлома
инженерных конструкций;
ü квалифицированный, который тщательно
готовится к проникновению.
Анализ возможных путей проникновения показан в таблице №3.
Таблица № 3
Оценка способов физического проникновения
|
№ Эл. инф.
|
Цена инф, руб.
|
Путь
проникновения злоумышленника
|
Оценки
реальности пути
|
Величина угрозы
|
Ранг угрозы
|
|
0111
|
25000
|
через дверь
|
0,6
|
15000
|
4
|
|
|
через окно
|
0,3
|
7500
|
15
|
|
|
пролом стены
|
0,1
|
2500
|
26
|
|
0121
|
5000
|
через дверь
|
0,6
|
3000
|
9
|
|
|
через окно
|
0,3
|
1500
|
20
|
|
|
пролом стены
|
0,1
|
500
|
31
|
|
0122
|
10000
|
через дверь
|
0,6
|
6000
|
8
|
|
|
через окно
|
0,3
|
3000
|
19
|
|
|
пролом стены
|
0,1
|
1000
|
30
|
|
0123
|
5000
|
через дверь
|
0,6
|
3000
|
10
|
|
|
через окно
|
0,3
|
1500
|
21
|
|
|
пролом стены
|
0,1
|
500
|
32
|
|
0211
|
10000
|
через дверь
|
0,6
|
6000
|
7
|
|
|
через окно
|
0,3
|
3000
|
18
|
|
|
пролом стены
|
0,1
|
1000
|
29
|
|
0212
|
5000
|
через дверь
|
0,6
|
3000
|
11
|
|
|
|
через окно
|
0,3
|
1500
|
22
|
|
|
|
пролом стены
|
0,1
|
500
|
33
|
|
|
0221
|
25000
|
через дверь
|
0,6
|
15000
|
2
|
|
|
|
через окно
|
0,3
|
7500
|
13
|
|
|
|
пролом стены
|
0,1
|
2500
|
24
|
|
|
0311
|
25000
|
через дверь
|
0,6
|
15000
|
3
|
|
|
|
через окно
|
0,3
|
7500
|
14
|
|
|
|
пролом стены
|
0,1
|
2500
|
25
|
|
|
0312
|
20000
|
через дверь
|
0,6
|
12000
|
6
|
|
|
|
через окно
|
0,3
|
6000
|
17
|
|
|
|
пролом стены
|
0,1
|
2000
|
28
|
|
|
0321
|
25000
|
через дверь
|
0,6
|
1
|
|
|
|
через окно
|
0,3
|
7500
|
12
|
|
|
|
пролом стены
|
0,1
|
2500
|
23
|
|
|
0322
|
20000
|
через дверь
|
0,6
|
12000
|
5
|
|
|
|
через окно
|
0,3
|
6000
|
16
|
|
|
|
пролом стены
|
0,1
|
2000
|
27
|
|
Вероятность проникновения злоумышленника через окно не
велика, так как фирма расположена на втором этаже здания, окна выходят на
улицу, где злоумышленник может быть легко обнаружен прохожими. В добавок,
пластиковые окна имеют бронирующую тонированную плёнку.
Пролом стены очень маловероятен. Пролом стен требует от
злоумышленника больших физических усилий и производит много шума. Пролом пола
или потолка не рассматривается ввиду очень малой вероятности реализации.
Проникновение через дверь - наиболее вероятный путь проникновения: пройти через
КПП не составит труда, т.к. в здании находится множество офисов. Каждый день
мимо охраны проходит большое количество новых людей: клиенты на собеседования,
партнёры на деловые переговоры. Через дверь можно проникнуть либо получив
ключи, либо взломав замок (или дверь).
2.2
Моделирование технических каналов утечки информации
Обнаружение и распознавание каналов утечки
информации производится по их демаскирующим признакам.
Моделирование технических каналов утечки информации по
существу является единственным методом достаточно полного исследования их
возможностей с целью последующей разработки способов и средств защиты
информации.
Таблица № 4
|
№ Эл. инф.
|
Цена инф.
|
Ист. сигнала
|
Путь утечки
информации
|
Вид канала
|
Оценки реал-ти
пути
|
Вел-на угрозы
|
Ранг угрозы
|
|
0111
|
25000
|
ПК
|
съем с
монитора, копирование c HDD
|
оптический
|
0,2
|
5000
|
11
|
|
|
|
голос
|
через окна,
стены, дверь, батареи
|
акустический
|
0,3
|
7500
|
5
|
|
|
|
телефон
|
через окно,
стены, двери, кабель
|
радиоэлектронный
|
0,3
|
7500
|
6
|
|
|
|
текст
|
бумаги
|
матер. -
вещств.
|
0,2
|
5000
|
12
|
|
0121
|
5000
|
ПК
|
съем с
монитора, копирование c HDD
|
оптический
|
0,4
|
2000
|
30
|
|
|
|
голос
|
через окна,
стены, дверь, батареи
|
акустический
|
0,2
|
1000
|
35
|
|
|
|
телефон
|
через окно,
стены, двери, кабель
|
радиоэлектронный
|
0,1
|
500
|
41
|
|
|
|
текст
|
бумаги
|
матер. - вещств
|
0,3
|
1500
|
33
|
|
0122
|
10000
|
ПК
|
съем с
монитора, копирование c HDD
|
оптический
|
0,4
|
4000
|
21
|
|
|
|
голос
|
через окна,
стены, дверь, батареи
|
акустический
|
0,2
|
2000
|
31
|
|
|
|
телефон
|
через окно, стены,
двери, кабель
|
радиоэлектронный
|
0,1
|
1000
|
36
|
|
|
|
текст
|
бумаги
|
матер. - вещств
|
0,3
|
3000
|
22
|
|
0123
|
5000
|
ПК
|
съем с
монитора, копирование c HDD
|
оптический
|
0,4
|
2000
|
32
|
|
|
|
голос
|
через окна,
стены, дверь, батареи
|
акустический
|
0,2
|
1000
|
37
|
|
|
|
телефон
|
через окно,
стены, двери, кабель
|
радиоэлектронный
|
0,1
|
500
|
42
|
|
|
|
текст
|
бумаги
|
матер. - вещств
|
0,3
|
1500
|
34
|
|
0211
|
10000
|
ПК
|
съем с
монитора, копирование c HDD
|
оптический
|
0,1
|
1000
|
38
|
|
|
|
голос
|
через окна,
стены, дверь, батареи
|
акустический
|
0,3
|
3000
|
23
|
|
|
|
телефон
|
через окно,
стены, двери, кабель
|
радиоэлектронный
|
0,1
|
1000
|
40
|
|
|
|
текст
|
бумаги
|
матер. - вещств
|
0,5
|
5000
|
16
|
|
0212
|
5000
|
ПК
|
съем с
монитора, копирование c HDD
|
оптический
|
0,6
|
3000
|
24
|
|
|
|
голос
|
через окна,
стены, дверь, батареи
|
акустический
|
0,2
|
1000
|
39
|
|
|
телефон
|
через окно,
стены, двери, кабель
|
радиоэлектронный
|
0,1
|
500
|
43
|
|
|
|
текст
|
бумаги
|
матер. - вещств
|
0,1
|
500
|
44
|
|
0221
|
25000
|
ПК
|
съем с
монитора, копирование c HDD
|
оптический
|
0,4
|
10000
|
3
|
|
|
|
голос
|
через окна,
стены, дверь, батареи
|
акустический
|
0,2
|
5000
|
13
|
|
|
|
телефон
|
через окно,
стены, двери, кабель
|
радиоэлектронный
|
0,1
|
2500
|
25
|
|
|
|
текст
|
бумаги
|
матер. - вещств
|
0,3
|
7500
|
4
|
|
0311
|
25000
|
ПК
|
съем с
монитора, копирование c HDD
|
оптический
|
0,6
|
15000
|
1
|
|
|
|
голос
|
через окна,
стены, дверь, батареи
|
акустический
|
0,1
|
2500
|
26
|
|
|
|
телефон
|
через окно,
стены, двери, кабель
|
радиоэлектронный
|
0,1
|
2500
|
28
|
|
|
|
текст
|
бумаги
|
матер. - вещств
|
0,2
|
5000
|
14
|
|
0312
|
20000
|
ПК
|
съем с
монитора, копирование c HDD
|
оптический
|
0,3
|
6000
|
7
|
|
|
|
голос
|
через окна,
стены, дверь, батареи
|
акустический
|
0,2
|
4000
|
17
|
|
|
|
телефон
|
через окно,
стены, двери, кабель
|
радиоэлектронный
|
0,2
|
4000
|
19
|
|
|
|
текст
|
бумаги
|
матер. - вещств
|
0,3
|
6000
|
8
|
|
0321
|
25000
|
ПК
|
съем с
монитора, копирование c HDD
|
оптический
|
0,6
|
15000
|
2
|
|
|
|
голос
|
через окна,
стены, дверь, батареи
|
акустический
|
0,1
|
2500
|
27
|
|
|
|
телефон
|
через окно,
стены, двери, кабель
|
радиоэлектронный
|
0,1
|
2500
|
29
|
|
|
|
текст
|
бумаги
|
0,2
|
5000
|
15
|
|
0322
|
20000
|
ПК
|
съем с
монитора, копирование c HDD
|
оптический
|
0,3
|
6000
|
9
|
|
|
|
голос
|
через окна,
стены, дверь, батареи
|
акустический
|
0,2
|
4000
|
18
|
|
|
|
телефон
|
через окно,
стены, двери, кабель
|
радиоэлектронный
|
0,2
|
4000
|
20
|
|
|
|
текст
|
бумаги
|
матер. - вещств
|
0,3
|
6000
|
10
|
Технические каналы утечки информации
(ТКУИ): оптический канал утечки не учитываем, т.к. через окно снять информацию
с монитора очень сложно, в кабинетах на окнах есть жалюзи.
Радиоэлектронный канал: в помещении есть
выход различных электрических кабелей за пределы контролируемой зоны (КЗ):
телефон, сигнализация, сетевые кабели, розетки, офисные средства, лампы.
Акустический: вентиляционная труба и трубы
батарей выходят за пределы КЗ, возможно подслушивание разговоров. Также
возможно прослушивание разговоров через дверь.
Материально-вещественный: получение
информации на бумажных носителях из мусорных корзин и документации.
2.3
Моделирование угроз, обусловленных стихийными источниками
Для оценки угроз от стихийных бедствий, таких как пожар,
землетрясение, наводнение построим таблицу №5.
Таблица № 5
Оценка угроз, обусловленных стихийными
источниками
|
Номер элемента
информации
|
Цена информации
|
Вид стихийной
угрозы
|
Оценки
реальности угрозы
|
Величина угрозы
|
Ранг угрозы
|
|
0111
|
25000
|
Пожар
|
0,6
|
15000
|
4
|
|
|
Наводнение
|
0,3
|
7500
|
15
|
|
|
Землетрясение
|
0,1
|
2500
|
26
|
|
0121
|
5000
|
Пожар
|
0,6
|
3000
|
9
|
|
|
Наводнение
|
0,3
|
1500
|
20
|
|
|
Землетрясение
|
0,1
|
500
|
31
|
|
0122
|
10000
|
Пожар
|
0,6
|
6000
|
8
|
|
|
Наводнение
|
0,3
|
3000
|
19
|
|
|
Землетрясение
|
0,1
|
1000
|
30
|
|
0123
|
5000
|
Пожар
|
0,6
|
3000
|
10
|
|
|
Наводнение
|
0,3
|
1500
|
21
|
|
|
Землетрясение
|
0,1
|
500
|
32
|
|
0211
|
10000
|
Пожар
|
0,6
|
6000
|
7
|
|
|
Наводнение
|
0,3
|
3000
|
18
|
|
|
Землетрясение
|
0,1
|
1000
|
29
|
|
0212
|
5000
|
Пожар
|
0,6
|
3000
|
11
|
|
|
Наводнение
|
0,3
|
1500
|
22
|
|
|
Землетрясение
|
0,1
|
500
|
33
|
|
0221
|
25000
|
Пожар
|
0,6
|
15000
|
2
|
|
|
Наводнение
|
0,3
|
7500
|
13
|
|
|
Землетрясение
|
0,1
|
2500
|
24
|
|
0311
|
25000
|
Пожар
|
0,6
|
15000
|
3
|
|
|
Наводнение
|
0,3
|
7500
|
14
|
|
|
Землетрясение
|
0,1
|
2500
|
25
|
|
0312
|
20000
|
Пожар
|
0,6
|
12000
|
6
|
|
|
Наводнение
|
0,3
|
6000
|
17
|
|
|
Землетрясение
|
0,1
|
2000
|
28
|
|
0321
|
25000
|
Пожар
|
0,6
|
15000
|
1
|
|
|
Наводнение
|
0,3
|
7500
|
12
|
|
|
Землетрясение
|
0,1
|
2500
|
23
|
|
0322
|
20000
|
Пожар
|
0,6
|
12000
|
5
|
|
|
Наводнение
|
0,3
|
6000
|
16
|
|
|
Землетрясение
|
0,1
|
2000
|
27
|
Землетрясения маловероятны, но не
исключаются. Пожар может нанести большой ущерб, не смотря на установленную
пожарную сигнализацию. Наводнение рассматривалось как повреждение отопительной
системы (прорыв труб). Это явление тоже маловероятно, однако может нанести
серьёзный ущерб информации, как на материальных носителях, так и техническим
средствам обработки и хранения информации.
3.
Разработка мер инженерно-технической защиты информации
Так как не существует формальных методов
синтеза вариантов предотвращения угроз безопасности информации, то разработка
мер по защите информации проводится эвристическим путем на основе знаний и
опыта соответствующих специалистов. Однако в интересах минимизации ошибок
процесс разработки должен соответствовать следующим рекомендациям.
Разработку мер защиты информации
целесообразно начинать с угроз, имеющих максимальное значение, далее - с
меньшей угрозой и так далее до тех пор, пока не будут исчерпаны выделенные
ресурсы. Такой подход гарантирует, что даже при малых ресурсах хватит средств
для предотвращения наиболее значимых угроз. Для каждой угрозы разрабатываются
меры (способы и средства) по защите информации.
Таблица №6
|
№ Эл. Инф.
|
Цена инф, руб.
|
тип угрозы
|
величина угрозы
|
способы
предотвращения угрозы
|
средства предотвращения
угрозы
|
|
0111
|
25000
|
Проникновение
через дверь
|
15000
|
Обеспечить
контроль доступа, организовать физические преграды, уничтожение бумажного
мусора
|
Стеклопакет с
бронирующей плёнкой, датчики на окнах и дверях + датчики движения, камера,
шредер, жалюзи, сейф.
|
|
|
Проникновение
через окно
|
7500
|
|
|
|
|
Утечка через
Эл. цепь
|
7500
|
|
|
|
|
Копирование
инф. HDD
|
5000
|
|
|
|
|
Пожар
|
15000
|
|
|
|
|
Наводнение
|
7500
|
|
|
|
0121
|
5000
|
Проникновение
через дверь
|
3000
|
контроль
доступа, уничтожение бумажного мусора,
|
Стеклопакет с
бронирующей плёнкой, датчики на окнах и дверях + датчики движения, камера,
шредер, жалюзи, сейф.
|
|
|
Проникновение
через окно
|
500
|
|
|
|
|
Утечка через
Эл. цепь
|
500
|
|
|
|
|
Копирование
инф. HDD
|
2000
|
|
|
|
|
Пожар
|
3000
|
|
|
|
|
Наводнение
|
1500
|
|
|
|
0122
|
10000
|
Проникновение
через дверь
|
6000
|
контроль
доступа, уничтожение бумажного мусора,
|
Стеклопакет с
бронирующей плёнкой, датчики на окнах и дверях + датчики движения, камера,
шредер, жалюзи, сейф.
|
|
|
Проникновение
через окно
|
3000
|
|
|
|
|
Утечка через
Эл. цепь
|
1000
|
|
|
|
|
Копирование
инф. HDD
|
4000
|
|
|
|
|
Пожар
|
6000
|
|
|
|
|
Наводнение
|
3000
|
|
|
|
0123
|
5000
|
Проникновение
через дверь
|
3000
|
контроль
доступа, уничтож. бумажного мусора, слежение за окном
|
Стеклопакет с
бронирующей плёнкой, датчики на окнах и дверях + датчики движения, камера,
шредер, жалюзи, сейф.
|
|
|
Проникновение
через окно
|
2000
|
|
|
|
|
Утечка через
Эл. цепь
|
1500
|
|
|
|
|
Копирование
инф. HDD
|
500
|
|
|
|
|
Пожар
|
3000
|
|
|
|
|
Наводнение
|
1500
|
|
|
|
0211
|
10000
|
Проникновение
через дверь
|
6000
|
контроль
доступа, уничтож. бумажного мусора, слежение за окном
|
Стеклопакет с
бронирующей плёнкой, датчики на окнах и дверях + датчики движения, камера,
шредер, жалюзи, сейф.
|
|
|
Проникновение
через окно
|
3000
|
|
|
|
|
Утечка через
Эл. цепь
|
1000
|
|
|
|
|
Копирование
инф. HDD
|
1000
|
|
|
|
|
Пожар
|
6000
|
|
|
|
|
Наводнение
|
3000
|
|
|
|
0212
|
5000
|
Проникновение
через дверь
|
300
|
контроль
доступа, уничтож. бумажного мусора, слежение за окном
|
Стеклопакет с
бронирующей плёнкой, датчики на окнах и дверях + датчики движения, камера,
шредер, жалюзи, сейф.
|
|
|
Проникновение
через окно
|
3000
|
|
|
|
|
Утечка через
Эл. цепь
|
1500
|
|
|
|
|
Копирование
инф. HDD
|
500
|
|
|
|
|
Пожар
|
3000
|
|
|
|
|
Наводнение
|
1500
|
|
|
|
0221
|
25000
|
Проникновение
через дверь
|
15000
|
контроль
доступа, уничтож. бумажного мусора, слежение за окном
|
Стеклопакет с
бронирующей плёнкой, датчики на окнах и дверях + датчики движения, камера,
шредер, жалюзи, сейф.
|
|
|
Проникновение
через окно
|
7500
|
|
|
|
|
Утечка через
Эл. цепь
|
2500
|
|
|
|
|
Копирование
инф. HDD
|
10000
|
|
|
|
|
Пожар
|
15000
|
|
|
|
|
Наводнение
|
7500
|
|
|
|
0311
|
25000
|
Проникновение
через дверь
|
15000
|
контроль
доступа, уничтож. бумажного мусора, слежение за окном
|
Стеклопакет с
бронирующей плёнкой, датчики на окнах и дверях + датчики движения, камера,
шредер, жалюзи, сейф.
|
|
|
Проникновение
через окно
|
7500
|
|
|
|
|
Утечка через
Эл. цепь
|
2500
|
|
|
|
|
Копирование
инф. HDD
|
15000
|
|
|
|
|
Пожар
|
15000
|
|
|
|
|
Наводнение
|
7500
|
|
|
|
0312
|
20000
|
Проникновение
через дверь
|
12000
|
контроль
доступа, уничтож. бумажного мусора, слежение за окном
|
Стеклопакет с
бронирующей плёнкой, датчики на окнах и дверях + датчики движения, камера,
шредер, жалюзи, сейф.
|
|
|
Проникновение
через окно
|
3000
|
|
|
|
|
Утечка через
Эл. цепь
|
4000
|
6000
|
|
|
|
|
Пожар
|
12000
|
|
|
|
|
Наводнение
|
3000
|
|
|
|
0321
|
25000
|
Проникновение
через дверь
|
15000
|
контроль
доступа, уничтож. бумажного мусора, слежение за окном
|
Стеклопакет с
бронирующей плёнкой, датчики на окнах и дверях + датчики движения, камера,
шредер, жалюзи, сейф.
|
|
|
Проникновение
через окно
|
7500
|
|
|
|
|
Утечка через
Эл. цепь
|
2500
|
|
|
|
|
Копирование
инф. HDD
|
15000
|
|
|
|
|
Пожар
|
15000
|
|
|
|
|
Наводнение
|
7500
|
|
|
|
0322
|
20000
|
Проникновение
через дверь
|
12000
|
контроль
доступа, уничтож. бумажного мусора, слежение за окном
|
Стеклопакет с
бронирующей плёнкой, датчики на окнах и дверях + датчики движения, камера,
шредер, жалюзи, сейф.
|
|
|
Проникновение
через окно
|
3000
|
|
|
|
|
Утечка через
Эл. цепь
|
4000
|
|
|
|
|
Копирование
инф. HDD
|
6000
|
|
|
|
|
Пожар
|
12000
|
|
|
|
|
Наводнение
|
3000
|
|
|
Так как меры по защите информации
рассматриваются для каждой угрозы, то в контролируемой зоне возможно их
дублирование. Например, полуоткрытая дверь в служебное помещение может способствовать
как наблюдению документов и экранов ПК в помещении, так и подслушиванию
ведущихся в нем разговоров. Установленные на дверь устройство для
автоматического ее закрытия и кодовый замок предотвращают утечку информации по
этим каналам.
После объединения способов и средств
защиты информации освобожденные ресурсы могут быть использованы для
предотвращения очередных по рангу угроз.
Следовательно, разработка мер по
предотвращению угроз представляет собой итерационный процесс, каждая итерация
которого выполняется в 2 этапа:
· разработка локальных мер
по предотвращению каждой из выявленных угроз;
· интеграция (объединение)
локальных мер.
Условием для перехода к следующей итерации
является освобождение в результате объединения способов и средств защиты
информации части ресурса, достаточной для предотвращения очередной угрозы.
4.
Реализация инженерно-технических мероприятий
· На окна с бронирующей плёнкой установлены
датчики открытия и жалюзи, что позволяет уменьшить вероятность физического
проникновения и съема информации через акустический и оптический каналы.
· На двери поставлена сигнализация открытия
и доводчик, что позволяет уменьшить вероятность физического проникновения.
· Установлен сейф-шкафы в архивное помещение
для документов, это позволяет уменьшить вероятность утечки информации по
материально-вещественному каналу
· В помещения установлены датчики движения,
которые позволяют уменьшить вероятность физического проникновения.
· Шредеры позволяют избежать выброса в
корзину конфиденциальных документов, уменьшая вероятность утечки информации по
материально-вещественному каналу.
· Все провода экранированы
· Камера видеонаблюдения, позволяет
уменьшить вероятность физического проникновения злоумышленника.
План размещения на рисунке 4
Рис 4.
5.
Технические характеристики оборудования
) Купольная цветная видеокамера с ИК-подсветкой.
Матрица: 1/3" Sharp CCD
Разрешение: 420 ТВЛ
Мин. освещенность: 0.01 лк (0 при вкл. ИК)
Дальность ИК-подсветки: 8-10 м
Объектив: 6 мм
Микрофон
Источник питания: (DC) 12В
Цена 2 304 руб
) Шредер PRO Ju-Ju
Способ резки Перекрестный
Размер частицы 4x25 мм
Уровень секретности 3
Кол-во уничтожаемых листов (стандарт) 3 лист
Ширина гнезда подачи 130 мм
Емкость корзины 5 л
Мощность двигателя 60 Вт
Скорость уничтожения 75 мм/сек
Уничтожение кредитных карт Нет
На колесиках Нет
Уничтожение компакт-дисков Нет
Уровень шума 62 дБ
Вес 3.2 кг
Высота 248 мм
Ширина 235 мм
Глубина 185 мм
Цена 2 650 руб.
) Дверной доводчик Quantum QM-D71
· 2-х скоростной дверной доводчик
· Для дверей массой до 45 кг
· Габариты: 180х62х43 мм
· Цвет: белый, серебряный, коричневый
Цена 660 руб.
) Проводной датчик открытия двери/окна
Извещатель магнитно-контактный (герконовый) реагирует на размыкание
двух частей датчика. Может быть установлен на дверь или окно для обнаружения их
открытия.
Расстояние между магнитом и герконом, мм
· при размыкании контактов, более 45
· при замыкании контактов, менее10
· Диапазон коммутируемых напряжений, В1,0 ÷ 72,0
· Диапазон коммутируемых токов, А 0,0001 ÷ 0,25
· Диапазон рабочих температур,°С-40 ÷ +75
· Габаритные размеры, мм35×10×10
· Масса, не более, кг0,015
Цена 50 руб.
) Датчик движения ИК Steinel - IS 360 TRIO WHT,
· нагрузка 1000Вт,
· угол охвата 360°,
· зона обнаружения до 12м,
· 230В/50Гц, 2-2000лк,
· время включения 8сек - 20мин
Цена 3 750 руб.
) П 212-112
Извещатель пожарный дымовой оптико-электронный автономный ИП
212-112 предназначен для обнаружения загораний, сопровождающихся появлением
дыма малой концентрации в закрытых помещениях различных зданий и сооружений,
путем регистрации отраженного от частиц дыма оптического излучения и выдачи
тревожных извещений в виде громких звуковых сигналов.
Цена 280 руб.
) Секционный шкаф-сейф МШ 3
Секционный шкаф-сейф,
· 3 секции, в каждой съемная полка,
· стальной лист 2мм, замок "CLASS"
(Россия) секретность 100000,покрытие полимер RAL7035,Размер: 1280х450х350мм.,
Вес: 65кг.,
· Объем: 0, 20м3.
Цена 12,994 руб
6.
Заключение
Защита информации представляет в настоящее
время одно из ведущих направлений обеспечения безопасности государства,
организации, отдельного человека. Чем более четко определены источники
защищаемой информации, места и условия их нахождения, способы и средства
добывания информации злоумышленником, тем конкретнее могут быть сформулированы
задачи по защите и требования к соответствующим средствам. Конкретность задач и
требований - необходимое условие целенаправленного и рационального
использования выделенных ресурсов.
Источники информации определяются в
результате структурирования защищаемой информации, а места и условия их
нахождения - на основе результатов моделирования объектов защиты.
В данной курсовой работе были проанализированы помещения
фирмы "BestLink", предоставляющей услуги интернет-связи на предмет их
инженерно-технической защиты.
Были рассмотрены физический, акустический,
радиоэлектронный, материально-вещественный, стихийный каналы утечки информации.
Наиболее значимыми из них являются физическое проникновение через дверь,
подслушивание, выброшенные в мусорную корзину документы.
Затраты на инженерно-технические меры по
защите информации на предприятии оказались довольно небольшими по сравнению со
стоимостью информации ограниченного доступа и величиной угрозы. Общая цена
защищаемой информации составила 175 000 руб. Предложенные меры защиты имеют
общую цену 77 486 руб.
Данные по затраченным средствам
предоставлены в таблице 7.
Таблица № 7
|
Название
устройства
|
кол-во, шт
|
цена, руб
|
кол-во*цена
|
|
Камера
видеонаблюдения
|
6
|
2 304
|
13824
|
|
Датчик движения
|
2
|
3 750
|
7500
|
|
Извещатель
пожарный
|
7
|
280
|
1960
|
|
Шредер
|
4
|
2 650
|
10600
|
|
Сейф-шкаф
|
3
|
12994
|
38982
|
|
Дверной
доводчик
|
6
|
660
|
3960
|
|
датчик открытия
двери/окна
|
13
|
50
|
650
|
|
Итог
|
77476
|
7.
Список литературы
1. http://www.grand-prix.ru/catalog/index2.
php? SECTION_ID=1939
2. http://uztt.ru/shkafy-seyfy_metallicheskie
. http://www.foroffice.ru/products/description/2651.html
4. http://electronics.
wikimart.ru/security/sensor/model/3877838
. http://www.accordsb.ru/products/acsystems/dov/41e66d5b76c7c