Салон красоты 'Нефертити'

  • Вид работы:
    Бизнес-план
  • Предмет:
    Эктеория
  • Язык:
    Русский
    ,
    Формат файла:
    MS Word
    665,67 kb
  • Опубликовано:
    2012-03-12
Вы можете узнать стоимость помощи в написании студенческой работы.
Помощь в написании работы, которую точно примут!

Салон красоты 'Нефертити'

Красноярский кооперативный техникум экономики, коммерции и права

Салон красоты "Нефертити"












Красноярск 2008 год.

Содержание

Резюме

1.       Обоснование выбора товара

1.1 План помещения

2.       Оценка рынка сбыта

3.       Возможные конкуренты

3.1 Пример рекламного щита

4.       План маркетинга

5.       Обоснование выбора поставщиков

.        Обоснование местоположения фирмы

7.       Организационно-правовая форма коммерческой деятельности

8.       Организационная структура фирмы

9.       Персонал

.Стратегия финансирования

. Риски проекта и страхование

Резюме


С древних времен люди старались выглядеть привлекательно, пытались ухаживать за собой, прибегая к различным косметическим средствам.

Возросшие потребности современной жизни служат причиной создания нашего салона красоты. Доход зависит от количества людей, посещающих наш салон и вкладываемых ими сумм. Предприятие не производит никакого товара, следовательно, нет потребности в поиске рынка сбыта. Затраты составляются: аренда помещения, закупочная стоимость оборудования, косметических средств и мелкого инвентаря, заработная плата работающего персонала, оплата за электроэнергию, водоснабжение, отопление.

Создаваемое дело сможет обеспечить большую прибыль, производство не будет убыточным и даже принесет доход в наш бюджет.

Вид предлагаемых услуг будет иметь невысокую себестоимость и, соответственно, доступную цену для большинства клиентов.

В качестве рабочей силы будут использоваться умения и способности квалифицированных специалистов.

Салон красоты "Нефертити" является рентабельным - это говорит о том, что можно открывать предприятие, а через некоторое время задуматься о его расширении. Для этого будет составлен еще один бизнес-план.


1. Обоснование выбора товара


Предприятие будет развиваться по заранее продуманной стратегии - дифференциация товаров, которая заключается в том, что наши услуги будут выделяться в толпе конкурентов благодаря высокому качеству работы и новыми, никому не известными свойствами и технологиями.

Предоставляемые услуги:

Перечень услуг

Стоимость услуг

Маникюр

200 руб.

Наращивание ногтей

700 руб.

Педикюр

250 руб.

Массаж

300

Солярий

1мин. - 7 руб.

Стрижка волос

160 руб.

Мелирование волос

700 руб.

Химическая завивка волос

700 руб.

Окраска волос

400 руб.

Африканские косички

2000 руб.

Наращивание волос

1500 руб.

Профессиональная укладка волос

200 руб.

Макияж

150 руб.

Маски для лица

150 руб.

Удаление волос с тела

180 руб.

Грязевые и косметические ванны

500 руб.

Ароматерапия

400 руб.

Пирсинг

300 руб.

Прокалывание ушей пистолетом

350 руб.

Компьютерная подборка: стрижки, макияжа, цвета волос, прически и т.д.

бесплатно

В нашем салоне будет действовать для постоянных посетителей система скидок; характерные свойства услуг, которые делают их единственным в своем роде; соответствие установленным стандартам; высокое качество услуг; квалификация и опыт персонала; высокий уровень технологий; профессиональные средства. Специализация - оказание традиционных и малозатратных услуг. Главная характеристика нашего классического салона "Нефертити" - удобные месторасположение и график работы.

По сравнению с обычной парикмахерской такой салон предлагает расширенный перечень услуг, куда входя, кроме перечисленных выше, маникюр, педикюр, услуги косметического кабинета и солярия. В подобных заведениях можно получить консультацию мастера, который хорошо ориентируясь в модных тенденциях, поможет создать новый образ, а так же предложит широкую гамму услуг по уходу за волосами, кожей лица и тела.

Исходя из того, что салон использует для своей работы все новые технологии и оборудование, постоянно производит обновление и находится в курсе всех новинок и спроса, ожидается, что наш салон достаточно долго будет новинкой на рынке.


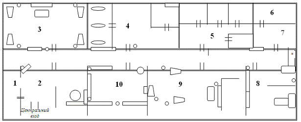
1-раздевалка 6-пирсинг кабинет

2-приемная 7-тату кабинет

3-парикмахерская 8-административно-бытовые кабинеты

- солярий 9-парикмахерская

5-касметология 10-комната ожидания

2. Оценка рынка сбыта


Пользоваться услугами нашего салона будет большая масса жителей города Красноярска, а так же приезжие граждане, однако спрос на услуги зависит от следующих факторов:

ü  от усиленной рекламной компании, подчеркивающей качество и доступность услуг;

ü  от целевой рекламы, то есть от информированности о преимуществах оказываемых услуг;

ü  от применения активного маркетинга.

За счет удобного графика работы и географического местоположения ожидается постоянный поток клиентов.

Географическое расположение основного рынка сбыта в г.Красноярске.

Оплата в салоне может производиться как наличными деньгами, так и платежными картами.

3. Возможные конкуренты

Крупнейшими салонами, оказывающими аналогичные услуги, для нашего салона являются: "Баттерфляй", "Татьянин день", "Миледи". Эти салоны уделяют большое внимание рекламе свих услуг: размещение рекламных материалов в специализированных печатных изданиях и на телевидении, созданию красочной и целевой рекламы; дизайну помещения, особым услугам, корпоративному стилю одежды персонала, даже бесплатной чашке кофе и т.д.

Работает квалифицированный штат сотрудников, имеются поставщики профессионального оборудования и материалов.

Цены на алогичные услуги конкурентов не имеют большого отличия от цен на услуги нашего салона, однако качество наших услуг выше.

Мы предлагаем пример рекламного щита нашего салона, который будет сразу "бросаться" в глаза проезжающим и проходящим мимо своей яркостью. В его оформлении будут использоваться психологические средства воздействия на психику и восприятие человека, такие как:

·        бегущая строка, зазывающая посетителей;

·        буквы выделены таким способом как "бегущие муравьи";

·        основной символ салона будет сменяться кадрами самого салона и работой персонала;

·        подчеркивание удобного местоположения и графика работы;

·        яркая ночная подсветка.

3.1 Пример рекламного щита

4. План маркетинга

Цены на услуги будут определяться в связи с затратами на:

·        используемые материалы;

·        коммунальные услуги;

·        электроэнергию;

·        выплату заработной платы рабочему персоналу.

·        прочие затраты.

При реализации нашего салона мы будем использовать затратно - маркетинговый метод, который заключается в том, что суммируются все затраты и расходы на маркетинговые мероприятия, так же этот метод считается самым надежным, творческим, но и самым сложным методом.

Мы рассчитываем, что наш бизнес окупится в течение 30 месяцев, но прибыль ожидается получить уже на 6 месяце работы.

 

5. Обоснование выбора поставщиков


Сырье для производства будет поставляться двумя известными фирмами: AVON и ORIFLAM, так как у них качественная, проверенная, и надежная продукция.

Поставка товаров, таких как краски, крема, лаки, ножницы, перекиси косметические средства для масок и т.д. будет зависеть от меры их израсходования, а, следовательно, таким образом, будет происходить бесперебойная поставка товаров, а их оплата осуществляться по мере их доставки.

 

6. Обоснование местоположения фирмы


г.Красноярск для реализации нашей фирмы был выбран исходя из тех характеристик, что:

·        в городе проживают жители всех возрастов;

·        так как это развивающийся город здесь множество перспективных и самых обычных профессий;

·        численность около 1000000 человек, которая с каждым годом увеличивается.

Салон будет располагаться в Северном районе так как:

ü  это самый новый, перспективный и развивающийся район;

ü  здесь большая часть населения от 16 до 30 лет;

ü  средний доход жителей района около 25000 - 30000 руб.

Выбранный нами район еще строится, и поэтому жилая площадь со временем будет увеличиваться, а соответственно произойдет рост населения, что положительно скажется на работе салона. На сегодняшний день аналогичных салонов в этом районе достаточно, но из-за ежегодного роста населения произойдет их недостаток, поэтому наш салон будет пользоваться спросом. Так как салон будет только открываться все правила безопасности будут предусмотрены (в коридорах будут висеть огнетушители и планы эвакуации при пожаре, взрывоопасные и химически опасные вещества и предметы использоваться не будут, а если будут, то с особой осторожностью, предусмотрен запасной выход, персонал будет ознакомлен со всеми правилами безопасности лично), и поэтому проблем с санитарной и пожарной инспекцией не предвидится. Мы предлагаем карту с указанием нашего будущего местоположения (улица 9 мая 16 б обведено розовым), где четко обозначены конкуренты значком +, видно удобное местоположение, свободные подъездные пути и рядом расположенная автостоянка, а так же остановка.

7. Организационно-правовая форма коммерческой деятельности


Наш салон будет реализовать свою деятельность в форме Открытого Акционерного Общества, учредителями которого являются: Клейнкнехт А., Тюменева Е., Мутовина Н., Мусолина А. Складской капитал состоит из долей учредителей. Предприятие работает на основании устава и учредительных документов.

 

8.Организационная структура фирмы.


Исходя из работающего персонала, и директора в салоне можно построить линейную организационную структуру.



9. Персонал


Ф.И.О.

Оклад

Колличество требуемого персонала

Должность

Тредования к должности

Личностные требования

-

23000

1

Директор

м/ж, стаж не менее 4 лет, не моложе 25, образование высшее

Умение вести переговоры, бытро ориентироваться в ситуации, четко формулировать указы и т.п.

-

17000

1

Бухгалтер

стаж не менее 3 лет, не моложе 25, образование высшее, знание ПК и 1С

Ответственность, метематические способности, честность и т.п.

-

15000

1

Администратор

Умение разрешать конфликтные ситуации, общаться с персоналом и клиентами, ответственность, организаторские спосбности

-

10000

6

Парикмахеры

не моложе 18, образование среднеспец., опыт не обязателен, но желателен

опрятныая внешность, аккуратность, умение общаться и держать себя в руках

-

8500

3

Косметологи

не моложе 18, образование среднеспец., опыт не обязателен, но желателен

опрятныая внешность, аккуратность, умение общаться и держать себя в руках

-

8000

2

Мастера по тату и пирсингу

не моложе 18, образование среднеспец., опыт не обязателен, но желателен

опрятныая внешность, аккуратность, умение общаться и держать себя в руках, ответственность

-

8000

1

Рабртник салярия

не моложе 20, образование среднеспец., опыт не обязателен, но желателен, девушки

умение общаться, ответственность

-

3500

1

Уборщица

не моложе 25, женщина

ответственность, честность

-

2000

1

Прачка

женщина, не моложе 27.

ответственность, честность

10.    Стратегия финансирования


Примерный баланс доходов и расходов предприятия.

Показатели

2009 год


I

II

III

IV

Объем реализации

1300000

1000000

1100000

1700000

Цена





Выручка

1300000

1000000

1000000

1700000

Затраты в том числе:

166850

23700

15700

18700

постоянные

148850

11700

11700

11700

переменные

18000

12000

4000

7000

1133150

976300

984300

1681300

Налог на прибыль

271956

234312

236232

403512

Чистая прибыль

1405106

1210612

1220532

2084812


11.    Риски проекта и страхование


Рассмотрим основные возможности рисков:

·        Риск отсутствия клиентуры.

Его вероятность невелика, однако чтобы еще больше уменьшить ее, следует провести маркетинговые исследования рынка с целью выявления потребности в услуге, подготовку к работе вести только после получения результатов исследования рынка.

·        Риск неплатежеспособности клиентов.

Вероятность этого риска оценить очень сложно, и это надо делать в ходе маркетингового исследования. Страховку от этого риска может обеспечить активный маркетинг, то есть расширение круга возможных клиентов.

·        Риск не поставки услуги.

Частичную защиту от этого риска дает организация постоянного контроля за деятельностью салона и оценка угрожающих внешних и внутренних отрицательных факторов.

 

Опасности, которые могут повлиять на работу предприятия и возможности противодействия им.

Положительные факторы

Отрицательные факторы

1. бесперебойность работы салона

1. забастовка рабочих

2. приобретение новых посетителей

2. перебойность работы салона

3. посетители удовлетворены качеством оказанной услуги

 3. неудовлетворенность посетителей качеством предоставляемой услуги


4. дорожание электроэнергии

Способы уменьшить отрицательное влияние вышеперечисленных факторов.

Ø  наладить контакты с посетителями;

Ø  постоянно контролировать настроение рабочих;

Ø  свести к минимуму вероятность забастовок;

Ø  постоянный поиск новых клиентов;

Ø  постоянный контроль за качеством предоставляемой услуги; действовать по обстоятельствам

сбыт конкурент маркетинговый коммерческий риск


Не нашли материал для своей работы?
Поможем написать уникальную работу
Без плагиата!
Без нейросетей!