Обработка на станках с ЧПУ

  • Вид работы:
    Реферат
  • Предмет:
    Другое
  • Язык:
    Русский
    ,
    Формат файла:
    MS Word
    63,29 kb
  • Опубликовано:
    2011-06-07
Вы можете узнать стоимость помощи в написании студенческой работы.
Помощь в написании работы, которую точно примут!

Обработка на станках с ЧПУ

Исходные данные

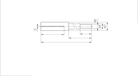
Материал - АМг6 ГОСТ 21488-76

Вид заготовки - пруток 90х27

Изделие - Вал для шлифовки цилиндра

Рис. Заготовка

Рис Деталь

токарный роботизированный цапфа станок

Обработка на станках с ЧПУ

1.      Точение ступеней на токарном станке с ЧПУ TRENS

Tm=K*l*D=0,000075*24*108+0,000075*18,5*88=0,19+0,12=0,31 мин

2.      Сверление на токарном станке с ЧПУ TRENS

Tm=K*l*D= 0,000423*24*72=0,73 мин

3.      Черновое подрезание торца на токарном станке с ЧПУ TRENS

Tm=K*()=0,0000224*()=0,14 мин

4.      Чистовое точение наружной поверхности на токарном станке с ЧПУ ROSSTANKOM

Tm=K*l*D=0,000175*5,5*106=0,10 мин

5.      Черновое растачивание на токарном станке с ЧПУ ROSSTANKOM

Tm=K*l*D=0,000134*19,94*77.5=0,21 мин


Tm=K*l*D=0,00018*7,5*78,5=0,11мин

7.      Чистовое подрезание торца на токарном станке с ЧПУ ROSSTANKOM

Tm=K*()=0,000011*()=0,06 мин

8.      Чистовое растачивание внутренней поверхности на токарном станке с ЧПУ ROSSTANKOM

Tm=K*l*D=0,00018*2*74=0,03 мин

9.      Чистовое точение наружной поверхности на токарном станке с ЧПУ ROSSTANKOM

Tm=K*l*D=0,000175*18,3*86,5=0,28 мин

10.    Чистовое точение наружной поверхности на токарном станке с ЧПУ ROSSTANKOM

Tm=K*l*D=0,000175*7*84=0,10 мин

11.    Чистовое подрезание торца на токарном станке с ЧПУ ROSSTANKOM

Tm=K*()=0,000011*()=0,02 мин

Tmобщ=0,31+0,73+0,14+0,1+0,21+0,11+0,06+0,03+0,28+0,1+0,01+0,1+0,17+0,26+0,02=2,63 Мин

2,63*1,5=3,94 мин

Производительность

==10026 шт/год

 - время обработки с учетом времени на переналадку и смену режущего инструмента взято из паспортных данных)

З=6,25 руб/мин - заработная плата взята с сайта #"538573.files/image007.gif">3,94 мин - суммарное калькуляционное время обработки

0,19 - коэффициент использования материала

Методика построения циклограмм функционирования роботизированного технологического комплекса

Выбираем две операции технологического процесса обработки цапфы на станках:

= 0,14 мин = 8,4 сек

2. Чистовое точение наружной поверхности на токарном станке с ЧПУ ROSSTANKOM

= 0,10 мин = 6 сек

Этим двум операциям соответствует промышленный робот Квадрат СГ

Описание:

Полезная нагрузка от 2 кг до 60 кг.

Могут крепиться к полу, потолку или стене.

Модульная концепция F-серии позволяет достигнуть высокой степени изменения досягаемости и загрузки робота для различного применения.

Могут использоваться для перемещения, для дуговой сварки, чистки, полировки, а также для работы в экстремальных условиях с пылью и низкими температурами.

Интегрированный пневматический и электрический контроль клапанов соленоидов дает возможность для быстрой наладки и запуска:

повышение точности выполнения технологических операций и, как следствие, улучшение качества;

возможность использования технологического оборудования в три смены, 365 дней в году;

рациональность использования производственных помещений;

исключение влияния человеческого фактора на поточных производствах, а также при проведении монотонных работ, требующих высокой точности;

исключение воздействия вредных факторов на персонал на производствах с повышенной опасностью;

достаточно быстрая окупаемость.


Расчет циклограммы

Между двумя станками с ЧПУ (токарный станок TRENS и токарный станок ROSSTANKOM) располагается промышленный робот Квадрат СГ и стол для деталей. Выдвижение руки робота происходит за 3 секунды, захват заготовки - 2 секунды, поворот руки - 1,5 секунды, разжим схвата - 2 секунды, отвод руки - 1 секунда. Зажим заготовки на каждом станке происходит за 2 секунды, разжим заготовки - 1 секунда, обработка на первом станке - 8,4 секунды, обработка на втором станке - 6 секунд. При установке заготовки на станок вначале необходимо закрепить заготовку на станке, а после этого промышленный робот разжимает заготовку и отводит руку из зоны обработки. После обработки вначале необходимо роботу закрепить заготовку, после чего можно разжимать заготовку на станке. На столе находятся заготовки (не прошедшие обработку) и детали прошедшие обработку на токарном станке ) дальше их забирают для дальнейшей обработки на фрезерном станке.

Циклограмма

Похожие работы на - Обработка на станках с ЧПУ

 

Не нашли материал для своей работы?
Поможем написать уникальную работу
Без плагиата!
Без нейросетей!