|
Составляющая
сила
|
Сp
|
x
|
y
|
n
|
|
Pz
|
300
|
1,0
|
0,75
|
-0,15
|
|
Py
|
243
|
0,9
|
0,6
|
-0,3
|
|
Px
|
339
|
1,0
|
0,5
|
-0,4
|
=0,75

Где Ср - коэффициент и
показатели степени: x, y, n приведены в работе
. Эффективная мощность резания:
Выбираем токарный станок 16Л20.
Технические характеристики станка
16Л20
Размеры, мм
Наибольший диаметр обрабатываемой
заготовки:
над станиной…………………………………………………400
над суппортом………………………………………………..210
Наибольший диаметр прутка,
проходящего через отверстие шпинделя….......53
Частота вращения шпинделя,
об/мин………………………16-1600
Число скоростей
шпинделя…………………………………21/18
Подача суппорта, мм/об:
продольная……………………………………………….…0,05-2,8
поперечн………………………………………………….…0,025-1,4
Число ступеней подач…………………
………………..…20
Мощность электродвигателя главного
дв………………3,8
Принимаем:
Фактическая скорость резания:
. Основное время обработки
.5.2 Режимы резания при получистовом
точении
Поверхность 5 Ø95,6 h11,
:
1. Поправочный коэффициент, учитывающий
влияние физико-механических свойств на скорость резания:
КГ=0.8; Кnv=1
. Поправочный коэффициент,
учитывающий влияние состояния поверхности заготовки (заготовка-поковка):= 1,0
. Поправочный коэффициент,
учитывающий влияние инструментального материала:
= 1 [2, т.6, с.263]φV=0,75; Kφ1V =1 [1, 271,
т.18]
. Расчётная подача:
Значения коэффициентов:
в
формуле[3, т.2.5, с. 32 ]
Принимаем
.
. Расчётная скорость резания:
=420; Х=0,15; y=0,2; m=0,2 [2, т.17,
с.269]=50 (мин).
Расчётная частота вращения шпинделя
станка:
Принимаем nпр=314,95
(об/мин).
Фактическая скорость резания:
. Основное время обработки:
.5.3 Режимы резания при чистовом
точении
Поверхность 5 Ø95 h9,
:
1. Поправочный коэффициент, учитывающий влияние
физико-механических свойств на скорость резания:
КГ=0.8; Кnv=1
[2, т.2, с.262]
. Поправочный коэффициент,
учитывающий влияние состояния поверхности заготовки (заготовка-поковка):= 1,0
[2, т.5, с.263]
. Поправочный коэффициент,
учитывающий влияние инструментального материала:= 1 [2, т.6, с.263]φV=0,75; Kφ1V =1 [1, 271,
т.18]
. Расчётная подача:
Значения коэффициентов:
в
формуле[3, т.2.5, с. 32 ]
Принимаем:
. Расчётная скорость резания
=420; Х=0,15; y=0,2; m=0,2 [2, т.17,
с.269]=40…50 (мин).
Расчётная частота вращения шпинделя
станка:
Принимаем nпр=314,95
(об/мин).
. Фактическая скорость резания:
. Основное время обработки:

4. Проектирование операций обработки
диаметральных отверстий
.1 Проектирование операции сверления
Сверлильная
. Сверлить 2 отверстия поверхности 2.
. Развернуть предварительно 2 отверстия
поверхности 2.
. Развернуть окончательно 2 отверстия
поверхности 2.
Выбор геометрических параметров и материала
инструмента.
Для сверления отверстия выбираем инструмент:
сверло спиральное с коническим хвостовиком d=8,7 мм., L=133мм., l=87мм. ГОСТ
10902-77 [2, стр.145, таб.41], Материал сверла Р6М5 - быстрорежущая сталь. [2,
стр.115, таб.2], так как изготовить такое сверло из твердого сплава будет
труднее.
Рис.9 - Эскиз сверла
4.2 Расчет глубины резания
Глубина резания равна половине диаметра сверла.
4.3 Назначение подачи
В соответствии с методом обработки и
размером обрабатываемой поверхности принимаем:
Экспресс расчет скорости резания
где :=8,7мм. - диаметр сверла.
Т=25мин. - период стойкости
инструмента [2, стр.279, таб. 30]
Сv=7; q=0.4; y=0,7; m=0,2; [1, стр.
278, табл.26]
- поправочный коэффициент в формуле
скорости резания
Кмv=0,5-коэффициент на
обрабатываемый материал [2, стр. 261, табл.1]
Кuv=1 - коэффициент на материал
инструмента [2 стр. 263, табл.6];
Кlv=1 - коэффициент учитывающий
глубину обрабатываемого отверстия [1, стр. 280, табл.31]
Крутящий момент и осевую силу при
сверлении рассчитываем по формулам:
;
где См=0,0345; q=2,0; y=0,8;
Сp=68; q=1,0; y=0,7; [1, стр. 281,
табл.32]
- коэффициент, учитывающий
фактические условия обработки
;
Мощность резания при сверлении
определяем по формуле:
где
- частота вращения
где
- механический КПД станка
4.4 Выбор станка
В соответствии с размерами детали и рассчитанной
мощностью выбираем вертикально-сверлильный станок 2Н125 [2, стр. 20, табл.11]
·
наибольший
условный диаметр сверления в стали - 25мм.
·
Число
скоростей шпинделя -12
·
Частота
вращения шпинделя -45-2000об/мин.
·
Подача
шпинделя -0,1-1,6мм/об.
·
Мощность
привода -2,2кВт.
Этот станок также будет использоваться на
операциях зенкерования и развертывания.
Так как рассчитанная мощность меньше мощности
станка значит мощности станка будет достаточно для обработки нашей детали.
.5 Техническое нормирование
Определение основного времени при сверлении.
где lвр=
- длина
врезания инструмента;обр =5 мм - длина обрабатываемой части детали.переб
=2 - длина перебега инструмента;
Рис.10 Схема обработки при сверлении
.6 Развертывание окончательное
Выбор геометрических параметров и материала
развертки
Для развертывания отверстия выбираем инструмент:
развертку с коническим хвостовиком по ГОСТ 1672-80 d=10мм. Материал режущей
части Р6М5
Расчет скорости резания
где :=10мм - диаметр развертки
Т=25мин. - период стойкости
инструмента
Сv=10,5; q=0.3; х=0,2; y=0,65;
m=0,4;
- поправочный коэффициент в формуле
скорости резания
где: Кмv=0,5 коэффициент на
обрабатываемый материал
Кuv=1 - коэффициент на материал
инструмента
Кlv=1 - коэф., учитывающий глубину
зенкерования
,
Расчет частоты вращения развертки и
согласование её со станком.

Принимаем в соответствии со станком
n = 178( об/мин.)
Определение действительной скорости
резания.
,
где D - диаметр развертки
Расчет крутящего момента.
При развертывании каждый зуб
инструмента можно рассматривать как расточной резец, тогда
,
где Sz - подача мм. на зуб инструмента равная
S/z=0.8/8=0.1мм/зуб
Ср=200; х=1,0; y=0.75; [2, стр. 273, табл.22]
Рассчитываем момент вращения
создаваемый на станке и сравним его с Мкр:
Мкр<Мвр (0,7<94,4) - значит
крутящего момента будет достаточно для обработки нашей детали.
Расчет мощности привода станка

где
- механический КПД станка
Так как рассчитанная мощность меньше
мощности станка значит, мощности станка будет достаточно для обработки нашей
детали.
Техническое нормирование.
Определение основного времени при
развертывании.
где lвр - длина врезания
инструмента;
обр - длина
обрабатываемой части детали 5 мм..переб - длина перебега
инструмента, 2;подв - длина подвода инструмента, 1,2мм.;
поверхность обработка резание токарный
5. Проектирование фрезерной операции
Фрезерование
Рисунок 12 - Схема обработка лызки при
фрезеровании
.1 Режимы резания при фрезеровании
Параметры обрабатываемой поверхности:
. Выбор режущего инструмента:
Фреза концевая ГОСТ 17026-71 : 
Рисунок 13 - фреза концевая ГОСТ 17026-71
. Определение подачи:
. Определение расчетной скорости
резания:
[2, т.6, с. 263]
. Определение расчетной частоты
вращения шпинделя:
Принимаем
. Определение фактической скорости
резания:
.Опредеение фактической подачи:
Принимаем:
. Определение окружной силы:
; x=0,86; y=0,72; u=1; q=0,86; w=0
[2, т.41, с.291]
. Определение эффективной мощности:
выбираем Станок
вертикально-фрезерный 6Т104; N=2,2кВт.
.Определение основного времени:
6. Проектирование операции зубофрезерования
Зубофрезерование
Рис.14 - Схема зубофрезерования
. Параметры обрабатываемой поверхности
m=3, z=30, B=10 мм, HB=262.
. Выбор режущего инструмента
Фреза червячная чистовая однозаходная ГОСТ
9324-80. Материал фрезы Р6М5, m=3, L=71 мм,
d=32
мм,
.
Рис.15 - Червячная фреза
Материал червячной фрезы - сталь быстрорежущая
Р6М5, так как в данном случае обрабатывается легированная сталь, а данная
быстрорежущая сталь имеет удовлетворительную прочность, повышенную износостойкость,
а также нормальную теплостойкость.
. Выбор оборудования:
Станок зубофрезерный 5А326, N=7,5 кВт. Группа
оборудования - III [7, c.147, т.40].
. Определение подачи:
Табличное значение
4
мм/об [7, c.149, т.41].
Поправочные коэффициенты [7, c.150, т.42]
|
НB
|
До
220
|
До
300
|
|
|
1
|
0,7
|
; HB до 300
|
b
|
0
|
30
|
45
|
|
|
1
|
0,7
|
0,65
|
|
123
|
|
|
|
|
|
1
|
0,7
|
0,5
|
5. Определение стойкости червячной фрезы
|
m
|
До
4
|
До
6
|
До
8
|
До
12
|
Свыше
16
|
|
4
|
6
|
8
|
12
|
16
|
Т=4
. Определение скорости резания [7,
c.154-160, т.45-51]=25 м/мин
. По номограмме скоростей [5, приложение
3]=101 об/мин, А/Б=40/44
. Настроить гитару деления [5, приложение
41]=30, a=40, b/c=1, d=50
. Настроить вертикальную подачу S=2,5
мм/об
10. Устанавливаем глубину фрезерования.
Колесо нарезается за один проход.
h=2,2m=2,2
3=6,6
11. Длина рабочего хода
. Основное рабочее время
7. Проектирование операции протягивания
Протягивание
Рисунок 16 - Протяжная операция
. Протянуть шлицы, m = 2.
Выбор режущего инструмента
Выбираем комбинированную шлицевую протяжку
групповой схемы резания ГОСТ 24823-81. Схема протяжки изображена на рисунке 17.
Рисунок 17 - Протяжка шлицевая комбинированная
групповой схемы
РАСЧЕТ ПРОТЯЖНОЙ ОПЕРАЦИИ
.1 Параметры протягиваемого контура:
Шлицевое отверстие:
Модуль m = 2;
Число зубьев z = 17;
Делительный диаметр d = 34мм.
Диаметр вершин
Диаметр впадин
Длина обработки
7.2 Схема протягивания
Рисунок 18 - Схема протягивания
.3 Определение группы скорости
резания
Группа скорости резания: III.
.4 Определение допускаемой скорости
протягивания
Допускаемая скорость протягивания:
3,5 м/мин
Протяжка шлицевая, Ra 5
.5 Определение геометрических
параметров протяжки:
шага зубьев протяжки
рабочей высоты профиля
радиуса закругления
.6 Сопоставление полученных значений с
табличными
Рисунок 19 - Форма и размеры профиля
черновых, чистовых и калибрующих зубьев протяжек
Черновые зубья:= 6; h = 2,5; r =
1,3; b =2 ; r1 = 4.= 4,9 мм2 [2, табл.62, с.171]
Чистовые и калибрующие зубья:1
= 4,5 мм;2 = 4,5 + 0,5 = 5 мм;3 = 5 + 0,5 = 5,5 мм;
.7 Разделим припуск на черновой и
чистовой
.8 Число поясов зубьев частей
протяжки
Число калибрующих зубьев: nкал
= 4
Число черновых зубьев:
Число чистовых зубьев:
.9 Рабочая длина протяжки
.10 Определение периметра
обрабатываемого профиля В
.11 Определение удельной силы
резания, приходящуюся на 1 мм протяжки
черн = 335 Н; Pчист
= 282 Н [2, с. 300, табл. 54]
.12 Определение усилий резания:
Н
.13 Определение эффективной мощности
резания:
.14 Определение основного
технологического времени:
7.15 Выбор оборудования: горизонтальный
протяжной полуавтомат для внутреннего протягивания 7В55
8. Проектирование операции нарезания резьбы
Резьбонарезание
Рис.20 - схема нарезания резьбы
. Параметры резьбы и материала
Резьба M44х2; l = 15мм
. Поскольку шаг P=2, выбираем профильную схему
нарезания резьбы.
. Назначение оборудования
Токарный станок 16Л120
.Выбираем токарный резьбовой резец по ГОСТ
18885-73 Т15К6
Обозначение: 2660-0001 2 T15К6 ГОСТ 18885-73=
16мм, b = 10мм, L = 100мм, m = 1,5мм.
Рис.21 - токарный резьбовой резец по ГОСТ
18885-73
. Определяем число рабочих ходов: iчерн,
iчист, i
черн,=3,
iчист,=2, i=5.
. Назначение подач
. Определение поправочного
коеффициента Kv=Kмv×Kиv×Kov
Поправочный коэффициент, учитывающий
влияние состояния поверхности заготовки (заготовка-поковка):мv = 0,55;
Киv=1; Ксv=1 [2, т.1-4, с.297]v=055.
. Скорость резания при нарезании
резьбы
Сv=244, х=0,23, у=0,3, m=0,2,
Т=70[2, т.49, с.296]
. Частота вращения шпинделя:
расчетная nр, принятая n
прин=100 (об/мин);
Фактическая скорость резания:
. Величина рабочего хода Lр.х
. Основное время Tо
. Сила резания P:
p=1,47p,
y, u - [2, т.51, с.298]p=148, у=1,7, u=0,71
. Мощность станка
9. Отделочный этап
Зубошлифование
.1 Операция зубошлифования
Рис.22 - Схема обработки при зубошлифовании
1. Параметры зубчатого венца:
Z=20;=4;
В=15;
HB
2. Механические параметры заготовки:
σв=880 МПа;
. Подбор зубошлифовального станка по параметрам
колеса и типу круга [2, с. 242 - 249; 6. с.201]:
Шлифовальный круг червячный выполненный на
основе круга ПП прямого профиля 400х60х125.
Материал шлифовального круга назначаем
титанистый электрокорунд 14А-для инструментов на керамической связке для
обработки сталей.
Зернистость 20П т.к. обеспечивает профильное
шлифование Ra=0,63.
П - плотное наполнение.
Керамическая связка К1 - для всех основных видов
шлифования.
Твёрдость с2 - средней твёрдости.
Номер структуры 10 - скоростное шлифование.
Профильное шлифование мелкозернистыми кругами.
Скорость 35 м/с.
Рис.23 Схема припусков на
зубошлифование
Зубошлифовальный станок для
цилиндрических колёс 5В833:
Диаметр обрабатываемого зубчатого
колеса…………. 40 - 320
Наибольшие размеры нарезаемых колёс:
Модуль……………………………………………………. 0,5-4
Длина зуба прямозубых
колёс……………………….…. 150
Наибольшие размеры устанавливаемых
шлифовальных кругов 400х80
Частота вращения шпинделя
инструмента, об/мин…………… 1500
Подача заготовки:
Вертикальная………………………………………. 3,78 -
165 мм/мин
Радиальная……………………
….. 0,02 - 0,08за один ход
Мощность электродвигателя главного
движения, кВт…… 3
Масса, кг………………………………………………………. 7000
. Назначение припуска на шлифование
. Выбор значения подачи: [6. с. 204]
Черновая
Чистовая
. Определение числа рабочих ходов
. Длина рабочего хода
. Основное время обработки:
Заключение
Совершенствование конструкции двигателей
летательных аппаратов, направленное на повышение ресурса работы, экономичности
других его параметров, в значительной степени влияет на технологию изготовления
деталей. Характерными особенностями производства современных двигателей
являются сложность конструктивных форм деталей, широкое применение для их
изготовления труднообрабатываемых материалов, высокие требования к точности и
состоянию поверхностного слоя деталей. Большинство деталей двигателей
летательных аппаратов изготавливается механической обработкой.
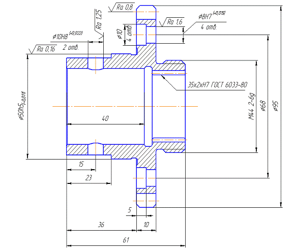
В данной работе проведено проектирование
операций механической обработки поверхностей вала-шестерни. Для каждой операции
выбран режущий инструмент, оборудование и определены основные технологические
параметры, необходимые для формообразования поверхности.
Литература
1. Марочник
сталей и сплавов. Под ред. В.Г. Сорокина. М., 1989, 640 с.
2. Справочник
технолога-машиностроителя. Под ред. А.Г. Косиловой и Р.К. Мещерякова. т. 2, М.,
1985, 656 с.
. Методы
обработки поверхностей. Методические рекомендации по выполнению лабораторных
работ. Горбачев А.Ф., Яценко С.В., Худяков С.В. Х., ХАИ, 1995, 45 с.
. Сотников
В.Д., Долматов А.И., Горбачев А.Ф., Яценко С.В. Разработка маршрутных
технологических процессов изготовления авиадвигателей. Х., ХАИ, 1989, 41 с.
. Исследование
кинематической точности зубчатого колеса, обработанного на зубофрезерном
станке. Барсуков А.П., Некрасов А.Д., Белоконь Б.С. Методические указания к
лабораторной работе. Х., ХАИ, 1984.
. Производство
зубчатых колес. Под ред. Б.А. Тайца, М., 1975, 708 с.
. А.И.
Адам, Г.Г. Овумян. Справочник зубореза - фрезеровщика. М., 1961, 271 с.
. Гулида
Э.Н. Теория резания металлов, металлорежущие станки и инструменты. Львов, «Вища
школа», 19976, 334 с.
. Справочник
технолога-машиностроителя. Под ред. А.Г. Косиловой и Р.К. Мещерякова. т. 1, М.,
1985, 656 с.