Вальцовый станок
Введение
В настоящее время агропромышленный комплекс
Российской Федерации стал наращивать объемы производства продукции
растениеводства и животноводства в этой связи остро встала проблема развития
перерабатывающих отраслей сельского хозяйства. Развития перерабатывающей
отрасли сельского хозяйства невозможно без соответствующей
материально-технической базы. Поэтому на данный момент обострилась проблема
создания новых и усовершенствование старых машин и оборудования для переработки
продукции растениеводства и животноводства. В этой связи тема курсового
проекта: основы проектирования и расчета вальцового станка является
востребованной и актуальной.
Актуальность этой проблемы состоит в том, что в
настоящее время востребованы цехи переработки продукции растениеводства
небольшой мощности, которые располагались бы на территории хозяйств. Основные
требования к таким цехам небольшая производительность, низкая метало и
энергоемкость, малая стоимость первоначальных затрат.
Все это свидетельствует о необходимости проектирования
нового оборудования.
1. Технологический
процесс, выполняемый вальцовым станком
Важнейшим процессом на современном мукомольном
заводе, от эффективности которого зависит рациональное использование зерна,
качество муки, расход энергии и другие технико-экономические показатели,
является измельчение. Вальцовый станок предназначен для измельчения зерна и
промежуточных продуктов размола пшеницы на мукомольных заводах, оснащенных
высокопроизводительным комплектным оборудованием. Рабочие
органы станка - чугунные цилиндрические вальцы, расположенные параллельно и
вращающиеся навстречу друг другу с различной скоростью. Это обуславливает
разрушение зерна в зазоре между вальцами при кратковременном сжатии и сдвиге.
Такой вид деформации зерна в вальцовых станках отвечает требованиям
избирательного измельчения, т.е. измельчение, при котором эндосперм зерна
превращается: в мелкие частицы, а оболочки более мягкие и пластичные
измельчаются в более крупные частицы. При постепенном, последовательном
измельчении зерна образуются промежуточные продукты различной крупности: мука,
крупки (мелкие, средние и крупные) и дунсты (среднее между мукой и мелкой
крупкой). Причем однородное измельчение зерна осуществляется только при
производстве комбикормов, при производстве крупы и сортовой муки измельчение
должно быть избирательным: в мукомольном производстве необходимо измельчать в
муку только крахмальный эндосперм, а оболочки и зародыш выделить в виде крупных
частиц. Для эффективности последующего измельчения различных по крупности и
качеству промежуточных продуктов в вальцовых станках применяют соответствующие
технические параметры мелющих вальцов: различный рельеф их поверхности
(рифленый, микрошероховатый), окружные скорости и отношение скоростей, величина
зазора между вальцами.
2. Описание конструкции
и работы проектируемого механизма
Вальцовый станок состоит из двух независимых
секций одинаковой конструкции. Каждая секция состоит из приемного патрубка 1,
поплавкового сигнализатора уровня 2, питающего 3 и дозирующего 4 вальцов, пары
мелющих вальцов 5, щеточных очистителей 6, механизма регулировки межвальцового
зазора 7, станины 8 и механизма привала-отвала вальцов 9.
Станина состоит из чугунных боковин, соединенных
болтами с лицевыми, нижней и верхней внутренними траверсами, передними
панелями. Внутренние траверсы разделяют станок на две автономные половины. В
боковинах имеются косые проемы для замены вальцов, плотно закрытые вставками, и
необходимые отверстия для различных механизмов и устройств.
Сверху станины установлена штампованная
горловина с центральным отверстием для приемной трубы и двумя аспирационными
отверстиями. С лицевой стороны к станине шарнирно прикреплены дверки и фортки
для обслуживания станка.
Привод станка выполнен в виде двух клиноременных
передач, каждая по шесть ремней. Крутящий момент от электродвигателя передается
быстровращающемуся вальцу. Шкивы на валах крепятся двухклиновыми шпонками. На
ступицу ведомого шкива одет разъемный шкив для плоского ремня привода питающего
механизма.
Межвальцовая передача станка косозубая шириной
55 мм и установлена на левых полуосях вальцов. Ее передаточное отношение для
рифленых вальцов 2.5, для шероховатых 1.25. Передача работает в масляном
картере с крышкой, который болтами прикреплен к корпусу подшипников быстровращающегося
вальца. Отверстия в картере для полуосей вальцов уплотнены резиновыми кольцами.
Питающее устройство служит для подачи продукта
на мелющие вальцы
Две пары мелющих вальцев являются основными
рабочими органами станка и расположены диагонально под углом 30° к горизонтали,
что создает хорошие условия для направления продукта в межвальцовое
пространство. Мелющие вальцы с глубиной рабочего слоя 7.5 мм изготовлены из
специального отбеленного чугуна повышенной износостойкости методом
центробежного литья. Диаметр вальцов при износе рабочей поверхности может
изменяться от 251 до 235 мм. Длина рабочей поверхности вальца 1000 мм.
Валец имеет полую бочку и полуоси,
запрессованные в бочку с обоих сторон. Внутренняя поверхность бочки не должна
иметь углублений и раковин, так как нагретая вода под действием центробежных
сип заполняет их и служит теплоизоляцией между поверхностью и поступающей
холодной водой. В результате эффективность охлаждения снижается.
Каждая полуось полая, имеет центральное
отверстие диаметром 25мм для охлаждения вальца водой.
Наиболее интенсивно изнашиваются рифли 1 драной
системы, что определяется большой прочностью целого зерна Рифли
быстровращающихся вальцов изнашиваются интенсивнее, чем медленновращающихся,
из-за большей частоты воздействия рифлей на продукт.
Вальцы драных систем рекомендуется заменить при
износе рифлей по высоте на 50...55 %.
Большая часть вальцов используемых в размольном
процессе поставляются с шероховатой поверхностью.
Валец вращается в радиальных сферических
подшипниках. Подшипник быстровращающегося вальца расположен в буксе, состоящей
из корпуса, внутренней и наружной крышек. Крышки четырьмя шпильками крепятся к
корпусу букса, а сам корпус, внутренняя обойма подшипника посажена на
коническую поверхность полуоси вальца и поджата гайкой.
Подшипник нижнего медленно вращающегося вальца
расположен в буксе, состоящей из разъемного корпуса и крышки. Разъемный корпус
буксы выполнен в виде локтеобразного рычага-основания, которое с одной стороны
пружиной подвешено к цапфе, впрессованной в боковину станины станка, а с другой
соединено с тягой механизма изменения межвальцового зазора и поджат буферной
пружиной. Пружина обеспечивает проход между вальцами инородных тел размером до
5 мм. На левой цапфе имеется эксцентриковая втулка, поворотом и фиксацией
которой можно устранять перекос вальца.
Устройство охлаждения быстровращающегося вальца
водой работает следующим образом: в полость вальца вода подается через левую
полуось по консольной трубе длиной около 900 мм, имеющей отверстия на торце и в
стенке. Отверстие в правой полуоси вальца заглушено.
Мундштук с консольной трубой входят в полую
сливную трубку с коническим раструбом, которая вращается вместе с вальцом.
При открытом вентиле вода через кран, которым
регулируют расход, поступает консольную трубу и из нее разбрызгивается в
полость вальца, вращение которого способствует хорошему омыванию внутренней
поверхности. Из вальца вода выливается через сливную трубку и выводится из
корпуса по трубе.
Охлаждение вальцов во время измельчения продукта
обеспечивает практически постоянную температуру рабочей поверхности и
неизменный межвальцовый зазор, что исключает перегрев продуктов размола и
подшипников, уменьшает потери влаги продуктом, снижает износ рельефа рабочей
поверхности.
3. Основы расчёта механизма
.1 Технологический расчет
Производительность
вальцового станка может быть определена по формуле
(3.1)
где b - зазор
между вальцами, м.
L -
длина вальца, м.
γ - обьемная масса продукта,кг/м3.γ=700 кг/м3 - для зерна пшеницы
- скорость продукта в зоне
измельчения, м/с.
Ψ - коэффициент использования
зоны измельчения, ψ=0,75-0,70.
Для первой дранной системы величина межвальцового
зазора находится в пределах b=1,2-0,75
мм.
Также производительность может быть определена
по упрощенной формуле:
(3.2)
где q-удельная
нагрузка на единицу длины вальца, q=29-42
кг/см*ч/9/
Определим длину вальца:
Так как вальцы, для компенсации температурного
расширения, выполняются конусными у концов, то увеличим расчетную длину вальца,
приняв её равной L=25 см. Из
формулы определим скорость продукта в зоне измельчения.
(3.3)
Связь между скоростью
быстровращающегося и медленновращающегося вальцов и скоростью продукта в зоне
измельчения выражается формулой:
(3.4)
где
- окружная скорость
быстровращающегося вальца,
- окружная скорость
медленновращающегося вальца, к - дифференциал ( для нарезных вальцов к=2,5)
Определим диаметр вальца:
(3.5)
где d-
диаметр измельчаемой частицы, мм, k=d/s
- коэффициент измельчения, равный отношению диаметра частицы к зазору между
вальцами, γ - угол трения между
частицей и материалом вальца.
(3.6)
где f -
коэффициент трения, для зерен пшеницы по стали и чугуну f=0,21-0,44,
γ=11,9-23,70 / /
Эквивалентный диаметр зерна пшеницы
определим по формуле:
(3.7)
где l=4,2-8,6 мм
- длина зерновки.
а=1,6-4,0 мм - ширина зерновки.
b=1.5-3.8 мм
- толщина зерновки.
Так как для обеспечения устойчивого
процесса измельчения необходимо исключить возможность изгиба вальца во время
работы, увеличиваем его диаметр и принимаем его равным D=185 мм.
Зная скорость быстровращающегося вальца и его
диаметр, определим частоту вращения по формуле:
(3.8)
Принимаем частоту вращения
3.2 Энергетический расчет
Мощность, затрачиваемую на привод станка,
определим по формуле:
(3.9)
где n - удельная
мощность на единицу длины вальца, кВт/см.
n=0,185-0,2
кВт/см./ /
ηст - КПД
передач станка, ηст=0,85
В соответствии с рассчитанной
мощностью на привод и частотой вращения быстровращающегося вальца принимаем двигатель
асинхронный АИРХ160S8 У2 380 В,50 Гц,IM1081 ТУ16-526.621-85 с номинальной
частотой вращения 750 об/мин и мощностью 7,5 кВт.
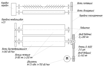
3.3 Кинематический расчет
Рисунок 3.1 - Кинематическая схема вальцового
станка
Расчет клиноременной передачи.
Исходные данные.
Частота вращения вальца n2=360
об/мин.
Мощность электродвигателя N=7,5
кВт.
Частота вращения n1=750
об/мин.
Определяем угловую скорость и номинальный
вращающий момент на ведущем валу.

(3.10)
Для данного значения момента
рекомендовано сечение ремня Б с площадью поперечного сечения F=138 мм2.
Рекомендованный минимальный диаметр: Dmin=125
мм.
С целью увеличения долговечности ремня
увеличиваем диаметр ремня до значения: D1=140
мм.
Определяем передаточное отношение i
без учета скольжения:
(3.11)
находим диаметр ведомого шкива по
формуле, приняв относительное скольжение ε=0,015:
(3.12)
Ближайшее стандартное значение D2=280 мм.
Уточняем передаточное отношение с
учетом скольжения:
(3.13)
Пересчитываем частоту вращения
ведомого вала:
(3.14)
Определяем расхождение с заданным:
(3.15)
При расчете ременных передач
допускается расхождение до 3%.
Окончательно принимаем D1=140 мм, D2=280 мм.
Определяем межосевое расстояние:
(3.16)
где h - высота
ремня, h=13,5мм.
Принимаем а=500 мм.
Определяем расчетную длину ремня:
(3.17)
Ближайшая стандартная длина ремня L=1600 мм.
Вычисляем средний диаметр:
(3.18)
Определяем новое значение межосевого
расстояния:
(3.19)
При монтаже передачи необходимо
обеспечить возможность уменьшения межосевого расстояния на 0,01L для того
чтобы облегчить надевание ремня на шкив; для увеличения натяжения ремня
необходимо предусмотреть возможность увеличения межосевого расстояния на 0,025L. В нашем
случае необходимые перемещения составят: в большую сторону 0,025*1600=40 мм, в
меньшую сторону 0,01*1600=16 мм.
Угол обхвата меньшего шкива:
(3.20)
Скорость ремня:
(3.21)
Определяем величину окружного усилия
передаваемого одним ремнем:
Допускаемое окружное усилие на один
ремень равно:
(3.22)
Здесь
-коэффициент, учитывающий угол
обхвата малого шкива:
(3.23)
- коэффициент, учитывающий длину
ремня:
(3.24)
- коэффициент, учитывающий режим
работы ремня:
Определяем окружное усилие:
(3.25)
Расчетное число ремней:
Принимаем Z=5 шт.
Определяем усилия в ременной передаче, приняв натяжение от предварительного
натяжения
.
Предварительное натяжение каждой ветви ремня:
(3.27)
Рабочее натяжение ведущей ветви:
(3.28)
Рабочее натяжение ведомой ветви:
(3.29)
Определим усилия на валы:
(3.30)
/4/
Расчет цилиндрической межвальцовой передачи
Выбираем материалы со средними механическими
характеристиками. Для шестерни сталь 45, термообработка - улучшение, твердость HB
230; для колеса - сталь 45, термообработка - улучшение, но твердость на 30
единиц ниже - НВ 200. / 4 /
Допускаемые контактные напряжения определяются
по формуле:
(3.40)
где
- предел контактной выносливости
при базовом числе циклов
- коэффициент долговечности,
=1,0
- запас прочности,
=1,15/ 4 /
Предел контактной выносливости при
базовом числе циклов для углеродистых сталей с твердостью менее НВ 350 и
термообработкой - улучшение, определяется по формуле:
вальцовый
станок механизм производительность
(3.41)
Принимаем допускаемое напряжение по
колесу
Вращающий момент на валу шестерни
определяется по формуле
(3.42)
Вращающий момент на валу колеса
(3.43)
Межосевое расстояние определим из
конструкции вальцового станка:
(3.44)
Нормальный модуль зацепления
определяется выражением
(3.45)
Принимаем стандартное значение
=2,5 мм
Примем предварительно угол наклона
зубьев
и определим
число зубьев шестерни и колеса:
(3.46)
Принимаем Z1=42 шт.
Определим уточненное значение угла
наклона зубьев
(3.47)
Определим основные размеры шестерни
и колеса
Делительные диаметры
(3.48)
Проверка
(3.49)
Диаметры вершин зубьев
(3.50)
Ширина колеса
(3.51)
Принимаем
Ширина шестерни
(3.52)
Определяем коэффициент ширины
шестерни по диаметру
(3.53)
Определяем окружную скорость колес и
степень точности передачи
При такой скорости следует принять
8-ю степень точности передачи
Коэффициент нагрузки
(3.55)
где
коэффициент, учитывающий
неравномерность распределения нагрузки по ширине венца,
=1,555/ 4 /
- коэффициент, учитывающий
неравномерность распределения нагрузки между зубьями,
=1,08/ 4 /
- динамический коэффициент,
=1,0/ 4 /
Выполним проверку по контактным
напряжениям по формуле
(3.56)
Определим силы, действующие в
зацеплении
Окружная
(3.57)
Радиальная
(3.58)
где
угол зацепления,
=200/
4 /
осевая
(3.59)
Проверим зубья на выносливость по
напряжениям изгиба по формуле
(3.60)
где
- коэффициент нагрузки
- коэффициент прочности зуба по
местным напряжениям.
- коэффициент, учитывающий
погрешность, возникающую из-за кривизны зуба
- коэффициент, учитывающий
неравномерность распределения нагрузки между зубьями.
=0,75/ 4 /
Коэффициент нагрузки определяется по
формуле
(3.61)
где
- коэффициент, учитывающий
неравномерность распределения нагрузки по длине зуба.
=1,23/ 4 /
- коэффициент, учитывающий
динамическое действие нагрузки.
=1,1/ 4 /
Коэффициент прочности зуба по
местным напряжениям, зависит от эквивалентного числа зубьев.
Эквивалентное число зубьев
определяется по формуле
(3.62)
у шестерни
у колеса
При этом
и
Допускаемое напряжение определяется
по формуле
(3.63)
где
- значение предела выносливости при
отнулевом цикле изгиба
/ 5 /
Для шестерни
Для колеса
- коэффициент запаса прочности
Коэффициент запаса прочности
определяется по формуле
(3.64)
где
- коэффициент, учитывающий
нестабильность свойств материала зубчатых колес.
=1,75/ 5 /
- коэффициент, учитывающий способ
получения заготовки.
=1,0,
Допускаемые напряжения:
Для шестерни
Для колеса
Находим отношение
Для шестерни
Для колеса
Дальнейший расчет выполним для зубьев
колеса, у которых полученное соотношение меньше.
Определим коэффициент
по формуле
(3.65)
Проверяем прочность зуба колеса
3.3 Прочностной расчет
Выполним прочностной расчет вальца.
Исходные данные для расчета:
Давление на вал со стороны клиноременной
передачи Q=1954 Н.
Вес вальца Р=500 Н.
Нагрузка со стороны косозубой цилиндрической
передачи:
Окружное усилие 
Осевая нагрузка
Распределенная нагрузка со стороны
поступающего материала, может быть определена по формуле:
(3.66)
Схема вала.
Рисунок 3.3
Для упрощения построения эпюр
изгибающих моментов рассмотрим валец с начало в вертикальной плоскости, а затем
в горизонтальной.
Вертикальная плоскость.
; ХВ+Ра=0; ХВ=-Ра=-3613
Н.(3.67)
(3.68)
(3.69)
Проверка
(3.70)
Строим эпюру изгибающих моментов в вертикальной
плоскости.
Участок 1-1
при
,
при
,
Участок 2-2
при Х2=l1, Mизг.2=10,41 Н*м.
Х2=l1+l2, Мизг.2=-454,2
Н*м
Рисунок 3.4 - Эпюра изгибающих
моментов
Участок 3-3
при Х3=0, Мизг.3=0
Н*м
Х3=l4, Мизг.3=-280,2
Н*м
Рассмотрим горизонтальную плоскость:
; ХВ+Ра=0; ХВ=-Ра=-3613
Н.
Проверка
Участок 1-1
при Х1=0, Мизг.1=191,85
Н*м
Х1=l1,
Участок 2-2
при Х2=l1, Mизг.2=-301,3 Н*м.
Х2=l1+l2, Мизг.2=-1662
Н*м
Участок 3-3
при Х3=0, Мизг.3=0
Н*м
Х3=l4, Мизг.3=-400,2
Н*м
Суммарные моменты определяются по
формуле:
(3.71)
Эквивалентный момент определяют по
формуле :
(3.72)
По результатам построения видим что
наиболее опасным сечением центральное сечение мелющего вальца, но в связи с
большим диаметром проверка не требуется, более опасным является опора В,
концентратором напряжения в этом сечении является посадка подшипника. Проверим
запас прочности в этом сечении.
Суммарный момент в опоре В равен:
(3.73)
где ns -
коэффициент запаса прочности по нормальным напряжениям.
nt -
коэффициент запаса прочности по касательным напряжениям.
Коэффициент запаса прочности по
нормальным напряжениям определяется из выражения
(3.74)
где s-1 - предел
выносливости стали при симметричном цикле изгиба, для углеродистой стали
, для стали
45
кs - эффективный коэффициент
концентрации нормальных напряжений. /4/
es - масштабный фактор для нормальных
напряжений./4/
b
- коэффициент, учитывающий влияние шероховатости поверхности, при шероховатости
поверхности Rа от 0,32 до
2,5 мкм принимают b=0,97-0,90.
sv - амплитуда
цикла нормальных напряжений, равна наибольшему напряжению изгиба su - в
рассматриваемом сечении.
sm - среднее
напряжение цикла нормальных напряжений, если осевая нагрузка Pа отсутствует
или пренебрежимо мала, о принимают sm=
Коэффициент запаса прочности по
касательным напряжениям
(3.75)
где t-1 - предел
выносливости стали при симметричном цикле кручения; для углеродистой стали
. Остальные
значения имеют тот же физический смысл, что и в предыдущей формуле. Значения tv и tm определяют
в предположении, что вследствие колебания Мк напряжения кручения
изменяются по отнулевому циклу:
где Wк - момент
сопротивления кручению.
Для посадки подшипника
где Wнетто - осевой
момент сопротивления сечения вала.
sm=
где Wp нетто - полярный
момент сопротивления сечения, мм3.
4. Основные правила
эксплуатации и повышение надежности проектируемого механизма
При обслуживании вальцовых станков необходимо
соблюдать обязательные меры предосторожности согласно правилам техники
безопасности, а также производственную санитарию.
Перед началом работы необходимо проверить и
привести в надлежащее состояние свой комбинезон и головной убор (берет или
шапку). Обшлага брюк и рукавов комбинезона должны быть плотно застегнуты,
волосы у женщин должны быть подобраны под берет или шапку. Ни в коем случае
нельзя работать в юбке, халате, платке или косынке с развевающимися концами.
Поверх одежды не разрешается надевать пояс.
Необходимо постоянно следить, за надежностью
крепления ограждений приводных ремней, футляров шестерен, не допуская
неплотного прикрытия половинок футляров либо щели между ними, через которые
одежда или тряпка во время уборки станка могут попасть в зубья шестерни.
Надевать и сбрасывать приводные ремни можно только ремненадевателями и
ремнесбрасывателями. При этом сбрасывать ремень следует только в сторону
станка. При перекрестных (крестовых) ремнях должны быть обязательно установлены
ремнеподдержки в проеме пола, чтобы сброшенный со шкива ремень не упал случайно
на трансмиссию, где он может намотаться на вращающийся вал.
После того как ремень надет, крылья
ремненадевателя необходимо повернуть и закрепить между ветвями ремня. Ремень не
должен тереть о кромки крыльев ремненадевателя во избежание его расшатывания, а
также порчи ремня.
Категорически запрещается подхватывать,
замотавшийся на валу вращающейся трансмиссии, ремень руками либо другими
предметами до полной остановки трансмиссии.
При недостаточном натяжении приводного ремня,
смазка его внутренней поверхности какими-либо пастами, канифолью, смолой,
битумом не допускается. Сшивать ремень питающего механизма станка можно только
после сброса приводного ремня.
Смазка во всех подшипниках станка должна хорошо
держаться. Для заливки масла необходимо пользоваться специальной лейкообразной
масленкой с длинным носиком (не менее 200 мм).
Заливать маслю нужно аккуратно, к подшипнику
подходить с удобной и безопасной стороны и не иметь в руках тряпок или
обтирочных концов. На полу, либо на подвеске должен быть установлен противень,
куда будет стекать случайно пролитое масло. Использованные тряпки и обтирочный
материал складывают в специальные ящики.
При регулировании и проверке работы вальцового
станка в случае появления стука в приводном шкиве или в шестернях рабочих
вальцов необходимо остановить станок, установить и устранить неисправность.
Если в рабочий зазор между вальцами попадет
посторонний предмет, который не захватывается ими (болт, гайка), необходимо
становить станок во избежание поломки и удалить попавший предмет. Категорически
запрещается подхватывать пальцами попавший между вальцами посторонний предмет,
это грозит увечьем. Запрещается чистить или снимать во время работы станка
щитки для подачи продукта питающего механизма. Для прочистки зазора под
регулирующей заслонкой питающего механизма следует пользоваться только
специальной прочищалкой.
Чтобы в вальцовые станки не попадали
металлические предметы, следует периодически проверять работу магнитных
заграждений установленных перед станками.
О всех замеченных неисправностях трансмиссий,
ограждений вальцовых станков, аспирации, освещения и т. п., которые нельзя
устранить собственными силами, необходимо немедленно сообщить старшему по смене
для принятия мер.
В случае завала вальцового станка следует
немедленно прекратить сыпь и отвалить вальцы, открыть дверки станка, расчистить
башмак нории специальным скребком, остерегаясь ушиба движущимися ковшами.
Выпущенный на пол продукт своевременно убрать и рабочее место содержать в
чистоте. Проворачивать заваленную норию или шнек силой запрещается. При завале
шнека следует сбросить приводной ремень, открыть нижние люки и провернуть шнек
от руки.
Перед началом ремонта вальцового станка
необходимо проверить исправность подъемных талей, тележек для перевозки
вальцового инструмента, подготовить гаечные, ключи нужных размеров, молотки с
ровными бойками без заусениц и зазубрин и хорошо насаженными ручками.
При ремонте выключенного из работы вальцового
станка или его половины и при сшивании ремня находящиеся по соседству
вращающиеся части других станков необходимо надежно оградить.
При разборке вальцового станка нельзя
разбрасывать снятые детали. Снятые вальцы другие детали класть на подстилку.
После окончания работы и проверки качества ремонта необходимо установить на
место и закрепить все ограждения, тщательно проверить, не осталось ли что-либо
постороннее в станке и футлярах, собрать и проверить весь инструмент, все
запасные или замененные детали. О пуске вальцового станка в ход необходимо
предупредить работающих в смене.
Заключение
В курсовом проекте предложена
конструктивно-технологическая схема вальцового станка, предназначенного для
измельчения зерна пшеницы в соответствии с требованиями предъявляемыми к
процессу производства муки.
Проведённые расчёты позволили обосновать
конструктивные и режимные параметры механизма, оценить энергетические и
кинематические параметры, на основании которых предложена рациональная
конструкция вальцового станка, что может обеспечить снижение материалоемкости и
энергоемкости процесса измельчения зерна пшеницы при производстве муки.
Литература
1. Анурьев В.И. Справочник
конструктора машиностроителя: В 3-х т./ В.И. Анурьев -М.: Машиностроение, 1978
2. Галицкий Р. Р. Оборудование
зерноперерабатывающих предприятий / Р. Р. Галицкий. - 3-е изд., доп. и перераб.
- М.: Агропромиздат, 1990. - 271с.
. Егоров Г.А. Технология
муки, крупы и комбикормов / Г. А. Егоров, Е. М. Мельников, Б. М. Максимчук. -
М.: Колос, 1984. - 376с.
4. Курсовое проектирование
деталей машин/ С.А. Чернавский, Г.М. Ицкович, К.Н. Боков и др. - М.: Машиностроение,
1979. - 351 с.
5. Машины и оборудование для
измельчения зерна: Метод, указ. / Сост. И. А. Кравченко; Азово-Черномор. гос.
агроинж. акад. - Зерноград, 1997. - 33с.
6. Оборудование для
производства муки и крупы: Справочник / А. Б. Демский и др.-М. Агропромиздат,
1990.- 349с.
. Справочник по оборудованию
зерноперерабатывающих предприятий /А. Б. Демский, М. А. Борискин, Е. В. Тамаров
и др. - М.: Колос, 1970.- 432 с.
. Технологическое
оборудование предприятий по хранению и переработке зерна /А. Я. Соколов, В. Ф.
Журавлев, В. Н. Душин и др.- М.: Колос, 1984.- 445с.