Современные решения в реконструкции исторических зданий

  • Вид работы:
    Реферат
  • Предмет:
    Строительство
  • Язык:
    Русский
    ,
    Формат файла:
    MS Word
    414,68 kb
  • Опубликовано:
    2011-10-30
Вы можете узнать стоимость помощи в написании студенческой работы.
Помощь в написании работы, которую точно примут!

Современные решения в реконструкции исторических зданий















Современные решения в реконструкции исторических зданий

Масштабы и темпы градостроительства непрерывно возрастают. Строительство производится в соответствии с генеральными планами развития городов, составленными с учетом современных представлений о комфортабельности проживания населения.

В настоящее время города являются сложными планировочными образованиями. Поэтому развитие существующего города и связанная с этим необходимость реконструкции не могут охватывать только незастроенную, пустующую на данный момент территорию в административных границах города. В процессе реконструкции города возникает необходимость значительных работ в исторических районах города. Но преобразование городской среды в старых районах города необходимо проводить с сохранением ее архитектурно-художественного облика, что невозможно без четкой градостроительной документации, без проекта детальной планировки.

Историческая часть города - это его лицо, визитная карточка. Не случайно стараются сохранить историческую застройку. Но здания, простоявшие более ста лет, естественно, со временем разрушаются, теряют свой первоначальный облик. За время своей жизни они неоднократно подвергались переделкам и перестройкам, но всё равно сохранили дух исторических времён. Поэтому в настоящее время остро стоит вопрос о реконструкции исторических зданий.

Следует также учитывать, что здания, подлежащие реконструкции в настоящее время, будут служить в XXI веке, когда уровень комфорта станет еще выше. Поэтому перед проектировщиками и строителями в исторической застройке стоят труднейшие задачи - создать надежные конструкции и при этом сохранить облик здания.

Модернизация технологических процессов, установка нового оборудования, расширение производства, обновление физически устаревших или вышедших из строя строительных конструкций, изменение гидрологических условий грунтов и многое другое требуют реконструкции зданий, а также принятия мер для придания строительным конструкциям свойств, удовлетворяющих требованиям в новых условиях эксплуатации.

Реконструкция зданий и сооружений в зависимости от поставленных задач требует обычно увеличения полезных площадей, этажности, высоты этажей, повышения несущей способности и жесткости несущих конструкций, замены фасадных материалов.

При реконструкции зданий и сооружений производится расчет строительных конструкций в соответствии с действующими строительными нормами. Проверочные расчеты производятся с учетом изменений действующих нагрузок, объемно-планировочных решений, условий эксплуатации, наличия дефектов и повреждений, обнаруженных при натурных обследованиях. Целью проверочных расчетов является установление соответствия действительной несущей способности, трещиностойкости и деформативности конструкций предъявляемым требованиям в изменившихся условиях их эксплуатации.

Проектируемые и возводимые здания, согласно определяющим эксплуатационным требованиям, должны:

обладать высокой надежностью, т. е. выполнять заданные им функции в определенных условиях эксплуатации в течение заданного времени, при сохранении значений своих основных параметров в установленных пределах;

быть удобными и безопасными в эксплуатации, что достигается рациональными планировкой помещений и расположением входов, лестниц, лифтов, средств пожаротушения, причем для ремонта и замены крупногабаритного технологического оборудования в зданиях должны быть предусмотрены люки, проемы и крепления;

быть удобными и простыми в техническом обслуживании и ремонте, т. е. позволять осуществлять его на возможно большем числе участков, иметь удобные подходы к конструкциям, вводам инженерных сетей без демонтажа и разборки для осмотров и обслуживания с предельно низкими затратами на вспомогательные операции, должны позволять применять передовые методы труда, современные средства автоматизации и механизации, сборно-разборные устройства для обслуживания труднодоступных конструкций, а также иметь приспособления для крепления люлек, источники тока и др.;

быть ремонтопригодными, т. е. их конструкции должны быть приспособлены к выполнению всех видов технического обслуживания и ремонта без разрушения смежных элементов и с минимальными затратами труда, времени, материалов;

иметь максимально возможный и близкий эквивалентный для всех конструкций межремонтный срок службы;

быть экономичными в процессе эксплуатации, что достигается применением материалов и конструкций с повышенным сроком службы, а также минимальными затратами на отопление, вентиляцию, кондиционирование, освещение и водоснабжение;

иметь внешний архитектурный облик, соответствующий их назначению, расположению в застройке, а также приятный для обозрения, причем внутренняя покраска зданий не должна утомлять людей, по возможности не загрязняться и легко поддаваться очистке, восстановлению.

В зависимости от назначения здания в его проекте соответственно нормам предусматривают необходимые размеры, прочность, герметичность, теплозащитные и другие эксплуатационные качества, которые потом материализуют в ходе строительства и поддерживают в процессе эксплуатации.

В настоящее время при работе с историческими зданиями, которые решено сохранить в современной застройке, применяются, как правило, два основных метода: реконструкция натурный строительный здание

-полный снос здания, строительство на его месте нового, соответствующего современным потребностям, с последующей реконструкцией старого фасада.

сохранение наружных исторических стен здания с полной заменой строительных конструкций внутри.

Выполнение комплекса работ по реконструкции старого здания хотелось бы показать на примере здания по ул. Сергиевской, д.13.

Фасад по ул. Сергиевской

Здание по улице Сергиевская находится в исторической части города в непосредственной близости домика Каширина, поэтому одним из условий реконструкции было сохранение исторических фасадов по улице Сергиевской и Ильинской. Здание было построено в XIX веке, сложной формы в плане, двухэтажное, со стенами из красного глиняного кирпича толщиной 800-850мм. Фасады здания выполнены в стиле русского классицизма. Данное здание является объектом культурного наследия (памятником истории и культуры) регионального значения. Поэтому рабочий проект ремонта, реставрации и приспособления для современного использования дома №13 по ул. Сергиевской был рассмотрен и согласован в Департаменте градостроительного развития территории Нижегородской области. Было получено разрешение на строительство дополнительного пристроя со стороны двора и выполнение мансарды над всем зданием.

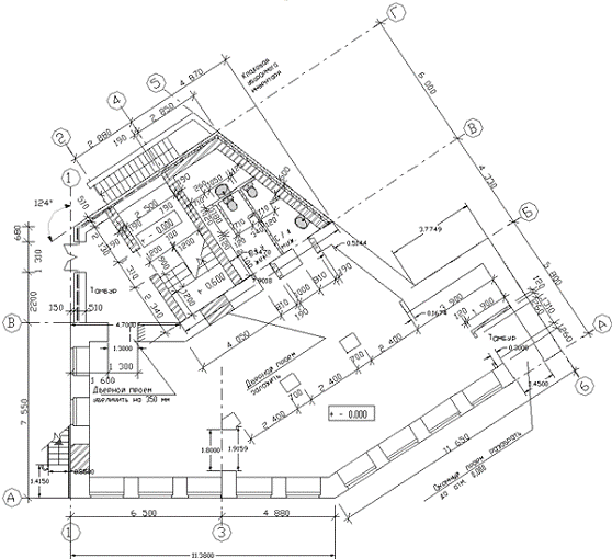
План 1-го этажа

При реконструкции старого здания в первую очередь было произведено обследование существующих конструкций. Данная работа всегда производится для определения состояния несущих конструкций с целью установить возможность дальнейшего их использования.

По результатам обследования и на основании расчетов на Сергиевской было произведено усиление фундаментов существующей части здания. Работы по усилению фундаментов всегда очень трудоемки, но без их выполнения трудно рассчитывать на длительную качественную работу здания в изменившихся условиях эксплуатации. Работы по усилению фундаментов проводятся поэтапно, на небольших захватках, чтобы не вызвать нежелательных осадок здания. В данном случае старый бутовый фундамент был уширен за счет монолитной железобетонной рубашки. Это повышает несущую способность фундамента и защищает его от повреждений впоследствии.

Усиление фундаментов

Ввиду плохого состояния деревянных перекрытий и для повышения огнестойкости конструкций пришлось производить полную замену перекрытий. Перекрытия выполнялись монолитные железобетонные по металлическим прокатным балкам. Технология, конечно, не нова, но получила достаточно широкое применение в условиях реконструкции. Это связано со стесненными условиями работ: недостаточное место для установки большой строительной техники в стесненных условиях существующей застройки. Металлические балки возможно устанавливать в проектное положение с помощью малогабаритных приспособлений. Монолитное перекрытие также монтируется на месте.

Схема расположения несущих балок перекрытия

Сечение по перекрытию

Надстройка мансарды выполнялась с использованием металлических балок, что дало возможность не устанавливать дополнительные опоры и освободить помещение мансарды для эксплуатации. Утепление кровли проводилось материалом Rockwool. Он обладает хорошими теплотехническими свойствами при негорючести материала, что немаловажно для обеспечения противопожарной безопасности здания.

Деталь конструкции мансардной кровли

При выполнении пристроя также выполнялись все современные требования СНИП.

Между монолитным железобетонным фундаментом пристроя и существующим фундаментом здания выполняли деформационный шов, обеспечивающий самостоятельную работу зданий в условиях различных осадок.

Остекление пристроя производится с использованием современных энергосберегающих витражей и оконных блоков с двойными стеклопакетами. В перекрытиях данной ситуации была использована та же конструкция, что и в существующем здании. Лестницы во всём здании выполнены железобетонные по металлическим косоурам. Внутренние перегородки выполнены из ГВЛ по металлическому каркасу по технологии "ТИГИ КНАУФ". Кровельное покрытие на всём здании - оцинкованная кровельная сталь.


Весь комплекс работ по замене и устройству новых инженерных сетей и оборудования также выполнялся в соответствии с действующими на данный момент указаниями СНИПов, с использованием современных долговечных материалов.

Реконструкция дома по улице Сергиевская - лишь один из примеров применения современных технологий и материалов в современном строительстве. На самом деле арсенал приёмов реконструкции необычайно широк. Каждое историческое здание по-своему уникально, поэтому и применяемые для продолжения их жизни решения чрезвычайно разнообразны. Проектировщики и строители используют в данной работе весь накопленный опыт и новейшие достижения современной науки.


Не нашли материал для своей работы?
Поможем написать уникальную работу
Без плагиата!
Без нейросетей!