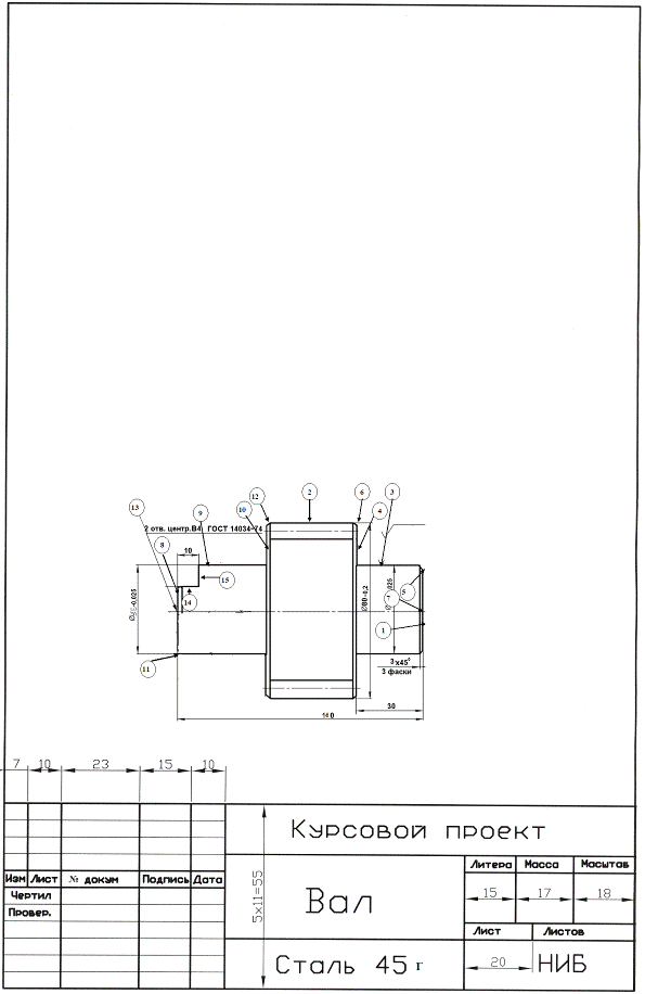
Разработка технологического процесса механической обработки вала

  • Вид работы:
    Дипломная (ВКР)
  • Предмет:
    Другое
  • Язык:
    Русский
    ,
    Формат файла:
    MS Word
    826,24 kb
  • Опубликовано:
    2011-07-21
Вы можете узнать стоимость помощи в написании студенческой работы.
Помощь в написании работы, которую точно примут!

Разработка технологического процесса механической обработки вала















Разработка технологического процесса механической обработки вала

Оглавление

Введение

Глава 1. Материал, выбор вида заготовки и определение ее размеров

Глава 2. Технология изготовления детали

.1 величин припусков на обработку

Глава 3. Технологическое оборудование

Глава 4. Определение режимов резания

4.1 Расчет резцов на прочность и жесткость

Глава 5. Расчет затрат времени

.1      Определение основного времени

.2      Определение вспомогательного времени

.3      Определение времени на обслуживание рабочего места

.4      Определение норм штучного времени

.5 Определение подготовительно-заключительного времени

Глава 6 . Экономическая часть

.1 Экономическая оценка технологического процесса

Заключение

Список литературы

Приложение 1

Приложение 2

Приложение 3

Приложение 4

Приложение 5

Введение

заготовка обработка резание прочность

При проектировании технологических процессов изготовления деталей машин необходимо учитывать основные направления в современной технологии машиностроения.

Применение прогрессивных высокопроизводительных методов обработки, обеспечивающих высокую точность и качество поверхностей деталей машины, методов упрочнения рабочих поверхностей, повышающих ресурс работы детали и машины в целом, эффективное использование автоматических и поточных линий, станков с ЧПУ - все это направлено на решение таких задач как повышение эффективности производства и качества продукции.

Разработка технологического процесса изготовления машины не должна сводится к формальному установлению последовательности обработки поверхностей деталей, выбору оборудования и режимов. Она требует творческого подхода для обеспечения согласованности всех этапов построения машины и достижения требуемого качества с наименьшими затратами.

Цель курсовой работы заключается в применении на практике методики проектирования технологических процессов. Для выполнения поставленной цели необходимо решить ряд следующих задач:

) проанализировать сборочную единицу;

) выявить технические требования на деталь, дать оценку технологичности, определить тип производства;

) выбрать метод получения заготовки, ее спроектировать;

) разработать техпроцесс изготовления детали;

) на все операции назначить режимы резания, рассчитать технические нормы времени;

Глава 1. Материал, выбор вида заготовки и определение ее размеров

В зависимости от типа производства, конфигурации, размеров и материала детали определяем тип заготовки: прокат в виде прутков круглого сечения.

Материал детали - сталь 45 Г ГОСТ 4543 <#"531004.files/image001.gif">

Правильность выбора заготовки оцениваем по величине коэффициента использования материала:

Км = Qд/Q,

д - чистая масса детали, кг;

Q - норма расхода материала на одну деталь, кг;

 = Qз +Zобщ,

з - черновая масса заготовки, определяемая из теоретической массы одного погонного метра проката;

Zобщ - общие потери при обработке в % к длине прутка:

общ = Zз + Zотр + Zнк,

з - потери на зажим;

Zотр - потери на отрезание;

Zнк - потери на некратность;

а) потери на зажим:

з = (Z'з / lпр) * 100%

'з - 60мм., исходя из экономической и технологической целесообразности процесса изготовления детали.

lпр = 160мм - это длина прутка.

Zз = (60/160)*100%= 37,5%

б) потери на отрезание:

отр = (b/lдет)*100%

b - глубина отрезного резца, b = 0,1d, где d - диаметр прутка;

b = 0, 1* 40 = 4 мм

lдет - длина детали, мм с припуском lдет =38+1, 2=39,2мм

Zотр = (4/39, 2) * 100% = 10, 2%

в) потери на некратность:

нк = (lост пр / lпр) * 100%

Считаем, какое количество деталей можно изготовить из прутка длинной 1,6м:

= (lпр - Z'з) / (lдет + b)

= (160 - 60) / (39,2 + 4) = 56,8

Находим остаток длины прутка:

- 56,8 * (39,2 + 4) = 87,2мм

Zнк = (27, 2 / 160) * 100 = 17%

Итак, общие потери при обработке составляют:

Zобщ = 1, 7 + 10, 2 + 0, 7 = 14, 39%

Таким образом, норма расхода материала Q на одну деталь с учетом всех потерь будет:

 = Qз + Zобщ

Масса 1 м стали - 9,86 кг,

,86 кг - 1000 мм

Х кг - 39,2 мм

Х - (9,86 * 39,2) / 1000 = 0,386 кг

где Qзаг = 0,386 * 0,0392= 0,015 кг,

Zобщ = (0,015 / 100) * 14, 39 = 0,002

Q = 0,386 + 0,002 = 0,388 кг.

Расчитываем объем и массу заготовки и готовой детали.

з =(pd²*lдет)/4

з = [3,14 * (40мм)² * 39,2мм]/4 = 49235,2 мм3

Масса заготовки:

з = Vз* p

где p = 7,8 - 7,85 г/см3заг = [(49235,2 / 1000) * 7,8] /1000= 0,384кг.

Находим объем детали:

дет = (V1 + V2 + V3) = (pd²*l)/4 = (3,14 * 40² * 30) / 4 = 37680 мм3= (pd²*l)/4 = (3,14 * 36² * 30) / 4 = 30520 мм3= (pd²*l)/4 = (3,14 * 48² * 25) / 4 = 45216 мм3

Отсюда объем детали:дет = (37680+30520+45216) = 11341,16 мм3

Масса детали:

= p * Vдет

= [(11341,16 / 1000) *7,8] / 1000 = 0,088 кг

Определяем коэффициент использования материала:

им = Мдет/Мз

Kим = 0,088 / 0,388 = 0,22

Вывод: материал детали выбран правильно, так как коэффициент использования материала Kим = 0,22, что в пределах норм.

Глава 2. Технология изготовления детали

 

.1 Определение величин припусков на обработку


Таблица1

№ операции

№ перехода

Наименование операций и переходов

Припуск, мм

Размер d,мм

Допуск, мкм


1

Установить заготовку

-

d = 40; l = 30;

-


2

Точить торец

0,6

d = 36 l = 30

160


7

Нарезать резьбу

2

M24X2-7H

+25


8

Точить наружную поверхность

1,5

d = 38 l = 43

160


9

Точить наружную поверхность

1,5

d = 36 l = 33

160


10

Точить наружную поверхность

1,5

d = 30 l = 20

160


11

Снять фаску

1

45°

110


12

Снять фаску

1

3X45°

110


13

Отрезать заготовку

0,7

l = 38

160


14

Снять и установить заготовку

-


-


15

Точить торец

0,6

d = 48 l = 25

160


Схема расположения полей припусков и допусков.

Максимальный диаметр вала dN = 40 мм;

Допуск на шлифование d1 = 0,013 мм;

Припуск на шлифование z1 = 0,1 мм;

* = dN - z1 - d1

* = 40 -0,1 - 0,013* = 39,88 мм

Глава 3. Технологическое оборудование


Для изготовления детали подойдет токарно-винторезный - станок 16К20. [Приложение 1]

Наибольший диаметр обрабатываемой заготовки:

над станиной - 400

над суппортом - 220

Наибольший диаметр прутка, проходящего через отверстие:

шпинделя - 53

Наибольшая длина обрабатываемой заготовки 710; 1000; 1400; 2000;

Шаг нарезаемой резьбы: 0,5 - 112

метрической - 56 - 0,5

дюймовой - 0,5 - 112

Частота вращения шпинделя, об/мин: 12,5 - 1600

Число скоростей шпинделя: 22

Наибольшее перемещение суппорта:

продольное 645 - 1935

поперечное 300

Подача суппорта, мм/об (мм/мин):

продольная 0,05 - 2,8

поперечная 0,025 - 1,4

Число ступеней подач 24

Скорость быстрого перемещения суппорта, мм/мин:

продольного 3800

поперечного 1900

Мощность электродвигателя главного привода, 11кВт

Габаритные размеры (без ЧПУ)

длина 2505 - 3795

ширина 1190

высота 1500

Масса, кг 2835 - 3685

Высота центров 215мм

Мощность двигателя главного привода Nн = 10 кВт.

Расстояние между центрами до 2000мм.

Кпд станка 0,75.

Частота вращения шпинделя об/мин: 12,5; 16; 20; 25; 31,5; 40; 50; 63; 80; 100; 125; 160; 200; 250; 315; 400; 500; 630; 800; 1000; 1250; 1600.

Продольные подачи мм/об: 0,05; 0,06; 0,075; 0,09; 0,1; 0,125; 0,15; 0,175; 0,2; 0,25; 0,3; 0,35; 0,4; 0,5; 0,6; 0,7; 0,8; 1; 1,2; 1,4; 1,6; 2; 2,14; 2,6; 2,8.

Поперечные подачи мм/об: 0,025; 0,03; 0,0375; 0,045; 0,05; 0,0625; 0,0725; 0,0875; 0,1; 0,125; 0,15; 0,175; 0,2; 0,25; 0,3; 0,35; 0,4; 0,5; 0,6; 0,7; 0,8; 1; 1,2; 1,4.

Максимальная осевая сила резания, допускаемая механизмом подачи Рх = 600кгс.

Вспомогательные инструменты к токарным станкам: державка резцов, сверлильные и резьбовые патроны др.

Токарные приспособления: зажимной патрон трехкулачковый самоцентрирующийся

Разработка технологического процесса.

План-маршрут механической обработки данной детали представлен на рисунке 1. процесс механической обработки включает в себя токарные и сверлильные операции.

Токарная операция:

Установочная база - поверхность 0;

Измерительная база - поверхность 1;

Обрабатываем поверхности 1, 2, 3, 4, 5, 6;

Сверлильная операция:

Установочная база - поверхность 0

Измерительная база - 1

Обрабатываем поверхности - 8

Токарная операция:

Установочная база - поверхность 0

Измерительная база - 1

Обрабатываем поверхности - 7, 9, 10, 11;

Глава 4. Определение режимов резания


a)      Точение.

1. Для обработки поверхности воспользуемся проходным отогнутым резцом. Материал режущей части Р18. Так как резцом необходимо обработать ст. 45Г, с пределом прочности при растяжении sв.р. = 52кг/мм² [Приложение 2]. То значение углов геометрии токарного резца будут следующие:

a = 12°; j1 = 5 - 10°

g = 25° j = 45°

Н ´ В = 25 ´ 16 [Приложение 2]

. Исходя из общего припуска и характера выполняемого перехода (чистового) определяем глубину резания, мм:

= (D - d)/ 2

- диаметр обрабатываемой поверхности в мм;

d - диаметр обработанной поверхности в мм;= (40 - 36) / 2 = 2мм;

. Выбираем табличное значение подачи S.= 0,4 мм/об;

. Исходя из оптимального времени работы инструмента без переточки, выбираем стойкость инструмента Т = 60 мин [Приложение 3] и определяем допустимую для этой стойкости скорость резания, м/мин:

= (Сv * Кv) / (Тm * tхv * SYv),

где Сv, m, xv, Yv, постоянная и показатели степени, соответственно: 56; 0,20; 0,15; 0,20; [10, с430 т22]

Кv - поправочный коэффициент,

Кv = Кmv * Кnv * Кuv * Кjv * Кj'v * Кrv * Кqv * Кov

Кmv - качество обрабатываемого материала, 1,36

Кnv - состояние поверхности заготовки, 0,9

Кuv - материал режущей части, 1

Кjv - коэффициент главного угла в плане, 1

Кj'v - коэффициент вспомогательного угла в плане, 0,94

Кrv - коэффициент радиуса при вершине, 1

Кqv - коэффициент поперечного сечения державки, 0,97

Кov - вид обработки, 1

Кmv = 0,6(75 / sв.р.)1,25 = 0,6 * (75/ 42) 1,25 = 1,23

Кv = 1,23 * 0,9 * 1 * 1 * 0,94 * 1 * 0,97 * 1 = 1,016= (56 * 1,016) / (600,20 * 10,15 * 0,40,20) = 30,13 м/мин.

. Рассчитываем частоту вращения шпинделя по допустимой скорости резания, об/мин:

= (1000V) / (DП)

- скорость резания, 30,13 м/мин;- диаметр обрабатываемой поверхности, 40мм;= (1000 * 30,13) / (40 * 3,14) = 239,88 об/мин;

. Полученную расчетную частоту вращения корректируем по паспортным данным станка и рассчитываем действительную скорость резания Vд (об/мин):

д = (p * D * nд) /1000

д - действительная частота вращения шпинделя (скорректированная по паспорту), 200 об/мин.д = (3,14 * 40 * 200) / 1000 = 25,12 об/мин;

. Определяем требуемую мощность станка (кВт):

= (Pz * V) (60 * 102h)

- тангенциальная составляющая силы резания, кгс

= Ср * tхр * Syp * Vnp* Кp

 - глубина резания, 1мм;

Ср - постоянная для данных условий резания, 300;

xp, yp, np - показатели степени составляющих силы резания, соответственно: 1; 0, 75; -0,15; [Приложение 4].

Кp - поправочный коэффициент:

Кp = Кmp * Кjp* Кgp * Кlр * Кгp

Кmp - учитывает обрабатываемый материал;

Кmp = (sв.р. / 75) np0.35 = (42 / 75)-0.15 0.35 = 1,030

Кjp, Кgp, Кlр, Кгp - учитывают влияние геометрических параметров резца на составляющие силы резания, соответственно: 1; 1; 1; 1,04;

Кp = 1,030 * 1 * 1* 1 * 1,04 = 1,072- скорость резания, 30,13 м/мин;

h - к.п.д. передач станка, 0,75; = 300 * 11 * 0,40,75 * 30,13-0,15 * 1,07 = 96,87 кгс= (96,87 * 30,13) / (60 * 102 * 0,75) = 0,635 кВт

8.  Определяем усилие подачи:

х = Ср * tхр * Syp * Vnp * Кp

Ср = 339; хp = 1; yp = 0,5; np = -0,4, [10, т24] ;

Кp = Кmp * Кjp* Кgp * Кlр * Кгp

Кmp = (sв.р. / 75) np0.35 = (42 / 75)-0.4 0.35 = 1,08

Кjp = 1;

Кgp = 1;

Кlр = 0,85;

Кгp = 1;

Кp = 1,08 * 1 * 1* 0,85 * 1= 0,92х = 339 * 11 * 0,40,5 * 30,13-0,4 * 0,92 = 50,51 кгс

Определяем радиальную составляющую силы резания:

у = Ср * tхр * Syp * Vnp * Кp

Ср = 243; хp = 0,9; yp = 0,6; np = -0,13, [10, т24];

Кp = Кmp * Кjp* Кgp * Кlр * Кгp

Кmp = (sв.р. / 75) np0.35 = (42 / 75)-0.13 0.35 = 1,026

Кjp = 1;

Кgp = 1;

Кlр = 1,25;

Кгp = 1,14

Кp = 1,026 * 1 * 1 * 1,25 * 1,14 = 1,46у = 243 * 10,9 * 0,40,6 * 30,13-0,13 * 1,46 = 71,28 кгс: Py : Px

,87 : 71,28 : 50,51

. Определяем основное время (мин):

То = (L * i) / (n * S)

 - длина прохода, 40мм [3, с44, т.47]

i - количество проходов, 1

n - частота вращения шпинделя, 1250 об/мин;

S - подача, 0,4 мм/об;

То = (40 * 1) / (1250 * 0,4) = 0,08 мин;

. Вспомогательное время определяем по справочнику - мин; [9, с275]

Продольное точение и растачивание - 0,42

Твсп = 4,5 мин.

б) Сверление.

. Материал режущей части инструмента - Р18, [5, с.145], тип - сверло спиральное Æ 16. геометрия сверла:

a = 12°;  = 40-60°;= 1,5 мм; l = 3мм; l1 = 1,5 мм;

. Исходя, из диаметра просверливаемого отверстия и характера выполняемого перехода назначаем количество проходов - 1 и определяем глубину резания:

= 0,5D

- диаметр просверливаемого отверстия, 16мм;= 0,5 * 16 = 8

. Выбираем максимальную допустимую подачу:= 0,1 мм/об [Приложение 5]

Принятую подачу проверяем по осевой силе, допускаемой прочностью станка. Для этого определяем осевую силу:

Р0 = Ср * Dqp * Syp * Kр

Ср, qp, ур - постоянная и показатели степени, соответственно: 37,5; 1; 0,7; [10, т32] ;

Кp = Кmp - поправочный коэффициент, 0,92

Р0 = 37,5 * 161 * 0,10,7 * 0,92 = 178,92 кгс

Р0 < Р0 max.

,92 < 300

. Назначаем период стойкости сверла: Т = 25 мин, [ Приложение 5]

. Определяем скорость резания:

= [(Cv * Dqp) / ( Tm * txv * SYv)] * Кv

, qp, m, xv, Yv - постоянная и показатели степени, соответственно: 7; 0,4; 0,2; 0; 0,7; [10, т32] ;

Кv = Кmv * Кuv * Кlv - общий поправочный коэффициент.

Кmv - коэффициент на качество обрабатываемого материала,

Кmv = Cm * (75 / sв)nv = 0,6 * (75 / 75 ) 0,9 = 0,6

Кuv - коэффициент на инструментальный материал, 0,3;

Кlv - коэффициент, учитывающий глубину просверливаемого отверстия, 1;

Кv = 0,6 * 0,3 * 1 = 0,18

V = [( 7 * 160,4 ) / (250,2 * 80 * 0,10,7)] * 0,18 = 19,79 м/мин

. Рассчитываем частоту вращения шпинделя, соответствующую найденной скорости резания об/мин:

= (1000 * V) / (p * D)

= (1000 * 19,79) / 3,14 * 16 = 393,90 об/мин.д = 400 об/мин.

. Определяем действительную скорость резания м/мин:

V = (p * D * nд) / 1000

= (3,14 * 16 * 400) / 1000 = 20,096 м/мин.

. Рассчитываем крутящий момент от сил сопротивления резанию при сверлении, кгс/м:

= Cm * Dqm * SYm * Kр

, qm, Ym - постоянная и показатели степени, соответственно: 0,0345; 2; 0,8; [10, т32] ;

Кp = Кmp - поправочный коэффициент, 0,92

M = 0,0345 * 162 * 0,10,8 * 0,92 = 1,28

. Определяем мощность, затрачиваемую на резание:

рез = (M * nд) / 975

Nрез = (M * nд) / 975 = 0,52 кВт.

. Проверяем достаточность мощности привода станка.

шп = Nэ * h

э - мощность электродвигателя станка, 10 кВт

h - к.п.д. станка, 0,75

Nшп = 10 * 0,75 = 7,5 кВт.

. Определяем основное и машинное время:

о = L / (nд * S)

- общая длина прохода сверла, 40 ммо = 40 / (400 * 0,4) = 0,25 мин

. Определяем вспомогательное время, связанное с переходом:

Твсп = 1,8 мин.

4.1 Расчет резцов на прочность и жесткость

Мизг < Ммах.изг.

Мизг - действующий изгибающий момент;

Ммах. изг. - максимальный изгибающий момент, допускаемый сечением державки резца;

Мизг = Pz * l

Мизг = [su]* W

- сила резания, 75,61 кгс- вылет резца, (1 - 2,5)Н = 1,56 * 16 = 25 мм

[su] - допускаемое напряжение на изгиб материала державки, 1100кгс/см2

или 11кгс/мм2- момент сопротивления сечения державки резца, мм3

* l = [su]* W

где W = (В *Н2) / 6= (16 * 252) / 6 = 1666,6мм3

Расчитываем ширину резца прямоугольного сечения:

В = (6 * Pz * l) / (2,56 * [su])

В = (6 * 96,87 * 25) / 2,56 * 11 = 8,02мм

Нагрузка допускаемая прочностью резца:

доп. = (16 * 252 * 11) / (6 * 25) = 733,3 кгс

Максимальная нагрузка, допустимая жесткостью резца:

доп.жост. = (3 * f *E *J) / l3

- допустимая стрела прогиба резца, 0,05мм;- модуль упругости резца,20000 кгс/мм2;- момент инерции сечения державки, J=(BH3) / 12 = 20833,3 мм4;- вылет резца, 40 мм;

Pzдоп.жост. = (3 * 0,05 *20000 *20833,3) / 403 = 976,56 кгс

доп. > Pz < Pzдоп.жост

,3 > 96,87 < 976,56

№ перехода

t, мм.

S мм/об

V м/мин.

n об/мин

Tосн мин.

1

-

-

-

-

0,15

2

0,6

0,2

114

800

0,05

3

0,5

0,15

20,3

400

0,26

4

0,5

0,25

97

1250

0,05

5

1

0,25

97

1000

0,15

6

0,5

0,25

97

1000

0,05

7

2

1,5

13


0,02

8

1,5

0,35

89

800

0,26

9

1,5

0,35

89

800

0,8

10

1,5

0,35

89

800

0,8

11

1

0,35

89

800

0,8

12

1

0,35

89

800

0,8

13

0,7

0,12

114

1000

0,15

14


-



0,15

15

0,6

0,2

114

1000

0,02


Тосн - 4,51 мин.

= 1000 * V / DП

1.      n = 1000 * 114 / 36 * 3,14 = 1008,4 об/мин, действительная частота вращения шпинделя nд = 800 об/мин;

2.      n = 1000 * 20,3 / 16 * 3,14 = 404,06 об/мин, действительная частота вращения шпинделя nд = 400 об/мин;

.        n = 1000 * 97 / 21 * 3,14 = 1471 об/мин, действительная частота вращения шпинделя nд = 1250 об/мин;

.        n = 1000 * 97 / 26 * 3,14 = 1188,14 об/мин, действительная частота вращения шпинделя nд = 1000 об/мин;

.        n = 1000 * 97 / 26 * 3,14 = 1188,14 об/мин, действительная частота вращения шпинделя nд = 1000 об/мин;

.        n = 1000 * 13 / 24 * 3,14 = 172,5 об/мин, действительная частота вращения шпинделя nд = 160 об/мин;

.        n = 1000 * 89 / 38 * 3,14 = 745,8 об/мин, действительная частота вращения шпинделя nд = 800 об/мин;

.        n = 1000 * 89 / 36 * 3,14 = 787,33 об/мин, действительная частота вращения шпинделя nд = 800 об/мин;

.        n = 1000 * 89 / 30 * 3,14 = 944,79 об/мин, действительная частота вращения шпинделя nд = 800 об/мин;

.        n = 1000 * 89 / 36 * 3,14 = 787,3 об/мин, действительная частота вращения шпинделя nд = 800 об/мин;

.        n = 1000 * 89 / 30 * 3,14 = 944,79 об/мин, действительная частота вращения шпинделя nд = 800 об/мин;

.        n = 1000 * 114 / 40 * 3,14 = 907,64 об/мин, действительная частота вращения шпинделя nд = 800 об/мин;

.        n = 1000 * 114 / 40 * 3,14 = 907,64 об/мин, действительная частота вращения шпинделя nд = 800 об/мин;

Глава 5. Определение основного времени


Основное время Т0 суммируется как основное время определенное для каждого отдельного перехода во всех операциях.

Т0 токарное - 4,25 мин.

Т0 сверлильное - 0,26 мин.

Общие основное время - 4,51 мин. [9, с275]

.1 Определение вспомогательного времени

Общие вспомогательное время - 4,51 мин.

Продольное точение - 0,42 мин.

Поперечное точение - 0,36 мин.

Проточка канавок - 0,19 мин.

Отрезка заготовки - 0,11 мин.

Нарезание резьбы - черновое 0,14 мин, чистовое 0,19 мин.

Обточка фасок - 0,22 мин.

Сверление - 0,16 мин.

Изменить частоту вращения шпинделя 0,08 мин.

Изменить величину или направление подачи - 0,06 мин.

Сменить резец - 0,07 мин.

Установить и снять инструмент - резец (проходной подрезной, расточной) 0,5 мин, сверло метчик 0,12 мин.

Время на промеры - 0,10 мин.[9, 265]

Твсп. = 4,51 + 0,42 + 0,36 + 0,19 + 0,11 + 0,14 + 0,19 + 0,22 + 0,16 + 0,08 * 7 + 0,06 * 7 + 0,5 * 3 + 0,12 + 0,8 + 0,14 + 0,10 = 4,21 + 4,51 = 8,72 мин.

5.2 Определение времени на обслуживание рабочего времени, отдых на естественные надобности

Топер. = То + Твсп.

Топр. = 8,72 -* 4% = 0,348 мин.[9, с263]

.3 Определение норм штучного времени

Норму штучного времени на операцию подсчитываем по формуле

Тшт = То + Твсп + Тобсл. + Тп

То - 4,51 мин.

Твсп. - 8,72 мин.

Тобсл - 0,348 мин.

Тп - 0,348 мин.

Тшт = 4,51 + 8,72 + 0,348 + 0,348 = 13,92 мин.

.4 Определение подготовительно-заключительного времени

Всего: 28 мин.

.5. Определение штучно-калькуляционного времени

Тш.к. - штучно-калькуляционное временя, это техническая норма времени на изготовление одной детали:

Тш.к. = (Тшт. + Тп.з.) / nш

ш - количество штук деталей в партии запускаш = (Д * t) / Ф

Д - годовая программа 400 штук;- запас деталей на складе выраженный в днях 5;

Ф - число рабочих дней в году - 262;ш = (400 * 5) / 262 = 8 штук деталей в партии запуска.

Тш.к. = 13,92 + (28 /8) = 17,42 мин.

Глава 6 . Экономическая часть

 

.1 Экономическая оценка технологического процесса

 

Рассчитываем годовую себестоимость изготовления данной детали по всей годовой программе методом прямого калькулирования.

С=(М + З + И + А + Э + Н + П)*Д

) М - стоимость материала заготовки (нормы расхода) 8тыс 271руб.

тонна стоит 8 тыс. 271 руб. Отсюда 1 килограмм 8,27 руб.

Масса детали 0,088 кг. Значит, она стоит 8,27 0,088 = 0,72

) З - зарплата производственных рабочих с учетом прямых накладных расходов, а так же расходов на социальное страхование и отпуска.

(70 * 17,42мин) / 60 = .

) И - расходы на эксплуатацию инструментов

[(4,1 *30) / 100] * 4,51 = 38,83 руб.

) А - расходы на оборудование (амортизация) 10,177 руб.

)Э - расходы на силовую энергию 3,65

) Н - стоимость наладки оборудования

Ннал. = [(Lнал. * kдоп.) / Тнал.] * tп.з.

доп. = 1,15; Тнал. = 20 мин; Lнал. - зарплата наладчика, 15,09; tп.з. = 6,6 мин.

Ннал. = [(15,09 * 1,15) / 20.] * 6,6 = 24,29 руб.

) П - стоимость эксплуатации специальных приспособлений 11,50

) Д - годовая программа выпуска детали 400 штук.

С=(М + З + И + А + Э + Н + П)*Д

С = (0,72 + + 24,6 + 11,25 + 4,05 + 24,29 + 12,75) * 400 = руб.

Заключение

В данной работе была разработана технология механической обработки заготовки. В ходе работы были выполнены все поставленные задачи, а именно, рассчитав ряд показателей, дал оценку технологичности - удовлетворительно; определил тип производства - крупносерийный, рассчитав коэффициент закрепления операций; выбрал метод получения заготовки - штамповка на КГШП, а также спроектировал ее; разработал техпроцесс изготовления детали «вал»; назначил режимы резания на все операции; рассчитал технические нормы времени и подобрал для всех линейных размеров универсальные средства измерения.

Литература

1.       Анурьев В.И. «Справочник конструктора- машиностроителя», Москва, 2001г.

2.      Бергер И.И. «Справочник молодого токаря», Минск 1972г.

.        Дальской А.М., Суслова А.Г. «Справочник технолога - машиностроителя», том 2, Москва 2001г.

.        Златоустов В.Д. «Технологические расчеты в курсовом проектировании по резанию металлов», Череповец, 1988г.

.        Комков А.А. «Справочные материалы к курсовому проекту по резанию материалов», Череповецкий государственный университет, 1998г.

.        Косилова А.Г., Мещеряков Р.К., Калинин Р.К. «Точность обработки, заготовки и припуски в машиностроении», Москва, 1976г.

.        Нефедов Н.А. «Дипломное проектирование в машиностроительных техникумах», Москва, 1976г.

.        Орлова П.Н., Скороходова Е.А. «Краткий справочник металлиста», Москва, 1987г.

.        «Общемашиностроительные укрупненные нормативы времени на работы, выполняемые на металлорежущих станках», Москва, 1989г.

.        Под ред. А.Н. Малова Справочник технолога машиностроителя.

Приложение 1

Приложение 2


Приложение 3

Приложение 4

Приложение 5


Не нашли материал для своей работы?
Поможем написать уникальную работу
Без плагиата!
Без нейросетей!