Организация работы на станциях и железнодорожных путях необщего пользования

  • Вид работы:
    Дипломная (ВКР)
  • Предмет:
    Транспорт, грузоперевозки
  • Язык:
    Русский
    ,
    Формат файла:
    MS Word
    1,18 Mb
  • Опубликовано:
    2012-01-22
Вы можете узнать стоимость помощи в написании студенческой работы.
Помощь в написании работы, которую точно примут!

Организация работы на станциях и железнодорожных путях необщего пользования

Федеральное государственное бюджетное образовательное учреждение высшего профессионального образования

Уральский государственный университет путей сообщения

Факультет экономики и управления

Кафедра «Станции, узлы и грузовая работа»



КУРСОВОЙ ПРОЕКТ

по дисциплине «Технология грузовой и коммерческой работы»

на тему:

Организация грузовой работы на станции и железнодорожных путях необщего пользования




Выполнила студентка группы Эк-319

Коробейникова В.Л.

Проверил доцент, к.т.н. Молчанова О.В.





катеринбург 2011

СОДЕРЖАНИЕ

Введение

.   Анализ грузопотоков

.1 Характеристика станции и промышленного района

1.2    Выбор типа подвижного состава и определение объемов грузовой работы

.3      Распределение объемов работы между грузовыми пунктами

2. Организация вагонопотоков

. Техническое оснащение станции и железнодорожных путей необщего пользования

.1 Путевое развитие парков станции

.2 Выбор и расчет количества погрузочно-разгрузочных машин

.3 Определение параметров склада

.4 Проектирование грузового района станции

. Разработка технологии работы грузовой станции

.1 Информация о подходе поездов и грузов

.2 Нормирование времени на выполнение грузовых операций

.3 Технология приема и выдачи груза

.4 Основы взаимодействия станции и железнодорожных путей необщего пользования

.5 Построение суточного плана-графика работы грузовой станции

Заключение

Список используемых источников

Введение

В настоящее время хозяйство грузовой и коммерческой работы является одним из ведущих на железнодорожном транспорте в условиях рыночных отношений и создания конкурентной среды.

Грузовая работа включает следующие операции:

1) организация грузового хозяйства станций;

2) эксплуатация и содержание сооружений и устройств грузовых районов, складского, весового и холодильного хозяйств;

3) организация погрузочно-разгрузочной работы в грузовых районах станций;

4) комплексная механизация и автоматизация погрузочно-разгрузочных работ.

Коммерческая работа включает такие операции как:

1) оперативное планирование перевозок грузов;

2) подготовка и прием грузов к перевозке;

3) оформление перевозочных документов;

4) определение и взимание провозной платы;

5) выдача грузов получателям;

6) обслуживание грузов в пути следования;

7) организация связи между различными видами транспорта.

Совершенствование грузовой и коммерческой работы направлено на полное удовлетворение спроса на перевозки грузов, повышение качества оказания услуг и развитие предпринимательской деятельности.

Цель выполнения настоящей курсового проекта - способствовать обобщению и закреплению полученных теоретических знаний и приобретению навыков решения практических инженерных задач, а также анализа технологии работы грузовой станции с позиций транспортной логистики.

На основании заданного грузопотока станции и примыкающих к ней железнодорожных путей необщего пользования я должна выполнить расчет вагонопотоков, выбрать типы и определить параметры складов, запроектировать грузовой район, разработать рациональную технологию грузовой и коммерческой работы станции и подъездных путей. В заключении я должна построить суточный план-график работы станции и определить основные показатели ее работы.

1. Анализ грузопотоков

1.1 Характеристика станции и промышленного района

Заданная грузовая станция находится в железнодорожном узле, который представляет комплекс технологически связанных станций, расположенных на одной магистрали и совместно обслуживающих крупный город или промышленный центр. Схема узлов приведена на рисунке 1.1.

Железнодорожный узел - пункт пересечения или примыкания нескольких железнодорожных линий (минимум трёх), ряд связанных соединительными ходами станций, работающих по единой технологии (во взаимодействии).

Для обслуживания грузового движения в узле располагается сортировочная станция (СС), на которой выполняются операции по расформированию и формированию грузовых составов и пропуску транзитных поездов.

Для обслуживания пассажирского движения служит пассажирская станция (ПС), расположенная ближе к основным жилым районам города и имеющая соответствующие обустройства.

Грузовая станция (ГС) расположена в промышленном районе и имеет удобную связь с сортировочной станцией и подъезды из города. К грузовой станции примыкает грузовой район (ГР) и подъездные пути (№1 и №2).

Операции, выполняемые на грузовой станции:

·  грузовые (сортировка, погрузка, выгрузка, подготовка вагонов к перевозке конкретного груза);

·        коммерческие (прием груза к перевозке, взвешивание, хранение, выдача и переадресовка грузов, оформление перевозочных документов, коммерческий осмотр составов поездов и устранение коммерческих неисправностей, пломбирование вагонов, транспортно-экспедиционное обслуживание);

·        технические (прием, отправление, обгон, скрещение и пропуск поездов всех категорий, маневровая работа (прицепка/отцепка, подача/уборка вагонов и другие), сортировочная работа, формирование и расформирование поездов в соответствии с планом формирования для данной железнодорожной станции, техническое обслуживание составов поездов и устранение выявленных неисправностей вагонов, смена локомотивов и локомотивных бригад, промывка/пропарка, экипировка вагонов, подготовка вагонов к погрузке).[6,7,9]

К грузовой станции примыкают два подъездных пути, которые обслуживают предприятия, расположенные в промышленном районе. Подъездной путь №1 обслуживает Мукомольный завод, поставляя зерно для него, и Цементный завод, отправляя производимый им щебень; подъездной путь №2 обслуживает Вагонное депо, поставляя для него металлопродукцию.

В узле через сортировочную станцию местный вагонопоток в составе передаточных поездов направляется на грузовую станцию, где передаточные поезда расформировываются, вагоны подбирают и подают на грузовые фронты для выполнения грузовых операций.

Рисунок 1.1. Схема железнодорожного узла с грузовой станцией тупикового типа

1.2 Выбор типа подвижного состава и определение объемов грузовой работы

Для всех заданных грузов, перерабатываемых на грузовой станции, необходимо выбрать рациональные типы подвижного состава. Тип подвижного состава выбирается на основании свойств и характеристик груза, способа его перевозки и в соответствии с правилами перевозок грузов. Виды грузов:

)   Зерно - пищевой продукт, используется для получения крупы, муки и пр., а также как корм для с/х животных. Находится в состоянии непрерывного обмена с окружающей средой - дышит и прорастает. Гигроскопическое - способно к поглощению и выделению влаги, в том числе и паров воды из окружающего воздуха. Увлажнение зерна приводит к появлению затхлого запаха, плесневению и порче груза. Пылящее, пылеемкое. Восприимчиво к посторонним запахам. Увеличивает объем (набухает) при увлажнении. Может быть заражено насекомыми и вредителями. Подвержено естественной убыли.

Для перевозки зерна наиболее подходящими будут крытые вагоны-хопперы.

) Щебень - мелкие частицы размером около 25 мм. Обычно предъявляется к перевозке навалом.

Для перевозок щебня будем использовать полувагоны с металлической обшивкой.

) Металлопродукция - общее название конструкций из металлов и различных сплавов, используемых в различных областях хозяйственной деятельности человека: строительстве зданий, станков, масштабных устройств, станков, механизмов, аппаратов и т. п. Обладает следующими характеристиками: коррозионная стойкость, электропроводность, способность намагничиваться, прочность и упругость.

Металлопродукцию будем перевозить на платформах универсальных.

) Тарно-штучные грузы являются наиболее разнообразным и ценным видом грузов. К ним относятся товары народного потребления и продукция основных отраслей обрабатывающей промышленности.

Для перевозок таких грузов используются крытые цельнометаллические вагоны.

) Грузы в среднетоннажных контейнерах - домашние вещи физических лиц, мелкие партии груза, которые отправляют небольшие производственные предприятия, а также экспедиторские компании.

Эти грузы перевозятся в вагонах для среднетоннажных контейнеров на базе полувагона.

) Тяжеловесные грузы - грузы, особенностью которых являются высокие весовые параметры транспортируемого товара.

Для перевозок такого вида грузов используются платформы с металлическими бортами.[17]

При выборе подвижного состава необходимо учитывать возможность его взаимозаменяемости для перевозки отправляемых грузов.

Результаты выбора представлены в таблице 1.1.

Таблица 1.1

Выбор типа подвижного состава

Грузовой пункт

Род груза

Род вагона

Грузоподъем-ность вагона, т

Техническая норма загрузки, т/ваг

Тара вагона, т

Длина вагона по осям автосцепки, мм

ГР

Тарно-штучные

КР

68

27,52

22,88

14730


Грузы в среднетоннажных контейнерах

ПВ-К

33

15,07

21,0

13920


Тяжеловесные

ПЛ

70

35

20,92

14620

ПП1

Зерно

КР специальный

65

65

22,0

14720


Щебень

ПВ

69

69

22,5

13920

ПП2

Металлопродукция

ПЛ

73

73

27,0

19620

Техническая норма загрузки вагона - это обязательное количество груза, которое должно быть погружено в данный тип вагона при полном использовании его вместимости или грузоподъемности. Эта норма устанавливается для каждого конкретного типа вагона при загрузке его конкретным грузом.

Для грузов ГР технические нормы загрузки рассчитываются:

§ для тарно-штучных грузов

тех=gпак∙mпак , т/ваг, (1.1)

где gпак - масса пакета, т;пак - количество пакетов в вагоне;

тех=0,43т∙64=27,52т/ваг.

§ для грузов, перевозимых в среднетоннажных контейнерах

тех=11∙qку , т/ваг, (1.2)

где 11 - количество условных контейнеров, размещающихся в вагоне, шт;ку - загрузка условного контейнера, т/конт,

, т/конт, (1.3)

где α3, α5 - доли соответственно 3-х и 5-тонных контейнеров;3,q5 - загрузка нетто соответственно 3-х 5-тонного контейнера (принимаю для 3-тонных 1,5; для 5-тонных 2,5);

тех=11∙1,37т/конт=15,07т/ваг.

§ для тяжеловесных грузов

тех=0,5∙Pгр , т/ваг, (1.4)

где Pгр - грузоподъемность вагона, т;

тех=0,5∙70т=35т/ваг.

Для грузов ПП1 и ПП2 технические нормы загрузки вагонов принимаются по нормативам.

Размеры суточного вагонопотока определяются по формуле

, ваг/сут, (1.5)

где Qсут - суточный грузопоток по прибытию или отправлению, т/сут,

, т/сут, (1.6)

где Qгод - годовой грузопоток по прибытию или отправлению, тыс.т/год;

кн - коэффициент неравномерности перевозок грузов;

Для зерна суточный грузопоток и вагонопоток будут равны:


Результаты расчетов приведены в таблице 1.2.

Таблица 1.2

Суточные размеры грузовой работы на станции

Грузовой пункт

Род груза

Кн

Грузопоток, т/сут

Вагонопоток, ваг/сут




прибытие

отправление

прибытие

отправление

ГР

тарно-штучные

1,1

226

181

8

7


грузы в СТК

1,05

288

345

19

23


тяжеловесные

1,07

322

410

9

12

Итого по ГР



836

936

36

42

ПП1

зерно

2,0

740

-

11

-


щебень

1,12

-

491

-

7

Итого по ПП1



740

491

11

7

ПП2

металлопродукция

1,07

410

-

6

-

Итого по ПП2



410

-

6

-

Всего по станции



1986

1427

53

49


1.3 Распределение объемов работы между грузовыми пунктами

Для обеспечения своевременной погрузки на грузовых пунктах, повышения производительности вагонов необходимо улучшать организацию порожних вагонопотоков путем увеличения числа сдвоенных операций, то есть максимального обеспечения погрузки грузов на станции и подъездных путях за счет вагонов, освобождающихся после выгрузки.

Баланс порожних вагонов по каждому роду груза, типу вагонов, грузовому пункту и в целом по станции определяется в результате сопоставления размеров выгрузки и погрузки. Для определения избытка или недостатка порожних вагонов составляется балансовая таблица (таблица 1.3).

При недостатке вагонов определенного рода можно предусмотреть подвод их с сортировочной станции или с других грузовых пунктов, излишки вагонов отправляются также на сортировочную станцию.

Данные таблицы 1.3 позволяют определить основные показатели работы станции:

средняя статическая нагрузка

, т/ваг, (1.7)

где - количество грузов всех наименований, погруженных на станции за сутки, т;

- количество вагонов, загруженных всеми грузами на станции за сутки, ваг;

 т/ваг.

коэффициент сдвоенных операций

, (1.8)

где - соответственно суточная выгрузка, погрузка вагонов на станции;

- суточное прибытие на станцию порожних вагонов;


- общее прибытие вагонов на станцию

Nпр=,ваг, (1.9)пр=53+8=61ваг.

общее отправление вагонов со станции

Nот=,ваг, (1.10)

где - суточное отправление со станции порожних вагонов;

от=49+12=61ваг.

Таблица 1.3

Баланс подвижного состава по станции

Грузовые пункты

Род груза

Тип подв. состава

Выгрузка, ваг/сут

Погрузка ваг/сут

Баланс порож.  вагонов

План обеспечения






избыток

недостаток


1

2

3

4

5

6

7

8

ГР

Тарно-штучные

КР

8

7

1

-

0/1 КР на СС


Грузы в СТК

ПВ-К

19

23

-

4

0/4 ПВ-К с СС


Тяжеловесные

ПЛ

9

12

-

3


Итого по ГР



36

42

1

7

0/3 ПЛ с ПП2

ПП1

Зерно

КР спец-ный

11

-

11

-



Щебень

ПВ

-

7

-

7

0/11 КР спец. на СС

Итого по ПП1



11

7

11

7


ПП2

Металлопродукция

ПЛ

6

-

6

-

0/3 ПЛ на ПП1 0/4 ПВ с СС

Итого по ПП2



6

-

6

-

Порожние

Всего по станции



53

49



Приб.

Отправл








8

12

2. Организация вагонопотоков

Заданный вагонопоток прибывает и отправляется с грузовой станции в составе передаточных поездов.

Передаточными называют поезда, обращающиеся между грузовой и сортировочной станциями узла. В них включаются как груженые, так и порожние вагоны.

Количество передаточных поездов определяется отдельно по прибытию и отправлению

, поездов, (2.1)

где  - суточный вагонопоток по прибытию (отправлению),ваг;

 - состав передаточного поезда, ваг;


На основании полученных результатов составляю таблицу 2.1 разложения каждого состава прибывающего и отправляемого со станции поезда.

Количество вагонов в составе поезда записывается в виде дроби, где в числителе указываются груженые вагоны, в знаменателе - порожние.

Таблица 2.1

Разложение составов поездов

Номер поезда

Состав поезда

ГР

ПП1



Тарно-штучные

Грузы в СТК

Тяжеловесные

Зерно

Щебень

Металлопродукция

ПРИБЫТИЕ

3601

27/4

4/0

10/2

4/0

6/0

0/2

3/0

3603

26/4

4/0

9/2

5/0

5/0

0/2

3/0

ОТПРАВЛЕНИЕ

3602

25/6

4/0

12/0

6/0

0/6

3/0

0/0

3604

24/6

3/1

11/0

6/0

0/5

4/0

0/0


3. Техническое оснащение станции и железнодорожных путей необщего пользования

.1 Путевое развитие парков станции

Схема грузовой станции выбирается с учетом объема выполняемой работы, места расположения в узле, рода перерабатываемого груза, типа грузового района, примыкания железнодорожных подъездных путей и т.д.

На грузовых станциях должны быть предусмотрены:

v приемо-отправочные пути (парки) для приема и отправления поездов с местными вагонами, а при необходимости - для приема и отправления транзитных поездов;

v  сортировочные пути (парки) для сортировки вагонов по направлениям и подборки вагонов по местам погрузки и выгрузки, и подъездным путям;

v  сортировочные устройства (горка малой мощности, вытяжной путь со стрелочной горловиной на уклоне);

v  выставочные пути (парки) для отстоя вагонов, ожидающих подачи на грузовые пункты и для ускорения выполнения маневровых операций;

v  грузовой район с соответствующим путевым развитием, складским хозяйством и комплексом служебно-бытовых помещений.

Путевое развитие и размещение основных устройств грузовой станции должны обеспечивать поточность передвижения вагонов и локомотивов по станции, безопасность поездного и маневрового движения, сосредоточение сортировочной работы по расформированию и подборке передач на одном сортировочном устройстве, минимальные пробеги автомобильного транспорта, а также экономное использование территории.

Схема грузовой станции приведена на рисунке 3.1.

Для грузовой станции, обслуживаемой передаточными поездами, достаточно иметь, как правило, один приемо-отправочный и один ходовой путь.

Сортировочный парк (СП) для заданных условий может состоять из 6 путей:

- накопление вагонов с тарно-штучными грузами;

- накопление вагонов со среднетоннажными контейнерами;

- накопление вагонов с тяжеловесными грузами;

- накопление вагонов на ПП1;

- накопление вагонов на ПП2;

- для формирования передаточных поездов.

Кроме того, для расформирования составов предусматривается вытяжной путь со стрелочной горловиной на уклоне и вытяжной путь для формирования составов, отправляемых на сортировочную станцию.

Рисунок 3.1 Схема грузовой станции тупикового типа с грузовым районом тупикового типа

Технология обработки поездов по прибытию и подготовка к их расформированию

Технология обработки поездов в парке приема включает следующие линии:

§ работу с составом поезда и поездным локомотивом;

§  работу с документами на прибывший поезд;

§  передачу информационных сообщений об операциях с поездом и вагонами.

Станция получает из АСОУП (автоматизированная система управления перевозками) справки о наличии в поезде вагонов, требующих ремонта.

Дежурный по станции после получения точной информации о подходе поезда, готовит маршрут приема и сообщает работникам, участвующим в обработке поезда:

§ номер поезда и индекс;

§  время и путь приема;

§  количество вагонов в составе поезда, условную длину и вес поезда;

§  также другие данные (наличие вагонов с опасными грузами и негабаритными, с живностью и др.).

Работники, участвующие в обработке состава, выходят к пути приема поезда.

После остановки поезда на пути его обработка включает выполнение следующих операций:

) закрепления состава поезда, отцепку поездного локомотива и уборку его с пути, ограждение состава;

) сверки списка вагонов состава с перевозочными документами и, подготовка сортировочного листка;

) технического осмотра и безотцепочного ремонта вагонов, подготовки состава к роспуску;

) коммерческого осмотра вагонов, устранения обнаруженных коммерческих неисправностей;

) приема работниками Федерального государственного предприятия военизированной охраны (ФГП ВО) вагонов с номенклатурными грузами, а также с опасными грузами, подлежащими охране.

) передачи информационных сообщений в АСОУП: прибытие поезда на станцию, корректировка натурного листа поезда в случае расхождения информации о составе поезда по документам и списку номеров, по результатам технического и коммерческого осмотра.

) обработки ранее полученной информации на прибывший поезд.

Проверка технического состояния вагонов

Контроль технического состояния вагонов в составе поезда начинается на подходе его к парку приема станции с использованием средств технической диагностики по выявлению перегрева буксового узла, неисправностей поверхности катания колес (ползуны, навары), а также неисправностей узлов и деталей вагонов при выходе их за нижнее очертание габарита подвижного состава. Информация о неисправных вагонах (порядковый номер и сторона вагона по ходу движения, вид неисправности и др.) от средств технической диагностики передается оператору ПТО парка приема.

До прибытия поезда группы осмотрщиков и слесарей по ремонту вагонов, по указанию оператора ПТО располагаются в местах, установленных «Технологическим процессом работы пункта технического обслуживания вагонов» на данной станции.

Осмотрщики вагонов, осматривающие прибывающий поезд во время его движения, при обнаружении каких-либо неисправностей, сообщают об этом оператору ПТО. Все полученные данные оператор ПТО передает осмотрщикам вагонов соответствующих групп для особенно тщательного осмотра указанных вагонов после остановки поезда.

После остановки поезда сигналисты по указанию дежурного по станции закрепляют состав поезда тормозными упорами или башмаками порядком, указанным в техническо-распорядительном акте станции.

После закрепления состава поезда локомотивная бригада по указанию дежурного по станции отцепляет поездной локомотив, и затем осуществляется его уборка с пути приема поезда.

После уборки поездного локомотива с пути приема оператор ПТО по указанию дежурного по станции ограждает состав с обеих сторон централизованными сигналами остановки. Затем он извещает об этом работников, участвующих в обработке состава поезда, и предъявляет его к техническому обслуживанию и коммерческому осмотру.

До снятия централизованного ограждения производить какие-либо перемещения состава запрещается.

Техническое обслуживание и подготовку составов к роспуску осуществляют осмотрщики и слесари по ремонту вагонов, объединенные в соответствующее число групп.

Одновременно с техническим осмотром вагонов осуществляется контроль технического состояния и ремонт автосцепных приборов (постановка цепочек расцепного привода, замена неисправных расцепных рычагов и др.), а также осуществляется отпуск автотормозов.

Об окончании технического обслуживания состава и подготовки его к роспуску работники ПТО докладывают оператору ПТО, а последний - дежурному парка приема, который отмечает в журнале движения поездов время технической готовности состава к расформированию.

Коммерческий осмотр состава поезда

Приемщики поездов заблаговременно выходят на путь приема и встречают прибывающий поезд в местах, установленных «Технологическим процессом работы пункта коммерческого осмотра вагонов в поездах» на данной станции.

В процессе движения прибывающего поезда приемщики поездов наблюдают за состоянием люков, дверей и кузовов вагонов, размещением и креплением грузов на открытом подвижном составе, наличием закруток и пломб на дверях вагонов и контейнеров, крышках цистерн (запорно-пломбировочных устройств − ЗПУ).

Одновременно осмотр состава поезда может осуществлять приемщик поездов со смотровой вышки во входной горловине парка приема. При этом особое внимание уделяется осмотру вагонов с контейнерами, цистерн, а также размещению и креплению грузов на открытом подвижном составе.

В условиях функционирования Автоматизированной системы коммерческого осмотра поездов и вагонов (АСКО ПВ) осуществляется автоматический контроль соблюдения габарита погрузки и габарита подвижного состава, соответствия массы перевозимого груза грузоподъемности вагона, а также осмотр состава при помощи телевизионной системы.

Коммерческий осмотр состава и устранение обнаруженных коммерческих неисправностей осуществляют параллельно с техническим обслуживанием работники ПКО парка приема. В процессе коммерческого осмотра выявляются вагоны с коммерческими неисправностями, угрожающими безопасности движения, выполнению маневровой работы и не обеспечивающие сохранность перевозимых грузов. Проверяется наличие пломб (ЗПУ), наличие и состояние люков, закруток, дверей и кузовов вагонов, размещение и крепление грузов на открытом подвижном составе.

Об окончании коммерческого осмотра и устранения коммерческих неисправностей работники ПКО парка приема докладывают руководителю смены ПКО парка приема, а руководитель - дежурному парка приема, который отмечает время готовности состава к роспуску в настольном журнале движения поездов парка приема.

После ввода в АСУ СС информации по результатам обработки состава прибывшего поезда работниками составляется сортировочный листок и затем он выдается на терминалы исполнителей.

После завершения технического обслуживания и коммерческого осмотра состава оператор ПТО по указанию дежурного по станции снимает централизованные сигналы его ограждения.

Работа с документами и информацией на прибывший в расформирование поезд

До внедрения системы автоматического считывания информации с движущегося подвижного состава и при отсутствии проверки составов поездов на ближайших раздельных пунктах к данной станции, контрольную проверку состава прибывающего поезда выполняет оператор поста списывания во входной горловине парка приема. Он передает список фактических номеров вагонов и их точное расположение в составе поезда в АСУ СС.

Дежурный по станции (оператор при дежурном по станции, дежурный по парку приема) вводит в АСУ сообщение о номере и индексе поезда, времени прибытия, номере парка и пути приема.

Перевозочные документы доставляются в станционный технологический центр (СТЦ). Они могут быть доставлены и до момента остановки поезда на пути приема. В СТЦ осуществляется проверка перевозочных документов и их сопоставление с телеграммой - натурным листом. В случае расхождения данных ТГНЛ корректируется и в АСУ СС вводится соответствующее корректировочное сообщение. После ввода в АСУ СС информации по результатам обработки документов прибывшего состава, автоматически составляется предварительный сортировочный листок роспуска состава.

Справки о номенклатурных и опасных грузах, подлежащих охране в поездах, выдаются из АСУ СС после обработки макета контрольной проверки состава поезда. В случае отсутствия предварительной информации на прибывший в расформирование поезд, запрос на выдачу из АСУ СС данной справки выполняет оператор СТЦ по прибытию после окончания корректировки натурного листа поезда.

Справка об охране выдается на печатающее устройство пункта ведомственной охраны парка приема.

Подготовка составов поездов к отправлению

О перестановке сформированного состава из сортировочного парка в парк отправления дежурный по парку отправления оповещает работников, участвующих в обработке состава, по парковой громкоговорящей связи, указывая номер пути, на который переставляется состав.

К пути отправления поезда своего формирования выходят работники для выполнения следующих операций:

§ технического обслуживания и текущего безотцепочного ремонта вагонов;

§  коммерческого осмотра вагонов и устранения обнаруженных коммерческих неисправностей;

Рисунок 3.2 График обработки поезда по прибытию

§ приема работниками Федерального государственного предприятия военизированной охраны под охрану вагонов, требующих их сопровождения;

§  навешивания сигнала на хвостовой вагон состава поезда;

§  прицепки поездного локомотива и опробования автотормозов;

§  вручения локомотивной бригаде перевозочных документов, справок о тормозах и предупреждений.

§  в выходной горловине сортировочного парка во время перестановки состава в парк отправления осуществляется контрольная проверка списка номеров вагонов.

Переставленный в парк отправления состав сигналисты закрепляют тормозными упорами или тормозными башмаками по нормам, предусмотренным в техническо-распорядительном акте станции.

После закрепления состава на пути маневровый локомотив отцепляется и по указанию дежурного по парку отправления направляется в сортировочный парк.

Оператор ПТО, получив указание дежурного по парку отправления, ограждает переставленный состав централизованными сигналами ограждения, оповещает об этом работников, участвующих в обработке состава, и дает распоряжение о начале его обработки.

Руководство работой осмотрщиков и слесарей-ремонтников парка отправления осуществляет старший осмотрщик вагонов, который на основании плана отправления поездов со станции и данных, получаемых от станционного диспетчера, и из автоматизированной системы управления ПТО (при его наличии), расставляет работников ПТО и контролирует своевременность и качество обработки составов поездов.

После ограждения состава работники ПТО парка отправления приступают к его техническому осмотру и ремонту вагонов.

После снятия ограждения состава дежурный по парку отправления по громкоговорящей связи извещает работников о подводе поездного локомотива под состав. Прицепку локомотива к составу осуществляет локомотивная бригада.

По указанию дежурного по парку отправления сигналисты убирают средства закрепления подготовленного состава (тормозные упоры или тормозные башмаки) и навешивают поездной сигнал, обозначающий хвост поезда.

После прицепки поездного локомотива к составу осмотрщики-ремонтники совместно с локомотивной бригадой осуществляют опробование автотормозов, вручают машинисту справку формы ВУ-45 и уведомляют дежурного по парку отправления о готовности поезда к отправлению. [3,4]

Рисунок 3.3 График обработки поезда по отправлению

.2 Выбор и расчет количества погрузочно-разгрузочных машин

Характеристики, свойства и способы переработки грузов

1) тарно-штучные грузы

Тарно-штучные грузы - это наиболее ценные и разнообразные грузы, представляющие собой продукцию основных отраслей обрабатывающей промышленности и товары широкого потребления. Их перевозят в крытом подвижном составе железнодорожного и автомобильного транспорта. Наиболее рациональный способ перевозок этих грузов - в пакетированном виде, на поддонах. Для переработки тарно-штучных грузов применяются электропогрузчики, мостовые и стеллажные краны-штабелеры, конвейерные погрузочно-разгрузочные машины и транспортные системы.

2) грузы в СТК

Контейнеры представляют собой нестационарные замкнутые емкости объемом более 1 м3 для многократных перевозок и временного хранения различных грузов. Их классифицируют по массе брутто, роду перевозимого груза и другим признакам. Для переработки контейнеров станции оснащаются стреловыми, козловыми кранами, различными автопогрузчиками и другим подъемно-транспортным оборудованием, а также специальными грузозахватными приспособлениями для перегрузок контейнеров.

3) тяжеловесные грузы

Крупногабаритные и тяжеловесные штучные грузы перерабатывают с применением автопогрузчиков и различных кранов.

4) зерно

Относится к ценным продовольственным грузам, при перевозке которых необходимо обеспечить сохранность в количественном и качественном отношении. Для перевозок используют вагоны-хопперы, цистерны (иногда и универсальные крытые вагоны) и автоцистерны. Разгрузка вагонов-хопперов осуществляется с помощью стационарного ленточного конвейера.

5) щебень

Относится к устойчивым материалам, хорошо сохраняющимся при открытом хранении в любых погодных условиях, по железным дорогам перевозится на открытом подвижном составе.

6) металлопродукция

Перевозится на открытом подвижном составе; если перевозится крупная техника, то большой объем работ занимают работы по креплению на подвижном составе, если конструкции небольшие - перевозка осуществляется в крупных деревянных ящиках. Переработка осуществляется с помощью мостовых, козловых, авто- и ж/д кранов, а также автопогрузчиков. [8,16]

Машины и их характеристики

Основные технические характеристики машин и выбранные наиболее целесообразные типы приведены в таблице 3.1 и 3.2.[12,20,21,22]

Необходимое количество погрузочно-разгрузочных машин для обеспечения погрузки-выгрузки грузов определяется по формулам:

для грузов ГР, кроме контейнеров

, (3.1)


для среднетоннажных контейнеров

, (3.2)


для грузов ПП, кроме выгружаемых на повышенных путях

, (3.3)


где kп - коэффициент прямой переработки грузов, минуя склад (для ГР он равен 0,2; для грузов, выгружаемых на повышенных путях - 0,35);см - сменность работы грузового пункта (2 смены);

Псм - сменная производительность машины, установленная ЕНВ;

Пксм - сменная производительность в контейнерах;

Тр - регламентированный простой машины в течение года (нерабочие дни, ремонт, техническое обслуживание и др.) принимается равным 55 сут.

Таблица 3.1

Характеристики ленточного конвейера У9-УКБ-40

Производительность, т/ч

50

Длина транспортирования (мах), м

65

Ширина ленты, мм

400

Скорость ленты, м/с

1,5

Установленная мощность двигателя, кВт

7,5

железнодорожный станция грузовой вагонопоток

Таблица 3.2

Машины и их характеристики

Вид груза

Тип машины

Грузоподъемность,т

Пролет крана, м

База крана, м

Скорость подъема груза,м/с

Скорость передвижения машины, км/ч

Производи-тельность

Тарно-штучные

Электро-погрузчик 103КО

1

-

-

0,2

9

126,6т

Щебень

козловой кран ККТ 10-А3

10

16

7,1

0,1

2

236т

Грузы в СТК







149шт.

Тяжеловесные







420,5т

Металлопродукция







216т.



Таблица 3.3

Парк погрузочно-разгрузочных машин

Род груза

Способ переработки

Тип машины

Грузозахватные приспособ-ления

Грузопоток, т/сут

Сменность работы, nсм

Псм, т/см

Коли-чество машин





Приб.

Отправл.




Тарно-штучные

отдельные места, в пакетах

ЭП - 103КО

вилы

226

181

2

126,6

4

СТК

отдельные места

КК - ККТ 10-А3

спредер

288

345

2

149*

4

Тяжеловесные

в штабелях, отдельные места, в связках, в пакетах

КК - ККТ 10-А3

клещи

322

410

2

420,5

2

Зерно

насыпью

ЛК - У9-УКБ-40

-

740

-

2

350

2

Щебень

навалом

КК - ККТ 10-А3

грейфер

-

491

2

236

2

Металлопродукция

в штабелях, отдельные места, в связках, в пакетах

КК - ККТ 10-А3

стропы

410

-

2

216

2

* - контейнеров в смену

.3 Определение параметров складов

Склады - это здания, сооружения и разнообразные устройства, предназначенные для приемки, размещения и хранения поступивших на них товаров, подготовки их к потреблению или отпуску потребителю.

Склады являются одним из важнейших элементов логистических систем. Необходимость в складах существует на всех стадиях движения грузопотока, начиная от первичного источника сырья и кончая последним потребителем.

Любой склад выполняет следующие функции:

ü временное размещение и хранение материальных запасов;

ü  преобразование материальных потоков (расформирование одних грузовых партий или грузовых единиц и формирование других);

ü  обеспечение сервиса в системе обслуживания.

На железнодорожном транспорте склады служат для хранения грузов от момента приема к отправлению до погрузки в вагон и от момента выгрузки прибывшего груза до выдачи его потребителю. Складские сооружения размещаются таким образом, чтобы с одной стороны располагался подъезд для автомобильного странспорта, а с другой - железнодорожный путь.

Закрытые (крытые) склады используют для хранения ценных грузов, крытые платформы (навесы) - для менее ценных, но подверженных порче от атмосферных воздействий, открытые склады (площадки) - для остальных грузов.

Основными параметрами складов являются:

вместимость (емкость);

площадь;

габаритные размеры (длина, ширина, высота);

размеры погрузочно-разгрузочных фронтов.

Для большинства грузов грузового района (кроме контейнеров) и подъездных путей параметры складов рассчитываются по следующим формулам

вместимость склада

 (3.5)

где tхрпр, tхрот - сроки хранения грузов соответственно по прибытию и отправлению, сут;

Етш=(1-0,2)∙(226∙2+181∙1,5)=578,8т;

Етяж=(1-0,2)∙(322∙2,5+410∙1)=972т;

Ез=(1-0,35)∙(740∙30+0)=14430т;

Ещ=(1-0,2)∙(0+491∙5)=1964т;

Ем=(1-0,2)∙(410∙25+0)=8200т.

площадь склада

 (3.6)

где кпр - коэффициент проходов и проездов внутри склада;

р - норматив удельной нагрузки на 1 м2 площади склада, т/м2;

длина склада

 (3.7)

где Вф - ширина склада, на которой фактически располагается груз, м (зависит от типа склада и применяемых погрузочно-разгрузочных машин).

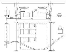
Для тарно-штучных грузов, перерабатываемых в крытых складах, величина Вф определяется из рисунка 3.4 по формуле 3.8.

Рисунок 3.4. Поперечный разрез крытого склада

Вф=Lпр-(3,05+1,92+3,6), м, (3.8)

где Lпр - величина пролета крытого склада (24м);

,05; 1,92 - габаритные расстояния, м;

,6 - расстояние, необходимое для разворота погрузчика;

Вфтш=24-3,05-1,92-3,6=15,43м.


Параметры площадки для среднетоннажных контейнеров определяются в следующей последовательности.

Вместимость склада определяется по формуле

Естк=(1-кn)∙(Zкупр∙tхрпр+ Zкуот∙tхрот)∙(1+Кпор)∙Крем∙Крез, конт-мест (3.9)

где Zкупр, Zкуот - количество условных 3-тонных контейнеров (контейнеро-мест)

 (3.10)

Кпор - коэффициент, учитывающий отношение числа порожних контейнеров к груженым

 (3.11)

в свою очередь

=││,конт (3.12)

Крем - коэффициент, учитывающий нахождение контейнеров в ремонте (равен 1,05);

Крез - коэффициент, учитывающий резерв контейнеров (равен 1,1);

Естк=(1-0,2)∙(210∙2+252∙1)∙(1+0,09)∙1,05∙1,1=676,81.

Затем выделяется элементарная площадка со сторонами X и Y. Один из возможных вариантов выделения элементарной площадки приведен на рисунке 3.5.

Рисунок 3.5 Поперечный разрез и план контейнерной площадки для среднетоннажных контейнеров

Размеры элементарной площадки для среднетоннажных контейнеров зависят от размеров условного 3-тонного контейнера и величины необходимых проходов, и составляют

=1,3+0,1=1,4м=2∙2,1+0,1+0,6=4,9м.

Из рисунка 3.5 можно определить фактическую ширину площадки по формуле

Вф=Lпр-2а, м (3.13)

где Lпр - величина пролета крана, м;

а - габаритное расстояние (равно 1,5м);

Вфстк=16-2∙1,5=13м.

Далее рассчитывается число контейнеров, располагающихся по ширине склада

 (3.14)


Длину склада в контейнерах (число контейнеров по длине склада) можно определить по формуле

 (3.15)


Длина контейнерной площадки определяется по формуле


Тогда площадь контейнерной площадки составит

=Lскл∙Вф, м2;стк =186,2∙13=2420,6м2.

Определим величину Вф для других видов грузов:

если склады оборудованы козловыми кранами:

Вф=Lпр-2а, м.

Таким образом, Вф будет одинакова для тяжеловесных грузов, щебня и металлопродукции и равна Вфстк=13м. Тогда найдем длину складов для этих грузов:


Для зерна проектирую специальный силосный склад: его вместимость просчитываю по формуле (3.5) и подбираю типовое значение вместимости (емкости).

Размер (длина) погрузочно-разгрузочного фронта определяется числом вагонов, установленных на фронте,с которыми одновременно выполняется погрузка или выгрузка.

Длина погрузочно-разгрузочного фронта рассчитывается по формуле

 (3.16)

где Nсут - суточное число вагонов, поступающих на грузовой фронт под погрузку или выгрузку, ваг/сут;пер - число подач вагонов в сутки;c - число смен (перестановок) на грузовом фронте (равно 1);м - удлинение грузового фронта, необходимое для маневрирования локомотивами или др.средствами (принимаю 15м);


При проектировании специального склада для зерна мною было подобрано типовое значение вместимости, равное 16000т. [4]

Таблица 3.4

Типы и параметры складов

Род груза

Тип склада

Е, т

Кпр

р, т/м2

F, м2

Вф, м

Lскл, м

Lфр, м

тарно-штучные

крытый

578,8

1,7

0,85

1157,6

15,43

80

74

грузы в СТК

открытый

677,07

1,9

0,5

2420,6

13

205

175

тяжеловесные грузы

открытый

972

1,6

0,9

1728

13

150

103

зерно

специальный (силосный)

14430

-

-

-

-

-

96

щебень

открытый

1964

1,5

2

1473

13

130

64

металлопродукция

крытый

8200

1,3

3

3553,3

13

285

74


3.4 Проектирование грузового района станции

На станциях, предназначенных для выполнения грузовых операций, следует предусматривать грузовые районы с соответствующим техническим оснащением (путевым развитием и объектами грузового хозяйства). Техническое оснащение грузового района определяется характером, объемом работы и видом перерабатываемых грузов.

Путевое развитие грузового района включает в себя:

выставочные пути для приема, отправления и подсортировки подач;

погрузочно-разгрузочные пути (фронты);

ходовые пути для перемещения подвижного состава на территории грузового района;

соединительные пути для уборки вагонов с грузовых фронтов или перестановки с одного пути на другой.

В грузовых районах размещаются следующие устройства для переработки и хранения грузов:

крытые и открытые склады;

площадки для среднетоннажных контейнеров, тяжеловесных и других грузов;

эстакады и повышенные пути;

платформы и площадки для выгрузки насыпных грузов.

На территории грузовых районов предусматриваются также служебно-технические здания и устройства:

объединенное служебно-техническое здание с бытовыми помещениями;

пункты обогрева для работников открытых складов;

контрольно-пропускной пункт;

ремонтные мастерские;

навесы для стоянки механизмов и автомобилей;

склады для горючих и смазочных материалов;

ограждения территории (забор).

На рисунке 3.6 приведена немасштабная схема тупикового грузового района с условными обозначениями.

Рисунок 3.6 Схема тупикового грузового района

Условные обозначения

- контейнерная площадка с козловым краном;

- склад для тарных и штучных грузов;

- площадка для тяжеловесных грузов с использованием козлового крана;

- крытая платформа для непосредственного перегруза «вагон-автомобиль»;

- служебно-технические здания с бытовыми помещениями;

- контрольно-пропускной пункт;

- площадка для стоянки автотранспорта;

- выставочные пути;

- ограждение территории грузового района;

- автомобильные проезды;

- гараж для погрузчиков, зарядная аккумуляторов.

4. Разработка технологии работы грузовой станции

.1 Информация о подходе поездов и грузов

Информационное обеспечение является основой осуществления технологического процесса работы станции и примыкающих к ней подъездных путей.

На базе информации составляется план работы станции по расформированию и формированию составов, устанавливается очередность подачи вагонов к грузовым фронтам, подготавливается рабочая сила и погрузочно-разгрузочные машины.

Каждая грузовая станция получает два вида информации о подходе поездов - предварительную и точную.

Предварительная информация, которая передается из Дирекции управления движением дороги вместе с заданием на смену, содержит данные о количестве поездов и вагонов, следующих под выгрузку и погрузку в предстоящие 12 ч с каждого направления. Периодически через каждые 4 - 6 часов из Дирекции управления движением передается на станцию откорректированная информация, содержащая данные о каждом поезде: номер, время прибытия, общее число вагонов, следующих под выгрузку и погрузку.

Точная информация поступает в информационное бюро станции по телетайпу в виде телеграмм-натурных листов в трех экземплярах. Размеченный первый экземпляр телеграммы-натурного листа передают в техническую контору для натурной проверки поезда, второй - маневровому диспетчеру.

Телеграмма-натурный лист составляется на основании натурного листа поезда и содержит в закодированном виде данные о поезде и о каждом вагоне.

Точная информация передается со станции формирования поезда.

Прием груженых вагонов и перевозочных документов. По прибытии поезда на грузовую станцию выполняются следующие операции: прием работником технологического центра перевозочных документов от локомотивной бригады и проверка их, проверка соответствия состава натурному листу, технический и коммерческий осмотр вагонов, подготовка состава к расформированию и подаче к грузовым фронтам. Все эти операции выполняются параллельно.

Закончив натурную проверку перевозочных документов, оператор технологического центра вносит уточнения в телеграмму-натурный лист, ставит календарный штемпель (дату и время прибытия) на всех дорожных ведомостях и вагонных листах. В вагонном листе также указывается номер поезда. После этого документы записывают в книгу сдачи перевозочных документов (форма ГУ-48), по каждой отправке указывая номер вагона и номер накладной. Дорожные ведомости и накладные передаются в товарную контору, вагонные листы - на грузовой двор или в пункты выгрузки на местах необщего пользования.

При техническом осмотре прибывшего на станцию назначения поезда выявляются вагоны с техническими неисправностями и определяется их пригодность под сдвоенные операции.

Коммерческий осмотр вагонов выполняют приемщики поездов ПКО. При осмотре вагонов особое внимание обращается на исправность кузовов, наличие пломб, а также соответствие контрольных знаков на них знакам, указанным в вагонном листе. Все обнаруженные неисправности оформляются актом общей формы.

Регистрация прибывших грузов. В товарной конторе все прибывшие под выгрузку грузы регистрируют на основании данных перевозочных документов в книге прибытия грузов (форма ГУ-42). После записи отправки в книгу прибытия на лицевой стороне дорожной ведомости проставляют порядковый номер, под которым отправка записана в книге прибытия.

По мере выдачи грузов в соответствующих графах книги прибытия отмечают ежедневно номер сопроводительной ведомости (форма ФДУ-91), число и месяц выдачи. [18]

4.2 Нормирование времени на выполнение грузовых операций

Технологическое время (норма) на выполнение грузовых операций на местах общего и необщего пользования - это время, затрачиваемое на погрузку и выгрузку грузов механизированным и немеханизированным способами с учетом затрат времени на подготовительные, вспомогательные и заключительные операции.

Согласно «Методике по разработке и определению технологических норм погрузки грузов в вагоны и выгрузки из вагонов», утвержденной приказом МПС РФ №70 от 10.11.2003 года, технологические нормы определяются расчетным путем или по общим значениям этих норм, которые приведены в указанной Методике.

Нормы времени на грузовые операции с одной подачей вагонов в грузовом районе станции для различных грузов, кроме контейнеров, можно рассчитать по формуле:

 (4.1)

где tподг - подготовительные операции (снятие пломб или закруток, открывание дверей или люков, установка стоек и т.д.);закл - заключительные операции (закрывание дверей или люков, постановка закруток и пломб, увязка груза, разравнивание погруженного груза и т.д.);под - количество вагонов в одной подаче, ваг;

М - количество погрузочно-разгрузочных машин, шт;

Пэ - эксплуатационная производительность машины, т/ч (Пэ=).

Пэтш=

Пэтяж=

Для среднетоннажных контейнеров:

 (4.2)

где nк - среднее число контейнеров в вагоне (принимаем равное 7);

Пэ - эксплуатационная производительность машины, конт/ч.

Пэконт=

Для грузов ГР величина Тгр рассчитывается отдельно по прибытию и отправлению. Для контейнеров следует учитывать грузовые операции с порожними контейнерами.

Время на подготовительно-заключительные операции с вагонами одной подачи (tподг+ tзакл) можно принять равным:

тарно-штучные грузы - 0,25ч/под;

среднетоннажные контейнеры - 0,25ч/под;

тяжеловесные грузы - 0,5ч/под.


Для грузов ПП1 и ПП2 время на грузовые операции определяется на основе общих значений норм.

Результаты определения норм времени на погрузку и выгрузку для всех грузов приводятся в таблицах 4.1 и 4.2.

Таблица 4.1

Нормы времени на погрузку и выгрузку вагонов в грузовом районе станции

Род груза

Nпод, ваг/под

Количество погрузочно-разгрузочных машин, М

Пэ, т/ч

tподг+ tзакл, ч

Тгр, ч и мин

Тарно-штучные

3

4

18,09

0,25

1ч 23мин


4

4

18,09

0,25

1ч 46мин

СТК

9

4

21,29

0,25

59мин


10

4

21,29

0,25

1ч 4мин


11

4

21,29

0,25

1ч 9мин


12

4

21,29

0,25

1ч 14мин

Тяжеловесные

4

2

60,07

0,5

1ч 40мин


5

2

60,07

0,5

1ч 58мин


6

2

60,07

0,5

2ч 15мин


Нормы времени на грузовые операции на подъездном пути определяются по формуле:

Тгр= (4.3)

Тгрз=

Тгрз=

Тгрщ=

Тгрщ=

Тгрм=

Таблица 4.2

Нормы времени на погрузку и выгрузку вагонов на ж/д путях необщего пользования (ПП1 и ПП2)

Грузовой пункт

Род груза

Nпод, ваг/под

Норма на 1 вагон, ч

Количество погрузочно-разгрузочных машин, М

Тгр, ч и мин

ПП1

зерно

5

0,15

2

23мин



6

0,15

2

27мин


щебень

3

0,65

2

59мин



4

0,65

2

1ч 18мин

ПП2

металлопродукция

3

1,2

2

1ч 48мин


4.3 Технология приема и выдачи тарно-штучных грузов

Технологические операции при приеме и погрузке грузов

Грузоотправитель заполняет перевозочные документы на груз не позднее, чем накануне дня завоза груза на грузовой район и предъявляет их перевозчику в товарную контору. Товарный кассир проверяет правильность заполнения перевозочных документов: предусмотрена ли перевозка планом, нет ли временных запрещений на погрузку на станции назначения, открыта ли она для выполнения операций с данными грузами и т. д. Затем товарный кассир дает разрешение на завоз груза (визирует накладную) и отдает оригинал накладной грузоотправителю. В то же время товарный кассир заполняет дорожную ведомость, корешок дорожной ведомости и квитанцию о приеме груза или распечатывает их в электронном виде.

Наименование операций

Время, мин

Исполнитель

Сдача перевозных документов по прибытии в техническую контору

2

Локомотивная бригада, оператор технической конторы

Пересылка перевозочных документов из технической конторы в товарную

5

Оператор технической конторы

Запись документов в Книгу прибытия формы ГУ-42

2

Коммерческий агент

Информация грузополучателя о прибытии груза

2

Информатор

Проставление в накладных и дорожных ведомостях штемпеля о времени подачи вагонов под выгрузку средствами получателя или дороги

10

Товарный кассир

Проверка документов у грузополучателя на право получения груза

5

Товарный кассир

Оформление выдачи груза грузополучателю и вручение ему накладной

5

Товарный кассир, грузополучатель

Составление сопроводительной ведомости формы ФДУ- 91 и подборка к ней дорожных ведомостей Отправка дорожных ведомостей в РТК (УРТК) Общее время


Коммерческий агент

Рисунок 4.1 График обработки документов в товарной конторе станции по прибытии

Грузоотправители должны внести причитающиеся перевозчику платежи до момента приема грузов для перевозки.

В день, указанный в накладной, грузоотправитель ввозит груз на грузовой район и предъявляет оригинал накладной приемосдатчику.

Рисунок 4.2 Технологический график приема грузов в склад станции

О времени подачи грузоотправителю вагонов под погрузку перевозчик уведомляет грузоотправителя не позднее, чем за два часа до подачи. Уведомление при этом регистрируется в Книге уведомлений о времени подачи вагонов, контейнеров под погрузку (форма ГУ-2 или ГУ-2-ВЦ).

При отправлении груза приемосдатчик ведет Памятку приемосдатчика на подачу-уборку вагонов (форма ГУ-45, ГУ-45а, ГУ-45-ВЦ). В ней указывается время подачи вагонов под погрузку и время уборки, номер вагона, наименование груза и др. Памятка приемосдатчика составляется в двух экземплярах и подписывается приемосдатчиком и грузоотправителем. Приемосдатчик присутствует при погрузке только по требованию грузоотправителя или при необходимости специального контроля при погрузке грузов. Об окончании погрузки грузоотправитель передает в товарную контору станции уведомление о завершении грузовой операции формы ГУ-2в или ГУ-2в-ВЦ. Уведомление записывается в Книгу уведомлений о завершении грузовой операции формы ГУ-2а или ГУ-2а-ВЦ. Загруженный вагон грузоотправитель предъявляет приемосдатчику железнодорожной станции, который принимает его по наружному осмотру с проверкой наложенных грузоотправителем ЗПУ. В товарной конторе на основании полученных документов и Книги уведомления о завершении грузовой операции составляется ведомость подачи и уборки вагонов формы ГУ-46 или ГУ-46-ВЦ для расчета почасовой платы за пользование вагонами.

После сдачи груза к перевозке и оплаты всех причитающихся платежей (провозной платы и сборов) грузоотправители получают квитанцию о приеме груза. В документах ставится календарный штемпель приема груза к перевозке.

Рисунок 4.3 Технологический график погрузки грузов со склада станции в вагон

В товарной конторе формируются документы на отправленные грузы (оригинал накладной, дорожная ведомость, вагонный лист и дополнительные документы). Сведения об отправленных грузах и вагонах заносятся в информационные базы данных. Затем документы передаются в станционный технологический центр обработки поездной информации и перевозочных документов (СТЦ), а информацию заносят в информационные базы данных или Книгу сдачи перевозочных документов (ГУ-48).

Документы на состав подбирают в СТЦ и сдают машинисту поезда.

Технологические операции при выдаче и выгрузке грузов

Перевозочные документы на груженые вагоны, прибывшие под выгрузку, поступают в СТЦ. После натурной проверки наличия и соответствия документов вагонам и грузам на всех оригиналах накладных, дорожных ведомостях и вагонных листах проставляется календарный штемпель с датой фактического прибытия груза. Кроме этого, в вагонном листе дополнительно указывается номер поезда и время прибытия.

После этого документы записываются в Книгу сдачи перевозочных документов формы ГУ-48 и передаются: оригинал накладной и дорожная ведомость - в товарную контору, а вагонный лист - в пункт выгрузки. О сдаче документов в ГУ-48 расписывается работник СТЦ, а в приеме - работник товарной конторы.

Коммерческий осмотр прибывших вагонов выполняют приемщики поездов ПКО. При осмотре крытых вагонов особое внимание обращается на следующее: на исправность кузовов, наличие и исправность ЗПУ и соответствие контрольных знаков на них знакам, указанным в перевозочных документах. Все обнаруженные неисправности оформляются актом общей формы.

В товарной конторе все прибывшие под выгрузку грузы регистрируются в Книге прибытия грузов формы ГУ-42 на основании данных перевозочных документов. Также эта информация может вводиться в информационные базы данных. После записи отправки в Книгу прибытия на лицевой стороне дорожной ведомости проставляют порядковый номер, под которым она была зарегистрирована в Книге формы ГУ-42.

После выдачи груза в Книге прибытия отмечается номер сопроводительной ведомости формы ФДУ-91, число и месяц выдачи.

Перевозчик обязан уведомить грузополучателя о прибывших грузах в его адрес не позднее чем в 12 часов дня, следующего за днем прибытия грузов. Порядок уведомления устанавливается начальником станции и может быть изменен по просьбе грузополучателя. При установлении способа уведомления следует исходить не только из сложившихся местных условий, но и из гарантированности передачи уведомления и его получения. Передача уведомления в товарной конторе регистрируется в Книге уведомлений о прибытии грузов (проставляется дата и время уведомления о прибытии груза).

О времени подачи вагонов с грузами к месту выгрузки перевозчик уведомляет грузополучателя не позднее, чем за два часа до объявления подачи вагонов. Эти уведомления регистрируются в Книге уведомлений о времени подачи вагонов под погрузку или выгрузку формы ГУ-2 (ГУ-2-ВЦ). Поданное перевозчиком уведомление о подаче вагонов под выгрузку считается уведомлением о прибытии грузов.

Получив из СТЦ вагонные листы, приемосдатчик готовит место выгрузки грузов, устанавливает очередность выгрузки и знакомит комплексную бригаду с порядком выполнения работ.

По окончании расстановки вагонов приемосдатчик проверяет исправность ЗПУ и производит наружный коммерческий осмотр вагонов. Затем снимает ЗПУ и комплексная бригада осуществляет выгрузку грузов из вагона. В процессе выгрузки приемосдатчик должен сверить данные вагонного листа с фактическим наличием груза, проверить массу, маркировку, исправность грузовых мест. Груз укладывается в складе аккуратно, без повреждений. Приемосдатчик также следит за предотвращением разъединения груза и документов.

Рисунок 4.4 Технологический график выгрузки грузов из вагона в склад станции

После окончания выгрузки приемосдатчик в вагонном листе проставляет дату и время начала и окончания выгрузки и заверяет своей подписью. Затем вагонный лист передается в товарную контору.

В товарной конторе на основании вагонных листов делают отметки о выгрузке груза в оригинале накладной и в дорожной ведомости.

Вся информация о выгруженных грузах заносится приемосдатчиком в памятку ГУ-45 и в Книгу уведомлений о завершении грузовой операции формы ГУ-2а.

После выгрузки груза вагоны должны быть очищены внутри и снаружи. Очистка выполняется грузополучателем или перевозчиком в зависимости от того, кем обеспечивалась выгрузка грузов.

В оригинале накладной товарный кассир в графе «По прибытии» указывает суммы провозных плат и сборов. При нецентрализованных расчетах грузополучатель за дополнительные операции уплачивает сборы непосредственно в товарной конторе по квитанции разных сборов. В этом случае в графе «Платежи взысканы на станции назначения…» товарный кассир указывает номер и дату квитанции разных сборов.

Наименование операции

Время, мин

Исполнитель


до погрузки

после погрузки


Составление отчета формы ФО-4 (сопроводительной ведомости формы ГУ-4) подборка и подшивка к нему корешков дорожных ведомостей


6

Коммерческий агент

Составление сопроводительной описи формы ФДУ-93 и упаковка ее в сумку вместе с отчетами формы ФО-4, ведомостями формы ГУ-4 и корешками дорожных ведомостей


5

Коммерческий агент

Общее время


30


Рисунок 4.6 График обработки документов по отправлению в товарной конторе станции

Затем грузополучатель расписывается в дорожной ведомости в получении груза. Выдача перевозчиком оригинала накладной грузополучателю удостоверяется проставлением в нем и дорожной ведомости календарного штемпеля выдачи. [2,3,4]

Рисунок 4.5. Технологический график выдачи грузов со склада станции

4.4 Основы взаимодействия станции и ж/д путей необщего пользования

Грузооборот - работа по перемещению груза, определяемая как произведение массы перемещаемого груза на расстояние перевозки.

Вагонооборот - сумма прибывших на станцию и отправленных со станции вагонов за отчетный период: местных, с которыми на данной станции производились грузовые операции, и транзитных - как проходящих, так и не проходящих переработку на станции.

На основании выполненных выше расчетов определяются объемы работы каждого подъездного пути: погрузка, выгрузка, грузооборот и вагонооборот.

Суточный грузооборот подъездного пути определяют как сумму прибывших и убывших груженых вагонов:

Гпп = Nпргр+ Nотгр, ваг/сут (4.5)

Гпп1=11+7=18ваг/сут;

Гпп2=6ваг/сут.

Суточный вагонооборот подъездного пути определяется как сумма прибывших и убывших груженых и порожних вагонов по формуле:

Впп = (Nсутпр+Nсутот)груж+(Nсутпр+Nсутот)пор, ваг/сут (4.6)

Впп1=(11+7)+(4+11)=18+15=33ваг/сут;

Впп2=6+0=6ваг/сут.



Таблица 4.3

Объемы работы подъездных путей, ваг/сут

№ подъездного пути

Nпр

Nот

Гпп

Впп

ПП1

11/0

7/0

18/0

18/15

ПП2

6/0

0/0

6/0

6/0


Взаимоотношения между перевозчиком (станцией) и ж/д путями необщего пользования (подъездными путями) регулируются договорами на эксплуатацию ж/д пути необщего пользования или договорами на подачу и уборку вагонов. Вид договора зависит от того, кем является обслуживаемый клиент: владельцем подъездного пути или его пользователем. При этом обслуживание подъездного пути может осуществляться локомотивами перевозчика, владельца подъездного пути или пользователя.

Порядок эксплуатации подъездных путей

ПП1:

Договор на подачу и уборку вагонов, заключенный между перевозчиком и владельцем инфраструктуры при обслуживании такого пути локомотивом пользователя. Составляется на 5 лет.

Вагоны подаются локомотивом, принадлежащим перевозчику, на предусмотренные договором выставочные железнодорожные пути. Дальнейшее продвижение вагонов, расстановка их на места погрузки, выгрузки и возврат на выставочные пути обеспечиваются локомотивом владельца. Сдача и прием вагонов с проверкой пригодности в техническом и коммерческом отношении производятся на выставочных ж/д путях. Подача и уборка вагонов на (с) железнодорожный путь (железнодорожного пути) производится по уведомлению перевозчиком владельца ж/д пути необщего пользования. О времени подачи вагонов перевозчик уведомляет владельца пути не позднее, чем за 2 часа до подачи. Владелец пути обязан назначить своих представителей, ответственных за прием уведомлений, и письменно сообщить перевозчику их фамилии и номера телефонов. Порядок передачи уведомлений о времени подачи вагонов устанавливается договором на эксплуатацию ж/д пути необщего пользования. Для записи уведомлений перевозчиком ведется книга уведомлений о времени подачи вагонов под погрузку или выгрузку. Также ведется книга уведомлений о времени завершения грузовой операции (порядок передачи уведомлений устанавливается договором на эксплуатацию пути).

Время нахождения вагонов на ж/д путях необщего пользования исчисляется с момента передачи вагонов на выставочных ж/д путях на основании памятки приемосдатчика до момента их возвращения на выставочные пути и сдачи их перевозчику на основании книги регистрации уведомлений и памятки приемосдатчика.[2, Приложение 1]

ПП2:

Договор на подачу и уборку вагонов, заключенный между перевозчиком и владельцем инфраструктуры при обслуживании такого пути локомотивом перевозчика. Составляется на 5 лет.

Вагоны подаются и убираются перевозчиком на (с) железнодорожный путь (железнодорожного пути) необщего пользования к местам погрузки, выгрузки. Сдача и прием вагонов с проверкой пригодности в техническом и коммерческом отношении производятся на местах погрузки, выгрузки. Подача и уборка вагонов на (с) железнодорожный путь (железнодорожного пути) производится по уведомлению перевозчиком владельца ж/д пути необщего пользования. О времени подачи вагонов перевозчик уведомляет владельца пути не позднее, чем за 2 часа до подачи. Владелец пути обязан назначить своих представителей, ответственных за прием уведомлений, и письменно сообщить перевозчику их фамилии и номера телефонов. Порядок передачи уведомлений о времени подачи вагонов устанавливается договором на эксплуатацию ж/д пути необщего пользования. Для записи уведомлений перевозчиком ведется книга уведомлений о времени подачи вагонов под погрузку или выгрузку. Также ведется книга уведомлений о времени завершения грузовой операции (порядок передачи уведомлений устанавливается договором на эксплуатацию пути).

Время нахождения вагонов под погрузкой, выгрузкой исчисляется с момента фактической подачи вагонов к месту погрузки или выгрузки грузов на основании памятки приемосдатчика до момента получения перевозчиком от владельца ж/д пути необщего пользования уведомления о готовности вагонов к уборке на основании книги регистрации уведомлений и памятки приемосдатчика.[2, Приложение 2]

4.5 Построение суточного плана-графика работы грузовой станции

Суточный план-график представляет собой графическое изображение последовательно выполняемых технологических операций по обработке поездов и вагонов, с которыми выполняются грузовые операции в грузовом районе и на подъездных путях с соблюдением необходимых интервалов времени, требований безопасности и специализации путей и парков. Цель его построения - согласовать работу всех подразделений станции и подъездных путей предприятий, связанных с обработкой местных вагонов от момента прибытия до их отправления со станции, определить загрузку отдельных элементов станции и маневровых локомотивов.

На основании суточного плана-графика определяются основные показатели работы грузовой станции.

Средний простой местного вагона на станции:

 (4.7)

где ΣNtм - сумма вагоно-часов простоя местных вагонов под всеми операциями на станции за сутки;

ΣNм - количество местных вагонов, обработанных на станции за сутки.

Для расчета суточных затрат вагоно-часов следует составить таблицу 4.4.

Таблица 4.4

Суточные затраты вагоно-часов на станции

Время прибытия, ч-мин

Время отправления, ч-мин

Общее время простоя, ч

Количество вагонов

Количество вагоно-часов

18-30

03-40

9,17

31

284,27

04-30

13-40

9,17

30

275,1

Итого:



61

559,37



Средний простой вагонов под одной грузовой операцией:

 (4.8)          

Коэффициент загрузки маневровых локомотивов:

 (4.9)

где ΣMt - затраты локомотиво-минут на все операции за сутки;

Тэк - время на экипировку локомотива (60…90мин);

М - количество маневровых локомотивов;

ΣMtпер = 15+60+45+20+55+10+10+55+10+15+60+45+20+55+10+10 +

+55+10=560мин;

ΣMtпольз = 50+30+30+5+40+50+30+30+45=310мин;

Заключение

В курсовом проекте мной дана транспортная характеристика заданных грузов, для них выбрана форма организации перевозок, тип подвижного состава.

Определен суточный объем работы грузовой станции и примыкающих к ней подъездных путей: суточные грузопотоки и вагонопотоки, на основании которых рассчитано техническое оснащение грузового района и путей необщего пользования. В сутки данная грузовая станция принимает по 2 передаточных поезда по прибытию и по отправлению.

Произведен расчет норм на грузовые операции: количество погрузочно-разгрузочных машин, параметры складов для хранения грузов.

Разработан суточный план-график станции и примыкающих к ней путей необщего пользования.

Рассчитаны основные показатели работы грузовой станции: средний простой местного вагона на станции (равный 9,17ч) и средний простой вагонов под одной грузовой операцией (равный 5,49ч) можно было бы сократить, убрав время ожидания разгрузки вагонов на ПП2, т.е. если бы нужные вагоны под погрузку прибывали в составе поезда. Маневровые локомотивы не загружены даже наполовину (коэффициенты загрузки маневровых локомотивов перевозчика и ПП1 равны соответственно 0,41 и 0,23), отсюда делаю вывод, что при заданном грузопотоке станции хватило бы и одного локомотива.

Список используемых источников

1. Устав железнодорожного транспорта РФ. - М., 2003 - 93с.

2.      Правила перевозок грузов железнодорожным транспортом. Сборник - книга 1. - М.: Юртранс, 2003 - 712с.

.        Типовой технологический процесс работы грузовой станции. - М.: Транспорт, 1991 - 216с.

.        Типовой технологический процесс работы грузовой станции в условиях функционирования автоматизированной системы управления. - М.: МПС РФ, 1998 - 144с.

.        Единые нормы выработки и времени на вагонные, автотранспортные и складские погрузочно-разгрузочные работы. - М.: Экономика, 1987 - 156с.

.        Семенов В.М. и др. Коммерческая и грузовая работа на ж/д транспорте. - СПб.: - ПГУПС, 1995 - 262с.

.        Смехов А.А., ред. Управление грузовой и коммерческой работой на ж/д транспорте. - М.: Транспорт, 1990 - 352с.

.        Смехов А.А., ред. Грузоведение, сохранность и крепление грузов. - М.: Транспорт, 1989 - 240с.

.        Железнодорожные станции и узлы/ под ред. В.Г. Шубко и И.В. Правдина. - М.: УМК МПС России, 2002 - 367с.

10. Гриневич Г.П. Комплексная механизация и автоматизация погрузочно-разгрузочных работ. - М.: Транспорт, 1981 - 344с.

11.    Комплексная механизация и автоматизация погрузочно-разгрузочных работ: Учебник для вузов ж/д транспорта/ под ред. А.А. Тимошина и И.И. Мачульского. - М.: Маршрут, 2003 - 400с.

.        Падня В.А. Погрузочно-разгрузочные машины: Справочник. - М.: Транспорт, 1981 - 448с.

.        Перепон В.П. Организация перевозок грузов. - М.: Маршрут, 2003 - 614с.

.        Боровикова М.С. Организация движения на железнодорожном транспорте. - М.: Маршрут, 2003 - 368с.

.        Бройтман Э.З., ред. Эксплуатационная работа станций и отделений. - М.: Желдориздат, 2002 - 424с.

.        tgs-jd.ru

.        www.midships.ru

18.    www.komeksjd.ru <http://www.komeksjd.ru>

.        edu.dvgups.ru

.        www.conveer.ru <http://www.conveer.ru>

.        www.tehnoros.ru <http://www.tehnoros.ru>

.        www.sklad.ru <http://www.sklad.ru>

Приложение

ДОГОВОР НА ПОДАЧУ И УБОРКУ ВАГОНОВ

_________________________________________________, именуемое в

(полное наименование юридического лица)

дальнейшем "Перевозчик", в лице ________________________, действующего на основании Устава (доверенности от ______ N), с одной стороны, и __________________________________ именуемое в дальнейшем

(полное наименование грузоотправителя, грузополучателя)

"Пользователь", в лице ______________________________, действующего на основании Устава (доверенности от _______ N _), с другой стороны, заключили настоящий Договор о нижеследующем:

1. В соответствии с настоящим Договором производится эксплуатация железнодорожного пути необщего пользования, принадлежащего владельцу инфраструктуры, примыкающего к станции _______________________ через стрелку N ______, локомотивом Пользователя.

. Знак "Граница железнодорожного подъездного пути" устанавливается на расстоянии ____ м от стрелки примыкания.

. Развернутая длина железнодорожного пути необщего пользования составляет ____ м, в том числе принадлежащая Пользователю ____ м.

. Движение поездов по железнодорожному пути необщего пользования производится с соблюдением правил технической эксплуатации железных дорог Российской Федерации, инструкций по движению поездов и маневровой работе и сигнализации на железных дорогах и инструкции о порядке обслуживания и организации движения на железнодорожном пути необщего пользования.

. Подача вагонов на железнодорожный путь необщего пользования производится по уведомлению.

. Уведомление передается ____________________________________

(порядок передачи уведомления)

7. Сдаваемые на железнодорожный путь необщего пользования вагоны подаются локомотивом Перевозчика на железнодорожные выставочные пути__________________________________________________

(номера путей, их местонахождение)

Дальнейшее продвижение вагонов производится локомотивом Пользователя с расстановкой по местам погрузки, выгрузки.

. Количество вагонов в каждой группе, одновременно сдаваемой Пользователю, устанавливается не более ____ вагонов.

. С железнодорожного пути необщего пользования вагоны возвращаются в количестве ____ вагонов в каждой группе.

Возвращаемые с железнодорожного пути необщего пользования вагоны доставляются локомотивом Пользователя на железнодорожные выставочные пути _________________________________________________

(номера путей, их местонахождение)

10. При формировании маршрута на железнодорожном пути необщего пользования вагоны возвращаются на выставочные пути целыми составами установленного веса или длины, сформированными в соответствии с планом формирования поездов.

. О готовности вагонов к уборке Пользователь передает уведомление_______________________________________________________

(порядок передачи уведомления)

12. Готовые к уборке вагоны убираются с железнодорожных выставочных путей Перевозчиком в течение ___ час. после получения уведомления от Пользователя о готовности вагонов к уборке.

. Осмотр и передача вагонов в техническом и коммерческом отношении производятся на железнодорожных выставочных путях

. На железнодорожном пути необщего пользования устанавливается технологический срок оборота вагона ____ час.

. Неоплачиваемое технологическое время, связанное с выполнением на железнодорожном пути необщего пользования операций, относящихся к начально-конечным и включенным в тарифы на перевозку грузов железнодорожным транспортом, составляет ____ час.

. Неоплачиваемое технологическое время, связанное с подачей вагонов к местам погрузки, выгрузки грузов контрагентов и уборкой вагонов с этих мест локомотивом Пользователя, составляет ____ час.

. Перерабатывающая способность в среднем в сутки по основным родам грузов _____________________________________________________

. На условиях настоящего Договора вагоны подаются:

_____________________________________________________________

(наименование грузоотправителей, грузополучателей-контрагентов) *

* При значительном количестве контрагентов рекомендуется оформлять перечень контрагентов отдельным приложением к договору, подписанным сторонами, о чем в пункте 18 делается соответствующая запись.

. Расстояние, за которое взимается сбор за подачу и уборку вагонов, составляет ____ км в оба конца, в т.ч. ____ км, принадлежащих владельцу инфраструктуры, ____ км, принадлежащих Пользователю.

. Пользователь уплачивает Перевозчику:

а) сбор за подачу и уборку вагонов ____________________________

б) плату за пользование вагонами, контейнерами _________________

в) сбор за маневровую работу, не совмещенную со временем подачи и уборки вагонов _________________________________________________

г) другие сборы и платы _____________________________________

(Указывается "тарифное руководство" или номер протокола согласования договорной цены)

21. Сборы, платы вносятся:

а) _________________________________________________________

б) _________________________________________________________

в) _________________________________________________________

. Мероприятия по развитию транспортного хозяйства, направленные на эффективное использование подвижного состава:

_____________________________________________________________________________________________________________________ (наименование мероприятий, сроки выполнения)

23. Дополнительные условия ___________________________________

_____________________________________________________________

. Изменения и дополнения в настоящий Договор вносятся в порядке, установленном законодательством Российской Федерации.

Пользователь железнодорожного пути необщего пользования заблаговременно уведомляет Перевозчика о предстоящем изменении пользователя железнодорожного пути необщего пользования.

. Односторонний отказ от исполнения настоящего Договора и одностороннее изменение его условий не допускаются.

. В случае издания компетентными органами Российской Федерации нормативных правовых и иных актов, изменяющих условия эксплуатации и обслуживания железнодорожных путей необщего пользования, в настоящий Договор вносятся соответствующие изменения.

. По вопросам, не предусмотренным настоящим Договором, стороны руководствуются Федеральными законами "Устав железнодорожного транспорта Российской Федерации", "О железнодорожном транспорте в Российской Федерации", Правилами эксплуатации и обслуживания железнодорожных путей необщего пользования и другими нормативными правовыми актами Российской Федерации.

. За невыполнение или ненадлежащее выполнение своих обязательств по настоящему Договору стороны несут ответственность в порядке, установленном законодательством Российской Федерации.

. Настоящий Договор заключается сроком с __________ по_________ включительно.

. Разногласия к настоящему Договору __________________________

Адреса сторон:

Перевозчика __________________________________________________

Пользователя _________________________________________________

Банковские реквизиты сторон:

Перевозчика __________________________________________________

Пользователя _________________________________________________

Перевозчик (подпись, печать)

Пользователь (подпись, печать)

Похожие работы на - Организация работы на станциях и железнодорожных путях необщего пользования

 

Не нашли материал для своей работы?
Поможем написать уникальную работу
Без плагиата!
Без нейросетей!