Проектирование корпуса конического одноступенчатого редуктора

  • Вид работы:
    Дипломная (ВКР)
  • Предмет:
    Другое
  • Язык:
    Русский
    ,
    Формат файла:
    MS Word
    524,72 kb
  • Опубликовано:
    2011-11-25
Вы можете узнать стоимость помощи в написании студенческой работы.
Помощь в написании работы, которую точно примут!

Проектирование корпуса конического одноступенчатого редуктора

СОДЕРЖАНИЕ

Введение

Глава 1. Технологическая часть

.1 Анализ исходных данных

.2 Анализ технологичности конструкции детали

.3 Определение типа производства

.4 Выбор метода получения заготовки и технико-экономическое обоснование выбранного варианта

.5 Выбор баз и установление маршрута технологической обработки двух поверхностей

.6 Выбор оборудования

.7 Описание технологического маршрута обработки

.8 Расчет припусков на обработку

.9 Расчет режимов резания

.10 Нормирование операций механической обработки детали

Глава 2. Конструкторская часть

.1 Разработка конструкции приспособления

.2 Описание принципа работы и устройства приспособления

.3 Теоретическая схема базирования и определение погрешностей

.4 Силовой расчет привода приспособления

.5 Расчет специального режущего инструмента

Заключение

Библиографический список

Приложения

ВВЕДЕНИЕ

В данном проекте будут рассмотрены вопросы которые необходимо решить при разработке технологии производства деталей, такие как назначение и технологичность конструкции детали, определение типа производства, выбор метода получения заготовок, разработка маршрутной технологии изготовления детали, выбор современного оборудования для определенного типа производства, расчет припусков на заготовку по технологическим переходам, выбор и расчет режимов резания на конкретную операцию с определением норм времени, конструирование и расчет приспособления и режущего инструмента для конкретной операции.

Расчет уточненных припусков повышает коэффициент использования материала, расчет режимов резания оптимизирует и сокращает время на выполнение операции так как расчет выполняется с использованием максимальных скоростей и подач, расчет и конструирование специального режущего инструмента позволяет при его использовании достигать требуемой точности и качества поверхности за меньшее время а так же позволяет совмещать различные виды обработки, конструирование и применение специальных станочных приспособлений позволяет надежно и точно устанавливать заготовку без дополнительных операций (разметка и выверка) систематизируя погрешности установки, все это позволяет достичь требуемого качества продукции. Качество продукции (включая новизну, технический уровень, отсутствие дефектов при исполнении, надежность в эксплуатации) является одним из важнейших средств конкурентной борьбы, завоевания и удержания позиций на рынке. Поэтому предприятия уделяют особое внимание обеспечению высокого качества продукции, устанавливая контроль на всех стадиях производственного процесса, начиная с контроля качества используемых сырья и материалов и заканчивая гарантийным сроком после установки оборудования на предприятии заказчика.

Глава 1. Технологическая часть

1.1 Анализ исходных данных

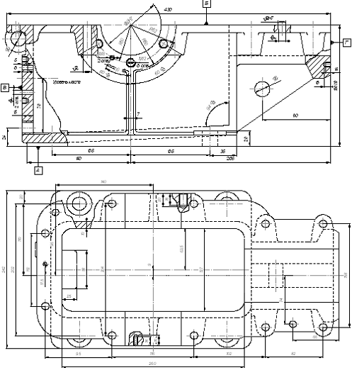
Деталь - корпус конического одноступенчатого редуктора, заготовка получаемая литьем из серого чугуна СЧ 25 ГОСТ 1412-85, материал обладает хорошими литейными свойствами, что позволяет получать отливки сложной конфигурации, поверхности подвергаемые механической обработке получаются высокого качества за счет пластичности материала и отсутствия следов надлома. Корпус в комплекте с крышкой образуют замкнутую полость, в которую через штуцер заливается машинное масло ИГ-18, следовательно соединения должны быть герметичны, утечек масла не допускается. Технические требования чертежа указывают: наибольшую точность обработки требуют отверстия Ø82Н7, Ø80Н7, Ø10Н7 и линейный размер 160h9. Имеются ограничения по точности формы и взаимного расположения поверхностей детали. Проанализируем последовательно эти требования с точки зрения их обоснованности и соответствия служебного назначения детали. Точность размера отверстия Ø82Н7 мм обусловлена характером сопряжения корпуса с валом-шестерней и корпусом подшипников (рывки, заедания и люфт не допускаются). Точность отверстия Ø80Н7 мм обусловлена сопряжением первичного вала с корпусом редуктора и характером работы вала с конической шестерней в корпусе редуктора, вращение которого должны быть плавными без рывков. Точность отверстия Ø10Н7 мм обусловлена характером сопряжения корпуса с крышкой редуктора т.к. необходимо обеспечение: равномерных пятен контакта зубчатой пары соответственно степени точности 8-В, полной герметичности редуктора, вибрации и шумности в пределах нормы. Точность линейного размера 160h9 так же обусловлена характером работы зубчатой передачи (исключение перекосов в зацеплении зубчатых колес) и равномерного прилегания плоскостей разъема редуктора. Допуск отклонения от параллельности поверхностей А и Б в пределах 0,05 мм, обусловлен герметичностью соединений корпуса с крышкой, а так же условиями и техническими требованиями работы зубчатой пары. Заданная шероховатость Ra-1,6 мкм поверхности отверстия Ø82Н7 и Ø80Н7 соответствует требованиям предъявляемым к точности обработки и характером сопряжения, шероховатость Ra-3,2 мкм поверхностей А и Б размер 160h9 соответствует требованию предъявляемым к точности и обусловлены необходимостью в герметичности соединений. Обработка отверстий Ø82Н7, Ø80Н7 мм выполняется в сборе с крышкой редуктора, отверстия Ø80Н7 мм обрабатываются с одной стороны на проход для обеспечения соосности отверстий и исключения перекоса вала с подшипниками.

Рис. 1.1, 1.2 Корпус конического одноступенчатого редуктора

1.2 Анализ технологичности конструкции детали

Отливка довольно проста по конфигурации, но корпус имеет большие внутренние отверстия, что требует применения стержневой формовки для образования внутренних полостей. Деталь имеет точные отверстия под подшипники, параметры точности которых обеспечиваются применением в качестве отделочной обработки тонкого растачивания. Параметры по неперпендикулярности торцов к осям отверстий обеспечиваются обработкой плоскостей с одного установа. Обработка крепежных отверстий возможна с использованием многошпиндельных сверлильных головок, а это увеличивает производительность обработки детали. Обработка наружных поверхностей не вызывает затруднений (обработка на проход), форма внутренних поверхностей и отверстий простой формы, отверстия под крепежные изделия выполнены по форме режущего инструмента. В конструкции детали имеются достаточные по размерам технологические базы обеспечивающие надежное базировании и имеющие достаточно высокую жесткость: А, Б. В целом геометрическая конфигурация детали и отдельные ее элементы - технологичны т.к. множество поверхностей не подвергается механической обработке, а образуется при получении заготовки тем самым уменьшая расход материала в стружку, возможна обработка элементов детали высоко производительными инструментами (высоко скоростное фрезерование, фрезерование на проход, сверление без дополнительной обработки, высоко скоростное растачивание) и следовательно менее затратными по времени.

1.3 Определение типа производства

Производство товарной продукции относится к основному производству. В зависимости от широты номенклатуры, регулярности, стабильности и объема выпуска продукции различают три типа производства: единичное, серийное и массовое (ГОСТ 14.004-83).

Основным критерием при определении производства является - коэффициент закрепления операций Кзо, который определяется по формуле:

 (1.1)

где общее число операций, выполняемых в течение месяца;

число рабочих мест.

Однако на первом этапе трудно определить число рабочих мест и число операций в течение месяца, поэтому тип производства определяем по массе деталей и количеству изготавливаемых изделий. При массе деталей до 200 кг и объеме выпуска от 1000 до 5000 тип производства мелкосерийный.

Для мелкосерийного производства характерно:

ограниченная номенклатура изделий при большом объеме выпуска;

специализация рабочих мест;

применение специального оборудования и автоматических линий;

расположение оборудования по технологическому циклу;

использование специального и нормализованного инструмента;

регулярность и высокая стабильность выпуска;

.4 Выбор метода получения заготовки и технико-экономическое обоснование выбранного варианта

Оптимальный метод получения заготовки выбирают рассматривая ряд факторов: материал детали, технические требования предъявляемые к ней, объем и серийность выпуска, форму поверхностей и размеры детали. Метод получения заготовки обеспечивающий технологичность и минимальную себестоимость ее производства, считается оптимальным и обоснованным.

Максимально приблизить геометрическую форму и размеры заготовки к размерам и форме готовой детали - одна из главных задач в заготовительном производстве. Выбирая метод и способ получения заготовки, можно снизить затраты на ее изготовление и сократить трудоемкость механической обработки, в случаях когда это экономически выгодно.

Метод получения заготовки определяем, анализируя ряд факторов: материал детали, технические требования на ее изготовление, объем и серийность выпуска, форму поверхностей и размеры деталей.

Вид заготовки и способ ее изготовления определяем по следующими показателями:

материал;

конструктивная форма;

серийность производства;

масса заготовки.

Материал - серый чугун СЧ25 ГОСТ 1412-85, определяем код - 2;

конструктивная форма: основные признаки детали - в соответствии с чертежом, определяем код - 9;

серийность производства: вид заготовок - отливка, масса детали - 16 кг, программа выпуска - 5000шт, определяем код - 2;

массу заготовки: определяем для детали 16 кг, соответствующий код - 5.

Выбираем возможные виды и способы получения заготовок для данной детали, учитывая определенные выше коды четырех основных показателей детали:

код материала - 2;

код серийности - 2;

код конструктивной формы - 9;

код массы - 5.

По определенным ранее кодам выбираем возможные способы изготовления заготовок, рекомендуемые коды видов: 1, 4, 5, 6.

Расшифровываем коды видов получения заготовок:

1- литье в песчано-глинистые формы ;

- литье в кокиль;

- литье в оболочковые формы ;

- литье по выплавляемым моделям .

Предпочтение следует отдавать тому методу, который обеспечивает меньшую технологическую себестоимость детали. Если сопоставляемые варианты по технологической себестоимости оказываются равноценными, то предпочтительным следует считать вариант заготовки с более высоким коэффициентом использования материала [12,c.67 ].

Общие исходные данные:

материал детали по ГОСТ 1412-85 СЧ25;

масса детали Gд = 16 кг;

производство мелкосерийное.

Вариант 1. Расчет себестоимости производства заготовки корпуса - литьем в песчано-глинистые формы:

определяем массу заготовки Gз, кг:

, (1.2)

где Кв.т.= 0,7 коэффициент весовой точности;

22,86 кг.

С = 51500 руб/т, базовая стоимость одной тонны заготовок;

определяем себестоимость заготовки Сзаг, руб:

, (1.3)

где Km.o.=3300руб/т, коэффициент доплаты за термическую обработку и отчистку заготовок;

Кm =1,165 коэффициент учитывающий точностные характеристики заготовок;

Кс = 1,1 коэффициент учитывающий серийность выпуска заготовок;

Sоmх = 1000 руб/т стоимость одной тонны отходов (стружки).

руб.

Вариант 2. Расчет себестоимости производства заготовки корпуса - литьем в оболочковые формы:

определяем массу заготовки Gзаг, кг:

где Кв.т.= 0,9 коэффициент весовой точности.

17,78 кг.

С = 70000 руб/т базовая стоимость одной тонны заготовок.

определяем себестоимость заготовки Сзаг., руб:

Sотх = 1000 руб/т стоимость одной тонны отходов (стружки);

Кm =1,165 коэффициент учитывающий точностные характеристики заготовок;

Кс = 1,1 коэффициент учитывающий серийность выпуска заготовок.

руб.

Сравниваем себестоимость производства заготовок получаемых литьем в песчано-глинистые формы и литьем в оболочковые формы, выбираем первый вариант, т.к. его себестоимость ниже. Заготовку для корпуса конического редуктора изготавливаем методом литья в песчано-глинистые формы.

.5 Выбор баз и установление маршрута технологической обработки двух поверхностей

Выбор технологических баз в значительной степени определяет: точность линейных размеров; относительное положение поверхностей, получаемых в процессе обработки; выбор режущего и измерительного инструментов; станочных приспособлений; производительность обработки.

В основе выбора технологических баз лежат следующие общие принципы:

при обработке заготовок, необработанные поверхности можно использовать в качестве баз только на первой операции;

при обработке заготовки корпуса (рис.1.1, 1.2) в качестве технологической установочной базы для первой операции используем поверхность "Б" так как она имеет наибольшую площадь;

в качестве установочной базы для последующей обработки используем поверхность "А" так как она является технологической и конструкторской базой, при обработке детали достигается наибольшая точность.

Для обработки отверстия Ø82H7мм с заданными параметрами точности и шероховатости в заготовке из чугуна, рекомендуем следующий примерный маршрут обработки: для получения заданных параметров рекомендуется применение тонкого растачивания;

сверление отверстия не требуется, так как оно отливается в исходной заготовке, поэтому в качестве первого перехода целесообразно выбрать предварительное растачивание;

после предварительного растачивания необходимо выбрать чистовое растачивание для устранения всех погрешностей предшествующей обработки и уменьшения глубины резанья;

после чистового растачивания необходимо выбрать тонкое растачивание для получения заданного квалитета точности и класса шероховатости;

выполнение всех переходов на одном станке и за одну операцию (установ) позволяет обеспечить принцип концентрации операций и последовательную обработку отверстия с одного установа.

Таким образом, для заданных условий маршрут обработки отверстия состоит из четырех переходов:

предварительное растачивание по 12-му квалитету точности;

черновое растачивание по 10-му квалитету точности;

чистовое растачивание по 8-му квалитету точности;

тонкое растачивание по 7-му квалитету точности.

Обработку отверстия по всем переходам выполняем в сборе с крышкой редуктора, для совпадения оси отверстия и получения заданных параметров точности и шероховатости.

Для обработки размера 160h9мм с заданными параметрами точности и шероховатости в заготовке из чугуна, рекомендуем следующий примерный маршрут обработки:

предварительное фрезерование по 12-му квалитету точности;

черновое фрезерование по 10-му квалитету точности;

чистовое фрезерование по 9-му квалитету точности.

.6 Выбор оборудования

Для выбора требуемого класса точности металлорежущих станков, необходимых для обработки деталей с заданной точностью и шероховатостью, определяется на основании расчетов и анализа. Первый параметр R рассчитывают по данным рабочего чертежа по наиболее точному размеру и качеству поверхности. По значению соотношений шероховатости и допуска на размер определяют значение параметра R, который сравнивается с ближайшим табличным значением для соответствующего класса точности станка. В такой же последовательности определяется параметр F. Значение допуска формы и расположения поверхностей берутся из рабочего чертежа детали, подлежащей обработке на данном станке. Расчетное значение параметра сравнивается с ближайшим табличным значением соответствующего класса точности станка. Из двух рассчитанных параметров определяют класс точности станка, выбирают наилучший, если расчетное значение попадает в два смежных класса. После этого определяют значение радиального биения шпинделя по функции А, откуда параметр геометрической точности станка, в частности радиальное биение шпинделя, рассчитывается по зависимости Тс= А*Тд = 0,36*Тд. Для современных металлорежущих станков радиальное биение, составляет ряд чисел 10, 6, 4, 2, 1 мкм. Соответственно для отечественных станков классов точности Н, П, В, А, С. Задачи выбора оборудования решаются исходя из производственных условий выполнения проектируемого технологического процесса, в любом случае технологическое оборудование должно быть подобрано с учетом обеспечения всех заданных техническими условиями требований к детали и достижения высоких экономических показателей разрабатываемого технологического процесса. Наиболее точный размер по чертежу корпуса является Ø80Н7, Ø10Н7 мм, 160h9мм, с допусками: Тд = 30мкм, Тд = 15мкм и Тд = 100мкм. По гносеологической функции рассчитываем параметр геометрической точности для токарного станка Тс, мкм:

Тс = А*Тд , (1.4)

Тс = 0,36* 15 = 5,4мкм.

Из технических характеристик технологического оборудования следует, что радиальное биение шпинделя в пределах 5,4мкм обеспечивает МРС высокой точности В - 4мкм. Шероховатость поверхности по чертежу детали Ø80Н7мм составляет Ra=1,6 мкм. Используя гносеологическую функцию, рассчитываем параметр шероховатости R:

 = Ra/Тд , (1.5)

R = 1,6/30 = 0,0533.

Класс точности станка выбран Н - 0,0533 .

Допуск параллельности размера 160h9мм установлен 0,05мм.

По параметрической функции рассчитываем параметр отклонения формы и взаимного расположения поверхностей F:

 = Тф/Тд , (1.6)

F = 50/100 = 0,5.

Выбираем металлорежущий станок класса точности П - 0,390 т.к. Н - 0,625. Используем данный метод определения класса точности металлорежущих станков, для осуществления операций технологического процесса, аналитически обосновываем принятое решение по выбору данного технологического оборудования [ 10 ,c.38-39]:

технические характеристики обрабатывающего центра ИР800ВМФ4 многоцелевого (сверлильно - фрезерно - токарно - расточной) станка высокой точности с магазином инструментов и комбинированной системой ЧПУ:
 
Таблица 1.1 Технические характеристики обрабатывающего центра ИР800ВМФ4

Характеристика

Значение

Точностные характеристики

Точность линейного одностороннего позиционирования стола, мкм

15

Точность линейного одностороннего позиционирования стойки, шпиндельной бабки

15

Постоянство положения рабочей поверхности стола-спутника при повороте на 30

20

Технические характеристики

Наибольшая масса обрабатываемого изделия, кг

1500

Размеры рабочей поверхности стола, мм

800х800

Частота вращения поворотного стола (с круговой подачей), об/мин

5

Количество позиций поворота стола

120 (через 3°)

Индексируемый поворот стола, угл. С

360000х0,001°

Точность автоматической установки поворота стола

±3

Конус для крепления инструмента в шпинделе

Iso 50

Частота вращения шпинделя, об/мин

21,2-3000

Мощность электродвигателя привода вращения шпинделя, квт

7,5-22

Величина перемещения стола (поперечное), мм

1000

Величина перемещения бабки (вертикальное), мм

710

Величина перемещения стойки (продольное), мм

800

Время смены столов-спутников, с

50

Количество столов-спутников в накопителе

2

Рабочие 1подачи стола, шпиндельной бабки, стойки, мм/мин

1-3600

Скорость быстрых установочных перемещений, мм/мин

12000

Емкость инструментального магазина, шт

30

Время смены инструмента, с

5

Наибольший диаметр рядом стоящих инструментов, мм

125(160)

Наибольший диаметр инструмента при свободных соседних гнездах, мм

160

Габариты, мм

6885х3750х3455

Масса станка (без электрооборудования, гидростанции, устройств чпу, смены столов-спутников и принадлежностей), кг

12500


1.7 Описание технологического маршрута обработки

Описываем технологический маршрут обработки корпуса в табл. 1.2, размеры и сопутствующая информация взяты с чертежа детали.

Таблица 1.2 - Маршрут обработки корпуса.

Номер операции

Наименование и краткое содержание операции

Технологическая база

Оборудование

005

Контрольная

-

-

010

Слесарная:

-

Верстак слесарный.

015

Фрезерно - сверлильная: фрезеровать предварительно плоскость а на проход, фрезеровать чисто плоскость а на проход, сверлить 4 отв. Сверлом 16,5 на проход, зенкеровать 4 отв. Зенкером 17,4 на проход, развернуть предварительно 4 отв. Разверткой 17,9 на проход, развернуть чисто 4 отв. Разверткой 18 на проход.

Плоскость б, в, г.

Многоцелевой вертикальный станок 2с450пмф45..

020

Слесарная : удалить заусенцы после фрезерования.

-

Верстак слесарный.

025

Фрезерно - сверлильная: фрезеровать предварительно плоскость б на проход, фрезеровать чисто плоскость б на проход, сверлить 8 отв. Св.12 на проход, сверлить 2 отв. Св. 10 на проход, сверлить 2 отв. Конусным св. 10х9 на прозод, сверлить отв. Св. 6,5 на проход.

Плоскость а, отверстия 18 установка на два пальца.

Многоцелевой вертикальный станок 2с450пмф45.

030

Слесарная: снять заусенцы после фрезерования, нарезать резьбу м8 в отверстии диаметром 6,5 на проход.

-

Верстак слесарный.

035

Фрезерно - сверлильно - расточная: фрезеровать предварительно бобышки подшипников диам. 120 на проход, фрезеровать чисто бобышки подшипников 120 на проход, фрезеровать предварительно бобышку подшипника диам. 125 на проход, фрезеровать чисто бобышку подшипника 125 на проход, сверлить 12 отв.св.9 в размер 20, сверлить 6 отв.св.6 в размер 16, сверлить 4 отв.св.4 в размер 6, сверлить 2 отв.св.6 на проход, сверлить 4 отв.св.6 в размер 16, растачивание предварительное отв.80 на проход, растачивание черновое отв.80 на проход, растачивание чистовое отв.80 на проход, растачивание тонкое отв.80 на проход, растачивание предварительное отв.82 на проход, растачивание черновое отв.82 на проход, растачивание чистовое отв.82 на проход, растачивание тонкое отв.82 на проход, нарезать резьбу в 12 отв.м12 в размер 18, нарезать резьбу в 6 отв.м8 в размер 14, нарезать резьбу в 4 отв.м6 в размер 5, нарезать резьбу в 4 отв.м8 в размер 14, сверлить отв.св.14 на проход, нарезать резьбу в отв.м16 на проход.

Плоскость а, отверстия 18 установка на два пальца.

Многоцелевой горизонтальный станок ир800пмф4.

040

Слесарная: снять заусенцы.

-

Верстак слесарный.

045

Моечная .

-

-

050

Контрольная.

-

-


1.8 Расчет припусков на обработку

Рассчитываем припуски на обработку и промежуточные предельные размеры для отверстия Ø82Н7+0,035 корпуса редуктора, показанного на.

Исходные данные для расчета [ 12 ,c.121] и [ 9 ,c.175]:

корпус редуктора изготавливаем из чугуна СЧ25;

заготовка - литая, масса 22,86 кг.

Все рассчитанные параметры заносим в табл.1.3.

На основе рабочего чертежа детали, с учетом точности и шероховатости поверхности устанавливаем последовательность обработки отверстия Ø82Н7. Выбираем маршрут [ 12 ,c.229] и заносим в графу 1 табл.1.3.

отливка Rz =40 мкм, h= 260 мкм;

обдирочное растачивание Rz =25 мкм, h =25 мкм;

черновое растачивание Rz =20 мкм, h =20 мкм;

чистовое растачивание Rz =10 мкм, h= 10 мкм;

тонкое растачивание Rz =5 мкм, h= 5 мкм.

Данные по высоте микронеровностей Rz и глубину дефектного слоя h для отливки и по переходам заносим в 2 и 3 графы табл.1.3.

Данные графы 8 для заготовки и механической обработки возьмем из таблицы допусков, определяемые по квалитетам [ 12 ,c.228].

Определяем величину пространственных отклонений заготовки и на каждый технологический переход, мкм [ 9 ,c.330]:

суммарное значение пространственного отклонения заготовки:

 , (1.7)

где ΔΣкор суммарное отклонение оси отверстия отливки по короблению;

ΔМ.О.Р. 800мкм отклонение от межосевого расстояния отверстий детали;

ΔР.Т.Б. 500мкм отклонение расположения отверстия относительно технологических баз;

ΔΣП. отклонение перекоса оси отверстия;

ΔС.М. 250мкм отклонение смещения стержня в отливке.

ΔΣкор =2* Δк * lк , (1.8)

где, Δк = 0,9 отклонение оси отверстия отливки по короблению для корпусных деталей мкм/мм;

lк - 9мм, размер от оси отверстия для которого определяется кривизна, до оси симметрии детали:

ΔΣкор = 2*0,9*9 = 16,2мкм.

ΔΣП. = ΔП * lо , (1.9)

где, ΔП 2,5мкм/мм перекос оси отверстия;

lо 135мм длина отверстия:

ΔΣП. = 2,5 * 135 = 337,5мкм.

мкм.

Величина остаточного пространственного отклонения после обдирочного растачивания отверстия заготовки, мкм:

, (1.10)

мкм.

Величина остаточного пространственного отклонения после чернового растачивания:

, (1.11)

 мкм.

Рассчитанные величины отклонений расположения поверхностей заносим в графу 4 табл.1.3.

Определяем величину погрешности установки, мкм:

Погрешность установки заготовки на предварительно обработанную, полученную литьем в песчано- глинистые формы, поверхность в приспособлении с постоянными опорами составляет : 130мкм при обдирочном растачивании:

мкм.

Остаточная погрешность установки при черновом растачивании, мкм:

, (1.12)

мкм.

Расчетные величины погрешности установки заносим в графу 5 табл.1.3. На основании записанных в таблицу 1.3 данных производим расчет минимальных значений межоперационных припусков, по основной формуле:

, (1.13)

минимальный припуск под обдирочное растачивание, мкм:

мкм.

минимальный припуск под черновое растачивание, мкм:

мкм.

минимальный припуск под чистовое растачивание, мкм:

мкм.

минимальный припуск под тонкое растачивание, мкм:

мкм.

Рассчитанные значения припусков заносим в графу 6 табл.1.3.

Определяем расчетные наибольшие предельные размеры по технологическим переходам начиная с чертежного размера:

для чистового растачивания, мм:

 мм.

для чернового растачивания, мм:

мм.

для обдирочного растачивания, мм:

мм.

для заготовки, мм:

мм.

Рассчитанные размеры заносим в графу 7 табл.1.3, округленные наибольшие предельные размеры в графу 10 табл.1.3.

Вычисляем наименьшие предельные размеры по переходам, мм:

1 = 82,035 - 0,035 = 82,000 мм.

dmin2 = 82,00 - 0,10 = 81,90 мм.

dmin3 = 81,90 - 0,50 = 81,40 мм.

dmin4 = 81,7 - 1,00= 80,7 мм.

dmin5 = 79,0 - 2,2= 76,8 мм.

Результаты расчетов заносим в графу 9 табл.1.3.

Рассчитываем фактические максимальные и минимальные припуски по переходам, мкм:

минимальные припуски, мкм:

2Zmin.тон.= 82,035 - 82,00 = 35мкм;

Zmin.чист.= 82,00 - 81,90 = 100мкм;

Zmin.черн.= 81,90 - 81,7 = 200 мкм;

Zmin.обдир.= 81,7 - 79,0 = 2700 мкм.

максимальные припуски, мкм:

2Zmax.тон.= 82,000 - 81,9 = 100 мкм;

Zmax.чист.= 81,9 - 81,40 = 500 мкм;

Zmax.черн.=81,40 - 80,7 = 700 мкм;

Zmax.обдир.=80,7 - 76,8 = 3900 мкм.

Результаты расчетов заносим в графу 11 и 12 табл.1.3.

Определяем общие припуски, мкм:

общий наибольший припуск, мкм:

2Zo max = 100 + 500 + 700 + 3900 = 5200мкм.

общий наименьший припуск, мкм:

2Zo min = 35 + 100 + 200 + 2700 = 3035 мкм.

Производим проверку правильности расчетов:

.тон. - Zmin.тон. =100 - 35 = 65мкм, δчист - δтон =100 - 35 =65мкм;

Zmax.чист. - Zmin.чист. =500 - 100 = 400мкм, δпредв - δчист =500 - 100 =400мкм;

Zmax.предв. - Zmin.предв. = 700 - 200 = 500мкм, δобдир - δпредв =1000 - 500 =500мкм;

Zmax.обдир. - Zmin.обдир. = 3900 - 2700 = 1200мкм, δзаг - δобдир =2200 - 1000 =1200мкм.

Таблица 1.3 - Результаты расчета припусков на обработку и предельных размеров по технологическим переходам.

Маршрут обработки

Элементы припуска, мкм

Расчетный

Допуск на промежуточные размены, мкм

Принятые (округленные) размеры заготовки по переходам, мм

Предельный припуск, мкм


Rz

h

ρ

εi

припуск 2Zi, мм

минимальный размер, мм


наименьший

наибольший

2Zmin

2Zmax

Отливка

40

1033

-

-

79,003

2200

76,8

79,0

-

-

Растачивание:


обдирочное

25

25

62

130

2*1341

81,685

1000

80,7

81,7

2700

3900

черновое

20

20

3

7

2*112

81,909

500

81,40

81,9

200

700

чистовое

10

10

-

-

2*43

81,995

100

81,90

82,00

100

500

тонкое

5

5

-

-

2*20

82,035

35

82,000

82,035

35

100

Итого.3035 ……….5200..



Рассчитываем припуски на обработку и промежуточные предельные размеры для размера 160h9-0,1 корпуса редуктора, показанного на (рис.1.1,1.2). Все рассчитанные параметры заносим в табл.1.4.

На основе рабочего чертежа детали, с учетом точности и шероховатости поверхности устанавливаем последовательность обработки размера 160h9. Выбираем маршрут [12 ,c.229] и заносим в графу 1 табл.1.4.

отливка Rz =40 мкм, h= 260 мкм;

обдирочное фрезерование Rz =25 мкм, h =25 мкм;

черновое фрезерование Rz =20 мкм, h =20 мкм;

чистовое фрезерование Rz =10 мкм, h= 10 мкм;

Данные по высоте микронеровностей Rz и глубину дефектного слоя h для отливки и по переходам заносим в 2 и 3 графы табл.1.4.

Данные графы 8 для заготовки и механической обработки возьмем из таблицы допусков, определяемые по квалитетам [ 12 ,c.228].

Определяем величину пространственных отклонений заготовки и на каждый технологический переход, мкм [ 9 ,c.330]:

суммарное значение пространственного отклонения заготовки:

 , (1.14)

где ΔΣкор суммарное отклонение отливки по короблению;

ΔΣО.П. отклонение от параллельности плоскости;

ΔС.М. 250мкм отклонение смещения форм отливке.

ΔΣкор =2* Δк * lк , (1.15)

где, Δк = 0,9 мкм/мм отклонение по короблению для корпусных деталей;

lк -430мм габаритная длина детали:

ΔΣкор = 2*0,9*430 = 774мкм.

ΔΣО.П. = ΔО.П. * lо , (1.16)

где, ΔО.П. -2,8мкм/мм отклонение от параллельности плоскости;

lо -430мм габаритная длина детали:

ΔΣО.П. = 2,5 * 430 = 1075мкм.

мкм.

Величина остаточного пространственного отклонения после обдирочного фрезерования заготовки, мкм:

мкм.

Величина остаточного пространственного отклонения после чернового растачивания:

 мкм.

Рассчитанные величины отклонений расположения поверхностей заносим в графу 4 табл.1.4.

На основании записанных в таблицу 1.4 данных производим расчет минимальных значений межоперационных припусков, по основной формуле:

, (1.17)

минимальный припуск под обдирочное фрезерование, мкм:

мкм.

минимальный припуск под черновое фрезерование, мкм:

мкм.

минимальный припуск под чистовое фрезерование, мкм:

мкм.

Рассчитанные значения припусков заносим в графу 6 табл.1.4.

Определяем расчетные наименьшие предельные размеры по технологическим переходам начиная с чертежного размера:

для чернового фрезерования, мм:

 мм.

для обдирочного фрезерования, мм:

мм.

для заготовки, мм:

мм.

Рассчитанные размеры заносим в графу 7 табл.1.4, округленные наименьшие предельные размеры в графу 9 табл.1.4.

Вычисляем наибольшие предельные размеры по переходам, мм:

dmax1 = 159,9 + 0,1 = 160,0 мм.

dmax2 = 159,9 + 0,4 = 160,3 мм.

dmax3 = 160,0 + 1,0 = 161,0 мм.

dmax4 = 161,7 + 2,5 = 164,2 мм.

Результаты расчетов заносим в графу 10 табл.1.4.

Рассчитываем фактические максимальные и минимальные припуски по переходам, мкм: минимальные припуски, мкм:

.чист.= 159,9 - 159,9 = 0мкм;

Zmin.черн.= 160,0 - 159,9 = 100 мкм;

Zmin.обдир.= 161,7 - 160,0 = 1700 мкм.

максимальные припуски, мкм:

.чист.= 160,3 - 160,0 = 300 мкм;

Zmax.черн.=161,0 - 160,3 = 700 мкм;

Zmax.обдир.=164,2 - 161,0 = 3200 мкм.

Результаты расчетов заносим в графу 11 и 12 табл.1.4.

Определяем общие припуски, мкм: общий наибольший припуск, мкм:

 max = 300 + 700 + 3200 = 4200мкм.

редуктор конический механизм режущий

общий наименьший припуск, мкм:

 min = 0 + 100 + 1700 = 1800 мкм.

Производим проверку правильности расчетов:

Zmax.чист. - Zmin.чист. =300 - 0 = 300мкм, δпредв - δчист =400 - 100 =300мкм;

Zmax.предв. - Zmin.предв. = 700 - 100 = 600мкм, δобдир - δпредв =1000 - 400 =600мкм;

Zmax.обдир. - Zmin.обдир. = 3200 - 1700 = 1500мкм, δзаг - δобдир =2500 - 1000 =1500мкм.

Таблица 1.4 - Результаты расчета припусков на обработку и предельных размеров по технологическим переходам.


На остальные обрабатываемые поверхности детали (рис.1.1), припуски и допуски принимаем по таблице [ 1 ,c.6-13], (ГОСТ 7505 - 74) и записываем их значения в табл.1.5.

Таблица 1.5 - Припуски и допуски на обрабатываемые поверхности корпуса.

Поверхность

Размер

Припуск

Допуск



табличный

расчетный


1

Ø82Н7

-

2*5,2

±0,2

2,3

160h9

-

2*4,2

±0,3

4

265

6,3

-

±0,4

5

Ø80H7

2*6,0

-

±0,3

6,7

230

2*6,3

-

±0,3


1.9 Расчет режимов резания

Расчет режимов резания для операции 035, операция фрезерно -сверлильно-расточная с ЧПУ выполняется на станке ИР800ПМФ4, производится обработка детали корпуса редуктора: Фрезерно - сверлильно - расточная: фрезеровать предварительно бобышки подшипников диам. 120 на проход, фрезеровать чисто бобышки подшипников 120 на проход, фрезеровать предварительно бобышку подшипника диам. 125 на проход, фрезеровать чисто бобышку подшипника 125 на проход, сверлить 12 отв.св.9 в размер 20, сверлить 6 отв.св.6 в размер 16, сверлить 4 отв.св.4 в размер 6, сверлить 2 отв.св.6 на проход, сверлить 4 отв.св.6 в размер 16, растачивание предварительное отв.80 на проход, растачивание черновое отв.80 на проход, растачивание чистовое отв.80 на проход, растачивание тонкое отв.80 на проход, растачивание предварительное отв.82 на проход, растачивание черновое отв.82 на проход, растачивание чистовое отв.82 на проход, растачивание тонкое отв.82 на проход, нарезать резьбу в 12 отв.М12 в размер 18, нарезать резьбу в 6 отв.М8 в размер 14, нарезать резьбу в 4 отв.М6 в размер 5, нарезать резьбу в 4 отв.М8 в размер 14, сверлить отв.св.14 на проход, нарезать резьбу в отв.М16 на проход.

Первый переход, фрезеровать предварительно бобышки подшипников диам. 120мм на проход [ 10 ,c.358] .

Выбираем торцевую фрезу диаметром D = 100мм, с режущей частью из твердого сплава ВК6.

Назначаем режимы резания, глубина фрезерования t = 4,0мм, ширина фрезерования В= 120мм. Подача при фрезеровании Sz=0,14мм/зуб.

Назначаем период стойкости торцевой фрезы диаметром 100мм при обработке серого чугуна, Т = 180мин. Z - число зубьев фрезы 8.

Скорость резания допускаемая режущими свойствами фрезы, м/мин:

, (1.18)

где, Сv - 445коэффициент ; q,y,m,x,u,p -0,2 ; 0,35 ; 0,32 ; 0,15; 0,2; 0 показатели степеней; Кv - поправочный коэффициент на скорость резания:

, (1.19)

Кмv - коэффициент, учитывающий влияние физико-механических свойств обрабатываемого материала на скорость резания:

 , (1.20)

v - 1,25 показатель степени :

.

Киv -1,0 коэффициент учитывающий влияние инструментального материала на скорость резания ; Кпv - 0,85 коэффициент учитывающий состояние поверхности заготовки;

;

м/мин.

Частота вращения шпинделя, соответствующая найденной скорости резания, об/мин:

 (1.21)

 мин-1.

Крутящий момент на шпинделе, Нм:

 (1.22)

Н*м.

Определяем силу резания (окружная сила), Н:

, (1.23)

где, Ср - 54,5 коэффициент; q,y, x, n, w -1,0; 0,74; 0,9; 1,0; 0 показатели степеней; Кмр - поправочный коэффициент:

, (1.24)

,

Н.

Механизм подачи станка ИР80ПМФ4 допускает осевую силу подачи Рmax(Z) = 10000Н, т.е. Ро < Рmax, (5610 Н< 10000Н), следовательно назначенная подача S = 0,14 мм/зуб допустима.

Определяем силу по которой рассчитывают оправку на изгиб, Н:

, (1.25)

где Рy = 40%, от силы резания Рz, Н;

Н.

Мощность затрачиваемая на резание (эффективная), кВт:

, (1.26)

кВт.

Проверка мощности привода станка Nрез<Nшп, кВт:

шп=Nд*η, (1.27)

где Nшп - мощность развиваемая станком, кВт; Nд - 14кВт мощность электродвигателя привода главного движения станка; η - 0,9 коэффициент уточнения.

шп = 14*0,9 = 12,6кВт.

Мощность затраченная на резание меньше мощности развиваемой станком 9,625<12,6 - следовательно обработка поверхности, при рассчитанных режимах резания возможна.

Для загрузки станка по развиваемой мощности и для сокращения времени необходимого на обработку поверхности, используем высоко производительные методы обработки:

в качестве материла режущей части фрезы используем минералокерамику, что позволит увеличить скорость резания и сократит время обработки V = 150м/мин:

частота вращения шпинделя, соответствующая скорости резания, об/мин:

 мин-1.

Из характеристик станка видно, что данное число оборотов возможно nc = 3000об/мин.

Мощность эффективная, кВт:

кВт.

Мощность эффективная не превышает мощности развиваемой приводом станка, следовательно обработка возможна.

Второй переход, фрезеровать чисто бобышки подшипников диам. 120мм на проход

Выбираем торцевую фрезу диаметром D = 100мм, с режущей частью из твердого сплава ВК6.

Назначаем режимы резания, глубина фрезерования t = 2,3мм, ширина фрезерования В= 120мм. Подача при фрезеровании Sz=0,2мм/зуб.

Назначаем период стойкости торцевой фрезы диаметром 100мм при обработке серого чугуна, Т = 180мин. Z - число зубьев фрезы 8.

Скорость резания допускаемая режущими свойствами фрезы, м/мин:

м/мин.

Частота вращения шпинделя, соответствующая найденной скорости резания, об/мин:

 мин-1.

Крутящий момент на шпинделе, Нм:

Н*м.

Определяем силу резания (окружная сила), Н:

Н.

Механизм подачи станка ИР800ПМФ4 допускает осевую силу подачи Рmax(Z) = 10000Н, т.е. Ро < Рmax, (4440 Н< 10000Н), следовательно назначенная подача S = 0,2 мм/зуб допустима.

Определяем силу по которой рассчитывают оправку на изгиб, Н:

Н.

Мощность затрачиваемая на резание (эффективная), кВт:

кВт.

Проверка мощности привода станка Nрез<Nшп, кВт:

Мощность затраченная на резание меньше мощности развиваемой станком 7,25<12,6 - следовательно обработка поверхности, при рассчитанных режимах резания возможна.

Для загрузки станка по развиваемой мощности и для сокращения времени необходимого на обработку поверхности, используем высоко производительные методы обработки:

в качестве материла режущей части фрезы используем минералокерамику, что позволит увеличить скорость резания и сократит время обработки V = 170м/мин:

частота вращения шпинделя, соответствующая скорости резания, об/мин:

 мин-1.

Из характеристик станка видно, что данное число оборотов возможно nc = 3000об/мин.

Мощность эффективная, кВт:

кВт.

Мощность эффективная не превышает мощности развиваемой приводом станка, следовательно обработка возможна.

Третий переход. фрезеровать предварительно бобышку подшипника диам. 125мм на проход [ 10 ,c.358] .

Выбираем торцевую фрезу диаметром D = 100мм, с режущей частью из твердого сплава ВК6.

Назначаем режимы резания, глубина фрезерования t = 4,0мм, ширина фрезерования В= 125мм. Подача при фрезеровании Sz=0,14мм/зуб.

Назначаем период стойкости торцевой фрезы диаметром 100мм при обработке серого чугуна, Т = 180мин. Z - число зубьев фрезы 8.

Скорость резания допускаемая режущими свойствами фрезы, м/мин:

м/мин.

Частота вращения шпинделя, соответствующая найденной скорости резания, об/мин:

 мин-1.

Крутящий момент на шпинделе, Нм:

Н*м.

Определяем силу резания (окружная сила), Н:

Н.

Механизм подачи станка ИР800ПМФ4 допускает осевую силу подачи Рmax(Z) = 10000Н, т.е. Ро < Рmax, (5847 Н< 10000Н), следовательно назначенная подача S = 0,14 мм/зуб допустима.

Определяем силу по которой рассчитывают оправку на изгиб, Н:

Н.

Мощность затрачиваемая на резание (эффективная), кВт:

кВт.

Проверка мощности привода станка Nрез<Nшп, кВт:

Мощность затраченная на резание меньше мощности развиваемой станком 10,03<12,6 - следовательно обработка поверхности, при рассчитанных режимах резания возможна.

Для загрузки станка по развиваемой мощности и для сокращения времени необходимого на обработку поверхности, используем высоко производительные методы обработки:

в качестве материла режущей части фрезы используем минералокерамику, что позволит увеличить скорость резания и сократит время обработки V = 130м/мин:

частота вращения шпинделя, соответствующая скорости резания, об/мин:

 мин-1.

Из характеристик станка видно, что данное число оборотов возможно nc = 3000об/мин.

Мощность эффективная, кВт:

кВт.

Мощность эффективная не превышает мощности развиваемой приводом станка, следовательно обработка возможна.

Четвертый переход, фрезеровать чисто бобышки подшипников диам. 125мм на проход

Выбираем торцевую фрезу диаметром D = 100мм, с режущей частью из твердого сплава ВК6.

Назначаем режимы резания, глубина фрезерования t = 2,3мм, ширина фрезерования В= 125мм. Подача при фрезеровании Sz=0,2мм/зуб.

Назначаем период стойкости торцевой фрезы диаметром 100мм при обработке серого чугуна, Т = 180мин. Z - число зубьев фрезы 8.

Скорость резания допускаемая режущими свойствами фрезы, м/мин:

м/мин.

Частота вращения шпинделя, соответствующая найденной скорости резания, об/мин:

 мин-1.

Крутящий момент на шпинделе, Нм:

Н*м.

Определяем силу резания (окружная сила), Н:

Н.

Механизм подачи станка ИР800ПМФ4 допускает осевую силу подачи Рmax(Z) = 10000Н, т.е. Ро < Рmax, (4626 Н< 10000Н), следовательно назначенная подача S = 0,2 мм/зуб допустима.

Определяем силу по которой рассчитывают оправку на изгиб, Н:

Н.

Мощность затрачиваемая на резание (эффективная), кВт:

кВт.

Проверка мощности привода станка Nрез<Nшп, кВт:

Мощность затраченная на резание меньше мощности развиваемой станком 7,55<12,6 - следовательно обработка поверхности, при рассчитанных режимах резания возможна.

Для загрузки станка по развиваемой мощности и для сокращения времени необходимого на обработку поверхности, используем высоко производительные методы обработки:

в качестве материла режущей части фрезы используем минералокерамику, что позволит увеличить скорость резания и сократит время обработки V = 170м/мин: частота вращения шпинделя, соответствующая скорости резания, об/мин:

 мин-1.

Из характеристик станка видно, что данное число оборотов возможно nc = 3000об/мин. Мощность эффективная, кВт:

кВт.

Мощность эффективная не превышает мощности развиваемой приводом станка, следовательно обработка возможна.

Пятый переход. сверлить 12 отв.св.Ø9 в размер 20мм [ 10 ,c.358].

Выбираем сверло диаметром 9мм, из быстрорежущей стали Р6М5.

Назначаем режим резания, подача при сверлении чугуна НВ>170, диаметр сверла 8 - 10 мм, S = 0,24 - 0,31 мм/об.

Назначаем период стойкости сверла, диаметр D = 9мм при обработке серого чугуна сверлом из быстрорежущей стали, Т = 35мин.

Скорость резания, допускаемая режущими свойствами сверла, м/мин:

, (1.28)

где, Сv - 14,7 коэффициент;

q,y,m, - 0,25 ; 0,55 ; 0,125 показатели степеней ;

Кv - поправочный коэффициент на скорость резания:

, (1.29)

Кмv - коэффициент, учитывающий влияние физико-механических свойств обрабатываемого материала на скорость резания:

 , (1.30)

v - 1,3 показатель степени :

.

Киv - 1,0 коэффициент, учитывающий влияние инструментального материала на скорость резания ;

Кlv - 1,0 коэффициент поправочный на скорость резания при сверлении, учитывающий глубину обрабатываемого отверстия:

;

м/мин.

Частота вращения шпинделя, соответствующая найденной скорости резания, об/мин:

 мин-1.

Крутящий момент от сил сопротивления резанию при сверлении, Нм:

, (1.31)

где, См -0,021 коэффициент;

q,y - 2,0 ;0,8 показатели степеней .

Н*м.

Определяем осевую силу, Н:

, (1.32)

где, Ср - 42,7 коэффициент ;

q,y - 1,0 и 0,8 показатели степеней ;

Кр - поправочный коэффициент:

, (1.33)

.

Н.

Механизм подачи станка ИР800ПМФ4 допускает осевую силу подачи Рmax(Z) = 10000Н, т.е. Ро < Рmax, (1447Н<10000Н), следовательно назначенная подача S = 0,24 мм/об допустима.

Мощность затрачиваемая на резание, кВт:

, (1.34)

кВт.

Мощность затраченная на резание меньше мощности развиваемой станком 0,6<12,6 - следовательно обработка отверстия, при рассчитанных режимах резания возможна.

Шестой переход. сверлить 6 отв.св.Ø6 в размер 16мм [ 10 ,c.358].

Выбираем сверло диаметром 6мм, из быстрорежущей стали Р6М5.

Назначаем режим резания, подача при сверлении чугуна НВ>170, диаметр сверла 4 - 8 мм, S = 0,12 - 0,21 мм/об.

Назначаем период стойкости сверла, диаметр D = 6мм при обработке серого чугуна сверлом из быстрорежущей стали, Т = 30мин.

Скорость резания, допускаемая режущими свойствами сверла, м/мин:

м/мин.

Частота вращения шпинделя, соответствующая найденной скорости резания, об/мин:

 мин-1.

Крутящий момент от сил сопротивления резанию при сверлении, Нм:

Н*м.

Определяем осевую силу, Н:

Н.

Механизм подачи станка ИР800ПМФ4 допускает осевую силу подачи Рmax(Z) = 10000Н, т.е. Ро < Рmax, (700Н<10000Н), следовательно назначенная подача S = 0,16 мм/об допустима.

Мощность затрачиваемая на резание, кВт:

кВт.

Мощность затраченная на резание меньше мощности развиваемой станком 0,32<12,6 - следовательно обработка отверстия, при рассчитанных режимах резания возможна.

Седьмой переход. сверлить 4 отв.св.Ø4 в размер 6мм [ 10 ,c.358].

Выбираем сверло диаметром 4мм, из быстрорежущей стали Р6М5.

Назначаем режим резания, подача при сверлении чугуна НВ>170, диаметр сверла 2 - 4 мм, S = 0,09 - 0,12 мм/об.

Назначаем период стойкости сверла, диаметр D = 4мм при обработке серого чугуна сверлом из быстрорежущей стали, Т = 20мин.


м/мин.

Частота вращения шпинделя, соответствующая найденной скорости резания, об/мин:

 мин-1.

Крутящий момент от сил сопротивления резанию при сверлении, Нм:

Н*м.

Определяем осевую силу, Н:

Н.

Механизм подачи станка ИР800ПМФ4 допускает осевую силу подачи Рmax(Z) = 10000Н, т.е. Ро < Рmax, (294Н<10000Н), следовательно назначенная подача S = 0,09 мм/об допустима.

Мощность затрачиваемая на резание, кВт:

кВт.

Мощность затраченная на резание меньше мощности развиваемой станком 0,2<12,6 - следовательно обработка отверстия, при рассчитанных режимах резания возможна.

Восьмой переход. сверлить 2 отв.св.Ø6 на проход [ 10 ,c.358].

Выбираем сверло диаметром 6мм, из быстрорежущей стали Р6М5.

Назначаем режим резания, подача при сверлении чугуна НВ>170, диаметр сверла 4 - 8 мм, S = 0,12 - 0,21 мм/об.

Назначаем период стойкости сверла, диаметр D = 6мм при обработке серого чугуна сверлом из быстрорежущей стали, Т = 30мин.

Скорость резания, допускаемая режущими свойствами сверла, м/мин:

м/мин.

Частота вращения шпинделя, соответствующая найденной скорости резания, об/мин:

 мин-1.

Крутящий момент от сил сопротивления резанию при сверлении, Нм:

Н*м.

Определяем осевую силу, Н:

Н.

Механизм подачи станка ИР800ПМФ4 допускает осевую силу подачи Рmax(Z) = 10000Н, т.е. Ро < Рmax, (700Н<10000Н), следовательно назначенная подача S = 0,16 мм/об допустима.

Мощность затрачиваемая на резание, кВт:

кВт.

Мощность затраченная на резание меньше мощности развиваемой станком 0,32<12,6 - следовательно обработка отверстия, при рассчитанных режимах резания возможна. Девятый переход. сверлить 4 отв.св.Ø6 в размер 16мм [ 10 ,c.358]. Выбираем сверло диаметром 6мм, из быстрорежущей стали Р6М5. Назначаем режим резания, подача при сверлении чугуна НВ>170, диаметр сверла 4 - 8 мм, S = 0,12 - 0,21 мм/об.

Назначаем период стойкости сверла, диаметр D = 6мм при обработке серого чугуна сверлом из быстрорежущей стали, Т = 30мин.

Скорость резания, допускаемая режущими свойствами сверла, м/мин:

м/мин.

Частота вращения шпинделя, соответствующая найденной скорости резания, об/мин:

 мин-1.

Крутящий момент от сил сопротивления резанию при сверлении, Нм:

Н*м.

Определяем осевую силу, Н:

Н.

Механизм подачи станка ИР800ПМФ4 допускает осевую силу подачи Рmax(Z) = 10000Н, т.е. Ро < Рmax, (700Н<10000Н), следовательно назначенная подача S = 0,16 мм/об допустима.

Мощность затрачиваемая на резание, кВт:

кВт.

Мощность затраченная на резание меньше мощности развиваемой станком 0,32<12,6 - следовательно обработка отверстия, при рассчитанных режимах резания возможна.

Десятый переход. растачивание предварительное отв.Ø80мм на проход [ 10 ,c.358].

Выбираем расточную оправку Ø80мм и вылетом 260мм для обработки сквозных отверстий, с режущей частью из композитного материала на основе нитрида бора марки 05.

Назначаем режимы резания, глубина резания t = 3,5мм, при параметре шероховатости Ra6,3мкм. Подачу при растачивании выбираем S = 0,2мм/об.

Назначаем период стойкости лезвия резца Т = 90мин.

Скорость резания при растачивании, м/мин:

, (1.35)

где, Сv - 240 коэффициент;

х,y,m, - 0,2 ; 0,4 ; 0,28 показатели степеней;

Кv - поправочный коэффициент на скорость резанья:

, (1.36)

Кмv - коэффициент, учитывающий влияние физико-механических свойств обрабатываемого материала на скорость резания:

 , (1.37)

v -1,25 показатель степени ;

.

Киv - 1,0 коэффициент, учитывающий влияние инструментального материала на скорость резания;

Кпv - 0,85 коэффициент поправочный на скорость резания при растачивании, учитывающий состояние поверхности заготовки;

,

м/мин.

Определяем силу резания при растачивании, Н:

, (1.38)

где, Ср - 123 коэффициент;

х,y,п - 1,0; 0,85; 0 показатели степеней ;

Кр - поправочный коэффициент:

, (1.39)

где Кмр - коэффициент, учитывающий влияние качества обрабатываемого материала:

.

- коэффициенты, учитывающие влияние геометрических параметров режущей части инструмента на составляющую силы резания при обработке чугуна:

,

Н.

Мощность затрачиваемая на резание, кВт:

кВт.

Проверка мощности привода станка Nрез<Nшп, кВт: мощность затраченная на резание меньше мощности развиваемой станком 1,3<12,6 - следовательно, растачивание отверстия при рассчитанных режимах резания возможно.

Для загрузки станка по развиваемой мощности и для сокращения времени необходимого на обработку поверхности, используем высоко производительные методы обработки:

в качестве материла режущей части расточной оправки используем минералокерамику на основе нитрида бора марки 05, что позволит увеличить скорость резания и сократит время обработки V = 300 - 1000м/мин: - 600м/мин.

Частота вращения шпинделя, соответствующая скорости резания, об/мин:

об/мин.

Мощность эффективная, кВт:

кВт.

Мощность эффективная не превышает мощности развиваемой приводом станка, следовательно обработка возможна.

Одиннадцатый переход. растачивание черновое отв.Ø80мм на проход

Выбираем расточную оправку Ø80мм и вылетом 260мм для обработки сквозных отверстий, с режущей частью из композитного материала на основе нитрида бора марки 05.

Назначаем режимы резания, глубина резания t = 2,0мм. Подачу при растачивании выбираем S = 0,15мм/об.

Назначаем период стойкости лезвия резца Т = 90мин.

Скорость резания при растачивании, м/мин:

м/мин.

Определяем силу резания при растачивании, Н:

Н.

Мощность затрачиваемая на резание, кВт:

кВт.

Проверка мощности привода станка Nрез<Nшп, кВт:

мощность затраченная на резание меньше мощности развиваемой станком 0,7<12,6 - следовательно, растачивание отверстия при рассчитанных режимах резания возможно.

Для загрузки станка по развиваемой мощности и для сокращения времени необходимого на обработку поверхности, используем высоко производительные методы обработки:

в качестве материла режущей части расточной оправки используем минералокерамику на основе нитрида бора марки 05, что позволит увеличить скорость резания и сократит время обработки V = 300 - 1000м/мин: - 750м/мин.

Частота вращения шпинделя, соответствующая скорости резания, об/мин:

об/мин.

Мощность эффективная, кВт:

кВт.

Мощность эффективная не превышает мощности развиваемой приводом станка, следовательно обработка возможна.

Двенадцатый переход. растачивание чистовое отв.Ø80мм на проход

Выбираем расточную оправку Ø80мм и вылетом 260мм для обработки сквозных отверстий, с режущей частью из композитного материала на основе нитрида бора марки 05.

Назначаем режимы резания, глубина резания t = 0,4мм. Подачу при растачивании выбираем S = 0,15мм/об.

Назначаем период стойкости лезвия резца Т = 90мин.

Скорость резания при растачивании, м/мин:

м/мин.

Определяем силу резания при растачивании, Н:

Н.

Мощность затрачиваемая на резание, кВт:

кВт.

Проверка мощности привода станка Nрез<Nшп, кВт:

мощность затраченная на резание меньше мощности развиваемой станком 0,2<12,6 - следовательно, растачивание отверстия при рассчитанных режимах резания возможно.

Для загрузки станка по развиваемой мощности и для сокращения времени необходимого на обработку поверхности, используем высоко производительные методы обработки:

в качестве материла режущей части расточной оправки используем минералокерамику на основе нитрида бора марки 05, что позволит увеличить скорость резания и сократит время обработки V = 300 - 1000м/мин: - 750м/мин.

Частота вращения шпинделя, соответствующая скорости резания, об/мин:

об/мин.

Мощность эффективная, кВт:

кВт.

Мощность эффективная не превышает мощности развиваемой приводом станка, следовательно обработка возможна.

Тринадцатый переход. растачивание тонкое отв.Ø80мм на проход

Выбираем расточную оправку Ø80мм и вылетом 260мм для обработки сквозных отверстий, с режущей частью из композитного материала на основе нитрида бора марки 05.

Назначаем режимы резания, глубина резания t = 0,1мм. Подачу при растачивании выбираем S = 0,1мм/об. Назначаем период стойкости лезвия резца Т = 90мин. Скорость резания при растачивании, м/мин:

м/мин.

Определяем силу резания при растачивании, Н:

Н.

Мощность затрачиваемая на резание, кВт:

кВт.

Проверка мощности привода станка Nрез<Nшп, кВт:

мощность затраченная на резание меньше мощности развиваемой станком 0,06<12,6 - следовательно, растачивание отверстия при рассчитанных режимах резания возможно.

Для загрузки станка по развиваемой мощности и для сокращения времени необходимого на обработку поверхности, используем высоко производительные методы обработки:

в качестве материла режущей части расточной оправки используем минералокерамику на основе нитрида бора марки 05, что позволит увеличить скорость резания и сократит время обработки V = 300 - 1000м/мин: - 750м/мин.

Частота вращения шпинделя, соответствующая скорости резания, об/мин:

об/мин.

Мощность эффективная, кВт:

кВт.

Мощность эффективная не превышает мощности развиваемой приводом станка, следовательно обработка возможна.

Четырнадцатый переход. растачивание предварительное отв.Ø82мм на проход [ 10 ,c.358].

Выбираем расточную оправку Ø82мм и вылетом 150мм для обработки сквозных отверстий, с режущей частью из композитного материала на основе нитрида бора марки 05.

Назначаем режимы резания, глубина резания t = 3,0мм. Подачу при растачивании выбираем S = 0,3мм/об.

Назначаем период стойкости лезвия резца Т = 90мин.

Скорость резания при растачивании, м/мин:

м/мин.

Определяем силу резания при растачивании, Н:

Н.

Мощность затрачиваемая на резание, кВт:

кВт.

Проверка мощности привода станка Nрез<Nшп, кВт:

мощность затраченная на резание меньше мощности развиваемой станком 1,4<12,6 - следовательно, растачивание отверстия при рассчитанных режимах резания возможно.

Для загрузки станка по развиваемой мощности и для сокращения времени необходимого на обработку поверхности, используем высоко производительные методы обработки:

в качестве материла режущей части расточной оправки используем минералокерамику на основе нитрида бора марки 05, что позволит увеличить скорость резания и сократит время обработки V = 300 - 1000м/мин: - 500м/мин.

Частота вращения шпинделя, соответствующая скорости резания, об/мин:

об/мин.

Мощность эффективная, кВт:

кВт.

Мощность эффективная не превышает мощности развиваемой приводом станка, следовательно обработка возможна.

Пятнадцатый переход. растачивание черновое отв.Ø82мм на проход [ 10 ,c.358].

Выбираем расточную оправку Ø82мм и вылетом 150мм для обработки сквозных отверстий, с режущей частью из композитного материала на основе нитрида бора марки 05.

Назначаем режимы резания, глубина резания t = 1,5мм. Подачу при растачивании выбираем S = 0,2мм/об.

Назначаем период стойкости лезвия резца Т = 90мин.

Скорость резания при растачивании, м/мин:

м/мин.

Определяем силу резания при растачивании, Н:

Н.

Мощность затрачиваемая на резание, кВт:

кВт.

Проверка мощности привода станка Nрез<Nшп, кВт:

мощность затраченная на резание меньше мощности развиваемой станком 0,65<12,6 - следовательно, растачивание отверстия при рассчитанных режимах резания возможно.

Для загрузки станка по развиваемой мощности и для сокращения времени необходимого на обработку поверхности, используем высоко производительные методы обработки:

в качестве материла режущей части расточной оправки используем минералокерамику на основе нитрида бора марки 05, что позволит увеличить скорость резания и сократит время обработки V = 300 - 1000м/мин: - 750м/мин.

Частота вращения шпинделя, соответствующая скорости резания, об/мин:

об/мин.

Мощность эффективная, кВт:

кВт.

Мощность эффективная не превышает мощности развиваемой приводом станка, следовательно обработка возможна.

Шестнадцатый переход. растачивание чистовое отв.Ø82мм на проход [ 10 ,c.358].

Выбираем расточную оправку Ø82мм и вылетом 150мм для обработки сквозных отверстий, с режущей частью из композитного материала на основе нитрида бора марки 05.

Назначаем режимы резания, глубина резания t = 0,5мм. Подачу при растачивании выбираем S = 0,15мм/об.

Назначаем период стойкости лезвия резца Т = 90мин.

Скорость резания при растачивании, м/мин:

м/мин.

Определяем силу резания при растачивании, Н:

Н.

Мощность затрачиваемая на резание, кВт:

кВт.

Проверка мощности привода станка Nрез<Nшп, кВт:

мощность затраченная на резание меньше мощности развиваемой станком 0,24<12,6 - следовательно, растачивание отверстия при рассчитанных режимах резания возможно.

Для загрузки станка по развиваемой мощности и для сокращения времени необходимого на обработку поверхности, используем высоко производительные методы обработки:

в качестве материла режущей части расточной оправки используем минералокерамику на основе нитрида бора марки 05, что позволит увеличить скорость резания и сократит время обработки V = 300 - 1000м/мин: - 750м/мин.

Частота вращения шпинделя, соответствующая скорости резания, об/мин:

об/мин.

Мощность эффективная, кВт:

кВт.

Мощность эффективная не превышает мощности развиваемой приводом станка, следовательно обработка возможна.

Семнадцатый переход. растачивание тонкое отв.Ø82мм на проход [ 10 ,c.358].

Выбираем расточную оправку Ø82мм и вылетом 150мм для обработки сквозных отверстий, с режущей частью из композитного материала на основе нитрида бора марки 05.

Назначаем режимы резания, глубина резания t = 0,2мм. Подачу при растачивании выбираем S = 0,1мм/об.

Назначаем период стойкости лезвия резца Т = 90мин.

Скорость резания при растачивании, м/мин:

м/мин.

Определяем силу резания при растачивании, Н:

Н.

Мощность затрачиваемая на резание, кВт:

кВт.

Проверка мощности привода станка Nрез<Nшп, кВт:

мощность затраченная на резание меньше мощности развиваемой станком 0,1<12,6 - следовательно, растачивание отверстия при рассчитанных режимах резания возможно.

Для загрузки станка по развиваемой мощности и для сокращения времени необходимого на обработку поверхности, используем высоко производительные методы обработки:

в качестве материла режущей части расточной оправки используем минералокерамику на основе нитрида бора марки 05, что позволит увеличить скорость резания и сократит время обработки V = 300 - 1000м/мин: - 750м/мин.

Частота вращения шпинделя, соответствующая скорости резания, об/мин:

об/мин.

Мощность эффективная, кВт:

кВт.

Мощность эффективная не превышает мощности развиваемой приводом станка, следовательно обработка возможна.

Восемнадцатый переход: нарезание резьбы в 12 отверстиях М12 на глубину 18мм [10,c.358].

Выбираем машинный метчик М12, с режущей частью из быстрорежущей стали Р6М5.

Назначаем режим резания, подача при нарезании резьбы метчиком является самоподачей инструмента.

Назначаем период стойкости метчика при обработке серого чугуна, Т = 90мин.

Скорость резания допускаемая режущими свойствами метчика, а так же быстроходностью оборудования и мощностью его привода, скорость должна быть максимальной, м/мин: V = 4м/мин.

Частота вращения шпинделя, соответствующая скорости резания, об/мин:

 мин-1.

Крутящий момент от сил сопротивления резанию при нарезании резьбы метчиком, Нм:

, (1.40)

где, См - 0,0130 коэффициент;

q,y - 1,4 ; 1,5 показатели степеней ;

Р - 1,5мм шаг резьбы,.

Нм.

Мощность затрачиваемая на нарезание резьбы метчиком, кВт:

кВт.

Проверка мощности привода станка Nрез<Nшп, кВт:

мощность затраченная на резание меньше мощности развиваемой станком 1,3<12,6 - следовательно нарезание резьбы, при рассчитанных режимах резания возможно.

Девятнадцатый переход: нарезание резьбы в 6 отверстиях М8 на глубину 14мм [10,c.358].

Выбираем машинный метчик М8, с режущей частью из быстрорежущей стали Р6М5.

Назначаем режим резания, подача при нарезании резьбы метчиком является самоподачей инструмента.

Назначаем период стойкости метчика при обработке серого чугуна, Т = 90мин.

Скорость резания допускаемая режущими свойствами метчика, а так же быстроходностью оборудования и мощностью его привода, скорость должна быть максимальной, м/мин: V = 4м/мин.

Частота вращения шпинделя, соответствующая скорости резания, об/мин:

 мин-1.

Крутящий момент от сил сопротивления резанию при нарезании резьбы метчиком, Нм:

Р - 1,5мм шаг резьбы,.

Нм.

Мощность затрачиваемая на нарезание резьбы метчиком, кВт:

кВт.

Проверка мощности привода станка Nрез<Nшп, кВт:

мощность затраченная на резание меньше мощности развиваемой станком 1,15<12,6 - следовательно нарезание резьбы, при рассчитанных режимах резания возможно.

Двадцатый переход: нарезание резьбы в 4 отверстиях М6 на глубину 5мм [10,c.358].

Выбираем машинный метчик М6, с режущей частью из быстрорежущей стали Р6М5.

Назначаем режим резания, подача при нарезании резьбы метчиком является самоподачей инструмента.

Назначаем период стойкости метчика при обработке серого чугуна, Т = 90мин.

Скорость резания допускаемая режущими свойствами метчика, а так же быстроходностью оборудования и мощностью его привода, скорость должна быть максимальной, м/мин: V = 4м/мин.

Частота вращения шпинделя, соответствующая скорости резания, об/мин:

 мин-1.

Крутящий момент от сил сопротивления резанию при нарезании резьбы метчиком, Нм: Р - 1мм шаг резьбы,.

Нм.

Мощность затрачиваемая на нарезание резьбы метчиком, кВт:

кВт.

Проверка мощности привода станка Nрез<Nшп, кВт:

мощность затраченная на резание меньше мощности развиваемой станком 0,52<12,6 - следовательно нарезание резьбы, при рассчитанных режимах резания возможно.

Двадцать первый переход: нарезание резьбы в 4 отверстиях М8 на глубину 14мм.

Выбираем машинный метчик М8, с режущей частью из быстрорежущей стали Р6М5.

Назначаем режим резания, подача при нарезании резьбы метчиком является самоподачей инструмента.

Назначаем период стойкости метчика при обработке серого чугуна, Т = 90мин.

Скорость резания допускаемая режущими свойствами метчика, а так же быстроходностью оборудования и мощностью его привода, скорость должна быть максимальной, м/мин: V = 4м/мин.

Частота вращения шпинделя, соответствующая скорости резания, об/мин:

 мин-1.

Крутящий момент от сил сопротивления резанию при нарезании резьбы метчиком, Нм: Р - 1мм шаг резьбы,.

Нм.

Мощность затрачиваемая на нарезание резьбы метчиком, кВт:

кВт.

Проверка мощности привода станка Nрез<Nшп, кВт:

мощность затраченная на резание меньше мощности развиваемой станком 0,6<12,6 - следовательно нарезание резьбы, при рассчитанных режимах резания возможно.

Двадцать второй переход. сверлить отв.св.Ø14 на проход [ 10 ,c.358].

Выбираем сверло диаметром 14мм, из быстрорежущей стали Р6М5.

Назначаем режим резания, подача при сверлении чугуна НВ>170, диаметр сверла 10 - 18 мм, S = 0,31 - 0,42 мм/об.

Назначаем период стойкости сверла, диаметр D = 14мм при обработке серого чугуна сверлом из быстрорежущей стали, Т = 35мин.

Скорость резания, допускаемая режущими свойствами сверла, м/мин:

м/мин.

Частота вращения шпинделя, соответствующая найденной скорости резания, об/мин:

 мин-1.

Крутящий момент от сил сопротивления резанию при сверлении, Нм:

Н*м.

Определяем осевую силу, Н:

Н.

Механизм подачи станка ИР800ПМФ4 допускает осевую силу подачи Рmax(Z) = 10000Н, т.е. Ро < Рmax, (3045Н<10000Н), следовательно назначенная подача S = 0,35 мм/об допустима.

Мощность затрачиваемая на резание, кВт:

кВт.

Мощность затраченная на резание меньше мощности развиваемой станком 1,12<12,6 - следовательно обработка отверстия, при рассчитанных режимах резания возможна.

Двадцать третий переход: нарезание резьбы в отверстии М16 на проход.

Выбираем машинный метчик М16, с режущей частью из быстрорежущей стали Р6М5.

Назначаем режим резания, подача при нарезании резьбы метчиком является самоподачей инструмента.

Назначаем период стойкости метчика при обработке серого чугуна, Т = 90мин. Скорость резания допускаемая режущими свойствами метчика, а так же быстроходностью оборудования и мощностью его привода, скорость должна быть максимальной, м/мин: V = 4м/мин. Частота вращения шпинделя, соответствующая скорости резания, об/мин:

 мин-1.

Крутящий момент от сил сопротивления резанию при нарезании резьбы метчиком, Нм:

Р - 2мм шаг резьбы,.

Нм.

Мощность затрачиваемая на нарезание резьбы метчиком, кВт:

кВт.

Проверка мощности привода станка Nрез<Nшп, кВт:

мощность затраченная на резание меньше мощности развиваемой станком 2,2<12,6 - следовательно нарезание резьбы, при рассчитанных режимах резания возможно.

1.10 Нормирование операций механической обработки детали

Технические нормы времени в условиях серийного производства возможно назначение по укрупненным нормам с применением типовой операции φк.[ 12 ,c.157]

После определения содержания операций, выбора оборудования, инструментов и расчета режимов резания нормы времени определяются в такой последовательности:

на основании рассчитанных режимов работы оборудования вычисляется основное (технологическое) время То;

по содержанию каждого перехода устанавливается необходимый комплекс приемов вспомогательной работы и определяется вспомогательное время Тв [ 10 ,c.603] с учетом возможных и целесообразных совмещений и перекрытий;

по нормативам в зависимости от операции и оборудования устанавливается время на обслуживание рабочего места, отдых и естественные надобности аобс и аотл;

определяется норма штучного времени Тшт;

устанавливается состав подготовительно-заключительной работы, вычисляется подготовительно-заключительное время Тпз [ 10 ,c,604] и штучно-калькуляционное время Тшк [12 ,c.161].

Основное (технологическое) время То затрачивается на непосредственное осуществление технологического процесса, т. е. на изменение формы, размеров и качества обрабатываемой поверхности детали.

Вспомогательное время Тв суммируется из следующих элементов:

время на установку и снятие детали;

время на переустановку детали;

время на измерение деталей (если оно не может быть перекрыто машинным временем).

Вспомогательное время зависит от ряда факторов: измеряемого размера и применяемого инструмента, способа достижения размера (мерным инструментом, настройкой системы СПИД на размер или пробными промерами) и, наконец, от точности измерения.

В состав подготовительно-заключительного времени входит ознакомление с работой, настройка оборудования на выполнение данной работы и на требуемые режимы резания, пробная обработка деталей, получение на рабочем месте заданий, заготовок, инструмента, приспособлений, сдача продукции и (иногда) доставка на рабочее место инструмента и приспособлений и сдача их в кладовую после окончания работы. Подготовительно-заключительное время задается по нормативам в минутах и зависит от характера и объема подготовительных работ.

Операция 035 Фрезерование предварительное, поверхности Ø120:

основное время обработки:

 (1.41)

где i - число проходов;

Lp - расчетная длина рабочего хода;

So - подача на оборот.

p=L0 + lвр + lсх , (1.42)

где lвр и lсх - величина врезания и величина схода;

Lo - длина обрабатываемой поверхности.

p =376+2+2=380 мм.

мин.

вспомогательное время:

Твуспер; (1.43)

Тв= 0,38+0,88=1,26 мин.

операционное время:

Топов мин, (1.44)

Топ =0,7+1,26= 1,96 мин.

время обслуживания рабочего места:

Тобс= 6,5% Топ, (1.45)

Тобс=0,065·1,96= 0,13мин.

время перерывов в работе:

Тп=2,5% Топ , (1.46)

Тп=0,025·1,96= 0,05 мин.

штучное время:

Тшт= Тов+ Тобсп. (1.47)

Тшт=0,7 +1,26+0,13+0,05= 2,14мин.

Операция 035 Фрезерование чистовое, поверхности Ø120:

основное время обработки:

p =376+2+2=380 мм.

мин.

вспомогательное время:

Тв= 0,38+0,88=1,26 мин.

операционное время:

Топ =0,7+1,26= 1,96 мин.

время обслуживания рабочего места:

Тобс=0,065·1,96= 0,13мин.

время перерывов в работе:

Тп=0,025·1,96= 0,05 мин.

штучное время:

Тшт=0,7 +1,26+0,13+0,05= 2,14мин.

основное время обработки:

p =393+2+2=397 мм.

мин.

вспомогательное время:

Тв= 0,38+0,88=1,26 мин.

операционное время:

Топ =0,84+1,26= 2,10 мин.

время обслуживания рабочего места:

Тобс=0,065·2,1= 0,13мин.

время перерывов в работе:

Тп=0,025·2,1= 0,05 мин.

штучное время:

Тшт=0,84 +1,26+0,13+0,05= 2,28мин.

Операция 035 Фрезерование чистовое, поверхности Ø125:

основное время обработки:

p =393+2+2=397 мм.

мин.

вспомогательное время:

Тв= 0,38+0,88=1,26 мин.

операционное время:

Топ =0,74+1,26= 2,00 мин.

время обслуживания рабочего места:

Тобс=0,065·2,0= 0,13мин.

время перерывов в работе:

Тп=0,025·2,0= 0,05 мин.

штучное время:

Тшт=0,74 +1,26+0,13+0,05= 2,18мин.

Операция 035 сверлить 12 отв.св.Ø9мм в размер 20мм:

основное время обработки:

p =20+2+2=24 мм.

мин.

вспомогательное время:

Тв= 0,38+0,88=1,26 мин.

операционное время:

Топ =1,36+1,26= 2,62 мин.

время обслуживания рабочего места:

Тобс=0,065·2,62= 0,17мин.

время перерывов в работе:

Тп=0,025·2,62= 0,07 мин.

штучное время:

Тшт=1,36 +1,26+0,17+0,07= 4,12мин.

Операция 035 сверлить 6 отв.св.Ø6 в размер 16мм:

основное время обработки:

p =16+2+2=20 мм.

мин.

вспомогательное время:

Тв= 0,38+0,88=1,26 мин.

операционное время:

Топ =0,5+1,26= 1,76 мин.

время обслуживания рабочего места:

Тобс=0,065·1,76= 0,11мин.

время перерывов в работе:

Тп=0,025·1,76= 0,04 мин.

штучное время:

Тшт=0,5 +1,26+0,11+0,04= 1,49мин.

Операция 035 сверлить 4 отв.св.Ø4 в размер 6мм:

основное время обработки:

p =6+2+2=10 мм.

мин.

вспомогательное время:

Тв= 0,38+0,88=1,26 мин.

операционное время:

Топ =0,15+1,26= 1,41 мин.

время обслуживания рабочего места:

Тобс=0,065·1,41= 0,09мин.

время перерывов в работе:

Тп=0,025·1,41= 0,04 мин.

штучное время:

Тшт=0,15 +1,26+0,09+0,04= 1,54мин.

Операция 035 сверлить 2 отв.св.Ø6 в размер 12мм:

основное время обработки:

p =12+2+2=16 мм.

мин.

вспомогательное время:

Тв= 0,38+0,88=1,26 мин.

операционное время:

Топ =0,13+1,26= 1,39 мин.

время обслуживания рабочего места:

Тобс=0,065·1,39= 0,09мин.

время перерывов в работе:

Тп=0,025·1,39= 0,03 мин.

штучное время:

Тшт=0,13 +1,26+0,09+0,03= 1,51мин.

Операция 035 сверлить 4 отв.св.Ø6 в размер 16мм:

основное время обработки:

Lp =16+2+2=20 мм.

мин.

вспомогательное время:

Тв= 0,38+0,88=1,26 мин.

операционное время:

Топ =0,33+1,26= 1,59 мин.

время обслуживания рабочего места:

Тобс=0,065·1,59= 0,1мин.

время перерывов в работе:

Тп=0,025·1,59= 0,04 мин.

штучное время:

Тшт=0,33 +1,26+0,1+0,04= 1,73мин.

Операция 035 растачивание отв.Ø80мм на проход:

основное время обработки:

p =256+2+2=260 мм.

мин.

вспомогательное время:

Тв= 0,38+0,88=1,26 мин.

операционное время:

Топ =2,43 +1,26= 3,69 мин.

время обслуживания рабочего места:

Тобс=0,065·3,69= 0,24мин.

время перерывов в работе:

Тп=0,025·3,69= 0,09 мин.

штучное время:

Тшт=2,43 +1,26+0,24+0,09= 4,72мин.

Операция 035 растачивание отв.Ø82мм на проход:

основное время обработки:

p =156+2+2=160 мм.

мин.

вспомогательное время:

Тв= 0,38+0,88=1,26 мин.

операционное время:

Топ =1,28 +1,26= 2,54 мин.

время обслуживания рабочего места:

Тобс=0,065·2,54= 0,17мин.

время перерывов в работе:

Тп=0,025·2,54= 0,06 мин.

штучное время:

Тшт=1,28 +1,26+0,17+0,06= 2,77мин.

Операция 035 Нарезание резьбы М12 в 12 отверстиях:

основное время обработки:

p =18+2+2=22 мм.

мин.

вспомогательное время:

Тв= 0,38+0,88=1,26 мин.

операционное время:

Топ =1,8+1,26= 3,06 мин.

время обслуживания рабочего места:

Тобс=0,065·3,06= 0,2мин.

время перерывов в работе:

Тп=0,025·3,06= 0,08 мин.

штучное время:

Тшт=1,8 +1,26+0,2+0,08= 3,34мин.

Операция 035 Нарезание резьбы М8 в 6 отверстиях:

основное время обработки:

p =14+2+2=18 мм.

мин.

вспомогательное время:

Тв= 0,38+0,88=1,26 мин.

операционное время:

Топ =0,5+1,26= 1,76 мин.

время обслуживания рабочего места:

Тобс=0,065·1,76= 0,11 мин.

время перерывов в работе:

Тп=0,025·1,76= 0,04 мин.

штучное время:

Тшт=0,5 +1,26+0,11+0,04= 1,91мин.

Операция 035 Нарезание резьбы М6 в 4 отверстиях:

основное время обработки:

p =5+2+2=9 мм.

мин.

вспомогательное время:

Тв= 0,38+0,88=1,26 мин.

операционное время:

Топ =0,12+1,26= 1,38 мин.

время обслуживания рабочего места:

Тобс=0,065·1,38= 0,09 мин.

время перерывов в работе:

Тп=0,025·1,38= 0,03 мин.

штучное время:

Тшт=0,12 +1,26+0,09+0,03= 1,52мин.

Операция 035 Нарезание резьбы М8 в 4 отверстиях:

основное время обработки:

p =14+2+2=18 мм.

мин.

вспомогательное время:

Тв= 0,38+0,88=1,26 мин.

операционное время:

Топ =0,33+1,26= 1,59 мин.

время обслуживания рабочего места:

Тобс=0,065·1,59= 0,10 мин.

время перерывов в работе:

Тп=0,025·1,59= 0,04 мин.

штучное время:

Тшт=0,33 +1,26+0,10+0,04= 1,73мин.

Операция 035 сверлить отверстие Ø14 на проход:

основное время обработки:

p =12+2+2=16 мм.

мин.

вспомогательное время:

Тв= 0,38+0,88=1,26 мин.

операционное время:

Топ =0,09+1,26= 1,35 мин.

время обслуживания рабочего места:

Тобс=0,065·1,35= 0,09 мин.

время перерывов в работе:

Тп=0,025·1,35= 0,03 мин.

штучное время:

Тшт=0,09 +1,26+0,09+0,03= 1,47мин.

Операция 035 Нарезание резьбы М16 в отверстии на проход:

основное время обработки:

p =12+2+2=16 мм.

мин.

вспомогательное время:

Тв= 0,38+0,88=1,26 мин.

операционное время:

Топ =0,15+1,26= 1,41 мин.

время обслуживания рабочего места:

Тобс=0,065·1,41= 0,09 мин.

время перерывов в работе:

Тп=0,025·1,41= 0,04 мин.

штучное время:

Тшт=0,15 +1,26+0,09+0,04= 1,54мин.

Глава 2. Конструкторская часть

2.1 Разработка конструкции приспособления

Задача конструирования состоит из принятия схемы базирования заготовки, выбор конструкции и размеров установочных элементов приспособления, определение погрешностей возникающих при установке, определение величины необходимой силы закрепления, уточнение схемы и размеров зажимного устройства, общая компоновка приспособления и принцип работы механизма.

В качестве исходных данных конструктор должен иметь чертеж детали и заготовки с техническими требованиями, данные о предшествующей и выполняемой операции, стандарты на детали и узлы станочных приспособлений, альбом конструкций станочных приспособлений и оснастки, а также ознакомительная информация с аналогичными приспособлениями для закрепления типовых деталей.

2.1.1 Описание принципа работы и устройства приспособления

Спроектировано приспособление для закрепления корпуса редуктора, которое устанавливается на стол станка (рис.2.1). На базовой плите 2, при помощи установов 19 установлены два пальца 15, 16. Корпус редуктора устанавливают на пальцы в отверстия диаметром 20Н7 мм. Деталь зажимают два прихвата 3 по одному с каждой стороны, закрепление производится при воздействии штока гидравлического блока 1 на прихват 3. Открепление детали выполняется нажатием сверху на прихват 3 и поворотом его на 90°, при отсутствии давления в гидроблоках. Приспособление крепится к столу посредством 4-х болтов.

Рис.2.1 Приспособление для механической обработки корпуса

Рис.2.1 Приспособление для механической обработки корпуса

2.1.2 Теоретическая схема базирования и определение погрешностей

Схема для определения погрешности установки в приспособлении, показывает положение заготовки в рабочей зоне станка и процесс ее закрепления [10 ,c.145]. Процесс установки включает базирование и закрепление. Базирование - процесс придания заготовке требуемого положения относительно выбранной системы координат. Закрепление - процесс приложения сил к заготовке для обеспечения постоянства и неизменности ее положения достигнутого при базировании. Эти процессы выражаются при помощи погрешностей.

Расчет заключается в определении точности изготовления приспособления по принятым конструктивным параметрам.

На точность обработки влияет ряд технологических факторов, вызывающих общую погрешность , которая не должна превышать допуск  выполняемого размера при обработке заготовки, т.е.должно выполняться условие:

. (2.1)

Допустимая погрешность изготовления приспособления равна:

, (2.2)

где  - допуск выполняемого размера;

 -  коэффициент, учитывающий отклонение рассеяния значений составляющих величин от закона нормального распределения;

 - коэффициент, учитывающий уменьшение предельного значения ,;

 - коэффициент, учитывающий долю погрешности обработки в суммарной погрешности,;

 - погрешность базирования;

 - погрешность закрепления;

 - погрешность установки;

 - погрешность износа установочных элементов;

 - погрешность смещения инструмента;

 - экономическая точность обработки.

Расчетный параметр - размер 210-0,1 ;

;

;

 ;

;

 - для чистового фрезерования;

 - т.к. отсутствуют направляющие элементы для инструмента.

,

Полученная величина погрешности установки  не превышает величины допустимого отклонения, следовательно, приспособление обеспечивает необходимую точность обработки.

.1.3 Силовой расчет привода приспособления

Основное назначение зажимных устройств-приспособлений - обеспечение надежного контакта заготовки с установочными элементами, предупреждение ее смещения и вибрации в процессе обработки. Зажимные устройства используются также для обеспечения правильной установки и центрирования заготовки, выполняя функцию установочно - зажимных устройств.

Величина сил зажима рассчитывается исходя из условия равновесия всех перечисленных сил при полном сохранении контакта базовых поверхностей обрабатываемой детали с установочными элементами приспособления и невозможности сдвига в процессе обработки. По данным расчета режимов резания максимальная сила резания при фрезеровании бобышек подшипников Ø125мм корпуса редуктора, равна:

Перед расчетом величины сил зажима определяем схему установки и закрепления заготовки в приспособлении (рис.2.2) [ 10 ,c.114], место приложения и направление действия сил и их моментов.

Рис.2.2. Схема для расчета сил закрепления.

Составляющая силы резания Рz направлена навстречу силе зажима Рз и стремится оторвать заготовку от опорных точек А, Б и повернуть заготовку вокруг правой опорной точки Б, а составляющая силы резания Рx стремится сдвинуть заготовку в боковом направлении и повернуть заготовку вокруг левой опорной точки А. Сдвигу заготовки препятствует посадка заготовки на пальцы и силы трения возникающие на опорных точках и элементах зажимного механизма.

Для данной схемы закрепления условие равновесия записываем следующим образом:

, ( 2 .3)

для зажимного механизма (ЗМ):

где Pz и Px - окружная и осевая составляющие силы резания;

Рз - необходимая сила зажима заготовки;

f - коэффициенты трения в местах контакта заготовки с опорами и с ЗМ;

К - коэффициент запаса.

Cоставляющие силы резания:

Рx = 0,5Pz =2923 Н.

Коэффициент запаса определяется из произведения:

К =К0×К1×К2×К3×К4×К5, ( 2 .4)

где К0 = 1,5 гарантированный коэффициент запаса;

К1 = 1,2 - коэффициент, учитывающий увеличение сил резания из-за случайных неровностей;

К2 = 1,4 - коэффициент, учитывающий увеличение сил резания вследствие затупления инструмента;

К3 = 1,2 - коэффициент, учитывающий увеличение силы резания при прерывистом резании;

К4 = 1,0 - коэффициент, характеризующий постоянство силы зажима;

К5 = 1,2- коэффициент, характеризующий эргономику зажимного механизма.

К = 1,5×1,2×1,4×1,2×1,0×1,2 » 2,8.


Найденная сила Рз=11460Н реализуется через прихваты. Таким образом, необходимая сила на одном ЗМ равна Рз = 5730Н.

Определяем необходимый диаметр цилиндра гидравлического блока в зависимости от силы зажима:

(м) (2 .5)

р - давление масла, 10 МПа;

η - КПД с учетом потерь на трение 0,93;

≈30мм.

Произведем расчет силы на штоке гидро цилиндра ЗМ (рис. 2.1 ):

 (2 .6)

где D - диаметр цилиндра, 30 мм;

р - давление масла, 10 МПа;

n - КПД с учетом потерь на трение 0,93.


Сила развиваемая гидроблоками превышает необходимую силу зажима заготовки при максимальной силе резания, следовательно обработка детали при рассчитанных режимах резания в сконструированном приспособлении возможна.

.2 Конструирование специального режущего инструмента

Среди многих способов обработки металлов резанием самым распространенным является обработка точением (резцами). Резцы делятся на основные групп: токарные, строгальные, долбежные, расточные и резьбонарезные. В данном случае необходимо разработать оправку расточную для обработки отверстия Æ82Н7[ 8 , 18] (рис.2.5).

Расточная оправка состоит из головки, т.е. рабочей части, и тела, или стержня, служащего для закрепления резца в резцедержателе. Головка резца образуется специальной заточкой и имеет следующие элементы: переднюю поверхность, задние поверхности, режущие кромки и вершину.

Рис. 2.5. Оправка расточная

Проектируемый инструмент состоит из режущей цельной сменной неперетачиваемой ромбической формы пластины, из композита 05, который предназначен для, чернового и чистового растачивания отверстия Æ82Н7, установленный и закрепленный в оправке цилиндрической формы. Пластина закреплена на кассете с помощью винта с шестигранной внутренней поверхностью, положение кассеты регулируется тремя эксцентриковыми винтами в пределах 0,005 мм. Материал режущей пластины - сверх твердый композитный материал CNUN 05 T3 12F/Т ТУ 2-035-808-81.[10,c.371]

Рассчитаем на прочность оправку изготовленную из стали 18ХГТ с наружным диаметром 75мм и вылетом 160мм. Расчет на прочность производим при совместном действии сил растяжения, изгибающих моментов и кручения по формуле эквивалентных напряжений[ 4,c.126 ]:

 (2.14)

где - нормальная сила, в нашем случае равная осевой силе резания, Н; - площадь поперечного сечения оправки, ,

, (2.15)


- изгибающий момент от действия осевой и поперечной сил резания, Нм;

- момент сопротивления изгибу, ;

- крутящий момент от действия окружной силы резания, Нм;

- момент сопротивления кручению, ,

, (2.16)

≈ 82,79*10-6 м3 .

Условие прочности:

, (2.17)

где , для стали 18ХГТ;

, коэффициент запаса;

значения  выбираем по справочнику [4,c.323]  .

Определим изгибающий момент:

, (2.18)

где Рх - 730Н, осевая сила резания;

Lx -0,041м, плечо осевой силы равное радиусу обрабатываемого отверстия;

Ру - 292Н, поперечная сила резания;

Lу - 0,160м, плечо поперечной силы, равное вылету оправки,


Определим крутящий момент:

 (2.19)

где Рz = 1460H, окружная сила резания;

- диаметр обрабатываемого отверстия, м.


Подставляем найденные значения в формулу и определяем эквивалентное напряжение:


Определим коэффициент запаса:


Расчетный коэффициент запаса находится в рекомендуемых пределах, условие прочности выполнено .

Параметры режущей части выбираем согласно рекомендациям [10,ст.320]:

Для данной группы обрабатываемости геометрические параметры режущей части пластины:

- передний угол;

-главный задний угол;

-вспомогательный задний угол;

Материал режущей части CNUN 05 T3 12F/Т ТУ 2-035-808-81, твердость <1500 HRV.

Хвостовая часть - конус 7/24 №50. Предельные отклонения размеров хвостовика устанавливаем по ГОСТ 2848 - 81.

Твердость хвостовой части HRC 42….55.

Заключение

Корпус конического одноступенчатого редуктора относится к деталям второй группы сложности, по произведенному анализу является технологичным с точки зрения конструктивных элементов и всей конструкции в целом. При выпуске деталей в количестве 5000шт определен тип производства - мелкосерийное. Заготовку из серого чугуна СЧ25 получаем методом литья в песчано глинистые формы т.к. себестоимость заготовки по этому методу ниже - 1598,55руб. < 1668,36руб. - литье в оболочковые формы. Расчетом доказано обоснование выбираемого технологического оборудования (станок ИР800ПМФ4) для изготовления корпуса редуктора. Рассчитаны припуски на механическую обработку и заготовку для двух поверхностей корпуса редуктора Ø82Н7 - 2*5,2мм и 160h9 - 2*4,2мм. Выполнен расчет режимов резания на фрезерно - сверлильно-расточную операцию №035, произведена корректировка режимов резания под использование высоко производительных методов обработки. Выполнен расчет основного и штучного времени по переходам технологической операции №035. Сконструировано специальное приспособление с пневмо приводом для обеспечения надежного закрепления и удержания заготовки корпуса редуктора в определенном положении с постоянной силой зажима. Сконструирован специальный режущий инструмент для обработки отверстия Ø82Н7мм, с применением сверх твердых материалов режущей части. Составлен маршрутно-операционный технологический процесс по изготовлению корпуса конического одноступенчатого редуктора.

Библиографический список

1.     ГОСТ 7505-74. Поковки стальные штампованные, допуски, припуски и кузнечные напуски. - Минск : Межгос. Совет по стандартизации, метрологии и сертификации; М.: Изд-во стандартов . - 28с.

2.     Егоров М.Е. Основы проектирования машиностроительных заводов. Изд. 6-е, переработ., и доп. Учебник для машиностроительных вузов. М., "Высшая школа", 1969. - 480 с: ил.

.       Косов Н.П. Технологическая оснастка. Москва "машиностроение" 2005г.

.       Конструирование инструмента Алексеев Г.А. Москва "машиностроение" 1979г.

.       Горбацевич А.Ф., Шкред В.А. Курсовое проектирование по технологии машиностроения. - Минск: Высшая школа, 1975.-289 с.

.       Корсаков B.C. Основы конструирования приспособлений.-2-е изд., перераб. и доп. -М.: Машиностроение, 1983.-277 с.

.       Марочник сталей. Косилова Ф.Г. .-2-е изд., перераб. и доп. -М.: Машиностроение, 2006г.-640с.

.       Нефедов Н.А. Дипломное проектирование в машиностроительных техникумах: Учеб. пособие для техникумов. 2-е изд., перераб. и доп. - М.: Высш. шк., 1986. - 239 с: ил.

.       Справочник технолога-машиностроителя в 2-х т. Т.1 /Под ред. А.Г.Косиловой, Р.К. Мещерякова. 4-еизд., перераб. - М.: Машиностроение, 1986.-656 с.

.       Справочник технолога-машиностроителя в 2-х т. Т.2 /Под ред. А.Г.Косиловой, Р.К. Мещерякова. 4-еизд., перераб. - М.: Машиностроение, 1986.-496 с.

11.   Tехнология конструкционных материалов 5-е издание под ред. Дальского А.М. издат. М. Машиностроение 2003. - 512с.:ил.

.       Аверченков В.И., Горленко О.А., Ильицкий В.Б. Сборник задач и упражнений по ТМС: Учеб. Пособие /Под общ. Ред. О.А. Горленко. - М.: Машиностроение, 1.-192 с.

.       Технология машиностроения. Дипломное проектирование.: учеб. Пособие / С. К. Сысоев, Ю. А. Филиппов, В. А. Левко и др.; под общ.ред. С.К.Сысоев; Сиб. Гос. Аэрокосмич. Ун-т. - Красноярск, 2006. -268с.

.       Филиппов Ю. А. Проектирование машиностроительного производства: справ. - учеб. Пособие для студентов техн. спец. СибГАУ. Красноярск, - 2004. - 88с

Похожие работы на - Проектирование корпуса конического одноступенчатого редуктора

 

Не нашли материал для своей работы?
Поможем написать уникальную работу
Без плагиата!
Без нейросетей!